Bosch GTL 3 Professional – страница 19
Инструкция к Bosch GTL 3 Professional

ﺳرﺎﻓ
| 361
(
D – E ﺮﻮﺼﺗ ﻪﺑ ﺪﻨ هﺎﮕﻧ) ﻢﻈﻨﺗ ﻪﺤﻔﺻ ﺎﺑ رﺎ هﻮﺤﻧ
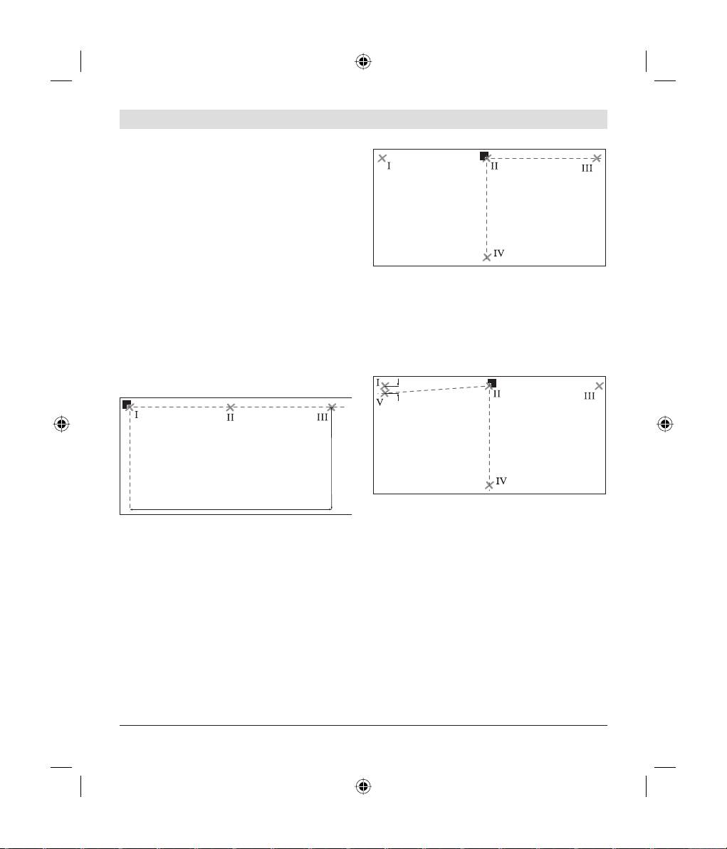
4 x 5 m = 20 m راﺪﻘﻣ ﻪﺑ ﺮﮔ هزاﺪﻧا ﺖﻓﺎﺴﻣ رد
ور ﺮﺑ ار ﺮﮔ هزاﺪﻧا راﺰﺑا ﺪﻧاﻮﺘﻣ ،
10 ﻢﻈﻨﺗ ﻪﺤﻔﺻ ﻪﻠﺳﻮﺑ
:ﺖﺳا ﺮز حﺮﺷ ﻪﺑ زﺎﺠﻣ ﺎﻄﺧ ﺎ فﻼﺘﺧا ﺮﺜﻛاﺪﺣ ،
(ﺮﺘﻣ 20)
.ﺪﻫﺪﺑ راﺮﻗ ،ﺪﺷﺎﺒﻧ ﻢﺤﻣ ﺎ و فﺎﺻ
ً
ﻼﻣﺎ ﻪ ﺤﻄﺳ
20 m x ± 0,4 mm/m* = ± 8 mm
.(ﺮﺘﻤﻠﻣ ± 8 = ﺮﺘﻣ رد ﺮﺘﻤﻠﻣ ± 0,4 x ﺮﺘﻣ 20)
ﺮﮔ هزاﺪﻧا راﺰﺑا ﺐﺼﻧ اﺮﺑ ناﻮﺘﻣ نﺎﻨﭽﻤﻫ ار
10 ﻢﻈﻨﺗ ﻪﺤﻔﺻ
ﺮﺘﻤﻠﻣ 8 mm ﺮﺜﻛاﺪﺣ ﺪﺎﺑ VII و I طﺎﻘﻧ ﻦﺑ d فﻼﺘﺧا ﻪﺠﺘﻧ رد
ﭻﭘ ﻪﻠﺳﻮﺑ ﻢﺤﻣ رﻮﻄﺑ ار ﻢﻈﻨﺗ ﻪﺤﻔﺻ .دﺮﺑ رﺎﺑ ﺰﻧ راﻮد ﻪﺑ
.ﺪﺷﺎﺑ
ﺐﺷ ﺢﻄﺳ ﺎ و راﻮد ﻪﺑ (رازﺎﺑ رد ﺪﺮﺧ ﻞﺑﺎﻗ ﻟﻮﻤﻌﻣ ﭻﭘ)
ﻪﺑ
± 0,2 mm/m ﻪواز ﺖﻗد زا ± 0,4 mm/m راﺪﻘﻣ *
ﺎﺗ ﺪﻨ هدﺎﻔﺘﺳا زاﺮﺗ ﺶ ﻂﺧ زا ﺐﺼﻧ اﺮﺑ .ﺪﻨ ﺐﺼﻧ راد
ﻪﺑ ﻪ 0,2 mm/m لدﺎﻌﻣ ﻪﻨﳑ ﺒﺮﻘﺗ راﺪﻘﻣ هوﻼﻋ
.دﻮﺷ ژﺎﺘﻧﻮﻣ فﺎﺻ
ً
ﻼﻣﺎ و ﺘﺳرﺪﺑ ﻢﻈﻨﺗ ﻪﺤﻔﺻ
،ﺖﺳا هﺪﺷ ﻪﺘﻓﺮﮔ ﺮﻈﻧ رد نﺪﻧﺎﺧﺮﭼ مﺎﮕﻨﻫ ﻪﺑ ﺎﻄﺧ ناﺰﻣ ناﻮﻨﻋ
راﺰﺑا :ﻢﻈﻨﺗ ﻪﺤﻔﺻ ور ﺮﺑ ﺮﮔ هزاﺪﻧا راﺰﺑا نداد راﺮﻗ هﻮﺤﻧ
.دﻮﺷ ﻣ ﺞﺘﻨﻣ و ﻪﺒﺳﺎﺤﻣ
ﻧﺎﺘﲢ ﺖﻤﺴﻗ رد دﻮﺟﻮﻣ
4 ﺎﻫﺎﺑﺮﻨﻫآ ﻪﻠﺳﻮﺑ ار ﺮﮔ هزاﺪﻧا
طﻮﻄﺧ ﻪﺒﺷ .ﺪﻫﺪﺑ راﺮﻗ
10 ﻢﻈﻨﺗ ﻪﺤﻔﺻ ور ﺮﺑ ،هﺎﮕﺘﺳد
ﻠﻤﻋ ﺎﻫ ﺋﺎﻤﻨﻫار
راﺮﻗ ﺖﻌﺿو اﺮﺑ ﺎﻤﺷ ﻪﺑ ﻢﻈﻨﺗ ﻪﺤﻔﺻ ﻻﺎﺑ ﺖﻤﺴﻗ رد رﺰﻟ
ﺎاوز لﺎﻘﺘﻧا اﺮﺑ .ﺪﻨ ﻣ ﻤ ﺮﮔ هزاﺪﻧا راﺰﺑا ﻖﻗد نداد
ﺪﻫﺪﺑ راﺮﻗ ﻦﻣز ور ﺮﺑ زاﺮﺗ رﻮﻄﺑ هراﻮﻤﻫ ار ﺮﮔ هزاﺪﻧا راﺰﺑا
e
أﺪﺒﻣ ﻊﻠﺿ ﻪﺑ ار ﻢﻈﻨﺗ ﻪﺤﻔﺻ ،ﻪﺟرد
45° ﺎ ﻪﺟرد 90°
راﺰﺑا ﻪﭽﻧﺎﻨﭼ .ﺪﻨ ﺐﺼﻧ راﻮد ﻪﺑ (زاﺮﺗ) فﺎﺻ رﻮﻄﺑ اﺮﻧآ ﺎ و
ً
ار ﺮﮔ هزاﺪﻧا راﺰﺑا و ﺪﻫﺪﺑ ﻪﺗ راﻮد هﺪﻣآ ﻮﻠﺟ ﻊﻠﺿ ﺎ و
راﻮد ﻪﺑ ﺎ و دﻮﺸﻧ هداد راﺮﻗ زاﺮﺗ و فﺎﺻ
ﻼﻣﺎ رﻮﻄﺑ ﺮﮔ هزاﺪﻧا
،هﺪﺷ هداد نﺎﺸﻧ ﻢﻈﻨﺗ ﻪﺤﻔﺻ ﻻﺎﺑ ﺖﻤﺴﻗ رد ﻪ ﻪﻧﻮﮕﻧﺎﻤﻫ
و ﻪﺟرد
45° زا ﺮﺘﭼﻮ نآ ﻪواز هﺎﮕﻧآ ،ﺪﺷﺎﺑ هﺪﺸﻧ ﺐﺼﻧ
.ﺪﻫﺪﺑ راﺮﻗ
.دﻮﺑ ﺪﻫاﻮﺧ ﻪﺟرد
90°
.ﺪﻨ بﺎﺨﺘﻧا راﺬﮕﺘﻣﻼﻋ اﺮﺑ ار رﺰﻟ ﻂﺧ ﺰﺮﻣ هراﻮﻤﻫ
e
ﻒﻘﺳ ﺮﮔ هزاﺪﻧا ﻪﺤﻔﺻ / رﺰﻟ فﺪﻫ ﻪﺤﻔﺻ ﺎﺑ رﺎ هﻮﺤﻧ
.ﺪﻨ ﻣ ﺮﻐﺗ ﻪﻠﺻﺎﻓ ﺮﻐﺗ ﺎﺑ رﺰﻟ ﻂﺧ ﺎﻨﻬﭘ
(
A ﺮﻮﺼﺗ ﻪﺑ دﻮﺷ عﻮﺟر)
راﺮﻗ ﻦﻣز ور ﺮﺑ ﻪ ﺮﮔ هزاﺪﻧا راﺰﺑا رﺰﻟ طﻮﻄﺧ ﻮﺗﺮﭘ زا ﺰﮔﺮﻫ
e
ﻞﺑﺎﻗ ،
14 ﻒﻘﺳ ﺮﮔ هزاﺪﻧا ﻪﺤﻔﺻ ﺎ و 9 رﺰﻟ فﺪﻫ ﻪﺤﻔﺻ
هدﺎﻔﺘﺳا ندﺮ زاﺮﺗ و ﻢﻈﻨﺗ اﺮﺑ دﻮﺷ ﻣ هﺪﺑﺎﺗ راﻮد ﻪﺑ و دراد
ﻞﺻاﻮﻓ رد و ﺪﻋﺎﺴﻣﺎﻧ ﻂﺋاﺮﺷ ﺖﲢ ار رﺰﻟ ﺎﻫﻮﺗﺮﭘ ﺮﺘﻬﺑ ندﻮﺑ ﺖؤر
وﺮﻨا زا .دﻮﺷ ﳕ زاﺮﺗ ﺗﺎﻣﻮﺗا رﻮﻄﺑ ﺮﮔ هزاﺪﻧا راﺰﺑا ﻦا .ﺪﻨﻧ
.ﺪﺸﺨﺑ ﻣ دﻮﺒﻬﺑ دﺎز
.دراد فاﺮﺤﻧا و هدﻮﺒﻧ ﻖﻗد راﻮد ﺮﺑ هﺪﺷ ﺲﻌﻨﻣ رﺰﻟ ﻂﺧ
ﺖؤر ﻞﺑﺎﻗ ،
9 رﺰﻟ فﺪﻫ ﻪﺤﻔﺻ هﺪﻨﻨﻛ ﺲﻜﻌﻨﻣ و هﺪﻨﺑﺎﺗزﺎﺑ ﻪﻤﻧ
،ﺎﻫ ﺷﺎ زﺎﺳ ﻒدر و ﻢﻈﻨﺗ اﺮﺑ (ﻊﺟﺮﻣ) أﺪﺒﻣ ﻪﻄﻘﻧ
e
فﺎﻔﺷ ﺮﮕد ﻪﻤﻧ ﻖﺮﻃ زا و دزﺎﺴﻣ ﻦﻜﳑ ار رﺰﻟ ﻮﺗﺮﭘ ﺮﺘﻬﺑ ندﻮﺑ
هزاﺪﻧا راﺰﺑا ﻮﻠﺟ رد
ً
ﺎﻤﻘﺘﺴﻣ رﺰﻟ طﻮﻄﺧ P ﻊﻃﺎﻘﺗ ﻪﻄﻘﻧ
ﻞﺑﺎﻗ ﺰﻧ رﺰﻟ فﺪﻫ ﻪﺤﻔﺻ (ﺖﺸﭘ) ﺐﻘﻋ فﺮﻃ زا رﺰﻟ ﻮﺗﺮﭘ ،نآ
هزاﺪﻧا راﺰﺑا ﺪﺎﺑ ،ﻪواز نداد لﺎﻘﺘﻧا اﺮﺑ .ﺪﺷﺎﺑ ﻣ ﺮﮔ
.ﺖﺳا ﺺﺨﺸﺗ
ﻪﺑ دﻮﺷ عﻮﺟر ،دﻮﺷ هﺪﻧﺎﺧﺮﭼ ﻊﻃﺎﻘﺗ ﻪﻄﻘﻧ ﻦا رد ﺮﮔ
ار (تﺎﻘﻠﻌﺘﻣ)
14 ﻒﻘﺳ ﺮﮔ هزاﺪﻧا ﻪﺤﻔﺻ ناﻮﺗ ﻣ ﻦﻨﭽﻤﻫ
.
F ﺮﻮﺼﺗ
ﻪﺤﻔﺻ ﺪﻨﻧﺎﻤﻫ ﻪﺤﻔﺻ ﻦا .دﺮﺑ رﺎﺑ رﺰﻟ طﻮﻄﺧ نداد نﺎﺸﻧ اﺮﺑ
10 ﻢﻈﻨﺗ ﻪﺤﻔﺻ ور ﺮﺑ
ً
اﺮﺼﺤﻨﻣ ار ﺮﮔ هزاﺪﻧا راﺰﺑا
e
ﻪﻤﻧ و هﺪﻨﻨ ﺲﻌﻨﻣ ،هﺪﻨﺑﺎﺗزﺎﺑ ﻪﻤﻧ اراد ،رﺰﻟ فﺪﻫ
و ﺰﲤ ﻢﻈﻨﺗ ﻪﺤﻔﺻ ﺟرﺎﺧ ﺢﻄﺳ ﻪﭽﻧﺎﻨﭼ .ﺪﻫﺪﺑ راﺮﻗ ﺰﲤ
.ﺖﺳا فﺎﻔﺷ
ﺮﮔ هزاﺪﻧا راﺰﺑا ﺢﻄﺴﻣﺎﻧ ﱳﻓﺮﮔ راﺮﻗ ﺚﻋﺎﺑ ،ﺪﺷﺎﺒﻧ ﺢﻄﺴﻣ
.ددﺮﮔ ﻣ ﺮﮔ هزاﺪﻧا رد ﺎﻄﺧ و هﺎﺒﺘﺷا ﺞﺎﺘﻧ ﻪﺑ ﺮﺠﻨﻣ و هﺪﺷ
Bosch Power Tools 1 609 929 S09 | (15.10.08)
gtl3_ir_1609929S09_001.indd 361gtl3_ir_1609929S09_001.indd 361 15.10.2008 15:03:2315.10.2008 15:03:23

362 |
ﺳرﺎﻓ
ﻂﺧ ﺰﺮﻣ ﺎﺗ ﺪﻧﺎﺧﺮﭽﺑ ﻪﺟرد 45° رﻮﻃ ار ﺮﮔ هزاﺪﻧا راﺰﺑا –
5 m ﻪﻠﺻﺎﻓ رد (ﺪﻧﺎﺧﺮﭽﺑ اﺮﻧآ ﻪﻨا نوﺪﺑ) ار ﺮﮔ هزاﺪﻧا راﺰﺑا –
.ﺪﻨ رﻮﺒﻋ V ﻪﻄﻘﻧ نﺎﻣ زا ﻪﺟرد 0° رﺰﻟ
ور ﺮﺑ رﺰﻟ طﻮﻄﺧ ﻊﻃﺎﻘﺗ ﻪﻄﻘﻧ ﻪ ﺪﻫﺪﺑ راﺮﻗ رﻮﻃ ﺮﺘﻣ
II ﻪﻄﻘﻧ ور ﺮﺑ نﺎﻨﭽﻤﻫ ﺘﺴﺎﺑ رﺰﻟ طﻮﻄﺧ ﻊﻃﺎﻘﺗ ﻪﻄﻘﻧ
ﻂﺧ و دﺮﮕﺑ راﺮﻗ ﺖﺳا هﺪﺷ راﺬﮕﺘﻣﻼﻋ ﻞﺒﻗ زا ﻪ
II ﻪﻄﻘﻧ
.دﺮﮕﺑ راﺮﻗ
.ﺪﻨ رﻮﺒﻋ
III ﻪﻄﻘﻧ زا ﻪﺟرد 0° رﺰﻟ
ناﻮﻨﻌﺑ ﺮﺘﻣ
5 m ﻪﻠﺻﺎﻓ زا ار ﻪﺟرد 45° رﺰﻟ ﻂﺧ ﺰﺮﻣ
راﺬﮕﺘﻣﻼﻋ ﺮﺘﻣ
5 m ﻪﻠﺻﺎﻓ زا ار ﻪﺟرد 45° رﺰﻟ ﻂﺧ ﺰﺮﻣ
.ﺪﻨ راﺬﮕﺘﻣﻼﻋ
VI ﻪﻄﻘﻧ
.(
IV ﻪﻄﻘﻧ) ﺪﻨ
d
ﻂﺧ ﺰﺮﻣ ﺎﺗ ﺪﻧﺎﺧﺮﭽﺑ ﻪﺟرد 45° رﻮﻃ ار ﺮﮔ هزاﺪﻧا راﺰﺑا –
ﻂﺧ ﺰﺮﻣ ﺎﺗ ﺪﻧﺎﺧﺮﭽﺑ ﻪﺟرد 45° رﻮﻃ ار ﺮﮔ هزاﺪﻧا راﺰﺑا –
.ﺪﻨ رﻮﺒﻋ VI ﻪﻄﻘﻧ نﺎﻣ زا ﻪﺟرد 0° رﺰﻟ
.ﺪﻨ رﻮﺒﻋ IV ﻪﻄﻘﻧ نﺎﻣ زا ﻪﺟرد 0° رﺰﻟ
II ﻪﻄﻘﻧ ور ﺮﺑ نﺎﻨﭽﻤﻫ ﺘﺴﺎﺑ رﺰﻟ طﻮﻄﺧ ﻊﻃﺎﻘﺗ ﻪﻄﻘﻧ
II ﻪﻄﻘﻧ ور ﺮﺑ نﺎﻨﭽﻤﻫ ﺘﺴﺎﺑ رﺰﻟ طﻮﻄﺧ ﻊﻃﺎﻘﺗ ﻪﻄﻘﻧ
.دﺮﮕﺑ راﺮﻗ
.دﺮﮕﺑ راﺮﻗ
ناﻮﻨﻌﺑ ﺮﺘﻣ
5 m ﻪﻠﺻﺎﻓ زا ار ﻪﺟرد 45° رﺰﻟ ﻂﺧ ﺰﺮﻣ –
ناﻮﻨﻌﺑ ﺮﺘﻣ
5 m ﻪﻠﺻﺎﻓ زا ار ﻪﺟرد 45° رﺰﻟ ﻂﺧ ﺰﺮﻣ
راﺬﮕﺘﻣﻼﻋ I ﻪﻄﻘﻧ دﺰﻧ رد نﺎﻣﻻا ﺘﺣ VII ﻪﻄﻘﻧ
.ﺪﻨ راﺬﮕﺘﻣﻼﻋ
V ﻪﻄﻘﻧ
.ﺪﻨ
ﻦﺑﺎﻣ ﻌﻗاو فﻼﺘﺧا ناﺰﻣ ،
I و VII ﻪﻄﻘﻧ ود ﻦﺑﺎﻣ d فﻼﺘﺧا –
.ﺪﺷﺎﺑ ﻣ ﻪﺟرد 45° رﺰﻟ ﻂﺧ و ﻪﺟرد 0° رﺰﻟ ﻂﺧ
1 609 929 S09 | (15.10.08) Bosch Power Tools
gtl3_ir_1609929S09_001.indd 362gtl3_ir_1609929S09_001.indd 362 15.10.2008 15:03:2415.10.2008 15:03:24

ﺳرﺎﻓ
| 363
2 x 5 m = 10 m راﺪﻘﻣ ﻪﺑ ﺮﮔ هزاﺪﻧا ﺖﻓﺎﺴﻣ رد
:ﺖﺳا ﺮز حﺮﺷ ﻪﺑ زﺎﺠﻣ ﺎﻄﺧ ﺎ فﻼﺘﺧا ﺮﺜﻛاﺪﺣ ،
(ﺮﺘﻣ 10)
10 m x ± 0,2 mm/m = ± 2 mm
.(ﺮﺘﻤﻠﻣ ± 2 = ﺮﺘﻣ رد ﺮﺘﻤﻠﻣ ± 0,2 x ﺮﺘﻣ 10)
ﺮﺘﻤﻠﻣ 2 mm ﺮﺜﻛاﺪﺣ ﺪﺎﺑ V و I طﺎﻘﻧ ﻦﺑ d فﻼﺘﺧا ﻪﺠﺘﻧ رد
.ﺪﺷﺎﺑ
و ﻪﺟرد
0° ﻪواز رد رﺰﻟ طﻮﻄﺧ ﻦﺑﺎﻣ ﻪواز ﺖﻗد لﺮﺘﻨ هﻮﺤﻧ
5 ﻪﻠﺻﺎﻓ رد (ﺪﻧﺎﺧﺮﭽﺑ اﺮﻧآ ﻪﻨا نوﺪﺑ) ار ﺮﮔ هزاﺪﻧا راﺰﺑا –
ﻪﺟرد
45°
ور ﺮﺑ رﺰﻟ طﻮﻄﺧ ﻊﻃﺎﻘﺗ ﻪﻄﻘﻧ ﻪ ﺪﻫﺪﺑ راﺮﻗ رﻮﻃ ﺮﺘﻣ
هزاﺪﻧا درﻮﻣ ﺢﻄﺳ ﺎﻫ ﻪﺷﻮﮔ زا رد ار ﺮﮔ هزاﺪﻧا راﺰﺑا –
ﻂﺧ و دﺮﮕﺑ راﺮﻗ ﺖﺳا هﺪﺷ راﺬﮕﺘﻣﻼﻋ ﻞﺒﻗ زا ﻪ
II ﻪﻄﻘﻧ
رﻮﻃ اﺮﻧآ و ﺪﻨ ﻦﺷور ار ﺮﮔ هزاﺪﻧا راﺰﺑا .ﺪﻫﺪﺑ راﺮﻗ ﺮﮔ
.ﺪﻨ رﻮﺒﻋ
III ﻪﻄﻘﻧ زا ﻪﺟرد 0° رﺰﻟ
ﺮﺗﺪﻨﻠﺑ ﻊﻠﺿ داﺪﺘﻣا رد ﻪﺟرد
0° رﺰﻟ ﻂﺧ ﻮﺗﺮﭘ ﻪ ﺪﻨ ﻢﻈﻨﺗ
راﺬﮕﺘﻣﻼﻋ ﺮﺘﻣ
5 m ﻪﻠﺻﺎﻓ زا ار ﻪﺟرد 90° رﺰﻟ ﻂﺧ ﺰﺮﻣ
داﺪﺘﻣا رد ﻪﺟرد
90° رﺰﻟ ﻂﺧ ﻮﺗﺮﭘ و ﺮﮔ هزاﺪﻧا درﻮﻣ ﺢﻄﺳ
.(
IV ﻪﻄﻘﻧ) ﺪﻨ
.ﺪﺑﺎﺘﺑ ﺮﮔ هزاﺪﻧا درﻮﻣ ﺢﻄﺳ ﺮﺗ هﺎﺗﻮ ﻊﻠﺿ
d
5 m
10 m
ﻂﺧ ﺰﺮﻣ ﺎﺗ ﺪﻧﺎﺧﺮﭽﺑ ﻪﺟرد 90° رﻮﻃ ار ﺮﮔ هزاﺪﻧا راﺰﺑا –
ﺪﻨ راﺬﮕﺘﻣﻼﻋ ﻦﻣز وﺮﺑ ار رﺰﻟ طﻮﻄﺧ ﻊﻃﺎﻘﺗ ﻪﻄﻘﻧ –
.ﺪﻨ رﻮﺒﻋ IV ﻪﻄﻘﻧ نﺎﻣ زا ﻪﺟرد 0° رﺰﻟ
ﻪﻠﺻﺎﻓ زا ار ﻪﺟرد 0° رﺰﻟ ﻂﺧ ﺰﺮﻣ ﻦا ﺮﺑ هوﻼﻋ .(I ﻪﻄﻘﻧ)
II ﻪﻄﻘﻧ ور ﺮﺑ نﺎﻨﭽﻤﻫ ﺘﺴﺎﺑ رﺰﻟ طﻮﻄﺧ ﻊﻃﺎﻘﺗ ﻪﻄﻘﻧ
(
III ﻪﻄﻘﻧ) ﺮﺘﻣ 10 m ﻪﻠﺻﺎﻓ زا و (II ﻪﻄﻘﻧ) ﺮﺘﻣ 5 m
.دﺮﮕﺑ راﺮﻗ
.ﺪﻨ راﺬﮕﺘﻣﻼﻋ
ناﻮﻨﻌﺑ ﺮﺘﻣ
5 m ﻪﻠﺻﺎﻓ زا ار ﻪﺟرد 90° رﺰﻟ ﻂﺧ ﺰﺮﻣ –
.ﺪﻨ راﺬﮕﺘﻣﻼﻋ I ﻪﻄﻘﻧ دﺰﻧ رد نﺎﻣﻻا ﺘﺣ V ﻪﻄﻘﻧ
ﻦﺑﺎﻣ ﻌﻗاو فﻼﺘﺧا ناﺰﻣ ،
I و V ﻪﻄﻘﻧ ود ﻦﺑﺎﻣ d فﻼﺘﺧا –
ﻪواز ﻪﺑ ﺖﺒﺴﻧ ،ﻪﺟرد 90° رﺰﻟ ﻂﺧ و ﻪﺟرد 0° رﺰﻟ ﻂﺧ
.ﺪﺷﺎﺑ ﻣ ﻪﻤﺋﺎﻗ
Bosch Power Tools 1 609 929 S09 | (15.10.08)
gtl3_ir_1609929S09_001.indd 363gtl3_ir_1609929S09_001.indd 363 15.10.2008 15:03:2415.10.2008 15:03:24

364 |
ﺳرﺎﻓ
ﻪواز ﺖﻗد لﺮﺘﻨ هﻮﺤﻧ
ﺗﺎﻣﻮﺗا هﺪﻨﻨ ﻊﻄﻗ (ﱳﺧﺎﺳ لﺎﻌﻓ ﺮﻏ) ندﺮ شﻮﻣﺎﺧ هﻮﺤﻧ
لدﺎﻌﻣ ﺒﺮﻘﺗ رﻮﻄﺑ دازآ ﺮﮔ هزاﺪﻧا ﺢﻄﺳ ﻪﺑ لﺮﺘﻨ اﺮﺑ
ﺗﺎﻣﻮﺗا رﻮﻄﺑ رﺎ ﻪﻘﻗد
30 min زا ﺲﭘ ﺮﮔ هزاﺪﻧا راﺰﺑا
و ﺢﻄﺴﻣ ،ﺖﺑﺎﺛ (ﻪﻨﻣز) ءﺎﺗا ﺢﻄﺳ ﺎﺑ (ﺮﺘﻣ)
10 x 5 m
.دﻮﺷ ﻣ شﻮﻣﺎﺧ
.ﺪراد زﺎﻧ ﻢﺤﻣ
ﻪﺑ ،ﺗﺎﻣﻮﺗا هﺪﻨﻨ ﻊﻄﻗ ﱳﺧﺎﺳ لﺎﻌﻓ ﺮﻏ و ندﺮ شﻮﻣﺎﺧ اﺮﺑ
زا ﺎﻫ ﺶﺎﻣزآ زا ﻃ رد ﺮﮔ هزاﺪﻧا راﺰﺑا ﺎﻄﺧ ناﺰﻣ ﻪﭽﻧﺎﻨﭼ
ﻪﺑ ار
3 شﻮﻣﺎﺧ و ﻦﺷور ﻪﻤد ،ﺮﮔ هزاﺪﻧا راﺰﺑا ندﺮ ﻦﺷور مﺎﮕﻨﻫ
ﺮﮔ هزاﺪﻧا راﺰﺑا ﺪﺎﺑ هﺎﮕﻧآ ،دور ﺮﺗاﺮﻓ (فﻼﺘﺧا) ﺎﻄﺧ ناﺰﻣ ﺮﺜاﺪﺣ
هﺪﻨﻨ ﻊﻄﻗ نﺪﺷ شﻮﻣﺎﺧ ترﻮﺻ رد .ﺪﻫﺪﺑ رﺎﺸﻓ ﻪﻧﺎﺛ
3 s تﺪﻣ
.ﺪﻫﺪﺑ راﺮﻗ ﺮﻤﻌﺗ ﺖﲢ شﻮﺑ شوﺮﻓ زا ﺲﭘ تﺎﻣﺪﺧ ﻂﺳﻮﺗ ار
مﺎﳒا ﺪﺋﺄﺗ اﺮﺑ ،هﺎﮕﺘﺳد ندﺮ ﻦﺷور زا ﺲﭘ رﺰﻟ طﻮﻄﺧ ،ﺗﺎﻣﻮﺗا
.ﺪﻧﻮﺷ ﻣ ﻦﺷور نز ﻤﺸﭼ رﻮﻄﺑ تﺪﻣ هﺎﺗﻮ دﺮﻠﻤﻋ
و ﻪﺟرد
0° ﻪواز رد رﺰﻟ طﻮﻄﺧ ﻦﺑﺎﻣ ﻪواز ﺖﻗد لﺮﺘﻨ هﻮﺤﻧ
راﺮﻗ ﺋﺎﺟ رد ترﺎﻈﻧ نوﺪﺑ ﻦﺷور رﻮﻄﺑ ار ﺮﮔ هزاﺪﻧا راﺰﺑا
e
ﻪﺟرد
90°
شﻮﻣﺎﺧ اﺮﻧآ ،ﺮﮔ هزاﺪﻧا راﺰﺑا زا هدﺎﻔﺘﺳا زا ﺲﭘ و ﺪﻫﺪﻧ
هزاﺪﻧا درﻮﻣ ﺢﻄﺳ ﺎﻫ ﻪﺷﻮﮔ زا رد ار ﺮﮔ هزاﺪﻧا راﺰﺑا –
.دراد دﻮﺟو رﺰﻟ ﻮﺗﺮﭘ ﺮﺛا رد داﺮﻓا ﻢﺸﭼ نﺪد ﺐﺳآ نﺎﻣا .ﺪﻨ
رﻮﻃ اﺮﻧآ و ﺪﻨ ﻦﺷور ار ﺮﮔ هزاﺪﻧا راﺰﺑا .ﺪﻫﺪﺑ راﺮﻗ ﺮﮔ
شﻮﻣﺎﺧ ار ﺮﮔ هزاﺪﻧا راﺰﺑا ،ﺗﺎﻣﻮﺗا هﺪﻨﻨ ﻊﻄﻗ ندﺮ لﺎﻌﻓ اﺮﺑ
ﺮﺗﺪﻨﻠﺑ ﻊﻠﺿ داﺪﺘﻣا رد ﻪﺟرد
0° رﺰﻟ ﻂﺧ ﻮﺗﺮﭘ ﻪ ﺪﻨ ﻢﻈﻨﺗ
اﺮﻧآ ،
3 شﻮﻣﺎﺧ و ﻦﺷور ﻪﻤد ور ﺮﺑ ﻪﺘﺴﻫآ رﺎﺸﻓ ﺎﺑ و هدﺮ
داﺪﺘﻣا رد ﻪﺟرد
90° رﺰﻟ ﻂﺧ ﻮﺗﺮﭘ و ﺮﮔ هزاﺪﻧا درﻮﻣ ﺢﻄﺳ
رﺰﻟ طﻮﻄﺧ ،هﺎﮕﺘﺳد نﺪﺷ ﻦﺷور زا ﺲﭘ .ﺪﻨ ﻦﺷور
ً
ادﺪﺠﻣ
.ﺪﺑﺎﺘﺑ ﺮﮔ هزاﺪﻧا درﻮﻣ ﺢﻄﺳ ﺮﺗ هﺎﺗﻮ ﻊﻠﺿ
.ﺪﻧﻮﺷ ﳕ ﻦﺷور نز ﻤﺸﭼ رﻮﻄﺑ
ﻪواز ﺖﻗد
ﻞﻤﻋ ﺖﻗد رد هﺪﻧراﺬﮔﺮﺛﺎﺗ ﻞﻣاﻮﻋ
5 m
و تﺎﻓﻼﺘﺧا صﻮﺼﺨﺑ .دراد رﺎ ﻂﺤﻣ ﺎﻣد ار ﺮﺛﺎﺗ ﻦﺮﺘﺸﺑ
ﻣ ﻻﺎﺑ ﻪﺑ (ﻒﻛ) ﻦﺋﺎﭘ ﺢﻄﺳ زا ﺎﻣد نﺎﺮﺟ ﺮﺳ رد ﺎﻣد توﺎﻔﺗ
10 m
.ﺪﻨﻨﻛ فﺮﺤﻨﻣ ار رﺰﻟ ﻮﺗﺮﭘ ﺪﻨﻧاﻮﺗ
ﺪﻨ راﺬﮕﺘﻣﻼﻋ ﻦﻣز وﺮﺑ ار رﺰﻟ طﻮﻄﺧ ﻊﻃﺎﻘﺗ ﻪﻄﻘﻧ –
ﺢﻄﺳ دﺰﻧ رد نﺎﻣﻻا ﺘﺣ ار ﺮﮔ هزاﺪﻧا راﺰﺑا ﺘﺴﺎﺑ وﺮﻨا زا
ﻪﻠﺻﺎﻓ زا ار ﻪﺟرد 0° رﺰﻟ ﻂﺧ ﺰﺮﻣ ﻦا ﺮﺑ هوﻼﻋ .(I ﻪﻄﻘﻧ)
تازاﻮﻣ ﻪﺑ نﺎﻣﻻا ﺘﺣ ﺰﻧ
اﺮﻧآ ﻧﺎﺘﲢ ﺢﻄﺳ و هداد راﺮﻗ رﺎ
(
III ﻪﻄﻘﻧ) ﺮﺘﻣ 10 m ﻪﻠﺻﺎﻓ زا و (II ﻪﻄﻘﻧ) ﺮﺘﻣ 5 m
.ﺪﻨ ﻢﺤﻣ رﺎ ﺢﻄﺳ
.ﺪﻨ راﺬﮕﺘﻣﻼﻋ
رد صﺎﺧ هﺪﻧراﺬﮔ ﺮﺛﺎﺗ ﻞﻣاﻮﻋ ،ﺟرﺎﺧ هﺪﻧراﺬﮔ ﺮﺛﺎﺗ ﻞﻣاﻮﻋ رﺎﻨﻛ رد
ﻪﺑﺮﺿ ﺎ ندﺎﺘﻓا لﺎﺜﻣ ناﻮﻨﻌﺑ) ﺪﻧراد دﻮﺟو ﺰﻧ هﺎﮕﺘﺳد
ِ
دﻮﺧ ﺎﺑ ﻪﻄﺑار
لﻼﺘﺧا دﺎﺠا و ﺮﮔ هزاﺪﻧا رد ﺎﻄﺧ ﺚﻋﺎﺑ ﺪﻨﻧاﻮﺗ ﻣ ﻪ (ﺪﺪﺷ
راﺰﺑا ﻞﻤﻋ
ِ
ﺖﻗد
،رﺎﻛ ﻪﺑ عوﺮﺷ زا ﻞﺒﻗ رﺎﺑ ﺮﻫ ﺪﺎﺑ ﻞﻟد ﻦا ﻪﺑ .ﺪﻧﻮﺸﺑ
.ﺪﻨﻛ لﺮﺘﻨﻛ ار ﺮﮔ هزاﺪﻧا
1 609 929 S09 | (15.10.08) Bosch Power Tools
gtl3_ir_1609929S09_001.indd 364gtl3_ir_1609929S09_001.indd 364 15.10.2008 15:03:2415.10.2008 15:03:24

ﺳرﺎﻓ
| 365
ﺖﺴﺨﻧ ،ﺎﻣد ﺪﺪﺷ نﺎﺳﻮﻧ ترﻮﺻ رد .ﺪﻫﺪﻧ راﺮﻗ ﻞﺒﻣﻮﺗا
ﺐﺼﻧ
،ﺪﻫﺪﺑ ﻖﻓو ﻂﺤﻣ ﺎﻣد ﺎﺑ ار دﻮﺧ ﺮﮔ هزاﺪﻧا راﺰﺑا ﺪراﺬﮕﺑ
و ﺎﻣﺮﮔ) دﺎﺣ ﺎﻣد .ﺪﻫﺪﺑ راﺮﻗ هدﺎﻔﺘﺳا درﻮﻣ اﺮﻧآ ﻪﻨا
زا ﺶﭘ
ﺮﺗﺎﺑ ﺾﻮﻌﺗ/نداد راﺮﻗ هﻮﺤﻧ
هزاﺪﻧا ﺖﻗد رد ﺪﻧاﻮﺗ ﻣ ﺎﻣد ﺪﺪﺷ نﺎﺳﻮﻧ ﺎ و (ﺪﺪﺷ ﺎﻣﺮﺳ
ﺎ ﺰﻨﮕﻨﻣ ﺋﺎﻠﻗ ﺎﻫ ﺮﺗﺎﺑ زا هدﺎﻔﺘﺳا ﺮﮔ هزاﺪﻧا راﺰﺑا ﺎﺑ رﺎ اﺮﺑ
.دراﺬﮕﺑ ﻔﻨﻣ ﺮﺛﺄﺗ ﺮﮔ
.دﻮﺷ ﻣ ﻪﺻﻮﺗ
(Alkali-manganese) ﻦﻟﺎﻟآ
زا ﺎ و ﺪﻨ ﺖﻈﻓﺎﺤﻣ ﻪﺑﺮﺿ ﺮﺑاﺮﺑ رد ار ﺮﮔ هزاﺪﻧا راﺰﺑا
e
رﺎﺸﻓ ار
7 هﺪﻨﻨ ﻞﻔﻗ ،6 ﺮﺗﺎﺑ ﻪﻈﻔﺤﻣ شﻮﭘرد ندﺮ زﺎﺑ اﺮﺑ
ﺮﮔ هزاﺪﻧا راﺰﺑا ﻪﭽﻧﺎﻨﭼ .ﺪروآ ﻞﻤﻌﺑ ﺮﮔﻮﻠﺟ نآ ندﺎﺘﻓا
راﺬﮔﺎﺟ ار ﺎﻫ ﺮﺗﺎﺑ .ﺪﻨ زﺎﺑ ار ﺮﺗﺎﺑ ﻪﻈﻔﺤﻣ شﻮﭘرد و ﺪﻫﺪﺑ
ﺶﭘ هراﻮﻤﻫ ﺖﺳا ﺮﺘﻬﺑ ،دﺮﮔ راﺮﻗ ﺟرﺎﺧ ﻞﻣاﻮﻋ تاﺮﺛﺄﺗ ﺖﲢ
ﺎﻫ ﺐﻄﻗ ﺢﺤﺻ نداد راﺮﻗ ﻪﺑ ﺎﻫ ﺮﺗﺎﺑ راﺬﮔﺎﺟ مﺎﮕﻨﻫ .ﺪﻨ
ﺪﻨ لﺮﺘﻨ ﻞﻤﻋ ﺖﻗد ﺮﻈﻧ زا اﺮﻧآ ،هﺎﮕﺘﺳد ﺎﺑ رﺎ ﻪﻣادا زا
.ﺪﻨ ﻪﺟﻮﺗ ﺮﺗﺎﺑ ﻪﻈﻔﺤﻣ ﻞﺧاد رد راﺬﮕﺘﻣﻼﻋ ﻖﺒﻃ ﺮﺗﺎﺑ
.(
362 ﻪﺤﻔﺻ ،«ﻪواز ﺖﻗد» ﺚﺤﺒﻣ ﻪﺑ دﻮﺷ عﻮﺟر)
ترﻮﺼﺑ ﺮﺗﺎﺑ ژرﺎﺷ ﺖﻌﺿو لﺮﺘﻨ اﺮﺑ
8 ﺮﮕﻧﺎﺸﻧ غاﺮﭼ ﻪﭽﻧﺎﻨﭼ
.ﺪﻧا هﺪﺷ ﻒﻌﺿ ﺎﻫ ﺮﺗﺎﺑ ترﻮﺼﻨا رد ،دﻮﺸﺑ ﻦﺷور نز ﻤﺸﭼ
ندﺮ شﻮﻣﺎﺧ و ﻦﺷور هﻮﺤﻧ
2 h
ً
ﺎﺒﺮﻘﺗ تﺪﻣ ﻪﺑ زﻮﻨﻫ ار ﺮﮔ هزاﺪﻧا راﺰﺑا ناﻮﺗ ﻣ ﺖﻟﺎﺣ ﻦا رد
ار
3 شﻮﻣﺎﺧ و ﻦﺷور ﻪﻤﻛد ،ﺮﮔ هزاﺪﻧا راﺰﺑا ندﺮﻛ ﻦﺷور اﺮﺑ
.داد راﺮﻗ هدﺎﻔﺘﺳا درﻮﻣ ﺖﻋﺎﺳ
ﺲﭘ ﻪﻠﺻﺎﻓﻼﺑ ﺮﮔ هزاﺪﻧا راﺰﺑا .ﺪﻫﺪﺑ رﺎﺸﻓ هﺎﺗﻮ رﻮﻄﺑ رﺎﺒ
ترﻮﺼﺑ ﺮﺗﺎﺑ ژرﺎﺷ ﺖﻌﺿو لﺮﺘﻨ اﺮﺑ
8 ﺮﮕﻧﺎﺸﻧ غاﺮﭼ ﻪﭽﻧﺎﻨﭼ
ﻪﺟرد
45° ،ﻪﺟرد 0° ﺎاوز ﺎﺑ رﺰﻟ ﻂﺧ ﻪﺳ ،نآ نﺪﺷ ﻦﺷور زا
راﺰﺑا .ﺖﺴﻧ ﻦﳑ ﺮﮕد ﺮﮔ هزاﺪﻧا هﺎﮕﻧآ ،ﺪﻧﺎﲟ ﻗﺎﺑ ﻦﺷور ﻪﺘﺳﻮﭘ
لﺎﺳرا
1 رﺰﻟ ﻮﺗﺮﭘ جوﺮﺧ (ﻪﻧﺎﻫد) ﺎﻫ ﻪﻧزور ﻞﺧاد زا ﻪﺟرد 90° و
.دﻮﺷ ﻣ شﻮﻣﺎﺧ ﺗﺎﻣﻮﺗا رﻮﻄﺑ ﻫﺎﺗﻮ تﺪﻣ زا ﺲﭘ ﺮﮔ هزاﺪﻧا
ژرﺎﺷ ﺖﻌﺿو لﺮﺘﻨ اﺮﺑ
8 ﺮﮕﻧﺎﺸﻧ غاﺮﭼ ﻦا ﺮﺑ هوﻼﻋ .ﺪﻨ ﻣ
ً
.دﻮﺷ ﻣ ﻦﺷور ﻪﻧﺎﺛ
3 s تﺪﻣ اﺮﺑ ﺮﺗﺎﺑ
زا
اﺮﺼﺤﻨﻣ .ﺪﻨ ﺾﻮﻌﺗ ﻢﻫ ﺎﺑ نﺎﻣﺰﻤﻫ ار ﺎﻫ ﺮﺗﺎﺑ ﻪﻤﻫ هراﻮﻤﻫ
.ﺪﻨ هدﺎﻔﺘﺳا ﺮﺑاﺮﺑ ﺎﻫ ﺖﻓﺮﻇ ﺎﺑ و هﺪﻧزﺎﺳ ﺖﺧﺎﺳ ﺎﻫ ﺮﺗﺎﺑ
ﺪﺮﮕﻧ تﺎﻧاﻮﺣ ﺎ و صﺎﺨﺷا فﺮﻃ ﻪﺑ ار رﺰﻟ ﻮﺗﺮﭘ ﺖﻬﺟ
e
هدﺎﻔﺘﺳا
زا ﺘﺣ ،ﺪﻨﻧ هﺎﮕﻧ رﺰﻟ ﻮﺗﺮﭘ ﻪﺑ
ً
ﺮﮔ هزاﺪﻧا راﺰﺑا زا ﻧﻻﻮﻃ نﺎﻣز تﺪﻣ اﺮﺑ ﻪﭽﻧﺎﻨﭼ
e
ﺎﻤﻘﺘﺴﻣ ﻢﻫ نﺎﺗدﻮﺧ و
ﺎﻫ ﺮﺗﺎﺑ .ﺪﻨ جرﺎﺧ هﺎﮕﺘﺳد ﻞﺧاد زا ار ﺎﻫ ﺮﺗﺎﺑ ،ﺪﻨ ﳕ
.رود ﻪﻠﺻﺎﻓ
و ﮔدﻮﺳﺮﻓ رﺎﭼد تﺪﻣ ﻧﻻﻮﻃ ندﺮ رﺎﺒﻧا ترﻮﺻ رد ﺖﺳا ﻦﳑ
هداد رﺎﺸﻓ رﺎﺑ ﻦﻣود اﺮﺑ
3 شﻮﻣﺎﺧ و ﻦﺷور ﻪﻤﻛد ﻪﭽﻧﺎﻨﭼ
.ﺪﻧﻮﺸﺑ ﻪﻠﺨﺗ دﻮﺧ ﻪﺑ دﻮﺧ و هﺪﺷ ﮔدز ﮓﻧز
ﻪﺑ ﻄﺧ ﻪﺳ رﺰﻟ ﻮﺗﺮﭘ ﺎﺑ دﺮﻠﻤﻋ زا ﺮﮔ هزاﺪﻧا راﺰﺑا هﺎﮕﻧآ ،دﻮﺷ
ﺖﻟﺎﺣ ﻦا رد :ﺪﻫ ﻣ ﺖﻟﺎﺣ ﺮﻐﺗ ﻄﺧ ود رﺰﻟ ﻮﺗﺮﭘ ﺎﺑ دﺮﻠﻤﻋ
زاﺪﻧا هار
.ﺪﻧﻮﺷ ﻣ ﺮﻫﺎﻇ ﻪﺟرد
90° و ﻪﺟرد 0° ﺎاوز رد رﺰﻟ ﻂﺧ ود ﻂﻘﻓ
ار
3 شﻮﻣﺎﺧ و ﻦﺷور ﻪﻤﻛد ،ﺮﮔ هزاﺪﻧا راﺰﺑا ندﺮﻛ شﻮﻣﺎﺧ اﺮﺑ
هﺎﮕﺘﺳد ﺮﮔرﺎﺑ هﻮﺤﻧ
.ﺪﻫﺪﺑ رﺎﺸﻓ
ً
ادﺪﺠﻣ رﺎﺑ ﻦﻣﻮﺳ اﺮﺑ
رﻮﻧ ﻢﻘﺘﺴﻣ ﺶﺑﺎﺗ و ﺖﺑﻮﻃر ﺮﺑاﺮﺑ رد ار ﺮﮔ هزاﺪﻧا راﺰﺑا
e
.ﺪراﺪﺑ ظﻮﻔﺤﻣ ﺪﺷرﻮﺧ
ﺎﻣﺮﺳ و ﺎﻣﺮﮔ) دﺎﺣ ﺎﻣد ضﺮﻌﻣ رد ار ﺮﮔ هزاﺪﻧا راﺰﺑا
e
.ﺪﻫﺪﻧ راﺮﻗ ﺪﺪﺷ تراﺮﺣ ﻪﺟرد ﺮﻐﺗ ﻦﻨﭽﻤﻫ و (ﺪﺪﺷ
ﻞﺧاد رد ﻧﻻﻮﻃ تﺪﻣ اﺮﺑ لﺎﺜﻣ رﻮﻄﺑ ار ﺮﮔ هزاﺪﻧا راﺰﺑا
Bosch Power Tools 1 609 929 S09 | (15.10.08)
gtl3_ir_1609929S09_001.indd 365gtl3_ir_1609929S09_001.indd 365 15.10.2008 15:03:2415.10.2008 15:03:24

366 |
ﺳرﺎﻓ
ﻨﻓ تﺎﺼﺨﺸﻣ
GTL 3
رﺎ ﺷﺎ هﮋو رﺰﻟ
Professional
ﻨﻓ هرﺎﻤﺷ 3 601 K15 200
1)
(ﻒﻘﺳ ﺮﮔ هزاﺪﻧا ﻪﺤﻔﺻ ﺎﺑ ﺎ و رﺰﻟ فﺪﻫ ﻪﺤﻔﺻ ﺎﺑ) رﺎ هدوﺪﺤﻣ 20 m
2)
ﻪواز ﺖﻗد ± 0,2 mm/m
رﺎ ﻂﺤﻣ ﺎﻣد – 10 °C ... + 50 °C
رﺎﺒﻧا رد راﺪﻬﮕﻧ ﺎﻣد – 20 °C ... + 70 °C
اﻮﻫ ﺒﺴﻧ ﺖﺑﻮﻃر ﺮﺜاﺪﺣ 90 %
رﺰﻟ سﻼ 2
رﺰﻟ ﻮﺗﺮﭘ تﺎﺼﺨﺸﻣ 635 nm, < 1 mW
1
C
6
ﺎﻫ ﺮﺗﺎﺑ 4 x 1,5 V LR6 (AA)
دﺮرﺎ ﺒﺮﻘﺗ نﺎﻣز تﺪﻣ
18 h
رﺰﻟ (ﻂﺧ) ﻮﺗﺮﭘ
2 ﺎﺑ –
12 h
رﺰﻟ (ﻂﺧ) ﻮﺗﺮﭘ 3 ﺎﺑ –
30 min
ً
ﺎﺒﺮﻘﺗ زا ﺲﭘ ﺗﺎﻣﻮﺗا هﺪﻨﻨ ﻊﻄﻗ(ﻪﻘﻗد)
EPTA-Procedure 01/2003
دراﺪﻧﺎﺘﺳا ﻖﺑﺎﻄﻣ نزو 0,5 kg
دﺎﻌﺑا 156 x 102 x 98 mm
ﻨﻤا عﻮﻧ(بآ ذﻮﻔﻧ و رﺎﺒﻏ و دﺮﮔ ﺮﺑاﺮﺑ رد ﻨﻤا) IP 54
.ﺪﻨ اﺪﭘ ﻞﻠﻘﺗ (ﺪﺷرﻮﺧ رﻮﻧ ﻢﻘﺘﺴﻣ ﺶﺑﺎﺗ ﺖﲢ ﻪﻠﻤﺟ زا) ﻄﺤﻣ ﺐﺳﺎﻨﻣﺎﻧ ﻂاﺮﺷ ﺖﲢ ﺖﺳا ﻦﳑ (ﺮﮔ هزاﺪﻧا) رﺎ هدوﺪﺤﻣ (1
.ﺖﺳا (ﺮﺘﻣ رد ﺮﺘﻤﻠﻣ) ± 0,4 mm/m لدﺎﻌﻣ ﺮﺜاﺪﺣ ﻪﺟرد 90° رﺰﻟ ﻂﺧ و ﻪﺟرد 45° رﺰﻟ ﻂﺧ ﻮﺗﺮﭘ ﻦﺑﺎﻣ ﻪواز ﺖﻗد (2
.ﺪﺷﺎﺑ ﻪﺘﺷاد توﺎﻔﺗ ﺎﻬﻫﺎﮕﺘﺳد ﺮﺎﺳ ﺎﺑ ﺪﻧاﻮﺘﻣ ﺮﮔ هزاﺪﻧا ﺎﻫراﺰﺑا زا ﺮﻫ رﺎﲡ ﺎﻬﻣﺎﻧ .ﺪﻨ ﻪﺟﻮﺗ دﻮﺧ ﺮﮔ هزاﺪﻧا راﺰﺑا ﺐﺴﭼﺮﺑ ور ﺮﺑ ﻨﻓ هرﺎﻤﺷ ﻪﺑ
ً
ﺎﻔﻄﻟ
.ﺖﺳا هﺪﺷ جرد (لﺪﻣ ﻼﭘ) هﺎﮕﺘﺳد ﺐﺴﭼﺮﺑ ور ﺮﺑ
5 ﺮﺳ هرﺎﻤﺷ ﺮﮔ هزاﺪﻧا راﺰﺑا لﺪﻣ ﻖﻗد ندﺮ ﺺﺨﺸﻣ اﺮﺑ
1 609 929 S09 | (15.10.08) Bosch Power Tools
gtl3_ir_1609929S09_001.indd 366gtl3_ir_1609929S09_001.indd 366 15.10.2008 15:03:2515.10.2008 15:03:25

ﺳرﺎﻓ
| 367
هﺎﮕﺘﺳد رﻮﺼﻣ ءاﺰﺟا
ﻪﺤﻔﺻ و ﺮﮔ هزاﺪﻧا راﺰﺑا ندﺮ دﺰﻧ زا
ﺎﻬﻫﺎﮕﺘﺳد ﻪﺑ
14 ﻒﻘﺳ ﺮﮔ هزاﺪﻧا
طﻮﺑﺮﻣ ،دﻮﺸﻣ هﺪﻫﺎﺸﻣ ﺮﻮﺼﺗ رد ﻪ هﺎﮕﺘﺳد ءاﺰﺟا ﺎﻫ هرﺎﻤﺷ
ﻪﻠﺳﻮﺑ .ﺪﻨ راددﻮﺧ ﺐﻠﻗ زﺎﺳ نﺎﺑﺮﺿ
ﻦا رد نآ ﺮﻮﺼﺗ ﻪ ﺪﺷﺎﺑ ﻣ ﺮﮔ هزاﺪﻧا راﺰﺑا ﺮﻮﺼﺗ و حﺮﺷ ﻪﺑ
هﺪﺷ ﻪﺒﻌﺗ
4 (ﺎﺑﺮﻨﻫآ) ﺴﻃﺎﻨﻐﻣ ﻪﺤﻔﺻ
.ﺖﺳا هﺪﻣآ ﺎﻤﻨﻫار ﻪﭼﺮﺘﻓد
ﺎﻫﺎﺑﺮﻨﻫآ ﻪﻠﺳﻮﺑ ﻦﻨﭽﻤﻫ و ﺮﮔ هزاﺪﻧا راﺰﺑا ﻧﺎﺘﲢ ﺖﻤﺴﻗ رد
رﺰﻟ ﻮﺗﺮﭘ جوﺮﺧ (ﻪﻧﺎﻫد) ﺬﻔﻨﻣ
1
ﻣ ﺪﻟﻮﺗ ﺴﻃﺎﻨﻐﻣ ناﺪﻣ ،ﻒﻘﺳ ﺮﮔ هزاﺪﻧا ﻪﺤﻔﺻ
رﺰﻟ ﻮﺗﺮﭘ راﺪﺸﻫ ﺐﺴﭼﺮﺑ 2
ﺮﺛﺄﺗ ﺐﻠﻗ زﺎﺳ نﺎﺑﺮﺿ ﺎﻬﻫﺎﮕﺘﺳد دﺮﻠﻤﻋ رد ﺪﻧاﻮﺗ ﻣ ﻪ دﻮﺷ
شﻮﻣﺎﺧ و ﻦﺷور ﻪﻤد 3
.دراﺬﮕﺑ ﻔﻨﻣ
ﺎﻫﺎﺑﺮﻨﻫآ 4
زا ار
14 ﻒﻘﺳ ﺮﮔ هزاﺪﻧا ﻪﺤﻔﺻ و ﺮﮔ هزاﺪﻧا راﺰﺑا
e
ﺎﻬﻫﺎﮕﺘﺳد ﻦﻨﭽﻤﻫ و ﺴﻃﺎﻨﻐﻣ تﺎﻋﻼﻃا ﺎﻫ ﻪﻧﺎﺳر
ﺮﺳ هرﺎﻤﺷ/ﻨﻓ هرﺎﻤﺷ 5
ﻪﺤﻔﺻ ﺮﺛﺄﺗ ﺖﲢ .ﺪراﺪﻬﮕﻧ رود ﺲﻃﺎﻨﻐﻣ ﺮﺑاﺮﺑ رد سﺎﺴﺣ
ﺮﺗﺎﺑ ﻪﻈﻔﺤﻣ شﻮﭘرد 6
هراﺪﻧا راﺰﺑا ﻧﺎﺘﲢ ﺖﻤﺴﻗ رد دﻮﺟﻮﻣ
4 (ﺎﻫﺎﺑﺮﻨﻫآ) ﺴﻃﺎﻨﻐﻣ
ﺮﺗﺎﺑ ﻪﻈﻔﺤﻣ شﻮﭘرد هﺪﻨﻨ ﻞﻔﻗ 7
ﺮﮔ هزاﺪﻧا ﻪﺤﻔﺻ رد دﻮﺟﻮﻣ ﺎﻫﺎﺑﺮﻨﻫآ ﻦﻨﭽﻤﻫ و ﺮﮔ
ﺮﺗﺎﺑ ﺮﮕﻧﺎﺸﻧ 8
.دراد دﻮﺟو تﺎﻋﻼﻃا ﺖﺸﮔﺮﺑ ﻞﺑﺎﻗ ﺮﻏ ﱳﻓر ﻦﺑ زا نﺎﻣا ،ﻒﻘﺳ
رﺰﻟ فﺪﻫ ﻪﺤﻔﺻ 9
هﺎﮕﺘﺳد دﺮﻠﻤﻋ ﺢﺮﺸﺗ
ﻢﻈﻨﺗ و زاﺮﺗ ﻪﺤﻔﺻ 10
راﺰﺑا ﺮﻮﺼﺗ وﺎﺣ ﻪ ار ﺎﻤﻨﻫار ﻪﭼﺮﺘﻓد ﻦا هﺪﺷ ﺎﺗ ﻪﺤﻔﺻ
ً
ﺎﻔﻄﻟ
ﻢﻈﻨﺗ و زاﺮﺗ ﻪﺤﻔﺻ (ﮔﺪﺮﺑ) ﺪﻨﺑ ﻪﺟرد 11
،ﺎﻤﻨﻫار ﻪﭼﺮﺘﻓد ﻦا نﺪﻧاﻮﺧ مﺎﮕﻨﻫ و ﺪﻨ زﺎﺑ ،ﺖﺳا ﺮﮔ هزاﺪﻧا
هﺎﮕﺘﺳد ﻞﻤﺣ ﻆﻓﺎﺤﻣ ﻒ 12
.ﺪراﺪﻬﮕﻧ زﺎﺑ اﺮﻧآ
*
رﺰﻟ ﻮﺗﺮﭘ ﺪد صﻮﺼﺨﻣ ﻨﻋ 13
*
ﻒﻘﺳ ﺮﮔ هزاﺪﻧا ﻪﺤﻔﺻ 14
هﺎﮕﺘﺳد زا هدﺎﻔﺘﺳا دراﻮﻣ
هاﺮﻤﻫ لﻮﻤﻌﻣ رﻮﻄﺑ ،ﺖﺳا هﺪﻣآ ﱳﻣ رد ﺎ و ﺮﻮﺼﺗ رد ﻪ ﺗﺎﻘﻠﻌﺘﻣ ﻪﻠ *
ﺎاوز ندﺮ ﺺﺨﺸﻣ و لﺮﺘﻨ ،ﻪﺒﺳﺎﺤﻣ اﺮﺑ ﺮﮔ هزاﺪﻧا راﺰﺑا ﻦا
ﻪﻣﺎﻧﺮﺑ ﺖﺳﺮﻬﻓ زا ار تﺎﻘﻠﻌﺘﻣ ﻞﻣﺎ ﺖﺴﻟ
ً
ﺎﻔﻄﻟ .دﻮﺷ ﳕ ﻪﺋارا هﺎﮕﺘﺳد
45° ﺎاوز رد ﺎﻫ ﺷﺎ زﺎﺳ ﻒدر ﻦﻨﭽﻤﻫ و (دﻮﻤﻋ) ﻪﻤﺋﺎﻗ
.ﺪﺋﺎﳕ سﺎﺒﺘﻗا تﺎﻘﻠﻌﺘﻣ
.ﺖﺳا هﺪﺷ ﻪﺘﻓﺮﮔ ﺮﻈﻧ رد ﻪﺟرد
90° و ﻪﺟرد
Bosch Power Tools 1 609 929 S09 | (15.10.08)
gtl3_ir_1609929S09_001.indd 367gtl3_ir_1609929S09_001.indd 367 15.10.2008 15:03:2515.10.2008 15:03:25

368 |
ﺳرﺎﻓ
و صﺎﺨﺷا فﺮﻃ ﻪﺑ ﺪﺎﺒﻧ رﺰﻟ ﻮﺗﺮﭘ ﺖﻬﺟ
ﻨﻤا ﺎﻫ ﺋﺎﻤﻨﻫار
ً
ﺎﻤﻘﺘﺴﻣ ﻢﻫ نﺎﺗدﻮﺧ و ﺪﺷﺎﺑ تﺎﻧاﻮﺣ ﺎ
هزاﺪﻧا راﺰﺑا ﺎﺑ ﺮﻄﺧ ﺑ و ﻦﺌﻤﻄﻣ رﺎ اﺮﺑ
هزاﺪﻧا راﺰﺑا ﻦا .ﺪﻨﻧ هﺎﮕﻧ رﺰﻟ ﻮﺗﺮﭘ ﻪﺑ
و ﺎﻫ ﻞﻤﻌﻟارﻮﺘﺳد ﻣﺎﲤ ﺘﺴﺎﺑ ﺮﮔ
دراﺪﻧﺎﺘﺳا ﻖﺒﻃ
2 سﻼ زا رﺰﻟ ﻪﻌﺷا ،ﺮﮔ
رد و ﺪﻧﻮﺷ هﺪﻧاﻮﺧ ﻞﻣﺎ رﻮﻄﺑ ﻨﻤا تﺎﻋﻼﻃا
ﻦا ﻪ .ﺪﻨ ﻣ ﺪﻟﻮﺗ
IEC 60825-1
.دﻮﺷ ﻞﻤﻋ تارﻮﺘﺳد ﻦا ﻖﺒﻃ راﺰﺑا ﺮﮔرﺎﺑ
صﺎﺨﺷا ﺋﺎﻨﺑ و ﻢﺸﭼ ﻪﺑ ﺪﻧاﻮﺘﻣ رﺰﻟ ﻮﺗﺮﭘ
ﺎﻧاﻮﺧ هراﻮﻤﻫ ﺪﺎﺑ ﺮﮔ هزاﺪﻧا راﺰﺑا ور ﺮﺑ راﺪﺸﻫ ﺎﻫ ﺐﺴﭼﺮﺑ
.ﺪﻧﺎﺳﺮﺑ ﺐﺳآ
ﻞﻤﻌﻟارﻮﺘﺳد ﻦا .ﺪﻧﺎﺷﻮﭙﻧ ار ﺎﻬﻧآ ور ،ﺪﻨﻧﺎﲟ ﻗﺎﺑ ﺺﺨﺸﻣ
و
ﻨﻤا ﻨﻋ ناﻮﻨﻌﺑ رﺰﻟ ﻮﺗﺮﭘ ﺪد صﻮﺼﺨﻣ ﻨﻋ زا
e
.ﺪﻨ راﺪﻬﮕﻧ ﺑﻮﺨﺑ ار ﺎﻫ
اﺮﺑ رﺰﻟ ﻮﺗﺮﭘ ﺪد صﻮﺼﺨﻣ ﻨﻋ .ﺪﻨﻧ هدﺎﻔﺘﺳا
ﺮﮕد ﺮﮔرﺎﺑ هﻮﺤﻧ و ﻞﻤﻌﻟارﻮﺘﺳد ﻪﭽﻧﺎﻨﭼ – طﺎﺘﺣا
e
ﺎﻤﺷ ﻢﺸﭼ زا ﺪﻧاﻮﺗ ﳕ ﻦﻟو ﺖﺳا رﺰﻟ ﻮﺗﺮﭘ ﺮﺘﻬﺑ ﺺﺨﺸﺗ
ﺎ و دﺮﮕﺑ راﺮﻗ هدﺎﻔﺘﺳا درﻮﻣ ﻞﻤﻌﻟارﻮﺘﺳد ﻦا زا ﺮﻏ
.ﺪﻨ ﺖﻈﻓﺎﺤﻣ رﺰﻟ ﻮﺗﺮﭘ ﺮﺑاﺮﺑ رد
راﺮﻗ هدﺎﻔﺘﺳا درﻮﻣ ندﺮ زاﺮﺗ و ﻢﻈﻨﺗ اﺮﺑ ﺮﮕد تاﺰﻬﲡ
ﺎ و ﺑﺎﺘﻓآ ﻨﻋ ناﻮﻨﻌﺑ رﺰﻟ ﻮﺗﺮﭘ ﺪد صﻮﺼﺨﻣ ﻨﻋ زا
e
ﻪﻄﺑار رد ﺗاﺮﻄﺧ ،ﺪآرد ءاﺮﺟا ﻪﺑ ﺮﮕد رﺎ شور ﺎ و دﺮﮕﺑ
رﺰﻟ ﻮﺗﺮﭘ ﺪد صﻮﺼﺨﻣ ﻨﻋ .ﺪﻨﻧ هدﺎﻔﺘﺳا ﮔﺪﻨﻧار رد
.ﺖﺷاد ﺪﻫاﻮﺧ دﻮﺟو رﺰﻟ ﻮﺗﺮﭘ ﺎﺑ
ﻪﺋارا ﺶﻔﻨﺑ اروﺎﻣ تﺎﺸﻌﺸﺗ ﺮﺑاﺮﺑ رد ار ﻞﻣﺎ ﻨﻤا و ﺖﻈﻓﺎﺤﻣ
ﻪﺑ راﺪﺸﻫ ﺐﺴﭼﺮﺑ ﻪﺑ ﺰﻬﺠﻣ ﺮﮔ هزاﺪﻧا راﺰﺑا ﻦا
e
.ﺪﻫد ﻣ ﺶﻫﺎ ﺰﻧ ار ﮓﻧر ﺺﺨﺸﺗ ﻪﺟرد ترﺪﻗ و ﺪﻫد ﳕ
ﺎﺑ ﺮﮔ هزاﺪﻧا راﺰﺑا ﺮﻮﺼﺗ رد) دﻮﺸﻣ ﻪﺋارا ﺴﻠﮕﻧا نﺎﺑز
داﺮﻓا ﻂﺳﻮﺗ
ً
اﺮﺼﺤﻨﻣ ﺪﺎﺑ ﺮﮔ هزاﺪﻧا راﺰﺑا ﻦا ﺮﻤﻌﺗ
e
.(ﺖﺳا هﺪﺷ ﺺﺨﺸﻣ
2 هرﺎﻤﺷ
مﺎﳒا ﻠﺻا تﺎﻌﻄﻗ زا هدﺎﻔﺘﺳا ﺖﲢ ﻂﻘﻓ و ﺺﺼﺨﺘﻣ
.دﻮﺷ ﻣ ﻦﻤﻀﺗ ﺮﮔ هزاﺪﻧا راﺰﺑا ﻨﻤا ﺐﺗﺮﺗ ﻦا ﻪﺑ .دﺮﮕﺑ
رﺰﻟ ﺮﮔ هزاﺪﻧا راﺰﺑا ترﺎﻈﻧ نوﺪﺑ لﺎﻔﻃا ﻪ ﺪﻫﺪﻧ هزﺎﺟا
e
ﻪﻌﺷا ﻪﺘﺳاﻮﺧﺎﻧ ﺶﺑﺎﺗ ﺮﻄﺧ اﺮز .ﺪﻨﻫﺪﺑ راﺮﻗ هدﺎﻔﺘﺳا درﻮﻣ ار
IEC 60825-1:2007-03
.دراد دﻮﺟو ﺎﻬﻧآ ﺋﺎﻨﺑ نﺪد ﺐﺳآ و ناﺮﮕد ﻢﺸﭼ ﻪﺑ
<1 mW, 635 nm
ﺐﺴﭼﺮﺑ ﺖﺴﺨﻧ ،هﺎﮕﺘﺳد زا هدﺎﻔﺘﺳا رﺎﺑ ﻦﻟوا زا ﺶﭘ
e
ار دﻮﺧ رﻮﺸ نﺎﺑز ﻪﺑ هﺎﮕﺘﺳد هاﺮﻤﻫ ﻪﺑ هﺪﺷ لﺎﺳرا راﺪﺸﻫ
.ﺪﻧﺎﺒﺴﭽﺑ نﺎﺑز ﺴﻠﮕﻧا راﺪﺸﻫ ﺐﺴﭼﺮﺑ ور ﺮﺑ
1 609 929 S09 | (15.10.08) Bosch Power Tools
gtl3_ir_1609929S09_001.indd 368gtl3_ir_1609929S09_001.indd 368 15.10.2008 15:03:2515.10.2008 15:03:25

