Bosch AMC2 ENC-UL1 - Enclosure - Small: Montar o gabinete
Montar o gabinete: Bosch AMC2 ENC-UL1 - Enclosure - Small

AEC-AMC2-UL1 - Manual de instalação pt 63
F = Braçadeiras para cabos para fixar as baterias
recarregáveis
G = Cabo pré-montado com sensor de temperatura
(incluído na embalagem da fonte de alimentação)
H = Três buchas S8 e parafusos para madeira M6 x 50
J = Clipe para fixação do cabo
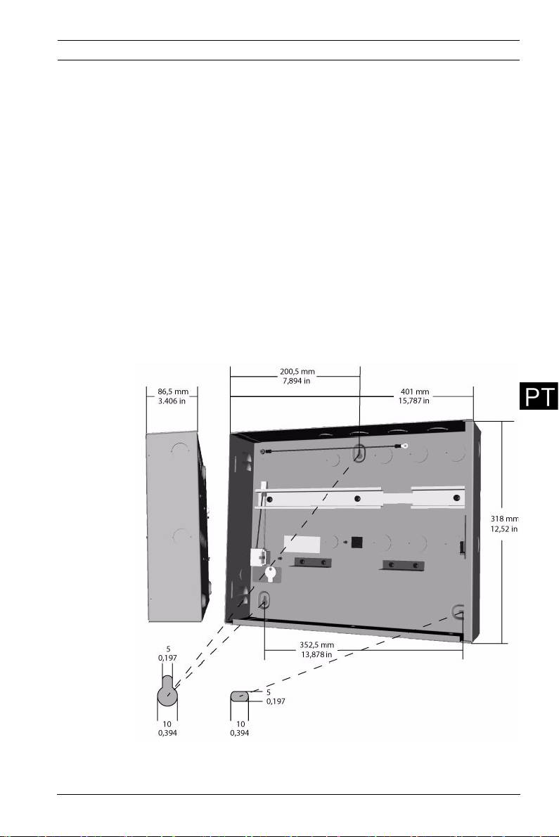
Montar o gabinete
Com a chave fornecida, remova as tampas das furações de
fixação do gabinete na parede.
Monte o gabinete de metal na posição pretendida com as
buchas fornecidas com o gabinete.
Utilize os parafusos (posição H do kit de acessórios) nos
pontos para montar o gabinete na parede.
Figura 3 Dimensões do gabinete
Bosch Sicherheitssysteme GmbH F.01U.097.252 | V 3.2 | 2010.01
Оглавление
- English Deutsch Polski 中文 Nederlands Русский Magyar Português brasileiro Español latinoamericano Français
- Included parts
- Mounting the Housing
- Connection of the Devices
- 12 V Mode Variations
- Lieferumfang
- Montage des Gehäuses
- Anschaltung der Geräte
- 12V-Modus Varianten
- Elementy zestawu
- Montaż obudowy
- Podłączanie urządzeń
- Połączenia w trybie 12 V
- 附件
- 安装外壳
- 设备连接
- 12 V 模式
- Meegeleverde onderdelen
- Montage van de behuizing
- Aansluiten van de apparaten
- Varianten van de12 V-uitvoering
- Комплектация
- Монтаж корпуса
- Подключение устройств
- Режим 12 В
- Alkatrészekkel együtt
- A készülékház összeszerelése
- Az eszközök csatlakoztatása
- 12 V üzemmód változatok
- Partes incluídas
- Montar o gabinete
- Ligação dos dispositivos
- Variações do Modo de 12 V
- Piezas incluidas
- Montaje de la carcasa
- Conexión de los dispositivos
- Variaciones del modo de 12 V
- Pièces fournies
- Montage du caisson
- Raccordement des périphériques
- Variations en mode 12 V
Топ 10 инструкций
100.00
MB QUART DSG 21399.98
Skil 0790 RA99.98
Bosch KGN39VW2199.97
Sony CDX-CA750X RU99.97
Braun 310 Series 399.96
Asus P3-PE599.96
Siemens MQ 5 N 29899.96
YUKON EXTEND LRS-1000
