Bosch AMC2 ENC-UL1 - Enclosure - Small: 设备连接
设备连接: Bosch AMC2 ENC-UL1 - Enclosure - Small

32 zh
AEC-AMC2-UL1 - 安装指南
设备连接
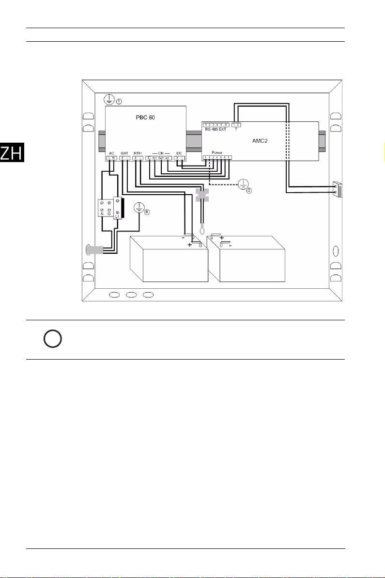
图4 设备连接
注释
i
以下步骤描述了如何在 24 V 模式下连接充电电池。 有关 12 V 模式连
接的信息,请参见第 15 页的 1.3 小节 “12 V 模式 ”。
1. 将 AMC 安装到滑轨 (
图1
中的项目 )和电源设备的左侧。
2. 将充电电池放置到外壳底部,并。
3. 将支架 J (
图2
) 固定在外壳背面,以便以后不使用电缆 B 的连
接器时可以将其固定。
4. 电缆组 A:
- 将 7 针插头 A1 连接到 AMC 的电源设备连接器 (标有
“POWER” 字样)。
- 将连接器 A3 连接到 PS DC 接口,并将 A2 连接到标有
“OK” 字样的接口。
- 将接地线 A4 连接到接地点 下面。
F.01U.097.252 | V 3.2 | 2010.01 Bosch Sicherheitssyteme GmbH

AEC-AMC2-UL1 - 安装指南
zh 33
5. 电缆组 B:
- 将插头连接器 B1 连接到电源设备左侧的第二个位置 - 标有
“BAT” 字样。
- 将连接器 B2b (红色)连接到第一节充电电池的 + 针。
- 使用电缆 C 将第一节充电电池的 - 针连接到第二节充电电
池的 + 针。
- 将连接器 B2a (黑色)连接到第二节充电电池的 - 针。
- 连接器 B3a 和 B3b 未使用。
6. 电缆组 G:
- 将连接器 G1 连接到标有 “RTH” 字样的 PS 接口。
- 将电缆穿过温度传感器支架 ,以便温度传感器 G2 悬在充
电电池上方约 5 厘米 (2 英寸)处。
7. 预装的电缆组 12:
- 将 2 针插头 13 连接到电源设备的交流电接口。
8. 预装的电缆 :
- 将盖板防拆开关的松驰端连接到 AMC 顶部的 2 针螺丝连接
器。 将电缆放在外壳与安装滑轨之间的位置处。
危险
在继续连接电源设备之前,从三针连接器 中卸下保险丝。
在完成安装过程之前,请不要装回保险丝。
9. 连接交流电源 X:
- 将棕色 (相位)导线连接到端子 L1。
- 将蓝色零线连接到端子 N。
- 将接地线连接到外壳上的位置 11。
注意
修剪外部电源线,使接地线 (黄色 / 绿色)最少比火线 (蓝色和棕
!
色)长 20 毫米 (0.8 英寸)。 这可以确保接地线不会在火线之前意外
断开。
10. 电缆 D:
-将 D1 连接到接地柱 1。
-将 D2 连接到盖板上的接地柱。
11. 安装保险丝。
12. 合上盖板。
Bosch Sicherheitssyteme GmbH F.01U.097.252 | V 3.2 | 2010.01
i
注释
按照 AMC 安装手册所述连接读卡器和其它外围设备。 将设备电缆穿
过外壳右上侧的开孔,或者从外壳的背面引入。
Оглавление
- English Deutsch Polski 中文 Nederlands Русский Magyar Português brasileiro Español latinoamericano Français
- Included parts
- Mounting the Housing
- Connection of the Devices
- 12 V Mode Variations
- Lieferumfang
- Montage des Gehäuses
- Anschaltung der Geräte
- 12V-Modus Varianten
- Elementy zestawu
- Montaż obudowy
- Podłączanie urządzeń
- Połączenia w trybie 12 V
- 附件
- 安装外壳
- 设备连接
- 12 V 模式
- Meegeleverde onderdelen
- Montage van de behuizing
- Aansluiten van de apparaten
- Varianten van de12 V-uitvoering
- Комплектация
- Монтаж корпуса
- Подключение устройств
- Режим 12 В
- Alkatrészekkel együtt
- A készülékház összeszerelése
- Az eszközök csatlakoztatása
- 12 V üzemmód változatok
- Partes incluídas
- Montar o gabinete
- Ligação dos dispositivos
- Variações do Modo de 12 V
- Piezas incluidas
- Montaje de la carcasa
- Conexión de los dispositivos
- Variaciones del modo de 12 V
- Pièces fournies
- Montage du caisson
- Raccordement des périphériques
- Variations en mode 12 V

