Sony SU-FL61: يدﺎﻔﺘﻟ ﺔﻣﻼﺴﻟا نﺎﻤﺿ ﻞﺋﺎﺳو نﻮﻳﺰﻔﻠﺘﻟا ﻞﻣﺎﺣ بﻼﻘﻧا
يدﺎﻔﺘﻟ ﺔﻣﻼﺴﻟا نﺎﻤﺿ ﻞﺋﺎﺳو نﻮﻳﺰﻔﻠﺘﻟا ﻞﻣﺎﺣ بﻼﻘﻧا: Sony SU-FL61
(AR)
١٠
يدﺎﻔﺘﻟ ﺔﻣﻼﺴﻟا نﺎﻤﺿ ﻞﺋﺎﺳو نﻮﻳﺰﻔﻠﺘﻟا ﻞﻣﺎﺣ بﻼﻘﻧا
ﺮﻳﺬﺤﺗ
،نﻮﻳﺰﻔﻠﺘﻟا
ﻞﻣﺎﺣ
بﻼﻘﻧا
يدﺎﻔﺘﻟ
ﺔﻣﻼﺴﻟا
نﺎﻤﺿ
ﻞﺋﺎﺳو
ﺬﺧأ
ﻦﻣ
ﺪﻛﺄﺗ
،ﻚﻟﺬﻟ
.
ﺔﻴﺼﺨﺸﻟا
ﺔﺑﺎﺻﻹا
ﻲﻓ
ﺐﺒﺴﺘﻳ
ﺎﻤﻣ
نﻮﻳﺰﻔﻠﺘﻟا
ﻂﻘﺴﻳ
ﺪﻘﻓ
ﻻإو
طﻮﻘﺳ
يدﺎﻔﺘﻟ
ﺦﻟا
،ﺔﻣﺎﻋﺪﻟا
وأ
راﺪﺠﻟا
ﻰﻟا
نﻮﻳﺰﻔﺘﻠﻟا
ﺖﻴﺒﺜﺘﺑ
ﻢﻗ
.
نﻮﻳﺰﻔﻠﺘﻟا
ﻰﻠﻋ
ﻪﺒﻴﻛﺮﺗ
داﺮﻣ
فﺎﻄﺧو
ﻦﻴﺘﻣ
ﺮﻳﺰﻨﺟ
وأ
ﻞﺒﺣ
ﺮﻴﻀﺤﺘﺑ
ﻢﻗ
.
قﻮﺴﻟا
ﻲﻓ
ةﺮﻓﻮﺘﻣ
ﻲﻫو
،راﺪﺠﻟا
.
ﺔﺒﻠﺼﻟا
ﺔﻣﺎﻋﺪﻟا
وأ
ﺐﻠﺼﻟا
راﺪﺠﻟا
ﻰﻠﻋ
فﺎﻄﺨﻟا
ﺖﻴﺒﺜﺘﺑ
ﻢﻗ
ﻼﻛ
ﻰﻠﻋ
دﻮﺟﻮﻤﻟا
ﺐﻘﺜﻟا
ﺮﺒﻋ
ﺮﻳﺰﻨﺠﻟا
وأ
ﻞﺒﺤﻟا
ﺮﻳﺮﻤﺘﺑ
ﻢﻗ
وأ
ﻞﺒﺤﻠﻟ
ﺮﺧﻵا
فﺮﻄﻟا
ﺖﻴﺒﺜﺘﺑ
ﻢﻗ
ﻢﺛ
ﻦﻣو
ﻦﻳﺰﻜﺗﺮﻤﻟا
.
راﺪﺠﻟا
ﻰﻠﻋ
ﺐﻛﺮﻤﻟا
فﺎﻄﺨﻟا
ﻰﻟا
ﺮﻳﺰﻨﺨﻠﻟ
ﻦﻴﺘﻤﻟا
ﺮﻳﺰﻨﺠﻟا
وأ
ﻞﺒﺤﻟا
راﺪﺠﻟا
ﻰﻠﻋ
ﺐﻛﺮﻤﻟا
فﺎﻄﺨﻟا
تﺎﻔﺻاﻮﻤﻟا
ﻢﺠﻛ
٢٠
:
ﻪﺑ
حﻮﻤﺴﻤﻟا
ﻞﻤﺤﻟا
ﻢﺠﻛ
٣٠
:
ﻪﺑ
حﻮﻤﺴﻤﻟا
ﻞﻤﺤﻟا
ﻪﻠﻘﻧ
ءﺎﻨﺛأ
نﻮﻳﺰﻔﻠﺘﻟا
ﻞﻣﺎﺣ
ﻰﻠﻋ
ﻞﻤﺤﻤﻟا
ﻞﻤﺤﻟا
لﻮﺣ
ﺔﻈﺣﻼﻣ
ﻞﻤﺤﻤﻟا
ﻰﺼﻗﻷا
ﻞﻤﺤﻟا
ﻪﻧزو
زوﺎﺠﺘﻳ
زﺎﻬﺟ
يأ
ﻊﺿو
ﻰﻟا
ﺪﻤﻌﺗ
ﻻ
جﺎﺟﺰﻟا
رﺎﺴﻜﻧا
ﻰﻟا
ﻚﻟذ
يدﺆﻳ
ﺪﻘﻓ
ﻻإو
،ﺔﻴﺟﺎﺟﺰﻟا
فﻮﻓﺮﻟا
ﻰﻠﻋ
.
ﺔﻴﺼﺨﺸﻟا
ﺔﺑﺎﺻﻹاو
ﻢﻣ
:
دﺎﻌﺑﻷا
١٣٩٣
١٤٢٥
٦١٦
٤١٩
٤٦٢
٢٢٠
١٤٥١
١٠٤٥
٢٩٧
:
نزﻮﻟا
ﻢﺠﻛ
٤٨
.
رﺎﻌﺷإ
نود
ﺮﻴﻴﻐﺘﻠﻟ
ﺔﺿﺮﻋ
تﺎﻔﺻاﻮﻤﻟاو
ﻢﻴﻤﺼﺘﻟا
Оглавление
- 安全 のために
- 2
- 1
- WARNINGOn Safety CAUTION
- WARNING
- CAUTION
- To Sony dealers
- Assemble the TV Stand
- Install the TV 1
- 4
- 2
- Safety measures to prevent toppling over
- AVERTISSEMENTÀ propos de la sécurité ATTENTION
- AVERTISSEMENT
- ATTENTION
- Pour les revendeurs Sony
- Vérification des pièces
- 2
- 3
- Fixation des étagères en verre 1
- Raccordement des câbles 1
- Spécifications
- ADVERTENCIASobre la seguridad PRECAUCIÓN
- ADVERTENCIA
- PRECAUCIÓN
- Información para los distribuidores de Sony
- Comprobación de las piezas
- 2
- 3
- Fije las repisas de vidrio 1
- Conexión de los cables 1
- Especificaciones
- AVISOSegurança ATENÇÃO
- AVISO
- ATENÇÃO
- Para os agentes da Sony
- Verifique as peças
- 2
- 3
- Fixe as prateleiras de vidro 1
- Ligue os cabos 1
- Características técnicas
- ADVARSEL!Om sikkerhed FORSIGTIG!
- ADVARSEL!
- FORSIGTIG!
- Til Sony-forhandlere
- Samling af tv-bordet
- Montering af tv'et 1
- 4
- 2
- Sikkerhedsforanstalt-ninger til at forhindre, at tv-bordet vælter
- ADVARSELOm sikkerhet FORSIKTIG
- ADVARSEL
- FORSIKTIG
- Til Sony-forhandlere
- Kontrollere delene
- 2
- 3
- Feste glasshyllene 1
- Koble til kablene 1
- Spesifikasjoner
- VARNING!Om säkerhet VAR FÖRSIKTIG
- VARNING!
- VAR FÖRSIKTIG
- För Sony-återförsäljare
- Montera TV-stativet
- Montera TV-apparaten 1
- 4
- 2
- Säkerhetsåtgärder för att förhindra att TV-stativet välter
- VAARATurvallisuus VAROITUS
- VAARA
- VAROITUS
- Sony-jälleenmyyjille
- Kokoa televisiojalusta
- Asenna televisio 1
- 4
- 2
- Varotoimet kaatumisen estämiseksi
- WAARSCHUWINGVeiligheid LET OP
- WAARSCHUWING
- LET OP
- Voor Sony-handelaars
- De onderdelen controleren
- 2
- 3
- De glasplaat bevestigen 1
- De kabels aansluiten 1
- Technische gegevens
- ACHTUNGSicherheit VORSICHT
- ACHTUNG
- VORSICHT
- Für Sony-Händler
- Überprüfen der mitgelieferten Teile
- Zusammenbauen des Fernsehständers
- Montieren des Fernsehgeräts 1
- 4
- 2
- Sicherheitsmaßnahmen, um ein Kippen des Geräts zu verhindern
- ATTENZIONEInformazioni sulla sicurezza AVVERTIMENTO
- ATTENZIONE
- AVVERTIMENTO
- Per gli installatori Sony
- Controllo dei componenti
- 2
- 3
- Fissaggio dei ripiani in vetro 1
- Collegamento dei cavi 1
- Caratteristiche tecniche
- ΠΡΟΕΙ∆ΟΠΟΙΗΣΗΑσφάλεια ΠΡΟΣΟΧΗ
- ΠΡΟΕΙ∆ΟΠΟΙΗΣΗ
- ΠΡΟΣΟΧΗ
- Για τους αντιπροσώπους της Sony
- Ελέγξτε τα µέρη
- Συναρµολγηση της βάσης της τηλερασης
- Εγκατάσταση της τηλερασης 1
- 4
- 2
- Μέτρα ασφαλείας για την αποφυγή ανατροπής
- ПРЕДУПРЕЖДЕНИЕБезопасность ВНИМАНИЕ
- ПРЕДУПРЕЖДЕНИЕ
- ВНИМАНИЕ
- Для дилepов Sony
- Проверка комплектности
- 2
- 3
- Установка стеклянных полок 1
- Подключение кабелей 1
- Технические характеристики
- OSTRZEŻENIEBezpieczeństwo PRZESTROGA
- OSTRZEŻENIE
- PRZESTROGA
- Informacja dla dystrybutorów Sony
- Sprawdzanie części
- 2
- 3
- Mocowanie szklanych półek 1
- Podłączanie przewodów 1
- Dane techniczne
- 警告安全事项 注意
- 警告
- 注意
- 致 Sony 经销商
- 装配电视机座
- 安装电视机 1
- 4
- 2
- 防止倾倒的安全措施
- 警告安全事項 注意事項
- 警告
- 注意事項
- 致 Sony 經銷商
- 組裝電視底座
- 安裝電視 1
- 4
- 2
- 請採取安全措施以避免翻覆
- คำเตือน
- ข้อควรระวัง
- สำหรับตัวแทนจำหน่ายSony
- การประกอบแท่นวางทีวี
- การติดตั้งทีวี 1
- การติดตั้งชั้นกระจก 4
- 2
- มาตรการความปลอดภัยเพื่อป้องกันแท่นวางทีวีล้ม
- 1
- 1
- 4
- 2
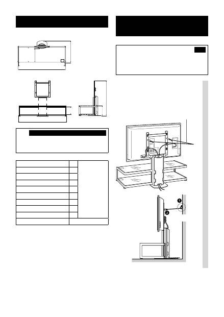
- يدﺎﻔﺘﻟ ﺔﻣﻼﺴﻟا نﺎﻤﺿ ﻞﺋﺎﺳو نﻮﻳﺰﻔﻠﺘﻟا ﻞﻣﺎﺣ بﻼﻘﻧا
- كﻼﺳﻷا ﻞﻴﺻﻮﺘﺑ ﻢﻗ 1
- 4
- نﻮﻳﺰﻔﻠﺘﻟا ﺐﻴﻛﺮﺗ 1
- نﻮﻳﺰﻔﻠﺘﻟا ﻞﻣﺎﺣ ﻊﻴﻤﺠﺗ
- ﻊﻄﻘﻟا ﺺﺤﻓا
- ﻪﻴﺒﻨﺗ
- ﺮﻳﺬﺤﺗ
- زا یﺮﻴﮔﻮﻠﺟ یاﺮﺑ ﯽﻨﻤﻳا تﺎﻣاﺪﻗا نﺪﺷ نﻮﮔژاو
- ﺪﻴﻨﻛ ﻞﺻو ار ﺎﻫ ﻞﺑﺎﻛ 1
- 4
- ﺪﻴﻨﻛ ﺐﺼﻧ ار نﻮﻳﺰﻳﻮﻠﺗ 1
- ﺪﻴﻨﻛ راﻮﺳ ار نﻮﻳﺰﻳﻮﻠﺗ ﻪﻳﺎﭘ
- ﺪﻴﻨﻛ ﯽﺳرﺮﺑ ار تﺎﻌﻄﻗ
- طﺎﻴﺘﺣا
- راﺪﺸﻫ
Топ 10 инструкций
100.00
MB QUART DSG 21399.98
Skil 0790 RA99.98
Bosch KGN39VW2199.97
Sony CDX-CA750X RU99.97
Braun 310 Series 399.96
Asus P3-PE599.96
Siemens MQ 5 N 29899.96
YUKON EXTEND LRS-1000
