Panasonic TYWK103PV9: 安装步骤
安装步骤: Panasonic TYWK103PV9
1706
1512
451.1
120
60
121
1.2
1053
733
200
113
.1
200
175.
1
120
60
451.1
L
R
L
R
60
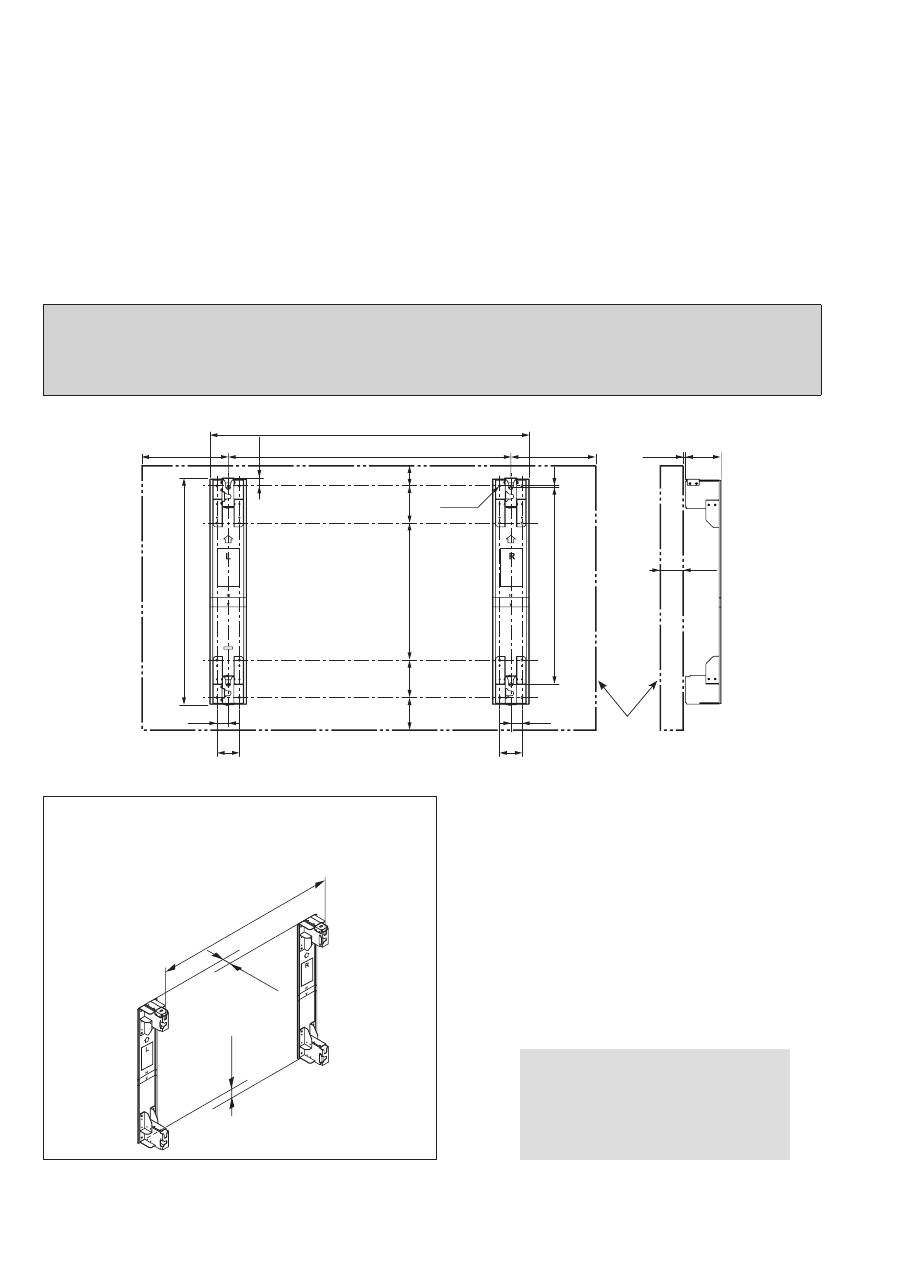
安装步骤
●
壁挂式框架上有
16
个安装孔。
请务必将框架在
16
个安装点均固定上。
*
有关安装等离子显示器时所使用的尺寸请参阅第
63
和
64
页。
注意事项
①
壁挂式框架的重量约为
25
公斤。
有关安装壁挂式框架上的等离子显示器的重量,请参阅等离子显示器的使用
手册。
②
按照壁挂式框架的尺寸图纸确认
16
个安装点的墙壁强度,如果强度不够的话,请予以适当的加固。
1.
确认安装之处的强度。
2.
将壁挂式框架安装到墙壁上。
本机:
毫米
墙壁安装孔(
16
点)
注意事项
水平安装
标记(
H
)
(水平安装用)
标记(
V
)
(垂直安装用)
安全止动装置固定
螺钉
安全止动装置
垂直安装
●
这些标记表示等离子显示器的中线。
●
建议在等离子显示器后方至少留出
70
厘米的维修保养用空隙。
注意
安全止动装置固定螺钉
安全止动装置固定螺钉
安全止动装置
中文
按照尺寸图纸确定用于将框架安装到墙壁上的孔的位置,然后将框架安装到墙壁上。
(水平安装框架时)
将壁挂式框架上所标记的箭头朝向上方进行安装。
在左侧安装框架上标记有“
L
”一侧,
在右侧安装标记有“
R
”一侧。
(垂直安装框架时)
在上方安装框架上标记有“
L
”一侧,在下方安装标记有“
R
”一侧。
使用公称直径为
12
毫米的市售螺栓或螺母来固定全部
16
个安装孔上的框架。
●
请用适合墙壁材质的公称直径为
12
毫米的市售螺丝。
●
确认安装螺栓的强度,请使用具有足够强度的螺栓。
等离子显示器外观尺寸
L
R
L
R
61
3.
准备好等离子显示器。
平圆头内六角螺栓
弹簧垫圈
支架钩
内六角扳手(等离子显示器所附)
4.
将显示器安装到壁挂式框架上。
卸下安全止动装置固定螺钉,卸下安全止动
装置。
将显示器上的支架钩(
4
个)插到壁挂式框
架的沟槽内,将显示器笔直降下。
沟槽
(水平安装用)
沟槽
(垂直安装用)
支架钩
沟槽
(水平安装用)
沟槽
(垂直安装用)
水平安装
垂直安装
安全止动装置
固定螺钉
安全止动装置
安全止动装置
安全止动装置固定
螺钉
安全止动装置固定螺钉
安全止动装置
安全止动装置固定螺钉
卸下后面板左右两侧的两个带眼螺栓帽
(×
4
)。
在取下带眼螺栓帽处安上支架钩。
在取下支架钩处安上带眼螺栓帽。
中文
(底侧)
带眼螺栓帽
支架钩
L
R
6
安装步骤
●
务必拧紧左右安全止动装置,以防止显示器从壁挂式框架上掉落。
5.
固定显示器。
注意事项
用安全止动装置固定螺钉牢固固定刚才卸下的安全止动装置(
2
个)。
沟槽
(水平安装用)
沟槽
(垂直安装用)
卸下显示器时
水平安装
垂直安装
安全止动装置固定螺钉
安全止动装置
安全止动装
置固定螺钉
安全止动装置
安全止动装置
●
要卸下显示器时,请将其抬起约
60
毫米。
注意
中文
卸下安到壁挂式框架上的安全止动装置(
2
个)
。
将显示器向上笔直抬起。
0 ±
2
(0
″ ± 0.08
″)
0 ± 1.
5
(0″ ± 0.06
″)
0 ± 1.
5
(0″
± 0.06
″)
1512 ± 1 (59.53
″ ±
0.04
″)
1512 ± 1 (59.53
″ ±
0.04
″)
0 ±
2
(0″ ± 0.08
″)
193 (7.6
″)
127.5 (5
″)
10.8 (0.4
″)
127.5 (5″)
193 (7.6″)
10.8 (0.4″)
1706 (67.2″)
1512 (59.5″)
451.1 (17.8″)
120
(4.7″)
120
(4.7″)
60 (2.4″)
121
1.2 (47.7″
)
40.
7
(1.6″)
1053 (41.5″
)
7.
5
(0.3″)
733 (28.9″
)
200 (7.9″)
11
3.1
(4.5″)
16
-
Φ
14
200 (7.9″)
175.
1
(6.9″)
60 (2.4″)
451.1 (17.8″)
1706 (67.2″
)
1512 (59.5″)
451.1 (17.8″
)
120 (4.7″)
120 (4.7″)
57 (2.2″)
57 (2.2″)
1211.2 (47.7″)
40.7
(1.6″)
1053 (41.5″)
733 (28.9″)
200
(7.9″)
57.5
(2.3″)
63.1
(2.5″)
16
-
Φ
14
200
(7.9″)
225.1
(8.7″)
451.1 (17.8″
)
6
外形寸法図
External dimensions drawing
Abbildung mit externen Abmessungen
Tekening met buitenafmetingen
Schema delle dimensioni esterne
Plan des dimensions extèrieures
Dibujo de dimensiones externas
Detaljskiss över yttermått
Tegning af udvendige mål
Схема с внешними размерами
Креслення із зовнішніми розмірами
尺寸图
壁掛け金具(垂直取り付け型)
Wall-hanging bracket (Vertical mounting type)
Wandhalterung (Typ für vertikale Anbringung)
Muurbevestigingssteun (voor verticale montage)
Staffa per montaggio alla parete (tipo per montaggio verticale)
Applique de fixation au mur (type pour montage vertical)
Soporte para colgar en pared (Tipo de montaje vertical)
Väggupphängningshållare (vertikal monteringstyp)
Vægophæng (type til lodret montering)
Кронштейн для крепления на стену (Для вертикального монтажа
)
Настінний кронштейн (для вертикального монтажу
)
壁挂式框架(垂直安装型)
単位
: mm
Unit: mm (inches)
Einheit: mm
Eenheid: mm
Unità: mm
Unité: mm
Unidad: mm
Enhet: mm
Enhed: mm
Единицы: мм
Одиниці виміру: мм
单位∶毫米
横型設置時
Horizontal installation
Horizontale Installation
Horizontale installatie
Montaggio in orizzontale
Installation horizontale
Instalación horizontal
Horisontell montering
Vandret installation
Горизонтальная установка
Горизонтальний монтаж
水平安装
※
取り付け公差
Mounting tolerance
Montagetoleranz
Bevestigingstolerantie
Tolleranza di montaggio
Tolérance de montage
Tolerancia de montaje
Monteringstolerans
Monteringstolerance
Допуск установки
Допуск на встановлення
安装公差
※: プラズマディスプレイ外形寸法
Plasma display external dimensions
Außenabmessungen des Plasmadisplays
Buitenafmetingen van het plasmascherm
Dimensioni esterne schermo al plasma
Dimensions externes de l’écran plasma
Dimensiones externas de la pantalla de plasma
Plasmaskärmens yttermått
Plasmaskærmens udvendige mål
Наружные размеры плазменного дисплея
Зовнішні розміри плазмової панелі
等离子显示器外观尺寸
0 ±
2
(0
″ ± 0.08
″)
0 ± 1.
5
(0″ ± 0.06
″)
0 ± 1.
5
(0″
± 0.06
″)
1512 ± 1 (59.53
″ ±
0.04
″)
1512 ± 1 (59.53
″ ±
0.04
″)
0 ±
2
(0″ ± 0.08
″)
193 (7.6
″)
127.5 (5
″)
10.8 (0.4
″)
127.5 (5″)
193 (7.6″)
10.8 (0.4″)
1706 (67.2″)
1512 (59.5″)
451.1 (17.8″)
120
(4.7″)
120
(4.7″)
60 (2.4″)
121
1.2 (47.7″
)
40.
7
(1.6″)
1053 (41.5″
)
7.
5
(0.3″)
733 (28.9″
)
200 (7.9″)
11
3.1
(4.5″)
16
-
Φ
14
200 (7.9″)
175.
1
(6.9″)
60 (2.4″)
451.1 (17.8″)
1706 (67.2″
)
1512 (59.5″)
451.1 (17.8″
)
120 (4.7″)
120 (4.7″)
57 (2.2″)
57 (2.2″)
1211.2 (47.7″)
40.7
(1.6″)
1053 (41.5″)
733 (28.9″)
200
(7.9″)
57.5
(2.3″)
63.1
(2.5″)
16
-
Φ
14
200
(7.9″)
225.1
(8.7″)
451.1 (17.8″
)
外形寸法図
External dimensions drawing
Abbildung mit externen Abmessungen
Tekening met buitenafmetingen
Schema delle dimensioni esterne
Plan des dimensions extèrieures
Dibujo de dimensiones externas
Detaljskiss över yttermått
Tegning af udvendige mål
Схема с внешними размерами
Креслення із зовнішніми розмірами
尺寸图
壁掛け金具(垂直取り付け型)
Wall-hanging bracket (Vertical mounting type)
Wandhalterung (Typ für vertikale Anbringung)
Muurbevestigingssteun (voor verticale montage)
Staffa per montaggio alla parete (tipo per montaggio verticale)
Applique de fixation au mur (type pour montage vertical)
Soporte para colgar en pared (Tipo de montaje vertical)
Väggupphängningshållare (vertikal monteringstyp)
Vægophæng (type til lodret montering)
Кронштейн для крепления на стену (Для вертикального монтажа
)
Настінний кронштейн (для вертикального монтажу
)
壁挂式框架(垂直安装型)
※
単位
: mm
Unit: mm (inches)
Einheit: mm
Eenheid: mm
Unità: mm
Unité: mm
Unidad: mm
Enhet: mm
Enhed: mm
Единицы: мм
Одиниці виміру: мм
单位∶毫米
縦型設置時
Vertical installation
Vertikale Installation
Verticale installatie
Montaggio in verticale
Installation verticale
Instalación vertical
Vertikal montering
Lodret installation
Вертикальная установка
Вертикальний монтаж
垂直安装
取り付け公差
Mounting tolerance
Montagetoleranz
Bevestigingstolerantie
Tolleranza di montaggio
Tolérance de montage
Tolerancia de montaje
Monteringstolerans
Monteringstolerance
Допуск установки
Допуск на встановлення
安装公差
© 006 Matsushita Electric Industrial Co., Ltd. All Rights Reserved.
Matsushita Electric Industrial Co., Ltd.
Web Site : http://panasonic.net/
Printed in Japan
M0906A0 (MBS)
※: プラズマディスプレイ外形寸法
Plasma display external dimensions
Außenabmessungen des Plasmadisplays
Buitenafmetingen van het plasmascherm
Dimensioni esterne schermo al plasma
Dimensions externes de l’écran plasma
Dimensiones externas de la pantalla de plasma
Plasmaskärmens yttermått
Plasmaskærmens udvendige mål
Наружные размеры плазменного дисплея
Зовнішні розміри плазмової панелі
等离子显示器外观尺寸
Оглавление
- 安全上のご注意
- 構成部品
- 取り付け工事手順
- Precautions with regard to setting up
- Components
- Installation procedure
- Vorsichtsmaßnahmen bei der Aufstellung
- Einzelteile
- Installation
- Abnehmen des Displays
- Voorzorgsmaatregelen bij opstelling
- Onderdelen
- Installatieprocedure
- Verwijderen van het plasmascherm
- Precauzioni relative all’installazione
- Componenti
- Procedura di installazione
- Rimozione dello schermo
- Précautions concernant l’installation
- Composants
- Procédure d’installation
- Precauciones para la instalación
- Componentes
- Procedimiento de instalación
- Desmontaje de la pantalla
- Säkerhetsföreskrifter vid uppsättningen
- Delar
- Åtgärder vid installationen
- Borttagning av monitorn
- Forholdsregler vedrørende montering
- Komponenter
- Monteringsprocedure
- Afmontering af plasmaskærmen
- Меры предосторожности относительно установки
- Компоненты
- Процедура установки
- Застережні заходи під час монтажу
- Компоненти
- Монтаж
- Демонтаж дисплея
- 有关设置的安全注意事项
- 组件
- 安装步骤

