Panasonic TYST58PF20 – страница 7
Инструкция к Panasonic TYST58PF20

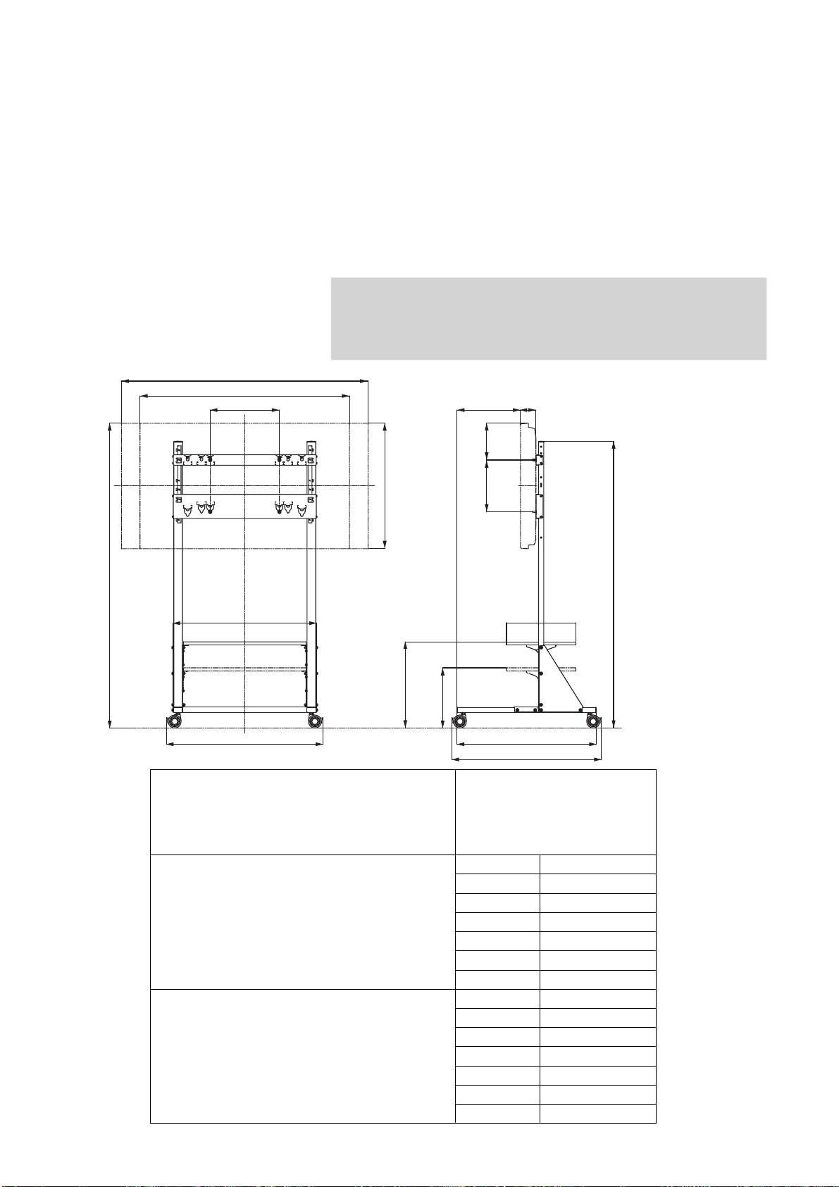
プラズマディスプレイ用移動式スタンド
外形寸法図
Mobile stand for Plasma Display
External dimensions drawing
Mobiler Ständer für Plasmadisplay
Abbildung mit externen Abmessungen
Mobiele standaard voor plasmascherm
Tekening met buitenafmetingen
Supporto mobile per lo schermo al plasma
Schema delle dimensioni esterne
Pied mobile pour l’écran plasma
Plan des dimensions extèrieures
Pedestal móvil para la pantalla de plasma
Dibujo de dimensiones externas
Flyttbart stativ för Bred plasmaskärmen
Detaljskiss över yttermått
Rullebord til plasmaskærm
Tegning af udvendige mål
Мобильная подставка плазменного дисплея
Схема с внешними размерами
Плазмалық дисплейдің жылжымалы тіреуіші
Сыртқы өлшемдер сызбасы
Переносна підставка плазмового дисплея
Креслення із зовнішніми розмірами
電漿顯示器移動式台架
外觀尺寸圖
単位 :
mm
Unité: mm
Бірлік: мм
Unit: mm (inches)
Unidad: mm
Одиниці виміру: мм
Einheit: mm
Enhet: mm
單位: 毫米
Eenheid: mm
Enhed: mm
Unità: mm
Единицы: мм
B'
※
B
A
E
D
F
ABBA
C
ABBA
300 (11.9)
※スピーカーあり
1760 (69.3)
With speakers
1657 (65.3)
827.4 (32.6)
400
Mit Lautsprechern
(15.8)
Met luidsprekers
Con altoparlanti
Avec les enceintes
Con altavoces
Med högtalare
Med højttalere
498 (19.7)
С динамиками
348 (13.8)
Динамиктерімен бірге
904 (35.6)
806 (31.8)
З колонками
864 (34.1)
附揚聲器
対応機種 Modell
寸法 Mått
Applicable models Anvendelige modeler
Dimensions Mål
Zutreffende Modelle Πодходящие модели
Abmessungen Размеры
Modellen waarop van toepassing Қолдануға болатын модельдер
Afmetingen Өлшемдер
Modelli applicabili Моделі
Dimensioni Розміри
Modèles concernès 適用型號
Dimensions 尺寸
Modelos aplicables
Dimensiones
A 400 (15.8)
B 1210 (47.7)
B' ※ 1427 (56.2)
TH-50PF20
C 724 (28.6)
TH-50PH20
D 89 (3.6)
E 368 (14.5)
F 212 (8.4)
A 400 (15.8)
B 1020 (40.2)
B' ※ 1230 (48.5)
TH-42PF20
C 610 (24.1)
TH-42PH20
D 89 (3.6)
E 368 (14.5)
F 155 (6.2)
121

Web Site : http://panasonic.net
M0310-0
○ Panasonic Corporation 2010
c

