Karcher HDS 9/14-4 ST Eco – страница 4
Инструкция к Автомобильной Минимойке Karcher HDS 9/14-4 ST Eco
-
2
Prima di installare l'apparecchio deve essere eseguito un accor-
do con lo spazzacamino distrettuale autorizzato.
Durante l'installazione, rispettare le disposizioni del diritto edili-
zio, del diritto industriale e della legge sulla tutela delle immissio-
ni. Rimandiamo alle seguenti disposizioni, direttive e norme:
–
L'apparecchio deve essere installato solo da un tecnico nel ri-
spetto delle norme nazionali vigenti.
–
Per l'installazione elettrica rispettare le disposizioni nazionali
vigenti in materia.
–
La regolazione, la manutenzione e le riparazioni del bruciato-
re devono essere effettuate esclusivamente da tecnici appo-
sitamente addestrati del servizio assistenza clienti Kärcher.
–
Durante la progettazione di un camino attenersi alle direttive
locali vigenti.
La postazione di lavoro si trova sul quadro di controllo. Le ulteriori
postazioni di lavoro sono posizionate sugli apparecchi ausiliari in
funzione alla strutturazione dell'impianto (dispositivi a spruzzo)
che vengono a loro volta collegati alle prese d'acqua.
–
Per proteggersi dagli spruzzi d'acqua o di sporco indossare
indumenti e occhiali di protezione adatti.
L'apparecchio serve ad eliminare lo sporco da superfici con l'aiu-
to di un getto d'acqua che fuoriesce liberamente. Viene utilizzato
prevalentemente per la pulizia di macchinari, veicoli e facciate.
Pericolo
Rischio di lesioni! Per apparecchi impiegati presso stazioni di ser-
vizio o in altre zone di pericolo, osservare le disposizioni di sicu-
rezza vigenti.
–
L'acqua fredda raggiunge la parte aspirante della pompa alta
pressione scorrendo attraverso la serpentina di raffredda-
mento del motore ed il contenitore con galleggiante. Il conte-
nitore con galleggiante viene rifornito gradualmente con
addolcitore. La pompa convoglia l'acqua ed il detergente
aspirato attraverso lo scaldaacqua rapido. Il rapporto acqua/
detergente può essere regolato tramite una valvola di dosag-
gio. Lo scaldaacqua rapido viene riscaldato dal bruciatore.
–
L'uscita di alta pressione viene collegata alla rete ad alta
pressione presente in loco. Il collegamento alle pistole a
spruzzo viene realizzato montando il tubo alta pressione alle
prese d'acqua di tale rete.
I dispositivi di sicurezza servono alla protezione dell'utente e non
devono essere disattivati o impiegati per scopi diversi da quelli in-
dicati.
La protezione mancanza acqua impedisce l'attivazione della
pompa alta pressione in mancanza d'acqua.
La protezione mancanza acqua impedisce il surriscaldamento
del bruciatore in mancanza d'acqua. Il bruciatore si attiva solo in
presenza di adeguato approvvigionamento di acqua.
Il pressostato spegne l'apparecchio al superamento della pres-
sione di esercizio prestabilita. Tale impostazione non deve esse-
re cambiata.
Un eventuale guasto del pressostato provoca l'apertura della val-
vola di sicurezza. La suddetta valvola è impostata in fabbrica e
sigillata. Tale impostazione non deve essere cambiata.
Il dispositivo di controllo fiamma spegne il bruciatore in presenza
di rifornimento di carburante insufficiente oppure guasti al brucia-
tore. La spia luminosa "guasto bruciatore" (E) si accende.
La protezione da sovracorrente scatta in presenza di un blocco
del motore del bruciatore. Il motore della pompa alta pressione è
protetto da un salvamotore e da un interruttore differenziale.
Il termostato dei gas di scarico scatta quando la temperatura dei
gas di scarico supera i 320 °C. La spia luminosa "guasto brucia-
tore" (E) lampeggia.
Lo spegnimento dell'apparecchio tramite la pistola a spruzzo pro-
voca l'apertura di una valvola elettromagnetica nel sistema di alta
pressione che causa a sua volta una riduzione della pressione.
Questo avviene al termine del tempo prestabilito in "stato di pron-
to".
Disposizioni, direttive e norme
Postazioni di lavoro
Dispositivi di protezione individuale
Indossare adeguati dispositivi di protezione per
le orecchie durante la pulizia di parti che gene-
rano rumori non assorbiti per evitare danni
all'udito.
Uso conforme a destinazione
L'acqua di scarico contenente oli minerali non deve essere di-
spersa nel terreno, nelle acque o nelle canalizzazioni. La pulizia
di motori e di sottoscocche va effettuata esclusivamente in luo-
ghi provvisti di separatori d'olio.
Funzione
Dispositivi di sicurezza
Protezione mancanza acqua del contenitore con
galleggiante
Protezione mancanza acqua del dispositivo di
bloccaggio di sicurezza
Pressostato
Valvola di sicurezza
Controllo della fiamma
Protezione da sovracorrente
Termostato dei gas di scarico
Riduzione della pressione del sistema alta pressione
61
IT
-
3
Fig. 1
1 Bruciatore
2 Manometro
3 Afflusso di acqua pulita con filtro
4 Uscita alta pressione
5 Tubazioni di combustibile di mandata
6 Tubazioni di combustibile di ritorno
7 Tubo flessibile di aspirazione detergente I
8 Tubo flessibile di aspirazione detergente II (opzionale)
9 Contenitore con addolcitore
10 Alimentazione elettrica
11 Contenitore con galleggiante
12 Quadro di controllo
Fig. 2
A Interruttore dell'apparecchio
B Regolatore temperatura
C Valvola di dosaggio detergente
D Valvola di dosaggio detergente II (opzionale)
E Spia luminosa "guasto bruciatore"
F Spia luminosa "stato di pronto"
G Spia luminosa surriscaldamento motore
H Spia luminosa protezione anticalcare
I
Tappo - Pulsante di sblocco motore del bruciatore
Parti dell'apparecchio
6
5
7
8
3
4
9
11
10
1
12
2
Quadro di controllo
62
IT
-
4
몇
Pericolo
Rischio di lesioni! L' apparecchio, le alimentazioni, il tubo flessi-
bile alta pressione ed i collegamenti devono essere in perfetto
stato. In caso contrario è vietato usare l'apparecchio.
–
Valori di collegamento: vedi Dati tecnici e targhetta.
–
Il collegamento elettrico va eseguito da un'elettricista qualifi-
cato e deve essere conforme alla norma IEC 60364-1.
L'operatore deve utilizzare l'apparecchio in modo conforme a de-
stinazione. Deve tener conto delle condizioni presenti in loco e
durante il lavoro con l'apparecchio fare attenzione alle persone
nelle vicinanze.
Non lasciare mai l'apparecchio incustodito quando è acceso.
Pericolo
–
Pericolo di scottature causate da acqua calda! Non puntare il
getto ad alta pressione su persone o animali.
–
Pericolo di scottature causate da parti calde dell'impianto! Non
toccare tubazioni e tubi flessibili non idoneamente isolati du-
rante il funzionamento con acqua calda. Maneggiare la lancia
solo afferrando i rivestimenti dell'impugnatura. Non toccare il
manicotto d'innesto dello scarico dello scaldaacqua rapido.
–
Pericolo di intossicazione o di corrosione da detergente. Os-
servare le indicazioni rifornite con il detergente. Tenere lonta-
no i detergenti da persone non autorizzate.
Pericolo
Pericolo di morte da scosse elettriche! Non puntare il getto d'ac-
qua sui seguenti dispositivi:
–
Apparecchi ed impianti elettrici,
–
questo impianto,
–
tutti i componenti conduttori nell'area di lavoro.
Il getto d’acqua proveniente dalla lancia genera una forza repulsiva.
La lancia a gomito fa sì che la forza generata si orienti verso l'alto.
Pericolo
–
Rischio di lesioni! La forza repulsiva può causare una perdita di
equilibrio dell'utilizzatore. Pericolo di caduta. La lancia può sca-
gliarsi incontrollatamente e provocare danni alle persone. Tro-
vare una postazione sicura ed afferrare saldamente la pistola a
spruzzo. Non bloccare mai la leva della pistola a spruzzo.
–
Non puntare il getto su altri o su se stessi per pulire indumenti
o calzature.
–
Pericolo di lesioni a causa di pezzi che schizzano via! Scheg-
ge o oggetti che schizzano via possono provocare lesioni alle
persone o agli animali. Non dirigere mai il getto di vapore ver-
so oggetti fragili e non fissati.
–
Rischio di incidenti causati da danneggiamento! I pneumatici
e le valvole di autovetture vanno puliti mantenendo una di-
stanza di 30 cm.
몇
Attenzione
Pericolo da sostanze nocive! Non rivolgere il getto d'acqua sui
seguenti materiali (potrebbero essere liberate sostanze nocive):
–
Materiali contenenti amianto,
–
materiali che contengono potenzialmente sostanze nocive.
Pericolo
–
Rischio di lesioni causato da improvvisi getti d'acqua poten-
zialmente caldi. Usare solo tubi flessibili alta pressione origi-
nali prodotti della Kärcher i quali si adattano in modo ottimale
all'impianto. Si declina qualsiasi responsabilità per danni cau-
sati dall'utilizzo di tubi flessibili diversi.
–
Pericolo per la salute causato da detergenti! A causa di deter-
genti eventualmente aggiunti, l'acqua derivante dall'apparec-
chio non è di qualità potabile.
–
Rischio di danni all'udito a causa di parti che generano rumori
non assorbiti! In tal caso si prega di indossare i dispositivi di
protezione per le orecchie.
Pericolo
Rischio di lesioni causato da improvvisi getti d'acqua potenzial-
mente caldi!
Pericolo
Prima di ogni utilizzo controllare che il tubo flessibile alta pressio-
ne non sia danneggiato. Sostituire immediatamente il tubo flessi-
bile alta pressione danneggiato.
Prima di utilizzare il tubo alta pressione, le tubazioni, la rubi-
netteria e la lancia controllare che non siano danneggiati.
Controllare che il giunto del tubo flessibile sia ben fissato.
Attenzione
Pericolo di danneggiamento causato da un eventuale funziona-
mento a secco.
Controllare ed eventualmente riempire il livello del contenito-
re del detergente.
Controllare ed eventualmente riempire il livello del prodotto
addolcitore.
Posizionare l'interruttore dell'apparecchio (A) su "0".
Chiudere l'alimentazione dell'acqua.
Azionare la pistola a spruzzo fino a completa depressurizza-
zione dell'apparecchio.
Ruotando la valvola di regolazione di portata in senso orario
si ottiene un aumento della pressione di esercizio e della por-
tata.
Messa in funzione
Allacciamento alla rete elettrica
Uso
Norme di sicurezza
!
Creare lo "stato di pronto"
Spegnimento in caso di emergenza
Impostare la pressione di esercizio e la portata
Impostazione sull'apparecchio
R
63
IT
-
5
Ruotando invece la valvola di regolazione di portata in senso
antiorario, la pressione di esercizio e la portata diminuiscono.
Ruotando la valvola di regolazione di portata in senso orario
si ottiene un aumento della portata e della pressione di eser-
cizio.
Ruotando la valvola di regolazione di portata in senso antio-
rario si ottiene una diminuzione della portata e della pressio-
ne di esercizio.
Aprire l'alimentazione dell'acqua.
Simbolo "Motore acceso"
Tirare la leva della pistola a spruzzo e posizionare l'interrutto-
re dell'apparecchio (A) su „1“ (Motore acceso).
La spia luminosa "stato di pronto" (F) indica lo stato di pronto.
Pericolo
Pericolo di scottature!
Attenzione
Il funzionamento ad acqua calda senza carburante danneggia la
pompa di alimentazione del combustibile. Verificare la corretta
alimentazione del combustibile prima di attivare il funzionamento
ad acqua calda.
Il bruciatore può essere attivato in caso di necessità.
Simbolo "Bruciatore acceso"
Posizionare l'interruttore dell'apparecchio (A) su " Bruciatore
acceso".
La temperatura desiderata dell'acqua può essere impostata con
l'aiuto del termoregolatore (B). Temperatura massima: 98 °C.
Pericolo
Pericolo di scottature! Se la temperatura di esercizio supera i 98
°C, la pressione di esercizio non deve essere maggiore di
3,2 MPa (32 bar).
Per cambiare dal funzionamento a caldo al funzionamento a va-
pore, far funzionare l'apparecchio fino a completo raffreddamen-
to e spegnerlo. Questa regolazione viene effettuata come segue:
Sostituire l'ugello alta pressione con l'ugello vapore (ac-
cessorio).
Impostare il termoregolatore ad una temperatura di 150 °C.
Impostare la valvola di regolazione di portata posta sulla
pompa alta pressione alla quantità minima di acqua (girare in
senso antiorario).
Impostare la valvola di regolazione di portata posta sulla
pompa alta pressione alla quantità massima di acqua (girare
in senso orario).
Impostare il regolatore della portata acqua posto sulla pistola
"Easypress" alla quantità minima di acqua (girare a sinistra).
–
Se durante il funzionamento la leva della pistola a spruzzo
viene rilasciata, l'apparecchio si spegne.
–
Se la pistola viene riaperta entro il tempo prestabilito in "stato
di pronto"(2…8 minuti - regolabili), l' apparecchio riparte auto-
maticamente.
–
Il timer del circuito di allarme spegne la pompa ed il bruciato-
re, quando il il tempo prestabilito in "stato di pronto" viene su-
perato. La spia luminosa "stato di pronto" (F) si spegne.
–
Per la rimessa in funzione posizionare l'interruttore dell'appa-
recchio su "0" e riaccendere. Se l'apparecchio è comandato
a distanza, la rimessa in funzione può avvenire tramite l'ap-
posito interruttore nel telecomando.
–
I pneumatici di autovetture vanno puliti solamente con la boc-
chetta a getto piatto (25°) mantenendo una distanza di alme-
no 30 cm. Non utilizzare in nessun caso il getto puntiforme
per pulire i pneumatici.
Per tutte le altre operazioni sono disponibili i seguenti ugelli:
Se le tubazioni hanno una lunghezza che supera i 20 m oppure il
tubo flessibile alta pressione supera la lunghezza 2 x 10 m (DN:
8), è necessario usare i seguenti ugelli:
Impostazioni della pistola "Easypress" (opzione)
Funzionamento con acqua fredda
Funzionamento con acqua calda
Funzionamento con vapore
Codice N°
Modello
4.766-023
HDS 9/14
4.766-024
HDS 12/14
Senza pistola "Easypress"
Con pistola "Easypress" (opzione)
Stato di pronto
Scelta degli ugelli
Sporco
Ugello
Angolo di
spruzzo
Numero
compo-
nente:
6.415
Pressio-
ne [MPa]
Forza re-
pulsiva
[N]
HDS 9/14
forte
00060
0°
-257
14
44
media
25060
25°
-295
debole
40060
40°
-301
HDS 12/14
forte
00080
0°
-150
14
55
media
25080
25°
-152
debole
40080
40°
-153
Sporco
Ugello
Angolo di
spruzzo
Numero
compo-
nente:
6.415
Pressio-
ne [MPa]
Forza re-
pulsiva
[N]
HDS 9/14
forte
0075
0°
-419
10
37
media
2575
25°
-421
debole
4075
40°
-422
HDS 12/14
forte
0010
0°
-082
10
46
media
2510
25°
-252
debole
4010
40°
-253
64
IT
-
6
–
I detergenti facilitano le operazioni di pulizia. Vengono aspira-
ti da un serbatoio esterno contenente il detergente.
–
La versione base di questo apparecchio è provvista di una
valvola di dosaggio (C). Una seconda valvola (valvola di do-
saggio D) è disponibile come accessorio opzionale. Vi è an-
che la possibilità di far aspirare due detergenti diversi.
–
La quantità di dosaggio viene impostata tramite la valvola di
dosaggio del detergente (C o D) sul quadro di controllo. Il va-
lore impostato corrisponde alla quota di detergente espressa
con il valore percentuale.
–
La scala graduata esterna vale per l'eventuale impiego di de-
tergenti allo stato puro (100% CHEM).
–
La scala graduata interna vale per l'eventuale impiego di de-
tergenti prediluiti in relazione 1+3 (25 % CHEM).
La seguente tabella riporta il consumo di detergente corrispon-
dente ai valori della scala graduata esterna:
La quantità di dosaggio varia in funzione a:
–
Viscosità del detergente
–
Altezza di aspirazione
–
Resistenza idraulica nelle tubazioni ad alta pressione
Se serve un dosaggio preciso, bisogna misurare la quantità di de-
tergente aspirata (p. es. aspirandolo da un misurino).
Avviso:
Il capitolo "accessori" riporta alcuni consigli utili riguardo
ai detergenti.
Attenzione
Se l'apparecchio viene azionato senza addolcitore, lo scaldaac-
qua rapido può formare depositi di calcare.
Quando il contenitore con addolcitore è vuoto, la spia luminosa
"protezione anticalcare" (H) si accende.
Fig. 1 - Pos. 9
Riempire il contenitore con addolcitore RM 110 (2.780-001).
Pericolo
Pericolo di scottature causate da acqua calda! Dopo il funziona-
mento con acqua calda o vapore aggiungere acqua fredda e met-
tere in moto l'apparecchio (pistola aperta) per almeno due minuti,
in modo che si possa raffreddare.
Durante il funzionamento ad acqua calda impostare la tempe-
ratura minima dell'acqua tramite il termoregolatore (B).
Utilizzare l'apparecchio per almeno 30 secondi senza l'ag-
giunta di detersivo.
Posizionare l'interruttore dell'apparecchio (A) su "0".
Chiudere l'alimentazione dell'acqua.
Azionare la pistola a spruzzo fino a completa depressurizza-
zione dell'apparecchio.
Per evitare che la pistola a spruzzo possa aprirsi accidental-
mente, bloccare la stessa con il dispositivo di arresto di sicu-
rezza.
In caso di lunghi periodi di fermo o se non si dispone di luoghi pro-
tetti dal gelo, provvedere alle seguenti operazioni (vedi capitolo
“Cura, manutenzione", paragrafo "Antigelo"):
Svuotare l'acqua
Sciacquare l'interno dell'apparecchio con antigelo.
Disinserire l'interruttore principale e bloccarlo risp. estrarre il
connettore Cekon.
Attenzione
Pericolo di lesioni e di danneggiamento! Rispettare il peso
dell'apparecchio durante la conservazione.
Attenzione
Pericolo di lesioni e di danneggiamento! Rispettare il peso
dell'apparecchio durante il trasporto.
Per il trasporto in veicoli, assicurare l'apparecchio secondo le
direttive in vigore affinché non possa scivolare e ribaltarsi.
Dosaggio del detergente
HDS 9/14
Posizione
0,5
1
5
Quantità di detergente [l/h]
14...15 22...24 50
Concentrazione del detergente [%] 1,5
2,5
5
HDS 12/14
Posizione
0,5
1
5
Quantità di detergente [l/h]
10...13 23...27 60
Concentrazione del detergente [%] 1
2
5
Aggiungere addolcitore
Messa fuori servizio
Dopo il funzionamento con il detergente
Spegnere l’apparecchio
Fermo dell'impianto
Supporto
Trasporto
65
IT
-
7
Dati tecnici
HDS 9/14
HDS 9/14
HDS 12/14
HDS 12/14
1.698-915
1.698-916
1.699-915
1.699-916
Prestazioni
Pressione di esercizio - acqua (con ugello
standard)
MPa (bar)
14 (140)
14 (140)
14 (140)
14 (140)
Pressione max. di esercizio, funzionamen-
to a vapore (con ugello a vapore)
MPa (bar)
3,2 (32)
3,2 (32)
3,2 (32)
3,2 (32)
Codice componente ugello vapore
--
4.766-023
4.766-023
4.766-024
4.766-024
Sovrapressione massima (valvola di sicu-
rezza)
MPa (bar)
17 (170)
17 (170)
17,5 (175)
17,5 (175)
Portata acqua (regolazione continua)
l/h (l/min)
500-930
(8,3-15,5)
500-930
(8,3-15,5)
600-1200
(10-20)
600-1200
(10-20)
Aspirazione detergente (regolazione continua) l/h (l/min)
0-50 (0-0,8)
0-50 (0-0,8)
0-60 (0-1)
0-60 (0-1)
Collegamento idrico
Portata (min.)
l/h (l/min)
1100 (18,3)
1100 (18,3)
1300 (21,7)
1300 (21,7)
Pressione in entrata (min.)
MPa (bar)
0,1 (1)
0,1 (1)
0,1 (1)
0,1 (1)
Pressione in entrata (max.)
MPa (bar)
1 (10)
1 (10)
1 (10)
1 (10)
Collegamento elettrico
Tipo di corrente
--
3N~
3N~
3N~
3N~
Frequenza
Hz
50
50
50
50
Tensione
V
400
230
400
230
Potenza allacciata
kW
6,4
6,4
7,5
7,5
Protezione elettrica (ritardo di fusibile)
A
16
25
20
32
Massima impedenza di rete consentita
Ohm
(0,381+j 0,238)
(0,381+j 0,238)
--
--
Alimentazione elettrica
mm
2
5 x 2,5
5 x 4
5 x 2,5
5 x 4
temperatura
Temperatura in entrata (max.)
°C
30
30
30
30
Quantità max. operativa funzionamento ad
acqua calda
°C
98
98
98
98
Quantità max. operativa funzionamento a
vapore
°C
155
155
155
155
Aumento di temperatura portata d'acqua
max.
°C
56±2
56±2
54±2
54±2
Potenza calorifica lorda
kW
68
68
85
85
Consumo di combustibile
kg/h
5,8
5,8
7,1
7,1
Tiraggio del camino
kPa
0,01-0,04
0,01-0,04
0,01-0,04
0,01-0,04
Portata in massa gas di scarico - pieno ca-
rico
kg/h
124
124
155
155
Dimensioni e pesi
Lunghezza
mm
1110
1110
1110
1110
Larghezza
mm
565
565
565
565
Altezza
mm
690
690
700
700
Peso a vuoto
kg
140
140
160
160
Valori rilevati secondo EN 60355-2-79
Emissione sonora
Pressione acustica L
pA
dB(A)
74
74
76
76
Dubbio K
pA
dB(A)
1
1
1
1
Valore di vibrazione mano-braccio
Pistola a spruzzo
m/s
2
2,2
2,2
2,3
2,3
Lancia
m/s
2
1,8
1,8
2,1
2,1
Dubbio K
m/s
2
1,0
1,0
1,0
1,0
66
IT
-
8
Disegno dimensionale
700
510
67
IT
-
9
Pericolo
Rischio di lesioni! Prima di effettuare qualsiasi intervento di ma-
nutenzione e di riparazione spegnere l'interruttore principale risp.
estrarre il connettore Cekon.
Cura e manutenzione
Schema di manutenzione
Intervallo
Intervento
Gruppo costruttivo interes-
sato
Esecuzione
Addetto
Ogni giorno
Controllare la pi-
stola a spruzzo
Pistola a spruzzo
Verificare che la pistola a spruzzo si chiuda a te-
nuta stagna. Verificare il funzionamento della
protezione contro un'eventuale attivazione acci-
dentale. Sostituire la pistola a spruzzo in presen-
za di difetti.
Utente
Controllare i tubi
flessibili alta
pressione
Tubazioni in uscita, tubi flessibili
per l'apparecchio impiegato.
Verificare l'eventuale presenza di danni sui tubi
flessibili. Tubi flessibili difettosi vanno immedia-
tamente sostituiti. Rischio di incidenti!
Utente
Controllare il
cavo di allaccia-
mento con la spi-
na di
alimentazione
Collegamento elettrico con spi-
na/presa
Controllate eventuali danni sulla linea di allaccia-
mento e sulla spina di alimentazione. Lasciate
sostituire immediatamente la linea di allaccia-
mento danneggiata dal servizio clienti autorizza-
to/personale specializzato in elettricità.
Utente
1 volta a settima-
na o dopo 40 ore
di esercizio
Controllare il livel-
lo dell'olio
Contenitore dell'olio della pompa Se l'olio è lattescente, sostituirlo.
Utente
Controllare il livel-
lo dell'olio.
Contenitore dell'olio della pompa Controllare il livello dell'olio della pompa. Se ne-
cessario aggiungere olio (Codice n°: 6.288-016).
Utente
Pulire il setaccio. Filtro ingresso acqua
Vedi paragrafo "Pulire i filtri".
Utente
1 volta al mese o
dopo 200 ore di
esercizio
Pulire e controlla-
re gli elettrodi di
accensione
Elettrodi di accensione nel coper-
chio dello scaldaacqua rapido
Svitare la tubazione di combustibile, smontare il
portaelettrodo e pulire gli elettrodi. Controllare le
impostazioni dell'elettrodo con l'aiuto dello sche-
ma riportato sulla pagina seguente, se necessa-
rio impostarlo.
Operatore
istruito
Controllare la
pompa
Pompa ad alta pressione
Verificare eventuali perdite della pompa. In pre-
senza di più di tre gocce d’acqua al minuto chia-
mare il servizio assistenza.
Utente
controllare la pre-
senza di eventua-
li depositi interni
intero impianto
Attivare l'impianto con la lancia senza l'ugello
alta pressione. Se la pressione di esercizio del
manometro dell'apparecchio supera un valore di
3 MPa, bisogna decalcificare l'impianto. La stes-
sa cosa vale, se durante il funzionamento senza
tubazione ad alta pressione (l'acqua fuoriesce li-
beramente dall'uscita di alta pressione), la pres-
sione di esercizio dovesse superare il valore di
0,7–1 MPa.
Operatore
istruito per la
decalcifica-
zione
Pulire il setaccio. Filtro nella protezione mancan-
za acqua
Vedi paragrafo "Pulire i filtri".
Utente
1 volta ogni sei
mesi o dopo 1000
ore di esercizio
Cambio dell'olio
Pompa ad alta pressione
Scaricare l'olio. Aggiungere 1 l di olio (Codice n°:
6.288-016). Controllare il livello di riempimento
del contenitore dell'olio.
Utente
controllare, pulire intero impianto
Controllo visivo dell'impianto, controllo della te-
nuta stagna dell'attacco alta pressione e della
valvola di troppopieno, controllare il tubo flessibi-
le alta pressione e l'accumulatore a pressione,
pulire/sostituire il filtro combustibile, rimuovere la
fuliggine dalla serpentina e decalcificarla, pulire/
sostituire gli elettrodi di accensione e l'ugello del
bruciatore, impostare il bruciatore.
Servizio as-
sistenza
Annualmente
Controllo di sicu-
rezza
intero impianto
Eseguire un controllo di sicurezza secondo le di-
sposizioni nazionali vigenti in materia per pompe
a getto liquido.
Perito
Almeno ogni 5
anni periodica-
mente
Controllo della
pressione
intero impianto
Eseguire un controllo della pressione secondo le
indicazioni del produttore.
Perito
68
IT
-
10
E' possibile stipulare un contratto di manutenzione per l'apparec-
chio con l'ufficio vendite Kärcher competente.
Fig. 1 - Pos. 3
Chiudere l'alimentazione dell'acqua.
Svitare il tubo di alimentazione dell'acqua dall'apparecchio.
Spingere il filtro verso l'esterno aiutandosi con un cacciavite.
Pulire il setaccio.
Rimontare in ordine inverso.
Togliere i rivestimenti in lamiera.
Svitare il raccordo a gomito dal dispositivo di bloccaggio di si-
curezza.
Avvitare la vite M8x30 nel filtro.
Estrarre la vite ed il filtro con una pinza.
Pulire il setaccio.
Rimontare in ordine inverso.
Gli elettrodi di accensione devono essere impostati conforme-
mente alle seguenti impostazioni:
La presenza di depositi nelle tubazioni fa aumentare la resisten-
za idraulica causando lo scatto del pressostato.
Pericolo
Pericolo di esplosioni causate da gas infiammabili! E' vietato fu-
mare durante le operazioni di decalcificazione. Provvedere ad
una ventilazione adeguata.
Pericolo
Pericolo di corrosione da acidi. Indossare occhiali e guanti protet-
tivi.
Secondo le normative vigenti possono essere impiegati solo di-
sincrostanti certificati.
–
RM 100 (Codice n°: 6.287-008) scioglie il calcare, composti di
calcare e residui da detergenti.
–
RM 101 (Codice n°: 6.287-013) scioglie depositi non rimovibili
con il prodotto RM 100.
Riempire un serbatoio da 20 litri con 15 litri di acqua.
Aggiungere un litro di disincrostante.
Collegare il tubo flessibile dell'acqua direttamente alla testata
della pompa e agganciare l'estremità all'interno del contenitore.
Inserire la lancia collegata senza ugello nel contenitore.
Aprire la pistola a spruzzo e non chiuderla per tutta la durata
della decalcificazione.
Posizionare l'interruttore dell'apparecchio su " Bruciatore ac-
ceso" fino a raggiungere una temperatura di 40 °C.
Spegnere l'apparecchio e lasciarlo disattivato per 20 minuti. La
pistola a spruzzo deve rimanere aperta.
Svuotare l'apparecchio completamente con l'aiuto della pompa.
Avviso:
Per una protezione anticorrosione e la neutralizzazione
dei residui di acido consigliamo di pompare successivamente
una soluzione alcalina (p. es B. RM 81) aggiunta nel contenitore
del detergente.
Collocare l'apparecchio in un locale protetto dal gelo. In caso di
rischio di gelo (p.es. istallazione all'aperto) occorre svuotare l'im-
pianto e sciacquare lo stesso con un antigelo.
Svitare sia il tubo di alimentazione acqua, sia il tubo alta pres-
sione.
Mettere in moto l'apparecchio (max. 1 minuto) fino a completo
svuotamento della pompa e delle condutture.
Svitare il tubo di approvvigionamento sul fondo della caldaia
e svuotare completamente la serpentina.
Avviso:
Osservare le disposizioni fornite dal produttore dell'anti-
gelo.
Riempire il contenitore con galleggiante completamente con un
antigelo commerciale.
Collocare un contenitore di raccolta sotto l'uscita alta pressione.
Accendere l'apparecchio e lasciarlo attivato fino allo scatto
della protezione "mancanza acqua" del contenitore con gal-
leggiante e conseguente spegnimento dell'apparecchio.
Ciò assicura anche una certa protezione anticorrosione.
Contratto di manutenzione
Pulire i filtri
Filtro dell'acqua in entrata
Filtro nella protezione mancanza acqua
Impostazioni degli elettrodi
A
B
C
a
HDS 9/14
4,5±0,5
3,5±0,5
3+0,5
60°
HDS 12/14
3,5±0,5
3,5±0,5
3+0,5
60°
2.
1.
A
B
C
a
Decalcificazione
Esecuzione
Antigelo
Svuotare l'acqua
Sciacquare l'interno dell'apparecchio con antigelo
69
IT
-
11
Pericolo
Rischio di lesioni! Prima di effettuare qualsiasi intervento di ma-
nutenzione e di riparazione spegnere l'interruttore principale risp.
estrarre il connettore Cekon.
*
Avvertenza
Accendere e spegnere l'impianto per sbloccare il guasto del bru-
ciatore.
**
Guida alla risoluzione dei guasti
Guasto
Possibile causa
Rimedio
Addetto
L'apparecchio non funziona,
la spia luminosa "stato di
pronto" (F) è spenta.
Apparecchio privo di tensione.
Controllare la rete elettrica.
Elettricista
Timer del circuito di allarme in fun-
zione.
Spegnere l'apparecchio brevemente e riac-
cenderlo.
Utente
Fusibile del circuito di comando
(F3) bruciato. Il fusibile si trova
all'interno del trasformatore di co-
mando (T2).
Inserire un fusibile nuovo. In caso di ulteriore
bruciatura del fusibile rimuovere la causa.
Servizio assistenza
Pressostato AP (alta pressione)
oppure BP (bassa pressione) gua-
sto.
Controllare il pressostato.
Servizio assistenza
Timer Modul (A1) difettoso.
Controllare i collegamenti, eventualmente
sostituirli.
Servizio assistenza
+ Spia luminosa surriscalda-
mento motore (G) è accesa.
Scatto della sonda termica (CA)
nel motore oppure della protezione
da sovracorrente (F1).
Rimuovere la causa del sovraccarico.
Servizio assistenza
Scatto della protezione mancanza
acqua del contenitore con galleg-
giante.
Aggiungere acqua.
Utente
Bruciatore non si accende o
la fiamma si spegne durante
il funzionamento
Il regolatore di temperatura è impo-
stato ad un valore troppo basso.
Aumentare il valore del regolatore di tempe-
ratura.
Utente
L'interruttore dell'apparecchio non
è posizionato su "bruciatore".
Accendere il bruciatore.
Utente
Scatto della protezione mancanza
acqua del dispositivo di bloccaggio
di sicurezza.
Provvedere che l'alimentazione dell'acqua
sia costante. Verificare la tenuta stagna
dell'apparecchio.
Utente
La spia luminosa "guasto
bruciatore" (E) si accende*
Il contenitore del combustibile è
vuoto
Aggiungere combustibile
Utente
Filtro del combustibile otturato.
Pulire il filtro del combustibile. A questo sco-
po svitare il filtro del combustibile, pulirlo e ri-
avvitarlo.
Utente
Posizione non corretta o guasto
della fotocellula del dispositivo di
controllo fiamma.
Controllare la corretta posizione della fotocel-
lula. **
Utente
Kein Zündfunke vorhanden (durch
Schauglas im Brennerdeckel fest-
stellbar).
Controllare la distanza tra gli elettrodi, il tra-
sformatore ed il cavo di accensione. Correg-
gere le distanze oppure sostituire le parti
difettate. Se necessario pulire.
Servizio assistenza
Motore del bruciatore bloccato.
Sbloccare. Togliere il tappo (I) posto sul qua-
dro di controllo e sbloccare la protezione da
sovracorrente. Rimettere il tappo.
Servizio assistenza
Guasto della pompa del combusti-
bile o della valvola elettromagneti-
ca del combustibile.
Controllare ed eventualmente sostituire le
parti difettate.
Utente
70
IT
-
12
Guasto
Possibile causa
Rimedio
Addetto
La spia luminosa "guasto
bruciatore (E) lampeggia
Scatto del limitatore termico dei
gas di scarico.
Tenere aperta la pistola a spruzzo fino a
completo raffreddamento dell'impianto. Ac-
cendere e spegnere l'impianto tramite il qua-
dro di controllo per sbloccare il limitatore
termico dei gas di scarico. Se il fatto dovesse
ripetersi, chiamare il servizio clienti.
Utente
La spia luminosa "Protezione
anticalcare" (H) è accesa
Addolcitore consumato.
Aggiungere addolcitore
Utente
Afflusso di detergente insuffi-
ciente o mancante
Posizionare la valvola di dosaggio
su "0".
Impostare la valvola di dosaggio del deter-
gente.
Utente
Filtro detergente otturato oppure
serbatoio vuoto.
Pulire o riempire.
Utente
I tubi flessibili di aspirazione del de-
tergente, della valvola di dosaggio
oppure della valvola elettromagne-
tica non sono a tenuta stagna op-
pure otturati.
Controllare, pulire.
Utente
Guasto dell'elettronica o della val-
vola elettromagnetica
Sostituire
Servizio assistenza
L'apparecchio non raggiunge
la pressione massima
Ugello dilavato.
Sostituire l'ugello.
Utente
Serbatoio del detergente vuoto.
Aggiungere detergente.
Utente
Acqua insufficiente.
Provvedere ad una corretta alimentazione
dell'acqua.
Utente
Filtro dell'acqua in entrata otturato. Controllare, smontare e pulire il filtro.
Utente
La valvola di dosaggio del deter-
gente non è a tenuta stagna.
Controllare e renderla stagna.
Utente
I tubi flessibili del detergente non
sono a tenuta stagna.
Sostituire
Utente
La valvola a galleggiante è bloccata. Controllare il movimento libero.
Utente
La valvola di sicurezza non è a te-
nuta stagna.
Controllare le impostazioni, se necessario
sostituire la guarnizione.
Servizio assistenza
La valvola di regolazione di portata
è impostata ad un valore troppo
basso.
Controllare le parti della valvola, se necessa-
rio pulire o sostituire.
Servizio assistenza
Guasto della valvola elettromagneti-
ca per la riduzione della pressione.
Sostituire la valvola elettromagnetica.
Servizio assistenza
La pompa alta pressione
emette rumori strani, il mano-
metro oscilla molto
Ammortizzatore guasto.
Sostituire l'ammortizzatore.
Servizio assistenza
La pompa dell'acqua aspira piccole
quantità di aria.
Controllare i sistemi di aspirazione, renderli
stagni.
Utente
L'apparecchio continua a
spegnersi e ad accendersi
(pistola a spruzzo aperta)
Ugello della lancia otturato.
Controllare, pulire.
Utente
Formazione di calcare nell'appa-
recchio.
Vedi paragrafo "Decalcificazione".
Utente
Sfasamento del punto di scatto
della sovracorrente.
Reimpostare la protezione da sovracorrente. Servizio assistenza
Filtro della protezione mancanza
acqua otturato.
Controllare, smontare e pulire il filtro.
Utente
L'apparecchio non si spegne
quando la pistola a spruzzo è
chiusa
La pompa non è completamente di-
saerata.
Posizionare l'interruttore dell'apparecchio su
„0“ e tirare la pistola a spruzzo finché l'ugello
non eroga più liquido. Riaccendere l’apparec-
chio. Ripetere questa operazione fino a rag-
giungere la massima pressione di esercizio.
Utente
Guasto della valvola di sicurezza o
della guarnizione della valvola di
sicurezza.
Sostituire la valvola di sicurezza o la guarni-
zione.
Servizio assistenza
71
IT
-
13
I detergenti facilitano le operazioni di pulizia. La seguente tabella
riporta una selezione di detergenti. Prima dell'impiego dei deter-
genti è necessario osservare le indicazioni riportate sull'imballag-
gio.
* = solo per impieghi brevi, metodo a due interventi, sciacquare
con acqua pulita
** = ASF = caratteristica di precipitare facilmente
*** = Foam-Star 2000 si adatta al pretrattamento
Accessori
Detergente
Campo di impiego
Sporco, modo d'impiego
Detergente
valore pH (ca.) solu-
zione all'1 % in acqua
del rubinetto
settore autovetture, distri-
butori di benzina, spedi-
zioni, centri auto
polvere, polvere da strada, oli mi-
nerali (su superfici verniciate)
RM 55 ASF **
8
RM 22/80-Polvere ASF
12/10
RM 81 ASF
9
RM 803 ASF
10
RM 806 ASF
11
Trattamento di autovetture con
cera protettiva
RM 42 Cera fredda per idropulitrici
8
RM 820-Cera calda ASF
7
RM 821-Cera Spray ASF
6
RM 824-Cera superperlata ASF
7
RM 44 Gel lavacerchioni
9
Industria metalmeccanica Oli, grassi, polvere e sporco simile RM 22-Polvere ASF
12
RM 55 ASF
8
RM 81 ASF
9
RM 803 ASF
10
RM 806 ASF
12
RM 31 ASF (sporco ostinato)
12
RM 39-liquido (con protezione anticorrosio-
ne)
9
Industria alimentare
Sporco facile/medio, grassi/oli,
grandi superfici
RM 55 ASF
8
RM 81 ASF
9
RM 882 Cera-schiuma OSC
12
RM 58 ASF (detergente in forma di schiuma)
9
RM 31 ASF *
12
Incrostazioni da fumo
RM 33 *
13
Pulizia e disinfezione
RM 732
9
Disinfezione
RM 735
7...8
Calcare, depositi minerali
RM 25 ASF *
2
RM 59 ASF (pulizia con schiuma)
2
Zone sanitarie ***
Calcare, tracce di urina, sapone
etc.
RM 25 ASF* (pulizia di fondo)
2
RM 59 ASF (pulizia con schiuma)
2
RM 68 ASF
5
72
IT
-
14
–
Il dispositivo di riscaldamento dell’apparecchio è un impianto
di combustione. Per le operazioni di montaggio osservare le
norme vigenti locali.
–
Impiegare solo comignoli/condotti di scarico collaudati.
Pericolo
Pericolo di scottature! Questo simbolo deve essere applicato in
ogni punto interessato.
Per le operazioni di montaggio del serbatoio del gasolio nel locale
di installazione dell'impianto osservare le normative vigenti per lo
stoccaggio di liquidi infiammabili (reperibili presso: Carl Hey-
manns Verlag, Köln, www.heymanns.com).
Osservare il seguente diagramma per le operazioni di posa delle
tubazioni del combustibile.
Bisogna provvedere ad un sistema a due vie - andata e ritorno.
–
Prepressione massima gasolio: 0,05 MPa (0,5 bar)
–
Depressione massima tra filtro gasolio e pompa: 0,04 MPa
(0,4 bar)
Lunghezza tubo di aspirazione (metri)
Altezza di aspirazione (metri)
Possibile lunghezza del tubo di aspirazione (DN: 8)
–
Ogni apparecchio deve essere collegato ad un camino ido-
neo.
–
La conduzione dei gas di scarico deve essere eseguita in
base alle norme locali e in accordo con l'addetto al controllo
e alla manutenzione dei camini.
Consigliamo di montare un giunto tra l'impianto ed il camino.
Avvertenza
Per ottenere i valori di combustione previsti dalla legge bisogna
rispettare i Dati Tecnici indicati per il tiraggio del camino.
–
Prima del montaggio a muro verificare la stabilità dello stes-
so. Il materiale di fissaggio fornito si adatta solo per il calce-
struzzo. Per pietre da costruzione, mattoni e calcestruzzo
cellulare utilizzare opportuni tasselli e viti, p. es. ancoraggi ad
iniezione (forature: vedi disegno dimensionale).
–
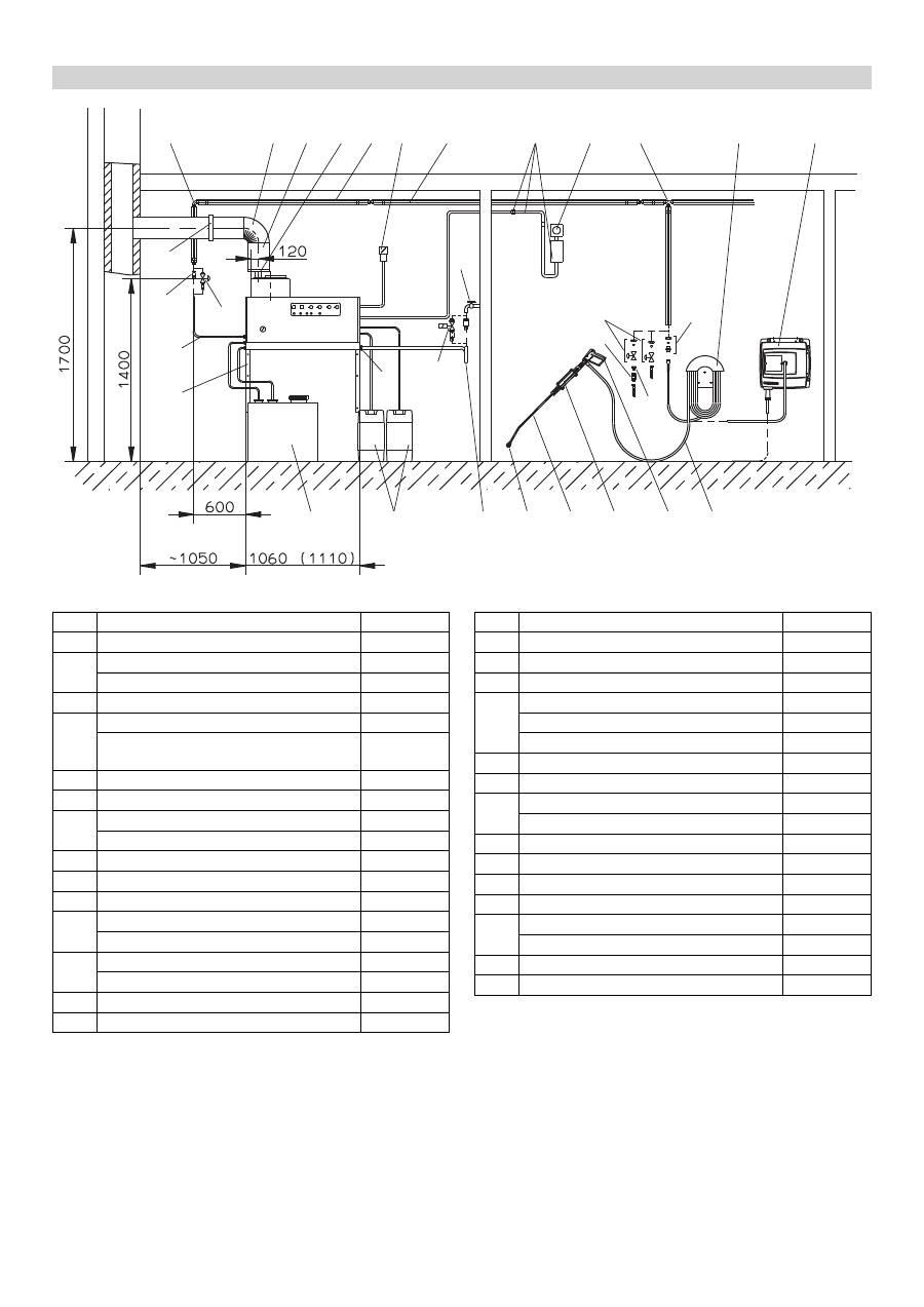
Fig. 3 - pos. 19 e 23
L’apparecchio non deve essere collegato in modo rigido alla
rete idrica o alle tubazioni ad alta pressione. Montare tassati-
vamente i tubi flessibili di collegamento.
–
Fig. 3 - A
Montare un rubinetto di arresto tra la rete idrica ed il tubo fles-
sibile di collegamento.
Per il montaggio di tubi ad alta pressione rispettare le disposizioni
nazionali vigenti in materia.
–
Il calo di pressione nella tubazione deve essere inferiore a 1,5
MPa.
–
A fine opera collaudare la tubazione con un valore di 28 MPa.
–
L'isolamento della tubazione deve resistere a temperature
fino a 155 °C.
Fig. 3 - Pos. 20
Montare i contenitori in modo che il livello inferiore del detergente
non si trovi ad un livello inferiore di 1,5 m rispetto al fondo dell'ap-
parecchio e che il livello superiore non si trovi al di sopra del fon-
do dell'apparecchio.
Fig. 3 - B e pos. 19
Collegare l'entrata dell'acqua alla rete idrica utilizzando un
tubo flessibile adatto.
–
La portata dell'approvvigionamento di acqua deve avere un
valore minimo di 1300 l/h (0,1 MPa).
–
La temperatura dell'acqua deve essere inferiore a 30 °C.
Attenzione
Non superare il valore massimo d'impedenza di rete consentito per il
punto d'allacciamento elettrico (vedi Dati tecnici). In caso di dubbi
sull'impedenza di rete presente sul punto di collegamento si prega di
contattare la propria azienda fornitrice di energia elettrica.
Avviso:
Il transitorio d'inserzione causa una diminuzione tempo-
ranea di tensione. In condizioni di rete sfavorevoli le altre appa-
recchiature possono essere danneggiate.
–
Valori di collegamento: vedi Dati tecnici e targhetta.
–
Il collegamento elettrico va eseguito da un'elettricista qualifi-
cato e deve essere conforme alla norma IEC 60364-1.
–
Tutti i componenti conduttori, i cavi e gli apparecchi nell'area
di lavoro devono trovarsi in ottimo stato ed essere protetti
contro i getti di acqua.
Per evitare incidenti elettrici raccomandiamo di collegare l'appa-
recchio a prese elettriche dotate di interruttore differenziale (con
corrente differenziale nominale I dn non superiore a 30 mA).
Creare il collegamento elettrico.
Per poter spegnere l'idropulitrice stazionaria è necessario appor-
tare un interruttore principale (Fig 3 - Pos.6) bloccabile in un pun-
to facilmente accessibile.
L'apertura di contatto dell'interruttore principale deve essere al-
meno di 3 mm.
Installazione dell'impianto
Solo personale qualificato ed autorizzato!
Norme generali
A temperature di
esercizio superiori a
100 °C, sostituire
l'ugello alta pressione
con l'ugello vapore.
Serbatoio del gasolio
Tubazioni per il combustibile
Condotto gas di scarico
!
Montaggio a muro
Montaggio delle tubazioni ad alta pressione
Montare il contenitore del detergente
Alimentazione dell'acqua
Collegamento elettrico
Collegamento elettrico fisso
73
IT
-
15
Applicare il connettore Cekon al cavo di collegamento dell'ap-
parecchio.
Inserire il connettore maschio nella presa.
Per spegnere l'idropulitrice stazionaria, il connettore maschio
Cekon deve essere facilmente scollegabile.
Prima del primo utilizzo tagliare la punta del triangolo dal con-
tenitore dell'olio della pompa acqua.
Pericolo
Rischio di esplosione! Aggiungere esclusivamente carburante
diesel o gasolio leggero. Combustibili inidonei non possono es-
sere utilizzati (benzina ecc.).
Aggiungere combustibile.
Attenzione
Il funzionamento ad acqua calda senza carburante danneggia la
pompa di alimentazione del combustibile. Verificare la corretta
alimentazione del combustibile prima di attivare il funzionamento
ad acqua calda.
Fig. 3 - Pos. 14
Collegare il tubo flessibile alta pressione alla pistola a spruz-
zo e alla lancia e collegarlo all'uscita di alta pressione dell'ap-
parecchio o alle tubazioni ad alta pressione.
Fissare il boccaglio (b) alla lancia (d) usando il dado di serrag-
gio (a). Fare attenzione che l'anello di tenuta (c) sia inserito
correttamente nella scanalatura.
Togliere la molla (c) dal supporto del coperchio (b) del conte-
nitore contenente l'addolcitore.
Riempire il contenitore con addolcitore RM 110 della Kärcher
(Codice n°: 2.780-001).
Pericolo
Tensione elettrica pericolosa! Le impostazioni possono essere
eseguite solo da elettricisti specializzati.
Informarsi sulla durezza dell'acqua in loco:
–
presso il gestore della rete idrica locale,
–
usando l'apparecchio per la determinazione della durezza
dell'acqua (Codice n. 6.768-004).
Togliere la copertura dell'apparecchio.
Aprire la scatola di comando del quadro di controllo.
Impostare il potenziometro (a) secondo il grado di durezza
dell'acqua. La tabella riporta le impostazioni corrette.
Esempio:
Una durezza dell'acqua con un valore di scala pari a 15°dH de-
termina l'impostazione 6 del potenziometro. Da ciò risulta una
pausa di 31 secondi (la valvola elettromagnetica si apre breve-
mente ogni 31 secondi).
La regolazione dello stato di pronto avviene tramite la piastra più
grande posta sulla parete laterale del quadro elettrico.
Le impostazioni di fabbrica hanno una durata minima di 2 minuti
e possono essere prolungati fino ad un massimo di 8 minuti.
Collegamento elettrico con spina/presa
Prima messa in funzione
Provvedimenti da effettuare prima della messa in
funzione
Protezione anticalcare
a
b
c
d
b
c
a
Grado di durezza dell'acqua
(°dH)
5
10
15
20
25
Valore di scala del poten-
ziometro
8
7
6
5
4,5
Pausa espressa in secondi 50
40
31
22
16
Regolazione dello stato di pronto
a
8 7 6 5 4 3 2 1
S2
min.
max.
74
IT
-
16
Fig. 3
Materiale per l'installazione
1
2
3
4
5
6
7
8
9
10
12
13
21
20
19
18
17
16
15
14
11b
11a
11d
11c
A
B
19a
24
11a
23
22
11b
Pos. Materiale per l'installazione
Codice N°
1
Bullonatura angolare
6.386-356
2
Gomito gas di combustione (90°)
7.234-605
Gomito gas di combustione (45°)
7.234-604
3
Condotto gas di scarico
7.234-603
4
Giunto condotto gas di scarico HDS 9/14-4
4.656-080
Giunto condotto gas di scarico HDS 12/
14-4
4.656-079
5
Isolazione termica
6.286-114
6
Interruttore principale
6.631-455
7
Kit tubazioni, acciaio zincato
2.420-004
Kit tubazioni, acciaio inox
2.420-006
8
Kit telecomando
2.744-008
9
Kit pulsante d'arresto d'emergenza
2.744-002
10
Bullonatura a T
6.386-269
11a
Raccordo, ottone
2.638-180
Raccordo, acciaio inox
2.638-181
11b
Rubinetto di arresto (DN: 8), acciaio zincato
4.580-144
Rubinetto di arresto (DN: 8), acciaio inox 4.580-163
11c
Elemento fisso attacco rapido
6.463-025
11d
Elemento mobile attacco rapido
6.463-023
Pos. Materiale per l'installazione
Codice N°
12
Portatubo
2.042-001
13
Avvolgitubo
2.637-238
14
Tubo flessibile alta pressione 10 m
6.388-083
15
Pistola a spruzzo "Easypress"
4.775-463
Regolatore HDS 9/14-4
4.775-470
Regolatore HDS 12/14-4
4.775-471
16
Supporto della lancia
2.042-002
17
Lancia
4.760-550
18
Boccaglio HDS 9/14-4
2.883-402
Boccaglio HDS 12/14-4
2.883-406
19
Tubo flessibile dell’acqua
4.440-282
19a
Valvola elettromagnetica acqua in entrata 4.743-011
20
Serbatoio detergente, 60 l
5.070-078
21
Serbatoio gasolio, 600 l
6.392-050
22
Kit mensola a muro
2.053-005
Kit mobiletto
2.210-008
23
Tubo flessibile alta pressione
6.389-028
24
Staffa per tubi
6.373-374
75
IT
-
17
Con la presente si dichiara che la macchina qui di seguito indica-
ta, in base alla sua concezione, al tipo di costruzione e nella ver-
sione da noi introdotta sul mercato, è conforme ai requisiti
fondamentali di sicurezza e di sanità delle direttive CE. In caso di
modifiche apportate alla macchina senza il nostro consenso, la
presente dichiarazione perde ogni validità.
5.957-054
I firmatari agiscono su incarico e con la procura dell’amministra-
zione.
Responsabile della documentazione:
S. Reiser
Alfred Kärcher GmbH & Co. KG
Alfred-Kärcher-Str. 28 - 40
71364 Winnenden (Germany)
Tel.: +49 7195 14-0
Fax: +49 7195 14-2212
Winnenden, 2010/12/01
In tutti i paesi sono valide le condizioni di garanzia pubblicate dal-
la nostra società di vendita competente. Entro il termine di garan-
zia eliminiamo gratuitamente gli eventuali guasti all’apparecchio,
se causati da un difetto di materiale o di produzione.
Dichiarazione CE
Prodotto:
Idropulitrice con stadio va-
pore
Modelo:
1.698-xxx
Modelo:
1.699-xxx
Direttive CE pertinenti
97/23/CE
2006/42/CE (+2009/127/CE)
2004/108/CE
Categoria del gruppo costruttivo
II
Procedura di conformità
Modulo H
Serpentina
Valutazione conformità modulo H
Valvola di sicurezza
Valutazione conformità Art. 3 par. 3
Unità di controllo
Valutazione conformità modulo H
Altre tubazioni
Valutazione conformità Art. 3 par. 3
Norme armonizzate applicate
EN 55014–1: 2006 + A1: 2009
EN 55014–2: 1997 + A2: 2008
EN 60335–1
EN 60335–2–79
EN 61000–3–2: 2006 + A2: 2009
HDS 12/14-4 ST Eco:
EN 61000–3–3: 2008
HDS 9/14-4 ST Eco:
EN 61000–3–11: 2000
Specifiche applicate:
AD 2000 in aggiunta
TRD 801 in aggiunta
Nome dell'ente nominato:
per 97/23/EG
TÜV Rheinland Industrie Service GmbH
Am Grauen Stein
51105 Köln
Codice di identificazione 0035
CEO
Head of Approbation
Garanzia
76
IT
-
18
Servizio assistenza
Tipo di impianto:
Codice produttore:
Data messa in funzione:
Data del controllo:
Diagnosi:
Firma
Data del controllo:
Diagnosi:
Firma
Data del controllo:
Diagnosi:
Firma
Data del controllo:
Diagnosi:
Firma
77
IT
-
19
Avviso:
È necessario rispettare i termini di controllo previsti dalle
relative disposizioni nazionali vigenti in materia.
Controlli ricorrenti
Controllo eseguito da:
Controllo esterno
Controllo interno
Controllo della resistenza
Nome
Firma della persona auto-
rizzata/Data
Firma della persona auto-
rizzata/Data
Firma della persona auto-
rizzata/Data
Nome
Firma della persona auto-
rizzata/Data
Firma della persona auto-
rizzata/Data
Firma della persona auto-
rizzata/Data
Nome
Firma della persona auto-
rizzata/Data
Firma della persona auto-
rizzata/Data
Firma della persona auto-
rizzata/Data
Nome
Firma della persona auto-
rizzata/Data
Firma della persona auto-
rizzata/Data
Firma della persona auto-
rizzata/Data
Nome
Firma della persona auto-
rizzata/Data
Firma della persona auto-
rizzata/Data
Firma della persona auto-
rizzata/Data
Nome
Firma della persona auto-
rizzata/Data
Firma della persona auto-
rizzata/Data
Firma della persona auto-
rizzata/Data
Nome
Firma della persona auto-
rizzata/Data
Firma della persona auto-
rizzata/Data
Firma della persona auto-
rizzata/Data
Nome
Firma della persona auto-
rizzata/Data
Firma della persona auto-
rizzata/Data
Firma della persona auto-
rizzata/Data
Nome
Firma della persona auto-
rizzata/Data
Firma della persona auto-
rizzata/Data
Firma della persona auto-
rizzata/Data
Nome
Firma della persona auto-
rizzata/Data
Firma della persona auto-
rizzata/Data
Firma della persona auto-
rizzata/Data
Nome
Firma della persona auto-
rizzata/Data
Firma della persona auto-
rizzata/Data
Firma della persona auto-
rizzata/Data
78
IT
Nederlands
-
1
Lees vóór het eerste gebruik van uw apparaat deze
originele gebruiksaanwijzing, ga navenant te werk en
bewaar hem voor later gebruik of voor een latere eigenaar.
–
Voor de eerste inbedrijfstelling de veiligheidsaanwijzingen nr.
5.956-309 beslist doorlezen!
–
Bij transportschade onmiddellijk de handelaar op de hoogte
brengen.
Aanwijzingen betreffende de inhoudsstoffen (REACH)
Huidige informatie over de inhoudsstoffen vindt u onder:
www.kaercher.com/REACH
Gevaar
Voor een onmiddellijk dreigend gevaar dat leidt tot ernstige en
zelfs dodelijke lichamelijke letsels.
몇
Waarschuwing
Voor een mogelijks gevaarlijke situatie die zou kunnen leiden tot
ernstige en zelfs dodelijke lichamelijke letsels.
Voorzichtig
Voor een mogelijks gevaarlijke situatie die kan leiden tot lichte li-
chamelijke letsels of materiële schade.
Hogedrukstralen kunnen gevaarlijk zijn wanneer on-
deskundigen het apparaat bedienen. U mag de straal
mag niet richten op personen, dieren, onder stroom
staande voorwerpen of de hogedrukreiniger zelf.
–
Overeenkomstige nationale voorschriften van de wetgever
voor stralers van vloeistoffen in acht nemen.
–
Overeenkomstige nationale voorschriften van de wetgever in-
zake ongevallenpreventie in acht nemen. Stralers van vloei-
stoffen moeten regelmatig gecontroleerd worden en het
resultaat van de controle moet schriftelijk vastgelegd worden.
–
De verwarmingseenheid van het apparaat is een stookinrich-
ting. Stookinrichtingen moeten regelmatig gecontroleerd wor-
den volgens de nationale voorschriften van de wetgever.
–
Bij het gebruik van de installatie in ruimten dient er voor een
veilige afvoer van de uitlaatgassen te worden gezorgd (rook-
gasbuis zonder trekonderbreker). Bovendien moet er vol-
doende toevoer van frisse lucht zijn gewaarborgd.
–
Conform de geldige nationale bepalingen moet de hogedruk-
reiniger bij bedrijfsmatig gebruik eerst in gebruik genomen
worden door een bevoegde persoon. KÄRCHER heeft die
eerste inbedrijfstelling reeds voor u uitgevoerd en gedocu-
menteerd. De documentatie ervan kunt u aanvragen bij uw
KÄRCHER-partner. Gelieve bij de documentatie-aanvraag
het onderdelen- en fabrieksnummer van uw apparaat te ver-
melden.
–
Wij wijzen erop dat het apparaat conform de geldige nationale
bepalingen regelmatig moet worden gecontroleerd door een
bevoegde persoon. Gelieve u daartoe tot uw KÄRCHER-part-
ner te wenden.
–
Veiligheidsvoorschriften die bij de gebruikte reinigingsmidde-
len geleverd zijn (doorgaans op het verpakkingsetiket) in acht
nemen.
Inhoudsopgave
Zorg voor het milieu . . . . . .
NL . . 1
Symbolen in de gebruiksaanwijzing
NL . . 1
Symbolen op het toestel . . .
NL . . 1
Algemene veiligheidsinstructies
NL . . 1
Reglementair gebruik . . . . .
NL . . 2
Functie . . . . . . . . . . . . . . . .
NL . . 2
Veiligheidsinrichtingen . . . .
NL . . 2
Apparaat-elementen . . . . . .
NL . . 3
Inbedrijfstelling . . . . . . . . . .
NL . . 4
Bediening . . . . . . . . . . . . . .
NL . . 4
Buitenwerkingstelling . . . . .
NL . . 6
Stillegging . . . . . . . . . . . . . .
NL . . 6
Opslag. . . . . . . . . . . . . . . . .
NL . . 6
Vervoer . . . . . . . . . . . . . . . .
NL . . 6
Technische gegevens . . . . .
NL . . 7
Onderhoud . . . . . . . . . . . . .
NL . . 9
Hulp bij storingen . . . . . . . .
NL . 11
Toebehoren. . . . . . . . . . . . .
NL . 13
Installatievoorschriften . . . .
NL . 14
CE-verklaring . . . . . . . . . . .
NL . 17
Garantie . . . . . . . . . . . . . . .
NL . 17
Klantenservice. . . . . . . . . . .
NL . 18
Periodieke controles . . . . . .
NL . 19
Zorg voor het milieu
Het verpakkingsmateriaal is herbruikbaar. Deponeer
het verpakkingsmateriaal niet bij het huishoudelijk af-
val, maar bied het aan voor hergebruik.
Onbruikbaar geworden apparaten bevatten waarde-
volle materialen die geschikt zijn voor hergebruik. Le-
ver de apparaten daarom in bij een inzamelpunt voor
herbruikbare materialen. Batterijen, olie en dergelijke
stoffen mogen niet in het milieu belanden. Verwijder
overbodig geworden apparatuur daarom via geschik-
te inzamelpunten.
Gelieve motorolie, stookolie, diesel en benzine niet in het milieu
te laten terechtkomen. Gelieve de bodem te beschermen en
oude olie op milieuvriendelijke manier te verwijderen.
Kärcher-reinigingsmiddelen zijn afscheidingsvriendelijk (ASF).
Dit betekent dat een olie-afscheider zijn werk naar behoren kan
doen. Een lijst met aanbevolen reinigingsmiddelen is in het
hoofdstuk „Toebehoren“ vermeld.
Symbolen in de gebruiksaanwijzing
Symbolen op het toestel
Verbrandingsgevaar! Waarschuwing voor hete
componenten.
Algemene veiligheidsinstructies
79
NL
-
2
Voordat het apparaat wordt geïnstalleerd dient er overleg plaats
te vinden met de bevoegde en regionale schoorsteenveger.
Tijdens de installatie dient men zich aan de voorschriften van het
bouwrecht, het nijverheidsrecht en de immissiebescherming te
houden. Verwezen wordt met name op de volgende voorschrif-
ten, richtlijnen en normen:
–
Het apparaat mag uitsluitend geïnstalleerd worden door een
vakbedrijf dat de overeenkomstige nationale voorschriften in
acht neemt.
–
Bij de elektrische installatie dient men zich aan de betreffende
nationale voorschriften van de wetgever te houden.
–
Instellingen, onderhoudswerkzaamheden en herstellingen
aan de brander mogen uitsluitend uitgevoerd worden door
geschoolde Kärcher-klantenservicemonteurs.
–
Bij de planning van een schoorsteen moeten de lokaal gel-
dende richtlijnen in acht genomen worden.
De werkplaats is achter het bedieningpaneel. Meer werkplaatsen
bevinden zich al naar gelang de opbouw van de installatie aan de
optioneel aangesloten apparatuur (spuit-installaties), die aan de
tappunten worden aangesloten.
–
Draag de juiste beschermende kleding en een veiligheidsbril
ter bescherming tegen terugspattend water.
Het apparaat dient voor het verwijderen van vuil van oppervlak-
ken door middel van een vrij uittredende waterstraal. Het wordt
vooral voor de reiniging van machines, voertuigen en fassaden
toegepast.
Gevaar
Verwondingsgevaar! Bij het gebruik aan tankstations of andere
gevaarlijke zones overeenkomstige veiligheidsvoorschriften in
acht nemen.
–
Via de motorkoelslang en de vlottercontainer komt het koude
water in de zuigkant van de hogedrukpomp. In de vlottercon-
tainer wordt onthardingsmiddel toegevoegd. De pomp trans-
porteert water en aangezogen reinigingsmiddel door de
doorloopgeiser. Het reinigingsmiddelgehalte in het water kan
door een doseerventiel worden ingesteld. De doorloopgeiser
wordt door middel van een gasbrander verwarmd.
–
De hogedrukuitgang wordt op een in het gebouw aanwezig
hogedruknet aangesloten. De handspuitlans wordt met een
hogedrukslang op de tappunten van dit net aangesloten.
Veiligheidsinrichtingen dienen voor de bescherming van de ge-
bruiker en mogen niet buiten werking gezet of in hun functie om-
zeild worden.
De watertekortbeveiliging voorkomt dat de hogedrukpomp bij een
tekort aan water inschakelt.
De watertekortbeveiliging voorkomt dat de brander bij een tekort
aan water oververhit raakt. Alleen bij voldoende watertoevoer
gaat de brander aan.
De drukschakelaar schakelt het apparaat bij het overschrijden
van de werkdruk uit. De instelling mag niet worden veranderd.
Bij een storing van de drukschakelaar gaat het veiligheidsventiel
open. Dit ventiel is vanuit de fabriek ingesteld en verzegeld. De
instelling mag niet worden veranderd.
Bij een tekort aan brandstof of bij een storing van de brander
schakelt de vlambewaking de brander uit. De controlelamp sto-
ring brander (E) gaat branden.
Als de brandermotor geblokkeerd is, treedt de overstroombevei-
ligingsschakelaar in werking. De motor van de hogedrukpomp is
met een motorbeveiligingsschakelaar en een spoelveiligheids-
schakelaar beveiligd.
De rookgasthermostaat treedt in werking, als de temperatuur van
het rookgas hoger wordt dan 320 °C. De controlelamp storing
brander (E) knippert.
Nadat het apparaat via het handspuitpistool is uitgezet, opent na
het verstrijken van de bedrijfsgereedheidstijd een in het hoge-
druksysteem ingebouwde magneetklep, waardoor de druk ver-
mindert.
Voorschriften, richtlijnen en regels
Werkplaatsen
Persoonlijke bescherming
Bij het reinigen van geluidsversterkende onder-
delen dient men gehoorbescherming te dragen
ter voorkoming van gehoorbeschadigingen.
Reglementair gebruik
Gelieve mineraaloliehoudend afvalwater niet in de grond, water-
lopen of rioleringen laten terechtkomen. Gelieve de motorreini-
ging en bodemreiniging daarom alleen op geschikte plaatsen
met olieafscheider uit te voeren.
Functie
Veiligheidsinrichtingen
Watertekortbeveiliging vlotterhouder
Watertekortbeveiliging beveiligingsblok
Drukschakelaar
Veiligheidsklep
Vlambewaking
Overstroombeveiliging
Rookgasthermostaat
Drukontlasting hogedruksysteem
80
NL




