Karcher HDS 12-14 ST ECO: инструкция
Раздел: Компьютерная техника, комплектующие, аксессуары
Тип: Система Водяного Охлаждения
Инструкция к Системе Водяного Охлаждения Karcher HDS 12-14 ST ECO
www
.kaercher
.com/register-and-win
HDS 9/14-4 ST
HDS 12/14-4 ST
59648180 01/14
Deutsch
3
English
22
Français
41
Italiano
61
Nederlands
81
Español
101
Português
120
Dansk
139
Norsk
158
Svenska
177
Suomi
196
Ελληνικά
215
Türkçe
236
Русский
255
Magyar
276
Čeština
295
Slovenščina
314
Polski
333
Slovenčina
352
Eesti
371
Latviešu
390
Lietuviškai
409
Українська
428
2
-
1
Lesen Sie vor der ersten Benutzung Ihres Gerätes
diese Originalbetriebsanleitung, handeln Sie danach
und bewahren Sie diese für späteren Gebrauch oder für Nachbe-
sitzer auf.
–
Vor erster Inbetriebnahme Sicherheitshinweise Nr. 5.956-
309.0 unbedingt lesen!
–
Bei Transportschaden sofort Händler informieren.
Hinweise zu Inhaltsstoffen (REACH)
Aktuelle Informationen zu Inhaltsstoffen finden Sie unter:
www.kaercher.de/REACH
Gefahr
Für eine unmittelbar drohende Gefahr, die zu schweren Körper-
verletzungen oder zum Tod führt.
몇
Warnung
Für eine möglicherweise gefährliche Situation, die zu schweren
Körperverletzungen oder zum Tod führen könnte.
Vorsicht
Für eine möglicherweise gefährliche Situation, die zu leichten
Verletzungen oder zu Sachschäden führen kann.
Hochdruckstrahlen können bei unsachgemäßem Ge-
brauch gefährlich sein. Der Strahl darf nicht auf Perso-
nen, Tiere, aktive elektrische Ausrüstung oder auf das
Gerät selbst gerichtet werden.
–
Jeweilige nationale Vorschriften des Gesetzgebers für Flüs-
sigkeitsstrahler beachten.
–
Jeweilige nationale Vorschriften des Gesetzgebers zur Un-
fallverhütung beachten. Flüssigkeitsstrahler müssen regel-
mäßig geprüft und das Ergebnis der Prüfung schriftlich
festgehalten werden.
–
Die Heizeinrichtung des Gerätes ist eine Feuerungsanlage.
Feuerungsanlagen müssen regelmäßig nach den jeweiligen
nationalen Vorschriften des Gesetzgebers überprüft werden.
–
Bei Betrieb der Anlage in Räumen ist für eine gefahrlose Ab-
leitung der Abgase zu sorgen (Rauchgasrohr ohne Zugunter-
brecher). Weiter muss eine ausreichende Frischluftzufuhr
vorhanden sein.
–
Gemäß gültigen nationalen Bestimmungen muss dieser
Hochdruckreiniger bei gewerblichem Einsatz erstmalig von
einer befähigten Person in Betrieb genommen werden. KÄR-
CHER hat diese Erstinbetriebnahme bereits für Sie durchge-
führt und dokumentiert. Die Dokumentation dazu erhalten Sie
auf Nachfrage über Ihren KÄRCHER Partner. Bitte halten Sie
bei Nachfragen zur Dokumentation die Teile- und Werknum-
mer des Gerätes bereit.
–
Wir weisen darauf hin, dass das Gerät gemäß den gültigen
nationalen Bestimmungen wiederkehrend von einer befähig-
ten Person geprüft werden muss. Bitte wenden Sie sich dazu
an Ihren KÄRCHER Partner.
–
Sicherheitshinweise, die den verwendeten Reinigungsmitteln
beigestellt sind (i. d. R. auf dem Verpackungsetikett) beachten.
Inhaltsverzeichnis
Umweltschutz . . . . . . . . . . .
DE . . 1
Symbole in der Betriebsanleitung
DE . . 1
Symbole auf dem Gerät . . .
DE . . 1
Allgemeine Sicherheitshinweise
DE . . 1
Bestimmungsgemäße Verwendung
DE . . 2
Funktion . . . . . . . . . . . . . . .
DE . . 2
Sicherheitseinrichtungen. . .
DE . . 2
Geräteelemente . . . . . . . . .
DE . . 3
Inbetriebnahme . . . . . . . . . .
DE . . 4
Bedienung. . . . . . . . . . . . . .
DE . . 4
Außerbetriebnahme . . . . . .
DE . . 6
Stilllegung . . . . . . . . . . . . . .
DE . . 6
Lagerung . . . . . . . . . . . . . . .
DE . . 6
Transport. . . . . . . . . . . . . . .
DE . . 6
Technische Daten . . . . . . . .
DE . . 7
Pflege und Wartung . . . . . .
DE . . 9
Hilfe bei Störungen . . . . . . .
DE . 11
Zubehör. . . . . . . . . . . . . . . .
DE . 13
Anlageninstallation . . . . . . .
DE . 14
EG-Konformitätserklärung. .
DE . 17
Garantie . . . . . . . . . . . . . . .
DE . 17
Kundendienst . . . . . . . . . . .
DE . 18
Wiederkehrende Prüfungen
DE . 19
Umweltschutz
Die Verpackungsmaterialien sind recyclebar. Bitte
werfen Sie die Verpackungen nicht in den Hausmüll,
sondern führen Sie diese einer Wiederverwertung zu.
Altgeräte enthalten wertvolle recyclingfähige Materia-
lien, die einer Verwertung zugeführt werden sollten.
Batterien, Öl und ähnliche Stoffe dürfen nicht in die
Umwelt gelangen. Bitte entsorgen Sie Altgeräte des-
halb über geeignete Sammelsysteme.
Bitte Motorenöl, Heizöl, Diesel und Benzin nicht in die Umwelt
gelangen lassen. Bitte Boden schützen und Altöl umweltgerecht
entsorgen.
Kärcher-Reinigungsmittel sind abscheidefreundlich (ASF). Das
bedeutet, dass die Funktion eines Ölabscheiders nicht behin-
dert wird. Eine Liste mit empfohlenen Reinigungsmitteln ist im
Kapitel „Zubehör“ aufgeführt.
Symbole in der Betriebsanleitung
Symbole auf dem Gerät
Verbrennungsgefahr! Warnung vor heißen Bau-
gruppen.
Allgemeine Sicherheitshinweise
3
DE
-
2
Vor der Installation des Gerätes sollte eine Abstimmung mit dem
Bezirksschornsteinfegermeister erfolgen.
Bei der Installation sind die Vorschriften des Baurechts, des Ge-
werberechts und des Immissionsschutzes zu beachten. Wir wei-
sen auf die nachstehend aufgeführten Vorschriften, Richtlinien
und Normen hin:
–
Das Gerät darf nur von einem Fachbetrieb nach den jeweili-
gen nationalen Vorschriften installiert werden.
–
Bei der elektrischen Installation sind die jeweiligen nationalen
Vorschriften des Gesetzgebers zu beachten.
–
Einstellungen, Wartungsarbeiten und Reparaturen am Bren-
ner dürfen nur von geschulten Kärcher-Kundendienstmon-
teuren durchgeführt werden.
–
Bei der Planung eines Kamins müssen die örtlich gültigen
Richtlinien beachtet werden.
Der Arbeitsplatz befindet sich am Bedienfeld. Weitere Arbeits-
plätze sind je nach Anlagenaufbau an den Zubehörgeräten
(Spritzeinrichtungen), die an den Zapfstellen angeschlossen wer-
den.
–
Zum Schutz vor zurückspritzendem Wasser oder Schmutz
geeignete Schutzkleidung und Schutzbrille tragen.
Das Gerät dient dazu, mittels eines frei austretenden Wasser-
strahls Schmutz von Oberflächen zu entfernen. Es wird insbe-
sondere zur Reinigung von Maschinen, Fahrzeugen und
Fassaden verwendet.
Gefahr
Verletzungsgefahr! Beim Einsatz an Tankstellen oder anderen
Gefahrenbereichen entsprechende Sicherheitsvorschriften be-
achten.
–
Das Kaltwasser gelangt über die Motorkühlschlange und den
Schwimmerbehälter zur Saugseite der Hochdruckpumpe. Im
Schwimmerbehälter wird Enthärter zudosiert. Die Pumpe för-
dert Wasser und angesaugtes Reinigungsmittel durch den
Durchlauferhitzer. Der Anteil von Reinigungsmittel im Wasser
kann durch ein Dosierventil eingestellt werden. Der Durch-
lauferhitzer wird mit einem Brenner beheizt.
–
Der Hochdruckausgang wird an ein im Gebäude vorhande-
nes Hochdrucknetz angeschlossen. An den Zapfstellen die-
ses Netzes erfolgt der Anschluss der Handspritzpistole mit
einem Hochdruckschlauch.
Sicherheitseinrichtungen dienen dem Schutz des Benutzers und
dürfen nicht außer Kraft gesetzt oder in ihrer Funktion umgangen
werden.
Die Wassermangelsicherung verhindert das Einschalten der
Hochdruckpumpe bei Wassermangel.
Die Wassermangelsicherung verhindert die Überhitzung des
Brenners bei Wassermangel. Nur bei ausreichender Wasserver-
sorgung geht der Brenner in Betrieb.
Der Druckschalter schaltet das Gerät bei Überschreiten des Ar-
beitsdruckes aus. Die Einstellung darf nicht verändert werden.
Bei einer Störung des Druckschalters öffnet das Sicherheitsven-
til. Dieses Ventil ist werkseitig eingestellt und verplombt. Die Ein-
stellung darf nicht verändert werden.
Bei Brennstoffmangel oder Brennerstörung schaltet die Flam-
menüberwachung den Brenner ab. Die Kontrolllampe Brenner-
störung (E) leuchtet auf.
Ist der Brennermotor blockiert, löst der Überstromschutzschalter
aus. Der Motor der Hochdruckpumpe ist mit einem Motorschutz-
schalter und einem Wicklungsschutzschalter abgesichert.
Der Abgasthermostat löst aus, wenn die Abgastemperatur
300 °C übersteigt. Das Gerät wird ausgeschaltet.
Nach Abschalten des Gerätes über die Handspritzpistole öffnet
nach Ablauf der Betriebsbereitschaftszeit ein im Hochdrucksys-
tem angeordnetes Magnetventil, wodurch der Druck absinkt.
Vorschriften, Richtlinien und Regeln
Arbeitsplätze
Persönliche Schutzausrüstung
Beim Reinigen geräuschverstärkender Teile
Gehörschutz zur Vorbeugung von Gehörschä-
den tragen.
Bestimmungsgemäße Verwendung
Bitte mineralölhaltiges Abwasser nicht ins Erdreich, Gewässer
oder Kanalisation gelangen lassen. Motorenwäsche und Unter-
bodenwäsche deshalb bitte nur an geeigneten Plätzen mit Ölab-
scheider durchführen.
Funktion
Sicherheitseinrichtungen
Wassermangelsicherung Schwimmerbehälter
Wassermangelsicherung Sicherheitsblock
Druckschalter
Sicherheitsventil
Flammenüberwachung
Überstromschutz
Abgasthermostat
Druckentlastung Hochdrucksystem
4
DE
-
3
Bild 1
1 Brenner
2 Manometer
3 Frischwasser-Zulauf mit Sieb
4 Hochdruckausgang
5 Brennstoffleitung Vorlauf
6 Brennstoffleitung Rücklauf
7 Reinigungsmittel-Saugschlauch I
8 Reinigungsmittel-Saugschlauch II (Option)
9 Enthärterbehälter
10 Elektrozuleitung
11 Schwimmerbehälter
12 Bedienfeld
Bild 2
A Geräteschalter
B Temperaturregler
C Reinigungsmittel-Dosierventil I
D Reinigungsmittel-Dosierventil II (Option)
E Kontrolllampe Brennerstörung
F Kontrolllampe Betriebsbereitschaft
G Kontrolllampe Motorüberhitzung
H Kontrolllampe Verkalkungsschutz
I
Stopfen - Entriegelungstaste Brennermotor
Geräteelemente
6
5
7
8
3
4
9
11
10
1
12
2
Bedienfeld
5
DE
-
4
몇
Gefahr
Verletzungsgefahr! Gerät, Zuleitungen, Hochdruckschlauch und
Anschlüsse müssen in einwandfreiem Zustand sein. Falls der Zu-
stand nicht einwandfrei ist, darf das Gerät nicht benutzt werden.
–
Anschlusswerte siehe Technische Daten und Typenschild.
–
Der elektrische Anschluss muss von einem Elektroinstalla-
teur ausgeführt werden und IEC 60364-1 entsprechen.
Der Benutzer hat das Gerät bestimmungsgemäß zu verwenden.
Er hat die örtlichen Gegebenheiten zu berücksichtigen und beim
Arbeiten mit dem Gerät auf Personen im Umfeld zu achten.
Das Gerät niemals unbeaufsichtigt lassen, solange das Gerät in
Betrieb ist.
Gefahr
–
Verbrühungsgefahr durch Heißwasser! Wasserstrahl nicht auf Per-
sonen oder Tiere richten.
–
Verbrennungsgefahr durch heiße Anlagenteile! Bei Heißwasserbe-
trieb unisolierte Rohrleitungen und Schläuche nicht berühren.
Strahlrohr nur an den Griffschalen festhalten. Abgasstutzen des
Durchlauferhitzers nicht berühren.
–
Vergiftungs- oder Verätzungsgefahr durch Reinigungsmittel! Hin-
weise auf den Reinigungsmitteln beachten. Reinigungsmittel für
Unbefugte unzugänglich aufbewahren.
Gefahr
Lebensgefahr durch elektrischen Schlag! Richten Sie den Was-
serstrahl nicht auf folgende Einrichtungen:
–
Elektrische Geräte und Anlagen,
–
diese Anlage selbst,
–
alle stromführenden Teile im Arbeitsbereich.
Durch den aus dem Strahlrohr austretenden Wasserstrahl ent-
steht eine Rückstoßkraft. Durch das abgewinkelte Strahlrohr
wirkt eine Kraft nach oben.
Gefahr
–
Verletzungsgefahr! Der Rückstoß des Strahlrohres kann Sie
aus dem Gleichgewicht bringen. Sie können stürzen. Das
Strahlrohr kann umherfliegen und Personen verletzen. Siche-
ren Standplatz suchen und Pistole gut festhalten. Hebel der
Handspritzpistole niemals festklemmen.
–
Den Strahl nicht auf andere oder sich selbst richten, um Klei-
dung oder Schuhwerk zu reinigen.
–
Verletzungsgefahr durch wegfliegende Teile! Wegfliegende
Bruchstücke oder Gegenstände können Personen oder Tiere
verletzen. Den Wasserstrahl nie auf zerbrechliche oder lose
Gegenstände richten.
–
Unfallgefahr infolge Beschädigung! Reifen und Ventile mit ei-
nem Mindestabstand von 30 cm reinigen.
몇
Warnung
Gefahr durch gesundheitsgefährdende Stoffe! Folgende Materi-
alien nicht abspritzen, da gesundheitsgefährdende Stoffe aufge-
wirbelt werden können:
–
Asbesthaltige Materialien,
–
Materialien, die möglicherweise gesundheitsgefährdende
Stoffe enthalten.
Gefahr
–
Verletzungsgefahr durch austretenden, eventuell heißen
Wasserstrahl! Nur Original Kärcher-Hochdruckschläuche
sind optimal auf die Anlage abgestimmt. Bei Verwendung an-
derer Schläuche wird keine Gewähr übernommen.
–
Gesundheitsgefahr durch Reinigungsmittel! Durch gegebe-
nenfalls beigemischte Reinigungsmittel besitzt das vom Ge-
rät abgegebene Wasser keine Trinkwasserqualität.
–
Gefahr von Gehörschäden durch Arbeiten an geräuschver-
stärkenden Teilen! In diesem Fall Gehörschutz tragen.
Gefahr
Verletzungsgefahr durch austretenden, eventuell heißen Was-
serstrahl!
Gefahr
Hochdruckschlauch vor jedem Betrieb auf Schäden prüfen. Be-
schädigten Hochdruckschlauch unverzüglich austauschen.
Hochdruckschlauch, Rohrleitungen, Armaturen und Strahl-
rohr vor jeder Benutzung auf Beschädigung prüfen.
Schlauchkupplung auf festen Sitz und Dichtheit überprüfen.
Vorsicht
Beschädigungsgefahr durch Trockenlauf.
Füllstand der Reinigungsmittelbehälter überprüfen und bei
Bedarf nachfüllen.
Enthärterflüssigkeitsstand überprüfen und bei Bedarf nachfüllen.
Geräteschalter (A) auf „0“ drehen.
Wasserzulauf schließen.
Handspritzpistole betätigen, bis das Gerät drucklos ist.
Mengenregulierventil im Uhrzeigersinn drehen ergibt höhe-
ren Arbeitsdruck und größere Fördermenge.
Mengenregulierventil gegen den Uhrzeigersinn drehen ergibt
geringeren Arbeitsdruck und kleinere Fördermenge.
Inbetriebnahme
Stromanschluss
Bedienung
Sicherheitshinweise
!
Betriebsbereitschaft herstellen
Ausschalten im Notfall
Arbeitsdruck und Fördermenge einstellen
Einstellung am Gerät
R
6
DE
-
5
Rechtsdrehung des Wassermengenreglers ergibt größere
Fördermenge und höheren Arbeitsdruck.
Linksdrehung des Wassermengenreglers ergibt geringere
Fördermenge und geringeren Arbeitsdruck.
Wasserzulauf öffnen.
Symbol „Motor ein“
Hebel der Handspritzpistole ziehen und den Geräteschalter
(A) auf „1“ (Motor ein) stellen.
Die Kontrolllampe Betriebsbereitschaft (F) zeigt Betriebsbe-
reitschaft an.
Gefahr
Verbrühungsgefahr!
Vorsicht
Heißwasserbetrieb ohne Brennstoff führt zur Beschädigung der
Brennstoffpumpe. Vor dem Heißwasserbetrieb Brennstoffversor-
gung sicherstellen.
Der Brenner kann bei Bedarf zugeschaltet werden.
Symbol „Brenner ein“
Geräteschalter (A) auf „Brenner ein“ stellen.
Gewünschte Wassertemperatur am Temperaturregler (B)
einstellen. Höchsttemperatur ist 98 °C.
Gefahr
Verbrühungsgefahr! Bei Arbeitstemperaturen über 98 °C darf der
Arbeitsdruck 3,2 MPa (32 bar) nicht überschreiten.
Zur Umrüstung von Heißwasser- auf Dampfstufenbetrieb ist das
Gerät kaltzufahren und auszuschalten. Die Umrüstung ist wie
folgt durchzuführen:
Hochdruckdüse durch Dampfdüse (Zubehör) ersetzen.
Temperaturregler auf 150 °C stellen.
Mengenregulierventil an der Hochdruckpumpe auf minimale
Wassermenge stellen (entgegen dem Uhrzeigersinn drehen).
Mengenregulierventil an der Hochdruckpumpe auf maximale
Wassermenge stellen (im Uhrzeigersinn drehen).
Wassermengenregler an der Easypresspistole durch Links-
drehung auf minimale Wassermenge stellen.
–
Wird während des Betriebes der Hebel der Handspritzpistole
losgelassen, schaltet das Gerät ab.
–
Beim erneuten Öffnen der Pistole innerhalb der einstellbaren
Betriebsbereitschaftszeit (2…8 Minuten) läuft das Gerät
selbsttätig wieder an.
–
Wird die Betriebsbereitschaftszeit überschritten, schaltet die
Sicherheitszeitschaltung Pumpe und Brenner ab. Die Kont-
rolllampe Betriebsbereitschaft (F) erlischt.
–
Zur Wiederinbetriebnahme den Geräteschalter auf Stellung
„0“ stellen, dann wieder einschalten. Wird das Gerät mit einer
Fernbedienung gesteuert, kann die Wiederinbetriebnahme
am entsprechenden Schalter der Fernbedienung ausgeführt
werden.
–
Fahrzeugreifen werden nur mit der Flachstrahldüse (25°) und
einem Mindest-Spritzabstand von 30 cm gereinigt. Mit dem
Rundstrahl dürfen Reifen auf keinen Fall gereinigt werden.
Für alle anderen Aufgaben stehen folgende Düsen zur Auswahl:
Bei mehr als 20 m Rohrleitung oder mehr als 2 x 10 m Hoch-
druckschlauch NW 8 sind folgende Düsen zu verwenden:
Einstellung an der Easypresspistole (Option)
Betrieb mit Kaltwasser
Betrieb mit Heißwasser
Betrieb mit Dampf
Bestell-Nr.
Typ
4.766-023
HDS 9/14
4.766-024
HDS 12/14
Ohne Easypresspistole
Mit Easypresspistole (Option)
Betriebsbereitschaft
Düsenauswahl
Ver-
schmut-
zung
Düse
Spritz-
winkel
Teile-Nr.
6.415
Druck
[MPa]
Rück-
stoß [N]
HDS 9/14
stark
00060
0°
-257
14
44
mittel
25060
25°
-295
leicht
40060
40°
-301
HDS 12/14
stark
00080
0°
-150
14
55
mittel
25080
25°
-152
leicht
40080
40°
-153
Ver-
schmut-
zung
Düse
Spritz-
winkel
Teile-Nr.
6.415
Druck
[MPa]
Rück-
stoß [N]
HDS 9/14
stark
0075
0°
-419
10
37
mittel
2575
25°
-421
leicht
4075
40°
-422
HDS 12/14
stark
0010
0°
-082
10
46
mittel
2510
25°
-252
leicht
4010
40°
-253
7
DE
-
6
–
Reinigungsmittel erleichtern die Reinigungsaufgabe. Sie wer-
den aus einem externen Reinigungsmitteltank angesaugt.
–
Das Gerät ist in der Grundausstattung mit einem Dosierventil
(C) ausgestattet. Eine zweite Dosiereinrichtung (Dosierventil
D) ist als Sonderzubehör erhältlich. Dann besteht die Mög-
lichkeit, zwei verschiedene Reinigungsmittel anzusaugen.
–
Die Dosiermenge wird an den Reinigungsmittel-Dosierventi-
len (C oder D) am Bedienfeld eingestellt. Der eingestellte
Wert entspricht dem Reinigungsmittelanteil in Prozent.
–
Die äußere Skala gilt bei Verwendung von unverdünntem
Reinigungsmittel (100 % CHEM).
–
Die innere Skala gilt bei Verwendung von 1+3 vorverdünntem
Reinigungsmittel (25 % CHEM + 75 % Wasser).
Folgende Tabelle gibt den Reinigungsmittelverbrauch für die
Werte auf der äußeren Skala an:
Die genaue Dosiermenge ist abhängig von:
–
Viskosität des Reinigungsmittels
–
Ansaughöhe
–
Strömungswiderstand der Hochdruckleitung
Ist eine exakte Dosierung erforderlich, so ist die angesaugte Rei-
nigungsmittelmenge auszumessen (z. B. durch Saugen aus ei-
nem Messbecher).
Hinweis:
Reinigungsmittel-Empfehlungen finden Sie im Kapitel
„Zubehör“.
Vorsicht
Bei Betrieb ohne Enthärter kann der Durchlauferhitzer verkalken.
Bei leerem Enthärterbehälter blinkt die Kontrolllampe Verkal-
kungsschutz (H).
Bild 1 - Pos. 9
Enthärterbehälter mit Enthärterflüssigkeit RM 110 (2.780-
001) nachfüllen.
Gefahr
Verbrühungsgefahr durch heißes Wasser! Nach dem Betrieb mit
Heißwasser oder Dampf, muss das Gerät zur Abkühlung mindes-
tens zwei Minuten mit Kaltwasser bei geöffneter Pistole betrieben
werden.
Bei Heißwasserbetrieb den Temperaturregler (B) auf die
niedrigste Temperatur einstellen.
Gerät mindestens 30 Sekunden ohne Reinigungsmittel be-
nutzen.
Geräteschalter (A) auf „0“ drehen.
Wasserzulauf schließen.
Handspritzpistole betätigen, bis das Gerät drucklos ist.
Handspritzpistole mit Sicherungsraste gegen unbeabsichtig-
tes Öffnen sichern.
Bei längeren Betriebspausen oder wenn eine frostfreie Lagerung
nicht möglich ist, folgende Maßnahmen durchführen (siehe Kapi-
tel „Pflege und Wartung“, Abschnitt „Frostschutz“):
Wasser ablassen.
Gerät mit Frostschutzmittel durchspülen.
Hauptschalter abschalten und sichern bzw. Cekon-Stecker
ausstecken.
Vorsicht
Verletzungs- und Beschädigungsgefahr! Gewicht des Gerätes
bei Lagerung beachten.
Vorsicht
Verletzungs- und Beschädigungsgefahr! Gewicht des Gerätes
beim Transport beachten.
Beim Transport in Fahrzeugen Gerät nach den jeweils gülti-
gen Richtlinien gegen Rutschen und Kippen sichern.
Reinigungsmittel-Dosierung
HDS 9/14
Stellung
0,5
1
5
Reinigungsmittelmenge [l/h]
14...15 22...24
50
Reinigungsmittelkonzentration [%]
1,5
2,5
5
HDS 12/14
Stellung
0,5
1
5
Reinigungsmittelmenge [l/h]
10...13 23...27
60
Reinigungsmittelkonzentration [%]
1
2
5
Enthärter nachfüllen
Außerbetriebnahme
Nach Betrieb mit Reinigungsmittel
Gerät ausschalten
Stilllegung
Lagerung
Transport
8
DE
-
7
Technische Daten
HDS 9/14
HDS 12/14
HDS 12/14
1.698-900
1.699-919
1.699-920
Leistungsdaten
Arbeitsdruck Wasser (mit Standarddüse)
MPa (bar)
14 (140)
14 (140)
14 (140)
Max. Arbeitsdruck Dampfbetrieb (mit Dampfdüse)
MPa (bar)
3,2 (32)
3,2 (32)
3,2 (32)
Teile-Nr. Dampfdüse
--
4.766-023
4.766-024
4.766-024
Max. Betriebsüberdruck (Sicherheitsventil)
MPa (bar)
18,5 (185)
18,5 (185)
18,5 (185)
Fördermenge Wasser (stufenlos regelbar)
l/h (l/min)
500-930
(8,3-15,5)
600-1200
(10-20)
600-1200
(10-20)
Fördermenge Dampfbetrieb
l/h (l/min)
470 (7,8)
600 (10)
600 (10)
Reinigungsmittelansaugung (stufenlos regelbar)
l/h (l/min)
0-50 (0-0,8)
0-60 (0-1)
0-60 (0-1)
Wasseranschluss
Zulaufmenge (min.)
l/h (l/min)
1100 (18,3)
1300 (21,7)
1300 (21,7)
Zulaufdruck (min.)
MPa (bar)
0,1 (1)
0,1 (1)
0,1 (1)
Zulaufdruck (max.)
MPa (bar)
0,6 (6)
0,6 (6)
0,6 (6)
Elektrischer Anschluss
Stromart
--
3N~
3N~
3N~
Frequenz
Hz
50
50
50
Spannung
V
400
400
230
Anschlussleistung
kW
6,4
7,5
8,2
Elektrische Absicherung (träge)
A
16
20
32
Schutzart
--
IPX5
IPX5
IPX5
Schutzklasse
--
I
I
I
Maximal zulässige Netzimpedanz
Ohm
(0,381+j 0,238)
--
--
Elektrozuleitung
mm
2
5 x 2,5
5 x 2,5
5 x 4
Temperatur
Zulauftemperatur (max.)
°C
30
30
30
Max. Arbeitstemperatur Heißwasser
°C
98
98
98
Max. Arbeitstemperatur Dampfbetrieb
°C
155
155
155
Temperaturerhöhung bei max. Wasserdurchsatz
°C
56±2
54±2
54±2
Heizleistung brutto
kW
68
85
85
Brennstoffverbrauch
kg/h
5,8
7,1
7,1
Kaminzug
kPa
0,01-0,04
0,01-0,04
0,01-0,04
Abgasmassenstrom - Volllast
kg/h
124
155
155
Maße und Gewichte
Länge
mm
1124
1124
1124
Breite
mm
558
558
558
Höhe
mm
687
699
699
Typisches Betriebsgewicht
kg
164,4
178,8
178,8
Ermittelte Werte gemäß EN 60335-2-79
Geräuschemission
Schalldruckpegel L
pA
dB(A)
74
76
76
Unsicherheit K
pA
dB(A)
1
1
1
Hand-Arm Vibrationswert
Handspritzpistole
m/s
2
2,2
2,3
2,3
Strahlrohr
m/s
2
1,8
2,1
2,1
Unsicherheit K
m/s
2
1,0
1,0
1,0
9
DE
-
8
Maßblatt
6
8
7
/ 6
9
9
505
558
1124
246
158
1060
47
141
61
77
46
200
300
1018±2
10
DE
-
9
Gefahr
Verletzungsgefahr! Vor allen Wartungs- und Reparaturarbeiten
ist der Hauptschalter auszuschalten bzw. der Cekon-Stecker
auszustecken.
Pflege und Wartung
Wartungsplan
Zeitpunkt
Tätigkeit
betroffene Baugruppe
Durchführung
von wem
täglich
Handspritzpisto-
le prüfen
Handspritzpistole
Überprüfen, ob Handspritzpistole dicht schließt.
Funktion der Sicherung gegen unbeabsichtigte
Bedienung prüfen. Defekte Handspritzpistolen
austauschen.
Bediener
Hochdruck-
Schläuche prüfen
Ausgangsleitungen, Schläuche
zum Arbeitsgerät
Schläuche auf Beschädigung untersuchen. Defekte
Schläuche sofort auswechseln. Unfallgefahr!
Bediener
Anschlusslei-
tung mit Netzste-
cker prüfen
Elektrischer Anschluss mit Ste-
cker/Steckdose
Anschlussleitung mit Netzstecker auf Schäden
prüfen. Beschädigte Anschlussleitung unverzüg-
lich durch autorisierten Kundendienst/Elektro-
Fachkraft austauschen lassen.
Bediener
wöchentlich oder
nach 40 Betriebs-
stunden
Ölzustand prüfen Ölbehälter an der Pumpe
Ist das Öl milchig, muss es gewechselt werden. Bediener
Ölstand überprü-
fen
Ölbehälter an der Pumpe
Ölstand der Pumpe überprüfen. Bei Bedarf Öl
(Best.-Nr. 6.288-016) nachfüllen.
Bediener
Sieb reinigen
Sieb im Wassereingang
Siehe Abschnitt „Siebe reinigen“.
Bediener
monatlich oder
nach 200 Be-
triebsstunden
Zündelektroden
reinigen und
überprüfen
Zündelektroden im Deckel des
Durchlauferhitzers
Brennstoffleitung abschrauben, Elektrodenhalter
ausbauen und Elektroden reinigen. Elektroden-
einstellung nach der Skizze auf der folgenden
Seite überprüfen und bei Bedarf einstellen.
Bediener mit
Einweisung
Pumpe prüfen
Hochdruckpumpe
Pumpe auf Undichtigkeit untersuchen. Bei mehr
als 3 Tropfen pro Minute Kundendienst rufen.
Bediener
auf innere Abla-
gerungen prüfen
gesamte Anlage
Anlage mit Strahlrohr ohne Hochdruck-Düse in
Betrieb nehmen. Steigt der Betriebsdruck am
Gerätemanometer über 3 MPa an, so muss die
Anlage entkalkt werden. Dasselbe gilt auch,
wenn beim Betrieb ohne Hochdruckleitung
(Wasser tritt am Hochdruckausgang frei aus) ein
Betriebsdruck von mehr als 0,7–1 MPa festge-
stellt wird.
Bediener mit
Einweisung
für Entkalkung
Sieb reinigen
Sieb in der Wassermangelsi-
cherung
Siehe Abschnitt „Siebe reinigen“.
Bediener
halbjährlich oder
nach 1000 Be-
triebsstunden
Ölwechsel
Hochdruckpumpe
Öl ablassen. 1 l neues Öl (Best.-Nr. 6.288-016)
einfüllen. Füllstand am Ölbehälter kontrollieren.
Bediener
prüfen, reinigen gesamte Anlage
Sichtkontrolle der Anlage, Hochdruckanschlüsse
auf Dichtheit prüfen, Überströmventil auf Dicht-
heit prüfen, Hochdruckschlauch prüfen, Druck-
speicher prüfen, Brennstofffilter reinigen /
erneuern, Heizschlange entrußen / entkalken,
Zündelektroden reinigen / erneuern, Brennerdü-
se reinigen / erneuern, Brenner einstellen.
Kunden-
dienst
jährlich
Sicherheitsüber-
prüfung
gesamte Anlage
Sicherheitsüberprüfung nach den jeweiligen na-
tionalen Vorschriften des Gesetzgebers für Flüs-
sigkeitsstrahler durchführen.
Sachkundiger
spätestens alle 5
Jahre wiederkeh-
rend
Druckprüfung
gesamte Anlage
Druckprüfung gemäß Herstellervorgabe durch-
führen.
Sachkundiger
11
DE
-
10
Mit dem zuständigen Kärcher-Verkaufsbüro kann ein Wartungs-
vertrag für das Gerät abgeschlossen werden.
Bild 1 - Pos. 3
Wasserzulauf schließen.
Wasserzulaufschlauch am Gerät abschrauben.
Sieb mit einem Schraubendreher aus dem Anschluss heraus-
schieben.
Sieb reinigen
In umgekehrter Reihenfolge wieder montieren.
Verkleidungsbleche abnehmen.
Winkelstück vom Sicherheitsblock abschrauben.
Schraube M8x30 in das Sieb drehen.
Schraube und Sieb mit einer Zange herausziehen.
Sieb reinigen
In umgekehrter Reihenfolge wieder montieren.
Die Zündelektroden müssen nach folgenden Angaben eingestellt
sein:
Bei Ablagerungen in den Rohrleitungen steigt der Strömungswi-
derstand, so dass der Druckschalter auslösen kann.
Gefahr
Explosionsgefahr durch brennbare Gase! Beim Entkalken ist
Rauchen verboten. Für gute Belüftung sorgen.
Gefahr
Verätzungsgefahr durch Säure! Schutzbrille und Schutzhand-
schuhe tragen.
Zur Entfernung dürfen nach gesetzlichen Vorschriften nur geprüf-
te Kesselsteinlösemittel mit Prüfzeichen benutzt werden.
–
RM 100 (Best.-Nr. 6.287-008) löst Kalkstein und einfache
Verbindungen aus Kalkstein und Waschmittelrückständen.
–
RM 101 (Best.-Nr. 6.287-013) löst Ablagerungen, die mit RM
100 nicht ablösbar sind.
Einen 20-Liter-Behälter mit 15 l Wasser füllen.
Einen Liter Kesselsteinlösemittel dazugeben.
Wasserschlauch direkt am Pumpenkopf anschließen und
freies Ende in den Behälter hängen.
Das angeschlossene Strahlrohr ohne Düse in den Behälter
stecken.
Handspritzpistole öffnen und während des Entkalkens nicht
wieder schließen.
Geräteschalter auf „Brenner ein“ schalten, bis ca. 40 °C er-
reicht sind.
Gerät abschalten und 20 Minuten stehen lassen. Die
Handspritzpistole muss geöffnet bleiben.
Gerät anschließend leerpumpen.
Hinweis:
Wir empfehlen zum Korrosionsschutz und zur Neutra-
lisierung der Säurereste anschließend eine alkalische Lösung
(z.B. RM 81) über den Reinigungsmittelbehälter durch das Gerät
zu pumpen.
Das Gerät soll in frostgeschützten Räumen aufgestellt werden.
Bei Frostgefahr, z. B. bei Installationen im Außenbereich, muss
das Gerät entleert und mit Frostschutzmittel durchgespült wer-
den.
Wasserzulaufschlauch und Hochdruckschlauch abschrauben.
Gerät max. 1 Minute laufen lassen bis Pumpe und Leitungen
leer sind.
Zulaufleitung am Kesselboden abschrauben und Heizschlan-
ge leerlaufen lassen.
Hinweis:
Handhabungsvorschriften des Frostschutzmittelher-
stellers beachten.
Handelsübliches Frostschutzmittel in Schwimmerbehälter bis
oben hin einfüllen.
Auffangbehälter unter den Hochdruck-Ausgang stellen.
Gerät einschalten und so lange laufen lassen, bis die Was-
sermangelsicherung Schwimmerbehälter anspricht und das
Gerät abschaltet.
Dadurch wird auch ein gewisser Korrosionsschutz erreicht.
Wartungsvertrag
Siebe reinigen
Sieb im Wassereingang
Sieb in der Wassermangelsicherung
Elektrodeneinstellung
A
B
C
a
HDS 9/14
4,5±0,5
3,5±0,5
3+0,5
60°
HDS 12/14
3,5±0,5
3,5±0,5
3+0,5
60°
2.
1.
A
B
C
a
Entkalken
Durchführung
Frostschutz
Wasser ablassen
Gerät mit Frostschutzmittel durchspülen
12
DE
-
11
Gefahr
Verletzungsgefahr! Vor allen Wartungs- und Reparaturarbeiten
ist der Hauptschalter auszuschalten bzw. der Cekon-Stecker
auszustecken.
*
Hinweis
Anlage aus- und einschalten, um die Brennerstörung zu entriegeln.
**
Hilfe bei Störungen
Störung
Mögliche Ursache
Behebung
von wem
Gerät läuft nicht, Kontroll-
lampe Betriebsbereitschaft
(F) leuchtet nicht
Keine Spannung am Gerät vor-
handen.
Elektrisches Netz überprüfen.
Elektriker
Sicherheitszeitschaltung in Funktion. Gerät am Geräteschalter kurz aus-, dann
wieder einschalten.
Bediener
Sicherung im Steuerkreis (F3)
durchgebrannt. Sicherung ist im
Steuertrafo (T2) enthalten.
Neue Sicherung einsetzen, bei Wiederdurch-
brennen Überlastungsgrund beseitigen.
Kundendienst
Druckschalter HD (Hochdruck)
oder ND (Niederdruck) defekt.
Druckschalter prüfen.
Kundendienst
Timer Modul (A1) defekt.
Anschlüsse überprüfen, bei Bedarf austau-
schen.
Kundendienst
Abgasthermostat (B8) hat ausge-
löst.
Anlage abkühlen lassen. Abgasthermostat
(B8) entriegeln. Ursache der Störung besei-
tigen.
Kundendienst
+ Kontrolllampe Motorüber-
hitzung (G) leuchtet
Thermofühler (WS) im Motor oder
Überstromschutzschalter (F1) hat
ausgelöst.
Überlastungsgrund beseitigen.
Kundendienst
Wassermangelsicherung im
Schwimmerbehälter hat ange-
sprochen.
Wassermangel beseitigen.
Bediener
Brenner zündet nicht oder
Flamme erlischt während
des Betriebes
Temperaturregler (B) zu niedrig
eingestellt.
Temperaturregler höher einstellen.
Bediener
Geräteschalter steht nicht auf
Brenner.
Brenner einschalten.
Bediener
Wassermangelsicherung des Si-
cherheitsblocks hat abgeschaltet.
Ausreichende Wasserzufuhr sicherstellen.
Gerät auf Dichtheit überprüfen.
Bediener
Kontrolllampe Brennerstö-
rung (E) leuchtet auf *
Brennstoffbehälter leer.
Brennstoff auffüllen.
Bediener
Brennstofffilter verstopft.
Brennstofffilter reinigen, dazu Brennstofffil-
ter herausdrehen, reinigen und wieder ein-
drehen.
Bediener
Fotozelle Flammüberwachung
falsch ausgerichtet oder defekt.
Korrekten Sitz der Fotozelle prüfen. **
Bediener
Kein Zündfunke vorhanden
(durch Schauglas im Brennerde-
ckel feststellbar).
Elektrodenabstand Zündtransformator und
Zündkabel überprüfen. Abstand berichtigen
oder defekte Teile austauschen. Falls erfor-
derlich säubern.
Kundendienst
Brennermotor ist blockiert.
Blockierung beheben. Stopfen (I) am Be-
dienfeld entfernen und Überstromschutz-
schalter entriegeln. Stopfen wieder
einsetzen.
Kundendienst
Störung an Brennstoffpumpe oder
Brennstoffmagnetventil.
Teile prüfen und defekte Teile austauschen. Bediener
13
DE
-
12
Störung
Mögliche Ursache
Behebung
von wem
Kontrolllampe Verkalkungs-
schutz (H) leuchtet
Enthärter verbraucht.
Enthärter nachfüllen.
Bediener
Ungenügende oder keine
Reinigungsmittelförderung
Dosierventil auf Stellung „0“.
Reinigungsmittel-Dosierventil einstellen.
Bediener
Reinigungsmittelfilter verstopft
oder Tank leer.
Säubern bzw. füllen.
Bediener
Reinigungsmittel-Saugschläuche,
-Dosierventil oder -Magnetventil
undicht oder verstopft.
Prüfen, reinigen.
Bediener
Elektronik oder Magnetventil defekt.
Austauschen
Kundendienst
Gerät kommt nicht auf vollen
Druck
Düse ausgespült.
Düse ersetzen.
Bediener
Reinigungsmitteltank leer.
Reinigungsmittel nachfüllen.
Bediener
Nicht genügend Wasser.
Für ausreichende Wasserzufuhr sorgen.
Bediener
Sieb am Wassereingang verstopft. Prüfen, Sieb ausbauen und reinigen.
Bediener
Reinigungsmitteldosierventil undicht. Prüfen und abdichten.
Bediener
Reinigungsmittelschläuche undicht. Austauschen
Bediener
Schwimmerventil klemmt.
Auf Gängigkeit überprüfen.
Bediener
Sicherheitsventil undicht.
Einstellung prüfen, bei Bedarf neue Dichtung
einbauen.
Kundendienst
Mengenregulierventil undicht oder
zu niedrig eingestellt.
Ventilteile prüfen, bei Beschädigung austau-
schen, bei Verschmutzung reinigen.
Kundendienst
Magnetventil für Druckentlastung
defekt.
Magnetventil austauschen.
Kundendienst
Hochdruckpumpe klopft, Ma-
nometer schwingt stark
Schwingungsdämpfer defekt.
Schwingungsdämpfer austauschen.
Kundendienst
Wasserpumpe saugt geringfügig
Luft an.
Saugsystem überprüfen und Undichtheit be-
heben.
Bediener
Gerät schaltet bei geöffneter
Handspritzpistole laufend
aus/ein
Düse im Strahlrohr verstopft.
Prüfen, reinigen.
Bediener
Gerät ist verkalkt.
Siehe Abschnitt „Entkalken“.
Bediener
Schaltpunkt des Überströmers hat
sich verstellt.
Überströmer neu einstellen lassen.
Kundendienst
Sieb in der Wassermangelsiche-
rung verstopft.
Prüfen, Sieb ausbauen und reinigen.
Bediener
Gerät schaltet bei geschlos-
sener Handspritzpistole nicht
aus
Pumpe ist nicht vollständig entlüftet. Geräteschalter auf „0“ stellen und
Handspritzpistole ziehen, bis keine Flüssig-
keit aus der Düse austritt. Dann Gerät wieder
einschalten. Diesen Vorgang wiederholen,
bis der volle Betriebsdruck erreicht ist.
Bediener
Sicherheitsventil bzw. Sicherheits-
ventildichtung defekt.
Sicherheitsventil bzw. Dichtung ersetzen.
Kundendienst
14
DE
-
13
Reinigungsmittel erleichtern die Reinigungsaufgaben. In der Ta-
belle ist eine Auswahl von Reinigungsmitteln dargestellt. Vor Ver-
arbeitung von Reinigungsmitteln müssen unbedingt die Hinweise
auf der Verpackung beachtet werden.
* = nur für kurzen Einsatz, Zweischrittmethode, mit Klarwasser
nachspülen
** = ASF = abscheidefreundlich
*** = zum Vorsprühen eignet sich Foam-Star 2000
Zubehör
Reinigungsmittel
Anwendungsbereich
Verschmutzung, Anwendungsart
Reinigungsmittel
pH-Wert (ca.) 1 %-ige
Lösung in Leitungs-
wasser
Kfz-Gewerbe, Tankstel-
len, Spedition, Fuhrparks
Staub, Straßenschmutz, Mineral-
öle (auf lackierten Flächen)
RM 55 ASF **
8
RM 22/80-Pulver ASF
12/10
RM 81 ASF
9
RM 803 ASF
10
RM 806 ASF
11
Fahrzeugkonservierung
RM 42 Kaltwachs für Hochdruck-Reiniger
8
RM 820-Heißwachs ASF
7
RM 821-Sprühwachs ASF
6
RM 824-Super-Perlwachs ASF
7
RM 44 Gel-Felgenreiniger
9
Metallverarbeitende In-
dustrie
Öle, Fette, Staub und ähnliche
Verschmutzungen
RM 22-Pulver ASF
12
RM 55 ASF
8
RM 81 ASF
9
RM 803 ASF
10
RM 806 ASF
12
RM 31 ASF (starke Verschmutzung)
12
RM 39-flüssig (mit Korrosionsschutz)
9
Lebensmittelverarbeiten-
de Betriebe
Leichte bis mittlere Verschmutzun-
gen, Fette/Öle, Großflächen
RM 55 ASF
8
RM 81 ASF
9
RM 882 Gelschaum OSC
12
RM 58 ASF (Schaumreinigungsmittel)
9
RM 31 ASF *
12
Rauchharz
RM 33 *
13
Reinigung und Desinfektion
RM 732
9
Desinfektion
RM 735
7...8
Kalk, mineralische Ablagerungen
RM 25 ASF *
2
RM 59 ASF (Schaumreinigung)
2
Sanitärbereich ***
Kalk, Urinstein, Seifen etc.
RM 25 ASF * (Grundreinigung)
2
RM 59 ASF (Schaumreinigung)
2
RM 68 ASF
5
15
DE
-
14
–
Die Heizeinrichtung des Gerätes ist eine Feuerungsanlage.
Bei der Aufstellung sind die örtlich geltenden Vorschriften zu
beachten.
–
Nur geprüfte Schornsteine/Abgasleitungen verwenden.
Gefahr
Verbrühungsgefahr! Dieses Symbol muss an jeder Entnahme-
stelle angebracht werden.
Bei der Aufstellung eines Heizöltanks im Geräteaufstellungsraum
sind die Vorschriften über die Lagerung brennbarer Flüssigkeiten
zu beachten (zu beziehen beim Carl Heymanns Verlag, Köln,
www.heymanns.com).
Bei der Verlegung der Brennstoffleitungen ist untenstehendes
Diagramm zu beachten.
Vorzusehen ist ein 2-Strang-System, Vor- und Rücklauf.
–
Maximaler Heizölvordruck: 0,05 MPa (0,5 bar)
–
Maximaler Unterdruck zwischen Heizölfilter und Pumpe: 0,04
MPa (0,4 bar)
Saugrohrlänge in m
Ansaughöhe in m
Mögliche Saugrohrlänge bei Rohren mit NW 8
–
Jedes Gerät muss an einen eigenen Kamin angeschlossen
werden.
–
Die Abgasführung ist entsprechend der örtlichen Vorschriften
und in Abstimmung mit dem zuständigen Schornsteinfeger-
meister auszuführen.
Wir empfehlen den Einbau eines Zugunterbrechers zwischen An-
lage und Kamin.
Hinweis
Um die vorgeschriebenen Verbrennungswerte zu erreichen,
muss der bei den Technischen Daten angegebene Kaminzug
eingehalten werden.
–
Vor der Montage ist die Wand auf Tragfähigkeit hin zu prüfen.
Das mitgelieferte Befestigungsmaterial ist für Beton geeignet.
Für Hohlraumbaustein-, Ziegelbaustein- und Gasbetonwän-
de sind geeignete Dübel und Schrauben zu verwenden, z. B.
Injektionsanker (Bohrbild siehe Maßblatt).
–
Bild 3 - Pos. 19 und 23
Das Gerät darf nicht starr mit dem Wasserleitungs- oder dem
Hochdruckrohrleitungsnetz verbunden werden. Die Verbin-
dungsschläuche sind unbedingt zu montieren.
–
Bild 3 - A
Zwischen dem Wasserleitungsnetz und dem Verbindungs-
schlauch ist ein Absperrhahn vorzusehen.
Bei der Montage der Hochdruckleitungen sind die jeweiligen na-
tionalen Vorschriften des Gesetzgebers zu beachten.
–
Der Druckabfall in der Rohrleitung muss unter 1,5 MPa lie-
gen.
–
Die fertige Rohrleitung muss mit 28 MPa geprüft werden.
–
Die Isolation der Rohrleitung muss bis 155 °C temperaturbe-
ständig sein.
Bild 3 - Pos. 20
Die Behälter sind so aufzustellen, dass sich der untere Niveau-
spiegel des Reinigungsmittels nicht mehr als 1,5 m unter dem
Geräteboden und der obere Niveauspiegel nicht über dem Ge-
räteboden befindet.
Bild 3 - B und Pos. 19
Wassereingang mit einem passenden Wasserschlauch an
das Wasserleitungsnetz anschließen.
–
Die Leistung der Wasserversorgung muss mindestens 1300
l/h bei mindestens 0,1 MPa betragen.
–
Die Wassertemperatur muss unter 30 °C liegen.
Vorsicht
Die maximal zulässige Netzimpedanz am elektrischen An-
schlusspunkt (siehe Technische Daten) darf nicht überschritten
werden. Bei Unklarheiten bezüglich der an Ihrem Anschluss-
punkt vorliegenden Netzimpedanz setzen Sie sich bitte mit Ihrem
Energieversorgungsunternehmen in Verbindung.
Hinweis:
Einschaltvorgänge erzeugen kurzzeitig Spannungab-
senkungen. Bei ungünstigen Netzbedingungen können Beein-
trächtigungen anderer Geräte auftreten.
–
Anschlusswerte siehe Technische Daten und Typenschild.
–
Der elektrische Anschluss muss von einem Elektroinstalla-
teur ausgeführt werden und IEC 60364-1 entsprechen.
–
Stromführende Teile, Kabel und Geräte im Arbeitsbereich
müssen in einwandfreiem Zustand strahlwassergeschützt
sein.
Zur Vermeidung von Elektrounfällen empfehlen wir, Steckdosen
mit vorgeschaltetem Fehlerstrom-Schutzschalter (max. 30 mA
Nennauslöse-Stromstärke) zu benutzen.
Elektrischen Anschluss herstellen.
Für das Abschalten des stationären Hochdruckreinigers ist ein
abschließbarer Hauptschalter (Bild 3 - Pos. 6) an ungefährdeter
Stelle leicht zugänglich anzubringen.
Die Kontaktöffnungsweite des Hauptschalters muss mindestens
3 mm betragen.
Anlageninstallation
Nur für autorisiertes Fachpersonal!
Allgemein
Bei Arbeitstemperatu-
ren über 100 °C,
Hochdruckdüse
durch Dampfdüse er-
setzen.
Heizöltank
Brennstoffleitungen
Rauchgasrohr
!
Wandmontage
Montage der Hochdruckleitungen
Reinigungsmittelbehälter aufstellen
Wasserversorgung
Elektrischer Anschluss
Fest installierter elektrischer Anschluss
16
DE
-
15
Cekon-Stecker an Anschlusskabel des Gerätes montieren.
Cekon-Stecker in Steckdose stecken.
Für das Abschalten des stationären Hochdruckreinigers muss
der Cekon-Stecker zur Netztrennung leicht zugänglich sein.
Vor dem ersten Gebrauch die Spitze des Deckels vom Ölbe-
hälter auf der Wasserpumpe abschneiden.
Gefahr
Explosionsgefahr! Nur Dieselkraftstoff oder leichtes Heizöl einfül-
len. Ungeeignete Brennstoffe, z. B. Benzin, dürfen nicht verwen-
det werden.
Brennstoffbehälter befüllen.
Vorsicht
Heißwasserbetrieb ohne Brennstoff führt zur Beschädigung der
Brennstoffpumpe. Vor dem Heißwasserbetrieb Brennstoffversor-
gung sicherstellen.
Bild 3 - Pos. 14
Hochdruckschlauch mit Handspritzpistole und Strahlrohr ver-
binden und am Hochdruckausgang des Gerätes oder am
Hochdruckrohrleitungsnetz anschließen.
Düsenmundstück (b) mit Überwurfmutter (a) am Strahlrohr
(d) befestigen. Darauf achten, dass der Dichtring (c) sauber
in der Nut liegt.
Feder (c) von der Deckelstütze (b) des Enthärterbehälters (a)
entfernen.
Behälter mit Kärcher-Enthärterflüssigkeit RM 110 (Best.-Nr.
2.780-001) füllen.
Gefahr
Gefährliche elektrische Spannung! Einstellung darf nur durch
eine Elektro-Fachkraft erfolgen.
Die örtliche Wasserhärte ermitteln:
–
Über das örtliche Versorgungsunternehmen,
–
mit einem Härteprüfgerät (Best.-Nr. 6.768-004).
Gerätehaube abnehmen.
Schaltkasten am Bedienfeld öffnen.
Drehpotentiometer (a) je nach Wasserhärte einstellen. Aus
der Tabelle kann die richtige Einstellung entnommen werden.
Beispiel:
Für eine Wasserhärte von 15 °dH Skalenwert 6 am Drehpotenti-
ometer einstellen. Daraus ergibt sich eine Pausenzeit von 31 Se-
kunden, d.h. alle 31 Sekunden öffnet kurz das Magnetventil.
Die Einstellung der Betriebsbereitschaftszeit erfolgt auf der grö-
ßeren Platine an der linken Seitenwand des Elektroschrankes.
Die Betriebsbereitschaftszeit ist werkseitig auf die Minimalzeit
von 2 Minuten eingestellt und kann bis zur Maximalzeit von 8 Mi-
nuten erhöht werden.
Elektrischer Anschluss mit Stecker/Steckdose
Erstinbetriebnahme
Maßnahmen vor Inbetriebnahme
Schutz vor Verkalkung
a
b
c
d
b
c
a
Wasserhärte (°dH)
5
10
15
20
25
Skala am Drehpotentiometer
8
7
6
5
4,5
Pausenzeit (Sekunden)
50
40
31
22
16
Verstellen der Betriebsbereitschaftszeit
a
8 7 6 5 4 3 2 1
S2
min.
max.
17
DE
-
16
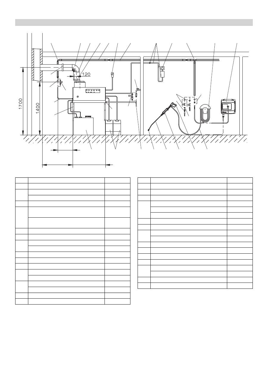
Bild 3
Installationsmaterial
1 2 3 4 5 6 7 8 9 10 12 13
21 20 19 18 17 16 15 14
11b 11a
11d
11c
A
B 19a
24
11a
23
22
11b
1060 (1124)
~1050
600
Pos. Installationsmaterial
Bestell-Nr.
1
Winkelverschraubung
6.386-356
2
Rauchgasrohrkrümmer 90°
7.234-605
Rauchgasrohrkrümmer 45°
7.234-604
3
Rauchgasrohr
7.234-603
4
Zugunterbrecher Rauchgasrohr HDS 9/
14-4
4.656-080
Zugunterbrecher Rauchgasrohr HDS 12/
14-4
4.656-079
5
Wärmeisolation
6.286-114
6
Hauptschalter
6.631-455
7
Rohrleitungssatz, Stahl verzinkt
2.420-004
Rohrleitungssatz, Edelstahl
2.420-006
8
Teilesatz Fernsteuerung
2.744-008
9
Teilesatz Not-Aus-Schalter
2.744-002
10
T-Verschraubung
6.386-269
11a
Anschlussstutzen, Messing
2.638-180
Anschlussstutzen, Edelstahl
2.638-181
11b
Absperrhahn NW 8, Stahl verzinkt
4.580-144
Absperrhahn NW 8, Edelstahl
4.580-163
11c
Schnellkupplungsfestteil
6.463-025
11d
Schnellkupplungslosteil
6.463-023
Pos. Installationsmaterial
Bestell-Nr.
12
Schlauchhalter
2.042-001
13
Schlauchtrommel
2.637-238
14
Hochdruckschlauch 10 m
6.388-083
15
Handspritzpistole Easypress
4.775-463
Drehregler HDS 9/14-4
4.775-470
Drehregler HDS 12/14-4
4.775-471
16
Strahlrohrhalter
2.042-002
17
Strahlrohr
4.760-550
18
Düsenmundstück HDS 9/14-4
2.883-402
Düsenmundstück HDS 12/14-4
2.883-406
19
Wasserschlauch
4.440-282
19a
Magnetventil Wasserzulauf
4.743-011
20
Reinigungsmittel-Tank, 60 l
5.070-078
21
Heizöl-Tank 600 l
6.392-050
22
Teilesatz Wandkonsole
2.053-005
Teilesatz Bodengestell
2.210-008
23
Hochdruckschlauch
6.389-028
24
Rohrschelle
6.373-374
18
DE
-
17
Hiermit erklären wir, dass die nachfolgend bezeichnete Maschine
aufgrund ihrer Konzipierung und Bauart sowie in der von uns in
Verkehr gebrachten Ausführung den einschlägigen grundlegen-
den Sicherheits- und Gesundheitsanforderungen der EG-Richtli-
nien entspricht. Bei einer nicht mit uns abgestimmten Änderung
der Maschine verliert diese Erklärung ihre Gültigkeit.
5.957-054
Die Unterzeichnenden handeln im Auftrag und mit Vollmacht der
Geschäftsführung.
Dokumentationsbevollmächtigter:
S. Reiser
Alfred Kärcher GmbH & Co. KG
Alfred-Kärcher-Str. 28 - 40
71364 Winnenden (Germany)
Tel.: +49 7195 14-0
Fax: +49 7195 14-2212
Winnenden, 2014/02/01
In jedem Land gelten die von unserer zuständigen Vertriebs-Ge-
sellschaft herausgegebenen Garantiebedingungen. Etwaige Stö-
rungen an dem Gerät beseitigen wir innerhalb der Garantiefrist
kostenlos, sofern ein Material- oder Herstellungsfehler die Ursa-
che sein sollte.
EG-Konformitätserklärung
Produkt:
Hochdruckreiniger mit
Dampfstufe
Typ:
1.698-xxx
Typ:
1.699-xxx
Einschlägige EG-Richtlinien
97/23/EG
2006/42/EG (+2009/127/EG)
2004/108/EG
Kategorie der Baugruppe
II
Konformitätsverfahren
Modul H
Heizschlange
Konformitätsbewertung Modul H
Sicherheitsventil
Konformitätsbewertung Art. 3 Abs. 3
Steuerblock
Konformitätsbewertung Modul H
diverse Rohrleitungen
Konformitätsbewertung Art. 3 Abs. 3
Angewandte harmonisierte Normen
EN 55014–1: 2006+A1: 2009+A2: 2011
EN 55014–2: 1997+A1: 2001+A2: 2008
EN 60335–1
EN 60335–2–79
EN 61000–3–2: 2006+A1: 2009+A2: 2009
HDS 12/14:
EN 61000–3–3: 2008
HDS 9/14:
EN 61000–3–11: 2000
Angewandte Spezifikationen:
AD 2000 in Anlehnung
TRD 801 in Anlehnung
Name der benannten Stelle:
für 97/23/EG
TÜV Rheinland Industrie Service GmbH
Am Grauen Stein
51105 Köln
Kenn-Nr. 0035
CEO
Head of Approbation
Garantie
19
DE
-
18
Kundendienst
Anlagentyp:
Herstell-Nr.:
Inbetriebnahme am:
Prüfung durchgeführt am:
Befund:
Unterschrift
Prüfung durchgeführt am:
Befund:
Unterschrift
Prüfung durchgeführt am:
Befund:
Unterschrift
Prüfung durchgeführt am:
Befund:
Unterschrift
20
DE
-
19
Hinweis:
Die Prüffristempfehlungen entsprechend der jeweiligen
nationalen Anforderungen des Betreiberlandes sind zu beachten.
Wiederkehrende Prüfungen
Prüfung durchgeführt durch:
Äußere Prüfung
Innere Prüfung
Festigkeitsprüfung
Name
Unterschrift der befähigten
Person/Datum
Unterschrift der befähigten
Person/Datum
Unterschrift der befähigten
Person/Datum
Name
Unterschrift der befähigten
Person/Datum
Unterschrift der befähigten
Person/Datum
Unterschrift der befähigten
Person/Datum
Name
Unterschrift der befähigten
Person/Datum
Unterschrift der befähigten
Person/Datum
Unterschrift der befähigten
Person/Datum
Name
Unterschrift der befähigten
Person/Datum
Unterschrift der befähigten
Person/Datum
Unterschrift der befähigten
Person/Datum
Name
Unterschrift der befähigten
Person/Datum
Unterschrift der befähigten
Person/Datum
Unterschrift der befähigten
Person/Datum
Name
Unterschrift der befähigten
Person/Datum
Unterschrift der befähigten
Person/Datum
Unterschrift der befähigten
Person/Datum
Name
Unterschrift der befähigten
Person/Datum
Unterschrift der befähigten
Person/Datum
Unterschrift der befähigten
Person/Datum
Name
Unterschrift der befähigten
Person/Datum
Unterschrift der befähigten
Person/Datum
Unterschrift der befähigten
Person/Datum
Name
Unterschrift der befähigten
Person/Datum
Unterschrift der befähigten
Person/Datum
Unterschrift der befähigten
Person/Datum
Name
Unterschrift der befähigten
Person/Datum
Unterschrift der befähigten
Person/Datum
Unterschrift der befähigten
Person/Datum
Name
Unterschrift der befähigten
Person/Datum
Unterschrift der befähigten
Person/Datum
Unterschrift der befähigten
Person/Datum
21
DE
-
1
Please read and comply with these original instruc-
tions prior to the initial operation of your appliance and
store them for later use or subsequent owners.
–
Before first start-up it is definitely necessary to read the safety
indications Nr. 5.956-309.0!
–
In case of transport damage inform vendor immediately
Notes about the ingredients (REACH)
You will find current information about the ingredients at:
www.kaercher.com/REACH
Danger
Immediate danger that can cause severe injury or even death.
몇
Warning
Possible hazardous situation that could lead to severe injury or
even death.
Caution
Possible hazardous situation that could lead to mild injury to per-
sons or damage to property.
High-pressure jets can be dangerous if improperly
used. The jet may not be directed at persons, animals,
live electrical equipment or at the appliance itself.
–
Please follow the national rules and regulations for fuel spray
jets of the respective country.
–
Please follow the national rules and regulations for accident
prevention of the respective country. Fuel spray jets must be
tested regularly and the results of these tests must be docu-
mented in writing.
–
The heating appliance of the machine is an ignition plant. All
national laws and regulations about heating systems must
also be followed.
–
If the plant is operated in rooms, then there should be ade-
quate measures for safely diverting the exhaust gases out of
the room (smoke gas pipes without draught interceptors).
Further, there must also be adequate supply of fresh air.
–
As per the applicable national guidelines, the first time this
high-pressure cleaner must be taken into operation by a
skilled person. KÄRCHER has already performed this initial
start-up for you and has documented it accordingly. The doc-
umentation can be requested at your KÄRCHER partner.
Please have the part and plant number of the appliance avail-
able when enquiring about the documentation.
–
We would like to point out that the appliance must be repeat-
edly checked by a skilled person as prescribed by the appli-
cable national regulations. Please contact your KÄRCHER
partner.
–
Please follow the safety instructions which are attached to the
used detergents (normally on the packing label).
Contents
Environmental protection . .
EN . . 1
Symbols in the operating instructions
EN . . 1
Symbols on the machine. . .
EN . . 1
General notes on safety . . .
EN . . 1
Proper use. . . . . . . . . . . . . .
EN . . 2
Function . . . . . . . . . . . . . . .
EN . . 2
Safety Devices . . . . . . . . . .
EN . . 2
Device elements . . . . . . . . .
EN . . 3
Start up . . . . . . . . . . . . . . . .
EN . . 4
Operation . . . . . . . . . . . . . .
EN . . 4
Shutting down . . . . . . . . . . .
EN . . 6
Shutdown . . . . . . . . . . . . . .
EN . . 6
Storage . . . . . . . . . . . . . . . .
EN . . 6
Transport. . . . . . . . . . . . . . .
EN . . 6
Technical specifications. . . .
EN . . 7
Maintenance and care. . . . .
EN . . 9
Troubleshooting . . . . . . . . .
EN . 11
Accessories. . . . . . . . . . . . .
EN . 13
Installing the plant . . . . . . . .
EN . 14
EC Declaration of Conformity
EN . 17
Warranty . . . . . . . . . . . . . . .
EN . 17
Customer Service . . . . . . . .
EN . 18
Recurring tests . . . . . . . . . .
EN . 19
Environmental protection
The packaging material can be recycled. Please do
not throw the packaging material into household
waste; please send it for recycling.
Old appliances contain valuable materials that can be
recycled; these should be sent for recycling. Batteries,
oil, and similar substances must not enter the environ-
ment. Please dispose of your old appliances using ap-
propriate collection systems.
Please do not release engine oil, fuel oil, diesel and petrol into
the environment Protect the ground and dispose of used oil in an
environmentally-clean manner.
Kärcher detergents are easy-to-dispose. This means that the
functioning of an oil separator is not hampered. Please find a list
of recommended detergents in the chapter "Accessories".
Symbols in the operating instructions
Symbols on the machine
Risk of burns! Beware of hot components.
General notes on safety
22
EN
-
2
Before installing the machine, it is necessary to get the approval
of the local chief chimney cleaner.
The statutory requirements of civil engineering laws, trade laws
and emission control norms must be followed at the time of instal-
lation. We wish to bring to your notice the following statutory reg-
ulations, guidelines and standards:
–
The device may only be installed by a specialized company
according to the national regulations.
–
All national laws and regulations about installation of electri-
cal appliances must also be followed.
–
Only Customer Service engineers trained by Kärcher may
perform settings and carry out maintenance tasks and re-
pairs.
–
The local guidelines must be followed while installing the
chimney.
The work station is located at the operating field. Depending on
the plant installation, other work-stations are located at the ac-
cessories (spraying units) that are connected to the feeder
points.
–
Wear protective clothing and safety goggles to protect against
splash back containing water or dirt.
The machine is used for removing dirt from surfaces using a free-
flowing water jet. It is mainly used for cleaning machines, vehicles
and facades.
Danger
Risk of injury! Follow the respective safety regulations when op-
erating at gas stations or other dangerous areas.
–
Cold water reaches the suction side of the high pressure
pump via the engine cooling coil and the swimmer tank. The
water softening agent is added in the swimmer tank. The
pump transports the water and the sucked detergent through
the continuous heater. The proportion of detergent in the wa-
ter can be adjusted using the dosing valve. The continuous
heater is heated by a heater.
–
The high pressure outlet is connected to a high pressure net-
work existing in the building. The hand-spray gun is connect-
ed to the feeder points of this network using a high pressure
hose.
Safety devices serve for the protection of the user and must not
be put out of operation or bypassed with respect to their function.
The safety mechanism against lack of water prevents the high
pressure pump from being switched on when there is no water.
The safety mechanism against lack of water prevents the heater
from over-heating when there is no water. The burner operates
only when there is adequate water supply.
The pressure switch switches off the machine when the working
pressure is exceeded. Do not change the setting.
The safety valve opens when there is a problem in the pressure
switch. This valve is set and sealed in the factory. Do not change
the setting.
In case of fuel shortage or problems with the burner, the flame
monitor switches off the burner. The indicator lamp Burner failure
(E) glows.
If the burner engine is blocked, the switch for protection against
over-current gets released. The engine of the high pressure
pump is protected through an engine protection switch and a
winding protection switch.
The exhaust thermostat is triggered when the exhaust tempera-
ture exceeds 300 °C. The appliance is switched off.
When the machine is switched off using the hand-spray gun, a
solenoid valve installed in the high pressure system opens when
the operations stand-by time has elapsed; this causes the pres-
sure to fall.
Statutory Requirements, Guidelines and Rules
Work-stations
Personal safety gear
Wear ear plugs to protect your ears against
hearing loss while cleaning parts that produce
high sound levels.
Proper use
Please do not let mineral oil contaminated waste water reach
soil, water or the sewage system. Perform engine cleaning and
bottom cleaning therefore only on specified places with an oil
trap.
Function
Safety Devices
Safety mechanism against lack of water in swimmer
tank
Safety mechanism against lack of water in safety
block
Pressure switch
Safety valve
Flame monitoring
Over-current protection
Exhaust thermostat
Pressure release in the high pressure system
23
EN
-
3
Figure 1
1 Burner
2 Manometer
3 Fresh water inlet with sieve
4 High-pressure outlet
5 Fuel pipe feeder
6 Fuel pipe backflow
7 Detergent suck hose I
8 Detergent suck hose II (optional)
9 Softener container
10 Power supply
11 Float tank
12 Operating field
Figure 2
A Power switch
B Temperature controller
C Dosage valve I for detergent
D Dosage valve II for detergent (optional)
E Indicator lamp burner failure
F “Ready for use” indicator lamp
G Indicator lamp for engine over-heating
H Indicator lamp for protection against calcification
I
Stopper - Releaser for burner engine
Device elements
6
5
7
8
3
4
9
11
10
1
12
2
Operating field
24
EN
-
4
몇
Danger
Risk of injury! Device, tubes, high pressure hose and connections
must be in faultless condition. Otherwise, the appliance must not
be used.
–
For connection values, see technical data and type plate.
–
The electrical connections must be done by an electrician ac-
cording to IEC 60364-1.
The operator must use the appliance correctly. When working
with the appliance, he must consider the local conditions and pay
due care and attention to other persons, in particular children,
who are nearby.
Never leave the appliance unattended when it is in operation.
Danger
–
Danger of scalding by hot water! Do not direct the water jet on
persons or animals.
–
Risk of burns on account of hot surfaces! Do not touch unin-
sulated pipes and hoses when hot water operations are on.
Hold the jet pipe only at the handles. Do not touch the exhaust
holder of the continuous heater.
–
Risk of poisoning or itching on account of detergent! Follow
the given instructions for using detergents. Store detergents
safely and protect them against access by unauthorised per-
sons.
Danger
Risk to life on account of electric shock! Do not direct the water
jet on the following equipment:
–
Electrical appliances and plants,
–
the unit itself,
–
all electricity-carrying parts in the working area.
There is a recoil pressure arising from the water jet that comes
out from the spray pipe. The angular spray pipe brings about an
upward force.
Danger
–
Risk of injury! The recoil pressure of the spray pipe can throw
you off-balance. You may fall. The spray jet can fly off and
cause damage to persons. Search a secure place to stand
and hold the gun firmly. Never hold on tightly to the lever of
the hand spray gun.
–
The jet must not be directed at other persons or directed by
the user at him/herself to clean clothing or footwear.
–
Risk of injury from parts flying off! Flying-off fragments or ob-
jects can injure people or animals. Never direct the water jet
on fragile or loose objects.
–
Risk of accident on account of damage! Clean tyres and
valves from a minimum distance of 30 cm.
몇
Warning
Danger from substances that are harmful to health! Do not spray
the following materials as they can swirl up substances that are
harmful to health:
–
Materials containing asbestos,
–
Materials that could contain substances harmful to health.
Danger
–
Risk of injury on account of the emanating water jet that could
be hot! Only original Kaercher high pressure hoses are opti-
mally suited for the plant. No guarantee can be given if you
use any other hoses.
–
Detergents can prove to be a health hazard! If any detergents
are added, the water let out of the plant is not of potable quality.
–
Risk of hearing impairment while working on noise-making
parts! If so, wear ear plugs.
Danger
Risk of injury on account of the emanating water jet that could be hot!
Danger
Check the high pressure hose for damage before every use.
Please arrange for the immediate replacement of a damaged
high pressure hose.
Check high pressure hose, pipe connections, fittings and wa-
ter jet for damage every time before use.
Check hose coupling to ensure that it sits firmly and is leak-proof.
Caution
Risk of damage on account of dry running.
Check filling level of the detergent container and refill if re-
quired.
Check softener fluid level and refill if necessary.
Turn the appliance switch (A) to "0".
Shut off water supply.
Activate hand spray gun until device is pressure-less.
Turning the quantity regulation valve in clock-wise direction
will result in higher working pressure and larger volume.
Turning the quantity regulation valve in an anti-clockwise di-
rection will result in lower workign pressure and smaller quan-
tities.
Start up
Power connection
Operation
Safety instructions
!
Making the plant ready for operations
Switch-off in case of emergency
Set working pressure and flow rate
Appliance setting
R
25
EN
-
5
Turning the water quantity regulator to the right gives more
water flow and higher working pressure.
Turning the water quantity regulator to the left gives lesser
water flow and lower working pressure.
Open the water supply.
Symbol "Engine on"
Pull the lever of the hand-spray gun and set the appliance
switch (A) to "1" (engine on).
The indicator lamp for operational readiness (F) shows that
the appliance is in stand-by mode and ready to be operated.
Danger
Scalding danger!
Caution
Hot water operations without fuel will cause damage to the fuel
pump. Ensure adequate fuel supply before starting hot water op-
erations.
If required, the burner can also be turned on subsequently.
Symbol "Burner on"
Turn the appliance switch (A) to "Burner on".
Set the desired water temperature on the thermostat (B).
Maximum temperature is 98 °C.
Danger
Scalding danger! The operating pressure must not exceed 3,2
MPa (32 bar) when operating with temperatures above 98 °C.
For shifting from hot water to steam operations, first cool down
the machine and switch it off. Then do the change-over as fol-
lows:
Replace the high pressure nozzle with the steam nozzle
(accessory).
Set the thermostat to 150 °C.
Set the water flow regulation valve of the high pressure pump
to minimum water flow (turn in the anti-clockwise direction).
Set the water flow regulation valve of the high pressure pump
to maximum water flow (turn in the clockwise direction).
Set the water flow regulator at the Easy press gun to minimum
water flow by turning it towards the left.
–
The appliance will switch off if the lever of the hand-spray gun
is released during operations.
–
The appliance will automatically start again when you open
the gun again within the stand-by period (2 ... 8 minutes).
–
If the stand-by period is exceeded, the safety time mecha-
nism switches off the pump and the burner. The indicator
lamp Operations Stand-by (F) goes off.
–
To restart the appliance, set the appliance switch to "0" and
then switch on the appliance again. If the appliance is operat-
ed using remote control, the appliance can be restarted by us-
ing the corresponding switch of the remote control device.
–
Vehicle tyres are only cleaned using the flat spray nozzle
((25°) from a minimum spraying distance of 30 cm. The round
spray should never be used to clean tyres.
The following nozzles can be selected for all other tasks:
Use the following nozzles if the pipe length is more than 20 m or
for more than 2 x 10 m high pressure hose NW8:
Settings at the Easy press gun (optional)
Operating with cold water
Operating with hot water
Operating with steam
Order No.
Type
4.766-023
HDS 9/14
4.766-024
HDS 12/14
Without Easy press gun
With Easy press gun (optional)
Operations stand-by
Selecting the nozzle
Dirt
Nozzle Spray an-
gle
Part no.
6.415
Pressure
[MPa]
Recoil [N]
HDS 9/14
strong
00060
0°
-257
14
44
medium
25060
25°
-295
light
40060
40°
-301
HDS 12/14
strong
00080
0°
-150
14
55
medium
25080
25°
-152
light
40080
40°
-153
Dirt
Nozzle Spray an-
gle
Part no.
6.415
Pressure
[MPa]
Recoil [N]
HDS 9/14
strong
0075
0°
-419
10
37
medium
2575
25°
-421
light
4075
40°
-422
HDS 12/14
strong
0010
0°
-082
10
46
medium
2510
25°
-252
light
4010
40°
-253
26
EN
-
6
–
Detergents simplify the cleaning task. They are sucked in
from an external detergent tank.
–
The basic model of the appliance is equipped with a dosing
valve (C). A second dosing device (dosing valve D) can also
be procured as special accessory. It is then possible to use
two different detergents.
–
The dosing quantity is set at the detergent dosing valves (C
or D) at the operating panel. The set value corresponds to the
percentage share of the detergent.
–
The outer scale is applicable while using undiluted detergents
(100% CHEM).
–
The inner scale is appliance while using 1 +3 pre-diluted de-
tergents (25 % CHEM + 75 % water).
The following table gives the detergent consumption for the val-
ues on the outer scale:
The exact dosing depends on:
–
Viscosity of the detergent
–
Suction height
–
Flow resistance of the high pressure pipe
If an exact dosing is required, then measure hte detergent quan-
tity that is sucked in (for e.g. by sucking in from a measurement
beaker).
Note:
For list of recommended detergents refer the chapter "Ac-
cessories".
Caution
There can be calcium deposits in the continuous heater if you use
the appliance without softeners.
If the softener tank is empty, the indicator lamp for protection
against calcification (H) begins to glow.
Figure 1 - Pos. 9
Refill the softener tank with softener liquid (RM 110 (2.780-
001).
Danger
Danger of scalding by hot water. After the operation with hot wa-
ter or steam, the device must be operated with opened gun with
cold water for at least two minutes.
If operating with hot water, set the thermostat (B) to the lowest
temperature.
Use the appliance for at least 30 seconds without detergent.
Turn the appliance switch (A) to "0".
Shut off water supply.
Activate hand spray gun until device is pressure-less.
Secure the hand spray gun using the safety catch so that it
doesn't open accidentally.
If the machine is not to be used for a longer period or if it is not
possible to save it in a frost-free environment, then you must take
the following measures (see chapter "Maintenance and care"):
Drain water.
Flush device with anti-freeze agent.
Switch off the main switch and secure it or unplug the Cekon
plug.
Caution
Risk of injury and damage! Note the weight of the appliance in
case of storage.
Caution
Risk of injury and damage! Observe the weight of the appliance
when you transport it.
When transporting in vehicles, secure the appliance accord-
ing to the guidelines from slipping and tipping over.
Detergent dosing
HDS 9/14
Position
0,5
1
5
Detergent quantity [l/h]
14...15 22...24
50
Detergent concentration [%]
1,5
2,5
5
HDS 12/14
Position
0,5
1
5
Detergent quantity [l/h]
10...13 23...27
60
Detergent concentration [%]
1
2
5
Refilling the softener
Shutting down
After operation with detergent
Turn off the appliance
Shutdown
Storage
Transport
27
EN
-
7
Technical specifications
HDS 9/14
HDS 12/14
HDS 12/14
1.698-900
1.699-919
1.699-920
Performance data
Operating pressure of water (using standard nozzle)
MPa (bar)
14 (140)
14 (140)
14 (140)
Max. operating pressure for working with steam (using steam
nozzle)
MPa (bar)
3,2 (32)
3,2 (32)
3,2 (32)
Part no. of steam nozzle
--
4.766-023
4.766-024
4.766-024
Max. excess operating pressure (safety valve)
MPa (bar)
18,5 (185)
18,5 (185)
18,5 (185)
Water flow (can be regulated in a phase-less manner)
l/h (l/min)
500-930
(8,3-15,5)
600-1200
(10-20)
600-1200
(10-20)
Steam flow rate
l/h (l/min)
470 (7,8)
600 (10)
600 (10)
Suction of detergent (can be regulated in a phaseless man-
ner)
l/h (l/min)
0-50 (0-0,8)
0-60 (0-1)
0-60 (0-1)
Water connection
Min. feed volume
l/h (l/min)
1100 (18,3)
1300 (21,7)
1300 (21,7)
Feed pressure (min.)
MPa (bar)
0,1 (1)
0,1 (1)
0,1 (1)
Max. feed pressure
MPa (bar)
0,6 (6)
0,6 (6)
0,6 (6)
Electrical connection
Current type
--
3N~
3N~
3N~
Frequency
Hz
50
50
50
Voltage
V
400
400
230
Connected load
kW
6,4
7,5
8,2
Electrical protection (slow)
A
16
20
32
Type of protection
--
IPX5
IPX5
IPX5
Protective class
--
I
I
I
Maximum allowed net impedance
Ohm
(0,381+j 0,238)
--
--
Power supply
mm
2
5 x 2,5
5 x 2,5
5 x 4
Temperature
Max. feed temperature
°C
30
30
30
Max. operating temperature of hot water
°C
98
98
98
Max. operating temperature of steam
°C
155
155
155
Temperature increase during maximum water flow
°C
56±2
54±2
54±2
Gross heating performance
kW
68
85
85
Fuel consumption
kg/h
5,8
7,1
7,1
Chimney draught
kPa
0,01-0,04
0,01-0,04
0,01-0,04
Exhaust flow - full load
kg/h
124
155
155
Dimensions and weights
Length
mm
1124
1124
1124
Width
mm
558
558
558
Height
mm
687
699
699
Typical operating weight
kg
164,4
178,8
178,8
Values determined as per EN 60355-2-79
Noise emission
Sound pressure level L
pA
dB(A)
74
76
76
Uncertainty K
pA
dB(A)
1
1
1
Hand-arm vibration value
Hand spray gun
m/s
2
2,2
2,3
2,3
Spray lance
m/s
2
1,8
2,1
2,1
Uncertainty K
m/s
2
1,0
1,0
1,0
28
EN
-
8
Specifications sheet
6
8
7
/ 6
9
9
505
558
1124
246
158
1060
47
141
61
77
46
200
300
1018±2
29
EN
-
9
Danger
Risk of injury! The main switch of the vacuum cleaner is to be
switched off or the Cekon plug must be unplugged while carrying
out any repairs or maintenance jobs.
Maintenance and care
Maintenance schedule
Time
Activity
Assembly affected
Performance
of whom
daily
Check hand-
spray gun
Hand spray gun
Check whether the hand-spray gun closes tightly
without any leaks. Check the protection mecha-
nism against accidental switching. Replace de-
fective hand-spray guns.
Operator
Check high pres-
sure hoses
Outlets, hoses towards working
machine
Check hoses to see if there are damages. Re-
place defect hoses immediately. Danger of acci-
dent!
Operator
Check the con-
necting line with
mains plug
Electrical connection with plug/
socket
Check the connecting line with mains plug for
damages. If the power cord is damaged, please
arrange immediately for the exchange by an au-
thorized customer service or a skilled electrician.
Operator
weekly or after 40
operating hours
Check oil level
Oil tank at the pump
If the oil is milky, it needs to be replaced.
Operator
Check oil level
Oil tank at the pump
Check oil level of the pump. Refill oil if required
(Order no. 6.288-016)
Operator
Cleaning the
sieve
Sieve in water inlet
See section "Clean sieve".
Operator
monthly or after
200 operating
hours
Clean and check
the ignition elec-
trodes
Ignition electrodes located in
the lid of the continuous heater
Unscrew the fuel pipe, dismantle the electrode
holder and clean the electrodes. Check the elec-
trode setting according to the diagram on the fol-
lowing page and make the necessary
adjustments.
Trained op-
erator
Check pump
High-pressure pump
Check the pump for leaks. If the leakage is more
than 3 drops per minute, call Customer Service.
Operator
Check for inter-
nal deposits
Entire plant
Operate the machine using the spray pipe with-
out the high pressure nozzle. If the operating
pressure on the manometer of the machine in-
creases to more than 3 MPa, then the plant
needs to be decalcified. The same is applicable
when an operating pressure of more than 0.7 - 1
MPa is detected while operating the machine
without high pressure pipe (water comes out
freely at the high pressure outlet).
Operator
trained in de-
calcification
Cleaning the
sieve
Sieve in the water shortage
safeguard
See section "Clean sieve".
Operator
half-yearly or after
1000 operating
hours
Oil change
High-pressure pump
Drain off oil. Fill in 1 l new oil (Order no. 6.288-
016). Check oil level in the oil tank.
Operator
check, clean
Entire plant
Visual inspection of the plant, check high pres-
sure connections to see that they are not leaking,
check that the over-flow valves are not leaking,
check high pressure hoses, pressure tanks,
clean/ replace fuel filters, remove the rust/ calci-
um deposits from the heating coil, clean/ replace
ignition electrodes, clean/ replace burner nozzle,
adjust burner.
Customer
Service
annual
Safety check
Entire plant
Perform a safety inspection as per the applicable
national rules and regulations for liquid spray jets
of the respective country.
Technical
expert
at least every 5
years, recurring
Pressure test
Entire plant
Perform the pressure test as per manufacturer's
instructions.
Technical
expert
30
EN
-
10
You can enter into a maintenance contract with the concerned
Kaercher Sales Office for the machine.
Figure 1 - Pos. 3
Shut off water supply.
Remove the water inlet hose on the appliance.
Push out the sieve from the connection using a screw-driver.
Cleaning the sieve
Assemble it back in the reverse sequence.
Remove covering panels.
Unscrew the bracket from the safety block.
Turn in screw M8x30 into the sieve.
Pull out the screw and the sieve using pliers.
Cleaning the sieve
Assemble it back in the reverse sequence.
The ignition electrodes must be set according to the following
specifications:
When there are deposits formed in the pipe connections, there is
an increase in the flow resistance; this can cause the pressure
switch to be triggered.
Danger
Risk of explosion due to combustible gases! Smoking strictly pro-
hibited during decalcification. Ensure proper ventilation.
Danger
Risk of burns injury on account of acid! Wear protective glasses
and protective gloves.
According to statutory requirements, only tested and approv ap-
proved boiler decrusting agents may be used.
–
RM 100 (Order No. 6.287-008) dissolves chalk and simple
compounds of chalk and detergents residues.
–
RM 101 (Order No. 6.287-013) dissolves the deposits that
cannot be dissolved using RM 100.
Fill a 20 litre container with 15 l water.
Add one litre of boiler decrusting agent.
Connect the water hose directly to the pump and hang in the
other free end into the container.
Insert the connected spray pipe without nozzle into the con-
tainer.
Open the hand-spray gun and do not close it during the de-
calcification process.
Switch on the appliance switch to "Burner on" until the tem-
perature of approx. 40 °C is reached.
Switch off the appliance and let it stand for 20 minutes. The
hand-spray gun must remain opened.
Then pump out the machine until empty.
Note:
As an anti-corrosion measure and for neutralising the acid
residue, we recommend that you finally pump an alkaline solution
through the machine (for e.g. RM 81) via the detergent tank.
The machine should be stored in frost-free rooms. In case there
is frosting risk, for e.g. if the machine is installed in open areas,
then the machine must first be emptied and flushed using an anti-
freezing agent.
Screw off water supply hose and high pressure hose.
Operate device for max. 1 minute until the pump and conduits
are empty.
Screw off supply hose at boiler bottom and drain heating spi-
ral empty.
Note:
Observe handling instructions of the anti-freeze agent
manufacturer.
Fill in normal anti-frost agents in the swimmer tank right until
the top.
Place the collection trough unter the high pressure exit.
Switch on the appliance and let it run until the safety mecha-
nism against lack of water in swimmer tank gets activated and
the machine is switched off.
A certain corrosion protection is achieved with this as well.
Maintenance contract
Cleaning the sieve
Sieve in water inlet
Sieve in the water shortage safe guard
Electrode setting
A
B
C
a
HDS 9/14
4,5±0,5
3,5±0,5
3+0,5
60°
HDS 12/14
3,5±0,5
3,5±0,5
3+0,5
60°
2.
1.
A
B
C
a
Descaling
Performance
Frost protection
Drain water
Flush device with anti-freeze agent
31
EN
-
11
Danger
Risk of injury! The main switch of the vacuum cleaner is to be
switched off or the Cekon plug must be unplugged while carrying
out any repairs or maintenance jobs.
*
Note
Switch the plant off and then on to undo the burner failure.
**
Troubleshooting
Fault
Possible cause
Remedy
of whom
Machine is not running; indi-
cator lamp for operations
stand-by (F) is not glowing
There is no voltage in the machine. Check electrical mains.
Electrician
Safety time switch is on.
Switch off the appliance switch briefly and
switch it on again.
Operator
Fuse in the control circuit (F3) has
burnt off. Fuse is located in the
control transformer (T2).
Install a new fuse; if it burns out again, then
remove the cause for the over-loading.
Customer Service
Pressure switch HP (High pres-
sure) or LP (Low pressure) is de-
fective.
Check pressure switch.
Customer Service
Timer module (A1) defective.
Check connections, replace if required.
Customer Service
Exhaust thermostat (B8) tripped.
Allow plant to cool down. Unlock the exhaust
thermostat (B8). Eliminate the cause for the
disturbance.
Customer Service
+ Indicator lamp for engine
over-heating (G) is glowing
Thermal sensor (WS) in the engine
or the over-current protection
switch (F1) has got activated.
Rectify cause for over-loading.
Customer Service
The water shortage safeguard in
the swimmer tank has got activat-
ed.
Remove the water shortage.
Operator
Burner does not ignite or the
flame glows off during opera-
tion
Thermostat (B) has been set at a
very low temperature.
Set the thermostat to a higher level.
Operator
Machine switch is not positioned to
burner
Switch on the burner.
Operator
The water shortage safeguard in
the safety block has got switched
off.
Ensure adequate water supply. Check ma-
chine for leaks.
Operator
The indicator lamp Burner
failure (E) glows*
Fuel tank empty.
Refill fuel.
Operator
Fuel filter choked.
Clean fuel filter - to do that remove the fuel fil-
ter by turning, clean it and again turn it in.
Operator
Photo-cell flame monitoring device
has been set wrongly or is defec-
tive.
Check the correct positioning of the photo-
cell. **
Operator
No ignition spark exists (can be de-
tected through the sight glass in
the burner lid).
Check electrodes distance between ignition
transformer and ignition cable. Rectify the
distance or replace defective parts. Clean it,
if necessary.
Customer Service
Ignition motor is locked.
Removing the blockage. Remove the stop-
per (I) on the operating plan and unlock the
over-current protection switch. Insert back
the stopper.
Customer Service
Failure of hte fuel pump or the fuel
solenoid valve.
Check parts and replace defective parts.
Operator
32
EN
-
12
Fault
Possible cause
Remedy
of whom
Indicator lamp for protection
against calcification (H)
glows
The softener is over.
Refill the softener.
Operator
Inadequate or no flow of de-
tergent
Dosing valve to position "0".
Adjusting the detergent metering valve.
Operator
Detergent filter blocked or tank is
empty.
Clean and/or refill.
Operator
Detergent suction hoses, deter-
gent metering valve or detergent
solenoid valve are leaky or
blocked.
Check, clean.
Operator
Electronics or solenoid valve is de-
fective.
Replace
Customer Service
Full pressure does not build
up in the appliance
Flushed the nozzle.
Replace the nozzle.
Operator
Detergent tank is empty.
Refill detergent.
Operator
Not enough water
Ensure adequate water supply.
Operator
Sieve at the water inlet is blocked. Check, dismantle sieve and clean it.
Operator
Leaky detergent dosing valve.
Check and seal it.
Operator
Leaky detergent hoses.
Replace
Operator
Swimmer valve is jammed.
Check and ensure that it moves freely.
Operator
Safety valve is leaky.
Check the setting; install new washers, if re-
quired.
Customer Service
Flow valve is leaky or has been set
at a low value.
Check valve parts; replace damaged parts;
clean the dirt.
Customer Service
Solenoid valve for pressure re-
lease is defective.
Replace solenoid valve.
Customer Service
High pressure pump is
knocking; manometer is
swaying wildly
Vibration dampener is defective.
Replace vibration dampener.
Customer Service
Water pump does not suck in ade-
quate air.
Check suction system and remove leaks.
Operator
Device continuously turns on
and off while hand spray gun
is open
Nozzle in spray pipe is blocked.
Check, clean.
Operator
Appliance is decalcified.
See section "Descaling".
Operator
Switching point of the over-current
monitor has got shifted.
Get somebody to reset the over-current mon-
itor.
Customer Service
Sieve blocked in the water short-
age safe guard.
Check, dismantle sieve and clean it.
Operator
Appliance does not switch off
when the hand-spray gun is
closed
The pump has not been fully vent-
ed.
Set the machine switch to "0" and pull the
hand-spray gun until no fluid comes out of the
nozzle. Turn on the appliance again. Repeat
this procedure until the full operating pres-
sure is reached.
Operator
Safety valve or safety valve wash-
er is defective.
Replace the safety valve and/or the washer. Customer Service
33
EN
-
13
Detergents simplify the cleaning tasks. The table gives a selec-
tion of detergents. Please read the instructions on the packaging
carefully before working with any detergents.
* = only for short use, two-step method, rinse with clean water
** = ASF = easy-to-dispose
*** = Foam-Star 2000 is best suited for initial spraying
Accessories
Detergent
Area of application
Dirt, type of application
Detergent
pH value (approx.) 1
%-solution in tap wa-
ter
Vehicle dealers, fuel sta-
tions, freight forwarders,
car pools
Dust, street dirt, mineral oils (on
painted areas)
RM 55 ASF **
8
RM 22/80- Powder ASF
12/10
RM 81 ASF
9
RM 803 ASF
10
RM 806 ASF
11
Vehicle protection
RM 42 Cold wax for high-pressure cleaners
8
RM 820-Hot wax ASF
7
RM 821-Wax spray ASF
6
RM 824-Super pearl wax ASF
7
RM 44 Rim cleaning gel
9
Metal-processing industry Oils, greases, dust and similar im-
purities and dirt
RM 22- Powder ASF
12
RM 55 ASF
8
RM 81 ASF
9
RM 803 ASF
10
RM 806 ASF
12
RM 31 ASF (for stronger dirt)
12
RM 39- liquid (with anti-corrosion agents)
9
Food-processing units
Light to heavy dirt, greases/ oils,
large areas
RM 55 ASF
8
RM 81 ASF
9
RM 882 Gel foam OSC
12
RM 58 ASF (Foam detergent)
9
RM 31 ASF *
12
smoke resin
RM 33 *
13
Cleaning and disinfection
RM 732
9
Disinfection
RM 735
7...8
Chalk, mineral deposits
RM 25 ASF *
2
RM 59 ASF (Foam cleaning)
2
Sanitary area ***
Chalk, stone, soaps, etc.
RM 25 ASF * (basic cleaning)
2
RM 59 ASF (Foam cleaning)
2
RM 68 ASF
5
34
EN

