Karcher HDS 9/14-4 ST Eco – страница 17
Инструкция к Автомобильной Минимойке Karcher HDS 9/14-4 ST Eco
-
14
–
Ogrevalnik naprave je gorilna naprava. Pri namestitvi se mo-
rajo upoštevati lokalno veljavni predpisi.
–
Uporabite le preizkušene dimnike/dimovode.
Nevarnost
Nevarnost oparin! Ta simbol mora biti pritrjen na vsakem odvze-
mnem mestu.
Pri postavitvi rezervoarja kurilnega olja v postavitvenem prostoru
naprave se morajo upoštevati predpisi o skladiš
č
enju gorljivih te-
ko
č
in.
Pri speljavi dovodov goriva se mora upoševati spodnji diagram.
Predvideti se mora 2linijski sistem, vtok in povratek.
–
Maksimalen predtlak kurilnega olja: 0,05 MPa (0,5 bar)
–
Maksimalen podtlak med oljnim filtrom in
č
rpalko: 0,04 MPa
(0,4 bar)
Dolžina sesalne cevi v m
Sesalna višina v m
Možna dolžina sesalne cevi pri ceveh z NV 8
–
Vsaka naprava se mora priklju
č
iti na svoj kamin.
–
Odvod dimnih plinov se mora izvesti ustrezno lokalnim pred-
pisom in po uskladitvi s pristojnim dimnikarjem.
Priporo
č
amo, da med napravo in kamin vgradite prekinjalo vleka.
Opozorilo
Za doseganje predpisanih zgorevalnih vrednosti se mora upošte-
vati kaminski vlek, naveden v tehni
č
nih podatkih.
–
Pred montažo se mora preveriti nosilnost stene. Sodobavljen
pritrditveni material je primeren za beton. Za stene iz votlih zi-
dakov, opeke in plinobetona se morajo uporabiti primerni mo-
zniki in vijaki, npr. injekcijsko sidro (vrtalno shemo glejte na
merskem listu).
–
Slika 3 - poz. 19 in 23
Naprava ne sme biti togo povezana z vodovodnim ali visoko-
tla
č
nim cevnim omrežjem. Obvezno se morajo montirati po-
vezovalne gibke cevi.
–
Slika 3 - A
Med vodovodnim omrežjem in povezovalno gibko cevjo se
mora predvideti zaporna pipa.
Pri montaži visokotla
č
nih napeljav je treba upoštevati ustrezne
nacionalne predpise zakonodajalca.
–
Tla
č
ni upad v cevovodu mora ležati pod 1,5 MPa.
–
Kon
č
an cevovod se mora preizkusiti s 28 MPa.
–
Izolacija cevovoda mora biti temperaturno obstojna do 155
°C.
Slika 3 - poz. 20
Posode se morajo postaviti tako, da se spodnja nivojska gladina
č
istila ne nahaja ve
č
kot 1,5 m pod dnom naprave in zgornja gla-
dina ne nad dnom naprave.
Slika 3 - B in poz. 19
Vhod za vodo priklju
č
ite na vodovodno omrežje z ustrezno
vodno gibko cevjo.
–
Zmogljivost oskrbe z vodo mora znašati najmanj 1300 l/h pri
najmanj 0,1 MPa.
–
Temperatura vode mora ležati pod 30 °C.
Pozor
Maksimalno dopustna omrežna impedanca na elektri
č
nem pri-
klju
č
ku (glejte tehni
č
ne podatke) ne sme biti presežena. V prime-
ru nejasnosti glede omrežne impendance, ki obstaja na Vašem
priklju
č
ku, stopite v stik z Vašim elektro podjetjem.
Opozorilo:
Postopki vklopa kratkotrajno povzro
č
ijo padec nape-
tosti. Pri neugodnih omrežnih razmerah se lahko s tem poslabša
delovanje drugih naprav.
–
Priklju
č
ne vrednosti glejte v Tehni
č
nih podatkih in na tipski ta-
blici.
–
Elektri
č
ni priklju
č
ek mora izvesti elektroinstalater in mora
ustrezati IEC 60364-1.
–
Deli pod napetostjo, kabli in naprave v delovnem obmo
č
ju
morajo biti v brezhibnem stanju in zaš
č
iteni pred vodnim cur-
kom.
Za izogibanje elektri
č
nim nesre
č
am priporo
č
amo, da uporabljate
vti
č
nice s predvklopljenim zaš
č
itnim stikalom (maks. 30 mA na-
zivne jakosti sprožilnega toka).
Vzpostavite elektri
č
ni priklju
č
ki.
Za izklop stacionarnega visokotla
č
nega
č
istilnika se mora na var-
nem, lahko dostopnem mestu namestiti glavno stikalo, ki se za-
klene (Bild 3 - poz. 6).
Odpiralna širina kontakta glavnega stikala mora znaüati najmanj
3 mm.
CEE vti
č
montirajte na priklju
č
ni kabel naprave.
Cekon vti
č
vtaknite v vti
č
nico.
Za izklop stacionarnega visokotla
č
nega
č
istilnika mora biti CEE
vti
č
lahko dostopen za lo
č
itev od omrežja.
Inštalacija naprave
Le za pooblaš
č
ene strokovnjake!
Splošno
Pri delovnih tempera-
turah nad 100 °C za-
menjajte visokotla
č
no
šobo s parno šobo.
Rezervoar kurilnega olja
Dovod goriva
Cev za dimne pline
!
Montaža na steno
Montaža visokotla
č
nih vodov
Namestitev posode za
č
istilo
Oskrba z vodo
Elektri
č
ni priklju
č
ek
Fiksno instaliran elektri
č
ni priklju
č
ek
Elektri
č
ni priklju
č
ek z vti
č
em/vti
č
nico
321
SL
-
15
Pred prvo uporabo odrežite vrh pokrova s posode za olje na
vodni
č
rpalki.
Nevarnost
Nevarnost eksplozije! Polnite samo dizelsko gorivo ali lahko ku-
rilno olje. Ne smete uporabljati nustreznih goriv, npr. bencina.
Napolnite posodo za gorivo.
Pozor
Obratovanje z vro
č
o vodo brez goriva povzro
č
i poškodbo
č
rpalke
za gorivo. Pred obratovanjem z vro
č
o vodo zagotovite oskrbo z
gorivom.
Slika 3 - poz. 14
Visokotla
č
no gibko cev povežite z ro
č
no brizgalno pištolo in
brizgalno cevjo in jo priklju
č
ite na visokotla
č
ni izhod naprave
ali visokotla
č
no cevovodno omrežje.
Ustnik šobe (b) s prekrovno matico (a) pritrdite na brizgalno
cev (d). Pazite na to, da tesnilni obro
č
(c) pravilno leži v utoru.
Odstranite vzmet (c) s pokrova (b) posode za meh
č
alec (a).
V posodo nalijte Kärcher meh
č
alno teko
č
ino RM 110 (naro
č
.
št. 2.780-001).
Nevarnost
Nevarna elektri
č
na napetost! Nastavitev sme izvesti le stokov-
njak za elektriko.
Ugotovite lokalno trdoto vode:
–
preko lokalnega podjetja za oskrbo,
–
s preizkuševalnikom trdote (naro
č
. št. 6.768-004).
Odstranite pokrov naprave.
Odprite stikalno omarico na upravljalnem polju.
Vrtljiv potenciometer (a) nastavite glede na trdoto vode. Iz ta-
bele lahko od
č
itate pravilno nastavitev.
Primer:
Za trdoto vode 15 °dH na vrtljivem potenciometru nastavite vre-
dnost na skali 6. Iz tega izhaja
č
as odmora 31 sekund, t.j. vsakih
31 sekund se na kratko odpre magnetni ventil.
Nastavitev
č
asa pripravljenosti za obratovanje se izvede na ve
č
ji
ploš
č
i na levi stranici elektri
č
ne omarice.
Č
as pripravljenosti za obratovanje je tovarniško nastavljen na mi-
nimalni
č
as 2 minuti in se lahko poviša na maksimalno 8 minut.
Izro
č
itev v obratovanje
Ukrepi pred zagonom
Zaš
č
ita pred poapnenjem
a
b
c
d
b
c
a
Trdota vode (°dH)
5
10
15
20
25
Skala na vrtljivem potenci-
ometru
8
7
6
5
4,5
Č
as odmora (sekunde)
50
40
31
22
16
Spreminjanje
č
asa pripravljenosti za obratovanje
a
8 7 6 5 4 3 2 1
S2
min.
max.
322
SL
-
16
Bild 3
Inštalacijski material
1
2
3
4
5
6
7
8
9
10
12
13
21
20
19
18
17
16
15
14
11b
11a
11d
11c
A
B
19a
24
11a
23
22
11b
Poz. Inštalacijski material
Naro
č
. št.
1
Kotni navojni spoj
6.386-356
2
Kotnik cevi za dimne pline 90°
7.234-605
Kotnik cevi za dimne pline 45°
7.234-604
3
Cev za dimne pline
7.234-603
4
Prekinjalo vleka cevi za dimne pline HDS
9/14-4
4.656-080
Prekinjalo vleka cevi za dimne pline HDS
12/14-4
4.656-079
5
Toplotna izolacija
6.286-114
6
Glavno stikalo
6.631-455
7
Komplet cevi, jeklene pocinkane
2.420-004
Komplet cevi, plemenito jeklo
2.420-006
8
Kompet delov daljinsko upravljanje
2.744-008
9
Kompet delov zasilno stikalo
2.744-002
10
T-navojni spoj
6.386-269
11a
Priklju
č
ni nastavek, medenina
2.638-180
Priklju
č
ni nastavek, plemenito jeklo
2.638-181
11b
Zaporna pipa NV 8, jeklena pocinkana
4.580-144
Zaporna pipa NV 8, plemenito jeklo
4.580-163
11c
Htrospojni fiksni del
6.463-025
11d
Hitrospojni prosti del
6.463-023
Poz. Inštalacijski material
Naro
č
. št.
12
Držalo cevi
2.042-001
13
Cevni boben
2.637-238
14
Visokotla
č
na gibka cev 10 m
6.388-083
15
Ro
č
na brizgalna pištola Easypress
4.775-463
Vrtljiv regulator HDS 9/14-4
4.775-470
Vrtljiv regulator HDS 12/14-4
4.775-471
16
Držalo brizgalne cevi
2.042-002
17
Brizgalna cev
4.760-550
18
Ustnik šobe HDS 9/14-4
2.883-402
Ustnik šobe HDS 12/14-4
2.883-406
19
Vodna cev
4.440-282
19a
Magnetni ventil dovoda vode
4.743-011
20
Rezervoar za
č
istilo, 60 l
5.070-078
21
Rezervoar za kurilno olje 600 l
6.392-050
22
Kompet delov stenske konzole
2.053-005
Kompet delov talnega ogrodja
2.210-008
23
Visokotla
č
na cev
6.389-028
24
Cevna objemka
6.373-374
323
SL
-
17
S to izjavo potrjujemo, da spodaj omenjeni stroj zaradi svoje za-
snove in na
č
ina izdelave ustreza temeljnim varnostnim in zdra-
vstvenim zahtevam EU-standardov. Ta izjava izgubi svojo
veljavnost,
č
e kdo napravo spremeni brez našega soglasja.
5.957-054
Podpisniki ravnajo po navodilih in s pooblastilom vodstva podje-
tja.
Pooblaš
č
enec za dokumentacijo:
S. Reiser
Alfred Kärcher GmbH & Co. KG
Alfred-Kärcher-Str. 28 - 40
71364 Winnenden (Germany)
Tel.: +49 7195 14-0
Faks: +49 7195 14-2212
Winnenden, 2010/12/01
V vsaki državi veljajo garancijski pogoji, ki jih doloèa naše prodaj-
no predstavništvo. Morebitne motnje na napravi, ki so posledica
materialnih ali proizvodnih napak, v èasu garancije brezplaèno
odpravljamo.
CE izjava
Proizvod:
Visokotla
č
ni
č
istilnik s parno
stopnjo
Tip:
1.698-xxx
Tip:
1.699-xxx
Zadevne ES-direktive
:
97/23/ES
2006/42/ES (+2009/127/ES)
2004/108/ES
Kategorija sklopa
II
Ugotavljanje skladnosti
Modul H
Grelna spirala
Ocena skladnosti modul H
Varnostni ventil
Ocena skladnosti Art. 3 Ods. 3
Krmilni blok
Ocena skladnosti modul H
Razli
č
ni cevovodi
Ocena skladnosti Art. 3 Ods. 3
Uporabljene usklajene norme:
EN 55014–1: 2006 + A1: 2009
EN 55014–2: 1997 + A2: 2008
EN 60335–1
EN 60335–2–79
EN 61000–3–2: 2006 + A2: 2009
HDS 12/14-4 ST Eco:
EN 61000–3–3: 2008
HDS 9/14-4 ST Eco:
EN 61000–3–11: 2000
Uporabne specifikacije:
AD 2000 z ozirom na
TRD 801 z ozirom na
Ime priglašenega organa:
Za 97/23/EG
TÜV Rheinland Industrie Service GmbH
Am Grauen Stein
51105 Köln
Reg. štev. 0035
CEO
Head of Approbation
Garancija
324
SL
-
18
Uporabniški servis
Tip naprave:
Tovarniška št.:
Izro
č
itev v obratovanje dne:
Preverjanje izvedeno dne:
Ugotovitev:
Podpis
Preverjanje izvedeno dne:
Ugotovitev:
Podpis
Preverjanje izvedeno dne:
Ugotovitev:
Podpis
Preverjanje izvedeno dne:
Ugotovitev:
Podpis
325
SL
-
19
Opozorilo:
Ustrezno je potrebno upoštevati vsakokratne nacio-
nalne zahteve države uporabnika.
Periodi
č
an preverjanja
Preverjanje izvedel:
Zunanje preverjanje
Notranje preverjanje
Preizkus trdnosti
Ime
Podpis usposobljene ose-
be/Datum
Podpis usposobljene ose-
be/Datum
Podpis usposobljene ose-
be/Datum
Ime
Podpis usposobljene ose-
be/Datum
Podpis usposobljene ose-
be/Datum
Podpis usposobljene ose-
be/Datum
Ime
Podpis usposobljene ose-
be/Datum
Podpis usposobljene ose-
be/Datum
Podpis usposobljene ose-
be/Datum
Ime
Podpis usposobljene ose-
be/Datum
Podpis usposobljene ose-
be/Datum
Podpis usposobljene ose-
be/Datum
Ime
Podpis usposobljene ose-
be/Datum
Podpis usposobljene ose-
be/Datum
Podpis usposobljene ose-
be/Datum
Ime
Podpis usposobljene ose-
be/Datum
Podpis usposobljene ose-
be/Datum
Podpis usposobljene ose-
be/Datum
Ime
Podpis usposobljene ose-
be/Datum
Podpis usposobljene ose-
be/Datum
Podpis usposobljene ose-
be/Datum
Ime
Podpis usposobljene ose-
be/Datum
Podpis usposobljene ose-
be/Datum
Podpis usposobljene ose-
be/Datum
Ime
Podpis usposobljene ose-
be/Datum
Podpis usposobljene ose-
be/Datum
Podpis usposobljene ose-
be/Datum
Ime
Podpis usposobljene ose-
be/Datum
Podpis usposobljene ose-
be/Datum
Podpis usposobljene ose-
be/Datum
Ime
Podpis usposobljene ose-
be/Datum
Podpis usposobljene ose-
be/Datum
Podpis usposobljene ose-
be/Datum
326
SL
Polski
-
1
Przed pierwszym u
ż
yciem urz
ą
dzenia nale
ż
y przeczy-
ta
ć
oryginaln
ą
instrukcj
ę
obs
ł
ugi, post
ę
powa
ć
wed
ł
ug
jej wskaza
ń
i zachowa
ć
j
ą
do pó
ź
niejszego wykorzystania lub dla
nast
ę
pnego u
ż
ytkownika.
–
Przed pierwszym uruchomieniem nale
ż
y koniecznie przeczy-
ta
ć
zasady bezpiecze
ń
stwa nr 5.956-309!
–
Ewentualne uszkodzenia transportowe nale
ż
y niezw
ł
ocznie
zg
ł
osi
ć
sprzedawcy.
Wskazówki dotycz
ą
ce sk
ł
adników (REACH)
Aktualne informacje dotycz
ą
ce sk
ł
adników znajduj
ą
si
ę
pod:
www.kaercher.com/REACH
Niebezpiecze
ń
stwo
Przy bezpo
ś
rednim niebezpiecze
ń
stwie, prowadz
ą
cym do ci
ęż
-
kich obra
ż
e
ń
cia
ł
a lub do
ś
mierci.
몇
Ostrze
ż
enie
Na mo
ż
liwie niebezpieczn
ą
sytuacj
ę
, mog
ą
c
ą
prowadzi
ć
do ci
ęż
-
kich obra
ż
e
ń
cia
ł
a lub
ś
mierci.
Uwaga
Na mo
ż
liwie niebezpieczn
ą
sytuacj
ę
, mog
ą
c
ą
prowadzi
ć
do lek-
kich obra
ż
e
ń
cia
ł
a lub szkód materialnych.
W przypadku niew
ł
a
ś
ciwego u
ż
ycia strumie
ń
wody
pod ci
ś
nieniem mo
ż
e by
ć
niebezpieczny. Nie wolno
kierowa
ć
strumienia na ludzi, zwierz
ę
ta, czynny
osprz
ę
t elektryczny ani na samo urz
ą
dzenie.
–
Nale
ż
y przestrzega
ć
krajowych przepisów dotycz
ą
cych stru-
mienic cieczowych.
–
Nale
ż
y przestrzega
ć
krajowych przepisów dotycz
ą
cych zapo-
biegania wypadkom. Strumienice cieczowe musz
ą
by
ć
regu-
larnie sprawdzane, a wynik badania musi by
ć
dokumentowany w formie pisemnej.
–
Urz
ą
dzenie grzewcze tego urz
ą
dzenia jest urz
ą
dzeniem opa-
ł
owym. Urz
ą
dzenia opa
ł
owe musz
ą
by
ć
regularnie sprawdza-
ne zgodnie z obowi
ą
zuj
ą
cymi krajowymi przepisami.
–
W przypadku u
ż
ytkowania urz
ą
dzenia w pomieszczenia nale-
ż
y zadba
ć
o bezpieczne odprowadzenie spalin (rura do spalin
bez przerywacza ci
ą
gu) Poza tym musi by
ć
zapewniony wy-
starczaj
ą
cy dop
ł
yw
ś
wie
ż
ego powietrza.
–
Zgodnie z obowi
ą
zuj
ą
cymi krajowymi przepisami, niniejsze
wysokoci
ś
nieniowe urz
ą
dzenie czyszcz
ą
ce musi by
ć
w
łą
czo-
ne do eksploatacji przemys
ł
owej przez osob
ę
wykwalifikowa-
n
ą
. Firma KÄRCHER przeprowadzi
ł
a ju
ż
dla Pa
ń
stwa i
udokumentowa
ł
a to pierwsze uruchomienie. Dokumentacj
ę
na ten temat mo
ż
na otrzyma
ć
na
ż
yczenie za po
ś
rednictwem
partnera firmy KÄRCHER. Przy wszelkiego rodzaju konsulta-
cjach dotycz
ą
cych dokumentacji nale
ż
y mie
ć
pod r
ę
k
ą
numer
cz
ęś
ci i zak
ł
adu.
–
Zwracamy uwag
ę
na to, i
ż
zgodnie z obowi
ą
zuj
ą
cymi krajo-
wymi przepisami, niniejsze urz
ą
dzenie musi by
ć
kontrolowa-
ne przez osob
ę
wykwalifikowan
ą
. Prosimy zwróci
ć
si
ę
do
partner firmy KÄRCHER.
–
Wskazówki bezpiecze
ń
stwa, które do
łą
czone s
ą
do stosowa-
nych
ś
rodków czyszcz
ą
cych (z regu
ł
y znajduj
ą
si
ę
na etykie-
cie opakowania).
Spis tre
ś
ci
Ochrona
ś
rodowiska . . . . . .
PL . . 1
Symbole w instrukcji obs
ł
ugi
PL . . 1
Symbole na urz
ą
dzeniu. . . .
PL . . 1
Ogólne zasady bezpiecze
ń
stwa
PL . . 1
U
ż
ytkowanie zgodne z przeznaczeniem
PL . . 2
Funkcja . . . . . . . . . . . . . . . .
PL . . 2
Zabezpieczenia . . . . . . . . . .
PL . . 2
Elementy urz
ą
dzenia. . . . . .
PL . . 3
Uruchamianie . . . . . . . . . . .
PL . . 4
Obs
ł
uga. . . . . . . . . . . . . . . .
PL . . 4
Wy
łą
czenie z ruchu . . . . . . .
PL . . 7
Wy
łą
czenie z eksploatacji . .
PL . . 7
Przechowywanie . . . . . . . . .
PL . . 7
Transport. . . . . . . . . . . . . . .
PL . . 7
Dane techniczne . . . . . . . . .
PL . . 8
Czyszczenie i konserwacja .
PL . 10
Usuwanie usterek . . . . . . . .
PL . 12
Akcesoria . . . . . . . . . . . . . .
PL . 14
Instalacja urz
ą
dzenia . . . . .
PL . 15
Deklaracja UE . . . . . . . . . . .
PL . 18
Gwarancja . . . . . . . . . . . . . .
PL . 18
Serwis firmy. . . . . . . . . . . . .
PL . 19
Regularne przegl
ą
dy . . . . . .
PL . 20
Ochrona
ś
rodowiska
Materia
ł
, z którego wykonano opakowanie nadaje si
ę
do powtórnego przetworzenia. Prosimy nie wyrzuca
ć
opakowania do
ś
mieci z gospodarstw domowych,
lecz odda
ć
do recyklingu.
Zu
ż
yte urz
ą
dzenia zawieraj
ą
cenne surowce wtórne,
które powinny by
ć
oddawane do utylizacji. Akumula-
tory, olej i tym podobne substancje nie powinny prze-
dosta
ć
si
ę
do
ś
rodowiska naturalnego. Prosimy o
utylizacj
ę
starych urz
ą
dze
ń
w odpowiednich placów-
kach zbieraj
ą
cych surowce wtórne.
Prosimy o dopilnowanie, aby olej silnikowy, olej opa
ł
owy, olej
nap
ę
dowy i benzyna nie dostawa
ł
y si
ę
do
ś
rodowiska! Chroni
ć
nale
ż
y pod
ł
o
ż
e, a stary olej usuwa
ć
zgodnie z przepisami o
ochronie
ś
rodowiska naturalnego.
Ś
rodki czyszcz
ą
ce Kärcher s
ą
ś
rodkami str
ą
caj
ą
cymi (ASF).
Oznacza to,
ż
e funkcja separatora oleju nie zostaje zak
ł
ócona.
Lista z zalecanymi
ś
rodkami czyszcz
ą
cymi znajduje si
ę
w roz-
dziale „Akcesoria“.
Symbole w instrukcji obs
ł
ugi
Symbole na urz
ą
dzeniu
Niebezpiecze
ń
stwo oparzenia! Ostrze
ż
enie
przed gor
ą
cymi elementami urz
ą
dzenia.
Ogólne zasady bezpiecze
ń
stwa
327
PL
-
2
Przed instalacj
ą
urz
ą
dzenia powinna mie
ć
miejsce narada z
okr
ę
gowym mistrzem kominiarskim.
Przy instalacji nale
ż
y przestrzega
ć
przepisów dotycz
ą
cych pra-
wa budowlanego, prawa przemys
ł
owego i ochrony przed zanie-
czyszczeniami powietrza. Zwracamy uwag
ę
na poni
ż
ej
zestawione przepisy, regu
ł
y i normy:
–
Urz
ą
dzenie mo
ż
e zosta
ć
zamontowane jedynie przez przed-
si
ę
biorstwo specjalistyczne zgodnie z odpowiednimi krajowy-
mi przepisami.
–
W przypadku instalacji elektrycznych nale
ż
y przestrzega
ć
od-
powiednich krajowych przepisów prawa.
–
Ustawienia, prace konserwacyjne i naprawy przy palniku
mog
ą
by
ć
przeprowadzane jedynie przez wykwalifikowanego
przedstawiciela serwisu firmy Kärcher.
–
Przy projekcie komuna musz
ą
by
ć
przestrzegane lokalnie
obowi
ą
zuj
ą
ce dyrektywy.
Miejsce pracy znajduje si
ę
w polu obs
ł
ugi. Pozosta
ł
e miejsca pra-
cy w zale
ż
no
ś
ci od budowy urz
ą
dzenia znajduj
ą
si
ę
przy urz
ą
-
dzeniach dodatkowych (urz
ą
dzenia natryskowe), które
przylegaj
ą
do punktów poboru.
–
W celu ochrony przed rozpryskuj
ą
c
ą
si
ę
wod
ą
lub brudem na-
le
ż
y nosi
ć
odpowiedni
ą
odzie
ż
ochronn
ą
i okulary ochronne.
Urz
ą
dzenie s
ł
u
ż
y do tego, aby za pomoc
ą
swobodnego strumie-
nia wody usuwa
ć
zabrudzenia z powierzchni. Stosuje si
ę
je
zw
ł
aszcza do czyszczenia maszyn, pojazdów i fasad.
Niebezpiecze
ń
stwo
Ryzyko obra
ż
e
ń
! W razie stosowania na stacjach paliwowych lub
w innych miejscach niebezpiecznych nale
ż
y przestrzega
ć
odno
ś
-
nych zasad bezpiecze
ń
stwa.
–
Zimna woda dostaje si
ę
przez elastyczne przewody ch
ł
odz
ą
-
ce silnik i zbiornik p
ł
ywakowy na stron
ę
ss
ą
c
ą
pompy wyso-
koci
ś
nieniowej. W zbiorniku p
ł
ywakowym zostaje dodany
ś
rodek zmi
ę
kczaj
ą
cy. Pompa t
ł
oczy wod
ę
i zassany
ś
rodek
czyszcz
ą
cy przez podgrzewacz przep
ł
ywowy. Zawarto
ść
ś
rodka czyszcz
ą
cego w wodzie mozna ustawi
ć
za pomoc
ą
zaworu dozuj
ą
cego. Podgrzewacz przep
ł
ywowy ogrzewany
jest przez palnik.
–
Wyj
ś
cie wysokiego ci
ś
nienia zostaje pod
łą
czone do istniej
ą
-
cej w budynku sieci wysokiego ci
ś
nienia. W miejscach poboru
tej sieci pod
łą
cza si
ę
pistolet natryskowy z w
ęż
em wysokoci
ś
-
nieniowym.
Zabezpieczenia s
ł
u
żą
ochronie u
ż
ytkownika i nie mog
ą
by
ć
od
łą
-
czone albo pomini
ę
te w swoim dzia
ł
aniu.
Zabezpieczenie przed brakiem wody zapobiega w
łą
czeniu pom-
py wysokoci
ś
nieniowej w przypadku braku wody.
Zabezpieczenie przed brakiem wody zapobiega przegrzaniu pal-
nika w przypadku braku wody. Palnik uruchamia si
ę
tylko, gdy
jest wystarczaj
ą
cy dop
ł
yw wody.
Wy
łą
cznik ci
ś
nieniowy wy
łą
cza urz
ą
dzenie w przypadku przekro-
czenia ci
ś
nienia roboczego. Nie wolno zmienia
ć
tego ustawienia.
W przypadku usterki wy
łą
cznika ci
ś
nieniowego otwiera si
ę
zawór
bezpiecze
ń
stwa. Ten zawór jest ustawiany fabrycznie i zaplom-
bowany. Nie wolno zmienia
ć
tego ustawienia.
W przypadku braku paliwa lub usterki palnika nadzór p
ł
omienia
wy
łą
cza palnik. Zapala si
ę
kontrolka usterki palnika (E).
Je
ż
eli silnik palnika jest zablokowany, wyzwala si
ę
ochrona nad-
miarowa. Silnik pompy wysokoci
ś
nieniowej jest zabezpieczony
przez wy
łą
cznik ochronny silnika i prze
łą
cznik ochronny uzwoje-
nia.
Termostat spalin wyzwala si
ę
, gdy temperatura spalin przekra-
cza 320 °C. Pulsuje kontrolka usterki palnika (E).
Po wy
łą
czeniu urz
ą
dzenia za pomoc
ą
pistoletu natryskowego, po
up
ł
ywie czasu gotowo
ś
ci do pracy otwiera si
ę
zawór elektromag-
netyczny uk
ł
adu wysokiego ci
ś
nienia, co powoduje spadek ci
ś
-
nienia.
Przepisy, dyrektywy i regu
ł
y
Miejsca pracy
Osobiste wyposa
ż
enia ochronne
Podczas czyszczenia ha
ł
asuj
ą
cych cz
ęś
ci za-
k
ł
ada
ć
ochron
ę
s
ł
uchu, aby zapobiega
ć
uszko-
dzeniom s
ł
uchu.
U
ż
ytkowanie zgodne z przeznaczeniem
Ś
cieki zawieraj
ą
ce oleje mineralne nie mog
ą
dosta
ć
si
ę
do gle-
by, wód gruntowych i powierzchniowych ani do kanalizacji. Dla-
tego mycie silników i podwozi nale
ż
y wykonywa
ć
tylko w
miejscach wyposa
ż
onych w separatory oleju.
Funkcja
Zabezpieczenia
Zabezpieczenie przed brakiem wody w zbiorniku
p
ł
ywakowym
Zabezpieczenie przed brakiem wody w bloku zabez-
pieczaj
ą
cym
Wy
łą
cznik ci
ś
nieniowy
Zawór bezpiecze
ń
stwa
Nadzór p
ł
omienia
Ochrona nadmiarowa
Termostat spalin
Zwolnienie ci
ś
nienia w uk
ł
adzie wysokiego ci
ś
nienia
328
PL
-
3
Rys. 1
1 Palnik
2 Manometr
3 Dop
ł
yw
ś
wie
ż
ej wody z sitem
4 Wyj
ś
cie wysokiego ci
ś
nienia
5 Przewód paliwowy doprowadzaj
ą
cy
6 Przewód paliwowy powrotny
7 W
ąż
do zasysania
ś
rodka czyszcz
ą
cego I
8 W
ąż
do zasysania
ś
rodka czyszcz
ą
cego II (opcja)
9 Zbiornik
ś
rodka zmi
ę
kczaj
ą
cego
10 Elektryczny przewód doprowadzaj
ą
cy
11 Zbiornik p
ł
ywakowy
12 Pole obs
ł
ugi
Rys. 2
A Wy
łą
cznik g
ł
ówny
B Regulator temperatury
C Zawór dozuj
ą
cy
ś
rodka czyszcz
ą
cego I
D Zawór dozuj
ą
cy
ś
rodka czyszcz
ą
cego II (opcja)
E Kontrolka usterki palnika
F Lampka kontrolna gotowo
ś
ci do pracy
G Kontrolka przegrzania silnika
H Kontrolka ochrony przed osadzaniem kamienia
I
Korek - przycisk odblokowuj
ą
cy silnik palnika
Elementy urz
ą
dzenia
6
5
7
8
3
4
9
11
10
1
12
2
Pole obs
ł
ugi
329
PL
-
4
몇
Niebezpiecze
ń
stwo
Ryzyko obra
ż
e
ń
! Urz
ą
dzenie, przewody zasilaj
ą
ce, w
ąż
wysoko-
ci
ś
nieniowy i przy
łą
cza musz
ą
by
ć
w nienagannym stanie. Je
ż
eli
nie jest on poprawny, to sprz
ę
tu takiego nie wolno u
ż
ywa
ć
.
–
Parametry przy
łą
cza patrz tabliczka znamionowa i Dane
techniczne.
–
Przy
łą
cze leketryczne musi by
ć
wykonane przez wykwalifiko-
wanego elektryka i odpowiada
ć
normie IEC 60364-1.
U
ż
ytkownik ma obowi
ą
zek u
ż
ywania urz
ą
dzenia zgodnie z jego
przeznaczeniem. Podczas pracy musi on uwzgl
ę
dnia
ć
warunki
panuj
ą
ce w otoczeniu i uwa
ż
a
ć
na osoby znajduj
ą
ce si
ę
w pobli-
ż
u.
Pracuj
ą
cego urz
ą
dzenia nigdy nie pozostawia
ć
bez nadzoru.
Niebezpiecze
ń
stwo
–
Niebezpiecze
ń
stwo oparzenia wod
ą
! Nie kierowa
ć
strumienia
wody na ludzi ani zwierz
ę
ta.
–
Niebezpiecze
ń
stwo oparzenia przez gor
ą
ce elementy urz
ą
-
dzenia! W przypadku pracy z u
ż
yciem gor
ą
cej wody nie doty-
ka
ć
niezaizolowanych rur i w
ęż
y. Rurk
ę
strumieniow
ą
trzyma
ć
wy
łą
cznie za ochwyt. Nie dotyka
ć
kró
ć
ca spalin pod-
grzewacza przep
ł
ywoego.
–
Niebezpiecze
ń
stwo zatrucia i poparzenia
ś
rodkami czysz-
cz
ą
ymi! Przestrzega
ć
wskazówek dotycz
ą
cych
ś
rodków
czyszcz
ą
cych. Przechowywa
ć
ś
rodki czyszcz
ą
ce w miejscu
niedost
ę
pnym dla osób niupowa
ż
nionych.
Niebezpiecze
ń
stwo
Niebezpiecze
ń
stwo pora
ż
enia pr
ą
dem elektrycznym! Nie kiero-
wa
ć
strumienia wody na nast
ę
puj
ą
ce urz
ą
dzenia:
–
urz
ą
dzenia i instalacje elektryczne,
–
na samo urz
ą
dzenie,
–
wszystkie elementy przewodz
ą
ce pr
ą
d w obszarze robo-
czym.
Strumie
ń
wody wydobywaj
ą
cy si
ę
z rurki strumieniowej wytwarza
si
łę
odrzutu. Z uwagi na zagi
ę
cie rurki strumieniowej si
ł
a ta dzia
ł
a
ku górze.
Niebezpiecze
ń
stwo
–
Ryzyko obra
ż
e
ń
! Odrzut rurki strumieniowej mo
ż
e pozbawi
ć
operatora równowagi. W wyniku czego mo
ż
e on upa
ść
. Rur-
ka strumieniowa mo
ż
e porusza
ć
si
ę
bez ogranicze
ń
i spowo-
dowa
ć
obra
ż
enia u osób. Wyszuka
ć
bezpieczne miejsce do
stania i mocno trzyma
ć
pistolet natryskowy. Nigdy nie zaci-
ska
ć
d
ź
wigni pistoletu natryskowego.
–
Nie kierowa
ć
strumienia na siebie ani na inne osoby, aby
oczy
ś
ci
ć
odzie
ż
lub obuwie.
–
Niebezpiecze
ń
stwo obra
ż
e
ń
poprzez odlatuj
ą
ce cz
ęś
ci! Od-
latuj
ą
ce od
ł
amki lub przedmioty mog
ą
spowodowa
ć
obra
ż
e-
nia u ludzi i zwierz
ą
t. Nigdy nie kierowa
ć
strumienia wody na
ł
amliwe lub nieprzytwierdzone przedmioty.
–
Niebezpiecze
ń
stwo wypadku na skutek uszkodzenia! Czy
ś
-
ci
ć
opony i zawory z zachowaniem minimalnego odst
ę
pu 30
cm.
몇
Ostrze
ż
enie
Niebezpiecze
ń
stwo zastosowania substancji szkodliwych dla
zdrowia! Nie spryskiwa
ć
nast
ę
puj
ą
cych materia
ł
ów, poniewa
ż
mog
ą
zosta
ć
m uwolnione substancje szkodliwe dla zdrowia:
–
materia
ł
y zawieraj
ą
ce azbest,
–
materia
ł
y przypuszczalnie zawieraj
ą
ce substancje szkodliwe
dla zdrowia.
Niebezpiecze
ń
stwo
–
Niebezpiecze
ń
stwo skaleczenia przez wydobywaj
ą
cy si
ę
,
ewentualnie gor
ą
cy strumie
ń
wody! Tylko oryginalne w
ęż
e
wysokoci
ś
nieniowe firmy Kärcher s
ą
optymalnie dostosowa-
ne do u
ż
ycia w urz
ą
dzeniu. W przypadku u
ż
ycia innych w
ęż
y
nie przejmujemy gwarancji.
–
Niebezpiecze
ń
stwo dla zdrowia w wyniku dzia
ł
ania
ś
rodków
czyszcz
ą
cych! Woda wydobywaj
ą
ca si
ę
z urz
ą
dzenie nie na-
daje si
ę
do picia z uwagi na domieszk
ę
ś
rodków czyszcz
ą
-
cych.
–
Niebezpiecze
ń
stwo uszkodzenia s
ł
uchu w wyniku pracy przy
ha
ł
asuj
ą
cych cz
ęś
ciach urz
ą
dzenia! W takim przypadku nale-
ż
y zak
ł
ada
ć
ochraniacze na uszy.
Niebezpiecze
ń
stwo
Niebezpiecze
ń
stwo skaleczenia przez wydobywaj
ą
cy si
ę
, ewen-
tualnie gor
ą
cy strumie
ń
wody!
Niebezpiecze
ń
stwo
Przed ka
ż
dym u
ż
yciem sprawdza
ć
, czy przewód ci
ś
nieniowy nie
jest uszkodzony. Uszkodzony przewód ci
ś
nieniowy nale
ż
y nie-
zw
ł
ocznie wymieni
ć
.
Przed ka
ż
dym u
ż
yciem sprawdza
ć
w
ąż
wysokoci
ś
nieniowy,
rury, armatury i rurke strumieniow
ą
pod k
ą
tem uszkodze
ń
.
Sprawdzi
ć
z
łą
cze w
ęż
a pod k
ą
tem w
ł
a
ś
ciwego zamocowania
i szczelno
ś
ci.
Uwaga
Ryzyko uszkodzenia przez bieg na sucho urz
ą
dzenia.
Sprawdzi
ć
poziom w zbiorniku
ś
rodka czyszcz
ą
cego i w razie
konieczno
ś
ci uzupe
ł
ni
ć
.
Sprawdzi
ć
poziom
ś
rodka zmi
ę
kczaj
ą
cego i w razie koniecz-
no
ś
ci uzupe
ł
ni
ć
.
Ustawi
ć
wy
łą
cznik urz
ą
dzenia (A) w pozycji „0”.
Zamkn
ąć
dop
ł
yw wody.
W
łą
czy
ć
r
ę
czny pistolet natryskowy i poczeka
ć
a
ż
w urz
ą
dze-
niu nie b
ę
dzie ci
ś
nienia.
Uruchamianie
Zasilanie elektryczne
Obs
ł
uga
Wskazówki bezpiecze
ń
stwa
!
Uzyskanie gotowo
ś
ci do pracy
Wy
łą
czanie podczas awarii
330
PL
-
5
zawór reguluj
ą
cy ilo
ść
obróci
ć
zgodnie z ruchem wskazówek
zegara, aby uzyska
ć
wy
ż
sze ci
ś
nienie robocze i wi
ę
kszy
przep
ł
yw.
zawór reguluj
ą
cy ilo
ść
obróci
ć
w kierunku przeciwnym do ru-
chu wskazówek zegara, aby uzyska
ć
mniejsze ci
ś
nienie ro-
bocze i mniejszy przep
ł
yw.
Obrót w prawo regulatora ilo
ś
ci wody zwi
ę
ksza ilo
ść
przep
ł
y-
wu i ci
ś
nienie robocze.
Obrót w lewo regulatora ilo
ś
ci wody zmniejsza ilo
ść
przep
ł
y-
wu i ci
ś
nienie robocze.
Otworzy
ć
dop
ł
yw wody.
Symbol „Silnik w
ł
.“
D
ź
wigni
ę
pistoletu natryskowego pociagn
ąć
i ustawi
ć
w
łą
cz-
nik urz
ą
dzenia (A) w po
ł
o
ż
eniu „1“ (Silnik w
ł
.).
Kontrolka gotowo
ś
ci do pracy (F) wskazuje gotowo
ść
do pra-
cy.
Niebezpiecze
ń
stwo
Niebezpiecze
ń
stwo poparzenia!
Uwaga
Praca z wykorzystaniem gor
ą
cej wody bez paliwa prowadzi do
uszkodzenia pompy paliwowej. Przed rozpocz
ę
ciem pracy z wy-
korzystaniem gor
ą
cej wody zapewni
ć
dop
ł
yw paliwa.
W razie koineczno
ś
ci mo
ż
na w
łą
czy
ć
palnik.
Symbol „Palnik w
ł
.“
Ustawi
ć
wy
łą
cznik (A) w pozycji „Palnik w
ł
.”.
Ustawi
ć
żą
dan
ą
temperatur
ę
wody (B). Temperatura maks.
wynosi 98 °C.
Niebezpiecze
ń
stwo
Niebezpiecze
ń
stwo poparzenia! Przy temperaturach roboczych
przekraczaj
ą
cych 98°C ci
ś
nienie robocze nie mo
ż
e by
ć
wi
ę
ksze
ni
ż
3,2 MPa (32 bar).
W celu przezbrojenia z trybu gopr
ą
cej wody na stopniowy tryb
parowy nale
ż
y uruchmoc urz
ą
dzenie w niskiej temperaturze i wy-
łą
czy
ć
. Przebrojenie wykona
ć
w nast
ę
puj
ą
cy sposób:
Zamieni
ć
dysz
ę
wysokoci
ś
nieniow
ą
na dysz
ę
parow
ą
(akcesoria).
Ustawi
ć
regulator temperatury na 150 °C.
Ustawi
ć
zawór reguluj
ą
cy przep
ł
yw na pompie wysokoci
ś
nie-
niowej na minimalny przep
ł
yw wody (obróci
ć
przeciwnie do
ruchu wskazówek zegara).
Ustawi
ć
zawór reguluj
ą
cy przep
ł
yw na pompie wysokoci
ś
nie-
niowej na maksymalny przep
ł
yw wody (obróci
ć
w kierunku
zgodnym z ruchem wskazówek zegara).
Ustawi
ć
regulator przep
ł
ywu na pistolecie Easypress poprzez
obrót w lewo na minimalny przep
ł
yw wody.
–
Je
ż
eli podczas pracy d
ź
wignia pistoletu natryskowego zosta-
nie zwolniona, urz
ą
dzenie wy
łą
czy si
ę
.
–
Podczas ponownego otwierania pistoletu w regulowanym
czasie gotowo
ś
ci do pracy (2…8 minut) urzadzenie ponownie
samoczynnie si
ę
w
łą
czy.
–
Je
ż
eli czas gotowo
ś
ci do pracy zostanie przekroczony, wy-
łą
cznik bezpiecze
ń
stwa wy
łą
cza pomp
ę
i palnik. Ga
ś
nie kon-
trolka gotowo
ś
ci do pracy (F).
–
W celu ponownego uruchomeinia ustawi
ć
w
łą
cznik urz
ą
dze-
nia w po
ł
o
ż
eniu „0“, a nast
ę
pnie ponownie w
łą
czy
ć
. Je
ż
eli
urz
ą
dzenie sterowane jest zdalnie, ponowne uruchomienie
mo
ż
na wykona
ć
prze
łą
czaj
ą
c odpowiedni prze
łą
cznik na
zdalnym sterowaniu.
Ustawianie ci
ś
nienia roboczego i przep
ł
ywu
Ustawienia urz
ą
dzenia
Ustawienia na pistolecie Easypress (opcja)
Czyszczenie zimn
ą
wod
ą
R
Czyszczenie gor
ą
c
ą
wod
ą
Czyszczenie par
ą
Nr katalogowy
Typ
4.766-023
HDS 9/14
4.766-024
HDS 12/14
Bez pistoletu Easypress
Z pistoletem Easypress (opcja)
Gotowo
ść
do pracy
331
PL
-
6
–
Opony pojazdów czy
ś
ci si
ę
tylko przy u
ż
yciu syszy o p
ł
askim
strumieniu (25°) i minimalnym odst
ę
pie natrysku 30 cm.
Opon nie wolno czy
ś
ci
ć
w
ż
adnym wypadku za pomoc
ą
stru-
mienia okr
ą
g
ł
ego.
Do innych czynno
ś
ci do wyboru s
ą
nast
ę
puj
ą
ce dysze:
W przypadku rur o d
ł
ugo
ś
ci powy
ż
ej 20 m lub w
ęż
u wysokoci
ś
-
nieniowym o d
ł
ugo
ś
ci wi
ę
kszeje ni
ż
2 x 10 m NW 8 nale
ż
y stoso-
wa
ć
nast
ę
puj
ą
ce dysze:
–
Ś
rodki czyszcz
ą
ce u
ł
atwiaj
ą
czyszczenie. S
ą
one zasysane z
zewn
ę
trznego zbiornika
ś
rodka czyszcz
ą
cego.
–
Urz
ą
dzeniew wersji podstawowej jest wyposa
ż
one w zawód
dozuj
ą
cy (C). Dost
ę
pne jest drugie urz
ą
dzenie dozuj
ą
ce (za-
wór dozuj
ą
cy D) jako wyposa
ż
enie dodatkowe. Wówczas ist-
nieje mo
ż
liwo
ść
u
ż
ycia dwóch ró
ż
nych
ś
rodków
czyszczacych.
–
Ilo
ść
ś
rodka czyszcz
ą
cego ustawia si
ę
na zaworach dozuj
ą
-
cych
ś
rodka czyszcz
ą
cego (C lub D) w polu obs
ł
ugi. Ustawio-
na warto
ść
odpowiada udzia
ł
owi procentowemu
ś
rodka
czyszczacego.
–
Zewn
ę
trzna skala obowi
ą
zuje podczas stosowania nieroz-
cie
ń
czonego
ś
rodka czyszcz
ą
cego (100% CHEM).
–
Wewnetrzna skala obowi
ą
zuje podczas stosowania 1+3 nie-
rozcie
ń
czonego
ś
rodka czyszcz
ą
cego (25 % CHEM + 75 %
wody).
Poni
ż
sza tabela podaje zu
ż
ycie
ś
rodka czyszcz
ą
cego dla warto-
ś
ci skali zewn
ę
trznej:
Dok
ł
adne dozowanie zale
ż
y od:
–
lepko
ś
ci
ś
rodka czyszcz
ą
cego
–
wysoko
ś
ci zasysania
–
oporu strumienia w uk
ł
adzie wysokiego ci
ś
nienia
Je
ż
eli niezb
ę
dne jest dok
ł
adne dozowanie, zassan
ą
ilo
ść
ś
rodka
czyszcz
ą
cego nale
ż
y zmierzy
ć
(np. przez zassanie z pojemnika
pomiarowego).
Wskazówka:
Zalecenia dotycz
ą
ce
ś
rodków czyszcz
ą
cych znaj-
duj
ą
si
ę
w rozdziale „Akcesoria“.
Uwaga
Podczas eksploatacji bez
ś
rodka zmi
ę
kczaj
ą
cego podgrzewacz
przep
ł
ywowy mo
ż
e pokry
ć
si
ę
kamieniem.
Gdy zbiornik srodka zmi
ę
kczaj
ą
cego jest pusty, pulsuje lampka
ochrony przed osadzaniem kamienia (H)
Rysunek 1 - poz. 9
Do zbiornika
ś
rodka zmi
ę
kczaj
ą
cego wla
ć
p
ł
yn zmi
ę
kczaj
ą
cy
RM 110 (2.780-001).
Wybór dysz
Zabru-
dzenie
Dysza
K
ą
t natry-
sku
Nr cz
ęś
ci
6.415
Ci
ś
nie-
nie [MPa]
Odrzut
[N]
HDS 9/14
silny
00060
0°
-257
14
44
ś
redni
25060
25°
-295
s
ł
aby
40060
40°
-301
HDS 12/14
silny
00080
0°
-150
14
55
ś
redni
25080
25°
-152
s
ł
aby
40080
40°
-153
Zabru-
dzenie
Dysza
K
ą
t natry-
sku
Nr cz
ęś
ci
6.415
Ci
ś
nie-
nie [MPa]
Odrzut
[N]
HDS 9/14
silny
0075
0°
-419
10
37
ś
redni
2575
25°
-421
s
ł
aby
4075
40°
-422
HDS 12/14
silny
0010
0°
-082
10
46
ś
redni
2510
25°
-252
s
ł
aby
4010
40°
-253
Dozowanie
ś
rodka czyszcz
ą
cego
HDS 9/14
Po
ł
o
ż
enie
0,5
1
5
Ilo
ść
ś
rodka czyszcz
ą
cego [l/h]
14...15 22...24 50
St
ęż
enie
ś
rodka czyszcz
ą
cego [%] 1,5
2,5
5
HDS 12/14
Po
ł
o
ż
enie
0,5
1
5
Ilo
ść
ś
rodka czyszcz
ą
cego [l/h]
10...13 23...27 60
St
ęż
enie
ś
rodka czyszcz
ą
cego [%] 1
2
5
Nalewanie
ś
rodka zmi
ę
kczaj
ą
cego
332
PL
-
7
Niebezpiecze
ń
stwo
Niebezpiecze
ń
stwo oparzenia gor
ą
c
ą
wod
ą
! Po czyszczeniu go-
r
ą
c
ą
wod
ą
lub par
ą
, w celu sch
ł
odzenia urz
ą
dzenie musi przez co
najmniej dwie minuty by
ć
zasilane zimn
ą
wod
ą
, przy czym pisto-
let natryskowy musi by
ć
otwarty.
W przypadku pracy z u
ż
yciem gor
ą
cej wody ustawi
ć
regulator
temperatury (B) na najno
ż
sz
ą
temperatur
ę
.
U
ż
ywa
ć
urz
ą
dzenie przez przynajmniej 30 sekund bez
ś
rod-
ka czyszcz
ą
cego.
Ustawi
ć
wy
łą
cznik urz
ą
dzenia (A) w pozycji „0”.
Zamkn
ąć
dop
ł
yw wody.
W
łą
czy
ć
r
ę
czny pistolet natryskowy i poczeka
ć
a
ż
w urz
ą
dze-
niu nie b
ę
dzie ci
ś
nienia.
Pistolet natryskowy zabezpieczy
ć
zaczepem zabezpieczaj
ą
-
cym przed niezamierzonym otwarciem.
W przypadku d
ł
u
ż
szych przerw w eksploatacji lub gdy niemo
ż
li-
we jest przechowywanie w pomieszczeniach chronionych przed
mrozem, nale
ż
y podj
ąć
nast
ę
puj
ą
ce kroki (patrz rozdz. „Dogl
ą
d i
piel
ę
gnacja“, ust
ę
p „Ochrona przeciwmrozowa“):
Spu
ś
ci
ć
wod
ę
.
P
ł
ukanie urz
ą
dzenia
ś
rodkiem przeciwdzia
ł
aj
ą
cym zamarza-
niu.
Wy
łą
czy
ć
wy
łą
cznik g
ł
ówny i zabezpieczy
ć
wzgl. wyj
ąć
wtyczk
ę
Cekon.
Uwaga
Niebezpiecze
ń
stwo zranienia i uszkodzenia! Zwróci
ć
uwag
ę
na
ci
ęż
ar urz
ą
dzenia przy jego przechowywaniu.
Uwaga
Niebezpiecze
ń
stwo zranienia i uszkodzenia! Zwróci
ć
uwag
ę
na
ci
ęż
ar urz
ą
dzenia w czasie transportu.
W trakcie transportu w pojazdach nale
ż
y urz
ą
dzenie zabez-
pieczy
ć
przed po
ś
lizgiem i przechyleniem zgodnie z obowi
ą
-
zuj
ą
cymi przepisami.
Wy
łą
czenie z ruchu
Po pracy ze
ś
rodkiem czyszcz
ą
cym
Wy
łą
czanie urz
ą
dzenia
Wy
łą
czenie z eksploatacji
Przechowywanie
Transport
333
PL
-
8
Dane techniczne
HDS 9/14
HDS 9/14
HDS 12/14
HDS 12/14
1.698-915
1.698-916
1.699-915
1.699-916
Parametry robocze
Ci
ś
nienie robocze wody (z dysz
ą
standar-
dow
ą
)
MPa (bar)
14 (140)
14 (140)
14 (140)
14 (140)
Maks. ci
ś
nienie robocze przy czyszczeniu
par
ą
(z wykorzystaniem dyszy parowej)
MPa (bar)
3,2 (32)
3,2 (32)
3,2 (32)
3,2 (32)
Nr cz
ęś
ci dysza parowa
--
4.766-023
4.766-023
4.766-024
4.766-024
Maks. nadci
ś
nienie robocze (zawór bez-
piecze
ń
stwa)
MPa (bar)
17 (170)
17 (170)
17,5 (175)
17,5 (175)
Ilo
ść
wody (regulacja bezstopniowa)
l/h (l/min)
500-930
(8,3-15,5)
500-930
(8,3-15,5)
600-1200
(10-20)
600-1200
(10-20)
Zasysanie
ś
rodka czyszcz
ą
cego (regula-
cja bezstopniowa)
l/h (l/min)
0-50 (0-0,8)
0-50 (0-0,8)
0-60 (0-1)
0-60 (0-1)
Przy
łą
cze wody
Ilo
ść
doprowadzenia (min.)
l/h (l/min)
1100 (18,3)
1100 (18,3)
1300 (21,7)
1300 (21,7)
Ci
ś
nienie dop
ł
ywowe (min.)
MPa (bar)
0,1 (1)
0,1 (1)
0,1 (1)
0,1 (1)
Ci
ś
nienie dop
ł
ywowe (maks.)
MPa (bar)
1 (10)
1 (10)
1 (10)
1 (10)
Pod
łą
czenie do sieci
Rodzaj pr
ą
du
--
3N~
3N~
3N~
3N~
Cz
ę
stotliwo
ść
Hz
50
50
50
50
Napi
ę
cie
V
400
230
400
230
Pobór mocy
kW
6,4
6,4
7,5
7,5
Zabezpieczenie elektryczne (zw
ł
oczne)
A
16
25
20
32
Maksymalna dopuszczalna impedancja
sieci
Ohm
(0,381+j 0,238)
(0,381+j 0,238)
--
--
Elektryczny przewód doprowadzaj
ą
cy
mm
2
5 x 2,5
5 x 4
5 x 2,5
5 x 4
Temperatura
Temperatura doprowadzenia (maks.)
°C
30
30
30
30
Maks. temperatura gor
ą
cej wody
°C
98
98
98
98
Maks. temperatura robocza w trybie paro-
wym
°C
155
155
155
155
Zwi
ę
kszenie temperatury przy maks. prze-
p
ł
ywie wody
°C
56±2
56±2
54±2
54±2
Moc grzewcza brutto
kW
68
68
85
85
Zu
ż
ycie paliwa
kg/h
5,8
5,8
7,1
7,1
Ci
ą
g komina
kPa
0,01-0,04
0,01-0,04
0,01-0,04
0,01-0,04
Przep
ł
yw masy spalin - pe
ł
ne obci
ąż
enie
kg/h
124
124
155
155
Wymiary i ci
ęż
ar
D
ł
ugo
ść
mm
1110
1110
1110
1110
szeroko
ść
mm
565
565
565
565
wysoko
ść
mm
690
690
700
700
Ci
ęż
ar w
ł
asny
kg
140
140
160
160
Warto
ś
ci okre
ś
lone zgodnie z EN 60355-2-79
Emisja ha
ł
asu
Poziom ci
ś
nienie akustycznego L
pA
dB (A)
74
74
76
76
Niepewno
ść
pomiaru K
pA
dB (A)
1
1
1
1
Drgania przenoszone przez ko
ń
czyny górne
R
ę
czny pistolet natryskowy
m/s
2
2,2
2,2
2,3
2,3
Lanca
m/s
2
1,8
1,8
2,1
2,1
Niepewno
ść
pomiaru K
m/s
2
1,0
1,0
1,0
1,0
334
PL
-
9
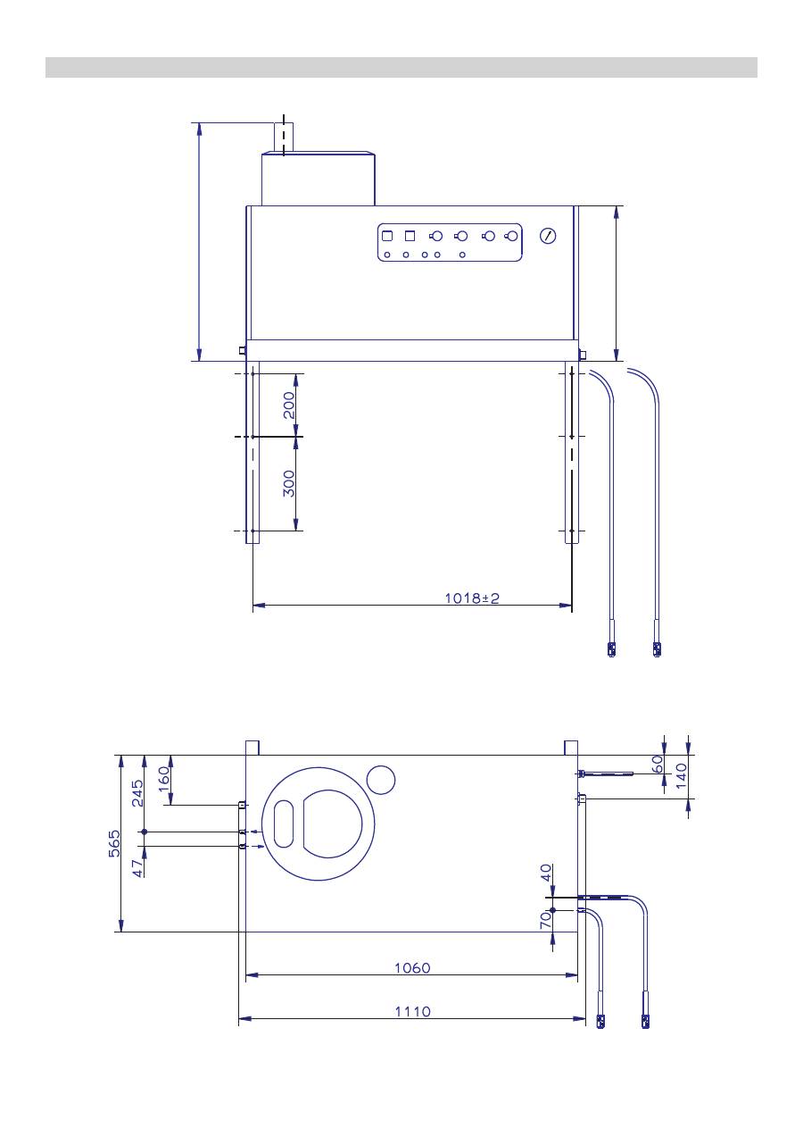
Arkusz z wymiarami
700
510
335
PL
-
10
Niebezpiecze
ń
stwo
Niebezpiecze
ń
stwo zranienia! Przed wszelkimi pracami konser-
wacyjnymi i naprawczymi nale
ż
y wy
łą
cza
ć
wy
łą
cznik g
ł
ówny
wzgl. wyj
ąć
wtyczk
ę
Cekon.
Czyszczenie i konserwacja
Plan konserwacji
Termin
Zaj
ę
cie
Dane podzespo
ł
y Wykonanie
przez
kogo
codziennie
Sprawdzi
ć
pisto-
let natryskowy
R
ę
czny pistolet natryskowy
Sprawdzi
ć
, czy pistolet natryskowy szczelnie si
ę
zamyka. Sprawdzi
ć
zabezpieczenie przed nieza-
mierzonym u
ż
yciem. Wymieni
ć
uszkodzony pi-
stolet natryskowy.
Obs
ł
uguj
ą
cy
Sprawdzi
ć
w
ęż
e
wysokoci
ś
nie-
niowe
Przewody wyj
ś
ciowe, we
ż
e do
urz
ą
dzenia roboczego
Sprawdzi
ć
w
ęż
e pod k
ą
tem uszkodze
ń
. Ntych-
miast wymieni
ć
uszkodzone w
ęż
e. Zagro
ż
enie
wypadkiem!
Obs
ł
uguj
ą
cy
Sprawdzi
ć
prze-
wód zasilaj
ą
cy z
wtyczk
ą
siecio-
w
ą
Przy
łą
cze elektryczne z wtycz-
k
ą
/gniazdkiem
Sprawdzi
ć
przewód zasilaj
ą
cy z wtyczk
ą
siecio-
w
ą
pod k
ą
tem uszkodze
ń
. W przypadku uszko-
dzenia przewodu zasilaj
ą
cego niezw
ł
ocznie
zleci
ć
jego wymian
ę
autoryzowanemu serwisowi
lub elektrykowi.
Obs
ł
uguj
ą
cy
Tygodniowo lub
po up
ł
ywie 40 ro-
boczogodzin
Sprawdzi
ć
stan
oleju
Zbiornik olejowy na pompie
Je
ż
eli olej staje si
ę
mleczny, nale
ż
go wymieni
ć
. Obs
ł
uguj
ą
cy
Sprawdzi
ć
po-
ziom oleju
Zbiornik olejowy na pompie
Sprawdzi
ć
poziom oleju w pompie. W razie po-
trzeby dola
ć
olej (nr katalogowy 6.288-016).
Obs
ł
uguj
ą
cy
Oczy
ś
ci
ć
sitko
Sito na wej
ś
ciu wody
Patrz fragment "Czyszczenie sit".
Obs
ł
uguj
ą
cy
Po 200 roboczo-
godzinach lub raz
w miesi
ą
cu
Oczy
ś
ci
ć
i
sprawdzi
ć
elek-
trody zap
ł
onu
Elektrody zap
ł
onu w pokrywie
podgrzewacza przep
ł
ywowego
przewód paliwowy odkr
ę
ci
ć
, wymontowa
ć
wspornik elektrod i wyczy
ś
ci
ć
elektrody. Spraw-
dzi
ć
ustawienia elektrod zgodnie ze schematem
na nastepnej stronie i w razie konieczno
ś
ci usta-
wi
ć
.
Obs
ł
uguj
ą
cy
z przeszkole-
niem
Sprawdzi
ć
pom-
p
ę
Pompa wysokoci
ś
nieniowa
Sprawdzi
ć
szczelno
ść
pompy. W przypadku wi
ę
-
cej ni
ż
3 kropli na minut
ę
wezwa
ć
serwis.
Obs
ł
uguj
ą
cy
Sprawdzi
ć
, czy
nie ma osadów
wewn
ą
trz.
ca
ł
e urz
ą
dzenie W
łą
czy
ć
urz
ą
dzenie z rurk
ą
strumieniow
ą
bez
dyszy wysokoci
ś
nieniowej. Je
ż
eli ci
ś
nienie robo-
cze wzrasta na manometrze urz
ą
dzenia powy
ż
ej
3 MPa, nale
ż
y odkamieni
ć
urz
ą
zdenie. To samo
obowi
ą
zuje, gdy podczas pracy bez przewodu
wysokiego ci
ś
nienia (woda wyp
ł
ywa swobodnie
z wyj
ś
cia wysokiego ci
ś
nienia) zostanie stwier-
dzone ci
ś
nienie robocze powy
ż
ej 0,7–1 MPa.
Obs
ł
uguj
ą
cy
z przeszkole-
niem w za-
kresie
odkamienia-
nia
Oczy
ś
ci
ć
sitko
Sitko w zabezpieczeniu przed
prac
ą
na sucho
Patrz fragment "Czyszczenie sit".
Obs
ł
uguj
ą
cy
Raz na pó
ł
roku
lub po up
ł
ywie
1000 roboczogo-
dzin
Wymiana oleju
Pompa wysokoci
ś
nieniowa
Spu
ś
ci
ć
olej. Dola
ć
1 l oleju (nr katalogowy
6.288-016). Kontrolowa
ć
poziom w zbiorniku ole-
jowym.
Obs
ł
uguj
ą
cy
sprawdzi
ć
,
oczy
ś
ci
ć
ca
ł
e urz
ą
dzenie
Kontrola wzrokowa urz
ą
dzenia, sprawdzi
ć
szczelno
ść
przy
łą
czy wysokiego ci
ś
nienia,
sprawdzi
ć
szczelno
ść
zaworu nadmiarowego,
sprawdzi
ć
w
ąż
wysokocisnieniowy, sprawdzic
zbiornik ci
ś
nieniowy, sprawdzi
ć
/wymieni
ć
filtr pa-
liwowy, odrdzawi
ć
/odkamieni
ć
p
ę
tl
ę
grzewcz
ą
,
oczy
ś
ci
ć
/wymieni
ć
elektrody zap
ł
onu, oczy
ś
ci
ć
/
wymieni
ć
dysze palnika, ustawi
ć
palnik.
Serwis firmy
raz w roku
Kontrola bezpie-
cze
ń
stwa
ca
ł
e urz
ą
dzenie Przeprowadzi
ć
kontrol
ę
bezpiecze
ń
stwa zgod-
nie z w
ł
a
ś
ciwymi, krajowymi przepisami dotycz
ą
-
cymi strumienic cieczowych.
Ekspert
Najpó
ź
niej co 5 lat Kontrola ci
ś
nie-
nia
ca
ł
e urz
ą
dzenie Przeprowadzi
ć
kontrol
ę
ci
ś
nienia zgodnie z zale-
ceniami producenta.
Ekspert
336
PL
-
11
Z w
ł
a
ś
ciwym biurem sprzeda
ż
y firmy Kärcher mo
ż
na podpisa
ć
umow
ę
dotycz
ą
c
ą
konserwacji urz
ą
dzenia.
Rysunek 1 - poz. 3
Zamkn
ąć
dop
ł
yw wody.
Odkr
ę
ci
ć
od urz
ą
dzenia w
ąż
doprowadzaj
ą
cy wod
ę
.
Wysun
ąć
sitko
ś
rubokr
ę
tem z przy
łą
cza.
Oczy
ś
ci
ć
sitko
Monta
ż
w odwrotnej kolejno
ś
ci.
Zdj
ąć
os
ł
ony.
Odkr
ę
ci
ć
k
ą
townik bloku zabezpieczaj
ą
cego.
Wkr
ę
ci
ć
ś
rub
ę
M8x30 w sitko.
Wyci
ą
gn
ąć
ś
rub
ę
i sitko szczypcami.
Oczy
ś
ci
ć
sitko
Monta
ż
w odwrotnej kolejno
ś
ci.
Elektrody zap
ł
onu nale
ż
y ustawi
ć
zgodnie z nastepuj
ą
cymi zada-
niami:
W przypadku z
ł
ogów w rurach wzrasta opór strumienia, co mo
ż
e
doprowadzi
ć
do wyzwolenia wy
łą
cznika ci
ś
nieniowego.
Niebezpiecze
ń
stwo
Niebezpiecze
ń
stwo wybuchu przez gazy palne! Podczas usuwa-
nia kamienia palenie tytoniu jest wzbronione. Zadba
ć
o dobr
ą
wentylacj
ę
.
Niebezpiecze
ń
stwo
Niebezpiecze
ń
stwo poparzenia kwasami! Zak
ł
ada
ć
okulary
ochronne i r
ę
kawice ochronne.
Dousuwania kamienia zgodnie z przepisami mo
ż
na stosowa
ć
tyl-
ko atestowane
ś
rodki do rozpuszczania kamienia opatrzone zna-
kiem jako
ś
ci.
–
RM 100 (nr katalogowy 6.287-008) rozpuszcza kamie
ń
i pro-
ste zwi
ą
zki kamienia i resztek
ś
rodka czyszcz
ą
cego.
–
RM 101 (nr katalogowy 6.287-013) rozpuszcza osady, któ-
rych nie mo
ż
e usun
ąć
RM 100.
Nape
ł
ni
ć
zbiornik 20 litrowy 15 l wody.
Doda
ć
do tego 1 litr odkamieniacza.
W
ąż
wodny pod
łą
czy
ć
bezpo
ś
rednio do g
ł
owicy pompy i wol-
ny koniec w
ł
o
ż
y
ć
do zbiornika.
W
ł
o
ż
y
ć
pod
łą
czon
ą
rurk
ę
strumieniow
ą
bez dyszy do zbiorni-
ka.
Otworzy
ć
pistolet natryskowy i nie zamyka
ć
podczas usuwa-
nia kamienia.
W
łą
czy
ć
w
łą
cznik urz
ą
dzenia na „Palnik w
ł
.“, doosiagniecia
temp. ok. 40 °C.
Wy
łą
czy
ć
urz
ą
dzenie i pozostawi
ć
na 20 minut. Pistolet natry-
skowy musi pozosta
ć
otwarty.
Nast
ę
pnie ca
ł
kowicie odpompowa
ć
urz
ą
dzenie.
Wskazówka:
Zalecamy u
ż
ycie roztworu alkalicznego (np. RM
81) i przepompowanie go przez zbiornik
ś
rodka czyszcz
ą
cego
przez urz
ą
dzenie w celu ochrony antykorozyjnej oraz neutraliza-
cji pozosta
ł
o
ś
ci kwasów.
Urz
ą
dzenie nale
ż
y odstawia
ć
w pomieszczeniach chronionych
przed mrozem. W przypadku zagro
ż
enia mrozem, np. przy insta-
lacjach w obszarze zewn
ę
trznym, urz
ą
dzenie nale
ż
y opró
ż
ni
ć
i
przep
ł
uka
ć
ś
rodkiem przeciwdzia
ł
aj
ą
cym zamarzaniu.
Odkr
ę
ci
ć
w
ąż
doprowadzaj
ą
cy wod
ę
i w
ąż
wysokoci
ś
nienio-
wy.
W
łą
czy
ć
urz
ą
dzenie na maks. 1 minut
ę
, aby pompa i przewo-
dy zosta
ł
y opró
ż
nione z wody.
Odkr
ę
ci
ć
przewód zasilaj
ą
cy od dna kot
ł
a i opró
ż
ni
ć
w
ęż
ow-
nic
ę
grzejn
ą
.
Wskazówka:
Przy u
ż
yciu stosowa
ć
si
ę
do wskazówek produ-
centa
ś
rodka przeciwdzia
ł
aj
ą
cego zamarzaniu.
Wla
ć
do zbiornika p
ł
ywakowego do pe
ł
na
ś
rodek przeciw-
dzia
ł
aj
ą
cy zamarzaniu dost
ę
pny w handlu.
Zbiornik odbieraj
ą
cy ustawi
ć
pod wyj
ś
ciem wysokiego ci
ś
nie-
nia.
W
łą
czy
ć
urz
ą
dzenie, które powinno pracowa
ć
, a
ż
za
łą
czy si
ę
zabezpieczenie przed prac
ą
na sucho zbiornik ap
ł
ywakowe-
go i wy
łą
czy urz
ą
dzenie.
W ten sposób zapewniona jest w pewnym stopniu ochrona anty-
korozyjna.
Umowa serwisowa
Oczy
ś
ci
ć
sitka
Sito na wej
ś
ciu wody
Sitko w zabezpieczeniu przed prac
ą
na sucho
Ustawianie elektrod
A
B
C
a
HDS 9/14
4,5±0,5
3,5±0,5
3+0,5
60°
HDS 12/14
3,5±0,5
3,5±0,5
3+0,5
60°
2.
1.
A
B
C
a
Usuwanie kamienia
Wykonanie
Ochrona przeciwmrozowa
Spuszczanie wody
P
ł
ukanie urz
ą
dzenia
ś
rodkiem przeciwdzia
ł
aj
ą
cym zamarza-
niu
337
PL
-
12
Niebezpiecze
ń
stwo
Niebezpiecze
ń
stwo zranienia! Przed wszelkimi pracami konser-
wacyjnymi i naprawczymi nale
ż
y wy
łą
cza
ć
wy
łą
cznik g
ł
ówny
wzgl. wyj
ąć
wtyczk
ę
Cekon.
*
Wskazówka
Wy
łą
czy
ć
i w
łą
czy
ć
urz
ą
dzenie, aby usun
ąć
usterke palnika.
**
Usuwanie usterek
Usterka
Mo
ż
liwa przyczyna
Usuwanie usterek
przez kogo
Urz
ą
dzenie nie dzia
ł
a, kon-
trolka gotowo
ś
ci do pracy (F)
nie
ś
wieci si
ę
Brak napi
ę
cia w urz
ą
dzeniu.
Sprawdzi
ć
sie
ć
elektryczn
ą
.
Elektryk
Wy
łą
cznik bezpiecze
ń
stwa dzia
ł
a. Na krótko wy
łą
czy
ć
i nast
ę
pnie ponownie
w
łą
czy
ć
urz
ą
dzenie za pomoc
ą
w
łą
cznika
urz
ą
dzenia.
Obs
ł
uguj
ą
cy
Przepalony bezpiecznik w obwo-
dzie sterowania (F3). Bezpiecznik
jest zawarty w transformatorze ste-
rowania (T2).
W
ł
o
ż
y
ć
nowy bezpiecznik, przy ponownym
przepaleniu usun
ąć
przyczyn
ę
przeci
ąż
enia.
Serwis firmy
Wy
łą
cznik ci
ś
nieniowy HD (wyso-
kiego ci
ś
nienia) lub ND (niskiego
ci
ś
nienia) uszkodzony.
Sprawdzi
ć
wy
łą
cznik ci
ś
nieniowy.
Serwis firmy
Modu
ł
Timer (A1) uszkodzony.
Sprawdzi
ć
przy
łą
cza, w razie konieczno
ś
ci
wymieni
ć
.
Serwis firmy
+ kontrolka przegrzania silni-
ka (G)
ś
wieci si
ę
Termoczujnik (WS) w silniku lub
prze
łą
cznik ochronny pr
ą
du nad-
miarowego (F1) wyzwolony.
Usun
ąć
przyczyn
ę
przeci
ą
zenia.
Serwis firmy
Zabezpieczenie przed prac
ą
na
sucho w zbiorniku p
ł
ywakowym
w
łą
czy
ł
o si
ę
.
Usun
ąć
brak wody.
Obs
ł
uguj
ą
cy
Palnik nie zapala si
ę
lub p
ł
o-
mie
ń
ga
ś
nie podczas pracy
Regulator temperatury (B) usta-
wiony za nisko.
Ustawi
ć
regulator temperatury wy
ż
ej.
Obs
ł
uguj
ą
cy
W
łą
cznik urz
ą
dzenia nie jest usta-
wiony na palnik.
W
łą
czy
ć
palnik.
Obs
ł
uguj
ą
cy
Zabezpieczenie przed prac
ą
na
sucho bloku zabezpieczaj
ą
cego
wy
łą
czy
ł
o si
ę
.
Zapewni
ć
wystarczaj
ą
cy dop
ł
yw wody.
Sprawdzi
ć
szczelno
ść
urz
ą
dzenia.
Obs
ł
uguj
ą
cy
Zapala si
ę
kontrolka usterki
palnika (E)*
Pusty zbiornik paliwa.
Wlewanie paliwa
Obs
ł
uguj
ą
cy
Filtr paliwowy zapchany.
Oczy
ś
ci
ć
filtr paliwa, w tym celu wykr
ę
ci
ć
filtr
paliwa, oczy
ś
ci
ć
i ponownie wkr
ę
ci
ć
.
Obs
ł
uguj
ą
cy
Fotokomórka kontroli p
ł
omienia
nieprawid
ł
owo skierowana lub
uszkodzona.
Sprawdzi
ć
prawid
ł
owe zamocowanie fotoko-
mórki. **
Obs
ł
uguj
ą
cy
Kein Zündfunke vorhanden (durch
Schauglas im Brennerdeckel fest-
stellbar).
Sprawdzi
ć
odst
ę
p mi
ę
dzy elektrodami, trans-
formator zap
ł
onu i kable zap
ł
onu. Skorygo-
wa
ć
odst
ę
p lub wymieni
ć
uszkodzone cz
ęś
ci.
Oczy
ść
w razie konieczno
ś
ci.
Serwis firmy
Silnik palnika zablokowany
Usun
ąć
blokad
ę
. Usun
ąć
korek (I) w polu ob-
s
ł
ugi i odblokowa
ć
prze
łą
cznik ochronny pr
ą
-
du nadmiarowego. Za
ł
o
ż
y
ć
ponownie korek.
Serwis firmy
Usterka pompy paliwowej lub za-
woru elektromagnetycznego pali-
wa.
Sprawdzi
ć
cz
ęś
ci i wymieni
ć
uszkodzone
elementy.
Obs
ł
uguj
ą
cy
338
PL
-
13
Usterka
Mo
ż
liwa przyczyna
Usuwanie usterek
przez kogo
Pulsuje kontrolka usterki pal-
nika (E)
Ogranicznik temperatury spalin
wyzwolony.
Otworzy
ć
pistolet natryskowy, a
ż
do och
ł
o-
dzenia urz
ą
dzenia. Wy
łą
czy
ć
i w
łą
czy
ć
urz
ą
-
dzenie w polu obs
ł
ugi, aby odblokowa
ć
ogranicznik temperatury spalin. Je
ż
eli uster-
ka si
ę
powtórzy, wezwa
ć
serwis.
Obs
ł
uguj
ą
cy
Kontrolka ochrony przed
osadzaniem kamienia (H)
ś
wieci si
ę
Ś
rodek zmi
ę
kczaj
ą
cy zu
ż
yty.
Nala
ć
ś
rodka zmi
ę
kczaj
ą
cego. Obs
ł
uguj
ą
cy
Niewystarczaj
ą
ce t
ł
oczenie
ś
rodka czyszcz
ą
cego lub
jego brak
Zawór dozuj
ą
cy w po
ł
o
ż
eniu „0“.
Ustawianie zaworu dozuj
ą
cego
ś
rodek
czyszcz
ą
cy
Obs
ł
uguj
ą
cy
Filtr
ś
rodka czyszcz
ą
cego zapcha-
ny lub pusty zbiornik.
Oczy
ś
ci
ć
lub dola
ć
.
Obs
ł
uguj
ą
cy
W
ęż
e ss
ą
ce, zawór dozuj
ą
cy i
elektromagnetyczny
ś
rodka czysz-
cz
ą
cego zapchany lub nieszczel-
ny.
Sprawdzi
ć
, oczy
ś
ci
ć
.
Obs
ł
uguj
ą
cy
Elektronika lub zawór elektromag-
netyczny uszkodzony.
Wymieni
ć
Serwis firmy
Urz
ą
dzenie nie wytwarza ca
ł
-
kowicie ci
ś
nienia
Przep
ł
uka
ć
dysz
ę
.
Wymieni
ć
dysz
ę
.
Obs
ł
uguj
ą
cy
Zbiornik
ś
rodka czyszcz
ą
cego pu-
sty.
Uzupe
ł
ni
ć
ś
rodek czyszcz
ą
cy.
Obs
ł
uguj
ą
cy
Niewystarczaj
ą
ca ilo
ść
wody.
Zadba
ć
o wystarczaj
ą
c
ą
ilo
ść
wody.
Obs
ł
uguj
ą
cy
Sitko na wej
ś
ciu wody zapchane. Sprawdzi
ć
, wymontowa
ć
sitko i oczy
ś
ci
ć
.
Obs
ł
uguj
ą
cy
Zawór dozuj
ą
cy
ś
rodka czyszcz
ą
-
cego nieszczelny.
Sprawdzi
ć
i uszczelni
ć
.
Obs
ł
uguj
ą
cy
Zawór dozuj
ą
cy
ś
rodka czyszcz
ą
-
cego nieszczelny.
Wymieni
ć
Obs
ł
uguj
ą
cy
Zawór p
ł
ywakowy zakleszczy
ł
si
ę
. Sprawdzi
ć
dzia
ł
anie.
Obs
ł
uguj
ą
cy
Zawór zabezpieczaj
ą
cy nieszczel-
ny.
Sprawdzi
ć
ustawienia, w razie potrzeby za
ł
o-
ż
y
ć
nowe uszczelki.
Serwis firmy
Zawór reguluj
ą
cy przep
ł
yw inesz-
czelny lub ustawiony za nisko.
Sprawdzi
ć
cz
ęś
ci zaworów, wymieni
ć
, je
ś
li
s
ą
uszkodzone, oczy
ś
ci
ć
, je
ś
li s
ą
zabrudzo-
ne.
Serwis firmy
Zawór elektromagnetyczny do
zwalinania ci
ś
nienia uszkodzony.
Wymieni
ć
zawór elektromagnetyczny.
Serwis firmy
Pompa wysokoci
ś
ieniowa
stuka, silne wahania mano-
metru
Uszkodzony amortyzator waha
ń
.
Wymieni
ć
amortyzator waha
ń
.
Serwis firmy
Pompa wodna zasysa ma
łą
ilo
ść
powietrza.
Sprawdzi
ć
system ss
ą
cy i usun
ąć
nieszczel-
ni
ś
ci.
Obs
ł
uguj
ą
cy
Przy otwartym r
ę
cznym pi-
stolecie natryskowym urz
ą
-
dzenia stale wy
łą
cza si
ę
i
w
łą
cza
Dysza rurki strumieniowej zapcha-
na.
Sprawdzi
ć
, oczy
ś
ci
ć
.
Obs
ł
uguj
ą
cy
Urz
ą
dzenie jest pokryte kamie-
niem.
Patrz fragment „Usuwanie kamienia“.
Obs
ł
uguj
ą
cy
Punkt w
łą
czania prze
łą
cznika nad-
miarowego przestawi
ł
si
ę
.
Ponownie ustawi
ć
prze
łą
cznik nadmiarowy. Serwis firmy
Sitko w zabezpieczeniu przed pra-
c
ą
na sucho zapchane.
Sprawdzi
ć
, wymontowa
ć
sitko i oczy
ś
ci
ć
.
Obs
ł
uguj
ą
cy
Urz
ą
dzenie nie wy
łą
cza si
ę
przy zamkni
ę
tym pistolecie
natryskowym.
Pompa nie jest ca
ł
kowicie odpo-
wietrzona.
Ustawi
ć
prze
łą
cznik urz
ą
dzenia na „0“ i po-
ci
ą
gn
ąć
pistolet natryskowy, a
ż
z dyszy nie
b
ę
dzie wycieka
ć
ż
adna ciecz. Ponownie w
łą
-
czy
ć
urz
ą
dzenie. Powtórzy
ć
t
ę
procedur
ę
, a
ż
zostanie osi
ą
gni
ę
te pe
ł
ne ci
ś
nienie robocze.
Obs
ł
uguj
ą
cy
Zawór bezpiecze
ń
stwa lub
uszczelka zaworu bezpiecze
ń
stwa
uszkodzona.
Wymieni
ć
zawór bezpiecze
ń
stwa lub
uszczelk
ę
.
Serwis firmy
339
PL
-
14
Ś
rodki czyszcz
ą
ce u
ł
atwiaj
ą
czyszczenie. W tabeli przedstawio-
no wybór
ś
rodków czyszcz
ą
cych. Przed u
ż
yciem
ś
rodków czysz-
cz
ą
cych nale
ż
y koniecznie przestrzega
ć
wskazówek zawartych
na opakowaniu produktu.
* = uzycie tylko przez krótki czas, metoda dwustopniowa, sp
ł
uki-
wanie wod
ą
** = ASF =
ś
rodek str
ą
caj
ą
cy
*** = do wst
ę
pnego spryskania nadaje si
ę
Foam-Star 2000
Akcesoria
Ś
rodek czyszcz
ą
cy
Zastosowanie
Zabrudzenie, rodzaj zastosowa-
nia
Ś
rodek czyszcz
ą
cy
poziom pH-Wert (ok.)
1 %-owy roztwór w
wodzie
przemys
ł
samochodowy,
stacje benzynowe, spe-
dycja, park
ś
rodków prze-
wozowych
py
ł
, zanieczyszczenia komunikacji
drogowej, oleje mineralne (na po-
wierzchniach lakierowanych)
RM 55 ASF **
8
RM 22/80 proszek ASF
12/10
RM 81 ASF
9
RM 803 ASF
10
RM 806 ASF
11
Konserwacja pojazdów
RM 42 zimny wosk do wysokoci
ś
nieniowych
urz
ą
dze
ń
czyszcz
ą
cych
8
RM 820 gor
ą
cy wosk ASF
7
RM 821 wosk w aerozolu ASF
6
RM 824-Super wosk per
ł
owy ASF
7
RM 44
ś
rodek do czyszczenia felg w
ż
elu
9
Przemys
ł
obróbki metali oleje, smary, py
ł
i podobne zanie-
czyszczenia
RM 22 proszek ASF
12
RM 55 ASF
8
RM 81 ASF
9
RM 803 ASF
10
RM 806 ASF
12
RM 31 ASF (silne zabrudzenie)
12
RM 39 p
ł
yn (z ochron
ą
antykorozyjn
ą
)
9
Zak
ł
ady przetwórstwa
spo
ż
ywczego
Zabrudzenia - od
ł
agodnych do
ś
rednich, t
ł
uszcze/oleje, du
ż
e po-
wierzchnie
RM 55 ASF
8
RM 81 ASF
9
RM 882 piana w
ż
elu OSC
12
RM 58 ASF (pianka czyszcz
ą
ca)
9
RM 31 ASF *
12
Ż
ywica
RM 33 *
13
Czyszczenie i dezynfekcja
RM 732
9
Dezynfekcja
RM 735
7...8
Kamie
ń
, osady mineralne
RM 25 ASF *
2
RM 59 ASF (pianka czyszcz
ą
ca)
2
Obszar sanitarny ***
kamie
ń
, kamie
ń
moczowy, myd
ł
a
itp
RM 25 ASF * (czyszczenie podstawowe)
2
RM 59 ASF (pianka czyszcz
ą
ca)
2
RM 68 ASF
5
340
PL




