Karcher HDS-C 9-15 Steel: Filling in detergents
Filling in detergents: Karcher HDS-C 9-15 Steel
-
3
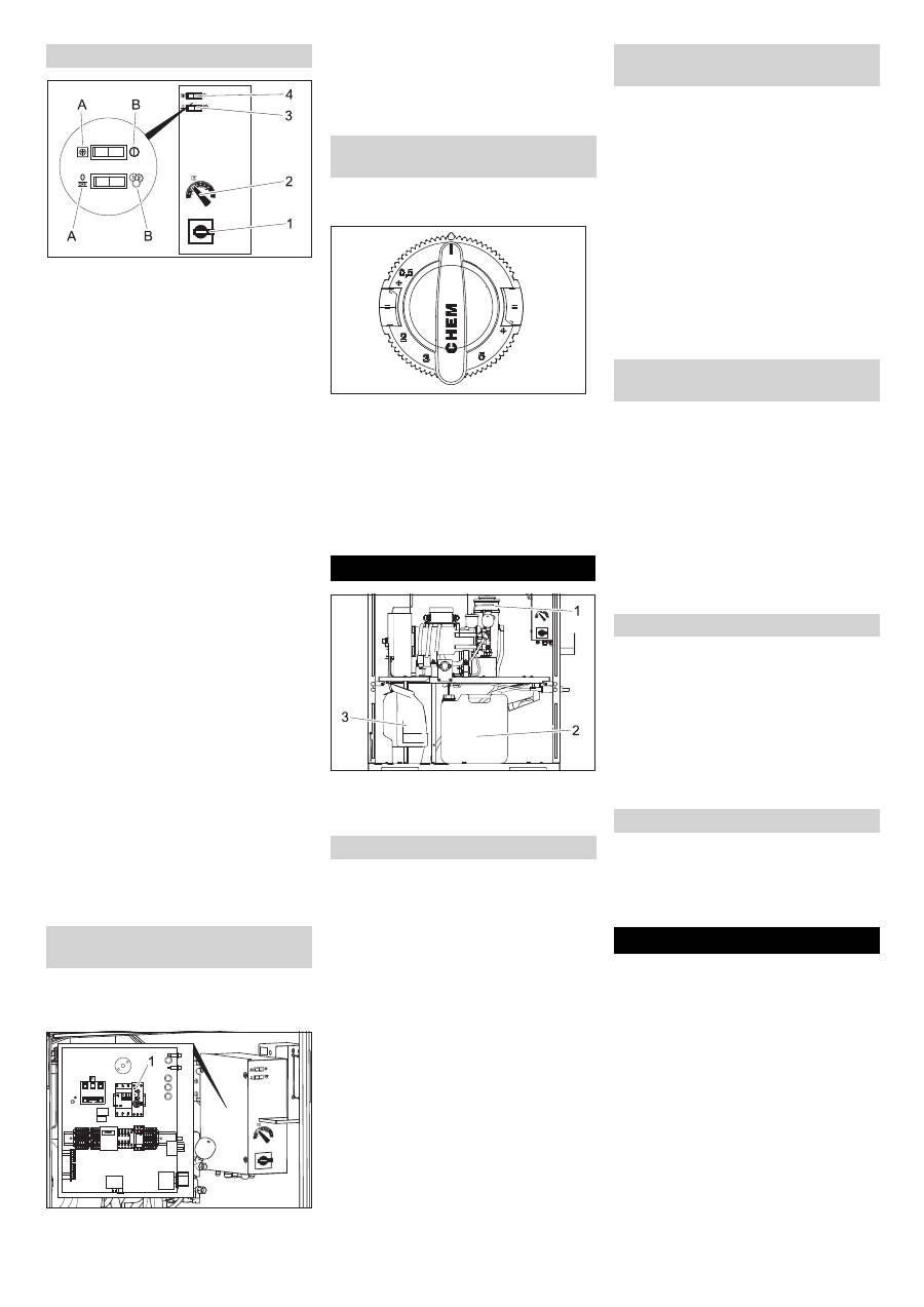
1 Main switch
2 Temperature controller
3 Switch for continuous operations/ coin
verifier
4 Freeze protection switch/ On
–
Position 0:
Unit has been switched off.
Frost proteciton is active
–
Position 1:
Unit is ready-to-use.
The water temperature is set at the thermo-
stat.
–
30...50 °C for slight dirt.
–
50...60 °C for cleaning machines and
cars.
The maximum permissible water tempera-
ture for SB operations is 60 °C. (See Tech-
nical Data for maximum possible water
temperature.)
A
Continuous operation position:
Plant
functions without throwing in coin.
B
Coin verifier position:
Plant functions
only when coins are thrown in.
A
Freeze protect position:
Plant is not
ready for use; freeze protect has been
activated. Indicator lamp for operational
readiness does not light up.
B
Position On:
Unit is ready-to-use. Indi-
cator lamp for operational readiness
lights up.
Caution
The frost protection equipment functions
only when the main switch is at Position 1.
The washing time for each coin that is
thrown in can be set between 1 and 10 min-
utes at the time relay.
1 Time relay
Turn the main switch to position "0"
Remove the cover of the switching cab-
inet.
Set the time relay to the desired period.
Replace the lid of the switching cabinet.
The dosing valve is used for adjusting the
detergent quantity that is added.
Dosing can be set from 0 to 6% of deter-
gent. The scale on the dosing valve gives
an approximate value. Exact dosing de-
pends on the viscosity of the detergent
used and the ambient temperature. Deter-
mine the exact values by measuring the
amount of detergent that has been sucked
in. Regulate accordingly for lower ambient
temperatures.
1 RM 110
2
Detergent
3 Fuel
Danger!
There is a danger because of dangerous to
your health materials. All Kärcher cleaning
agents to contain safety, and application
notices. Notices concerning the application
must be read and obeyed. There listed pro-
tection clothing/protection kit must be wear.
Follow the safety instructions for using de-
tergents.
Caution
If the tank of the cleaning agent is empty,
the high pressure pump will suck air, and
can be damaged. Check the detergent tank
at regular intervals. The filters must be at
the bottom of the detergent tank.
Open detergent can.
Mix the detergent with water according
to the details provided on the can.
Refill detergent or replace the container
with a full container.
Close the detergent container.
When you want to completely clean the
cleaning agent container or to commission
the appliance for the first time, it is neces-
sary to first deaerate the suction pipe:
Set the washing programme with deter-
gent (at the programme selection
switch).
Turn the detergent dosing valve to max-
imum dose.
Start the high pressure pump by open-
ing the hand spray gun and wait until
the vacuum pipe is free of air bubbles.
Close the hand spray gun.
Turn back the dosage valve to the initial
value.
Danger
Risk of fire. Follow local regulations for
handling fuels.
Caution
If the fuel tank is empty, the fuel pump runs
dry; this can damage the pump. Check the
fuel tank regularly.
Open the fuel tank.
Fill in the fuel (see technical specifica-
tions).
Close the fuel tank.
Caution
Absence of a softener liquid can lead to the
formation of calcium deposits in the plant
and disrupt its functioning. Check regularly
the filling level in the container for softener
liquid.
Open the container for softener liquid.
Fill in RM 110.
Close container.
The coin counter is located above the coin
verifier inside the plant. It displays the
number of coins that have been thrown in.
To reset, press the button below the dis-
play.
Caution
Risk of damage if there is frosting. Only the
insides of the plant are protected against
frosting. If there is risk of frosting, unscrew
the high pressure hose along with the
hand-spray gun and store it at a frost-free
location. The plant cannot be operated un-
der frost conditions.
The anit freeze equipment contains:
–
Thermal insulation
–
Hot air blower
몇
Warning
Danger of injury by freezing. By freezing
shuts down the equipment, in order to
avoid danger of injury.
Settings at the switching cabinet
Main switch
Temperature controller
Switch for continuous operations/ coin
verifier
Switch On/ freeze protect
Settings in the switching cabinet
(only for ABS Münzprüfer)
Settings at the detergent dosing
valve
Filling in detergents
Pouring in detergent
Deaerating the vacuum pipe for the
cleaning agent
Refill fuel (only for HDS-C 7/11 and
HDS-C 9/15)
Refilling the softener
Coin counter (optional)
Frost protection
19 EN
Оглавление
- Deutsch
- Bedienung
- Betriebsstoffe einfüllen
- Stilllegung
- Funktion
- Technische Daten
- Wartung und Pflege
- Hilfe bei Störungen
- Zubehör
- TransportLagerung Anlage installieren (Nur für Fachkräfte)
- EG-Konformitätserklärung
- Protokoll für Hochdruckprüfung
- English
- Operations
- Filling in detergents
- Shutdown
- Function
- Specifications
- Maintenance and care
- Troubleshooting
- Accessories
- Transport Storage Installing the unit (only for ex- perts)
- EC Declaration of Conformity
- Log of high pressure testing
- Français
- Utilisation
- Réglages
- Protection antigel
- Remisage
- Fonction
- Caractéristiques techniques
- Entretien et maintenance
- Assistance en cas de panne
- Accessoires
- Garantie Transport Entreposage Installation de l'appareil (Uni- quement pour les spécia- listes)
- Déclaration de conformité CE
- Rapport de contrôle de la haute pression
- Italiano
- Uso
- Impostazioni
- Antigelo
- Funzione
- Dati tecnici
- Cura e manutenzione
- Guida alla risoluzione dei guasti
- Accessori
- GaranziaTrasporto Supporto Installazione dell'impianto (solo personale specializzato)
- Dichiarazione di conformità CE
- Protocollo per controllo alta pressione
- Español
- Manejo
- Configuraciones
- Protección antiheladas
- Puesta fuera de servicio
- Datos técnicos
- Mantenimiento y cuidado
- Ayuda en caso de avería
- Accesorios
- Declaración de conformidad CE
- Protocolo para la inspección de alta presión
- Português
- Manuseamento
- Ajustes
- Protecção contra o congela- mento
- Desactivação da máquina
- Dados técnicos
- Manutenção e conservação
- Ajuda em caso de avarias
- Acessórios
- Garantia Transporte Armazenamento Instalar instalação (Apenas para técnicos autorizados)
- Declaração de conformidade CE
- Protocolo para o controlo de alta pressão
- Nederlands
- Bediening
- Bedrijfsstoffen vullen
- Stilllegging
- Functie
- Technische gegevens
- Onderhoud en instandhouding
- Hulp bij storingen
- Toebehoren
- Garantie Vervoer Opslag Installatie installeren (alleen voor vaklui)
- EG-conformiteitsverklaring
- Protocol voor hogedrukcontrole
- Περιεχόμενα
- Χειρισμός
- Ρυθμίσεις
- Αντιπαγετική προστασία
- Ακινητοποίηση
- Τεχνικά χαρακτηριστικά
- Φροντίδα και συντήρηση
- Αντιμετώπιση βλαβών
- Εξαρτήματα
- Δήλωση Συμμόρφωσης των Ε . Κ .
- Πρωτόκολλο ελέγχου υψηλής πίεσης
- Polski
- Obs ł uga
- Ustawienia
- Ochrona przeciwmrozowa
- Przeznaczenie
- Dane techniczne
- Dogl ą d i piel ę gnacja
- Usuwanie usterek
- Akcesoria
- Gwarancja Transport Przechowywanie Instalacja urz ą dzenia (Tylko dla wykwalifikowanych pra- cowników)
- Deklaracja zgodno ś ci UE
- Protokó ł badania wysokiego ci ś nienia
- Оглавление
- Эксплуатация
- Настройки
- Защита от замерзания
- Вывод из эксплуатации
- Назначение
- Технические данные
- Техническое обслуживание и уход
- Помощь в случае непола - док
- Принадлежности
- Гарантия Транспортировка Хранение Монтаж установки - Только для специалистов
- Заявление о соответствии ЕС
- Протокол проверки системы высокого давления

