Karcher HDS 9-14-4 ST: !
!: Karcher HDS 9-14-4 ST
-
14
–
Aggregatets värmeanordning är en pannanläggning. Beakta
lokala gällande föreskrifter vid uppställning.
–
Använd endast utprovade skorstenar/avgasledningar.
Fara
Risk för skållning! Denna symbol måste finnas vid varje anslut-
ningspunkt.
När en bränsletank placeras i materialrummet skall direktiv betäf-
fande lagring av brännbara substanser beaktas (kan beställas
hos Carl Heymanns Verlag, Köln, www.heymanns.com).
Vid dragning av bränsleledningar skall nedan visade diagram be-
aktas.
Det skall finnas ett två-ledningssystem, till- och frånflöde.
–
Maximalt oljeförtryck: 0,05 MPa (0,5 bar)
–
Maximalt undertryck mellan bränslefilter och pump: 0,04 MPa
(0,4 bar)
Sugledningslängd i m
Sughöjd i m
Möjlig sugledningslängd hos rör med NW 8
–
Varje aggregat måste anslutas till en egen kamin.
–
Avgasledningen skall utföras enligt lokalt gällande föreskrifter
och i samråd med ansvarig sotarmästare.
Vi rekommenderar montering av dragdämpare mellan anlägg-
ning och kamin.
Hänvisning
För att uppnå föreskrivna förbränningsvärden måste det kamin-
drag som anges under Tekniska data följas.
–
Före montering måste kontrolleras att väggen har tillräcklig
bärkraft. Medföljande monteringsmaterial är lämpligt för be-
tong. För hålbetong-, tegelsten- och gasbetongväggar skall
passande plugg och skruvar användas, t.ex. injektionsankare
(se ritning för borrbild).
–
Bild 3 - pos. 19 och 23
Aggregatet får inte ha stel anslutning till vattenlednings- och
högtrycksledningsnätet. Anslutningsslangarna måste monte-
ras.
–
Bild 3 - A
En spärrkran skall finnas mellan vattenledningsnätet och an-
slutningsslangen.
Vid montering av högtrycksledningar ska föreskrivna nationella
riktlinjer för elinstallationer beaktas.
–
Tryckfallet i rörledningen måste ligga under 1,5 MPa.
–
Den färdiga rörledningen måste kontrolleras med 28 MPa.
–
Rörledningens isolering måste tåla temperaturer upp till 155
°C.
Bild 3 - pos. 20
Behållare skall placeras på sådant sätt att rengöringsmedlets
undre nivåspegel inte ligger lägre än 1,5 m under aggregatets
botten och den övre nivåspegeln inte befinner sig över aggrega-
tets botten.
Bild 3 - B och pos. 19
Anslut vatteningången till vattenledningsnätet med passande
vattenslang.
–
Vattenförsörjningen måste minst uppgå till 1300 l/h vid minst
0,1 MPa.
–
Vattentemperaturen måste ligga under 30 °C.
Varning
Maximalt tillåten nätimpedans på den elektriska anslutnings-
punkten (se Tekniska data) får inte överskridas. Vid oklarheter
gällande den aktuella nätimpedansen som gäller för din anslut-
ningspunkt, ta kontakt med ditt energiförsörjningsföretag.
Observera:
Tillkopplingsåtgärder skapar kortvariga spännings-
fall. Vid ogynnsamma nätförhållanden kan störningar på andra
apparater uppträda.
–
Anslutningsvärde, se Tekniska data och typskylten.
–
Den elektriska anslutningen måste utföras av en elektriker
och motsvara IEC 60364-1.
–
Strömförande delar, kablar och aggregat inom arbetsområdet
måste vara vattentäta i felfritt tillstånd.
För att undvika elolyckor rekommenderar vi att endast använda
nätuttag som är kopplade till en jordfelsbrytare (max. 30 mA no-
minella utlösningsströmstyrka).
Gör elektrisk anslutning.
En låsbar huvudströmbrytare (bild 3 - pos. 6) skall monteras på
lättåtkomlig plats så att den stationära högtryckstvätten kan
stängas av.
Kontaktöppningsbredden hos huvudströmbrytaren måste vara
minst 3 mm.
Montera Cekonkontakt på aggregatets anslutningskabel.
Stick in Cekonkontakten i eluttaget.
Cekonkontakten måste vara lätt att nå när den stationära hög-
tryckstvätten skall stängas av och skiljas från nätet.
Anläggningsinstallering
Endast för behörig personal!
Allmänt
Byt ut högtrycksmun-
stycke mot ångmun-
stycke vid
arbetstemperaturer
över 100 °C.
Bränsletank
Bränsleledningar
Rökgasledning
!
Väggmontering
Montering av högtrycksledningarna
Uppställning rengöringsmedelsbehållare
Vattenförsörjning
Elanslutning
Fast installerad elanslutning
Elanslutning med kontakt/uttag
190
SV
-
15
Kapa bort spetsen på locket till oljebehållaren på vattenpum-
pen före första användning.
Fara
Risk för explosion! Fyll endast på diesel eller lätt värmeolja.
Olämpligt bränsle, som exv. bensin, får ej användas.
Fyll bränslebehållaren.
Varning
Varmvattendrift utan drivmedel leder till skador på drivmedels-
pumpen. Säkerställ drivmedelsförsörjningen innan varmvatten-
drift startas.
Bild 3 - pos. 14
Förbind högtrycksslangen med handspruta och strålrör och
anslut till högtrycksutgången på aggregatet eller till hög-
trycksledningsnätet.
Fäst dysmunstycket (b) med mantelmutter (a) på strålröret
(d). Var noga med att tätningsringen (c) ligger korrekt i spåret.
Tag bort fjäder (c) från lockstaget (b) till avhärdningsbehålla-
ren (a).
Fyll behållare med Kärcher-avhärdningsvätska RM 110
(best.nr. 2.780-001).
Fara
Farlig elektrisk spänning! Inställning får endast göras av elektri-
ker.
Ta reda på aktuell vattenhårdhet:
–
hos lokalt vattenverk,
–
med testutrustning (best.nr. 6.768-004).
Lyft bort huv.
Öppna kopplingsskåp på manöverpanelen.
Ställ in vridpotetiometer (a) efter aktuell vattenhårdhet. Rätt
inställning kan avläsas i tabellen.
Exempel:
Ställ in skalvärde 6 på vridpotentiometern vid vattenhårdhet på
15 °dH. Detta ger en paus på 31 sekunder vilket innebär att mag-
netventilen öppnar kort var 31:a sekund.
Stand by - perioden ställs in på det stora kretskortet som sitter på
elskåpets vänstra sida.
Stand by - tiden har vid tillverkningen ställts in på minimiperioden
två minuter och kan utökas till som mest åtta minuter.
Första ibruktagning
Åtgärder före idrifttagning
Skydd mot förkalkning
a
b
c
d
b
c
a
Vattenhårdhet (°dH)
5
10
15
20
25
Skala på vridpotentionmeter
8
7
6
5
4,5
Pausperiod (sekunder)
50
40
31
22
16
Justera stand by - period
a
8 7 6 5 4 3 2 1
S2
min.
max.
191
SV
-
16
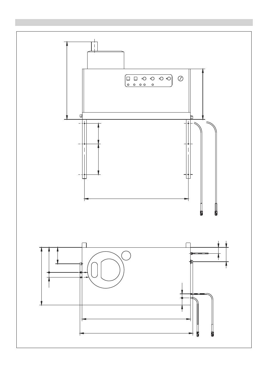
Bild 3
Installeringsmaterial
1 2 3 4 5 6 7 8 9 10 12 13
21 20 19 18 17 16 15 14
11b 11a
11d
11c
A
B 19a
24
11a
23
22
11b
1060 (1124)
~1050
600
Pos. Installeringsmaterial
Beställ-
ningsnr.
1
Vinkelfäste
6.386-356
2
Rökgasvinkelrör 90°
7.234-605
Rökgasvinkelrör 45°
7.234-604
3
Rökgasledning
7.234-603
4
Dragdämpare rökgasledning HDS 9/14-4 4.656-080
Dragdämpare rökgasledning HDS 12/14-4 4.656-079
5
Värmeisolering
6.286-114
6
Huvudströmbrytare
6.631-455
7
Rörledningssats, galvat stål
2.420-004
Rörledningssats, rostfritt stål
2.420-006
8
Delsats fjärrstyrning
2.744-008
9
Delsats nödstoppsreglage
2.744-002
10
T-skruvfäste
6.386-269
11a
Anslutningsfästen, mässing
2.638-180
Anslutningsfästen, rostfritt stål
2.638-181
11b
Spärrkran NW 8, galvat stål
4.580-144
Spärrkran NW 8, rostfritt stål
4.580-163
11c
Snabbkoppling fast del
6.463-025
11d
Snabbkoppling lös del
6.463-023
Pos. Installeringsmaterial
Beställ-
ningsnr.
12
Slanghållare
2.042-001
13
Slangtrumma
2.637-238
14
Högtrycksslang 10 m
6.388-083
15
Handspruta Easypress
4.775-463
Vridreglage HDS 9/14-4
4.775-470
Vridreglage HDS 12/14-4
4.775-471
16
Strålrörsfäste
2.042-002
17
Spolrör
4.760-550
18
Dysmunstycke HDS 9/14-4
2.883-402
Dysmunstycke HDS 12/14-4
2.883-406
19
Vattenslang
4.440-282
19a
Magnetventil vattentillförsel
4.743-011
20
Tank för rengöringsmedel, 60 l
5.070-078
21
Bränsletank 600 l
6.392-050
22
Delsats väggfäste
2.053-005
Delsats golvram
2.210-008
23
Högtrycksslang
6.389-028
24
Rörklämma
6.373-374
192
SV
-
17
Härmed försäkrar vi att nedanstående betecknade maskin i än-
damål och konstruktion samt i den av oss levererade versionen
motsvarar EU-direktivens tillämpliga grundläggande säkerhets-
och hälsokrav. Vid ändringar på maskinen som inte har godkänts
av oss blir denna överensstämmelseförklaring ogiltig.
5.957-054
Undertecknade agerar på order av och med fullmakt från före-
tagsledningen.
Dokumentationsbefullmäktigad:
S. Reiser
Alfred Kärcher GmbH & Co. KG
Alfred-Kärcher-Str. 28 - 40
71364 Winnenden (Germany)
Tel.: +49 7195 14-0
Fax: +49 7195 14-2212
Winnenden, 2014/02/01
I respektive land gäller de garantivillkor som publicerats av våra
auktoriserade distributörer. Eventuella fel på aggregatet repare-
ras utan kostnad under förutsättning att det orsakats av ett mate-
rial- eller tillverkningsfel.
Försäkran om EU-överensstämmelse
Produkt:
Högtryckstvätt med ångsteg
Typ:
1.698-xxx
Typ:
1.699-xxx
Tillämpliga EU-direktiv
97/23/EG
2006/42/EG (+2009/127/EG)
2004/108/EG
Modulens kategori
II
Konformitetsförfarande
Modul H
Värmerör
Konformitetsförfarande modul H
Säkerhetsventil
Konformitetsbedömning art. 3 avs. 3
Styrblock
Konformitetsförfarande modul H
diverse rörledningar
Konformitetsbedömning art. 3 avs. 3
Tillämpade harmoniserade normer
EN 55014–1: 2006+A1: 2009+A2: 2011
EN 55014–2: 1997+A1: 2001+A2: 2008
EN 60335–1
EN 60335–2–79
EN 61000–3–2: 2006+A1: 2009+A2: 2009
HDS 12/14:
EN 61000–3–3: 2008
HDS 9/14:
EN 61000–3–11: 2000
Tillämpade specifikationer:
AD 2000 i anslutning till
TRD 801 i anslutning till
Namn på nämnd instans:
Till 97/23/EG
TÜV Rheinland Industrie Service GmbH
Am Grauen Stein
51105 Köln
Känneteckningsnr 0035
CEO
Head of Approbation
Garanti
193
SV
-
18
Kundservice
Anläggningstyp:
Tillverkningsnr.
Ibruktagning den:
Kontroll genomförd den:
Resultat:
Underskrift
Kontroll genomförd den:
Resultat:
Underskrift
Kontroll genomförd den:
Resultat:
Underskrift
Kontroll genomförd den:
Resultat:
Underskrift
194
SV
-
19
Observera:
Rekommendationer för provningsfrister för respekti-
ve lands nationella krav måste beaktas.
Återkommande provningar
Provning genomförd av:
Utvändig kontroll
Invändig kontroll
Hållfasthetprovning
Namn
Underskrift från behörig
person/datum
Underskrift från behörig
person/datum
Underskrift från behörig
person/datum
Namn
Underskrift från behörig
person/datum
Underskrift från behörig
person/datum
Underskrift från behörig
person/datum
Namn
Underskrift från behörig
person/datum
Underskrift från behörig
person/datum
Underskrift från behörig
person/datum
Namn
Underskrift från behörig
person/datum
Underskrift från behörig
person/datum
Underskrift från behörig
person/datum
Namn
Underskrift från behörig
person/datum
Underskrift från behörig
person/datum
Underskrift från behörig
person/datum
Namn
Underskrift från behörig
person/datum
Underskrift från behörig
person/datum
Underskrift från behörig
person/datum
Namn
Underskrift från behörig
person/datum
Underskrift från behörig
person/datum
Underskrift från behörig
person/datum
Namn
Underskrift från behörig
person/datum
Underskrift från behörig
person/datum
Underskrift från behörig
person/datum
Namn
Underskrift från behörig
person/datum
Underskrift från behörig
person/datum
Underskrift från behörig
person/datum
Namn
Underskrift från behörig
person/datum
Underskrift från behörig
person/datum
Underskrift från behörig
person/datum
Namn
Underskrift från behörig
person/datum
Underskrift från behörig
person/datum
Underskrift från behörig
person/datum
195
SV
-
1
Lue tämä alkuperäisiä ohjeita ennen laitteesi käyttä-
mistä, säilytä käyttöohje myöhempää käyttöä tai mah-
dollista myöhempää omistajaa varten.
–
Lue turvaohjeet nro 5.956-309 ehdottomasti ennen laitteen
ensimmäistä käyttökertaa!
–
Jos havaitset kuljetusvaurioita, ota välittömästi yhteys jälleen-
myyjään.
Huomautuksia materiaaleista (REACH)
Ajantasaisia tietoja ainesosista löytyy osoitteesta:
www.kaercher.com/REACH
Vaara
Välittömästi uhkaava vaara, joka aiheuttaa vakavan ruumiinvam-
man tai johtaa kuolemaan.
몇
Varoitus
Mahdollisesti vaarallinen tilanne, joka voi aiheuttaa vakavan ruu-
miinvamman tai voi johtaa kuolemaan.
Varo
Mahdollisesti vaarallinen tilanne, joka voi aiheuttaa lievän ruu-
miinvamman tai aineellisia vahinkoja.
Epäasianmukaisesti käytettyinä suurpainesuihkut voi-
vat olla vaarallisia. Suihkua ei saa suunnata ihmisiin,
eläimiin, aktiivisiin sähkövarusteisiin tai itse laittee-
seen.
–
Kunkin maan lainlaatijan säätämiä, korkeapainepesulaitteita
koskevia kansallisia määräyksiä on noudatettava.
–
Kunkin maan lainlaatijan säätämiä, työturvallisuutta koskevia
kansallisia määräyksiä on noudatettava. Korkeapainepesu-
laitteet on tarkastettava säännöllisin väliajoin ja tarkastuksen
tulokset on tallennettava kirjallisesti.
–
Laitteen vedenlämmityslaitteisto on poltinlaitteisto. Poltinlait-
teistot on säännöllisesti tarkastettava kunkin maan lainsäätä-
jän säätämien määräysten mukaisesti.
–
Kun laitetta käytetään suljetuissa tiloissa, pakokaasujen vaa-
rattomasta johtamisesta ulkoilmaan on huolehdittava (pako-
kaasuputki ilman sulkupeltiä). Lisäksi riittävä raitisilman
saanti on oltava varmistettuna.
–
Voimassa olevien kansallisten määräysten mukaisesti tulee
pätevän henkilön suorittaa ensimmäinen käyttöönotto, jos
korkeapainepesuria käytetään ammattimaisesti. KÄRCHER
on jo suorittanut ja dokumentoinut tämän käyttöönoton. Asiaa
koskevan dokumentaation saat pyydettäessä KÄRCHER
edustajaltasi. Pidä laitteen osa- ja tehdasnumero valmiina do-
kumentaatiota pyytäessäsi.
–
Viittaamme siihen, että pätevän henkilön on voimassa olevien
kansallisten määräysten mukaisesti tarkastettava laite toistu-
vasti. Käänny asiassa KÄRCHER edustajasi puoleen.
–
Noudata turvaohjeita (yleensä pakkauksen etiketissä), jotka
on liitetty käytettävien puhdistusaineiden mukaan.
Sisällysluettelo
Ympäristönsuojelu. . . . . . . .
FI
. . 1
Käyttöohjeessa esiintyvät symbolit
FI
. . 1
Laitteessa olevat symbolit . .
FI
. . 1
Yleiset turvaohjeet. . . . . . . .
FI
. . 1
Käyttötarkoitus . . . . . . . . . .
FI
. . 2
Toiminta. . . . . . . . . . . . . . . .
FI
. . 2
Turvalaitteet . . . . . . . . . . . .
FI
. . 2
Laitteen osat . . . . . . . . . . . .
FI
. . 3
Käyttöönotto . . . . . . . . . . . .
FI
. . 4
Käyttö . . . . . . . . . . . . . . . . .
FI
. . 4
Käytön lopettaminen . . . . . .
FI
. . 6
Seisonta-aika . . . . . . . . . . .
FI
. . 6
Säilytys . . . . . . . . . . . . . . . .
FI
. . 6
Kuljetus . . . . . . . . . . . . . . . .
FI
. . 6
Tekniset tiedot . . . . . . . . . . .
FI
. . 7
Hoito ja huolto . . . . . . . . . . .
FI
. . 9
Häiriöapu. . . . . . . . . . . . . . .
FI
. 11
Tarvikkeet . . . . . . . . . . . . . .
FI
. 13
Laitteiston asennus . . . . . . .
FI
. 14
EU-standardinmukaisuustodistus
FI
. 17
Takuu. . . . . . . . . . . . . . . . . .
FI
. 17
Asiakaspalvelu . . . . . . . . . .
FI
. 18
Toistuvat tarkastukset . . . . .
FI
. 19
Ympäristönsuojelu
Pakkausmateriaalit ovat kierrätettäviä. Älä käsittelee
pakkauksia kotitalousjätteenä, vaan toimita ne jättei-
den kierrätykseen.
Käytetyt laitteet sisältävät arvokkaita kierrätettäviä
materiaaleja, jotka tulisi toimittaa kierrätykseen. Paris-
toja, öljyjä ja samankaltaisia aineita ei saa päästää
ympäristöön. Tästä syystä toimita kuluneet laitteet
asianmukaisiin keräyspisteisiin.
Huolehdi, ettei moottoriöljyä, polttoöljyä, dieseliä tai bensiiniä
pääse valumaan luontoon. Suojaa maaperää ja hävitä jäteöljy
ympäristöystävällisesti.
Kärcher-puhdistusaineet ovat helposti saostavia (ASF). Se tar-
koittaa, että öljyä liuottavan aineen toiminta ei esty. Suositelluis-
ta puhdistusaineista on luettelo kohdassa "Tarvikkeet".
Käyttöohjeessa esiintyvät symbolit
Laitteessa olevat symbolit
Palovammavaara! Varoitus kaamista rakenneo-
sista.
Yleiset turvaohjeet
196
FI
-
2
Ennen laitteen asentamista asiasta tulee sopia paikallisen nuo-
houstoimen kanssa.
Asennustyössä on noudatettava rakennusalan, elinkeinotoimin-
nan harjoittamisen ja immissiosuojan määräyksiä. Viittaamme
seuraaviin määräyksiin, ohjeisiin ja standardeihin:
–
Laitteen saa asentaa vain alan ammattilainen kansallisten
määräysten mukaisesti.
–
Sähköasennustöissä on noudatettava kansallisia määräyksiä.
–
Vain Kärcher-asiakaspalvelun kouluttama asentaja saa suo-
rittaa polttimen säädöt, kunnossapito- ja korjaustyöt.
–
Savutorven suunnittelussa on noudatettava paikallisia mää-
räyksiä.
Työalue on laitteiston käyttöpaikalla. Työskentelypaikkoja ovat
myös kulloisenkin laitteiston asennuksen mukaan ne alueet, joi-
hin on asennettu vedenottopiste ja liitetty suihkutusvälineet.
–
Käytä sopivia suojavaatteita ja suojalaseja takaisin ruiskuval-
ta vedeltä tai lialta suojaamiseksi.
Laitteella puhdistetaan vesisuihkun avulla likaa erilaisilta pinnoil-
ta. Laite sopii erityisesti koneiden, ajoneuvojen ja julkisivujen
puhdistamiseen.
Vaara
Loukkaantumisvaara! Jos laitetta käytetään huoltoasemilla tai
muissa vastaavissa paikoissa, on noudatettava asianmukaisia
turvamääräyksiä.
–
Kylmä vesi johdetaan moottorinjäähdytyskierukan ja uimuri-
säiliön kautta korkeapainepumpun imupuolelle. Uimurisäili-
öön annostellaan vedenpehmennysainetta. Pumppu
pumppaa vettä ja mukaan imettyä puhdistusainetta läpivir-
tauskuumentimen lävitse. Puhdistusaineen määrää voidaan
säätää annosteluventtiilin avulla. Läpivirtauskuumentajaa
lämmitetään polttimen avulla.
–
Paineveden tulo liitetään rakennuksessa olevaan painevesi-
verkkoon. Korkeapaineletku ja pesurin käsikahva liitetään
painevesiverkkoon vesiliitäntäpisteessä.
Turvalaitteet on tarkoitettu käyttäjän suojaamiseksi loukkaantu-
miselta, eikä niitä saa poistaa käytöstä, eikä niiden toimintoa saa
ohittaa.
Alivesisuoja estää korkeapainepumpun käynnistymisen, jos vet-
tä on liian vähän.
Vedenpuutesuoja estää polttimen ylikuumenemisen vedenpuu-
tetilanteissa. Poltin käy vain, kun vedensyöttö on riittävä.
Painekytkin keskeyttää laitteen toiminnan, mikäli työpaine ylittyy.
Säätöä ei saa muuttaa.
Painekytkimen toimintahäiriön sattuessa varoventtiili aukeaa.
Venttiili on säädetty ja sinetöity tehtaalla. Säätöä ei saa muuttaa.
Liekinvalvonta sammuttaa polttimen, jos polttoainetta on liian vä-
hän tai polttimessa on häiriö. Polttimen häiriöstä ilmoittava merk-
kivalo (E) syttyy.
Jos polttimen moottori kytkeytyy irti, ylijännitesuojan kytkin lauke-
aa. Korkeapainepumpun moottori on suojattu moottorinsuoja- ja
käämisuojakytkimellä.
Pakokaasutermostaatti laukeaa, kun pakokaasun lämpötila nou-
see yli 300 °C. Laite kytkeytyy pois päältä.
Kun pesurin käsikahvasta on keskeytetty laitteen toiminta, käyt-
tövalmiusajan päätyttyä avautuu korkeapainejärjestelmään liitet-
ty magneettiventtiili. Venttiili pudottaa käyttöpaineen alas.
Määräykset, ohjeet ja säännöt
Työskentelypaikat
Henkilökohtaiset suojavarusteet
Käytä kuulosuojaimia sellaisessa puhdistus-
työssä, jossa syntyy kovaa melua.
Käyttötarkoitus
Älä päästä mineraalipitoista jätevettä valumaan maaperään, ve-
sistöön tai viemäriverkkoon. Moottorin ja auton pohjan pesu on
suoritettava tästä syystä puhdistukseen soveltuvalla ja öljyerot-
timella varustetulla paikalla.
Toiminta
Turvalaitteet
Uimurikammion alivesisuoja
Alivesisuoja-turvayksikkö
Painekytkin
Turvaventtiili
Liekinvalvonta
Ylijännitesuoja
Palokaasutermostaatti
Korkeapainejärjestelmän paineen pudotus
197
FI
-
3
Kuva 1
1 Poltin
2 Painemittari
3 Syöttövesi ja siivilä
4 Korkeapaine-ulostulo
5 Polttoaineen syöttöletku
6 Polttoaineen paluuletku
7 Pesuaineen imuletku I
8 Pesuaineen imuletku II (lisävaruste)
9 Vedenpehmennysaineen säiliö
10 Sähköjohto
11 Uimurisäiliö
12 Ohjauspaneeli
Kuva 2
A Laitekytkin
B Lämpötilasäädin
C Pesuaineen annosteluventtiili I
D Pesuaineen annosteluventtiili II (lisävaruste)
E Polttimen häiriön merkkivalo
F Käyttövalmiuden merkkivalo
G Moottorin kuumenemisen merkkivalo
H Kalkkiutumisen merkkivalo
I
Tulpan vapautuspainike poltinmoottori
Laitteen osat
6
5
7
8
3
4
9
11
10
1
12
2
Ohjauspaneeli
198
FI
-
4
몇
Vaara
Loukkaantumisvaara! Laitteen, syöttöputkien, korkeapaineletkun
ja liitosten on oltava moitteettomassa kunnossa. Jos kunto ei ole
moitteeton, laitteen ja varusteiden käyttö ei ole sallittua.
–
Katso liitäntäarvot teknisistä tiedoista ja tyyppikilvestä.
–
Sähköliitännät on suoritettava sähköasentajan toimesta ja nii-
den on oltava IEC 60364-1:n mukaisia.
Käyttäjän on käytettävä laitetta tarkoituksenmukaisesti. Käyttäjä
on huomioitava paikalliset olosuhteet ja työskennellessään lait-
teen kanssa huomioitava ympäristössä oleskelevat henkilöt.
Älä koskaan jätä laitetta valvomatta niin kauan kuin se on käytössä.
Vaara
–
Kuuma vesi aiheuttaa palovammojen vaaran! Älä suuntaa ve-
sisuihkua ihmisiin tai eläimiin.
–
Kuumat laiteosat aiheuttavat palovammojen vaaran! Älä koske
eristämättömiin putkiin ja letkuihin, jos käytät laitteessa kuumaa
vettä. Pidä kiinni vain suihkuputken tartuntapinnasta. Älä koske
läpivirtauskuumentimen palokaasujen poistomuhviin.
–
Pesuaineet aiheuttavat myrkytys- ja syöpymisvaaran! Nouda-
ta pesuaineiden käyttöohjeita. Säilytä pesuaineet poissa asi-
attomien ulottuvilta.
Vaara
Sähköiskun vaara - hengenvaara! Älä suuntaa vesisuihkua:
–
sähkölaitteisiin,
–
tähän laitteeseen
–
äläkä mihinkään työskentelyalueella olevaan sähköä johta-
vaan esineeseen.
Suihkuputkesta tuleva vesisuihku aiheuttaa takaisintyöntövoi-
man. Kulmaan taitettu suihkuputki aiheuttaa ylöspäin suuntautu-
van voiman.
Vaara
–
Loukkaantumisvaara! Voit menettää tasapainosi suihkuput-
ken työntövoimasta ja saatat horjahtaa. Suihkuputki saattaa
silloin päästä käsistäsi ja vahingoittaa ihmisiä. Katso, että sei-
sot tukevasti alustalla. Ota käsikahvasta kunnolla kiinni. Älä
sido käsikahvan liipasinta kiinni.
–
Älä suuntaa suihkua muihin ihmisiin tai itseesi vaatteiden tai
kenkien puhdistamiseksi.
–
Sinkoutuvien osien aiheuttama loukkaantumisvaara! Sinkou-
tuvat murtokappaleet tai esineet voivat loukata henkilöitä tai
eläimiä. Älä suuntaa vesisuihkua helposti rikkoontuviin tai ir-
rallaan oleviin esineisiin.
–
Onnettomuuden vaara rikkoontumisen takia! Pidä renkaisiin
ja niiden venttiileihin vähintään 30 cm välimatka.
몇
Varoitus
Terveydelle vahingolliset aineet aiheuttavat vaaran! Älä suihkuta
kohti esineitä, jotka sisältävät seuraavia terveydelle vahingollisia
aineita:
–
asbestia sisältävät materiaalit,
–
materiaalit, jotka mahdollisesti sisältävät muita terveydelle
haitallisia aineita.
Vaara
–
Vesisuihku (mahdollisesti kuuma vesisuihku) aiheuttaa va-
hingoittumisen vaaran! Laitteen käyttöön sopivat parhaiten
vain alkuperäiset Kärcher-korkeapaineletkut. Muiden letkujen
käytöstä emme ota mitään vastuuta.
–
Pesuaineet aiheuttavat terveyshaitan! Veteen mahdollisesti
sekoitetun pesuaineen vuoksi laitteesta tuleva vesi ei ole juo-
mavedeksi kelpaavaa.
–
Kuulo saattaa olla vaarassa työskennellessäsi melua aiheut-
tavien laitteiden parissa! Käytä siinä tapauksessa kuulosuo-
jaimia.
Vaara
Suihkuava, mahdollisesti kuuma vesi aiheuttaa onnettomuus-
vaaran!
Vaara
Tarkasta korkeapaineletkun kunto aina ennen käyttöä. Vaihda
vaurioitunut korkeapaineletku välittömästi.
Tarkista korkeapaineletku, putkistot, hanat ja suihkuputki en-
nen jokaista käyttöä vaurioiden varalta.
Tarkista, että letkuliitäntä on kunnolla kiinni ja tiivis.
Varo
Laitevahingon vaara, jos laitetta käytetään ilman vettä.
Tarkista pesuainesäiliön täyttötaso, lisää pesuainetta tarvitta-
essa.
Tarkista vedenpehmentimen määrä, lisää tarvittaessa.
Aseta valintakytkin (A) asentoon "0".
Sulje veden syöttöputki.
Käytä käsiruiskua niin kauan, kunnes laitteessa ei enää ole
painetta.
Kun määräventtiiliä säädetään myötäpäivään, käyttöpaine ja
syöttömäärä kasvaa.
Kun määräventtiiliä säädetään vastapäivään, käyttöpaine ja
syöttömäärä pienenee.
Käyttöönotto
Sähköliitäntä
Käyttö
Turvaohjeet
!
Käyttövalmiiksi saattaminen
Kytkentä pois päältä hätätilanteessa
Käyttöpaineen ja syöttömäärän säätäminen
Laitteen asetukset
R
199
FI
-
5
Vesimäärän säädintä myötäpäivään kääntämällä vettä tulee
enemmän ja suuremmalla paineella.
Vesimäärän säädintä vastapäivään kääntämällä vettä tulee
vähemmän ja pienemmällä paineella.
Avaa veden syöttöputki.
Symboli "Moottori käynnissä"
Vedä käsikahvan liipasimesta ja aseta kytkin (A) asentoon "1"
(moottori käynnissä).
Käyttövalmiuden merkkivalo (F) näyttää, milloin laite on käyt-
tövalmis.
Vaara
Palovaara!
Varo
Käyttö kuuma vesi -tilassa ilman polttoainetta rikkoo polttoaine-
pumpun. Varmista polttoaineen syöttö, ennen kuin käytät laitetta
kuuma vesi -tilassa.
Poltin voidaan sulkea tarvittaessa.
Symboli "Poltin toiminnassa"
Aseta kytkin (A) asentoon "Poltin toiminnassa".
Säädä haluamasi veden lämpötila säätimestä (B). Korkein
mahdollinen lämpötila on 98 °C.
Vaara
Palovaara!! Työskentelylämpötilan ollessa yli 98°C ei työpaine
saa ylittää 3,2 MPa (32 baaria).
Kun vaihdat kuuma vesi -tilasta höyrylle, anna laitteen jäähtyä ja
sulje laite. Vaihto tapahtuu seuraavasti:
Vaihda korkeapainesuutin höyrysuuttimeksi (lisävarus-
te).
Aseta lämpötilan säädin lukemaan 150 °C.
Säädä korkeapainepumpun määräventtiili minimi-vesimää-
rälle (käännä vastapäivään).
Säädä korkeapainepumpun määräventtiili maksimi-vesimää-
rälle (käännä myötäpäivään).
Säädä Easy Press -kahvan vesimäärän säätöventtiili minimi-
vesimäärälle (käännä vastapäivään).
–
Laitteen toiminta keskeytyy, kun käytön aikana vapautat kah-
van liipasimen.
–
Kun painat kahvan liipasinta uudestaan tietyn ajan (sääde-
tään ennalta 2 - 8 minuuttiin) kuluessa, laite jatkaa automaat-
tisesti toimintaansa.
–
Mikäli asetettu käyttövalmiusaika ylittyy, ajastettu turvakytkin
keskeyttää pumpun ja polttimen toiminnan. Käyttövalmiuden
merkkivalo (F) sammuu.
–
Laitteen käynnistämiseksi uudelleen käännä kytkin ensin
asentoon "0". Käynnistä laite sitten uudelleen. Mikäli käytät
laitetta kauko-ohjauksella, voit käynnistää laitteen myös kau-
ko-ohjauksen vastaavasta kytkimestä.
–
Ajoneuvoja saa puhdistaa vain viuhkasuuttimella (25°). Väli-
matkan kohteeseen pitää olla vähintään 30 cm. Renkaita ei
missään tapauksessa saa puhdistaa pyörösuuttimella.
Seuraava suutinvalikoima on käytettävissä kaikkiin muihin koh-
teisiin:
Jos putken pituus on enemmän kuin 20 m tai korkeapaineletkun
NW 8 pituus enemmän kuin 2 x 10 m, käytetään seuraavia suut-
timia:
Easy Press -kahvan (lisävaruste) säädöt
Käyttö kylmällä vedellä
Käyttö kuumalla vedellä
Käyttö höyryn avulla
Tilausnro
Tyyppi
4.766-023
HDS 9/14
4.766-024
HDS 12/14
Käyttö ilman Easy Press -kahvaa
Käyttö Easy Press -kahvalla (lisävaruste)
Käyttövalmius
Suutinvalikoima
Likaisuus
Suutin
Suihku-
kulma
Osa-nro
6.415
Paine
[MPa]
Takaisin-
työntö-
voima [N]
HDS 9/14
erittäin li-
kainen
00060
0°
-257
14
44
keskikova
25060
25°
-295
vähän li-
kainen
40060
40°
-301
HDS 12/14
erittäin li-
kainen
00080
0°
-150
14
55
keskikova
25080
25°
-152
vähän li-
kainen
40080
40°
-153
Likaisuus
Suutin
Suihku-
kulma
Osa-nro
6.415
Paine
[MPa]
Takaisin-
työntö-
voima [N]
HDS 9/14
erittäin li-
kainen
0075
0°
-419
10
37
keskiko-
va
2575
25°
-421
vähän li-
kainen
4075
40°
-422
HDS 12/14
erittäin li-
kainen
0010
0°
-082
10
46
keskiko-
va
2510
25°
-252
vähän li-
kainen
4010
40°
-253
200
FI
-
6
–
Pesuaine helpottaa puhdistustyötä. Se imetään erillisestä pe-
suainesäiliöstä.
–
Laitteen perusvarustukseen kuuluu yksi annosteluventtiili (C).
Lisävarusteena laitteeseen saa toisen annostelulaitteen (an-
nosteluventtiili D). Silloin on mahdollista imeä kahta eri pesu-
ainetta.
–
Annosteluventtiilien (C tai D) annostelumäärät säädetään oh-
jauspaneelista. Asetettu arvo tarkoittaa pesuaineen määrää
prosenteissa.
–
Ulompi asteikko tarkoittaa laimentamattoman pesuaineen
käyttöä (100 % CHEM).
–
Sisempi asteikko tarkoittaa laimennetun pesuaineen käyttöä
suhteessa 1 + 3 (25 % CHEM + 75 % vettä).
Seuraavasta taulukosta näet pesuaineen käytön ulomman astei-
kon arvoille:
Tarkka annostelumäärä riippuu:
–
pesuaineen viskositeetista
–
imukorkeudesta
–
korkeapaineletkun virtausvastuksesta
Mikäli annostelun on oltava aivan tarkka, imetty pesuaineen
määrä on mitattava (esim. imemällä pesuaine mittalasista).
Huomautus:
Puhdistusainesuositukset löydät luvusta "Lisätar-
vikkeet".
Varo
Jos vedenpehmennintä ei käytetä, saattaa läpivirtauskuumennin
kalkkiutua.
Kalkkiutumisen estämisen merkkivalo (H) vilkkuu, kun vedenpeh-
menninsäiliö on tyhjä.
Kuva 1 - Kohta 9
Lisää säiliöön vedenpehmennintä RM 110 (2.780-001).
Vaara
Palovammavaara kuuman veden vuoksi! Kun laitteessa on käy-
tetty kuumaa vettä tai höyryä, laitteen on annettava käydä jääh-
tymistä varten kylmällä vedellä ja pistoolin ollessa auki vähintään
kaksi minuuttia.
Kuuma vesi -käyttötilan jälkeen säädä lämpötilan säädin (B)
alimpaan lämpötilaan.
Käytä laitetta vähintään 30 sekuntia ilman pesuainetta.
Aseta valintakytkin (A) asentoon "0".
Sulje veden syöttöputki.
Käytä käsiruiskua niin kauan, kunnes laitteessa ei enää ole
painetta.
Kiinnitä käsiruiskupistoolin vipu varmuuspidätyspinteellä, jol-
loin laite ei kytkeydy käyttöön tahattomasti.
Kun laitetta ei käytetä pitkään aikaan tai se joudutaan säilyttä-
mään pakkasessa, toimi seuraavasti (ks. luku "Hoito ja kunnos-
sapito", kohta "Suojaus pakkasen varalta"):
Poista vesi.
Huuhdo laite jäätymisenestoaineella.
Kytke pääkytkin pois päältä ja varmista tai vedä Cekon-pisto-
ke irti pistorasiasta.
Varo
Loukkaantumis- ja vahingoittumisvaaravaara! Huomioi säilytettä-
essä laitteen paino.
Varo
Loukkaantumis- ja vahingoittumisvaaravaara! Huomioi kuljetetta-
essa laitteen paino.
Kun kuljetat laitetta ajoneuvoissa, varmista laite liukumisen ja
kaatumisen varalta kulloinkin voimassa olevien ohjesääntö-
jen mukaisesti.
Pesuaineen annostelu
HDS 9/14
Asento
0,5
1
5
Pesuaineen määrä [l/h]
14...15 22...24
50
Puhdistusainepitoisuus [%]
1,5
2,5
5
HDS 12/14
Asento
0,5
1
5
Pesuaineen määrä [l/h]
10...13 23...27
60
Puhdistusainepitoisuus [%]
1
2
5
Vedenpehmentimen lisäys
Käytön lopettaminen
Toimenpiteet pesuaineella puhdistamisen jälkeen
Laitteen kytkeminen pois päältä
Seisonta-aika
Säilytys
Kuljetus
201
FI
-
7
Tekniset tiedot
HDS 9/14
HDS 12/14
HDS 12/14
1.698-900
1.699-919
1.699-920
Suoritustiedot
Käyttöpaine, vesi (vakiosuuttimella)
MPa (bar)
14 (140)
14 (140)
14 (140)
Maks. käyttöpaine, höyrykäyttö (höyrysuuttimella)
MPa (bar)
3,2 (32)
3,2 (32)
3,2 (32)
Osa-nro Höyrysuutin
--
4.766-023
4.766-024
4.766-024
Maks. käyttöpaine (varmuusventtiili)
MPa (bar)
18,5 (185)
18,5 (185)
18,5 (185)
Veden määrä (portaattomasti säädettävissä)
l/h (l/min)
500-930
(8,3-15,5)
600-1200
(10-20)
600-1200
(10-20)
Syöttömäärä, höyrykäyttö
l/h (l/min)
470 (7,8)
600 (10)
600 (10)
Pesuaineen imu (portaattomasti säädettävissä)
l/h (l/min)
0-50 (0-0,8)
0-60 (0-1)
0-60 (0-1)
Vesiliitäntä
Tulomäärä (min.)
l/h (l/min)
1100 (18,3)
1300 (21,7)
1300 (21,7)
Tulopaine (min.)
MPa (bar)
0,1 (1)
0,1 (1)
0,1 (1)
Tulopaine (maks.)
MPa (bar)
0,6 (6)
0,6 (6)
0,6 (6)
Sähköliitäntä
Virtatyyppi
--
3N~
3N~
3N~
Taajuus
Hz
50
50
50
Jännite
V
400
400
230
Liitosjohto
kW
6,4
7,5
8,2
Sulake (hidas)
A
16
20
32
Suojatyyppi
--
IPX5
IPX5
IPX5
Kotelointiluokka
--
I
I
I
Suurin sallittu verkkovastus
Ohmia
(0,381+j 0,238)
--
--
Sähköjohto
mm
2
5 x 2,5
5 x 2,5
5 x 4
Lämpötila
Tulolämpötila (maks.)
°C
30
30
30
Maks. työskentelylämpötila, kuuma vesi
°C
98
98
98
Maks. työskentelylämpötila höyrykäytössä
°C
155
155
155
Lämpötilan nosto maks. vesimäärällä
°C
56±2
54±2
54±2
Lämmitysteho brutto
kW
68
85
85
Polttoaineen kulutus
kg/h
5,8
7,1
7,1
Savutorven veto
kPa
0,01-0,04
0,01-0,04
0,01-0,04
Palokaasujen virtaus - täysi kuormitus
kg/h
124
155
155
Mitat ja painot
Pituus
mm
1124
1124
1124
Leveys
mm
558
558
558
Korkeus
mm
687
699
699
Tyypillinen käyttöpaino
kg
164,4
178,8
178,8
Mitatut arvot EN 60355-2-79 mukaisesti
Melupäästö
Äänenpainetaso L
pA
dB(A)
74
76
76
Epävarmuus K
pA
dB(A)
1
1
1
Käsi-käsivarsi tärinäarvo
Käsiruiskupistooli
m/s
2
2,2
2,3
2,3
Suihkuputki
m/s
2
1,8
2,1
2,1
Epävarmuus K
m/s
2
1,0
1,0
1,0
202
FI
-
8
Mitat
6
8
7
/ 6
9
9
505
558
1124
246
158
1060
47
141
61
77
46
200
300
1018±2
203
FI
-
9
Vaara
Loukkaantumisvaara! Ennen kaikkia huolto- ja korjaustöitä, kytke
pääkytkin pois päältä ja varmista tai vedä Cekon-pistoke irti pis-
torasiasta.
Hoito ja huolto
Huoltokaavio
Ajankohta
Toiminta
Rakenneryhmä
Suoritus
suorittaja
päivittäin
Tarkasta käsi-
kahva
Käsiruiskupistooli
Tarkista, sulkeutuuko pistooli tiiviisti. Tarkista,
estääkö varmistus käsikahvan tahattoman käy-
tön. Vaihda viallinen pistooli.
Käyttäjä
Tarkasta korkea-
paineletku
Pesulaitteen lähtövesiputket ja
letkut
Tarkista letkujen kunto. Vaihda rikkoontuneet let-
kut välittömästi! Tapaturmavaara!
Käyttäjä
Tarkasta liitäntä-
johto ja verkko-
pistoke.
Sähköliitäntä pistokkeella/pis-
torasialla
Tarkasta liitäntäjohto ja verkkopistoke vaurioiden
varalta. Anna valtuutetun asiakaspalvelun/säh-
köalan ammattilaisen välittömästi vaihtaa vauri-
oitunut liitäntäjohto.
Käyttäjä
40 käyttötunnin
jälkeen tai viikoit-
tain
Tarkasta öljyn
laatu
Pumpun öljysäiliö
Jos öljy on maitomaista, se on vaihdettava.
Käyttäjä
Öljytason tarkis-
tus
Pumpun öljysäiliö
Tarkista pumpun öljymäärä. Lisää öljyä tarvitta-
essa (tilausnro 6.288-016).
Käyttäjä
Siivilän puhdis-
tus
Tuloveden siivilä
Katso kohta "siivilän puhdistus".
Käyttäjä
kuukausittain tai
200 käyttötunnin
jälkeen
Sytytyselektrodi-
en puhdistus ja
tarkastus
Sytytyselektrodit läpivirtaus-
kuumentimen kannessa
Kierrä polttoainejohto irti, irrota elektrodikannatin
ja puhdista elektrodit. Tarkasta elektrodien säätö
seuraavalla sivulla olevan piirustuksen mukai-
sesti ja säädä tarvittaessa.
Opastuksen
saanut käyt-
täjä
Tarkasta pumppu Korkeapainepumppu
Tutki, onko pumppu tiivis. Ota yhteys huoltoon,
mikäli pumppu vuotaa enemmän kuin 3 tippaa
minuutissa.
Käyttäjä
Tarkasta, onko
laitteen sisällä
saostumia
Koko laitteisto
Käytä laitetta suihkuputkella ilman korkeapaine-
suutinta. Jos laitteen manometri osoittaa käyttö-
paineen nousevan yli 3 MPa, laitteistossa on
suoritettava kalkinpoisto. Samoin on asian laita
myös, jos laitetta ilman korkeapaineletkua käy-
tettäessä (siis vesi virtaa vapaasti suoraan kor-
keapaineulostulosta) käyttöpaineen todetaan
olevan enemmän kuin 0,7–1 MPa .
Käyttäjä, kal-
kinpoisto-oh-
jeita
noudattaen
Siivilän puhdis-
tus
Alivesisuojan siivilä
Katso kohta "siivilän puhdistus".
Käyttäjä
puolivuosittain tai
1000 käyttötunnin
jälkeen
Öljynvaihto
Korkeapainepumppu
Laske öljy ulos. Lisää 1 litra öljyä (tilausnro
6.288-016). Tarkista säiliön öljytaso.
Käyttäjä
Tarkastus, puh-
distus
Koko laitteisto
Laitteiston näkötarkastus, korkeapaineliitosten
tiiviystarkastus, ylivirtausventtiilin tiiviystarkas-
tus, korkeapaineletkun tarkastus, painesäiliön
tarkastus, polttoainesuodattimen puhdistus / uu-
sinta, lämmityskierukan noen- ja kalkinpoisto,
sytytyselektrodien puhdistus / uusinta, poltin-
suuttimen puhdistus / uusinta, polttimen säätö.
Asiakaspal-
velu
vuosittain
Käyttöturvalli-
suuden tarkas-
tus
Koko laitteisto
Suorita käyttöturvallisuuden tarkastus kansallis-
ten lakisääteisten nesteenruiskutuslaitteita kos-
kevien määräysten mukaisesti.
Asiantuntija
Toistuvasti vii-
meistään joka 5.
vuosi
Painetarkastus
Koko laitteisto
Paineen tarkastus valmistajan ohjeiden mukai-
sesti.
Asiantuntija
204
FI
-
10
Voit tehdä huoltosopimuksen laitteen myyneen Kärcher-edusta-
jan kanssa.
Kuva 1 - Kohta 3
Sulje veden syöttöputki.
Irrota veden tuloletku laitteesta.
Työnnä siivilä ruuvimeisselillä pois paikastaan.
Siivilän puhdistus
Asenna paikkaansa päinvastaisessa järjestyksessä.
Irrota suojapelti.
Ruuvaa kulmaliitin irti turvalaitteesta.
Kierrä siivilän ruuvia M8x30.
Vedä pihdeillä ruuvi ja siivilä ulos.
Siivilän puhdistus
Asenna paikkaansa päinvastaisessa järjestyksessä.
Sytytyselektrodien tulee olla säädettynä seuraavasti:
Kun putkiin tulee saostumia, virtauspaine nousee. Painekytkin
saattaa laueta.
Vaara
Palavista kaasuista johtuva räjähdysvaara! Tupakointi on kiellet-
tyä kalkinpoiston ajan. Huolehdi hyvästä tuuletuksesta.
Vaara
Happojen aiheuttama syöpymisvaara! Käytä suojalaseja ja suo-
jahansikkaita.
Kalkin poistoon saa lain mukaan käyttää ainoastaan tarkastettuja
sekä hyväksymismerkillä varustettua kattilakiven poistoainetta.
–
RM 100 (tilausnumero 6.287-008) liuottaa kalkkikiven ja yk-
sinkertaiset kalkkikiven ja pesuainejäämien yhdisteet.
–
RM 101 (tilausnumero 6.287-013) liuottaa kerrostumat, jotka
eivät liukene RM 100:n avulla.
Laita 20 litran vetoiseen säiliöön 15 litraa vettä.
Lisää siihen 1 litra kalkkikiven liuotusainetta.
Liitä vesiletku suoraan pumppuun ja pistä toinen pää säiliöön.
Pistä liitettynä oleva ruiskuputki ilman suutinta säiliöön.
Avaa käsiruiskupistooli äläkä sulje sitä kalkinpoiston aikana.
Käännä laitteen kytkin asentoon "Poltin toiminnassa", kunnes
on saavutettu noin 40 °C lämpötila.
Kytke laite pois päältä ja anna seistä 20 minuutin ajan. Käsi-
ruiskupistoolin on pysyttävä avattuna.
Pumppaa laite lopuksi tyhjäksi.
Huomautus:
Suosittelemme, korroosiosuojaksi ja happojäämien
neutraloimiseksi, alkaalisen liuoksen (esim. RM 81) pumppaa-
mista laitteen lävitse puhdistusainesäiliön kautta.
Laite olisi asennettava lämmitettävään paikkaan. Mikäli on lait-
teen jäätymisen vaara, esim. jos laite on asennettu ulos, laitteisto
on tyhjennettävä vedestä ja huuhdeltava jäätymisenestoaineella.
Ruuvaa vedentuloletku ja korkeapaineletku irti.
Anna laitteen käydä enintään 1 min, kunnes pumppu ja johdot
ovat tyhjät.
Ruuvaa tulojohto irti kattilan pohjasta ja anna lämpövastuk-
sen käydä tyhjänä.
Huomautus:
Noudata jäätymisenestoaineen valmistajan anta-
mia käsittelyohjeita.
Täytä uimurisäiliö täyteen asti tavallisella pakkasnesteellä.
Aseta keruuastia korkeapaine-ulostulon alle.
Kytke laite toimintaan. Anna sen käydä, kunnes uimurisäiliön
alivesisuoja laukeaa ja laitteen toiminta pysähtyy.
Näin saavutetaan samalla tietty korroosiosuoja.
Huoltosopimus
Siivilöiden puhdistus
Tuloveden siivilä
Alivesisuojan siivilä
Elektrodien säätö
A
B
C
a
HDS 9/14
4,5±0,5
3,5±0,5
3+0,5
60°
HDS 12/14
3,5±0,5
3,5±0,5
3+0,5
60°
2.
1.
A
B
C
a
Kalkin poisto
Suoritus
Suojaaminen pakkaselta
Veden poistaminen
Laitteen huuhtominen jäätymisenestoaineella
205
FI
-
11
Vaara
Loukkaantumisvaara! Ennen kaikkia huolto- ja korjaustöitä, kytke
pääkytkin pois päältä ja varmista tai vedä Cekon-pistoke irti pis-
torasiasta.
*
Huomautus
Kytke laitteisto pois päältä ja uudelleen päälle, vapauttaaksesi
laitteen poltinhäiriö-tilasta.
**
Häiriöapu
Häiriö
Mahdollinen syy
Korjaus
suorittaja
Laite ei toimi. Käyttövalmiu-
den merkkivalo (F) ei pala.
Laitteessa ei ole jännitettä.
Tarkasta sähköverkko.
Sähkömies
Ajastettu turvakytkin on toiminut.
Kytke laite käyttökytkimestä lyhyeksi aikaa
pois päältä, käynnistä laite sitten uudelleen.
Käyttäjä
Ohjauspiirin (F3) sulake on pala-
nut. Ohjausmuuntajan (T2) sulake
on ehjä.
Vaihda tilalle uusi sulake. Selvitä ylikuormi-
tuksen syy, ettei sulake pala uudelleen.
Asiakaspalvelu
Painekytkin HD (korkea paine) tai
ND (alhainen paine) viallinen.
Tarkasta painekytkin.
Asiakaspalvelu
Ajastinyksikkö (A1) viallinen.
Tarkasta liitännät, vaihda yksikkö tarvittaessa. Asiakaspalvelu
Pakokaasutermostaatti (B8) on
lauennut.
Anna laitteiston jäähtyä. Palauta pakokaasu-
termostaatti (B8) toimintaan. Etsi ja poista
häiriön aiheuttaja.
Asiakaspalvelu
+ Moottorin ylikuumenemi-
sen merkkivalo (G) palaa.
Moottorin lämpösondi (WS) tai yli-
virtasuojakytkin (F1) on lauennut.
Selvitä ylikuorman syy.
Asiakaspalvelu
Uimurisäiliön alivesisuoja on vas-
tannut.
Selvitä vedenpuutteen syy.
Käyttäjä
Poltin ei syty tai liekki sam-
muu käytön aikana.
Lämpötilan säädin (B) on asetettu
liian alhaiseen lukemaan.
Aseta lämpötilan säädin korkeampaan luke-
maan.
Käyttäjä
Laitekytkintä ei ole asetettu koh-
taan "poltin".
Kytke poltin toimintaan.
Käyttäjä
Alivesisuojaturvalaite on kytkenyt
pesurin pois toiminnasta.
Varmista, että laite saa riittävästi vettä. Tar-
kasta laitteen tiiveys.
Käyttäjä
Poltinhäiriön merkkivalo (E)
palaa *
Polttoainesäiliö tyhjä.
Polttoaineen lisääminen.
Käyttäjä
Polttoainesuodatin tukkeutunut.
Puhdista polttoainesuodatin seuraavasti,
poista polttoainesuodatin kiertämällä, puh-
dista suodatin ja kierrä takaisin paikalleen
Käyttäjä
Liekinvalvonnan valokenno väärin
suunnattu tai viallinen.
Tarkasta, että valokenno on oikeassa asen-
nossa. **
Käyttäjä
Sytytyskipinää ei ole havaittavissa
(näkee polttimen kannen näköla-
sista).
Tarkasta elektrien etäisyys, sytytysmuuntaja
ja sytytyskaapeli. Säädä elektrodien etäisyys
tai vaihda vialliset osat. Puhdista tarvittaes-
sa.
Asiakaspalvelu
Polttimen moottori on juuttunut
kiinni.
Poista juuttumisen aiheuttaja. Poista ohjaus-
taulun tulppa (I) ja päästä ylikuormitussuoja-
kytkin lukituksesta. Aseta tulppa jälleen
paikalleen.
Asiakaspalvelu
Häiriö polttoainepumpussa tai polt-
toaineen magneettiventtiilissä.
Tarkasta osat ja vaihda vialliset osat.
Käyttäjä
206
FI
-
12
Häiriö
Mahdollinen syy
Korjaus
suorittaja
Kalkkiutumisesta ilmoittava
merkkivalo (H) palaa.
Vedenpehmennin on loppunut.
Lisää vedenpehmennintä.
Käyttäjä
Laite imee pesuainetta liian
vähän tai ei ollenkaan.
Annosteluventtiili asennossa "O". Säädä pesuaineen annosteluventtiili.
Käyttäjä
Pesuainesuodatin on tukkeutunut
tai säiliö on tyhjä.
Puhdista suodatin tai täytä säiliö.
Käyttäjä
Pesuaineen imuletku, annostelu-
venttiili tai magneettiventtiili ei ole
tiivis tai on tukkeutunut.
Tarkasta, puhdista.
Käyttäjä
Elektroniikka tai magneettiventtiili
on viallinen.
Vaihda.
Asiakaspalvelu
Laitteeseen ei tule täyttä pai-
netta.
Suutin on loppuunkulunut.
Vaihda suutin uuteen.
Käyttäjä
Pesuainesäiliö on tyhjä.
Täytä pesuainesäiliö.
Käyttäjä
Vettä ei ole riittävästi.
Varmista riittävä vedentulo.
Käyttäjä
Tuloveden siivilä on tukkeutunut.
Tarkista, irrota ja puhdista siivilä.
Käyttäjä
Pesuaineen annosteluventtiili ei
ole tiivis.
Tarkista ja tiivistä.
Käyttäjä
Pesuaineletku ei ole tiivis.
Vaihda.
Käyttäjä
Uimuriventtiili jumiutuu.
Tarkista uimurin liikkuvuus.
Käyttäjä
Varmuusventtiili ei ole tiivis.
Tarkista säätö, vaihda tarvittaessa uusi tiiviste. Asiakaspalvelu
Määränsäätöventtiili ei ole tiivis tai
on säädetty liian alhaiselle luke-
malle.
Tarkista venttiilin osat, vaihda vialliset osat,
puhdista likaantuneet osat.
Asiakaspalvelu
Paineenalennuksen magneetti-
venttiili viallinen.
Vaihda magneettiventtiili.
Asiakaspalvelu
Korkeapainepumppu pitää
pahaa ääntä, manometrin
osoitin värähtelee voimak-
kaasti.
Värinänvaimennin on viallinen.
Vaihda värinänvaimennin.
Asiakaspalvelu
Vesipumppu imee ilmaa.
Tarkista imujärjestelmä ja selvitä, missä jär-
jestelmä ei ole tiivis.
Käyttäjä
Laite sammuu ja käynnistyy
jatkuvasti suihkukahvan ol-
lessa auki.
Suihkuputken suutin on tukossa.
Tarkasta, puhdista.
Käyttäjä
Laite on kalkkiutunut.
Katso kohta "Kalkinpoisto".
Käyttäjä
Ohivirtauksen kytkentäkohta on
muuttunut.
Säädä ohivirtaus uudelleen.
Asiakaspalvelu
Puhdista vedenpuutesuojan sihti. Tarkista, irrota ja puhdista siivilä.
Käyttäjä
Laitteen toiminta ei pysähdy
käsikahvasta.
Pumppu ei ole ilmattu kunnolla.
Aseta laitteen kytkin asentoon "O". Paina kä-
sikahvan liipasimesta, kunnes suuttimesta ei
enää tule vettä. Kytke laite sen jälkeen uudel-
leen päälle. Toista tämä menettely, kunnes
täysi käyttöpaine on saavutettu.
Käyttäjä
Varoventtiili tai varoventtiilin tiiviste
on viallinen.
Uusi varoventtiili tai tiiviste.
Asiakaspalvelu
207
FI
-
13
Pesuaine helpottaa puhdistustehtävää. Taulukossa on valikoima
pesuaineita. Pesuaineita käytettäessä on ehdottomasti noudatet-
tava pakkauksessa annettuja ohjeita.
* = vain lyhytaikaiseen käyttöön, kaksivaihemenetelmä, huuhdel-
tava pelkällä vedellä
** = ASF = nopea öljy/vesi erottelu ja hyvät liankuljetusominai-
suudet
*** = esipesuun sopii Foam-Star 2000
Tarvikkeet
Puhdistusaine
Käyttöalue
Lika, likaantumisaste, käyttöta-
pa
Puhdistusaine
pH-arvo (n.) 1 % liuos
vesijohtoveteen
Korjaamot, huoltoase-
mat, kuljetusliikkeet, au-
tohallit
Pöly, tielika, mineraaliöljy (maala-
tulla pinnalla)
RM 55 ASF **
8
RM 22/80 jauhe ASF
12/10
RM 81 ASF
9
RM 803 ASF
10
RM 806 ASF
11
Ajoneuvojen varastointi
RM 42 kylmävaha korkeapainepesurille
8
RM 820 kuumavaha ASF
7
RM 821 sumutusvaha ASF
6
RM 824 super-helmivaha ASF
7
RM 44 geeli, vanteiden puhdistusaine
9
Metalliteollisuus
Öljyt, rasvat, pöly tms. lika
RM 22 jauhe ASF
12
RM 55 ASF
8
RM 81 ASF
9
RM 803 ASF
10
RM 806 ASF
12
RM 31 ASF (vaikeasti poistettava lika)
12
RM 39 neste (sis. korroosionsuoja-ainetta)
9
Elintarviketeollisuus
Helppo ja keskivaikea lika, rasvat
ja öljyt, suuret pinnat
RM 55 ASF
8
RM 81 ASF
9
RM 882 geelivaahto OSC
12
RM 58 ASF (puhdistusvaahto)
9
RM 31 ASF *
12
Savuhartsi
RM 33 *
13
Puhdistus ja desinfiointi
RM 732
9
Desinfiointi
RM 735
7...8
Kalkki, mineraalikerrostumat
RM 25 ASF *
2
RM 59 ASF (puhdistusvaahto)
2
Saniteettitilat ***
Kalkki, virtsakivi, saippua jne.
RM 25 ASF * (peruspuhdistus)
2
RM 59 ASF (puhdistusvaahto)
2
RM 68 ASF
5
208
FI

