Karcher HDS 9-14-4 ST: !
!: Karcher HDS 9-14-4 ST
-
14
–
A készülék melegít
ő
berendezése tüzel
ő
berendezés. A felál-
lításnál vegye figyelembe a helyileg érvényben lév
ő
el
ő
íráso-
kat.
–
Csak ellen
ő
rzött kéményeket/füstgáz vezetékeket használ-
jon.
Veszély
Forrázásveszély! Ezt a szimbólumot minden kivételi helynél el
kell helyezni.
A f
ű
t
ő
olaj tartály felállításánál a készülék felállítási helyén figye-
lembe kell venni az éghet
ő
folyadékok tárolásának el
ő
írásait (be-
szerezhet
ő
Carl Heymanns Verlag, Köln, www.heymanns.com).
A tüzel
ő
anyag vezetékek fektetésénél vegye figyelembe az alul
látható diagrammot.
A tervben egy 2 vezetékes rendszer szerepel, be - és kifolyó.
–
Maximális f
ű
t
ő
olaj el
ő
nyomás: 0,05 MPa (0,5 bar)
–
Maximális nyomáshiány a f
ű
t
ő
olajsz
ű
r
ő
és a szivattyú között:
0,04 MPa (0,4 bar)
Szívócs
ő
hosszúsága méterben
Szívás magassága méterben
Lehetséges szívócs
ő
hosszúság 8-as névleges átmér
ő
j
ű
(NW 8)
csöveknél
–
Minden készüléket saját kéményre kell csatlakoztatni.
–
A füstgáz elvezetést a helyi el
ő
írásoknak megfelel
ő
en és az
illetékes kéménysepr
ő
vel egyeztetve kell elvégezni.
Ajánljuk egy huzatmegszakító beépítését a berendezés és a ké-
mény között.
Megjegyzés
Ahhoz, hogy az el
ő
írt f
ű
tési értéket elérje, be kell tartani a m
ű
sza-
ki adatoknál megadott kémény huzatot.
–
A felszerelés el
ő
tt ellen
ő
rizni kell a fal teherbírását. A mellé-
kelt rögzít
ő
anyagok betonhoz alkalmasak. Üreges téglához-
, téglához- és gázbeton falakhoz megfelel
ő
tipliket és csava-
rokat kell használni, pl. tipli-horgony (furatképet lásd a méret
lapon).
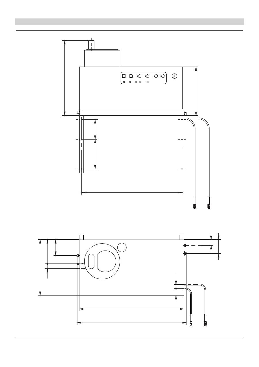
–
3. ábra - 19. és 23. poz.
A készüléket nem szabad mereven összekötni a vízvezeték-
vagy a magasnyomású cs
ő
vezeték-hálózattal. Feltétlenül fel
kell szerelni összeköt
ő
csöveket.
–
3. ábra - A
A vízvezeték-hálózat és az összeköt
ő
töml
ő
között egy záró-
csapot kell felszerelni.
A magasnyomású vezetékek beszerelésénél figyelembe kell
venni a törvényalkotó adott nemzeti el
ő
írásait.
–
A nyomás esésnek a cs
ő
vezetékben 1,5 MPa alatt kell lenni.
–
A kész cs
ő
vezetéket 28 MPa-al kell ellen
ő
rizni.
–
A cs
ő
vezeték szigetelésének 155 °C h
ő
mérsékletnek kell el-
lenállni.
3. ábra - 20. tétel
A tartályokat úgy kell felállítani, hogy a tisztítószer legalsó szintje
ne legyen 1,5 méternél alacsonyabban a készülék aljától és a fel-
s
ő
szint ne legyen a készülék aljánál magasabban.
3. ábra - B és 19. poz.
A vízbemenetet megfelel
ő
víztöml
ő
vel csatlakoztassa a víz-
vezetékhálózathoz.
–
A vízellátás teljesítményének legalább 1300 l/h kell lenni leg-
alább 0,1 MPa mellett.
–
A vízh
ő
mérsékletnek 30 °C alatt kell lenni.
Vigyázat
A megengedett maximális hálózati impedenciát az elektromos
csatlakozási pontnál (lásd M
ű
szaki adatok) nem szabad túllépni.
Amennyiben valami nem világos a csatlakozási pontnál lév
ő
há-
lózati impedanciával kapcsolatban, akkor kérem, lépjen kapcso-
latba az energiaellátó vállalattal.
Megjegyzés:
A bekapcsolás rövid id
ő
re feszültség csökkenést
eredményez. Kedvez
ő
tlen hálózati feltételeknél más készülékek
akadályozása léphet fel.
–
A csatlakozási értékeket lásd a M
ű
szaki adatoknál és a Típus
táblán.
–
Az elektromos csatlakozást villanyszerel
ő
nek kell elvégezni
és meg kell felelnie az IEC 60364-1-nek.
–
Áramvezet
ő
alkatrészeknek, kábeleknek és a munkaterüle-
ten lév
ő
készülékeknek kifogástalan állapotban, vízsugár el-
len védettnek kell lenni.
Az elektromos balesetek elkerülése érdekében javasoljuk, hogy
a dugaljat el
ő
kapcsolt FI véd
ő
kapcsolóval (max. 30 mA névleges
kioldó áramer
ő
sség) használják.
Elektromos csatlakozás létrehozása.
Az állandó magasnyomású tisztítóberendezés kikapcsolására egy
elzárható f
ő
kapcsolót (3. ábra - 6. poz.) kell felszerelni nem veszé-
lyeztetett, könnyen hozzáférhet
ő
helyen.
A f
ő
kapcsoló érintkezési nyílásának legalább 3 mm-nek kell lenni.
Berendezés installációja
Csak felhatalmazott szakszemélyzet részére!
Általános
100 °C fölötti munka-
h
ő
mérsékletnél, a
magasnyomású szó-
rófejet g
ő
z szórófejjel
kell helyettesíteni.
F
ű
t
ő
olaj tartály
Tüzel
ő
anyag vezetékek
Füstgázcs
ő
!
Falra szerelés
A magasnyomású vezetékek szerelése
Tisztítószer tartály felállítása
Vízellátás
Elektromos csatlakozás
Szilárdan felszerelt elektromos csatlakozás
289
HU
-
15
Szerelje a Cekon-dugós kapcsolót a készülék csatlakozási
kábelére.
Dugja a Cekon-dugós kapcsolót a dugaljba.
Az állandó magasnyomású tisztítóberendezés kikapcsolásához
a Cekon-dugós kapcsolónak könnyen hozzáférhet
ő
nek kell lenni.
Az els
ő
használat el
ő
tt a vízszivattyú olaj tartály fedelének te-
tejét le kell vágni.
Veszély
Robbanásveszély! Csak dízel üzemanyagot vagy könny
ű
f
ű
t
ő
-
olajat töltsön bele. Nem megfelel
ő
tüzel
ő
anyagot, pl. benzint,
nem szabad használni.
Tüzel
ő
anyag tartály feltöltése.
Vigyázat
Tüzel
ő
anyag nélküli forró víz üzem a tüzel
ő
anyag szivattyú ron-
gálódásához vezet. A forró víz üzem el
ő
tt biztosítsa a tüzel
ő
-
anyag ellátást.
3. ábra - 14. tétel
Kösse össze a magasnyomású töml
ő
t a kézi szórópisztollyal
és a sugárcs
ő
vel és csatlakoztassa a készülék magasnyomá-
sú kimenetéhez vagy a magasnyomású cs
ő
vezetékrendszer-
hez.
Er
ő
sítse a szórófej fúvókát (b) a hollandi anyával (a) a sugár-
cs
ő
re (d). Ügyeljen arra, hogy a tömít
ő
gy
ű
r
ű
(c) helyesen le-
gyen a horonyban.
Távolítsa le a rugót (c) a vízlágyító tartály (a) fedél támaszté-
káról (b).
Töltse fel a tartályt RM 110 (megrend. szám 2.780-001) Kär-
cher vízlágyító folyadékkal.
Veszély
Veszélyes elektromos feszültség! Beállítást csak villamos szak-
ember végezheti.
A helyi víz keménység megállapítása:
–
A helyi ellátó vállalaton keresztül,
–
keménység ellen
ő
rz
ő
berendezéssel (megrend. szám 6.768-
004).
Vegye le a készülék fedelét.
Nyissa ki a kapcsolószekrényt a kezel
ő
pulton.
Állítsa be a fordulat potenciométert (a) a vízkeménység sze-
rint. A táblázatból le tudja olvasni a megfelel
ő
beállítást.
Például:
Egy 15 °dH vízkeménységhez a fordulat potenciométeren 6-os
skálaértéket állítson be. Ebb
ő
l egy 31 másodperces szünetid
ő
következik, azaz a mágnes szelep minden 31 másodpercben rö-
viden kinyílik.
Az üzemkészenléti id
ő
beállítása a elektromos szekrény bal olda-
lán lév
ő
nagyobb platinán történik.
Az üzemkészenléti id
ő
gyárilag a minimum id
ő
re 2 percre van be-
állítva és maximum 8 percre lehet emelni.
Elektromos csatlakozás dugós kapcsolóval/dugaljjal
Els
ő
üzembevétel
Üzembevétel el
ő
tti intézkedések
Vízk
ő
elleni védelem
a
b
c
d
b
c
a
Vízkeménység (°dH)
5
10
15
20
25
A fordulat potenciométer
skálája
8
7
6
5
4,5
Szünet id
ő
(másodperc)
50
40
31
22
16
Az üzemkészenléti id
ő
átállítása
a
8 7 6 5 4 3 2 1
S2
min.
max.
290
HU
-
16
3. ábra
Installációs anyag
1 2 3 4 5 6 7 8 9 10 12 13
21 20 19 18 17 16 15 14
11b 11a
11d
11c
A
B 19a
24
11a
23
22
11b
1060 (1124)
~1050
600
poz.
Installációs anyag
Megrende-
lési szám
1
Sarokvas összecsavarása
6.386-356
2
90° füstgázcs
ő
könyök
7.234-605
45° füstgázcs
ő
könyök
7.234-604
3
Füstgázcs
ő
7.234-603
4
Huzatmegszakító füstgázcs
ő
HDS 9/14-4 4.656-080
Huzatmegszakító füstgázcs
ő
HDS 12/14-4
4.656-079
5
H
ő
szigetelés
6.286-114
6
F
ő
kapcsoló
6.631-455
7
Cs
ő
vezeték készlet, horganyzott acél
2.420-004
Cs
ő
vezeték készlet, nemesfém
2.420-006
8
Távirányító alkatrész készlete
2.744-008
9
Vész-Ki kapcsoló alkatrész készlete
2.744-002
10
T-összecsavarozás
6.386-269
11a
Csatlakozási támasztékok, sárgaréz
2.638-180
Csatlakozási támasztékok, nemesfém
2.638-181
11b
Zárócsap NW 8, horganyzott acél
4.580-144
Zárócsap NW 8, nemesfém
4.580-163
11c
Gyorskapcsoló rögzített része
6.463-025
11d
Gyorskapcsoló szabad része
6.463-023
poz.
Installációs anyag
Megrende-
lési szám
12
Töml
ő
tartó
2.042-001
13
Töml
ő
dob
2.637-238
14
Magasnyomású töml
ő
10m
6.388-083
15
Easypress kézi szórópisztolyt.
4.775-463
Fordulat szabályozó HDS 9/14-4
4.775-470
Fordulat szabályozó HDS 12/14-4
4.775-471
16
Sugárcs
ő
tartó
2.042-002
17
Sugárcs
ő
4.760-550
18
Szórófej fúvóka HDS 9/14-4
2.883-402
Szórófej fúvóka HDS 12/14-4
2.883-406
19
Víztöml
ő
4.440-282
19a
Mágnes szelep vízellátó
4.743-011
20
Tisztítószer tartály, 60 l
5.070-078
21
F
ű
t
ő
olaj tartály, 600 l
6.392-050
22
Fali konzol alkatrész készlete
2.053-005
Padlóváz alkatrész készlete
2.210-008
23
Magasnyomású töml
ő
6.389-028
24
Cs
ő
bilincs
6.373-374
291
HU
-
17
Ezennel tanúsítjuk, hogy az alábbiakban megnevezett gép terve-
zése és építési módja alapján az általunk forgalomba hozott kivi-
telben megfelel az EK irányelvek vonatkozó, alapvet
ő
biztonsági
és egészségügyi követelményeinek. A gép jóváhagyásunk nélkül
történ
ő
módosítása esetén ez a nyilatkozat elveszti érvényessé-
get. A készülék megfelel az EU-ban és Magyarországon (HU)
harmonizált szabványoknak.
5.957-054
Alulírottak az ügyvezetés megbízásából és felhatalmazásával
lépnek fel.
A dokumentációért felel
ő
s személy:
S. Reiser
Alfred Kärcher GmbH & Co. KG
Alfred-Kärcher-Str. 28 - 40
71364 Winnenden (Germany)
Tel.: +49 7195 14-0
Fax: +49 7195 14-2212
Winnenden, 2014/02/01
Minden országban az illetékes forgalmazónk által kiadott garan-
cia feltételek érvényesek. Az esetleges üzemzavarokat a készü-
léken a garancia lejártáig költségmentesen elhárítjuk,
amennyiben anyag- vagy gyártási hiba az oka.
EK konformitási nyiltakozat
Termék:
Magasnyomású tisztítóberen-
dezés g
ő
zfokozattal
Típus:
1.698-xxx
Típus:
1.699-xxx
Vonatkozó európai közösségi irányelvek
:
97/23/EK
2006/42/EK (+2009/127/EK)
2004/108/EK
A részegység kategóriája
II
Megfelel
ő
ségi eljárás
H modul
F
ű
t
ő
spirál
H modul megfelel
ő
ségi értékelése
Biztonsági szelep
Megfelel
ő
ségi értékelés 3. szakasz 3. bek. 3
Vezérl
ő
blokk
H modul megfelel
ő
ségi értékelése
különböz
ő
cs
ő
vezetékek
Megfelel
ő
ségi értékelés 3. szakasz 3. bek. 3
Alkalmazott harmonizált szabványok:
EN 55014–1: 2006+A1: 2009+A2: 2011
EN 55014–2: 1997+A1: 2001+A2: 2008
EN 60335–1
EN 60335–2–79
EN 61000–3–2: 2006+A1: 2009+A2: 2009
HDS 12/14:
EN 61000–3–3: 2008
HDS 9/14:
EN 61000–3–11: 2000
Alkalmazott specifikációk:
AD 2000-re támaszkodva
TRD 801 re t·maszkodva
Megnevezett hivatal neve:
A 97/23/EG számára
TÜV Rheinland Industrie Service GmbH
Am Grauen Stein
51105 Köln
Azonosító sz. 0035
CEO
Head of Approbation
Garancia
292
HU
-
18
Szerviz
Berendezés típusa:
Gyártási szám:
Üzembevétel ideje:
Ellen
ő
rzés ideje:
Tényállás:
Aláírás
Ellen
ő
rzés ideje:
Tényállás:
Aláírás
Ellen
ő
rzés ideje:
Tényállás:
Aláírás
Ellen
ő
rzés ideje:
Tényállás:
Aláírás
293
HU
-
19
Megjegyzés:
A javasolt ellen
ő
rzési id
ő
pontokkal kapcsolatban
vegye figyelembe az üzemeltetési ország adott nemzeti követel-
ményeit.
Ismétl
ő
d
ő
ellen
ő
rzések
Ellen
ő
rzést elvégezte:
Küls
ő
ellen
ő
rzés
Bels
ő
ellen
ő
rzés
Szilárdsági ellen
ő
rzés
Név
A szakképzett személy
aláírása/dátum
A szakképzett személy
aláírása/dátum
A szakképzett személy
aláírása/dátum
Név
A szakképzett személy
aláírása/dátum
A szakképzett személy
aláírása/dátum
A szakképzett személy
aláírása/dátum
Név
A szakképzett személy
aláírása/dátum
A szakképzett személy
aláírása/dátum
A szakképzett személy
aláírása/dátum
Név
A szakképzett személy
aláírása/dátum
A szakképzett személy
aláírása/dátum
A szakképzett személy
aláírása/dátum
Név
A szakképzett személy
aláírása/dátum
A szakképzett személy
aláírása/dátum
A szakképzett személy
aláírása/dátum
Név
A szakképzett személy
aláírása/dátum
A szakképzett személy
aláírása/dátum
A szakképzett személy
aláírása/dátum
Név
A szakképzett személy
aláírása/dátum
A szakképzett személy
aláírása/dátum
A szakképzett személy
aláírása/dátum
Név
A szakképzett személy
aláírása/dátum
A szakképzett személy
aláírása/dátum
A szakképzett személy
aláírása/dátum
Név
A szakképzett személy
aláírása/dátum
A szakképzett személy
aláírása/dátum
A szakképzett személy
aláírása/dátum
Név
A szakképzett személy
aláírása/dátum
A szakképzett személy
aláírása/dátum
A szakképzett személy
aláírása/dátum
Név
A szakképzett személy
aláírása/dátum
A szakképzett személy
aláírása/dátum
A szakképzett személy
aláírása/dátum
294
HU
-
1
P
ř
ed prvním použitím svého za
ř
ízení si p
ř
e
č
t
ě
te tento
p
ů
vodní návod k používání,
ř
i
ď
te se jím a uložte jej pro
pozd
ě
jší použití nebo pro dalšího majitele.
–
P
ř
ed prvním uvedením do provozu bezpodmíne
č
n
ě
č
t
ě
te
bezpe
č
nostní pokyny
č
. 5.956-309!
–
P
ř
i p
ř
epravních škodách ihned informujte obchodníka.
Informace o obsažených látkách (REACH)
Aktuální informace o obsažených látkách naleznete na adrese:
www.kaercher.com/REACH
Nebezpe
č
í!
Pro bezprost
ř
edn
ě
hrozící nebezpe
č
í, které vede k t
ě
žkým fyzic-
kým zran
ě
ním nebo k smrti.
몇
Upozorn
ě
ní
Pro potencionáln
ě
nebezpe
č
nou situaci, která by mohla vést k
t
ě
žkým fyzickým zran
ě
ním nebo k smrti.
Pozor
Pro potencionáln
ě
nebezpe
č
nou situaci, která m
ů
že vést k leh-
kým fyzickým zran
ě
ním nebo k v
ě
cným škodám.
Vysokotlaké vodní paprsky mohou být p
ř
i neodborném
používání nebezpe
č
né. Vysokotlakým vodním pa-
prskem se nesmí mí
ř
it na osoby, elektrickou výstroj
pod nap
ě
tím, ani na za
ř
ízení samotné.
–
Dodržujte aktuáln
ě
platné místní právní p
ř
edpisy pro proudo-
vé kapalinové
č
erpadlo.
–
Dodržujte aktuáln
ě
platné místní právní p
ř
edpisy pro prevenci
nehodovosti. Proudová kapalinová
č
erpadla je t
ř
eba pravidel-
n
ě
testovat a výsledky test
ů
zaznamenávat písemn
ě
.
–
Topné za
ř
ízení p
ř
ístroje je spalovací za
ř
ízení. Spalovací za-
ř
ízení je t
ř
eba pravideln
ě
testovat podle aktuáln
ě
platných
místních právních p
ř
edpis
ů
.
–
P
ř
i provozu za
ř
ízení v uzav
ř
ených prostorách je nutné zajistit
bezpe
č
né odvád
ě
ní spalin (odvod spalin bez p
ř
erušova
č
e ta-
hu). Dále je nutné zajistit dostate
č
ný p
ř
ívod
č
erstvého vzdu-
chu.
–
Podle platných národních p
ř
edpis
ů
musí být tento vysokotla-
ký
č
isti
č
p
ř
i prvním komer
č
ním použití uveden do provozu
kvalifikovanou osobou. KÄRCHER již toto první uvedení do
provozu pro vás provedl a zdokumentoval. Dokumentaci k
tomu obdržíte na požádání od svého partnera KÄRCHER. P
ř
i
dotazech k dokumentaci m
ě
jte po ruce
č
íslo dílu a výrobní
č
íslo za
ř
ízení.
–
Upozor
ň
ujeme na to, že za
ř
ízení musí být podle platných ná-
rodních p
ř
edpis
ů
opakovan
ě
kontrolováno kvalifikovanou
osobou. Obra
ť
te se prosím za tímto ú
č
elem na svého partne-
ra KÄRCHER.
–
Dodržujte bezpe
č
nostní pokyny k používaným
č
isticím pro-
st
ř
edk
ů
m (zpravidla na štítku na obalu).
Obsah
Ochrana životního prost
ř
edí
CS . . 1
Symboly použité v návodu k obsluze
CS . . 1
Symboly na za
ř
ízení . . . . . .
CS . . 1
Všeobecné bezpe
č
nostní pokyny
CS . . 1
Používání v souladu s ur
č
ením
CS . . 2
Funkce . . . . . . . . . . . . . . . .
CS . . 2
Bezpe
č
nostní za
ř
ízení. . . . .
CS . . 2
Prvky p
ř
ístroje . . . . . . . . . . .
CS . . 3
Uvedení do provozu . . . . . .
CS . . 4
Obsluha. . . . . . . . . . . . . . . .
CS . . 4
Zastavení provozu. . . . . . . .
CS . . 6
Odstavení . . . . . . . . . . . . . .
CS . . 6
Ukládání . . . . . . . . . . . . . . .
CS . . 6
P
ř
eprava . . . . . . . . . . . . . . .
CS . . 6
Technické údaje . . . . . . . . .
CS . . 7
Ošet
ř
ování a údržba . . . . . .
CS . . 9
Pomoc p
ř
i poruchách . . . . .
CS . 11
P
ř
íslušenství . . . . . . . . . . . .
CS . 13
Instalace za
ř
ízení . . . . . . . .
CS . 14
Prohlášení o shod
ě
pro ES .
CS . 17
Záruka . . . . . . . . . . . . . . . . .
CS . 17
odd
ě
lení služeb zákazník
ů
m
CS . 18
Periodické zkoušky . . . . . . .
CS . 19
Ochrana životního prost
ř
edí
Obalové materiály jsou recyklovatelné. Obal nezaha-
zujte do domovního odpadu, ale odevzdejte jej k op
ě
-
tovnému zužitkování.
P
ř
ístroj je vyroben z hodnotných recyklovatelných
materiál
ů
, které je t
ř
eba znovu využít. Baterie, olej a
podobné látky se nesm
ě
jí dostat do okolního prost
ř
e-
dí. Použitá za
ř
ízení proto odevzdejte na p
ř
íslušných
sb
ě
rných místech
Motorový olej, topný olej, nafta a benzín se nesm
ě
jí dostat do
okolního prost
ř
edí. Chra
ň
te p
ů
du a zajist
ě
te likvidaci použitého
oleje zp
ů
sobem šetrným k životnímu prost
ř
edí.
Č
isticí prost
ř
edky Kärcher jsou vhodné k odlu
č
ování (ASF). To
znamená, že neomezují funk
č
nost odlu
č
ova
č
e oleje. Seznam
doporu
č
ených
č
isticích prost
ř
edk
ů
je uveden v kapitole „P
ř
íslu-
šenství“.
Symboly použité v návodu k obsluze
Symboly na za
ř
ízení
Nebezpe
č
í popálenin! Varování p
ř
ed horkými
stavebními díly.
Všeobecné bezpe
č
nostní pokyny
295
CS
-
2
P
ř
ed instalací p
ř
ístroje by m
ě
lo dojít k dohod
ě
s okresním komí-
ná
ř
stvím.
P
ř
i instalaci je t
ř
eba dodržovat p
ř
edpisy stavebního práva, živ-
nostenskho práva a ochrany proti imisím. Odkazujeme na níže
uvedené p
ř
edpisy, sm
ě
rnice a normy:
–
Za
ř
ízení smí instalovat podle aktuáln
ě
platných národních
p
ř
edpis
ů
pouze podnik specializovaný na elektroinstalace.
–
U elektrické instalace je t
ř
eba dodržovat p
ř
íslušné národní
zákonodárné p
ř
edpisy.
–
Nastavení, údržbá
ř
ské práce a opravy ho
ř
áku sm
ě
jí provád
ě
t
pouze zaškolení monté
ř
i servisní služby firmy Kärcher.
–
P
ř
i plánování komínu je t
ř
eba dodržet v míst
ě
platné sm
ě
rnice.
Pracovišt
ě
je u ovládacího panelu. Další pracovišt
ě
jsou v závis-
losti na uspo
ř
ádání za
ř
ízení u dopl
ň
kových za
ř
ízení (st
ř
íkacích
za
ř
ízení), p
ř
ipojených k odb
ě
rným míst
ů
m.
–
Za ú
č
elem ochrany p
ř
ed odst
ř
ikující vodou
č
i ne
č
istotami
noste p
ř
i práci s
č
isti
č
em ochranný od
ě
v a ochranné brýle.
P
ř
ístroje slouží k odstra
ň
ování ne
č
istot z povrch
ů
pomocí voln
ě
unikajícího proudu vody. Používá se zvlášt
ě
k
č
išt
ě
ní stroj
ů
, vo-
zidel a fasád.
Pozor!
Nebezpe
č
í poran
ě
ní P
ř
i použití u
č
erpacích statnic nebo jiných
nebezpe
č
ných píst dbejte na odpovídající bezpe
č
nostní p
ř
edpi-
sy.
–
Studená voda protéká chladicím okruhem motoru a nádrží s
plovákem k sací stran
ě
vysokotlakého
č
erpadla. V nádrži s
plovákem je p
ř
idáváno zm
ě
k
č
ovadlo.
Č
erpadlo
č
erpá vodu a
nasávaný
č
isticí prost
ř
edek p
ř
es pr
ů
tokový oh
ř
íva
č
. Pom
ě
r
č
isticího prost
ř
edku ve vod
ě
lze nastavit dávkovacím venti-
lem. Pr
ů
tokový oh
ř
íva
č
je zah
ř
íván ho
ř
ákem.
–
Výstup vysokého tlak se v dom
ě
p
ř
ipojuje na p
ř
ítomnou vyso-
kotlakou sí
ť
. Na
č
erpací místa této sít
ě
se p
ř
ipojí ru
č
ní st
ř
íkací
pistole vysokotlakou hadicí.
Bezpe
č
nostní prvky slouží k ochran
ě
uživatele a nesmí být uve-
deny mimo provoz nebo obcházena jejich funkce.
Pojistka proti nedostatku vody zamezuje zapnutí vysokotlakého
č
erpadla p
ř
i nedostatku vody.
Toto zajišt
ě
ní proti nedostatku vody zamezuje p
ř
eh
ř
átí ho
ř
áku p
ř
i
nedostatku vody. Ho
ř
ák se spouští jen p
ř
i dostate
č
ném p
ř
ívodu
vody.
P
ř
i p
ř
ekro
č
ení provozního tlaku je p
ř
ístroj presostatem vypnut.
Toto nastavení nelze m
ě
nit.
P
ř
i poruše presostatu se otev
ř
e pojistný ventil. Tento ventil je na-
stavený z výroby a zaplombován. Toto nastavení nelze m
ě
nit.
P
ř
i nedostatku paliva nebo poruše ho
ř
áku je systémem kontroly
plamene vypnut ho
ř
ák. Rozsvítí se kontrolka poruchy ho
ř
áku (E).
Pokud je motor ho
ř
áku zablokován, aktivuje se nadproudový
chráni
č
. Motor vysokotlakého
č
erpadla je jišt
ě
n motorovým jisti-
č
em a jisti
č
em vinutí.
Termostat spalin se aktivuje, když teplota spalin p
ř
ekro
č
í 300 °C.
P
ř
ístroj se vypne.
Po vypnutí p
ř
ístroje ru
č
ní st
ř
íkací pistolí a po uplynutí pohoto-
vostní doby otev
ř
e magnetický ventil namontovaný ve vysokotla-
kém systému, takže klesne tlak.
P
ř
edpisy, sm
ě
rnice a pravidla
Pracovišt
ě
Osobní ochranné prost
ř
edky
P
ř
i
č
išt
ě
ní díl
ů
zvyšujících hluk používejte k za-
mezení poškození sluchu chráni
č
e.
Používání v souladu s ur
č
ením
Nenechte odpadní vodu obsahující minerální oleje odtéct do ze-
m
ě
, vody nebo kanalizace. Oble
č
ení a hadry proto zbavujte ole-
je pouze na vhodných místech.
Funkce
Bezpe
č
nostní za
ř
ízení
Zajišt
ě
ní proti nedostatku vody v nádrži plovákem
Zajišt
ě
ní proti nedostatku vody v bezpe
č
nostním
bloku
Presostat
Bezpe
č
nostní ventil
Kontrola plamene
Nadproudová ochrana
Termostat spalin
Redukce tlaku ve vysokotlakém systému
296
CS
-
3
Obr. 1
1 Ho
ř
ák
2 Manometr
3 P
ř
ívod
č
isté vody se sítkem
4 Vysokotlaký výstup
5 P
ř
ívodní
č
ást palivového potrubí
6 Zp
ě
tná
č
ást palivového potrubí
7 Sací hadice
č
isticího prost
ř
edku I
8 Sací hadice
č
isticího prost
ř
edku II (volitelná)
9 Nádrž na zm
ě
k
č
ovadlo
10 Elektrické napájení
11 Nádrž s plovákem
12 Ovládací panel
Obr. 2
A Spína
č
p
ř
ístroje
B Regulátor teploty
C Dávkovací ventil
č
isticího prost
ř
edku I
D Dávkovací ventil
č
isticího prost
ř
edku II (volitelný)
E Kontrolka poruchy ho
ř
áku
F Kontrolka pohotovostního stavu
G Kontrolka p
ř
eh
ř
átí motoru
H Kontrolka ochrany proti zanesení vodním kamenem
I
Zátka - uvol
ň
ovací tla
č
ítko motoru ho
ř
áku
Prvky p
ř
ístroje
6
5
7
8
3
4
9
11
10
1
12
2
Ovládací panel
297
CS
-
4
몇
Pozor!
Nebezpe
č
í poran
ě
ní P
ř
ístroj, p
ř
ívodní vedení, vysokotlaká hadi-
ce a p
ř
ípojky musí být v bezvadném stavu. Pokud jejich stav není
bez závad, nelze p
ř
ístroj používat.
–
Údaje pro p
ř
ipojení viz technické údaje a identifika
č
ní štítek.
–
Eletrické p
ř
ipojení musí provést elektroinstalatér a musí od-
povídat IEC 60364-1.
Uživatel smí p
ř
ístroj používat pouze k ú
č
el
ů
m, ke kterým byl p
ř
í-
stroj vyroben. P
ř
i práci s p
ř
ístrojem je uživatel povinen dbát míst-
ních specifik a brát ohled na osoby, nacházející se v blízkosti
p
ř
ístroje.
Nikdy p
ř
ístroj nenechávejte bez dozoru, je-li v provozu.
Nebezpe
č
í!
–
Nebezpe
č
í opa
ř
ení horkou vodou! Vodním paprskem nemi
ř
te
na osoby ani zví
ř
ata.
–
Nebezpe
č
í popálení o horké sou
č
ásti za
ř
ízení! V režimu s
horkou vodou se nedotýkejte neizolovaných potrubí a hadic.
Proudnici držte jen za držadla s ochrannou vrstvou. Nedotý-
kejte se hrdla na spaliny na pr
ů
tokovém oh
ř
íva
č
i.
–
Nebezpe
č
í otravy nebo poleptání
č
isticím prost
ř
edkem! Dodr-
žujte pokyny uvedené na
č
isticích prost
ř
edcích.
Č
isticí pro-
st
ř
edky skladujte mimo dosah nepovolaných osob.
Nebezpe
č
í!
Nebezpe
č
í smrtelného úrazu elektrickým proudem! Vodním pa-
prskem nemi
ř
te na tato za
ř
ízení:
–
elektrické p
ř
ístroje a za
ř
ízení,
–
toto za
ř
ízení,
–
sou
č
ásti po proudem v pracovním prostoru.
Vodní paprsek vycházející z proudnice vytvá
ř
í zp
ě
tný náraz. Vli-
vem zahnutí proudnice p
ů
sobí síla sm
ě
rem nahoru.
Nebezpe
č
í!
–
Nebezpe
č
í úrazu! P
ů
sobením zp
ě
tného nárazu proudnice
m
ů
žete ztratit rovnováhu. M
ů
že dojít k pádu. Proudnice se
m
ů
že voln
ě
pohybovat a zranit osoby. Zvolte bezpe
č
né sta-
novišt
ě
a pistoli pevn
ě
držte. Páku ru
č
ní st
ř
íkací pistole nikdy
neupev
ň
ujte.
–
Paprsek nikdy nesm
ěř
ujte na sebe
č
i na jiné osoby za ú
č
elem
o
č
išt
ě
ní od
ě
vu
č
i obuvi.
–
Nebezpe
č
í úrazu odlétávajícími díly! Odlétávající úlomky
nebo p
ř
edm
ě
ty mohou zranit osoby nebo zví
ř
ata. Vodním pa-
prskem nikdy nemi
ř
te na k
ř
ehké nebo volné p
ř
edm
ě
ty.
–
Nebezpe
č
í úrazu p
ř
i poškození! Pneumatiky a ventily
č
ist
ě
te
z minimální vzdálenosti 30 cm.
몇
Upozorn
ě
ní
Nebezpe
č
í ohrožení škodlivými látkami! Nest
ř
íkejte na tyto mate-
riály, protože m
ů
že dojít ke zví
ř
ení zdraví škodlivých látek:
–
materiály obsahující azbest,
–
materiály, které mohou obsahovat zdraví škodlivé látky.
Nebezpe
č
í!
–
Nebezpe
č
í úrazu unikajícím vodním paprskem, který m
ů
že
být horký! Pro za
ř
ízení jsou optimáln
ě
dimenzovány pouze
originální vysokotlaké hadice Kärcher. Za používání jiných
hadic se neru
č
í.
–
Nebezpe
č
í ohrožení zdraví
č
isticími prost
ř
edky! P
ř
i eventuál-
ním p
ř
idání
č
isticího prost
ř
edku nemá voda vycházející z p
ř
í-
stroje kvalitu pitné vody.
–
Nebezpe
č
í poškození sluchu p
ř
i práci na dílech zvyšujících
hluk! V t
ě
chto p
ř
ípadech používejte chráni
č
e sluchu.
Pozor
Nebezpe
č
ní poran
ě
ní vycházejícím, p
ř
ípadn
ě
horkým vodním
paprskem!
Nebezpe
č
í!
Vždy než za
č
nete s p
ř
ístrojem pracovat, zkontrolujte vysokotla-
kou hadici, zda není poškozená. Poškozenou hadici ihned vy-
m
ěň
te.
P
ř
ed každým použitím zkontrolujte nepoškozený stav vyso-
kotlaké hadice, potrubí, armatur a proudnice.
Zkontrolujte správné upevn
ě
ní a t
ě
snost spojek hadice.
Pozor
Nebezpe
č
í poškození p
ř
i chodu na sucho.
Zkontrolujte množství
č
isticího prost
ř
edku v nádrži a v p
ř
ípa-
d
ě
pot
ř
eby ho dopl
ň
te.
Zkontrolujte množství zm
ě
k
č
ovací kapaliny a v p
ř
ípad
ě
pot
ř
e-
by ji dopl
ň
te.
Spína
č
p
ř
ístroje (A) p
ř
epn
ě
te do polohy „0“.
Zav
ř
ete vodovodní p
ř
ívod.
Aktivujte ru
č
ní st
ř
íkací pistoli, dokud p
ř
ístroj není bez tlaku.
Otá
č
ením ventilu regulujícího množství po sm
ě
ru hodinových
ru
č
i
č
ek dosáhnete vyššího pracovního tlaku a v
ě
tšího
č
erpa-
ného množství.
Otá
č
ením ventilu regulujícího množství proti sm
ě
ru hodino-
vých ru
č
i
č
ek dosáhnete menšího pracovního tlaku a menšího
č
erpaného množství.
Uvedení do provozu
P
ř
ívod el. proudu
Obsluha
Bezpe
č
nostní pokyny
!
Uvedení do pohotovostního stavu
Vypínání v p
ř
ípad
ě
nouze
Nastavení pracovního tlaku a
č
erpaného množství
Nastavení na p
ř
ístroj
R
298
CS
-
5
P
ř
i oto
č
ení regulátoru množství vody doprava se zvyšuje
č
er-
pané množství a provozní tlak.
P
ř
i oto
č
ení regulátoru množství vody doleva se snižuje
č
erpa-
né množství a provozní tlak.
Otev
ř
ete p
ř
ívod vody.
Symbol „Motor zapnutý“
Zatáhn
ě
te za páku ru
č
ní st
ř
íkací pistole a spína
č
p
ř
ístroje (A)
p
ř
epn
ě
te do polohy „1“ (Motor zapnutý).
Kontrolka (F) signalizuje pohotovostní stav.
Pozor!
Nebezpe
ř
í opa
ř
ení!
Pozor
P
ř
i provozu s horkou vodou bez paliva dojde k poškození
č
erpa-
dla paliva. P
ř
ed provozem s horkou zajist
ě
te p
ř
ívod paliva.
Ho
ř
ák lze p
ř
ipojit v p
ř
ípad
ě
pot
ř
eby.
Symbol „Ho
ř
ák zapnutý“
Spína
č
p
ř
ístroje (A) p
ř
epn
ě
te do polohy „Ho
ř
ák zapnutý“.
Regulátorem teploty (B) nastavte požadovanou teplotu vody.
Maximální teplota je 98 °C.
Pozor!
Nebezpe
ř
í opa
ř
ení! P
ř
i pracovních teplotách p
ř
es 98 °C nesmí
být p
ř
ekro
č
en pracovní tlak 3,2 MPa (32 bar).
P
ř
ed p
ř
epnutím z provozu s horkou vodou na provoz s parním
stupn
ě
m je nutné p
ř
ístroj za chodu ochladit a vypnout. P
ř
epínání
se provádí takto:
Vysokotlakou trysku nahra
ď
te parní tryskou (p
ř
íslušenství).
Regulátor teploty nastavte na 150 °C.
Ventil k regulaci množství na vysokotlakém
č
erpadle nastavte
na minimální množství vody (otá
č
ením doleva).
Ventil k regulaci množství na vysokotlakém
č
erpadle nastavte
na maximální množství vody (otá
č
ením doprava).
Regulátor množství vody na pistoli Easypress nastavte otá
č
e-
ním doleva na minimální množství vody.
–
P
ř
i uvoln
ě
ní páky ru
č
ní st
ř
íkací pistole b
ě
hem provozu je p
ř
í-
stroj vypnut.
–
P
ř
i dalším otev
ř
ení pistole b
ě
hem nastavitelné pohotovostní
doby (2-8 minut) se p
ř
ístroj op
ě
t automaticky zapne.
–
P
ř
i p
ř
ekro
č
ení pohotovostní doby se vypne bezpe
č
nostní
č
a-
sový spína
č
č
erpadla a ho
ř
áku. Kontrolka pohotovostního
stavu (F) zhasne.
–
K op
ě
tovnému zapnutí p
ř
epn
ě
te spína
č
p
ř
ístroje do polohy
„0“ a pak ho op
ě
t zapn
ě
te. Pokud je p
ř
ístroj ovládán dálkovým
ovládáním, lze k op
ě
tovnému zapnutí použít p
ř
íslušný spína
č
na dálkovém ovládání.
–
Pneumatiky vozidel se
č
istí pouze pomocí trysky pro plochý
paprsek (25 °) st
ř
íkáním z minimální vzdálenosti 30 cm. V
žádném p
ř
ípad
ě
se pneumatiky nesm
ě
jí
č
istit kulatým pa-
prskem.
Pro všechny ostatní p
ř
ípady jsou k dispozici tyto trysky:
P
ř
i délce potrubí více než 20 m nebo délce vysokotlaké hadice
jmenovitého pr
ů
m
ě
ru 8 více než 2 x 10 m je nutné používat tyto
trysky:
Nastavení na pistoli Easypress (volitelné)
Provoz se studenou vodou
Provoz s horkou vodou
Provoz s párou
Objednací
č
.
Typ
4.766-023
HDS 9/14
4.766-024
HDS 12/14
Bez pistole Easypress
S pistolí Easypress (volitelné)
Pohotovostní stav
Výb
ě
r trysky
Zne
č
išt
ě
ní
Tryska
Úhel st
ř
í-
kání
Č
. dílu
6.415
Tlak
[MPa]
Zp
ě
tný
náraz
[N]
HDS 9/14
silné
00060
0°
-257
14
44
st
ř
ední
25060
25°
-295
mírné
40060
40°
-301
HDS 12/14
silné
00080
0°
-150
14
55
st
ř
ední
25080
25°
-152
mírné
40080
40°
-153
Zne
č
išt
ě
ní
Tryska
Úhel st
ř
í-
kání
Č
. dílu
6.415
Tlak
[MPa]
Zp
ě
tný
náraz
[N]
HDS 9/14
silné
0075
0°
-419
10
37
st
ř
ední
2575
25°
-421
mírné
4075
40°
-422
HDS 12/14
silné
0010
0°
-082
10
46
st
ř
ední
2510
25°
-252
mírné
4010
40°
-253
299
CS
-
6
–
Č
isticí prost
ř
edky usnad
ň
ují
č
išt
ě
ní. Jsou nasávány z externí
nádrže.
–
P
ř
ístroj se základním vybavením má dávkovací ventil (C).
Další dávkovací za
ř
ízení (dávkovací ventil D) lze dodat jako
zvláštní p
ř
íslušenství. Pak lze nasávat dva r
ů
zné
č
isticí pro-
st
ř
edky.
–
Dávkované množství se nastavuje dávkovacími ventily (C
nebo D) na ovládacím panelu. Nastavená hodnota odpovídá
podílu
č
isticího prost
ř
edku v procentech.
–
Vn
ě
jší stupnice platí p
ř
i použití ne
ř
ed
ě
ného
č
isticího pro-
st
ř
edku (100 % chemikálie).
–
Vnit
ř
ní stupnice platí p
ř
i použití
č
isticího prost
ř
edku
ř
ed
ě
ného
v pom
ě
ru 1+3 (25 % chemikálie + 75 % vody).
V následující tabulce je uvedena spot
ř
eba
č
isticího prost
ř
edku
odpovídající hodnotám na vn
ě
jší stupnici:
P
ř
esné dávkované množství závisí na t
ě
chto okolnostech:
–
viskozit
ě
č
isticího prost
ř
edku
–
výšce nasávání
–
pr
ů
to
č
ném odporu vysokotlakého potrubí
Pokud je nutné p
ř
esné dávkování, je nutné nasávané množství
č
isticího prost
ř
edku odm
ěř
it (nap
ř
. nasáváním z m
ě
rky).
Upozorn
ě
ní:
Doporu
č
ení k
č
istidl
ů
m najdete v kapitole "P
ř
íslu-
šenství".
Pozor
P
ř
i provozu bez zm
ě
k
č
ovadla m
ů
že dojít k zanesení pr
ů
tokového
oh
ř
íva
č
e vodním kamenem.
P
ř
i prázdné nádrži na zm
ě
k
č
ovadlo bliká kontrolka ochrany proti
zanesení vodním kamenem (H).
Obr. 1 - pol. 9
Dopl
ň
te nádrž na zm
ě
k
č
ovadlo zm
ě
k
č
ovací kapalinou RM
110 (2.780-001).
Pozor!
Nebezpe
č
í opa
ř
ení horkou vodou! Po provozu s horkou vodou
nebo párou musí být p
ř
ístroj k ochlazení provozován nejmén
ě
dv
ě
minuty se studenou vodou s otev
ř
enou pistolí.
P
ř
i provozu s horkou vodou nastavte regulátor teploty (B) na
nejnižší teplotu.
P
ř
ístroj používejte minimáln
ě
30 sekund bez
č
isticího pro-
st
ř
edku.
Spína
č
p
ř
ístroje (A) p
ř
epn
ě
te do polohy „0“.
Zav
ř
ete vodovodní p
ř
ívod.
Aktivujte ru
č
ní st
ř
íkací pistoli, dokud p
ř
ístroj není bez tlaku.
Ru
č
ní st
ř
íkací pistoli zajist
ě
te pomocí pojistné západky proti
neúmyslnému otev
ř
ení.
P
ř
i delších provozních p
ř
estávkách nebo když není možné ulože-
ní v prostoru chrán
ě
ném p
ř
ed mrazem, prove
ď
te tato opat
ř
ení
(viz kapitola „Údržba“,
č
ást „Ochrana proti zamrznutí“):
Vypus
ť
te vodu.
P
ř
ístroj vypláchn
ě
te nemrznoucí sm
ě
sí.
Vypn
ě
te hlavní spína
č
a zajist
ě
te jej resp. vytáhn
ě
te zástr
č
ku
Cekon.
Pozor
Nebezpe
č
í úrazu a nebezpe
č
í poškození! Dbejte na hmotnost
p
ř
ístroje p
ř
i jeho uskladn
ě
ní.
Pozor
Nebezpe
č
í úrazu a nebezpe
č
í poškození! Dbejte na hmotnost
p
ř
ístroje p
ř
i p
ř
eprav
ě
.
P
ř
i p
ř
eprav
ě
v dopravních prost
ř
edcích zajist
ě
te za
ř
ízení proti
skluzu a p
ř
eklopení podle platných p
ř
edpis
ů
.
Dávkování
č
isticího prost
ř
edku
HDS 9/14
Poloha
0,5
1
5
Množství
č
isticího prost
ř
edku
[l/hod.]
14...15 22...24
50
Koncentrace
č
isticího prost
ř
edku
[%]
1,5
2,5
5
HDS 12/14
Poloha
0,5
1
5
Množství
č
isticího prost
ř
edku
[l/hod.]
10...13 23...27
60
Koncentrace
č
isticího prost
ř
edku
[%]
1
2
5
Dopl
ň
ování zm
ě
k
č
ovadla
Zastavení provozu
Po provozu s použitím
č
isticího prost
ř
edku
Vypnutí p
ř
ístroje
Odstavení
Ukládání
P
ř
eprava
300
CS
-
7
Technické údaje
HDS 9/14
HDS 12/14
HDS 12/14
1.698-900
1.699-919
1.699-920
Výkonnostní parametry
Provozní tlak vody (se standardní tryskou)
MPa (bar)
14 (140)
14 (140)
14 (140)
Max. provozní tlak p
ř
i provozu s párou (s parní tryskou)
MPa (bar)
3,2 (32)
3,2 (32)
3,2 (32)
Díl
č
. parní tryska
--
4.766-023
4.766-024
4.766-024
Max. provozní p
ř
etlak (bezpe
č
nostní ventil)
MPa (bar)
18,5 (185)
18,5 (185)
18,5 (185)
Č
erpané množství vody (plynule regulovatelné)
l/h (l/min)
500-930
(8,3-15,5)
600-1200
(10-20)
600-1200
(10-20)
Č
erpané množství parního provozu
l/h (l/min)
470 (7,8)
600 (10)
600 (10)
Sání
č
isticího prost
ř
edku (plynule regulovatelné)
l/h (l/min)
0-50 (0-0,8)
0-60 (0-1)
0-60 (0-1)
P
ř
ívod vody
P
ř
ivád
ě
né množství (min.)
l/h (l/min)
1100 (18,3)
1300 (21,7)
1300 (21,7)
Vstupní tlak (min.)
MPa (bar)
0,1 (1)
0,1 (1)
0,1 (1)
P
ř
ívodní tlak (max.)
MPa (bar)
0,6 (6)
0,6 (6)
0,6 (6)
Elektrické p
ř
ipojení
Druh proudu
--
3N~
3N~
3N~
Frekvence
Hz
50
50
50
Nap
ě
tí
V
400
400
230
P
ř
íkon
kW
6,4
7,5
8,2
Elektrické jišt
ě
ní (setrva
č
né)
A
16
20
32
Ochrana
--
IPX5
IPX5
IPX5
Ochranná t
ř
ída
--
I
I
I
Maximáln
ě
p
ř
ípustná impedance sít
ě
ohm
ů
(0,381+j 0,238)
--
--
Elektrické napájení
mm
2
5 x 2,5
5 x 2,5
5 x 4
Teplota
Teplota p
ř
ívodu (max.)
°C
30
30
30
Max. provozní teplota horké vody
°C
98
98
98
Max. provozní teplota p
ř
i provozu s párou
°C
155
155
155
Zvýšení teploty p
ř
i max. pr
ů
toku vody
°C
56±2
54±2
54±2
Hrubý topný výkon
kW
68
85
85
Spot
ř
eba paliva
kg/h
5,8
7,1
7,1
Tah komína
kPa
0,01-0,04
0,01-0,04
0,01-0,04
Hmotnostní proud spalin – plná zát
ě
ž
kg/h
124
155
155
Rozm
ě
ry a hmotnost
Délka
mm
1124
1124
1124
Ší
ř
ka
mm
558
558
558
Výška
mm
687
699
699
Typická provozní hmotnost
kg
164,4
178,8
178,8
Zjišt
ě
né hodnoty dle EN 60355-2-79
Emise hluku
Hladina akustického tlaku L
pA
dB(A)
74
76
76
Kolísavost K
pA
dB(A)
1
1
1
Hodnota vibrace ruka-paže
Ru
č
ní st
ř
íkací pistole
m/s
2
2,2
2,3
2,3
Proudová trubice
m/s
2
1,8
2,1
2,1
Kolísavost K
m/s
2
1,0
1,0
1,0
301
CS
-
8
P
ř
ehled rozm
ě
r
ů
6
8
7
/ 6
9
9
505
558
1124
246
158
1060
47
141
61
77
46
200
300
1018±2
302
CS
-
9
Nebezpe
č
í!
Nebezpe
č
í úrazu! P
ř
ed údržbovými pracemi a opravami musíte
vypnout hlavní spína
č
resp. vytáhnout zástr
č
ku Cekon.
Ošet
ř
ování a údržba
Plán údržby
Interval
Č
innost
P
ř
íslušný modul
Postup
Provádí
denn
ě
Kontrola ru
č
ní
st
ř
íkací pistole
Ru
č
ní st
ř
íkací pistole
Zkontrolujte, zda ru
č
ní st
ř
íkací pistole p
ř
i zav
ř
e-
ní t
ě
sní. Zkontrolujte funk
č
nost pojistky proti ne-
úmyslné manipulaci. Vadné ru
č
ní st
ř
íkací
pistole vym
ěň
te.
Obsluha
Kontrola vyso-
kotlakých hadic
Výstupní vedení, hadice ve-
doucí k pracovnímu nástroji
Zkontrolujte, zda nejsou hadice poškozené.
Vadné hadice ihned vym
ěň
te. Nebezpe
č
í úra-
zu!
Obsluha
Zkontrolujte p
ř
i-
pojovací vedení
se zástr
č
kou
Elektrická p
ř
ípojka se zástr
č
-
kou / zásuvkou
Zkontrolujte, zda napájecí vedení a zástr
č
ka
nejsou poškozeny. Poškozené napájecí vedení
je nutné nechat neprodlen
ě
vym
ě
nit autorizova-
nou servisní službou, resp. odborníkem na elek-
trické p
ř
ístroje.
Obsluha
týdn
ě
nebo po 40
provozních hodi-
nách
Kontrola stavu
oleje
Nádrž na olej u
č
erpadla
Pokud je olej mlé
č
ný, je nutné ho vym
ě
nit.
Obsluha
Kontrola stavu
oleje
Nádrž na olej u
č
erpadla
Zkontrolujte stav oleje v
č
erpadle. V p
ř
ípad
ě
po-
t
ř
eby dopl
ň
te olej (obj.
č
. 6.288-016).
Obsluha
Č
išt
ě
ní sítka
sítko v p
ř
ívodu vody
Viz
č
ást „
Č
išt
ě
ní síta“.
Obsluha
m
ě
sí
č
n
ě
nebo po
200 provozních
hodinách
Č
išt
ě
ní a kont-
rola zapalova-
cích elektrod
Zapalovací elektrody ve víku
pr
ů
tokového oh
ř
íva
č
e
Odšroubujte palivové potrubí, vymontujte držák
elektrod a elektrody vy
č
ist
ě
te. Zkontrolujte na-
stavení elektrod podle schématu na následující
stran
ě
a v p
ř
ípad
ě
pot
ř
eby je nastavte.
obsluha na
základ
ě
po-
kyn
ů
Kontrola
č
erpa-
dla
Vysokotlaké
č
erpadlo
Zkontrolujte, zda není
č
erpadlo net
ě
sné. Pokud
vytéká více než 3 kapky a minutu, obra
ť
te se na
odd
ě
lení služeb zákazník
ů
m
Obsluha
Zjiš
ť
ování vnit
ř
-
ních usazenin
Celé za
ř
ízení
Za
ř
ízení zapn
ě
te s proudnicí bez vysokotlaké
trysky. Pokud se provozní tlak na tlakom
ě
ru
zvýší nad 3 MPa, je nutné odstranit usazený
vodní kámen. To platí také v p
ř
ípad
ě
, že je p
ř
i
provozu bez vysokotlakého potrubí (voda voln
ě
vytéká z vysokotlakého výstupu) zjišt
ě
n provoz-
ní tlak vyšší než 0,7–1 MPa.
obsluha na
základ
ě
po-
kyn
ů
k od-
stran
ě
ní
vodního ka-
mene
Č
išt
ě
ní sítka
Síto v zajišt
ě
ní nedostatku
vody
Viz
č
ást „
Č
išt
ě
ní síta“.
Obsluha
pololetn
ě
nebo
po 1000 provoz-
ních hodin
Vým
ě
na oleje
Vysokotlaké
č
erpadlo
Vypus
ť
te olej. Nalijte 1 l nového oleje (obj.
č
.
6.288-016). Na nádrži s olejem zkontrolujte
množství nápln
ě
.
Obsluha
Kontrola,
č
išt
ě
ní Celé za
ř
ízení
Prove
ď
te vizuální kontrolu za
ř
ízení, zkontrolujte
t
ě
snost vysokotlakých spoj
ů
, t
ě
snost p
ř
epouš-
t
ě
cího ventilu, vysokotlakou hadici, tlakový zá-
sobník, vy
č
ist
ě
te nebo vym
ěň
te filtr paliva,
odstra
ň
te z topné spirály saze a vodní kámen,
vy
č
ist
ě
te nebo vym
ěň
te zapalovací elektrody,
vy
č
ist
ě
te nebo vym
ěň
te trysku ho
ř
áku, nastavte
ho
ř
ák.
odd
ě
lení
služeb zá-
kazník
ů
m
ro
č
n
ě
Bezpe
č
nostní
kontrola
Celé za
ř
ízení
Provést bezpe
č
nostní kontrolu podle p
ř
ísluš-
ných národních p
ř
edpis
ů
pro kapalinová st
ř
íka-
cí za
ř
ízení.
odborný
pracovník
Nejpozd
ě
ji vždy
po 5 letech
Kontrola tlaku
Celé za
ř
ízení
P
ř
ezkoušení tlaku prove
ď
te podle zadání vý-
robce.
odborný
pracovník
303
CS
-
10
S p
ř
íslušným prodejním odd
ě
lením spole
č
nosti Kärcher lze uza-
v
ř
ít smlouvu o údržb
ě
p
ř
ístroje.
Obr. 1 - pol. 3
Zav
ř
ete vodovodní p
ř
ívod.
Odšroubujte od p
ř
ístroje hadici p
ř
ívodu vody.
Šroubovákem vyndejte ze spoje sítko.
Č
išt
ě
ní sítka
V opa
č
ném po
ř
adí díly op
ě
t smontujte.
Sejm
ě
te kryt plechu.
Odšroubujte úhle bezpe
č
nostního bloku.
Zašroubujte šroub M8x30 do síta.
Šroub a síto vytáhn
ě
te klešt
ě
mi.
Č
išt
ě
ní sítka
V opa
č
ném po
ř
adí díly op
ě
t smontujte.
Zapalovací elektrody je nutné nastavit podle t
ě
chto údaj
ů
:
P
ř
i vzniku usazenin v potrubí se zvyšuje pr
ů
to
č
ný odpor, takže
m
ů
že dojít k aktivaci presostatu.
Pozor
Nebezpe
č
í výbuchu ho
ř
lavých plyn
ů
! P
ř
i odváp
ň
ování je zakázá-
no kou
ř
ení. Postarejte se o dobré v
ě
trání.
Pozor
Nebezpe
č
í poran
ě
ní kyselinou! Noste ochranné brýle a ochranné
rukavice.
K odstra
ň
ování se podle právních p
ř
edpis
ů
sm
ě
jí používat pouze
schválená rozpoušt
ě
dla vodního kamene.
–
P
ř
ípravek RM 100 (obj.
č
. 6.287-008) rozpouští vápenec a jed-
noduché slou
č
eniny vápence se zbytky
č
isticích prost
ř
edk
ů
.
–
P
ř
ípravek RM 101 (obj.
č
. 6.287-013) rozpouští usazeniny,
které nelze rozpustit p
ř
ípravkem RM 100.
Do dvacetilitrové nádoby nalijte 15 l vody.
P
ř
idejte litr rozpoušt
ě
dla vodního kamene.
Hadici na vodu p
ř
ipojte p
ř
ímo k hlavici
č
erpadla a volný konec
vložte do nádoby.
P
ř
ipojenou proudnici bez trysky vložte do nádoby.
Otev
ř
ete ru
č
ní st
ř
íkací pistoli a b
ě
hem odstra
ň
ování vodního
kamene ji nezavírejte.
Spína
č
p
ř
ístroje p
ř
epn
ě
te do polohy „Ho
ř
ák zapnutý“, dokud
teplota nedosáhne asi 40 °C.
P
ř
ístroj vypn
ě
te a nechte ho 20 minut zastavený. Ru
č
ní st
ř
í-
kací pistole musí z
ů
stat otev
ř
ená.
Pak z p
ř
ístroje vy
č
erpejte nápl
ň
.
Upozorn
ě
ní:
Pro ochranu p
ř
ed korozí a pro neutralizaci zbytk
ů
kyseliny doporu
č
ujeme následn
ě
p
ř
ístrojem pro
č
erpat alkalický
roztok (nap
ř
. RM 81) p
ř
es nádobu na
č
isticí prost
ř
edek.
P
ř
ístroj je t
ř
eba umístit do prostoru chrán
ě
ného proti mrazu. Po-
kud hrozí mráz, nap
ř
. p
ř
i instalaci ve venkovním prost
ř
edí, je nut-
né p
ř
ístroj vyprázdnit a propláchnout nemrznoucí sm
ě
sí.
Odšroubujte vodní p
ř
ívodní hadici a vysokotlakou hadici.
P
ř
ístroj nechte b
ě
žet maximáln
ě
1 minutu, dokud se
č
erpadlo
a vedení nevyprázdní.
Odšroubujte p
ř
ívodní vedení na dn
ě
kotle a vyprázdn
ě
te top-
nou spirálu.
Upozorn
ě
ní:
Dodržujte p
ř
edpisy pro zacházení od výrobce ne-
mrznoucí sm
ě
si.
Až k okraji nalijte b
ě
žnou nemrznoucí sm
ě
s.
Pod vysokotlaký výstup postavte nádobu k zachycení.
P
ř
ístroj zapn
ě
te a nechte zapnutý, dokud se neaktivuje pojist-
ka proti nedostatku vody v nádrži s plovákem a p
ř
ístroj se ne-
vypne.
Tím se také dosáhne jisté ochrany proti korozi.
Smlouva o údržb
ě
Č
išt
ě
ní sítka
Síto v p
ř
ívodu vody
Síto v zajišt
ě
ní nedostatku vody
Nastavení elektrod
A
B
C
a
HDS 9/14
4,5±0,5
3,5±0,5
3+0,5
60°
HDS 12/14
3,5±0,5
3,5±0,5
3+0,5
60°
2.
1.
A
B
C
a
Odstra
ň
ování vodního kamene
Postup
Ochrana proti zamrznutí
Vypušt
ě
ní vody
P
ř
ístroj vypláchn
ě
te nemrznoucí sm
ě
sí
304
CS
-
11
Nebezpe
č
í!
Nebezpe
č
í úrazu! P
ř
ed údržbovými pracemi a opravami musíte
vypnout hlavní spína
č
resp. vytáhnout zástr
č
ku Cekon.
*
Upozorn
ě
ní
P
ř
ístroj vypn
ě
te a zapn
ě
te pro vyrušení poruchy ho
ř
áku.
**
Pomoc p
ř
i poruchách
Porucha
Možná p
ř
í
č
ina
Odstran
ě
ní
Provádí
P
ř
ístroj neb
ě
ží, kontrolka
pohotovostního stavu (F)
nesvítí.
P
ř
ístroj je bez nap
ě
tí.
Zkontrolujte elektrickou sí
ť
.
elektriká
ř
Spušt
ě
ní bezpe
č
nostního
č
aso-
vého spína
č
e
P
ř
ístroj spína
č
em krátce vypn
ě
te a pak za-
pn
ě
te.
Obsluha
Spálená pojistka
ř
ídicího okruhu
(F3). Pojistka je umíst
ě
na v
ř
ídi-
cím transformátoru (T2).
Namontujte novou pojistku, p
ř
i op
ě
tovném
spálení odstra
ň
te p
ř
í
č
inu p
ř
etížení.
odd
ě
lení služeb zá-
kazník
ů
m
Vadný presostat HD (vysoký tlak)
nebo ND (nízký tlak).
Zkontrolujte presostaty.
odd
ě
lení služeb zá-
kazník
ů
m
Vadný modul
č
asova
č
e (A1).
Zkontrolujte konektory, v p
ř
ípad
ě
pot
ř
eby je
vym
ěň
te.
odd
ě
lení služeb zá-
kazník
ů
m
Byl aktivován výfukový termostat
(B8).
Nechte za
ř
ízení vychladnout. Odjist
ě
te výfu-
kový termostat (B8). Odstra
ň
te p
ř
í
č
inu poru-
chy.
odd
ě
lení služeb zá-
kazník
ů
m
+ Svítí kontrolka p
ř
eh
ř
átí
motoru (G).
Aktivace tepelného
č
idla (WS) v
motoru nebo nadproudového
chráni
č
e (F1).
Odstra
ň
te p
ř
í
č
inu p
ř
etížení.
odd
ě
lení služeb zá-
kazník
ů
m
Aktivace pojistky proti nedostatku
vody v nádrži s plovákem.
Zajist
ě
te dostatek vody.
Obsluha
Ho
ř
ák se nezapaluje nebo
plamen zhasne b
ě
hem pro-
vozu.
Na regulátoru (B) je nastavena
p
ř
íliš nízká teplota.
Na regulátoru nastavte vyšší teplotu.
Obsluha
Spína
č
p
ř
ístroje není p
ř
epnutý na
ho
ř
ák.
Zapn
ě
te ho
ř
ák.
Obsluha
Vypnula pojistka proti nedostatku
vody v bezpe
č
nostním bloku.
Zajist
ě
te dostate
č
ný p
ř
ívod vody. Zkontro-
lujte t
ě
snost p
ř
ístroje.
Obsluha
Rozsvítí se kontrolka poru-
chy ho
ř
áku (E)*.
Palivová nádrž je prázdná.
Dopl
ň
te palivo.
Obsluha
Palivový filtr je ucpaný.
Vy
č
ist
ě
te palivový filtr. K tomu ho vyšroubuj-
te, vy
č
ist
ě
te a znovu zašroubujte.
Obsluha
Fotobu
ň
ka hlída
č
e plamene je ne-
správn
ě
nasm
ě
rovaná nebo vadná.
Zkontrolujte správné upevn
ě
ní fotobu
ň
ky. ** Obsluha
Puudub süütesäde (saab kindlaks
teha põleti kaanes olevast akna-
st).
Zkontrolujte vzdálenost elektrod zapalova-
cího transformátoru a zapalovací kabely.
Vzdálenost upravte nebo vym
ěň
te vadné dí-
ly. V p
ř
ípad
ě
pot
ř
eby vy
č
ist
ě
te.
odd
ě
lení služeb zá-
kazník
ů
m
Motor ho
ř
áku je zablokovaný.
Odstra
ň
te p
ř
í
č
inu zablokování. Sundejte
zátku (I) na ovládacím panelu a uvoln
ě
te
nadproudový chráni
č
. Zátku znovu nasa
ď
te.
odd
ě
lení služeb zá-
kazník
ů
m
Porucha
č
erpadla paliva nebo pa-
livového magnetického ventilu.
Díly zkontrolujte a v p
ř
ípad
ě
závady vym
ěň
te.
Obsluha
305
CS
-
12
Porucha
Možná p
ř
í
č
ina
Odstran
ě
ní
Provádí
Svítí kontrolka ochrany proti
zanesení vodním kamenem
(H).
Došlo zm
ě
k
č
ovadlo.
Dopl
ň
te zm
ě
k
č
ovadlo.
Obsluha
Nedostate
č
né nebo žádné
č
erpání
č
isticího prost
ř
edku.
Dávkovací ventil v poloze „0“.
Nastavte dávkovací ventil
č
isticího prost
ř
edku.
Obsluha
Ucpaný filtr
č
isticích prost
ř
edk
ů
nebo prázdná nádrž.
Vy
č
ist
ě
te, resp. dopl
ň
te.
Obsluha
Net
ě
sná nebo ucpaná sací hadi-
ce, dávkovací ventil nebo magne-
tický ventil na
č
isticí prost
ř
edky.
Zkontrolujte, vy
č
ist
ě
te.
Obsluha
Závada elektroniky nebo magne-
tického ventilu.
Vym
ěň
te.
odd
ě
lení služeb zá-
kazník
ů
m
P
ř
ístroj nevytvá
ř
í plný tlak.
Vypláchnutá tryska.
Vym
ěň
te trysku.
Obsluha
Prázdná nádrž na
č
isticí prost
ř
edky.
Dopl
ň
te
č
isticí prost
ř
edek.
Obsluha
Nedostatek vody.
Zajist
ě
te dostate
č
ný p
ř
ívod vody.
Obsluha
Ucpané sítko na p
ř
ívodu vody.
Zkontrolujte, sítko vymontujte a vy
č
ist
ě
te.
Obsluha
Net
ě
sný dávkovací ventil na
č
isti-
cí prost
ř
edky.
Zkontrolujte a ut
ě
sn
ě
te.
Obsluha
Net
ě
sné hadice na
č
isticí pro-
st
ř
edky.
Vym
ěň
te.
Obsluha
Plovákový ventil je zablokovaný.
Zkontrolujte volný chod.
Obsluha
Net
ě
sný pojistný ventil.
Zkontrolujte nastavení, v p
ř
ípad
ě
pot
ř
eby
namontujte nové t
ě
sn
ě
ní.
odd
ě
lení služeb zá-
kazník
ů
m
Ventil k regulaci množství net
ě
sný
nebo nastavený p
ř
íliš nízko.
Zkontrolujte sou
č
ásti ventilu, v p
ř
ípad
ě
po-
škození vym
ěň
te, v p
ř
ípad
ě
zne
č
išt
ě
ní vy-
č
ist
ě
te.
odd
ě
lení služeb zá-
kazník
ů
m
Vadný magnetický ventil k redukci
tlaku.
Vym
ěň
te magnetický ventil.
odd
ě
lení služeb zá-
kazník
ů
m
Vysokotlaké
č
erpadlo klepe,
tlakom
ě
r siln
ě
kolísá.
Vadný tlumi
č
chv
ě
ní.
Vym
ěň
te tlumi
č
chv
ě
ní.
odd
ě
lení služeb zá-
kazník
ů
m
Vodní
č
erpadlo nasává malé
množství vzduchu.
Zkontrolujte sací systém a odstra
ň
te net
ě
s-
nost.
Obsluha
P
ř
ístroj se p
ř
i otev
ř
ené ru
č
ní
st
ř
íkací pistoli stále vypíná a
zapíná.
Ucpaná tryska v proudnici.
Zkontrolujte, vy
č
ist
ě
te.
Obsluha
P
ř
ístroj je zanesený vodním ka-
menem.
Viz
č
ást „Odstra
ň
ování vodního kamene“.
Obsluha
Zm
ě
nil se bod zapnutí p
ř
epoušt
ě
-
cího ventilu.
Nechte p
ř
epoušt
ě
cí ventil znovu nastavit.
odd
ě
lení služeb zá-
kazník
ů
m
Síto v zajišt
ě
ní nedostatku vody
ucpané.
Zkontrolujte, sítko vymontujte a vy
č
ist
ě
te.
Obsluha
P
ř
ístroj se p
ř
i zav
ř
ení ru
č
ní
st
ř
íkací pistole nevypíná.
Č
erpadlo není úpln
ě
odvzdušn
ě
né. Spína
č
p
ř
ístroje p
ř
epn
ě
te do polohy „0“ a
zatáhn
ě
te za ru
č
ní st
ř
íkací pistoli, aby z
trysky neunikala žádná kapalina. Pak p
ř
í-
stroj op
ě
t zapn
ě
te. Tento postup opakujte,
dokud není dosaženo plného provozního
tlaku.
Obsluha
Vadný pojistný ventil, resp. jeho
t
ě
sn
ě
ní.
Vym
ěň
te pojistný ventil, resp. jeho t
ě
sn
ě
ní.
odd
ě
lení služeb zá-
kazník
ů
m
306
CS
-
13
Č
isticí prost
ř
edky usnad
ň
ují
č
išt
ě
ní. V této tabulce je uveden vý-
b
ě
r
č
isticích prost
ř
edk
ů
. P
ř
ed použitím
č
isticích prost
ř
edk
ů
je
bezpodmíne
č
n
ě
nutné dodržet pokyny uvedené na obalu.
* = Jen ke krátkodobému použití, dvoufázová metoda, oplách-
nout
č
istou vodou.
** = ASF = vhodné k odlu
č
ování
*** = K p
ř
edb
ě
žnému post
ř
iku je vhodný p
ř
ípravek Foam-Star
2000
P
ř
íslušenství
Č
isticí prost
ř
edky
Oblast použití
Zne
č
išt
ě
ní, zp
ů
sob použití
Č
isticí prost
ř
edky
Hodnota pH (p
ř
ibl.)
1% roztok ve vod
ě
z
vodovodu
Servis motorových vozi-
del,
č
erpací stanice, za-
silatelství, vozové parky
Prach, ne
č
istoty ze silnice, mine-
rální oleje (na lakovaných plo-
chách)
RM 55 ASF **
8
Prášek RM 22/80 ASF
12/10
RM 81 ASF
9
RM 803 ASF
10
RM 806 ASF
11
Konzervace vozidel
Vosk pro vysokotlaké
č
isti
č
e RM 42 k použití
za studena
8
Vosk RM 820 ASF k použití za horka
7
Vosk RM 821 ASF ke st
ř
íkání
6
Perle
ť
ový vosk RM 824 Super ASF
7
Želatinový
č
isti
č
ráfk
ů
RM 44
9
Kovozpracující pr
ů
mysl
Oleje, tuky, prach a podobné ne-
č
istoty
Prášek RM 22 ASF
12
RM 55 ASF
8
RM 81 ASF
9
RM 803 ASF
10
RM 806 ASF
12
RM 31 ASF (silné zne
č
išt
ě
ní)
12
Tekutý p
ř
ípravek RM 39 (s inhibitorem koro-
ze)
9
Potraviná
ř
ské provozy
Mírné až st
ř
ední zne
č
išt
ě
ní, tuky,
oleje, velké plochy
RM 55 ASF
8
RM 81 ASF
9
Želatinová p
ě
na RM 882 OSC
12
RM 58 ASF (p
ě
nový
č
isticí prost
ř
edek)
9
RM 31 ASF *
12
Prysky
ř
ice
RM 33 *
13
Č
išt
ě
ní a dezinfekce
RM 732
9
Dezinfekce
RM 735
7...8
Vodní kámen, minerální usazeni-
ny
RM 25 ASF *
2
RM 59 ASF (p
ě
nové
č
išt
ě
ní)
2
Sociální za
ř
ízení ***
Vodní kámen, mo
č
ový kámen,
mýdla atd.
RM 25 ASF * (d
ů
kladné
č
išt
ě
ní)
2
RM 59 ASF (p
ě
nové
č
išt
ě
ní)
2
RM 68 ASF
5
307
CS

