Karcher HDS 9-14-4 ST: !
!: Karcher HDS 9-14-4 ST
-
14
–
Varmeinnretningen på maskinen er et fyringsanlegg. De gjel-
dende forskriftene i de enkelte land må overholdes ved mon-
teringen.
–
Bruk kun godkjente skorsteiner/avgassrør.
Fare
Forbrenningsfare! Dette symbolet skal plasseres på hvert uttaks-
sted.
Ved montering av en tank for fyringsolje i maskinrommet skal for-
skriftene for lagring av brennbare væsker følges.
Ved legging av brennstoffledningen skal det tas hensyn til neden-
stående diagram.
Det skal brukes et 2-linjesyste, frem- og tilbakemating.
–
Maksimal fyringsoljetrykk: 0,05 MPa (0,5 bar)
–
Maksimalt undertrykk mellom fyringsoljefilter og pumpe: 0,04
MPa (0,4 bar)
Sugerørlengde i m
Sugehøyde i m
Mulige sugerørlengder ved rør med NW 8
–
Hvert apparat må kobles til en egen skorstein.
–
Avgassføringen skal monteres i henhold til lokale forskrifter
og som avtalt med lokal skorsteinsfeier (brannvesen).
Vi anbefaler å montere en tilbakeslagsventil mellom anlegget og
avtrekket.
Bemerk
For å oppfylle de foreskrvne forbrenningsverdiene, må det angit-
te skorsteinstrekket under tekniske data overholdes.
–
Før apparatet monteres på vegg, skal veggen kontrolleres for
tilstrekkelig bærekraft. Det medfølgende monteringsmateria-
let egner seg for betong. For vegger av hule byggesten, mur-
sten og lettbetong skal egnede plugger og skruer anvendes,
f.eks. injeksjonsanker for hullbilde se monteringtegning).
–
Figur 3 - pos. 19 og 23
Apparatet skal ikke ha fast forbindelse med vannlednings- el-
ler høytrykksnettet. Forbindelsesslange må absolutt monte-
res.
–
Figur 3 - A
Mellom vannledningsnettet og forbindelsesslangen skal det
monteres en stengekran.
Ved montering av høytrykksledningene skal gjeldende nasjonale
lover og regler følges.
–
Trykkfallet i rørledningen må ikke komme under 1,5 MPa.
–
Den ferdige rørledningen må testes med 28 Mpa.
–
Isolasjonen rundt rørledningen må være temperaturbestan-
dig opptil 155 °C.
Bilde 3 - pos. 20
Beholderen skal settes opp på en slik måte at det nedre nivået for
rengjøringsmiddelet ikke befinner seg mer enn 1,5 m under bun-
nen på apparatet, og det øvre nivået ikke befinner seg over bun-
nen på apparatet.
Figur 3 - B og pos. 19
Vanninnløp kobles med en passende vannslange til vannled-
ningsnettet.
–
Ytelsen av vannforsyning må være minst 1300 l/h ved minst
0,1 MPa.
–
Vanntemperaturen må ligge under 30 °C.
Forsiktig!
Maksimalt tillatt nettimpedans på det elektriske tilkoblingspunktet
(se tekniske data) skal ikke overskrides. Dersom det er uklarheter
om nettimpedansen på tilkoblingspunktet ditt, vennligst kontakt
strømleverandøren for informasjon.
Merk:
Innkopling av apparatet genererer kortvarige spennings-
fall. Ved ugunstige forhold i strømnettet kan dette også få innvirk-
ning på andre apparater.
–
Se typeskilt og tekniske data for tilkoblingsverdier.
–
Den elektriske tilkoblingen må foretas av en servicemontør el-
ler en autorisert elektriker og må være iht. IEC 60364-1.
–
Strømførende deler, kabler og apparater i arbeidsområdet må
være i feilfri stand og spylesikre.
For å unngå el-ulykker anbefaler vi at du bruker stikkontakter
med forankoblede vernebrytere for å beskytte mot feilstrøm
(maks. nominell utløsningsstrøm: 30 mA).
Utfør elektrisk tilkobling.
For utkobling av den stasjonære hytrykksvaskeren skal det plas-
seres en låsbar hovedbryter (bilde 3 - pos. 6) på et lett tilgjengelig
og sikkert sted.
Kontaktåpningsbredden på hovedbryteren skal være på minst 3
mm.
Cekon-støpsel monteres på apparatets strømkabel.
Cekon-støpsel settes i stikkontakten.
For å slå av den stasjonære høytrykksvaskeren må Cekon-støp-
selet være lett tilgjengelig for frakobling.
Installasjon av anlegget
Kun for autorisert fagpersonale!
Generelt
Ved arbeidsteempe-
raturer over 100 °C,
skift høytrykksdysen
med dampdysen.
Fyringsoljetank
Drivstoffledninger
Røkgassrør
!
Veggmontering
Montering av høytrykksslanger
Montere beholder for rengjøringsmiddel
Vanntilførsel
Elektrisk tilkobling
Fast installer elektrisk tilkobling
Elektrisk tilkobling med støpsel/stikkontakt
171
NO
-
15
Skjær av spissen på lokket på vannpumpens oljebeholder før
førstegangs igangsetting.
Fare!
Eksplosjonsfare! Fyll bare diesel eller lett fyringsolje. Uegnede
drivstoff som f.eks. bensin skal ikke brukes.
Fyll drivstofftanken.
Forsiktig!
Varmtvannsdrift uten brennstoff resulterer i skader på brennstoff-
pumpen. Forsikre deg om at brennstofftilførselen er i orden innen
du skifter til varmtvannsdrift.
Bilde 3 - pos. 14
Koble høytrykksslange til høytrykkpistol og strålerør, og koble
til høytrykksuttak på apparatet eller til høytrykks-ledningsnett.
Dysemunnstykke (b) festes med festemutter (a) til strålerøret
(d). Påse at tetningsringen (c) ligger korrekt i sporet.
Fjær (c) på lokkstøtten (b) på beholder for bløtemiddel (a) fjer-
nes.
Fyll beholderen med Kärcher-bløtemiddel RM 110 (best.nr.
2.780-001).
Fare!
Farlig elektrisk spenning! Innstilling er kun tillatt utført av autori-
sert elektriker.
Undersøk lokal vannhardhet:
–
Ifølge opplysninger fra det lokale vannverket,
–
Ved hjelp av apparat for måling av hardhetsgrad (best.nr.
6.768-004).
Ta av maskinhetten.
Åpne koblingsboks ved driftspanelet.
Innstill dreiepotensiometeret (a) avhengig av vannets hard-
hetsgrad. Korrekt innstilling fremgår av tabellen.
Eksempel:
Eksempel: For en hardhetsgrad på 15°dH innstilles skalaverdien
6 på dreiepotensiometeret. Dette gir en pausetid på 31 sekunder.
Dvs. magnetventilen åpner kort hvert 31. sekund.
Innstillingen for beredskapstiden skjer på det store kortet på ven-
stre sidevegg i koplingsskapet.
Beredskapstiden er fra fabrikken satt til minimumstiden på 2 mi-
nutter og kan forlenges til maksimumstiden på 8 minutter.
Førstegangs igangsetting
Tiltak før igangsetting
Beskyttelse mot forkalking
a
b
c
d
b
c
a
Vannhardhet (°dH)
5
10
15
20
25
Skala på dreiepotensiometer
8
7
6
5
4,5
Pausetid (sekunder)
50
40
31
22
16
Innstilling av driftsberedskapstid
a
8 7 6 5 4 3 2 1
S2
min.
max.
172
NO
-
16
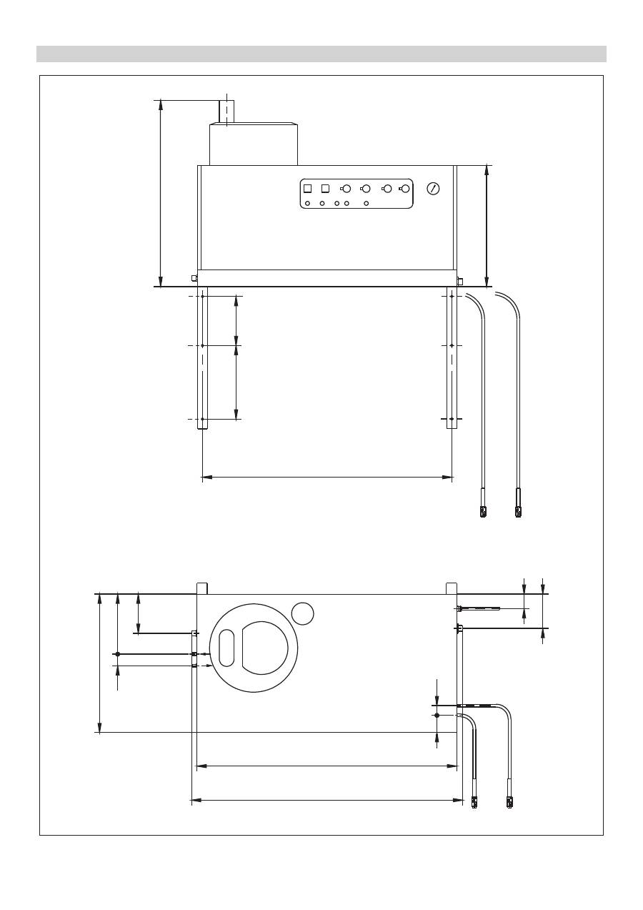
Bilde 3
Installasjonsmateriell
1 2 3 4 5 6 7 8 9 10 12 13
21 20 19 18 17 16 15 14
11b 11a
11d
11c
A
B 19a
24
11a
23
22
11b
1060 (1124)
~1050
600
Pos. Installasjonsmateriell
Bestillings-
nr.
1
Vinkelfeste
6.386-356
2
Røykgassbue 90°
7.234-605
Røykgassbue 45°
7.234-604
3
Røkgassrør
7.234-603
4
Tilbakeslagsventil rørgassrør HDS 9/14-4 4.656-080
Tilbakeslagsventil rørgassrør
HDS 12/14-4
4.656-079
5
Varmeisolasjon
6.286-114
6
Hovedbryter
6.631-455
7
Rørledningssats, forsinket stål
2.420-004
Rørledningssats, rustfritt stål
2.420-006
8
Delesats fjernkontroll
2.744-008
9
Delesats NØD-STOPP-bryter
2.744-002
10
T-feste
6.386-269
11a
Tilkoblingsstusser, messing
2.638-180
Tilkoblingsstusser, rustfritt stål
2.638-181
11b
Sperrekran NW 8, forsinket stål
4.580-144
Sperrekran NW 8, rustfritt stål
4.580-163
11c
Hurtigkobling festedel
6.463-025
11d
Hurtigkobling løsedel
6.463-023
Pos. Installasjonsmateriell
Bestillings-
nr.
12
Slangeholder
2.042-001
13
Slangetrommel
2.637-238
14
Høytrykkslange 10 m
6.388-083
15
Høytrykkspistol Easypress
4.775-463
Dreieregulator HDS 9/14-4
4.775-470
Dreieregulator HDS 12/14-4
4.775-471
16
Strålerørholder
2.042-002
17
Strålerør
4.760-550
18
Dysemunnstykke HDS 9/14-4
2.883-402
Dysemunnstykke HDS 12/14-4
2.883-406
19
Vannslange
4.440-282
19a
Magnetventil vanntilførsel
4.743-011
20
Rengjøringsmiddel-tank, 60 l
5.070-078
21
Fyringsolje-tank 600 l
6.392-050
22
Delesats veggkonsoll
2.053-005
Delesats gulvstativ
2.210-008
23
Høytrykksslange
6.389-028
24
Rørklemme
6.373-374
173
NO
-
17
Vi erklærer hermed at maskinen angitt nedenfor oppfyller de
grunnleggende sikkerhets- og helsekravene i de relevante EF-di-
rektivene, med hensyn til både design, konstruksjon og type mar-
kedsført av oss. Ved endringer på maskinen som er utført uten
vårt samtykke, mister denne erklæringen sin gyldighet.
5.957-054
De undertegnede handler på oppdrag fra, og med fullmakt fra sel-
skapsledelsen.
Dokumentasjonsansvarlig:
S. Reiser
Alfred Kärcher GmbH & Co. KG
Alfred-Kärcher-Str. 28 - 40
71364 Winnenden (Germany)
Tlf:
+49 7195 14-0
Faks: +49 7195 14-2212
Winnenden, 2014/02/01
Vår ansvarlige salgsorganisasjon for det enkelte land har utgitt
garantibetingelsene som gjelder i det aktuelle landet. Eventuelle
feil på apparatet repareres gratis innenfor garantitiden dersom
årsaken er en material- eller produksjonsfeil.
EU-samsvarserklæring
Produkt:
Høytrykkspyler med damp-
trinn
Type:
1.698-xxx
Type:
1.699-xxx
Relevante EU-direktiver
97/23/EF
2006/42/EF (+2009/127/EF)
2004/108/EF
Kategori av komponenter
II
Konformitetsprosess
Modul H
Varmeslange
Konformitetsvurdering Modul H
Sikkerhetsventil
Konformitetsvurdering Art. 3 abs. 3
Styringsblokk
Konformitetsvurdering Modul H
diverse rørledninger
Konformitetsvurdering Art. 3 abs. 3
Anvendte overensstemmende normer
EN 55014–1: 2006+A1: 2009+A2: 2011
EN 55014–2: 1997+A1: 2001+A2: 2008
EN 60335–1
EN 60335–2–79
EN 61000–3–2: 2006+A1: 2009+A2: 2009
HDS 12/14:
EN 61000–3–3: 2008
HDS 9/14:
EN 61000–3–11: 2000
Anvendte spesifikasjoner:
AD 2000 som støtte
TRD 801 som støtte
Navn på oppnevnt sted:
For 97/23/EU
TÜV Rheinland Industrie Service GmbH
Am Grauen Stein
51105 Köln
Merkenr.: 0035
CEO
Head of Approbation
Garanti
174
NO
-
18
Kundetjeneste
Anleggstype:
Prodksjonsnr.:
Tatt i bruk den:
Kontroll gjennomført den:
Funnet:
Underskrift
Kontroll gjennomført den:
Funnet:
Underskrift
Kontroll gjennomført den:
Funnet:
Underskrift
Kontroll gjennomført den:
Funnet:
Underskrift
175
NO
-
19
Merk:
Frist for kontroll tilsvarer de gjeldende nasjonale bestem-
melsene i landet der appratet benyttes.
Gjentatte kontroller
Kontroll gjennomført av:
Utvendig kontroll
Innvendig kontroll
Fasthetskontroll
Navn
Underskrift av ansvarlig
person/dato
Underskrift av ansvarlig
person/dato
Underskrift av ansvarlig
person/dato
Navn
Underskrift av ansvarlig
person/dato
Underskrift av ansvarlig
person/dato
Underskrift av ansvarlig
person/dato
Navn
Underskrift av ansvarlig
person/dato
Underskrift av ansvarlig
person/dato
Underskrift av ansvarlig
person/dato
Navn
Underskrift av ansvarlig
person/dato
Underskrift av ansvarlig
person/dato
Underskrift av ansvarlig
person/dato
Navn
Underskrift av ansvarlig
person/dato
Underskrift av ansvarlig
person/dato
Underskrift av ansvarlig
person/dato
Navn
Underskrift av ansvarlig
person/dato
Underskrift av ansvarlig
person/dato
Underskrift av ansvarlig
person/dato
Navn
Underskrift av ansvarlig
person/dato
Underskrift av ansvarlig
person/dato
Underskrift av ansvarlig
person/dato
Navn
Underskrift av ansvarlig
person/dato
Underskrift av ansvarlig
person/dato
Underskrift av ansvarlig
person/dato
Navn
Underskrift av ansvarlig
person/dato
Underskrift av ansvarlig
person/dato
Underskrift av ansvarlig
person/dato
Navn
Underskrift av ansvarlig
person/dato
Underskrift av ansvarlig
person/dato
Underskrift av ansvarlig
person/dato
Navn
Underskrift av ansvarlig
person/dato
Underskrift av ansvarlig
person/dato
Underskrift av ansvarlig
person/dato
176
NO
-
1
Läs bruksanvisning i original innan aggregatet an-
vänds första gången, följ anvisningarna och spara
driftsanvisningen för framtida behov, eller för nästa ägare.
–
Bruksanvisning samt säkerhetsanvisning nr. 5.956-309 mås-
te läsas före första användningstillfället!
–
Informera inköpsstället omgående vid transportskador.
Upplysningar om ingredienser (REACH)
Aktuell information om ingredienser finns på:
www.kaercher.com/REACH
Fara
För en omedelbart överhängande fara som kan leda till svåra
skador eller döden.
몇
Varning
För en möjlig farlig situation som kan leda till svåra skador eller
döden.
Varning
För en möjlig farlig situation som kan leda till lätta skador eller
materiella skador.
Högtrycksstrålar kan vid felaktig användning vara farli-
ga. Strålen får inte riktas mot människor, djur, aktiv
elektrisk utrustning eller mot själva aggregatet.
–
Beakta lagstadgade, nationella föreskrifter för högtryckstvättar.
–
Beakta gällande, nationella regelverk för olycksfallsskydd.
Högtryckstvättar måste kontrolleras regelbundet och kontroll-
resultatet måste noteras skriftligt.
–
Aggregatets uppvärmningsanordning är en förbränningsan-
läggning. Förbränningsanläggningar måste kontrolleras re-
gelbundet och i enlighet med gällande, nationella regelverk.
–
När anläggningen används inomhus måste avgaserna ledas
ut riskfritt (rökgasledning utan dragdämpare). Dessutom
måste tillräckligt friskluftsflöde finnas.
–
Vid yrkesmässig användning måste den första idrifttagningen
av högtryckstvätten utföras av en behörig person enligt gäl-
lande, nationella bestämmelser. KÄRCHER har redan ge-
nomfört denna första idrifttagning och dokumenterat den. Du
kan be din KÄRCHER representant om dokumentationen. Ha
aggregatets artikel- och fabriksnummer till hands vid frågor
om dokumentationen.
–
Vi vill framhålla att aggregatet ska kontrolleras regelbundet av
en behörig person enligt gällande, nationella bestämmelser.
Kontakta din KÄRCHER representant i detta ärende.
–
Beakta de säkerhetshänvisningar som följer de rengörings-
medel som används (i.r. på etiketten).
Innehållsförteckning
Miljöskydd . . . . . . . . . . . . . .
SV . . 1
Symboler i bruksanvisningen
SV . . 1
Symboler på aggregatet . . .
SV . . 1
Allmänna säkerhetsanvisningar
SV . . 1
Ändamålsenlig användning .
SV . . 2
Funktion . . . . . . . . . . . . . . .
SV . . 2
Säkerhetsanordningar. . . . .
SV . . 2
Aggregatelement. . . . . . . . .
SV . . 3
Idrifttagning . . . . . . . . . . . . .
SV . . 4
Handhavande . . . . . . . . . . .
SV . . 4
Ta ur drift . . . . . . . . . . . . . . .
SV . . 6
Nedstängning . . . . . . . . . . .
SV . . 6
Förvaring . . . . . . . . . . . . . . .
SV . . 6
Transport. . . . . . . . . . . . . . .
SV . . 6
Tekniska data . . . . . . . . . . .
SV . . 7
Skötsel och underhåll . . . . .
SV . . 9
Åtgärder vid störningar . . . .
SV . 11
Tillbehör . . . . . . . . . . . . . . .
SV . 13
Anläggningsinstallering . . . .
SV . 14
Försäkran om EU-överensstämmelse
SV . 17
Garanti . . . . . . . . . . . . . . . .
SV . 17
Kundservice . . . . . . . . . . . .
SV . 18
Återkommande provningar .
SV . 19
Miljöskydd
Emballagematerialen kan återvinnas. Kasta inte em-
ballaget i hushållssoporna utan lämna det till återvin-
ning.
Kasserade apparater innehåller återvinningsbart ma-
terial som bör gå till återvinning. Batterier, olja och lik-
nande ämnen får inte komma ut i miljön. Överlämna
skrotade aggregat till ett lämpligt återvinningssystem.
Motorolja, värmeolja, diesel och bensin får inte släppas ut i mil-
jön. Skydda marken och avfallshantera förbrukad olja på ett mil-
jövänligt sätt.
Kärcher rengöringsmedel är avskiljningsvänliga (ASF). Detta
innebär att en oljeavskiljares funktion inte hindras. Du finner en
lista med rekommenderade rengöringsmedel i kapitel "Tillbe-
hör".
Symboler i bruksanvisningen
Symboler på aggregatet
Förbränningsrisk! Varning för mycket varma en-
heter.
Allmänna säkerhetsanvisningar
177
SV
-
2
Innan aggregatet installeras bör distriktets sotarmästare kontak-
tas för avstämning.
Vid installering skall byggrättsregler och riktlinjer för närings- och
handelsrätt samt immissionsskydd beaktas. Vi framhåller nedan
listade föreskrifter, riktlinjer och normer:
–
Aggregatet får endast installeras av för uppgiften auktoriserat
företag och enligt gällande, nationella föreskrifter.
–
Föreskrivna nationella riktlinjer för elinstallationer skall beak-
tas.
–
Inställningar, servicearbeten och reparationer på brännaren
får endast utföras av utbildade montörer från Kärcher kund-
service.
–
Vid planeringen av en kamin måste lokalt gällande riktlinjer
beaktas.
Arbetsplatsen befinner sig på manöverpanelen. Ytterligare ar-
betsplatser finns, beroende på anläggningsstrukturen, på tillbe-
hörsutrustningen (sprutanordningar), som monteras på
anslutningspunkterna.
–
Bär lämpliga skyddskläder och skyddsglasögon som skydd
mot tillbakasprutande vatten eller smuts.
Aggregatet är avsett för borttagning av smuts från ytskikt med
hjälp av vattenstråle. Den används framför allt till rengöring av
maskiner, fordon och fasader.
Fara
Skaderisk! Vid användning på bensinmackar eller andra riskfyll-
da områden måste gällande säkerhetsföreskrifter följas.
–
Kallvattnet når sugsidan på högtryckspumpen via motorkyl-
slingan och flottörbehållaren. I flottörbehållaren tillsätts av-
härdare. Pumpen matar vatten och rengöringsmedel, som
sugits upp, genom genomströmningsberedaren. Mängden
rengöringsmedel i vattnet kan ställas in med en doserings-
ventil. Genomströmningsberedaren värms med en brännare.
–
Högtrycksutgången ansluts till ett i byggnaden befintligt hög-
tryckssystem. Handsprutan monteras på anslutningspunkter-
na i detta system med en högtrycksslang.
Säkerhetsanordningar är avsedda att skydda användaren och får
inte deaktiveras eller kringås i sin funktion.
Vattenbristsäkringen förhindrar att högtryckspumpen startar vid
vattenbrist.
Vattenbristsäkringen förhindrar att brännaren överhettas vid vat-
tenbrist. Endast vid tillräcklig vattenförsörjning startar brännaren.
Tryckställaren stänger av aggregatet när arbetstrycket under-
skrids. Inställningen får inte förändras.
Vid störning hos tryckställaren öppnas säkerhetsventilen. Denna
ventil är inställd hos tillverkaren och plomberad. Inställningen får
inte förändras.
Flamövervakningen stänger av brännaren om det föreligger stör-
ning hos denna, eller om bränsle saknas. Kontrolllampan Stör-
ning brännare (E) tänds.
Är brännarmotorn blockerad löser överströmsbrytaren ut. Hög-
tryckspumpens motor är säkrad med en motorskyddsbrytare och
en lindningsskyddsbrytare.
Avgastermostaten löser ut när avgastemperaturen överstiger
300 °C. Maskinen stängs av.
När aggregatet stängts av via handsprutan öppnas en i hög-
tryckssystemet monterad magnetventil, när stand by - perioden
gått, vilket gör att trycket sjunker.
Föreskrifter, riktlinjer och regler
Arbetsplatser
Personlig skyddsutrustning
Bär hörselskydd för att minska risken för hörsel-
skador när bullerförstärkande delar rengörs.
Ändamålsenlig användning
Avloppsvatten, innehållande mineralolja, får inte komma ut i
mark, vattendrag eller kanalisation. Motor- och underredestvätt
utförs därför enbart på lämpliga platser, utrustade med oljeav-
skjiljare.
Funktion
Säkerhetsanordningar
Vattenbristsäkring flottörbehållare
Vattenbristsäkring säkerhetsblock
Tryckställare
Säkerhetsventil
Flamövervakning
Överströmsskydd
Avgastermostat
Tryckavlastning högtryckssystem
178
SV
-
3
Bild 1
1 Brännare
2 Manometer
3 Färskvatteninflöde med sil
4 Högtrycksutgång
5 Bränsleledning framåt
6 Bränsleledning bakåt
7 Sugslang för rengöringsmedel I
8 Sugslang för rengöringsmedel II (tillval)
9 Avhärdningsbehållare
10 El-matarledning
11 Flottörbehållare
12 Användningsområde
Bild 2
A Huvudreglage
B Temperaturregulator
C Doseringsventil rengöringsmedel I
D Doseringsventil rengöringsmedel II (tillval)
E Kontrollampa Störning brännare
F Kontrollampa för aggregat driftsklar
G Kontrollampa Överhettning motor
H Kontrollampa Förkalkningsskydd
I
Proppar - upplåsningsknapp brännarmotor
Aggregatelement
6
5
7
8
3
4
9
11
10
1
12
2
Användningsområde
179
SV
-
4
몇
Fara
Risk för skador! Aggregat, matarledningar, högtrycksslang och
anslutningar måste vara i ett oklanderligt tillstånd. Är skicket inte
oklanderligt får aggregatet inte användas.
–
Anslutningsvärde, se Tekniska data och typskylten.
–
Den elektriska anslutningen måste utföras av en elektriker
och motsvara IEC 60364-1.
Användaren ska använda aggregatet i enlighet med gällande be-
stämmelser. Användaren ska ta hänsyn till lokala förutsättningar
och kontrollera att ingen uppehåller sig i närheten vid arbete med
aggregatet.
Lämna aldrig aggregatet utan uppsikt så länge det är i drift.
Fara
–
Risk för skållning på grund av mycket varmt vatten! Rikta inte
högtryckstrålen mot människor eller djur.
–
Risk för brännskador på grund av mycket varma anläggnings-
delar! Vidrör inte oisolerade rör och slangar när varmvatten
används. Håll i greppytorna på stråröret, ingen annanstans.
Tag inte i genomströmningsberedarens avgasstöd.
–
Risk för förgiftnings- eller frätskador på grund av rengörings-
medel! Beakta anvisningarna på rengöringsmedlen. Förvara
rengöringsmedel utom räckhåll för obefogade.
Fara
Livsfara på grund av elektrisk stöt! Rikta inte vattenstrålen mot
följande anordningar:
–
elektriska apparater och anläggningar,
–
denna anläggning,
–
alla strömförande delar inom arbetsområdet.
Vattenstrålen som kommer ur strålröret genererar en rekylkraft.
Genom det vinklade strålröret skapas en uppåtverkande kraft.
Fara
–
Risk för skada! Rekylkraften hos strålröret kan göra att man
tappar balansen. Man kan ramla. Strålröret kan kastas om-
kring och skada personer. Leta upp stabilt underlag att stå på
och håll fast handsprutan ordentligt. Kläm aldrig fast spaken
på handsprutan.
–
Rikta inte strålen mot dig själv eller mot andra för att rengöra
kläder eller skor.
–
Skaderisk genom ivägflygande delar! Ivägflygande brott-
stycken eller föremål kan skada personer eller djur. Rikta ald-
rig vattenstrålen mot föremål som lätt kan förstöras eller som
är lösa.
–
Risk för olycksfall på grund av skador! Rengör däck och ven-
tiler från ett minsta avstånd på 30 cm.
몇
Varning
Fara på grund av hälsovådliga substanser! Spola inte av följande
material eftersom hälsovådliga substanser då kan virvla runt:
–
material som innehåller asbest,
–
material som kan innehålla hälsovådliga substanser.
Fara
–
Risk för skador på grund av, eventuellt mycket varm, vatten-
stråle! Endast Kärcher högtrycksslangar i originalutförande är
exakt anpassade till anläggningen. Vid användning av andra
slangar lämnas ingen garanti.
–
Hälsorisk på grund av rengöringsmedel! Det vatten som kom-
mer ut ur aggregatet har inte dricksvattenkvalitet eftersom
rengöringsmedel kan ha blandats i.
–
Risk för hörselskador på grund av arbete på bullerförstärkan-
de delar! Bär då hörselskydd.
Fara
Risk för skador på grund av, eventuellt mycket varm, vattenstråle!
Fara
Kontrollera före drift att högtrycksslangen inte är skadad. Byt ge-
nast ut skadade högtrycksslangar.
Kontrollera högtrycksslang, rörledningar, armaturer och
sprutrör på skador före varje användning.
Kontrollera att slangkopplingar sitter fast ordentligt och att de
är täta.
Varning
Risk för skada på grund av torrkörning.
Kontrollera fyllnadsnivån i behållaren för rengöringsmedel
och fyll vid behov på.
Kontrollera fyllnadsnivån i behållaren för avhärdningsmedel
och fyll vid behov på.
Ställ reglage (A) på "0".
Stäng vattentillförseln.
Använd handsprutan tills apparaten är trycklös.
Att vrida mängdregulatorn medsols ger högre arbetstryck och
större matningsmängd.
Vrids mängdregulatorn motsols minskas arbetstryck och mat-
ningsmängd.
Idrifttagning
Elanslutning
Handhavande
Säkerhetsanvisningar
!
Förbered drift
Avstängning vid nödfall
Ställ in arbetstryck och
matningsmängd
Inställning på aggregatet
R
180
SV
-
5
Att vrida vattenmängdsregulatorn åt höger ger större mat-
ningsmängd och högre arbetstryck.
Att vrida vattenmängdsregulatorn åt vänster ger mindre mat-
ningsmängd och lägre arbetstryck.
Öppna vattenförsörjning.
Symbol “Motor på“
Drag i spaken på handsprutan och ställ reglaget (A) på “1“
(Motor på).
Kontrollampan Driftsklar (F) visar att aggregatet är klart för
användning.
Fara
Risk för skållning!
Varning
Varmvattendrift utan drivmedel leder till skador på drivmedels-
pumpen. Säkerställ drivmedelsförsörjningen innan varmvatten-
drift startas.
Brännaren kan kopplas in vid behov.
Symbol “Brännare på“
Ställ reglaget (A) på “Brännare på“.
Ställ in önskad vattentemperatur med temperaturställaren
(B). Högsta temperatur är 98 °C.
Fara
Risk för skållning! Vid arbetstemperaturer på över 98 °C får ar-
betstrycket inte överstiga 3,2 MPa (32 bar).
Vid omändring från varmvatten- till ångstegsdrift skall aggregatet
kallköras och stängas av. Omändringen görs på följande sätt:
Byt ut högtrycksmunstycket mot ångmunstycke
(tillbehör).
Ställ temperaturställaren på 150 °C.
Ställ in mängdregulatorn på högtryckspumpen på minimal
vattenmängd (vrid motsols).
Ställ in mängdregulatorn på högtryckspumpen på maximal
vattenmängd (vrid medsols).
Ställ in mängdregulatorn på Easypressprutan på minimal vat-
tenmängd genom att vrida regulatorn åt vänster.
–
Släpps spruthandtaget under drift stängs aggregatet av.
–
Öppnas sprutan på nytt under den inställbara stand by-perio-
den (2...8 minuter) så startar aggregatet själständigt igen.
–
Överskrids stand by-perioden stänger den tidsinställda säker-
hetsbrytaren av pump och brännare. Kontrollampan Driftsklar
(F) slocknar.
–
För att starta på nytt, ställ reglaget på läge “0“ och starta igen.
Är aggregatet fjärrstyrt kan återstarten utföras med motsva-
rande reglage på fjärrstyrningsanordningen.
–
Däck på fordon får endast rengöras med flatstrålmunstycke
(25°) ett minsta sprutavstånd på 30 cm. Däck får under inga
omständigheter rengöras med rund stråle.
För alla andra uppgifter finns följande munstycken att välja mel-
lan:
Vid mer än 20 m rör eller mer än 2 x 10 m högtrycksslang NW 8
skall följande munstycken användas:
Inställning på Easypressprutan (tillval)
Drift med kallt vatten
Drift med varmvatten
Drift med ånga
Beställningsnr.
Typ
4.766-023
HDS 9/14
4.766-024
HDS 12/14
Utan Easypresspruta
Med Easypresspruta (tillval)
Driftsklar
Munstycken
Ned-
smuts-
ning
Mun-
stycke
Sprutvin-
kel
Artikelnr.
6.415
Tryck
[MPa]
Rekyl [N]
HDS 9/14
kraftig
00060
0°
-257
14
44
medel
25060
25°
-295
lätt
40060
40°
-301
HDS 12/14
kraftig
00080
0°
-150
14
55
medel
25080
25°
-152
lätt
40080
40°
-153
Ned-
smuts-
ning
Mun-
stycke
Sprutvin-
kel
Artikelnr.
6.415
Tryck
[MPa]
Rekyl [N]
HDS 9/14
kraftig
0075
0°
-419
10
37
medel
2575
25°
-421
lätt
4075
40°
-422
HDS 12/14
kraftig
0010
0°
-082
10
46
medel
2510
25°
-252
lätt
4010
40°
-253
181
SV
-
6
–
Rengöringsmedel underlättar rengöringsarbetet. De sugs
upp ur en extern rengöringsmedeltank.
–
Aggregatet är i standardutförande utrustat med en doserings-
ventil (C). En andra doseringsanordning (doseringsventil D)
kan fås som specialtillbehör. Då finns möjlighet att suga upp
två olika rengöringsmedel.
–
Doseringsmängden ställs in med doseringsventil för rengö-
ringsmedel (C eller D) på manöverpanelen. Inställt värde mot-
svarar andelen rengöringsmedel i procent.
–
Den yttre skalan gäller vid användning av outspätt rengö-
ringsmedel (100 % CHEM).
–
Den inre skalan gäller vid användning av 1+3 förutspädda
rengöringsmedel (25 % CHEM + 75 % vatten).
Följande tabell anger förbrukningen av rengöringsmedel för vär-
den i yttre skalan:
Exakt doseringsmängd styrs av:
–
rengöringsmedlets viskositet
–
Uppsugningshöjd
–
strömningsmotstånd hos högtrycksledningen
Krävs exakt dosering måste uppsugd mängd rengöringsmedel
mätas (t.ex. genom sugning ur mätbägare).
Observera:
Rekommendationer beträffande rengöringsmedel
kan läsas i kapitlet “Tillbehör“.
Varning
Drift utan avhärdare kan göra att genomströmningsberedaren
förkalkas.
När avhärdningsbehållaren är tom blinkar kontrolllampan För-
kalkningsskydd (H).
Bild 1 - Pos. 9
Fyll behållaren med avhärdningsvätska RM 110 (2.780-001).
Fara
Risk för skållning! Efter användning med varmvatten eller ånga
måste aggregatet köras minst två minuter med kallt vatten och
med öppnad pistol för att kylas ned.
Ställ in temperaturställaren (B) på lägsta temperatur vid varm-
vattendrift.
Kör aggregatet minst 30 sekunder utan rengöringsmedel.
Ställ reglage (A) på "0".
Stäng vattentillförseln.
Använd handsprutan tills apparaten är trycklös.
Säkra handsprutan med säkerhetsspärren mot oavsiktligt
öppnande.
Vid längre driftspauser, eller om det inte är möjligt att förvara ag-
gregatet på frostfri plats, skall följande åtgärder vidtagas (se ka-
pitlet “Underhåll och service“, avsnitt “Frostskydd“):
Töm ut vatten
Spola igenom aggregatet med frostskyddsmedel
Slå ifrån huvudbrytaren och säkra eller dra ur Cekonkontak-
ten.
Varning
Risk för person och egendomsskada! Observera maskinens vikt
vid lagring.
Varning
Risk för person och egendomsskada! Observera vid transport
maskinens vikt.
Vid transport i fordon ska maskinen säkras enligt respektive
gällande bestämmelser så den inte kan tippa eller glida.
Dosering rengöringsmedel
HDS 9/14
Position
0,5
1
5
Mängd rengöringsmedel [l/h]
14...15 22...24
50
Rengöringsmedelskoncentration
[%]
1,5
2,5
5
HDS 12/14
Position
0,5
1
5
Mängd rengöringsmedel [l/h]
10...13 23...27
60
Rengöringsmedelskoncentration
[%]
1
2
5
Påfyllning avhärdare
Ta ur drift
Efter användning med rengöringsmedel
Stänga av aggregatet
Nedstängning
Förvaring
Transport
182
SV
-
7
Tekniska data
HDS 9/14
HDS 12/14
HDS 12/14
1.698-900
1.699-919
1.699-920
Prestanda
Arbetstryck vatten (med standardmunstycke)
MPa (bar)
14 (140)
14 (140)
14 (140)
Max. arbetstryck ångdrift (med ångmunstycke)
MPa (bar)
3,2 (32)
3,2 (32)
3,2 (32)
Artikelnr. ångmunstycke
--
4.766-023
4.766-024
4.766-024
Max. driftövertryck (säkerhetsventil)
MPa (bar)
18,5 (185)
18,5 (185)
18,5 (185)
Matningsmängd vatten (kan regleras steglöst)
l/h (l/min)
500-930
(8,3-15,5)
600-1200
(10-20)
600-1200
(10-20)
Matningsmängd, ångdrift
l/h (l/min)
470 (7,8)
600 (10)
600 (10)
Uppsugning rengöringsmedel (kan regleras steglöst)
l/h (l/min)
0-50 (0-0,8)
0-60 (0-1)
0-60 (0-1)
Vattenanslutning
Inmatningsmängd (min.)
l/h (l/min)
1100 (18,3)
1300 (21,7)
1300 (21,7)
Inmatningsstryck (min.)
MPa (bar)
0,1 (1)
0,1 (1)
0,1 (1)
Inmatningsstryck (max.)
MPa (bar)
0,6 (6)
0,6 (6)
0,6 (6)
Elanslutning
Strömart
--
3N~
3N~
3N~
Frekvens
Hz
50
50
50
Spänning
V
400
400
230
Anslutningseffekt
kW
6,4
7,5
8,2
Elektrisk säkring (tröga)
A
16
20
32
Skydd
--
IPX5
IPX5
IPX5
Skyddsklass
--
I
I
I
Maximalt tillåten nätimpedans
Ohm
(0,381+j 0,238)
--
--
El-matarledning
mm
2
5 x 2,5
5 x 2,5
5 x 4
Temperatur
Inmatningstemperatur (max.)
°C
30
30
30
Max. arbetstemperatur varmvatten
°C
98
98
98
Max. arbetstemperatur ångdrift
°C
155
155
155
Temperaturökning vid max. vattenflöde
°C
56±2
54±2
54±2
Uppvärmningseffekt brutto
kW
68
85
85
Bränsleförbrukning
kg/h
5,8
7,1
7,1
Kamindrag
kPa
0,01-0,04
0,01-0,04
0,01-0,04
Avgasströmning - full belastning
kg/h
124
155
155
Mått och vikt
Längd
mm
1124
1124
1124
Bredd
mm
558
558
558
Höjd
mm
687
699
699
Typisk driftvikt
kg
164,4
178,8
178,8
Beräknade värden enligt EN 60355-2-79
Brusnivå
Ljudtrycksnivå L
pA
dB(A)
74
76
76
Osäkerhet K
pA
dB(A)
1
1
1
Hand-Arm Vibrationsvärde
Handspruta
m/s
2
2,2
2,3
2,3
Spolrör
m/s
2
1,8
2,1
2,1
Osäkerhet K
m/s
2
1,0
1,0
1,0
183
SV
-
8
Måttblad
6
8
7
/ 6
9
9
505
558
1124
246
158
1060
47
141
61
77
46
200
300
1018±2
184
SV
-
9
Fara
Risk för skada! Innan alla typer av underhålls- eller reparations-
arbeten ska huvudströmbrytaren slås ifrån res. Cekonkontakten
dras ur.
Skötsel och underhåll
Underhållsschema
Tidpunkt
Aktivitet
Beträffad komponentgrupp
Genomförande
av vem
dagligen
Kontrollera
handsprutan
Handspruta
Kontrollera om handsprutan sluter tätt. Kontrolle-
ra säkringsfunktionen mot otillbörlig manövre-
ring. Byt ut defekt handspruta.
Operatör
Kontrollera hög-
trycksslangar
Utgående ledningar, slangar till
arbetsaggregatet
Kontrollera om slangarna är skadade. Byt omgå-
ende ut defekta slangar. Risk för olycksfall!
Operatör
Kontrollera an-
slutningsledning
med nätkontakt.
Elanslutning med kontakt/uttag Kontrollera om anslutningsledning med nätkon-
takt uppvisar skador. Skadade nätkablar ska ge-
nast bytas ut av auktoriserad kundservice eller
en utbildad elektriker.
Operatör
varje vecka eller
efter 40 driftstim-
mar
Kontrollera ol-
jans beskaffen-
het
Oljebehållare på pumpen
Är oljan mjölkaktig måste den bytas ut.
Operatör
Kontrollera olje-
nivå
Oljebehållare på pumpen
Kontrollera oljenivå hos pumpen. Fyll på olja vid
behov (beställnummer 6.288-016).
Operatör
Rengör silen.
Sil i vattenintaget
Se avsnitt “Rengöra silar“.
Operatör
varje månad eller
efter 200 driftstim-
mar
Rengör och kon-
trollera tänd-
ningselektroder
Skruva bort tändningselektro-
der i locket på genomström-
ningsberedarens
bränsleledning, demontera elektrodfäste och
rengör elektroder. Kontrollera elektrodinställning
enligt skissen på följande sida och ställ vid behov
in.
Användare
med anvis-
ning
Kontrollera
pump
Högtryckspump
Kontrollera om pumpen är otät. Vid mer än tre
droppar i minuten kontaktas kundservice.
Operatör
Kontrollera om
det finns invändi-
ga beläggningar
Hela anläggningen
Tag anläggningen i drift utan högtrycksmun-
stycke. Stiger driftstrycket över 3 MPa på aggre-
gatmanometern så måste anläggningen
avkalkas. Detta gäller även när ett driftstryck på
mer än 0,7–1 MPa fastställs vid drift utan hög-
trycksledning (fritt vattenflöde vid högtrycksut-
gången).
Användare
med anvis-
ning för av-
kalkning
Rengör silen.
Sil i vattenbristsäkringen
Se avsnitt “Rengöra silar“.
Operatör
varje halvår eller
efter 1000 drifts-
timmar
Oljebyte
Högtryckspump
Släpp ut olja. Fyll på 1 l ny olja (beställnummer
6.288-016). Kontrollera fyllnadsnivån i oljebehål-
laren.
Operatör
kontrollera, ren-
gör
Hela anläggningen
Okulärbesiktning av anläggningen, säkerställ att
högtryckskopplingar är täta, kontrollera att över-
strömningsventilen sluter tätt, kontrollera hög-
trycksslang och ackumulator, rengör/byt ut
bränslefilter, avkalka/sota av värmeslinga, ren-
gör/byt ut tändningselektroder, rengör/byt ut
brännarmunstycke, ställ in brännare.
Kundservice
årligen
Säkerhetskon-
troll
Hela anläggningen
Säkerhetskontroll enligt respektive nationella
lagstadgade föreskrifter avseende hög-
tryckstvättar.
Sakkunnig
senast vart 5:e år,
periodiskt
Trycktest
Hela anläggningen
Utför trycktest enligt tillverkarens instruktioner.
Sakkunnig
185
SV
-
10
Med ansvarig Kärcher-försäljningsenhet kan ett servicekontrakt
för aggregatet ingås.
Bild 1 - Pos. 3
Stäng vattentillförseln.
Skruva bort slangen för vattentillförsel från aggregatet.
Tryck ut silen ur fästet med hjälp av en skruvmejsel.
Rengör silen.
Montera åter i omvänd ordningsföljd.
Lyft bort inklädnadsplåtar.
Skruva bort vinkelstycke från säkerhetsblock.
Skruva i skruv M8x30 i silen.
Drag ut skruv och sil med hjälp av en tång.
Rengör silen.
Montera åter i omvänd ordningsföljd.
Tändningselektroderna måste ställas in enligt följande kriterier:
Vid avlagringar i rörledningar stiger strömningsmotståndet så att
tryckställaren kan lösa ut.
Fara
Explosionsrisk på grund av brännbara gaser! Vid avkalkning är
rökning förbjuden. Sörj för god ventilation.
Fara
Risk för brännskador på grund av syra! Bär skyddsglasögon och
skyddshandskar.
Vid avkalkning får, enligt gällande föreskrift, endast kontrollerade
rengöringsmedel för pannsten användas.
–
RM 100 (best.nr. 6.287-008) löser kalksten och enklare bind-
ningar mellan kalksten och rester från tvättmedel.
–
RM 101 (best.nr. 6.287-013) löser avlagringar som RM 100 ej
löser upp.
Fyll en 20-litersbehållare med15 l vatten.
Häll i en liter pannstenslösningsmedel.
Anslut vattenslang direkt på pumphuvudet och häng den an-
dra änden av slangen i behållaren.
Stick ner det ansluta strålröret utan munstycke i behållaren.
Öppna handsprutan och stäng den inte igen under avkalk-
ningen.
Ställ reglaget på “Brännare på“,tills ca. 40 °C uppnåtts.
Stäng av aggregatet och låt det vila i 20 minuter. Handsprutan
måste hållas öppen.
Pumpa sedan aggregatet tomt.
Observera:
I anslutning till rostskydd och neutralisering av syra-
rester rekommenderar vi att en alkalisk lösning (t.ex. RM 81)
pumpas genom aggregatet via rengöringsmedelsbehållaren.
Aggregatet skall placeras i frostfria utrymmen. Vid risk för frost,
t.ex. vid installering utomhus, måste aggregatet tömmas och spo-
las igenom med frostskyddsmedel.
Skruva bort vattenslang och högtrycksslang.
Låt pumpen arbeta maximalt 1 minut, tills pump och ledningar
är tomma.
Skruva av matningsledningen på tankbotten och kör värme-
slingan tom.
Anmärkning:
Beakta föreskrifter från tillverkaren av frostskydds-
medlet.
Fyll flottörbehållaren helt med vanligt frostskyddsmedel.
Placera uppsamlingskärl under högtrycksutgången.
Starta aggregatet och kör det tills vattenbristsäkringen för flot-
törbehållaren löser ut och stänger av aggregatet.
På detta sätt uppnås även ett visst skydd mot rost.
Underhållskontrakt
Rengör silar
Sil i vattenintaget
Sil i vattenbristsäkringen
Elektrodinställning
A
B
C
a
HDS 9/14
4,5±0,5
3,5±0,5
3+0,5
60°
HDS 12/14
3,5±0,5
3,5±0,5
3+0,5
60°
2.
1.
A
B
C
a
Avkalkning
Genomförande
Frostskydd
Släppa ut vatten
Spola igenom aggregatet med frostskyddsmedel
186
SV
-
11
Fara
Risk för skada! Innan alla typer av underhålls- eller reparations-
arbeten ska huvudströmbrytaren slås ifrån res. Cekonkontakten
dras ur.
*
Hänvisning
Starta och stäng av anläggningen för att frikoppla störning brän-
nare.
**
Åtgärder vid störningar
Störning
Möjlig orsak
Åtgärd
av vem
Aggregat arbetar inte, kon-
trollampa Driftsklar (F) lyser
inte
Aggregatet får ingen ström.
Kontrollera elnätet.
Elektriker
Säkerhetsbrytare i funktion.
Stäng av aggregatet med huvudreglaget och
starta det sedan igen.
Operatör
Säkring i styrkrets (F3) bränd. Säk-
ring finns i styrtransformator (T2).
Sätt i ny säkring; löser säkringen ut igen så
åtgärda orsaken till överbelastningen.
Kundservice
Tryckställare HT (högt tryck) eller
LT (lågt tryck) defekt.
Kontrollera tryckställare.
Kundservice
Timer modul (A1) defekt.
Kontrollera anslutningar, byt ut vid behov.
Kundservice
Avgastermostat (B8) har löst ut.
Låt anläggningen svalna. Lås upp avgaster-
mostat (B8). Åtgärda orsak till störningen.
Kundservice
+ Kontrollampa Överhettning
motor (G) lyser
Termoelementgivare (WS) i mo-
torn eller överströmsbrytare (F1)
har löst ut.
Åtgärda orsaken till överbelastningen.
Kundservice
Vattenbristsäkringen i flottörbehål-
laren har löst ut.
Åtgärda vattenbristen.
Operatör
Brännaren tänder inte eller
flamman slocknar under drift
Temperaturen (B) är för lågt ställd. Ställ temperaturreglaget högre.
Operatör
Aggregatreglaget står inte på brän-
nare.
Starta brännare.
Operatör
Säkerhetsblockets vattenbristsäk-
ring har stängt av.
Säkerställ tillräckligt vattenflöde. Kontrollera
att aggregatet inte läcker.
Operatör
Kontrollampan Störning
brännare (E) tänds*
Bränsletank tom.
Fylla på bränsle.
Operatör
Bränslefilter tätt.
Rengör bränslefilter; skruva då ur filtret, ren-
gör och sätt tillbaka igen.
Operatör
Fotosensor för flamövervakning
felaktigt placerad eller defekt
Kontrollera placeringen av fotosensorn. **
Operatör
Det finns ingen tändgnista (fast-
ställs via synglas i brännarskyd-
det).
Kontrollera elektrodavstånd mellan tändar-
transformator och tändkabel. Korrigera av-
stånd eller byt ut defekta delar. Rengör om
detta behövs.
Kundservice
Brännarmotor är blockerad.
Åtgärda blockering. Tag bort proppar (I) från
manöverpanelen och frikoppla överströms-
brytare. Sätt tillbaka proppar.
Kundservice
Störning på bränslepump eller
bränslemagnetventil.
Kontrollera delar och byt ut defekta sådana. Operatör
187
SV
-
12
Störning
Möjlig orsak
Åtgärd
av vem
Kontrollampa Förkalknings-
skydd (H) lyser
Avhärdare förbrukad.
Fyll på avhärdare.
Operatör
Otillräcklig eller ingen mat-
ning av rengöringsmedel
Ställ doseringsventilen på “0“.
Inställning av doseringsventilen för rengö-
ringsmedel.
Operatör
Rengöringsmedelsfilter tilltäppt el-
ler tank tom.
Rengör och fyll på.
Operatör
Rengöringsmedel-sugslang, - do-
seringsventil eller -magnetventil
otät eller tilltäppt.
Kontrollera, rengör.
Operatör
Elektronik eller magnetventil de-
fekt.
Byt ut
Kundservice
Aggregatet går inte upp till
fullt tryck
Munstycke genomspolat.
Byt ut munstycke.
Operatör
Rengöringsmedelstanken tom.
Fyll på rengöringsmedel.
Operatör
Inte tillräcklig mängd vatten.
Sörj för tillräcklig vattenmängd.
Operatör
Sil i vattenintag igensatt.
Kontrollera, tag bort sil och rengör den.
Operatör
Doseringsventil för rengöringsme-
del otät.
Kontrollera och täta.
Operatör
Rengöringsmedelsslangar otäta.
Byt ut
Operatör
Flottörventil klämmer.
Kontrollera om den rör sig smidigt.
Operatör
Säkerhetsventil otät.
Kontrollera inställning, sätt i ny tätning om
detta behövs.
Kundservice
Mängdregulator otät eller för lågt
inställd.
Kontrollera ventildelar, byt om de är defekta,
rengör om de är smutsiga.
Kundservice
Magnetventil för tryckavlastning
defekt.
Byt ut magnetventil.
Kundservice
Högtryckspump knackar,
manometer svänger kraftigt
Svängningsdämpare defekt.
Byt ut svängningsdämpare.
Kundservice
Vattenpumpen drar in lite luft.
Kontrollera sugsystem och åtgärda otäthet. Operatör
Aggregatet stänger av/star-
tar ständigt när handsprutan
är öppen
Munstycke i strålröret tilltäppt.
Kontrollera, rengör.
Operatör
Aggregatet är igenkalkat
Se avsnitt “Avkalkning“.
Operatör
Överströmningens kopplingspunkt
har förskjutits.
Ställ in överströmningen på nytt.
Kundservice
Silen i vattenbristsäkringen till-
täppt.
Kontrollera, tag bort sil och rengör den.
Operatör
Aggregatet stänger inte av
när handsprutan är stängd
Pump inte helt avluftad.
Ställ aggregatreglaget på “0“och drag i hand-
sprutan tills vätska inte längre tränger ut ur
munstycket. Starta sedan aggregatet igen.
Upprepa detta arbetssteg tills fullt driftstryck
har uppnåtts.
Operatör
Säkerhetsventil eller säkerhets-
ventilspackning defekt.
Byt ut säkerhetsventil eller packning.
Kundservice
188
SV
-
13
Rengöringsmedel underlättar rengöringen. I tabellen visas ett ur-
val av rengöringsmedel. Hänvisningarna på förpackningen måste
absolut följas vid användning av rengöringsmedel.
* = bara för kortvaring användning, tvåstegsmetod, skölj med
klart vatten
** = ASF = avskiljarvänlig
*** = till förbehandling passar Foam-Star 2000
Tillbehör
Rengöringsmedel
Användningsområde
Nedsmutsning, användnings-
sätt
Rengöringsmedel
pH-värde (ca) 1 %-ig
lösning i kranvatten
Bilförsäljning/-verksät-
der, bensinstationer, spe-
dition, vagnparker
Damm, gatusmuts, mineralolja (på
lackerade ytor)
RM 55 ASF **
8
RM 22/80-pulver ASF
12/10
RM 81 ASF
9
RM 803 ASF
10
RM 806 ASF
11
Fordonskonservering
RM 42 Kallvax för högtryckstvättar
8
RM 820-hetvax ASF
7
RM 821-sprayvax ASF
6
RM 824-superpärlvax ASF
7
RM 44 Gel-fälgrengöring
9
Metallindustri
Oljor, fett, damm och liknande
smuts
RM 22-pulver ASF
12
RM 55 ASF
8
RM 81 ASF
9
RM 803 ASF
10
RM 806 ASF
12
RM 31 ASF (stark nedsmutsning)
12
RM 39-flytande (med rostskydd)
9
Livsmedelindustrin
Lätt och medelstark nedsmutsning,
fett/olja, större ytor
RM 55 ASF
8
RM 81 ASF
9
RM 882 Gelskum OSC
12
RM 58 ASF (skumrengöringsmedel)
9
RM 31 ASF *
12
Rökharts
RM 33 *
13
Rengöring och desinfektion
RM 732
9
Desinfektion
RM 735
7...8
Kalk, mineraliska avlagringar
RM 25 ASF *
2
RM 59 ASF (skumrengöring)
2
Sanitära utrymmen ***
Kalk, urinsten, tvålrester etc
RM 25 ASF * (grundrengöring)
2
RM 59 ASF (skumrengöring)
2
RM 68 ASF
5
189
SV

