Karcher Nettoyeur haute pression HDS 9-16-4 ST Gaz LPG: !
!: Karcher Nettoyeur haute pression HDS 9-16-4 ST Gaz LPG
-
14
–
O equipamento de aquecimento da instalação é uma instala-
ção de combustão. Observar as normas vigentes no local de
instalação.
–
Utilizar apenas chaminés/ tubagens de evacuação do gás de
escape testadas e certificadas.
–
A instalação das condutas e tubagens de gás, assim como, a
ligação do gás do aparelho só pode ser efectuada por uma
empresa certificada da indústria de gás e de água.
–
Os ajustes e reparações no queimador do gás só podem ser
efectuados por técnicos especializados do serviço de assis-
tência da Kärcher.
–
Na tubagem do gás, que deve ter um diâmetro nominal de,
pelo menos, 1 polegada, deve-se montar um manómetro e
uma válvula de bloqueio.
–
Devido às vibrações provocadas pela bomba de alta pressão,
a ligação entre a tubagem de gás rígida e o aparelho deve ser
efectuada com um tubo flexível para gás.
–
No caso de linhas (tubos) adutoras de gás superiores a 10 m
de comprimento deve ser assegurado um diâmetro nominal
de 1 1/2 polegada ou superior. A ligação do gás no aparelho
tem um diâmetro nominal de 1 polegada.
Perigo
Durante o enroscamento do tubo de gás flexível no queimador, é
necessário segurar o bocal de ligação com uma chave de boca
com uma abertura de chave 36. O bocal de ligação não pode ro-
dar em relação à carcaça do queimador. O vedante da ligação
roscada deve ser efectuado com produtos de vedação certifica-
dos pela DVGW. Após a conexão é necessário controlar o ponto
de ligação com um spray de detecção de fugas autorizado pela
DVGW.
O diâmetro da tubagem de gás deve ser calculado segundo
DVGW TRGI 1986 ou TRF 1996. O diâmetro nominal da ligação
do aparelho não é automaticamente o diâmetro nominal da tuba-
gem. O dimensionamento da instalação da tubagem de gás deve
ser efectuada segundo as normas e prescrições em vigor.
–
Cada aparelho deve ser ligado a uma chaminé individual.
–
A condução do gás de escape deve ser efectuada em confor-
midade com as prescrições locais em vigor e segundo as ins-
truções do limpa-chaminés competente.
Aparelho a gás sem dispositivo de segurança de corrente, onde to-
das as peças expostas a sobrepressão na trajectória do gás de es-
cape são envolvidas pelo gás de escape. A instalação B23 permite
a possibilidade de ligação do aparelho a uma chaminé convencional
de tiragem única, segundo a norma DIN 18160 e de operar indepen-
dentemente do ar no espaço em questão. Um pré-requisito é que a
chaminé seja adequada para a ligação de aparelhos queimadores
(p. ex. uma chaminé restaurada através da colocação de um tubo
em aço inoxidável no interior da chaminé).
Instalação da unidade
Apenas para técnicos autorizados!
Generalidades
Informações gerais sobre o gás
Tubagens de gás
!
Condução do ar / gás de escape
Aparelhos a gás com instalação de gás de escape que eva-
cue o ar de combustão do local de instalação
Tipo B23
Aparelhos a gás com instalação de gás de escape que retira
o ar de combustão através de um sistema fechado do ar livre
136
PT
-
15
Aparelho a gás com alimentação do ar de combustão e condu-
ção do gás de escape numa posição vertical sobre o telhado. Os
bocais encontram-se próximos uns dos outros na mesma zona
de pressão.
Aparelho a gás com alimentação do ar de combustão e condu-
ção do gás de escape para a ligação a um sistema de gás de es-
cape/ar.
Aparelho a gás com alimentação do ar de combustão separada
da condução do gás de escape. Os bocais situam-se em áreas
de pressão diferentes.
Aviso:
Para atingir os valores de combustão deve ser cumprido
o valor de evacuação da chaminé indicado nos dados técnicos.
Tipo C33
Tipo C43
Tipo C53
137
PT
-
16
A tubagem do condensado deve estar directamente ligada à liga-
ção do condensado, via sifão. A altura do sifão deve ser de 30
cm. O sifão não está incluído no volume de fornecimento. A tu-
bagem do condensado não pode ter uma ligação directa com a
canalização. O condensado deve evacuar livremente numa tre-
monha ou recipiente de neutralização.
–
No caso de montagem na parede deve-se verificar a capaci-
dade de carga da parede. O material de fixação incluído no
volume de fornecimento é adequado para betão. Para mate-
riais de construção ocos, tijolos e paredes em betão celular
devem ser utilizadas buchas e parafusos adequados como,
por exemplo, ganchos de injecção (ver esquema de furação
na folha de dimensões).
–
Figura 3 - pos. 19 e 25
O aparelho não pode ser conectado de modo rígido à rede de
tubagens de água ou à rede de tubagens de alta pressão. As
tubagens de ligação devem ser obrigatoriamente montadas.
–
Figura 3 - A
Entre a rede de tubagens de água e a mangueira de ligação
deve ser prevista uma torneira de paragem.
Durante a montagem de tubagens de alta pressão devem ser
respeitadas as prescrições legais em vigor no respectivo país de
aplicação.
–
A queda de pressão da tubagem deve ser inferior a 1,5 MPa.
–
A tubagem concluída deve ser controlada com 32 MPa.
–
O isolamento da tubagem deve ser resistente até uma tem-
peratura de 100 °C.
Figura 3 - pos. 20
Os recipientes devem ser posicionados de modo que o nível in-
ferior do detergente não esteja mais de 1,5 m abaixo da base do
aparelho e que o nível superior não se situe acima da base do
aparelho.
Figura 3 - B e pos. 19
Ligar a entrada de água com uma mangueira de água ade-
quada à rede de água.
–
A potência da alimentação de água deve ser de, pelo menos,
1300 l/h com, pelo menos, 0,1 MPa.
–
A temperatura da água deve ser inferior a 30 °C.
Atenção
A impedância de rede máx. permitida, no ponto de conexão eléc-
trico (ver dados técnicos), não pode ser excedida. Em caso de
dúvidas sobre a impedância de rede existente no seu ponto de
conexão, deve entrar em contacto com a empresa de forneci-
mento de energia.
Aviso:
Os processos de ligação provocam breves quedas de
tensão. Em condições desfavoráveis da rede eléctrica, outros
aparelhos poderão ser prejudicadas por este efeito.
–
Valores de conexão: vide dados técnicos e placa sinalética.
–
A ligação eléctrica tem que ser feita por um electricista cre-
denciado e tem que corresponder a IEC 60364-1.
–
As peças condutoras de corrente, cabos e aparelhos situa-
dos na zona de trabalho devem estar protegidos correcta-
mente contra salpicos de água.
Para evitar acidentes relacionados com a electricidade, reco-
mendamos utilizar tomadas com disjuntor de corrente de defeito
intercalado (máx. 30 mA corrente de activação nominal).
Estabelecer a ligação eléctrica.
Para a desactivação da máquina de limpeza estacionária a alta
pressão deve ser instalado um interruptor principal fechável (fi-
gura 3 - Pos. 6) num local de fácil acesso e seguro.
A largura de abertura do contacto do interruptor principal deve
ser de, pelo menos, 3 mm.
Montar a ficha Cekon no cabo de ligação do aparelho.
Inserir a ficha Cekon na tomada.
De modo a permitir a desactivação da máquina de limpeza esta-
cionária a alta pressão, a ficha Cekon deve ser de fácil acesso
para proceder à separação da rede.
Verificar a ligação do gás
Atenção
Perigo de danos no aparelho devido a sobreaquecimento.
Ligar o sifão ao fundo da caldeira e encher com água.
Abrir a caldeira e encher com 4 l de água através da abertura
da chaminé.
Antes da primeira utilização, cortar a ponta da tampa do reci-
piente do óleo na bomba de água.
Figura 3 - pos. 14
Ligar a mangueira de alta pressão à pistola pulverizadora
manual e lança e conectar estes elementos na saída de alta
pressão no aparelho ou na rede de tubagem de alta pressão.
Fixar o bocal (b) com a porca de capa (a) na lança (d). Ter em
atenção que o anel de vedação (c) esteja correctamente po-
sicionado na ranhura.
Escoamento do condensado
Montagem na parede
Montagem das tubagens de alta pressão
Colocar os recipientes do detergente
Alimentação de água
Ligação eléctrica
Ligação eléctrica de instalação fixa
Ligação eléctrica com ficha/tomada
Primeira colocação em funcionamento
O aparelho está preparado de fábrica para a utilização como
aparelho a gás natural para o tipo de gás G 20 e como aparelho
a gás líquido está preparado para gás G 31. No caso de altera-
ção do aparelho a gás natural para G 25 ou outros tipos de gás
natural (ver placa de características) ou do aparelho a gás líqui-
do para G 30 ou outros tipos de gás líquido (ver placa de carac-
terísticas), deve-se ajustar os valores dos respectivos tipos de
gás segundo a informação de serviço.
Na plaqueta vazia é escrito o novo tipo de gás e posteriormente
posicionada no campo do lado direito do aparelho. Simultanea-
mente é necessário remover a plaqueta afixada de fábrica com
a inscrição G 20 (aparelho a gás natural) ou G 31 (aparelho a
gás líquido).
Medidas antes da colocação em funcionamento
a
b
c
d
138
PT
-
17
Remover a mola (c) do apoio da tampa (b) do recipiente do
descalcificador (a).
Encher o recipiente com líquido descalcificante Kärcher RM
110 (Nº de encomenda 2.780-001).
Perigo
Tensão eléctrica perigosa! O ajuste só pode ser efectuado por
um técnico electricista autorizado.
Determinar a dureza da água local:
–
pela empresa local de fornecimento de água,
–
com um aparelho de controlo da dureza (Nº de encomenda
6.768-004).
Remover a cobertura do aparelho.
Abrir a caixa de distribuição no painel de comando.
Ajustar o potenciómetro de rotação (a) consoante a dureza
da água. Com o auxílio da tabela é possível efectuar o ajuste
correcto.
Exemplo:
Para uma dureza de água de 15 °dH deve ajustar o valor da es-
cala 6 no potenciómetro de rotação. Daí resulta um intervalo de
31 segundos, isto é, em intervalos regulares de 31 segundos a
válvula magnética abre brevemente.
O ajuste do tempo de operacionalidade é efectuado na platina de
maior dimensão, na parede lateral esquerda do armário eléctri-
co.
O tempo de operacionalidade está ajustado de fábrica no tempo
mínimo de 2 minutos e pode ser aumentado até ao tempo máxi-
mo de 8 minutos.
Protecção contra calcário
Dureza da água (°dH)
5
10
15
20
25
Escala no potenciómetro
de rotação
8
7
6
5
4,5
Tempo de intervalo (segun-
dos)
50
40
31
22
16
b
c
a
a
Modificação do tempo de operacionalidade
8 7 6 5 4 3 2 1
S2
min.
max.
139
PT
-
18
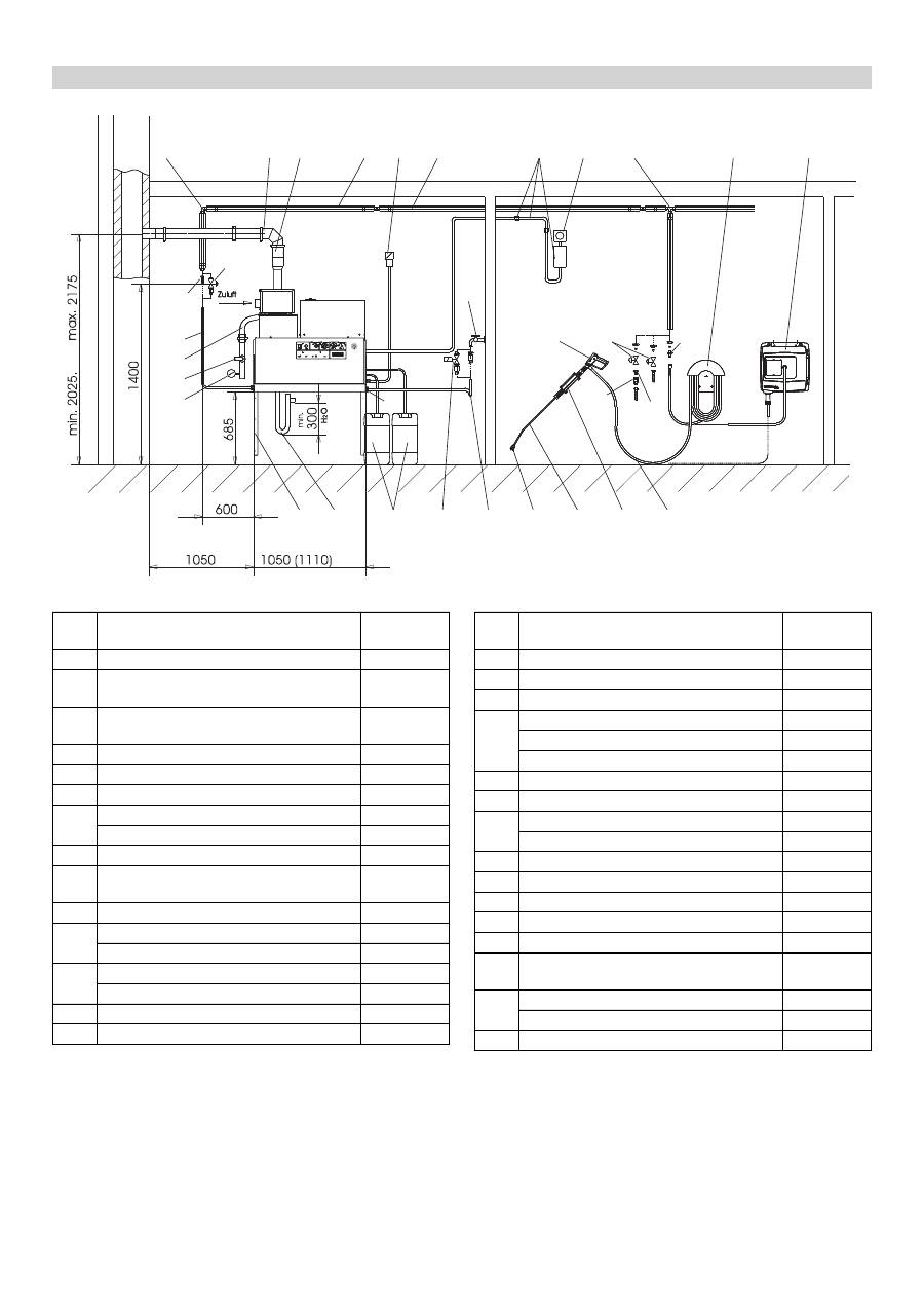
Figura 3
Material de instalação
1
2
3
5
6
7
8
9
10
12
13
A
15
11b
11a
11c
11a
25
21
22
23
11b
24
4
20
19a
19
18
17
16
14
11d
B
Pos. Material de instalação
N.º de enco-
menda
1
União roscada angular
6.386-356
2
Kit de tubagem de gás de escape, hori-
zontal, 150 mm
6.526-231
3
Kit de tubagem de gás de escape, vertical,
150 mm
6.526-232
4
Conjunto de peças de sifão
2.640-422
5
Isolamento térmico
6.286-114
6
Interruptor principal
6.631-455
7
Kit de tubagens, aço zincado
2.420-004
Kit de tubagens, aço inoxidável
2.420-006
8
Kit de peças do controlo remoto
2.744-008
9
Kit de peças do interruptor de Desactiva-
ção de Emergência
2.744-002
10
União roscada em T
6.386-269
11a
Bocal de ligação, latão
2.638-180
Bocal de ligação, aço inoxidável
2.638-181
11b
Torneira de paragem NW 8, aço zincado 4.580-144
Torneira de paragem NW 8, aço inoxidável 4.580-163
11c
Peça fixa de acoplamento rápido
6.463-025
11d
Peça solta de acoplamento rápido
6.463-023
Pos. Material de instalação
N.º de enco-
menda
12
Suporte para mangueiras
2.042-001
13
Carretel da mangueira
2.637-238
14
Mangueira de alta pressão 10 m
6.388-083
15
Pistola pulverizadora manual Easypress 4.775-463
Regulador de rotações HDS 9/16-4
4.775-470
Regulador de rotações HDS 12/14-4
4.775-471
16
Suporte da lança
2.042-002
17
Lança
4.760-550
18
Bocal HDS 9/16-4
2.883-402
Bocal HDS 12/14-4
2.883-406
19
Mangueira de água
4.440-282
19a
Válvula magnética da admissão da água 4.743-011
20
Depósito do detergente, 60 l
5.070-078
21
Mangueira para gás R1“
6.388-228
22
Torneira de paragem para gás R1“
6.412-389
23
Manómetro, gás (Atenção! Prever válvula
de ligação na parte construtiva.)
6.412-059
24
Kit de peças da consola de parede
2.053-005
Kit de peças da armação do chão (base) 2.210-008
25
Mangueira de alta pressão
6.389-028
140
PT
-
19
Declaramos que a máquina a seguir designada corresponde às
exigências de segurança e de saúde básicas estabelecidas nas
Directivas CE por quanto concerne à sua concepção e ao tipo de
construção assim como na versão lançada no mercado. Se hou-
ver qualquer modificação na máquina sem o nosso consentimen-
to prévio, a presente declaração perderá a validade.
5.957-648
Os abaixo assinados têm procuração para agirem e representa-
rem a gerência.
Responsável pela documentação:
S. Reiser
Alfred Kärcher GmbH & Co. KG
Alfred-Kärcher-Str. 28 - 40
71364 Winnenden (Germany)
Tel.: +49 7195 14-0
Fax: +49 7195 14-2212
Winnenden, 2014/02/01
Em cada país são válidas as condições de garantia estabeleci-
das pela nossa sociedade distribuidora. Durante o período de
garantia, consertamos a título gratuito, eventuais avarias, pres-
suposto que se trate defeitos de material ou de fabricação.
Declaração de conformidade CE
Produto:
Lavadora de alta pressão
Tipo:
1.251-xxx
Respectivas Directrizes da CE
2009/142/CE
2006/42/CE (+2009/127/CE)
2004/108/CE
Normas harmonizadas aplicadas
EN 55014–1: 2006+A1: 2009+A2: 2011
EN 55014–2: 1997+A1: 2001+A2: 2008
EN 60335–1
EN 60335–2–79
EN 62233: 2008
EN 61000–3–2: 2006+A1: 2009+A2: 2009
HDS 12/14:
EN 61000–3–3: 2008
HDS 9/16:
EN 61000–3–11: 2000
Especificações aplicadas:
QA 195 (não LPG)
Nome da entidade designada:
Para 2009/142/CE
GASTEC
Wilmersdorf 50
7327 AC Apeldoorn
N.º ident. 0063
Garantia
CEO
Head of Approbation
141
PT
-
20
Serviço de assistência técnica
Tipo de instalação:
Nº de fabrico:
Colocação em funcionamento em:
Controlo efectuado por:
Resultado:
Assinatura
Controlo efectuado por:
Resultado:
Assinatura
Controlo efectuado por:
Resultado:
Assinatura
Controlo efectuado por:
Resultado:
Assinatura
142
PT
-
1
Læs original brugsanvisning inden første brug, følg
anvisningerne og opbevar vejledningen til senere ef-
terlæsning eller til den næste ejer.
–
Inden første ibrugtagelse skal betjeningsvejledningen og sik-
kerhedshenvisningerne nr. 5.956-309 læses!
–
Ved transportskader skal forhandleren informeres omgåen-
de.
Henvisninger til indholdsstoffer (REACH)
Aktuelle oplysninger til indholdsstoffer finder du på:
www.kaercher.com/REACH
Risiko
En umiddelbar truende fare, som kan føre til alvorlige personska-
der eller død.
몇
Advarsel
En muligvis farlig situation, som kan føre til alvorlige personska-
der eller til død.
Forsigtig
En muligvis farlig situation, som kan føre til personskader eller til
materialeskader.
Højtryksstråler kan være farlige, hvis de ikke anvendes
korrekt. Strålen må ikke rettes mod personer, dyr,
tændt elektrisk udstyr eller mod højtryksrenseren.
–
De pågældende nationale love til væskestrålere skal overhol-
des.
–
De pågældende nationale love til forebyggelse imod ulykkes-
tilfælde skal overholdes. Væskestrålere skal kontrolleres re-
gelmæssigt og resultaterne fra kontrollen skal skiftligt
dokumenteres.
–
Maskinens opvarmningsindretning er et fyringsanlæg. Fy-
ringsanlæg skal kontrolleres regelmæssigt iht. de pågælden-
de nationale love.
–
Hvis anlægget drives i rum, skal der sørges for en tilstrække-
lig ventilation (røggasrør uden trækafbryder). Desuden skal
der være en tilstrækkelig tilførsel af frisk luft.
–
der skal tages højde for de sikkerhedsanvisninger, der er ved-
lagt de anvendte rengøringsmidler (i reglen på etiketten).
Inden maskinen installeres, bør der aftales noget med gasforsy-
ningsselskabet og den regionale skorstensfejermester.
Ved installationen skal der tages højde for byggeloven, nærings-
retten og immissionsloven. Vi henviser til de følgende forskrifter,
direktiver og standarder:
–
Maskinen må kun installeres af en specialvirksomhed ifølge
de pågældende nationale love.
–
Ved el-installationen skal de pågældende nationale love og
forskrifter overholdes.
–
Ved gasinstallationen skal de pågældende nationale love og
forskrifter overholdes.
–
Installationen af gasledningerne, som også gastilslutningen
af maskinen, må kun gennemføres af en specialvirksomhed
som er godkendt for gas- og vandtilslutning.
–
Indstillinger, vedligeholdelsesarbejder og reparationer på
brænderen må kun gennemføres af trænede kundeservice-
montører fra Kärcher.
–
Hvis der planlægges en pejs, skal de gældende lokale be-
stemmelser overholdes.
Indholdsfortegnelse
Miljøbeskyttelse. . . . . . . . . .
DA . . 1
Symbolerne i driftsvejledningen
DA . . 1
Symboler på maskinen . . . .
DA . . 1
Generelle sikkerhedsanvisninger
DA . . 1
Bestemmelsesmæssig‚ anvendelse
DA . . 2
Funktion . . . . . . . . . . . . . . .
DA . . 2
Sikkerhedsanordninger . . . .
DA . . 2
Maskinelementer. . . . . . . . .
DA . . 3
Ibrugtagning . . . . . . . . . . . .
DA . . 4
Betjening . . . . . . . . . . . . . . .
DA . . 4
Ud-af-drifttagning . . . . . . . .
DA . . 6
Afbrydning/nedlæggelse . . .
DA . . 6
Opbevaring . . . . . . . . . . . . .
DA . . 6
Transport. . . . . . . . . . . . . . .
DA . . 6
Tekniske data . . . . . . . . . . .
DA . . 7
Pleje og vedligeholdelse . . .
DA . . 9
Hjælp ved fejl . . . . . . . . . . .
DA . 11
Tilbehør . . . . . . . . . . . . . . . .
DA . 13
Anlægsinstallation . . . . . . . .
DA . 14
EU-overensstemmelseserklæring
DA . 19
Garanti . . . . . . . . . . . . . . . .
DA . 19
Kundeservice . . . . . . . . . . .
DA . 20
Miljøbeskyttelse
Emballagen kan genbruges. Smid ikke emballagen ud
sammen med det almindelige husholdningsaffald,
men aflever den til genbrug.
Udtjente apparater indeholder værdifulde materialer,
der kan og bør afleveres til genbrug. Batterier, olie og
lignende stoffer er ødelæggende for miljøet. Aflever
derfor udtjente apparater på en genbrugsstation eller
lignende.
Motorolie, fyringsolie, diesel og benzin må ikke nå ind i miljøet.
Beskyt jorden og sørg for en miljørigtigt bortskaffe af affaldsolie.
Kärcher-rengøringsmidler er adskillelsesvenlige (ASF). Dvs., at
funktionen af en olieseparator ikke indskrænkes. En liste over
anbefalede rengøringsmidler findes i kapitel "Tilbehør".
Symbolerne i driftsvejledningen
Symboler på maskinen
Generelle sikkerhedsanvisninger
Forskrifter, direktiver og regler
143
DA
-
2
Arbejdspladsen er på betjeningspanelet. Afhængigt af anlæggets
konstruktion, er yderligere arbejdspladser på tilbehørsenhederne
(sprøjteindretning), som tilsluttes til servicestationerne.
–
Bær passende sikkerhedstøj og beskyttelsesbriller som værn
mod vand eller snavs, der sprøjter bagud.
Maskinen er beregnet til at fjerne snavs fra overflader ved hjælp
af en frit udtrædende vandstråle. Den bruges specielt til at rense
maskiner, køretøjer, og facader.
Risiko
Fysisk Risiko! Ved brug på tankstationer eller andre risikoområ-
der skal der tages hensyn til de tilsvarende sikkerhedsregler.
–
Koldt vand transporteres via en motorkøleslange ind i svøm-
merbeholderen og derfra ind i den ydre flade af gennem-
strømningsvandvarmeren og videre til højtrykspumpens
sugeside. I svømmerbeholderen tilsættes blødgøringsmid-
del. Pumpen transporterer vand og indsuget rensemiddel
igennem gennemstrømningsvandvarmeren. Andelen af ren-
semidlet i vandet kan indstilles via en doseringsventil. Gen-
nemstrømningsvandvarmeren fyres med en gasbrænder.
–
Højtryksudgangen tilsluttes til et eksisterende højttryksnet i
bygningen. Håndsprøjtepistolerne opkobles med en højt-
tryksslange på servicestationerne af dette net.
Sikkerhedsanordningerne tjener brugerens beskyttelse og må
ikke sættes ud af drift eller ignoreres i deres funktion.
Tørkøringssikringen forhindrer, at højtrykspumpen indkobles ved
vandmangel.
Tørkøringssikringen forhindrer at brænderen overophedes ved
vandmangel. Brænderen starter først ved tilstrækkelig tilførsel af
vand.
Trykafbryderen afbryder maskinen, hvis arbejdstrykket overskri-
des. Indstillingerne må ikke ændres.
Ved en fejlfunktion af trykafbryderen åbnes sikkerhedsventilen.
Denne ventil er indstillet af fabrik og plomberet. Indstillingerne må
ikke ændres.
Ved brændstofmangel eller en brænderfejl, afbryder flammekon-
trollen brænderen. Kontrollampe "Brænderfejl" (E) lyser.
Hvis brændermotoren er blokeret, udløses overstrømningsbe-
skyttelsesafbryderen. Motoren og højtrykspumpen er sikret med
en motorbeskyttelsesafbryder og en viklingsbeskyttelsesafbry-
der.
Røggastermostaten udløses, hvis røggastemperaturen oversti-
ger 320 °C. Kontrollampe "Røggastermostat" (K) lyser.
Maksimaltemperaturbegrænsningen i kedlens bund (> 80 °C) og
i vandudgangen (> 110 °C) udløses og kontrollampe "Brænder-
fejl" (E) lyser.
Røggastrykafbryderen afbryder brænderen, hvis der opstår en
utilladelig høj modtryk i røggassystemet, f.eks. ved tilstopning.
Efter maskinen afbrydes via håndsprøjtepistolen og efter syste-
mets "klar til drift" tid er afløbet, åbnes en magnetventil som sid-
der i højtrykssystemet og trykket sænkes.
Arbejdspladser
Personligt beskyttelsesudstyr
Ved rengøring af støjforstærkende komponen-
ter skal der anvendes et høreværn til forebyg-
gelse af høreskader.
Bestemmelsesmæssig‚
anvendelse
Sørg venligst for at olieholdigt spildevand ikke når ind i jorden,
vandet eller kanalisationen. Motorvask og undervognsvask bør
derfor kun gennemføres på velegnede steder som har en olie-
udskiller.
Funktion
Sikkerhedsanordninger
Svømmerbeholderens tørkøringssikring
Sikkerhedsblokkens tørkøringssikring
Trykkontakt
Sikkerhedsventil
Flammekontrol
Overstrømningsbeskyttelse
Røggastermostat
Temperaturbegrænsning
Røggastrykafbryder
Højtrykssystemets trykudligning
144
DA
-
3
Fig. 1
1 Brænder
2 Manometer
3 Ferskvandstilløb med siv
4 Højtryksudgang
5 Gastilslutning
6 Sugeslangen til rensemidlet I
7 Sugeslange til rensemiddel II (option)
8 Beholder til blødgører
9 EL-ledning
10 Svømmerbeholder
11 Betjeningsfelt
Fig. 2
A Afbryder
B Termostat
C Doseringsventil til rensemiddel I
D Doseringsventil til rensemiddel II (option)
E Kontrollampe "Brænderfejl"
F Kontrollampe "klar til brug"
G Kontrollampe "Motor-superopvarmning"
H Kontrollampe "Forkalkningsbeskyttelse"
I
Åbningsknap "Gasrelæ"
J Åbningsknap "Røggastermostat"
K Kontrollampe "Røggastermostat"
Maskinelementer
4
5
6
7
3
8
10
1
11
2
9
Betjeningsfelt
145
DA
-
4
몇
Risiko
Fysisk Risiko! Maskinen, tilførselsledninger, højtryksslange og til-
slutninger skal være i udmærket tilstand. Hvis maskinen ikke er i
en fejlfri tilstand, må den ikke benyttes.
–
Se typeskilt/tekniske data for tilslutningsværdier
–
El-tilslutningen skal gennemføres af en el-installatør og svare
til IEC 60364-1.
Brugeren skal anvende højtryksrenseren iht. dens anvendelses-
formål. Han skal tage hensyn til de lokale forhold og holde øje
med, om der er personer i nærheden, når han arbejder med høj-
tryksrenseren.
Lad aldrig højtryksrenseren være uden opsyn, mens den er i drift.
Risiko
–
Skoldningsrisiko på grund af varmt vand! Hold vandstrålen
ikke imod personer eller dyr.
–
Skoldningsfare på grund af varme anlægskomponenter! Ved
drift med varmt vand, må ikke isolerede rørledninger og slan-
ger ikke berøres. Strålerøret må kun holdes fast på grebskå-
len. Gennemstrømningsvandvarmerens røggasstuds må ikke
berøres.
–
Forgiftnings- og ætsningsfare på grund af rensemiddel! Tag
højde for anvisningerne på rensemidlerne. Rensemidler skal
opbevares utilgængeligt for børn.
Risiko
Livsfare på grund af elektrisk stød! Hold vandstrålen ikke imod
følgende enheder:
–
El-apparater og anlæg,
–
selve anlægget,
–
alle strømførende komponenter i arbejdsområdet.
På grund af vandstrålen, som udtræder af stålrøret, opstår en re-
aktionskraft. Igennem det bøjede strålerør virker en kraft opad.
Risiko
–
Fysisk Risiko! Strålerørets reaktionskraft kan føre til et tab af
balancen. De kan styrte. Strålerøret kan flyve hid og did og
føre til personskader. Sørg for en sikker plads og hold sprøj-
tepistolen godt fast. Håndsprøjtepistolens greb må aldrig
klemmes fast.
–
Ret ikke strålen mod Dem selv eller andre for at rengøre tøj
eller skotøj.
–
Risiko for tilskadekomst fra dele, der slynges bort! Brudstyk-
ker eller genstande, der slynges bort, kan kvæste personer
eller dyr. Hold vandstrålen aldrig imod genstande, som er
løse eller kan gå i stykker.
–
Fare for ulykkestilfælde på grund af beskadigelse! Rens dæk
og ventiler med en minimum afstand på 30 cm.
몇
Advarsel
Fare på grund af sundhedsfarlige stoffer! Følgende materialer
må ikke sprøjtes, da sundhedsfarlige stoffer kan hvirvles op:
–
Asbestholdige materialer,
–
materialer som muligvis indeholder sundhedsfarlige stoffer.
Risiko
–
Fare for personskader på grund af en udtrædende, evt. varm
vandstråle! Kun originale højtryksslanger fra Kärcher er ind-
stillet optimalt til anlægget. Der overtages ingen garanti hvis
der bruges andre slanger.
–
Sundhedsfare på grund af rensemiddel! På grund af evt. til-
satte rensemidler, har det vand som afgives af maskinen in-
gen kvalitet som drikkevand.
–
Fare for høreskader på grund af arbejde på støjforstærkende
komponenter! Brug høreværn i dette tilfælde.
Risiko
Fare for personskader på grund af en udtrædende, evt. varm
vandstråle!
Risiko
Kontroller altid højtryksslangen for beskadigelser, før den tages i
brug. Udskift højtryksslangen med det samme, hvis den er be-
skadiget.
Kontroller højtryksslangen, rørledningerne, armaturerne og
strålerøret før hvert brug med hensyn til skader.
Kontroller om slangekoblingen sidder fast og om den er tæt.
Forsigtig
Fare for materialeskader på grund af tørkørsel.
Kontroller rensemiddelbeholderens påfyldningsgrad, påfyld
evt.
Kontroller blødgøringsmidlets påfyldningsgrad og påfyld efter
behov.
Sæt hovedafbryderen (A) på "0".
Luk vandtilførslen.
Betjen sprøjtepistolen indtil maskinen er fri for tryk.
Luk gastilførslen.
Ibrugtagning
Strømtilslutning
Betjening
Sikkerhedsanvisninger
!
Apparatet skal gøres i stand til at køre
Slukke i nødstilfælde
146
DA
-
5
Dreje mængdereguleringsventilen med uret forhøjer arbejds-
trykket og kapaciteten.
Dreje mængdereguleringsventilen imod uret reducerer ar-
bejdstrykket og kapaciteten.
En drejning af vandmængderegulatoren til højre, resulterer i
en større transportmængde og højere arbejdstryk.
En drejning af vandmængderegulatoren til venstre, resulterer
i en ringere transportmængde og ringere arbejdstryk.
Åbn for vandtilløbet.
Symbol "Motor tænd"
Træk i håndsprøjtepistolens håndtag og sæt hovedafbryde-
ren (A) på „1“ (Motor tænd).
Kontrollampe "Klar til drift" (F) viser at maskinen er klar til drift.
Risiko
Skoldningsrisiko!
Forsigtig
Varmvandsdrift uden brændstof fører til beskadigelse af brænd-
stofpumpen. Før varmvandsdriften skal der sørges for en forsy-
ning af brændstof.
Efter behov, kan brænderen indkobles.
Symbol "Brænder tænd"
Hovedafbryderen (A) stilles på "Brænder tænd".
Indstil den ønskede vandtemperatur på temperaturregulato-
ren (B). Max. temperatur er 98 °C.
–
Hvis der gives slip for håndsprøjtepistolens greb under drif-
ten, afbrydes maskinen.
–
Hvis pistolen åbnes igen indenfor den indstillelige driftstid
(2...8 minutter) starter maskinen igen selvstændigt.
–
Hvis driftstiden overskrides, afbryder sikkerhedstidskoblingen
pumpen og brænderen. Kontrollampe "Klar til drift" (f) sluk-
kes.
–
Til genstart af maskinen sættes hovedafbryderen på "0" og
tænd igen for maskinen. Hvis maskinen styres via en fjernbe-
tjening, kan maskinen genstartes ved at trykke den tilsvaren-
de knap på fjernbetjeningen.
–
Bildæk renses kun med en fladstråledyse (25°) og en mini-
mum sprøjteafstand på 30 cm. Bildæk må aldrig renses med
rundstrålen.
Til alle andre opgaver står følgende dyser til rådighed:
Ved mere end 20 m rørledning eller mere end 2 x 10 m højtryks-
slange NW 8 skal følgende dyser anvendes:
Arbejdstryk og kapacitet stilles ind
Indstilling på maskinen
Indstilling på easypresspistolen (option)
Betjening med koldt vand
R
Betjening med varmt vand
Klar til drift
Valg af dysen
Til-
smuds-
ning
Mund-
stykke
Sprøjte-
vinkel
Partnr.
6.415
Tryk
[MPa]
Reakti-
onskraft
[N]
HDS 9/16
stærk
00060
0°
-649
16
46
middel
25060
25°
-647
ringe
40060
40°
-648
HDS 12/14
stærk
00080
0°
-150
14
55
middel
25080
25°
-152
ringe
40080
40°
-153
Til-
smuds-
ning
Mund-
stykke
Sprøjte-
vinkel
Partnr.
6.415
Tryk
[MPa]
Reakti-
onskraft
[N]
HDS 9/16
stærk
0075
0°
-419
10
37
middel
2575
25°
-421
ringe
4075
40°
-422
HDS 12/14
stærk
0010
0°
-082
10
46
middel
2510
25°
-252
ringe
4010
40°
-253
147
DA
-
6
–
Rensemidler letter rengøringsopgaven. De indsuges fra en
ekstern rensemiddelbeholder.
–
Maskinens basismodel er udstyret med en doseringsventil
(C). En supplerende doseringsventil (doseringsventil D) kan
fås som ekstratilbehør. Der er så mulighed for at indsuge to
forskellige rensemidler.
–
Doseringsmængden indstilles på rensemiddeldoseringsventi-
len (C eller D) på betjeningspanelet. Den indstillede værdi
svarer til rensemiddelandelen i procent.
–
Den ydre skala gælder ved brug af ufortyndede rensemidler
(100 % CHEM).
–
Den indvendige skala gælder ved brug af 1+3 forud fortynde-
de rensemidler (25 % CHEM + 75 % vand).
Følgende tabel opfører rensemiddelforbruget for værdierne på
den ydre skala:
Den nøjagtige doseringsmængde er afhængig af:
–
Rensemidlets viskositet
–
Indsugningshøjde
–
Højtryksledningens strømningsmodstand
Hvis en nøjagtig dosering er nødvendigt, skal den indsugede ren-
semiddelmængde måles (f.eks. ved hjælp af indsugning fra en
målebæger).
Bemærk:
Anbefalinger til rensemidler findes i kapitel "Tilbehør".
Forsigtig
Ved rift uden blødgører, kan gennemstrømningsvandvarmeren
forkalke.
Hvis beholderen til blødgøringsmidlet er tomt, blinker kontrollam-
pe "Forkalkningsbeskyttelse" (H).
Fig. 1- pos. 8
Påfyld blødgøringsmiddelbeholderen med blødgøringsvæske
RM 110 (2.780-001).
Risiko
Skoldningsrisiko på grund af varmt vand! Efter brug med varmt
vand skal maskinen køles ned idet den bruges med koldt vand og
åbn pistol for mindst to minutter.
Ved varmvandsdrift skal temperaturregulatoren (B) indstilles
til den laveste temperatur.
Brug maskinen mindst 30 sekunder uden rensemiddel.
Sæt hovedafbryderen (A) på "0".
Luk vandtilførslen.
Betjen sprøjtepistolen indtil maskinen er fri for tryk.
Håndsprøjtepistolen skal sikres med sikringskærven imod til-
fældig åbning.
Ved længere pauser eller hvis en frostfri opbevaring ikke er mu-
ligt, skal følgende foranstaltninger gennemføres (se kapitel "Pleje
og vedligeholdelse", sektion "Frostbeskyttelse").
Vand afledes.
Maskinen skyldes grundigt med frostvæske.
Hovedafbryderen kobles fra og sikres, hhv. Cekon-stikket
fjernes.
Luk gastilførslen.
Forsigtig
Fare for person- og materialeskader! Hold øje med maskinens
vægt ved opbevaring.
Forsigtig
Fare for person- og materialeskader! Hold øje med maskinens
vægt ved transporten.
Ved transport i biler skal renseren fastspændes i.h.t. gælden-
de love.
Rensemiddeldosering
Stilling 0,5
1
8
Rensemiddelmængde [l/h]
14...15 22...24
50
Rensemiddelkoncentration [%]
1,5
2,5
> 5
Påfylde blødgører
Ud-af-drifttagning
Efter brug med rensemiddel
Sluk for maskinen
Afbrydning/nedlæggelse
Opbevaring
Transport
148
DA
-
7
Tekniske data
HDS 9/16-4
ST Gas
HDS 9/16-4
ST Gas LPG
HDS 12/14-4
ST Gas
HDS 12/14-4
ST Gas LPG
1.251-108
1.251-109
1.251-110
1.251-111
Ydelsesdata
Arbejdstryk vand (med standarddyse)
MPa (bar)
16 (160)
16 (160)
14 (140)
14 (140)
Maks. driftsovertryk (sikkerhedsventil)
MPa (bar)
18,5 (185)
18,5 (185)
18,5 (185)
18,5 (185)
Transportmængde "Vand" (trinløs justerbar)
l/h (l/min)
500-1000 (8,3-
16,6)
500-1000 (8,3-
16,6)
600-1200 (10-
20)
600-1200 (10-
20)
Rensemiddelindsugning (trinløs justerbar)
l/h (l/min)
0-50 (0-0,8)
0-50 (0-0,8)
0-60 (0-1)
0-60 (0-1)
Vandtilslutning
Forsyningsmængde, min.
l/h (l/min)
1100 (18,3)
1100 (18,3)
1300 (21,7)
1300 (21,7)
Tilførselstryk (min.)
MPa (bar)
0,1 (1)
0,1 (1)
0,1 (1)
0,1 (1)
Tilførselstryk, maks.
MPa (bar)
0,6 (6)
0,6 (6)
0,6 (6)
0,6 (6)
El-tilslutning
Strømtype
--
3N~
3N~
3N~
3N~
Frekvens
Hz
50
50
50
50
Spænding
V
380-420
380-420
380-420
380-420
Tilslutningseffekt
kW
6,4
6,4
7,5
7,5
El-sikring (forsinket)
A
16
16
20
20
Kapslingsklasse
--
IPX5
IPX5
IPX5
IPX5
Beskyttelsesklasse
--
I
I
I
I
Maksimalt tilladelig netimpedans
Ohm
(0,381+j
0,238)
(0,381+j
0,238)
--
--
EL-ledning
mm
2
5 x 2,5
5 x 2,5
5 x 2,5
5 x 2,5
Temperatur
Forsyningstemperatur, maks.
°C
30
30
30
30
Max. arbejdstryk varmt vand
°C
98
98
98
98
Max. temperatur sikkerhedstermostat
°C
110
110
110
110
Temperaturforøgelse ved max. vandgennemstrømning °C
60-65
60-65
60-65
60-65
Varmekapacitet brutto
kW
75
75
95
95
Kamintræk
kPa
0,01-0,04
0,01-0,04
0,01-0,04
0,01-0,04
Gas-tilslutningsværdier
Naturgas E (G 20)
m
3
/h
7,2
--
9,8
--
Naturgas LL (G 25)
m
3
/h
8,2
--
11,4
--
Nominel tilslutningstryk (naturgas)
kPa
1,8-5
--
1,8-5
--
Propan
kg/h
--
5,7
--
7,2
Nominel tilslutningstryk (propan)
kPa
--
5-6
--
5-6
Miljødata
Nominel udnyttelsesfaktor
%
97
97
97
97
Nominel immissionsfaktor NO
X
(naturgas G 25)
mg/kWh
< 40
--
< 40
--
Nominel immissionsfaktor CO (naturgas G 25)
mg/kWh
< 40
--
< 40
--
Værdier til skorstensdimensionering
Overtryksegnethed (min.)
kPa
0,05
0,05
0,05
0,05
Trækbehov
kPa
0
0
0
0
Røggasmassestrøm - fuldlast
kg/h
130
130
166
166
CO
2
(naturgas)
%
9,5
--
9,5
--
CO
2
(propan)
%
--
12
--
12
Røggastemperatur max./min.
°C
190/150
190/150
170/130
170/130
Forbrændingsluft/lufttilførsel
Max. længde: 10 m med to 90° bøjninger (min. diameter 100 mm). Ifølge de
lokale bestemmelser ud fra opstillingsstedet eller friskluft udefra.
Kondensatbortledning
Kondensatbortledning (max.)
l/h
4 ( via vandlås
ind i kloakan-
lægget)
4 ( via vandlås
ind i kloakan-
lægget)
4 ( via vandlås
ind i kloakan-
lægget)
4 ( via vandlås
ind i kloakan-
lægget)
Tilslutning
DN
40 (HTR)
40 (HTR)
40 (HTR)
40 (HTR)
Minimal vandsøjle, vandlås
mm
300
300
300
300
149
DA
-
8
Godkendelse EN 60335-2-79
Godkendelse ifølge Gas Appliance Directive (90/396/
EEC)
--
Gastec QA
Low NO
X
Gastec QA
Gastec QA
Low NO
X
Gastec QA
Maskinklasse Europa
--
I 2E (r), I
2ELL, I 2H, I
2L, I2 HE
I 3P
I 2E (r), I
2ELL, I 2H, I
2L, I2 HE
I 3P
Maskintype
--
B23, C33,
C43, C53
B23, C33,
C43, C53
B23, C33,
C43, C53
B23, C33,
C43, C53
CE-produkt-identnummer
--
PIN 0063 BN
3880
PIN 0063 BN
3880
PIN 0063 BN
3880
PIN 0063 BN
3880
Mål og vægt
Længde
mm
1124
1124
1124
1124
Bredde
mm
558
558
558
558
Højde
mm
966
966
1076
1076
Typisk driftsvægt
kg
193,5
193,5
209
209
Oplyste værdier ifølge EN 60355-2-79
Støjemission
Lydtryksniveau L
pA
dB(A)
74
74
76
76
Usikkerhed K
pA
dB(A)
1
1
1
1
Hånd-arm vibrationsværdi
Håndsprøjtepistol
m/s
2
2,2
2,2
2,3
2,3
Strålerør
m/s
2
1,8
1,8
2,1
2,1
Usikkerhed K
m/s
2
1,0
1,0
1,0
1,0
HDS 9/16-4
ST Gas
HDS 9/16-4
ST Gas LPG
HDS 12/14-4
ST Gas
HDS 12/14-4
ST Gas LPG
Måltegning
150
DA
-
9
Risiko
Risiko for tilskadekomst! Før alle vedligeholdelses- og rengø-
ringsarbejder skal hovedafbryderen frakobles, hhv. Cekon-stik-
ket fjernes.
Pleje og vedligeholdelse
Vedligeholdelsesskema
Tidspunkt
Aktivitet
berørte komponenter
Gennemførelse
Af hvem
Dagligt
Kontroller hånd-
sprøjtepistolen
Håndsprøjtepistol
Kontroller, om håndsprøjtepistolen er låst tæt.
Kontroller funktionen af sikringen imod utilsigtet
brug. Udskift defekt håndsprøjtepistol.
Betjener
Kontroller høj-
tryksslangerne
Udgangsledninger, slanger til
arbejdsenheden
Kontroller slangerne med hensyn til skader. De-
fekte slanger skal udskiftes omgående. Risiko for
ulykke!
Betjener
Kontroller tilslut-
ningsledningen
med netstikket
El-tilslutning med stik/bøsning Kontroller tilslutningsledningen og netstikket for
beskadigelser. En beskadiget tilslutningsledning
skal udskiftes af en autoriseret kundeserviceaf-
deling/el-installatør med det samme.
Betjener
en gang om ugen
eller efter 40 drift-
stimer.
Kontrollere olie-
tilstanden
Oliebeholder på pumpen
Hvis oliet er mælkeagtig skal det skiftes.
Betjener
Kontroller olie-
standen
Oliebeholder på pumpen
Kontrollere pumpens oliestand. Påfyld efter be-
hov (bestillingsnr. 6.288-0160).
Betjener
Rens sivet
Filter i vandtilførslen
Se afsnit "Rens sivet".
Betjener
en gang om må-
neden eller efter
200 driftstimer.
Kontroller pum-
pen
Højtrykspumpe
Kontroller pumpen for lækage. Ved mere end 3
dråber per minut, kontakt kundeservice.
Betjener
kontroller for ind-
vendige aflejrin-
ger.
hele anlægget
Tag anlægget med strålerøret men uden højt-
tryksdyse i drift. Hvis driftstrykket stiger på ma-
skinens manometer over 3 MPa, skal anlægget
afkalkes. Det gælder også, hvis der konstateres
et driftstryk på mere end 0,7–1 MPa ved rift uden
højtryksledning (vand træder frit ud ved højtryks-
udgangen).
Bruger med
træning i af-
kalkning
Rens sivet
Siv i tørkøringssikringen
Se afsnit "Rens sivet".
Betjener
efter 500-700
driftstimer
Udskiftning
Glødetænder, ioniseringselek-
trode
Udskifte glødetænder, hhv. ioniseringselektro-
den.
Kundeser-
vice
en gang hvert
halvt år eller efter
1000 driftstimer.
Olieskift
Højtrykspumpe
Aftap olien. Påfyld 1 l nyt olie (bestillingsnr.
6.288-016). Kontroller oliestanden på oliebehol-
deren.
Betjener
kontroller, rens
hele anlægget
Visuel kontrol af anlægget, kontroller højtrykstil-
slutningerne for tæthed, kontroller overstrøm-
ningsventilen for tæthed, kontroller
højtryksslangen, kontroller trykakkulatoren, af-
kalk varmeslangen, rens/udskift ioniseringselek-
troden, juster brænderen.
Kundeser-
vice
Udskifte slangen Slange til røggastrykafbryde-
ren
Udskift slangen.
Kundeser-
vice
årligt
Sikkerhedskon-
trol
hele anlægget
Gennemfør en sikkerhedskontrol iht. de nationa-
le regler og love for væskestrålere.
Sagkyndig
person
151
DA
-
10
Der kan aftales en servicekontrakt til apparatet med Kärcher-
salgskontoret.
Fig. 1- pos. 3
Luk vandtilførslen.
Skru vantilløbsslangen fra maskinen.
Skub sivet ud af tilslutningen med en skruetrækker.
Rens sivet
Monter igen i omvendt rækkefølge.
Fjern afdækningspladerne.
Skru vinkelstykket af fra sikkerhedsblokken.
Skru skrue M8x30 ind i sivet.
Træk skruen og sivet ud med en tang.
Rens sivet
Monter igen i omvendt rækkefølge.
Ved aflejringer i rørledningerne stiger gennemstrømningsmod-
standen og trykafbryderen udløses.
Risiko
Eksplosionsfare på grund af brændbare gas! Rygning er forbudt
ved afkalkningen. Sørg for god ventilation.
Risiko
Ætsningsfare på grund af syre! Brug beskyttelsesbriller og hand-
sker.
Efter loven må der kun bruges kedelstenfjerner til afkalkning som
har et kontrolmærke.
–
RM 100 (bestillingsnr. 6.287-008) løsner kedelsten og enkelte
forbindelser af kalksten og vaskemiddelrester.
–
RM 101 (bestillingsnr. 6.287-013) løsner aflejringer som ikke
kan løsnes med RM 100.
Fyld en 20-liter-beholder med 15 l vand.
Tilsæt en liter kedelstenfjerner.
Tilslut vandslangen direkte på pumpehovedet og hæng det
andet endestykke ind i beholderen.
Sæt det tilsluttede strålerør uden dyse ind i beholderen.
Åbn håndsprøjtepistolen og hold den åben under afkalknin-
gen.
Sæt maskinens afbryder til „Brænder tænd“ indtil der opnås
ca. 40 °C.
Afbryd maskinen og lad den stå for 20 minutter. Håndsprøjte-
pistolen skal forblive åben.
Maskinen skal derefter pumpes tom.
Bemærk:
Til beskyttelse imod korrosion og til neutralisering af
syreresterne anbefaler vi derefter, at pumpe en alkalisk løsning
(f.eks. RM 81) vis rensemiddelbeholderen igennem maskinen.
Maskinen skal opstilles i frostbeskyttede rum. Hvis der er fare for
frost, f.eks. ved udendørsinstallering, skal maskinen tømmes og
spules med frostbeskyttelsesmiddel.
Vandtilførselsslangen og højtryksslangen skrues fra.
Maskinen skal køre max. 1 minut indtil pumpen og ledninger-
ne er tom.
Tilførselsledningen på kedelbunden skrues fra og varmeslan-
gen skal løbe tom.
Bemærk:
Tag hensyn til frostvæskeproducentens instruktioner.
Påfyld almindeligt frostbeskyttelsesvæske i svømmerbehol-
deren op til kanten.
Sæt opsamlingsbeholderen under højtryksudgangen.
Tænd maskinen og lad den køres så længe, indtil tørkørings-
sikringen i svømmerbeholderen reagerer og maskinen afbry-
des.
Påfyld kedelbunden og vandlåsen med frostbeskyttelsesvæ-
ske.
Herved opnår man også en vis beskyttelse imod rust.
Serviceaftale
Rens sivene
Siv i vandtilførslen
Siv i tørkøringssikringen
Afkalkning
Gennemførelse
2.
1.
Frostbeskyttelse
Vand afledes.
Maskinen skyldes grundigt med frostvæske
152
DA
-
11
Risiko
Risiko for tilskadekomst! Før alle vedligeholdelses- og rengø-
ringsarbejder skal hovedafbryderen frakobles, hhv. Cekon-stik-
ket fjernes.
*
OBS
Tryk åbningsknap "Røggastermostat" (J) for at åbne flammekon-
trollen.
Hjælp ved fejl
Fejl
Mulig årsag
Afhjælpning
Af hvem
Maskinen kører ikke, kontrol-
lampe "Klar til drift" (F) lyser
ikke
Apparatet har ingen spænding.
Kontroller strømnettet.
El-installatør
Sikkerhedstidsindkoblingen i funk-
tion.
Afbryd maskinen kort med afbryderen, tænd
den igen.
Betjener
Sikring i styringskreds (F3) er
smeltet. Sikring findes i styrings-
transformatoren (T2).
Isæt ny sikring, hvis sikringen smelter igen,
skal grunden for overbelastningen fjernes.
Kundeservice
Trykafbryder HT (højtryk) eller LT
(lavtryk) defekt.
Kontroller trykafbryderen.
Kundeservice
Timer modul (A1) defekt.
Kontroller tilslutningerne, udskift ved behov. Kundeservice
+ kontrollampe "Motor over-
ophedning"(G) lyser
Termoføleren (WS) i motoren eller
overstrømsikkerhedsafbryderen
(F1) blev udløst.
Fjern grunden til overbelastningen.
Kundeservice
Tørkøringssikringen i svømmerbe-
holderen har reageret.
Sørg for vand.
Betjener
Brænderen tænder ikke eller
flammen slukkes under drif-
ten
Temperaturregulatoren (B) indstil-
let for lavt.
Indstil temperaturregulatoren højere.
Betjener
Maskinens afbryder står ikke på
"Brænder".
Tænd brænderen.
Betjener
Sikkerhedsblokkens tørkøringssik-
ring blev afbrudt.
Sørg for en tilstrækkelig vandtilførsel. Kon-
troller maskinen for tæthed.
Betjener
Gashane lukket.
Åbn gashanen.
Betjener
Maksimaltemperaturbegrænseren
i vandudgangen (> 110 °C) blev
udløst.
Lad kedlen køle ned og genstart maskinen. Betjener
Kontroller temperaturregulatoren.
Kundeservice
Kontrollampe "Røggaster-
mostat" (K) lyser
Ingen gastilførsel.
Åbn gastilførslen.
Betjener
Friskluft- eller afgangslufttilførslen
tilstoppet.
Kontroller ventilationen og røggassystemet. Betjener
Kedelbunden for varm. Maksimal-
temperaturbegrænseren i kedel-
bunden (> 80 °C) blev udløst.
Ingen kondensvand i kedelbunden.
Påfyld 5 liter vand via røggasmålerens studs. Betjener
Gasfyringsautomaten står på Fejl. Tryk åbningsknap "Gasrelæ" (I).
Betjener
Ingen tænding. *
Kontroller elektrodeafstanden "Gasfyrings-
automat og tændingskabel". Juster afstan-
den eller udskift defekte parter. Rens om
nødvendigt.
Kundeservice
Blæseren eller omdrejningstal-sty-
replatinen defekt. *
Kontroller blæseren og omdrejningstal-styre-
platinen. Kontroller stikket og ledningen. Ud-
skift defekte parter.
Kundeservice
153
DA
-
12
Fejl
Mulig årsag
Afhjælpning
Af hvem
Kontrollampe "Røggaster-
mostat" (K) lyser
Røggastemperaturbegrænseren
blev udløst.
Åbn håndsprøjtepistolen indtil anlægget er
kølet ned. Tænd og sluk anlægget på betje-
ningspanelet for at åbne temperaturbegræn-
seren. Kontakt kundeservice i
gentagelsestilfælde.
Betjener
Kontrollampe "Forkalknings-
beskyttelse" (H) lyser
Blødgøringsvæske tom.
Påfyld blødgører.
Betjener
Utilstrækkelig eller ingen ren-
semiddeltransport
Doseringsventil på stilling "0".
Indstil doseringsventilen til rensemiddel.
Betjener
Rensemiddelfiltret tilstoppet eller
tank tom.
Rens, hhv. påfyld.
Betjener
Sugeslangerne til rensemidlet, do-
serings- eller magnetventilen utæt
eller tilstoppet.
Kontroller, rens.
Betjener
Elektronik eller magnetventil de-
fekt.
Udskift
Kundeservice
Maskinen kommer ikke op
det nødvendige tryk
Spul dysen.
Erstat dysen.
Betjener
Rensemiddeltanken tom.
Påfyld rensemiddel.
Betjener
Ikke tilstrækkeligt vand.
Sørg for tilstrækkelig vandtilførsel.
Betjener
Siv på vandindgangen tilstoppet.
Kontroller, afmonter sivet og rens det.
Betjener
Rensemiddeldoseringsventilen
utæt.
Kontroller og tætn.
Betjener
Rensemiddelslangerne utæt.
Udskift
Betjener
Svømmerventilen sidder fast.
Kontroller for fri gang.
Betjener
Sikkerhedsventil utæt.
Kontroller indstillingen, monter evt. en ny tæt-
ning.
Kundeservice
Mængdereguleringsventilen utæt
eller indstillet for lavt.
Kontroller ventilens komponenter, udskift ved
beskadigelse, rens ved tilsmudsning.
Kundeservice
Magnetventilen til trykudligningen
defekt.
Udskift magnetventilen.
Kundeservice
Højtrykspumpen "banker",
manometeret svinger stærkt.
Svingningsdæmper defekt.
Udskift svingningsdæmperen.
Kundeservice
Vandpumpen indsuger kun ubety-
delig luft.
Kontroller sugesystemet og afhjælp utæthe-
der.
Betjener
Sprøjtepistol er åbnet og ma-
skinen tænder og slukker
konstant
Dysen i strålerøret tilstoppet.
Kontroller, rens.
Betjener
Maskinen er kalket til.
Se afsnit "Afkalkning".
Betjener
Koblingspunktet af overstrømme-
ren er forskudt.
Overstrømmeren skal justeres igen.
Kundeservice
Siv i tørkøringssikringen tilstoppet. Kontroller, afmonter sivet og rens det.
Betjener
Maskinen afbrydes ikke ved
lukket håndsprøjtepistol
Pumpen er ikke fuldstændig afluf-
tet.
Sæt afbryderen på "0" og træk håndsprøjte-
pistolen indtil der kommer væske ud af dy-
sen. Tænd for maskinen igen. Gentag denne
procedure, indtil den totale driftstryk blev op-
nået.
Betjener
Sikkerhedsventil, hhv. sikkerheds-
ventiltætningen defekt.
Erstat sikkerhedsventilen, hhv. tætningen.
Kundeservice
Overstrømmerens trykafbryder.
Kontroller trykafbryderen og overstrømme-
ren.
Kundeservice
154
DA
-
13
Rensemidler letter rengøringsopgaven. I tabellen findes et ud-
valg af rensemidler. Inden rensemidler anvendes, skal der tages
højde for anvisningerne på emballagen.
* = kun til kort brug, 2-trin metode, skylles efter med klart vand
** = ASF = adskillelsesvenlig
*** = til indsprøjtning i forud, egner sig Foam-Star 2000
Tilbehør
Rengøringsmiddel
Anvendelsesområde
Tilsmudsning, anvendelsesmå-
de
Rensemiddel
pH-værdi (ca.) 1 % op-
løsning i postevand
Motorkøretøjserhverv,
tankstationer, speditio-
ner, vognparker
Støv, gadesnavs, mineralolie (på
lakerede overflader)
RM 55 ASF **
8
RM 22/80-pulver ASF
12/10
RM 81 ASF
9
RM 803 ASF
10
RM 806 ASF
11
Konservering af køretøjer
RM 42 koldvoks til højtryksrenser
8
RM 820-varmvoks ASF
7
RM 821-sprayvoks ASF
6
RM 824-super-perlevoks ASF
7
RM 44 gel-fælgrenser
9
Metalforarbejdende indu-
stri
Olie, fedt, støv og lignende til-
smudsninger
RM 22-pulver ASF
12
RM 55 ASF
8
RM 81 ASF
9
RM 803 ASF
10
RM 806 ASF
12
RM 31 ASF (stærk tilsmudsning)
12
RM 39-flydende (med korrosionsbeskyttelse)
9
Levnedsmiddelindustrien Lette til mellemstærke tilsmudsnin-
ger, fedt/olie, store flader
RM 55 ASF
8
RM 81 ASF
9
RM 882 gelskum OSC
12
RM 58 ASF (skumrensemiddel)
9
RM 31 ASF *
12
Harpiks
RM 33 *
13
Rengøring og desinficering
RM 732
9
Desinficering
RM 735
7...8
Kalk, mineralske aflejringer
RM 25 ASF *
2
RM 59 ASF (skumrensemiddel)
2
Sanitærområde***
Kalk, urinsten, sæber osv.
RM 25 ASF * (grundrengøring)
2
RM 59 ASF (skumrensemiddel)
2
RM 68 ASF
5
155
DA

