Karcher Nettoyeur haute pression HDS 9-16-4 ST Gaz LPG: !
!: Karcher Nettoyeur haute pression HDS 9-16-4 ST Gaz LPG
-
14
–
Η
διάταξη
θέρμανσης
της
συσκευής
είναι
μια
μονάδα
καύσης
.
Κατά
την
τοποθέτηση
να
τηρούνται
οι
ισχύοντες
τοπικοί
κανο
-
νισμοί
.
–
Χρησιμοποιείτε
μόνον
εγκεκριμένες
καμινάδες
/
αγωγούς
καυ
-
σαερίων
.
–
Η
εγκατάσταση
αγωγών
παροχής
αερίου
,
καθώς
και
οι
συν
-
δέσεις
αερίου
της
συσκευής
πρέπει
να
εκτελούνται
μόνον
από
μια
εγκεκριμένη
από
την
υπηρεσία
αερίου
και
υδροδότη
-
σης
και
εξειδικευμένη
εταιρεία
.
–
Οι
ρυθμίσεις
και
οι
επιδιορθώσεις
του
καυστήρα
αερίου
μπο
-
ρούν
να
εκτελούνται
μόνον
από
εκπαιδευμένους
τεχνικούς
εγκατάστασης
της
υπηρεσίας
εξυπηρέτησης
πελατών
της
Kärcher.
–
Στον
αγωγό
αερίου
,
ο
οποίος
πρέπει
να
έχει
ονομαστικό
πλά
-
τος
τουλάχιστον
1
ίντσας
,
να
προβλέπεται
μανόμετρο
και
βαλβίδα
αποκοπής
.
–
Λόγω
των
κραδασμών
που
προκαλεί
η
αντλία
υψηλής
πίε
-
σης
,
η
σύνδεση
μεταξύ
του
άκαμπτου
αγωγού
αερίου
και
της
συσκευής
πρέπει
να
εκτελείται
με
έναν
ελαστικό
σωλήνα
αε
-
ρίου
.
–
Για
αγωγούς
αερίου
με
μήκος
άνω
των
10 m,
να
προβλέπεται
ονομαστικό
πλάτος
τουλάχιστον
1 1/2
ίντσας
.
Η
σύνδεση
αε
-
ρίου
της
συσκευής
έχει
ονομαστικό
πλάτος
1
ίντσας
.
Κίνδυνος
Κατά
το
βίδωμα
του
ελαστικού
σωλήνα
αερίου
στον
καυστήρα
,
ο
οδηγός
σύνδεσης
πρέπει
να
συγκρατείται
με
γερμανικό
κλειδί
SW
36.
Ο
οδηγός
σύνδεσης
δεν
πρέπει
να
περιστρέφεται
έναντι
του
περιβλήματος
του
καυστήρα
.
Η
μόνωση
της
κοχλιωτής
σύνδεσης
να
εκτελείται
με
στεγανοποιητικά
υλικά
,
τα
οποία
διαθέτουν
έγκρι
-
ση
DVGW.
Μετά
τη
σύνδεση
,
το
σημείο
σύνδεσης
πρέπει
να
ελεγ
-
χθεί
για
διαρροές
με
ειδικό
σπρέι
εντοπισμού
διαρροών
με
έγκριση
DVGW.
Το
μεικτό
πλάτος
του
αγωγού
αερίου
πρέπει
να
υπολογιστεί
σύμ
-
φωνα
με
το
DVGW TRGI 1986
και
/
ή
TRF 1996.
Το
ονομαστικό
πλάτος
της
σύνδεσης
αερίου
της
συσκευής
δεν
είναι
απαραίτητα
ίσο
με
το
ονομαστικό
πλάτος
του
αγωγού
αερίου
.
Ο
υπολογισμός
των
διαστάσεων
και
η
εγκατάσταση
του
αγωγού
αερίου
πρέπει
να
εκτελούνται
σύμφωνα
με
τα
αντίστοιχα
πρότυπα
και
κανονι
-
σμούς
.
–
Όλες
οι
συσκευές
πρέπει
να
είναι
συνδεδεμένες
με
την
κατάλ
-
ληλη
καμινάδα
.
–
Η
έξοδος
καυσαερίων
πρέπει
να
είναι
σύμφωνη
με
τους
τοπι
-
κούς
κανονισμούς
σε
συμφωνία
με
τον
αρμόδιο
συντηρητή
καπνοδόχων
.
Συσκευή
αερίου
χωρίς
ασφάλεια
ρεύματος
,
όπου
όλα
τα
εξαρτή
-
ματα
υπό
υπερπίεση
της
οδού
εξόδου
καυσαερίων
εκτίθενται
στον
αέρα
καύσης
.
Η
εγκατάσταση
B23
επιτρέπει
τη
σύνδεση
της
συσκευής
με
μια
συμβατική
μονή
καμινάδα
κατά
DIN 18160
και
χρήση
αναλόγως
του
αέρα
του
χώρου
.
Προϋπόθεση
είναι
,
η
κα
-
μινάδα
να
ενδείκνυται
για
τη
σύνδεση
συσκευών
με
τιμές
καύσης
(
π
.
χ
.
με
ανακαίνιση
της
καμινάδας
με
προσθήκη
ενός
αγωγού
από
ανοξείδωτο
χάλυβα
).
Συσκευή
αερίου
με
παροχή
αέρα
καύσης
και
έξοδο
καυσαερίων
κάθετα
μέσω
της
στέγης
.
Οι
έξοδοι
βρίσκονται
κοντά
η
μία
με
την
άλλη
στην
ίδια
περιοχή
πίεσης
.
Εγκατάσταση
μονάδας
Μόνον
από
εξουσιοδοτημένο
προσωπικό
Γενικά
Αέριο
γενικά
Αγωγοί
αερίου
Διάθεση
αέρα
/
καυσαερίων
!
Συσκευή
αερίου
με
εγκατάσταση
καυσαερίων
,
η
οποία
αφαι
-
ρεί
τον
αέρα
καύσης
από
το
χώρο
λειτουργίας
Τύπος
B23
Συσκευή
αερίου
με
εγκατάσταση
καυσαερίων
,
η
οποία
απο
-
βάλλει
τον
αέρα
καύσης
μέσω
ενός
κλειστού
συστήματος
στο
ύπαιθρο
Τύπος
C33
236
EL
-
15
Συσκευή
αερίου
με
παροχή
αέρα
καύσης
και
έξοδο
καυσαερίων
για
σύνδεση
με
σύστημα
αέρα
-
καυσαερίων
.
Συσκευές
αερίου
με
διαχωρισμένη
παροχή
αέρα
καύσης
και
έξο
-
δο
καυσαερίων
.
Οι
έξοδοι
βρίσκονται
σε
διαφορετικές
περιοχές
πίεσης
.
Υπόδειξη
:
Προκειμένου
να
επιτευχθούν
οι
προβλεπόμενες
τιμές
καύσης
,
να
τηρείται
η
καταγεγραμμένη
στα
τεχνικά
χαρακτηριστι
-
κά
απαγωγή
από
την
καμινάδα
.
Η
απορροή
προϊόντων
συμπύκνωσης
πρέπει
να
γίνεται
απευθεί
-
ας
από
τη
σύνδεση
προϊόντων
συμπύκνωσης
.
Το
ύψος
του
σιφο
-
νιού
πρέπει
να
ανέρχεται
σε
30 cm.
Το
σιφόνι
δεν
συμπεριλαμβάνεται
στο
υλικό
που
παραδίδεται
μαζί
με
τη
συ
-
σκευή
.
Ο
αγωγός
προϊόντων
συμπύκνωσης
δεν
πρέπει
να
έχει
σταθερή
σύνδεση
με
το
σύστημα
αποχέτευσης
.
Το
συμπύκνωμα
πρέπει
να
μπορεί
να
εκρέει
ελεύθερα
σε
μια
χοάνη
ή
σε
ένα
δο
-
χείο
εξουδετέρωσης
.
–
Πριν
τη
συναρμολόγηση
να
ελέγχεται
η
αντοχή
του
τοίχου
.
Το
υλικό
στερέωσης
,
το
οποίο
περιλαμβάνεται
στη
συσκευασία
,
ενδείκνυται
για
μπετόν
.
Για
τοίχους
από
κυψελοειδές
υλικό
,
οπτόπλινθο
και
αεροσκυρόδεμα
να
χρησιμοποιούνται
οι
κα
-
τάλληλοι
πείροι
και
κοχλίες
,
π
.
χ
.
εγχυόμενες
αγκυρώσεις
(
για
εικόνα
της
οπής
δείτε
το
φύλλο
διαστάσεων
).
–
Εικόνα
3 -
Θέση
19
και
25
Η
συσκευή
δεν
πρέπει
να
είναι
σταθερά
συνδεδεμένη
με
το
δίκτυο
υδροδότησης
ή
αγωγών
υψηλής
πίεσης
.
Οι
ελαστικοί
σωλήνες
σύνδεσης
πρέπει
να
τοποθετηθούν
σε
κάθε
περί
-
πτωση
.
–
Εικόνα
3 - A
Μεταξύ
του
δικτύου
υδροδότησης
και
του
ελαστικού
σωλήνα
σύνδεσης
να
προβλέπεται
στρόφιγγα
αποκοπής
.
Κατά
την
τοποθέτηση
των
αγωγών
υψηλής
πίεσης
να
λαμβάνο
-
νται
υπόψη
οι
εκάστοτε
εθνικοί
κανονισμοί
του
νομοθέτη
.
–
Η
πτώση
της
πίεσης
στις
σωληνώσεις
πρέπει
να
είναι
μικρό
-
τερη
από
1,5 MPa.
–
Η
έτοιμη
σωλήνωση
πρέπει
να
ελεγχθεί
με
32 MPa.
–
Η
μόνωση
της
σωλήνωσης
πρέπει
να
είναι
ανθεκτική
σε
θερ
-
μοκρασία
100 °C.
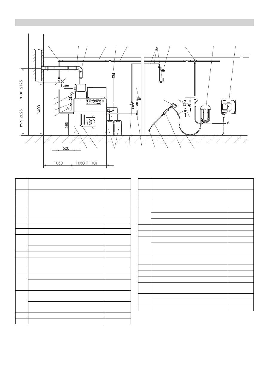
Εικόνα
3 -
Θέση
20
Τα
δοχεία
πρέπει
να
τοποθετούνται
έτσι
,
ώστε
τη
κατώτερη
στάθ
-
μη
του
απορρυπαντικού
να
μην
βρίσκεται
περισσότερο
από
1,5
m
κάτω
από
τη
βάση
της
συσκευής
και
η
ανώτερη
στάθμη
να
μην
βρίσκεται
πάνω
από
τη
βάση
της
συσκευής
.
Εικόνα
3 -
Β
και
θέση
19
Συνδέστε
μια
είσοδο
νερού
με
τον
κατάλληλο
ελαστικό
σωλή
-
να
νερού
στο
δίκτυο
υδροδότησης
.
–
Η
απόδοση
παροχής
νερού
πρέπει
να
ανέρχεται
σε
τουλάχι
-
στον
1300 l/h
σε
τουλάχιστον
0,1 MPa.
–
Η
θερμοκρασία
του
νερού
πρέπει
να
βρίσκεται
κάτω
από
τους
30 °C.
Τύπος
C43
Τύπος
C53
Απορροή
προϊόντων
συμπύκνωσης
Τοποθέτηση
στον
τοίχο
Συναρμολόγηση
των
αγωγών
υψηλής
πίεσης
Τοποθέτηση
του
δοχείου
απορρυπαντικού
Παροχή
νερού
237
EL
-
16
Προσοχή
Δεν
επιτρέπεται
η
υπέρβαση
της
μέγιστης
επιτρεπόμενης
αντίστα
-
σης
δικτύου
στο
σημείο
ηλεκτρικής
σύνδεσης
(
βλ
.
τεχνικά
χαρα
-
κτηριστικά
).
Εάν
δεν
είστε
βέβαιοι
για
την
αντίσταση
δικτύου
στο
σημείο
σύνδεσης
,
επικοινωνήστε
με
την
εταιρεία
ηλεκτροδότησης
.
Υπόδειξη
:
Οι
διαδικασίες
ενεργοποίησης
προκαλούν
πρόσκαιρη
μείωση
της
τάσης
.
Σε
περίπτωση
δυσμενών
συνθηκών
δικτύου
μπορεί
να
επηρεασθούν
αρνητικά
και
άλλες
συσκευές
.
–
Σχετικά
με
τις
τιμές
σύνδεσης
βλέπε
Τεχνικά
χαρακτηριστικά
και
Πινακίδα
τύπου
.
–
Η
ηλεκτρική
σύνδεση
πρέπει
να
γίνει
από
ηλεκτρολόγο
και
να
ανταποκρίνεται
στο
IEC 60364-1.
–
Τα
ηλεκτροφόρα
τμήματα
,
καλώδια
και
συσκευές
στο
χώρο
εργασίας
πρέπει
να
βρίσκονται
σε
άριστη
κατάσταση
και
να
είναι
προστατευμένα
από
τη
δέσμη
νερού
.
Για
την
αποφυγή
ηλεκτρικών
ατυχημάτων
,
συνιστάται
η
χρήση
πριζών
με
προεγκατεστημένο
προστατευτικό
διακόπτη
ρεύματος
διαρροής
(
μέγ
. 30 mA
ονομαστική
ισχύς
ρεύματος
απεμπλοκής
).
Αποκαταστήστε
την
ηλεκτρική
σύνδεση
.
Για
την
απενεργοποίηση
της
μόνιμης
συσκευής
καθαρισμού
υψηλής
πίεσης
,
να
τοποθετηθεί
ένας
γενικός
διακόπτης
με
κλεί
-
δωμα
(
εικόνα
3 -
θέση
6)
σε
θέση
,
η
οποία
είναι
ασφαλής
και
εύ
-
κολα
προσβάσιμη
.
Το
πλάτος
ανοίγματος
επαφής
του
γενικού
διακόπτη
πρέπει
να
ανέρχεται
σε
τουλάχιστον
3 mm.
Συναρμολογήστε
ένα
φις
Cekon
στο
καλώδιο
σύνδεσης
της
συσκευής
Τοποθετήστε
το
βύσμα
Cekon
στην
πρίζα
.
Για
την
απενεργοποίηση
της
μόνιμης
συσκευής
υψηλής
πίεσης
,
το
φις
Cekon
πρέπει
να
είναι
εύκολα
προσβάσιμο
για
αποσύνδε
-
ση
από
το
δίκτυο
.
Ελέγξτε
τη
σύνδεση
αερίου
.
Προσοχή
Κίνδυνος
βλάβης
στη
συσκευή
από
υπερθέρμανση
.
Συνδέστε
το
σιφόνι
στον
πυθμένα
του
λέβητα
και
γεμίστε
το
με
νερό
.
Γεμίστε
το
λέβητα
με
4
λίτρα
νερού
από
το
άνοιγμα
της
καμι
-
νάδας
.
Πριν
την
πρώτη
χρήση
,
κόψτε
την
άκρη
του
καπακιού
του
δο
-
χείου
λαδιού
της
αντλίας
νερού
.
Εικόνα
3 -
Θέση
14
Συνδέστε
τον
ελαστικό
σωλήνα
υψηλής
πίεσης
με
το
πιστολέ
-
το
χειρός
και
το
σωλήνα
ρίψης
και
στη
συνέχεια
συνδέστε
τα
με
την
έξοδο
υψηλής
πίεσης
της
συσκευής
ή
με
το
δίκτυο
αγωγών
υψηλής
πίεσης
.
Στερεώστε
το
στόμιο
του
ακροφυσίου
(
β
)
με
το
ρακόρ
(
α
)
στο
σωλήνα
ρίψης
(
δ
).
Φροντίστε
ώστε
ο
στεγανοποιητικός
δα
-
κτύλιος
(
γ
)
να
εφάπτεται
καλά
στην
εγκοπή
.
Ηλεκτρική
σύνδεση
Ηλεκτρικές
συνδέσεις
με
σταθερή
εγκατάσταση
Ηλεκτρική
σύνδεση
με
βύσμα
/
πρίζα
Έναρξη
λειτουργίας
Η
συσκευή
είναι
ρυθμισμένη
εξ
εργοστασίου
για
λειτουργία
με
φυσικό
αέριο
τύπου
G 20
και
με
υγραέριο
τύπου
G 31.
Κατά
την
προσαρμογή
της
συσκευής
φυσικού
αερίου
στον
τύπο
G 25
ή
σε
άλλους
τύπους
(
βλ
.
πινακίδα
στοιχείων
)
φυσικού
αερίου
ή
της
συσκευής
υγραερίου
στον
τύπο
G 30
ή
σε
άλλους
τύπους
(
βλ
.
πινακίδα
στοιχείων
)
υγραερίου
,
να
εκτελείται
στη
συσκευή
φυσικού
αερίου
ρύθμιση
των
τιμών
καυσαερίων
φυσικού
αερίου
και
στη
συσκευή
υγραερίου
ρύθμιση
των
τιμών
υγραερίου
σύμ
-
φωνα
με
τις
πληροφορίες
του
σέρβις
.
Στη
συνοδευτική
κενή
πινακίδα
αναγράφεται
ο
νέος
τύπος
αερί
-
ου
που
επιλέγεται
και
η
πινακίδα
τοποθετείται
στο
πεδίο
επιγρα
-
φής
στη
δεξιά
πλευρά
της
συσκευής
.
Ταυτόχρονα
πρέπει
να
αφαιρεθεί
η
πινακίδα
με
την
ένδειξη
G 20 (
συσκευή
φυσικού
αε
-
ρίου
)
ή
G 31 (
συσκευή
υγραερίου
),
η
οποία
έχει
τοποθετηθεί
εκεί
από
το
εργοστάσιο
.
Μέτρα
πριν
την
ενεργοποίηση
a
b
c
d
238
EL
-
17
Αφαιρέστε
το
ελατήριο
(
γ
)
από
το
στόμιο
του
καπακιού
(
β
)
του
δοχείου
αποσκληρυντικού
.
Γεμίστε
το
δοχείο
με
το
υγρό
αποσκληρυντικό
RM 110
της
K
δ
rcher (
κωδ
.
παραγγελίας
2.780-001).
Κίνδυνος
Επικίνδυνη
ηλεκτρική
τάση
!
Η
ρύθμιση
μπορεί
να
γίνει
μόνο
από
ειδικευμένο
ηλεκτρολόγο
.
Ενημερωθείτε
για
τη
σκληρότητα
του
νερού
στην
περιοχή
σας
:
–
από
την
τοπική
υπηρεσία
ύδρευσης
,
–
με
ένα
μετρητή
σκληρότητας
(
κωδ
.
παραγγελίας
6.768-004).
Αφαιρέστε
το
καπό
της
συσκευής
.
Ανοίξτε
το
κιβώτιο
διακοπτών
στον
πίνακα
ελέγχου
.
Ρυθμίστε
το
ποτενσιόμετρο
στροφών
(
α
)
ανάλογα
με
τη
σκλη
-
ρότητα
του
νερού
.
Μπορείτε
να
λάβετε
τη
σωστή
ρύθμιση
από
τον
πίνακα
.
Παράδειγμα
:
Για
σκληρότητα
νερού
15 °dH
ρυθμίστε
το
ποτενσιόμετρο
στρο
-
φών
στη
βαθμίδα
6.
Από
αυτό
προκύπτει
χρόνος
παύσης
31
δευ
-
τερολέπτων
,
δηλαδή
η
ηλεκτρομαγνητική
βαλβίδα
ανοίγει
στιγμιαία
ανά
31
δευτερόλεπτα
.
Η
ρύθμιση
του
χρόνου
ετοιμότητας
λειτουργίας
εκτελείται
στη
με
-
γαλύτερη
πλατίνα
του
αριστερού
τοιχώματος
του
ηλεκτρολογικού
πίνακα
.
Ο
χρόνος
ετοιμότητας
λειτουργίας
ρυθμίζεται
εξ
εργοστασίου
στον
ελάχιστο
χρόνο
των
2
λεπτών
και
μπορεί
να
αυξηθεί
έως
το
μέγιστο
των
8
λεπτών
.
Προστασία
από
άλατα
Σκληρότητα
νερού
(°dH)
5
10
15
20
25
Βαθμίδα
ποτενσιόμετρου
στροφών
8
7
6
5
4,5
Χρόνος
παύσης
(
δευτερό
-
λεπτα
)
50
40
31
22
16
b
c
a
a
Ρύθμιση
του
χρόνου
ετοιμότητας
λειτουργίας
8 7 6 5 4 3 2 1
S2
min.
max.
239
EL
-
18
Εικόνα
3
Υλικό
εγκατάστασης
1
2
3
5
6
7
8
9
10
12
13
A
15
11b
11a
11c
11a
25
21
22
23
11b
24
4
20
19a
19
18
17
16
14
11d
B
Θέση Υλικό
εγκατάστασης
Κωδ
.
πα
-
ραγγελίας
1
Κοχλιωτές
συνδέσεις
σε
γωνία
6.386-356
2
Σετ
αγωγών
απαγωγής
καυσαερίων
,
ορι
-
ζόντιο
, 150 mm
6.526-231
3
Σετ
αγωγών
απαγωγής
καυσαερίων
,
κά
-
θετο
, 150 mm
6.526-232
4
Σετ
εξαρτημάτων
σιφωνίου
2.640-422
5
Θερμομόνωση
6.286-114
6
Γενικός
διακόπτης
6.631-455
7
Σετ
σωληνώσεων
,
γαλβανισμένος
χάλυ
-
βας
2.420-004
Σετ
σωληνώσεων
,
ανοξείδωτος
χάλυβας
2.420-006
8
Σετ
εξαρτημάτων
,
τηλεχειρισμός
2.744-008
9
Σετ
εξαρτημάτων
,
διακόπτης
εκτάκτου
ανάγκης
(Not-Aus)
2.744-002
10
Σύνδεσμος
Τ
6.386-269
11a
Στηρίγματα
σύνδεσης
,
ορείχαλκος
2.638-180
Σετ
στηριγμάτων
σύνδεσης
,
ανοξείδωτος
χάλυβας
2.638-181
11b
Στρόφιγγα
διακοπής
NW 8,
γαλβανισμέ
-
νος
χάλυβας
4.580-144
Στρόφιγγα
διακοπής
NW 8,
ανοξείδωτος
χάλυβας
4.580-163
11c
Σταθερό
εξάρτημα
ταχυσυνδέσμου
6.463-025
11d
Χαλαρό
εξάρτημα
ταχυσυνδέσμου
6.463-023
Θέση Υλικό
εγκατάστασης
Κωδ
.
πα
-
ραγγελίας
12
Στήριγμα
ελαστικού
σωλήνα
2.042-001
13
Τύμπανο
εύκαμπτου
σωλήνα
2.637-238
14
Ελαστικός
σωλήνας
υψηλής
πίεσης
10 m 6.388-083
15
Πιστολέτο
χειρός
Easypress
4.775-463
Περιστρεφόμενος
ελεγκτής
HDS 9/16-4
4.775-470
Περιστρεφόμενος
ελεγκτής
HDS 12/14-4 4.775-471
16
Ανάρτηση
σωλήνα
ρίψης
2.042-002
17
σωλήνας
εκτόξευσης
4.760-550
18
Στόμιο
ακροφυσίου
HDS 9/16-4
2.883-402
Στόμιο
ακροφυσίου
HDS 12/14-4
2.883-406
19
Ελαστικός
σωλήνας
νερού
4.440-282
19a
Ηλεκτρομαγνητική
βαλβίδα
προσαγωγής
νερού
4.743-011
20
Δεξαμενή
απορρυπαντικού
, 60 l
5.070-078
21
Ελαστικός
σωλήνας
αερίου
R1“
6.388-228
22
Στρόφιγγα
διακοπής
αερίου
R1“
6.412-389
23
Μανόμετρο
,
Αέριο
(
Προσοχή
!
να
προβλε
-
φθεί
βαλβίδα
στο
κτίριο
.)
6.412-059
24
Σετ
εξαρτημάτων
επιτοίχιας
κονσόλας
2.053-005
Σετ
εξαρτημάτων
σκελετού
δαπέδου
2.210-008
25
Ελαστικός
σωλήνας
υψηλής
πίεσης
6.389-028
240
EL
-
19
Δια
της
παρούσης
δηλώνουμε
ότι
το
μηχάνημα
που
χαρακτηρίζε
-
ται
παρακάτω
,
με
βάση
τη
σχεδίαση
και
την
κατασκευή
του
,
υπό
τη
μορφή
που
διατίθεται
στην
αγορά
,
πληροί
στις
σχετικές
βασι
-
κές
απαιτήσεις
ασφαλείας
και
υγιεινής
των
οδηγιών
της
ΕΚ
.
Η
παρούσα
δήλωση
παύει
να
ισχύει
σε
περίπτωση
τροποποιήσε
-
ων
του
μηχανήματος
χωρίς
προηγούμενη
συνεννόηση
μαζί
μας
.
5.957-648
Οι
υπογράφοντες
ενεργούν
κατ
'
εντολή
του
και
με
εξουσιοδότηση
της
διεύθυνσης
της
επιχείρησης
.
Υπεύθυνος
τεκμηρίωσης
:
S. Reiser
Alfred Karcher GmbH & Co. KG
Alfred-Karcher-Str. 28 - 40
71364 Winnenden (Germany)
Τηλ
.: +49 7195 14-0
Φαξ
: +49 7195 14-2212
Winnenden, 2014/02/01
Σε
κάθε
χώρα
ισχύουν
οι
όροι
εγγύησης
που
εκδόθηκαν
από
την
αρμόδια
αντιπροσωπεία
μας
.
Τυχόν
βλάβες
στο
μηχάνημά
σας
αποκαθίστανται
δωρεάν
μέσα
στην
προθεσμία
της
παρεχόμενης
εγγύησης
,
εφόσον
ή
αιτία
είναι
ελάττωμα
υλικού
ή
σφάλμα
κατα
-
σκευής
.
Δήλωση
Συμμόρφωσης
των
Ε
.
Κ
.
Προϊόν
:
Σύστημα
καθαρισμού
υψη
-
λής
πίεσης
Τύπος
:
1.251-xxx
Σχετικές
οδηγίες
των
Ε
.
Κ
.
2009/142/EK
2006/42/EK (+2009/127/EK)
2004/108/E
Κ
Εφαρμοσθέντα
εναρμονισμένα
πρότυ
-
πα
EN 55014–1: 2006+A1: 2009+A2: 2011
EN 55014–2: 1997+A1: 2001+A2: 2008
EN 60335–1
EN 60335–2–79
EN 62233: 2008
EN 61000–3–2: 2006+A1: 2009+A2: 2009
HDS 12/14:
EN 61000–3–3: 2008
HDS 9/16:
EN 61000–3–11: 2000
Εφαρμοστέες
προδιαγραφές
:
QA 195 (
όχι
LPG)
Όνομα
της
αρμόδιας
υπηρεσίας
:
Για
2009/142/EK
GASTEC
Wilmersdorf 50
7327 AC Apeldoorn
Αναγν
.
αρ
. 0063
Εγγύηση
CEO
Head of Approbation
241
EL
-
20
Υπηρεσία
εξυπηρέτησης
πελατών
Τύπος
εγκατάστασης
:
Αρ
.
κατασκευαστή
:
Ημ
/
νία
έναρξης
λειτουργίας
:
Εκτελέστηκε
έλεγχος
την
:
Ευρήματα
:
Υπογραφή
Εκτελέστηκε
έλεγχος
την
:
Ευρήματα
:
Υπογραφή
Εκτελέστηκε
έλεγχος
την
:
Ευρήματα
:
Υπογραφή
Εκτελέστηκε
έλεγχος
την
:
Ευρήματα
:
Υπογραφή
242
EL
-
1
Cihaz
ı
n ilk kullan
ı
m
ı
ndan önce bu orijinal kullanma k
ı
-
lavuzunu okuyun, bu k
ı
lavuza göre davran
ı
n ve daha
sonra kullan
ı
m veya cihaz
ı
n sonraki sahiplerine vermek için bu
k
ı
lavuzu saklay
ı
n.
–
İ
lk kullan
ı
mdan önce, 5.956-309 numaral
ı
güvenlik uyar
ı
lar
ı
n
ı
mutlaka okuyun!
–
Nakliye hasarlar
ı
n
ı
hemen yetkili sat
ı
c
ı
ya bildirin.
İ
çindekiler hakk
ı
nda uyar
ı
lar (REACH)
İ
çindekiler hakk
ı
nda ayr
ı
nt
ı
l
ı
bilgileri bulabilece
ğ
iniz adres:
www.kaercher.com/REACH
Tehlike
A
ğ
ı
r bedensel yaralanmalar ya da ölüme neden olan direkt bir
tehlike için.
몇
Uyar
ı
A
ğ
ı
r bedensel yaralanmalar ya da ölüme neden olabilecek olas
ı
tehlikeli bir durum için.
Dikkat
Hafif bedensel yaralanmalar ya da maddi hasarlara neden olabi-
lecek olas
ı
tehlikeli bir durum için.
Yüksek bas
ı
nçl
ı
tazyik, düzgün kullan
ı
lmad
ı
ğ
ı
zaman
tehlikeli olabilir. Tazyik ki
ş
ilere, hayvanlara, etkin elek-
trik donan
ı
ma veya cihaz
ı
n kendisine do
ğ
ru tutulmal
ı
-
d
ı
r.
–
S
ı
v
ı
püskürtücülere dair kanunlardaki ilgili ulusal talimatlara
dikkat edin.
–
Kaza önlemeye dair kanunlardaki ilgili ulusal talimatlara dik-
kat edin. S
ı
v
ı
püskürtücüler düzenli olarak kontrol edilmeli ve
kontrol sonucu yaz
ı
l
ı
olarak belgelenmelidir.
–
Cihaz
ı
n
ı
s
ı
tma tertibat
ı
bir yakma sistemidir. Yakma sistemle-
ri, kanunlardaki ilgili ulusal talimatlara göre düzenli olarak
kontrol edilmelidir.
–
Sistemin kapal
ı
mekanlarda çal
ı
ş
t
ı
r
ı
lmas
ı
s
ı
ras
ı
nda, at
ı
k gaz-
lar
ı
n tehlikesiz bir
ş
ekilde tahliye edilmesi sa
ğ
lanmal
ı
d
ı
r (çek-
me kesicisiz yanma gaz
ı
borusu). Ayr
ı
ca, yeterli bir temiz
hava beslemesi mevcut olmal
ı
d
ı
r.
–
Kullan
ı
lan temizlik maddelerinde yer alan güvenlik uyar
ı
lar
ı
na
(ambalaj etiketindekiler) dikkat edin.
Cihaz
ı
n tak
ı
lmas
ı
ndan önce, gaz tedarik kurumu ve belediye
baca temizleme ustas
ı
ile bir mutabakat sa
ğ
lanmal
ı
d
ı
r.
Montaj s
ı
ras
ı
nda, in
ş
aat yasalar
ı
, meslek yasalar ve emisyon ko-
rumas
ı
n
ı
n talimatlar
ı
na dikkat edilmelidir. A
ş
a
ğ
ı
da belirtilen tali-
matlar, yönetmelikler ve normlara tekrar dikkatinizi çekmek
istiyoruz:
–
Cihaz sadece bir teknik i
ş
letme taraf
ı
ndan, ilgili ulusal talimat-
lara göre tak
ı
lmal
ı
d
ı
r.
–
Elektrik tesisat
ı
kurulurken, yasa koyucunun ilgili ulusal tali-
matlar
ı
na uyulmal
ı
d
ı
r.
–
Gaz tesisat
ı
kurulurken, yasa koyucunun ilgili ulusal talimatla-
r
ı
na uyulmal
ı
d
ı
r.
–
Gaz hatlar
ı
n
ı
n tak
ı
lmas
ı
ve cihaz
ı
n gaz taraf
ı
ndaki ba
ğ
lant
ı
s
ı
sadece gaz ve su i
ş
leri konusunda onayl
ı
bir teknik firma ta-
raf
ı
ndan gerçekle
ş
tirilmelidir.
–
Brülördeki ayarlar, bak
ı
m çal
ı
ş
malar
ı
ve onar
ı
mlar sadece
e
ğ
itimli Kärcher mü
ş
teri hizmetleri montajc
ı
lar
ı
taraf
ı
ndan ya-
p
ı
lmal
ı
d
ı
r.
–
Bacan
ı
n planlanmas
ı
s
ı
ras
ı
nda geçerli yerel yönetmeliklere
dikkat edilmelidir.
İ
çindekiler
Çevre koruma . . . . . . . . . . .
TR . . 1
Kullan
ı
m k
ı
lavuzundaki semboller
TR . . 1
Cihazdaki semboller . . . . . .
TR . . 1
Genel güvenlik uyar
ı
lar
ı
. . .
TR . . 1
Kurallara uygun kullan
ı
m. . .
TR . . 2
Fonksiyon . . . . . . . . . . . . . .
TR . . 2
Güvenlik tertibatlar
ı
. . . . . . .
TR . . 2
Cihaz elemanlar
ı
. . . . . . . . .
TR . . 3
İş
letime alma . . . . . . . . . . . .
TR . . 4
Kullan
ı
m
ı
. . . . . . . . . . . . . . .
TR . . 4
Kullan
ı
m d
ı
ş
ı
nda . . . . . . . . .
TR . . 6
Durdurma . . . . . . . . . . . . . .
TR . . 6
Depolama . . . . . . . . . . . . . .
TR . . 6
Ta
ş
ı
ma. . . . . . . . . . . . . . . . .
TR . . 6
Teknik Bilgiler . . . . . . . . . . .
TR . . 7
Koruma ve Bak
ı
m . . . . . . . .
TR . . 9
Ar
ı
zalarda yard
ı
m . . . . . . . .
TR . 11
Aksesuar . . . . . . . . . . . . . . .
TR . 13
Sistem tesisat
ı
. . . . . . . . . . .
TR . 14
AB uygunluk bildirisi . . . . . .
TR . 19
Garanti . . . . . . . . . . . . . . . .
TR . 19
Mü
ş
teri hizmeti . . . . . . . . . .
TR . 20
Çevre koruma
Ambalaj malzemeleri geri dönü
ş
türülebilir. Ambalaj
malzemelerini evinizin çöpüne atmak yerine lütfen
tekrar kullan
ı
labilecekleri yerlere gönderin.
Eski cihazlarda, yeniden de
ğ
erlendirme i
ş
lemine tabi
tutulmas
ı
gereken de
ğ
erli geri dönü
ş
üm malzemeleri
bulunmaktad
ı
r. Aküler, ya
ğ
ve benzeri maddeler do-
ğ
aya ula
ş
mamal
ı
d
ı
r. Bu nedenle eski cihazlar
ı
lütfen
öngörülen toplama sistemleri arac
ı
l
ı
ğ
ı
yla imha edin.
Lütfen motor ya
ğ
ı
, dizel ve benzinin çevreye yay
ı
lmas
ı
na izin
vermeyin. Lütfen zemini koruyun ve eski ya
ğ
lar
ı
çevre tekni
ğ
ine
uygun olarak imha edin.
Kärcher temizlik maddeleri ayr
ı
lma özelli
ğ
ine (ASF) sahiptir. Bu,
bir ya
ğ
ay
ı
r
ı
c
ı
s
ı
n
ı
n i
ş
levinin olumsuz yönde etkilenmeyece
ğ
i an-
lam
ı
na gelir. Önerilen temizlik maddelerinin bulundu
ğ
u bir liste,
"Aksesuar" bölümünde belirtilmi
ş
tir.
Kullan
ı
m k
ı
lavuzundaki semboller
Cihazdaki semboller
Genel güvenlik uyar
ı
lar
ı
Talimatlar, Yönetmelikler ve Kurallar
243
TR
-
2
Çal
ı
ş
ma yeri, kumanda panosundad
ı
r. Di
ğ
er çal
ı
ş
ma yerleri, sis-
tem yap
ı
s
ı
na ba
ğ
l
ı
olarak ba
ğ
lant
ı
yerlerine ba
ğ
lanm
ı
ş
aksesuar
cihazlar
ı
d
ı
r (püskürtme tertibatlar
ı
).
–
Geri s
ı
çrayabilecek su veya kirden korunmak için uygun koru-
yucu elbise ve koruyucu gözlük tak
ı
n.
Cihaz, serbest olarak d
ı
ş
ar
ı
ç
ı
kan su huzmesi ile kirlerin yüzey-
lerden temizlenmesi için kullan
ı
l
ı
r. Özellikle makineler, araçlar ve
cephelerin temizlenmesi için kullan
ı
l
ı
r.
Tehlike
Yaralanma tehlikesi! Benzin istasyonlar
ı
ya da di
ğ
er tehlikeli böl-
gelerde kullan
ı
m s
ı
ras
ı
nda ilgili güvenlik kurallar
ı
na uyun.
–
So
ğ
uk su, motor so
ğ
utma hatt
ı
üzerinden
ş
amand
ı
ra hazne-
sine ve oradan devir daim
ı
s
ı
t
ı
c
ı
s
ı
n
ı
n d
ı
ş
kaplamas
ı
na ve
daha sonra yüksek bas
ı
nç pompas
ı
n
ı
n emme taraf
ı
na gider.
Ş
amand
ı
ra haznesinde yumu
ş
at
ı
c
ı
eklenir. Pompa, suyu ve
emilen temizlik maddesini devir daim
ı
s
ı
t
ı
c
ı
s
ı
ndan geçirir. Su-
daki temizlik maddesi oran
ı
bir dozaj valf
ı
yla ayarlanabilir. De-
vir daim
ı
s
ı
t
ı
c
ı
s
ı
bir gaz brülörü ile
ı
s
ı
t
ı
l
ı
r.
–
Yüksek bas
ı
nç ç
ı
k
ı
ş
ı
, binada bulunan bir yüksek bas
ı
nç
ş
ebe-
kesine ba
ğ
lan
ı
r. Bu
ş
ebekenin ç
ı
k
ı
ş
noktalar
ı
nda, bir yüksek
bas
ı
nçl
ı
hortumla birlikte el püskürtme tabancas
ı
n
ı
n ba
ğ
lant
ı
-
s
ı
gerçekle
ş
ir.
Güvenlik tertibatlar
ı
kullan
ı
c
ı
n
ı
n korunmas
ı
n
ı
sa
ğ
lar ve devre d
ı
ş
ı
b
ı
rak
ı
lmamal
ı
d
ı
r ya da bu tertibatlar
ı
n çal
ı
ş
ma
ş
ekli de
ğ
i
ş
tirilme-
melidir.
Su eksikli
ğ
i emniyeti, su eksikken yüksek bas
ı
nç pompas
ı
n
ı
n ça-
l
ı
ş
t
ı
r
ı
lmas
ı
n
ı
önler.
Su eksikli
ğ
i emniyeti, suyun eksik olmas
ı
durumunda brülörün
a
ş
ı
r
ı
ı
snmas
ı
n
ı
önler. Sadece su beslemesinin yeterli olmas
ı
du-
rumunda brülör çal
ı
ş
ı
r.
Bas
ı
nç
ş
alteri, çal
ı
ş
ma bas
ı
nc
ı
n
ı
n a
ş
ı
lmas
ı
durumunda cihaz
ı
ka-
pat
ı
r. Mevcut ayar de
ğ
i
ş
tirilmemelidir.
Bas
ı
nç
ş
alterinde bir ar
ı
za olmas
ı
durumunda emniyet valf
ı
aç
ı
l
ı
r.
Bu valf fabrikada ayarlanm
ı
ş
ve mühürlenmi
ş
tir. Mevcut ayar de-
ğ
i
ş
tirilmemelidir.
Yan
ı
c
ı
madde eksikli
ğ
inde ya da brülörde bir ar
ı
za olmas
ı
duru-
munda, alev denetimi brülörü kapat
ı
r. Brülör ar
ı
zas
ı
kontrol lam-
bas
ı
(E) yanar.
Brülör motoru bloke olursa, a
ş
ı
r
ı
ak
ı
m koruma
ş
alteri devreye gi-
rer. Yüksek bas
ı
nç pompas
ı
n
ı
n motoru bir motor koruma
ş
alteri
ve sarg
ı
koruma
ş
alteri ile emniyete al
ı
nm
ı
ş
t
ı
r.
At
ı
k gaz s
ı
cakl
ı
ğ
ı
320 °C'nin üzerine ç
ı
karsa at
ı
k gaz termostat
ı
devreye girer. At
ı
k gaz termostat
ı
(K) kontrol lambas
ı
yanar.
Kazan taban
ı
ndaki (> 80 °C) ve su ç
ı
k
ı
ş
ı
ndaki (> 110 °C) maksi-
mum s
ı
cakl
ı
k s
ı
n
ı
rlay
ı
c
ı
lar devreye girer ve brülör ar
ı
zas
ı
kontrol
lambas
ı
(E) yanar.
At
ı
k gaz sisteminde Örn; t
ı
kanma durumunda izin verilmeyen
yükseklikte bir kar
ş
ı
bas
ı
nç olu
ş
ursa, at
ı
k gaz bas
ı
nç
ş
alteri brü-
lörü kapat
ı
r.
Cihaz
ı
n el püskürtme tabancas
ı
üzerinden kapat
ı
lmas
ı
ndan son-
ra, yüksek bas
ı
nç sistemine yerle
ş
tirilmi
ş
bir manyetik valf çal
ı
ş
-
maya haz
ı
r olma süresinin dolmas
ı
n
ı
n ard
ı
ndan aç
ı
l
ı
r; bunun
sonucunda bas
ı
nç dü
ş
er.
Çal
ı
ş
ma yerleri
Ki
ş
isel koruma donan
ı
m
ı
Gürültüyü art
ı
r
ı
c
ı
parçalar
ı
n temizlenmesi s
ı
ra-
s
ı
nda, duyma kusurlar
ı
n
ı
önlemek için koruyucu
kulakl
ı
k tak
ı
n.
Kurallara uygun kullan
ı
m
Mineral ya
ğ
içeren at
ı
k suyun toprak, su kaynaklar
ı
ya da kana-
lizasyona kar
ı
ş
mas
ı
n
ı
lütfen önleyin. Bu nedenle motorlar ve ze-
minleri lütfen ya
ğ
ay
ı
r
ı
c
ı
uygun yerlerde y
ı
kay
ı
n.
Fonksiyon
Güvenlik tertibatlar
ı
Su eksikli
ğ
i emniyeti
Ş
amand
ı
ra haznesi
Su eksikli
ğ
i emniyeti Emniyet blo
ğ
u
Bas
ı
nç
ş
alteri
Emniyet valf
ı
Alev denetimi
A
ş
ı
r
ı
ak
ı
m korumas
ı
At
ı
k gaz termostat
ı
S
ı
cakl
ı
k s
ı
n
ı
rlay
ı
c
ı
At
ı
k gaz bas
ı
nç
ş
alteri
Yüksek bas
ı
nç sisteminde bas
ı
nç bo
ş
altma
244
TR
-
3
Resim 1
1 Brülörü
2 Manometre
3 Süzgeçli temiz su beslemesi
4 Yüksek bas
ı
nç ç
ı
k
ı
ş
ı
5 Gaz ba
ğ
lant
ı
s
ı
6 Temizlik maddesi emme hortumu I
7 Temizlik maddesi emme hortumu II (opsiyon)
8 Yumu
ş
at
ı
c
ı
haznesi
9 Elektrik beslemesi
10
Ş
amand
ı
ra haznesi
11 Kumanda alan
ı
Resim 2
A Cihaz
ş
alteri
B S
ı
cakl
ı
k ayar
ı
dü
ğ
mesi
C Temizlik maddesi dozaj valf
ı
I
D Temizlik maddesi dozaj valf
ı
II (opsiyon)
E Kontrol lambas
ı
Brülör ar
ı
zas
ı
F Kullan
ı
ma haz
ı
r kontrol lambas
ı
G Motor a
ş
ı
r
ı
ı
s
ı
nma kontrol lambas
ı
H Kontrol lambas
ı
; kireçlenme korumas
ı
I
Kilit açma tu
ş
u; gaz rölesi
J Kilit açma tu
ş
u; at
ı
k gaz termostat
ı
K Kontrol lambas
ı
; at
ı
k gaz termostat
ı
Cihaz elemanlar
ı
4
5
6
7
3
8
10
1
11
2
9
Kumanda alan
ı
245
TR
-
4
몇
Tehlike
Yaralanma tehlikesi! Cihaz, besleme hatlar
ı
, yüksek bas
ı
nç hor-
tumu ve ba
ğ
lant
ı
lar kusursuz duruma olmal
ı
d
ı
r. Kusursuz durum-
da de
ğ
ilse, cihaz kullan
ı
lmamal
ı
d
ı
r.
–
Ba
ğ
lant
ı
de
ğ
erleri için Bkz. Teknik Özellikler ve Tip Plakas
ı
.
–
Elektrik ba
ğ
lant
ı
s
ı
bir elektrik tesisatç
ı
s
ı
taraf
ı
ndan yap
ı
lmal
ı
ve IEC 60364-1'e uygun olmal
ı
d
ı
r.
Kullan
ı
c
ı
, cihaz
ı
talimatlara uygun olarak kullanmak zorundad
ı
r.
Yerel kurallar
ı
dikkate almal
ı
ve çal
ı
ş
ma esnas
ı
nda çevredeki ki-
ş
ilere dikkat etmelidir.
Cihaz çal
ı
ş
ı
r durumdayken ba
ş
ı
ndan asla ayr
ı
lmay
ı
n
ı
z.
Tehlike
–
S
ı
cak su nedeniyle yanma tehlikesi! Suyu kesinlikle insanlar
ya da hayvanlara yöneltmeyin.
–
S
ı
cak sistem parçalar
ı
nedeniyle yanma tehlikesi! S
ı
cak su
modunda, izole edilmemi
ş
boru hatlar
ı
ve hortumlara dokun-
may
ı
n. Püskürtme borusunu sadece tutamaklar
ı
ndan tutun.
Devir daim
ı
s
ı
t
ı
c
ı
s
ı
n
ı
n at
ı
k gaz a
ğ
z
ı
na dokunmay
ı
n.
–
Temizlik maddesi nedeniyle zehirlenme ya da tahri
ş
olma teh-
likesi! Temizlik maddelerinin üzerindeki uyar
ı
lara dikkat edin.
Temizlik maddelerini yetkisiz ki
ş
ilerin ula
ş
amayaca
ğ
ı
ş
ekilde
saklay
ı
n.
Tehlike
Elektrik çarpmas
ı
nedeniyle ölüm tehlikesi! Suyu a
ş
a
ğ
ı
daki terti-
batlara yöneltmeyin:
–
Elektrikli cihazlar ve sistemler,
–
Bu sistemin kendisi,
–
Çal
ı
ş
ma bölgesindeki tüm elektrik ileten parçalar.
Püskürtme borusundan ç
ı
kan su sonucu bir geri tepme kuvveti
olu
ş
ur. Bükülmü
ş
püskürtme borusu nedeniyle yukar
ı
do
ğ
ru bir
kuvvet etki eder.
Tehlike
–
Yaralanma tehlikesi! Püskürtme borusunun geri tepmesi den-
genizi kaybettirebilir. Yere dü
ş
ebilirsiniz. Püskürtme borusu
etrafa f
ı
rlayabilir ve ki
ş
ileri yaralayabilir. Güvenli bir yer bulun
ve tabancay
ı
iyice sabit tutun. El püskürtme tabancas
ı
n
ı
n ko-
lunu kesinlikle s
ı
k
ı
ş
t
ı
rmay
ı
n.
–
Tazyiki, ba
ş
ka yerlere veya elbise veya ayakkab
ı
y
ı
temizle-
mek için kendinize do
ğ
ru tutmay
ı
n.
–
F
ı
rlayan parçalar nedeniyle yaralanma tehlikesi! Kopup f
ı
rla-
yan parçalar ya da nesneler insan veya hayvan yaralanmala-
r
ı
na neden olabilir. Suyu k
ı
r
ı
labilir veya gev
ş
ek cisimlere
kesinlikle yöneltmeyin.
–
Hasar sonucu kaza tehlikesi! Lastikler ve supaplar
ı
en az 30
cm'den temizleyin.
몇
Uyar
ı
Sa
ğ
l
ı
ğ
a zararl
ı
maddeler nedeniyle tehlike! A
ş
a
ğ
ı
daki maddeleri
püskürtmeyin, aksi taktirde sa
ğ
l
ı
ğ
a zararl
ı
maddeler dönerek size
çarpabilir:
–
Asbest içeren maddeler,
–
Sa
ğ
l
ı
ğ
a zararl
ı
maddeler içerebilecek olan materyaller.
Tehlike
–
D
ı
ş
ar
ı
ç
ı
kan, s
ı
cak olabilecek su nedeniyle yaralanma tehlike-
si! Sadece orijinal Kärcher yüksek bas
ı
nç hortumlar
ı
sisteme
optimum uyum sa
ğ
lar. Ba
ş
ka hortumlar
ı
n kullan
ı
lmas
ı
duru-
munda hiçbir garanti üstlenilmez.
–
Temizlik maddeleri nedeniyle sa
ğ
l
ı
k tehlikesi! Duruma ba
ğ
l
ı
olarak kar
ı
ş
t
ı
r
ı
lm
ı
ş
olan temizlik maddeleri nedeniyle, cihaz-
dan verilen su içme suyu kalitesine sahip de
ğ
ildir.
–
Gürültüyü art
ı
ran parçalarda çal
ı
ş
ma nedeniyle duyma kusu-
ru tehlikesi! Bu durumda koruyucu kulakl
ı
k tak
ı
n.
Tehlike
D
ı
ş
ar
ı
ç
ı
kan, s
ı
cak olabilecek su nedeniyle yaralanma tehlikesi!
Tehlike
Her kullan
ı
mdan önce yüksek bas
ı
nç hortumuna hasar kontrolü
yap
ı
n. Zarar görmü
ş
yüksek bas
ı
nç hortumunu hemen de
ğ
i
ş
tirin.
Yüksek bas
ı
nç hortumu, boru hatlar
ı
, armatürler ve püskürt-
me borusuna her kullan
ı
mdan önce hasar kontrolü yap
ı
n.
Hortum ba
ğ
lant
ı
s
ı
na s
ı
k
ı
oturma ve s
ı
zd
ı
rmazl
ı
k kontrolü ya-
p
ı
n.
Dikkat
Kuru çal
ı
ş
ma nedeniyle hasar tehlikesi.
Temizlik maddesi haznesinin doluluk seviyesini kontrol edin
ve gerekirse ekleme yap
ı
n.
Yumu
ş
at
ı
c
ı
s
ı
v
ı
seviyesini edin ve gerekirse ekleme yap
ı
n.
Cihaz
ş
alterini (A) “0” konumuna getirin.
Su beslemesini kapat
ı
n.
Cihaz bas
ı
nçs
ı
z duruma gelene kadar el püskürtme tabanca-
s
ı
na bas
ı
n.
Gaz beslemesini kapat
ı
n.
İş
letime alma
Ak
ı
m ba
ğ
lant
ı
s
ı
Kullan
ı
m
ı
Güvenlik uyar
ı
lar
ı
!
Çal
ı
ş
maya haz
ı
r olma özelli
ğ
inin sa
ğ
lanmas
ı
Acil durumda kapatma
246
TR
-
5
Miktar ayar valf
ı
n
ı
n saat yönünde döndürülmesi, daha yüksek
çal
ı
ş
ma bas
ı
nc
ı
ve daha büyük besleme miktar
ı
sa
ğ
lar.
Miktar ayar valf
ı
n
ı
n saat yönünün tersine do
ğ
ru döndürülme-
si, daha dü
ş
ük çal
ı
ş
ma bas
ı
nc
ı
ve daha küçük besleme mik-
tar
ı
sa
ğ
lar.
Su miktar
ı
ayarlay
ı
c
ı
s
ı
n
ı
n sa
ğ
a döndürülmesi daha büyük
sevk miktar
ı
ve daha yüksek çal
ı
ş
ma bas
ı
nc
ı
sa
ğ
lar.
Su miktar
ı
ayarlay
ı
c
ı
s
ı
n
ı
n sola döndürülmesi daha dü
ş
ük
sevk miktar
ı
ve daha az çal
ı
ş
ma bas
ı
nc
ı
sa
ğ
lar.
Su beslemesini aç
ı
n.
"Motor aç
ı
k" sembolü
El püskürtme tabancas
ı
n
ı
n kolunu çekin ve cihaz
ş
alterini (A)
"1" (Motor aç
ı
k) konumuna getirin.
Çal
ı
ş
maya haz
ı
r kontrol lambas
ı
(F) cihaz
ı
n çal
ı
ş
maya haz
ı
r
oldu
ğ
unu gösterir.
Tehlike
Yanma tehlikesi!
Dikkat
Yan
ı
c
ı
madde olmadan s
ı
cak su modu, yan
ı
c
ı
madde pompas
ı
-
n
ı
n hasar görmesine neden olur. S
ı
cak su modundan önce yan
ı
c
ı
madde beslemesini garanti alt
ı
na al
ı
n.
Brülör gerekirse kapat
ı
labilir.
"Brülör aç
ı
k" sembolü
Cihaz
ş
alterini (A) "Brülör aç
ı
k" konumuna getirin.
İ
stedi
ğ
iniz su s
ı
cakl
ı
ğ
ı
n
ı
s
ı
cakl
ı
k regülatöründen (B) ayarla-
y
ı
n. Maksimum s
ı
cakl
ı
k 98 °C'dir.
–
Çal
ı
ş
ma s
ı
ras
ı
nda el püskürtme tabancas
ı
n
ı
n kolu b
ı
rak
ı
l
ı
rsa,
cihaz kapan
ı
r.
–
Tabancan
ı
n çal
ı
ş
maya haz
ı
r olma süresi (2...8 dakika) içinde
tekrar aç
ı
lmas
ı
durumunda, cihaz otomatik olarak tekrar ça-
l
ı
ş
maya ba
ş
lar.
–
Çal
ı
ş
maya haz
ı
r olma süresi a
ş
ı
l
ı
rsa, pompa ve brülörün gü-
venlik süresi devresi kapan
ı
r. Çal
ı
ş
maya haz
ı
r kontrol lamba-
s
ı
(F) söner.
–
Tekrar çal
ı
ş
t
ı
rmak için cihaz
ş
alterini "0" konumuna getirin,
daha sonra tekrar çal
ı
ş
t
ı
r
ı
n. Cihaza bir uzaktan kumandayla
kumanda edilirse, uzaktan kumandan
ı
n ilgili
ş
alteri ile tekrar
i
ş
letime alma i
ş
lemi uygulanabilir.
–
Araç lastikleri sadece düz püskürtme memesi (25°) ve en az
30 cm'lik püskürtme mesafesi ile temizlenir. Yuvarlak huz-
meyle lastikler kesinlikle temizlenmemelidir.
Di
ğ
er tüm görevler için a
ş
a
ğ
ı
daki memeler kullan
ı
ma sunulmu
ş
-
tur:
20 m'nin üzerindeki boru hatt
ı
nda veya 2 x 10 m NW 8 yüksek ba-
s
ı
nç hortumunun üstünde a
ş
a
ğ
ı
daki memeler kullan
ı
lmal
ı
d
ı
r:
Çal
ı
ş
ma bas
ı
nc
ı
ve besleme miktar
ı
n
ı
n ayarlanmas
ı
Cihazdaki ayar
Easypress tabancan
ı
n (opsiyon) ayarlanmas
ı
So
ğ
uk suyla çal
ı
ş
ma
R
S
ı
cak suyla çal
ı
ş
ma
Çal
ı
ş
maya haz
ı
r olma
Meme seçimi
Kirlenme
Meme
Püskürt-
me aç
ı
s
ı
Parça
No. 6.415
Bas
ı
nç
[MPa]
Geri tep-
me [N]
HDS 9/16
güçlü
00060
0°
-649
16
46
orta
25060
25°
-647
hafif
40060
40°
-648
HDS 12/14
güçlü
00080
0°
-150
14
55
orta
25080
25°
-152
hafif
40080
40°
-153
Kirlenme
Meme
Püskürt-
me aç
ı
s
ı
Parça
No. 6.415
Bas
ı
nç
[MPa]
Geri tep-
me [N]
HDS 9/16
güçlü
0075
0°
-419
10
37
orta
2575
25°
-421
hafif
4075
40°
-422
HDS 12/14
güçlü
0010
0°
-082
10
46
orta
2510
25°
-252
hafif
4010
40°
-253
247
TR
-
6
–
Temizlik maddeleri temizlik görevini kolayla
ş
t
ı
r
ı
r. Bu madde-
ler harici bir temizlik maddesi tank
ı
ndan emilir.
–
Cihaz
ı
n temel donan
ı
m
ı
nda bir dozaj valf
ı
(C) bulunmaktad
ı
r.
İ
kinci bir dozaj tertibat
ı
(dozaj valf
ı
D) özel aksesuar olarak te-
min edilebilir. Bu durumda, iki farkl
ı
temizlik maddesini emme
olana
ğ
ı
bulunmaktad
ı
r.
–
Dozaj miktar
ı
, kumanda panosundaki temizlik maddesi dozaj
valflar
ı
ndan (C veya D) ayarlan
ı
r. Ayarlanan de
ğ
er, yüzde
cinsinden temizlik maddesi oran
ı
na e
ş
ittir.
–
D
ı
ş
taki çizelge, inceltilmemi
ş
temizlik maddelerinin kullan
ı
l-
mas
ı
durumunda geçerlidir (% 100 CHEM).
–
İ
çteki çizelge, 1+3 inceltilmi
ş
temizlik maddesinin kullan
ı
lmas
ı
durumunda geçerlidir (% 25 CHEM + % 75 su).
A
ş
a
ğ
ı
daki tablo d
ı
ş
çizelgedeki de
ğ
erler için temizlik maddesi tü-
ketimini gösterir:
Tam dozaj miktar
ı
a
ş
a
ğ
ı
dakilere ba
ğ
l
ı
d
ı
r:
–
Temizlik maddesinin viskozitesi
–
Emme yüksekli
ğ
i
–
Yüksek bas
ı
nç hatt
ı
n
ı
n ak
ı
ş
direnci
Tam bir dozaj gerekirse, emilen temizlik maddesi miktar
ı
ölçül-
melidir (Örn; bir ölçüm kab
ı
ndan emme yöntemiyle).
Not:
Temizlik maddesi önerilerini "Aksesuarlar" bölümünde bula-
bilirsiniz.
Dikkat
Yumu
ş
at
ı
c
ı
s
ı
z çal
ı
ş
ma durumunda devir daim
ı
s
ı
t
ı
c
ı
s
ı
kireçlene-
bilir.
Yumu
ş
at
ı
c
ı
haznesi bo
ş
ken, kireçlenme korumas
ı
kontrol lamba-
s
ı
(H) yanar.
Resim 1 - Poz. 8
Yumu
ş
at
ı
c
ı
haznesine RM 110 (2.780-001) yumu
ş
at
ı
c
ı
s
ı
v
ı
ekleyin.
Tehlike
S
ı
cak su nedeniyle yanma tehlikesi! S
ı
cak suyla çal
ı
ş
madan son-
ra, cihaz, so
ğ
utma için en az iki dakika boyunca so
ğ
uk suyla ve
tabanca aç
ı
kken çal
ı
ş
t
ı
r
ı
lmal
ı
d
ı
r.
S
ı
cak su modunda s
ı
cakl
ı
k regülatörünü (B) en dü
ş
ük s
ı
cak-
l
ı
ğ
a ayarlay
ı
n.
Cihaz
ı
en az 30 dakika temizlik maddesi olmadan kullan
ı
n.
Cihaz
ş
alterini (A) “0” konumuna getirin.
Su beslemesini kapat
ı
n.
Cihaz bas
ı
nçs
ı
z duruma gelene kadar el püskürtme tabanca-
s
ı
na bas
ı
n.
Emniyet kilidini kullanarak, el püskürtme tabancas
ı
n
ı
fark
ı
nda
olmadan açmaya kar
ş
ı
emniyete al
ı
n.
Uzun çal
ı
ş
ma molalar
ı
nda ya da donma olmayan bir depolama
mümkün de
ğ
ilse, a
ş
a
ğ
ı
daki önlemler al
ı
nmal
ı
d
ı
r (Bkz. "Temizlik
ve Bak
ı
m" bölümündeki "Donma korumas
ı
" alt bölümü):
Suyu bo
ş
alt
ı
n.
Cihaz
ı
antifrizle y
ı
kay
ı
n.
Ana
ş
alteri kapat
ı
n ve emniyete al
ı
n veya Cekon soketini ç
ı
-
kart
ı
n.
Gaz beslemesini kapat
ı
n.
Dikkat
Yaralanma ve hasar tehlikesi! Depolama s
ı
ras
ı
nda cihaz
ı
n a
ğ
ı
rl
ı
-
ğ
ı
na dikkat edin.
Dikkat
Yaralanma ve hasar tehlikesi! Ta
ş
ı
ma s
ı
ras
ı
nda cihaz
ı
n a
ğ
ı
rl
ı
ğ
ı
-
na dikkat edin.
Araçlarda ta
ş
ı
ma s
ı
ras
ı
nda, cihaz
ı
geçerli yönetmeliklere
göre kaymaya ve devrilmeye kar
ş
ı
emniyete al
ı
n.
Temizlik maddesi dozaj
ı
Konum:
0,5
1
8
Temizlik maddesi miktar
ı
[l/s]
14...15 22...24
50
Temizlik maddesi konsantrasyonu
[%]
1,5
2,5
> 5
Yumu
ş
at
ı
c
ı
n
ı
n eklenmesi
Kullan
ı
m d
ı
ş
ı
nda
Temizlik maddesiyle çal
ı
ş
madan sonra
Cihaz
ı
n kapat
ı
lmas
ı
Durdurma
Depolama
Ta
ş
ı
ma
248
TR
-
7
Teknik Bilgiler
HDS 9/16-4
ST Gas
HDS 9/16-4
ST Gas LPG
HDS 12/14-4
ST Gas
HDS 12/14-4
ST Gas LPG
1.251-108
1.251-109
1.251-110
1.251-111
Performans de
ğ
erleri
Su çal
ı
ş
ma bas
ı
nc
ı
(standart memeyle)
MPa (bar)
16 (160)
16 (160)
14 (140)
14 (140)
Maksimum çal
ı
ş
ma a
ş
ı
r
ı
bas
ı
nc
ı
(emniyet valf
ı
)
MPa (bar)
18,5 (185)
18,5 (185)
18,5 (185)
18,5 (185)
Su besleme miktar
ı
(kademesiz ayarlanabilir)
l/h (l/min)
500-1000 (8,3-
16,6)
500-1000 (8,3-
16,6)
600-1200 (10-
20)
600-1200 (10-
20)
Temizlik maddesi emme (kademesiz ayarlanabilir)
l/h (l/min)
0-50 (0-0,8)
0-50 (0-0,8)
0-60 (0-1)
0-60 (0-1)
Su ba
ğ
lant
ı
s
ı
Besleme miktar
l/h (l/min)
1100 (18,3)
1100 (18,3)
1300 (21,7)
1300 (21,7)
Besleme bas
ı
nc
ı
(min.)
MPa (bar)
0,1 (1)
0,1 (1)
0,1 (1)
0,1 (1)
Besleme bas
MPa (bar)
0,6 (6)
0,6 (6)
0,6 (6)
0,6 (6)
Elektrik ba
ğ
lant
ı
s
ı
Elektrik türü
--
3N~
3N~
3N~
3N~
Frekans
Hz
50
50
50
50
Gerilim
V
380-420
380-420
380-420
380-420
Ba
ğ
lant
ı
gücü
kW
6,4
6,4
7,5
7,5
Elektrik sigortas
ı
(gecikmeli)
A
16
16
20
20
Koruma
ş
ekli
--
IPX5
IPX5
IPX5
IPX5
Koruma s
ı
n
ı
f
ı
--
I
I
I
I
İ
zin verilen maksimum
ş
ebeke empedans
ı
Ohm
(0,381+j
0,238)
(0,381+j
0,238)
--
--
Elektrik beslemesi
mm
2
5 x 2,5
5 x 2,5
5 x 2,5
5 x 2,5
S
ı
cakl
ı
k
Besleme s
ı
cakl
ı
ğ
ı
(maks.)
°C
30
30
30
30
Maksimum s
ı
cak su çal
ı
ş
ma s
ı
cakl
ı
ğ
ı
°C
98
98
98
98
Maksimum s
ı
cakl
ı
k; Emniyet termostat
ı
°C
110
110
110
110
Maksimum su debisinde s
ı
cakl
ı
k art
ı
ş
ı
°C
60-65
60-65
60-65
60-65
Brüt
ı
s
ı
tma gücü
kW
75
75
95
95
Baca çekme
kPa
0,01-0,04
0,01-0,04
0,01-0,04
0,01-0,04
Gaz ba
ğ
lant
ı
de
ğ
erleri
Do
ğ
al gaz E (G 20)
m
3
/h
7,2
--
9,8
--
Do
ğ
al gaz LL (G 25)
m
3
/h
8,2
--
11,4
--
Nominal ba
ğ
lant
ı
bas
ı
nc
ı
(do
ğ
al gaz)
kPa
1,8-5
--
1,8-5
--
Propan
kg/h
--
5,7
--
7,2
Nominal ba
ğ
lant
ı
bas
ı
nc
ı
(propan)
kPa
--
5-6
--
5-6
Çevre bilgileri
Standart kullanma derecesi
%
97
97
97
97
Standart emisyon faktörü NO
X
(do
ğ
al gaz G 25)
mg/kWh
< 40
--
< 40
--
Standart emisyon faktörü CO (do
ğ
al gaz G 25)
mg/kWh
< 40
--
< 40
--
Baca ölçüm de
ğ
erleri
A
ş
ı
r
ı
bas
ı
nç uygunlu
ğ
u (minimum)
kPa
0,05
0,05
0,05
0,05
Çekme ihtiyac
ı
kPa
0
0
0
0
At
ı
k gaz kütle ak
ı
m
ı
- Tam yük
kg/h
130
130
166
166
CO
2
(do
ğ
al gaz)
%
9,5
--
9,5
--
CO
2
(propan)
%
--
12
--
12
At
ı
k gaz s
ı
cakl
ı
ğ
ı
maks./min.
°C
190/150
190/150
170/130
170/130
Yanma havas
ı
/Hava beslemesi
Maksimum uzunluk:
İ
ki 90° kavisle 10 m (minimum çap 100 mm). Yerel ta-
limatlara göre kurulum yerinden ya da d
ı
ş
ar
ı
dan temiz hava.
Kondensat bo
ş
altma
Kondensat bo
ş
altma (maks.)
l/h
4 (sifon üzerin-
den kanalizas-
yona)
4 (sifon üzerin-
den kanalizas-
yona)
4 (sifon üzerin-
den kanalizas-
yona)
4 (sifon üzerin-
den kanalizas-
yona)
Ba
ğ
lant
ı
DN
40 (HTR)
40 (HTR)
40 (HTR)
40 (HTR)
Minimum su sütunu, sifon
mm
300
300
300
300
249
TR
-
8
Ruhsat EN 60335-2-79
Gas Appliance Directive'e (90/396/EEC) göre ruhsat
--
Gastec QA
Low NO
X
Gastec QA
Gastec QA
Low NO
X
Gastec QA
Cihaz kategorisi Avrupa
--
I 2E (r), I
2ELL, I 2H, I
2L, I2 HE
I 3P
I 2E (r), I
2ELL, I 2H, I
2L, I2 HE
I 3P
Cihaz tipi
--
B23, C33,
C43, C53
B23, C33,
C43, C53
B23, C33,
C43, C53
B23, C33,
C43, C53
CE ürün tan
ı
m numaras
ı
--
PIN 0063 BN
3880
PIN 0063 BN
3880
PIN 0063 BN
3880
PIN 0063 BN
3880
Ölçüler ve a
ğ
ı
rl
ı
klar
Uzunluk
mm
1124
1124
1124
1124
Geni
ş
lik
mm
558
558
558
558
Yükseklik
mm
966
966
1076
1076
Tipik çal
ı
ş
ma a
ğ
ı
rl
ı
ğ
ı
kg
193,5
193,5
209
209
60355-2-79'a göre belirlenen de
ğ
erler
Ses emisyonu
Ses bas
ı
nc
ı
seviyesi L
pA
dB(A)
74
74
76
76
Güvensizlik K
pA
dB(A)
1
1
1
1
El-kol titre
ş
im de
ğ
eri
El püskürtme tabancas
ı
m/s
2
2,2
2,2
2,3
2,3
Püskürtme borusu
m/s
2
1,8
1,8
2,1
2,1
Güvensizlik K
m/s
2
1,0
1,0
1,0
1,0
HDS 9/16-4
ST Gas
HDS 9/16-4
ST Gas LPG
HDS 12/14-4
ST Gas
HDS 12/14-4
ST Gas LPG
Ölçü sayfas
ı
250
TR
-
9
Tehlike
Yaralanma tehlikesi! Tüm bak
ı
m ve onar
ı
m çal
ı
ş
malar
ı
ndan önce
ana
ş
alter kapat
ı
lmal
ı
veya Cekon soketi ç
ı
kart
ı
lmal
ı
d
ı
r.
Koruma ve Bak
ı
m
Bak
ı
m plan
ı
Periyot
Çal
ı
ş
ma
İ
lgili yap
ı
grubu
Uygulama
Kimin tara-
f
ı
ndan
Her gün
El püskürtme ta-
bancas
ı
n
ı
n kon-
trol edilmesi
El püskürtme tabancas
ı
El püskürtme tabancas
ı
n
ı
n s
ı
zd
ı
rmaz
ş
ekilde ka-
pan
ı
p kapanmad
ı
ğ
ı
n
ı
kontrol edin. Fark
ı
nda ol-
madan kullan
ı
ma kar
ş
ı
emniyetin çal
ı
ş
mas
ı
n
ı
kontrol edin. Ar
ı
zal
ı
el püskürtme tabancalar
ı
n
ı
de
ğ
i
ş
tirin.
Kullan
ı
c
ı
Yüksek bas
ı
nç
hortumlar
ı
n
ı
n
kontrol edilmesi
Çal
ı
ş
ma cihaz
ı
na giden ç
ı
k
ı
ş
hatlar
ı
, hortumlar
Hortumlara hasar kontrolü yap
ı
n. Ar
ı
zal
ı
hortum-
lar hemen de
ğ
i
ş
tirin. Kaza tehlikesi!
Kullan
ı
c
ı
Ş
ebeke soketiy-
le ba
ğ
lant
ı
hatt
ı
-
n
ı
n kontrol
edilmesi
Soket/prizle elektrik ba
ğ
lant
ı
s
ı
.
Ş
ebeke soketiyle ba
ğ
lant
ı
hatt
ı
na hasar kontrolü
yap
ı
n. Zarar görmü
ş
ba
ğ
lant
ı
kablosunu yetkili
mü
ş
teri hizmeti/elektronik uzmanca de
ğ
i
ş
tirilme-
sini sa
ğ
lay
ı
n.
Kullan
ı
c
ı
Her hafta ya da 40
çal
ı
ş
ma saatinden
sonra
Ya
ğ
seviyesinin
kontrol edilmesi
Pompadaki ya
ğ
deposu
Ya
ğ
süt gibiyse, de
ğ
i
ş
tirilmelidir.
Kullan
ı
c
ı
Ya
ğ
seviyesinin
kontrol edilmesi
Pompadaki ya
ğ
deposu
Pompan
ı
n ya
ğ
seviyesini kontrol edin. Gerekirse
ya
ğ
(Sipari
ş
No. 6.288-016) ekleyin.
Kullan
ı
c
ı
Süzgecin temiz-
lenmesi
Su giri
ş
indeki süzgeç
Bkz. "Süzgeçlerin temizlenmesi" bölümü.
Kullan
ı
c
ı
Her ay ya da 200
çal
ı
ş
ma saatinden
sonra
Pompan
ı
n kon-
trol edilmesi
Yüksek bas
ı
nç pompas
ı
Pompaya s
ı
zd
ı
rmazl
ı
k kontrolü yap
ı
n. Dakikada
3 damladan fazla olmas
ı
durumunda mü
ş
teri hiz-
metlerini aray
ı
n.
Kullan
ı
c
ı
İ
çte tortu kontro-
lü yap
ı
n
Tüm sistem
Sistemi yüksek bas
ı
nç memesi olmadan püs-
kürtme borusuyla devreye sokun. Cihaz mano-
metresindeki çal
ı
ş
ma bas
ı
nc
ı
3 MPa'n
ı
n üzerine
ç
ı
karsa, sistemdeki kireç çözdürülmelidir. Yük-
sek bas
ı
nç hats
ı
z çal
ı
ş
ma s
ı
ras
ı
nda (suyun yük-
sek bas
ı
nç ç
ı
k
ı
ş
ı
ndan serbestçe ç
ı
kmas
ı
durumu) 0,7-1 MPa'n
ı
n üzerinde bir çal
ı
ş
ma ba-
s
ı
nc
ı
belirlenirse, ayn
ı
kural geçerlidir.
Kireç çözdür-
me talimatl
ı
kullan
ı
c
ı
Süzgecin temiz-
lenmesi
Su eksikli
ğ
i emniyetindeki süz-
geç
Bkz. "Süzgeçlerin temizlenmesi" bölümü.
Kullan
ı
c
ı
500-700 çal
ı
ş
ma
saati sonra
De
ğ
i
ş
tirme
Bujili ate
ş
leyici, iyonizasyon
elektrotu
Bujili ate
ş
leyici ya da iyonizasyon elektrotunu ye-
nileyin.
Mü
ş
teri hiz-
meti
Alt
ı
ayda bir ya da
1000 çal
ı
ş
ma saa-
tinden sonra
Ya
ğ
de
ğ
i
ş
imi
Yüksek bas
ı
nç pompas
ı
Ya
ğ
ı
bo
ş
alt
ı
n. 1 litre yeni ya
ğ
(Sipari
ş
No. 6.288-
016) doldurun. Doluluk seviyesini ya
ğ
haznesin-
den kontrol edin.
Kullan
ı
c
ı
kontrol edin, te-
mizleyin
Tüm sistem
Sisteme görsel kontrol, yüksek bas
ı
nç ba
ğ
lant
ı
-
lar
ı
na s
ı
zd
ı
rmazl
ı
k kontrolü yap
ı
n, ta
ş
ma valf
ı
na
s
ı
zd
ı
rmazl
ı
k kontrolü yap
ı
n, yüksek bas
ı
nç hor-
tumunu kontrol edin, bas
ı
nç haznesini kontrol
edin,
ı
s
ı
tma hatt
ı
ndaki kireci çözdürün, iyonizas-
yon elektrotunu temizleyin / yenileyin, brülörü
ayarlay
ı
n.
Mü
ş
teri hiz-
meti
Hortumun de
ğ
i
ş
-
tirilmesi
At
ı
k gaz bas
ı
nç
ş
alterine giden
hortum
Hortumu yenileyin.
Mü
ş
teri hiz-
meti
her y
ı
l
Güvenlik kontro-
lü
Tüm sistem
S
ı
v
ı
püskürtücülere dair kanunlardaki ilgili ulusal
talimatlara göre güvenlik kontrolü yap
ı
n.
Uzman
251
TR
-
10
Yetkili Kärcher sat
ı
ş
ofisi ile cihaz için bir bak
ı
m sözle
ş
mesi yap
ı
-
labilir.
Resim 1 - Poz. 3
Su beslemesini kapat
ı
n.
Su besleme hortumunu cihazdan sökün.
Süzgeci bir tornavidayla ba
ğ
lant
ı
dan d
ı
ş
ar
ı
itin.
Süzgecin temizlenmesi
Montaj
ı
ters s
ı
rada gerçekle
ş
tirin.
Kaplama saclar
ı
n
ı
ç
ı
kart
ı
n.
Aç
ı
l
ı
parçay
ı
emniyet blo
ğ
undan sökün.
M8x30 c
ı
vatay
ı
süzgece vidalay
ı
n.
C
ı
vatay
ı
ve süzgeci bir penseyle d
ı
ş
ar
ı
çekin.
Süzgecin temizlenmesi
Montaj
ı
ters s
ı
rada gerçekle
ş
tirin.
Boru hatlar
ı
nda tortular olu
ş
mas
ı
durumunda, bas
ı
nç
ş
alteri dev-
reye girebilecek
ş
ekilde ak
ı
ş
direnci artar.
Tehlike
Yan
ı
c
ı
gazlar nedeniyle patlama tehlikesi! Kirecin temizlenmesi
s
ı
ras
ı
nda sigara içmek yasakt
ı
r. Havaland
ı
rman
ı
n iyi olmas
ı
n
ı
sa
ğ
lay
ı
n.
Tehlike
Asit nedeniyle yanma tehlikesi! Koruyucu gözlük ve koruyucu el-
diven kullan
ı
n.
Temizleme için, yasal talimatlara göre sadece test edilmi
ş
ve test
i
ş
areti bulunan kefeki ta
ş
ı
çözücü maddeleri kullan
ı
lmal
ı
d
ı
r.
–
RM 100 (Sipari
ş
No. 6.287-008) kireç ta
ş
ı
n
ı
ve kireç ta
ş
ı
ve
deterjan art
ı
klar
ı
n
ı
n olu
ş
turdu
ğ
u basit ba
ğ
lar
ı
çözer.
–
RM 101 (Sipari
ş
No. 6.287-013), RM 100 ile çözülemeyen tor-
tular
ı
çözer.
20 litrelik bir hazneye 15 litre su doldurun.
Bir litre kefeki ta
ş
ı
çözücü maddesi ekleyin.
Su hortumunu direkt olarak pompa kafas
ı
na ba
ğ
lay
ı
n ve bo
ş
-
taki ucu hazneye as
ı
n.
Ba
ğ
l
ı
bulunan püskürtme borusunu meme olmadan hazneye
sokun.
El püskürtme tabancas
ı
n
ı
aç
ı
n ve kireç temizleme s
ı
ras
ı
nda
tekrar kapatmay
ı
n.
Yakla
ş
ı
k 40 °C'ye ula
ş
ana kadar cihaz
ş
alterini "Brülör aç
ı
k"
konumuna getirin.
Cihaz
ı
kapat
ı
n ve 20 dakika bekletin. El püskürtme tabancas
ı
aç
ı
k kalmal
ı
d
ı
r.
Daha sonra pompalayarak cihaz
ı
bo
ş
alt
ı
n.
Not:
Korozyon korumas
ı
ve asit art
ı
klar
ı
n
ı
n nötralizasyonu için,
sadece alkali bir çözeltinin (Örn; RM 81) temizlik maddesi hazne-
si üzerinden pompalayarak cihazdan geçirilmesini öneriyoruz.
Cihaz, donma korumas
ı
sa
ğ
lanm
ı
ş
bölümlere kurulmal
ı
d
ı
r. Örn;
d
ı
ş
bölgelerdeki kurulum durumunda donma tehlikesi olu
ş
mas
ı
durumunda, cihaz bo
ş
alt
ı
lmal
ı
ve antifrizle y
ı
kanmal
ı
d
ı
r.
Su besleme hortumu ve yüksek bas
ı
nç hortumunu sökün.
Pompa ve hatlar bo
ş
alana kadar cihaz
ı
maksimum 1 dakika
çal
ı
ş
t
ı
r
ı
n.
Kazan taban
ı
ndaki besleme hatt
ı
n
ı
sökün ve
ı
s
ı
tma hatt
ı
n
ı
bo
ş
ta çal
ı
ş
t
ı
r
ı
n.
Not:
Antifriz üreticisinin kullan
ı
m talimatlar
ı
na uyun.
Piyasada bulunan antifrizi
ş
amand
ı
ra haznesinde yukar
ı
ya
kadar doldurun.
Toplama kab
ı
n
ı
yüksek bas
ı
nç ç
ı
k
ı
ş
ı
n
ı
n alt
ı
na koyun.
Cihaz
ı
çal
ı
ş
t
ı
r
ı
n ve su eksikli
ğ
i emniyetinin
ş
amand
ı
ra hazne-
si tepki verene ve cihaz kapanana kadar çal
ı
ş
t
ı
rmaya devam
edin.
Kazan taban
ı
ve sifona antifriz doldurun.
Bu sayede etkin bir korozyon korumas
ı
elde edilir.
Bak
ı
m sözle
ş
mesi
Süzgeçlerin temizlenmesi
Su giri
ş
indeki süzgeç
Su eksikli
ğ
i emniyetindeki süzgeç
Kirecin çözülmesi
Uygulama
2.
1.
Antifriz koruma
Suyun bo
ş
alt
ı
lmas
ı
Cihaz
ı
antifrizle y
ı
kay
ı
n.
252
TR
-
11
Tehlike
Yaralanma tehlikesi! Tüm bak
ı
m ve onar
ı
m çal
ı
ş
malar
ı
ndan önce
ana
ş
alter kapat
ı
lmal
ı
veya Cekon soketi ç
ı
kart
ı
lmal
ı
d
ı
r.
*
Not
Alev denetiminin kilidini açmak için at
ı
k gaz termostat
ı
kilit açma
tu
ş
una (J) bas
ı
n.
Ar
ı
zalarda yard
ı
m
Ar
ı
za
Olas
ı
nedeni
Ar
ı
zan
ı
n giderilmesi
Kimin taraf
ı
ndan
Cihaz çal
ı
ş
m
ı
yor, çal
ı
ş
maya
haz
ı
r kontrol lambas
ı
(F) yan-
m
ı
yor
Cihazda gerilim yok.
Elektrik
ş
ebekesini kontrol edin.
Elektrik teknisyeni
Emniyet süresi devresi çal
ı
ş
ı
yor.
Cihaz
ı
cihaz
ş
alterinden k
ı
sa süreli kapat
ı
n
ve tekrar aç
ı
n.
Kullan
ı
c
ı
Kumanda devresindeki sigorta
(F3) yanm
ı
ş
. Sigorta, kumanda tra-
fosunda (T2) bulunmaktad
ı
r.
Yeni sigortay
ı
tak
ı
n, tekrar yanmas
ı
duru-
munda a
ş
ı
r
ı
yük nedenini giderin.
Mü
ş
teri hizmeti
Bas
ı
nç
ş
alteri HD (yüksek bas
ı
nç)
ya da ND (alçak bas
ı
nç) ar
ı
zal
ı
.
Bas
ı
nç
ş
alterlerini kontrol edin.
Mü
ş
teri hizmeti
Zamanlay
ı
c
ı
modülü (A1) ar
ı
zal
ı
.
Ba
ğ
lant
ı
lar
ı
kontrol edin, gerekirse de
ğ
i
ş
tirin. Mü
ş
teri hizmeti
+ Motor a
ş
ı
r
ı
ı
s
ı
nma kontrol
lambas
ı
(G) yan
ı
yor
Motordaki termik sensör (WS) ya
da a
ş
ı
r
ı
ak
ı
m koruma
ş
alteri (F1)
devreye girdi.
A
ş
ı
r
ı
yük nedenini giderin.
Mü
ş
teri hizmeti
Ş
amand
ı
ra haznesindeki su eksik-
li
ğ
i emniyeti tepki verdi.
Su eksikli
ğ
ini giderin.
Kullan
ı
c
ı
Brülör ate
ş
lemiyor ya da ça-
l
ı
ş
ma s
ı
ras
ı
nda alev sönüyor
S
ı
cakl
ı
k regülatörü (B) çok dü
ş
ük
ayarlanm
ı
ş
.
S
ı
cakl
ı
k regülatörünü daha yüksek ayara ge-
tirin.
Kullan
ı
c
ı
Cihaz
ş
alteri brülör konumunda de-
ğ
il.
Brülörü çal
ı
ş
t
ı
r
ı
n.
Kullan
ı
c
ı
Emniyet blo
ğ
unun su eksikli
ğ
i em-
niyeti kapand
ı
.
Su beslemesinin yeterli olmas
ı
n
ı
sa
ğ
lay
ı
n.
Cihaza s
ı
zd
ı
rmazl
ı
k kontrolü yap
ı
n.
Kullan
ı
c
ı
Gaz muslu
ğ
u kapal
ı
.
Gaz muslu
ğ
unu aç
ı
n.
Kullan
ı
c
ı
Su ç
ı
k
ı
ş
ı
ndaki maksimum s
ı
cakl
ı
k
s
ı
n
ı
rlay
ı
c
ı
s
ı
(> 110 °C) devreye gir-
di.
Kazan
ı
so
ğ
utun ve cihaz
ı
yeniden çal
ı
ş
t
ı
r
ı
n. Kullan
ı
c
ı
S
ı
cakl
ı
k regülatörünü kontrol edin.
Mü
ş
teri hizmeti
At
ı
k gaz termostat
ı
(K) kon-
trol lambas
ı
yan
ı
yor
Gaz beslemesi yok.
Gaz beslemesini aç
ı
n.
Kullan
ı
c
ı
Besleme havas
ı
ya da at
ı
k hava
beslemesi t
ı
kanm
ı
ş
.
Havaland
ı
rmay
ı
ve at
ı
k gaz sistemini kontrol
edin.
Kullan
ı
c
ı
Kazan taban
ı
çok s
ı
cak. Kazan ta-
ban
ı
ndaki maksimum s
ı
cakl
ı
k s
ı
-
n
ı
rlay
ı
c
ı
s
ı
(> 80 °C) devreye girdi.
Kazan taban
ı
nda yo
ğ
u
ş
mu
ş
su
yok.
5 litre suyu at
ı
k gaz ölçüm a
ğ
z
ı
ndan doldu-
run.
Kullan
ı
c
ı
Gaz yakma otomat
ı
ar
ı
za konu-
munda.
Gaz rölesi kilit açma tu
ş
una (I) bas
ı
n.
Kullan
ı
c
ı
Ate
ş
leme yok. *
Gaz ate
ş
leme otomat
ı
ve ate
ş
leme kablosu
aras
ı
ndaki elektro mesafesini kontrol edin.
Mesafeyi düzeltin ya da ar
ı
zal
ı
parçalar
ı
de-
ğ
i
ş
tirin. Gerekirse temizleyin.
Mü
ş
teri hizmeti
Fan ya da devir kumanda platini
ar
ı
zal
ı
. *
Fan
ı
ve devir kumanda platinini kontrol edin.
Soketi ve besleme hatt
ı
n
ı
kontrol edin. Ar
ı
zal
ı
parçalar
ı
de
ğ
i
ş
tirin.
Mü
ş
teri hizmeti
253
TR
-
12
Ar
ı
za
Olas
ı
nedeni
Ar
ı
zan
ı
n giderilmesi
Kimin taraf
ı
ndan
At
ı
k gaz termostat
ı
(K) kon-
trol lambas
ı
yan
ı
yor
Egzoz gaz
ı
s
ı
cakl
ı
k s
ı
n
ı
rlay
ı
c
ı
s
ı
devreye girdi.
Sistem so
ğ
uyana kadar el püskürtme taban-
cas
ı
n
ı
aç
ı
n. S
ı
cakl
ı
k s
ı
n
ı
rlay
ı
c
ı
s
ı
n
ı
n kilidini
açmak için, sistemi kumanda panosundan
kapat
ı
n ve aç
ı
n. Tekrarlanmas
ı
durumunda
mü
ş
teri hizmetlerini aray
ı
n.
Kullan
ı
c
ı
Kireçlenme korumas
ı
kontrol
lambas
ı
(H) yan
ı
yor
Yumu
ş
at
ı
c
ı
bitmi
ş
.
Yumu
ş
at
ı
c
ı
ekleyin.
Kullan
ı
c
ı
Yetersiz temizlik maddesi
beslemesi ya da besleme
yok
Dozaj valf
ı
"0" konumunda.
Reinigungsmittel-Dosierventil einstellen.
Kullan
ı
c
ı
Temizlik maddesi filtresi t
ı
kanm
ı
ş
ya da tank bo
ş
.
Temizleyin ya da doldurun.
Kullan
ı
c
ı
Temizlik maddesi emme hortumla-
r
ı
, dozaj valf
ı
ya da manyetik valf
s
ı
zd
ı
r
ı
yor ya da t
ı
kanm
ı
ş
.
Kontrol edin, temizleyin.
Kullan
ı
c
ı
Elektronik ünite ya da manyetik
valf ar
ı
zal
ı
.
De
ğ
i
ş
tirin
Mü
ş
teri hizmeti
Cihaz tam bas
ı
nca gelmiyor Meme a
ş
ı
nm
ı
ş
.
Memeyi de
ğ
i
ş
tirin.
Kullan
ı
c
ı
Temizlik maddesi tank
ı
bo
ş
.
Temizlik maddesi ekleyin.
Kullan
ı
c
ı
Yeterli su yok.
Yeterli su beslemesi olmas
ı
n
ı
sa
ğ
lay
ı
n.
Kullan
ı
c
ı
Su giri
ş
indeki süzgeç t
ı
kanm
ı
ş
.
Kontrol edin, süzgeci sökün ve temizleyin.
Kullan
ı
c
ı
Temizlik maddesi dozaj valf
ı
s
ı
zd
ı
-
r
ı
yor.
Kontrol edin ve izole edin.
Kullan
ı
c
ı
Temizlik maddesi hortumlar
ı
s
ı
zd
ı
-
r
ı
yor.
De
ğ
i
ş
tirin
Kullan
ı
c
ı
Ş
amand
ı
ra valf
ı
s
ı
k
ı
ş
m
ı
ş
.
Kolay hareket edip etmediklerini kontrol edin. Kullan
ı
c
ı
Emniyet valf
ı
s
ı
zd
ı
r
ı
yor.
Ayar
ı
kontrol edin, gerekirse yeni conta tak
ı
n. Mü
ş
teri hizmeti
Miktar ayar valf
ı
s
ı
zd
ı
r
ı
yor ya da
çok dü
ş
ük ayarlanm
ı
ş
.
Valf parçalar
ı
n
ı
kontrol edin, hasar durumun-
da de
ğ
i
ş
tirin, kirlenme durumunda temizle-
yin.
Mü
ş
teri hizmeti
Bas
ı
nç bo
ş
altma manyetik valf
ı
ar
ı
-
zal
ı
.
Manyetik valf
ı
de
ğ
i
ş
tirin.
Mü
ş
teri hizmeti
Yüksek bas
ı
nç pompas
ı
vu-
ruyor, manometre çok fazla
dalgalan
ı
yor
Titre
ş
im sönümleyici ar
ı
zal
ı
.
Titre
ş
im sönümleyiciyi de
ğ
i
ş
tirin.
Mü
ş
teri hizmeti
Su pompas
ı
az miktarda hava emi-
yor.
Emme sistemini kontrol edin ve s
ı
zd
ı
rmay
ı
gi-
derin.
Kullan
ı
c
ı
El püskürtme tabancas
ı
aç
ı
k-
ken cihaz sürekli aç
ı
l
ı
yor/ka-
pan
ı
yor
Püskürtme borusundaki meme t
ı
-
kanm
ı
ş
.
Kontrol edin, temizleyin.
Kullan
ı
c
ı
Cihaz kireçlenmi
ş
.
Bkz. "Kirecin çözülmesi" bölümü.
Kullan
ı
c
ı
Ta
ş
ı
r
ı
c
ı
n
ı
n devre noktas
ı
n
ı
n ayar
ı
de
ğ
i
ş
mi
ş
.
Ta
ş
ı
r
ı
c
ı
y
ı
yeniden ayarlat
ı
n.
Mü
ş
teri hizmeti
Su eksikli
ğ
i emniyetindeki süzgeç
t
ı
kanm
ı
ş
.
Kontrol edin, süzgeci sökün ve temizleyin.
Kullan
ı
c
ı
El püskürtme tabancas
ı
ka-
pal
ı
yken cihaz kapanm
ı
yor
Pompadaki hava tamamen bo
ş
al-
t
ı
lmam
ı
ş
.
Cihaz
ş
alterini "0" konumuna getirin ve me-
meden hiç s
ı
v
ı
ç
ı
kmayana kadar el püskürt-
me tabancas
ı
n
ı
çekin. Daha sonra cihaz
ı
tekrar aç
ı
n. Tam çal
ı
ş
ma bas
ı
nc
ı
na ula
ş
ana
kadar bu i
ş
lemi tekrarlay
ı
n.
Kullan
ı
c
ı
Emniyet valf
ı
ya da emniyet valf
ı
contas
ı
ar
ı
zal
ı
.
Emniyet valf
ı
n
ı
ya da contay
ı
de
ğ
i
ş
tirin.
Mü
ş
teri hizmeti
Ta
ş
ı
r
ı
c
ı
n
ı
n bas
ı
nç
ş
alteri.
Bas
ı
nç
ş
alterini ve ta
ş
ı
r
ı
c
ı
y
ı
kontrol edin.
Mü
ş
teri hizmeti
254
TR
-
13
Temizlik maddeleri temizlik görevlerini kolayla
ş
t
ı
r
ı
r. Tabloda, te-
mizlik maddesi seçenekleri gösterilmi
ş
tir. Temizlik maddelerini i
ş
-
lemeden önce, ambalaj
ı
n üzerindeki uyar
ı
lara mutlaka dikkat
edilmelidir.
* = sadece k
ı
sa kullan
ı
m için, iki kademeli yöntem, temiz suyla y
ı
-
kay
ı
n
** = ASF = ayr
ı
lma özelli
ğ
ine sahip
*** = ön y
ı
kama için Foam-Star 2000 uygundur
Aksesuar
Temizlik maddesi
Kullan
ı
m alan
ı
Kirlenme, uygulama türü
Temizlik maddesi
pH de
ğ
eri (yakla
ş
ı
k) 1;
Musluk suyundaki %
çözelti
Motorlu ta
ş
ı
t i
ş
letmeleri,
benzin istasyonlar
ı
, nakli-
ye, araç parklar
ı
Toz, yol kiri, mineral ya
ğ
lar (boyal
ı
yüzeylerde)
RM 55 ASF **
8
RM 22/80 toz ASF
12/10
RM 81 ASF
9
RM 803 ASF
10
RM 806 ASF
11
Araç korumas
ı
RM 42 Yüksek bas
ı
nçl
ı
temizleyici için so
ğ
uk
mum
8
RM 820 S
ı
cak mum ASF
7
RM 821 Püskürtme mumu ASF
6
RM 824 Süper sedefli mum ASF
7
RM 44 Jel-Jant temizleyici
9
Metal i
ş
leme endüstrisi
Ya
ğ
lar, gresler, toz ve benzeri
kirler
RM 22 toz ASF
12
RM 55 ASF
8
RM 81 ASF
9
RM 803 ASF
10
RM 806 ASF
12
RM 31 ASF (güçlü kirlenme)
12
RM 39 s
ı
v
ı
(korozyon korumal
ı
)
9
G
ı
da maddesi i
ş
leyen i
ş
-
letmeler
Hafif ila orta kirlenme, gresler/ya
ğ
-
lar, büyük yüzeyler
RM 55 ASF
8
RM 81 ASF
9
RM 882 Jel köpük OSC
12
RM 58 ASF (köpüklü temizlik maddesi)
9
RM 31 ASF *
12
Duman reçinesi
RM 33 *
13
Temizleme ve dezenfeksiyon
RM 732
9
Dezenfeksiyon
RM 735
7...8
Kireç, mineral tortular
RM 25 ASF *
2
RM 59 ASF (köpüklü temizlik)
2
Hijyenik bölgeler ***
Kireç, üre ta
ş
ı
, sabun, vb
RM 25 ASF * (ana temizlik)
2
RM 59 ASF (köpüklü temizlik)
2
RM 68 ASF
5
255
TR

