Karcher Nettoyeur haute pression HDS 9-16-4 ST Gaz LPG: !
!: Karcher Nettoyeur haute pression HDS 9-16-4 ST Gaz LPG
-
14
–
Ogrevalnik naprave je gorilna naprava. Pri namestitvi se mo-
rajo upoštevati lokalno veljavni predpisi.
–
Uporabite le preizkušene dimnike/dimovode.
–
Instalacijo plinskih vodov ter plinski priklju
č
ek naprave sme iz-
vesti le prijavljeno strokovno podjetje plinske in vodne obrti.
–
Nastavitve in popravila na plinskem gorilniku smejo izvajati le
usposobljeni monterji iz Kärcher uporabniškega servisa.
–
V dovodu plina, ki mora biti izveden z nazivno širino najmanj
1 colo, se morata predvideti manometer in zaporni ventil.
–
Zaradi vibracij, ki jih povzro
č
a visokotla
č
na
č
rpalka, se mora
povezava med togim plinskim cevovodom in napravo izvesti
s fleksibilno plinsko gibko cevjo.
–
Pri dovodih plina z dolžino nad 10 m se mora predvideti na-
zivna širina 1 1/2 cole ali ve
č
. Plinski priklju
č
ek na napravi ima
nazivno širino 1 colo.
Nevarnost
Pri uvijanju fleksibilne plinske gibke cevi na gorilnik se mora pri-
klju
č
na tulka držati proti z vili
č
astim klju
č
em št. 36. Priklju
č
na tul-
ka se ne sme obrniti proti ohišju gorilnika. Zatesnitev navojnega
priklju
č
ka se mora izvesti s tesnilnimi sredstvi, ki so dopustna po
DVGW. Po priklju
č
itvi se mora tesnost povezovalnega mesta
preveriti s pršilom za odkrivanje netesnosti, ki je dopustno po
DVGW.
Cevna širina plinskega cevovoda se mora izra
č
unati ustrezno
DVGW TRGI 1986 oz. TRF 1996. Nazivna širina plinskega pri-
klju
č
ka naprave ni avtomatsko nazivna širina cevovoda. Dimen-
zioniranje in instalacija plinskega cevovoda se mora izvesti po
ustreznih normah in predpisih.
–
Vsaka naprava se mora priklju
č
iti na svoj kamin.
–
Odvod dimnih plinov se mora izvesti ustrezno lokalnim pred-
pisom in po uskladitvi s pristojnim dimnikarjem.
Plinska naprava brez preto
č
nega varovala, pri kateri so vsi deli
odvoda dimnih plinov, ki stojijo pod nadtlakom, obliti z zgoreval-
nim zrakom. Instalacija naprave B23 odpira možnost priklju
č
itve
naprave na obi
č
ajen enovle
č
ni dimnik po DIN 18160 in obratova-
nje naprave odvisno od zraka v prostoru. Pogoj za to pa je, da je
dimnik primeren za priklju
č
itev kondenzacijskih naprav (npr. tako,
da je dimnik saniran z uvedbo cevi iz plemenitega jekla).
Plinska naprava z dovajanjem zgorevalnega zraka in odvodom
dimnih plinov navpi
č
no nad streho. Ustja se nahajajo blizu drug
drugega v enakem tla
č
nem obmo
č
ju.
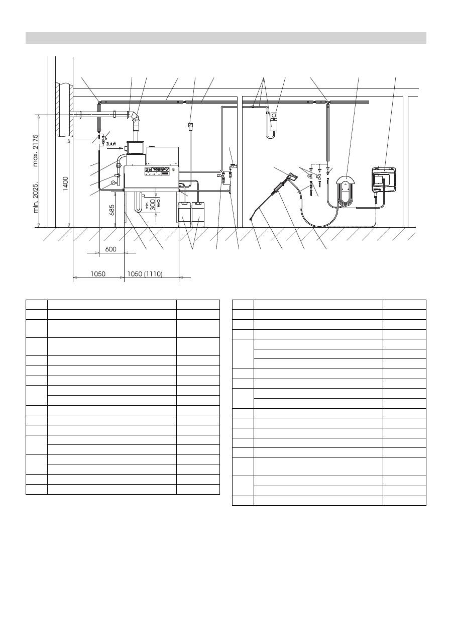
Inštalacija naprave
Le za pooblaš
č
ene strokovnjake!
Splošno
Plin splošno
Plinski cevovod
Vodenje zraka/dimnih plinov
!
Plinska naprava z dimovodnim sistemom, ki zgorevalni zrak
zajema iz postavitvenega prostora
Tip B23
Plinska naprava z dimovodnim sistemom, ki zgorevalni zrak
preko zaprtega sistema zajema od zunaj
Tip C33
336
SL
-
15
Plinska naprava z dovajanjem zgorevalnega zraka in odvodom
dimnih plinov za priklju
č
itev na sistem zrak-dimni plini.
Plinska naprava z lo
č
enim dovajanjem zgorevalnega zraka in od-
vajanjem dimnih plinov. Ustja se nahajajo v razli
č
nih tla
č
nih ob-
mo
č
jih.
Opozorilo:
Za doseganje predpisanih zgorevalnih vrednosti se
mora upoštevati kaminski vlek, naveden v tehni
č
nih podatkih.
Kondenzacijski vod se mora sifonirati direktno na priklju
č
ku kon-
denzata. Višina sifona mora znašati 30 cm. Sifon ni del dobavne-
ga obsega. Kondenzacijski vod ne sme imeti fiksne povezava s
kanalizacijo. Kondenzat se mora prosto iztekati v lijak ali nevtra-
lizacijsko posodo.
–
Pred montažo se mora preveriti nosilnost stene. Sodobavljen
pritrditveni material je primeren za beton. Za stene iz votlih zi-
dakov, opeke in plinobetona se morajo uporabiti primerni mo-
zniki in vijaki, npr. injekcijsko sidro (vrtalno shemo glejte na
merskem listu).
–
Slika 3 - poz. 19 in 25
Naprava ne sme biti togo povezana z vodovodnim ali visoko-
tla
č
nim cevnim omrežjem. Obvezno se morajo montirati po-
vezovalne gibke cevi.
–
Slika 3 - A
Med vodovodnim omrežjem in povezovalno gibko cevjo se
mora predvideti zaporna pipa.
Pri montaži visokotla
č
nih napeljav je treba upoštevati ustrezne
nacionalne predpise zakonodajalca.
–
Tla
č
ni upad v cevovodu mora ležati pod 1,5 MPa.
–
Kon
č
an cevovod se mora preizkusiti z 32 MPa.
–
Izolacija cevovoda mora biti temperaturno obstojna do 100 °C.
Slika 3 - poz. 20
Posode se morajo postaviti tako, da se spodnja nivojska gladina
č
istila ne nahaja ve
č
kot 1,5 m pod dnom naprave in zgornja gla-
dina ne nad dnom naprave.
Slika 3 - B in poz. 19
Vhod za vodo priklju
č
ite na vodovodno omrežje z ustrezno
vodno gibko cevjo.
–
Zmogljivost oskrbe z vodo mora znašati najmanj 1300 l/h pri
najmanj 0,1 MPa.
–
Temperatura vode mora ležati pod 30 °C.
Tip C43
Tip C53
Odtok kondenzata
Montaža na steno
Montaža visokotla
č
nih vodov
Namestitev posode za
č
istilo
Oskrba z vodo
337
SL
-
16
Pozor
Maksimalno dopustna omrežna impedanca na elektri
č
nem pri-
klju
č
ku (glejte tehni
č
ne podatke) ne sme biti presežena. V prime-
ru nejasnosti glede omrežne impendance, ki obstaja na Vašem
priklju
č
ku, stopite v stik z Vašim elektro podjetjem.
Opozorilo:
Postopki vklopa kratkotrajno povzro
č
ijo padec nape-
tosti. Pri neugodnih omrežnih razmerah se lahko s tem poslabša
delovanje drugih naprav.
–
Priklju
č
ne vrednosti glejte v Tehni
č
nih podatkih in na tipski ta-
blici.
–
Elektri
č
ni priklju
č
ek mora izvesti elektroinstalater in mora
ustrezati IEC 60364-1.
–
Deli pod napetostjo, kabli in naprave v delovnem obmo
č
ju
morajo biti v brezhibnem stanju in zaš
č
iteni pred vodnim cur-
kom.
Za izogibanje elektri
č
nim nesre
č
am priporo
č
amo, da uporabljate
vti
č
nice s predvklopljenim zaš
č
itnim stikalom (maks. 30 mA na-
zivne jakosti sprožilnega toka).
Vzpostavite elektri
č
ni priklju
č
ki.
Za izklop stacionarnega visokotla
č
nega
č
istilnika se mora na var-
nem, lahko dostopnem mestu namestiti glavno stikalo, ki se za-
klene (Bild 3 - poz. 6).
Odpiralna širina kontakta glavnega stikala mora znaüati najmanj
3 mm.
CEE vti
č
montirajte na priklju
č
ni kabel naprave.
Cekon vti
č
vtaknite v vti
č
nico.
Za izklop stacionarnega visokotla
č
nega
č
istilnika mora biti CEE
vti
č
lahko dostopen za lo
č
itev od omrežja.
Preverite plinski priklju
č
ek.
Pozor
Nevarnost poškodbe naprave s pregretjem.
Sifon priklopite na dno kotla in ga napolnite z vodo.
Kotel preko kaminske odprtine napolnite s 4 litri vode.
Pred prvo uporabo odrežite vrh pokrova s posode za olje na
vodni
č
rpalki.
Slika 3 - poz. 14
Visokotla
č
no gibko cev povežite z ro
č
no brizgalno pištolo in
brizgalno cevjo in jo priklju
č
ite na visokotla
č
ni izhod naprave
ali visokotla
č
no cevovodno omrežje.
Ustnik šobe (b) s prekrovno matico (a) pritrdite na brizgalno
cev (d). Pazite na to, da tesnilni obro
č
(c) pravilno leži v utoru.
Elektri
č
ni priklju
č
ek
Fiksno instaliran elektri
č
ni priklju
č
ek
Elektri
č
ni priklju
č
ek z vti
č
em/vti
č
nico
Izro
č
itev v obratovanje
Naprava je kot naprava na zemeljski plin tovarniško nastavljena
na vrsto plina G 20 in kot naprava na uteko
č
injen plin na vrsto
plina G 31. Pri prestavitvi naprave na zemeljski plin na G 25 ali
drug zemeljski plin (glejte tipsko tablico) ali pri prestavitvi napra-
ve na uteko
č
injen plin na G 30 ali drug uteko
č
injen plin (glejte
tipsko tablico) se morajo plinske vrednosti nastaviti v skladu s
servisnimi informacijami.
Na priloženo prazno tablico se napiše novo nastavljena vrsta pli-
na, tablica pa se namesti v predal
č
ek za napise na desni strani
naprave. Hkrati se mora odstraniti tovarniško nameš
č
ena tabli-
ca s podatkom G 20 (naprava na zemeljski plin) ali G 31 (napra-
va na uteko
č
injen plin).
Ukrepi pred zagonom
a
b
c
d
338
SL
-
17
Odstranite vzmet (c) s pokrova (b) posode za meh
č
alec (a).
V posodo nalijte Kärcher meh
č
alno teko
č
ino RM 110 (naro
č
.
št. 2.780-001).
Nevarnost
Nevarna elektri
č
na napetost! Nastavitev sme izvesti le stokov-
njak za elektriko.
Ugotovite lokalno trdoto vode:
–
preko lokalnega podjetja za oskrbo,
–
s preizkuševalnikom trdote (naro
č
. št. 6.768-004).
Odstranite pokrov naprave.
Odprite stikalno omarico na upravljalnem polju.
Vrtljiv potenciometer (a) nastavite glede na trdoto vode. Iz ta-
bele lahko od
č
itate pravilno nastavitev.
Primer:
Za trdoto vode 15 °dH na vrtljivem potenciometru nastavite vre-
dnost na skali 6. Iz tega izhaja
č
as odmora 31 sekund, t.j. vsakih
31 sekund se na kratko odpre magnetni ventil.
Nastavitev
č
asa pripravljenosti za obratovanje se izvede na ve
č
ji
ploš
č
i na levi stranici elektri
č
ne omarice.
Č
as pripravljenosti za obratovanje je tovarniško nastavljen na mi-
nimalni
č
as 2 minuti in se lahko poviša na maksimalno 8 minut.
Zaš
č
ita pred poapnenjem
Trdota vode (°dH)
5
10
15
20
25
Skala na vrtljivem potencio-
metru
8
7
6
5
4,5
Č
as odmora (sekunde)
50
40
31
22
16
b
c
a
a
Spreminjanje
č
asa pripravljenosti za obratovanje
8 7 6 5 4 3 2 1
S2
min.
max.
339
SL
-
18
Bild 3
Inštalacijski material
1
2
3
5
6
7
8
9
10
12
13
A
15
11b
11a
11c
11a
25
21
22
23
11b
24
4
20
19a
19
18
17
16
14
11d
B
Poz. Inštalacijski material
Naro
č
. št.
1
Kotni navojni spoj
6.386-356
2
Komplet za izpušne cevi, vodoraven, 150
mm
6.526-231
3
Komplet za izpušne cevi, navpi
č
en, 150
mm
6.526-232
4
Komplet delov sifon
2.640-422
5
Toplotna izolacija
6.286-114
6
Glavno stikalo
6.631-455
7
Komplet cevi, jeklene pocinkane
2.420-004
Komplet cevi, plemenito jeklo
2.420-006
8
Komplet delov daljinsko upravljanje
2.744-008
9
Komplet delov zasilno stikalo
2.744-002
10
T-navojni spoj
6.386-269
11a
Priklju
č
ni nastavek, medenina
2.638-180
Priklju
č
ni nastavek, plemenito jeklo
2.638-181
11b
Zaporna pipa NV 8, jeklena pocinkana
4.580-144
Zaporna pipa NV 8, plemenito jeklo
4.580-163
11c
Htrospojni fiksni del
6.463-025
11d
Hitrospojni prosti del
6.463-023
Poz. Inštalacijski material
Naro
č
. št.
12
Držalo cevi
2.042-001
13
Cevni boben
2.637-238
14
Visokotla
č
na gibka cev 10 m
6.388-083
15
Ro
č
na brizgalna pištola Easypress
4.775-463
Vrtljiv regulator HDS 9/16-4
4.775-470
Vrtljiv regulator HDS 12/14-4
4.775-471
16
Držalo brizgalne cevi
2.042-002
17
Brizgalna cev
4.760-550
18
Ustnik šobe HDS 9/16-4
2.883-402
Ustnik šobe HDS 12/14-4
2.883-406
19
Vodna cev
4.440-282
19a
Magnetni ventil dovoda vode
4.743-011
20
Rezervoar za
č
istilo, 60 l
5.070-078
21
Plinska gibka cev R1"
6.388-228
22
Plinski zaporni ventil R1"
6.412-389
23
Manometer, plin (Pozor! Na mestu samem
predvidite zaklju
č
ni ventil.)
6.412-059
24
Komplet delov stenske konzole
2.053-005
Komplet delov talnega ogrodja
2.210-008
25
Visokotla
č
na cev
6.389-028
340
SL
-
19
S to izjavo potrjujemo, da spodaj omenjeni stroj zaradi svoje za-
snove in na
č
ina izdelave ustreza temeljnim varnostnim in zdra-
vstvenim zahtevam EU-standardov. Ta izjava izgubi svojo
veljavnost,
č
e kdo napravo spremeni brez našega soglasja.
5.957-648
Podpisniki ravnajo po navodilih in s pooblastilom vodstva
podjetja.
Pooblaš
č
enec za dokumentacijo:
S. Reiser
Alfred Kärcher GmbH & Co. KG
Alfred-Kärcher-Str. 28 - 40
71364 Winnenden (Germany)
Tel.: +49 7195 14-0
Faks: +49 7195 14-2212
Winnenden, 2014/02/01
V vsaki državi veljajo garancijski pogoji, ki jih doloèa naše prodaj-
no predstavništvo. Morebitne motnje na napravi, ki so posledica
materialnih ali proizvodnih napak, v èasu garancije brezplaèno
odpravljamo.
ES-izjava o skladnosti
Proizvod:
visokotla
č
ni
č
istilec
Tip:
1.251-xxx
Zadevne ES-direktive
:
2009/142/ES
2006/42/ES (+2009/127/ES)
2004/108/ES
Uporabljene usklajene norme:
EN 55014–1: 2006+A1: 2009+A2: 2011
EN 55014–2: 1997+A1: 2001+A2: 2008
EN 60335–1
EN 60335–2–79
EN 62233: 2008
EN 61000–3–2: 2006+A1: 2009+A2: 2009
HDS 12/14:
EN 61000–3–3: 2008
HDS 9/16:
EN 61000–3–11: 2000
Uporabne specifikacije:
QA 195 (ne LPG)
Ime priglašenega organa:
Za 2009/142/ES
GASTEC
Wilmersdorf 50
7327 AC Apeldoorn
Reg. štev. 0063
Garancija
CEO
Head of Approbation
341
SL
-
20
Uporabniški servis
Tip naprave:
Tovarniška št.:
Izro
č
itev v obratovanje dne:
Preverjanje izvedeno dne:
Ugotovitev:
Podpis
Preverjanje izvedeno dne:
Ugotovitev:
Podpis
Preverjanje izvedeno dne:
Ugotovitev:
Podpis
Preverjanje izvedeno dne:
Ugotovitev:
Podpis
342
SL
-
1
Przed pierwszym u
ż
yciem urz
ą
dzenia nale
ż
y przeczy-
ta
ć
oryginaln
ą
instrukcj
ę
obs
ł
ugi, post
ę
powa
ć
wed
ł
ug
jej wskaza
ń
i zachowa
ć
j
ą
do pó
ź
niejszego wykorzystania lub dla
nast
ę
pnego u
ż
ytkownika.
–
Przed pierwszym uruchomieniem nale
ż
y koniecznie przeczy-
ta
ć
zasady bezpiecze
ń
stwa nr 5.956-309!
–
Ewentualne uszkodzenia transportowe nale
ż
y niezw
ł
ocznie
zg
ł
osi
ć
sprzedawcy.
Wskazówki dotycz
ą
ce sk
ł
adników (REACH)
Aktualne informacje dotycz
ą
ce sk
ł
adników znajduj
ą
si
ę
pod:
www.kaercher.com/REACH
Niebezpiecze
ń
stwo
Przy bezpo
ś
rednim niebezpiecze
ń
stwie, prowadz
ą
cym do ci
ęż
-
kich obra
ż
e
ń
cia
ł
a lub do
ś
mierci.
몇
Ostrze
ż
enie
Przy mo
ż
liwo
ś
ci zaistnienia niebezpiecznej sytuacji mog
ą
cej pro-
wadzi
ć
do ci
ęż
kich obra
ż
e
ń
cia
ł
a lub
ś
mierci.
Uwaga
Przy mo
ż
liwo
ś
ci zaistnienia niebezpiecznej sytuacji mog
ą
cej pro-
wadzi
ć
do lekkich obra
ż
e
ń
cia
ł
a lub szkód materialnych.
W przypadku niew
ł
a
ś
ciwego u
ż
ycia strumie
ń
wody
pod ci
ś
nieniem mo
ż
e by
ć
niebezpieczny. Nie wolno
kierowa
ć
strumienia na ludzi, zwierz
ę
ta, czynny
osprz
ę
t elektryczny ani na samo urz
ą
dzenie.
–
Nale
ż
y przestrzega
ć
krajowych przepisów dotycz
ą
cych stru-
mienic cieczowych.
–
Nale
ż
y przestrzega
ć
krajowych przepisów dotycz
ą
cych zapo-
biegania wypadkom. Strumienice cieczowe musz
ą
by
ć
regu-
larnie sprawdzane, a wynik badania musi by
ć
dokumentowany w formie pisemnej.
–
Urz
ą
dzenie grzewcze tego urz
ą
dzenia jest urz
ą
dzeniem opa-
ł
owym. Urz
ą
dzenia opa
ł
owe musz
ą
by
ć
regularnie sprawdza-
ne zgodnie z obowi
ą
zuj
ą
cymi krajowymi przepisami.
–
W przypadku u
ż
ytkowania urz
ą
dzenia w pomieszczenia nale-
ż
y zadba
ć
o bezpieczne odprowadzenie spalin (rura do spalin
bez przerywacza ci
ą
gu) Poza tym musi by
ć
zapewniony wy-
starczaj
ą
cy dop
ł
yw
ś
wie
ż
ego powietrza.
–
Wskazówki bezpiecze
ń
stwa, które do
łą
czone s
ą
do stosowa-
nych
ś
rodków czyszcz
ą
cych (z regu
ł
y znajduj
ą
si
ę
na etykie-
cie opakowania).
Przed instalacj
ą
sprz
ę
tu powinna mie
ć
miejsce narada z przed-
si
ę
biorstwem zapewniaj
ą
cym dostaw
ę
gazu oraz z okr
ę
gowym
mistrzem kominiarskim.
Przy instalacji nale
ż
y przestrzega
ć
przepisów dotycz
ą
cych pra-
wa budowlanego, prawa przemys
ł
owego i ochrony przed zanie-
czyszczeniami powietrza. Zwracamy uwag
ę
na poni
ż
ej
zestawione przepisy, regu
ł
y i normy:
–
Urz
ą
dzenie mo
ż
e zosta
ć
zamontowane jedynie przez przed-
si
ę
biorstwo specjalistyczne zgodnie z odpowiednimi krajowy-
mi przepisami.
–
W przypadku instalacji elektrycznych nale
ż
y przestrzega
ć
od-
powiednich krajowych przepisów prawa.
–
W przypadku instalacji gazowych nale
ż
y przestrzega
ć
odpo-
wiednich krajowych przepisów prawa.
–
Instalacja przewodów gazowych jak równie
ż
przy
łą
cze gazo-
we urz
ą
dzenia mog
ą
zosta
ć
wykonane jedynie przez autory-
zowan
ą
firm
ę
gazownicz
ą
i hydrauliczn
ą
.
–
Ustawienia, prace konserwacyjne i naprawy przy palniku
mog
ą
by
ć
przeprowadzane jedynie przez wykwalifikowanego
przedstawiciela serwisu firmy Kärcher.
–
Przy projekcie komuna musz
ą
by
ć
przestrzegane lokalnie
obowi
ą
zuj
ą
ce dyrektywy.
Spis tre
ś
ci
Ochrona
ś
rodowiska . . . . . .
PL . . 1
Symbole w instrukcji obs
ł
ugi
PL . . 1
Symbole na urz
ą
dzeniu. . . .
PL . . 1
Ogólne zasady bezpiecze
ń
stwa
PL . . 1
U
ż
ytkowanie zgodne z przeznaczeniem
PL . . 2
Funkcja . . . . . . . . . . . . . . . .
PL . . 2
Zabezpieczenia . . . . . . . . . .
PL . . 2
Elementy urz
ą
dzenia. . . . . .
PL . . 3
Uruchamianie . . . . . . . . . . .
PL . . 4
Obs
ł
uga. . . . . . . . . . . . . . . .
PL . . 4
Wy
łą
czenie z ruchu . . . . . . .
PL . . 6
Wy
łą
czenie z eksploatacji . .
PL . . 6
Przechowywanie . . . . . . . . .
PL . . 6
Transport. . . . . . . . . . . . . . .
PL . . 6
Dane techniczne . . . . . . . . .
PL . . 7
Czyszczenie i konserwacja .
PL . . 9
Usuwanie usterek . . . . . . . .
PL . 11
Akcesoria . . . . . . . . . . . . . .
PL . 13
Instalacja urz
ą
dzenia . . . . .
PL . 14
Deklaracja zgodno
ś
ci UE . .
PL . 19
Gwarancja . . . . . . . . . . . . . .
PL . 19
Serwis firmy. . . . . . . . . . . . .
PL . 20
Ochrona
ś
rodowiska
Materia
ł
, z którego wykonano opakowanie nadaje si
ę
do powtórnego przetworzenia. Prosimy nie wyrzuca
ć
opakowania do
ś
mieci z gospodarstw domowych,
lecz odda
ć
do recyklingu.
Zu
ż
yte urz
ą
dzenia zawieraj
ą
cenne surowce wtórne,
które powinny by
ć
oddawane do utylizacji. Akumula-
tory, olej i tym podobne substancje nie powinny prze-
dosta
ć
si
ę
do
ś
rodowiska naturalnego. Prosimy o
utylizacj
ę
starych urz
ą
dze
ń
w odpowiednich placów-
kach zbieraj
ą
cych surowce wtórne.
Prosimy o dopilnowanie, aby olej silnikowy, olej opa
ł
owy, olej
nap
ę
dowy i benzyna nie dostawa
ł
y si
ę
do
ś
rodowiska! Chroni
ć
nale
ż
y pod
ł
o
ż
e, a stary olej usuwa
ć
zgodnie z przepisami o
ochronie
ś
rodowiska naturalnego.
Ś
rodki czyszcz
ą
ce Kärcher s
ą
ś
rodkami str
ą
caj
ą
cymi (ASF).
Oznacza to,
ż
e funkcja separatora oleju nie zostaje zak
ł
ócona.
Lista z zalecanymi
ś
rodkami czyszcz
ą
cymi znajduje si
ę
w roz-
dziale „Akcesoria“.
Symbole w instrukcji obs
ł
ugi
Symbole na urz
ą
dzeniu
Ogólne zasady bezpiecze
ń
stwa
Przepisy, dyrektywy i regu
ł
y
343
PL
-
2
Miejsce pracy znajduje si
ę
w polu obs
ł
ugi. Pozosta
ł
e miejsca pra-
cy w zale
ż
no
ś
ci od budowy urz
ą
dzenia znajduj
ą
si
ę
przy urz
ą
-
dzeniach dodatkowych (urz
ą
dzenia natryskowe), które
przylegaj
ą
do punktów poboru.
–
W celu ochrony przed rozpryskuj
ą
c
ą
si
ę
wod
ą
lub brudem na-
le
ż
y nosi
ć
odpowiedni
ą
odzie
ż
ochronn
ą
i okulary ochronne.
Urz
ą
dzenie s
ł
u
ż
y do tego, aby za pomoc
ą
swobodnego strumie-
nia wody usuwa
ć
zabrudzenia z powierzchni. Stosuje si
ę
je
zw
ł
aszcza do czyszczenia maszyn, pojazdów i fasad.
Niebezpiecze
ń
stwo
Ryzyko obra
ż
e
ń
! W razie stosowania na stacjach paliwowych lub
w innych miejscach niebezpiecznych nale
ż
y przestrzega
ć
odno
ś
-
nych zasad bezpiecze
ń
stwa.
–
Zimna woda przechodzi z w
ęż
a ch
ł
odz
ą
cego silnika do zbior-
nika z p
ł
ywakiem, a stamt
ą
d do p
ł
aszcza zewn
ę
trznego grzej-
nika przep
ł
ywowego i dalej do cz
ęś
ci ss
ą
cej pompy
wysokoci
ś
nieniowej. W zbiorniku z p
ł
ywakiem dodawana jest
substancja zmi
ę
kczaj
ą
ca. Pompa t
ł
oczy wod
ę
i zassany
ś
ro-
dek czyszcz
ą
cy przez grzejnik przep
ł
ywowy. Udzia
ł
ś
rodka
czyszcz
ą
cego w wodzie mo
ż
na ustawi
ć
przy pomocy zaworu
dozuj
ą
cego. Grzejnik przep
ł
ywowy ogrzewany jest przy po-
mocy palnika gazowego.
–
Wyj
ś
cie wysokiego ci
ś
nienia zostaje pod
łą
czone do istniej
ą
-
cej w budynku sieci wysokiego ci
ś
nienia. W miejscach poboru
tej sieci pod
łą
cza si
ę
pistolet natryskowy z w
ęż
em wysokoci
ś
-
nieniowym.
Zabezpieczenia s
ł
u
żą
ochronie u
ż
ytkownika i nie mog
ą
by
ć
od
łą
-
czone albo pomini
ę
te w swoim dzia
ł
aniu.
Zabezpieczenie przed brakiem wody zapobiega w
łą
czeniu pom-
py wysokoci
ś
nieniowej w przypadku braku wody.
Zabezpieczenie przed brakiem wody zapobiega przegrzaniu pal-
nika w przypadku braku wody. Palnik uruchamia si
ę
tylko, gdy
jest wystarczaj
ą
cy dop
ł
yw wody.
Wy
łą
cznik ci
ś
nieniowy wy
łą
cza urz
ą
dzenie w przypadku przekro-
czenia ci
ś
nienia roboczego. Nie wolno zmienia
ć
tego ustawienia.
W przypadku usterki wy
łą
cznika ci
ś
nieniowego otwiera si
ę
zawór
bezpiecze
ń
stwa. Ten zawór jest ustawiany fabrycznie i zaplom-
bowany. Nie wolno zmienia
ć
tego ustawienia.
W przypadku braku paliwa lub usterki palnika nadzór p
ł
omienia
wy
łą
cza palnik. Zapala si
ę
kontrolka usterki palnika (E).
Je
ż
eli silnik palnika jest zablokowany, wyzwala si
ę
ochrona nad-
miarowa. Silnik pompy wysokoci
ś
nieniowej jest zabezpieczony
przez wy
łą
cznik ochronny silnika i prze
łą
cznik ochronny uzwoje-
nia.
Termostat spalinowy uruchamia si
ę
, gdy temperatura spalin
przekracza 320°C.
Ś
wieci si
ę
wtedy lampka kontrolna termostatu
spalinowego (K).
Uruchamiaj
ą
si
ę
ograniczniki temperatury maksymalnej w dnie
kot
ł
a (> 80°C) i w wyj
ś
ciu wody (> 110°C) i
ś
wieci si
ę
lampka kon-
trolna awarii palnika (E).
Prze
łą
cznik ci
ś
nieniowy spalin wy
łą
cza palnik, gdy w systemie
wyci
ą
gu spalin powstaje niedopuszczalnie wysokie przeciwci
ś
-
nienie, np. przy zatorze.
Po wy
łą
czeniu urz
ą
dzenia za pomoc
ą
pistoletu natryskowego, po
up
ł
ywie czasu gotowo
ś
ci do pracy otwiera si
ę
zawór elektromag-
netyczny uk
ł
adu wysokiego ci
ś
nienia, co powoduje spadek ci
ś
-
nienia.
Miejsca pracy
Osobiste wyposa
ż
enia ochronne
Podczas czyszczenia ha
ł
asuj
ą
cych cz
ęś
ci za-
k
ł
ada
ć
ochron
ę
s
ł
uchu, aby zapobiega
ć
uszko-
dzeniom s
ł
uchu.
U
ż
ytkowanie zgodne z przeznaczeniem
Ś
cieki zawieraj
ą
ce oleje mineralne nie mog
ą
dosta
ć
si
ę
do gle-
by, wód gruntowych i powierzchniowych ani do kanalizacji. Dla-
tego mycie silników i podwozi nale
ż
y wykonywa
ć
tylko w
miejscach wyposa
ż
onych w separatory oleju.
Funkcja
Zabezpieczenia
Zabezpieczenie przed brakiem wody w zbiorniku
p
ł
ywakowym
Zabezpieczenie przed brakiem wody w bloku
zabezpieczaj
ą
cym
Wy
łą
cznik ci
ś
nieniowy
Zawór bezpiecze
ń
stwa
Nadzór p
ł
omienia
Ochrona nadmiarowa
Termostat spalin
Ogranicznik temperatury
Prze
łą
cznik ci
ś
nieniowy spalin
Zwolnienie ci
ś
nienia w uk
ł
adzie wysokiego ci
ś
nienia
344
PL
-
3
Rys. 1
1 Palnik
2 Manometr
3 Dop
ł
yw
ś
wie
ż
ej wody z sitem
4 Wyj
ś
cie wysokiego ci
ś
nienia
5 Przy
łą
cze gazowe
6 W
ąż
do zasysania
ś
rodka czyszcz
ą
cego I
7 W
ąż
do zasysania
ś
rodka czyszcz
ą
cego II (opcja)
8 Zbiornik
ś
rodka zmi
ę
kczaj
ą
cego
9 Elektryczny przewód doprowadzaj
ą
cy
10 Zbiornik p
ł
ywakowy
11 Pole obs
ł
ugi
Rys. 2
A Wy
łą
cznik g
ł
ówny
B Regulator temperatury
C Zawór dozuj
ą
cy
ś
rodka czyszcz
ą
cego I
D Zawór dozuj
ą
cy
ś
rodka czyszcz
ą
cego II (opcja)
E Kontrolka usterki palnika
F Lampka kontrolna gotowo
ś
ci do pracy
G Kontrolka przegrzania silnika
H Kontrolka ochrony przed osadzaniem kamienia
I
Przycisk odblokowuj
ą
cy przeka
ź
nik gazowy
J Przycisk odblokowuj
ą
cy termostat spalinowy
K Lampka kontrolna termostatu spalinowego
Elementy urz
ą
dzenia
4
5
6
7
3
8
10
1
11
2
9
Pole obs
ł
ugi
345
PL
-
4
몇
Niebezpiecze
ń
stwo
Ryzyko obra
ż
e
ń
! Urz
ą
dzenie, przewody zasilaj
ą
ce, w
ąż
wysoko-
ci
ś
nieniowy i przy
łą
cza musz
ą
by
ć
w nienagannym stanie. Je
ż
eli
nie jest on poprawny, to sprz
ę
tu takiego nie wolno u
ż
ywa
ć
.
–
Parametry przy
łą
cza patrz tabliczka znamionowa i Dane
techniczne.
–
Przy
łą
cze leketryczne musi by
ć
wykonane przez wykwalifiko-
wanego elektryka i odpowiada
ć
normie IEC 60364-1.
U
ż
ytkownik ma obowi
ą
zek u
ż
ywania urz
ą
dzenia zgodnie z jego
przeznaczeniem. Podczas pracy musi on uwzgl
ę
dnia
ć
warunki
panuj
ą
ce w otoczeniu i uwa
ż
a
ć
na osoby znajduj
ą
ce si
ę
w pobli-
ż
u.
Pracuj
ą
cego urz
ą
dzenia nigdy nie pozostawia
ć
bez nadzoru.
Niebezpiecze
ń
stwo
–
Niebezpiecze
ń
stwo oparzenia wod
ą
! Nie kierowa
ć
strumienia
wody na ludzi ani zwierz
ę
ta.
–
Niebezpiecze
ń
stwo oparzenia przez gor
ą
ce elementy urz
ą
-
dzenia! W przypadku pracy z u
ż
yciem gor
ą
cej wody nie doty-
ka
ć
niezaizolowanych rur i w
ęż
y. Rurk
ę
strumieniow
ą
trzyma
ć
wy
łą
cznie za ochwyt. Nie dotyka
ć
kró
ć
ca spalin pod-
grzewacza przep
ł
ywoego.
–
Niebezpiecze
ń
stwo zatrucia i poparzenia
ś
rodkami czysz-
cz
ą
ymi! Przestrzega
ć
wskazówek dotycz
ą
cych
ś
rodków
czyszcz
ą
cych. Przechowywa
ć
ś
rodki czyszcz
ą
ce w miejscu
niedost
ę
pnym dla osób niupowa
ż
nionych.
Niebezpiecze
ń
stwo
Niebezpiecze
ń
stwo pora
ż
enia pr
ą
dem elektrycznym! Nie kiero-
wa
ć
strumienia wody na nast
ę
puj
ą
ce urz
ą
dzenia:
–
urz
ą
dzenia i instalacje elektryczne,
–
na samo urz
ą
dzenie,
–
wszystkie elementy przewodz
ą
ce pr
ą
d w obszarze robo-
czym.
Strumie
ń
wody wydobywaj
ą
cy si
ę
z rurki strumieniowej wytwarza
si
łę
odrzutu. Z uwagi na zagi
ę
cie rurki strumieniowej si
ł
a ta dzia
ł
a
ku górze.
Niebezpiecze
ń
stwo
–
Ryzyko obra
ż
e
ń
! Odrzut rurki strumieniowej mo
ż
e pozbawi
ć
operatora równowagi. W wyniku czego mo
ż
e on upa
ść
. Rur-
ka strumieniowa mo
ż
e porusza
ć
si
ę
bez ogranicze
ń
i spowo-
dowa
ć
obra
ż
enia u osób. Wyszuka
ć
bezpieczne miejsce do
stania i mocno trzyma
ć
pistolet natryskowy. Nigdy nie zaci-
ska
ć
d
ź
wigni pistoletu natryskowego.
–
Nie kierowa
ć
strumienia na siebie ani na inne osoby, aby
oczy
ś
ci
ć
odzie
ż
lub obuwie.
–
Niebezpiecze
ń
stwo obra
ż
e
ń
poprzez odlatuj
ą
ce cz
ęś
ci! Od-
latuj
ą
ce od
ł
amki lub przedmioty mog
ą
spowodowa
ć
obra
ż
e-
nia u ludzi i zwierz
ą
t. Nigdy nie kierowa
ć
strumienia wody na
ł
amliwe lub nieprzytwierdzone przedmioty.
–
Niebezpiecze
ń
stwo wypadku na skutek uszkodzenia! Czy
ś
-
ci
ć
opony i zawory z zachowaniem minimalnego odst
ę
pu 30
cm.
몇
Ostrze
ż
enie
Niebezpiecze
ń
stwo zastosowania substancji szkodliwych dla
zdrowia! Nie spryskiwa
ć
nast
ę
puj
ą
cych materia
ł
ów, poniewa
ż
mog
ą
zosta
ć
m uwolnione substancje szkodliwe dla zdrowia:
–
materia
ł
y zawieraj
ą
ce azbest,
–
materia
ł
y przypuszczalnie zawieraj
ą
ce substancje szkodliwe
dla zdrowia.
Niebezpiecze
ń
stwo
–
Niebezpiecze
ń
stwo skaleczenia przez wydobywaj
ą
cy si
ę
,
ewentualnie gor
ą
cy strumie
ń
wody! Tylko oryginalne w
ęż
e
wysokoci
ś
nieniowe firmy Kärcher s
ą
optymalnie dostosowa-
ne do u
ż
ycia w urz
ą
dzeniu. W przypadku u
ż
ycia innych w
ęż
y
nie przejmujemy gwarancji.
–
Niebezpiecze
ń
stwo dla zdrowia w wyniku dzia
ł
ania
ś
rodków
czyszcz
ą
cych! Woda wydobywaj
ą
ca si
ę
z urz
ą
dzenie nie na-
daje si
ę
do picia z uwagi na domieszk
ę
ś
rodków czyszcz
ą
-
cych.
–
Niebezpiecze
ń
stwo uszkodzenia s
ł
uchu w wyniku pracy przy
ha
ł
asuj
ą
cych cz
ęś
ciach urz
ą
dzenia! W takim przypadku nale-
ż
y zak
ł
ada
ć
ochraniacze na uszy.
Niebezpiecze
ń
stwo
Niebezpiecze
ń
stwo skaleczenia przez wydobywaj
ą
cy si
ę
, ewen-
tualnie gor
ą
cy strumie
ń
wody!
Niebezpiecze
ń
stwo
Przed ka
ż
dym u
ż
yciem sprawdza
ć
, czy przewód ci
ś
nieniowy nie
jest uszkodzony. Uszkodzony przewód ci
ś
nieniowy nale
ż
y nie-
zw
ł
ocznie wymieni
ć
.
Przed ka
ż
dym u
ż
yciem sprawdza
ć
w
ąż
wysokoci
ś
nieniowy,
rury, armatury i rurke strumieniow
ą
pod k
ą
tem uszkodze
ń
.
Sprawdzi
ć
z
łą
cze w
ęż
a pod k
ą
tem w
ł
a
ś
ciwego zamocowania
i szczelno
ś
ci.
Uwaga
Ryzyko uszkodzenia przez bieg na sucho urz
ą
dzenia.
Sprawdzi
ć
poziom w zbiorniku
ś
rodka czyszcz
ą
cego i w razie
konieczno
ś
ci uzupe
ł
ni
ć
.
Sprawdzi
ć
poziom
ś
rodka zmi
ę
kczaj
ą
cego i w razie koniecz-
no
ś
ci uzupe
ł
ni
ć
.
Ustawi
ć
wy
łą
cznik urz
ą
dzenia (A) w pozycji „0”.
Zamkn
ąć
dop
ł
yw wody.
W
łą
czy
ć
r
ę
czny pistolet natryskowy i poczeka
ć
a
ż
w urz
ą
dze-
niu nie b
ę
dzie ci
ś
nienia.
Zamkn
ąć
dop
ł
yw gazu.
Uruchamianie
Zasilanie elektryczne
Obs
ł
uga
Wskazówki bezpiecze
ń
stwa
!
Uzyskanie gotowo
ś
ci do pracy
Wy
łą
czanie podczas awarii
346
PL
-
5
zawór reguluj
ą
cy ilo
ść
obróci
ć
zgodnie z ruchem wskazówek
zegara, aby uzyska
ć
wy
ż
sze ci
ś
nienie robocze i wi
ę
kszy
przep
ł
yw.
zawór reguluj
ą
cy ilo
ść
obróci
ć
w kierunku przeciwnym do ru-
chu wskazówek zegara, aby uzyska
ć
mniejsze ci
ś
nienie ro-
bocze i mniejszy przep
ł
yw.
Obrót w prawo regulatora ilo
ś
ci wody zwi
ę
ksza ilo
ść
przep
ł
y-
wu i ci
ś
nienie robocze.
Obrót w lewo regulatora ilo
ś
ci wody zmniejsza ilo
ść
przep
ł
y-
wu i ci
ś
nienie robocze.
Otworzy
ć
dop
ł
yw wody.
Symbol „Silnik w
ł
.“
D
ź
wigni
ę
pistoletu natryskowego pociagn
ąć
i ustawi
ć
w
łą
cz-
nik urz
ą
dzenia (A) w po
ł
o
ż
eniu „1“ (Silnik w
ł
.).
Kontrolka gotowo
ś
ci do pracy (F) wskazuje gotowo
ść
do pracy.
Niebezpiecze
ń
stwo
Niebezpiecze
ń
stwo poparzenia!
Uwaga
Praca z wykorzystaniem gor
ą
cej wody bez paliwa prowadzi do
uszkodzenia pompy paliwowej. Przed rozpocz
ę
ciem pracy z wy-
korzystaniem gor
ą
cej wody zapewni
ć
dop
ł
yw paliwa.
W razie koineczno
ś
ci mo
ż
na w
łą
czy
ć
palnik.
Symbol „Palnik w
ł
.“
Ustawi
ć
wy
łą
cznik (A) w pozycji „Palnik w
ł
.”.
Ustawi
ć
żą
dan
ą
temperatur
ę
wody (B). Temperatura maks.
wynosi 98 °C.
–
Je
ż
eli podczas pracy d
ź
wignia pistoletu natryskowego zosta-
nie zwolniona, urz
ą
dzenie wy
łą
czy si
ę
.
–
Podczas ponownego otwierania pistoletu w regulowanym
czasie gotowo
ś
ci do pracy (2-8 minut) urzadzenie ponownie
samoczynnie si
ę
w
łą
czy.
–
Je
ż
eli czas gotowo
ś
ci do pracy zostanie przekroczony, wy-
łą
cznik bezpiecze
ń
stwa wy
łą
cza pomp
ę
i palnik. Ga
ś
nie kon-
trolka gotowo
ś
ci do pracy (F).
–
W celu ponownego uruchomeinia ustawi
ć
w
łą
cznik urz
ą
dze-
nia w po
ł
o
ż
eniu „0“, a nast
ę
pnie ponownie w
łą
czy
ć
. Je
ż
eli
urz
ą
dzenie sterowane jest zdalnie, ponowne uruchomienie
mo
ż
na wykona
ć
prze
łą
czaj
ą
c odpowiedni prze
łą
cznik na
zdalnym sterowaniu.
–
Opony pojazdów czy
ś
ci si
ę
tylko przy u
ż
yciu syszy o p
ł
askim
strumieniu (25°) i minimalnym odst
ę
pie natrysku 30 cm.
Opon nie wolno czy
ś
ci
ć
w
ż
adnym wypadku za pomoc
ą
stru-
mienia okr
ą
g
ł
ego.
Do innych czynno
ś
ci do wyboru s
ą
nast
ę
puj
ą
ce dysze:
W przypadku rur o d
ł
ugo
ś
ci powy
ż
ej 20 m lub w
ęż
u wysokoci
ś
-
nieniowym o d
ł
ugo
ś
ci wi
ę
kszeje ni
ż
2 x 10 m NW 8 nale
ż
y stoso-
wa
ć
nast
ę
puj
ą
ce dysze:
Ustawianie ci
ś
nienia roboczego i przep
ł
ywu
Ustawienia urz
ą
dzenia
Ustawienia na pistolecie Easypress (opcja)
Czyszczenie zimn
ą
wod
ą
R
Czyszczenie gor
ą
c
ą
wod
ą
Gotowo
ść
do pracy
Wybór dysz
Zabru-
dzenie
Dysza
K
ą
t natry-
sku
Nr cz
ęś
ci
6.415
Ci
ś
nie-
nie [MPa]
Odrzut
[N]
HDS 9/16
silny
00060
0°
-649
16
46
ś
redni
25060
25°
-647
s
ł
aby
40060
40°
-648
HDS 12/14
silny
00080
0°
-150
14
55
ś
redni
25080
25°
-152
s
ł
aby
40080
40°
-153
Zabru-
dzenie
Dysza
K
ą
t natry-
sku
Nr cz
ęś
ci
6.415
Ci
ś
nie-
nie [MPa]
Odrzut
[N]
HDS 9/16
silny
0075
0°
-419
10
37
ś
redni
2575
25°
-421
s
ł
aby
4075
40°
-422
HDS 12/14
silny
0010
0°
-082
10
46
ś
redni
2510
25°
-252
s
ł
aby
4010
40°
-253
347
PL
-
6
–
Ś
rodki czyszcz
ą
ce u
ł
atwiaj
ą
czyszczenie. S
ą
one zasysane z
zewn
ę
trznego zbiornika
ś
rodka czyszcz
ą
cego.
–
Urz
ą
dzeniew wersji podstawowej jest wyposa
ż
one w zawód
dozuj
ą
cy (C). Dost
ę
pne jest drugie urz
ą
dzenie dozuj
ą
ce (za-
wór dozuj
ą
cy D) jako wyposa
ż
enie dodatkowe. Wówczas ist-
nieje mo
ż
liwo
ść
u
ż
ycia dwóch ró
ż
nych
ś
rodków
czyszczacych.
–
Ilo
ść
ś
rodka czyszcz
ą
cego ustawia si
ę
na zaworach dozuj
ą
-
cych
ś
rodka czyszcz
ą
cego (C lub D) w polu obs
ł
ugi. Ustawio-
na warto
ść
odpowiada udzia
ł
owi procentowemu
ś
rodka
czyszczacego.
–
Zewn
ę
trzna skala obowi
ą
zuje podczas stosowania nieroz-
cie
ń
czonego
ś
rodka czyszcz
ą
cego (100% CHEM).
–
Wewnetrzna skala obowi
ą
zuje podczas stosowania 1+3 nie-
rozcie
ń
czonego
ś
rodka czyszcz
ą
cego (25 % CHEM + 75 %
wody).
Poni
ż
sza tabela podaje zu
ż
ycie
ś
rodka czyszcz
ą
cego dla warto-
ś
ci skali zewn
ę
trznej:
Dok
ł
adne dozowanie zale
ż
y od:
–
lepko
ś
ci
ś
rodka czyszcz
ą
cego
–
wysoko
ś
ci zasysania
–
oporu strumienia w uk
ł
adzie wysokiego ci
ś
nienia
Je
ż
eli niezb
ę
dne jest dok
ł
adne dozowanie, zassan
ą
ilo
ść
ś
rodka
czyszcz
ą
cego nale
ż
y zmierzy
ć
(np. przez zassanie z pojemnika
pomiarowego).
Wskazówka:
Zalecenia dotycz
ą
ce
ś
rodków czyszcz
ą
cych znaj-
duj
ą
si
ę
w rozdziale „Akcesoria“.
Uwaga
Podczas eksploatacji bez
ś
rodka zmi
ę
kczaj
ą
cego podgrzewacz
przep
ł
ywowy mo
ż
e pokry
ć
si
ę
kamieniem.
Gdy zbiornik srodka zmi
ę
kczaj
ą
cego jest pusty, pulsuje lampka
ochrony przed osadzaniem kamienia (H)
Rys. 1 - poz. 8
Do zbiornika
ś
rodka zmi
ę
kczaj
ą
cego wla
ć
p
ł
yn zmi
ę
kczaj
ą
cy
RM 110 (2.780-001).
Niebezpiecze
ń
stwo
Niebezpiecze
ń
stwo oparzenia gor
ą
c
ą
wod
ą
! Po czyszczeniu go-
r
ą
c
ą
wod
ą
, w celu sch
ł
odzenia urz
ą
dzenie musi przez co naj-
mniej dwie minuty by
ć
zasilane zimn
ą
wod
ą
, przy czym pistolet
natryskowy musi by
ć
otwarty.
W przypadku pracy z u
ż
yciem gor
ą
cej wody ustawi
ć
regulator
temperatury (B) na najno
ż
sz
ą
temperatur
ę
.
U
ż
ywa
ć
urz
ą
dzenie przez przynajmniej 30 sekund bez
ś
rod-
ka czyszcz
ą
cego.
Ustawi
ć
wy
łą
cznik urz
ą
dzenia (A) w pozycji „0”.
Zamkn
ąć
dop
ł
yw wody.
W
łą
czy
ć
r
ę
czny pistolet natryskowy i poczeka
ć
a
ż
w urz
ą
dze-
niu nie b
ę
dzie ci
ś
nienia.
Pistolet natryskowy zabezpieczy
ć
zaczepem zabezpieczaj
ą
-
cym przed niezamierzonym otwarciem.
W przypadku d
ł
u
ż
szych przerw w eksploatacji lub gdy niemo
ż
li-
we jest przechowywanie w pomieszczeniach chronionych przed
mrozem, nale
ż
y podj
ąć
nast
ę
puj
ą
ce kroki (patrz rozdz. „Dogl
ą
d i
piel
ę
gnacja“, ust
ę
p „Ochrona przeciwmrozowa“):
Spu
ś
ci
ć
wod
ę
.
P
ł
ukanie urz
ą
dzenia
ś
rodkiem przeciwdzia
ł
aj
ą
cym zamarza-
niu.
Wy
łą
czy
ć
wy
łą
cznik g
ł
ówny i zabezpieczy
ć
wzgl. wyj
ąć
wtyczk
ę
Cekon.
Zamkn
ąć
dop
ł
yw gazu.
Uwaga
Niebezpiecze
ń
stwo zranienia i uszkodzenia! Zwróci
ć
uwag
ę
na
ci
ęż
ar urz
ą
dzenia przy jego przechowywaniu.
Uwaga
Niebezpiecze
ń
stwo zranienia i uszkodzenia! Zwróci
ć
uwag
ę
na
ci
ęż
ar urz
ą
dzenia w czasie transportu.
W trakcie transportu w pojazdach nale
ż
y urz
ą
dzenie zabez-
pieczy
ć
przed po
ś
lizgiem i przechyleniem zgodnie z obowi
ą
-
zuj
ą
cymi przepisami.
Dozowanie
ś
rodka czyszcz
ą
cego
Po
ł
o
ż
enie
0,5
1
8
Ilo
ść
ś
rodka czyszcz
ą
cego [l/h]
14...15 22...24
50
St
ęż
enie
ś
rodka czyszcz
ą
cego [%]
1,5
2,5
> 5
Nalewanie
ś
rodka zmi
ę
kczaj
ą
cego
Wy
łą
czenie z ruchu
Po pracy ze
ś
rodkiem czyszcz
ą
cym
Wy
łą
czanie urz
ą
dzenia
Wy
łą
czenie z eksploatacji
Przechowywanie
Transport
348
PL
-
7
Dane techniczne
HDS 9/16-4
ST Gas
HDS 9/16-4
ST Gas LPG
HDS 12/14-4
ST Gas
HDS 12/14-4
ST Gas LPG
1.251-108
1.251-109
1.251-110
1.251-111
Parametry robocze
Ci
ś
nienie robocze wody (z dysz
ą
standardow
ą
)
MPa (bar)
16 (160)
16 (160)
14 (140)
14 (140)
Maks. nadci
ś
nienie robocze (zawór bezpiecze
ń
stwa)
MPa (bar)
18,5 (185)
18,5 (185)
18,5 (185)
18,5 (185)
Ilo
ść
wody (regulacja bezstopniowa)
l/h (l/min)
500-1000 (8,3-
16,6)
500-1000 (8,3-
16,6)
600-1200 (10-
20)
600-1200 (10-
20)
Zasysanie
ś
rodka czyszcz
ą
cego (regulacja bezstopnio-
wa)
l/h (l/min)
0-50 (0-0,8)
0-50 (0-0,8)
0-60 (0-1)
0-60 (0-1)
Przy
łą
cze wody
Ilo
ść
doprowadzenia (min.)
l/h (l/min)
1100 (18,3)
1100 (18,3)
1300 (21,7)
1300 (21,7)
Ci
ś
nienie dop
ł
ywowe (min.)
MPa (bar)
0,1 (1)
0,1 (1)
0,1 (1)
0,1 (1)
Ci
ś
nienie dop
ł
ywowe (maks.)
MPa (bar)
0,6 (6)
0,6 (6)
0,6 (6)
0,6 (6)
Pod
łą
czenie do sieci
Rodzaj pr
ą
du
--
3N~
3N~
3N~
3N~
Cz
ę
stotliwo
ść
Hz
50
50
50
50
Napi
ę
cie
V
380-420
380-420
380-420
380-420
Pobór mocy
kW
6,4
6,4
7,5
7,5
Zabezpieczenie elektryczne (zw
ł
oczne)
A
16
16
20
20
Stopie
ń
ochrony
--
IPX5
IPX5
IPX5
IPX5
Klasa ochronno
ś
ci
--
I
I
I
I
Maksymalna dopuszczalna impedancja sieci
Ohm
(0,381+j
0,238)
(0,381+j
0,238)
--
--
Elektryczny przewód doprowadzaj
ą
cy
mm
2
5 x 2,5
5 x 2,5
5 x 2,5
5 x 2,5
Temperatura
Temperatura doprowadzenia (maks.)
°C
30
30
30
30
Maks. temperatura gor
ą
cej wody
°C
98
98
98
98
Maks. temperatura termostatu zabezpieczaj
ą
cego
°C
110
110
110
110
Zwi
ę
kszenie temperatury przy maks. przep
ł
ywie wody
°C
60-65
60-65
60-65
60-65
Moc grzewcza brutto
kW
75
75
95
95
Ci
ą
g komina
kPa
0,01-0,04
0,01-0,04
0,01-0,04
0,01-0,04
Warto
ś
ci przy
łą
cza gazowego
Gaz ziemny E (G 20)
m
3
/h
7,2
--
9,8
--
Gaz ziemny LL (G 25)
m
3
/h
8,2
--
11,4
--
Ci
ś
nienie znamionowe przy
łą
cza (gaz ziemny)
kPa
1,8-5
--
1,8-5
--
Propan
kg/h
--
5,7
--
7,2
Ci
ś
nienie znamionowe przy
łą
cza (propan)
kPa
--
5-6
--
5-6
Dane
ś
rodowiskowe
Stopie
ń
wykorzystania normy
%
97
97
97
97
Wspó
ł
czynnik emisji normowej NO
X
(gaz ziemny G 25) mg/kWh
< 40
--
< 40
--
Wspó
ł
czynnik emisji normowej CO (gaz ziemny G 25)
mg/kWh
< 40
--
< 40
--
Warto
ś
ci do pomiaru komuna
Przydatno
ść
na nadci
ś
nienie (min.)
kPa
0,05
0,05
0,05
0,05
Zapotrzebowanie na ci
ą
g
kPa
0
0
0
0
Przep
ł
yw masy spalin - pe
ł
ne obci
ąż
enie
kg/h
130
130
166
166
CO
2
(gaz ziemny)
%
9,5
--
9,5
--
CO
2
(propan)
%
--
12
--
12
Temperatura spalin maks./min.
°C
190/150
190/150
170/130
170/130
Powietrze do spalania/Dop
ł
yw powietrza
Maks. d
ł
ugo
ść
: 10 m z dwoma
ł
ukami 90° (przekrój minimalny 100 mm).
Zgodnie z miejscowymi przepisami z pomieszczenia instalacyjnego albo
ś
wie
ż
ego powietrza na zewn
ą
trz.
Upust kondensatu
Upust kondensatu (maks.)
l/h
4 (poprzez sy-
fon do kanali-
zacji)
4 (poprzez sy-
fon do kanali-
zacji)
4 (poprzez sy-
fon do kanali-
zacji)
4 (poprzez sy-
fon do kanali-
zacji)
Przy
łą
cze
DN
40 (HTR)
40 (HTR)
40 (HTR)
40 (HTR)
Minimalny s
ł
up wody, syfon
mm
300
300
300
300
349
PL
-
8
Homologacja EN 60335-2-79
Homologacja wed
ł
ug Gas Appliance Directive (90/396/
EEC)
--
Gastec QA
Low NO
X
Gastec QA
Gastec QA
Low NO
X
Gastec QA
Kategoria urz
ą
dzenia Europa
--
I 2E (r), I
2ELL, I 2H, I
2L, I2 HE
I 3P
I 2E (r), I
2ELL, I 2H, I
2L, I2 HE
I 3P
Typ urz
ą
dzenia
--
B23, C33,
C43, C53
B23, C33,
C43, C53
B23, C33,
C43, C53
B23, C33,
C43, C53
Nr ident. produktu CE
--
PIN 0063 BN
3880
PIN 0063 BN
3880
PIN 0063 BN
3880
PIN 0063 BN
3880
Wymiary i ci
ęż
ar
D
ł
ugo
ść
mm
1124
1124
1124
1124
szeroko
ść
mm
558
558
558
558
wysoko
ść
mm
966
966
1076
1076
Typowy ci
ęż
ar roboczy
kg
193,5
193,5
209
209
Warto
ś
ci okre
ś
lone zgodnie z EN 60355-2-79
Emisja ha
ł
asu
Poziom ci
ś
nienie akustycznego L
pA
dB(A)
74
74
76
76
Niepewno
ść
pomiaru K
pA
dB(A)
1
1
1
1
Drgania przenoszone przez ko
ń
czyny górne
R
ę
czny pistolet natryskowy
m/s
2
2,2
2,2
2,3
2,3
Lanca
m/s
2
1,8
1,8
2,1
2,1
Niepewno
ść
pomiaru K
m/s
2
1,0
1,0
1,0
1,0
HDS 9/16-4
ST Gas
HDS 9/16-4
ST Gas LPG
HDS 12/14-4
ST Gas
HDS 12/14-4
ST Gas LPG
Arkusz z wymiarami
350
PL
-
9
Niebezpiecze
ń
stwo
Niebezpiecze
ń
stwo zranienia! Przed wszelkimi pracami konser-
wacyjnymi i naprawczymi nale
ż
y wy
łą
cza
ć
wy
łą
cznik g
ł
ówny
wzgl. wyj
ąć
wtyczk
ę
Cekon.
Czyszczenie i konserwacja
Plan konserwacji
Termin
Zaj
ę
cie
Dane podzespo
ł
y Wykonanie
przez
kogo
codziennie
Sprawdzi
ć
pisto-
let natryskowy
R
ę
czny pistolet natryskowy
Sprawdzi
ć
, czy pistolet natryskowy szczelnie si
ę
zamyka. Sprawdzi
ć
zabezpieczenie przed nieza-
mierzonym u
ż
yciem. Wymieni
ć
uszkodzony pi-
stolet natryskowy.
Obs
ł
uguj
ą
cy
Sprawdzi
ć
w
ęż
e
wysokoci
ś
nie-
niowe
Przewody wyj
ś
ciowe, we
ż
e do
urz
ą
dzenia roboczego
Sprawdzi
ć
w
ęż
e pod k
ą
tem uszkodze
ń
. Ntych-
miast wymieni
ć
uszkodzone w
ęż
e. Zagro
ż
enie
wypadkiem!
Obs
ł
uguj
ą
cy
Sprawdzi
ć
prze-
wód zasilaj
ą
cy z
wtyczk
ą
siecio-
w
ą
Przy
łą
cze elektryczne z wtycz-
k
ą
/gniazdkiem
Sprawdzi
ć
przewód zasilaj
ą
cy z wtyczk
ą
siecio-
w
ą
pod k
ą
tem uszkodze
ń
. W przypadku uszko-
dzenia przewodu zasilaj
ą
cego niezw
ł
ocznie
zleci
ć
jego wymian
ę
autoryzowanemu serwisowi
lub elektrykowi.
Obs
ł
uguj
ą
cy
Tygodniowo lub
po up
ł
ywie 40 ro-
boczogodzin
Sprawdzi
ć
stan
oleju
Zbiornik olejowy na pompie
Je
ż
eli olej staje si
ę
mleczny, nale
ż
go wymieni
ć
. Obs
ł
uguj
ą
cy
Sprawdzi
ć
po-
ziom oleju
Zbiornik olejowy na pompie
Sprawdzi
ć
poziom oleju w pompie. W razie po-
trzeby dola
ć
olej (nr katalogowy 6.288-016).
Obs
ł
uguj
ą
cy
Oczy
ś
ci
ć
sitko
Sito na wej
ś
ciu wody
Patrz fragment "Czyszczenie sit".
Obs
ł
uguj
ą
cy
Po 200 roboczo-
godzinach lub raz
w miesi
ą
cu
Sprawdzi
ć
pom-
p
ę
Pompa wysokoci
ś
nieniowa
Sprawdzi
ć
szczelno
ść
pompy. W przypadku wi
ę
-
cej ni
ż
3 kropli na minut
ę
wezwa
ć
serwis.
Obs
ł
uguj
ą
cy
Sprawdzi
ć
, czy
nie ma osadów
wewn
ą
trz.
ca
ł
e urz
ą
dzenie W
łą
czy
ć
urz
ą
dzenie z rurk
ą
strumieniow
ą
bez
dyszy wysokoci
ś
nieniowej. Je
ż
eli ci
ś
nienie robo-
cze wzrasta na manometrze urz
ą
dzenia powy
ż
ej
3 MPa, nale
ż
y odkamieni
ć
urz
ą
zdenie. To samo
obowi
ą
zuje, gdy podczas pracy bez przewodu
wysokiego ci
ś
nienia (woda wyp
ł
ywa swobodnie
z wyj
ś
cia wysokiego ci
ś
nienia) zostanie stwier-
dzone ci
ś
nienie robocze powy
ż
ej 0,7–1 MPa.
Obs
ł
uguj
ą
cy
z przeszkole-
niem w za-
kresie
odkamienia-
nia
Oczy
ś
ci
ć
sitko
Sitko w zabezpieczeniu przed
prac
ą
na sucho
Patrz fragment "Czyszczenie sit".
Obs
ł
uguj
ą
cy
po 500-700 godzi-
nach roboczych
Wymiana
Zapalnik elektryczny, elektroda
jonizacyjna
Odnowi
ć
zapalnik elektryczny wzgl. elektrod
ę
jo-
nizacyjn
ą
.
Serwis firmy
Raz na pó
ł
roku
lub po up
ł
ywie
1000 roboczogo-
dzin
Wymiana oleju
Pompa wysokoci
ś
nieniowa
Spu
ś
ci
ć
olej. Dola
ć
1 l oleju (nr katalogowy
6.288-016). Kontrolowa
ć
poziom w zbiorniku ole-
jowym.
Obs
ł
uguj
ą
cy
sprawdzi
ć
,
oczy
ś
ci
ć
ca
ł
e urz
ą
dzenie Kontrola
wizualna
urz
ą
dzenia, skontrolowa
ć
z
łą
-
cza wysokoci
ś
nieniowe pod wzgl. szczelno
ś
ci,
sprawdzi
ć
zawór przep
ł
ywowy pod wzgl. szczel-
no
ś
ci, sprawdzi
ć
zbiornik ci
ś
nieniowy, usun
ąć
kamie
ń
z w
ęż
ownicy, oczy
ś
ci
ć
/ odnowi
ć
elektro-
d
ę
jonizacyjn
ą
, ustawi
ć
palnik.
Serwis firmy
Wymieni
ć
w
ąż
W
ąż
do wy
łą
cznika ci
ś
nienio-
wego spalin
Odnowi
ć
w
ąż
.
Serwis firmy
raz w roku
Kontrola bezpie-
cze
ń
stwa
ca
ł
e urz
ą
dzenie Przeprowadzi
ć
kontrol
ę
bezpiecze
ń
stwa zgod-
nie z w
ł
a
ś
ciwymi, krajowymi przepisami dotycz
ą
-
cymi strumienic cieczowych.
Ekspert
351
PL
-
10
Z w
ł
a
ś
ciwym biurem sprzeda
ż
y firmy Kärcher mo
ż
na podpisa
ć
umow
ę
dotycz
ą
c
ą
konserwacji urz
ą
dzenia.
Rysunek 1 - poz. 3
Zamkn
ąć
dop
ł
yw wody.
Odkr
ę
ci
ć
od urz
ą
dzenia w
ąż
doprowadzaj
ą
cy wod
ę
.
Wysun
ąć
sitko
ś
rubokr
ę
tem z przy
łą
cza.
Oczy
ś
ci
ć
sitko
Monta
ż
w odwrotnej kolejno
ś
ci.
Zdj
ąć
os
ł
ony.
Odkr
ę
ci
ć
k
ą
townik bloku zabezpieczaj
ą
cego.
Wkr
ę
ci
ć
ś
rub
ę
M8x30 w sitko.
Wyci
ą
gn
ąć
ś
rub
ę
i sitko szczypcami.
Oczy
ś
ci
ć
sitko
Monta
ż
w odwrotnej kolejno
ś
ci.
W przypadku z
ł
ogów w rurach wzrasta opór strumienia, co mo
ż
e
doprowadzi
ć
do wyzwolenia wy
łą
cznika ci
ś
nieniowego.
Niebezpiecze
ń
stwo
Niebezpiecze
ń
stwo wybuchu przez gazy palne! Podczas usuwa-
nia kamienia palenie tytoniu jest wzbronione. Zadba
ć
o dobr
ą
wentylacj
ę
.
Niebezpiecze
ń
stwo
Niebezpiecze
ń
stwo poparzenia kwasami! Zak
ł
ada
ć
okulary
ochronne i r
ę
kawice ochronne.
Dousuwania kamienia zgodnie z przepisami mo
ż
na stosowa
ć
tyl-
ko atestowane
ś
rodki do rozpuszczania kamienia opatrzone zna-
kiem jako
ś
ci.
–
RM 100 (nr katalogowy 6.287-008) rozpuszcza kamie
ń
i pro-
ste zwi
ą
zki kamienia i resztek
ś
rodka czyszcz
ą
cego.
–
RM 101 (nr katalogowy 6.287-013) rozpuszcza osady, któ-
rych nie mo
ż
e usun
ąć
RM 100.
Nape
ł
ni
ć
zbiornik 20 litrowy 15 l wody.
Doda
ć
do tego 1 litr odkamieniacza.
W
ąż
wodny pod
łą
czy
ć
bezpo
ś
rednio do g
ł
owicy pompy i wol-
ny koniec w
ł
o
ż
y
ć
do zbiornika.
W
ł
o
ż
y
ć
pod
łą
czon
ą
rurk
ę
strumieniow
ą
bez dyszy do zbiornika.
Otworzy
ć
pistolet natryskowy i nie zamyka
ć
podczas usuwa-
nia kamienia.
W
łą
czy
ć
w
łą
cznik urz
ą
dzenia na „Palnik w
ł
.“, doosiagniecia
temp. ok. 40 °C.
Wy
łą
czy
ć
urz
ą
dzenie i pozostawi
ć
na 20 minut. Pistolet natry-
skowy musi pozosta
ć
otwarty.
Nast
ę
pnie ca
ł
kowicie odpompowa
ć
urz
ą
dzenie.
Wskazówka:
Zalecamy u
ż
ycie roztworu alkalicznego (np. RM
81) i przepompowanie go przez zbiornik
ś
rodka czyszcz
ą
cego
przez urz
ą
dzenie w celu ochrony antykorozyjnej oraz neutraliza-
cji pozosta
ł
o
ś
ci kwasów.
Urz
ą
dzenie nale
ż
y odstawia
ć
w pomieszczeniach chronionych
przed mrozem. W przypadku zagro
ż
enia mrozem, np. przy insta-
lacjach w obszarze zewn
ę
trznym, urz
ą
dzenie nale
ż
y opró
ż
ni
ć
i
przep
ł
uka
ć
ś
rodkiem przeciwdzia
ł
aj
ą
cym zamarzaniu.
Odkr
ę
ci
ć
w
ąż
doprowadzaj
ą
cy wod
ę
i w
ąż
wysokoci
ś
nienio-
wy.
W
łą
czy
ć
urz
ą
dzenie na maks. 1 minut
ę
, aby pompa i przewo-
dy zosta
ł
y opró
ż
nione z wody.
Odkr
ę
ci
ć
przewód zasilaj
ą
cy od dna kot
ł
a i opró
ż
ni
ć
w
ęż
ow-
nic
ę
grzejn
ą
.
Wskazówka:
Przy u
ż
yciu stosowa
ć
si
ę
do wskazówek produ-
centa
ś
rodka przeciwdzia
ł
aj
ą
cego zamarzaniu.
Wla
ć
do zbiornika p
ł
ywakowego do pe
ł
na
ś
rodek przeciw-
dzia
ł
aj
ą
cy zamarzaniu dost
ę
pny w handlu.
Zbiornik odbieraj
ą
cy ustawi
ć
pod wyj
ś
ciem wysokiego ci
ś
nie-
nia.
W
łą
czy
ć
urz
ą
dzenie, które powinno pracowa
ć
, a
ż
za
łą
czy si
ę
zabezpieczenie przed prac
ą
na sucho zbiornik ap
ł
ywakowe-
go i wy
łą
czy urz
ą
dzenie.
Dno kot
ł
a i syfon wype
ł
ni
ć
ś
rodkiem przeciw zamarzaniu.
W ten sposób zapewniona jest w pewnym stopniu ochrona anty-
korozyjna.
Umowa serwisowa
Oczy
ś
ci
ć
sitka
Sito na wej
ś
ciu wody
Sitko w zabezpieczeniu przed prac
ą
na sucho
Usuwanie kamienia
Wykonanie
2.
1.
Ochrona przeciwmrozowa
Spuszczanie wody
P
ł
ukanie urz
ą
dzenia
ś
rodkiem przeciwdzia
ł
aj
ą
cym zamarza-
niu
352
PL
-
11
Niebezpiecze
ń
stwo
Niebezpiecze
ń
stwo zranienia! Przed wszelkimi pracami konser-
wacyjnymi i naprawczymi nale
ż
y wy
łą
cza
ć
wy
łą
cznik g
ł
ówny
wzgl. wyj
ąć
wtyczk
ę
Cekon.
*
Wskazówka
Uruchomi
ć
przycisk odblokowuj
ą
cy termostat spalinowy (J), aby
odblokowa
ć
kontrolk
ę
p
ł
omienia.
Usuwanie usterek
Usterka
Mo
ż
liwa przyczyna
Usuwanie usterek
przez kogo
Urz
ą
dzenie nie dzia
ł
a, kon-
trolka gotowo
ś
ci do pracy (F)
nie
ś
wieci si
ę
Brak napi
ę
cia w urz
ą
dzeniu.
Sprawdzi
ć
sie
ć
elektryczn
ą
.
Elektryk
Wy
łą
cznik bezpiecze
ń
stwa dzia
ł
a. Na krótko wy
łą
czy
ć
i nast
ę
pnie ponownie
w
łą
czy
ć
urz
ą
dzenie za pomoc
ą
w
łą
cznika
urz
ą
dzenia.
Obs
ł
uguj
ą
cy
Przepalony bezpiecznik w obwo-
dzie sterowania (F3). Bezpiecznik
jest zawarty w transformatorze ste-
rowania (T2).
W
ł
o
ż
y
ć
nowy bezpiecznik, przy ponownym
przepaleniu usun
ąć
przyczyn
ę
przeci
ąż
enia.
Serwis firmy
Wy
łą
cznik ci
ś
nieniowy HD (wyso-
kiego ci
ś
nienia) lub ND (niskiego
ci
ś
nienia) uszkodzony.
Sprawdzi
ć
wy
łą
cznik ci
ś
nieniowy.
Serwis firmy
Modu
ł
Timer (A1) uszkodzony.
Sprawdzi
ć
przy
łą
cza, w razie konieczno
ś
ci
wymieni
ć
.
Serwis firmy
+ kontrolka przegrzania silni-
ka (G)
ś
wieci si
ę
Termoczujnik (WS) w silniku lub
prze
łą
cznik ochronny pr
ą
du nad-
miarowego (F1) wyzwolony.
Usun
ąć
przyczyn
ę
przeci
ą
zenia.
Serwis firmy
Zabezpieczenie przed prac
ą
na
sucho w zbiorniku p
ł
ywakowym
w
łą
czy
ł
o si
ę
.
Usun
ąć
brak wody.
Obs
ł
uguj
ą
cy
Palnik nie zapala si
ę
lub p
ł
o-
mie
ń
ga
ś
nie podczas pracy
Regulator temperatury (B) usta-
wiony za nisko.
Ustawi
ć
regulator temperatury wy
ż
ej.
Obs
ł
uguj
ą
cy
W
łą
cznik urz
ą
dzenia nie jest usta-
wiony na palnik.
W
łą
czy
ć
palnik.
Obs
ł
uguj
ą
cy
Zabezpieczenie przed prac
ą
na
sucho bloku zabezpieczaj
ą
cego
wy
łą
czy
ł
o si
ę
.
Zapewni
ć
wystarczaj
ą
cy dop
ł
yw wody.
Sprawdzi
ć
szczelno
ść
urz
ą
dzenia.
Obs
ł
uguj
ą
cy
Kurek gazu zamkni
ę
ty.
Kurek gazu otwarty.
Obs
ł
uguj
ą
cy
Uruchamia si
ę
ogranicznik tempe-
ratury maksymalnej w wyj
ś
ciu
wody (> 110°C).
Wych
ł
odzi
ć
kocio
ł
i urz
ą
dzenie w
łą
czy
ć
po-
nownie.
Obs
ł
uguj
ą
cy
Sprawdzi
ć
regulator temperatury.
Serwis firmy
Ś
wieci si
ę
lampka kontrolna
termostatu spalinowego (K).
Brak dop
ł
ywu gazu.
Otworzy
ć
dop
ł
yw gazu.
Obs
ł
uguj
ą
cy
Zapchany dop
ł
yw powietrza zasila-
j
ą
cego lub powietrza odlotowego.
Sprawdzi
ć
system wentylacji i wyci
ą
gu spa-
lin.
Obs
ł
uguj
ą
cy
Zbyt gor
ą
ce dno kot
ł
a. Uruchomi
ł
si
ę
ogranicznik temperatury mak-
symalnej w dnie kot
ł
a (> 80°C).
Brak wody kondensacyjnej na dnie
kot
ł
a.
Nape
ł
ni
ć
5 litrów wody przy u
ż
yciu kró
ć
ca po-
miaru spalin.
Obs
ł
uguj
ą
cy
Automat opalania gazem ustawio-
ny na usterk
ę
.
Nacisn
ąć
przycisk odblokowuj
ą
cy przeka
ź
nik
gazowy (I).
Obs
ł
uguj
ą
cy
Brak zap
ł
onu. *
Sprawdzi
ć
odst
ę
p elektrod w automacie opa-
lania gazem i przewodzie zap
ł
onowym. Po-
prawi
ć
odst
ę
p albo wymieni
ć
uszkodzone
cz
ęś
ci. W razie konieczno
ś
ci wyczy
ś
ci
ć
.
Serwis firmy
Uszkodzona dmuchawa albo platy-
na regulacji pr
ę
dko
ś
ci obrotowej. *
Skontrolowa
ć
dmuchaw
ę
i platyn
ę
regulacji
pr
ę
dko
ś
ci obrotowej. Skontrolowa
ć
wtyczk
ę
i
przewód zasilaj
ą
cy. Wymieni
ć
uszkodzone
cz
ęś
ci.
Serwis firmy
353
PL
-
12
Usterka
Mo
ż
liwa przyczyna
Usuwanie usterek
przez kogo
Ś
wieci si
ę
lampka kontrolna
termostatu spalinowego (K).
Ogranicznik temperatury spalin
wyzwolony.
Otworzy
ć
pistolet natryskowy, a
ż
do och
ł
o-
dzenia urz
ą
dzenia. Wy
łą
czy
ć
i w
łą
czy
ć
urz
ą
-
dzenie w polu obs
ł
ugi, aby odblokowa
ć
ogranicznik temperatury spalin. Je
ż
eli uster-
ka si
ę
powtórzy, wezwa
ć
serwis.
Obs
ł
uguj
ą
cy
Kontrolka ochrony przed
osadzaniem kamienia (H)
ś
wieci si
ę
Ś
rodek zmi
ę
kczaj
ą
cy zu
ż
yty.
Nala
ć
ś
rodka zmi
ę
kczaj
ą
cego. Obs
ł
uguj
ą
cy
Niewystarczaj
ą
ce t
ł
oczenie
ś
rodka czyszcz
ą
cego lub
jego brak
Zawór dozuj
ą
cy w po
ł
o
ż
eniu „0“.
Ustawianie zaworu dozuj
ą
cego
ś
rodek
czyszcz
ą
cy
Obs
ł
uguj
ą
cy
Filtr
ś
rodka czyszcz
ą
cego zapcha-
ny lub pusty zbiornik.
Oczy
ś
ci
ć
lub dola
ć
.
Obs
ł
uguj
ą
cy
W
ęż
e ss
ą
ce, zawór dozuj
ą
cy i elek-
tromagnetyczny
ś
rodka czyszcz
ą
ce-
go zapchany lub nieszczelny.
Sprawdzi
ć
, oczy
ś
ci
ć
.
Obs
ł
uguj
ą
cy
Elektronika lub zawór elektromag-
netyczny uszkodzony.
Wymieni
ć
Serwis firmy
Urz
ą
dzenie nie wytwarza ca
ł
-
kowicie ci
ś
nienia
Przep
ł
uka
ć
dysz
ę
.
Wymieni
ć
dysz
ę
.
Obs
ł
uguj
ą
cy
Zbiornik
ś
rodka czyszcz
ą
cego pu-
sty.
Uzupe
ł
ni
ć
ś
rodek czyszcz
ą
cy.
Obs
ł
uguj
ą
cy
Niewystarczaj
ą
ca ilo
ść
wody.
Zadba
ć
o wystarczaj
ą
c
ą
ilo
ść
wody.
Obs
ł
uguj
ą
cy
Sitko na wej
ś
ciu wody zapchane. Sprawdzi
ć
, wymontowa
ć
sitko i oczy
ś
ci
ć
.
Obs
ł
uguj
ą
cy
Zawór dozuj
ą
cy
ś
rodka czyszcz
ą
-
cego nieszczelny.
Sprawdzi
ć
i uszczelni
ć
.
Obs
ł
uguj
ą
cy
Zawór dozuj
ą
cy
ś
rodka czyszcz
ą
-
cego nieszczelny.
Wymieni
ć
Obs
ł
uguj
ą
cy
Zawór p
ł
ywakowy zakleszczy
ł
si
ę
. Sprawdzi
ć
dzia
ł
anie.
Obs
ł
uguj
ą
cy
Zawór zabezpieczaj
ą
cy nieszczel-
ny.
Sprawdzi
ć
ustawienia, w razie potrzeby za
ł
o-
ż
y
ć
nowe uszczelki.
Serwis firmy
Zawór reguluj
ą
cy przep
ł
yw in-
eszczelny lub ustawiony za nisko.
Sprawdzi
ć
cz
ęś
ci zaworów, wymieni
ć
, je
ś
li
s
ą
uszkodzone, oczy
ś
ci
ć
, je
ś
li s
ą
zabrudzo-
ne.
Serwis firmy
Zawór elektromagnetyczny do
zwalinania ci
ś
nienia uszkodzony.
Wymieni
ć
zawór elektromagnetyczny.
Serwis firmy
Pompa wysokoci
ś
ieniowa
stuka, silne wahania mano-
metru
Uszkodzony amortyzator waha
ń
.
Wymieni
ć
amortyzator waha
ń
.
Serwis firmy
Pompa wodna zasysa ma
łą
ilo
ść
powietrza.
Sprawdzi
ć
system ss
ą
cy i usun
ąć
nieszczel-
ni
ś
ci.
Obs
ł
uguj
ą
cy
Przy otwartym r
ę
cznym pi-
stolecie natryskowym urz
ą
-
dzenia stale wy
łą
cza si
ę
i
w
łą
cza
Dysza rurki strumieniowej zapcha-
na.
Sprawdzi
ć
, oczy
ś
ci
ć
.
Obs
ł
uguj
ą
cy
Urz
ą
dzenie jest pokryte kamie-
niem.
Patrz fragment „Usuwanie kamienia“.
Obs
ł
uguj
ą
cy
Punkt w
łą
czania prze
łą
cznika nad-
miarowego przestawi
ł
si
ę
.
Ponownie ustawi
ć
prze
łą
cznik nadmiarowy. Serwis firmy
Sitko w zabezpieczeniu przed pra-
c
ą
na sucho zapchane.
Sprawdzi
ć
, wymontowa
ć
sitko i oczy
ś
ci
ć
.
Obs
ł
uguj
ą
cy
Urz
ą
dzenie nie wy
łą
cza si
ę
przy zamkni
ę
tym pistolecie
natryskowym.
Pompa nie jest ca
ł
kowicie odpo-
wietrzona.
Ustawi
ć
prze
łą
cznik urz
ą
dzenia na „0“ i po-
ci
ą
gn
ąć
pistolet natryskowy, a
ż
z dyszy nie
b
ę
dzie wycieka
ć
ż
adna ciecz. Ponownie w
łą
-
czy
ć
urz
ą
dzenie. Powtórzy
ć
t
ę
procedur
ę
, a
ż
zostanie osi
ą
gni
ę
te pe
ł
ne ci
ś
nienie robocze.
Obs
ł
uguj
ą
cy
Zawór bezpiecze
ń
stwa lub
uszczelka zaworu bezpiecze
ń
stwa
uszkodzona.
Wymieni
ć
zawór bezpiecze
ń
stwa lub
uszczelk
ę
.
Serwis firmy
Wy
łą
cznik ci
ś
nieniowy prze
łą
czni-
ka nadmiarowego.
Skontrolowa
ć
wy
łą
cznik ci
ś
nieniowy prze-
łą
cznika nadmiarowego.
Serwis firmy
354
PL
-
13
Ś
rodki czyszcz
ą
ce u
ł
atwiaj
ą
czyszczenie. W tabeli przedstawio-
no wybór
ś
rodków czyszcz
ą
cych. Przed u
ż
yciem
ś
rodków czysz-
cz
ą
cych nale
ż
y koniecznie przestrzega
ć
wskazówek zawartych
na opakowaniu produktu.
* = uzycie tylko przez krótki czas, metoda dwustopniowa, sp
ł
uki-
wanie wod
ą
** = ASF =
ś
rodek str
ą
caj
ą
cy
*** = do wst
ę
pnego spryskania nadaje si
ę
Foam-Star 2000
Akcesoria
Ś
rodek czyszcz
ą
cy
Zastosowanie
Zabrudzenie, rodzaj zastosowa-
nia
Ś
rodek czyszcz
ą
cy
poziom pH-Wert (ok.)
1 %-owy roztwór w
wodzie
przemys
ł
samochodowy,
stacje benzynowe, spe-
dycja, park
ś
rodków prze-
wozowych
py
ł
, zanieczyszczenia komunikacji
drogowej, oleje mineralne (na po-
wierzchniach lakierowanych)
RM 55 ASF **
8
RM 22/80 proszek ASF
12/10
RM 81 ASF
9
RM 803 ASF
10
RM 806 ASF
11
Konserwacja pojazdów
RM 42 zimny wosk do wysokoci
ś
nieniowych
urz
ą
dze
ń
czyszcz
ą
cych
8
RM 820 gor
ą
cy wosk ASF
7
RM 821 wosk w aerozolu ASF
6
RM 824-Super wosk per
ł
owy ASF
7
RM 44
ś
rodek do czyszczenia felg w
ż
elu
9
Przemys
ł
obróbki metali oleje, smary, py
ł
i podobne zanie-
czyszczenia
RM 22 proszek ASF
12
RM 55 ASF
8
RM 81 ASF
9
RM 803 ASF
10
RM 806 ASF
12
RM 31 ASF (silne zabrudzenie)
12
RM 39 p
ł
yn (z ochron
ą
antykorozyjn
ą
)
9
Zak
ł
ady przetwórstwa
spo
ż
ywczego
Zabrudzenia - od
ł
agodnych do
ś
rednich, t
ł
uszcze/oleje, du
ż
e po-
wierzchnie
RM 55 ASF
8
RM 81 ASF
9
RM 882 piana w
ż
elu OSC
12
RM 58 ASF (pianka czyszcz
ą
ca)
9
RM 31 ASF *
12
Ż
ywica
RM 33 *
13
Czyszczenie i dezynfekcja
RM 732
9
Dezynfekcja
RM 735
7...8
Kamie
ń
, osady mineralne
RM 25 ASF *
2
RM 59 ASF (pianka czyszcz
ą
ca)
2
Obszar sanitarny ***
kamie
ń
, kamie
ń
moczowy, myd
ł
a
itp
RM 25 ASF * (czyszczenie podstawowe)
2
RM 59 ASF (pianka czyszcz
ą
ca)
2
RM 68 ASF
5
355
PL

