Karcher Nettoyeur haute pression HDS 9-16-4 ST Gaz LPG: !
!: Karcher Nettoyeur haute pression HDS 9-16-4 ST Gaz LPG
-
14
–
Ohrievacie zariadenie prístroja je spa
ľ
ovacie zariadenie. Pri
inštalácii je nutné dodržiavat' miestne platné predpisy.
–
Používat' len prekontrolované a osved
č
ené komíny alebo dy-
movody.
–
Inštaláciu plynových potrubí ako aj pripojenie zariadení na
plyn môže vykonáva
ť
len odborná firma s oprávnením na vy-
konávanie plynárenských a vodárenských
č
inností.
–
Nastavenia a opravy plynového horáka môžu vykonáva
ť
len
montéri vyškolení oddelením služieb zákazníkom firmy Kär-
cher.
–
V plynových potrubiach, ktoré musia by
ť
prevedené s naj-
menším menovitým priemerom 1 palec, je nutné použi
ť
ma-
nometer a uzatvárací ventil.
–
Na základe vibrácií spôsobených vysokotlakovým
č
erpadlom
sa musí vytvori
ť
spojenie medzi pevným plynovým potrubím
a zariadením pomocou pružnej hadice na plyn.
–
U plynových potrubí s viac ako 10 m d
ĺ
žkou musí by
ť
meno-
vitý priemer 1 1/2 palca alebo vä
č
ší. Plynová prípojka na za-
riadení má menovitý priemer 1 palec.
Nebezpe
č
enstvo
Pri naskrutkovaní pružnej plynovej hadice na horák sa musí drža
ť
spojovacia objímka pomocou vidlicového k
ľ
ú
č
a SW 36. Spojova-
cia objímka sa nesmie otá
č
a
ť
vo
č
i telesu horáka. Utesnenie zá-
vitovej prípojky je možné uskuto
č
ni
ť
pomocou tesniacich
prostriedkov schválených DVGW. Po pripojení sa musí na spoje-
nom mieste skontrolova
ť
tesnos
ť
pomocou spreja na vyh
ľ
adáva-
nie netesností schváleného DVGW.
Priemer plynového potrubia sa musí vypo
č
íta
ť
pod
ľ
a DVGW
TRGI 1986 popr. TRF 1996. Menovitý priemer prípojok zariade-
nia nie je automaticky menovitým priemerom potrubia. Dimenzo-
vanie a inštalácia plynového potrubia sa musí vykona
ť
pod
ľ
a
príslušných noriem a predpisov.
–
Každé zariadenie musí by
ť
pripojené ku vlastnému komínu.
–
Odvádzanie spalín sa musí uskuto
č
ni
ť
pod
ľ
a miestnych pred-
pisov a so súhlasom príslušného majstra kominára.
Plynové zariadenie bez prúdovej poistky, u ktorého okolo všet-
kých dielov na prechode spalín pod pretlakom prúdi vzduch na
spa
ľ
ovanie. Inštalácia B23 otvára možnos
ť
pripoji
ť
zariadenie na
pôvodný komín pod
ľ
a DIN 18160 a prevádzkova
ť
ho v závislosti
od vzduchu v okolitom priestore. Predpokladom preto je, že ko-
mín je vhodný na pripojenie spa
ľ
ovacích zariadení (napr. ak bol
komín obnovený použitím vnútornej rúry z uiš
ľ
achtilej ocele).
Plynové zariadenie s prívodom vzduchu na spa
ľ
ovanie a odvá-
dzaním spalín zvisle nad strechu. Ústia sa nachádzajú blízko
ved
ľ
a seba v rovnakej oblasti tlaku.
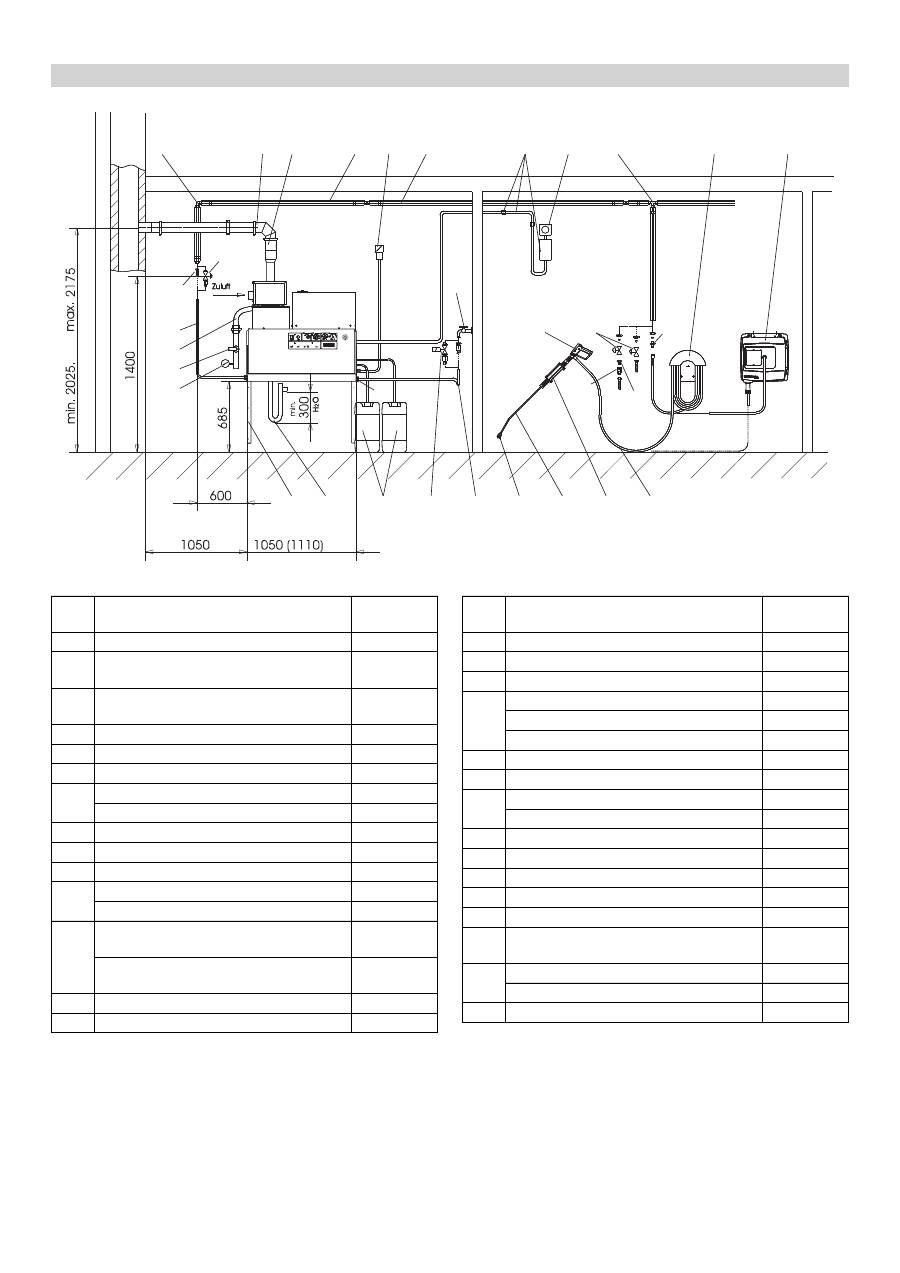
Inštalácia zariadenia
Len poverení odborní pracovníci!
Všeobecne
Plyn všeobecne
Plynové potrubia
Prívod vzduchu a odvádzanie spalín
!
Plynové zariadenie so zariadením na odvádzanie spalín, kto-
ré odoberá vzduch na spa
ľ
ovanie z miesta inštalácie
Typ B23
Plynové zariadenie so zariadením na odvádzanie spalín, kto-
ré odoberá vzduch na spa
ľ
ovanie cez uzavretý systém z vo
ľ
-
ného priestoru
Typ C33
376
SK
-
15
Plyanové zariadenie s prívodom vzduchu na spa
ľ
ovanie a odvá-
dzaním spalín pre pripojenie na systém vzduchu a spalín.
Plynové zariadenie s oddeleným prívodom vzduchu na spa
ľ
ova-
nie a odvádzaním spalín. Ústia sa nachádzajú v rozli
č
ných ob-
lastiach tlaku.
Upozornenie:
Aby sa dosiahli predpísané hodnoty spa
ľ
ovania,
musí sa dodrža
ť
ť
ah komína uvedený v technických údajoch.
Vedenie kondenzátu musí by
ť
pripojené priamo na prípojku kon-
denzátu sifónom. Výška sifónu musí by
ť
30 cm. Sifón nie je sú-
č
as
ť
ou dodávky. Vedenie kondenzátu nesmie by
ť
pevne spojené
s kanalizáciou. Kondenzát musí vyteka
ť
vo
ľ
ne do lievika alebo
neutraliza
č
nej nádrže.
–
Pred montážou je nutné skontrolovat' stenu,
č
i má dostato
č
nú
nosnot'. Do betónu je vhodný dodaný upev
ň
ovací materiál.
Na dutých, tehlových a betónových stenách je vhodné použí-
vat' hmoždínky a skrutky, napr. zastre
ľ
ovacie kotvy (schému
otvorov nájdete na rozmerovom ná
č
rtku).
–
Obrázok 3 - poz. 19 a 25
Zariadenie sa nesmie pevne pripoji
ť
ku vodovodnej sieti ale-
bo vysokotlakovému potrubiu. Bezpodmiene
č
ne nutné je na-
montova
ť
spojovacie hadice.
–
Obrázok 3 - A
Medzi vodovodnú sie
ť
a spojovaciu hadicu je nutné vloži
ť
uzatvárací kohút.
Pri montáži vysokotlakových potrubí je nutné dodržiava
ť
prísluš-
né národné predpisy zákonodarcu.
–
Pokles tlaku v potrubí musí byt' pod 1,5 MPa.
–
Hotové potrubie sa musí skontrolova
ť
s 32 MPa.
–
Izolácia potrubia musí by
ť
odolná do teploty 100 °C.
Obr. 3 - Poz. 20
Nádrže je nutné uloži
ť
tak, aby sa spodná hladina
č
istiaceho
prostriedku nenachádzala pod základom prístroja o viac ako 1,5
m a aby sa horná hladina nenachádzala nad základom prístroja.
Obrázok 3 - B a poz. 19
Prívod vody na vodovod uskuto
č
nite pomocou vhodnej hadi-
ce.
–
Výkon vodovodnej prípojky musí byt' najmenej 1300 l/h pri mi-
nimálne 0,1 MPa.
–
Teplota vody musí ležat' pod 30 °C.
Typ C43
Typ C53
Odtok kondenzátu
Montáž na stenu
Montáž vysokotlakových potrubí
Inštalácia nádrže na
č
istiaci prostriedok
Napájanie vodou
377
SK
-
16
Pozor
Maximálna prípustná sie
ť
ová impedancia v elektrickom bode pri-
pojenia (pozri technické údaje) sa nesmie prekro
č
i
ť
. Pri nejas-
nostiach s oh
ľ
adom na sie
ť
ovú impendanciu prichádzajúcu do
vášho spojovacieho bodu kontaktujte vášho dodávate
ľ
a elektric-
kej energie.
Upozornenie:
Zapínanie spôsobuje krátkodobé poklesy napätia.
Pri nepriaznivých podmienkach v sieti môže dôjs
ť
k poškodeniu
iných prístrojov.
–
Hodnoty pripojenia nájdete v technických údajoch a na výrob-
nom štítku.
–
Elektrické pripojenie musí vykona
ť
elektroinštalatér a musí
zodpoveda
ť
IEC 60364-1.
–
Diely, káble a prístroje v pracovnom priestore vedúce elektric-
ký prúd musia byt' v dobrom stave chránené proti postrieka-
niu vodou.
Na predchádzanie úrazom spôsobeným elektrickým prúdom od-
porú
č
ame používa
ť
sie
ť
ové zásuvky s predradeným ochranným
isti
č
om proti zvodovým prúdom (menovitý spínací prúd max.
30 mA).
Pripojte elektrickú prípojku
Na ú
č
ely vypnutia celého stacionárneho vysokotla
č
ového
č
isti
č
a
je nutné na bezpe
č
né a
ľ
ahko prístupné miesto umiestni
ť
uzam-
ykate
ľ
ný hlavný vypína
č
(obr. 3 - poz. 6).
Šírka otvárania kontaktu hlavného vypína
č
a musí by
ť
najmenej 3
mm.
Zástr
č
ku Cekon namontujte na pripojovací kábel prístroja.
Zástr
č
ku Cekon zastr
č
te do zásuvky.
Aby bolo možné odpoji
ť
stacionárny vysokotlakový
č
isti
č
od elek-
trického napájania, musí by
ť
zástr
č
ka Cekon
ľ
ahko prístupná.
Skontrolujte plynovú prípojku.
Pozor
Nebezpe
č
ie poškodenia zariadenia prehriatím.
Ku dnu kotla pripojte sifón a napl
ň
te vodou.
Kotol napl
ň
te cez otvor komína 4 litrami vody.
Pred prvým uvedením do prevádzky je nutné odrezat' hrot
krytu olejovej nádrže na vodnom
č
erpadle.
Obr. 3 - Poz. 14
Vysokotlakovú hadicu pripojte ku ru
č
nej strierkacej pištoli a
tryske. Pripojte ku vysokotlakovému výstupu zariadenia ale-
bo vysokotlakovej sieti potrubí.
Ústie dýzy (b) s nástr
č
nou maticou (a) upevnite na trysku (d).
Dbajte na to, aby tesniaci krúžok (c) v matici dobre dosadal.
Elektrické pripojenie
Pevne nainštalovaná elektrická prípojka
Elektrická prípojka so zástr
č
kou alebo zásuvkou
Prvé uvedenie do prevádzky
Prístroj je z výroby nastavený ako prístroj na zemný plyn druh G
20 a ako prístroj na kvapalný plyn na G31. Pri prestavení prístro-
ja na zemný plyn na G25 alebo iné (vi
ď
výrobný štítok) zemné
plyny alebo prístroja na kvapalný plyn na G30 alebo iné (vi
ď
vý-
robný štítok) kvapalné plyny je nutné pri prístroji na zemný plyn
nastavi
ť
hodnoty spalín zemného plynu a u prístroja na kvapalný
plyn hodnotu kvapalného plynu pod
ľ
a servisných informácií.
Priložený prázdny štítok sa popíše novým nastaveným druhom
plynu a zapíše sa do popisového po
ľ
a na pravej strane prístroja.
Sú
č
asne sa tam musí odstráni
ť
z výroby upevnený štítok s úda-
jom G 20 (prístroj na zemný plyn) alebo G 31 (prístroj na kvapal-
ný plyn).
Opatrenia pred uvedením do prevádzky
a
b
c
d
378
SK
-
17
Odoberte pružinu (c) podpery krytu (b) nádrže na zmäk
č
ova
č
kvapaliny (a).
Nádrž napl
ň
te zmäk
č
ova
č
om firmy Kärcher RM 110 (Obj.
č
.
2.780-001).
Nebezpe
č
enstvo
Nebezpe
č
né elektrické napätie! Nastavenie môže uskuto
č
nit' len
odborný elektrikár.
Zistite miestnu tvrdost' vody:
–
od miestneho vodárenského podniku,
–
pomocou skúšobného prístroja na meranie tvrdosti (Obj.
č
.
6.768-004).
Odoberte kryt prístroja.
Otvorte spínaciu skri
ň
u na ovládacom paneli.
Oto
č
ný potenciometer (a) nastavte pod
ľ
a tvrdosti vody. Z ta-
bu
ľ
ky môžete zistit' správne nastavenie.
Príklad:
Pri tvrdosti vody 15 °dH nastavte na oto
č
nom potenciometri hod-
notu stupnice 6. Z toho vzniká
č
as prestávky 31 sekúnd, to zna-
mená každých 31 sekúnd sa nakrátko otvára magnetický ventil.
Nastavenie
č
asu pripravenosti na prevádzku sa uskuto
čň
uje na
vä
č
šej doske
ľ
avej bo
č
nej steny elektrickej skrine.
Č
as pripravenosti na prevádzku je nastavený z výrobného závo-
du na minimálny
č
as 2 minúty a môže sa zvýšit' až na maximálny
č
as 8 minút.
Ochrana pred vznikom vodného kame
ň
a
Tvrdost' vody (°dH)
5
10
15
20
25
Stupnica na oto
č
nom po-
tenciometri
8
7
6
5
4,5
Č
as prestávky (sekundy)
50
40
31
22
16
b
c
a
a
Prestavenie
č
asu pripravenosti na prevádzku
8 7 6 5 4 3 2 1
S2
min.
max.
379
SK
-
18
obr. 3
Inštala
č
ný materiál
1
2
3
5
6
7
8
9
10
12
13
A
15
11b
11a
11c
11a
25
21
22
23
11b
24
4
20
19a
19
18
17
16
14
11d
B
Poz. Inštala
č
ný materiál
Objednáva-
cie
č
íslo
1
Uhlový skrutkový spoj
6.386-356
2
Súprava výfukových potrubí, vodorovná,
150 mm
6.526-231
3
Súprava výfukových potrubí, zvislá, 150
mm
6.526-232
4
Sada dielov, sifón
2.640-422
5
Tepelná izolácia
6.286-114
6
Hlavný vypína
č
6.631-455
7
Sada potrubí, z pozinkovanej ocele
2.420-004
Sada potrubí, z nehrdzavejúcej ocele
2.420-006
8
Sada dielcov dia
ľ
kového ovládania
2.744-008
9
Sada dielcov núdzového vypína
č
a
2.744-002
10
T-skrutkový spoj
6.386-269
11a
Pripojovacie hrdlo, mosadz
2.638-180
Pripojovacie hrdlo, nehrdzavejúca oce
ľ
2.638-181
11b
Uzatvárací kohút men. priemeru 8, pozin-
kovaná oce
ľ
4.580-144
Uzatvárací kohút men. priemeru 8, nehr-
dzavejúca oce
ľ
4.580-163
11c
Pevná
č
ast' rýchlospojky
6.463-025
11d
Pohyblivá
č
ast' rýchlospojky
6.463-023
Poz. Inštala
č
ný materiál
Objednáva-
cie
č
íslo
12
Držiak hadice
2.042-001
13
Bubon na hadicu
2.637-238
14
Vysokotlaková hadica 10 m
6.388-083
15
Ru
č
ná striekacia pišto
ľ
Easypress
4.775-463
Oto
č
ný regulátor HDS 9/16-4
4.775-470
Oto
č
ný regulátor HDS 12/14-4
4.775-471
16
Držiak trysky
2.042-002
17
Rozstrekovacia rúrka
4.760-550
18
Ústie dýzy HDS 9/16-4
2.883-402
Ústie dýzy HDS 12/14-4
2.883-406
19
Vodovodná hadica
4.440-282
19a
Magnetický ventil prívodu vody
4.743-011
20
Nádrž na
č
istiaci prostriedok, 60 l
5.070-078
21
Plynová hadica R1"
6.388-228
22
Plynový uzatvárací kohút R1"
6.412-389
23
Manometer, plynový (pozor! uzatvárací
ventil musí by
ť
k dispozícii.)
6.412-059
24
Sada dielcov konzoly na steny
2.053-005
Sada dielcov stojan
2.210-008
25
Vysokotlaková hadica
6.389-028
380
SK
-
19
Týmto vyhlasujeme, že
ď
alej ozna
č
ený stroj zodpovedá na zákla-
de jeho koncepcie a konštrukcie a takisto vyhotovenia, ktoré sme
dodali, príslušným základným požiadavkám na bezpe
č
nost' a
ochranu zdravia uvedeným v smerniciach EÚ. Pri zmene stroja,
ktorá nebola nami odsúhlasená, stráca toto prehlásenie svoju
platnost'.
5.957-648
Podpísaný jednajú v poverení a s plnou mocou jednate
ľ
stva.
Osoba zodpovedná za dokumentáciu:
S. Reiser
Alfred Kärcher GmbH & Co. KG
Alfred-Kärcher-Str. 28 - 40
71364 Winnenden (Germany)
Tel: +49 7195 14-0
Fax: +49 7195 14-2212
Winnenden, 2014/02/01
V každej krajine platia záru
č
né podmienky vydané našou prísluš-
nou distribu
č
nou spolo
č
nos
ť
ou. Eventuálne poruchy vzniknuté
na prístroji odstránime po
č
as záru
č
nej doby bezplatne v prípade,
ak je prí
č
inou poruchy chyba materiálu alebo výrobcu.
Vyhlásenie o zhode s normami EÚ
Výrobok:
Vysokotlakový
č
isti
č
Typ
:
1.251-xxx
Príslušné Smernice EÚ:
2009/142/ES
2006/42/ES (+2009/127/ES)
2004/108/ES
Uplat
ň
ované harmonizované normy:
EN 55014–1: 2006+A1: 2009+A2: 2011
EN 55014–2: 1997+A1: 2001+A2: 2008
EN 60335–1
EN 60335–2–79
EN 62233: 2008
EN 61000–3–2: 2006+A1: 2009+A2: 2009
HDS 12/14:
EN 61000–3–3: 2008
HDS 9/16:
EN 61000–3–11: 2000
Použité špecifikácie:
QA 195 (nie LPG)
Názov uvedeného miesta:
Pre 2009/142/ES
GASTEC
Wilmersdorf 50
7327 AC Apeldoorn
Pozn.
č
. 0063
Záruka
CEO
Head of Approbation
381
SK
-
20
Servisná služba
Typ zariadenia:
Výr.
č
.:
Uvedenie do prevádzky d
ň
a:
Skúška vykonaná d
ň
a:
Nález:
Podpis
Skúška vykonaná d
ň
a:
Nález:
Podpis
Skúška vykonaná d
ň
a:
Nález:
Podpis
Skúška vykonaná d
ň
a:
Nález:
Podpis
382
SK
-
1
Enne sesadme esmakordset kasutuselevõttu lugege
läbi algupärane kasutusjuhend, toimige sellele vasta-
valt ja hoidke see hilisema kasutamise või uue omaniku tarbeks
alles.
–
Enne esmakordset kasutuselevõttu lugege kindlasti ohutusju-
hiseid nr. 5.956-309!
–
Transpordil tekkinud vigastuste puhul teavitage toote müüjat.
Märkusi koostisainete kohta (REACH)
Aktuaalse info koostisainete kohta leiate aadressilt:
www.kaercher.com/REACH
Oht
Vahetult ähvardava ohu puhul, mis toob kaasa raskeid kehavi-
gastusi või surma.
몇
Hoiatus
Võimaliku ohtliku olukorra puhul, mis võib põhjustada raskeid ke-
havigastusi või surma.
Ettevaatust
Võimaliku ohtliku olukorra puhul, mis võib põhjustada kergeid vi-
gastusi või materiaalset kahju.
Kõrgsurveline veejuga võib mittesihipärasel kasutami-
sel ohtlik olla. Juga ei tohi suunata teistele isikutele,
loomadele, töötavatele elektriseadmetele või seadme-
le endale.
–
Järgida tuleb kõiki riigis kehtivaid survepesureid puudutavaid
seaduslikke eeskirju.
–
Järgida tuleb kõiki riigis kehtivaid õnnetusjuhtumite vältimist
puudutavaid seaduslikke eeskirju. Survepesureid tuleb regu-
laarselt kontrollida ja kontrollimise tulemus fikseerida kirjali-
kult.
–
Seadme küttemehhanism kujutab endast kütteseadet. Kütte-
seadmeid tuleb regulaarselt kontrollida vastavalt konkreetses
riigis kehtivatele seaduslikele eeskirjadele.
–
Kui seadet kasutatakse ruumides, tuleb hoolitseda heitgaasi-
de ohutu väljutamise eest (heitgaasitoru ilma tõmbekatkesti-
ta). Lisaks peab olemas olema küllaldane värske õhu
juurdepääs.
–
Järgige ohutusalaseid märkusi, mis on kaasas kasutatavate
puhastusvahenditega (reeglina pakendi etiketil).
Enne seadme paigaldamist peaks toimuma kooskõlastamine
gaasiettevõttega ning piirkonna korstnapühkijaga.
Paigaldamisel tuleb järgida ehitusõiguslikke eeskirju, äriseadus-
andlikke sätteid ja immissioonikaitse määrusi. Juhime tähelepa-
nu alljärgnevalt loetletud eeskirjadele, suunistele ja standarditele:
–
Seadet tohib paigaldada ainult vastav ettevõtte kooskõlas ko-
hapeal kehtivate eeskirjadega.
–
Elektriinstallatsiooni juures tuleb järgida vastavaid kohapeal
kehtivaid seadusanlikke sätteid.
–
Gaasiinstallatsiooni juures tuleb järgida vastavaid kohapeal
kehtivaid seadusanlikke sätteid.
–
Gaasitorude paigaldamist ning seadme gaasipoolset ühen-
dust tohib teostada ainult gaasi- ja veemajanduses tegutse-
mislitsentsi omav firma.
–
Põleti seadistusi, hooldustöid ja remonti tohivad teostada ai-
nult firma Kärcher koolitatud klienditeeninduse montöörid.
–
Lõõri kavandamisel tuleb järgida kohapeal kehtivaid suuni-
seid.
Sisukord
Keskkonnakaitse . . . . . . . . .
ET . . 1
Kasutusjuhendis olevad sümbolid
ET . . 1
Seadmel olevad sümbolid . .
ET . . 1
Üldised ohutusnõuded . . . .
ET . . 1
Sihipärane kasutamine . . . .
ET . . 2
Funktsioon. . . . . . . . . . . . . .
ET . . 2
Ohutusseadised . . . . . . . . .
ET . . 2
Seadme elemendid . . . . . . .
ET . . 3
Kasutuselevõtt. . . . . . . . . . .
ET . . 4
Käsitsemine. . . . . . . . . . . . .
ET . . 4
Kasutuselt võtmine . . . . . . .
ET . . 6
Seismapanek . . . . . . . . . . .
ET . . 6
Hoiulepanek . . . . . . . . . . . .
ET . . 6
Transport. . . . . . . . . . . . . . .
ET . . 6
Tehnilised andmed . . . . . . .
ET . . 7
Korrashoid ja tehnohooldus
ET . . 9
Abi häirete korral . . . . . . . . .
ET . 11
Tarvikud. . . . . . . . . . . . . . . .
ET . 13
Seadme installeerimine. . . .
ET . 14
EÜ vastavusdeklaratsioon. .
ET . 19
Garantii . . . . . . . . . . . . . . . .
ET . 19
Klienditeenindus . . . . . . . . .
ET . 20
Keskkonnakaitse
Pakendmaterjalid on taaskasutatavad. Palun ärge vi-
sake pakendeid majapidamisprahi hulka, vaid suuna-
ke need taaskasutusse.
Vanad seadmed sisaldavad taaskasutatavaid mater-
jale, mis tuleks suunata taaskasutusse. Patareid, õli ja
muud sarnased ained ei tohi jõuda keskkonda. See-
tõttu palume vanad seadmed likvideerida vastavate
kogumissüsteemide kaudu.
Palun jälgige,et mootoriõli, kütteõli, diisel ega bensiin ei sattuks
loodusse. Palun kaitske pinnast ja kõrvaldage kasutatud õli
keskkonnaeeskirju järgides.
Kärcheri puhastusvahenditel on mustuse eemaldamist kergen-
davad omadused (ASF). See tähendab, et õliseparaatori tööd ei
takistata. Soovitatud puhastusvahendite nimekiri on toodud
peatükis "Tarvikud".
Kasutusjuhendis olevad sümbolid
Seadmel olevad sümbolid
Üldised ohutusnõuded
Eeskirjad, suunised ja reeglid
383
ET
-
2
Töökoht on juhtpaneeli juures. Muud töökohad sõltuvad seadme
paigaldamisest lisaseadmete külge (piserdusseadmed), mis on
ühendatud kraanidega.
–
Kaitseks tagasipritsiva vee ja mustuse eest kasutada sobivat
kaitseriietust ja kaitseprille.
Seade on ette nähtud vabalt väljuva veejoaga mustuse eemalda-
miseks pindadelt. Seda kasutatakse eriti masinate, sõidukite ja
fassaadide puhastamiseks.
Oht
Vigastusoht! Tanklates või muudes ohualades kasutamise korral
tuleb järgida vastavaid ohutuseeskirju.
–
Külm vesi pääseb mootori jahutusvooliku kaudu ujukipaaki ja
sealt boileri välimisse kihti ning edasi kõrgsurvepumba imi-
poolele. Ujukipaagis lisatakse veepehmendit. Pump toimetab
vee ja sissevõetud puhastusaine läbi boileri. Puhastusvahen-
di osa vees saab reguleerida doseerimisventiili abil. Boilerit
köetakse gaasipõletiga.
–
Kõrgsurveväljund ühendatakse hoones olemasolelva kõrg-
survevõrguga. Selle võrgu kraanidega ühendatakse kõrgsur-
vevoolikuga pesupüstoli ühenduskoht.
Ohutusseadised on mõeldud kasutaja kaitsmiseks vigastuste
eest ning neid ei tohi deaktiveerida ega nende funktsiooni muuta.
Veepuuduse kaitse hoiab ära kõrgsurvepumba sisselülitamise,
kui vett on vähe.
Veepuuduse kaitse hoiab ära põleti ülekuumenemise veepuudu-
se korral. Põleti hakkab tööle ainult siis, kui veevarustus on kül-
laldane.
Survelüliti lülitab seadme välja, kui töörõhk ületatakse. Seadis-
tust ei tohi muuta.
Survelüliti rikke korral avaneb turvaventiil. See ventiil on tehase-
poolselt seadistatud ja plommitud. Seadistust ei tohi muuta.
Kütusepuuduse või põleti rikke korral lülitab leegikontroll põleti
välja. Süttib põleti rikke märgutuli (E).
Kui põleti mootor on blokeeritud, vallandub ülevoolukaitselüliti.
Kõrgsurvepumba mootor on kaitstud mootori kaitselülitiga ja faa-
side väljalangemiskaitsega.
Heitgaasi termostaat vallandub, kui heitgaasi temperatuur ületab
320 °C. Põleb heitgaasi termostaadi märgutuli (K).
Maksimaaltemperatuuri piirajad katlapõhjas (> 80 °C) ja vee väl-
javoolus (> 110 °C) vallanduvad ja põleti rikke märgutuli (E) põ-
leb.aus und die Kontrolllampe Brennerstörung (E) leuchtet.
Heitgaasi rõhulüliti lülitab põleti välja, kui heitgaasisüsteemis on
lubamatult kõrge vastasrõhk, nt ummistuse korral.
Pärast seadme väljalülitamist pesupüstolist avab pärast tööval-
midusaja möödumist kõrgsurvesüsteemi paigutatud magnetven-
tiil, misläbi rõhk langeb.
Töökohad
Individuaalne kaitsevarustus
Müra võimendavate osade puhastamisel tuleb
kanda kuulmiskahjustuste ennetamiseks kuul-
miskaitset.
Sihipärane kasutamine
Palun vältige mineraalõli sisaldava heitvee sattumist pinnases-
se, veekogudesse või kanalisatsiooni. Seetõttu palume viia
mootoripesu ja põhjapesu läbi ainult sobivates, õliseparaatoriga
varustatud kohtades.
Funktsioon
Ohutusseadised
Veepuuduse kaitse ujukipaak
Veepuuduse kaitse turvablokk
Survelüliti
Turvaventiil
Leegikontroll
Ülevoolukaitse
Heitgaasi termostaat
Termoregulaator
Heitgaasi rõhulüliti
Kõrgsurvesüsteemi survetustamine
384
ET
-
3
Joonis 1
1 Põleti
2 Manomeeter
3 Puhta vee pealevool sõelaga
4 Kõrgsurve-väljavool
5 Gaasiühendus
6 Puhastusvahendi imivoolik I
7 Puhastusvahendi imivoolik II (lisavarustus)
8 Pehmendusvahendi paak
9 Elektritoide
10 Ujukipaak
11 Juhtpaneel
Joonis 2
A Seadme lüliti
B Temperatuuri regulaator
C Puhastusvahendi doseerimisventiil I
D Puhastusvahendi doseerimisventiil II (lisavarustus)
E Põleti rikke märgutuli
F Töövalmiduse märgutuli
G Mootori ülekuumenemise märgutuli
H Lupjumiskaitse märgutuli
I
Gaasirelee vabastusklahv
J Heitgaasi termostaadi vabastusklahv
K Heitgaasi termostaadi märgutuli
Seadme elemendid
4
5
6
7
3
8
10
1
11
2
9
Juhtpaneel
385
ET
-
4
몇
Oht
Vigastusoht! Seade, toitekaablid, kõrgsurvevoolik ja ühendused
peavad olema laitmatus seisundis. Juhul kui seisund ei ole lait-
matu, ei tohi seadet kasutada.
–
Ühendamiseks vajalikke andmeid Tehnilistest andmetest ja
tüübisildilt.
–
Elektriühenduse peab teostama elektrimontöör ja see peab
vastama normile IEC 60364-1.
Seadet tuleb kasutada selle otstarbe kohaselt. Arvestada tuleb
kohalikke iseärasusi ning seadmega töötades pöörata tähelepa-
nu ka läheduses viibivatele inimestele.
Töötavat seadet ei tohi mitte kunagi jätta järelevalveta.
Oht
–
Kuumast veest tekkinud põletusoht! Ärge suunake veejuga
inimestele ega loomadele.
–
Tulistest seadme osadest lähtuv põletusoht! Kuuma veega
töötades ärge puudutage isoleerimata torusid ja voolikuid.
Hoidke joatoru ainult käepidemetest kinni. Ärge puudutage
boileri heitgaasitutse.
–
Puhastusvahenditest lähtuv mürgitus- või sööbimisoht! Järgi-
ge puhastusvahenditel olevaid märkusi. Hoidke puhastusva-
hendeid kõrvalistele isikutele kättesaamatus kohas.
Oht
Elektrilöögist lähtuv oht elule! Ärge suunake veejuga järgmistele
rajatistele:
–
Elektriseadmed ja agregaadid,
–
see agregaat ise,
–
kõik voolu all olevad osad tööalas.
Joatorust väljuv veejuga tekitab reaktiivjõu. Nurga all olev joatoru
tekitab ülespoole suunatud jõu.
Oht
–
Vigastusoht! Joatoru tagasilöök võib teid tasakaalust viia. Te
võite kukkuda. Joatoru võib lendu paiskuda ja inimesi vigas-
tada. Otsige seismiseks kindel koht ja hoidke pesupüstolit tu-
gevasti. Ärge kunagi kiiluge pesupüstoli hooba kinni.
–
Veejuga ei tohi suunata teistele inimestele ega iseendale, et
puhastada riideid või jalanõusid.
–
Eemalepaiskuvatest osadest lähtuv vigastusoht! Lendupais-
kuvad murdunud tükid või esemed võivad inimesi või loomi vi-
gastada. Ärge kunagi suunake joatoru kergestipurunevatele
või lahtistele esemetele.
–
Vigastusest tingitud õnnetusoht! Puhastage rehve ja ventiile
vähemalt 30 cm kauguselt.
몇
Hoiatus
Oht tervist kahjustavate ainete näol! Järgmistele materjalidele
mitte pritsida, sest lendu võivad paiskuda tervisele ohtlikud ai-
ned:
–
asbesti sisaldavad materjalid,
–
materjalid, mis võivad sisaldada tervisele ohtlikke aineid.
Oht
–
Väljuvast, võimalik et kuumast veejoast lähtuv vigastusoht!
Ainult Kärcheri originaal-kõrgsurvevoolikud on optimaalselt
seadmega kooskõlas. Teiste voolikute kasutamisel ei võta
Kärcher endale garantiid.
–
Puhastusvahenditest lähtuv oht tervisele! Tingituna puhas-
tusvahendist, mis võib olla veele lisatud, ei kõlba boilerist tu-
lev vesi joomiseks.
–
Müra võimendavate osade juures töötades oht kuulmisele!
Sel juhul tuleb kanda kõrvaklappe.
Oht
Väljuvast, võimalik et kuumast veejoast lähtuv vigastusoht!
Oht
Enne igakordset kasutamist tuleb kantrollida, et kõrsurvevoolik
oleks terve. Kahjustatud kõrgsurvevoolik kohe välja vahetada.
Kõrgsurvevoolikut, torusid, armatuure ja joatoru tuleb enne
iga kasutamist vigastuste osas kontrollida.
Kontrollige, kas vooliku muhv on kindlalt paigas ja tihe.
Ettevaatust
Kuivalt töötamisest lähtuv vigastusoht.
Kontrollige puhastusvahendi paagi täituvust ja täitke vajadusel.
Kontrollige pehmendusvedeliku taset ja lisage vajadusel.
Keerake seadmelüliti (A) asendisse “0”.
Vee juurdejooksu sulgemine.
Vajutage pesupüstolit, kuni seade on survevaba.
Sulgege gaasi juurdevool.
Kasutuselevõtt
Elektriühendus
Käsitsemine
Ohutusalased märkused
!
Töövalmiduse sisseseadmine
Väljalülitamine avariiolukorras
386
ET
-
5
Koguse reguleerimisventiili päripäeva keerates suureneb töö-
rõhk ja veekogus.
Koguse reguleerimisventiili vastupäeva keerates väheneb
töörõhk ja veekogus.
Veekoguse regulaatorit paremale keerates suureneb veeko-
gus ja töörõhk.
Veekoguse regulaatorit vasakule keerates väheneb veeko-
gus ja töörõhk.
Vee juurdevool avada.
Sümbol „Mootor sisse“
Tõmmake pesupüstoli hooba ja seadke lüliti (A) asendisse "1"
(mootor sisse).
Töövalmiduse märgutuli (F) osutab töövalmidusele.
Oht
Põletusoht!
Ettevaatust
Töötamine kuuma veega ilma kütuseta põhjustab kütusepumba
vigastamist. Enne kuuma veega töötamist kindlustage kütuseva-
rustus.
Põleti võib vajadusel juurde lülitada.
Sümbol „Põleti sisse“
Seadke seadmelüliti (A) asendisse “Põleti sisse”.
Valige soovitud veetemperatuur temperatuuriregulaatorist (B)
välja. Maksimaalne temperatuur on 98 °C.
–
Kui töö käigus lastakse pesupüstoli hoob lahti, lülitub seade
välja.
–
Kui püstol reguleeritava tööks valmisolekuaja jooksul (2...8
minutit) uuesti avada, käivitub seade automaatselt.
–
Kui tööks valmisoleku aeg ületatakse, lülitab turvalülitus pum-
ba ja põleti välja. Kustub tööks valmisoleku märgutuli (F).
–
Töö jätkamiseks viige seadmelülit asendisse "0", siis lülitage
uuesti sisse. Kui seadet juhitakse kaugjuhtimispuldist, saab
tööd jätkata, kui vajutada puldil vastavale lülitile.
–
Sõidukite rehve puhastatakse ainult lamedüüsiga (25°) ja mi-
nimaalselt pritsimiskauguselt 30 cm. Ümaarjoaga ei tohi reh-
ve mingil juhul puhastada.
Kõigi teiste ülesannete jaoks on võimalik valida järgmiste düüsi-
de vahel:
Kui torud on pikemad kui 20 m või kõrgsurvevooliku korral roh-
kem kui 2 x 10 m NW 8 tuleb kasutada järgmisi düüse:
Töösurve ja veekoguse reguleerimine
Seadistused seadme juures
Easypress-püstoli reguleerimine (lisavarustus)
Töötamine külma veega
R
Töötamine kuuma veega
Töövalmidus
Düüside valik
Määrdu-
mus
düüs
Pihustus-
nurk
Osa nr.
6.415
Rõhk
[MPa]
Tagasi-
löök [N]
HDS 9/16
tugev
00060
0°
-649
16
46
keskmine
25060
25°
-647
kerge
40060
40°
-648
HDS 12/14
tugev
00080
0°
-150
14
55
keskmine
25080
25°
-152
kerge
40080
40°
-153
Määrdu-
mus
düüs
Pihustus-
nurk
Osa nr.
6.415
Rõhk
[MPa]
Tagasi-
löök [N]
HDS 9/16
tugev
0075
0°
-419
10
37
keskmine
2575
25°
-421
kerge
4075
40°
-422
HDS 12/14
tugev
0010
0°
-082
10
46
keskmine
2510
25°
-252
kerge
4010
40°
-253
387
ET
-
6
–
Puhaastusvahendid kergendavad puhastustöid. Need võe-
takse sisse välisest puhastusvahendi paagist.
–
Seadme põhiversioon on varustatud doseerimisventiiliga (C).
Teine doseerimisseadis (doseerimisventiil D) on saadaval li-
savarustusega. Siis on võimalik võtta sisse kahte erinevat pu-
hastusvahendit.
–
Doseerimiskogus reguleeritakse puhastusvahendite doseeri-
misventiilidega (C või D) juhtpaneelilt. Määratud väärtus vas-
tab puhastusvahendi osakaalule protsentides.
–
Väline skaala kehtib, kui kasutatakse lahjendamata puhas-
tusvahendit (100 % CHEM).
–
Sisemine skaala kehtib, kui kasutatakse 1+3 eelnevalt lahjen-
datud puhasstusvahendit (25 % CHEM + 75 % vett).
Järgmine tabel eistab puhastusvahendite kulu välise skaala väär-
tuste puhul:
Täpne doseerimiskogus sõltub:
–
Puhastusvahendi viskoossusest
–
Sissevõtu kõrgusest
–
Kõrgsurvevooliku voolu takistusest
Kui on vajalik täpne doseerimine, tuleb sissevõetud puhastusva-
hendi kogus välja mõõta (nt mõõtpeekri abil).
Märkus:
Soovitusi puhastusvahendite osas leiate peatükist "Tar-
vikud".
Ettevaatust
Ilma pehmendusvahendita töötades võib boilerisse tekkida katla-
kivi.
Kui pehmendusvahendi paak on tühi, vilgub katlakivi kaitse mär-
gutuli (H).
Joonis 1 - pos. 8
Lisage pehmendusvahendi paaki pehmendusvedelikku RM
110 (2.780-001).
Oht
Tulisest veest lähtuv põletusoht! Pärast kasutamist kuuma veega
tuleb lasta seadmel jahtumiseks vähemalt kahe minuti jooksul
külma veega töötada, kusjuures püstol on avatud.
Kuuma veega töötades seadke temperatuuriregulaator (B)
kõige madalamale temperatuurile.
Kasutage seadet vähemalt 30 sekundit ilma puhastusvahen-
dita.
Keerake seadmelüliti (A) asendisse “0”.
Vee juurdejooksu sulgemine.
Vajutage pesupüstolit, kuni seade on survevaba.
Kindlustage pesupüstol turvafiksaatoriga kogemata avamise
vastu.
Kui töös tehakse pikemaid vaheaegu või kui ei ole võimalik ladus-
tada masinat ruumis, mille temperatuur ei lange allapoole nulli,
tuleb läbi viia järgmised meetmed (vt ptk "Hooldus ja jooksevre-
mont", alalõik "Külmumiskaitse"):
Lasta vesi välja.
Loputada seade jäätumiskaitsevahendiga läbi.
Lülitage pealüliti välja ja fikseerige või tõmmake välja Cekon-
pistik.
Sulgege gaasi juurdevool.
Ettevaatust
Vigastusoht! Ladustamisel jälgige seadme kaalu.
Ettevaatust
Vigastusoht! Transportimisel jälgige seadme kaalu.
Sõidukites transportimisel fikseerige seade vastavalt kehtiva-
tele määrustele libisemise ja ümbermineku vastu.
Puhastusvahendite doseerimine
Asend
0,5
1
8
Puhastusvahendi kogus [l/h]
14...15 22...24
50
Puhastusaine kontsentratsioon [%]
1,5
2,5
> 5
Pehmendusvahenid lisamine
Kasutuselt võtmine
Pärast töötamist puhastusvahendiga
Seadme väljalülitamine
Seismapanek
Hoiulepanek
Transport
388
ET
-
7
Tehnilised andmed
HDS 9/16-4
ST Gas
HDS 9/16-4
ST Gas LPG
HDS 12/14-4
ST Gas
HDS 12/14-4
ST Gas LPG
1.251-108
1.251-109
1.251-110
1.251-111
Jõudluse andmed
Vee töösurve (standardotsakuga)
MPa (bar)
16 (160)
16 (160)
14 (140)
14 (140)
Maksimaalne tööülerõhk (ohutusventiil)
MPa (bar)
18,5 (185)
18,5 (185)
18,5 (185)
18,5 (185)
Vee edastuskogus (sujuvalt reguleeritav)
l/h (l/min)
500-1000 (8,3-
16,6)
500-1000 (8,3-
16,6)
600-1200 (10-
20)
600-1200 (10-
20)
Puhastusvahendi sissevõtt (sujuvalt reguleeritav)
l/h (l/min)
0-50 (0-0,8)
0-50 (0-0,8)
0-60 (0-1)
0-60 (0-1)
Veevõtuühendus
Juurdevoolu hulk (min)
l/h (l/min)
1100 (18,3)
1100 (18,3)
1300 (21,7)
1300 (21,7)
Juurdevoolusruve (min.)
MPa (bar)
0,1 (1)
0,1 (1)
0,1 (1)
0,1 (1)
Juurdevoolurõhk (max)
MPa (bar)
0,6 (6)
0,6 (6)
0,6 (6)
0,6 (6)
Elektriühendus
Voolu liik
--
3N~
3N~
3N~
3N~
Sagedus
Hz
50
50
50
50
Pinge
V
380-420
380-420
380-420
380-420
Tarbitav võimsus
kW
6,4
6,4
7,5
7,5
Elektriline kaitse (inaktiivne)
A
16
16
20
20
Kaitse liik
--
IPX5
IPX5
IPX5
IPX5
Elektriohutusklass
--
I
I
I
I
Maksimaalselt lubatav võrguimpedants
oomi
(0,381+j
0,238)
(0,381+j
0,238)
--
--
Elektritoide
mm
2
5 x 2,5
5 x 2,5
5 x 2,5
5 x 2,5
Temperatuur
Juurdevoolava vee temperatuur (max)
°C
30
30
30
30
Kuuma vee maks. töötemperatuur
°C
98
98
98
98
Turvatermostaadi maks. temperatuur
°C
110
110
110
110
Temperatuuri tõus maks. vee läbivoolu juures
°C
60-65
60-65
60-65
60-65
Bruto küttevõimsus
kW
75
75
95
95
Lõõr
kPa
0,01-0,04
0,01-0,04
0,01-0,04
0,01-0,04
Gaasi ühendusväärtused
Maagaas E (G 20)
m
3
/h
7,2
--
9,8
--
Maagaas LL (G 25)
m
3
/h
8,2
--
11,4
--
Nominaal-ühendusrõhk (maagaas)
kPa
1,8-5
--
1,8-5
--
Propaan
kg/h
--
5,7
--
7,2
Nominaal-ühendusrõhk (propaan)
kPa
--
5-6
--
5-6
Keskkonna andmed
Normi ärakasutamise määr
%
97
97
97
97
Normi emissionifaktor NO
X
(maagaas G25)
mg/kWh
< 40
--
< 40
--
Normi emissionifaktor CO (maagaas G 25)
mg/kWh
< 40
--
< 40
--
Korstna mõõtmise väärtused
Ülerõhu sobivus (min.)
kPa
0,05
0,05
0,05
0,05
Tõmbevajadus
kPa
0
0
0
0
Heitgaasi massvool - täiskoormus
kg/h
130
130
166
166
CO
2
(maagaas)
%
9,5
--
9,5
--
CO
2
(propaan)
%
--
12
--
12
Heitgaasi temperatuur maks./min.
°C
190/150
190/150
170/130
170/130
Põlemisõhk/õhu juurdevool
Maks. pikkus: 10 m kahe 90° kaarega (minimaalne läbimõõt 100 mm). Vas-
tavalt kohalikele eeskirjadele paigaldusruumist või väljast värske õhk.
Kondensaati väljalaskmine
Kondensaadi väljalaskmine (maks.)
l/h
4 (sifoonist ka-
nalisatsiooni)
4 (sifoonist ka-
nalisatsiooni)
4 (sifoonist ka-
nalisatsiooni)
4 (sifoonist ka-
nalisatsiooni)
Ühendus
DN
40 (HTR)
40 (HTR)
40 (HTR)
40 (HTR)
Minmaalne veesammas, sifoon
mm
300
300
300
300
389
ET
-
8
Luba EN 60335-2-79
Luba vastavalt gaasiseadmete direktiivile (90/396/EMÜ) --
Gastec QA
Low NO
X
Gastec QA
Gastec QA
Low NO
X
Gastec QA
Seadmete kategooria Euroopa
--
I 2E (r), I
2ELL, I 2H, I
2L, I2 HE
I 3P
I 2E (r), I
2ELL, I 2H, I
2L, I2 HE
I 3P
Seadme tüüp
--
B23, C33,
C43, C53
B23, C33,
C43, C53
B23, C33,
C43, C53
B23, C33,
C43, C53
CE-toote ID-number
--
PIN 0063 BN
3880
PIN 0063 BN
3880
PIN 0063 BN
3880
PIN 0063 BN
3880
Mõõtmed ja kaalud
Pikkus
mm
1124
1124
1124
1124
Laius
mm
558
558
558
558
Kõrgus
mm
966
966
1076
1076
Tüüpiline töömass
kg
193,5
193,5
209
209
Tuvastatud väärtused vastavalt standardile EN 60355-2-79
Müraemissioon
Helirõhu tase L
pA
dB(A)
74
74
76
76
Ebakindlus K
pA
dB(A)
1
1
1
1
Käte/käsivarte vibratsiooniväärtus
Pesupüstol
m/s
2
2,2
2,2
2,3
2,3
Joatoru
m/s
2
1,8
1,8
2,1
2,1
Ebakindlus K
m/s
2
1,0
1,0
1,0
1,0
HDS 9/16-4
ST Gas
HDS 9/16-4
ST Gas LPG
HDS 12/14-4
ST Gas
HDS 12/14-4
ST Gas LPG
Mõõduleht
390
ET
-
9
Oht
Vigastusoht! Enne kõiki hooldus- ja remonttöid tuleb pealüliti väl-
ja lülitada või tõmmata välja Cekon-pistik.
Korrashoid ja tehnohooldus
Hooldusplaan
Aeg
Tegevus
komponent
Läbiviimine
kelle poolt
iga päev
Pesupüstolit
kontrollida
Pesupüstol
Kontrollige, kas pesupüstol suglub tihedalt. Kont-
rollige kogenata kasutamise kaitse funktsiooni.
Vahetage välja defektne pesupüstol.
Käitaja
Kontrollida kõrg-
survevoolikuid
Väljundvoolikud, voolikud töö-
seadme suunas
Kontrollige voolikuid vigastuste osas. Vahetage
defektsed voolikud kohe välja. Õnnetusoht!
Käitaja
Kontrollige toite-
pistikuga toite-
kaablit
Pistiku/pistikupesaga elektri-
ühendus
Kontrollige toitepistikuga toitekaablit vigastuste
osas. Kahjustatud toitejuhe lasta viivitamatult vo-
litatud hooldustöökojal/elektrikul välja vahetada.
Käitaja
kord nädalas või
iga 40 töötunni jä-
rel
Kontrollige õli
seisundit
Õlipaak pumba juures
Kui õli on piimjas, tuleb seda vahetada.
Käitaja
Õlitaset kontrolli-
da
Õlipaak pumba juures
Kontrollige pumba õlitaset. Vajadusel lisage õli
(tellimisnr. 6.288-016).
Käitaja
Sõela puhasta-
mine
Sõel vee sissevoolukohas
Vt alalõiku „Sõela puhastamine“.
Käitaja
kord kuus või pä-
rast 200 töötundi
Pumpa kontrolli-
da
Kõrgsurvepump
Kontrollige pumpa lekete osas. Kui minutis tilgub
rohkem kui 3 tilka, pöörduge klienditeeninduse
poole.
Käitaja
kontrollige sise-
miste setete ole-
masolu
kogu agregaat
Võtke kasutusele ilma kõrgsurvedüüsita joatoru-
ga agregaat. Kui töörõhk seadme manomeetril
tõuseb üle 3 MPa, tuleb läbi viia katlakivi eemal-
damine. Sama kehtib ka, kui ilma kõrgsurvevoo-
likuta töötades (vesi pääseb
kõrgsurveväljavoolukohast vabalt välja) tehakse
kindlaks töörõhk rohkem kui 0,7–1 MPa.
Katlakivi ee-
maldamise
osas inst-
rueeritud
operaator
Sõela puhasta-
mine
Veepuuduse kaitseseadises
olev sõel
Vt alalõiku „Sõela puhastamine“.
Käitaja
500-700 töötunni
järel
Väljavahetamine Hõõgsütik, ionisatsioonielekt-
rood
Hõõgsütik või ionisatsioonielektrood välja vahe-
tada.
Klienditee-
nindus
kord poole aasta
tagant või iga
1000 töötunni jä-
rel
Õlivahetus
Kõrgsurvepump
Õli välja lasta. 1 l uut õli (tellimisnr. 6.288-016) li-
sada. Kontrollida õlipaagi täituvust.
Käitaja
kontrollida, pu-
hastada
kogu agregaat
Agregaadi visuaalne kontroll, kontrollige kõrg-
surve ühenduste tihedust, kontrollige ülevoolu-
ventiili tihedust, kontrollige kõrgsurvevoolikut,
kontrollige survemahutit, eemaldage küttespi-
raalilt katlakivi, puhastage / vahetage välja ioni-
satsioonielektrood, reguleerige põletit.
Klienditee-
nindus
Vooliku väljava-
hetamine
Heitgaasi rõhulüliti voolik
Vahetage voolik välja.
Klienditee-
nindus
kord aastas
Turvakontroll
kogu agregaat
Viige ohutuskontroll läbi vastavalt seadusandja
poolt vedelikukiirguritele kehtestatud määruste-
le.
Spetsialist
391
ET
-
10
Pädeva Kärcheri müügikontoriga on võimalik sõlmida seadme
jaoks hooldusleping.
Joonis 1 - pos. 3
Vee juurdejooksu sulgemine.
Kruvige vee juurdevoolu voolik seadme küljest maha.
Lükake sõel kruvikeerajaga ühenduskohast välja.
Sõela puhastamine
Paigaldamine vastupidises järjekorras.
Eemaldage katteplekid.
Kruvige maha turvaploki nurgadetail.
Keerake M8x30 kruvi sõela.
Tõmmake kruvi ja sõel tangidega välja.
Sõela puhastamine
Paigaldamine vastupidises järjekorras.
Kui torudes on setteid, kasvag voolu takistus, nii et survelüliti võib
vallanduda.
Oht
Tuleohtlikest gaasidest põhjustatud plahvatusoht! Katlakivi ee-
maldades on suitsetamine keelatud. Hoolitsege hea ventilatsioo-
ni eest.
Oht
Happest tingitud sööbimisoht! Kandke kaitseprille ja kaitsekin-
daid.
Eemaldamiseks on vastavalt seaduslikele ettekirjutustele luba-
tud kasutada ainult kontrollmärgiga katlakivi eemaldusvahendit.
–
RM 100 (tellimisnr. 6.287-008) lahustab katlakivi ja lihtsaid
katlakivi ja pesuainete jääkide ühendeid.
–
RM 101 (tellimisnr. 6.287-013) lahustab setteid, mida vahen-
diga RM 100 lahustada ei saa.
Täitke 20 l mahuti 15 l veega.
Lisage liiter katlakivi lahustit.
Ühendage veevoolik otse pumbapea külge ja riputage vaba
ots paaki.
Torgake ühendatud ilma düüsita joatoru paaki.
Avage pesupüstol ja ärge seda katlakivi eemaldamise ajal
enam sulgege.
Viige seadme lüliti asendisse „Põleti sisse“, kuni on saavuta-
tud ca. 40 °C.
Lülitage seade välja ja laske 20 minutit seista. Pesupüstol
peab avatuks jääma.
Seejärel pumbake seade tühjaks.
Märkus:
Soovitame seejärel korrosioonikaitseks ja happejääkide
neutraliseerimiseks pumbata puhastusvahendi paagi kaudu
seadmest läbi leeliselist lahust (nt RM 81).
Seade tuleb paigaldada ruumidesse, mille temperatuur ei lange
alla 0 °C. Külmumisohu korral, nt välistingimustesse paigaldami-
se korral, tuleb seade tühjendada ja antifriisiga läbi pesta.
Kruvige vee juurdevoolu voolik ja kõrgsurvevoolik maha.
Laske masinal maks. 1 minut töötada, kuni pump ja voolikud
on tühjad.
Kruvige katla põhjas olev pealevoolutoru maha ja laske küt-
tespiraal tühjaks voolata.
Märkus:
Pidage silmas jäätumiskaitsevahendi tootja käsitsemis-
eeskirju.
Valage ujukipaaki kuni servani kaubanduses saadaolevat
jäätumiskaitsevahendit.
Asetage kogumisanum kõrgsurve väljavoolukoha alla.
Lülitage seade sisse ja laske niikaua töötada, kuni ujukipaagi
veepuuduse kaitse rakendub ja seadme välja lülitab.
Täitke katla põhj ja sifoon jäätumiskaitsevahendiga.
Seeläbi saavutatakse ka mõningane korrosioonikaitse.
Hooldusleping
Sõela puhastamine
Sõel vee sissevoolukohas
Veepuuduse kaitseseadises olev sõel
Katlakivi eemaldamine
Läbiviimine
2.
1.
Jäätumiskaitse
Vee väljalaskmine
Loputage seade jäätumiskaitsevahendiga läbi
392
ET
-
11
Oht
Vigastusoht! Enne kõiki hooldus- ja remonttöid tuleb pealüliti väl-
ja lülitada või tõmmata välja Cekon-pistik.
*
Märkus
VAjutage heitgaasi termostaadi vabastusklahvile (J), et vabasta-
da leegikontroll.
Abi häirete korral
Rike
Võimalik põhjus
Kõrvaldamine
kelle poolt
Seade ei tööta, tööks valmis-
oleku märgutuli (F) ei põle.
Seadmel puudub pinge.
Kontrollige elektrivõrku.
Elektrik
Turvalülitus toimib.
Lülitage seade seadmelülitist korraks välja,
siis uuesti sisse.
Käitaja
Juhtahela kaitse (F3) läbi põlenud.
Kaitse on integreeritud juhttrafosse
(T2).
Paigaldage uus kaitse, kui see uuesti läbi põ-
leb, tehke kindlaks ülekoormuse põhjus.
Klienditeenindus
Rõhulüliti HD (kõrgsurve) või ND
(madalsurve) defektne.
Kontrollige rõhulüliti.
Klienditeenindus
Taimeri moodul (A1) defektne.
Kontrollige ühendusi, vajadusel vahetage.
Klienditeenindus
+ Põleb mootori ülekuume-
nemise märgutuli (G)
Vallandus termoandur (WS) moo-
toris või ülevoolu kaitselüliti (F1).
Kõrvaldage ülekoormuse põhjus.
Klienditeenindus
Rakendus ujukipaagis olev vee-
puuduse kaitse.
Kõrvaldage veepuudus.
Käitaja
Põleti ei sütti või kustub leek
töö ajal
Temperatuuri regulaator (B) on
seadistatud madalalt.
Reguleerige temperatuuriregulaator kõrge-
maks.
Käitaja
Seadmelüliti ei ole põleti asendis. Lülitage põleti sisse.
Käitaja
Turvaploki veepuuduse kaitse lüli-
tus välja.
Tagage küllaldane vee juurdevool. Kontrolli-
ge seadet tiheduse osas.
Käitaja
Gaasikraan suletud.
Avage gaasikraan.
Käitaja
Rakendus vee väljavoolukohas
olev maksimaalse temperatuuri pii-
raja (> 110 °C).
Laske katlal jahtuda ja käivitage seade uues-
ti.
Käitaja
Kontrollige temperatuuri regulaatorit.
Klienditeenindus
Põleb heitgaasi termostaadi
märgutuli (K)
Puudub gaasi pealevool.
Avage gaasi pealevool.
Käitaja
Lisaõhu või väljuva õhu juurdevool
ummistunud.
Kontrollige õhutust ja heitgaasi süsteemi.
Käitaja
Katla põhi liiga kuum. Rakendus
katlapõhjas olev maksimaalse
temperatuuri piiraja (> 80 °C). Kat-
la põhjas ei ole kondensvett.
Valage 5 l vett heitgaasi mõõtetutsidele.
Käitaja
Gaasikütteautomaat näitab riket.
Vajutage gaasirelee vabastusklkahvile (I).
Käitaja
Puudub süüde. *
Kontrollige gaasikütteautomaadi ja süüte-
kaabli elektroodide vahet. Korrigeerige vahet
või vahetage defektsed osad välja. Vajadusel
puhastage.
Klienditeenindus
Puhur või pöörlemiskiiruse juht-
plaat defektne. *
Kontrollige puhurit ja pöörlemissageduse
juhtplaati. Kontrollige pistikut ja toitekaablit.
Vahetage välja defektsed osad.
Klienditeenindus
393
ET
-
12
Rike
Võimalik põhjus
Kõrvaldamine
kelle poolt
Põleb heitgaasi termostaadi
märgutuli (K)
Vallandus heitgaasi temperatuuri-
piiraja.
Avage pesupüstol, kuni seade on jahtunud.
Lülitage seade juhtpaneelilt välja ja sisse, et
temperatuuripiiraja blokeeringust vabastada.
Kui rike kordub, pöörduge klienditeeninduse
poole.
Käitaja
Põleb katlakivikaitse märgu-
tuli (H)
Pehmendusvedelik ära tarvitatud. Lisage pehmendusvahendit.
Käitaja
Puhastusaine edasitoimeta-
mine ebapiisav või puudub
Doseerimisventiil asendis „0“.
Reguleerige puhastusvahendi doseerimis-
ventiili.
Käitaja
Puhastusvahendi filter ummistu-
nud või paak tühi.
Puhastage või täitke.
Käitaja
Puhastusvahendi imivoolikud, -do-
seerimisventiil või -magnetventiil
lekivad või ummistunud.
Kontrollige, puhastage.
Käitaja
Elektroonika või magnetventiil de-
fektne.
Vahetage välja
Klienditeenindus
Seade ei saavuta täisrõhku
Düüs välja uhutud.
Vahetage düüs välja.
Käitaja
Puhastusvahendi paak tühi.
Lisage puhastusvahendit.
Käitaja
Liiga vähe vett.
Hoolitsege piisava vee pealevoolu eest.
Käitaja
Vee sissevoolu sõel ummistunud. Kontrollge, monteerige sõel välja ja puhasta-
ge.
Käitaja
Puhastusvahendi doseerimisventiil
lekib.
Kontrollige ja tihendage.
Käitaja
Puhastusvahendi vooliud lekivad. Vahetage välja
Käitaja
Ujuki ventiil kiilub.
Kontrollige liikuvust.
Käitaja
Turvaventiil lekib.
Kontrollige seadistust, vajadusel paigaldage
uus tihend.
Klienditeenindus
Koguse reguleerimisventiil lekib
või on liiga madalalt reguleeritud.
KOntrollige ventiile, kahjustumise korral va-
hetage välja, määrdumise korral puhastage.
Klienditeenindus
Survetustamise magnetventiil de-
fektne.
Vahetage magnetventiil välja.
Klienditeenindus
Kõrgsurvepump klopib, ma-
nomeeter võngub tugevalt
Amortisaaotr defektne.
Vahetage amortisaator välja.
Klienditeenindus
Veepump võtab sisse vähesel
määral õhku.
Kontrollige imisüsteemi ja kõrvaldage leke.
Käitaja
Seade lülitub pidevalt sisse
ja välja, kui pesupüstol on
avatud
Joatoru düüs on ummistunud.
Kontrollige, puhastage.
Käitaja
Seade on lupjunud.
Vt alalõiku „Katlakivi eemaldamine“.
Käitaja
Ülevoolaja lülituspunkt on nihku-
nud valesse asendisse.
Laske ülevoolaja uuesti reguleerida.
Klienditeenindus
Veepuuduse kaitseseadises olev
sõel ummistunud.
Kontrollge, monteerige sõel välja ja puhasta-
ge.
Käitaja
Seade ei lülitu välja, kui pe-
supüstol on suletud
Pump ei ole täielikult õhutatud.
Viige seadmelüliti asendisse "0" ja tõmmake
pesupüstolit, kuni düüsist ei tule enam vede-
likku. Siis lülitage seade uuesti sisse. Korra-
ke seda protsessi, kuni on saavutatud täis
töörõhk.
Käitaja
Turvaventiil või turvaventiili tihend
defektne.
Vahetage turvaventiil või tihend välja.
Klienditeenindus
Ülevoolaja survelüliti.
Kontrollige survelülitit ja ülevoolajat.
Klienditeenindus
394
ET
-
13
Puhaastusvahendid kergendavad puhastustöid. Tabelis on esita-
tud puhastusvahelite valik. Enne puhastusvahendite töötlemist
tuleb kindlasti järgida pakendil olevaid märkusi.
* = ainult lühikeseks kasutamiseks, kahe etapiline meetod, lopu-
tada üle puhta veega
** = ASF = mustuse eemaldamist kergendavad omadused
*** = eelpiserduseks sobib Foam-Star 2000
Tarvikud
Puhastusvahend
Kasutusala
Määrdumus, kasutusviis
Puhastusvahend
pH-Wert (ca.) 1 % la-
hus kraanivees
Autotööstus, tanklad,
veofirmad, autopargid
Tolm, tänava mustus, mineraalõlid
(lakitud pindadel)
RM 55 ASF **
8
RM 22/80-pulber ASF
12/10
RM 81 ASF
9
RM 803 ASF
10
RM 806 ASF
11
Sõiduki konserveerimine
RM 42 kõrgsurvepesurite külmvaha
8
RM 820-kuumvaha ASF
7
RM 821-piserdusvaha ASF
6
RM 824-super-pärlvaha ASF
7
RM 44 veljepuhastusgeel
9
Metallitöötlev tööstus
Õlid, rasvad, tolm ja sarnane mus-
tus
RM 22-pulber ASF
12
RM 55 ASF
8
RM 81 ASF
9
RM 803 ASF
10
RM 806 ASF
12
RM 31 ASF (tugev määrdumine)
12
RM 39-vedel (korrosioonikaitsega)
9
Toiduaineid töötlevad et-
tevõtted
Kerge kuni keskmine määrdumine,
rasvad/õlid, suured pinnad
RM 55 ASF
8
RM 81 ASF
9
RM 882 geelvaht OSC
12
RM 58 ASF (vahtpuhastusvahend)
9
RM 31 ASF *
12
Suitsuvaik
RM 33 *
13
Puhastamine ja desinfektsioon
RM 732
9
Desinfektsioon
RM 735
7...8
Lubi, mineraalsed setted
RM 25 ASF *
2
RM 59 ASF (vahtpuhastus)
2
Sanitaarruumid***
Lubi, uriinikivi, seebid jne.
RM 25 ASF * (põhipuhastus)
2
RM 59 ASF (vahtpuhastus)
2
RM 68 ASF
5
395
ET

