Karcher Nettoyeur haute pression HDS 9-16-4 ST Gaz LPG: !
!: Karcher Nettoyeur haute pression HDS 9-16-4 ST Gaz LPG
-
14
–
Urz
ą
dzenie grzewcze tego urz
ą
dzenia jest urz
ą
dzeniem opa-
ł
owym. Podczas ustawiania nale
ż
y stosowa
ć
si
ę
do odpo-
wiednich przepisów krajowych.
–
Stosowa
ć
tylko sprawdzone kominy/uk
ł
ady odprowadzania
spalin.
–
Instalacja przewodów gazowych jak równie
ż
przy
łą
cze gazo-
we urz
ą
dzenia mog
ą
zosta
ć
wykonane jedynie przez autory-
zowan
ą
firm
ę
gazownicz
ą
i hydrauliczn
ą
.
–
Ustawie
ń
i napraw przy palniku gazowym mog
ą
dokonywa
ć
jedynie przeszkoleni przedstawiciele serwisu firmy Kärcher.
–
W doprowadzeniu gazu, które musi mie
ć
przynajmniej 1-ca-
low
ą
ś
rednic
ę
znamionow
ą
, nale
ż
y przewidzie
ć
miejsca na
manometr i zawór zamykaj
ą
cy.
–
Ze wzgl
ę
du na wibracje spowodowane przez pomp
ę
wysoko-
ci
ś
nieniow
ą
, po
łą
czenie mi
ę
dzy sztywnym przewodem gazo-
wym a urz
ą
dzeniem musi by
ć
wykonane z elastycznego
w
ęż
a gazowego.
–
W przypadku doprowadzenia gazu przekraczaj
ą
cego 10 m
d
ł
ugo
ś
ci,
ś
rednica znamionowa powinna wynosi
ć
1,5 cala
albo wi
ę
cej. Przy
łą
cze gazowe przy urz
ą
dzeniu ma 1-calow
ą
ś
rednic
ę
znamionow
ą
.
Niebezpiecze
ń
stwo
Przy przykr
ę
caniu elastycznego w
ęż
a gazowego do palnika
z
łą
czka przy
łą
czeniowa musi by
ć
przytrzymywana kluczem wi-
de
ł
kowym SW 36. Z
łą
czka przy
łą
czeniowa nie mo
ż
e si
ę
przekr
ę
-
ci
ć
w stosunku do obudowy palnika. Uszczelnienie przy
łą
cza
gwintowanego musi by
ć
wykonane przy u
ż
yciu autoryzowanego
ś
rodka uszczelniaj
ą
cego. Po przy
łą
czeniu nale
ż
y skontrolowa
ć
miejsce pod
łą
czenia za pomoc
ą
homologowanego aerozolu do
wykrywania nieszczelno
ś
ci.
Ś
rednica wewn
ę
trzna przewodów gazowych musi by
ć
obliczona
zgodnie z DVGW TRGI 1986 wzgl. TRF 1996.
Ś
rednica znamio-
nowa przy
łą
cza gazowego urz
ą
dzenia nie jest automatycznie
ś
rednic
ą
znamionow
ą
przewodu rurowego. Rozmiary i instalacja
przewodu gazowego musz
ą
wspó
ł
gra
ć
z odpowiednimi normami
i przepisami.
–
Ka
ż
de urz
ą
dzenie musi by
ć
pod
łą
czone do osobnego komi-
na.
–
Prowadnica spalin musi by
ć
wykonana zgodnie z miejscowy-
mi przepisami i po uzgodnieniu z w
ł
a
ś
ciwym mistrzem komi-
niarskim.
Urz
ą
dzenie gazowe bez zabezpieczenia przep
ł
ywu, przy którym
wszystkie elementy drogi odprowadzania spalin stoj
ą
ce pod nad-
ci
ś
nieniem otoczone s
ą
powietrzem do spalania. Instalacja B23
daje mo
ż
liwo
ść
przy
łą
czenia urz
ą
dzenia do zwyczajnego komina
jednoci
ą
gowego wed
ł
ug DIN 18160 i do obs
ł
ugi uzale
ż
nionej od
powietrza otoczenia. Warunkiem jest, by komin nadawa
ł
si
ę
do
pod
łą
czenia urz
ą
dze
ń
z warto
ś
ci
ą
opa
ł
ow
ą
(np. i
ż
komin zosta
ł
zmodernizowany przy zastosowaniu rury ze stali szlachetnej).
Urz
ą
dzenie gazowe z doprowadzeniem powietrza do spalania i
prowadnic
ą
spalin uko
ś
nie ponad dachem. Wyloty znajduj
ą
si
ę
blisko siebie w tym samym zakresie ci
ś
nienia.
Instalacja urz
ą
dzenia
Tylko dla autoryzowanych, wykwalifikowanych
pracowników!
Ogólne
Gaz ogólnie
Przewody gazowe
Prowadnica powietrza/spalin
!
Urz
ą
dzenie gazowe z instalacj
ą
emisji spalin, która pobiera
powietrze do spalania z pomieszczenia instalacyjnego
Typ B23
Urz
ą
dzenie gazowe z instalacj
ą
emisji spalin, które powie-
trze do spalania pobiera poprzez system zamkni
ę
ty z wolne-
go powietrza
Typ C33
356
PL
-
15
Urz
ą
dzenie gazowe z doprowadzeniem powietrza do spalania i
prowadnic
ą
spalin do pod
łą
czenia do systemu powietrzno-spali-
nowego.
Urz
ą
dzenie gazowe z oddzielnym doprowadzeniem powietrza do
spalania i prowadnic
ą
spalin Wyloty znajduj
ą
si
ę
w ró
ż
nych za-
kresach ci
ś
nienia.
Wskazówka:
Aby osi
ą
gn
ąć
przepisane warto
ś
ci spalania, nale
ż
y
zachowa
ć
ci
ą
g w kominie podany w Danych technicznych.
Przewód ze skroplinami musi by
ć
pod
łą
czony bezpo
ś
rednio do
przy
łą
cza ze skroplinami. Wysoko
ść
syfonu musi wynosi
ć
30 cm.
Syfon nie jest obj
ę
ty dostaw
ą
. Przewód ze skroplinami nie mo
ż
e
mie
ć
sta
ł
ego po
łą
czenia z kanalizacj
ą
. Skropliny musz
ą
mie
ć
swobodny odp
ł
yw do lejka albo zbiornika neutralizacyjnego.
–
Przed monta
ż
em sprawdzi
ć
ud
ź
wig
ś
ciany. Do
łą
czony mate-
ria
ł
monta
ż
owy przeznaczony jest do betonu. Do pustaków,
cegie
ł
i gazobetonu nale
ż
y zastosowa
ć
w
ł
a
ś
ciwe ko
ł
ki i
ś
ruby,
np. kotwy (schemat wierce
ń
, patrz arkusz z wymiarami).
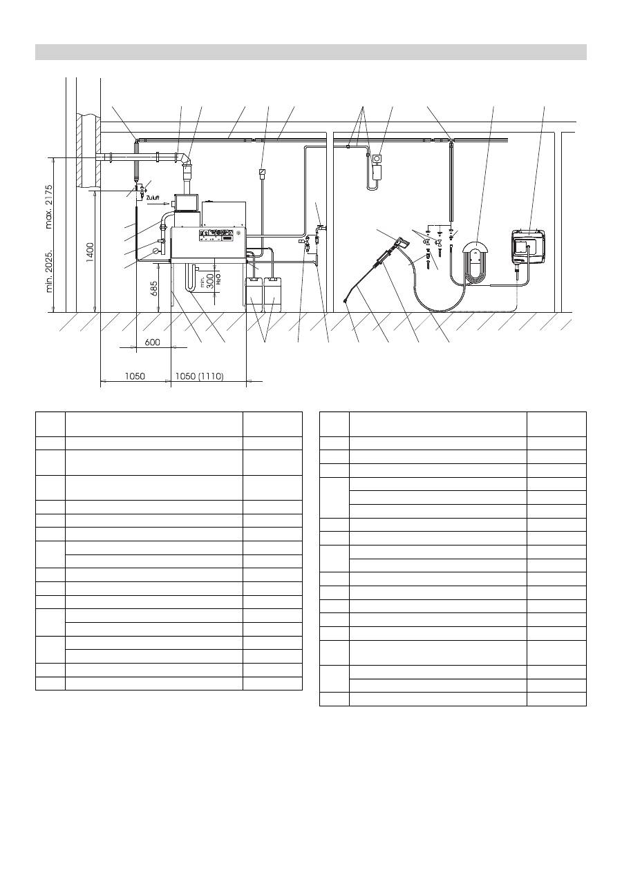
–
Rys. 3 - poz. 19 i 25
Urz
ą
dzenie nie mo
ż
e by
ć
sztywno po
łą
czone z sieci
ą
wodo-
ci
ą
gow
ą
ani z sieci
ą
przewodów wysokoci
ś
nieniowych. Ko-
niecznie nale
ż
y zamontowa
ć
w
ęż
e przy
łą
czeniowe.
–
Rys. 3 - A
Mi
ę
dzy sieci
ą
wodoci
ą
gow
ą
a w
ęż
em przy
łą
czeniowym nale-
ż
y przewidzie
ć
miejsce na kurek odcinaj
ą
cy.
W przypadku monta
ż
u przewodów wysokoci
ś
nieniowych nale
ż
y
przestrzega
ć
odpowiednich krajowych przepisów prawa.
–
Spadek ci
ś
nienia w rurach musi wynosi
ć
poni
ż
ej 1,5 MPa.
–
Gotowa instalacja rurowa musi by
ć
sprawdzona 32 MPa.
–
Izolacja przewodu rurowego musi by
ć
odporna na temperatu-
r
ę
do 100°C.
Rys. 3 - poz. 20
Zbiorniki nale
ż
y ustawi
ć
w taki sposób, by ni
ż
sze lustro poziomu
ś
rodka czyszcz
ą
cego nie znajdowa
ł
o si
ę
poni
ż
ej 1,5 m pod dnem
urz
ą
dzenia, a górne lustro poziomu nie znajdowa
ł
o si
ę
wy
ż
ej ni
ż
dno urz
ą
dzenia.
Rys. 3 - B i poz. 19
Pod
łą
czy
ć
wej
ś
cie wody przy pomocy odpowiedniego w
ęż
a
wodnego do sieci wodoci
ą
gowej.
–
Wydajno
ść
dop
ł
ywu wody musi wynosi
ć
przynajmniej 1300 l/
h przy przynajmniej 0,1 MPa.
–
Temperatura wody musi wynosi
ć
poni
ż
ej 30 °C.
Typ C43
Typ C53
Odp
ł
yw kondensatu
Monta
ż
na
ś
cienny
Monta
ż
przewodów wysokiego ci
ś
nienia
Ustawianie zbiornika
ś
rodka czyszcz
ą
cego
Doprowadzenie wody
357
PL
-
16
Uwaga
Nie mo
ż
na przekroczy
ć
maksymalnej dopuszczalnej impedancji
sieci na przy
łą
czu elektrycznym (patrz Dane techniczne). W przy-
padku niejasno
ś
ci dotycz
ą
cych impedancji sieci na przy
łą
czu
elektrycznym nale
ż
y si
ę
skontaktowa
ć
z dostawc
ą
energii elek-
trycznej.
Wskazówka:
Za
łą
czenia powoduj
ą
krótkotrwa
ł
e spadki napi
ę
cia.
W niekorzystnych warunkach eksploatacji sieci mo
ż
e to mie
ć
ne-
gatywny wp
ł
yw na dzia
ł
anie innych urz
ą
dze
ń
.
–
Parametry przy
łą
cza patrz tabliczka znamionowa i Dane
techniczne.
–
Przy
łą
cze leketryczne musi by
ć
wykonane przez wykwalifiko-
wanego elektryka i odpowiada
ć
normie IEC 60364-1.
–
Elementy przewodz
ą
ce pr
ą
d, kable i urz
ą
dzenia w obszarze
roboczym musz
ą
by
ć
w nienagannym stanie i by
ć
zabezpie-
czone przed wod
ą
natryskow
ą
.
W celu zapobiegania wypadkom spowodowanym pr
ą
dem elek-
trycznym zaleca si
ę
stosowanie gniazdek z wy
łą
cznikiem
ochronnym (pr
ą
d wyzwalaj
ą
cy o mocy znamionowej maks.
30 mA).
Wykona
ć
przy
łą
cze elektryczne.
Aby móc wy
łą
czy
ć
stacjonarny wysokoci
ś
nieniowy agregat
czyszcz
ą
cy nale
ż
y w niezagro
ż
onym miejscu umie
ś
ci
ć
ł
atwo do-
st
ę
pny, zamykany wy
łą
cznik g
ł
ówny (rys. 3 - poz. 6).
Szeroko
ść
otworu styku wy
łą
cznika g
ł
ównego powinna wynosi
ć
przynajmniej 3 mm.
Zamontowa
ć
wtyczk
ę
Cekon na kablu przy
łą
czeniowym
urz
ą
dzenia.
W
ł
o
ż
y
ć
wtyczk
ę
Cekon do gniazdka.
W celu wy
łą
czenia stacjonarnego wysokoci
ś
nieniowego urz
ą
-
dzenia czyszcz
ą
cego wtyczka Cekon musi by
ć
ł
atwo dost
ę
pna.
Skontrolowa
ć
przy
łą
cze gazowe.
Uwaga
Niebezpiecze
ń
stwo uszkodzenia urz
ą
dzenia przez przegrzanie.
Syfon pod
łą
czony do dna kot
ł
a i nape
ł
ni
ć
wod
ą
.
Kocio
ł
nape
ł
ni
ć
4 litrami wody poprzez otwór komina.
Przed pierwszym u
ż
yciem odci
ąć
ko
ń
cówki pokrywy zbiorni-
ka olejowego na pompie wodnej.
Rys. 3 - poz. 14
Po
łą
czy
ć
w
ąż
wysokoci
ś
nieniowy z pistoletem natryskowym i
strumienic
ą
i do
łą
czy
ć
do wyj
ś
cia wysokoci
ś
nieniowego urz
ą
-
dzenia albo do sieci
ą
przewodów wysokoci
ś
nieniowych.
Ustnik dyszy (b) zamocowa
ć
nakr
ę
tka ko
ł
pakow
ą
(a) na rirce
strumieniowej (d). Uwa
ż
a
ć
, aby pier
ś
cie
ń
uszczelinaj
ą
cy (c)
le
ż
a
ł
w rowku czysty.
Pod
łą
czenie do sieci
Przy
łą
cze elektryczne zamocowane na sta
ł
e
Przy
łą
cze elektryczne z wtyczk
ą
/gniazdkiem
Pierwsze uruchomienie
Urz
ą
dzenie ustawione jest fabrycznie jako urz
ą
dzenie na gaz
ziemny na rodzaj gazu G 20 oraz jako urz
ą
dzenie na gaz ciek
ł
y
na G 31. Przy przestawieniu urz
ą
dzenia na gaz ziemny na G 25
albo inny rodzaj gazu ziemnego (por. tabliczka znamionowa )
albo urz
ą
dzenia na gaz ciek
ł
y na G 30 albo inny rodzaj gazu cie-
k
ł
ego (por. tabliczka znamionowa), nale
ż
y ustawi
ć
warto
ś
ci spa-
lin gazu ziemnego w przypadku urz
ą
dzenia na gaz ziemny i
warto
ś
ci gazu ciek
ł
ego w przypadku urz
ą
dzenia na gaz ciep
ł
y
zgodnie z informacjami serwisowymi.
W do
łą
czonej pustej tabliczce zapisuje si
ę
wtedy ustawiony
nowy rodzaj gazu i mocuje si
ę
j
ą
po prawej stronie urz
ą
dzenia
w polu adresowym. Jednocze
ś
nie nale
ż
y usun
ąć
umieszczon
ą
tam fabrycznie tabliczk
ę
z podaniem G 20 (urz
ą
dzenie na gaz
ziemny) albo G 31 (urz
ą
dzenie na gaz ciek
ł
y).
Kroki przed uruchomnienim
a
b
c
d
358
PL
-
17
Zdejmij spr
ęż
yn
ę
(c) z podpory pokrywy (b) zbiornika
ś
rodka
zmi
ę
kczaj
ą
cego (a).
Wla
ć
do zbiornika p
ł
yn zmi
ę
kczaj
ą
cy Kärcher RM 110 (nr ka-
talogowy 2.780-001).
Niebezpiecze
ń
stwo
Niebezpiecze
ń
stwo pora
ż
enia pr
ą
dem elektrycznym! Ustawienia
powinien dokona
ć
tylko wykwalifikowany elektryk.
Ustali
ć
miejscow
ą
twardo
ść
wody:
–
poprzez dane od lokalnego przedsi
ę
biorstwa wodoci
ą
gowe-
go,
–
za pomoc
ą
przyrz
ą
du do okreslani atwardo
ś
ci wody (nr kat.
6.768-004).
Zdj
ąć
pokr
ę
urz
ą
dzenia.
Otworzy
ć
skrzynk
ę
sterownicz
ą
w polu obs
ł
ugi.
ustawo
ć
potencjometr (a) w zale
ż
no
ś
ci od twardo
ś
ci wody.W
tabeli znajduje si
ę
prawid
ł
owe ustawienie.
Przyk
ł
ad:
Dla twardo
ś
ci wody 15 °dH ustawi
ć
warto
ść
skali 6 na potencjo-
metrze. Z tego wynika czas przerwy wynosz
ą
cy 31 sekund, tzn.
co 31 sekund otwiera si
ę
na krótko zawór elektromagnetyczny.
Ustawienie czasu gotowo
ś
ci do pracy nast
ę
puje na du
ż
ej p
ł
ytce
na lewej stronie
ś
ciany szafy sterowniczej.
Czas gotowo
ś
ci do pracy jest ustawiony fabrycznie na warto
ś
c
minimaln
ą
wynosz
ą
c
ą
2 minuty i mozna go zwi
ę
kszy
ć
do czasu
maksymalnego 8 minut.
Ochrona przed osadem z kamienia
Twardo
ść
wody (°dH)
5
10
15
20
25
Skala potencjometru
8
7
6
5
4,5
Czas przerwy (sekundy)
50
40
31
22
16
b
c
a
a
Przestawianie czasu gotowo
ś
ci do pracy
8 7 6 5 4 3 2 1
S2
min.
max.
359
PL
-
18
Rys. 3
Materia
ł
instalacyjny
1
2
3
5
6
7
8
9
10
12
13
A
15
11b
11a
11c
11a
25
21
22
23
11b
24
4
20
19a
19
18
17
16
14
11d
B
Poz. Materia
ł
instalacyjny
Nr katalogo-
wy
1
Po
łą
czenie
ś
rubowe k
ą
towe
6.386-356
2
Zestaw przewodów odprowadzaj
ą
cych
spaliny, poziomy, 150 mm
6.526-231
3
Zestaw przewodów odprowadzaj
ą
cych
spaliny, pionowy, 150 mm
6.526-232
4
Zestaw cz
ęś
ci syfonu
2.640-422
5
Izolacja termiczna
6.286-114
6
Wy
łą
cznik g
ł
ówny
6.631-455
7
Zestaw rur, stal ocynk
2.420-004
Zestaw rur, stal nierdzewna
2.420-006
8
Zestaw cz
ęś
ci do zdalnego sterowania
2.744-008
9
Zestaw cz
ęś
ci do wy
łą
cznika awaryjnego 2.744-002
10
Po
łą
czenie
ś
rubowe T
6.386-269
11a
Krócie
ć
przy
łą
czeniowy, mosi
ą
dz
2.638-180
Krócie
ć
przy
łą
czeniowy, stal nierdzewna 2.638-181
11b
Kurek zamykaj
ą
cy NW 8, stal ocynk
4.580-144
Kurek zamykaj
ą
cy NW 8, stal nierdzewna 4.580-163
11c
Element sta
ł
y szybkoz
łą
czki
6.463-025
11d
Element lu
ź
ny szybkoz
łą
czki
6.463-023
Poz. Materia
ł
instalacyjny
Nr katalogo-
wy
12
Wspornik w
ęż
a
2.042-001
13
B
ę
ben do zwijania w
ęż
a
2.637-238
14
W
ąż
wysokoci
ś
nieniowy 10 m
6.388-083
15
Pistolet natryskowy Easypress
4.775-463
Poktr
ę
t
ł
o HDS 9/16-4
4.775-470
Poktr
ę
t
ł
o HDS 12/14-4
4.775-471
16
Wspornik rurki strumieniowej
2.042-002
17
Lanca
4.760-550
18
Ustnik dyszy HDS 9/16-4
2.883-402
Ustnik dyszy HDS 12/14-4
2.883-406
19
W
ąż
wody
4.440-282
19a
Zawór elektromagnetyczny dop
ł
ywu wody 4.743-011
20
Zbiornik
ś
rodka czyszcz
ą
cego, 60 l
5.070-078
21
W
ąż
gazowy R1“
6.388-228
22
Kurek odcinaj
ą
cy gaz R1“
6.412-389
23
Manometr, Gaz (Uwaga! Zawór zamyka-
j
ą
cy zaplanowa
ć
przy wykonaniu.)
6.412-059
24
Zestaw cz
ęś
ci konsoli na
ś
ciennej
2.053-005
Zestaw cz
ęś
ci stela
ż
a
2.210-008
25
W
ąż
wysokoci
ś
nieniowy
6.389-028
360
PL
-
19
Niniejszym o
ś
wiadczamy,
ż
e okre
ś
lone poni
ż
ej urz
ą
dzenie odpo-
wiada pod wzgl
ę
dem koncepcji, konstrukcji oraz wprowadzonej
przez nas do handlu wersji obowi
ą
zuj
ą
cym wymogom dyrektyw
UE dotycz
ą
cym wymaga
ń
w zakresie bezpiecze
ń
stwa i zdrowia.
Wszelkie nie uzgodnione z nami modyfikacje urz
ą
dzenia powo-
duj
ą
utrat
ę
wa
ż
no
ś
ci tego o
ś
wiadczenia.
5.957-648
Z upowa
ż
nienia zarz
ą
du przedsi
ę
biorstwa.
Pe
ł
nomocnik dokumentacji:
S. Reiser
Alfred Kärcher GmbH & Co. KG
Alfred-Kärcher-Str. 28 - 40
71364 Winnenden (Germany)
tel.: +49 7195 14-0
faks: +49 7195 14-2212
Winnenden, 2014/02/01
W ka
ż
dym kraju obowi
ą
zuj
ą
warunki gwarancji okre
ś
lone przez
odpowiedniego lokalnego dystrybutora. W okresie gwarancyjnym
ewentualne usterki usuwamy bezp
ł
atnie, o ile ich przyczyn
ą
jest
wada materia
ł
owa lub b
łą
d produkcyjny.
Deklaracja zgodno
ś
ci UE
Produkt:
Myjka wysokoci
ś
nieniowa
Typ:
1.251-xxx
Obowi
ą
zuj
ą
ce dyrektywy WE
2009/142/WE
2006/42/WE (+2009/127/WE)
2004/108/WE
Zastosowane normy zharmonizowane
EN 55014–1: 2006+A1: 2009+A2: 2011
EN 55014–2: 1997+A1: 2001+A2: 2008
EN 60335–1
EN 60335–2–79
EN 62233: 2008
EN 61000–3–2: 2006+A1: 2009+A2: 2009
HDS 12/14:
EN 61000–3–3: 2008
HDS 9/16:
EN 61000–3–11: 2000
Zastosowane specyfikacje:
QA 195 (nie gaz p
ł
ynny)
Nazwa wspomnianej placówki:
Do 2009/142/WE
GASTEC
Wilmersdorf 50
7327 AC Apeldoorn
Nr ident. 0063
Gwarancja
CEO
Head of Approbation
361
PL
-
20
Serwis firmy
Typ urz
ą
dzenia:
Nr prod.:
Uruchomienie w dniu:
Przegl
ą
d wykonany w dniu:
Wyniki:
Podpis
Przegl
ą
d wykonany w dniu:
Wyniki:
Podpis
Przegl
ą
d wykonany w dniu:
Wyniki:
Podpis
Przegl
ą
d wykonany w dniu:
Wyniki:
Podpis
362
PL
-
1
Pred prvým použitím vášho zariadenia si pre
č
ítajte
tento pôvodný návod na použitie, konajte pod
ľ
a neho
a uschovajte ho pre neskoršie použitie alebo pre
ď
alšieho majite-
ľ
a zariadenia.
–
Pred prvým uvedením do prevádzky si bezpodmiene
č
ne mu-
síte pre
č
ítat' bezpe
č
nostné pokyny
č
. 5.956-309!
–
V prípade poškodenia pri preprave ihne
ď
o tom informujte
predajcu.
Pokyny k zloženiu (REACH)
Aktuálne informácie o zložení nájdete na:
www.kaercher.com/REACH
Nebezpe
č
enstvo
Pri bezprostredne hroziacom nebezpe
č
enstve, ktoré spôsobí
vážne zranenia alebo smr
ť
.
몇
Pozor
V prípade nebezpe
č
nej situácie by mohla vies
ť
k vážnemu zrane-
niu alebo smrti.
Pozor
V prípade možnej nebezpe
č
nej situácie by mohla vies
ť
k
ľ
ahkým
zraneniam alebo vecným škodám.
Vysokotlakový prúd môže by
ť
pri neodbornom použití
nebezpe
č
ný. Prúd sa nesmie nasmerova
ť
na osoby,
zvieratá, elektrické zariadenia pod napätím alebo na
samotné zariadenie.
–
Dodržte príslušné národné predpisy zákonodarcu platné pre
trysky na kvapalinu.
–
Dodržte príslušné národné bezpe
č
nostné predpisy zákono-
darcu. Trysky na kvapalinu je nutné pravidelne skúša
ť
a vý-
sledok skúšky písomne zaznamena
ť
.
–
Ohrievacie zariadenie prístroja je spa
ľ
ovacie zariadenie.
Spa
ľ
ovacie zariadenia sa musia pravidelne skúša
ť
pod
ľ
a prí-
slušných národných predpisov zákonodarcu.
–
Pri prevádzke zariadenia v miestnostiach je nutné sa postara
ť
o bezpe
č
né odvádzanie spalín (dymovod bez prerušova
č
a
ť
ahu). Okrem toho musí by
ť
k dispozícii dostato
č
ný prívod
č
erstvého vzduchu.
–
Dodržte bezpe
č
nostné pokyny, ktoré sú priložené k používa-
ným
č
istiacim prostriedkom (napr. na etikete obalu).
Pred inštaláciou zariadenía by sa mal získa
ť
súhlas plynárenské-
ho podniku a okresného majstra kominára.
Pri inštalácii je nutné dodržiava
ť
stavebné predpisy a predpisy
ochrany proti imisiám. Upozor
ň
ujeme na nasledovné predpisy,
smernice a normy:
–
Prístroj môže inštalova
ť
len odborná prevádzka pod
ľ
a prísluš-
ných národných predpisov.
–
Pri elektrickej inštalácii je nutné dodržiava
ť
príslušné národné
predpisy zákonodarcu.
–
Pri inštalácii plynu je nutné dodržiava
ť
príslušné národné
predpisy zákonodarcu.
–
Inštaláciu plynových potrubí ako aj pripojenie zariadení na
plyn môže vykonáva
ť
len odborná firma s oprávnením na vy-
konávanie plynárenských a vodárenských
č
inností.
–
Nastavenia, údržbárske práce a opravy horáka smú vykoná-
va
ť
len vyškolení montéri služby zákazníkom firmy Kärcher.
–
V prípade plánovania komína je nutné dodržiava
ť
miestne
platné smernice.
Obsah
Ochrana životného prostredia
SK . . 1
Symboly v návode na obsluhu
SK . . 1
Symboly na prístroji. . . . . . .
SK . . 1
Všeobecné bezpe
č
nostné pokyny
SK . . 1
Používanie výrobku v súlade s jeho ur
č
ením
SK . . 2
Funkcia . . . . . . . . . . . . . . . .
SK . . 2
Bezpe
č
nostné prvky . . . . . .
SK . . 2
Prvky prístroja . . . . . . . . . . .
SK . . 3
Uvedenie do prevádzky. . . .
SK . . 4
Obsluha. . . . . . . . . . . . . . . .
SK . . 4
Vyradenie z prevádzky . . . .
SK . . 6
Odstavenie . . . . . . . . . . . . .
SK . . 6
Uskladnenie . . . . . . . . . . . .
SK . . 6
Transport. . . . . . . . . . . . . . .
SK . . 6
Technické údaje . . . . . . . . .
SK . . 7
Starostlivos
ť
a údržba . . . . .
SK . . 9
Pomoc pri poruchách . . . . .
SK . 11
Príslušenstvo. . . . . . . . . . . .
SK . 13
Inštalácia zariadenia . . . . . .
SK . 14
Vyhlásenie o zhode s normami EÚ
SK . 19
Záruka . . . . . . . . . . . . . . . . .
SK . 19
Servisná služba. . . . . . . . . .
SK . 20
Ochrana životného prostredia
Obalové materiály sú recyklovate
ľ
né. Obalové mate-
riály láskavo nevyhadzujte do komunálneho odpadu,
ale odovzdajte ich do zberne druhotných surovín.
Vyradené prístroje obsahujú hodnotné recyklovate
ľ
né
látky, ktoré by sa mali opät' zužitkovat'. Do životného
prostredia sa nesmú dostat' batérie, olej a iné podob-
né látky. Staré zariadenia preto láskavo odovzdajte
do vhodnej zberne odpadových surovín.
Motorový olej, vykurovací olej, nafta a benzín sa nesmú dostat'
do okolia a zat'ažit' životné prostredie. Prosíme, aby ste chránili
pôdu a starý olej likvidovali ekologicky.
Č
istiace prostriedky Kärcher sú vhodne odlu
č
ite
ľ
né (ASF). To
znamená, že nie je bránené funkcii odlu
č
ova
č
a oleja. Zoznam
odporú
č
aných
č
istiacich prostriedkov je uvedený v kapitole "Prí-
slušenstvo".
Symboly v návode na obsluhu
Symboly na prístroji
Všeobecné bezpe
č
nostné pokyny
Predpisy, smernice a pravidlá
363
SK
-
2
Pracovisko sa nachádza pri ovládacom paneli.
Ď
alšie pracoviská
sú pod
ľ
a inštalácie zariadenia pri prístrojoch príslušenstva (strie-
kacie zariadenia), ktoré sú pripojené k odbernému miestu.
–
Na ochranu pred odstrekujúcou vodou alebo ne
č
istotami nos-
te vhodný ochranný odev a ochranné okuliare.
Zariadenie slúži na to, aby sa pomocou vo
ľ
ne vystupujúceho prú-
du vody odstránila z povrchu predmetov ne
č
istota. Používa sa
hlavne na
č
istenie strojov, vozidiel a fasád domov.
Nebezpe
č
enstvo
Nebezpe
č
enstvo poranenia! Pri použití na
č
erpacích staniciach
alebo v iných nebezpe
č
ných oblastiach dodržujte príslušné bez-
pe
č
nostné predpisy.
–
Studená voda sa dostane cez chladiaci had motora do nádrže
s plavákom a odtia
ľ
do vonkajšieho pláš
ť
a prietokového
ohrieva
č
a a
ď
alej na nasávaciu stranu vysokotlakového
č
er-
padla. Do nádrže s plavákom sa pridáva zmäk
č
ova
č
vody.
Č
erpadlo dopravuje vodu a nasatý
č
istiaci prostriedok cez
prietokový ohrieva
č
. Podiel
č
istiaceho prostriedku vo vode sa
dá nastavi
ť
pomocou dávkovacieho ventilu. Prietokový ohrie-
va
č
sa ohrieva pomocou plynového horáka.
–
Vysokotlakový výstup sa pripája do vysokotlakovej vodovod-
nej siete v budove. V odberných miestach tejto siete sa po-
mocou vysokotlakovej hadice pripojí ru
č
ná striekacia pišto
ľ
.
Bezpe
č
nostné zariadenia slúžia na ochranu užívate
ľ
a a nesmie
sa vyradi
ť
z prevádzky alebo obchádza
ť
jeho funkcie.
Poistka proti nedostatku vody zabra
ň
uje zapnutiu vysokotlakové-
ho
č
erpadla v prípade nedostatku vody.
Poistka proti nedostatku vody zabra
ň
uje prehriatiu horáka v prí-
pade nedostatku vody. Horák je v prevádzke len pri dostato
č
nom
prívode vody.
Tlakový spína
č
vypína prístroj pri prekro
č
ení pracovného tlaku.
Nastavenie sa nesmie menit'.
V prípade poruchy tlakového spína
č
a sa otvorí poistný ventil.
Tento ventil je nastavený z výrobného závodu a zaplombovaný.
Nastavenie sa nesmie menit'.
V prípade nedostatku paliva alebo poruchy horáka kontrolný sní-
ma
č
plame
ň
a horák vypne. Rozsvieti sa kontrolka poruchy horá-
ka (E).
Ak je motor horáka zablokovaný, aktivuje sa spína
č
ochrany proti
nadprúdu. Motor vysokotlakového
č
erpadla je zaistený pomocou
ochanného spína
č
a motora a vinutia.
Termostat spalín sa aktivuje, ak teplota spalín prekro
č
í 320 °C.
Kontrolka termostatu spalín (K) svieti.
Obmedzova
č
maximálnej teploty na dne kotla (> 80 °C) a na vý-
stupe vody (> 110 °C) sa aktivuje a kontrolka poruchy horáka (E)
svieti.
Tlakový spína
č
spalín vypína horák, ak v systéme odvádzania
spalín vzniká neprípustne vysoký protitlak, napr. pri upchatí.
Po vypnutí prístroja pomocou ru
č
nej striekacej pištole sa vo vy-
sokotlakovom systéme po uplynutí
č
asu pripravenosti na pre-
vádzku vypne nadradený magnetický ventil, pri
č
om tlak klesne.
Pracoviská
Osobné ochranné pomôcky
Pri
č
istení dielov, ktoré vytvárajú ve
ľ
ký hluk, je
nutné nosit' ochranu sluchu, aby nedošlo k po-
škodeniu sluchu.
Používanie výrobku v súlade s jeho ur
č
ením
Odpadovú vodu s obsahom minerálneho oleja nevypúšt'ajte do
pôdy, vodných tokov alebo kanalizácie. Motor a spodok auta
preto umývajte na vhodných miestach, vybavených odlu
č
ova
č
-
mi oleja.
Funkcia
Bezpe
č
nostné prvky
Poistka proti nedostatku vody v nádrži s plavákom
Poistka proti nedostatku vody v poistnom bloku
Tlakový spína
č
Poistný ventil
Kontrola plame
ň
a
Ochrana proti nadprúdu
Termostat spalín
Obmedzova
č
teploty
Tlakový spína
č
spalín
Odtlakovanie vysokotlakového systému
364
SK
-
3
obr. 1
1 Horák
2 Tlakomer
3 Prívod
č
erstvej vody so sitom
4 Vysokotlakový výstup
5 Plynová prípojka
6 Sacia hadica na
č
istiaci prostriedok I
7 Sacia hadica na
č
istiaci prostriedok II (Prídavná možnost')
8 Nádrž na zmäk
č
ova
č
vody
9 Elektrické vedenie
10 Nádrž s plavákom
11 Ovládací panel
obr. 2
A Vypína
č
prístroja
B Regulátor teploty
C Dávkovací ventil
č
istiaceho prostriedku I
D Dávkovací ventil
č
istiaceho prostriedku II (Prídavná mož-
nost')
E Kontrolka poruchy horáka
F Kontrolka pripravenosti na prevádzku
G Kontrolka prehriatia motora
H Kontrolka ochrany proti vodnému kame
ň
u
I
Odblokovacie tla
č
idlo plynového relé
J Odblokovacie tla
č
idlo termostatu spalín
K Kontrolka termostatu spalín
Prvky prístroja
4
5
6
7
3
8
10
1
11
2
9
Ovládací panel
365
SK
-
4
몇
Nebezpe
č
enstvo
Nebezpe
č
enstvo poranenia! Prístroj, prívody, vysokotlaková ha-
dica a prípojky musia by
ť
v bezchybnom stave. V prípade, že stav
nie je bezchybný, nesmie sa prístroj použi
ť
.
–
Hodnoty pripojenia nájdete v technických údajoch a na výrob-
nom štítku.
–
Elektrické pripojenie musí vykona
ť
elektroinštalatér a musí
zodpoveda
ť
IEC 60364-1.
Používate
ľ
je povinný používa
ť
zariadenie v súlade s jeho ur
č
e-
ním. Je povinný prihliada
ť
na miestne podmienky a pri práci so
zariadením dáva
ť
pozor aj na osoby vo svojom okolí.
Zariadenie sa nesmie nikdy ponecháva
ť
bez dozoru, ak je v
č
in-
nosti.
Nebezpe
č
enstvo
–
Riziko oparenia horúcou vodou! Vysokotlakový prúd vody ne-
smerujte na
ľ
udí alebo zvieratá.
–
Nebezpe
č
ie popálenia horúcimi
č
ast'ami zariadenia! Po
č
as
prevádzky s horúcou vodu sa nedotýkajte neizolovaných po-
trubí a hadíc. Trysku držte len za držiak. Nedotýkajte sa hrdla
spalín prietokového ohrieva
č
a.
–
Nebezpe
č
ie otrávenia alebo popálenia
č
istiacim prostried-
kom! Dodržujte pokyny týkajúce sa
č
istiaceho prostriedka.
Č
istiaci prostriedok skladujte na neprístupných miestach.
Nebezpe
č
enstvo
Nebezpe
č
enstvo úrazu elektrickým prúdom! Nesmerujte prúd
vody na nasledovné zariadenia:
–
Elektrické prístroje a zariadenia,
–
samotné toto zariadenie,
–
všetky diely v pracovnom rozsahu vedúce elektrický prúd.
V dôsledku prúdu vody vystupujúceho z trysky vzniká spätná ná-
razová sila. Pri ohnutej tryske pôsobí sila smerom hore.
Nebezpe
č
enstvo
–
Nebezpe
č
enstvo poranenia! Spätný náraz trysky vás môže
vyviest' z rovnováhy. Mohli by ste spadnút'. Tryska môže od-
letiet' a poranit' osoby. Vyh
ľ
adajte bezpe
č
né miesto na státie
a dobre držte ru
č
nú striekaciu pišto
ľ
. Nikdy neupev
ň
ujte páku
ru
č
nej striekacej pištole.
–
Pri
č
istení odevu alebo obuvi nesmie by
ť
prúd nasmerovaný
na iných ani na seba.
–
Nebezpe
č
ie poranenia v dôsledku odletujúcich dielov! Odle-
tujúce úlomky alebo predmety môžu poranit' osoby alebo
zvieratá. Prúd vody nikdy nesmerujte na
ľ
ahko sa odlamujúce
alebo uvo
ľ
nené predmety.
–
Nebezpe
č
ie vzniku úrazu v dôsledku poškodenia! Pneumati-
ky a ventily
č
istit' z minimálnej vzdialenosti 30 cm.
몇
Pozor
Nebezpe
č
ie pochádzajúce zo zdraviu nebezpe
č
ných látok! Ne-
č
istite nasledovné materiály, lebo by sa mohli uvo
ľ
nit' zdraviu ne-
bezpe
č
né látky.
–
Materiály obsahujúce azbest,
–
materiály, ktoré môžu obsahovat' zdraviu škodlivé látky.
Nebezpe
č
enstvo
–
Nebezpe
č
ie poranenia v dôsledku vystupujúceho poprípade
horúceho prúdu vody! Pre zariadenie sú optimálne ur
č
ené len
originálne vysokotlakového hadice Kärcher. Pri používaní
iných hadíc naša záruka stráca platnost'.
–
Nebezpe
č
ie ohrozenia zdravia v dôsledku použitého
č
istiace-
ho prostriedku! V dôsledku pridania
č
istiaceho prostriedku nie
je voda vystupujúca zo zariadenia pitná.
–
Nebezpe
č
ie poškodenia sluchu pri práci s dielmi zosil
ň
ujúcimi
hluk! V tomto prípade noste ochranu sluchu.
Nebezpe
č
enstvo
Nebezpe
č
ie poranenia v dôsledku vystupujúceho poprípade ho-
rúceho prúdu vody!
Nebezpe
č
enstvo
Pred každým použitím skontrolujte,
č
i vysokotlaková hadica nie
je poškodená. Poškodenú vysokotlakovú hadicu neodkladne vy-
me
ň
te.
Pred každým použitím skontrolujte vysokotlakovú hadicu, po-
trubia, armatúry a trysku,
č
i nie sú poškodené.
Skontrolujte hadicovú spojku,
č
i pevne dosadá a tesní.
Pozor
Nebezpe
č
ie poškodenia v dôsledku chodu na sucho.
Skontrolujte stav naplnenia nádrže na
č
istiaci prostriedok a v
prípade potreby ho dopl
ň
te.
Skontrolujte stav zmäk
č
ova
č
a kvapaliny a v prípade potreby
ho dopl
ň
te.
Nastavte vypína
č
prístroja (A) na “0”.
Uzatvorte prívod vody.
Ru
č
nú striekaciu pišto
ľ
používajte tak dlho, až v prístroji nie je
žiadny tlak.
Uzavrite prívod plynu.
Uvedenie do prevádzky
Siet'ové napájanie
Obsluha
Bezpe
č
nostné pokyny
!
Príprava na prevádzku
Vypnutie v núdzovej situácii
366
SK
-
5
Ventil regulácie množstva oto
č
te v smere pohybu hodinových
ru
č
i
č
iek, aby sa dosiahol vyšší prevádzkový tlak a vä
č
šie do-
pravované množstvo.
Ventil regulácie množstva oto
č
te oproti smeru pohybu hodi-
nových ru
č
i
č
iek, aby sa dosiahol nižší prevádzkový tlak a
menšie dopravované množstvo.
Oto
č
ením regulátora množstva vody smerom doprava sa zvy-
šuje dopravované množstvo a pracovný tlak.
Oto
č
ením regulátora množstva vody smerom do
ľ
ava sa zni-
žuje dopravované množstvo a pracovný tlak.
Otvorte prívod vody.
Symbol "Motor zap"
Potiahnite páku ru
č
nej striekacej pištole a vypína
č
zariadenia
(A) prepnite do polohy "1" (Motor zap).
Kontrolka pripravenosti na prevádzku (F) zobrazuje priprave-
nost' na prevádzku.
Nebezpe
č
enstvo
Nebezpe
č
enstvo oparenia!
Pozor
Prevádzka s horúcou vodou bez paliva má za následok poškode-
nie palivového
č
erpadla. Pred za
č
atím prevádzky s horúcou vo-
dou zabezpe
č
te prívod paliva.
Horák sa môže v prípade potreby pripojit'.
Symbol "Horák zap"
Nastavte vypína
č
prístroja (A) na “Horák zap”.
Na regulátore teploty (B) nastavte požadovanú teplotu vody.
Najvyššia teplota je 98 °C.
–
Ak sa po
č
as prevádzky uvo
ľ
ní páka ru
č
nej striekacej pištole,
prístroj sa vypne.
–
Pri opätovnom otvorení pištole do nastavenej doby priprave-
nosti na prevádzku (2...8 minút) sa prístroj opät' samo
č
inne
zapne.
–
Ak sa prekro
č
í
č
as pripravenosti na prevádzku, poistný
č
aso-
vý spína
č
vypne
č
erpadlo a horák. Kontrolka pripravenosti na
prevádzku (F) zhasne.
–
Ak chcete prístroj opät' zapnút', vypína
č
prístroja je nutné pre-
pnút' do polohy "0" a potom ho opät' zapnút'. Ak sa prístroj
ovláda pomocou dia
ľ
kového ovláda
č
a, opätovné uvedenie do
prevádzky je možné uskuto
č
nit' pomocou príslušného vypí-
na
č
a na dia
ľ
kovom ovládaní.
–
Pneumatiky vozidiel sa
č
istia len pomocou plochej trysky
(25°) a z minimálnej vzdialenosti 30 cm. V žiadnom prípade
sa nesmú pneumatiky
č
istit' pomocou kruhového prúdu.
Pre všetky ostatné úlohy sú k dispozícii nasledovné trysky:
S potrubím dlhším ako 20 m alebo vysokotlakovou hadicou NW
8 dlhšou ako 2 x 10 m sa používajú nasledovné trysky:
Nastavenie pracovného tlaku a dopravovaného
množstva
Nastavenie na prístroji
Nastavenie na tlakovej pištoli Easy (Prídavná možnos
ť
)
Prevádzka so studenou vodou
R
Prevádzka s horúcou vodou
Pripravenost' na prevádzku
Výber trysky
Zne
č
iste-
nie
Tryska
Uhol
striekania
Č
ís. die-
lu 6.415
Tlak
[MPa]
Spätný
náraz [N]
HDS 9/16
silné
00060
0°
-649
16
46
stredné
25060
25°
-647
slabé
40060
40°
-648
HDS 12/14
silné
00080
0°
-150
14
55
stredné
25080
25°
-152
slabé
40080
40°
-153
Zne
č
iste-
nie
Tryska
Uhol
striekania
Č
ís. die-
lu 6.415
Tlak
[MPa]
Spätný
náraz [N]
HDS 9/16
silné
0075
0°
-419
10
37
stredné
2575
25°
-421
slabé
4075
40°
-422
HDS 12/14
silné
0010
0°
-082
10
46
stredné
2510
25°
-252
slabé
4010
40°
-253
367
SK
-
6
–
Č
istiaci prostriedok u
ľ
ah
č
uje
č
istenie. Nasáva sa z externej
nádrže na
č
istiaci prostriedok.
–
Prístroj je v základnej výbave vybavený jedným dávkovacím
ventilom (C). Druhé dávkovacie zariadenie (dávkovací ventil
D) sa dá získat' ako špeciálne príslušenstvo. Vtedy existuje
možnost' nasávat' dva rozli
č
né
č
istiace prostriedky.
–
Dávkovacie množstvo sa nastavuje na dávkovacích ventiloch
č
istiaceho prostriedku (C alebo D) na ovládacom paneli. Na-
stavená hodnota zodpovedá podielu
č
istiaceho prostriedku v
percentách.
–
Vonkajšia stupnica platí pri použití neriedeného
č
istiaceho
prostriedku (100 % CHEM).
–
Vnútorná stupnica platí pri použití
č
istiaceho prostriedku rie-
deného 1+3 (25 % CHEM + 75 % voda).
Nasledovná tabu
ľ
ka udáva spotrebu
č
istiaceho prostriedku pre
hodnoty na vonkajšej stupnici.
Presné dávkovacie množstvo je závislé od:
–
Viskozita
č
istiaceho prostriedku
–
Nasávacia výška
–
Odpor prúdenia vysokotlakovým potrubím
Ak je nutné presné dávkovanie, je nutné zmerat' nasaté množ-
stvo
č
istiaceho prostriedku (napr. nasatím z odmerky).
Upozornenie:
Odporú
č
ania týkajúce sa
č
istiaceho prostriedku
nájdete v kapitole "Príslušenstvo".
Pozor
V prípade prevádzky bez zmäk
č
ova
č
a vody môže v prietokovom
ohrieva
č
i dôjst' k vzniku vodného kame
ň
a.
V prípade prázdnej nádrže na zmäk
č
ova
č
vody bliká kontrolka
ochrany proti vzniku vodného kame
ń
a (H).
Obr. 1 - Poz. 8
Nádrž na zmäk
č
ova
č
vody dopl
ň
te zmäk
č
ova
č
om RM 110
(2.780-001).
Nebezpe
č
enstvo
Riziko oparenia horúcou vodou! Po prevádzke s horúcou vodou
musí prístroj uvies
ť
do prevádzky aspo
ň
na dve minúty so stude-
nou vodou pri otvorenej tryske kvôli ochladeniu.
Pri prevádzke s horúcou vodou nastavte regulátor teploty (B)
na najnižšiu teplotu.
Prístroj používajte minimálne 30 sekúnd bez
č
istiaceho pros-
triedku.
Nastavte vypína
č
prístroja (A) na “0”.
Uzatvorte prívod vody.
Ru
č
nú striekaciu pišto
ľ
používajte tak dlho, až v prístroji nie je
žiadny tlak.
Ru
č
nú striekaciu pišto
ľ
zaistite proti neúmyselnému otvore-
niu.
V prípade dlhších prestávok v prevádzke alebo ak nie je možné
skladovanie v teple, uskuto
č
nite nasledovné opatrenia (vi
ď
kapi-
tola "Ošetrovanie a údržba", odsek "Ochrana proti zamrznutiu"):
Vodu vypustite.
Prístroj prepláchnite nemrznúcou zmesou.
Vypnite hlavný vypína
č
a zaistite alebo vytiahnite zástr
č
ku
Cekon.
Uzavrite prívod plynu.
Pozor
Nebezpe
č
enstvo zranenia a poškodenia! Pri uskladnení zariade-
nia zoh
ľ
adnite jeho hmotnos
ť
.
Pozor
Nebezpe
č
enstvo zranenia a poškodenia! Pri prepravovaní zaria-
denia zoh
ľ
adnite jeho hmotnos
ť
.
Pri preprave vo vozidlách zariadenie zaistite proti zošmyknu-
tiu a prevráteniu pod
ľ
a platných smerníc.
Dávkovanie
č
istiaceho prostriedku
Poloha
0,5
1
8
Množstvo
č
istiaceho prostriedku
[l/h]
14...15 22...24
50
Koncentrácia
č
istiaceho prostried-
ku [%]
1,5
2,5
> 5
Doplnenie zmäk
č
ova
č
a vody
Vyradenie z prevádzky
Po ukon
č
ení prevádzky s
č
istiacimi prostriedkami
Vypnutie prístroja
Odstavenie
Uskladnenie
Transport
368
SK
-
7
Technické údaje
HDS 9/16-4
ST Gas
HDS 9/16-4
ST Gas LPG
HDS 12/14-4
ST Gas
HDS 12/14-4
ST Gas LPG
1.251-108
1.251-109
1.251-110
1.251-111
Výkonové parametre
Pracovný tlak vody (so štandardnou tryskou)
MPa (bar)
16 (160)
16 (160)
14 (140)
14 (140)
Max. prevádzkový pretlak (poistný ventil)
MPa (bar)
18,5 (185)
18,5 (185)
18,5 (185)
18,5 (185)
Dopravované množstvo vody (plynule nastavite
ľ
né)
l/h (l/min)
500-1000 (8,3-
16,6)
500-1000 (8,3-
16,6)
600-1200 (10-
20)
600-1200 (10-
20)
Nasávanie
č
istiaceho prostriedku (plynule regulovate
ľ
-
né)
l/h (l/min)
0-50 (0-0,8)
0-50 (0-0,8)
0-60 (0-1)
0-60 (0-1)
Pripojenie vody
Prívodné množstvo (min.)
l/h (l/min)
1100 (18,3)
1100 (18,3)
1300 (21,7)
1300 (21,7)
Prívodný tlak (min.)
MPa (bar)
0,1 (1)
0,1 (1)
0,1 (1)
0,1 (1)
Prívodný tlak (max.)
MPa (bar)
0,6 (6)
0,6 (6)
0,6 (6)
0,6 (6)
Elektrické pripojenie
Druh prúdu
--
3N~
3N~
3N~
3N~
Frekvencia
Hz
50
50
50
50
Napätie
V
380-420
380-420
380-420
380-420
Pripojovací výkon
kW
6,4
6,4
7,5
7,5
Elektrická poistka (zotrva
č
ná)
A
16
16
20
20
Druh krytia
--
IPX5
IPX5
IPX5
IPX5
Krytie
--
I
I
I
I
Maximálne prípustná siet'ová impedancia
Ohmov
(0,381+j
0,238)
(0,381+j
0,238)
--
--
Elektrické vedenie
mm
2
5 x 2,5
5 x 2,5
5 x 2,5
5 x 2,5
Teplota
Prívodná teplota (max.)
°C
30
30
30
30
Max. pracovná teplota horúcej vody
°C
98
98
98
98
Max. teplota poistného termostatu
°C
110
110
110
110
Zvýšenie teploty pri max. prietoku vody
°C
60-65
60-65
60-65
60-65
Ohrevný výkon brutto
kW
75
75
95
95
t'ah komína
kPa
0,01-0,04
0,01-0,04
0,01-0,04
0,01-0,04
Hodnoty pripojenia plynu
Zemný plyn E (G 20)
m
3
/h
7,2
--
9,8
--
Zemný plyn LL (G 25)
m
3
/h
8,2
--
11,4
--
Menovitý pripojovací tlak (zemný plyn)
kPa
1,8-5
--
1,8-5
--
Propán
kg/h
--
5,7
--
7,2
Menovitý pripojovací tlak (propán)
kPa
--
5-6
--
5-6
Údaje životného prostredia
Normalizovaná ú
č
innos
ť
%
97
97
97
97
Normalizovaný sú
č
inite
ľ
emisií NO
X
(zemný plyn G 25) mg/kWh
< 40
--
< 40
--
Normalizovaný sú
č
inite
ľ
emisií CO (zemný plyn G 25)
mg/kWh
< 40
--
< 40
--
Hodnoty pre meranie komína
Pretlakové
č
istenie (min.)
kPa
0,05
0,05
0,05
0,05
Potreba
ť
ahu
kPa
0
0
0
0
Prietokové množstvo spalín pri plnom za
ť
ažení
kg/h
130
130
166
166
CO
2
(zemný plyn)
%
9,5
--
9,5
--
CO
2
(propan)
%
--
12
--
12
Teplota spalín max./min.
°C
190/150
190/150
170/130
170/130
Spa
ľ
ovací vzduch/prívod vzduchu
Max. d
ĺ
žka: 10 m s dvoma oblúkmi 90° (minimálny priemer 100 mm). Pod
ľ
a
miestnych predpisov z miesta inštalácie alebo
č
erstvý vzduch zvonka.
Vypúš
ť
anie kondenzátu
Vypúš
ť
anie kondenzátu (max.)
l/h
4 (nad sifónom
do kanalizá-
cie)
4 (nad sifónom
do kanalizá-
cie)
4 (nad sifónom
do kanalizá-
cie)
4 (nad sifónom
do kanalizá-
cie)
Prípojka
DN
40 (HTR)
40 (HTR)
40 (HTR)
40 (HTR)
Minimálny vodný st
ĺ
pec, sifón
mm
300
300
300
300
369
SK
-
8
Povolenie EN 60335-2-79
Povolenie pod
ľ
a smernice o plynových zariadeniach (90/
396/EEC)
--
Gastec QA
Low NO
X
Gastec QA
Gastec QA
Low NO
X
Gastec QA
Kategória zariadení Európa
--
I 2E (r), I
2ELL, I 2H, I
2L, I2 HE
I 3P
I 2E (r), I
2ELL, I 2H, I
2L, I2 HE
I 3P
Typ zariadenia
--
B23, C33,
C43, C53
B23, C33,
C43, C53
B23, C33,
C43, C53
B23, C33,
C43, C53
Identifika
č
né
č
íslo výrobku CE
--
PIN 0063 BN
3880
PIN 0063 BN
3880
PIN 0063 BN
3880
PIN 0063 BN
3880
Rozmery a hmotnost'
D
ĺ
žka
mm
1124
1124
1124
1124
Šírka
mm
558
558
558
558
Výška
mm
966
966
1076
1076
Typická prevádzková hmotnos
ť
kg
193,5
193,5
209
209
Zistené hodnoty pod
ľ
a EN 60355-2-79
Emisie hluku
Hlu
č
nos
ť
L
pA
dB(A)
74
74
76
76
Nebezpe
č
nos
ť
K
pA
dB(A)
1
1
1
1
Hodnota vibrácií v ruke/ramene
Ru
č
ná striekacia pišto
ľ
m/s
2
2,2
2,2
2,3
2,3
Rozstrekovacia rúrka
m/s
2
1,8
1,8
2,1
2,1
Nebezpe
č
nos
ť
K
m/s
2
1,0
1,0
1,0
1,0
HDS 9/16-4
ST Gas
HDS 9/16-4
ST Gas LPG
HDS 12/14-4
ST Gas
HDS 12/14-4
ST Gas LPG
Rozmerový ná
č
rtok
370
SK
-
9
Nebezpe
č
enstvo
Nebezpe
č
enstvo poranenia! Pred všetkými údržbárskymi a opra-
várskymi prácami je vždy nutné vypnú
ť
hlavný vypína
č
alebo vy-
tiahnu
ť
zástr
č
ku Cekon.
Starostlivos
ť
a údržba
Plán údržby
Č
asový bod
Č
innost'
príslušná konštruk
č
ná sku-
pina
Prevedenie
kým
denne
Kontrola ru
č
nej
striekacej pištole
Ru
č
ná striekacia pišto
ľ
Skontrolujte,
č
i sa ru
č
ná striekacia pišto
ľ
tesnie
uzavrie. Skontrolujte funkciu poistky vo
č
i neúmy-
selnému použitiu. Chybné striekacie pištole vy-
me
ň
te.
Obsluha
Kontrola vyso-
kotlakových ha-
díc
Výstupné vedenia, hadice k
pracovnému prístroju
Skontrolujte hadice,
č
i nie sú poškodené. Chyb-
né hadice okamžite vyme
ň
te. Nebezpe
č
ie vzniku
úrazu!
Obsluha
Skontrolujte spo-
jovacie vedenie
so sie
ť
ovou zá-
str
č
kou
Elektrická prípojka so zástr
č
-
kou alebo zásuvkou
Skontrolujte spojovacie vedenie so sie
ť
ovou zá-
str
č
kou na poškodenie. Poškodený prívodný ká-
bel dajte bezodkladne vymeni
ť
autorizovanej
servisnej službe alebo kvalifikovanému elektro-
technikovi.
Obsluha
týždenne alebo po
40 prevádzkových
hodinách
Kontrola stavu
oleja
Olejová nádrž na
č
erpadle
Ak olej zakalený, musí sa vymenit'.
Obsluha
Kontrola stavu
oleja
Olejová nádrž na
č
erpadle
Skontrolujte stav oleja
č
erpadla. V prípade potre-
by olej (Obj.-
č
. 6.288-016) dopl
ň
te.
Obsluha
Vy
č
istenie sita
Sito na vstupe vody
Vi
ď
odsek "
Č
istenie sita".
Obsluha
mesa
č
ne alebo po
200 prevádzko-
vých hodinách
Kontrola
č
erpad-
la
Vysokotlaké
č
erpadlo
Skontrolujte
č
erpadlo,
č
i tesní. V prípade viac
ako 3 kvapiek za minútu privolajte servisnú služ-
bu zákazníkom.
Obsluha
Kontrola usade-
nín vo vnútri
celé zariadenie
Zariadenie s tryskou bez vysokotlakovej trysky
uve
ď
te do prevádzky. Ak prevádzkový tlak na
manometri prístroja stúpa nad 3 MPa, zo zaria-
denia sa musí odstránit' vodný kame
ň
. To isté
platí aj, ak sa po
č
as prevádzky bez vysokotlako-
vého potrubia (voda vo
ľ
ne vystupuje na vysokot-
lakovom výstupe) zistí prevádzkový tlak viac ako
0,7-1 MPa.
Obsluha s
osved
č
ením
pre vykoná-
vanie odstra-
ň
ovania
vodného ka-
me
ň
a
Vy
č
istenie sita
Sito v poistke proti nedostatku
vody
Vi
ď
odsek "
Č
istenie sita".
Obsluha
po 500-700 pre-
vádzkových hodi-
nách
Výmena
Žeraviaci zapa
ľ
ova
č
, ioniza
č
ná
elektróda
Vyme
ň
te žeraviaci zapa
ľ
ova
č
popr. ioniza
č
nú
elektródu.
Servisná
služba
polro
č
ne alebo po
1000 prevádzko-
vých hodinách
Výmena oleja
Vysokotlaké
č
erpadlo
Olej vypustite. Dopl
ň
te 1 l nového oleja (Obj.-
č
.
6.288-016). Skontrolujte stav oleja v nádrži.
Obsluha
Kontrola,
č
iste-
nie
celé zariadenie
Vizuálna kontrola zariadenia, skontrolujte vyso-
kotlakové prípojky, nadprúdový ventil, vysokotla-
kové hadice, tlakovú nádobu,
č
i sú tesné.
Odstrá
ň
te vodný kame
ň
, vy
č
istite alebo vyme
ň
te
ioniza
č
né elektródy. Horák nastavte.
Servisná
služba
Výmena hadice Hadica pre tlakový spína
č
spa-
lín
Hadicu vyme
ň
te.
Servisná
služba
ro
č
ne
Bezpe
č
nostná
kontrola
celé zariadenie
Vykonajte kontrolu bezpe
č
nosti pre striekacie
trysky na kvapaliny pod
ľ
a príslušných národných
predpisov zákonodárcu.
Kontrolór
371
SK
-
10
S kompetentným predajným miestom firmy Kärcher sa môže
uzavriet' zmluva o údržbe tohto prístroja.
Obr. 1 - Poz. 3
Uzatvorte prívod vody.
Prívodnú hadicu vody naskrutkujte na prístroj.
Sito vytiahnite pomocou skrutkova
č
a.
Vy
č
istenie sita
Opät' namontujte v opa
č
nom poradí.
Odoberte plech opláštenia.
Z bezpe
č
nostného bloku odskrutkujte uholník.
Do sita naskrutkujte skrutku M8x30.
Skrutku a sito vytiahnite pomocou klieští.
Vy
č
istenie sita
Opät' namontujte v opa
č
nom poradí.
V prípade usadenín v potrubiach stúpa odpor proti prúdeniu, tak-
že môže byt' aktivovaný tlakový spína
č
.
Nebezpe
č
enstvo
Nebezpe
č
enstvo výbuchu hor
ľ
avých plynov! Pri odstra
ň
ovaní
vodného kame
ň
a je faj
č
enie zakázané. Dbajte na dostato
č
né
vetranie.
Nebezpe
č
enstvo
Nebezpe
č
enstvo poleptania kyselinou! Nosi
ť
ochranné okuliare a
ochranné rukavice.
Na odstránenie sa môžu použit' len rozpúšt'adlá vodného kame-
ň
a preskúšané pod
ľ
a zákonných predpisov a ozna
č
ené kontrol-
nou zna
č
kou.
–
RM 100 (Obj.-
č
. 6.287-008) rozpúšt'a vodný kame
ň
a jedno-
duché zlú
č
eniny vodného kame
ň
a ako aj zvyšky po umýva-
com prostriedku.
–
RM 101 (Obj.-
č
. 6.287-013) rozpúšt'a usadeniny, ktoré sa ne-
dajú rozpustit' pomocou RM 100.
20 litrovú nádržu napl
ň
te 15 l vody.
K tomu pridajte jeden liter rozpúšt'adla na vodný kame
ň
.
Hadicu na vodu pripojte priamo na hlavu
č
erpadla a vo
ľ
ný ko-
niec dajte do nádrže.
Pripojenú trysku bez dýzy vložte do nádrže.
Otvorte ru
č
nú striekaciu pišto
ľ
a po
č
as odstra
ň
ovania vodné-
ho kame
ň
a ju neuzatvárajte.
Vypína
č
prístroja prepnite do polohy "Horák zap", kým sa ne-
dosiahne asi 40 °C.
Prístroj vypnite a nechajte stát' 20 minút. Ru
č
ná striekacia
pišto
ľ
musí zostat' otvorená.
Prístroj potom nechajte od
č
erpat' naprázdno.
Upozornenie:
Pre ochranu proti korózii a neutralizovanie zvyš-
kov kyselín potom odporú
č
ame necha
ť
cez prístroj pre
č
erpa
ť
al-
kalický roztok (napr. RM 81) z nádrže na
č
istiaci prostriedok.
Prístroj sa má nainštalovat' do priestorov chránenýchproti mrazu.
V prípade nebezpe
č
ia zamrznutia, napr. pri inštaláciach vonku,
sa musí prístroj vypustit' a prepláchnut' prostriedkom na ochranu
proti zamrznutiu.
Hadicu pre prívod vody a vysokotlakovú hadicu odskrutkujte.
Prístroj nechajte bežat' max. 1 minútu, pokia
ľ
nebudú
č
erpad-
lo a potrubia prázdne.
Prívodné vedenie u dna kotla odpojte a ohrievacie teleso ne-
chajte bežat' naprázdno.
Upozornenie:
Dodržiavajte predpisy výrobcu pre manipuláciu s
nemrznúcou zmesou.
Nádrž s plavákom napl
ň
te až do plna bežne dostupným pros-
triedkom na ochranu proti zamrznutiu.
Pod vysokotlakový výstup podložte zachytávaciu nádobu.
Prístroj zapnite a nechajte bežat' tak dlho, kým sa neaktivuje
poistka nedostatku vody v nádrži s plavákom a nevypne prí-
stroj.
Napl
ň
te dno a sifón prostriedkom na ochranu proti mrazu.
Tým sa tiež dosiahne istá ochrana proti korózii.
Zmluva o údržbe
Vy
č
istenie sita
Sito na vstupe vody
Sito v poistke proti nedostatku vody
Odstránenie vodného kame
ň
a
Prevedenie
2.
1.
Ochrana proti zamrznutiu
Vypustenie vody
Prepláchnutie prístroja nemrznúcou zmesou
372
SK
-
11
Nebezpe
č
enstvo
Nebezpe
č
enstvo poranenia! Pred všetkými údržbárskymi a opra-
várskymi prácami je vždy nutné vypnú
ť
hlavný vypína
č
alebo vy-
tiahnu
ť
zástr
č
ku Cekon.
*
Upozornenie
Zatla
č
te odblokovacie tla
č
idlo termostatu spalín (J) a tým odblo-
kujete kontrolu plame
ň
a.
Pomoc pri poruchách
Porucha
Možné prí
č
iny
Odstránenie
kým
Prístroj nebeží, kontrolka pri-
pravenosti na prevádzku (F)
nesvieti.
Prístroj nie je pripojený k elektric-
kému napätiu.
Skontrolujte elektrickú siet'.
Elektrikár
Aktivovaný poistný
č
asový spína
č
. Pomocou vypína
č
a prístroj krátko vypnite a
opät' zapnite.
Obsluha
Prepálená poistka riadiaceho ob-
vodu (F3). Poistka sa nachádza v
riadiacom transformátore (T2).
Zasu
ň
te novú poistku. V prípade opakované-
ho prepálenia odstrá
ň
te dôvod pret'aženia.
Servisná služba
Chybný tlakový spína
č
VT (vysoký
tlak) alebo NT (nízky tlak).
Skontrolujte tlakový spína
č
.
Servisná služba
Chybný
č
asový modul (A1).
Skontrolujte prípojky. V prípade potreby ich
vyme
ň
te.
Servisná služba
+ Svieti kontrolka prehriatia
motora (G)
Aktivoval sa tepelný sníma
č
(WS) v
motore alebo nadprúdový ochran-
ný spína
č
(F1).
Odstrá
ň
te dôvod pret'aženia.
Servisná služba
Aktivovala sa poistka nedostatku
vody v nádrži s plavákom.
Odstrá
ň
te nedostatok vody.
Obsluha
Horák nezapa
ľ
uje alebo pla-
me
ň
zhasne po
č
as prevádz-
ky
Teplota na regulátore (B) je nasta-
vená príliš nízko.
Regulátor teploty nastavte vyššie.
Obsluha
Vypína
č
prístroja nie je prepnutý
do polohy Horák.
Horák zapnite.
Obsluha
Vypla sa poistka nedostatku vody
poistného bloku.
Zabezpe
č
te dostato
č
ný prívod vody. Skon-
trolujte tesnost' prístroja.
Obsluha
Uzavrite plynový kohút.
Otvorte plynový kohút.
Obsluha
Aktivoval sa obmedzova
č
maxi-
málnej teploty na výstupe vody (>
110 °C).
Nechajte kotol vychladnú
ť
a zariadenie spus-
tite znova.
Obsluha
Skontrolujte regulátor teploty.
Servisná služba
Kontrolka termostatu spalín
(K) svieti.
Bez prívodu plynu.
Otvorte prívod plynu.
Obsluha
Upchatý prívod vzduchu a výstup
vzduchu.
Skontrolujte vetranie a systém spalín.
Obsluha
Dno kotla je príliš horúce. Aktivoval
sa obmedzova
č
maximálnej teplo-
ty na dne kotla (> 80 °C). Na dne
kotla nie je žiadna kondenzovaná
voda.
Cez hrdlo merania spalín dopl
ň
te 5 litrov vo-
dy.
Obsluha
Automat spa
ľ
ovania plynu má po-
ruchu.
Zatla
č
te tla
č
idlo odblokovania plynového relé
(I).
Obsluha
Bez zapa
ľ
ovania *
Skontrolujte vzdialenos
ť
elektród automatu
spa
ľ
ovania plynu a zapa
ľ
ovacieho kábla.
Vzdialenos
ť
upravte alebo chybné diely vy-
me
ň
te. V prípade potreby vy
č
istite.
Servisná služba
Chybný ventilátor alebo doska re-
gulácie otá
č
ok. *
Skontrolujte ventilátor a dosku regulácie otá-
č
ok. Skontrolujte zástr
č
ku a prívodný kábel.
Chybné diely vyme
ň
te.
Servisná služba
373
SK
-
12
Porucha
Možné prí
č
iny
Odstránenie
kým
Kontrolka termostatu spalín
(K) svieti.
Aktivoval sa obmedzova
č
teploty
spalín.
Otvorte ru
č
nú striekaciu pišto
ľ
, kým sa zaria-
denie neochladí. Vypnite a zapnite zariade-
nie na ovládacom paneli a tým sa odblokuje
obmedzova
č
teploty. V prípade opakovania
volajte servisnú službu.
Obsluha
Svieti kontrolka ochrany proti
vodnému kame
ň
u (H)
Zmäk
č
ova
č
vody sa minul.
Dopl
ň
te zmäk
č
ova
č
vody.
Obsluha
Nedostato
č
ná alebo žiadna
doprava
č
istiaceho prostried-
ku
Prepnite dávkovací ventil do polo-
hy "0".
Nastavte dávkovací ventil
č
istiaceho pros-
triedku.
Obsluha
Filter
č
istiaceho prostriedku je
upchatý alebo nádrž je prázdna.
Vy
č
istite popr. dopl
ň
te.
Obsluha
Hadice nasávania
č
istiaceho pros-
triedku, dávkovací ventil alebo
magnetický ventil netesnia alebo
sú upchaté.
Skontrolujte, vy
č
istite.
Obsluha
Chybná elektronika alebo magne-
tický ventil.
Výmena
Servisná služba
Zariadenie nedosahuje po-
žadovaný tlak
Dýzu prepláchnite.
Dýzu vyme
ň
te.
Obsluha
Nádrž s
č
istiacim prostriedkom je
prázdna.
Dopl
ň
te
č
istiaci prostriedok.
Obsluha
Nedostatok vody.
Postarajte sa o dostato
č
ný prívod vody.
Obsluha
Sito na vstupe vody je upchaté.
Sito skontrolujte, demontujte a vy
č
istite.
Obsluha
Dávkovací ventil
č
istiaceho pros-
triedku netesní.
Skontrolujte a utesnite.
Obsluha
Hadice
č
istiaceho prostriedku ne-
tesnia.
Výmena
Obsluha
Plavákový ventil je zaseknutý.
Skontrolujte jeho pohyblivost'.
Obsluha
Poistný ventil netesní.
Skontrolujte nastavenie. V prípade potreby
namontujte nové tesnenie.
Servisná služba
Ventil regulácie množstva netesní
alebo je nastavený na príliš nízku
hodnotu.
Skontrolujte diely ventilu. V prípade poškode-
nia vyme
ň
te. V prípade zne
č
istenia vy
č
istite.
Servisná služba
Magnetický ventil odtlakovania je
chybný.
Magnetický ventil vyme
ň
te.
Servisná služba
Vysokotlakové
č
erpadlo klo-
pe, tlakomer silno kmitá
Tlmi
č
kmitov chybný.
Tlmi
č
kmitov vyme
ň
te.
Servisná služba
Vodné
č
erpadlo mierne nasáva
vzduch.
Skontrolujte sací systém a netesnost'.
Obsluha
Pri uzatvorení ru
č
nej pištole
prístroj neustále vypína a za-
pína
Dýza v tryske je upchatá.
Skontrolujte, vy
č
istite.
Obsluha
Prístroj je zanesený vodným ka-
me
ň
om.
Vi
ď
odsek "Odstránenie vodného kame
ň
a". Obsluha
Prestavil sa bod spínania nadprú-
dového spína
č
a.
Nadprúdový spína
č
nechajte znovu nastavit'. Servisná služba
Sito v poistke pre nedostatok vody
upchaté.
Sito skontrolujte, demontujte a vy
č
istite.
Obsluha
Prístroj sa pri uzavretej ru
č
-
nej striekacej pištoli nevypí-
na.
Č
erpadlo nie je úplne odvzdušne-
né.
Vypína
č
prístroja prepnite do polohy "0" a po-
tiahnite ru
č
nú striekaciu pišto
ľ
tak, aby už z
dýzy nevystupovala žiadna kvapalina. Prí-
stroj potom opät' zapnite. Tento postup opa-
kujte, kým sa nedosiahne plný prevádzkový
tlak.
Obsluha
Chybný poistný ventil popr. tesne-
nie poistného ventilu.
Poistný ventil popr. tesnenie vyme
ň
te.
Servisná služba
Tlakový spína
č
nadprúdu.
Skontrolujte tlakový spína
č
a nadprúdový
spína
č
.
Servisná služba
374
SK
-
13
Č
istiaci prostriedok u
ľ
ah
č
uje
č
istenie. V tabu
ľ
ke je zobrazený vý-
ber
č
istiacich prostriedkov. Pred spracovaním
č
istiacich pros-
triedkov sa musia bezpodmiene
č
ne dodržat' pokyny uvedené na
obale.
*´= len na krátke použitie, dvojkroková metóda, dodato
č
ne oplác-
hnut'
č
istou vodou
** = ASF = vhodne odlu
č
ite
ľ
ný
*** = na predbežné postriekanie sa hodí Foam-Star 2000
Príslušenstvo
Č
istiaci prostriedok
Rozsah použitia
Zne
č
istenie, spôsob použitia
Č
istiaci prostriedok
hodnota pH (asi) 1 %
roztok s vodou z vo-
dovodu
Automobilový priemysel,
č
erpacie stanice, špedí-
cia, vozové parky
Prach, ne
č
istota na uliciach, mine-
rálne oleje (na lakovaných povr-
choch)
RM 55 ASF **
8
Prášok ASF RM 22/80
12/10
RM 81 ASF
9
RM 803 ASF
10
RM 806 ASF
11
Konzervovanie vozidla
Studený vosk pre vysokotlakové
č
isti
č
e RM
42
8
Horúci vosk ASF RM 820
7
Striekací vosk ASF RM 821
6
Super perli
č
kový vosk ASF RM 824
7
Gelový
č
isti
č
RM 44
9
Kovospracujúci priemy-
sel
oleje, mazivá, prach a podobné
zne
č
istenia
Prášok ASF RM 22
12
RM 55 ASF
8
RM 81 ASF
9
RM 803 ASF
10
RM 806 ASF
12
RM 31 ASF (silné zne
č
istenie)
12
RM 39 kvapalný (s ochranou proti korózii)
9
Potravinárske prevádzky Slabé až stredné zne
č
istenie, tuky
alebo oleje, ve
ľ
ké plochy
RM 55 ASF
8
RM 81 ASF
9
RM 882 Gelová pena OSC
12
RM 58 ASF (Penový
č
istiaci prostriedok)
9
RM 31 ASF *
12
Smola
RM 33 *
13
Č
istenie a dezinfekcia
RM 732
9
Dezinfekcia
RM 735
7...8
Vodný kame
ň
, usadeniny minerá-
lov
RM 25 ASF *
2
RM 59 ASF (
č
istenie penou)
2
Sociálne priestory ***
Vodný kame
ň
, mo
č
ový kame
ň
,
mydlo at
ď
.
RM 25 ASF * (Základné
č
istenie)
2
RM 59 ASF (
č
istenie penou)
2
RM 68 ASF
5
375
SK

