Karcher Nettoyeur haute pression HDS 9-16-4 ST Gaz LPG: !
!: Karcher Nettoyeur haute pression HDS 9-16-4 ST Gaz LPG
-
14
–
Cihaz
ı
n
ı
s
ı
tma tertibat
ı
bir yakma sistemidir. Kurulum s
ı
ras
ı
n-
da geçerli yerel talimatlara uyulmal
ı
d
ı
r.
–
Sadece kontrol edilmi
ş
bacalar/at
ı
k gaz hatlar
ı
kullan
ı
n.
–
Gaz hatlar
ı
n
ı
n tak
ı
lmas
ı
ve cihaz
ı
n gaz taraf
ı
ndaki ba
ğ
lant
ı
s
ı
sadece gaz ve su i
ş
leri konusunda tescilli bir teknik firma ta-
raf
ı
ndan gerçekle
ş
tirilmelidir.
–
Gaz brülöründeki ayarlar ve onar
ı
mlar sadece e
ğ
itimli Kärc-
her mü
ş
teri hizmetleri montajc
ı
lar
ı
taraf
ı
ndan yap
ı
lmal
ı
d
ı
r.
–
En az 1 inç nominal mesafede uygulanmas
ı
gereken gaz bes-
leme hatt
ı
nda, bir manometre ve bir kapatma valf
ı
öngörülme-
lidir.
–
Yüksek bas
ı
nç pompas
ı
n
ı
n neden oldu
ğ
u titre
ş
imler nedeniy-
le, gergin gaz hatt
ı
ve cihaz aras
ı
ndaki ba
ğ
lant
ı
esnek bir gaz
hortumuyla yap
ı
lmal
ı
d
ı
r.
–
10 metreden daha uzun gaz besleme hatlar
ı
nda nominal me-
safe 1 1/2 inç ya da daha büyük olacak
ş
ekilde öngörülmeli-
dir. Cihaza gaz ba
ğ
lant
ı
s
ı
nda nominal mesafe 1 inçtir.
Tehlike
Esnek gaz hortumunun brülöre vidalanmas
ı
s
ı
ras
ı
nda, ba
ğ
lant
ı
nipeli bir SW 36 aç
ı
k a
ğ
ı
zl
ı
anahtarla kontra tutulmal
ı
d
ı
r. Ba
ğ
lant
ı
nipeli, kar
ş
ı
daki brülör muhafazas
ı
na do
ğ
ru dönmemelidir. Di
ş
ba
ğ
lant
ı
s
ı
n
ı
n izolasyonu DVGW onayl
ı
s
ı
zd
ı
rmazl
ı
k maddeleriyle
yap
ı
lmal
ı
d
ı
r. Ba
ğ
lant
ı
dan sonra, ba
ğ
lant
ı
yerine DVGW onayl
ı
kaçak arama spreyiyle s
ı
zd
ı
rmazl
ı
k kontrolü yap
ı
lmal
ı
d
ı
r.
Gaz hatt
ı
n
ı
n boru mesafesi DVGW TRGI 1986 veya TRF 1996'ya
uygun olarak hesaplanmal
ı
d
ı
r. Cihaz gaz ba
ğ
lant
ı
s
ı
n
ı
n nominal
mesafesi otomatik olarak boru hatt
ı
nominal mesafesi de
ğ
ildir.
Gaz hatt
ı
n
ı
n boyutland
ı
r
ı
lmas
ı
ve kurulumu ilgili normlar ve tali-
matlara göre gerçekle
ş
melidir.
–
Her cihaz kendine ait bir bacaya ba
ğ
lanmal
ı
d
ı
r.
–
At
ı
k gaz beslemesi, yerel talimatlara uygun bir
ş
ekilde ve yet-
kili baca ustas
ı
ile mutabakat sa
ğ
lanarak uygulanmal
ı
d
ı
r.
At
ı
k gaz yolunun a
ş
ı
r
ı
bas
ı
nç alt
ı
nda kalan tüm parçalar
ı
n
ı
n yan-
ma havas
ı
ile çevrildi
ğ
i ak
ı
ş
emniyetsiz gaz cihaz
ı
. B23 montaj
ı
,
cihaz
ı
n DIN 18160'a göre klasik bir çekici bacaya ba
ğ
lanmas
ı
ve
oda havas
ı
na ba
ğ
l
ı
ş
ekilde çal
ı
ş
t
ı
r
ı
lmas
ı
olana
ğ
ı
n
ı
yarat
ı
r. Bunun
önko
ş
ulu, bacan
ı
n yanma de
ğ
erli cihazlara ba
ğ
lant
ı
için uygun
olmas
ı
d
ı
r (Örn; paslanmaz çelik boru içeri çekilerek bacan
ı
n te-
mizlenmi
ş
olmas
ı
gibi).
Yanma havas
ı
beslemesi ve at
ı
k gaz beslemesi tavan
ı
n üzerinde
dik duran gaz cihaz
ı
. A
ğ
ı
zlar, yakla
ş
ı
k olarak yan yana ayn
ı
ba-
s
ı
nç bölgesinde yer al
ı
r.
Sistem tesisat
ı
Sadece yetkili teknik personel için
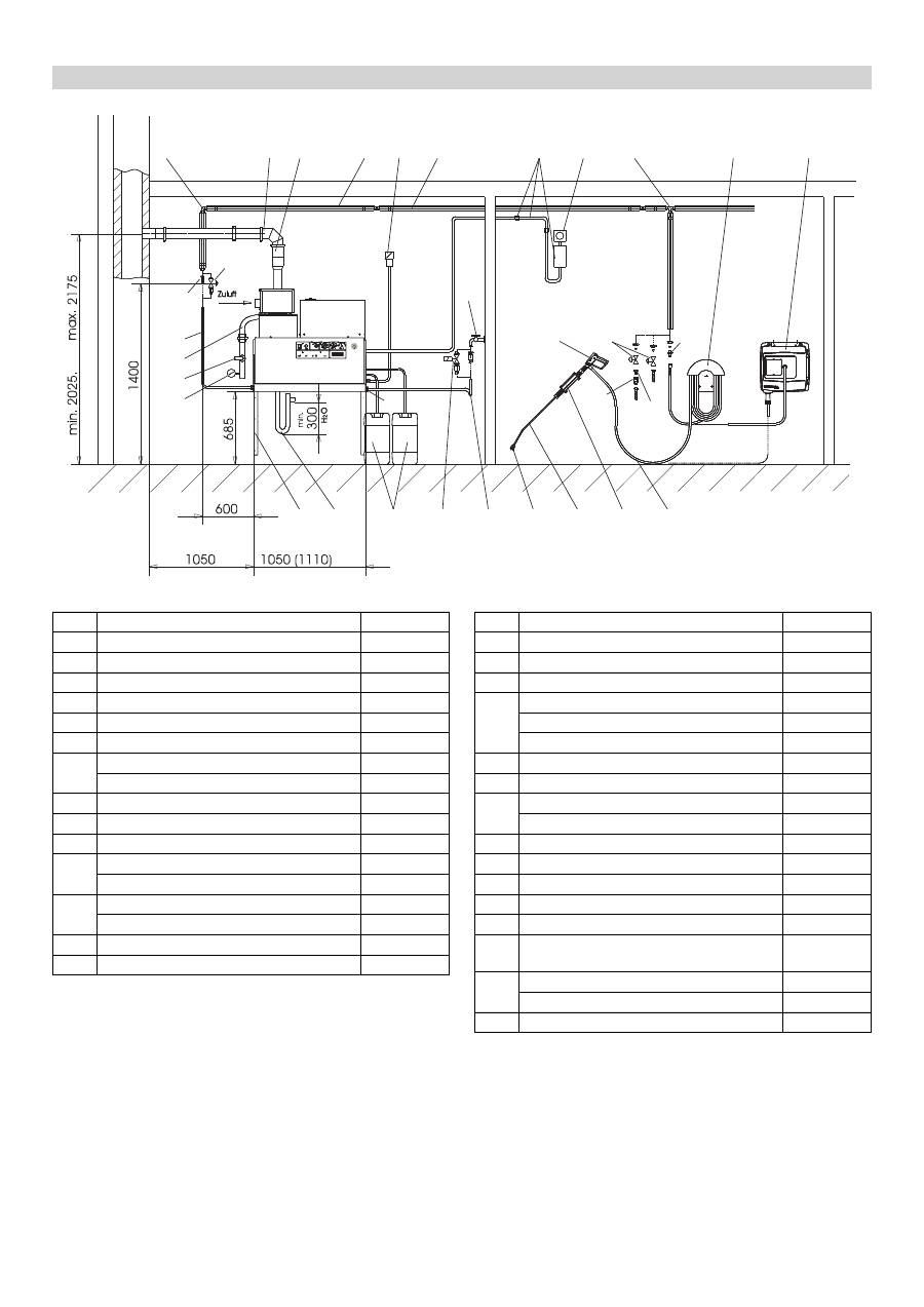
Genel
Gaz; Genel
Gaz hatlar
ı
Hava/at
ı
k gaz beslemesi
!
Yanma havas
ı
n
ı
kurulum bölümünden alan at
ı
k gaz sistemli
gaz cihaz
ı
Tip B23
Yanma havas
ı
n
ı
n kapal
ı
bir sistem üzerinden bo
ş
luktan al
ı
n-
d
ı
ğ
ı
at
ı
k gaz sistemli gaz cihaz
ı
Tip C33
256
TR
-
15
Bir hava-at
ı
k gaz sistemine ba
ğ
lant
ı
için yanma havas
ı
beslemeli
ve at
ı
k gaz beslemeli gaz cihaz
ı
.
Ayr
ı
yanma havas
ı
beslemeli ve at
ı
k gaz beslemeli gaz cihaz
ı
.
A
ğ
ı
zlar, farkl
ı
bas
ı
nç bölgelerinde yer al
ı
r.
Not:
Öngörülen yanma de
ğ
erlerine ula
ş
mak için, teknik bilgiler
bölümünde belirtilen baca çekmeye uyulmal
ı
d
ı
r.
Kondensat hatt
ı
direkt olarak kondensat ba
ğ
lant
ı
s
ı
nda sifonlan-
mal
ı
d
ı
r. Sifon yüksekli
ğ
i 30 cm olmal
ı
d
ı
r. Sifon teslimat kapsa-
m
ı
nda bulunmamaktad
ı
r. Kondensat hatt
ı
kanalizasyona sabit bir
ba
ğ
lant
ı
ya sahip olmamal
ı
d
ı
r. Kondensat, serbestçe bir huniye
ya da nötralizasyon haznesine akabilmelidir.
–
Montajdan önce, duvar
ı
n ta
ş
ı
ma kapasitesine sahip olup ol-
mad
ı
ğ
ı
kontrol edilmelidir. Birlikte temlim edilen sabitleme
malzemesi beton için uygundur. Bo
ş
luk yap
ı
ta
ş
lar
ı
, kaplama
yap
ı
ta
ş
lar
ı
ve gaz beton duvarlar için uygun dübeller ve c
ı
va-
talar kullan
ı
lmal
ı
d
ı
r, Örn; enjeksiyonlu ankrajlar (delik
ş
ablo-
nu için Bkz. Ölçü sayfas
ı
).
–
Resim 3 - Poz. 19 ve 25
Cihaz, su hatt
ı
ya da yüksek bas
ı
nç boru hatt
ı
ş
ebekesine
gergin
ş
ekilde ba
ğ
lanmamal
ı
d
ı
r. Ba
ğ
lant
ı
hortumlar
ı
mutlaka
tak
ı
lmal
ı
d
ı
r.
–
Resim 3 - A
Su hatt
ı
ş
ebekesi ve ba
ğ
lant
ı
hatt
ı
aras
ı
na bir kapatma vanas
ı
tak
ı
lmal
ı
d
ı
r.
Yüksek bas
ı
nç hatlar
ı
n
ı
n montaj
ı
s
ı
ras
ı
nda, yasa koyucunun ilgili
ulusal talimatlar
ı
na uyulmal
ı
d
ı
r.
–
Boru hatt
ı
ndaki bas
ı
nç dü
ş
ü
ş
ü 1,5 MPa'n
ı
n alt
ı
nda olmal
ı
d
ı
r.
–
Bitmi
ş
boru hatt
ı
32 MPa ile test edilmelidir.
–
Boru hatt
ı
n
ı
n izolasyonu 100 °C s
ı
cakl
ı
ğ
a dayan
ı
kl
ı
olmal
ı
d
ı
r.
Resim 3 - Poz. 20
Hazneler, temizlik maddesinin alt seviyesi cihaz taban
ı
n 1,5 met-
reden fazla alt
ı
na inmeyecek ve üst seviye cihaz taban
ı
n
ı
n üze-
rinde olmayacak
ş
ekilde kurulmal
ı
d
ı
r.
Resim 3 - B ve Poz. 19
Su giri
ş
ini, uygun su hortumuyla birlikte su hatt
ı
ş
ebekesine
ba
ğ
lay
ı
n.
–
Su beslemesinin kapasitesi, en az 0,1 MPa'da 1300 litre/saat
olmal
ı
d
ı
r.
–
Su s
ı
cakl
ı
ğ
ı
30 °C'nin alt
ı
nda olmal
ı
d
ı
r.
Tip C43
Tip C53
Kondensat bo
ş
altma
Duvar montaj
ı
Yüksek bas
ı
nç hatlar
ı
n
ı
n montaj
ı
Temizlik maddesi haznesinin kurulmas
ı
Su beslemesi
257
TR
-
16
Dikkat
Elektrik ba
ğ
lant
ı
noktas
ı
nda izin verilen maksimum nominal em-
pedans (Bkz. Teknik Bilgiler) a
ş
ı
lmamal
ı
d
ı
r. Ba
ğ
lant
ı
noktan
ı
zda-
ki mevcut
ş
ebeke empedans
ı
yla ilgili belirsizlikler olmas
ı
durumunda lütfen enerji tedarik kurumunuzla ba
ğ
lant
ı
kurun.
Not:
Çal
ı
ş
t
ı
rma i
ş
lemleri k
ı
sa süreli gerilim dü
ş
ü
ş
leri yarat
ı
r.
Ş
e-
beke ko
ş
ullar
ı
n
ı
n elveri
ş
siz olmas
ı
durumunda, cihazlarda k
ı
s
ı
t-
lanmalar ortaya ç
ı
kabilir.
–
Ba
ğ
lant
ı
de
ğ
erleri için Bkz. Teknik Özellikler ve Tip Plakas
ı
.
–
Elektrik ba
ğ
lant
ı
s
ı
bir elektrik tesisatç
ı
s
ı
taraf
ı
ndan yap
ı
lmal
ı
ve IEC 60364-1'e uygun olmal
ı
d
ı
r.
–
Çal
ı
ş
ma bölümündeki ak
ı
m ileten parçalar, kablolar kusursuz
durumda ve su püskürmesine kar
ş
ı
korunmu
ş
olmal
ı
d
ı
r.
Elektronik kazalardan sak
ı
nmak için, önceden devreye sokulmu
ş
eksik ak
ı
m koruyucu
ş
alterini (maks. 30 mA nominal ak
ı
m seviye-
si) kullanman
ı
z
ı
tavsiye ederiz.
Elektrik ba
ğ
lant
ı
s
ı
n
ı
kurun.
Sabit yüksek bas
ı
nçl
ı
temizleyicinin kapat
ı
lmas
ı
için, tehlikeli ol-
mayan bir yere bir ana
ş
alter (Resim 3 - Poz. 6) kolayca eri
ş
ilebilir
bir
ş
ekilde yerle
ş
tirilmelidir.
Ana
ş
alterin kontak aç
ı
lma mesafesi en az 3 mm olmal
ı
d
ı
r.
Cekon soketi cihaz
ı
n ba
ğ
lant
ı
kablosuna tak
ı
n.
Cekon soketi prize tak
ı
n.
Sabit yüksek bas
ı
nçl
ı
temizleyicinin kapat
ı
lmas
ı
için,
ş
ebeke ay
ı
r-
ma amac
ı
yla Cekon soketine ula
ş
ı
l
ı
r olmal
ı
d
ı
r.
Gaz ba
ğ
lant
ı
s
ı
n
ı
kontrol edin.
Dikkat
A
ş
ı
r
ı
ı
s
ı
nma nedeniyle cihazda hasar tehlikesi.
Sifonu kazan taban
ı
na ba
ğ
lay
ı
n ve sifona su doldurun.
Kazana baca deli
ğ
i üzerinden 4 litre su doldurun.
İ
lk kullan
ı
mdan önce, kapa
ğ
ı
n ucunu su pompas
ı
ndaki ya
ğ
deposundan kesin.
Resim 3 - Poz. 14
Yüksek bas
ı
nç hortumunu el tabancas
ı
ve püskürtme borusu-
na ba
ğ
lay
ı
n ve cihaz
ı
n yüksek bas
ı
nç ç
ı
k
ı
ş
ı
na ya da yüksek
bas
ı
nç hatt
ı
ş
ebekesine ba
ğ
lay
ı
n.
Meme uç parças
ı
n
ı
(b) üst somunla (a) püskürtme borusuna
(d) sabitleyin. Keçenin (c) temiz bir
ş
ekilde kanalda durmas
ı
-
na dikkat edin.
Yay
ı
(c) yumu
ş
at
ı
c
ı
haznesinin (a) kapak deste
ğ
inden (b) ç
ı
-
kart
ı
n.
Hazneye RM 110 Kärcher yumu
ş
at
ı
c
ı
s
ı
v
ı
s
ı
(Sipari
ş
No.
2.780-001) doldurun.
Tehlike
Tehlikeli elektrik gerilimi! Sadece bir elektrik teknisyeni taraf
ı
ndan
ayarlanmal
ı
d
ı
r.
Yerel su sertli
ğ
inin belirlenmesi:
–
Yerel su tedarik kurumu üzerinden,
–
bir sertlik test cihaz
ı
ile (Sipari
ş
No. 6.768-004).
Cihaz kapa
ğ
ı
n
ı
ç
ı
kart
ı
n.
Kumanda panosundaki devre kutusunu aç
ı
n.
Elektrik ba
ğ
lant
ı
s
ı
Sabit monte edilmi
ş
elektrik ba
ğ
lant
ı
s
ı
Soket/prizle elektrik ba
ğ
lant
ı
s
ı
.
İ
lk çal
ı
ş
t
ı
rma
Cihaz, fabrikada do
ğ
al gazl
ı
cihaz olarak G 20 gaz türüne ve likit
gazl
ı
cihaz olarak G 31'e ayarlanm
ı
ş
t
ı
r. Do
ğ
al gazl
ı
cihaz
ı
n G
25'e veya ba
ş
ka (Bkz. Tip etiketi) do
ğ
al gazlara geçirilmesi ya
da likit gazl
ı
cihaz
ı
n G 30'a ya da ba
ş
ka (Bkz. Tip etiketi) likit
gazlara geçirilmesi durumunda, do
ğ
al gazl
ı
cihazda do
ğ
al gaz
at
ı
k de
ğ
erleri ve likit gazl
ı
cihazda likit gaz de
ğ
erleri servis bilgi-
lerine göre ayarlanmal
ı
d
ı
r.
Birlikte verilen bo
ş
etikete yeni ayarlanan gaz türü yaz
ı
l
ı
r ve eti-
ket, cihaz
ı
n sa
ğ
taraf
ı
ndaki adres alan
ı
na yerle
ş
tirilir. Ayn
ı
anda,
fabrika teslimi s
ı
ras
ı
nda yerle
ş
tirilmi
ş
ve üzerinde G 20 (do
ğ
al
gazl
ı
cihaz) ya da G 31 (likit gazl
ı
cihaz) yazan etiket sökülmeli-
dir.
İş
letime almadan önceki önlemler
Kireçlenmeye kar
ş
ı
koruma
a
b
c
d
b
c
a
258
TR
-
17
Döner potansiyometreyi (a) su sertli
ğ
ine uygun olarak ayarla-
y
ı
n. Do
ğ
ru ayar tablodan al
ı
nabilir.
Örnek:
15 °dH'lik bir su sertli
ğ
i için döner potansiyometrede 6 çizelge de-
ğ
erini ayarlay
ı
n. Bunun sonucunda 31 saniyelik bir mola süresi
elde edilir, yani manyetik valf her 31 saniyede bir k
ı
sa süreli aç
ı
l
ı
r.
Çal
ı
ş
maya haz
ı
r olma süresinin ayar
ı
, elektrik dolab
ı
n
ı
n sol yan
panosundaki büyük platin üzerinde gerçekle
ş
ir.
Çal
ı
ş
maya haz
ı
r olma süresi, fabrikada 2 dakikal
ı
k minimum sü-
reye ayarlanm
ı
ş
t
ı
r ve 8 dakikal
ı
k maksimum süreye kadar yük-
seltilebilir.
Su sertli
ğ
i (°dH)
5
10
15
20
25
Döner potansiyometredeki
çizelge
8
7
6
5
4,5
Mola süresi (saniye)
50
40
31
22
16
Çal
ı
ş
maya haz
ı
r olma süresi ayar
ı
n
ı
n de
ğ
i
ş
tirilmesi
a
8 7 6 5 4 3 2 1
S2
min.
max.
259
TR
-
18
Resim 3
Kurulum malzemesi
1
2
3
5
6
7
8
9
10
12
13
A
15
11b
11a
11c
11a
25
21
22
23
11b
24
4
20
19a
19
18
17
16
14
11d
B
Poz. Kurulum malzemesi
Sipari
ş
No.
1
Dirsek vida ba
ğ
lant
ı
s
ı
6.386-356
2
Egzoz gaz
ı
hatt
ı
kiti, yatay, 150 mm
6.526-231
3
Egzoz gaz
ı
hatt
ı
, dikey, 150 mm
6.526-232
4
Sifon parça seti
2.640-422
5
Is
ı
izolasyonu
6.286-114
6
Ana
ş
alter
6.631-455
7
Boru hatt
ı
seti,galvanizli çelik
2.420-004
Boru hatt
ı
seti, paslanmaz çelik
2.420-006
8
Uzaktan kumanda parça seti
2.744-008
9
Acil Kapatma
ş
alteri parça seti
2.744-002
10
T vida ba
ğ
lant
ı
s
ı
6.386-269
11a
Ba
ğ
lant
ı
a
ğ
z
ı
, pirinç
2.638-180
Ba
ğ
lant
ı
a
ğ
z
ı
, paslanmaz çelik
2.638-181
11b
Kapatma muslu
ğ
u NW 8, galvanizli çelik 4.580-144
Kapatma muslu
ğ
u NW 8, paslanma çelik 4.580-163
11c
H
ı
zl
ı
ba
ğ
lant
ı
sabit parças
ı
6.463-025
11d
H
ı
zl
ı
ba
ğ
lant
ı
gev
ş
ek parças
ı
6.463-023
Poz. Kurulum malzemesi
Sipari
ş
No.
12
Hortum deste
ğ
i
2.042-001
13
Hortum tamburu
2.637-238
14
Yüksek bas
ı
nç hortumu 10 m
6.388-083
15
El püskürtme tabancas
ı
Easypress
4.775-463
Ayar dü
ğ
mesi HDS 9/16-4
4.775-470
Ayar dü
ğ
mesi HDS 12/14-4
4.775-471
16
Püskürtme borusu tutucusu
2.042-002
17
Püskürtme borusu
4.760-550
18
Meme uç parças
ı
HDS 9/16-4
2.883-402
Meme uç parças
ı
HDS 12/14-4
2.883-406
19
Su hortumu
4.440-282
19a
Manyetik valf; su beslemesi
4.743-011
20
Temizlik maddesi tank
ı
, 60 l
5.070-078
21
Gaz hortumu R1"
6.388-228
22
Gaz kapatma muslu
ğ
u R1"
6.412-389
23
Manometre, gaz (Dikkat! Kapatma valf
ı
n
ı
yap
ı
taraf
ı
nda öngörün).
6.412-059
24
Duvar konsolu parça seti
2.053-005
Taban iskeleti parça seti
2.210-008
25
Yüksek bas
ı
nç hortumu
6.389-028
260
TR
-
19
İş
bu belge ile a
ş
a
ğ
ı
da tan
ı
mlanan makinenin konsepti ve tasar
ı
-
m
ı
ve taraf
ı
m
ı
zdan piyasaya sürülen modeliyle AB yönetmelikle-
rinin temel te
ş
kil eden ilgili güvenlik ve sa
ğ
l
ı
k yükümlülüklerine
uygun oldu
ğ
unu bildiririz. Onay
ı
m
ı
z olmadan cihazda herhangi
bir de
ğ
i
ş
iklik yap
ı
lmas
ı
durumunda bu beyan geçerlili
ğ
ini yitirir.
5.957-648
İ
mzas
ı
bulunanlar, i
ş
letme yönetimi ad
ı
na ve i
ş
letme yönetimi ta-
raf
ı
ndan verilen vekalete dayanarak i
ş
lem yapar.
Dokümantasyon yetkilisi:
S. Reiser
Alfred Kärcher GmbH & Co. KG
Alfred-Kärcher-Str. 28 - 40
71364 Winnenden (Germany)
Tel.: +49 7195 14-0
Faks: +49 7195 14-2212
Winnenden, 2014/02/01
Her ülkede, yetkili distribütörümüzün belirlemi
ş
ve yay
ı
nlam
ı
ş
ol-
du
ğ
u garanti ko
ş
ullar
ı
geçerlidir. Garanti süresi dahilinde cihazda
ortaya ç
ı
kan ve sebebi malzeme veya üretim hatas
ı
olan ar
ı
zalar
ı
ücretsiz onar
ı
yoruz.
AB uygunluk bildirisi
Ürün:
Yüksek bas
ı
nç temizleyicisi
Tip:
1.251-xxx
İ
lgili AB yönetmelikleri
2009/142/EG
2006/42/EG (+2009/127/EG)
2004/108/EG
Kullan
ı
lm
ı
ş
olan uyumlu standartlar
EN 55014–1: 2006+A1: 2009+A2: 2011
EN 55014–2: 1997+A1: 2001+A2: 2008
EN 60335–1
EN 60335–2–79
EN 62233: 2008
EN 61000–3–2: 2006+A1: 2009+A2: 2009
HDS 12/14:
EN 61000–3–3: 2008
HDS 9/16:
EN 61000–3–11: 2000
Uygulananspesifikasyonlar:
QA 195 (LPG hariç)
Belirtilen merkezin ad
ı
:
2009/142/EG için
GASTEC
Wilmersdorf 50
7327 AC Apeldoorn
Tan
ı
m No 0063
Garanti
CEO
Head of Approbation
261
TR
-
20
Mü
ş
teri hizmeti
Sistem tipi:
Üretim No.:
İş
letime alma tarihi:
Kontrolün yap
ı
ld
ı
ğ
ı
tarih:
Mevcut durum:
İ
mza
Kontrolün yap
ı
ld
ı
ğ
ı
tarih:
Mevcut durum:
İ
mza
Kontrolün yap
ı
ld
ı
ğ
ı
tarih:
Mevcut durum:
İ
mza
Kontrolün yap
ı
ld
ı
ğ
ı
tarih:
Mevcut durum:
İ
mza
262
TR
-
1
Перед
первым
применением
вашего
прибора
про
-
читайте
эту
оригинальную
инструкцию
по
эксплуа
-
тации
,
после
этого
действуйте
соответственно
и
сохраните
ее
для
дальнейшего
пользования
или
для
следующего
вла
-
дельца
.
–
Перед
первым
вводом
в
эксплуатацию
обязательно
про
-
чтите
указания
по
технике
безопасности
№
5.956-309!
–
При
повреждениях
,
полученных
во
время
транспортиров
-
ки
,
немедленно
свяжитесь
с
продавцом
.
Инструкции
по
применению
компонентов
(REACH)
Актуальные
сведения
о
компонентах
приведены
на
веб
-
узле
по
следующему
адресу
:
www.kaercher.com/REACH
Опасность
Для
непосредственно
грозящей
опасности
,
которая
при
-
водит
к
тяжелым
увечьям
или
к
смерти
.
몇
Предупреждение
Для
возможной
потенциально
опасной
ситуации
,
которая
может
привести
к
тяжелым
увечьям
или
к
смерти
.
Внимание
!
Для
возможной
потенциально
опасной
ситуации
,
которая
может
привести
к
легким
травмам
или
повлечь
матери
-
альный
ущерб
.
Находящаяся
под
высоким
давлением
струя
воды
может
при
неправильном
использовании
пред
-
ставлять
опасность
.
Запрещается
направлять
струю
воды
на
людей
,
животных
,
включенное
электрическое
оборудование
или
на
сам
высоко
-
напорный
моющий
аппарат
.
–
Необходимо
соблюдать
соответствующие
национальные
законодательные
нормы
по
работе
с
жидкостными
струй
-
ными
установками
.
–
Необходимо
соблюдать
соответствующие
национальные
законодательные
нормы
по
технике
безопасности
.
Необ
-
ходимо
регулярно
проверять
работу
жидкостных
струй
-
ных
установок
и
результат
проверки
оформлять
в
письменном
виде
.
–
Нагревательным
устройством
прибора
является
топоч
-
ная
установка
.
Необходимо
регулярно
проверять
топоч
-
ные
установки
,
соблюдая
соответствующие
национальные
нормы
.
–
При
эксплуатации
установки
в
помещениях
необходимо
обеспечить
безопасный
отвод
отработанных
газов
(
труба
без
прерывателя
для
отвода
топочного
газа
).
Далее
нуж
-
но
обеспечить
достаточный
подвод
свежего
воздуха
.
–
Следует
соблюдать
указания
по
технике
безопасности
,
прилагаемые
к
используемым
моющим
средствам
(
как
правило
,
приведенные
на
этикетке
упаковки
).
Перед
установкой
прибора
необходимо
произвести
согласо
-
вание
с
предприятием
,
оказывающим
услуги
по
газоснабже
-
нию
и
окружным
специалистом
по
вентиляции
.
При
установке
необходимо
соблюдать
предписания
строи
-
тельного
права
,
промышленного
права
и
охраны
окружаю
-
щей
среды
.
Мы
ссылаемся
на
указанные
ниже
предписания
,
директивы
и
нормы
:
–
Согласно
настоящим
национальным
предписаниям
,
при
-
бор
может
устанавливать
только
специализированное
предприятие
.
–
При
электрификации
необходимо
соблюдать
соответст
-
вующие
национальные
нормы
.
–
При
проведении
газопровода
необходимо
соблюдать
со
-
ответствующие
национальные
нормы
.
–
Установка
газопровода
,
а
также
подсоединение
приборов
стороннего
газа
,
должна
производиться
только
одобрен
-
ной
фирмой
с
соответствующей
квалификации
по
водя
-
ному
и
газовому
производству
.
–
Настройки
,
работы
по
техническому
обслуживанию
и
ре
-
монт
горелки
могут
проводиться
только
обученными
мон
-
терам
сервисной
службы
фирмы
Kärcher.
–
При
проектировании
трубы
отвода
газа
необходимо
со
-
блюдать
действующие
местные
государственные
нормы
.
Оглавление
Защита
окружающей
среды
RU . . 1
Символы
в
руководстве
по
эксплуатации
RU . . 1
Символы
на
приборе
. . . . .
RU . . 1
Общие
сведения
по
технике
безопасности
RU . . 1
Использование
по
назначению
RU . . 2
Назначение
. . . . . . . . . . . .
RU . . 2
Защитные
устройства
. . . .
RU . . 2
Элементы
прибора
. . . . . .
RU . . 3
Начало
работы
. . . . . . . . .
RU . . 4
Управление
. . . . . . . . . . . .
RU . . 4
Вывод
из
эксплуатации
. . .
RU . . 6
Вывод
из
эксплуатации
. . .
RU . . 6
Хранение
. . . . . . . . . . . . . .
RU . . 6
Транспортировка
. . . . . . . .
RU . . 6
Технические
данные
. . . . .
RU . . 7
Уход
и
техническое
обслуживание
RU . . 9
Помощь
в
случае
неполадок
RU . 11
Принадлежности
. . . . . . . .
RU . 13
Инсталляция
оборудования
RU . 14
Заявление
о
соответствии
ЕС
RU . 19
Гарантия
. . . . . . . . . . . . . . .
RU . 19
Сервисная
служба
. . . . . . .
RU . 20
Защита
окружающей
среды
Упаковочные
материалы
пригодны
для
вторичной
переработки
.
Пожалуйста
,
не
выбрасывайте
упа
-
ковку
вместе
с
бытовыми
отходами
,
а
сдайте
ее
в
один
из
пунктов
приема
вторичного
сырья
.
Старые
приборы
содержат
ценные
перерабатыва
-
емые
материалы
,
подлежащие
передаче
в
пункты
приемки
вторичного
сырья
.
Аккумуляторы
,
масло
и
иные
подобные
материалы
не
должны
попадать
в
окружающую
среду
.
Поэтому
утилизируйте
ста
-
рые
приборы
через
соответствующие
системы
приемки
отходов
.
Пожалуйста
,
не
допускайте
попадания
моторного
масла
,
мазута
,
дизельного
топлива
и
бензина
в
окружающую
сре
-
ду
.
Пожалуйста
,
охраняйте
почву
и
утилизируйте
отрабо
-
танное
масло
,
не
нанося
ущерба
окружающей
среде
.
Моющие
средства
Karcher
легко
сепарируются
(ASF).
Это
означает
,
что
их
присутствие
не
будет
препятствовать
рабо
-
те
масляного
сепаратора
.
Список
рекомендуемых
моющих
средств
приведен
в
главе
«
Дополнительное
оборудова
-
ние
».
Символы
в
руководстве
по
эксплуатации
Символы
на
приборе
Общие
сведения
по
технике
безопасности
Местные
предписания
,
директивы
и
нормы
263
RU
-
2
Рабочее
место
находится
у
пульта
управления
.
Другие
рабо
-
чие
места
,
в
зависимости
от
конструкции
установки
,
находят
-
ся
возле
устройств
дополнительного
оборудования
(
распылителей
),
которые
подсоединены
к
заправочным
точ
-
кам
.
–
Для
защиты
от
разлетающихся
брызгов
воды
и
грязи
следует
носить
соответствующую
защитную
одежду
и
защитные
очки
.
Прибор
служит
для
удаления
грязи
с
поверхностей
с
помо
-
щью
свободно
выходящей
водяной
струи
.
В
частности
,
он
ис
-
пользуется
для
мойки
машин
,
автомобилей
и
фасадов
зданий
.
Опасность
Опасность
получения
травм
!
При
использовании
на
авто
-
заправочных
станциях
или
в
других
опасных
зонах
соблю
-
дайте
соответствующие
правила
техники
безопасности
.
–
Холодная
вода
поступает
через
охлаждающий
змеевик
двигателя
в
бак
с
поплавком
и
оттуда
в
кожух
проточного
нагревателя
и
далее
к
всасывающей
стороне
насоса
вы
-
сокого
давления
.
В
бак
с
поплавком
добавляется
дозиро
-
ванное
количество
смягчителя
.
Насос
прокачивает
воду
и
всасываемое
моющее
средство
через
проточный
нагре
-
ватель
.
Количество
моющего
средства
в
воде
может
быть
задано
с
помощью
дозатора
.
Проточный
нагреватель
на
-
гревается
газовой
горелкой
.
–
Выход
высокого
давления
подсоединяется
к
сети
высоко
-
го
давления
,
существующей
в
здании
.
К
заправочному
пункту
этой
сети
подсоединяется
ручной
пистолет
со
шлангом
высокого
давления
.
Защитные
приспособления
служат
для
защиты
пользовате
-
ля
и
не
должны
выводиться
из
строя
или
работать
в
обход
своих
функций
.
Система
предохранения
от
отсутствия
воды
предотвращает
включение
насоса
высокого
давления
при
недостатке
воды
.
Система
предохранения
от
отсутствия
воды
препятствует
перегреву
горелки
при
недостатке
воды
.
Горелка
запускает
-
ся
только
при
подаче
достаточного
количества
воды
.
Манометрический
выключатель
выключает
прибор
при
пре
-
вышении
рабочего
давления
.
Нельзя
изменять
установку
.
При
сбое
манометрического
выключателя
открывается
пре
-
дохранительный
клапан
.
Этот
клапан
отрегулирован
и
за
-
пломбирован
на
заводе
-
изготовителе
.
Нельзя
изменять
установку
.
При
недостатке
топлива
или
поломке
горелки
система
контр
-
оля
пламени
отключает
горелку
.
Загорается
контрольная
лампа
неисправности
горелки
(
Е
).
Если
двигатель
горелки
заблокирован
,
то
выключатель
устройства
защиты
от
перегрузок
выключен
.
Двигатель
насо
-
са
высокого
давления
защищен
выключателем
защиты
дви
-
гателя
и
защитным
реле
обмотки
.
Термостат
отработанных
газов
срабатывает
,
если
темпера
-
тура
отработанных
газов
превышает
320 C.
Загорается
контрольная
лампочка
термостата
отработанных
газов
(
К
)
Срабатывает
ограничитель
максимальной
температуры
на
дне
котла
(>80 C)
и
водовыпуска
(>110 C)
и
загорается
контрольная
лампочка
неисправности
горелки
(E).
Переключатель
давления
ОГ
отключает
горелку
,
если
в
си
-
стеме
отработанного
газа
возникло
чрезмерно
высокое
про
-
тиводавление
,
например
,
при
засоре
.
После
отключения
прибора
с
помощью
ручного
пистолета
-
распылителя
и
по
истечении
времени
подготовки
к
работе
открывается
магнитный
клапан
,
расположенный
в
системе
высокого
давления
,
в
результате
чего
давление
падает
.
Рабочие
места
Средства
индивидуальной
защиты
При
очистке
частей
,
усиливающих
звук
,
не
-
обходимо
носить
соответствующие
средства
защиты
органов
слуха
для
предотвращения
их
повреждения
.
Использование
по
назначению
Пожалуйста
,
не
допускайте
попадания
сточных
вод
,
содер
-
жащих
минеральные
масла
,
в
почву
,
водоемы
или
канали
-
зацию
.
Поэтому
мойку
моторов
и
днища
автомашин
проводить
только
в
приспособленных
для
этого
местах
с
маслоуловителем
.
Назначение
Защитные
устройства
Система
предохранения
от
отсутствия
воды
,
бак
с
поплавком
Система
предохранения
от
отсутствия
воды
,
предохранительный
блок
Манометрический
выключатель
Предохранительный
клапан
Контроль
пламени
Защита
от
перегрузок
Термостат
отработанных
газов
Ограничитель
температуры
Переключатель
давления
ОГ
Сброс
давления
в
системе
высокого
давления
264
RU
-
3
Рис
. 1
1
горелку
,
2
Манометр
3
Линия
подачи
свежего
воздуха
с
сетчатым
фильтром
4
Выход
высокого
давления
5
Газовое
подсоединение
6
Всасывающий
шланг
для
моющего
средства
I.
7
Всасывающий
шланг
для
моющего
средства
II (
дополни
-
тельное
оборудование
)
8
Бак
смягчителя
9
Повдод
электричества
10
Поплавковая
камера
11
Панель
управления
Рис
. 2
A
Включатель
аппарата
B
Регулятор
температуры
C
Дозирующий
клапан
моющего
средства
I
D
Дозирующий
клапан
моющего
средства
II (
дополнитель
-
ное
оборудование
)
E
Контрольная
лампа
неисправности
горелки
F
Контрольная
лампа
готовности
к
эксплуатации
G
Контрольная
лампа
перегрева
двигателя
H
Контрольная
лампа
защиты
от
накипи
I
Кнопка
разблокировки
газового
реле
J
Кнопка
разблокировки
термостата
отработанных
газов
K
Контрольная
лампа
термостата
отработанных
газов
Элементы
прибора
4
5
6
7
3
8
10
1
11
2
9
Панель
управления
265
RU
-
4
몇
Опасность
Опасность
получения
травм
!
Прибор
,
подводящие
шланги
,
шланг
высокого
давления
и
соединения
должны
находиться
в
безупречном
состоянии
.
Если
состояние
прибора
не
без
-
упречно
,
то
прибор
использовать
нельзя
.
–
Параметры
подключения
указаны
на
заводской
табличке
и
в
разделе
"
Технические
данные
".
–
Электрическое
подключение
должно
проводиться
элек
-
триком
и
соответствовать
нормам
IEC 60364-1.
Пользователь
должен
использовать
прибор
в
соответст
-
вии
с
назначением
.
Он
должен
учитывать
местные
особен
-
ности
и
обращать
внимание
при
работе
с
прибором
на
других
лиц
,
находящихся
поблизости
.
Запрещается
оставлять
работающий
прибор
без
присмо
-
тра
.
Опасность
–
Опасность
обваривания
горячей
водой
!
Не
направлять
шланг
на
людей
или
животных
.
–
Опасность
ожогов
о
горячие
элементы
установки
!!
При
работе
с
горячей
водой
не
прикасаться
к
неизолирован
-
ным
трубопроводам
и
шлангам
.
Струйную
трубку
удер
-
живать
только
за
чашку
рукоятки
.
Не
прикасаться
к
штуцеру
отработанных
газов
проточного
нагревате
-
ля
.
–
Опасность
отравления
или
химического
ожога
моющи
-
ми
средствами
!
Принять
во
внимание
указания
,
приве
-
денные
на
упаковке
моющего
средства
.
Сохранять
моющее
средство
в
месте
,
недоступном
для
неуполно
-
моченных
лиц
.
Опасность
Опасность
поражения
током
!
Не
направляйте
струю
воды
на
следующие
устройства
:
–
электрические
приборы
и
установки
,
–
на
собственно
эту
установку
,
–
на
все
токоведущие
детали
в
рабочей
зоне
.
Из
-
за
струи
воды
,
выходящей
из
струйной
трубки
,
возникает
сила
отдачи
.
Из
-
за
того
,
что
струйная
трубка
расположена
под
углом
,
сила
действует
вверх
.
Опасность
–
Опасность
получения
травм
!
Сила
отдачи
струйной
трубки
может
нарушить
ваше
равновесие
.
Вы
можете
упасть
.
Струйная
трубка
может
вылететь
и
травми
-
ровать
окружающих
людей
.
Выберите
удобную
пози
-
цию
для
работы
и
крепко
удерживайте
ручной
пистолет
-
распылитель
.
Никогда
не
заклинивайте
ры
-
чаг
ручного
пистолета
-
распылителя
.
–
Не
разрешается
также
направлять
струю
воды
на
дру
-
гих
или
себя
для
чистки
одежды
или
обуви
.
–
Опасность
получения
травмы
от
отлетающих
ча
-
стей
!
Отлетающие
обломки
или
предметы
могут
травмировать
людей
или
животных
.
Не
направлять
струю
воды
на
бьющиеся
или
незакрепленные
предме
-
ты
.
–
Опасность
аварии
вследствие
повреждения
!
Шины
и
клапаны
очистить
с
минимальным
расстоянием
30
см
.
몇
Предупреждение
Опасность
,
вызванная
опасными
для
здоровья
вещества
-
миНе
распылять
следующие
материалы
,
так
как
в
воздух
могут
подняться
опасные
для
здоровья
вещества
:
–
асбестосодержащие
материалы
,
–
материалы
,
которые
,
возможно
,
содержат
опасные
для
здоровья
вещества
.
Опасность
–
Опасность
получения
травмы
от
выходящей
струи
,
возможно
,
горячей
воды
!
Наиболее
оптимальным
обра
-
зом
к
установке
подходят
только
оригинальные
шлан
-
ги
высокого
давления
фирмы
Karcher.
При
использовании
других
шлангов
гарантия
исключается
.
–
Опасность
для
здоровья
из
-
за
применения
моющих
средств
!
Из
-
за
добавок
,
при
необходимости
,
моющего
средства
вода
,
слитая
из
прибора
,
не
соответствует
качеству
питьевой
воды
.
–
Опасность
повреждения
органов
слуха
при
работе
с
ча
-
стями
,
усиливающими
звук
!
В
этом
случае
следует
но
-
сить
средства
защиты
органов
слуха
.
Опасность
Опасность
получения
травмы
от
выходящей
струи
,
воз
-
можно
,
горячей
воды
!
Опасность
Перед
началом
работы
высоконапорный
шланг
необходимо
всегда
проверять
на
повреждения
.
Поврежденный
высоко
-
напорный
шланг
подлежит
незамедлительной
замене
.
Перед
каждым
использованием
проверяйте
шланг
высо
-
кого
давления
,
трубопроводы
,
арматуру
и
струйную
труб
-
ку
на
предмет
повреждений
.
Проверяйте
места
соединений
шлангов
на
плотность
по
-
садки
и
герметичность
.
Внимание
!
Опасность
повреждения
при
работе
всухую
.
Проверить
уровень
моющего
средства
и
при
необходимо
-
сти
долить
.
Проверить
уровень
умягчающей
жидкости
и
при
необхо
-
димости
долить
.
Выключатель
прибора
(
А
)
повернуть
в
положение
„0“.
Закрыть
подачу
воды
.
Нажать
рычаг
пистолета
-
распылителя
,
пока
аппарат
не
освободится
от
давления
.
Закрыть
подачу
газа
.
Начало
работы
Подключение
к
источнику
тока
Управление
Указания
по
технике
безопасности
!
Подготовка
устройства
к
работе
Выключение
в
случае
возникновения
аварийной
ситуации
266
RU
-
5
Поворот
клапана
регулировки
емкости
по
часовой
стрел
-
ке
повышает
рабочее
давление
и
производительность
.
Поворот
клапана
регулировки
емкости
против
часовой
стрелки
понижает
рабочее
давление
и
производитель
-
ность
.
При
вращении
регулятора
количества
воды
вправо
уве
-
личивается
подача
и
повышается
рабочее
давление
.
При
вращении
регулятора
количества
воды
влево
умень
-
шается
подача
и
снижается
рабочее
давление
.
Откройте
подачу
воды
.
Символ
«
Двигатель
включен
»
Вынуть
рычаг
ручного
пистолета
-
распылителя
и
устано
-
вить
выключатель
прибора
(
А
)
в
положение
„1“ («
Двига
-
тель
включен
»).
Контрольная
лампа
готовности
к
работе
(F)
показывает
готовность
прибора
к
работе
.
Опасность
Опасность
обваривания
!
Внимание
!
Работа
в
режиме
горячей
воды
при
отсутствии
топлива
ведет
к
повреждению
топливного
насоса
.
Перед
работой
в
режиме
горячей
воды
обеспечить
подачу
топлива
.
При
необходимости
можно
подсоединить
горелку
.
Символ
«
Горелка
включена
»
Установить
выключатель
прибора
(
А
)
в
положение
«
Го
-
релка
включена
».
Установить
с
помощью
регулятора
температуры
(
В
)
нуж
-
ную
температуру
воды
.
Максимально
возможная
темпе
-
ратура
составляет
98 °C.
–
Если
во
время
работы
отпустить
рычаг
ручного
пистоле
-
та
-
распылителя
,
то
прибор
выключится
.
–
При
повторном
открытии
пистолета
в
течение
установ
-
ленного
времени
готовности
к
работе
(2...8
минут
)
прибор
снова
самостоятельно
заработает
.
–
Если
время
готовности
к
работе
истекло
,
то
схема
с
часо
-
вым
механизмом
и
блокировкой
отключит
насос
и
горел
-
ку
.
Контрольная
лампа
готовности
к
работе
(F)
погаснет
.
–
Для
повторного
ввода
в
эксплуатацию
установить
выклю
-
чатель
прибора
в
положение
„0“,
после
чего
снова
вклю
-
чить
.
Если
прибор
работает
с
дистанционным
управлением
,
то
кнопку
повторного
ввода
в
эксплуатацию
можно
вывести
на
соответствующий
переключатель
пульта
дистанционного
управления
.
–
Автомобильные
покрышки
очищаются
только
при
исполь
-
зовании
плоскоструйной
форсунки
(25°)
с
минимального
расстояния
опрыскивания
30
см
.
Ни
в
коем
случае
не
очи
-
щать
покрышки
круглой
струей
.
Для
решения
всех
других
задач
используются
следующие
форсунки
:
При
длине
трубопровода
более
20
м
или
при
использовании
шланга
высокого
давления
номинальным
внутренним
диа
-
метром
NW 8
более
2
х
10
м
необходимо
использовать
сле
-
дующие
форсунки
:
Регулировка
рабочего
давления
и
производительности
Настройки
на
аппарате
Регулировка
пистолета
Easypress (
дополнительное
обо
-
рудование
)
Работа
с
холодной
водой
R
Режим
работы
с
горячей
водой
Готовность
к
работе
Выбор
форсунки
Загряз
-
нение
Насадка Угол
раз
-
брызги
-
вания
Деталь
№
6.415
Давле
-
ние
[
МП
a]
Отдача
[
Н
]
HDS 9/16
сильное
00060
0°
-649
16
46
среднее
25060
25°
-647
легкое
40060
40°
-648
HDS 12/14
сильное
00080
0°
-150
14
55
среднее
25080
25°
-152
легкое
40080
40°
-153
267
RU
-
6
–
Использование
моющего
средства
облегчает
процесс
очистки
.
Моющие
средства
подаются
из
внешнего
бака
для
моющих
средств
.
–
При
базовом
варианте
исполнения
прибор
оснащен
дози
-
рующим
клапаном
(
С
).
Второе
дозирующее
устройство
(
дозирующий
клапан
D)
заказывается
в
качестве
специ
-
ального
дополнительного
оборудования
.
При
этом
появ
-
ляется
возможность
использовать
два
разных
моющих
средства
.
–
Дозируемое
количество
устанавливается
на
пульте
управления
на
дозирующем
клапане
моющего
вещества
(
С
или
D).
Установленное
значение
соответствует
доле
моющего
средства
в
процентах
.
–
Внешняя
шкала
работает
при
использовании
неразбав
-
ленного
моющего
средства
(100 % CHEM).
–
Внутренняя
шкала
работает
при
использовании
моющего
средства
,
предварительно
разбавленного
в
отношении
1:3 (25 % CHEM + 75 %
воды
).
В
следующей
таблице
приведены
значения
расхода
моюще
-
го
средства
по
отношению
к
показаниям
верхней
шкалы
.
Точность
установки
дозируемого
количества
зависит
от
:
–
вязкости
моющего
средства
–
Высота
всоса
–
гидравлического
сопротивления
шланга
высокого
давле
-
ния
.
При
необходимости
точной
дозировки
следует
измерить
вса
-
сываемое
количество
моющего
средства
(
например
,
путем
всасывания
из
измерительного
стакана
).
Указание
:
Рекомендации
по
использованию
моющих
средств
приведены
в
главе
«
Дополнительное
оборудова
-
ние
».
Внимание
!
При
работе
без
умягчающей
жидкости
проточный
нагре
-
ватель
может
покрыться
накипью
.
При
пустом
баке
с
умягчающей
жидкостью
мигает
контроль
-
ная
лампа
защиты
от
накипи
(H).
Рис
. 1 -
Поз
. 8
Долить
в
бак
умягчающую
жидкость
RM 110 (2.780-001).
Опасность
Опасность
обваривания
горячей
водой
!
После
эксплуата
-
ции
с
горячей
водой
прибор
для
охлаждения
следует
в
те
-
чение
не
менее
двух
минут
эксплуатировать
с
холодной
водой
с
открытым
пистолетом
.
В
режиме
горячей
воды
установить
регулятор
температу
-
ры
(
В
)
на
самую
низкую
температуру
.
Дать
прибору
проработать
в
течение
30
секунд
без
мою
-
щего
средства
.
Выключатель
прибора
(
А
)
повернуть
в
положение
„0“.
Закрыть
подачу
воды
.
Нажать
рычаг
пистолета
-
распылителя
,
пока
аппарат
не
освободится
от
давления
.
Заблокировать
пистолет
-
распылитель
с
помощью
предо
-
хранительного
фиксатора
от
случайного
нажатия
.
При
длительных
перерывах
в
работе
или
при
невозможности
хранения
прибора
в
местах
,
защищенных
от
мороза
,
прове
-
сти
следующие
мероприятия
(
см
.
главу
«
Техническое
обслу
-
живание
и
уход
»,
раздел
«
Защита
от
морозов
»).
Слить
воду
.
Промывка
прибора
антифризом
.
Выключить
и
заблокировать
главный
выключатель
или
отсоединить
штекерный
разъем
Cekon.
Закрыть
подачу
газа
.
Внимание
!
Опасность
получения
травм
и
повреждений
!
При
хранении
следует
обратить
внимание
на
вес
устройства
.
Внимание
!
Опасность
получения
травм
и
повреждений
!
При
тран
-
спортировке
следует
обратить
внимание
на
вес
устрой
-
ства
.
При
перевозке
аппарата
в
транспортных
средствах
сле
-
дует
учитывать
действующие
местные
государственные
нормы
,
направленные
на
защиту
от
скольжения
и
опроки
-
дывания
.
Загряз
-
нение
Насадка Угол
раз
-
брызги
-
вания
Деталь
№
6.415
Давле
-
ние
[
МП
a]
Отдача
[
Н
]
HDS 9/16
сильное
0075
0°
-419
10
37
среднее
2575
25°
-421
легкое
4075
40°
-422
HDS 12/14
сильное
0010
0°
-082
10
46
среднее
2510
25°
-252
легкое
4010
40°
-253
Дозировка
моющего
средства
Положение
0,5
1
8
Количество
моющего
средства
[
л
/
ч
]
14...15 22...24
50
Концентрация
моющего
средства
[%]
1,5
2,5
> 5
Долить
умягчающую
жидкость
Вывод
из
эксплуатации
После
эксплуатации
с
моющим
средством
Выключение
аппарата
Вывод
из
эксплуатации
Хранение
Транспортировка
268
RU
-
7
Технические
данные
HDS 9/16-4 ST
Gas
HDS 9/16-4 ST
Gas LPG
HDS 12/14-4
ST Gas
HDS 12/14-4
ST Gas LPG
1.251-108
1.251-109
1.251-110
1.251-111
Данные
о
производительности
Рабочее
давление
воды
(
со
стандартной
форсункой
)
MPa (bar)
16 (160)
16 (160)
14 (140)
14 (140)
Макс
.
рабочее
давление
(
предохранительный
клапан
l) MPa (bar)
18,5 (185)
18,5 (185)
18,5 (185)
18,5 (185)
Подача
воды
(
с
плавной
регулировкой
)
l/h (l/min)
500-1000 (8,3-
16,6)
500-1000 (8,3-
16,6)
600-1200 (10-
20)
600-1200 (10-
20)
Всасывание
моющего
средства
(
с
плавной
регулиров
-
кой
)
l/h (l/min)
0-50 (0-0,8)
0-50 (0-0,8)
0-60 (0-1)
0-60 (0-1)
Подключение
водоснабжения
Количество
подаваемой
воды
(
мин
.)
l/h (l/min)
1100 (18,3)
1100 (18,3)
1300 (21,7)
1300 (21,7)
Давление
напора
(
мин
.)
MPa (bar)
0,1 (1)
0,1 (1)
0,1 (1)
0,1 (1)
Давление
напора
(
макс
.)
MPa (bar)
0,6 (6)
0,6 (6)
0,6 (6)
0,6 (6)
Электрические
параметры
Вид
тока
--
3N~
3N~
3N~
3N~
Частота
Hz
50
50
50
50
Напряжение
V
380-420
380-420
380-420
380-420
Потребляемая
мощность
kW
6,4
6,4
7,5
7,5
Предохранитель
(
инертный
)
A
16
16
20
20
Тип
защиты
--
IPX5
IPX5
IPX5
IPX5
Класс
защиты
--
I
I
I
I
Максимально
допустимое
сопротивление
сети
Ом
(0,381+j 0,238) (0,381+j 0,238) --
--
Повдод
электричества
mm
2
5 x 2,5
5 x 2,5
5 x 2,5
5 x 2,5
Температура
Температура
подаваемой
воды
(
макс
.)
°C
30
30
30
30
Макс
.
рабочая
температура
горячей
воды
°C
98
98
98
98
Аварийный
термостат
максимальной
температуры
°C
110
110
110
110
Повышение
температуры
при
максимальном
расходе
воды
°C
60-65
60-65
60-65
60-65
Мощность
нагрева
общая
kW
75
75
95
95
Тяга
дымовой
трубы
kPa
0,01-0,04
0,01-0,04
0,01-0,04
0,01-0,04
Параметры
подключения
газа
Природный
газ
E (G 20)
m
3
/h
7,2
--
9,8
--
Природный
газ
LL (G 25)
m
3
/h
8,2
--
11,4
--
Номинальное
присоединительное
давление
(
природ
-
ный
газ
)
kPa
1,8-5
--
1,8-5
--
Пропан
kg/h
--
5,7
--
7,2
Номинальное
присоединительное
давление
(
Пропан
)
kPa
--
5-6
--
5-6
Характеристики
окружающей
среды
Нормальная
производительность
%
97
97
97
97
Нормальный
фактор
выброса
NO
X
(
природный
газ
G 25)
mg/kWh
< 40
--
< 40
--
Нормальный
фактор
выброса
CO (
природный
газ
G 25)
mg/kWh
< 40
--
< 40
--
Значение
расчетных
параметров
дымовой
трубы
Способность
выдерживать
избыточное
давление
(
мин
.) kPa
0,05
0,05
0,05
0,05
Максимум
нагрузки
газового
канала
kPa
0
0
0
0
Массовый
поток
выхлопных
газов
-
полная
нагрузка
kg/h
130
130
166
166
CO
2
(
природный
газ
)
%
9,5
--
9,5
--
CO
2
(
пропан
)
%
--
12
--
12
Температура
выхлопных
газов
макс
./
мин
.
°C
190/150
190/150
170/130
170/130
Воздух
для
горения
/
подача
воздуха
Максимальная
длина
:10
м
.
с
двумя
90
коленами
(
минимальный
диаметр
100
мм
)
В
зависимости
от
местных
предписаний
,
от
места
установки
обору
-
дования
или
свежего
воздуха
снаружи
.
Отвод
конденсата
Отвод
конденсата
(
макс
.)
l/h
4 (
через
си
-
фон
в
канали
-
зацию
)
4 (
через
си
-
фон
в
канали
-
зацию
)
4 (
через
си
-
фон
в
канали
-
зацию
)
4 (
через
си
-
фон
в
канали
-
зацию
)
Подсоединение
DN
40 (HTR)
40 (HTR)
40 (HTR)
40 (HTR)
Минимальный
водяной
столб
,
сифон
mm
300
300
300
300
269
RU
-
8
Допуск
EN 60335-2-79
Допуск
к
директиве
о
газовых
устройствах
(90/396/EEC) --
Gastec QA Low
NO
X
Gastec QA
Gastec QA Low
NO
X
Gastec QA
Катерогия
приборов
,
Европа
--
I 2E (r), I 2ELL,
I 2H, I 2L, I2 HE
I 3P
I 2E (r), I 2ELL,
I 2H, I 2L, I2 HE
I 3P
Тип
прибора
--
B23, C33, C43,
C53
B23, C33, C43,
C53
B23, C33, C43,
C53
B23, C33, C43,
C53
Идентификационный
номер
CE-
продукции
--
PIN 0063 BN
3880
PIN 0063 BN
3880
PIN 0063 BN
3880
PIN 0063 BN
3880
Размеры
и
массы
Длина
mm
1124
1124
1124
1124
Ширина
mm
558
558
558
558
высота
mm
966
966
1076
1076
Типичный
рабочий
вес
kg
193,5
193,5
209
209
Значение
установлено
согласно
EN 60355-2-79
Уровень
шума
Уровень
шума
дб
а
dB(A)
74
74
76
76
Опасность
K
pA
dB(A)
1
1
1
1
Значение
вибрации
рука
-
плечо
Ручной
пистолет
-
распылитель
m/s
2
2,2
2,2
2,3
2,3
Струйная
трубка
m/s
2
1,8
1,8
2,1
2,1
Опасность
K
m/s
2
1,0
1,0
1,0
1,0
HDS 9/16-4 ST
Gas
HDS 9/16-4 ST
Gas LPG
HDS 12/14-4
ST Gas
HDS 12/14-4
ST Gas LPG
Информационный
листок
270
RU
-
9
Опасность
Опасность
получения
травм
!
Перед
проведением
ремон
-
тных
работ
и
работ
по
техническому
обслуживанию
сле
-
дует
выключить
главный
выключатель
или
отсоединить
штекерный
разъем
Cekon.
Уход
и
техническое
обслуживание
План
технического
обслуживания
Время
Действие
соответствующий
узел
Проведение
работ
кем
ежедневно
Проверить
руч
-
ной
пистолет
-
распылитель
.
Ручной
пистолет
-
распыли
-
тель
Проверить
,
плотно
ли
закрыт
ручной
писто
-
лет
-
распылитель
.
Проверить
работу
защиты
от
непреднамеренного
включения
.
Неисправ
-
ные
ручные
пистолеты
-
распылители
заме
-
нить
.
Оператор
Проверить
шланги
высоко
-
го
давления
.
Выходные
трубопроводы
,
шланги
к
рабочему
прибору
Проверьте
шланги
на
предмет
повреждений
.
Поврежденные
шланги
немедленно
заме
-
нить
.
Опасность
несчастных
случаев
!
Оператор
Проверить
се
-
тевой
шнур
и
штепсельную
вилку
Электрическое
подсоедине
-
ние
с
помощью
штекерного
разъема
/
розетки
Проверить
сетевой
шнур
и
штепсельную
вил
-
ку
на
наличие
повреждений
.
Поврежденный
сетевой
шнур
должен
быть
незамедлительно
заменен
уполномоченной
службой
сервисно
-
го
обслуживания
/
специалистом
-
электриком
.
Оператор
раз
в
неделю
или
через
40
часов
работы
Проверка
со
-
стояния
масла
Масляный
резервуар
на
на
-
сосе
Если
масло
помутнело
,
его
необходимо
заме
-
нить
.
Оператор
Проверить
уро
-
вень
масла
Масляный
резервуар
на
на
-
сосе
Проверить
уровень
масла
в
насосах
.
При
не
-
обходимости
долить
масло
(
№
для
заказа
6.288-016).
Оператор
Очистка
сетки
Сеточный
фильтр
в
канале
подачи
воды
См
.
раздел
«
Очистка
сеток
».
Оператор
раз
в
месяц
или
через
200
часов
работы
Проверить
на
-
сос
Насос
высокого
давления
Проверить
насос
на
наличие
течей
.
При
утеч
-
ке
более
3
капель
в
минуту
вызвать
специа
-
листов
из
отдела
обслуживания
клиентов
.
Оператор
Проверить
на
наличие
вну
-
тренних
отло
-
жений
Вся
установка
Ввести
в
эксплуатацию
установку
со
струйной
трубкой
без
форсунки
высокого
давления
.
Если
рабочее
давление
на
манометре
прибо
-
ра
превышает
3
МПа
,
необходимо
удалить
накипь
.
Это
же
необходимо
сделать
в
том
случае
,
если
при
работе
без
шланга
высокого
давления
(
вода
свободно
вытекает
из
выхода
высокого
давления
)
установлено
рабочее
давление
выше
0,7–1
МПа
.
Оператор
,
прошедший
инструктаж
по
удале
-
нию
накипи
Очистка
сетки
Сетчатый
фильтр
в
системе
предохранения
от
отсутствия
воды
См
.
раздел
«
Очистка
сеток
».
Оператор
через
500-700
рабочих
часов
Замена
Накальный
зажигатель
,
иони
-
зирующий
электрод
Заменить
накальный
зажигатель
или
ионизи
-
рующий
электрод
.
Сервисная
служба
раз
в
полгода
или
через
1000
часов
работы
Смена
масла
Насос
высокого
давления
Слить
масло
.
Влить
1
л
нового
масла
(
№
для
заказа
6.288-016).
Проверить
уровень
запол
-
нения
в
масляном
баке
.
Оператор
проверить
,
очи
-
стить
Вся
установка
Визуальный
контроль
установки
,
проверить
место
подсоединения
шланга
высокого
дав
-
ления
на
герметичность
,
проверить
перепуск
-
ной
клапан
на
герметичность
,
проверить
шланг
высокого
давления
на
герметичность
,
проверить
ресивер
,
очистить
нагревательный
змеевик
от
накипи
,
отчистить
/
заменить
иони
-
зирующий
электрод
,
отрегулировать
горелку
.
Сервисная
служба
Заменить
шланг
.
Шланг
для
переключателя
давления
ОГ
Заменить
шланг
.
Сервисная
служба
раз
в
год
Проверка
без
-
опасности
ра
-
боты
Вся
установка
При
работе
с
жидкостными
струйными
уста
-
новками
необходимо
соблюдать
соответству
-
ющие
национальные
нормы
.
Специалист
271
RU
-
10
С
отделом
сбыта
фирмы
Karcher
можно
заключить
договор
на
техническое
обслуживание
устройства
.
Рис
. 1 -
Поз
. 3
Закрыть
подачу
воды
.
Открутить
на
приборе
шланг
подачи
воды
.
С
помощью
отвертки
вынуть
сетку
из
места
подсоедине
-
ния
.
Очистка
сетки
Снова
собрать
в
обратной
последовательности
.
Снять
листовую
обшивку
.
Открутить
угловую
деталь
с
предохранительного
блока
.
Выкрутить
из
сетки
винты
M8x30.
Клещами
вынуть
винты
и
сетку
.
Очистка
сетки
Снова
собрать
в
обратной
последовательности
.
При
образовании
отложений
в
трубопроводах
повышается
их
гидравлическое
сопротивление
,
что
может
привести
к
сра
-
батыванию
манометрического
выключателя
.
Опасность
Опасность
взрыва
ввиду
образования
горючих
газов
!
Куре
-
ние
при
удаление
накипи
запрещено
.
Обеспечить
хорошую
вентиляцию
.
Опасность
Опасность
повреждения
кислотой
!
Носите
защитные
очки
и
защитную
обувь
.
Для
удаления
,
согласно
государственным
нормам
,
разреша
-
ется
использовать
только
проверенные
средства
для
удале
-
ния
накипи
с
маркировкой
о
проверке
.
–
RM 100 (
№
для
заказа
6.287-008)
растворяет
известняк
и
простые
соединения
из
известняка
и
остатков
моющих
веществ
.
–
RM 101 (
№
для
заказа
6.287-013)
растворяет
отложения
,
которые
не
растворяются
RM 100.
Заполнить
20-
литровый
бак
15
литрами
воды
.
Добавить
1
литр
средства
для
удаления
накипи
.
Подключить
водный
шланг
прямо
к
головной
части
насо
-
са
и
опустить
свободный
конец
в
бак
.
Вставить
в
бак
подсоединенную
напорную
трубку
без
со
-
пла
.
Открыть
пистолет
и
не
закрывать
его
в
ходе
удаления
на
-
кипи
.
Переключить
выключатель
прибора
в
положение
«
Горелка
включена
»
до
достижения
температуры
примерно
40 °C.
Выключить
прибор
и
дать
ему
постоять
20
минут
.
Писто
-
лет
должен
оставаться
открытым
.
Наконец
,
прокачать
прибор
в
сухую
.
Указание
:
Для
антикоррозионной
защиты
и
нейтрализации
кислотных
остатков
в
самом
конце
мы
рекомендуем
прока
-
чать
через
прибор
щелочной
раствор
(
например
RM 81)
че
-
рез
бак
моющего
средства
.
Прибор
должен
быть
установлен
в
помещении
,
защищенном
от
морозов
.
При
опасности
замерзания
,
например
,
при
мон
-
таже
на
открытом
воздухе
,
прибор
нужно
опорожнить
и
про
-
мыть
антифризом
.
Отвинтите
шланг
подачи
воды
и
шланг
высокого
давле
-
ния
.
Оставьте
прибор
включенным
в
течении
не
более
1
минуты
до
тех
пор
,
пока
насос
и
трубопроводы
не
опорожнятся
.
Отсоединить
подающий
провод
,
отвернув
его
от
дна
кот
-
ла
и
освободив
нагревательный
змеевик
.
Указание
:
Соблюдайте
инструкции
по
использованию
анти
-
фриза
.
В
бак
с
поплавком
залить
доверху
обычный
антифриз
.
Установить
под
выходом
высокого
давления
подходящую
емкость
.
Включить
прибор
и
дать
ему
поработать
до
тех
пор
,
пока
не
сработает
система
предохранения
от
недостатка
воды
бака
с
поплавком
и
прибор
не
выключится
.
Заполнить
дно
котла
и
сифон
антифризом
.
В
результате
этого
также
достигается
определенная
антико
-
розионная
защита
.
Договор
о
техническом
обслуживании
Очистить
сетки
Сеточный
фильтр
в
канале
подачи
воды
Сетчатый
фильтр
в
системе
предохранения
от
отсутст
-
вия
воды
Удаление
накипи
Проведение
работ
2.
1.
Защита
от
замерзания
Слив
воды
Прополаскать
аппарат
антифиризом
272
RU
-
11
Опасность
Опасность
получения
травм
!
Перед
проведением
ремон
-
тных
работ
и
работ
по
техническому
обслуживанию
сле
-
дует
выключить
главный
выключатель
или
отсоединить
штекерный
разъем
Cekon.
*
Указание
Нажать
кнопку
разблокировки
термостата
отработан
-
ных
газов
(J)
для
разблокировки
датчика
пламени
.
Помощь
в
случае
неполадок
Неполадка
Возможная
причина
Способ
устранения
кем
Прибор
не
работает
,
контр
-
ольная
лампа
готовности
к
работе
(F)
не
горит
.
На
устройство
не
подано
напря
-
жение
.
Проверить
электрическую
сеть
.
Электрик
Сработала
схема
с
часовым
ме
-
ханизмом
и
блокировкой
.
Прибор
выключить
на
некоторое
время
,
затем
снова
включить
.
Оператор
Перегорел
предохранитель
в
цепи
управления
(F3).
Предо
-
хранитель
установлен
в
управ
-
ляющем
трансформаторе
(T2).
Вставить
новый
предохранитель
,
при
по
-
вторном
перегорании
устранить
причину
перегрузки
.
Сервисная
служба
Неисправен
манометрический
выключатель
HD (
высокого
дав
-
ления
)
или
ND (
низкого
давле
-
ния
).
Проверить
манометрический
выключа
-
тель
.
Сервисная
служба
Неисправен
таймер
модуля
(
А
1).
Проверить
подсоединения
,
при
необходи
-
мости
заменить
.
Сервисная
служба
+
Горит
контрольная
лампа
перегрева
двигателя
(G).
Сработал
термодатчик
(WS)
в
двигателе
или
выключатель
устройства
защиты
от
перегру
-
зок
(F1).
Устранить
причину
перегрузки
.
Сервисная
служба
Сработало
устройство
предо
-
хранения
от
отсутствия
воды
в
баке
с
поплавком
.
Устранить
недостаток
воды
.
Оператор
Горелка
не
зажигается
или
пламя
гаснет
во
время
эк
-
сплуатации
Регулятор
температуры
(B)
уста
-
новлен
на
слишком
низкую
тем
-
пературу
.
Установить
с
помощью
регулятора
более
высокую
температуру
.
Оператор
Выключатель
прибора
находит
-
ся
не
на
горелке
.
Включить
горелку
.
Оператор
Выключено
устройство
предо
-
хранения
от
отсутствия
воды
предохранительного
блока
.
Обеспечить
достаточную
подачу
воды
.
Проверить
прибор
на
герметичность
.
Оператор
Закрыть
газовый
кран
.
Открыть
газовый
кран
.
Оператор
Сработал
ограничитель
макси
-
мальной
температуры
водовы
-
пуска
(>110 C).
Дать
остыть
котлу
и
снова
запустить
при
-
бор
.
Оператор
Проверить
регулятор
температуры
.
Сервисная
служба
Загорается
контрольная
лампочка
термостата
отра
-
ботанных
газов
(
К
)
Отсутствует
подача
газа
.
Открыть
кран
подачи
газа
.
Оператор
Засорился
подвод
приточного
или
отработанного
воздуха
.
Проверить
вентиляцию
и
систему
отрабо
-
танного
газа
.
Оператор
Дно
котла
слишком
горячее
.
Сра
-
ботал
ограничитель
максималь
-
ной
температуры
дна
котла
(>80
C).
На
дне
котла
нет
сконденси
-
рованной
воды
.
Залить
5
литров
воды
в
измерительный
патрубок
отработанного
газа
.
Оператор
Автомат
сжигания
газа
находит
-
ся
в
положении
"
Неисправ
-
ность
".
Нажать
кнопку
разблокировки
газового
реле
(I).
Оператор
Отсутствие
зажигания
.*
Проверить
расстояние
между
электрода
-
ми
автомата
сжигания
газа
и
кабелем
за
-
жигания
.
Отрегулировать
расстояние
или
заменить
неисправные
детали
.
В
случае
необходимости
очистить
.
Сервисная
служба
Неисправен
вентилятор
или
чи
-
сло
оборотов
платы
.*
Проверить
вентилятор
и
число
оборотов
платы
.
Проверить
штекер
и
питающий
про
-
вод
.
Заменить
неисправные
части
.
Сервисная
служба
273
RU
-
12
Неполадка
Возможная
причина
Способ
устранения
кем
Загорается
контрольная
лампочка
термостата
отра
-
ботанных
газов
(
К
)
Сработал
ограничитель
темпе
-
ратуры
отработанных
газов
.
Открыть
ручной
пистолет
-
распылитель
до
остывания
установки
.
Выключить
и
вклю
-
чить
установку
на
пульте
управления
для
разблокировки
ограничителя
температу
-
ры
.
В
случае
повторения
обратиться
в
сервисную
службу
.
Оператор
Горит
контрольная
лампа
защиты
от
накипи
(H).
Использовать
умягчитель
.
Долить
умягчитель
.
Оператор
Недостаточная
подача
или
отсутствие
подачи
моюще
-
го
средства
Установить
дозирующий
клапан
в
положение
„0“.
Отрегулировать
дозирующий
клапан
мою
-
щего
средства
.
Оператор
Забит
фильтр
моющего
средст
-
ва
или
пуст
бак
с
моющим
сред
-
ством
.
Очистить
или
залить
.
Оператор
Пропускают
или
забиты
всасы
-
вающие
шланги
линии
подачи
моющего
средства
,
дозирующие
или
магнитные
клапаны
.
Проверить
,
очистить
Оператор
Неисправна
электронная
систе
-
ма
или
магнитный
клапан
.
Заменить
Сервисная
служба
Давление
в
приборе
не
увеличивается
Продуть
форсунку
.
Заменить
насадку
.
Оператор
Пуст
бак
для
моющего
средства
.
Долить
моющее
средство
Оператор
Недостаточно
воды
.
Обеспечить
достаточную
подачу
воды
.
Оператор
Забит
сетчатый
фильтр
на
входе
воды
.
Проверить
,
разобрать
и
очистить
сетча
-
тый
фильтр
.
Оператор
Негерметичен
дозирующий
кла
-
пан
моющего
средства
.
Проверить
и
уплотнить
.
Оператор
Негерметичен
шланг
подачи
мо
-
ющего
средства
.
Заменить
Оператор
Зажат
поплавковый
клапан
.
Проверить
легкость
хода
.
Оператор
Негерметичен
предохранитель
-
ный
клапан
.
Проверить
регулировку
,
при
необходимо
-
сти
вставить
новое
уплотнение
.
Сервисная
служба
Негерметичен
или
установлен
на
слишком
низкое
значение
клапан
регулировки
подачи
.
Проверить
элементы
клапана
,
при
выяв
-
лении
повреждений
заменить
,
при
загряз
-
нении
очистить
.
Сервисная
служба
Неисправен
магнитный
клапан
в
системе
сброса
давления
.
Заменить
магнитный
клапан
.
Сервисная
служба
Насос
высокого
давления
стучит
,
стрелка
манометра
скачет
,
насос
высокого
давления
всасывает
воз
-
дух
Неисправен
демпфер
Заменить
демпфер
Сервисная
служба
Водяной
насос
подсасывает
немного
воздуха
.
Проверить
всасывающую
систему
и
устранить
течи
.
Оператор
Прибор
при
подключенном
ручном
пистолете
-
распы
-
лителе
постоянно
включа
-
ется
и
выключается
.
Закупорена
форсунка
в
струйной
трубке
.
Проверить
,
очистить
Оператор
В
приборе
образовалась
накипь См
.
раздел
«
Удаление
накипи
».
Оператор
Изменена
точка
включения
тока
перегрузки
.
Заново
установить
значение
тока
пере
-
грузки
.
Сервисная
служба
Забит
сетчатый
фильтр
в
систе
-
ме
предохранения
от
отсутствия
воды
.
Проверить
,
разобрать
и
очистить
сетча
-
тый
фильтр
.
Оператор
При
закрытом
ручном
пи
-
столете
-
распылителе
при
-
бор
не
выключается
.
Из
насоса
не
полностью
откачан
воздух
.
Установить
выключатель
прибора
в
поло
-
жение
„0“
и
вытянуть
ручной
пистолет
-
рас
-
пылитель
,
пока
из
форсунки
не
перестанет
выступать
жидкость
.
Снова
включить
прибор
.
Повторять
этот
процесс
до
достижения
полного
рабочего
давле
-
ния
.
Оператор
Неисправен
предохранительный
клапан
или
уплотнение
предо
-
хранительного
клапана
.
Заменить
предохранительный
клапан
или
уплотнение
.
Сервисная
служба
Пневматический
выключатель
протока
.
Проверить
пневматический
выключатель
и
проток
.
Сервисная
служба
274
RU
-
13
Использование
моющего
средства
облегчает
процесс
очист
-
ки
.
В
таблице
представлен
перечень
моющих
средств
.
Пе
-
ред
использованием
моющих
средств
обязательно
прочитать
указания
на
упаковке
.
* =
только
для
кратковременного
применения
,
двухэтапный
способ
,
после
очистки
промыть
холодной
водой
** = ASF =
легкая
сепарируемость
*** =
для
предварительного
разбрызгивания
используется
Foam-Star 2000
Принадлежности
Моющее
средство
Область
применения
:
Загрязнение
,
тип
применения Моющее
средство
pH-
значение
(
при
-
мерно
) 1%-
ный
рас
-
твор
в
водопроводной
во
-
де
.
грузовые
автомобили
,
бензоколонки
,
тран
-
спортно
-
экспедицион
-
ные
агентства
,
транспортные
хозяйст
-
ва
Пыль
,
уличная
грязь
,
минераль
-
ные
масла
(
на
лакированных
по
-
верхностях
)
RM 55 ASF **
8
RM 22/80-
порошок
ASF
12/10
RM 81 ASF
9
RM 803 ASF
10
RM 806 ASF
11
Консервация
автомобилей
RM 42
холодный
воск
для
очистки
под
вы
-
соким
давлением
8
RM 820-
горячий
воск
ASF
7
RM 821-
разбрызгиваемый
воск
ASF
6
RM 824-Super-Perlwachs ASF
7
RM 44
гелевый
очиститель
ободов
9
Металлообрабатываю
-
щая
промышленность
масла
,
консистентные
смазки
,
пыль
и
другие
подобные
загряз
-
нения
RM 22/80-
порошок
ASF
12
RM 55 ASF
8
RM 81 ASF
9
RM 803 ASF
10
RM 806 ASF
12
RM 31 ASF (
сильные
загрязнения
)
12
RM 39-
жидкий
(
с
коррозионной
защитой
)
9
Предприятия
по
пере
-
работке
пищевых
про
-
дуктов
Загрязнения
от
легких
до
сред
-
них
,
консистентные
смазки
/
ма
-
сла
,
большие
поверхности
RM 55 ASF
8
RM 81 ASF
9
RM 882
гелевая
пена
OSC
12
RM 58 ASF (
пенообразующее
моющее
средство
)
9
RM 31 ASF *
12
Дымчатая
канифоль
RM 33 *
13
Очистка
и
дезинфекция
RM 732
9
Дезинфекция
RM 735
7...8
Накипь
,
минеральные
отложе
-
ния
RM 25 ASF *
2
RM 59 ASF (
очистка
пеной
)
2
Санитарно
-
техниче
-
ская
отрасль
***
Известь
,
мочевой
камень
,
мыло
и
т
.
д
.
RM 25 ASF * (
основная
очистка
)
2
RM 59 ASF (
очистка
пеной
)
2
RM 68 ASF
5
275
RU

