Karcher Nettoyeur haute pression HDS 9-16-4 ST Gaz LPG: !
!: Karcher Nettoyeur haute pression HDS 9-16-4 ST Gaz LPG
-
14
–
Нагрівальним
пристроєм
є
паливнева
установка
.
При
установці
слід
дотримуватися
приписань
,
що
діють
у
цій
країні
.
–
Використовувати
тільки
перевірені
димарі
/
трубопроводи
для
відводу
відпрацьованих
газів
.
–
Установка
газопроводу
,
а
також
під
'
єднання
пристроїв
стороннього
газу
,
повинні
виконуватися
тільки
зареєстрованою
фірмою
з
відповідною
кваліфікацією
по
водяному
та
газовому
виробництву
.
–
Настроювання
та
ремонт
газового
пальника
можуть
виконуватися
тільки
навченими
монтерами
сервісної
служби
фірми
Kärcher.
–
У
газопроводі
,
номінальний
діаметр
якого
повинен
бути
як
мінімум
1
дюйм
,
повинен
бути
передбачений
манометр
та
запірний
клапан
.
–
Насос
високого
тиску
може
бути
причиною
виникнення
вібрацій
,
його
потрібно
з
'
єднати
із
гнучким
газовим
шлангом
твердого
газопроводу
та
пристроєм
.
–
Газопровід
довжиною
понад
10
метрів
повинен
мати
номінальний
діаметр
1 1/2
дюйма
або
більше
.
Газове
під
'
єднання
до
пристрою
з
номінальним
діаметром
1.
Обережно
!
При
вкрученні
гнучкого
газового
шланга
в
пальник
необхідно
гайковим
ключем
SW 36
притиснути
сполучний
ніпель
.
Сполучний
ніпель
не
дозволяється
прикручувати
перед
корпусом
пальника
.
Герметизація
гвинтової
нарізі
здійснюється
з
допомогою
засобу
герметизації
DVGW.
Після
підключення
необхідно
випарником
перевірити
місце
з
'
єднання
на
герметичність
із
застосуванням
засобу
герметизації
DVGW.
Внутрішній
діаметр
труби
газопроводу
повинен
бути
розрахований
відповідно
до
DVGW TRG
І
1986
або
TRF 1996.
Номінальний
діаметр
газового
під
'
єднання
пристрою
не
вважається
автоматично
номінальним
внутрішнім
діаметром
трубопроводу
.
Визначення
розмірів
та
установка
газопроводу
повинні
проводитися
залежно
від
відповідних
норм
і
приписань
.
–
Кожний
пристрій
необхідно
під
'
єднати
до
власної
труби
відводу
газу
.
–
Газовідвід
необхідно
встановлювати
відповідно
до
місцевих
приписань
та
в
узгодженні
з
компетентним
фахівцем
з
вентиляції
.
Газовий
пристрій
без
запобіжника
витоку
,
при
якому
піднімаються
всі
зазначені
частини
газоходу
повітря
для
горіння
,
що
перебувають
нижче
перевищення
тиску
.
Установка
B23
дає
можливість
підключення
пристрою
до
звичайного
безперервного
димаря
з
допомогою
D
І
18160
і
використання
дозованого
повітря
в
приміщенні
.
Передумовою
є
те
,
що
димар
придатний
для
під
'
єднання
пристрою
теплоти
згоряння
(
наприклад
,
у
той
час
як
відбувається
реконструкція
димаря
шляхом
прокладки
труб
з
інструментальної
сталі
).
Монтаж
обладнання
Тільки
для
авторизованого
персоналу
!
Загальні
положення
Газ
у
цілому
Газопровід
Повітря
/
газовідвід
!
Газовий
пристрій
із
системою
вихлопу
,
що
витягає
встановлений
обсяг
повітря
для
горіння
.
Тип
B23
456
UK
-
15
Газовий
пристрій
з
подачею
повітря
для
горіння
та
вертикальним
газовідводом
на
даху
.
Відсіки
знаходяться
поблизу
,
навпроти
один
одного
,
на
однакових
діапазонах
тиску
.
Газовий
пристрій
з
подачею
повітря
для
горіння
та
газовідводом
для
під
'
єднання
до
системи
відпрацьованого
газу
та
повітря
.
Газовий
пристрій
з
роздільною
подачею
повітря
для
горіння
та
газовідводом
.
Відсіки
перебувають
на
різних
діапазонах
тиску
.
Вказівка
:
Для
досягнення
запропонованих
параметрів
горіння
слід
дотримуватися
значень
тяги
димаря
,
вказаних
в
розділі
"
Технічні
дані
".
Трубопровід
конденсату
повинен
сифонувати
прямо
в
під
'
єднання
для
конденсату
.
Висота
сифона
повинна
становити
30
см
.
Сифон
входить
у
комплект
постачання
.
Трубопровід
конденсату
не
обов
'
язково
повинен
бути
міцно
з
'
єднаний
з
каналізацією
.
Конденсат
повинен
вільно
витікати
у
воронку
або
бак
для
нейтралізації
.
–
Перед
установкою
перевірити
несучу
спроможність
стіни
.
Кріпильний
матеріал
,
що
входить
у
комплект
постачання
,
придатний
для
бетону
.
Для
стін
,
виконаних
з
будівельного
каменю
з
порожнечами
,
цегли
та
газобетону
,
необхідно
використовувати
підходящі
дюбелі
та
гвинти
,
наприклад
,
анкерні
дюбелі
(
схему
розташування
отворів
див
.
на
габаритному
кресленні
).
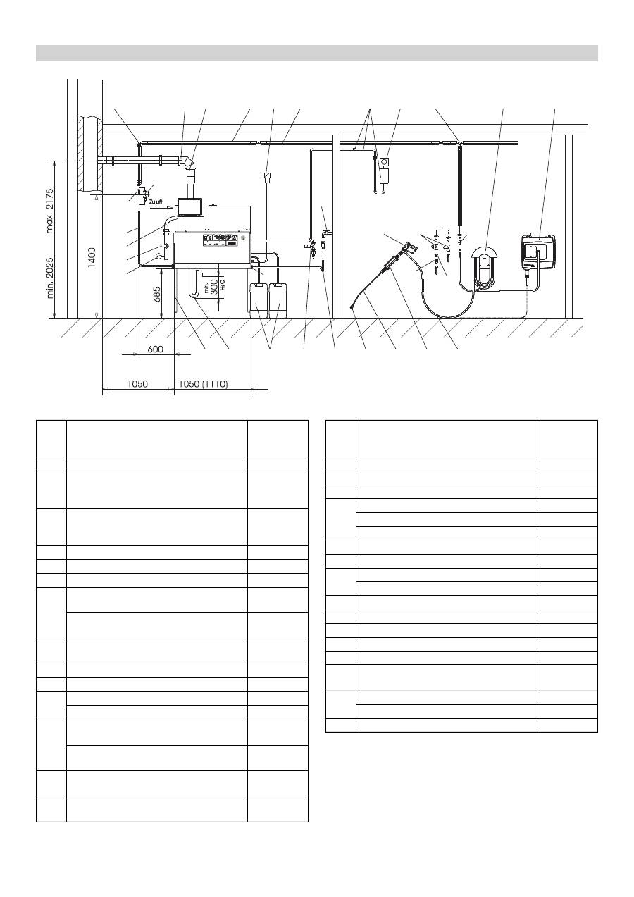
–
Мал
. 3 -
Поз
. 19
та
25
Апарат
не
можна
жорстко
з
'
єднувати
з
водогінною
мережею
або
мережею
трубопроводів
високого
тиску
.
Обов
'
язково
треба
змонтувати
з
'
єднувальні
шланги
.
–
Мал
. 3 - A
Передбачити
запірний
клапан
між
водогінною
мережею
та
з
'
єднувальним
шлангом
.
Газовий
пристрій
із
системою
вихлопу
,
що
витягає
назовні
повітря
для
горіння
із
закритої
системи
.
Тип
C33
Тип
C43
Тип
C53
Відтік
конденсату
Настінний
монтаж
457
UK
-
16
При
монтажі
шлангів
високого
тиску
слід
дотримуватись
відповідних
національних
норм
.
–
Перепад
тиску
в
трубопроводі
повинен
бути
меншим
за
1,5
Мпа
.
–
Готовий
трубопровід
необхідно
перевірити
під
тиском
32
Мпа
.
–
Ізоляція
трубопроводу
повинна
бути
термостійкою
до
температури
100 °C.
Мал
. 3 -
Поз
. 20
Баки
необхідно
встановити
таким
чином
,
щоб
нижній
рівень
мийного
засобу
був
не
більш
ніж
на
1,5
м
нижчим
від
денця
пристрою
,
а
верхній
рівень
був
не
вищим
від
денця
пристрою
.
Мал
. 3 - B
та
поз
. 19
Водоспуск
підключається
до
водогінної
мережі
за
допомогою
підходящого
водяного
шланга
.
–
Продуктивність
подачі
води
повинна
становити
не
менш
1300
л
/
година
при
тиску
не
менш
0,1
МПа
.
–
Температура
води
повинна
бути
нижче
30 °C.
Увага
!
Забороняється
перевищувати
максимально
допустимий
повний
опір
в
точці
під
'
єднання
до
мережі
(
див
.
Технічні
дані
).
В
тому
випадку
,
якщо
вам
не
відома
величина
повного
опору
мережі
в
точці
електричного
підключення
,
зверніться
в
енергозабезпечуючу
організацію
.
Вказівка
:
Під
час
увімкнення
виникає
короткотривале
падіння
напруги
.
У
разі
несприятливих
умов
мережі
можуть
виникати
пошкодження
інших
пристроїв
.
–
Значення
щодо
підключення
див
.
Технічні
дані
та
заводську
табличку
.
–
Електричні
з
’
єднання
повинні
бути
виконані
електромонтажником
та
відповідати
IEC 60364-1.
–
Струмовідні
деталі
,
кабелі
та
пристрої
у
робочій
зоні
повинні
бути
в
бездоганному
стані
та
бути
захищені
від
потрапляння
водяного
струменю
.
Щоб
уникнути
нещасних
випадків
під
час
використання
електроприладів
,
ми
рекомендуємо
використовувати
розетки
з
попередньо
увімкненим
автоматом
захисту
від
току
витоку
(
макс
. 30
мА
сили
току
номінальної
дії
).
Встановити
електричне
з
'
єднання
.
Для
вимкнення
стаціонарної
очисної
установки
високого
тиску
використовується
головний
вимикач
,
що
замикається
на
замок
, (
мал
. 3,
поз
. 6),
розташований
у
безпечному
та
легкодоступному
місці
.
Ширина
розмикання
контактів
головного
вимикача
повинна
становити
не
менш
3
мм
.
Змонтувати
на
сполучному
кабелі
пристрою
штекерний
рознім
Cekon.
Вставити
штекерний
роз
'
єм
Cekon
в
розетку
.
Для
відключення
стаціонарної
очисної
установки
високого
тиску
штекерний
рознім
Cekon
для
від
'
єднання
від
мережі
повинен
бути
легко
доступним
.
Перевірити
газове
під
'
єднання
.
Увага
!
Небезпека
ушкодження
пристроїв
через
перегрів
.
Сифон
кріпиться
на
дно
котла
та
заповнюється
водою
.
Котел
заповнюється
через
отвір
труби
для
відводу
газів
4
літрами
води
.
Перед
першим
використанням
зрізати
кінчик
на
ковпачку
ємності
з
маслом
водяного
насоса
.
Мал
. 3 -
Поз
. 14
Шланг
високого
тиску
з
'
єднують
із
ручним
пістолетом
-
розпилювачем
і
струминною
трубкою
,
потім
установлюють
на
виході
високого
тиску
пристрою
або
мережі
трубопроводів
високого
тиску
.
Накидною
гайкою
(a)
закріпити
мундштук
форсунки
(b)
на
струминній
трубці
(d).
Звернути
увагу
на
те
,
щоб
ущільнення
(c)
лягло
точно
в
паз
.
Монтаж
шлангів
високого
тиску
Установка
баків
з
мийним
засобом
Водозабезпечення
Електричні
з
'
єднання
Жорстко
змонтоване
з
'
єднання
до
електричної
мережі
.
Електричне
з
'
єднання
за
допомогою
штекерного
роз
'
єму
/
розетки
Перше
введення
в
експлуатацію
Пристрій
за
замовчуванням
установлюється
як
пристрій
для
природного
газу
з
типом
газу
G 20
та
пристрій
для
зрідженого
газу
G 31.
При
перемиканні
пристрою
для
природного
газу
на
G 25
або
інший
природний
газ
(
див
.
заводську
табличку
)
або
пристрій
для
зрідженого
газу
на
G
30
або
інший
зріджений
газ
(
див
.
заводську
табличку
),
для
пристрою
природного
газу
необхідно
встановити
значення
викидів
природного
газу
,
а
для
пристрою
зрідженого
газу
-
значення
викидів
зрідженого
газу
відповідно
до
сервісної
інформації
.
Порожню
табличку
,
що
додається
,
заповнюють
відомостями
про
встановлений
новий
тип
газу
та
поміщають
у
поле
напису
з
правої
сторони
пристрою
.
Одночасно
необхідно
видалити
звідти
розміщену
на
заводі
табличку
із
вказівкою
G 20 (
пристрій
природного
газу
)
або
G 31 (
пристрій
зрідженого
газу
)
Заходи
до
введення
в
експлуатацію
a
b
c
d
458
UK
-
17
Зняти
пружину
(c)
з
упору
кришки
(b)
бака
зм
'
якшувача
(a).
Заповнити
бак
зм
'
якшувачем
Kärcher RM 110 (
номер
для
замовлення
2.780-001).
Обережно
!
Небезпека
поразки
електричним
струмом
!
Настроювання
дозволяється
проводити
тільки
фахівцю
-
електрику
.
Визначення
місцевої
твердості
води
:
–
через
місцеве
підприємство
комунально
-
побутового
обслуговування
,
–
за
допомогою
пристрою
для
виміру
твердості
води
(
номер
замовлення
6.768-001).
Зняти
кришку
пристрою
.
Відкрити
розподільний
щит
поруч
із
пультом
керування
.
Установити
поворотний
потенціометр
(
а
)
залежно
від
твердості
води
.
У
таблиці
зазначені
правильні
установки
.
Приклад
:
Для
твердості
води
15 °dH
установити
положення
6
на
поворотному
потенціометрі
.
Це
означає
,
що
час
паузи
дорівнює
31
секунді
,
т
.
д
.
кожні
31
секунду
на
короткий
час
відкривається
магнітний
клапан
.
Регулювання
часу
готовності
до
роботи
здійснюється
на
великій
платі
на
лівій
бічній
стінці
електричної
шафи
.
На
заводі
-
виробнику
час
готовності
до
роботи
встановлюється
на
мінімальне
значення
,
що
дорівнює
2
хвилинам
,
і
може
бути
збільшене
максимально
до
8
хвилин
.
Захист
від
утворення
накипу
Твердість
води
(°dH)
5
10
15
20
25
Шкала
поворотного
потенціометра
8
7
6
5
4,5
Час
паузи
(
секунд
)
50
40
31
22
16
b
c
a
a
Регулювання
часу
готовності
до
роботи
8 7 6 5 4 3 2 1
S2
min.
max.
459
UK
-
18
Мал
. 3
Монтажний
матеріал
1
2
3
5
6
7
8
9
10
12
13
A
15
11b
11a
11c
11a
25
21
22
23
11b
24
4
20
19a
19
18
17
16
14
11d
B
Поз
.
Монтажний
матеріал
№
замовленн
я
1
Кутове
нарізне
з
'
єднання
6.386-356
2
Набор
трубопроводов
для
отработанного
газа
,
горизонтальный
,
150
мм
6.526-231
3
Набор
трубопроводов
для
отработанного
газа
,
вертикальный
, 150
мм
6.526-232
4
Комплект
сполучних
деталей
сифона
2.640-422
5
Теплова
ізоляція
6.286-114
6
Головний
вимикач
6.631-455
7
Комплект
трубопроводів
,
оцинкована
сталь
2.420-004
Комплект
трубопроводів
,
високоякісна
сталь
2.420-006
8
Комплект
деталей
дистанційного
керування
2.744-008
9
Комплект
деталей
аварійного
вимикача
2.744-002
10
Т
-
образне
нарізне
з
'
єднання
6.386-269
11a
Сполучні
штуцери
,
латунь
2.638-180
Сполучні
штуцери
,
високоякісна
сталь
2.638-181
11b
Запірний
кран
номінальним
внутрішнім
діаметром
NW 8,
оцинкована
сталь
4.580-144
Запірний
кран
номінальним
внутрішнім
діаметром
NW 8,
високоякісна
сталь
4.580-163
11c
Нерухома
частина
швидкороз
'
ємного
з
'
єднання
6.463-025
11d
Рухома
частина
швидкороз
'
ємного
з
'
єднання
6.463-023
Поз
.
Монтажний
матеріал
№
замовленн
я
12
Тримач
шланга
2.042-001
13
Барабан
для
намотки
шланга
2.637-238
14
Шланг
високого
тиску
10
м
6.388-083
15
Ручний
пістолет
-
розпилювач
Easypress 4.775-463
Регулятор
настроювання
HDS 9/16-4
4.775-470
Регулятор
настроювання
HDS 12/14-4
4.775-471
16
Тримач
струминної
трубки
2.042-002
17
Вихлопне
сопло
4.760-550
18
Мундштук
форсунки
HDS 9/16-4
2.883-402
Мундштук
форсунки
HDS 12/14-4
2.883-406
19
Водяний
шланг
4.440-282
19a
Магнітний
клапан
лінії
подачі
води
4.743-011
20
Бак
з
мийним
засобом
, 60
л
5.070-078
21
Газовий
шланг
R1"
6.388-228
22
Газовий
запірний
кран
R1"
6.412-389
23
Манометр
,
газ
(
Увага
!
Запірний
клапан
передбачений
заводською
установкою
.
6.412-059
24
Комплект
деталей
стінного
кронштейна
2.053-005
Комплект
деталей
наземної
стовби
2.210-008
25
Рукав
високого
тиску
6.389-028
460
UK
-
19
Цим
ми
повідомляємо
,
що
нижче
зазначена
машина
на
основі
своєї
конструкції
та
конструктивного
виконання
,
а
також
у
випущеної
у
продаж
моделі
,
відповідає
спеціальним
основним
вимогам
щодо
безпеки
та
захисту
здоров
'
я
представлених
нижче
директив
ЄС
.
У
випадку
неузгодженої
з
нами
зміни
машини
ця
заява
втрачає
свою
силу
.
5.957-648
Ті
,
хто
підписалися
діють
за
запитом
та
дорученням
керівництва
.
уповноважений
по
документації
:
S. Reiser
Alfred Kaercher GmbH & Co. KG
Alfred-Kaercher-Str. 28 - 40
71364 Winnenden (Germany)
Тел
.: +49 7195 14-0
Факс
: +49 7195 14-2212
Winnenden, 2014/02/01
У
кожній
країні
діють
умови
гарантії
,
видані
нашими
компетентними
товариствами
зі
збуту
.
Можливі
несправності
приладу
протягом
гарантійного
строку
ми
усуваємо
безкоштовно
,
якщо
причина
полягає
в
дефектах
матеріалів
або
помилках
при
виготовленні
.
Заява
при
відповідність
Європейського
співтовариства
Продукт
:
Очищувач
високого
тиску
Тип
:
1.251-xxx
Відповідна
директива
ЄС
2009/142/
ЄС
2006/42/EG (+2009/127/EG)
2004/108/
ЄС
Прикладні
гармонізуючі
норми
EN 55014–1: 2006+A1: 2009+A2: 2011
EN 55014–2: 1997+A1: 2001+A2: 2008
EN 60335–1
EN 60335–2–79
EN 62233: 2008
EN 61000–3–2: 2006+A1: 2009+A2: 2009
HDS 12/14:
EN 61000–3–3: 2008
HDS 9/16:
EN 61000–3–11: 2000
Застосовані
специфікації
:
QA 195 (
не
LPG)
Назва
відповідального
представництва
:
Для
2009/142/
ЄС
GASTEC
Wilmersdorf 50
7327 AC Apeldoorn
Код
0063
Гарантія
CEO
Head of Approbation
461
UK
-
20
Служба
підтримки
користувачів
Тип
пристрою
:
Заводський
№
:
Уведено
в
експлуатацію
:
Дата
проведення
перевірки
:
Результат
:
Підпис
Дата
проведення
перевірки
:
Результат
:
Підпис
Дата
проведення
перевірки
:
Результат
:
Підпис
Дата
проведення
перевірки
:
Результат
:
Підпис
462
UK
http://www.kaercher.com/dealersearch

