Karcher Nettoyeur haute pression HDS 9-14-4 ST Eco: !
!: Karcher Nettoyeur haute pression HDS 9-14-4 ST Eco
-
14
–
O equipamento de aquecimento da instalação é uma instala-
ção de combustão. Observar as normas vigentes no local de
instalação.
–
Utilizar apenas chaminés/ tubagens de evacuação do gás de
escape testadas e certificadas.
Perigo
Perigo de queimaduras! Este símbolo deve ser colocado em
cada local de remoção.
Durante a colocação de um tanque de óleo de aquecimento no
recinto de instalação devem ser observadas as disposições so-
bre o armazenamento de líquidos inflamáveis (consultar na edi-
tora "Carl Heymanns Verlag", Colónia, www.heymanns.com).
Durante a instalação das tubagens do combustível deve ser ob-
servado o diagrama indicado em baixo.
Além disso, deve ser previsto um sistema de duas vias, de avan-
ço e retorno.
–
Máxima pressão prévia do óleo de aquecimento: 0,05 MPa
(0,5 bar)
–
Máximo vácuo entre o filtro do óleo de aquecimento e a bom-
ba: 0,04 MPa (0,4 bar)
Comprimento do tubo de aspiração em m
Altura de aspiração em m
Possível comprimento do tubo de aspiração nos tubos com (lar-
gura nominal) NW 8
–
Cada aparelho deve ser ligado a uma chaminé individual.
–
A condução do gás de escape deve ser efectuada em confor-
midade com as prescrições locais em vigor e segundo as ins-
truções do limpa-chaminés competente.
Recomendamos a montagem de um obstruidor da corrente de ar
entre a instalação e a chaminé.
Aviso
Para atingir os valores de combustão deve ser cumprido o valor
de evacuação da chaminé indicado nos dados técnicos.
–
No caso de montagem na parede deve-se verificar a capaci-
dade de carga da parede. O material de fixação incluído no
volume de fornecimento é adequado para betão. Para mate-
riais de construção ocos, tijolos e paredes em betão celular
devem ser utilizadas buchas e parafusos adequados como,
por exemplo, ganchos de injecção (ver esquema de furação
na folha de dimensões).
–
Figura 3 - pos. 19 e 23
O aparelho não pode ser conectado de modo rígido à rede de
tubagens de água ou à rede de tubagens de alta pressão. As
tubagens de ligação devem ser obrigatoriamente montadas.
–
Figura 3 - A
Entre a rede de tubagens de água e a mangueira de ligação
deve ser prevista uma torneira de paragem.
Durante a montagem de tubagens de alta pressão devem ser
respeitadas as prescrições legais em vigor no respectivo país de
aplicação.
–
A queda de pressão da tubagem deve ser inferior a 1,5 MPa.
–
A tubagem concluída deve ser controlada com 28 MPa.
–
O isolamento da tubagem deve ser resistente até uma tem-
peratura de 155 °C.
Figura 3 - pos. 20
Os recipientes devem ser posicionados de modo que o nível in-
ferior do detergente não esteja mais de 1,5 m abaixo da base do
aparelho e que o nível superior não se situe acima da base do
aparelho.
Figura 3 - B e pos. 19
Ligar a entrada de água com uma mangueira de água ade-
quada à rede de água.
–
A potência da alimentação de água deve ser de, pelo menos,
1300 l/h com, pelo menos, 0,1 MPa.
–
A temperatura da água deve ser inferior a 30 °C.
Atenção
A impedância de rede máx. permitida, no ponto de conexão eléc-
trico (ver dados técnicos), não pode ser excedida. Em caso de
dúvidas sobre a impedância de rede existente no seu ponto de
conexão, deve entrar em contacto com a empresa de forneci-
mento de energia.
Aviso:
Os processos de ligação provocam breves quedas de
tensão. Em condições desfavoráveis da rede eléctrica, outros
aparelhos poderão ser prejudicadas por este efeito.
–
Valores de conexão: vide dados técnicos e placa sinalética.
–
A ligação eléctrica tem que ser feita por um electricista cre-
denciado e tem que corresponder a IEC 60364-1.
–
As peças condutoras de corrente, cabos e aparelhos situa-
dos na zona de trabalho devem estar protegidos correcta-
mente contra salpicos de água.
Para evitar acidentes relacionados com a electricidade, reco-
mendamos utilizar tomadas com disjuntor de corrente de defeito
intercalado (máx. 30 mA corrente de activação nominal).
Instalação da unidade
Apenas para técnicos autorizados!
Generalidades
Substituir o bocal de
alta pressão por um
bocal de vapor, no
caso de temperaturas
de trabalho superio-
res a 100 °C.
Tanque do óleo de aquecimento
Tubagens do combustível
Tubo de gás de escape (fumo)
!
Montagem na parede
Montagem das tubagens de alta pressão
Colocar os recipientes do detergente
Alimentação de água
Ligação eléctrica
133
PT
-
15
Estabelecer a ligação eléctrica.
Para a desactivação da máquina de limpeza estacionária a alta
pressão deve ser instalado um interruptor principal fechável (fi-
gura 3 - Pos. 6) num local de fácil acesso e seguro.
A largura de abertura do contacto do interruptor principal deve
ser de, pelo menos, 3 mm.
Montar a ficha Cekon no cabo de ligação do aparelho.
Inserir a ficha Cekon na tomada.
De modo a permitir a desactivação da máquina de limpeza esta-
cionária a alta pressão, a ficha Cekon deve ser de fácil acesso
para proceder à separação da rede.
Antes da primeira utilização, cortar a ponta da tampa do reci-
piente do óleo na bomba de água.
Perigo
Perigo de explosão! Encher somente gasóleo ou outro óleo com-
bustível leve. Combustíveis inadequados, tais como gasolina,
não podem ser utilizados.
Encher depósito do combustível.
Atenção
Funcionamento com água quente sem combustível provoca da-
nos na bomba do combustível. Antes do funcionamento com
água quente deve assegurar a alimentação correcta do combus-
tível.
Figura 3 - pos. 14
Ligar a mangueira de alta pressão à pistola pulverizadora
manual e lança e conectar estes elementos na saída de alta
pressão no aparelho ou na rede de tubagem de alta pressão.
Fixar o bocal (b) com a porca de capa (a) na lança (d). Ter em
atenção que o anel de vedação (c) esteja correctamente po-
sicionado na ranhura.
Remover a mola (c) do apoio da tampa (b) do recipiente do
descalcificador (a).
Encher o recipiente com líquido descalcificante Kärcher RM
110 (Nº de encomenda 2.780-001).
Perigo
Tensão eléctrica perigosa! O ajuste só pode ser efectuado por
um técnico electricista autorizado.
Determinar a dureza da água local:
–
pela empresa local de fornecimento de água,
–
com um aparelho de controlo da dureza (Nº de encomenda
6.768-004).
Remover a cobertura do aparelho.
Abrir a caixa de distribuição no painel de comando.
Ajustar o potenciómetro de rotação (a) consoante a dureza
da água. Com o auxílio da tabela é possível efectuar o ajuste
correcto.
Exemplo:
Para uma dureza de água de 15 °dH deve ajustar o valor da es-
cala 6 no potenciómetro de rotação. Daí resulta um intervalo de
31 segundos, isto é, em intervalos regulares de 31 segundos a
válvula magnética abre brevemente.
O ajuste do tempo de operacionalidade é efectuado na platina de
maior dimensão, na parede lateral esquerda do armário eléctri-
co.
O tempo de operacionalidade está ajustado de fábrica no tempo
mínimo de 2 minutos e pode ser aumentado até ao tempo máxi-
mo de 8 minutos.
Ligação eléctrica de instalação fixa
Ligação eléctrica com ficha/tomada
Primeira colocação em funcionamento
Medidas antes da colocação em funcionamento
Protecção contra calcário
a
b
c
d
b
c
a
Dureza da água (°dH)
5
10
15
20
25
Escala no potenciómetro
de rotação
8
7
6
5
4,5
Tempo de intervalo (segun-
dos)
50
40
31
22
16
Modificação do tempo de operacionalidade
a
8 7 6 5 4 3 2 1
S2
min.
max.
134
PT
-
16
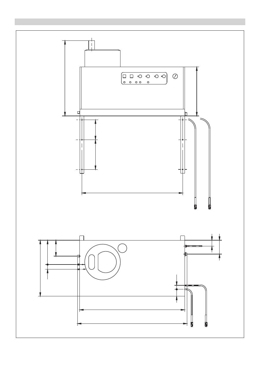
Figura 3
Material de instalação
1 2 3 4 5 6 7 8 9 10 12 13
21 20 19 18 17 16 15 14
11b 11a
11d
11c
A
B 19a
24
11a
23
22
11b
1060 (1124)
~1050
600
Pos. Material de instalação
N.º de enco-
menda
1
União roscada angular
6.386-356
2
Tubo curvo do gás de escape de fumo 90° 7.234-605
Tubo curvo do gás de escape de fumo 45° 7.234-604
3
Tubo de gás de escape (fumo)
7.234-603
4
Obstruidor da corrente de ar do tubo do
gás de escape (fumo) HDS 9/14-4
4.656-080
Obstruidor da corrente de ar do tubo do
gás de escape (fumo) HDS 12/14-4
4.656-079
5
Isolamento térmico
6.286-114
6
Interruptor principal
6.631-455
7
Kit de tubagens, aço zincado
2.420-004
Kit de tubagens, aço inoxidável
2.420-006
8
Kit de peças do controlo remoto
2.744-008
9
Kit de peças do interruptor de Desactiva-
ção de Emergência
2.744-002
10
União roscada em T
6.386-269
11a
Bocal de ligação, latão
2.638-180
Bocal de ligação, aço inoxidável
2.638-181
11b
Torneira de paragem NW 8, aço zincado 4.580-144
Torneira de paragem NW 8, aço inoxidá-
vel
4.580-163
11c
Peça fixa de acoplamento rápido
6.463-025
11d
Peça solta de acoplamento rápido
6.463-023
Pos. Material de instalação
N.º de enco-
menda
12
Suporte para mangueiras
2.042-001
13
Carretel da mangueira
2.637-238
14
Mangueira de alta pressão 10 m
6.388-083
15
Pistola pulverizadora manual Easypress 4.775-463
Regulador de rotações HDS 9/14-4
4.775-470
Regulador de rotações HDS 12/14-4
4.775-471
16
Suporte da lança
2.042-002
17
Lança
4.760-550
18
Bocal HDS 9/14-4
2.883-402
Bocal HDS 12/14-4
2.883-406
19
Mangueira de água
4.440-282
19a
Válvula magnética da admissão da água 4.743-011
20
Depósito do detergente, 60 l
5.070-078
21
Tanque do óleo de aquecimento 600 l
6.392-050
22
Kit de peças da consola de parede
2.053-005
Kit de peças da armação do chão (base) 2.210-008
23
Mangueira de alta pressão
6.389-028
24
Braçadeira do tubo
6.373-374
135
PT
-
17
Declaramos que a máquina a seguir designada corresponde às
exigências de segurança e de saúde básicas estabelecidas nas
Directivas CE por quanto concerne à sua concepção e ao tipo de
construção assim como na versão lançada no mercado. Se hou-
ver qualquer modificação na máquina sem o nosso consentimen-
to prévio, a presente declaração perderá a validade.
5.957-054
Os abaixo assinados têm procuração para agirem e representa-
rem a gerência.
Responsável pela documentação:
S. Reiser
Alfred Kärcher GmbH & Co. KG
Alfred-Kärcher-Str. 28 - 40
71364 Winnenden (Germany)
Tel.: +49 7195 14-0
Fax: +49 7195 14-2212
Winnenden, 2014/02/01
Em cada país são válidas as condições de garantia estabeleci-
das pela nossa sociedade distribuidora. Durante o período de
garantia, consertamos a título gratuito, eventuais avarias, pres-
suposto que se trate defeitos de material ou de fabricação.
Declaração de conformidade CE
Produto:
Hidropulverizador a alta
pressão com regulação gra-
dual de vapor
Tipo:
1.698-xxx
Tipo:
1.699-xxx
Respectivas Directrizes da CE
97/23/CE
2006/42/CE (+2009/127/CE)
2004/108/CE
Categoria do módulo
II
Processo de conformidade
Módulo H
Serpentina de aquecimento
Avaliação de conformidade do módulo H
Válvula de segurança
Avaliação de conformidade art. 3 paragr. 3
Bloco de comando
Avaliação de conformidade do módulo H
diversas tubagens
Avaliação de conformidade art. 3 paragr. 3
Normas harmonizadas aplicadas
EN 55014–1: 2006+A1: 2009+A2: 2011
EN 55014–2: 1997+A1: 2001+A2: 2008
EN 60335–1
EN 60335–2–79
EN 61000–3–2: 2006+A1: 2009+A2: 2009
HDS 12/14:
EN 61000–3–3: 2008
HDS 9/14:
EN 61000–3–11: 2000
Especificações aplicadas:
AD 2000 em apoio
TRD 801 em apoio
Nome da entidade designada:
Para 97/23/EG
TÜV Rheinland Industrie Service GmbH
Am Grauen Stein
51105 Köln
N.º ident. 0035
CEO
Head of Approbation
Garantia
136
PT
-
18
Serviço de assistência técnica
Tipo de instalação:
Nº de fabrico:
Colocação em funcionamento em:
Controlo efectuado por:
Resultado:
Assinatura
Controlo efectuado por:
Resultado:
Assinatura
Controlo efectuado por:
Resultado:
Assinatura
Controlo efectuado por:
Resultado:
Assinatura
137
PT
-
19
Aviso:
Devem ser respeitadas as recomendações dos prazos de
inspecções, de acordo com as respectivas prescrições em vigor
no país de utilização.
Inspecções periódicas
Controlo efectuado por:
Controlo exterior
Controlo interior
Controlo de resistência
Nome
Assinatura da pessoa qua-
lificada/Data
Assinatura da pessoa qua-
lificada/Data
Assinatura da pessoa qua-
lificada/Data
Nome
Assinatura da pessoa qua-
lificada/Data
Assinatura da pessoa qua-
lificada/Data
Assinatura da pessoa qua-
lificada/Data
Nome
Assinatura da pessoa qua-
lificada/Data
Assinatura da pessoa qua-
lificada/Data
Assinatura da pessoa qua-
lificada/Data
Nome
Assinatura da pessoa qua-
lificada/Data
Assinatura da pessoa qua-
lificada/Data
Assinatura da pessoa qua-
lificada/Data
Nome
Assinatura da pessoa qua-
lificada/Data
Assinatura da pessoa qua-
lificada/Data
Assinatura da pessoa qua-
lificada/Data
Nome
Assinatura da pessoa qua-
lificada/Data
Assinatura da pessoa qua-
lificada/Data
Assinatura da pessoa qua-
lificada/Data
Nome
Assinatura da pessoa qua-
lificada/Data
Assinatura da pessoa qua-
lificada/Data
Assinatura da pessoa qua-
lificada/Data
Nome
Assinatura da pessoa qua-
lificada/Data
Assinatura da pessoa qua-
lificada/Data
Assinatura da pessoa qua-
lificada/Data
Nome
Assinatura da pessoa qua-
lificada/Data
Assinatura da pessoa qua-
lificada/Data
Assinatura da pessoa qua-
lificada/Data
Nome
Assinatura da pessoa qua-
lificada/Data
Assinatura da pessoa qua-
lificada/Data
Assinatura da pessoa qua-
lificada/Data
Nome
Assinatura da pessoa qua-
lificada/Data
Assinatura da pessoa qua-
lificada/Data
Assinatura da pessoa qua-
lificada/Data
138
PT
-
1
Læs original brugsanvisning inden første brug, følg
anvisningerne og opbevar vejledningen til senere ef-
terlæsning eller til den næste ejer.
–
Inden første ibrugtagelse skal betjeningsvejledningen og sik-
kerhedshenvisningerne nr. 5.956-309 læses!
–
Ved transportskader skal forhandleren informeres omgåen-
de.
Henvisninger til indholdsstoffer (REACH)
Aktuelle oplysninger til indholdsstoffer finder du på:
www.kaercher.com/REACH
Risiko
En umiddelbar truende fare, som kan føre til alvorlige personska-
der eller død.
몇
Advarsel
En muligvis farlig situation, som kan føre til alvorlige personska-
der eller til død.
Forsigtig
En muligvis farlig situation, som kan føre til personskader eller til
materialeskader.
Højtryksstråler kan være farlige, hvis de ikke anvendes
korrekt. Strålen må ikke rettes mod personer, dyr,
tændt elektrisk udstyr eller mod højtryksrenseren.
–
De pågældende nationale love til væskestrålere skal overholdes.
–
De pågældende nationale love til forebyggelse imod ulykkes-
tilfælde skal overholdes. Væskestrålere skal kontrolleres re-
gelmæssigt og resultaterne fra kontrollen skal skiftligt
dokumenteres.
–
Maskinens opvarmningsindretning er et fyringsanlæg. Fy-
ringsanlæg skal kontrolleres regelmæssigt iht. de pågælden-
de nationale love.
–
Hvis anlægget drives i rum, skal der sørges for en tilstrække-
lig ventilation (røggasrør uden trækafbryder). Desuden skal
der være en tilstrækkelig tilførsel af frisk luft.
–
Ifølge gældende nationale bestemmelser, skal denne høj-
tryksrenser til industriel brug det første gang tages i drift af en
trænet person. KÄRCHER har allerede gennemført og doku-
menteret denne første idriftsættelse. Dokumentationer hertil
kan forespørges hos din KÄRCHER partner. Hold venligst
maskinens komponent- og serienummer parat, hvis doku-
mentationen forespørges.
–
Vi gør opmærksom på, at maskinen skal fortsættende kon-
trolleres af en autoriseret person ifølge de nationale bestem-
melser. Kontakt hertil venligst din KÄRCHER partner.
–
der skal tages højde for de sikkerhedsanvisninger, der er ved-
lagt de anvendte rengøringsmidler (i reglen på etiketten).
Indholdsfortegnelse
Miljøbeskyttelse. . . . . . . . . .
DA . . 1
Symbolerne i driftsvejledningen
DA . . 1
Symboler på maskinen . . . .
DA . . 1
Generelle sikkerhedsanvisninger
DA . . 1
Bestemmelsesmæssig‚ anvendelse
DA . . 2
Funktion . . . . . . . . . . . . . . .
DA . . 2
Sikkerhedsanordninger . . . .
DA . . 2
Maskinelementer. . . . . . . . .
DA . . 3
Ibrugtagning . . . . . . . . . . . .
DA . . 4
Betjening . . . . . . . . . . . . . . .
DA . . 4
Ud-af-drifttagning . . . . . . . .
DA . . 6
Afbrydning/nedlæggelse . . .
DA . . 6
Opbevaring . . . . . . . . . . . . .
DA . . 6
Transport. . . . . . . . . . . . . . .
DA . . 6
Tekniske data . . . . . . . . . . .
DA . . 7
Pleje og vedligeholdelse . . .
DA . . 9
Hjælp ved fejl . . . . . . . . . . .
DA . 11
Tilbehør . . . . . . . . . . . . . . . .
DA . 13
Anlægsinstallation . . . . . . . .
DA . 14
EU-overensstemmelseserklæring
DA . 17
Garanti . . . . . . . . . . . . . . . .
DA . 17
Kundeservice . . . . . . . . . . .
DA . 18
Gentagende kontroller. . . . .
DA . 19
Miljøbeskyttelse
Emballagen kan genbruges. Smid ikke emballagen ud
sammen med det almindelige husholdningsaffald,
men aflever den til genbrug.
Udtjente apparater indeholder værdifulde materialer,
der kan og bør afleveres til genbrug. Batterier, olie og
lignende stoffer er ødelæggende for miljøet. Aflever
derfor udtjente apparater på en genbrugsstation eller
lignende.
Motorolie, fyringsolie, diesel og benzin må ikke nå ind i miljøet.
Beskyt jorden og sørg for en miljørigtigt bortskaffe af affaldsolie.
Kärcher-rengøringsmidler er adskillelsesvenlige (ASF). Dvs., at
funktionen af en olieseparator ikke indskrænkes. En liste over
anbefalede rengøringsmidler findes i kapitel "Tilbehør".
Symbolerne i driftsvejledningen
Symboler på maskinen
Forbrændingsfare! Advarsel for varme kompo-
nenter.
Generelle sikkerhedsanvisninger
139
DA
-
2
Inden maskinen installeres, bør der aftales noget med den regio-
nale skorstensfejermester.
Ved installationen skal der tages højde for byggeloven, nærings-
retten og immissionsloven. Vi henviser til de følgende forskrifter,
direktiver og standarder:
–
Maskinen må kun installeres af en specialvirksomhed ifølge
de pågældende nationale love.
–
Ved el-installationen skal de pågældende nationale love og
forskrifter overholdes.
–
Indstillinger, vedligeholdelsesarbejder og reparationer på
brænderen må kun gennemføres af trænede kundeservice-
montører fra Kärcher.
–
Hvis der planlægges en pejs, skal de gældende lokale be-
stemmelser overholdes.
Arbejdspladsen er på betjeningspanelet. Afhængigt af anlæggets
konstruktion, er yderligere arbejdspladser på tilbehørsenhederne
(sprøjteindretning), som tilsluttes til servicestationerne.
–
Bær passende sikkerhedstøj og beskyttelsesbriller som værn
mod vand eller snavs, der sprøjter bagud.
Maskinen er beregnet til at fjerne snavs fra overflader ved hjælp
af en frit udtrædende vandstråle. Den bruges specielt til at rense
maskiner, køretøjer, og facader.
Risiko
Fysisk Risiko! Ved brug på tankstationer eller andre risikoområ-
der skal der tages hensyn til de tilsvarende sikkerhedsregler.
–
Det kolde vand når via motorkøleslangen og svømmerbehol-
deren til højtrykspumpens sugeside. I svømmerbeholderen
tilsættes der blødgører. Pumpen transporterer vand og opsu-
get rensemiddel igennem gennemstrømningsvandvarmeren.
Rensemidlets andel i vandet, kan justeres via en doserings-
ventil. Gennemstrømningsvandvarmeren opvarmes med en
brænder.
–
Højtryksudgangen tilsluttes til et eksisterende højttryksnet i
bygningen. Håndsprøjtepistolerne opkobles med en højt-
tryksslange på servicestationerne af dette net.
Sikkerhedsanordningerne tjener brugerens beskyttelse og må
ikke sættes ud af drift eller ignoreres i deres funktion.
Tørkøringssikringen forhindrer, at højtrykspumpen indkobles ved
vandmangel.
Tørkøringssikringen forhindrer at brænderen overophedes ved
vandmangel. Brænderen starter først ved tilstrækkelig tilførsel af
vand.
Trykafbryderen afbryder maskinen, hvis arbejdstrykket overskri-
des. Indstillingerne må ikke ændres.
Ved en fejlfunktion af trykafbryderen åbnes sikkerhedsventilen.
Denne ventil er indstillet af fabrik og plomberet. Indstillingerne må
ikke ændres.
Ved brændstofmangel eller en brænderfejl, afbryder flammekon-
trollen brænderen. Kontrollampe "Brænderfejl" (E) lyser.
Hvis brændermotoren er blokeret, udløses overstrømningsbeskyt-
telsesafbryderen. Motoren og højtrykspumpen er sikret med en mo-
torbeskyttelsesafbryder og en viklingsbeskyttelsesafbryder.
Røggastermostaten udløses, hvis røggastemperaturen oversti-
ger 300 °C. Maskinen slukkes.
Efter maskinen afbrydes via håndsprøjtepistolen og efter syste-
mets "klar til drift" tid er afløbet, åbnes en magnetventil som sid-
der i højtrykssystemet og trykket sænkes.
Forskrifter, direktiver og regler
Arbejdspladser
Personligt beskyttelsesudstyr
Ved rengøring af støjforstærkende komponen-
ter skal der anvendes et høreværn til forebyg-
gelse af høreskader.
Bestemmelsesmæssig‚
anvendelse
Sørg venligst for at olieholdigt spildevand ikke når ind i jorden,
vandet eller kanalisationen. Motorvask og undervognsvask bør
derfor kun gennemføres på velegnede steder som har en olie-
udskiller.
Funktion
Sikkerhedsanordninger
Svømmerbeholderens tørkøringssikring
Sikkerhedsblokkens tørkøringssikring
Trykkontakt
Sikkerhedsventil
Flammekontrol
Overstrømningsbeskyttelse
Røggastermostat
Højtrykssystemets trykudligning
140
DA
-
3
Fig. 1
1 Brænder
2 Manometer
3 Ferskvandstilløb med siv
4 Højtryksudgang
5 Brændstofledning "Fremløb"
6 Brændstofledning "Tilbageløb"
7 Sugeslangen til rensemidlet I
8 Sugeslange til rensemiddel II (option)
9 Beholder til blødgører
10 EL-ledning
11 Svømmerbeholder
12 Betjeningsfelt
Fig. 2
A Afbryder
B Termostat
C Doseringsventil til rensemiddel I
D Doseringsventil til rensemiddel II (option)
E Kontrollampe "Brænderfejl"
F Kontrollampe "klar til brug"
G Kontrollampe "Motor-superopvarmning"
H Kontrollampe "Forkalkningsbeskyttelse"
I
Prop - åbningsknap brændermotor
Maskinelementer
6
5
7
8
3
4
9
11
10
1
12
2
Betjeningsfelt
141
DA
-
4
몇
Risiko
Fysisk Risiko! Maskinen, tilførselsledninger, højtryksslange og til-
slutninger skal være i udmærket tilstand. Hvis maskinen ikke er i
en fejlfri tilstand, må den ikke benyttes.
–
Se typeskilt/tekniske data for tilslutningsværdier
–
El-tilslutningen skal gennemføres af en el-installatør og svare
til IEC 60364-1.
Brugeren skal anvende højtryksrenseren iht. dens anvendelses-
formål. Han skal tage hensyn til de lokale forhold og holde øje
med, om der er personer i nærheden, når han arbejder med høj-
tryksrenseren.
Lad aldrig højtryksrenseren være uden opsyn, mens den er i drift.
Risiko
–
Skoldningsrisiko på grund af varmt vand! Hold vandstrålen
ikke imod personer eller dyr.
–
Skoldningsfare på grund af varme anlægskomponenter! Ved
drift med varmt vand, må ikke isolerede rørledninger og slan-
ger ikke berøres. Strålerøret må kun holdes fast på grebskå-
len. Gennemstrømningsvandvarmerens røggasstuds må ikke
berøres.
–
Forgiftnings- og ætsningsfare på grund af rensemiddel! Tag
højde for anvisningerne på rensemidlerne. Rensemidler skal
opbevares utilgængeligt for børn.
Risiko
Livsfare på grund af elektrisk stød! Hold vandstrålen ikke imod
følgende enheder:
–
El-apparater og anlæg,
–
selve anlægget,
–
alle strømførende komponenter i arbejdsområdet.
På grund af vandstrålen, som udtræder af stålrøret, opstår en re-
aktionskraft. Igennem det bøjede strålerør virker en kraft opad.
Risiko
–
Fysisk Risiko! Strålerørets reaktionskraft kan føre til et tab af
balancen. De kan styrte. Strålerøret kan flyve hid og did og
føre til personskader. Sørg for en sikker plads og hold sprøj-
tepistolen godt fast. Håndsprøjtepistolens greb må aldrig
klemmes fast.
–
Ret ikke strålen mod Dem selv eller andre for at rengøre tøj
eller skotøj.
–
Risiko for tilskadekomst fra dele, der slynges bort! Brudstyk-
ker eller genstande, der slynges bort, kan kvæste personer
eller dyr. Hold vandstrålen aldrig imod genstande, som er
løse eller kan gå i stykker.
–
Fare for ulykkestilfælde på grund af beskadigelse! Rens dæk
og ventiler med en minimum afstand på 30 cm.
몇
Advarsel
Fare på grund af sundhedsfarlige stoffer! Følgende materialer
må ikke sprøjtes, da sundhedsfarlige stoffer kan hvirvles op:
–
Asbestholdige materialer,
–
materialer som muligvis indeholder sundhedsfarlige stoffer.
Risiko
–
Fare for personskader på grund af en udtrædende, evt. varm
vandstråle! Kun originale højtryksslanger fra Kärcher er ind-
stillet optimalt til anlægget. Der overtages ingen garanti hvis
der bruges andre slanger.
–
Sundhedsfare på grund af rensemiddel! På grund af evt. til-
satte rensemidler, har det vand som afgives af maskinen in-
gen kvalitet som drikkevand.
–
Fare for høreskader på grund af arbejde på støjforstærkende
komponenter! Brug høreværn i dette tilfælde.
Risiko
Fare for personskader på grund af en udtrædende, evt. varm
vandstråle!
Risiko
Kontroller altid højtryksslangen for beskadigelser, før den tages i
brug. Udskift højtryksslangen med det samme, hvis den er be-
skadiget.
Kontroller højtryksslangen, rørledningerne, armaturerne og
strålerøret før hvert brug med hensyn til skader.
Kontroller om slangekoblingen sidder fast og om den er tæt.
Forsigtig
Fare for materialeskader på grund af tørkørsel.
Kontroller rensemiddelbeholderens påfyldningsgrad, påfyld evt.
Kontroller blødgøringsmidlets påfyldningsgrad og påfyld efter
behov.
Sæt hovedafbryderen (A) på "0".
Luk vandtilførslen.
Betjen sprøjtepistolen indtil maskinen er fri for tryk.
Dreje mængdereguleringsventilen med uret forhøjer arbejds-
trykket og kapaciteten.
Dreje mængdereguleringsventilen imod uret reducerer ar-
bejdstrykket og kapaciteten.
Ibrugtagning
Strømtilslutning
Betjening
Sikkerhedsanvisninger
!
Apparatet skal gøres i stand til at køre
Slukke i nødstilfælde
Arbejdstryk og kapacitet stilles ind
Indstilling på maskinen
R
142
DA
-
5
En drejning af vandmængderegulatoren til højre, resulterer i
en større transportmængde og højere arbejdstryk.
En drejning af vandmængderegulatoren til venstre, resulterer
i en ringere transportmængde og ringere arbejdstryk.
Åbn for vandtilløbet.
Symbol "Motor tænd"
Træk i håndsprøjtepistolens håndtag og sæt hovedafbryde-
ren (A) på „1“ (Motor tænd).
Kontrollampe "Klar til drift" (F) viser at maskinen er klar til drift.
Risiko
Skoldningsrisiko!
Forsigtig
Varmvandsdrift uden brændstof fører til beskadigelse af brænd-
stofpumpen. Før varmvandsdriften skal der sørges for en forsy-
ning af brændstof.
Efter behov, kan brænderen indkobles.
Symbol "Brænder tænd"
Hovedafbryderen (A) stilles på "Brænder tænd".
Indstil den ønskede vandtemperatur på temperaturregulato-
ren (B). Max. temperatur er 98 °C.
Risiko
Skoldningsrisiko! Ved en arbejdstemperatur over 98 °C må ar-
bejdstrykket ikke overskride 3,2 MPa (32 bar).
Til omstilling af varmvandsdrift til dampdrift, skal maskinen køles
ned og afbrydes. Omstillingen gennemføres som følgende:
Erstat højtryksdysen med dampdysen (tilbehør).
Indstil temperaturregulatoren på 150 °C.
Sæt mængdereguleringsventilen på højtrykspumpen til mini-
mal vandmængde (drej imod uret).
Sæt mængdereguleringsventilen på højtrykspumpen til mak-
simal vandmængde (drej med uret).
Indstil vandmængderegulatoren på easypresspistolen til mi-
nimal vandmængde ved at dreje til venstre.
–
Hvis der gives slip for håndsprøjtepistolens greb under drif-
ten, afbrydes maskinen.
–
Hvis pistolen åbnes igen indenfor den indstillelige driftstid
(2...8 minutter) starter maskinen igen selvstændigt.
–
Hvis driftstiden overskrides, afbryder sikkerhedstidskoblingen
pumpen og brænderen. Kontrollampe "Klar til drift" (f) sluk-
kes.
–
Til genstart af maskinen sættes hovedafbryderen på "0" og
tænd igen for maskinen. Hvis maskinen styres via en fjernbe-
tjening, kan maskinen genstartes ved at trykke den tilsvaren-
de knap på fjernbetjeningen.
–
Bildæk renses kun med en fladstråledyse (25°) og en mini-
mum sprøjteafstand på 30 cm. Bildæk må aldrig renses med
rundstrålen.
Til alle andre opgaver står følgende dyser til rådighed:
Ved mere end 20 m rørledning eller mere end 2 x 10 m højtryks-
slange NW 8 skal følgende dyser anvendes:
Indstilling på easypresspistolen (option)
Betjening med koldt vand
Betjening med varmt vand
Betjening med damp
Bestillingsnr.
Type
4.766-023
HDS 9/14
4.766-024
HDS 12/14
Uden easypresspistol
Med easypresspistol (option)
Klar til drift
Valg af dysen
Til-
smuds-
ning
Mund-
stykke
Sprøjte-
vinkel
Partnr.
6.415
Tryk
[MPa]
Reakti-
onskraft
[N]
HDS 9/14
stærk
00060
0°
-257
14
44
middel
25060
25°
-295
ringe
40060
40°
-301
HDS 12/14
stærk
00080
0°
-150
14
55
middel
25080
25°
-152
ringe
40080
40°
-153
Til-
smuds-
ning
Mund-
stykke
Sprøjte-
vinkel
Partnr.
6.415
Tryk
[MPa]
Reakti-
onskraft
[N]
HDS 9/14
stærk
0075
0°
-419
10
37
middel
2575
25°
-421
ringe
4075
40°
-422
HDS 12/14
stærk
0010
0°
-082
10
46
middel
2510
25°
-252
ringe
4010
40°
-253
143
DA
-
6
–
Rensemidler letter rengøringsopgaven. De indsuges fra en
ekstern rensemiddelbeholder.
–
Maskinens basismodel er udstyret med en doseringsventil
(C). En supplerende doseringsventil (doseringsventil D) kan
fås som ekstratilbehør. Der er så mulighed for at indsuge to
forskellige rensemidler.
–
Doseringsmængden indstilles på rensemiddeldoseringsventi-
len (C eller D) på betjeningspanelet. Den indstillede værdi
svarer til rensemiddelandelen i procent.
–
Den ydre skala gælder ved brug af ufortyndede rensemidler
(100 % CHEM).
–
Den indvendige skala gælder ved brug af 1+3 forud fortynde-
de rensemidler (25 % CHEM + 75 % vand).
Følgende tabel opfører rensemiddelforbruget for værdierne på
den ydre skala:
Den nøjagtige doseringsmængde er afhængig af:
–
Rensemidlets viskositet
–
Indsugningshøjde
–
Højtryksledningens strømningsmodstand
Hvis en nøjagtig dosering er nødvendigt, skal den indsugede ren-
semiddelmængde måles (f.eks. ved hjælp af indsugning fra en
målebæger).
Bemærk:
Anbefalinger til rensemidler findes i kapitel "Tilbehør".
Forsigtig
Ved rift uden blødgører, kan gennemstrømningsvandvarmeren
forkalke.
Hvis beholderen til blødgøringsmidlet er tomt, blinker kontrollam-
pe "Forkalkningsbeskyttelse" (H).
Fig. 1- pos. 9
Påfyld blødgøringsmiddelbeholderen med blødgøringsvæske
RM 110 (2.780-001).
Risiko
Skoldningsrisiko på grund af varmt vand! Efter brug med varmt
vand eller damp skal maskinen køles ned idet den bruges med
koldt vand og åbn pistol for mindst to minutter.
Ved varmvandsdrift skal temperaturregulatoren (B) indstilles
til den laveste temperatur.
Brug maskinen mindst 30 sekunder uden rensemiddel.
Sæt hovedafbryderen (A) på "0".
Luk vandtilførslen.
Betjen sprøjtepistolen indtil maskinen er fri for tryk.
Håndsprøjtepistolen skal sikres med sikringskærven imod til-
fældig åbning.
Ved længere pauser eller hvis en frostfri opbevaring ikke er mu-
ligt, skal følgende foranstaltninger gennemføres (se kapitel "Pleje
og vedligeholdelse", sektion "Frostbeskyttelse").
Vand afledes.
Maskinen skyldes grundigt med frostvæske.
Hovedafbryderen kobles fra og sikres, hhv. Cekon-stikket
fjernes.
Forsigtig
Fare for person- og materialeskader! Hold øje med maskinens
vægt ved opbevaring.
Forsigtig
Fare for person- og materialeskader! Hold øje med maskinens
vægt ved transporten.
Ved transport i biler skal renseren fastspændes i.h.t. gælden-
de love.
Rensemiddeldosering
HDS 9/14
Stilling 0,5
1
5
Rensemiddelmængde [l/h]
14...15 22...24
50
Rensemiddelkoncentration [%]
1,5
2,5
5
HDS 12/14
Stilling 0,5
1
5
Rensemiddelmængde [l/h]
10...13 23...27
60
Rensemiddelkoncentration [%]
1
2
5
Påfylde blødgører
Ud-af-drifttagning
Efter brug med rensemiddel
Sluk for maskinen
Afbrydning/nedlæggelse
Opbevaring
Transport
144
DA
-
7
Tekniske data
HDS 9/14
HDS 12/14
HDS 12/14
1.698-900
1.699-919
1.699-920
Ydelsesdata
Arbejdstryk vand (med standarddyse)
MPa (bar)
14 (140)
14 (140)
14 (140)
Max. arbejdstryk dampdrift (med dampdyse)
MPa (bar)
3,2 (32)
3,2 (32)
3,2 (32)
Partnr. dampdyse
--
4.766-023
4.766-024
4.766-024
Maks. driftsovertryk (sikkerhedsventil)
MPa (bar)
18,5 (185)
18,5 (185)
18,5 (185)
Transportmængde "Vand" (trinløs justerbar)
l/h (l/min)
500-930
(8,3-15,5)
600-1200
(10-20)
600-1200
(10-20)
Kapacitet dampdrift
l/h (l/min)
470 (7,8)
600 (10)
600 (10)
Rensemiddelindsugning (trinløs justerbar)
l/h (l/min)
0-50 (0-0,8)
0-60 (0-1)
0-60 (0-1)
Vandtilslutning
Forsyningsmængde, min.
l/h (l/min)
1100 (18,3)
1300 (21,7)
1300 (21,7)
Tilførselstryk (min.)
MPa (bar)
0,1 (1)
0,1 (1)
0,1 (1)
Tilførselstryk, maks.
MPa (bar)
0,6 (6)
0,6 (6)
0,6 (6)
El-tilslutning
Strømtype
--
3N~
3N~
3N~
Frekvens
Hz
50
50
50
Spænding
V
400
400
230
Tilslutningseffekt
kW
6,4
7,5
8,2
El-sikring (forsinket)
A
16
20
32
Kapslingsklasse
--
IPX5
IPX5
IPX5
Beskyttelsesklasse
--
I
I
I
Maksimalt tilladelig netimpedans
Ohm
(0,381+j 0,238)
--
--
EL-ledning
mm
2
5 x 2,5
5 x 2,5
5 x 4
Temperatur
Forsyningstemperatur, maks.
°C
30
30
30
Max. arbejdstryk varmt vand
°C
98
98
98
Max. arbejdstemperatur dampdrift
°C
155
155
155
Temperaturforøgelse ved max. vandgennemstrømning
°C
56±2
54±2
54±2
Varmekapacitet brutto
kW
68
85
85
Brændstofforbrug
kg/h
5,8
7,1
7,1
Kamintræk
kPa
0,01-0,04
0,01-0,04
0,01-0,04
Røggasmassestrøm - fuldlast
kg/h
124
155
155
Mål og vægt
Længde
mm
1124
1124
1124
Bredde
mm
558
558
558
Højde
mm
687
699
699
Typisk driftsvægt
kg
164,4
178,8
178,8
Oplyste værdier ifølge EN 60355-2-79
Støjemission
Lydtryksniveau L
pA
dB(A)
74
76
76
Usikkerhed K
pA
dB(A)
1
1
1
Hånd-arm vibrationsværdi
Håndsprøjtepistol
m/s
2
2,2
2,3
2,3
Strålerør
m/s
2
1,8
2,1
2,1
Usikkerhed K
m/s
2
1,0
1,0
1,0
145
DA
-
8
Måltegning
6
8
7
/ 6
9
9
505
558
1124
246
158
1060
47
141
61
77
46
200
300
1018±2
146
DA
-
9
Risiko
Risiko for tilskadekomst! Før alle vedligeholdelses- og rengø-
ringsarbejder skal hovedafbryderen frakobles, hhv. Cekon-stik-
ket fjernes.
Pleje og vedligeholdelse
Vedligeholdelsesskema
Tidspunkt
Aktivitet
berørte komponenter
Gennemførelse
Af hvem
Dagligt
Kontroller
håndsprøjtepi-
stolen
Håndsprøjtepistol
Kontroller, om håndsprøjtepistolen er låst tæt.
Kontroller funktionen af sikringen imod utilsigtet
brug. Udskift defekt håndsprøjtepistol.
Betjener
Kontroller høj-
tryksslangerne
Udgangsledninger, slanger til
arbejdsenheden
Kontroller slangerne med hensyn til skader. De-
fekte slanger skal udskiftes omgående. Risiko
for ulykke!
Betjener
Kontroller til-
slutningslednin-
gen med
netstikket
El-tilslutning med stik/bøsning Kontroller tilslutningsledningen og netstikket for
beskadigelser. En beskadiget tilslutningsled-
ning skal udskiftes af en autoriseret kundeser-
viceafdeling/el-installatør med det samme.
Betjener
en gang om ugen
eller efter 40
driftstimer.
Kontrollere olie-
tilstanden
Oliebeholder på pumpen
Hvis oliet er mælkeagtig skal det skiftes.
Betjener
Kontroller olie-
standen
Oliebeholder på pumpen
Kontrollere pumpens oliestand. Påfyld efter be-
hov (bestillingsnr. 6.288-0160).
Betjener
Rens sivet
Filter i vandtilførslen
Se afsnit "Rens sivet".
Betjener
en gang om må-
neden eller efter
200 driftstimer.
Rense og kon-
troller tæn-
dingselektroder
ne
Tændingselektroder i gen-
nemstrømningsvandvarme-
rens dæksel
Skru brændstofledningen af, afmonter elektro-
deholderen og rens elektroderne. Kontroller
elektrodeindstillingerne ifølge tegningen på næ-
ste side og indstil dem efter behov.
Betjener
med træ-
ning
Kontroller pum-
pen
Højtrykspumpe
Kontroller pumpen for lækage. Ved mere end 3
dråber per minut, kontakt kundeservice.
Betjener
kontroller for
indvendige af-
lejringer.
hele anlægget
Tag anlægget med strålerøret men uden højt-
tryksdyse i drift. Hvis driftstrykket stiger på ma-
skinens manometer over 3 MPa, skal anlægget
afkalkes. Det gælder også, hvis der konstateres
et driftstryk på mere end 0,7–1 MPa ved rift
uden højtryksledning (vand træder frit ud ved
højtryksudgangen).
Bruger med
træning i af-
kalkning
Rens sivet
Siv i tørkøringssikringen
Se afsnit "Rens sivet".
Betjener
en gang hvert
halvt år eller efter
1000 driftstimer.
Olieskift
Højtrykspumpe
Aftap olien. Påfyld 1 l nyt olie (bestillingsnr.
6.288-016). Kontroller oliestanden på oliebehol-
deren.
Betjener
kontroller, rens
hele anlægget
Visuel kontrol af anlægget, kontroller højtrykstil-
slutningerne for tæthed, kontroller overstrøm-
ningsventilen for tæthed, kontroller
højtryksslangen, kontroller trykakkulatoren,
rens / udskift brændstoffilteret, fjern sod / afkalk
varmeslangen, rens / udskift tændingselektro-
derne, rens / udskift brænderdysen, indstil
brænderen.
Kundeser-
vice
årligt
Sikkerhedskon-
trol
hele anlægget
Gennemfør en sikkerhedskontrol iht. de natio-
nale regler og love for væskestrålere.
Sagkyndig
person
Senest alle 5 år,
gentagende
Trykkontrol
hele anlægget
Gennemfør en trykkontrol iht. producentens an-
visninger.
Sagkyndig
person
147
DA
-
10
Der kan aftales en servicekontrakt til apparatet med Kärcher-
salgskontoret.
Fig. 1- pos. 3
Luk vandtilførslen.
Skru vantilløbsslangen fra maskinen.
Skub sivet ud af tilslutningen med en skruetrækker.
Rens sivet
Monter igen i omvendt rækkefølge.
Fjern afdækningspladerne.
Skru vinkelstykket af fra sikkerhedsblokken.
Skru skrue M8x30 ind i sivet.
Træk skruen og sivet ud med en tang.
Rens sivet
Monter igen i omvendt rækkefølge.
Tændingselektroderne skal indstilles efter følgende anvisninger:
Ved aflejringer i rørledningerne stiger gennemstrømningsmod-
standen og trykafbryderen udløses.
Risiko
Eksplosionsfare på grund af brændbare gas! Rygning er forbudt
ved afkalkningen. Sørg for god ventilation.
Risiko
Ætsningsfare på grund af syre! Brug beskyttelsesbriller og hand-
sker.
Efter loven må der kun bruges kedelstenfjerner til afkalkning som
har et kontrolmærke.
–
RM 100 (bestillingsnr. 6.287-008) løsner kedelsten og enkelte
forbindelser af kalksten og vaskemiddelrester.
–
RM 101 (bestillingsnr. 6.287-013) løsner aflejringer som ikke
kan løsnes med RM 100.
Fyld en 20-liter-beholder med 15 l vand.
Tilsæt en liter kedelstenfjerner.
Tilslut vandslangen direkte på pumpehovedet og hæng det
andet endestykke ind i beholderen.
Sæt det tilsluttede strålerør uden dyse ind i beholderen.
Åbn håndsprøjtepistolen og hold den åben under afkalknin-
gen.
Sæt maskinens afbryder til „Brænder tænd“ indtil der opnås
ca. 40 °C.
Afbryd maskinen og lad den stå for 20 minutter. Håndsprøjte-
pistolen skal forblive åben.
Maskinen skal derefter pumpes tom.
Bemærk:
Til beskyttelse imod korrosion og til neutralisering af
syreresterne anbefaler vi derefter, at pumpe en alkalisk løsning
(f.eks. RM 81) vis rensemiddelbeholderen igennem maskinen.
Maskinen skal opstilles i frostbeskyttede rum. Hvis der er fare for
frost, f.eks. ved udendørsinstallering, skal maskinen tømmes og
spules med frostbeskyttelsesmiddel.
Vandtilførselsslangen og højtryksslangen skrues fra.
Maskinen skal køre max. 1 minut indtil pumpen og ledninger-
ne er tom.
Tilførselsledningen på kedelbunden skrues fra og varmeslan-
gen skal løbe tom.
Bemærk:
Tag hensyn til frostvæskeproducentens instruktioner.
Påfyld almindeligt frostbeskyttelsesvæske i svømmerbehol-
deren op til kanten.
Sæt opsamlingsbeholderen under højtryksudgangen.
Tænd maskinen og lad den køres så længe, indtil tørkørings-
sikringen i svømmerbeholderen reagerer og maskinen afbry-
des.
Herved opnår man også en vis beskyttelse imod rust.
Serviceaftale
Rens sivene
Siv i vandtilførslen
Siv i tørkøringssikringen
Indstille elektroderne
A
B
C
a
HDS 9/14
4,5±0,5
3,5±0,5
3+0,5
60°
HDS 12/14
3,5±0,5
3,5±0,5
3+0,5
60°
2.
1.
A
B
C
a
Afkalkning
Gennemførelse
Frostbeskyttelse
Vand afledes.
Maskinen skyldes grundigt med frostvæske
148
DA
-
11
Risiko
Risiko for tilskadekomst! Før alle vedligeholdelses- og rengø-
ringsarbejder skal hovedafbryderen frakobles, hhv. Cekon-stik-
ket fjernes.
*
OBS
Anlægget skal tændes og afbrydes for at åbne brænderfejlen.
**
Hjælp ved fejl
Fejl
Mulig årsag
Afhjælpning
Af hvem
Maskinen kører ikke, kon-
trollampe "Klar til drift" (F)
lyser ikke
Apparatet har ingen spænding.
Kontroller strømnettet.
El-installatør
Sikkerhedstidsindkoblingen i
funktion.
Afbryd maskinen kort med afbryderen, tænd
den igen.
Betjener
Sikring i styringskreds (F3) er
smeltet. Sikring findes i styrings-
transformatoren (T2).
Isæt ny sikring, hvis sikringen smelter igen,
skal grunden for overbelastningen fjernes.
Kundeservice
Trykafbryder HT (højtryk) eller LT
(lavtryk) defekt.
Kontroller trykafbryderen.
Kundeservice
Timer modul (A1) defekt.
Kontroller tilslutningerne, udskift ved behov. Kundeservice
Røggastermostat (B8) blev akti-
veret.
Lad anlægget køle af. Åbn røggastermosta-
ten (B8). Fjern fejlens årsag.
Kundeservice
+ kontrollampe "Motor over-
ophedning"(G) lyser
Termoføleren (WS) i motoren el-
ler overstrømsikkerhedsafbryde-
ren (F1) blev udløst.
Fjern grunden til overbelastningen.
Kundeservice
Tørkøringssikringen i svømmer-
beholderen har reageret.
Sørg for vand.
Betjener
Brænderen tænder ikke el-
ler flammen slukkes under
driften
Temperaturregulatoren (B) indstil-
let for lavt.
Indstil temperaturregulatoren højere.
Betjener
Maskinens afbryder står ikke på
"Brænder".
Tænd brænderen.
Betjener
Sikkerhedsblokkens tørkørings-
sikring blev afbrudt.
Sørg for en tilstrækkelig vandtilførsel. Kon-
troller maskinen for tæthed.
Betjener
Kontrollampe "Brænderfejl
(E)" lyser *
Brændstofbeholderen tom.
Påfylde brændstof.
Betjener
Brændstoffilter tilstoppet.
Rens brændstoffilteret, skru dertil brænd-
stoffilteret ud, rens det og skru det ind igen.
Betjener
Flammekontrollens fotocelle ju-
steret forkert eller defekt.
Kontroller den korrekte placering af fotocel-
len. **
Betjener
Ingen tændingsgnist (kan konsta-
teres ved hjælp af glasset i bræn-
derdækslet).
Kontroller elektrodeafstand "Tændings-
transformator og tændingskabel". Korriger
afstanden eller udskift defekte parter. Rens
om nødvendigt.
Kundeservice
Brændermotor er blokeret.
Afhjælp blokeringen. Fjern proppen (1) på
betjeningspanelet og åbn overstrømnings-
beskyttelseskontakten. Sæt proppen tilbage
igen.
Kundeservice
Fejl på brændstofpumpen eller
brændstof-magnetventilen.
Kontroller komponenterne og udskift defek-
te komponenter.
Betjener
149
DA
-
12
Fejl
Mulig årsag
Afhjælpning
Af hvem
Kontrollampe "Forkalk-
ningsbeskyttelse" (H) lyser
Blødgøringsvæske tom.
Påfyld blødgører.
Betjener
Utilstrækkelig eller ingen
rensemiddeltransport
Doseringsventil på stilling "0".
Indstil doseringsventilen til rensemiddel.
Betjener
Rensemiddelfiltret tilstoppet eller
tank tom.
Rens, hhv. påfyld.
Betjener
Sugeslangerne til rensemidlet,
doserings- eller magnetventilen
utæt eller tilstoppet.
Kontroller, rens.
Betjener
Elektronik eller magnetventil de-
fekt.
Udskift
Kundeservice
Maskinen kommer ikke op
det nødvendige tryk
Spul dysen.
Erstat dysen.
Betjener
Rensemiddeltanken tom.
Påfyld rensemiddel.
Betjener
Ikke tilstrækkeligt vand.
Sørg for tilstrækkelig vandtilførsel.
Betjener
Siv på vandindgangen tilstoppet.
Kontroller, afmonter sivet og rens det.
Betjener
Rensemiddeldoseringsventilen
utæt.
Kontroller og tætn.
Betjener
Rensemiddelslangerne utæt.
Udskift
Betjener
Svømmerventilen sidder fast.
Kontroller for fri gang.
Betjener
Sikkerhedsventil utæt.
Kontroller indstillingen, monter evt. en ny
tætning.
Kundeservice
Mængdereguleringsventilen utæt
eller indstillet for lavt.
Kontroller ventilens komponenter, udskift
ved beskadigelse, rens ved tilsmudsning.
Kundeservice
Magnetventilen til trykudligningen
defekt.
Udskift magnetventilen.
Kundeservice
Højtrykspumpen "banker",
manometeret svinger
stærkt.
Svingningsdæmper defekt.
Udskift svingningsdæmperen.
Kundeservice
Vandpumpen indsuger kun ubety-
delig luft.
Kontroller sugesystemet og afhjælp utæthe-
der.
Betjener
Sprøjtepistol er åbnet og
maskinen tænder og slukker
konstant
Dysen i strålerøret tilstoppet.
Kontroller, rens.
Betjener
Maskinen er kalket til.
Se afsnit "Afkalkning".
Betjener
Koblingspunktet af overstrømme-
ren er forskudt.
Overstrømmeren skal justeres igen.
Kundeservice
Siv i tørkøringssikringen tilstoppet.
Kontroller, afmonter sivet og rens det.
Betjener
Maskinen afbrydes ikke ved
lukket håndsprøjtepistol
Pumpen er ikke fuldstændig afluf-
tet.
Sæt afbryderen på "0" og træk håndsprøjte-
pistolen indtil der kommer væske ud af dy-
sen. Tænd for maskinen igen. Gentag
denne procedure, indtil den totale driftstryk
blev opnået.
Betjener
Sikkerhedsventil, hhv. sikker-
hedsventiltætningen defekt.
Erstat sikkerhedsventilen, hhv. tætningen.
Kundeservice
150
DA
-
13
Rensemidler letter rengøringsopgaven. I tabellen findes et ud-
valg af rensemidler. Inden rensemidler anvendes, skal der tages
højde for anvisningerne på emballagen.
* = kun til kort brug, 2-trin metode, skylles efter med klart vand
** = ASF = adskillelsesvenlig
*** = til indsprøjtning i forud, egner sig Foam-Star 2000
Tilbehør
Rengøringsmiddel
Anvendelsesområde
Tilsmudsning, anvendelsesmåde
Rensemiddel
pH-værdi (ca.) 1 %
opløsning i poste-
vand
Motorkøretøjserhverv,
tankstationer, speditio-
ner, vognparker
Støv, gadesnavs, mineralolie (på
lakerede overflader)
RM 55 ASF **
8
RM 22/80-pulver ASF
12/10
RM 81 ASF
9
RM 803 ASF
10
RM 806 ASF
11
Konservering af køretøjer
RM 42 koldvoks til højtryksrenser
8
RM 820-varmvoks ASF
7
RM 821-sprayvoks ASF
6
RM 824-super-perlevoks ASF
7
RM 44 gel-fælgrenser
9
Metalforarbejdende in-
dustri
Olie, fedt, støv og lignende til-
smudsninger
RM 22-pulver ASF
12
RM 55 ASF
8
RM 81 ASF
9
RM 803 ASF
10
RM 806 ASF
12
RM 31 ASF (stærk tilsmudsning)
12
RM 39-flydende (med korrosionsbeskyttel-
se)
9
Levnedsmiddelindustrien Lette til mellemstærke tilsmuds-
ninger, fedt/olie, store flader
RM 55 ASF
8
RM 81 ASF
9
RM 882 gelskum OSC
12
RM 58 ASF (skumrensemiddel)
9
RM 31 ASF *
12
Harpiks
RM 33 *
13
Rengøring og desinficering
RM 732
9
Desinficering
RM 735
7...8
Kalk, mineralske aflejringer
RM 25 ASF *
2
RM 59 ASF (skumrensemiddel)
2
Sanitærområde***
Kalk, urinsten, sæber osv.
RM 25 ASF * (grundrengøring)
2
RM 59 ASF (skumrensemiddel)
2
RM 68 ASF
5
151
DA

