Karcher Nettoyeur haute pression HDS 9-14-4 ST Eco: !
!: Karcher Nettoyeur haute pression HDS 9-14-4 ST Eco
-
14
–
El dispositivo calefactor del aparato es una instalación cale-
factora. Al instalar el equipo se deben respetar las normas le-
gales vigentes en cada país.
–
Utilizar únicamente chimeneas/conductos de gases de esca-
pe autorizados.
Peligro
¡Existe peligro de escaldamiento! Colocar este símbolo en cada
punto de recogida.
Al instalar el depósito de fue en la sala de máquinas, se debe te-
ner en cuentas las normativas de almacenamiento de líquidos in-
flamables (las puede adquirir en la editorial Carl Heymann,
Colonia, www.heymanns.com).
A la hora de colocar las tuberías de combustible se debe tener
en cuenta el diagrama abajo indicado.
Está previsto un sistema de 2 tramos, avance y retroceso.
–
Presión inicial de fuel máxima: 0,05 MPa (0,5 bares)
–
Máxima depresión entre el filtro de fuel y la bomba: 0,04 MPa
(0,4 bares)
Largo del tubo de aspiración en m
Altura del tubo de aspiración en m
Posible largo del tubo de aspiración en tuberías con NW 8
–
Cada aparato se debe conectar a una chimenea propia.
–
El desvío de gas se debe realizar de acuerdo con las directri-
ces locales y según el deshollinador responsable de distrito.
Recomendamos integrar un interruptor de tiro entre la instalación
y la chimenea.
Nota
Para alcanzar los valores de quema previstos, se debe cumplir el
tiro de la chimenea indicado en los Datos técnicos.
–
Antes del montaje se debe examinar si la pared puede sopor-
tar el peso. El material de fijación suministrado es apto para
hormigón. Para paredes de ladrillos huecos, ladrillos conven-
cionales y hormigón esponjoso se deben utilizar clavijas y tor-
nillos adecuados, p. ej. ancla de inyección (véase hoja de
dimensiones para dibujo de taladro).
–
Imagen 3 - pos. 19 y 23
El aparato no se puede conectar de forma fija a la toma de
agua y la red de tuberías de alta presión. Es imprescindible
montar los tubos de conexión.
–
Imagen 3 - A
Entre la red de agua y la manguera de conexión está previsto
un grifo de cierre.
Al realizar el montaje de los conductos de alta presión, se deben
respetar las normativas nacionales vigentes correspondientes.
–
La caída de presión en la tubería tiene que estar por debajo
de 1,5 MPa.
–
La tubería lista tiene que ser inspeccionada con 28 MPa.
–
El aislamiento de la tubería tiene que resistir al menos 155 ºC.
Figura 3 - pos. 20
El recipiente se debe colocar de modo que, el nivel inferior del
detergente no se encuentre por debajo de 1,5 m y el nivel supe-
rior no supere el fondo del aparato.
Imagen 3 - B pos. 19
Conectar la entrada de agua con una manguera de agua ade-
cuada a la toma de agua.
–
La potencia del suministro de agua debe ser de al menos
1300 l/h por al menos 0,1 MPa.
–
La temperatura de agua tiene que ser inferior a 30 ºC.
Precaución
La impedancia de red máxima permitida en el punto de conexión
eléctrica (véanse los datos técnicos) no debe ser excedida. En
caso de confusión respecto a la impendacia de red existente en
su punto de conexión, póngase en contacto con la empresa que
le suministra la energía.
Nota:
Los procesos de conexión generan caídas breves de ten-
sión. En condiciones desfavorables de red pueden aparecer in-
fluencias negativas de otros aparatos.
–
Valores de conexión: véase la placa de características y da-
tos técnicos.
–
La conexión eléctrica debe ser realizada por un electricista y
cumplir la norma CEI 60364-1.
–
Las piezas conductoras de corriente, cables y aparatos del
aire de trabajo tiene que estar en perfecto estado y protegi-
das contra los chorros de agua.
Para evitar accidentes de origen eléctrico, recomendamos utili-
zar tomas de corriente con un interruptor protector de corriente
de defecto preconectado (intensidad de corriente de liberación
nominal: máx. 30 mA).
Instalar conexión eléctrica.
Para apagar toda la limpiadora de alta presión estacionaria se
debe colocar un interruptor principal (Imagen 3 - Pos. 6) en un lu-
gar donde no sea arriesgado, que se pueda cerrar y al que se
pueda acceder bien.
El ancho de apertura de contacto del interruptor principial debe
ser de al menos 3 mm.
Instalación del equipo
¡Sólo para personal técnico autorizado!
General
Para temperaturas de
trabajo superiores a
100 ºC, sustituir la bo-
quilla de alta presión
por la boquilla de va-
por.
Depósito de fuel
Conductos de material combustible
Tubería de gas de humo
!
Montaje en la pared
Montaje de las tuberías de alta presión
Colocar el recipiente para detergente
Suministro de agua
Conexión eléctrica
Conexión eléctrica fija
114
ES
-
15
Montar el enchufe cekon al cable de conexión del aparato.
Insertar el enchufe cekon en el enchufe.
Para apagar toda la limpiadora de alta presión estacionaria se
debe tener fácil acceso al enchufe cekon para poder desconectar
de la red.
Antes del primer uso se debe cortar la punta de la tapa del re-
cipiente de aceite de la bomba de agua.
Peligro
Peligro de explosiones. Llenar sólo con gasóleo o fuel ligero. No
deben emplearse combustibles inadecuados como por ejemplo
gasolina.
Rellenar el depósito de material combustible.
Precaución
El servicio de agua caliente sin combustible daña la bomba de
combustible. Asegure el suministro de combustible antes del fun-
cionamiento con agua caliente.
Figura 3 - pos. 14
Conectar la manguera de alta presión con pistola pulveriza-
dora manual y la lanza dosificadora y conectar a la salida de
alta presión del aparato o a la red de la tubería de alta pre-
sión.
Fijar el orificio de la boquilla (b) con la tuerca de racor (a) a la
lanza dosificadora (d). Al hacerlo procurar que el anillo de ob-
turación (c) esté bien colocado en la ranura.
Retirar el resorte (c) de la varilla del capó (b) del recipiente del
descalcificador (a).
Rellenar el recipiente con líquido descalcificador Kärcher RM
110 (Nº de ref. 2.780-001).
Peligro
¡Tensión eléctrica peligrosa! El ajuste solamente lo podrá reali-
zar un técnico electricista.
Calcular la dureza del agua local:
–
A través del suministrador local,
–
con un aparato de comprobación de dureza (nº ref. 6.768-
004).
Quitar el capó del aparato.
Abrir el armario de distribución en el panel de control.
Ajustar el potenciómetro (a) según la dureza del agua. La ta-
bla indica el ajuste correcto.
Ejemplo:
Para un agua de dureza 15 °dH ajustar el potenciómetro al valor
6 de la escala. A partir de ahí se obtiene una pausa de 31 segun-
dos, es decir, cada 31 segundos se abre brevemente la válvula
magnética.
El ajuste del tiempo de disposición de servicio se realice en la
platina más grande en la pared lateral izquierda del armario de la
electricidad.
El tiempo de disposición de servicio está configurado de fábrica
al mínimo de 2 minutos y se puede aumentar hasta un tiempo
máximo de 8 minutos.
Conexión eléctrica con enchufe/toma de corriente
Primera puesta en marcha
Medidas antes de la puesta en marcha
Protección ante la calcificación
a
b
c
d
b
c
a
Dureza del agua (°dH)
5
10
15
20
25
Escala del potenciómetro
8
7
6
5
4,5
Pausa (segundos)
50
40
31
22
16
Ajustar el tiempo de disposición de servicio
a
8 7 6 5 4 3 2 1
S2
min.
max.
115
ES
-
16
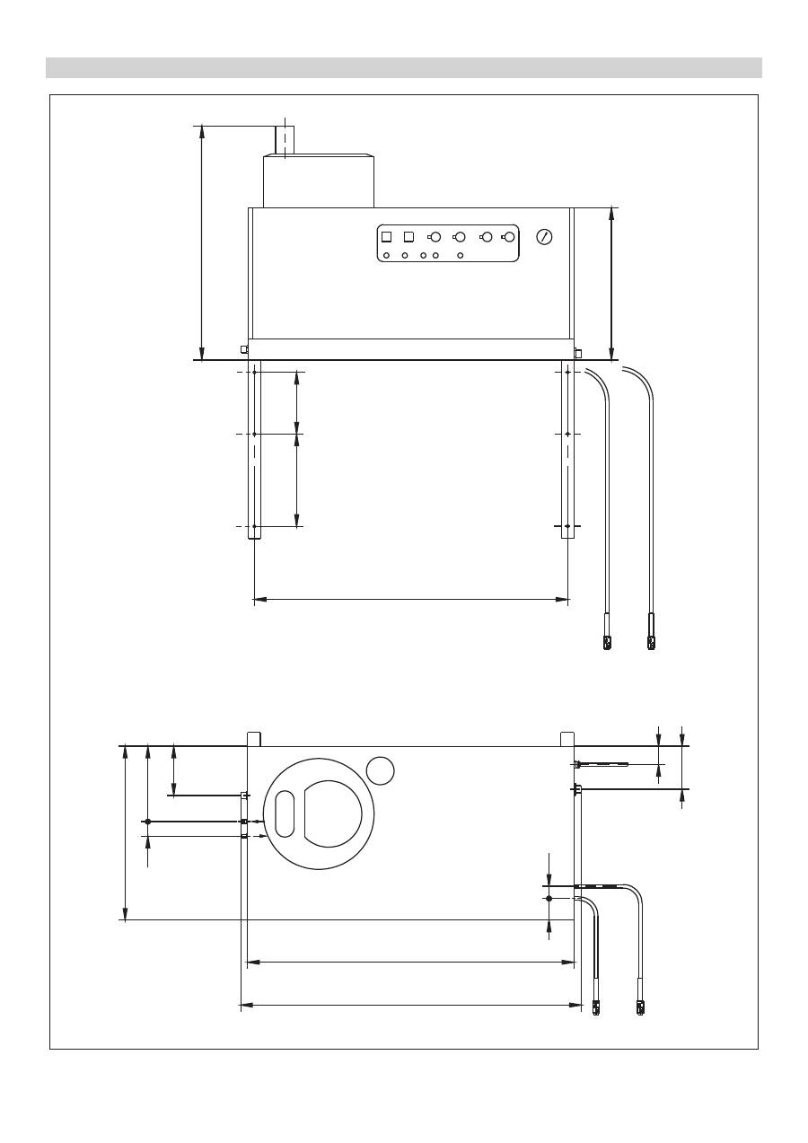
Figura 3
Material de instalación
1 2 3 4 5 6 7 8 9 10 12 13
21 20 19 18 17 16 15 14
11b 11a
11d
11c
A
B 19a
24
11a
23
22
11b
1060 (1124)
~1050
600
Pos. Material de instalación
Nº de pedi-
do
1
Atornilladura de ángulo
6.386-356
2
Codo de la tubería de gas de humo 90º
7.234-605
Codo de la tubería de gas de humo 45º
7.234-604
3
Tubería de gas de humo
7.234-603
4
Interruptor de gas de humo HDS 9/14-4
4.656-080
Interruptor de gas de humo HDS 12/14-4 4.656-079
5
Aislamiento térmico
6.286-114
6
Interruptor principal
6.631-455
7
Juego de tuberías, acero galvanizado
2.420-004
Juego de tuberías, acero inoxidable
2.420-006
8
Juego de piezas mando a distancia
2.744-008
9
Juego de piezas interruptor de parada de
emergencia
2.744-002
10
unión roscada en t
6.386-269
11a
Manguito de empalme, latón
2.638-180
Manguito de empalme, acero inoxidable
2.638-181
11b
Grifo de cierre NW 8, acero galvanizado 4.580-144
Grifo de cierre NW 8, acero inoxidable
4.580-163
11c
Pieza fija del acoplamiento rápido
6.463-025
11d
Pieza suelta del acoplamiento rápido
6.463-023
Pos. Material de instalación
Nº de pedi-
do
12
Portamangueras
2.042-001
13
Enrollador de mangueras
2.637-238
14
Manguera de alta presión 10 m
6.388-083
15
Pistola pulverizadora manual easypress
4.775-463
Regulador de rosca HDS 9/14-4
4.775-470
Regulador de rosca HDS 12/14-4
4.775-471
16
Soporte de la lanza dosificadora
2.042-002
17
Lanza dosificadora
4.760-550
18
Orificio de la boquilla HDS 9/14-4
2.883-402
Orificio de la boquilla HDS 12/14-4
2.883-406
19
Manguera de agua
4.440-282
19a
Válvula magnética alimentación de agua 4.743-011
20
Depósito de detergente, 60 l
5.070-078
21
Depósito de fuel 600 l
6.392-050
22
Juego de piezas consola de pared
2.053-005
Juego de piezas estructura del suelo
2.210-008
23
Manguera de alta presión
6.389-028
24
abrazadera de tubo
6.373-374
116
ES
-
17
Por la presente declaramos que la máquina designada a conti-
nuación cumple, tanto en lo que respecta a su diseño y tipo cons-
tructivo como a la versión puesta a la venta por nosotros, las
normas básicas de seguridad y sobre la salud que figuran en las
directivas comunitarias correspondientes. La presente declara-
ción perderá su validez en caso de que se realicen modificacio-
nes en la máquina sin nuestro consentimiento explícito.
5.957-054
Los abajo firmantes actúan con plenos poderes y con la debida
autorización de la dirección de la empresa.
Persona autorizada para la documentación:
S. Reiser
Alfred Kärcher GmbH & Co. KG
Alfred-Kärcher-Str. 28 - 40
71364 Winnenden (Germany)
Tele.: +49 7195 14-0
Fax: +49 7195 14-2212
Winnenden, 2014/02/01
En cada país rigen las condiciones de garantía establecidas por
el distribuidor oficial autorizado. Reparamos gratuitamente las
averías que se produzcan durante el plazo de garantía, siempre
y cuando hayan sido ocasionadas por fallos materiales o de fa-
bricación.
Declaración de conformidad CE
Producto:
Limpiadora a alta presión
con fase de vapor
Modelo:
1.698-xxx
Modelo:
1.699-xxx
Directivas comunitarias aplicables
97/23/CE
2006/42/CE (+2009/127/CE)
2004/108/CE
Categoría del módulo
II
Proceso de conformidad
Módulo H
serpentín de recalentamiento
Evaluación de conformidad módulo H
Válvula de seguridad
Evaluación de conformidad art. 3 sec. 3
bloque de control
Evaluación de conformidad módulo H
diversas tuberías
Evaluación de conformidad art. 3 sec. 3
Normas armonizadas aplicadas
EN 55014–1: 2006+A1: 2009+A2: 2011
EN 55014–2: 1997+A1: 2001+A2: 2008
EN 60335–1
EN 60335–2–79
EN 61000–3–2: 2006+A1: 2009+A2: 2009
HDS 12/14:
EN 61000–3–3: 2008
HDS 9/14:
EN 61000–3–11: 2000
Especificaciones aplicadas:
AD 2000 conformo
TRD 801 conformo
Nombre del centro mencionado:
Para 97/23/CE
TÜV Rheinland Industrie Service GmbH
Am Grauen Stein
51105 Köln
Nº de id. 0035
CEO
Head of Approbation
Garantía
117
ES
-
18
Servicio de atención al cliente
Tipo de instalación:
Nº fabricante:
Puesta en marcha:
Inspección llevada a cabo a fecha de:
Resultado:
Firma
Inspección llevada a cabo a fecha de:
Resultado:
Firma
Inspección llevada a cabo a fecha de:
Resultado:
Firma
Inspección llevada a cabo a fecha de:
Resultado:
Firma
118
ES
-
19
Nota:
Se deben respetar las recomendaciones de intervalos de
inspección de los requisitos nacionales correspondientes del
país donde está operativo el aparato.
Inspecciones repetitivas
Inspección llevada a cabo por:
Inspección exterior
Inspección interior
Inspección de resisten-
cia
Nombre
Firma de la persona cuali-
ficada/fecha
Firma de la persona cuali-
ficada/fecha
Firma de la persona cuali-
ficada/fecha
Nombre
Firma de la persona cuali-
ficada/fecha
Firma de la persona cuali-
ficada/fecha
Firma de la persona cuali-
ficada/fecha
Nombre
Firma de la persona cuali-
ficada/fecha
Firma de la persona cuali-
ficada/fecha
Firma de la persona cuali-
ficada/fecha
Nombre
Firma de la persona cuali-
ficada/fecha
Firma de la persona cuali-
ficada/fecha
Firma de la persona cuali-
ficada/fecha
Nombre
Firma de la persona cuali-
ficada/fecha
Firma de la persona cuali-
ficada/fecha
Firma de la persona cuali-
ficada/fecha
Nombre
Firma de la persona cuali-
ficada/fecha
Firma de la persona cuali-
ficada/fecha
Firma de la persona cuali-
ficada/fecha
Nombre
Firma de la persona cuali-
ficada/fecha
Firma de la persona cuali-
ficada/fecha
Firma de la persona cuali-
ficada/fecha
Nombre
Firma de la persona cuali-
ficada/fecha
Firma de la persona cuali-
ficada/fecha
Firma de la persona cuali-
ficada/fecha
Nombre
Firma de la persona cuali-
ficada/fecha
Firma de la persona cuali-
ficada/fecha
Firma de la persona cuali-
ficada/fecha
Nombre
Firma de la persona cuali-
ficada/fecha
Firma de la persona cuali-
ficada/fecha
Firma de la persona cuali-
ficada/fecha
Nombre
Firma de la persona cuali-
ficada/fecha
Firma de la persona cuali-
ficada/fecha
Firma de la persona cuali-
ficada/fecha
119
ES
-
1
Leia o manual de manual original antes de utilizar o
seu aparelho. Proceda conforme as indicações no
manual e guarde o manual para uma consulta posterior ou para
terceiros a quem possa vir a vender o aparelho.
–
Antes de colocar em funcionamento pela primeira vez é im-
prescindível ler atentamente as indicações de segurança n.º
5.956-309!
–
No caso de danos provocados pelo transporte, informe ime-
diatamente o revendedor.
Avisos sobre os ingredientes (REACH)
Informações actuais sobre os ingredientes podem ser encontra-
das em:
www.kaercher.com/REACH
Perigo
Para um perigo eminente que pode conduzir a graves ferimentos
ou à morte.
몇
Advertência
Para uma possível situação perigosa que pode conduzir a gra-
ves ferimentos ou à morte.
Atenção
Para uma possível situação perigosa que pode conduzir a feri-
mentos leves ou danos materiais.
Os jactos de alta pressão podem ser perigosos em
caso de uso incorrecto. O jacto não deve ser dirigido
contra pessoas, animais, equipamento eléctrico activo
ou contra o próprio aparelho.
–
Respeitar as respectivas disposições nacionais do legislador
referentes a projectores de jactos líquidos.
–
Respeitar as respectivas disposições nacionais do legislador
referentes à prevenção de acidentes. Os projectores de jac-
tos líquidos têm que ser controlados regularmente e o resul-
tado do controlo registado por escrito.
–
O equipamento de aquecimento da instalação é uma instala-
ção de combustão. As instalações de combustão têm que ser
controladas regularmente de acordo com as prescrições na-
cionais em vigor.
–
No caso da instalação ser operada em recintos fechados
deve ser assegurada uma evacuação segura dos gases de
escape (tubo de gás de escape sem obstruidor da corrente
de ar). Além disso, deve ser disponibilizada uma alimentação
de ar fresco suficiente.
–
De acordo com as prescrições nacionais em vigor, esta lava-
dora de alta pressão tem que ser colocada em funcionamen-
to por uma pessoa qualificada, caso seja utilizada para fins
profissionais. A KÄRCHER já realizou esta primeira coloca-
ção em funcionamento por si e documentou a mesma. A do-
cumentação referente pode ser adquirida junto do seu agente
autorizado KÄRCHER a pedido. P. f. disponibilize o n.º de
peça e o n.º de fabrico do aparelho aquando da requisição da
documentação.
–
Alertamos para o facto que, de acordo com as prescrições
nacionais em vigor, o aparelho tem que ser sujeito a uma ins-
pecção periódica por uma pessoa qualificada. Por favor, diri-
ja-se ao seu agente autorizado KÄRCHER.
–
Respeitar os avisos de segurança dos detergentes utilizados
(normalmente na etiqueta da embalagem).
Índice
Proteção do meio-ambiente
PT . . 1
Símbolos no Manual de Instruções
PT . . 1
Símbolos no aparelho . . . . .
PT . . 1
Indicações gerais de segurança
PT . . 1
Utilização conforme o fim a que se destina a máquina PT . . 2
Funcionamento . . . . . . . . . .
PT . . 2
Equipamento de segurança
PT . . 2
Elementos do aparelho . . . .
PT . . 3
Colocação em funcionamento
PT . . 4
Manuseamento . . . . . . . . . .
PT . . 4
Colocar fora de serviço . . . .
PT . . 6
Desactivação da máquina. .
PT . . 6
Armazenamento . . . . . . . . .
PT . . 6
Transporte. . . . . . . . . . . . . .
PT . . 6
Dados técnicos . . . . . . . . . .
PT . . 7
Conservação e manutenção
PT . . 9
Ajuda em caso de avarias. .
PT . 11
Acessórios. . . . . . . . . . . . . .
PT . 13
Instalação da unidade . . . . .
PT . 14
Declaração de conformidade CE
PT . 17
Garantia . . . . . . . . . . . . . . .
PT . 17
Serviço de assistência técnica
PT . 18
Inspecções periódicas. . . . .
PT . 19
Proteção do meio-ambiente
Os materiais da embalagem são recicláveis. Não co-
loque as embalagens no lixo doméstico, envie-as
para uma unidade de reciclagem.
Os aparelhos velhos contêm materiais preciosos e re-
cicláveis e deverão ser reutilizados. Baterias, óleo e
produtos similares não podem ser deitados fora ao
meio ambiente. Por isso, elimine os aparelhos velhos
através de sistemas de recolha de lixo adequados.
Por favor, não deposite o óleo de motor, o gasóleo ou a gasolina
no ambiente. Proteja o solo e elimine óleo velho sem prejudicar
o ambiente.
Os detergentes de limpeza Kärcher são de características an-
tiaderentes (ASF). Isso significa que a função de um separador
de óleo não é obstruída. No capítulo "Acessórios" é indicada
uma lista com os detergentes recomendados.
Símbolos no Manual de Instruções
Símbolos no aparelho
Perigo de queimaduras! Advertência de módu-
los quentes.
Indicações gerais de segurança
120
PT
-
2
Antes de proceder à instalação do aparelho deve-se acordar as
devidas medidas juntamente com o limpa-chaminés distrital
competente.
Durante a instalação devem ser respeitadas as precrições do di-
reito de superfície, do direito industrial e a protecção de emis-
sões. Alertamos para as prescrições, directivas e normas
indicadas a seguir:
–
O aparelho só pode ser instalado por uma empresa especia-
lizada, de acordo com as prescrições nacionais em vigor.
–
Durante a instalação eléctrica devem ser respeitadas as
prescrições legais em vigor no respectivo país de aplicação.
–
Os ajustes, trabalhos de manutenção e de reparação no
queimador só podem ser efectuados por técnicos do serviço
de assistência da Kärcher devidamente especializados.
–
Durante o planeamento de uma chaminé é necessário res-
peitar as prescrições locais em vigor.
O posto de trabalho situa-se no painel de comando. Os restantes
postos de trabalho encontram-se, consoante a estrutura da ins-
talação, nos aparelhos de acessórios (dispositivos de injecção).
–
Utilizar roupa de protecção e óculos de protecção contra sal-
picos de água ou sujidades.
O aparelho destina-se à remoção de sujidade de superfícies
através da utilização de um jacto de água. Este aparelho é espe-
cialmente utilizado para a limpeza de máquinas, viaturas e fa-
chadas.
Perigo
Perigo de lesões! Ao utilizar a máquina em estações de serviço
ou noutros locais de perigo, observe as respectivas disposições
em matéria de segurança.
–
A água fria acede através da serpentina de refrigeração do
motor e do reservatório com flutuador ao lado de aspiração
da bomba de alta pressão. No reservatório com flutuador é
adicionado produto descalcificante. A bomba transporta água
e detergente através do aquecedor contínuo. O teor de deter-
gente na água pode ser ajustado através de uma válvula de
dosagem. O aquecedor contínuo é aquecido com um quei-
mador.
–
A saída de alta pressão é ligada a uma rede de alta pressão
existente no edifício. Nos pontos de alimentação dessa rede
é realizada a ligação da pistola pulverizadora manual com
uma mangueira de alta pressão.
Os dispositivos de segurança servem para protecção do utiliza-
dor e não podem ser colocados fora de serviço nem sofrer alte-
rações no seu funcionamento.
O dispositivo de protecção contra a falta de água impede a acti-
vação da bomba de alta pressão em caso de falta de água.
O dispositivo de protecção contra falta de água impede o sobre-
aquecimento do queimador em caso de falta de água. O queima-
dor só entra em funcionamento se o sistema dispuser de água
suficiente.
O interruptor de pressão desliga o aparelho sempre que a pres-
são de trabalho for excedida. O ajuste não pode ser modificado.
A válvula de segurança abre com a avaria do interruptor de pres-
são. Esta válvula foi ajustada e lacrada de fábrica. O ajuste não
pode ser modificado.
A monitorização do queimador desliga o queimador em caso de
falta de combustível ou em caso de avaria do queimador. A lâm-
pada de controlo "Avaria do queimador (E)" brilha.
O interruptor de sobrecorrente dispara se o motor do queimador
bloquear. O motor da bomba de alta pressão está protegido por
um disjuntor de motor e um interruptor de protecção contra enro-
lamento.
O termóstato do gás de escape dispara sempre que a tempera-
tura do gás de escape exceder os 300 °C. O aparelho é desliga-
do.
Após a desactivação do aparelho, através da pistola pulverizado-
ra manual, após expiração do tempo de operacionalidade no sis-
tema de alta pressão abre-se uma válvula magnética, reduzindo
a pressão.
Prescrições, directivas e regulamentos
Postos de trabalho
Equipamento de protecção pessoal
Durante a limpeza de componentes amplifica-
dores de ruídos deve-se utilizar uma protecção
auditiva, de modo a prevenir danos no aparelho
auditivo.
Utilização conforme o fim a que se destina a
máquina
Evite que efluentes poluídas com óleo mineral entrem no solo,
na água ou na canalização. Por isso, faça lavagens de motor e
do chassis inferior somente em locais adequados para este fim
e equipados com separador de óleo.
Funcionamento
Equipamento de segurança
Dispositivo de protecção contra a falta de água,
reservatório com flutuador
Dispositivo de protecção contra falta de água, bloco
de segurança
Interruptor manométrico
Válvula de segurança
Monitorização de chama
Protecção contra sobrecorrente
Termostato do gás de escape
Descarga da pressão do sistema de alta pressão
121
PT
-
3
Figura 1
1 Queimador
2 Manómetro
3 Alimentação de água fresca com filtro
4 Saída de alta pressão
5 Avanço da tubagem do combustível
6 Retorno da tubagem do combustível
7 Mangueira de aspiração de detergente I
8 Mangueira de aspiração de detergente II (opção)
9 Recipiente do descalcificador
10 Linha adutora eléctrica
11 Reservatório com flutuador
12 Painel de comando
Figura 2
A Interruptor da máquina
B Regulador de temperatura
C Válvula de dosagem do detergente I
D Válvula de dosagem do detergente II (opção)
E Lâmpada de controlo de avaria do queimador
F Lâmpada de controlo "pronto a funcionar"
G Lâmpada de controlo do sobreaquecimento do motor
H Lâmpada de controlo da protecção contra calcificação
I
Bujão - tecla de desbloqueio do motor do queimador
Elementos do aparelho
6
5
7
8
3
4
9
11
10
1
12
2
Painel de comando
122
PT
-
4
몇
Perigo
Perigo de lesões! O aparelho, os tubos, a mangueira de alta
pressão e os acoplamentos têm que se encontrar em estado im-
pecável. Se tiver dúvidas quanto ao bom estado do aparelho não
o utilize.
–
Valores de conexão: vide dados técnicos e placa sinalética.
–
A ligação eléctrica tem que ser feita por um electricista cre-
denciado e tem que corresponder a IEC 60364-1.
O utilizador deve usar o aparelho de acordo com as especifica-
ções. Deve ter em consideração as condições locais e, ao utilizar
o aparelho, ter em conta o comportamento de pessoas nas pro-
ximidades.
Nunca deixar o aparelho sem vigilância enquanto o mesmo esti-
ver em funcionamento.
Perigo
–
Perigo de queimaduras devido a água quente! Não apontar o
jacto de água para pessoas ou animais.
–
Perigo de queimaduras devido a componentes quentes da
máquina! Não tocar em tubagens e mangueiras não isoladas
durante o funcionamento com água quente. Segurar a lança
apenas nas platinas. Não tocar no bocal do gás de escape do
aquecedor contínuo.
–
Perigo de intoxicação ou de queimaduras por detergente! Ter
atenção aos avisos nos detergentes. Guardar os detergentes
num local inacessível a pessoas não autorizadas.
Perigo
Perigo de vida devido a choque eléctrico! Não aponte o jacto de
água contra os seguintes equipamentos:
–
Instalações e aparelhos eléctricos,
–
esta instalação,
–
todos os componentes condutores de electricidade na zona
de trabalho.
O jacto de água que sai da lança provoca uma força de recuo.
Através da lança angular é gerada uma força para cima.
Perigo
–
Perigo de lesões! A força de recuo da lança pode provocar a
falta de equilíbrio. Você pode cair. A lança pode ser projectada
e ferir pessoas. Procurar um local de posicionamento seguro e
segurar firmemente a pistola pulverizadora manual. Nunca
bloquear a alavanca da pistola de pulverização manual.
–
Não dirigir o jacto contra terceiros ou si mesmo para a limpe-
za de roupa ou sapatos.
–
Perigo de lesões devido a partes projectadas! Fragmentos ou
objectos projectados podem lesionar pessoas ou animais.
Não apontar o jacto de água contra objectos soltos ou que-
bráveis.
–
Perigo de acidentes devido a danos! Limpar pneus e válvulas
com uma distância mínima de 30 cm.
몇
Advertência
Perigo devido a substâncias nocivas para a saúde! Não aplicar o
jacto de água sobre os seguintes materiais, de modo a evitar a
projecção de substâncias nocivas para a saúde:
–
Materiais com amianto,
–
Materiais que possam conter substâncias nocivas para a
saúde.
Perigo
–
Perigo de ferimentos por um jacto de água quente! Apenas
os tubos flexíveis (mangueiras) de alta pressão originais da
Kärcher estão correctamente adaptados à instalação. Não
nos responsabilizamos pela utilização de outras mangueiras.
–
Perigo de saúde provocada pelo detergente! Devido ao de-
tergente eventualmente adicionado, a água projectada pelo
aparelho não é água potàvel.
–
Perigo de danos no aparelho auditivo devido a trabalhos em
componentes que amplifiquem o ruído! Nestas circunstân-
cias utilize uma protecção auditiva adequada.
Perigo
Perigo de ferimentos por um jacto de água quente!
Perigo
Verificar a mangueira de alta pressão a respeito de danos antes
de cada colocação em funcionamento. Substituir imediatamente
uma mangueira de alta pressão danificada.
Controlar a mangueira de alta pressão, tubagens e armadu-
ras (valvuraria) e a lança, antes de cada utilização, quanto a
eventuais danos.
Controlar os acoplamentos das mangueiras quanto à fixação
correcta e estanquicidade.
Atenção
Perigo de danos por funcionamento a seco.
Controlar o nível de enchimento dos recipientes do detergen-
te e reabastecer sempre que necessário.
Controlar o nível do descalcificante e reabastecer sempre
que necessário.
Rodar o interruptor do aparelho para a posição (A) "0".
Fechar a alimentação de água.
Accionar a pistola manual até a máquina ficar sem pressão.
Colocação em funcionamento
Conexão de energia eléctrica
Manuseamento
Avisos de segurança
!
Estabelecer a operacionalidade
Desactivação em caso de emergência
123
PT
-
5
Rodar a válvula de regulação do volume no sentido dos pon-
teiros do relógio aumenta a pressão de serviço e aumenta o
débito.
Rodar a válvula de regulação do volume no sentido inverso
ao dos ponteiros do relógio reduz a pressão de serviço e re-
duz o débito.
Uma revolução para a direita do regulador da falta de água
resulta numa quantidade de transporte maior e maior pres-
são de trabalho.
Uma revolução para a esquerda do regulador da falta de
água resulta numa quantidade de transporte menor e menor
pressão de trabalho.
Abrir a admissão de água.
Símbolo "Motor ligado"
Puxar a alavanca da pistola pulverizadora manual e ajustar o
interruptor do aparelho (A) em "1" (motor ligado).
A lâmpada de controlo de operacionalidade (F) indica o esta-
do de operacionalidade.
Perigo
Perigo de queimadura!
Atenção
Funcionamento com água quente sem combustível provoca da-
nos na bomba do combustível. Antes do funcionamento com água
quente deve assegurar a alimentação correcta do combustível.
O queimador pode ser ligado sempre que necessário.
Símbolo "Queimador ligado"
Rodar o interruptor do aparelho (A) para a posição "0".
Ajustar a temperatura pretendida da água no regulador da
temperatura (B). A temperatura máxima é de 98 °C.
Perigo
Perigo de queimadura!! Em temperaturas de trabalho acima dos
98 °C, a pressão de serviço não pode exceder 3,2 MPa (32 bar) .
Para a conversão do funcionamento a água quente para o fun-
cionamento a níveis de vapor o aparelho deve ser colocado a frio
e desactivado. A conversão deve ser efectuada do seguinte mo-
do:
substituir o bocal de alta pressão por um bocal de vapor
(acessório).
Ajustar o regulador da temperatura em 150 °C.
Ajustar a válvula de regulação do caudal, na bomba de alta
pressão, no caudal mínimo (rodar no sentido contrário ao dos
ponteiros do relógio).
Ajustar a válvula de regulação do caudal, na bomba de alta
pressão, no caudal máximo (rodar no sentido dos ponteiros
do relógio).
Ajustar o regulador do caudal de água na pistola Easypress,
através de uma regulação para a esquerda, para o caudal de
água mínimo.
–
Se durante o funcionamento a alavanca da pistola pulverizadora
manual for solta, o aparelho desliga-se automaticamente.
–
Ao abrir novamente a pistola, dentro do período de operacio-
nalidade ajustável (2...8 minutos), o aparelho entra automati-
camente em funcionamento.
–
Se o tempo de operacionalidade for excedido, o temporizador
de segurança da bomba e do queimador desligam. A lâmpa-
da de controlo de operacionalidade (F) apaga.
–
Para colocar novamente em funcionamento, posicionar o in-
terruptor do aparelho na posição "0" e voltar a ligar. Se o apa-
relho for comandado por um controlo remoto, a nova
colocação em funcionamento pode ser efectuada no respec-
tivo botão do controlo remoto.
–
Os pneus das viaturas só devem ser limpos com um bocal de
fenda (plano) de 25° e uma distância mínima do jacto de 30
cm. Os pneus não podem ser limpos sob quaisquer circuns-
tâncias com o jacto circular.
Para todas as restantes tarefas são colocados à disposição os
seguintes bocais:
Ajustar a pressão de serviço e o débito
Ajuste no aparelho
Ajuste na pistola Easypress (opção)
Funcionamento com água fria
Operação com água quente
R
Funcionamento com vapor
N.º de encomenda
Tipo
4.766-023
HDS 9/14
4.766-024
HDS 12/14
Sem pistola Easypress
Com a pistola Easypress (opção)
Operacionalidade
Selecção do bocal
124
PT
-
6
No caso de uma tubagem superior a 20 m ou uma mangueira de
alta pressão de 2 x 10 m NW 8 devem ser utilizados os seguintes
bocais:
–
Os detergentes facilitam a tarefa de limpeza. Estes são aspi-
rados de um depósito de detergente externo.
–
O aparelho está equipado na sua versão base com uma vál-
vula de dosagem (C). Um segundo dispositivo de dosagem
(válvula de dosagem D) pode ser adquirido como acessório
especial. Neste caso passa a ser possível aspirar dois tipos
de detergentes distintos.
–
A quantidade de dosagem é ajustada nas válvulas de dosa-
gem do detergente (C ou D) no painel de comando. O valor
ajustado corresponde à quota de detergente em percenta-
gem.
–
A escala externa é válida para a utilização de detergente não
diluído (100 % CHEM).
–
A escala interna é válida para detergentes diluídos 1+3 (25 %
CHEM + 75 % água).
A tabela seguinte indica o consumo de detergente para os valo-
res da escala externa:
A quantidade exacta de dosagem depende da:
–
Viscosidade do detergente
–
Altura de aspiração
–
Resistência do caudal na tubagem de alta pressão
Se for necessária uma dosagem exacta, a quantidade de deter-
gente aspirada deve ser medida (p. ex. através da aspiração a
partir de um copo de medição).
Aviso:
As recomendações sobre os detergentes a utilizar encon-
tram-se no capítulo "Acessórios".
Atenção
Durante o funcionamento sem descalcificante o aquecedor con-
tínuo pode calcificar.
A lâmpada de controlo da protecção de calcificação pisca sem-
pre que o recipiente do descalcificante estiver vazio (H).
Figura 1 - Pos. 9
Reabastecer o recipiente do descalcificante com líquido des-
calcificante RM 110 (2.780-001).
Perigo
Perigo de queimadura por água quente! Após o funcionamento
com água quente ou vapor deixe ligado a máquina, no mínimo,
por mais dois minutos com a pistola aberta e com água fria para
arrefecê-la.
Durante o funcionamento a água quente ajustar o regulador
da temperatura (B) na temperatura mais baixa.
Utilizar o aparelho, pelo menos, durante 30 segundos sem
detergente.
Rodar o interruptor do aparelho para a posição (A) "0".
Fechar a alimentação de água.
Accionar a pistola manual até a máquina ficar sem pressão.
Proteger a pistola pulverizadora manual contra uma abertura
inadvertida através do bloqueio de segurança.
Durante intervalos de operação mais prolongados ou sempre
que não for possível um armazenamento sem geada, devem ser
tomadas as seguintes medidas (ver capítulo "Manutenção e con-
servação", secção "Protecção anticongelante"):
Esvaziar a água.
Enxaguar a máquina com anti-congelante.
Desligar o interruptor principal e bloquear ou desconectar a
ficha Cekon.
Atenção
Perigo de ferimentos e de danos! Ter atenção ao peso do apare-
lho durante o armazenamento.
Atenção
Perigo de ferimentos e de danos! Ter atenção ao peso do apare-
lho durante o transporte.
Durante o transporte em veículos, proteger o aparelho contra
deslizes e tombamentos, de acordo com as directivas em vigor.
Sujidade
Bocal
Ângulo
do jacto
Refª
6.415
Pressão
[MPa]
Recuo
[N]
HDS 9/14
forte
00060
0°
-257
14
44
média
25060
25°
-295
suave
40060
40°
-301
HDS 12/14
forte
00080
0°
-150
14
55
média
25080
25°
-152
suave
40080
40°
-153
Sujidade
Bocal
Ângulo
do jacto
Refª
6.415
Pressão
[MPa]
Recuo
[N]
HDS 9/14
forte
0075
0°
-419
10
37
média
2575
25°
-421
suave
4075
40°
-422
HDS 12/14
forte
0010
0°
-082
10
46
média
2510
25°
-252
suave
4010
40°
-253
Dosagem do detergente
HDS 9/14
Posição
0,5
1
5
Quantidade de detergente [l/h]
14...15 22...24
50
Concentração do detergente [%]
1,5
2,5
5
HDS 12/14
Posição
0,5
1
5
Quantidade de detergente [l/h]
10...13 23...27
60
Concentração do detergente [%]
1
2
5
Adicionar descalcificante
Colocar fora de serviço
Depois de trabalhar com detergente
Desligar o aparelho
Desactivação da máquina
Armazenamento
Transporte
125
PT
-
7
Dados técnicos
HDS 9/14
HDS 12/14
HDS 12/14
1.698-900
1.699-919
1.699-920
Dados relativos à potência
Pressão de serviço da água (com bocal padrão)
MPa (bar)
14 (140)
14 (140)
14 (140)
Pressão máx. de serviço na operação a vapor (com bocal a
vapor)
MPa (bar)
3,2 (32)
3,2 (32)
3,2 (32)
Refª bocal de vapor
--
4.766-023
4.766-024
4.766-024
Máx. pressão de serviço admissível (válvula de segurança) MPa (bar)
18,5 (185)
18,5 (185)
18,5 (185)
Quantidade de transporte da água (regulável continuamente) l/h (l/min)
500-930
(8,3-15,5)
600-1200
(10-20)
600-1200
(10-20)
Vazão, operação a vapor
l/h (l/min)
470 (7,8)
600 (10)
600 (10)
Aspiração do detergente (regulável continuamente)
l/h (l/min)
0-50 (0-0,8)
0-60 (0-1)
0-60 (0-1)
Ligação de água
Quantidade de admissão (mín.)
l/h (l/min)
1100 (18,3)
1300 (21,7)
1300 (21,7)
Pressão de admissão (mín.)
MPa (bar)
0,1 (1)
0,1 (1)
0,1 (1)
Pressão de admissão (máx.)
MPa (bar)
0,6 (6)
0,6 (6)
0,6 (6)
Ligação eléctrica
Tipo de corrente
--
3N~
3N~
3N~
Frequência
Hz
50
50
50
Tensão
V
400
400
230
Potência da ligação
kW
6,4
7,5
8,2
Protecção eléctrica (de acção lenta)
A
16
20
32
Tipo de protecção
--
IPX5
IPX5
IPX5
Classe de protecção
--
I
I
I
Impedância da rede máx. permitida
Ohm
(0,381+j 0,238)
--
--
Linha adutora eléctrica
mm
2
5 x 2,5
5 x 2,5
5 x 4
Temperatura
Temperatura de admissão (máx.)
°C
30
30
30
Temperatura máx. de serviço da água quente
°C
98
98
98
Temperatura máx. de serviço a vapor
°C
155
155
155
Aumento da temperatura com passagem máxima de água
°C
56±2
54±2
54±2
Capacidade de aquecimento bruta
kW
68
85
85
Consumo do combustível
kg/h
5,8
7,1
7,1
Evacuação de chaminé
kPa
0,01-0,04
0,01-0,04
0,01-0,04
Corrente de massa de gás de escape - carga máxima
kg/h
124
155
155
Medidas e pesos
Comprimento
mm
1124
1124
1124
Largura
mm
558
558
558
Altura
mm
687
699
699
Peso de funcionamento típico
kg
164,4
178,8
178,8
Valores obtidos segundo EN 60355-2-79
Emissão de ruído
Nível de pressão acústica L
pA
dB(A)
74
76
76
Insegurança K
pA
dB(A)
1
1
1
Valor de vibração mão/braço
Pistola pulverizadora manual
m/s
2
2,2
2,3
2,3
Lança
m/s
2
1,8
2,1
2,1
Insegurança K
m/s
2
1,0
1,0
1,0
126
PT
-
8
Folha de dimensões
6
8
7
/ 6
9
9
505
558
1124
246
158
1060
47
141
61
77
46
200
300
1018±2
127
PT
-
9
Perigo
Perigo de ferimentos! Antes de iniciar quaisquer trabalhos de
manutenção e de reparação deve-se desligar o interruptor prin-
cipal ou desconectar a ficha Cekon.
Conservação e manutenção
Plano de manutenção
Momento da reali-
zação
Actividade
grupo de construção afectado Execução
por quem
Diariamente
Controlar a pisto-
la pulverizadora
manual
Pistola pulverizadora manual
Verificar se a pistola pulverizadora fecha correcta-
mente. Controlar o funcionamento da protecção
contra um manuseamento inadvertido. Substituir
pistolas pulverizadoras manuais defeituosas.
Operador
Controlar a man-
gueira de alta
pressão
Tubagens de saída, mangueiras
para o aparelho de trabalho
Controlar as mangueiras quanto a danos. Substituir
imediatamente mangueiras danificadas. Perigo de
acidente!
Operador
Controlar o lado
de conexão com
conector de rede
Ligação eléctrica com ficha/to-
mada
Controlar o cabo de conexão com conector de rede
relativamente a danos. O cabo de conexão danifi-
cado tem que ser imediatamente substituído pelos
nossos Serviços Técnicos ou por um electricista
autorizado.
Operador
Semanalmente ou
após 40 horas de
serviço
Controlar o nível
do óleo
Recipiente do óleo na bomba
Se o óleo apresentar um aspecto leitoso é necessá-
rio mudá-lo.
Operador
Controlar o nível
do óleo
Recipiente do óleo na bomba
Verificar o nível de óleo da bomba. Reabastecer em
caso de necessidade (Nº de encomenda 6.288-
016).
Operador
Limpar o filtro
(peneira)
Peneira na admissão da água
Ver secção "Limpar filtro".
Operador
Mensalmente ou
após 200 horas de
serviço
Limpar e contro-
lar eléctrodos de
ignição
Eléctrodos de ignição na tampa
do aquecedor contínuo
Desaparafusar a tubagem do combustível, des-
montar e limpar os eléctrodos. Controlar o ajuste
dos eléctrodos segundo o esquema indicado na pá-
gina seguinte e reajustar sempre que necessário.
Operador
com instrução
Controlar a bom-
ba
Bomba de alta pressão
Controlar a bomba quanto a fugas. Contactar o ser-
viço de assistência no caso de caírem mais de 3 go-
tas por minuto.
Operador
Controlar quanto
a depósitos inter-
nos
Toda a instalação
Colocar a instalação em funcionamento com lança
e sem bocal de alta pressão. A instalação deve ser
descalcificada sempre que a pressão de serviço no
manómetro dos aparelhos exceder 3 MPa. O mes-
mo aplica-se sempre que, durante o funcionamento
de uma tubagem de alta pressão (saída de água na
saída de alta pressão), for detectada uma pressão
de serviço superior a 0,7–1 MPa.
Operador
com instrução
para descalci-
ficação
Limpar o filtro
(peneira)
Filtro no dispositivo de protecção
contra a falta de água
Ver secção "Limpar filtro".
Operador
Semestralmente
ou após 1000 ho-
ras de serviço
Mudança do óleo Bomba de alta pressão
Purgar o óleo. Abastecer 1 l de óleo novo (Nº de en-
comenda 6.288-016). Controlar o nível de enchi-
mento no recipiente do óleo.
Operador
controlar, limpar
Toda a instalação
Controlo visual da instalação, controlar as ligações
de alta pressão quanto à estanquicidade, controlar
a válvula de descarga quanto à estanquicidade,
controlar mangueira de alta pressão, controlar tan-
que acumulador de pressão, limpar filtro/substituir o
filtro do combustível, remover a fuligem / descalcifi-
car a serpentina de aquecimento, limpar / substituir
os eléctrodos de ignição, limpar / substituir o bocal
do queimador, ajustar o queimador.
Serviço de
assistência
técnica
Anualmente
Controlo de segu-
rança
Toda a instalação
Controlo de segurança segundo as prescrições na-
cionais em vigor, relativamente a jactos líquidos.
Técnico
Inspecção periódi-
ca o mais tardar de
5 em 5 anos
Controlo de pres-
são
Toda a instalação
Efectuar ensaio de pressão segundo predefinição
do fabricante.
Técnico
128
PT
-
10
Existe a possibilidade de assinar um contrato de manutenção
com o respectivo escritório de venda da Kärcher.
Figura 1 - Pos. 3
Fechar a alimentação de água.
Desaparafusar a mangueira de admissão no aparelho.
Deslocar o filtro (peneira) com uma chave de fendas para
fora da ligação.
Limpar o filtro (peneira)
Voltar a montar na ordem inversa.
Remover as chapas de cobertura.
Desaparafusar a peça angular do bloco de segurança.
Aparafusar o parafuso M8x30 no filtro.
Retirar o parafuso e o filtro com um alicate.
Limpar o filtro (peneira)
Voltar a montar na ordem inversa.
Os eléctrodos de ignição devem ser ajustados segundo as se-
guintes indicações:
Em caso de depósitos nas tubagens, a resistência do caudal au-
menta, pelo que o interruptor de pressão pode disparar.
Perigo
Perigo de explosões por gases inflamáveis! Durante a descalci-
ficação é proibido fumar. Providenciar uma boa ventilação.
Perigo
Perigo de ferimentos por ácidos! Usar óculo e luvas de protec-
ção.
Para os trabalhos de descalcificação só podem ser utilizados sol-
ventes controlados por lei e munidos do símbolo de verificação.
–
RM 100 (Nº de enc. 6.287-008) dissolve o calcário e ligações
simples em calcário, bem como, resíduos de detergente.
–
RM 101 (Nº de enc. 6.287-013) dissolve depósitos que não
são dissolvidos com RM 100.
Encher um recipiente de 20 litros com 15 l de água.
Adicional um litro de solvente.
Ligar a mangueira de água directamente na cabeça da bom-
ba e posicionar a extremidade livre no recipiente.
Inserir a lança conectada, sem bocal, no recipiente.
Abrir a pistola pulverizadora manual e não fechar durante o
processo de descalcificação.
Comutar o interruptor do aparelho em "Queimador lig." até
serem atingidos cerca de 40 °C.
Desligar o aparelho e deixar repousar durante cerca de 20
minutos. A pistola pulverizadora manual deve permanecer
aberta.
Esvaziar de seguida o aparelho com a bomba.
Aviso:
Para garantir uma protecção contra corrosão e para a
neutralização de resíduos de ácidos aconselhámos que seja
bombeada uma solução alcalina (p. ex. RM 81) sobre o recipien-
te do detergente, através de todo o aparelho.
O aparelho deve ser posicionado em recintos protegidos contra
geada. No caso de perigo de geada, p. ex. no caso de instala-
ções no exterior, o aparelho deve ser esvaziado e lavado com
produto anticongelante.
Desmontar a mangueira de alimentação de água e a man-
gueira de alta pressão.
Deixar funcionar a máquina durante, no máx., 1 minuto até
que toda a água tenha saído da bomba e das mangueiras.
Desmontar a mangueira de alimentação no fundo da caldeira
e retirar toda a água da serpentina de aquecimento.
Aviso:
Respeitar as instruções de utilização do fabricante do an-
ticongelante.
Abastecer o produto anticongelante comum no reservatório
com flutuador até ao topo.
Posicionar o recipiente de recolha por baixo da saída de alta
pressão.
Ligar o aparelho e deixá-lo trabalhar até o dispositivo de pro-
tecção de falta de água no reservatório com flutuador dispa-
rar e o aparelho desligar.
Desse modo, obtém-se assim uma protecção contra corrosão.
Contrato de manutenção
Limpar os filtros (peneiras)
Peneira na admissão da água
Filtro no dispositivo de protecção contra a falta de água
Ajuste dos eléctrodos
A
B
C
a
HDS 9/14
4,5±0,5
3,5±0,5
3+0,5
60°
HDS 12/14
3,5±0,5
3,5±0,5
3+0,5
60°
2.
1.
A
B
C
a
Descalcificar
Execução
Protecção contra o congelamento
Escoar a água
Enxaguar a máquina com anti-congelante
129
PT
-
11
Perigo
Perigo de ferimentos! Antes de iniciar quaisquer trabalhos de
manutenção e de reparação deve-se desligar o interruptor prin-
cipal ou desconectar a ficha Cekon.
*
Aviso
Desligar e ligar a instalação para desbloquear a avaria do quei-
mador.
**
Ajuda em caso de avarias
Avaria
Possível causa
Eliminação da avaria
por quem
Aparelho não funciona e a
lâmpada de controlo de ope-
racionalidade (F) não brilha
O aparelho não está ligado à ten-
são.
Controlar a rede eléctrica.
Electricista
Temporizador de segurança em
funcionamento.
Desligar e voltar a ligar o aparelho no respec-
tivo interruptor.
Operador
Fusível queimado no circuito de
comando (F3). Fusível está incluí-
do no transformador de comando
(T2).
Inserir novo fusível e eliminar o motivo da so-
brecarga no caso do fusível voltar a queimar.
Serviço de assistên-
cia técnica
Interruptor de pressão HD (alta
pressão) ou ND (baixa pressão)
defeituoso.
Controlar interruptor de pressão.
Serviço de assistên-
cia técnica
Avaria do módulo temporizador
(A1).
Verificar as ligações e substituir em caso de
necessidade.
Serviço de assistên-
cia técnica
Disparo do termóstato do gás de
escape (B8).
Deixar a instalação arrefecer. Desbloquear o
termóstato do gás de escape (B8). Eliminar a
causa da avaria.
Serviço de assistên-
cia técnica
Lâmpada de controlo do so-
breaquecimento do motor +
(G) brilha
Disparo do sensor térmico (WS) no
motor ou do interruptor de protec-
ção de sobrecorrente (F1).
Eliminar a causa da sobrecarga.
Serviço de assistên-
cia técnica
Disparo do dispositivo de protec-
ção contra falta de água no reser-
vatório com flutuador.
Eliminar a falta de água.
Operador
Queimador não executa igni-
ção ou a chama apaga du-
rante a operação
Regulador da temperatura (B) está
ajustado demasiado baixo.
Ajustar o regulador de temperatura em valor
mais alto.
Operador
O interruptor do aparelho não está
ajustado em queimador.
Ligar o queimador.
Operador
Desactivação do dispositivo de
protecção contra falta de água do
bloco de segurança.
Assegurar uma alimentação de água sufi-
ciente. Controlar a estanquicidade do apare-
lho.
Operador
A lâmpada de controlo "Ava-
ria do queimador (E)" brilha*
Depósito do combustível vazio.
Encher combustível.
Operador
Filtro do combustível entupido.
Limpar o filtro do combustível. Para tal, de-
senroscar o filtro do combustível, limpá-lo e
voltar a enroscar.
Operador
Célula fotoeléctrica da monitoriza-
ção da chama está mal ajustada
ou avariada.
Verificar o assento correcto da célula fotoe-
léctrica. **
Operador
Falta de faísca de ignição (visível
através do óculo de inspecção na
tampa do queimador).
Controlar a distância dos eléctrodos entre o
transformador de ignição e o cabo de igni-
ção. Corrigir a distância ou substituir as pe-
ças defeituosas. Limpar se necessário.
Serviço de assistên-
cia técnica
Motor do queimador está bloquea-
do.
Eliminar o bloqueio. Remover o bujão (I) no
painel de comando e desbloquear o interrup-
tor de protecção contra sobrecorrente. Inserir
novamente o bujão.
Serviço de assistên-
cia técnica
Avaria na bomba do combustível
ou na válvula magnética do com-
bustível.
Controlar as peças e substituir as peças da-
nificadas.
Operador
130
PT
-
12
Avaria
Possível causa
Eliminação da avaria
por quem
A lâmpada de controlo da
protecção contra calcificação
(H) brilha
Descalcificante consumido.
Adicionar descalcificante.
Operador
Insuficiente ou nenhuma ali-
mentação do detergente
Válvula de dosagem na posição
"0".
Ajustar a válvula de dosagem do detergente. Operador
Filtro do detergente entupido ou
tanque vazio.
Limpar ou reabastecer.
Operador
Fuga ou entupimento nas man-
gueiras/válvulas de dosagem ou
válvula magnética do detergente.
Controlar, limpar.
Operador
Avaria do sistema electrónico ou
da válvula magnética.
Substituir
Serviço de assistên-
cia técnica
A máquina não atinge a pres-
são máxima
Bocal danificado.
Substituir bocal.
Operador
Esvaziar o reservatório do deter-
gente.
Reabastecer detergente.
Operador
Não tem suficiente água.
Assegurar uma alimentação adequada de
água.
Operador
Filtro na entrada da água entupido. Controlar, desmontar o filtro e limpar.
Operador
Fuga na válvula de dosagem do
detergente.
Controlar e vedar.
Operador
Fuga nos tubos flexíveis (manguei-
ras) do detergente.
Substituir
Operador
Válvula do flutuador empanca.
Controlar o livre funcionamento.
Operador
Fuga na válvula de segurança.
Controlar o ajuste e montar novo vedante em
caso de necessidade.
Serviço de assistên-
cia técnica
Fuga na válvula de regulação das
quantidades ou com ajuste muito
baixo.
Controlar as peças da válvula e substituir em
caso de danificação ou limpar em caso de
sujidade.
Serviço de assistên-
cia técnica
Avaria da válvula magnética para a
descarga da pressão.
Substituir a válvula magnética.
Serviço de assistên-
cia técnica
Bomba de alta pressão emite
ruídos de pancadas e manó-
metro oscila fortemente
Amortizador das oscilações com
defeito.
Substituir o amortizador das oscilações.
Serviço de assistên-
cia técnica
Bomba de água aspira pequena
quantidade de ar.
Controlar o sistema de aspiração e eliminar
fugas.
Operador
O aparelho liga e desliga
continuamente quando a pis-
tola manual está aberta.
Bocal na lança entupido.
Controlar, limpar.
Operador
O aparelho tem calcário.
Ver secção "Descalcificar".
Operador
Desajuste do ponto de comutação
de sobrecorrente.
Requerer o reajuste do dispositivo de sobre-
corrente.
Serviço de assistên-
cia técnica
Filtro entupido no dispositivo de
protecção contra a falta de água.
Controlar, desmontar o filtro e limpar.
Operador
O aparelho não desliga com
a pistola pulverizadora ma-
nual fechada
A bomba não está totalmente isen-
ta de ar.
Ajustar o interruptor do aparelho em "0" e pu-
xar a pistola pulverizadora manual até não
sair mais nenhum líquido do bocal. Ligar no-
vamente o aparelho. Repetir este processo
até atingir a completa pressão de serviço.
Operador
Avaria da válvula de segurança ou
do vedante da mesma.
Substituir a válvula de segurança ou o ve-
dante.
Serviço de assistên-
cia técnica
131
PT
-
13
Os detergentes facilitam as tarefas de limpeza. Na tabela é apre-
sentada uma selecção de detergentes. Antes da aplicação dos
detergentes é necessário observar os avisos na embalagem.
* = apenas para curtas aplicações, método de dois passos, lavar
com água limpa
** = ASF = anti-aderente
*** = para uma pulverização prévia é adequado Foam-Star 2000
Acessórios
Detergente
Campo de aplicação
Sujidade, tipo de aplicação
Detergente
Valor pH (aprox.) solu-
ção de 1 % na água da
companhia
Oficinas mecânicas auto-
móveis, bombas de ga-
solina, transportadores,
parque de veículos
Pó, sujidade rodoviária, óleos mi-
nerais (em superfícies lacadas/pin-
tadas)
RM 55 ASF **
8
RM 22/80 - pó ASF
12/10
RM 81 ASF
9
RM 803 ASF
10
RM 806 ASF
11
Conservação de viaturas
RM 42 cera fria para lavagem a alta pressão
8
RM 820 - cera quente ASF
7
RM 821 - cera de pulverização ASF
6
RM 824 - super cera de anti-aderência ASF
7
RM 44 gel de limpeza para jantes
9
Indústria transformadora
de metais
Óleos, massas lubrificantes, pó e
sujidades similares
RM 22 - pó ASF
12
RM 55 ASF
8
RM 81 ASF
9
RM 803 ASF
10
RM 806 ASF
12
RM 31 ASF (forte sujidade)
12
RM 39 - líquido (com protecção contra corro-
são)
9
Empresas transformado-
ras do ramo alimentar
Sujidade leve até média, massas
lubrificantes/óleos, superfícies
grandes
RM 55 ASF
8
RM 81 ASF
9
RM 882 espuma de gel OSC
12
RM 58 ASF (produto de limpeza de espuma)
9
RM 31 ASF *
12
Resina de fumo
RM 33 *
13
Limpeza e desinfecção
RM 732
9
Desinfecção
RM 735
7...8
Calcário, depósitos minerais
RM 25 ASF *
2
RM 59 ASF (limpeza com espuma)
2
Zonas sanitárias ***
Calcário, depósitos de urina, solu-
ções de sabão, etc.
RM 25 ASF * (limpeza profunda)
2
RM 59 ASF (limpeza com espuma)
2
RM 68 ASF
5
132
PT

