Karcher Nettoyeur haute pression HDS 9-14-4 ST Eco: !
!: Karcher Nettoyeur haute pression HDS 9-14-4 ST Eco
-
15
–
Нагревательным
устройством
прибора
является
топоч
-
ная
установка
.
При
установке
следует
соблюдать
предпи
-
сания
,
действующие
в
данной
стране
.
–
Использовать
только
проверенные
дымовые
трубы
/
тру
-
бопроводы
для
отвода
отработанных
газов
.
Опасность
Опасность
обваривания
!
Этот
символ
необходимо
нане
-
сти
в
каждой
точке
отбора
.
При
установке
бака
с
жидким
топливом
в
помещении
,
где
установлен
прибор
,
следует
соблюдать
предписания
по
хра
-
нению
воспламеняемых
жидкостей
(
можно
заказать
в
изда
-
тельстве
Carl Heymanns Verlag,
Кёльн
, www.heymanns.com).
При
прокладке
топливных
трубопроводов
следует
соблю
-
дать
приведенную
ниже
диаграмму
.
Следует
предусмотреть
систему
,
состоящую
из
двух
линий
,
линии
подачи
и
рециркуляционной
линии
.
–
Максимальное
предварительное
давление
жидкого
то
-
плива
: 0,05
МПа
(0,5
бар
)
–
Максимальное
разрежение
между
топливным
фильтром
и
насосом
: 0,04
МПа
(0,4
бар
)
Длина
всасывающей
трубы
в
метрах
(
м
)
Высота
всоса
в
метрах
(
м
)
Возможная
длина
всасывающей
трубы
при
использовании
труб
с
номинальным
внутренним
диаметром
NW 8
–
Каждый
прибор
необходимо
подсоединить
к
собственной
трубе
отвода
газа
.
–
Газоотвод
необходимо
устанавливать
в
соответствии
с
местными
предписаниями
и
в
согласовании
с
компетен
-
тным
специалистом
по
вентиляции
.
Мы
рекомендуем
встроить
прерыватель
между
установкой
и
дымоходом
.
Указание
Для
достижения
предписанных
параметров
горения
необ
-
ходимо
придерживаться
тяги
дымовой
трубы
,
указанной
в
технических
параметрах
установки
.
–
Перед
установкой
проверить
несущую
способность
сте
-
ны
.
Крепежный
материал
,
входящий
в
комплект
поставки
,
пригоден
для
бетона
.
Для
стен
,
выполненных
из
строи
-
тельного
камня
с
пустотами
,
кирпича
и
газобетона
необ
-
ходимо
использовать
подходящие
дюбеля
и
винты
,
например
,
анкерные
дюбеля
(
схему
расположения
отвер
-
стий
см
.
на
габаритном
чертеже
).
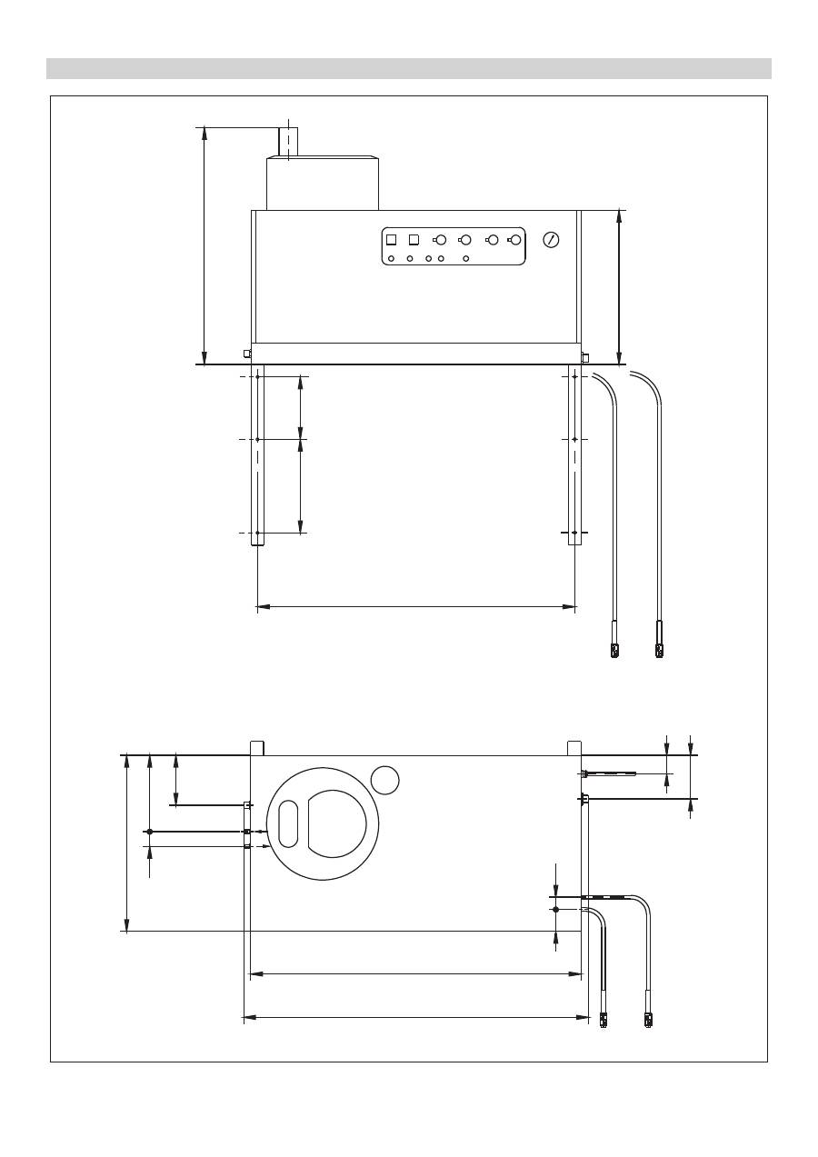
–
Рис
. 3 -
поз
. 19
и
23
Прибор
нельзя
жестко
соединять
с
водопроводной
сетью
или
сетью
трубопроводов
высокого
давления
.
Обязатель
-
но
нужно
смонтировать
соединительные
шланги
.
–
Рис
. 3 -
А
Предусмотреть
запорный
клапан
между
водопроводной
сетью
и
соединительным
шлангом
.
При
монтаже
шлангов
высокого
давления
необходимо
со
-
блюдать
соответствующие
национальные
нормы
.
–
Перепад
давления
в
трубопроводе
должен
быть
менее
1,5
МПа
.
–
Готовый
трубопровод
необходимо
проверить
под
давле
-
нием
28
МПа
.
–
Изоляция
трубопровода
должна
быть
термостойкой
до
температуры
155 °C.
Рис
. 3 -
Поз
. 20
Баки
необходимо
установить
таким
образом
,
чтобы
нижний
уровень
моющего
средства
был
не
более
чем
на
1,5
м
ниже
днища
прибора
,
а
верхний
уровень
был
не
выше
днища
при
-
бора
.
Рис
. 3 -
В
и
поз
. 19
Водоспуск
подключается
к
водопроводной
сети
при
помо
-
щи
подходящего
водяного
шланга
.
–
Производительность
подачи
воды
должна
составлять
не
менее
1300
л
/
час
при
давлении
не
менее
0,1
мПа
.
–
Температура
воды
должна
быть
ниже
30 °C.
Внимание
!
Превышение
максимально
допустимого
полного
сопротив
-
ления
сети
в
точке
электрического
подключения
(
см
.
раз
-
дел
"
Технические
данные
")
не
допускается
.
В
том
случае
,
если
вам
не
известна
величина
полного
сопротивления
сети
в
точке
электрического
подключения
,
обратитесь
в
энергоснабжающую
организацию
.
Указание
:
Процессы
включения
создают
краткие
падения
напряжения
.
В
случае
неисправностей
электросети
возмож
-
ны
помехи
в
работе
других
приборов
.
–
Параметры
подключения
указаны
на
заводской
табличке
и
в
разделе
"
Технические
данные
".
–
Электрическое
подключение
должно
проводиться
элек
-
триком
и
соответствовать
нормам
IEC 60364-1.
–
Токоведущие
детали
,
кабели
и
приборы
в
рабочей
зоне
должны
находиться
в
безупречном
состоянии
и
быть
за
-
щищены
от
попадания
водяной
струи
.
Во
избежание
несчастных
случаев
,
связанных
с
электриче
-
ством
,
мы
рекомендуем
использование
розеток
с
пред
-
включенным
устройством
защиты
от
тока
повреждения
(
макс
.
номинальная
сила
тока
срабатывания
: 30
мА
).
Инсталляция
оборудования
Только
для
авторизованного
персонала
!
Общие
положения
При
рабочих
темпе
-
ратурах
выше
100
°C
поменять
фор
-
сунки
высокого
дав
-
ления
на
паровые
форсунки
.
Бак
с
жидким
топливом
Топливопроводы
Труба
для
отвода
топочного
газа
!
Настенный
монтаж
Монтаж
шлангов
высокого
давления
Установка
баков
с
моющим
средством
Подача
воды
Электрическое
подсоединение
269
RU
-
16
Установить
электрическое
соединение
.
Для
отключения
стационарной
очистительной
установки
вы
-
сокого
давления
используется
запираемый
на
замок
главный
выключатель
(
рис
. 3,
поз
. 6),
расположенный
в
безопасном
и
легкодоступном
месте
.
Ширина
размыкания
контактов
главного
выключателя
долж
-
на
составлять
не
менее
3
мм
.
Смонтировать
на
соединительном
кабеле
прибора
ште
-
керный
разъем
Cekon.
Вставить
штекерный
разъем
Cekon
в
розетку
.
Для
отключения
стационарной
очистительной
установки
вы
-
сокого
давления
штекерный
разъем
Cekon
для
отсоедине
-
ния
от
сети
должен
быть
легко
доступен
.
Перед
первым
использованием
срезать
кончик
на
кол
-
пачке
емкости
с
маслом
водяного
насоса
.
Опасность
Взрывоопасность
!
Заливайте
только
дизельное
масло
или
легкий
мазут
.
Использование
неподходящих
видов
топли
-
ва
,
напр
.,
бензина
,
не
разрешается
.
Залить
топливный
бак
.
Внимание
!
Работа
в
режиме
горячей
воды
при
отсутствии
топлива
ведет
к
повреждению
топливного
насоса
.
Перед
работой
в
режиме
горячей
воды
обеспечить
подачу
топлива
.
Рис
. 3 -
Поз
. 14
Шланг
высокого
давления
соединяют
с
ручным
пистоле
-
том
-
распылителем
и
струйной
трубкой
,
затем
устанавли
-
вают
на
выходе
высокого
давления
прибора
или
сети
трубопроводов
высокого
давления
.
Накидной
гайкой
(a)
закрепить
мундштук
форсунки
(b)
на
струйной
трубке
(d).
Обратить
внимание
на
то
,
чтобы
уплотнение
(c)
легло
точно
в
паз
.
Снять
пружину
(c)
с
упора
крышки
(b)
бака
смягчителя
(a).
Заполнить
бак
смягчителем
Kärcher RM 110 (
№
для
зака
за
2.780-001).
Опасность
Опасность
электрического
напряжения
!
Настройку
разре
-
шается
проводить
только
специалисту
-
электрику
.
Определение
местной
жесткости
воды
:
–
через
местное
предприятие
коммунально
-
бытового
об
-
служивания
,
–
с
помощью
прибора
для
измерения
жесткости
воды
(
№
заказа
6.768-004)
Снять
крышку
прибора
.
Открыть
распределительный
щит
рядом
с
пультом
управ
-
ления
.
Установите
поворотный
потенциометр
(
а
)
в
зависимости
от
жесткости
воды
.
В
таблице
указаны
правильные
уста
-
новки
.
Пример
:
Для
жесткости
воды
15
р
H
установить
положение
6
на
пово
-
ротном
потенциометре
.
Это
означает
,
что
время
паузы
рав
-
но
31
секунде
,
т
.
д
.
каждые
31
секунду
на
короткое
время
открывается
магнитный
клапан
.
Жестко
смонтированное
подсоединение
к
электриче
-
ской
сети
Электрическое
подсоединение
с
помощью
штекерного
разъема
/
розетки
Первый
ввод
в
эксплуатацию
Мероприятия
до
ввода
в
эксплуатацию
a
b
c
d
Защита
от
образования
накипи
Жесткость
воды
(°dH)
5
10
15
20
25
Шкала
поворотного
по
-
тенциометра
8
7
6
5
4,5
Время
паузы
(
секунд
)
50
40
31
22
16
b
c
a
a
270
RU
-
17
Регулировка
времени
готовности
к
работе
происходит
на
большой
плате
на
левой
боковой
стенке
электрического
шка
-
фа
.
На
заводе
-
изготовителе
время
готовности
к
работе
устанав
-
ливается
на
минимальное
значение
,
равное
2
минутам
,
и
мо
-
жет
быть
увеличено
максимально
до
8
минут
.
Регулировка
времени
готовности
к
работе
8 7 6 5 4 3 2 1
S2
min.
max.
271
RU
-
18
Рис
. 3
Монтажный
материал
1 2 3 4 5 6 7 8 9 10 12 13
21 20 19 18 17 16 15 14
11b 11a
11d
11c
A
B 19a
24
11a
23
22
11b
1060 (1124)
~1050
600
Поз
.
Монтажный
материал
№
заказа
:
1
Угловое
резьбовое
соединение
6.386-356
2
Колено
трубы
для
отвода
топочного
га
-
за
, 90°
7.234-605
Колено
трубы
для
отвода
топочного
га
-
за
, 45°
7.234-604
3
Труба
для
отвода
топочного
газа
7.234-603
4
Прерыватель
трубы
для
отвода
топоч
-
ного
газа
HDS 9/14-4
4.656-080
Прерыватель
трубы
для
отвода
топоч
-
ного
газа
HDS 12/14-4
4.656-079
5
Тепловая
изоляция
6.286-114
6
Главный
выключатель
6.631-455
7
Комплект
трубопроводов
,
оцинкован
-
ная
сталь
2.420-004
Комплект
трубопроводов
,
высококаче
-
ственная
сталь
2.420-006
8
Комплект
деталей
дистанционного
управления
2.744-008
9
Комплект
деталей
аварийного
выклю
-
чателя
2.744-002
10
Т
-
образное
резьбовое
соединение
6.386-269
11a
Соединительные
штуцеры
,
латунь
2.638-180
Соединительные
штуцеры
,
высокока
-
чественная
сталь
2.638-181
11b
Запорный
кран
номинальным
внутрен
-
ним
диаметром
NW 8,
оцинкованная
сталь
4.580-144
Запорный
кран
номинальным
внутрен
-
ним
диаметром
NW 8,
высококачест
-
венная
сталь
4.580-163
11c
Неподвижная
часть
быстроразъемного
соединения
6.463-025
11d
Подвижная
часть
быстроразъемного
соединения
6.463-023
Поз
.
Монтажный
материал
№
заказа
:
12
Держатель
шланга
2.042-001
13
Барабан
для
намотки
шланга
2.637-238
14
Шланг
высокого
давления
10
м
.
6.388-083
15
Ручной
пистолет
-
распылитель
Easypress
4.775-463
Регулятор
настройки
HDS 9/14-4
4.775-470
Регулятор
настройки
HDS 12/14-4
4.775-471
16
Держатель
струйной
трубки
2.042-002
17
Струйная
трубка
4.760-550
18
Мундштук
форсунки
HDS 9/14-4
2.883-402
Мундштук
форсунки
HDS 12/14-4
2.883-406
19
Водяной
шланг
4.440-282
19a
Магнитный
клапан
линии
подачи
воды
4.743-011
20
Бак
с
моющим
средством
, 60
л
5.070-078
21
Бак
с
жидким
топливом
, 600
л
6.392-050
22
Комплект
деталей
стенного
кронштейна
2.053-005
Комплект
деталей
наземной
станины
2.210-008
23
Шланг
высокого
давления
6.389-028
24
Хомут
трубы
6.373-374
272
RU
-
19
Настоящим
мы
заявляем
,
что
нижеуказанный
прибор
по
своей
концепции
и
конструкции
,
а
также
в
осуществленном
и
допу
-
щенном
нами
к
продаже
исполнении
отвечает
соответствую
-
щим
основным
требованиям
по
безопасности
и
здоровью
согласно
директивам
ЕС
.
При
внесении
изменений
,
не
согла
-
сованных
с
нами
,
данное
заявление
теряет
свою
силу
.
5.957-054
Нижеподписавшиеся
лица
действуют
по
поручению
и
по
до
-
веренности
руководства
предприятия
.
уполномоченный
по
документации
:
S. Reiser
Alfred Kaercher GmbH & Co. KG
Alfred-Kaercher-Str. 28 - 40
71364 Winnenden (Germany)
Тел
.: +49 7195 14-0
Факс
: +49 7195 14-2212
Winnenden, 2014/02/01
В
каждой
стране
действуют
гарантийные
условия
,
изданные
уполномоченной
организацией
сбыта
нашей
продукции
в
данной
стране
.
Возможные
неисправности
прибора
в
тече
-
ние
гарантийного
срока
мы
устраняем
бесплатно
,
если
при
-
чина
заключается
в
дефектах
материалов
или
ошибках
при
изготовлении
.
Заявление
о
соответствии
ЕС
Продукт
Моющий
прибор
высокого
давления
с
функцией
пара
Тип
:
1.698-xxx
Тип
:
1.699-xxx
Основные
директивы
ЕС
97/23/EC
2006/42/EC (+2009/127/EC)
2004/108/EC
Категория
узла
II
Способ
соответствия
Модуль
H
Нагревательный
змеевик
Оценка
соответствия
модуля
H
Предохранительный
клапан
Оценка
соответствия
Ст
. 3
абз
. 3
Блок
управления
Оценка
соответствия
модуля
H
различные
трубопроводы
Оценка
соответствия
Ст
. 3
абз
. 3
Примененные
гармонизированные
нормы
EN 55014–1: 2006+A1: 2009+A2: 2011
EN 55014–2: 1997+A1: 2001+A2: 2008
EN 60335–1
EN 60335–2–79
EN 61000–3–2: 2006+A1: 2009+A2: 2009
HDS 12/14:
EN 61000–3–3: 2008
HDS 9/14:
EN 61000–3–11: 2000
Примененные
спецификации
:
AD 2000
по
образцу
TRD 801
по
образцу
Название
ответственного
представи
-
тельства
:
Для
97/23/EG
TÜV Rheinland Industrie Service GmbH
Am Grauen Stein
51105 Köln
Код
0035
CEO
Head of Approbation
Гарантия
273
RU
-
20
Сервисная
служба
Тип
установки
:
Заводской
№
:
Введен
в
эксплуатацию
:
Дата
проведения
проверки
:
Результат
:
Подпись
Дата
проведения
проверки
:
Результат
:
Подпись
Дата
проведения
проверки
:
Результат
:
Подпись
Дата
проведения
проверки
:
Результат
:
Подпись
274
RU
-
21
Указание
:
Необходимо
придерживаться
рекомендуемых
сроков
проверки
,
соответствующих
национальным
требова
-
ниями
страны
эксплуатационника
.
Периодические
проверки
Дата
проведения
проверки
:
Внешний
осмотр
Внутренний
осмотр
Испытание
на
про
-
чность
Имя
Подпись
лица
,
прошед
-
шего
обучение
/
дата
Подпись
лица
,
прошед
-
шего
обучение
/
дата
Подпись
лица
,
прошед
-
шего
обучение
/
дата
Имя
Подпись
лица
,
прошед
-
шего
обучение
/
дата
Подпись
лица
,
прошед
-
шего
обучение
/
дата
Подпись
лица
,
прошед
-
шего
обучение
/
дата
Имя
Подпись
лица
,
прошед
-
шего
обучение
/
дата
Подпись
лица
,
прошед
-
шего
обучение
/
дата
Подпись
лица
,
прошед
-
шего
обучение
/
дата
Имя
Подпись
лица
,
прошед
-
шего
обучение
/
дата
Подпись
лица
,
прошед
-
шего
обучение
/
дата
Подпись
лица
,
прошед
-
шего
обучение
/
дата
Имя
Подпись
лица
,
прошед
-
шего
обучение
/
дата
Подпись
лица
,
прошед
-
шего
обучение
/
дата
Подпись
лица
,
прошед
-
шего
обучение
/
дата
Имя
Подпись
лица
,
прошед
-
шего
обучение
/
дата
Подпись
лица
,
прошед
-
шего
обучение
/
дата
Подпись
лица
,
прошед
-
шего
обучение
/
дата
Имя
Подпись
лица
,
прошед
-
шего
обучение
/
дата
Подпись
лица
,
прошед
-
шего
обучение
/
дата
Подпись
лица
,
прошед
-
шего
обучение
/
дата
Имя
Подпись
лица
,
прошед
-
шего
обучение
/
дата
Подпись
лица
,
прошед
-
шего
обучение
/
дата
Подпись
лица
,
прошед
-
шего
обучение
/
дата
Имя
Подпись
лица
,
прошед
-
шего
обучение
/
дата
Подпись
лица
,
прошед
-
шего
обучение
/
дата
Подпись
лица
,
прошед
-
шего
обучение
/
дата
Имя
Подпись
лица
,
прошед
-
шего
обучение
/
дата
Подпись
лица
,
прошед
-
шего
обучение
/
дата
Подпись
лица
,
прошед
-
шего
обучение
/
дата
Имя
Подпись
лица
,
прошед
-
шего
обучение
/
дата
Подпись
лица
,
прошед
-
шего
обучение
/
дата
Подпись
лица
,
прошед
-
шего
обучение
/
дата
275
RU
-
1
A készülék els
ő
használata el
ő
tt olvassa el ezt az ere-
deti használati utasítást, ez alapján járjon el és tartsa
meg a kés
ő
bbi használatra vagy a következ
ő
tulajdonos számá-
ra.
–
Az els
ő
üzembe helyezés el
ő
tt mindenképpen olvassa el az
5.956-309 sz. biztonsági utasításokat!
–
Szállítási sérülések esetén azonnal tájékoztassa a kereske-
d
ő
t.
Megjegyzések a tartalmazott anyagokkal kapcsolatban
(REACH)
Aktuális információkat a tartalmazott anyagokkal kapcsolatosan
a következ
ő
címen talál:
www.kaercher.com/REACH
Balesetveszély
Azonnal fenyeget
ő
veszély, amely súlyos testi sérüléshez vagy
halálhoz vezet.
몇
Figyelem!
Esetlegesen veszélyes helyzet, amely súlyos testi sérüléshez
vagy halálhoz vezethet.
Vigyázat
Esetlegesen veszélyes helyzet, amely könny
ű
sérüléshez vagy
kárhoz vezethet.
A magasnyomású vízsugár nem rendeltetésszer
ű
használat esetén veszélyes lehet. A vízsugarat soha
ne irányítsa személyek, állatok, aktív elektromos sze-
relvények vagy maga a készülék felé.
–
Vegye figyelembe az adott nemzeti törvényhozó folyadék su-
gárszóró berendezésekre vonatkozó el
ő
írásait.
–
Vegye figyelembe az adott nemzeti törvényhozó balesetmeg-
el
ő
zésre vonatkozó el
ő
írásait. A folyadék sugárszóró beren-
dezéseket rendszeresen ellen
ő
rizni kell, és az ellen
ő
rzés
eredményét írásban rögzíteni kell.
–
A készülék melegít
ő
berendezése tüzel
ő
berendezés. A tüze-
l
ő
berendezéseket rendszeresen ellen
ő
rizni kell az adott nem-
zeti törvényhozó el
ő
írásai alapján.
–
A berendezés helyiségekben való üzemeltetése esetén gon-
doskodni kell a füstgázok veszélytelen elvezetésér
ő
l (füst-
gázcs
ő
huzatmegszakító nélkül). Továbbá elegend
ő
friss
leveg
ő
ellátásnak kell lenni.
–
A nemzeti el
ő
írásoknak megfelel
ő
en a magasnyomású tisztí-
tóberendezést ipari használat esetén el
ő
ször egy erre jogo-
sult személynek kell üzembe helyezni. KÄRCHER ezt az els
ő
üzembevételt elvégezte és dokumentálta Önnek. Ezt a doku-
mentációt kérésre a KÄRCHER partnerén keresztül kaphatja
meg. Kérjük, a dokumentáció kérésekor készítse el
ő
a készü-
lék alkatrész- és gyártási számát.
–
Utalunk arra, hogy a készüléket a nemzeti el
ő
írásoknak meg-
felel
ő
en rendszeresen egy erre jogosult személynek ellen-
ő
rizni kell. Kérjük, ezzel forduljon KÄRCHER partneréhez.
–
Vegye figyelembe a biztonsági el
ő
írásokat, amelyek a hasz-
nálatos tisztítószereknél mellékelve vannak (általában a cso-
magolás címkéjén).
Tartalomjegyzék
Környezetvédelem . . . . . . .
HU . . 1
Szimbólumok az üzemeltetési útmutatóban
HU . . 1
Szimbólumok a készüléken.
HU . . 1
Általános biztonsági el
ő
írások
HU . . 1
Rendeltetésszer
ű
használat
HU . . 2
Funkció . . . . . . . . . . . . . . . .
HU . . 2
Biztonsági berendezések . .
HU . . 2
Készülék elemek . . . . . . . . .
HU . . 3
Üzembevétel . . . . . . . . . . . .
HU . . 4
Használat . . . . . . . . . . . . . .
HU . . 4
Üzemen kívül helyezés . . . .
HU . . 6
Leállítás. . . . . . . . . . . . . . . .
HU . . 6
Tárolás . . . . . . . . . . . . . . . .
HU . . 6
Szállítás. . . . . . . . . . . . . . . .
HU . . 6
M
ű
szaki adatok . . . . . . . . . .
HU . . 7
Ápolás és karbantartás . . . .
HU . . 9
Segítség üzemzavar esetén
HU . 11
Tartozékok. . . . . . . . . . . . . .
HU . 13
Berendezés installációja . . .
HU . 14
EK konformitási nyiltakozat .
HU . 17
Garancia . . . . . . . . . . . . . . .
HU . 17
Szerviz . . . . . . . . . . . . . . . .
HU . 18
Ismétl
ő
d
ő
ellen
ő
rzések . . . .
HU . 19
Környezetvédelem
A csomagolási anyagok újrahasznosíthatók. Kérjük,
ne dobja a csomagolást a házi szemétbe, hanem vi-
gye el egy újrahasznosító helyre.
A használt készülékek értékes újrahasznosítható
anyagokat tartalmaznak, amelyeket újrahasznosító
helyen kell elhelyezni. Az elemeknek, olajnak és ha-
sonló anyagoknak nem szabad a környezetbe kerülni.
Ezért kérjük, a használt készülékeket megfelel
ő
gy
ű
j-
t
ő
rendszeren keresztül távolítsa el.
Kérjük, a motorolajat, f
ű
t
ő
olajat és benzint ne hagyja a környe-
zetbe jutni. Kérjük, óvja a padlózatot és a fáradt olajat környe-
zetkímél
ő
módon távolítsa el.
A Kärcher tisztítószerek könnyen elválaszthatók (ASF). Ez azt
jelenti, hogy az olajelválasztó funkcióját nem gátolja. Az ajánlott
tisztítószerek listáját a „Tartozékok“ fejezetben találja.
Szimbólumok az üzemeltetési útmutatóban
Szimbólumok a készüléken
Égési sérülésveszély! Figyelmeztetés forró al-
katrészekre.
Általános biztonsági el
ő
írások
276
HU
-
2
A készülék installációja el
ő
tt egyeztetni kell a kerületi kémény-
sepr
ő
mesterrel.
Az installációnál figyelembe kell venni az építési jogot, a iparjogot
és az imisszióvédelmet. Utalunk az alábbiakban felsorolt el
ő
írá-
sokra, irányelvekre és szabványokra:
–
A készüléket csak szaküzemnek szabad installálni az adott
nemzeti el
ő
írások alapján.
–
Az elektromos bekötéseknél figyelembe kell venni a törvény-
alkotó adott nemzeti el
ő
írásait.
–
Beállításokat, karbantartási munkákat és javításokat az ég
ő
-
fejen csak képzett Kärcher-szerviz szerel
ő
knek szabad elvé-
gezni.
–
A kémény tervezésénél figyelembe kell venni a helyileg ér-
vényben lév
ő
irányelveket.
A munkahely a kezel
ő
pultnál található. További munkahelyek ta-
lálhatók a berendezés felépítését
ő
l függ
ő
en a kiegészít
ő
készü-
lékeknél (szóró berendezések), amelyeket a vízvételi pontokon
kötnek be.
–
A visszafröccsen
ő
víz vagy szennyez
ő
dés elleni védelemhez
viseljen alkalmas véd
ő
ruházatot és véd
ő
szemüveget.
A készülék arra szolgál, hogy egy szabadon kilép
ő
vízsugár se-
gítségével felületekr
ő
l a szennyez
ő
dést eltávolítsa. Különöskép-
pen gépek, járm
ű
vek és homlokzatok tisztítására használják.
Veszély
Sérülésveszély! Benzinkutaknál vagy más veszélyes területeken
való használat esetén vegye figyelembe a megfelel
ő
biztonsági
el
ő
írásokat.
–
A hideg víz a motor h
ű
t
ő
berendezésén és az úszótartályon
keresztül a magasnyomású szivattyú szívó oldalára jut. Az
úszótartályban vízlágyítót adagol hozzá. A szivattyú a vizet
és a felszívott tisztítószert az átfolyós vízmelegít
ő
n keresztül
szállítja. A vízhez kevert tisztítószer arányát egy adagolósze-
leppel lehet beállítani. Az átfolyós vízmelegít
ő
t egy ég
ő
fej f
ű
ti.
–
A magasnyomású kimenetet az épületben meglév
ő
magas-
nyomású hálózatra kell rákötni. Ennek a hálózatnak a vízvé-
teli pontjánál kell bekötni egy magasnyomású töml
ő
vel a kézi
szórófejet.
A biztonsági berendezések a felhasználó védelmét szolgálják és
nem szabad
ő
ket hatályon kívül helyezni vagy m
ű
ködésükben
megkerülni.
A vízhiány biztosíték megakadályozza, hogy a magasnyomású
szivattyú vízhiány esetén bekapcsolódjon.
A vízhiány biztosíték megakadályozza az ég
ő
fej túlmelegedését
vízhiány estén. Az ég
ő
fej csak elegend
ő
vízellátás mellett üze-
mel.
A nyomás kapcsoló a munkanyomás túllépése esetén kikapcsol-
ja a készüléket. A beállítást nem szabad megváltoztatni.
A nyomás kapcsoló meghibásodása esetén kinyílik a biztonsági
szelep. Ez a szelep gyárilag van beállítva és leplombálva. A be-
állítást nem szabad megváltoztatni.
Tüzel
ő
anyag hiány vagy az ég
ő
fej üzemzavara esetén a láng fi-
gyelés kikapcsolja az ég
ő
fejet. Az ég
ő
fej üzemzavar kontroll lám-
pája (E) kigyullad.
Ha az ég
ő
fej motorja leáll, a túláram védelem kapcsoló kiold. A
magasnyomású szivattyú motorja motor véd
ő
kapcsolóval és te-
kercselés véd
ő
kapcsolóval van biztosítva.
A szennygáz termosztát akkor old ki, ha a szennygáz h
ő
mérsék-
let 300 °C fölé emelkedik. A készülék kikapcsol.
A készülék kikapcsolás után a kézi szórópisztolyon keresztül, az
üzemkészenléti id
ő
lejárta után, egy magasnyomású rendszer-
hez kapcsolódó mágnes szelep nyílik ki, amelyen keresztül a
nyomás csökken.
El
ő
írások, irányelvek és szabályok
Munkahelyek
Személyes véd
ő
felszerelés
Olyan alkatrészek esetén amelyek tisztításnál
feler
ő
sítik a zajt viseljen fülvéd
ő
t a halláskároso-
dás megel
ő
zésére.
Rendeltetésszer
ű
használat
Kérem, ásványolajat tartalmazó szennyvizet ne engedjen a föld-
be, vizekbe vagy a csatornába. Motormosást vagy alapzat mo-
sást ezért kérjük, hogy csak erre alkalmas, olajleválasztóval
ellátott, helyen végezzen.
Funkció
Biztonsági berendezések
Vízhiány biztosíték úszótartály
Vízhiány biztosíték biztosíték tömb
Nyomás kapcsoló
Biztonsági szelep
Láng figyelés
Túláram védelem
Füstgáz termosztát
A magasnyomású rendszer nyomás mentesítése
277
HU
-
3
1. ábra
1 Ég
ő
fej
2 Manométer
3 Friss víz ellátás sz
ű
r
ő
vel
4 Magasnyomású kimenet
5 Tüzel
ő
anyag vezeték befolyó
6 Tüzel
ő
anyag vezeték kifolyó
7 Tisztítószer szívócs
ő
I
8 Tisztítószer-szívócs
ő
II (opció)
9 Vízlágyító tartály
10 Elektromos ellátó vezeték
11 Úszótartály
12 Kezel
ő
pult
2. ábra
A Készülékkapcsoló
B H
ő
mérséklet szabályozó
C Tisztítószer adagoló szelep I
D Tisztítószer adagoló szelep II (opció)
E Kontroll lámpa ég
ő
fej üzemzavar
F Kontroll lámpa üzemkész állapot
G Kontroll lámpa motor túlmelegedés
H Kontroll lámpa vízk
ő
védelem
I
Tömít
ő
- kinyitó gomb ég
ő
fej motor
Készülék elemek
6
5
7
8
3
4
9
11
10
1
12
2
Kezel
ő
pult
278
HU
-
4
몇
Veszély
Sérülésveszély! A készüléknek, vezetékeknek, magasnyomású
töml
ő
knek és csatlakozásoknak kifogástalan állapotban kell len-
ni. Ha a készülék állapota nem kifogástalan, akkor nem szabad
használni.
–
A csatlakozási értékeket lásd a M
ű
szaki adatoknál és a Típus
táblán.
–
Az elektromos csatlakozást villanyszerel
ő
nek kell elvégezni
és meg kell felelnie az IEC 60364-1-nek.
A felhasználónak rendeltetésszer
ű
en kell használnia a készülé-
ket. Figyelembe kell venni a helyi viszonyokat, és a készülékkel
történ
ő
munkavégzés során ügyelni kell másokra, f
ő
ként a gye-
rekekre.
A készüléket nem szabad felügyelet nélkül hagyni, amíg üzemel.
Balesetveszély
–
Forrázásveszély forró víz által! A vízsugarat ne irányítsa sze-
mélyek vagy állatok felé.
–
Égési sérülésveszély a berendezés forró alkatrészei által!
Forró víz üzemnél ne érjen a nem szigetelt cs
ő
vezetékekhez
és a töml
ő
khöz. A sugárcsövet csak a markolatnál fogja. Ne
érjen az átfolyós vízmelegít
ő
füstgáz cs
ő
csonkjához.
–
Mérgezés- vagy marásveszély tisztítószerek által! Vegye fi-
gyelembe a tisztítószerekre vonatkozó javaslatokat. A tisztí-
tószerek illetéktelenek számára nem hozzásférhet
ő
módon
tárolja.
Balesetveszély
Életveszély áramütés által! Ne irányítsa a vízsugarat a következ
ő
berendezések felé:
–
Elektromos készülékek és berendezések,
–
magára erre a berendezésre,
–
semmilyen áramvezet
ő
alkatrészre a munkaterületen.
A sugárcs
ő
b
ő
l kilép
ő
vízsugár által visszalök
ő
er
ő
keletkezik. A
hajlított sugárcs
ő
miatt ez az er
ő
felfelé hat.
Balesetveszély
–
Sérülésveszély! A sugárcs
ő
visszalök
ő
ereje kibillentheti Önt
egyensúlyából. Ön eleshet. A sugárcs
ő
elrepülhet és szemé-
lyek sérülését okozhatja. Keressen egy biztos helyet és fogja
er
ő
sen a szórópisztolyt. A kézi szórópisztoly karját soha ne
szorítsa le.
–
A vízsugarat nem szabad másokra vagy saját magára irányí-
tani ruházat vagy lábbeli tisztítása céljából.
–
Sérülésveszély elrepül
ő
tárgyak által! Elrepül
ő
letört darabok
vagy tárgyak személyek vagy állatok sérülését okozhatják.
Ne irányítsa a vízsugarat törékeny vagy szabadon álló tár-
gyak felé.
–
Balesetveszély rongálódás következtében! Gumiabroncsokat
és szelepeket minimum 30 cm távolságból tisztítsa.
몇
Figyelem!
Veszély egészségre ártalmas anyagok által! A következ
ő
anya-
gokat ne permetezze le, mivel egészségre ártalmas anyagok ka-
varodhatnak fel:
–
azbeszt tartalmú anyagok,
–
Olyan anyagok, amelyek egészségre ártalmas anyagokat tar-
talmazhatnak.
Balesetveszély
–
Sérülésveszély a kiáramló, esetlegesen forró vízsugár által!
Csak az eredeti Kärcher-magasnyomású töml
ő
k vannak op-
timálisan beállítva a berendezéshez. Más töml
ő
k használata
esetére nem vállalunk garanciát.
–
Egészségi ártalom tisztítószerek által! Az adott esetben hoz-
zákevert tisztítószer miatt a készülékb
ő
l kijöv
ő
víznek nincs
ivóvíz min
ő
sége.
–
Halláskárosodás veszélye zaj feler
ő
sít
ő
alkatrészeken való
munka által! Ebben az esetben viseljen fülvéd
ő
t.
Veszély
Sérülésveszély a kiáramló, esetlegesen forró vízsugár által!
Balesetveszély
Ellen
ő
rize a nagynyomású töml
ő
épségét minden használat el
ő
tt.
A sérült nagynyomású töml
ő
t azonnal ki kell cserélni.
Minden használat el
ő
tt ellen
ő
rizze a magasnyomású töml
ő
t,
cs
ő
vezetékeket, szerelvényeket és a sugárcsövet, hogy nem
rongálódtak-e meg.
Ellen
ő
rizze a töml
ő
kapcsolat biztos elhelyezkedését és víz-
záróságát.
Vigyázat
Rongálódásveszély szárazmenet által.
Ellen
ő
rizze a tisztítószer tartály szintjét és szükség szerint
töltsön utána.
Ellen
ő
rizze a vízlágyító tartály szintjét és szükség szerint tölt-
sön utána.
Fordítsa a készülékkapcsolót (A) „0“ -ra.
Zárja el a víztápláló-vezetéket.
Nyomja meg a kézi szórópisztolyt, amíg a készülék nyomás
mentes lesz.
A mennyiségszabályozó szelep óramutató járásával egy
irányba történ
ő
tekerése magasabb munkanyomást és na-
gyobb szállított mennyiséget eredményez.
Üzembevétel
Áram csatlakozás
Használat
Biztonsági tanácsok
!
Az üzemképes állapotba hozás
Kikapcsolás vészhelyzetben
A munkanyomás és a szállított mennyiség beállítása
Beállítás a készüléken
R
279
HU
-
5
A mennyiségszabályozó szelep óramutató járásával ellenté-
tes irányba történ
ő
tekerése alacsonyabb munkanyomást és
kisebb szállított mennyiséget eredményez.
A vízmennyiségszabályozó szelep jobbra fordítása nagyobb
szállított mennyiséget és magasabb munkanyomást eredmé-
nyez.
A vízmennyiségszabályozó szelep balra fordítása kisebb
szállított mennyiséget és alacsonyabb munkanyomást ered-
ményez.
Nyissa ki a vízvezetéket.
Szimbólum „Motor be“
A kézi szórópisztoly karját húzza meg és a készülékkapcsolót
(A) állítsa „1“ -re (Motor be).
Az üzemkész állapot kontroll lámpája (F) üzemkész állapotot
jelez.
Veszély
Forrázásveszély!
Vigyázat
Tüzel
ő
anyag nélküli forró víz üzem a tüzel
ő
anyag szivattyú ron-
gálódásához vezet. A forró víz üzem el
ő
tt biztosítsa a tüzel
ő
-
anyag ellátást.
Az ég
ő
fejet szükség szerint be lehet kapcsolni.
Szimbólum „Ég
ő
fej be“
Állítsa a készülékkapcsolót (A) „Ég
ő
fej be“ -re.
A kívánt vízh
ő
mérsékletet a h
ő
mérséklet szabályozóval (B)
állítsa be. Maximális vízh
ő
mérséklet 98 °C.
Veszély
Forrázásveszély! 98 °C munkah
ő
mérséklet felett a munkanyo-
más nem haladhatja meg a 3,2 MPa-t (32 bar).
Forró víz üzemr
ő
l g
ő
züzemre való átszereléskor a készüléket le
kell h
ű
teni és ki kell kapcsolni. Az átszerelést a következ
ő
képpen
kell elvégezni:
Cserélje a magasnyomású szórófejet g
ő
z szórófejre (tar-
tozék).
Állítsa a h
ő
mérséklet szabályozót 150 °C-ra.
A mennyiségszabályozó szelepet a magasnyomású szivat-
tyún állítsa a minimális vízmennyiségre (fordítsa az óra járá-
sával ellenkez
ő
irányba).
A mennyiségszabályozó szelepet a magasnyomású szivat-
tyún állítsa a maximális vízmennyiségre (fordítsa az óra járá-
sával megegyez
ő
irányba).
A vízmennyiség szabályozót az Easypress pisztolyon balra
forgatással állítsa minimális vízmennyiségre.
–
Ha az üzem alatt a kézi szórópisztoly karját elengedi, a ké-
szülék kikapcsol.
–
A pisztoly ismételt megnyitásával a beállított üzemkészenléti
id
ő
n belül (2…8 perc) a készülék magától ismét újraindul.
–
Ha az üzemkészenléti id
ő
t átlépi, a biztonsági id
ő
kapcsoló ki-
kapcsolja a szivattyút és az ég
ő
fejet. Az üzemkész állapot
kontroll lámpája (F) kialszik.
–
Az ismételt üzembevételhez a készülékkapcsolót állítsa „0“-
ra, azután ismét kapcsolja be. Ha a készüléket távirányítóval
vezérli, akkor az ismételt üzembevételt a távirányító megfele-
l
ő
kapcsolójával is el lehet végezni.
–
Járm
ű
abroncsokat csak a lapos sugarú szórófejjel (25°) és
legalább 30 cm-es szórási távolságból szabad tisztítani. A ke-
rek sugárral semmiképpen sem szabad gumiabroncsokat
tisztítani.
Minden más feladatra a következ
ő
szórófejek állnak rendelke-
zésre:
Több, mint 20 m cs
ő
vezetéknél vagy több, mint 2 x 10 m NW 8
magasnyomású töml
ő
nél a következ
ő
szórófejeket használja:
Beállítás az Easypress pisztolyon (opció)
Használat hideg vízzel
Használat forró vízzel
Használat g
ő
zzel
Megrendelési szám
Típus
4.766-023
HDS 9/14
4.766-024
HDS 12/14
Easypress piszoly nélkül
Easypress pisztollyal (opció)
Üzemkész állapot
Szórófej választék
Szennye-
z
ő
dés
Fúvóka
Szórási
szög
Alkat-
rész
szám
6.415
Nyomás
[MPa]
Vissza-
lök
ő
er
ő
[N]
HDS 9/14
er
ő
s
00060
0°
-257
14
44
közepes
25060
25°
-295
könny
ű
40060
40°
-301
HDS 12/14
er
ő
s
00080
0°
-150
14
55
közepes
25080
25°
-152
könny
ű
40080
40°
-153
280
HU
-
6
–
A tisztítószerek megkönnyítik a tisztítási feladatot. Ezeket egy
küls
ő
tisztítószer tartályból szívja fel.
–
A készülék alapfelszerelésben egy adagoló szeleppel (C) van
ellátva. Második adagoló berendezés (D adagoló szelep) kü-
lönleges tartozékként kapható. Ekkor fennáll a lehet
ő
sége,
hogy két különböz
ő
tisztítószert szívjon fel.
–
Az adagolás mennyiséget a tisztítószer adagolási szelepe-
ken (C vagy D) a kezel
ő
pulton lehet beállítani. A beállított ér-
ték megfelel a tisztítószer százalékos arányának.
–
A küls
ő
skála hígítatlan tisztítószerek (100 % CHEM) haszná-
latánál érvényes.
–
A bels
ő
skála 1+3 el
ő
hígított tisztítószerek (25 % CHEM + 75
% víz) használatánál érvényes.
A következ
ő
táblázat a küls
ő
skála értékeihez tartozó tisztítószer
felhasználást mutatja:
A pontos adagolási mennyiség a következ
ő
kt
ő
l függ:
–
A tisztítószer viszkozitásától
–
Felszívási magasság
–
A magasnyomású vezeték áramlási ellenállása
Ha pontos adagolásra van szükség, akkor ki kell mérni a felszí-
vott tisztítószer mennyiséget (pl. mér
ő
pohárból való felszívás ál-
tal).
Megjegyzés:
Tisztítószer ajánlásokat a „Tartozékok“ fejezetben
talál.
Vigyázat
Vízlágyító nélküli üzem esetén az átfolyós vízmelegít
ő
vízköve-
sedhet.
Üres vízlágyító tartály esetén a vízk
ő
védelem kontroll lámpája
(H) villog.
1. ábra - 9. poz.
A vízlágyító tartályt töltse után RM 110 (2.780-001) vízlágyító
folyadékkal.
Veszély
Forrázásveszély forró víz által! Forró vízzel vagy g
ő
zzel történ
ő
üzem után a készüléket lehülés céljából legalább két percig hi-
deg vízzel, nyitott kézi szórópisztollyal kell üzemeltetni.
Forró víz üzemnél a h
ő
mérséklet szabályozót (B) állítsa a leg-
alacsonyabb h
ő
mérsékletre.
Használja a készüléket legalább 30 másodpercig tisztítószer
nélkül.
Fordítsa a készülékkapcsolót (A) „0“ -ra.
Zárja el a víztápláló-vezetéket.
Nyomja meg a kézi szórópisztolyt, amíg a készülék nyomás
mentes lesz.
Biztosítsa a kézi szórópisztolyt a biztonsági pecekkel vélet-
lenszer
ű
kinyitás ellen.
Hosszabb üzem szüneteknél vagy ha fagymentes tárolás nem le-
hetséges, a következ
ő
intézkedéseket végezze le (lásd az „Ápo-
lás és karbantartás“ fejezet, „Fagyás elleni védelem“ részét):
Víz leeresztése.
Öblítse át a készüléket fagyállószerrel
A f
ő
kapcsolót kikapcsolni és biztosítani ill. a Cekon dugós
csatlakozót kihúzni.
Vigyázat
Sérülés- és rongálódásveszély! Tárolás esetén vegye figyelem-
be a készülék súlyát.
Vigyázat
Sérülés- és rongálódásveszély! Szállítás esetén vegye figyelem-
be a készülék súlyát.
Járm
ű
vel történ
ő
szállítás esetén a készüléket az adott irány-
elveknek megfelel
ő
en kell csúszás és borulás ellen biztosíta-
ni.
Szennye-
z
ő
dés
Fúvóka
Szórási
szög
Alkat-
rész
szám
6.415
Nyomás
[MPa]
Vissza-
lök
ő
er
ő
[N]
HDS 9/14
er
ő
s
0075
0°
-419
10
37
közepes
2575
25°
-421
könny
ű
4075
40°
-422
HDS 12/14
er
ő
s
0010
0°
-082
10
46
közepes
2510
25°
-252
könny
ű
4010
40°
-253
Tisztítószer-adagolás
HDS 9/14
Állás
0,5
1
5
Tisztítószer mennyiség [l/h]
14...15 22...24
50
Tisztítószer koncentráció [%]
1,5
2,5
5
HDS 12/14
Állás
0,5
1
5
Tisztítószer mennyiség [l/h]
10...13 23...27
60
Tisztítószer koncentráció [%]
1
2
5
Vízlágyító utántöltése
Üzemen kívül helyezés
Tisztítószeres használat után
A készülék kikapcsolása
Leállítás
Tárolás
Szállítás
281
HU
-
7
M
ű
szaki adatok
HDS 9/14
HDS 12/14
HDS 12/14
1.698-900
1.699-919
1.699-920
Teljesítményre vonatkozó adatok
Víz munkanyomása (standard szórófejjel)
MPa (bar)
14 (140)
14 (140)
14 (140)
Max. munkanyomás g
ő
z üzem (g
ő
z szórófejjel)
MPa (bar)
3,2 (32)
3,2 (32)
3,2 (32)
Alkatrész szám g
ő
z fúvóka
--
4.766-023
4.766-024
4.766-024
Max. üzemi túlnyomás (biztonsági szelep)
MPa (bar)
18,5 (185)
18,5 (185)
18,5 (185)
Szállított vízmennyiség (fokozat nélkül szabályozható)
l/h (l/min)
500-930
(8,3-15,5)
600-1200
(10-20)
600-1200
(10-20)
Szállított mennyiség g
ő
züzem
l/h (l/min)
470 (7,8)
600 (10)
600 (10)
Tisztítószer felszívás (fokozat nélkül szabályozható)
l/h (l/min)
0-50 (0-0,8)
0-60 (0-1)
0-60 (0-1)
Vízcsatlakozás
Hozzáfolyási mennyiség (min.)
l/h (l/min)
1100 (18,3)
1300 (21,7)
1300 (21,7)
Hozzáfolyási nyomás (min.)
MPa (bar)
0,1 (1)
0,1 (1)
0,1 (1)
Hozzáfolyási nyomás (max.)
MPa (bar)
0,6 (6)
0,6 (6)
0,6 (6)
Elektromos csatlakozás
Áramfajta
--
3N~
3N~
3N~
Frekvencia
Hz
50
50
50
Feszültség
V
400
400
230
Csatlakozási teljesítmény
kW
6,4
7,5
8,2
Elektromos biztosíték (lomha)
A
16
20
32
Védelmi fokozat
--
IPX5
IPX5
IPX5
Védelmi osztály
--
I
I
I
Maximális megengedett hálózati impedancia
Ohm
(0,381+j 0,238)
--
--
Elektromos ellátó vezeték
mm
2
5 x 2,5
5 x 2,5
5 x 4
H
ő
mérséklet
Hozzáfolyási h
ő
mérséklet (max.)
°C
30
30
30
Max. munkah
ő
mérséklet forró víz
°C
98
98
98
Max. munkah
ő
mérséklet g
ő
z üzem
°C
155
155
155
H
ő
mérséklet emelkedések max. víz átfolyásnál
°C
56±2
54±2
54±2
Bruttó f
ű
tési teljesítmény
kW
68
85
85
Tüzel
ő
anyag felhasználás
kg/h
5,8
7,1
7,1
Kémény huzat
kPa
0,01-0,04
0,01-0,04
0,01-0,04
Füstgáz-tömegáram - teljes terhelés
kg/h
124
155
155
Méretek és súly
Hossz
mm
1124
1124
1124
szélesség
mm
558
558
558
magasság
mm
687
699
699
Tipikus üzemi súly
kg
164,4
178,8
178,8
Az EN 60355-2-79 szerint megállapított értékek
Zaj kibocsátás
Hangnyomás szint L
pA
dB(A)
74
76
76
Bizonytalanság K
pA
dB(A)
1
1
1
Kéz-kar vibrációs kibocsátási érték
Kézi szórópisztoly
m/s
2
2,2
2,3
2,3
Sugárcs
ő
m/s
2
1,8
2,1
2,1
Bizonytalanság K
m/s
2
1,0
1,0
1,0
282
HU
-
8
Méret lap
6
8
7
/ 6
9
9
505
558
1124
246
158
1060
47
141
61
77
46
200
300
1018±2
283
HU
-
9
Balesetveszély
Sérülésveszély! Minden karbantartási- és javítási munka el
ő
tt ki
kell kapcsolni a f
ő
kapcsolót ill. ki kell húzni a Cekon csatlakozót.
Ápolás és karbantartás
Karbantartási terv
Id
ő
pont
Tevékenység
érintett részegység
Megvalósítás
ki végzi
naponta
Kézi szórópisz-
toly ellen
ő
rzése
Kézi szórópisztoly
Ellen
ő
rizze, hogy a kézi szórópisztoly tömítése
jól zár-e. Ellen
ő
rizze a biztosíték funkcióját aka-
ratlan használat ellen. Cserélje ki a hibás kézi
szórópisztolyokat.
Kezel
ő
Magasnyomású
töml
ő
k ellen
ő
r-
zése
Kimeneti vezetékek, töml
ő
k a
munkakészülékhez
Vizsgálja meg a töml
ő
ket esetleges sérülésekre.
A sérült töml
ő
ket azonnal cserélje ki. Balesetve-
szély!
Kezel
ő
A hálózati dugós
csatlakozóveze-
ték ellen
ő
rzése
Elektromos csatlakozás dugós
kapcsolóval/dugaljjal
A hálózati dugós csatlakozóvezeték károsodását
ellen
ő
rizni. A sérült csatlakozóvezetéket hala-
déktalanul ki kell cseréltetni a vev
ő
szolgálattal/
elektromos szakemberrel.
Kezel
ő
hetente vagy 40
üzemóra után
olajszintet ellen-
ő
rizni
olajtartály a szivattyún
Ha az olaj tejes, ki kell cserélni.
Kezel
ő
Ellen
ő
rizze a
olajszintet
olajtartály a szivattyún
Ellen
ő
rizze a szivattyú olajszintjét. Szükség ese-
tén töltsön utána olajat (megrend. szám 6.288-
016).
Kezel
ő
Tisztítsa ki a
sz
ű
r
ő
t
Tisztítsa ki a víz bemenet sz
ű
-
r
ő
jét.
Lásd a „Sz
ű
r
ő
k tisztítása“ részt.
Kezel
ő
havonta vagy 200
üzemóra után
Tisztítsa meg és
ellen
ő
rizze a
gyújtó elektródá-
kat
Gyújtó elektródák az átfolyós
vízmelegít
ő
fedelében
Csavarja le a tüzel
ő
anyag vezetéket, vegye ki az
elektróda tartókat és tisztítsa meg az elektródá-
kat. Az elektródákat a következ
ő
oldalon találha-
tó vázlat alapján ellen
ő
rizze és szükség esetén
állítsa be.
Kiképzett ke-
zel
ő
Ellen
ő
rizze a szi-
vattyút
Magasnyomású szivattyú
Vizsgálja meg, hogy a szivattyú nem szivárog-e.
Több, mint 3 csepp per perc esetén hívja a szer-
vizt.
Kezel
ő
ellen
ő
rizze bels
ő
lerakodásokra
teljes berendezés
A készüléket sugárcs
ő
vel magasnyomású szó-
rófej nélkül üzemeltesse. Ha az üzemnyomás a
készülék manométerén 3 MPa fölé emelkedik, a
készüléket vízk
ő
teleníteni kell. Ugyanez érvé-
nyes akkor is, ha magasnyomású vezeték nélküli
üzem esetén (a víz a magasnyomású kimenetnél
szabadon áramlik ki) 0,7–1 MPa feletti üzemnyo-
mást észlelnek.
Kiképzett ke-
zel
ő
a vízk
ő
-
telenítésre
Tisztítsa ki a
sz
ű
r
ő
t
Vízhiány biztosíték sz
ű
r
ő
je
Lásd a „Sz
ű
r
ő
k tisztítása“ részt.
Kezel
ő
félévente vagy
1000 üzemóra
után
Olajcsere
Magasnyomású szivattyú
Olaj leeresztése. 1 l új olajat (megrend. szám
6.288-016) töltsön be. Ellen
ő
rizze a olaj szintet a
tartályban.
Kezel
ő
ellen
ő
rzés, tisztí-
tás
teljes berendezés
A berendezés szemrevételezése, magasnyomá-
sú csatlakozások vízzáróságának ellen
ő
rzése,
túlfolyószelep vízzáróságát ellen
ő
rizni, magas-
nyomású töml
ő
ellen
ő
rzése, nyomástárolót el-
len
ő
rizni, tüzel
ő
anyag sz
ű
r
ő
t tisztítani /
kicserélni, f
ű
t
ő
spirált koromtalanítani / vízk
ő
tele-
níteni, gyújtó elektródákat tisztítani / kicserélni,
ég
ő
fej fúvókát tisztítani / kicserélni, ég
ő
fejet be-
állítani.
Szerviz
évente
Biztonsági ellen-
ő
rzés
teljes berendezés
A törvényhozó folyadéksugárzókra vonatkozó
adott nemzeti el
ő
írásainak megfelel
ő
en a bizton-
sági ellen
ő
rzést elvégezni.
Szakért
ő
legkés
ő
bb 5 éven-
ként ismételten
Nyomásellen
ő
r-
zés
teljes berendezés
A gyártó adatainak megfelel
ő
nyomásellen
ő
rzés
elvégzése.
Szakért
ő
284
HU
-
10
Az illetékes Kärcher-keresked
ő
vel karbantartási szerz
ő
dést köt-
het a készülékre.
1. ábra - 3. poz.
Zárja el a víztápláló-vezetéket.
Csavarja le a víztápláló-vezeték töml
ő
t a készülékr
ő
l.
A sz
ű
r
ő
t egy csavarhúzóval a csatlakozásból tolja ki.
Tisztítsa ki a sz
ű
r
ő
t
Fordított sorrendben szerelje fel ismét.
Vegye le a véd
ő
lemezeket.
Csavarja le a sarokvasat a biztosíték tömbr
ő
l.
Csavarja az M8x30 csavart a sz
ű
r
ő
be.
Fogóval húzza ki a csavart és a sz
ű
r
ő
t.
Tisztítsa ki a sz
ű
r
ő
t
Fordított sorrendben szerelje fel ismét.
A gyújtó elektródákat a következ
ő
adatok szerint kell beállítani:
A cs
ő
vezetékekben lév
ő
lerakódások emelik az áramlási ellenál-
lást, úgy hogy a nyomás kapcsoló kioldódhat.
Veszély
Robbanásveszély éghet
ő
gázok által! Vízk
ő
telenítésnél tilos a
dohányzás. Gondoskodjon a jó szell
ő
zésr
ő
l.
Veszély
Marásveszély savak által! Viseljen véd
ő
szemüveget és véd
ő
-
keszty
ű
t.
Az eltávolításhoz a törvényes el
ő
írásoknak megfelel
ő
en csak el-
len
ő
rzési emblémával ellátott ellen
ő
rzött kazánk
ő
oldószert sza-
bad használni.
–
RM 100 (megrend. szám 6.287-008) oldja a kazánkövet, az
egyszer
ű
vízk
ő
kapcsolatokat és a mosószer maradékokat.
–
RM 101 (megrend. szám 6.287-013) oldja a lerakódásokat,
amelyeket az RM 100-al nem sikerül leoldani.
Töltsön meg egy 20-literes tartályt 15 l vízzel.
Adjon hozzá egy liter kazánk
ő
oldószert.
A víztöml
ő
t kösse közvetlenül a szivattyúfejhez és a szabad
végét lógassa bele a tartályba.
Tegye a bekötött sugárcsövet szórófej nélkül a tartályba.
Nyissa ki a kézi szórópisztolyt és a vízk
ő
telenítés alatt ne zár-
ja be ismét.
A készülékkapcsolót kapcsolja „Ég
ő
fej be“ -re, míg eléri a kb.
40 °C-ot.
Kapcsolja ki a készüléket és hagyja állni 20 percig. A kézi
szórópisztolynak nyitva kell maradni.
A készüléket végezetül szivattyúzza üresre.
Megjegyzés:
A korrózióvédelem és a savmaradékok semlegesí-
tése érdekében ajánljuk, hogy utána alkáli oldatot (pl. RM 81)
pumpáljon át a tisztítószer tartályon keresztül a készüléken.
A készüléket fagytól védett helyiségekben ajánlott felállítani.
Fagyveszély esetén, pl. küls
ő
installációknál, a készüléket ki kell
üríteni és fagyállószerrel át kell öblíteni.
Csavarja le a víztápláló-vezeték töml
ő
t és a magasnyomású
töml
ő
t.
A készüléket max. 1 percig hagyja menni, amíg a szivattyú és
a vezetékek kiürülnek.
A kazán alján a táplálóvezetéket csavarozza le és a f
ű
t
ő
spi-
rált hagyja kiürülni.
Megjegyzés:
Vegye figyelembe a fagyállószer gyártójának az al-
kalmazásra vonatkozó el
ő
írásait.
Teljesen töltse fel az úszótartályt kereskedelmi forgalomban
kapható fagyállószerrel.
A felfogó edényt helyezze a magasnyomás kimenet alá.
Kapcsolja be a készüléket és addig hagyja menni, amíg az
úszó tartály vízhiány biztosítéka üzembe lép és a készülék ki-
kapcsol.
Ez bizonyos fokú korrózió védelmet is biztosít.
Karbantartási szerz
ő
dés
Sz
ű
r
ő
k tisztítása
Sz
ű
r
ő
a vízbementnél
Vízhiány biztosíték sz
ű
r
ő
je
Elektróda beállítása
A
B
C
a
HDS 9/14
4,5±0,5
3,5±0,5
3+0,5
60°
HDS 12/14
3,5±0,5
3,5±0,5
3+0,5
60°
2.
1.
A
B
C
a
Vízk
ő
telenítés
Megvalósítás
Fagyás elleni védelem
Víz leeresztése
Öblítse át a készüléket fagyállószerrel
285
HU
-
11
Balesetveszély
Sérülésveszély! Minden karbantartási- és javítási munka el
ő
tt ki
kell kapcsolni a f
ő
kapcsolót ill. ki kell húzni a Cekon csatlakozót.
*
Megjegyzés
Kapcsolja ki és be a berendezést, hogy az ég
ő
fej üzemzavart fel-
oldja.
**
Segítség üzemzavar esetén
Üzemzavar
Lehetséges ok
Elhárítás
ki végzi
A készülék nem megy, az
üzemkész állapot kontroll
lámpája (F) nem világít.
Nincs feszültség a készülékben.
Ellen
ő
rizze az elektromos hálózatot.
Villanyszerel
ő
Biztonsági id
ő
kapcsoló m
ű
ködik.
A készüléket a készülékkapcsolónál röviden
kapcsolja ki, aztán ismét be.
Kezel
ő
A vezérl
ő
kör biztosítéka (F3) ki-
égett. A biztosíték a vezérl
ő
trafó-
ban (T2) található.
Helyezzen be új biztosítékot, ismételt kiégés-
nél szüntesse meg a túlterhelés okát.
Szerviz
A HD (magas nyomás) vagy az ND
(alacsony nyomás) nyomás kap-
csoló hibás.
Ellen
ő
rizze a nyomás kapcsolót.
Szerviz
Timer Modul (A1) hibás.
Ellen
ő
rizze csatlakozásokat, szükség esetén
cserélje ki.
Szerviz
A szennygáz termosztát (B8) kiol-
dott.
Hagyja leh
ű
lni a berendezést. A szennygáz
termosztátot (B8) kioldani. Szüntesse meg
az üzemzavar okát.
Szerviz
+ Motor túlmelegedés kont-
roll lámpája (G) világít
Thermo érzékel
ő
(WS) a motorban
vagy a túláram védelem kapcsoló-
ja (F1) kioldott.
Szüntesse meg a túlterhelés okát.
Szerviz
A vízhiány biztosíték az úszó tar-
tályban m
ű
ködésbe lépett.
Szüntesse meg a vízhiányt.
Kezel
ő
Az ég
ő
fej nem gyújt vagy az
üzem alatt kialudt a láng
A h
ő
mérséklet szabályozó (B) túl
alacsonyra van állítva.
Állítsa magasabbra a h
ő
mérséklet szabályo-
zót.
Kezel
ő
A készülékkapcsoló nem áll az
ég
ő
fejen.
Kapcsolja be az ég
ő
fejet.
Kezel
ő
M
ű
ködésbe lépett a biztonsági
blokk vízhiány biztosítéka.
Biztosítson elegend
ő
vízellátást. Ellen
ő
rizze
a készüléket vízzáróságra.
Kezel
ő
Az ég
ő
fej üzemzavar kontroll
lámpája (E) kigyullad *
Üres a tüzel
ő
anyag tartály.
Töltse fel a tüzel
ő
anyag tartályt.
Kezel
ő
El van dugulva a tüzel
ő
anyag sz
ű
-
r
ő
.
Tisztítsa meg a tüzel
ő
anyag sz
ű
r
ő
t, ehhez
csavarja ki a tüzel
ő
anyag sz
ű
r
ő
t, tisztítsa
meg és ismét csavarja be.
Kezel
ő
A láng figyelés fotocellája rosszul
van beállítva vagy hibás.
Ellen
ő
rizze a fotocella helyes elhelyezkedé-
sét. **
Kezel
ő
Nincs gyújtószikra (megállapítható
az ég
ő
fej fedél néz
ő
üvegén ke-
resztül).
Ellen
ő
rizze az elektródák távolságát, gyújtó
transzformátort és a gyújtókábelt. Igazítsa
helyre a távolságot vagy cserélje ki a hibás
alkatrészeket. Amennyiben szükséges tisz-
títsa meg.
Szerviz
A ég
ő
fej motorja megakadt.
Szüntesse meg az akadást. Távolítsa el a
dugaszt (I) a kezel
ő
pulton és oldja ki a túl-
áram védelem kapcsolóját. Helyezze be is-
mét a dugaszt.
Szerviz
Hiba az ég
ő
fej szivattyún vagy az
ég
ő
fej mágnes szelepén.
Ellen
ő
rizze az alkatrészeket és a hibás alkat-
részeket cserélje ki.
Kezel
ő
286
HU
-
12
Üzemzavar
Lehetséges ok
Elhárítás
ki végzi
Vízk
ő
védelem kontroll lám-
pája (H) világít
Vízlágyító elfogyott.
Töltsön utána vízlágyítót.
Kezel
ő
Nem elegend
ő
vagy nincs
tisztítószer felszívás.
Állítsa „0“-ra az adagoló szelepet. Állítsa be a tisztítószer adagoló szelepet.
Kezel
ő
Eldugult a tisztítószer sz
ű
r
ő
vagy
üres a tartály.
Tisztítsa ki ill. töltse fel.
Kezel
ő
A tisztítószer-szívócsövek, az ada-
goló szelep vagy a mágnes szelep
szivárog vagy el van záródva.
Ellen
ő
rizze, tisztítsa ki.
Kezel
ő
Az elektronika vagy a mágnes sze-
lep hibás.
Cserélje ki
Szerviz
A készülék nem éri el a teljes
nyomást
A szórófej kopott.
Cserélje ki a szórófejet.
Kezel
ő
Üres a tisztítószer tartály.
Töltsön utána tisztítószert.
Kezel
ő
Nem elegend
ő
a víz.
Biztosítson elegend
ő
vízellátást.
Kezel
ő
A víz bemenet sz
ű
r
ő
je el van du-
gulva.
Ellen
ő
rizze, vegye ki a sz
ű
r
ő
t és tisztítsa ki. Kezel
ő
A tisztítószer adagoló szelep szi-
várog.
Ellen
ő
rizze és tömítse.
Kezel
ő
A tisztítószer adagoló töml
ő
k szi-
várognak.
Cserélje ki
Kezel
ő
Az úszó szelep szorul.
Ellen
ő
rizze a könnyen járását.
Kezel
ő
A biztonsági szelep szivárog.
Ellen
ő
rizze a beállítást, szükség esetén he-
lyezzen bele új tömítést.
Szerviz
A mennyiségszabályozó szelep
szivárog vagy túl alacsonyra van
állítva.
Ellen
ő
rizze a sz
ű
r
ő
alkatrészeket, rongáló-
dás esetén cserélje ki, szennyez
ő
dés esetén
tisztítsa.
Szerviz
A nyomás mentesít
ő
mágnes sze-
lep hibás.
Cserélje ki mágnes szelepet.
Szerviz
A magas nyomású szivattyú
kopog, a manométer er
ő
sen
leng
Lengéscsillapító hibás.
Cserélje ki lengéscsillapítót.
Szerviz
A víz szivattyú csekély mértékben
szívja be a leveg
ő
t.
Ellen
ő
rizze a szívórendszert és szüntesse
meg a szivárgásokat.
Kezel
ő
A készülék nyitott kézi szóró-
pisztolynál folyamatosan ki/
be kapcsol.
A szórófej a sugárcsövön el van
dugulva.
Ellen
ő
rizze, tisztítsa ki.
Kezel
ő
A készülék vízköves.
Lásd a „Vízk
ő
telenítés“ részt.
Kezel
ő
A túlfolyó kapcsolási pontja elállító-
dott.
Állítassa be újra a túlfolyót.
Szerviz
A vízhiány biztosíték sz
ű
r
ő
je eldu-
gult
Ellen
ő
rizze, vegye ki a sz
ű
r
ő
t és tisztítsa ki. Kezel
ő
A készülék zárt kézi szóró-
pisztolynál nem kapcsol ki
A szivattyú nincs teljesen légtele-
nítve.
Állítsa a készülékkapcsolót „0“-ra és húzza
meg a kézi szórópisztolyt, amíg nem jön ki
több folyadék a szórófejb
ő
l. A készüléket ez-
után ismét kapcsolja be. Ismételje meg ezt az
eljárást, amíg a teljes üzemnyomást eléri.
Kezel
ő
A biztonsági szelep ill. a biztonsági
szelep tömítése hibás.
Cserélje ki a biztonsági szelepet ill. a tömí-
tést.
Szerviz
287
HU
-
13
A tisztítószerek megkönnyítik a tisztítási feladatot. A táblázatban
tisztítószer-választékot láthat. A tisztítószerek felhasználása
el
ő
tt mindenképpen figyelembe kell venni a csomagoláson sze-
repl
ő
javaslatokat.
* = csak rövid alkalmazásra, két lépéses módszer, tiszta vízzel
utána öblíteni
** = ASF = könnyen elválasztható
*** = el
ő
tisztításra a Foam-Star 2000 alkalmas
Tartozékok
Tisztítószer
Felhasználási terület
Szennyez
ő
dés, felhasználás faj-
tája
Tisztítószer
pH-érték (kb.) 1 %-os
csapvizes oldatban
Gépjármú ipar, benzin
tölt
ő
állomások, spedíció,
kocsi állományok
Por, utcai szennyez
ő
dés, ásvány-
olajok (lakkozott felületeken)
RM 55 ASF **
8
RM 22/80- por ASF
12/10
RM 81 ASF
9
RM 803 ASF
10
RM 806 ASF
11
Gépjárm
ű
karbantartás
RM 42 Hideg viasz magasnyomású tisztítók-
hoz
8
RM 820-Forró viasz ASF
7
RM 821-Szóró viasz ASF
6
RM 824-Szuper-gyöngyviasz ASF
7
RM 44 gél- abroncs tisztító
9
Fémfeldolgozó ipar
Olajok, zsírok, por és hasonló
szennyez
ő
dések
RM 22-por ASF
12
RM 55 ASF
8
RM 81 ASF
9
RM 803 ASF
10
RM 806 ASF
12
RM 31 ASF (er
ő
s szennyez
ő
dés)
12
RM 39-folyékony (korrózió védelemmel)
9
Élelmiszerfeldolgozó
üzemek
Enyhe-közepes szennyez
ő
dések-
re, zsírok/olajok, nagy felületek
RM 55 ASF
8
RM 81 ASF
9
RM 882 gélhab OSC
12
RM 58 ASF (habtisztítószer)
9
RM 31 ASF *
12
Füstgyanta
RM 33 *
13
Tisztítás és fert
ő
tlenítés
RM 732
9
Fert
ő
tlenítés
RM 735
7...8
Vízk
ő
, ásványi lerakódások
RM 25 ASF *
2
RM 59 ASF (habtisztítás)
2
Szaniter terület ***
Vízk
ő
, húgyk
ő
, szappan stb.
RM 25 ASF * (alaptisztítás)
2
RM 59 ASF (habtisztítás)
2
RM 68 ASF
5
288
HU

