Karcher Nettoyeur haute pression HDS 9-14-4 ST Eco: !
!: Karcher Nettoyeur haute pression HDS 9-14-4 ST Eco
-
15
–
Il dispositivo di riscaldamento dell’apparecchio è un impianto
di combustione. Per le operazioni di montaggio osservare le
norme vigenti locali.
–
Impiegare solo comignoli/condotti di scarico collaudati.
Pericolo
Pericolo di scottature! Questo simbolo deve essere applicato in
ogni punto interessato.
Per le operazioni di montaggio del serbatoio del gasolio nel locale
di installazione dell'impianto osservare le normative vigenti per lo
stoccaggio di liquidi infiammabili (reperibili presso: Carl
Heymanns Verlag, Köln, www.heymanns.com).
Osservare il seguente diagramma per le operazioni di posa delle
tubazioni del combustibile.
Bisogna provvedere ad un sistema a due vie - andata e ritorno.
–
Prepressione massima gasolio: 0,05 MPa (0,5 bar)
–
Depressione massima tra filtro gasolio e pompa: 0,04 MPa
(0,4 bar)
Lunghezza tubo di aspirazione (metri)
Altezza di aspirazione (metri)
Possibile lunghezza del tubo di aspirazione (DN: 8)
–
Ogni apparecchio deve essere collegato ad un camino ido-
neo.
–
La conduzione dei gas di scarico deve essere eseguita in
base alle norme locali e in accordo con l'addetto al controllo
e alla manutenzione dei camini.
Consigliamo di montare un giunto tra l'impianto ed il camino.
Avvertenza
Per ottenere i valori di combustione previsti dalla legge bisogna
rispettare i Dati Tecnici indicati per il tiraggio del camino.
–
Prima del montaggio a muro verificare la stabilità dello stes-
so. Il materiale di fissaggio fornito si adatta solo per il calce-
struzzo. Per pietre da costruzione, mattoni e calcestruzzo
cellulare utilizzare opportuni tasselli e viti, p. es. ancoraggi ad
iniezione (forature: vedi disegno dimensionale).
–
Fig. 3 - pos. 19 e 23
L’apparecchio non deve essere collegato in modo rigido alla
rete idrica o alle tubazioni ad alta pressione. Montare tassati-
vamente i tubi flessibili di collegamento.
–
Fig. 3 - A
Montare un rubinetto di arresto tra la rete idrica ed il tubo fles-
sibile di collegamento.
Per il montaggio di tubi ad alta pressione rispettare le disposizioni
nazionali vigenti in materia.
–
Il calo di pressione nella tubazione deve essere inferiore a 1,5
MPa.
–
A fine opera collaudare la tubazione con un valore di 28 MPa.
–
L'isolamento della tubazione deve resistere a temperature
fino a 155 °C.
Fig. 3 - Pos. 20
Montare i contenitori in modo che il livello inferiore del detergente
non si trovi ad un livello inferiore di 1,5 m rispetto al fondo dell'ap-
parecchio e che il livello superiore non si trovi al di sopra del fon-
do dell'apparecchio.
Fig. 3 - B e pos. 19
Collegare l'entrata dell'acqua alla rete idrica utilizzando un
tubo flessibile adatto.
–
La portata dell'approvvigionamento di acqua deve avere un
valore minimo di 1300 l/h (0,1 MPa).
–
La temperatura dell'acqua deve essere inferiore a 30 °C.
Attenzione
Non superare il valore massimo d'impedenza di rete consentito
per il punto d'allacciamento elettrico (vedi Dati tecnici). In caso di
dubbi sull'impedenza di rete presente sul punto di collegamento
si prega di contattare la propria azienda fornitrice di energia elet-
trica.
Avviso:
Il transitorio d'inserzione causa una diminuzione tempo-
ranea di tensione. In condizioni di rete sfavorevoli le altre appa-
recchiature possono essere danneggiate.
–
Valori di collegamento: vedi Dati tecnici e targhetta.
–
Il collegamento elettrico va eseguito da un'elettricista qualifi-
cato e deve essere conforme alla norma IEC 60364-1.
–
Tutti i componenti conduttori, i cavi e gli apparecchi nell'area
di lavoro devono trovarsi in ottimo stato ed essere protetti
contro i getti di acqua.
Per evitare incidenti elettrici raccomandiamo di collegare l'appa-
recchio a prese elettriche dotate di interruttore differenziale (con
corrente differenziale nominale I dn non superiore a 30 mA).
Creare il collegamento elettrico.
Per poter spegnere l'idropulitrice stazionaria è necessario appor-
tare un interruttore principale (Fig 3 - Pos.6) bloccabile in un pun-
to facilmente accessibile.
L'apertura di contatto dell'interruttore principale deve essere al-
meno di 3 mm.
Installazione dell'impianto
Solo personale qualificato ed autorizzato!
Norme generali
A temperature di
esercizio superiori a
100 °C, sostituire
l'ugello alta pressione
con l'ugello vapore.
Serbatoio del gasolio
Tubazioni per il combustibile
Condotto gas di scarico
!
Montaggio a muro
Montaggio delle tubazioni ad alta pressione
Montare il contenitore del detergente
Alimentazione dell'acqua
Collegamento elettrico
Collegamento elettrico fisso
75
IT
-
16
Applicare il connettore Cekon al cavo di collegamento dell'ap-
parecchio.
Inserire il connettore maschio nella presa.
Per spegnere l'idropulitrice stazionaria, il connettore maschio
Cekon deve essere facilmente scollegabile.
Prima del primo utilizzo tagliare la punta del triangolo dal con-
tenitore dell'olio della pompa acqua.
Pericolo
Rischio di esplosione! Aggiungere esclusivamente carburante
diesel o gasolio leggero. Combustibili inidonei non possono es-
sere utilizzati (benzina ecc.).
Aggiungere combustibile.
Attenzione
Il funzionamento ad acqua calda senza carburante danneggia la
pompa di alimentazione del combustibile. Verificare la corretta
alimentazione del combustibile prima di attivare il funzionamento
ad acqua calda.
Fig. 3 - Pos. 14
Collegare il tubo flessibile alta pressione alla pistola a spruz-
zo e alla lancia e collegarlo all'uscita di alta pressione dell'ap-
parecchio o alle tubazioni ad alta pressione.
Fissare il boccaglio (b) alla lancia (d) usando il dado di serrag-
gio (a). Fare attenzione che l'anello di tenuta (c) sia inserito
correttamente nella scanalatura.
Togliere la molla (c) dal supporto del coperchio (b) del conte-
nitore contenente l'addolcitore.
Riempire il contenitore con addolcitore RM 110 della Kärcher
(Codice n°: 2.780-001).
Pericolo
Tensione elettrica pericolosa! Le impostazioni possono essere
eseguite solo da elettricisti specializzati.
Informarsi sulla durezza dell'acqua in loco:
–
presso il gestore della rete idrica locale,
–
usando l'apparecchio per la determinazione della durezza
dell'acqua (Codice n. 6.768-004).
Togliere la copertura dell'apparecchio.
Aprire la scatola di comando del quadro di controllo.
Impostare il potenziometro (a) secondo il grado di durezza
dell'acqua. La tabella riporta le impostazioni corrette.
Esempio:
Una durezza dell'acqua con un valore di scala pari a 15°dH de-
termina l'impostazione 6 del potenziometro. Da ciò risulta una
pausa di 31 secondi (la valvola elettromagnetica si apre breve-
mente ogni 31 secondi).
La regolazione dello stato di pronto avviene tramite la piastra più
grande posta sulla parete laterale del quadro elettrico.
Le impostazioni di fabbrica hanno una durata minima di 2 minuti
e possono essere prolungati fino ad un massimo di 8 minuti.
Collegamento elettrico con spina/presa
Prima messa in funzione
Provvedimenti da effettuare prima della messa in
funzione
Protezione anticalcare
a
b
c
d
b
c
a
Grado di durezza dell'ac-
qua (°dH)
5
10
15
20
25
Valore di scala del poten-
ziometro
8
7
6
5
4,5
Pausa espressa in secondi
50
40
31
22
16
Regolazione dello stato di pronto
a
8 7 6 5 4 3 2 1
S2
min.
max.
76
IT
-
17
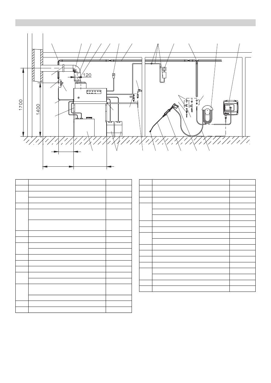
Fig. 3
Materiale per l'installazione
1 2 3 4 5 6 7 8 9 10 12 13
21 20 19 18 17 16 15 14
11b 11a
11d
11c
A
B 19a
24
11a
23
22
11b
1060 (1124)
~1050
600
Pos. Materiale per l'installazione
Codice N°
1
Bullonatura angolare
6.386-356
2
Gomito gas di combustione (90°)
7.234-605
Gomito gas di combustione (45°)
7.234-604
3
Condotto gas di scarico
7.234-603
4
Giunto condotto gas di scarico
HDS 9/14-4
4.656-080
Giunto condotto gas di scarico
HDS 12/14-4
4.656-079
5
Isolazione termica
6.286-114
6
Interruttore principale
6.631-455
7
Kit tubazioni, acciaio zincato
2.420-004
Kit tubazioni, acciaio inox
2.420-006
8
Kit telecomando
2.744-008
9
Kit pulsante d'arresto d'emergenza
2.744-002
10
Bullonatura a T
6.386-269
11a
Raccordo, ottone
2.638-180
Raccordo, acciaio inox
2.638-181
11b
Rubinetto di arresto (DN: 8), acciaio
zincato
4.580-144
Rubinetto di arresto (DN: 8), acciaio inox 4.580-163
11c
Elemento fisso attacco rapido
6.463-025
11d
Elemento mobile attacco rapido
6.463-023
Pos. Materiale per l'installazione
Codice N°
12
Portatubo
2.042-001
13
Avvolgitubo
2.637-238
14
Tubo flessibile alta pressione 10 m
6.388-083
15
Pistola a spruzzo "Easypress"
4.775-463
Regolatore HDS 9/14-4
4.775-470
Regolatore HDS 12/14-4
4.775-471
16
Supporto della lancia
2.042-002
17
Lancia
4.760-550
18
Boccaglio HDS 9/14-4
2.883-402
Boccaglio HDS 12/14-4
2.883-406
19
Tubo flessibile dell’acqua
4.440-282
19a
Valvola elettromagnetica acqua in entrata 4.743-011
20
Serbatoio detergente, 60 l
5.070-078
21
Serbatoio gasolio, 600 l
6.392-050
22
Kit mensola a muro
2.053-005
Kit mobiletto
2.210-008
23
Tubo flessibile alta pressione
6.389-028
24
Staffa per tubi
6.373-374
77
IT
-
18
Con la presente si dichiara che la macchina qui di seguito indica-
ta, in base alla sua concezione, al tipo di costruzione e nella ver-
sione da noi introdotta sul mercato, è conforme ai requisiti
fondamentali di sicurezza e di sanità delle direttive CE. In caso di
modifiche apportate alla macchina senza il nostro consenso, la
presente dichiarazione perde ogni validità.
5.957-054
I firmatari agiscono su incarico e con la procura dell’amministra-
zione.
Responsabile della documentazione:
S. Reiser
Alfred Kärcher GmbH & Co. KG
Alfred-Kärcher-Str. 28 - 40
71364 Winnenden (Germany)
Tel.: +49 7195 14-0
Fax: +49 7195 14-2212
Winnenden, 2014/02/01
In tutti i paesi sono valide le condizioni di garanzia pubblicate dal-
la nostra società di vendita competente. Entro il termine di garan-
zia eliminiamo gratuitamente gli eventuali guasti all’apparecchio,
se causati da un difetto di materiale o di produzione.
Dichiarazione di conformità CE
Prodotto:
Idropulitrice con stadio va-
pore
Modelo:
1.698-xxx
Modelo:
1.699-xxx
Direttive CE pertinenti
97/23/CE
2006/42/CE (+2009/127/CE)
2004/108/CE
Categoria del gruppo costruttivo
II
Procedura di conformità
Modulo H
Serpentina
Valutazione conformità modulo H
Valvola di sicurezza
Valutazione conformità Art. 3 par. 3
Unità di controllo
Valutazione conformità modulo H
Altre tubazioni
Valutazione conformità Art. 3 par. 3
Norme armonizzate applicate
EN 55014–1: 2006+A1: 2009+A2: 2011
EN 55014–2: 1997+A1: 2001+A2: 2008
EN 60335–1
EN 60335–2–79
EN 61000–3–2: 2006+A1: 2009+A2: 2009
HDS 12/14:
EN 61000–3–3: 2008
HDS 9/14:
EN 61000–3–11: 2000
Specifiche applicate:
AD 2000 in aggiunta
TRD 801 in aggiunta
Nome dell'ente nominato:
per 97/23/EG
TÜV Rheinland Industrie Service GmbH
Am Grauen Stein
51105 Köln
Codice di identificazione 0035
CEO
Head of Approbation
Garanzia
78
IT
-
19
Servizio assistenza
Tipo di impianto:
Codice produttore:
Data messa in funzione:
Data del controllo:
Diagnosi:
Firma
Data del controllo:
Diagnosi:
Firma
Data del controllo:
Diagnosi:
Firma
Data del controllo:
Diagnosi:
Firma
79
IT
-
20
Avviso:
È necessario rispettare i termini di controllo previsti dalle
relative disposizioni nazionali vigenti in materia.
Controlli ricorrenti
Controllo eseguito da:
Controllo esterno
Controllo interno
Controllo della resisten-
za
Nome
Firma della persona auto-
rizzata/Data
Firma della persona auto-
rizzata/Data
Firma della persona auto-
rizzata/Data
Nome
Firma della persona auto-
rizzata/Data
Firma della persona auto-
rizzata/Data
Firma della persona auto-
rizzata/Data
Nome
Firma della persona auto-
rizzata/Data
Firma della persona auto-
rizzata/Data
Firma della persona auto-
rizzata/Data
Nome
Firma della persona auto-
rizzata/Data
Firma della persona auto-
rizzata/Data
Firma della persona auto-
rizzata/Data
Nome
Firma della persona auto-
rizzata/Data
Firma della persona auto-
rizzata/Data
Firma della persona auto-
rizzata/Data
Nome
Firma della persona auto-
rizzata/Data
Firma della persona auto-
rizzata/Data
Firma della persona auto-
rizzata/Data
Nome
Firma della persona auto-
rizzata/Data
Firma della persona auto-
rizzata/Data
Firma della persona auto-
rizzata/Data
Nome
Firma della persona auto-
rizzata/Data
Firma della persona auto-
rizzata/Data
Firma della persona auto-
rizzata/Data
Nome
Firma della persona auto-
rizzata/Data
Firma della persona auto-
rizzata/Data
Firma della persona auto-
rizzata/Data
Nome
Firma della persona auto-
rizzata/Data
Firma della persona auto-
rizzata/Data
Firma della persona auto-
rizzata/Data
Nome
Firma della persona auto-
rizzata/Data
Firma della persona auto-
rizzata/Data
Firma della persona auto-
rizzata/Data
80
IT
-
1
Lees vóór het eerste gebruik van uw apparaat deze
originele gebruiksaanwijzing, ga navenant te werk en
bewaar hem voor later gebruik of voor een latere eigenaar.
–
Voor de eerste inbedrijfstelling de veiligheidsaanwijzingen nr.
5.956-309 beslist doorlezen!
–
Bij transportschade onmiddellijk de handelaar op de hoogte
brengen.
Aanwijzingen betreffende de inhoudsstoffen (REACH)
Huidige informatie over de inhoudsstoffen vindt u onder:
www.kaercher.com/REACH
Gevaar
Voor een onmiddellijk dreigend gevaar dat leidt tot ernstige en
zelfs dodelijke lichamelijke letsels.
몇
Waarschuwing
Voor een mogelijks gevaarlijke situatie die zou kunnen leiden tot
ernstige en zelfs dodelijke lichamelijke letsels.
Voorzichtig
Voor een mogelijks gevaarlijke situatie die kan leiden tot lichte li-
chamelijke letsels of materiële schade.
Hogedrukstralen kunnen gevaarlijk zijn wanneer on-
deskundigen het apparaat bedienen. U mag de straal
mag niet richten op personen, dieren, onder stroom
staande voorwerpen of de hogedrukreiniger zelf.
–
Overeenkomstige nationale voorschriften van de wetgever
voor stralers van vloeistoffen in acht nemen.
–
Overeenkomstige nationale voorschriften van de wetgever in-
zake ongevallenpreventie in acht nemen. Stralers van vloei-
stoffen moeten regelmatig gecontroleerd worden en het
resultaat van de controle moet schriftelijk vastgelegd worden.
–
De verwarmingseenheid van het apparaat is een stookinrich-
ting. Stookinrichtingen moeten regelmatig gecontroleerd wor-
den volgens de nationale voorschriften van de wetgever.
–
Bij het gebruik van de installatie in ruimten dient er voor een
veilige afvoer van de uitlaatgassen te worden gezorgd (rook-
gasbuis zonder trekonderbreker). Bovendien moet er vol-
doende toevoer van frisse lucht zijn gewaarborgd.
–
Conform de geldige nationale bepalingen moet de hogedruk-
reiniger bij bedrijfsmatig gebruik eerst in gebruik genomen
worden door een bevoegde persoon. KÄRCHER heeft die
eerste inbedrijfstelling reeds voor u uitgevoerd en gedocu-
menteerd. De documentatie ervan kunt u aanvragen bij uw
KÄRCHER-partner. Gelieve bij de documentatie-aanvraag
het onderdelen- en fabrieksnummer van uw apparaat te ver-
melden.
–
Wij wijzen erop dat het apparaat conform de geldige nationale
bepalingen regelmatig moet worden gecontroleerd door een
bevoegde persoon. Gelieve u daartoe tot uw KÄRCHER-part-
ner te wenden.
–
Veiligheidsvoorschriften die bij de gebruikte reinigingsmidde-
len geleverd zijn (doorgaans op het verpakkingsetiket) in acht
nemen.
Inhoudsopgave
Zorg voor het milieu . . . . . .
NL . . 1
Symbolen in de gebruiksaanwijzing
NL . . 1
Symbolen op het toestel . . .
NL . . 1
Algemene veiligheidsinstructies
NL . . 1
Reglementair gebruik . . . . .
NL . . 2
Functie . . . . . . . . . . . . . . . .
NL . . 2
Veiligheidsinrichtingen. . . . .
NL . . 2
Apparaat-elementen . . . . . .
NL . . 3
Inbedrijfstelling . . . . . . . . . .
NL . . 4
Bediening . . . . . . . . . . . . . .
NL . . 4
Buitenwerkingstelling . . . . .
NL . . 6
Stillegging . . . . . . . . . . . . . .
NL . . 6
Opslag. . . . . . . . . . . . . . . . .
NL . . 6
Vervoer . . . . . . . . . . . . . . . .
NL . . 6
Technische gegevens . . . . .
NL . . 7
Onderhoud . . . . . . . . . . . . .
NL . . 9
Hulp bij storingen . . . . . . . .
NL . 11
Toebehoren . . . . . . . . . . . . .
NL . 13
Installatievoorschriften . . . .
NL . 14
EG-conformiteitsverklaring .
NL . 18
Garantie . . . . . . . . . . . . . . .
NL . 18
Klantenservice. . . . . . . . . . .
NL . 19
Periodieke controles . . . . . .
NL . 20
Zorg voor het milieu
Het verpakkingsmateriaal is herbruikbaar. Deponeer
het verpakkingsmateriaal niet bij het huishoudelijk af-
val, maar bied het aan voor hergebruik.
Onbruikbaar geworden apparaten bevatten waarde-
volle materialen die geschikt zijn voor hergebruik. Le-
ver de apparaten daarom in bij een inzamelpunt voor
herbruikbare materialen. Batterijen, olie en dergelijke
stoffen mogen niet in het milieu belanden. Verwijder
overbodig geworden apparatuur daarom via geschik-
te inzamelpunten.
Gelieve motorolie, stookolie, diesel en benzine niet in het milieu
te laten terechtkomen. Gelieve de bodem te beschermen en
oude olie op milieuvriendelijke manier te verwijderen.
Kärcher-reinigingsmiddelen zijn afscheidingsvriendelijk (ASF).
Dit betekent dat een olie-afscheider zijn werk naar behoren kan
doen. Een lijst met aanbevolen reinigingsmiddelen is in het
hoofdstuk „Toebehoren“ vermeld.
Symbolen in de gebruiksaanwijzing
Symbolen op het toestel
Verbrandingsgevaar! Waarschuwing voor hete
componenten.
Algemene veiligheidsinstructies
81
NL
-
2
Voordat het apparaat wordt geïnstalleerd dient er overleg plaats
te vinden met de bevoegde en regionale schoorsteenveger.
Tijdens de installatie dient men zich aan de voorschriften van het
bouwrecht, het nijverheidsrecht en de immissiebescherming te
houden. Verwezen wordt met name op de volgende voorschrif-
ten, richtlijnen en normen:
–
Het apparaat mag uitsluitend geïnstalleerd worden door een
vakbedrijf dat de overeenkomstige nationale voorschriften in
acht neemt.
–
Bij de elektrische installatie dient men zich aan de betreffende
nationale voorschriften van de wetgever te houden.
–
Instellingen, onderhoudswerkzaamheden en herstellingen
aan de brander mogen uitsluitend uitgevoerd worden door
geschoolde Kärcher-klantenservicemonteurs.
–
Bij de planning van een schoorsteen moeten de lokaal gel-
dende richtlijnen in acht genomen worden.
De werkplaats is achter het bedieningpaneel. Meer werkplaatsen
bevinden zich al naar gelang de opbouw van de installatie aan de
optioneel aangesloten apparatuur (spuit-installaties), die aan de
tappunten worden aangesloten.
–
Draag de juiste beschermende kleding en een veiligheidsbril
ter bescherming tegen terugspattend water.
Het apparaat dient voor het verwijderen van vuil van oppervlak-
ken door middel van een vrij uittredende waterstraal. Het wordt
vooral voor de reiniging van machines, voertuigen en fassaden
toegepast.
Gevaar
Verwondingsgevaar! Bij het gebruik aan tankstations of andere
gevaarlijke zones overeenkomstige veiligheidsvoorschriften in
acht nemen.
–
Via de motorkoelslang en de vlottercontainer komt het koude
water in de zuigkant van de hogedrukpomp. In de vlottercon-
tainer wordt onthardingsmiddel toegevoegd. De pomp trans-
porteert water en aangezogen reinigingsmiddel door de
doorloopgeiser. Het reinigingsmiddelgehalte in het water kan
door een doseerventiel worden ingesteld. De doorloopgeiser
wordt door middel van een gasbrander verwarmd.
–
De hogedrukuitgang wordt op een in het gebouw aanwezig
hogedruknet aangesloten. De handspuitlans wordt met een
hogedrukslang op de tappunten van dit net aangesloten.
Veiligheidsinrichtingen dienen voor de bescherming van de ge-
bruiker en mogen niet buiten werking gezet of in hun functie om-
zeild worden.
De watertekortbeveiliging voorkomt dat de hogedrukpomp bij een
tekort aan water inschakelt.
De watertekortbeveiliging voorkomt dat de brander bij een tekort
aan water oververhit raakt. Alleen bij voldoende watertoevoer
gaat de brander aan.
De drukschakelaar schakelt het apparaat bij het overschrijden
van de werkdruk uit. De instelling mag niet worden veranderd.
Bij een storing van de drukschakelaar gaat het veiligheidsventiel
open. Dit ventiel is vanuit de fabriek ingesteld en verzegeld. De
instelling mag niet worden veranderd.
Bij een tekort aan brandstof of bij een storing van de brander
schakelt de vlambewaking de brander uit. De controlelamp sto-
ring brander (E) gaat branden.
Als de brandermotor geblokkeerd is, treedt de overstroombevei-
ligingsschakelaar in werking. De motor van de hogedrukpomp is
met een motorbeveiligingsschakelaar en een spoelveiligheids-
schakelaar beveiligd.
De uitlaatgasthermostaat wordt geactiveerd als de uitlaatgastem-
peratuur 300 °C overschrijdt. Het apparaat wordt uitgeschakeld.
Nadat het apparaat via het handspuitpistool is uitgezet, opent na
het verstrijken van de bedrijfsgereedheidstijd een in het hoge-
druksysteem ingebouwde magneetklep, waardoor de druk ver-
mindert.
Voorschriften, richtlijnen en regels
Werkplaatsen
Persoonlijke bescherming
Bij het reinigen van geluidsversterkende onder-
delen dient men gehoorbescherming te dragen
ter voorkoming van gehoorbeschadigingen.
Reglementair gebruik
Gelieve mineraaloliehoudend afvalwater niet in de grond, water-
lopen of rioleringen laten terechtkomen. Gelieve de motorreini-
ging en bodemreiniging daarom alleen op geschikte plaatsen
met olieafscheider uit te voeren.
Functie
Veiligheidsinrichtingen
Watertekortbeveiliging vlotterhouder
Watertekortbeveiliging beveiligingsblok
Drukschakelaar
Veiligheidsklep
Vlambewaking
Overstroombeveiliging
Rookgasthermostaat
Drukontlasting hogedruksysteem
82
NL
-
3
Afbeelding 1
1 Brander
2 Manometer
3 Toevoer vers water met filter
4 Hogedruk-uitgang
5 Brandstofleiding voorloop
6 Brandstofleiding terugloop
7 Reinigingsmiddel-zuigslang I
8 Reinigingsmiddel-zuigslang II (optie)
9 Onthardingsmiddel-reservoir
10 Elektrische toevoerleiding
11 Vlotterhouder
12 Bedieningsveld
Afbeelding 2
A Apparaatschakelaar
B Temperatuursinstelling
C Reinigingsmiddel-doseerventiel I
D Reinigingsmiddel-doseerventiel II (optie)
E Controlelampje storing brander
F Controlelampje bedrijfsklaarheid
G Controlelampje oververhitting motor
H Controlelampje verkalkingsbeveiliging
I
Stop - ontgrendelingsknop brandermotor
Apparaat-elementen
6
5
7
8
3
4
9
11
10
1
12
2
Bedieningsveld
83
NL
-
4
몇
Gevaar
Verwondingsgevaar! Apparaat, toevoerleidingen, hogedrukslang
en aansluitingen moeten in een perfecte toestand zijn. Indien de
toestand niet perfect is, mag het apparaat niet gebruikt worden.
–
Aansluitwaarden zie Technische gegevens en typeplaatje.
–
De elektrische aansluiting moet uitgevoerd worden door een
electricien en moet voldoen aan IEC 60364-1.
De gebruiker moet het apparaat voor het juiste doel gebruiken. De
gebruiker moet rekening houden met de plaatselijke omstandighe-
den en speciaal letten op personen die zich in de buurt bevinden.
Laat het apparaat niet zonder toezicht achter zolang het aan staat.
Gevaar
–
Gevaar voor verbranding door heet water! Richt de hogedruk-
straal niet op mensen of dieren.
–
Verbrandingsgevaar door hete onderdelen van de installatie!
Bij gebruik met heet water mogen de niet-geïsoleerde buizen
en slangen niet worden aangeraakt. Straalpijp alleen bij de
greep rond de buis vasthouden. Raak de rookgasmof van de
doorloopgeiser niet aan.
–
De reinigingsmiddelen levert gevaar voor vergiftiging of ver-
branding op! Neem de aanwijzingen op de reinigingsmidde-
len. Bewaar reinigingsmiddelen op een plaats waar
onbevoegden niet bij kunnen.
Gevaar
Levensgevaar door elektrische schok! Richt de waterstraal niet
op de volgende zaken:
–
Elektrische apparaten en installaties,
–
de hier beschreven installatie zelf,
–
alle stroomvoerende voorwerpen binnen het werkgebied.
Door de waterstraal uit de straalpijp ontstaat een terugslagkracht.
Doordat de straalpijp gebogen is, treedt er een opwaartse kracht op.
Gevaar
–
Verwondingsgevaar! De terugslag van de straalpijp kan u uit
uw evenwicht brengen. U kunt vallen. De straalpijp kan in het
rond vliegen en personen verwonden. Kies een veilige plek
en houd het pistool goed vast. Klem de hendel van het hand-
spuitpistool nooit vast.
–
Richt de straal niet op anderen of uzelf, teneinde kleding of
schoenen te reinigen.
–
Verwondingsgevaar door wegvliegende onderdelen! Weg-
vliegende brokstukken of voorwerpen kunnen personen of
dieren verwonden. Richt de waterstraal nooit op breekbare of
losse voorwerpen.
–
Kans op ongelukken door beschadiging! Reinig wielen en
ventielen met een minimale afstand van 30 cm.
몇
Waarschuwing
Gevaar door gezondheidsschadelijke stoffen! Spuit de volgende
materialen niet af, omdat gezondheidsschadelijke stoffen in de
lucht kunnen worden verspreid:
–
Asbesthoudende materialen,
–
Materialen, die mogelijk gezondheidsschadelijke stoffen be-
vatten.
Gevaar
–
Verwondingsgevaar door naar buiten komende, eventueel
hete waterstraal! Alleen originele Kärcher-hogedrukslangen
zijn optimaal op de installatie afgestemd. Als er andere slan-
gen worden gebruik zijn wij niet aansprakelijk.
–
Gezondheidsgevaar door reinigingsmiddel! Door eventueel
bijgemengde reinigingsmiddelen heeft het door het apparaat
afgegeven water geen drinkwaterkwaliteit.
–
Gevaar voor gehoorbeschadiging door het werken aan ge-
luidsversterkende onderdelen. Draag in dit geval gehoorbe-
scherming.
Gevaar
Verwondingsgevaar door naar buiten komende, eventueel hete
waterstraal!
Gevaar
Controleer de hogedrukslang vóór ieder gebruik altijd op bescha-
digingen. Vervang een beschadigde hogedrukslang onmiddellijk.
Controleer de hogedrukslang, de leidingen, armaturen en de
straalpijp voor elk gebruik op beschadigingen.
Controleer of de slangkoppeling goed vast zit en niet lek is.
Voorzichtig
Gevaar voor beschadigingen door drooglopen.
Peil reinigingsmiddeltank controleren en indien nodig bijvul-
len.
Peil onthardingsvloeistof controleren en indien nodig bijvullen.
Apparaatschakelaar (A) op “0“ zetten.
Watertoevoer sluiten.
Handspuitpistool bedienen tot het apparaat drukvrij is.
Volumeregelklep in de richting van de wijzers van de klok
draaien, bewerkstelligd een hogere werkdruk en een groter
volume.
Volumeregelklep tegen de richting van de wijzers van de klok
draaien, bewerkstelligd een lagere werkdruk en een lager vo-
lume.
Inbedrijfstelling
Stroomaansluiting
Bediening
Veiligheidsaanwijzingen
!
Klaarmaken voor bedrijf
Uitschakelen in noodgevallen
Werkdruk en volume instellen
Instelling op het apparaat.
R
84
NL
-
5
Het naar rechts draaien van de watervolume-regelaar geeft
meer water en een hogere werkdruk.
Het naar links draaien van de watervolume-regelaar geeft
minder water en een lagere werkdruk.
Open de watertoevoer.
Symbool „Motor aan“
Trek aan de hendel van het handspuitpistool en zet de appa-
raatschakelaar (A) op „1“ (Motor aan).
Het controlelampje Klaar-voor-gebruik (F) geeft aan dat het
apparaat bedrijfsklaar is.
Gevaar
Verbrandingsgevaar!
Voorzichtig
Werken met heet water zonder brandstof leidt tot beschadigingen
aan de brandstofpomp. Zorg voor het werken met heet water dat
de brandstoftoevoer voorhanden is.
De brander kan eventueel ook worden ingeschakeld.
Symbool „Brander aan“
Apparaatschakelaar (A) op “Brander aan“ zetten.
Gewenste watertemperatuur instellen op de temperatuurre-
gelaar (B). De maximale temperatuur is 98 °C.
Gevaar
Verbrandingsgevaar! Bij werktemperaturen boven 98 °C mag de
werkdruk 3,2 MPa (32 bar) niet overschrijden.
Om van het gebruik met heet water over te stappen naar de
stoomtrap moet men het apparaat op koud zetten en uitschake-
len. Het ombouwen gaat als volgt:
Hogedruksproeier vervangen door de stoomsproeier
(toebehoren).
Stel de temperatuurregelaar op 150 °C in.
Stel de volumeregelklep van de hogedrukpomp in op minima-
le waterhoeveelheid (tegen de wijzers van de klok in draaien).
Stel de volumeregelklep van de hogedrukpomp in op maxi-
male waterhoeveelheid (met de wijzers van de klok mee
draaien).
Watervolumeregelaar op het Easy-perspistool op minimale
waterhoeveelheid instellen door deze naar links te draaien.
–
Als tijdens het gebruik de hendel van het handpistool wordt
losgelaten, gaat het apparaat uit.
–
Als het pistool tijdens de regelbare stand-by-tijd weer wordt
geopend (2-8 minuten), dan gaat het apparaat vanzelf weer
aan.
–
Als men de stand-by-tijd laat verstrijken, schakelt de veilig-
heidstijdschakelaar de pomp en de brander uit. Het controle-
lampje Klaar-voor-gebruik (F) dooft.
–
Om het apparaat weer aan te zetten moet u de apparaatscha-
kelaar eerst op „0“ zetten en dan weer inschakelen. Als het
apparaat met een afstandsbediening wordt bediend, kan men
ook de betreffende schakelaar op de afstandsbediening ge-
bruiken om het apparaat weer aan te zetten.
–
Reinig banden van voertuigen uitsluitend met een vlakstraal-
sproeier (25°) en een minimale spuitafstand van 30 cm. Ban-
den mogen in geen geval met de rondstraler worden
gereinigd.
Voor alle andere taken kunt u uit de volgende sproeiers kiezen:
Bij meer dan 20 m buizen of meer dan 2 x 10 m hogedrukslang
NW 8 moeten de volgende sproeiers worden toegepast:
Instelling van het Easy-perspistool (optie)
Werken met koud water
Werken met heet water
Werken met stoom
Bestelnr.
Type
4.766-023
HDS 9/14
4.766-024
HDS 12/14
Zonder Easy-perspistool
Met Easy-perspistool (optie)
Gebruik stand-by functie
De juiste lans of sproeier kiezen
Vuil
Sproeier
Spuit-
hoek
Onder-
deelnr.
6.415
Druk
[MPa]
Terug-
slag [N]
HDS 9/14
hard
00060
0°
-257
14
44
middel-
hard
25060
25°
-295
licht
40060
40°
-301
HDS 12/14
hard
00080
0°
-150
14
55
middel-
hard
25080
25°
-152
licht
40080
40°
-153
Vuil
Sproeier
Spuit-
hoek
Onder-
deelnr.
6.415
Druk
[MPa]
Terug-
slag [N]
HDS 9/14
hard
0075
0°
-419
10
37
middel-
hard
2575
25°
-421
licht
4075
40°
-422
HDS 12/14
hard
0010
0°
-082
10
46
middel-
hard
2510
25°
-252
licht
4010
40°
-253
85
NL
-
6
–
Reinigingsmiddelen maken het schoonmaken gemakkelijker.
Ze worden uit een externe reinigingsmiddeltank aangezogen.
–
Het apparaat is in de basisuitvoering uitgerust met een do-
seerventiel (C). Een tweede doseervoorziening (doseerven-
tiel D) is als accessoire verkrijgbaar. Dan heeft u de
mogelijkheid twee verschillende reinigingsmiddelen aan te
zuigen.
–
De gedoseerde hoeveelheid wordt met de reinigingsmiddel-
doseerventielen (C of D) op het bedieningspaneel ingesteld.
De ingestelde waarde komt overeen met het reinigingsmid-
delgehalte in procenten.
–
De buitenste schaal geldt bij het gebruik van onverdund reini-
gingsmiddel (100 % CHEM).
–
De binnenste schaal geldt bij het gebruik van 1+3 voorver-
dund reinigingsmiddel (25 % CHEM + 75% water).
De volgende tabel geeft het reinigingsmiddelverbruik voor de
waarden op de buitenste schaal weer:
De exact gedoseerde hoeveelheid is afhankelijk van:
–
Viscositeit van het reinigingsmiddel
–
Zuighoogte
–
Stromingsweerstand van de hogedrukleiding
Als er een exacte dosering nodig is, dan moet de aangezogen
hoeveelheid reinigingsmiddel worden gemeten (bijv. door aan-
zuigen uit een maatbeker).
Instructie:
Aanbevelingen betreffende reinigingsmiddelen vindt
u in het hoofdstuk „Accessoires“.
Voorzichtig
Door gebruik zonder onthardingsmiddel kan de doorloopgeiser
verkalken.
Als het onthardingsmiddelreservoir leeg is, knippert het controle-
lampje Verkalkingsbeveiliging (H).
Afbeelding 1 - pos. 9
Onthardingsmiddelreservoir bijvullen met onthardingsvloei-
stof RM 110 (2.780-001).
Gevaar
Verbrandingsgevaar door heet water! Na de werking met heet
water of stoom moet het apparaat ter afkoeling minstens twee mi-
nuten met koud water en met geopend pistool gebruikt worden.
Bij gebruik met heet water de temperatuurregelaar (B) op de
laagste temperatuur zetten.
Apparaat tenminste 30 seconden lang zonder reinigingsmid-
del gebruiken.
Apparaatschakelaar (A) op “0“ zetten.
Watertoevoer sluiten.
Handspuitpistool bedienen tot het apparaat drukvrij is.
Handspuitpistool met veiligheidspal beveiligen tegen onbe-
doeld openen.
Bij langere werkonderbrekingen of als vorstvrije opslag niet mo-
gelijk is, dienen de volgende maatregelen te worden genomen
(zie het hoofdstuk „Onderhoudsvoorschriften“,de paragraaf over
„Vorstbeveiliging“ :
Water aflaten.
Apparaat met antivriesmiddel spoelen.
Hoofdschakelaar uitschakelen en borgen c.q. Cekon-stekker
uittrekken.
Voorzichtig
Gevaar voor letsel en beschadiging! Het gewicht van het appa-
raat bij opbergen in acht nemen.
Voorzichtig
Gevaar voor letsels en beschadigingen! Houd bij het transport re-
kening met het gewicht van het apparaat.
Bij het transport in voertuigen moet het apparaat conform de
geldige richtlijnen beveiligd worden tegen verschuiven en
kantelen.
Doseren reinigingsmiddel
HDS 9/14
Stand
0,5
1
5
Hoeveelheid reinigingsmiddel [l/h]
14...15 22...24
50
Reinigingsmiddelconcentratie [%]
1,5
2,5
5
HDS 12/14
Stand
0,5
1
5
Hoeveelheid reinigingsmiddel [l/h]
10...13 23...27
60
Reinigingsmiddelconcentratie [%]
1
2
5
Ontharder bijvullen
Buitenwerkingstelling
Na het gebruik met reinigingsmiddel
Apparaat uitschakelen
Stillegging
Opslag
Vervoer
86
NL
-
7
Technische gegevens
HDS 9/14
HDS 12/14
HDS 12/14
1.698-900
1.699-919
1.699-920
Capaciteit
Werkdruk water (met standaardsproeier)
MPa (bar)
14 (140)
14 (140)
14 (140)
Max. werkdruk stoomwerking (met stoomsproeier)
MPa (bar)
3,2 (32)
3,2 (32)
3,2 (32)
Onderdelen-nr. Stoomsproeier
--
4.766-023
4.766-024
4.766-024
Max. bedrijfsoverdruk (veiligheidsklep)
MPa (bar)
18,5 (185)
18,5 (185)
18,5 (185)
Opgepompte hoeveelheid water (traploos regelbaar)
l/h (l/min)
500-930
(8,3-15,5)
600-1200
(10-20)
600-1200
(10-20)
Volume stoomwerking
l/h (l/min)
470 (7,8)
600 (10)
600 (10)
Rijsnelheid (traploos regelbaar):
l/h (l/min)
0-50 (0-0,8)
0-60 (0-1)
0-60 (0-1)
Wateraansluiting
Toevoerhoeveelheid (min.)
l/h (l/min)
1100 (18,3)
1300 (21,7)
1300 (21,7)
Toevoerdruk (min.)
MPa (bar)
0,1 (1)
0,1 (1)
0,1 (1)
Toevoerdruk (max.)
MPa (bar)
0,6 (6)
0,6 (6)
0,6 (6)
Elektrische aansluiting
Stroomsoort
--
3N~
3N~
3N~
Frequentie
Hz
50
50
50
Spanning
V
400
400
230
Aansluitvermogen
kW
6,4
7,5
8,2
Elektrische afzekering (traag)
A
16
20
32
Beveiligingsklasse
--
IPX5
IPX5
IPX5
Beschermingsklasse
--
I
I
I
Maximum toegelaten netimpedantie
Ohm
(0,381+j 0,238)
--
--
Elektrische toevoerleiding
mm
2
5 x 2,5
5 x 2,5
5 x 4
Temperatuur
Toevoertemperatuur (max.)
°C
30
30
30
Max. werktemperatuur heet water
°C
98
98
98
Max. werktemperatuur bij gebruik met stoom
°C
155
155
155
Temperatuursverhoging bij max. waterdoorvoer
°C
56±2
54±2
54±2
Verwarmingscapaciteit bruto
kW
68
85
85
Verbruik brandstof
kg/h
5,8
7,1
7,1
Schoorsteentrek
kPa
0,01-0,04
0,01-0,04
0,01-0,04
Rookgasmassastroom - vollast
kg/h
124
155
155
Maten en gewichten
Lengte
mm
1124
1124
1124
Breedte
mm
558
558
558
Hoogte
mm
687
699
699
Typisch bedrijfsgewicht
kg
164,4
178,8
178,8
Bepaalde waarden conform EN 60355-2-79
Geluidsemissie
Geluidsdrukniveau L
pA
dB(A)
74
76
76
Onzekerheid K
pA
dB(A)
1
1
1
Hand-arm vibratiewaarde
Handspuitpistool
m/s
2
2,2
2,3
2,3
Staalbuis
m/s
2
1,8
2,1
2,1
Onzekerheid K
m/s
2
1,0
1,0
1,0
87
NL
-
8
Maatblad
6
8
7
/ 6
9
9
505
558
1124
246
158
1060
47
141
61
77
46
200
300
1018±2
88
NL
-
9
Gevaar
Verwondingsgevaar! Vóór alle onderhouds- en reparatiewerk-
zaamheden moet de hoofdschakelaar uitgeschakeld c.q. de Ce-
kon-stekker uitgetrokken worden.
Onderhoud
Onderhoudsschema
Tijdstip
Handeling
Betrokken component
Uitvoering
door wie
dagelijks
Handspuitpi-
stool controleren
Handspuitpistool
Controleer of het handspuitpistool lekvrij afsluit.
Controleer of de beveiliging tegen onbedoeld ge-
bruik goed functioneert. Vervang defecte hand-
spuitpistolen.
Bediener
Controleer hoge-
drukslangen
Uitgangsleidingen, slangen
naar de apparatuur
Inspecteer slangen op beschadiging. Vervang
defecte slangen direct. Kans op ongelukken!
Bediener
Aansluitkabel
met stekker con-
troleren
Elektrische aansluiting met
stekker / contactdoos
Aansluitkabel met stekker controleren op be-
schadigingen. Laat beschadigde voedingskabels
onmiddellijk vervangen door een bevoegde me-
dewerker van de technische dienst of een elek-
tro-vakman.
Bediener
Na 40 bedrijfsuren
of wekelijks
Conditie van de
olie controleren
Olietank van de pomp
Als de olie melkachtig is, dient het te worden ver-
vangen.
Bediener
Controleer de
oliestand
Olietank van de pomp
Controleer het oliepeil in de pomp. Indien nodig
olie (bestelnr. 6.288-016) bijvullen.
Bediener
Zeef reinigen
Zeef in de watertoegang
Zie paragraaf „Zeef reinigen“.
Bediener
maandelijks of na
200 bedrijfsuren
Ontstekings-
elektroden reini-
gen en
controleren
Ontstekingselektroden in het
deksel van de doorloopgeiser
Brandstofleiding losdraaien, elektrodehouder uit-
bouwen en elektroden reinigen. Controleer de in-
stelling van de elektroden volgens de schets op
de volgende pagina en stel indien nodig bij.
Ingewerkte
bediener
Pomp controle-
ren
Hogedrukpomp
Inspecteer de pomp op lekkage. Contacteer de
klantendienst bij meer dan 3 druppels per mi-
nuut.
Bediener
op afzettingen
van binnen con-
troleren
gehele installatie
Zet de installatie met straalpijp zonder hogedruk-
spuit aan. Als de bedrijfsdruk op de manometer
van het apparaat boven 3 MPa komt, moet de in-
stallatie worden ontkalkt. Dit geldt ook, als bij het
gebruik zonder hogedrukleiding (water treedt bij
de hogedrukuitlaat vrij uit) een bedrijfsdruk van
meer dan 0,7–1 MPa wordt vastgesteld.
Voor ontkal-
king inge-
werkte
bediener
Zeef reinigen
Zeef in watertekort-beveiliging Zie paragraaf „Zeef reinigen“.
Bediener
elke zes maanden
of na 1000 be-
drijfsuren
Olieverversing
Hogedrukpomp
Olie aftappen. 1 l nieuwe olie (bestelnr. 6.288-
016) bijvullen. Controleer het vulpeil van de olie-
tank.
Bediener
controleren, rei-
nigen
gehele installatie
Visuele controle van de installatie, hogedrukaan-
sluiting op dichtheid controleren, overstroomven-
tiel op dichtheid controleren, hogedrukslang
controleren, druktank controleren, brandstoffilter
reinigen / vervangen, verwarmingsslang ontroe-
ten / ontkalken, ionisatie-elektrode reinigen / ver-
vangen, mondstuk brander reinigen / vervangen,
brander instellen.
Klantenser-
vice
jaarlijks
Veiligheidscon-
trole
gehele installatie
Veiligheidscontrole volgens de overeenkomstige
nationale wettelijke voorschriften voor vloeistof-
sproeiers uitvoeren.
Deskundige
Ten laatste alle 5
jaar
Drukcontrole
gehele installatie
Drukcontrole uitvoeren conform de gegevens
van de fabrikant.
Deskundige
89
NL
-
10
Met het bevoegde Kärcher-verkoopkantoor kan een onderhouds-
contract voor het apparaat worden afgesloten.
Afbeelding 1 - pos. 3
Watertoevoer sluiten.
Watertoevoerslang van het apparaat afschroeven.
Zeef met een schroevendraaier uit de aansluiting schuiven.
Zeef reinigen
Plaats de onderdelen weer terug in omgekeerde volgorde.
Verwijder de afdekplaten.
Hoekstuk van het beveiligingsblok afschroeven.
Schroef M8x30 in de zeef draaien.
Schroef en zeef er met een tang uittrekken.
Zeef reinigen
Plaats de onderdelen weer terug in omgekeerde volgorde.
De ontstekingselektroden moeten ingesteld zijn volgens de vol-
gende gegevens:
Bij afzettingen in de buizen stijgt de stromingsweerstand, zodat
de drukschakelaar kan reageren.
Gevaar
Explosiegevaar door brandbare gassen! Roken is tijdens het ont-
kalken verboden. Zorg voor goede ventilatie.
Gevaar
Gevaar van inbrandende zuren! Veiligheidsbril en veiligheids-
handschoenen dragen.
Voor de verwijdering mogen volgens wettelijke bepalingen uit-
sluitend goedgekeurde ketelsteen-oplosmiddelen met keurmerk
worden gebruikt.
–
RM 100 (Best.-Nr. 6.287-008) zorgt dat kalksteen en eenvou-
dige verbindingen van kalksteen en wasmiddelafzettingen
oplossen.
–
RM 101 (Best.-Nr. 6.287-013) lost afzettingen op die met RM
100 niet verwijderd kunnen worden.
Vul een tank van 20 liter met 15 liter water.
Voeg één liter ketelsteen-oplosmiddel toe.
Sluit de waterslang direct op de pompkop aan en laat het vrije
uiteinde in de tank hangen.
Steek de aangesloten straalpijp zonder sproeier in de tank.
Open het handspuitpistool en sluit het tijdens het ontkalken
niet.
Apparaatschakelaar op „Brander aan“ schakelen, tot ca. 40
°C zijn bereikt.
Zet het apparaat uit en laat het 20 minuten staan. Het hand-
spuitpistool moet geopend blijven.
Pomp het apparaat tenslotte leeg.
Tip:
Wij raden aan ter bescherming tegen corrosie en voor de
neutralisering van de zuurresten aansluitend een alkalische op-
lossing (bijv. RM 81) via het reinigingsmiddelreservoir door het
apparaat te pompen.
Het apparaat moet in vorstvrije ruimtes worden geplaatst. Indien
er gevaar voor vorst bestaat, bijv. bij installaties buiten, moet het
apparaat leeg worden gemaakt en met anti-vriesmiddel worden
doorgespoeld.
Watertoevoerslang en hogedrukslang losschroeven.
Apparaat max. 1 minuuut laten draaien tot de pomp en de lei-
dingen leeg zijn.
Toevoerleiding aan de bodem van de ketel afschroeven en
heetwaterslang leeg laten lopen.
Instructie:
Behandelingsvoorschriften van de fabrikant van het
antivriesmiddel in acht nemen.
In de handel gebruikelijke antivries tot bovenaan in vlotter-
container vullen.
Opvangbak onder de hogedruk-uitgang zetten.
Zet het apparaat aan en laat het zolang lopen tot de waterte-
kortbeveiliging van de vlottercontainer aanspringt en het ap-
paraat uitzet.
Daardoor wordt ook een bepaalde corrosiebescherming bereikt.
Onderhoudscontract
Zeven reinigen
Zeef in watertoevoer
Zeef in watertekort-beveiliging
Instelling elektroden
A
B
C
a
HDS 9/14
4,5±0,5
3,5±0,5
3+0,5
60°
HDS 12/14
3,5±0,5
3,5±0,5
3+0,5
60°
2.
1.
A
B
C
a
Ontkalken
Uitvoering
Vorstbescherming
Water aflaten
Apparaat met antivriesmiddel spoelen
90
NL
-
11
Gevaar
Verwondingsgevaar! Vóór alle onderhouds- en reparatiewerk-
zaamheden moet de hoofdschakelaar uitgeschakeld c.q. de Ce-
kon-stekker uitgetrokken worden.
*
Instructie
Installatie uit- en inschakelen om de branderstoring te ontgrende-
len.
**
Hulp bij storingen
Storing
Mogelijke oorzaak
Oplossing
door wie
Apparaat werkt niet, het con-
trolelampje Klaar-voor-ge-
bruik (F) brandt niet
Het apparaat heeft geen spanning. Controleer het elektriciteitsnet.
Electricien
Veiligheidstijdschakelaar werkt.
Schakel het apparaat kort met de apparaat-
schakelaar uit en daarna weer aan.
Bediener
Zekering in het besturingscircuit
(F3) is doorgebrand Zekering be-
vindt zich in de besturingstrafo
(T2).
Plaats een nieuwe zekering, zoek als deze
weer doorbrand de reden voor de overbelas-
ting en hef deze op.
Klantenservice
Drukschakelaar HD (hoge druk) of
ND (lage druk) defect.
Controleer de drukschakelaar.
Klantenservice
Timer module (A1) defect.
Controleer de aansluitingen en vervang in-
dien nodig.
Klantenservice
Uitlaatgasthermostaat (B8) is in
werking getreden.
Installatie laten afkoelen. Uitlaatgasthermos-
taat (B8) ontgrendelen. Oorzaak van de sto-
ring oplossen.
Klantenservice
+ controlelampje oververhit-
ting motor (G) brandt
Thermosensor (WS) in de motor of
overstroombeveiligingsschakelaar
(F1) is aangesprongen.
Oorzaak van de overbelasting verhelpen.
Klantenservice
Watertekortbeveiliging in de vlot-
terhouder is aangesprongen.
Oorzaak van het tekort aan water verhelpen. Bediener
Brander ontsteekt niet of
vlam gaat uit tijdens het be-
drijf
Temperatuurregelaar (B) is te laag
ingesteld.
Temperatuurregelaar hoger zetten.
Bediener
Apparaatschakelaar staat niet op
brander.
Zet brander aan.
Bediener
Watertekortbeveiliging van het be-
veiligingsblok is aangesprongen.
Zorg voor voldoende watertoevoer. Contro-
leer het apparaat op lekkages.
Bediener
Controlelamp storing bran-
der (E) gaat branden *
Brandstoftank leeg.
Brandstof bijvullen.
Bediener
Brandstoffilter verstopt.
Brandstoffilter reinigen, daartoe brandstoffil-
ter uitdraaien, reinigen en opnieuw indraaien.
Bediener
Fotocel vlambewaking verkeerd
gericht of defect.
Controleren of de fotocel goed zit. **
Bediener
Geen ontstekingsvonk voorhanden
(door kijkglas in deksel van de
brander te zien).
Afstand van de elektroden van de ontste-
kingstransformator en de ontstekingskabel
controleren. Zorg voor de juiste afstand of
vervang defecte onderdelen. Indien nodig
schoonmaken.
Klantenservice
Brandermotor is geblokkeerd.
Blokkering oplossen. Stop (I) op het bedie-
ningsgedeelte verwijderen en overstroombe-
veiligingsschakelaar ontgrendelen. Stop
opnieuw plaatsen.
Klantenservice
Storing van de brandstofpomp of
het brandstofmagneetventiel.
Deze delen controleren en defecte onderde-
len vervangen.
Bediener
91
NL
-
12
Storing
Mogelijke oorzaak
Oplossing
door wie
De controlelamp Verkal-
kingsbeveiliging (H) brandt
Ontharder verbruikt.
Ontharder bijvullen.
Bediener
Onvoldoende of geen aan-
voer van reinigingsmiddel
Doseerventiel op stand „0“.
Doseerventiel reinigingsmiddel instellen.
Bediener
Reinigingsmiddelfilter verstopt of
tank leeg.
Schoonmaken of bijvullen.
Bediener
Reinigingsmiddel-zuigslangen, -
doseerventiel of -magneetklep on-
dicht of verstopt.
Controleren, reinigen
Bediener
Elektronica of magneetklep defect. Vervangen
Klantenservice
Het apparaat ontwikkelt on-
voldoende druk
Sproeier uitgespoeld.
Vervang de sproeier.
Bediener
Reinigingsmiddeltank leeg.
Vul reinigingsmiddel bij.
Bediener
Onvoldoende water.
Zorg voor voldoende watertoevoer.
Bediener
Zeef aan watertoevoer is verstopt. Controleer het filter, bouw het uit en reinig
het.
Bediener
Reinigingsmiddeldoseerventiel
lekt.
Controleer en dicht af.
Bediener
Reinigingsmiddelslangen lekken.
Vervangen
Bediener
Vlotterklep klemt.
Controleer de soepele werking.
Bediener
Veiligheidsventiel lekt.
Controleer de instelling, zonodig door nieuwe
afdichting vervangen.
Klantenservice
Volumeregelklep lek of te laag in-
gesteld.
Controleer de onderdelen van het ventiel,
vervang bij beschadiging, reinig bij verontrei-
niging.
Klantenservice
Magneetklep voor drukontlasting
defect.
Vervang de magneetklep.
Klantenservice
Hogedrukpomp klopt, mano-
meter oscilleert sterk
Trillingsdemper defect.
Trillingsdemper vervangen.
Klantenservice
Waterpomp zuigt iets lucht aan.
Controleer het aanzuigsysteem en dicht lek-
ken.
Bediener
Het apparaat schakelt bij ge-
opend handspuitpistool
voortdurend aan/uit
Sproeier in de straalpijp verstopt.
Controleren, reinigen
Bediener
Kalkaanslag in het apparaat.
Zie hoofdstuk „Ontkalken“.
Bediener
Schakelpunt van de overstromer is
veranderd.
Overstromer opnieuw laten instellen.
Klantenservice
Zeef in watertekort-beveiliging ver-
stopt.
Controleer het filter, bouw het uit en reinig
het.
Bediener
Het apparaat schakelt bij ge-
sloten handspuitpistool niet
uit
Pomp is niet helemaal ontlucht.
Zet de apparaatschakelaar op „0“ en hand-
spuitpistool indrukken, tot er geen vloeistof
meer uit de sproeier komt. Zet het apparaat
dan weer aan. Herhaal deze procedure, tot
de volledige bedrijfsdruk is bereikt.
Bediener
Veiligheidsventiel of afdichting vei-
ligheidsventiel defect.
Veiligheidsventiel of afdichting vervangen.
Klantenservice
92
NL
-
13
Reinigingsmiddelen maken het schoonmaken gemakkelijker. De
tabel geeft een overzicht van het assortiment reinigingsmiddelen.
Voor het gebruik van de reinigingsmiddelen moeten de aanwij-
zingen op de verpakking worden gelezen.
* = alleen voor kortstondig gebruik, tweestapsmethode, met hel-
der water naspoelen
** = ASF = afscheidingsvriendelijk
*** = voor het voorsproeien is Foam-Star 2000 geschikt
Toebehoren
Reinigingsmiddel
Toepassingsgebied
Verontreiniging, soort toepas-
sing
Reinigingsmiddel
pH-waarde (ca.) van
een oplossing van 1 %
in leidingwater
Motorvoertuigbranche,
tankstations, expeditie,
wagenparken
Stof, straatvuil, minerale oliën (op
gelakte oppervlakken)
RM 55 ASF **
8
RM 22/80-poeder ASF
12/10
RM 81 ASF
9
RM 803 ASF
10
RM 806 ASF
11
Conserveren voertuig
RM 42 koudwas voor hogedrukreiniger
8
RM 820-hete was ASF
7
RM 821-spuitwax ASF
6
RM 824-Superparelwas ASF
7
RM 44 gel-velgreiniger
9
Metaalverwerkende indu-
strie
Oliën, vetten, stof en dergelijke
verontreinigingen
RM 22-poeder ASF
12
RM 55 ASF
8
RM 81 ASF
9
RM 803 ASF
10
RM 806 ASF
12
RM 31 ASF (zware verontreiniging)
12
RM 39-vloeibaar (beschermt tegen corrosie)
9
Levensmiddelenverwer-
kende bedrijven
Lichte tot middelzware verontreini-
ging, vetten/oliën, grote oppervlak-
ken
RM 55 ASF
8
RM 81 ASF
9
RM 882 schuimgel OSC
12
RM 58 ASF (schuimreinigingsmiddel)
9
RM 31 ASF *
12
Rookhars
RM 33 *
13
Reiniging en desinfectie
RM 732
9
Desinfectie
RM 735
7...8
Kalk, minerale afzettingen
RM 25 ASF *
2
RM 59 ASF (schuimreinigingsmiddel)
2
Sanitair ***
Kalk, urinesteen, zeepresten etc.
RM 25 ASF * (basisreiniging)
2
RM 59 ASF (schuimreinigingsmiddel)
2
RM 68 ASF
5
93
NL

