Karcher Nettoyeur haute pression HDS 9-14-4 ST Eco: !
!: Karcher Nettoyeur haute pression HDS 9-14-4 ST Eco
-
14
–
Seadme küttemehhanism kujutab endast kütteseadet. Pai-
galdamisel tuleb järgida antud riigis kehtivaid määrusi.
–
Kasutage ainult kontrollitud korstnaid/heitgaasitorusid.
Oht
Põletusoht! See sümbol tuleb paigaldada igasse väljalaskekohta.
Kütteõli paagi paigutamisel ruumi, kuhu seade on paigaldatud,
tuleb järgida kergestisüttivate vedelike ladustamist käsitlevaid
eeskirjuu (tellida kirjastusest Carl Heymanns Verlag, Köln,
www.heymanns.com).
Kütusetorusid paigaldades tuleb järgida allpool toodud diagram-
mi.
Tuleb ette näha 2-suunaline süsteem, peale- ja tagasivool.
–
Maksimaalne kütteõli eelrõhk: 0,05 MPa (0,5 baari)
–
Maksimaalne alarõhk kütteõli filtri ja pumba vahel: 0,04 MPa
(0,4 baari)
Imitoru pikkus (m)
Imitoru kõrgus (m)
Võimalk imitoru pikkus NW 8 torude puhul
–
Iga seade tuleb ühendada omaenese lõõriga.
–
Heitgaasitoru tuleb teostada vastavalt kohapeal kehtivatele
eeskirjadele ja kooskõlas pädeva korstnapühkijaga.
Soovitame paigaldada seadme ja lõõri vahele tõmbekatkesti.
Märkus
Et saavutada ettenähtud põlemisväärtusi, tuleb kinni pidada teh-
nilistes andmetes toodud korstnalõõrist.
–
Enne paigaldamist tuleb kontrollida seina kandevõimet. Tar-
nekomplekti kuuluv kinnitusmaterjal sobib betoonile. Õõnesp-
lokkidest, telliskivist ja gaasbetoonist seinte puhul tuleb
kasutada sobivaid tüübleid ja kruvisid, nt keemiline ankur
(puurimispilti vt mõõtlehelt).
–
Joonis 3 - pos. 19 ja 23
Seadet ei ole lubatud ühendada jäigalt veetorustiku või kõrg-
survetorustikuga. Kindlasti tuleb paigaldada ühendusvooli-
kud.
–
Joonis 3 - A
Veetorustiku ja ühendusvooliku vahele tuleb ette näha lukus-
tuskraan.
Kõrgsurvejuhtmete paigaldamisel tuleb järgida vastavaid koha-
peal kehtivaid seadusanlikke sätteid.
–
Rõhu langus torus peab olema alla 1,5 MPa.
–
Valmis toru tuleb kontrollida 28 MPa-ga.
–
Toru isolatsioon peab taluma temperatuuri kuni 155 °C.
Joonis 3 - pos. 20
Paagid tuleb paigaldada nii, et puhastusvahendi tase ei oleks
rohkem kui 1,5 m seadme põhjast allpool ning ülemine tase mitte
kõrgemal kui seadme põhi.
Joonis 3 - B ja pos. 19
Vee sissevool tuleb sobiva veevoolikuga ühendada veetorus-
tikuga.
–
Veevarustuse võimsus peab olema vähemalt 1300 l/h vähe-
malt 0,1 MPa juures.
–
Veetemperatuur peab olema alla 30 °C.
Ettevaatust
Maksimaalselt lubatud võrguimpedantsi elektrilises ühendus-
punktis (vt tehnilistest andmetest) ei tohi ületada. Kahtluse korral
ühenduspunkti võrguimpedantsi osas pöörduge palun oma ener-
giaettevõtte poole.
Märkus:
Sisselülitamise ajal tekkib lühiajaline pingelangus. Kui
võrgutingimused on ebasoodsad, võib see teisi seadmeid nega-
tiivselt mõjutada.
–
Ühendamiseks vajalikke andmeid Tehnilistest andmetest ja
tüübisildilt.
–
Elektriühenduse peab teostama elektrimontöör ja see peab
vastama normile IEC 60364-1.
–
Tööalas voolu all olevad osad, kaablid ja seadmed peavad
olema laitmatus seisundis ja kaitstud surve all paiskuva vee
eest.
Elektriõnnetuste vältimiseks soovitame kasutada ettelülitatud rik-
kevoolu-kaitselülitiga (max 30 mA rakendumise nimivoolutugevu-
sega) pistikupesi.
Taastage elektriühendus.
Statsionaarse kõrgsurvepesuri väljalülitamiseks tuleb paigaldada
ohutusse ja kergesti ligipääsetavasse kohta suletav pealüliti (joo-
nis 3 - pos. 6).
Pealüliti kontaktavauste läbimõõt peab olema vähemalt 3 mm.
Paigaldage seadme ühenduskaablile Cekon-pistik.
Torgake Cekon-pistik pistikupessa.
Statsionaarse kõrgsurvepesuri väljalülitamiseks peab Cekon-pis-
tik võrgust lahutamiseks olema kergesti juurdepääsetav.
Enne esimest kasutamist lõigake ära veepumbal oleva õli-
paagi kaane tipp.
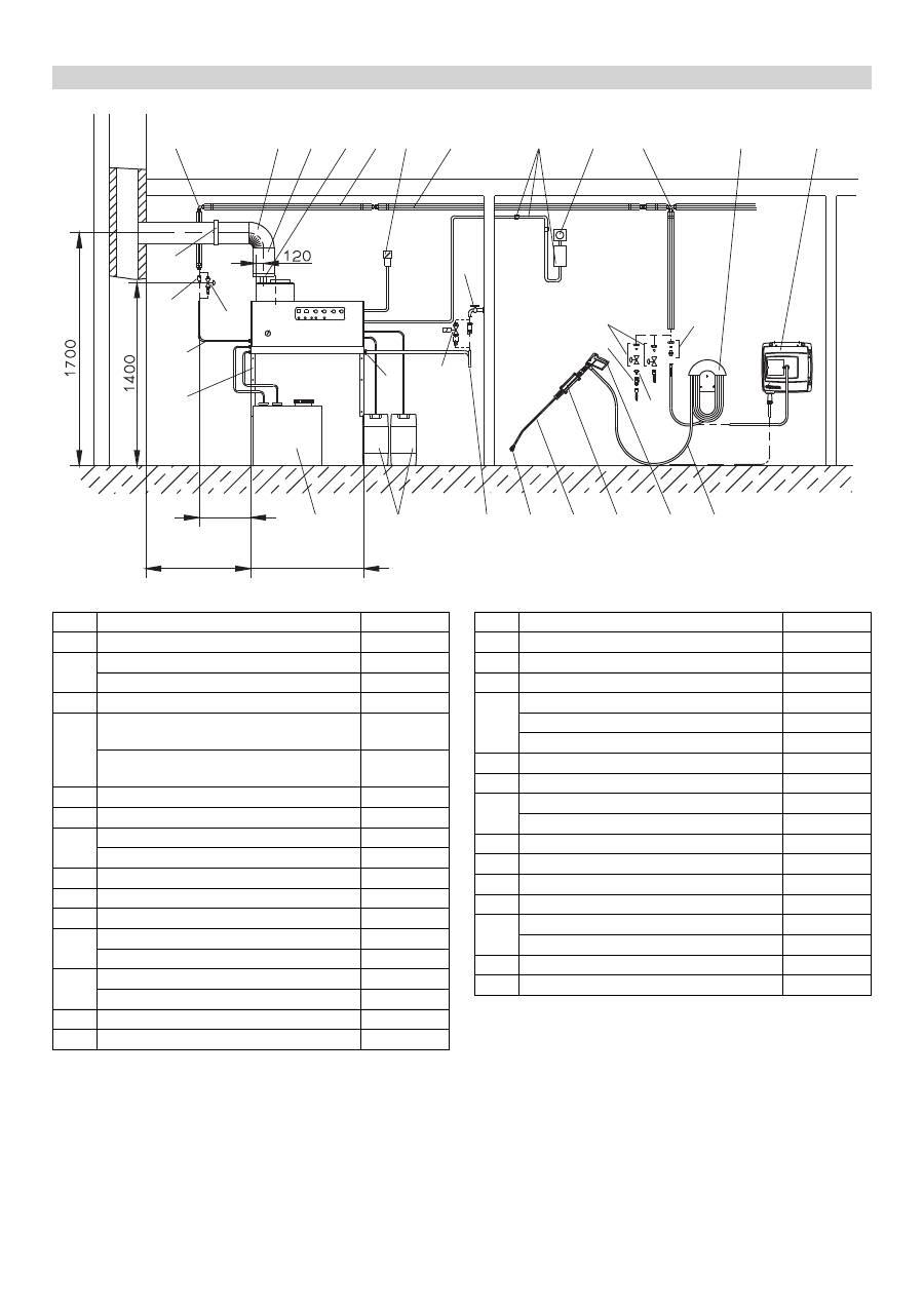
Seadme installeerimine
Ainult volitatud spetsialistidele!
Üldist
Töötemperatuuridel
üle 100 °C tuleb kõrg-
survedüüs vahetada
välja aurudüüsi vastu.
Kütteõli paak
Kütusetorud
Suitsugaasi toru
Paigaldamine seinale
!
Kõrgsurvetorude paigaldamine
Puhastusaine paagi paigaldamine
Veevarustus
Elektriühendus
Püsivalt paigaldatud elektriühendus
Pistiku/pistikupesaga elektriühendus
Esmakordne kasutuselevõtt
384
ET
-
15
Oht
Plahvatusoht! Lisage ainult diiselkütust või kerget kütteõli. Sobi-
matuid kütuseid, nt bensiini, ei tohi kasutada.
Täitke kütusepaak.
Ettevaatust
Töötamine kuuma veega ilma kütuseta põhjustab kütusepumba
vigastamist. Enne kuuma veega töötamist kindlustage kütuseva-
rustus.
Joonis 3 - pos. 14
Ühendage kõrgsurvevoolik pesupüstoliga ja joatoruga ning
ühendage seadme kõrgsurve-väljavoolukohtaga või kõrgsur-
vetorustikuga.
Kinnitage düüsi otsik (b) umbmutriga (a) joagoru (d) külge.
Jälgige, et rõngastihend (c) oleks puhtalt soones.
Eemaldage vedru (c) pehmendusaine paagi kaane toe (b)
küljest.
Valage paaki Kärcheri pehmendusvedelikku RM 110 (telli-
misnr. 2.780-001).
Oht
Ohtlik elektripinge! Sisestamist tohib teostada ainult väljaõppinud
elektrik.
Selgitage välja kohalik vee karedus:
–
Kohaliku veevarustusettevõtte abil,
–
vee kareduse kontrollseadisega (tellimsnr. 6.768-004).
Võtke seadme kate ära.
Avage lülituskast juhtpaneelil.
Reguleerige pöörd-potentsiomeetrit (a) olenevalt vee karedu-
sest. Tabelist leiate õige seadistuse.
Näide:
Vee kareduse 15 °dH puhul valige pöörd-potentsiomeetri skaalalt
väärtus 6. Sellest tuleneb 31 sekundiline paus, s.t. iga 31 sekundi
tagant avaneb magnetventiil lühikeseks ajaks.
Tööks valmiduse aega reguleeritakse suuremalt juhtplaadilt
elektrikilbi vasakul küljeseinal.
Tööks valmiduse ajaks on tehasepoolselt määratud minimaalne
aeg 2 minutit ning seda saab suurendada kuni maksimaalse ajani
8 minutit.
Abinõud enne kasutuselevõttu
Katlakivikaitse
a
b
c
d
b
c
a
Vee karedus (°dH)
5
10
15
20
25
Pöörd-potentsiomeetri
skaala
8
7
6
5
4,5
Pausi aeg (sekundit)
50
40
31
22
16
Tööks valmiduse aja reguleerimine
a
8 7 6 5 4 3 2 1
S2
min.
max.
385
ET
-
16
Joonis 3
Installatsioonimaterjal
1 2 3 4 5 6 7 8 9 10 12 13
21 20 19 18 17 16 15 14
11b 11a
11d
11c
A
B 19a
24
11a
23
22
11b
1060 (1124)
~1050
600
Pos. Installatsioonimaterjal
Tellimisnr.
1
Nurgaühendus
6.386-356
2
Suitsugaasitorupõlv 90°
7.234-605
Suitsugaasitorupõlv 45°
7.234-604
3
Suitsugaasi toru
7.234-603
4
Suitsugaasitoru tõmbekatkesti
HDS 9/14-4
4.656-080
Suitsugaasitoru tõmbekatkesti
HDS 12/14-4
4.656-079
5
Soojusisolatsioon
6.286-114
6
Pealüliti
6.631-455
7
Torude komplekt, tsingitud teras
2.420-004
Torude komplekt, roostevaba teras
2.420-006
8
Kaugjuhtimise osade komplekt
2.744-008
9
Avariilüliti osade komplekt
2.744-002
10
T-ühendus
6.386-269
11a
Ühendustutsid, messing
2.638-180
Ühendustutsid, roostevaba teras
2.638-181
11b
Lukustsuskraan NW 8, tsingitud teras
4.580-144
Lukustuskraan NW 8, roostevaba teras
4.580-163
11c
Kiirmuhvi liikumatu osa
6.463-025
11d
Kiirmuhvi lahtine osa
6.463-023
Pos. Installatsioonimaterjal
Tellimisnr.
12
Voolikuhoidja
2.042-001
13
Vooliku trummel
2.637-238
14
Kõrgsurvepesu voolik 10 m
6.388-083
15
Easypress pesupüstol
4.775-463
Pöördregulaator HDS 9/14-4
4.775-470
Pöördregulaator HDS 12/14-4
4.775-471
16
Joatoru hoidik
2.042-002
17
Joatoru
4.760-550
18
Düüsi otsik HDS 9/14-4
2.883-402
Düüsi otsik HDS 12/14-4
2.883-406
19
Veevoolik
4.440-282
19a
Magnetventiil vee pealevool
4.743-011
20
Puhastusvahendi paak, 60 l
5.070-078
21
Kütteõli paak 600 l
6.392-050
22
Seinakonsooli osade komplekt
2.053-005
Põrandaraami osade komplekt
2.210-008
23
Kõrgsurvevoolik
6.389-028
24
Torumansett
6.373-374
386
ET
-
17
Käesolevaga kinnitame, et allpool kirjeldatud seade vastab meie
poolt turule toodud mudelina oma kontseptsioonilt ja konstrukt-
sioonilt EÜ direktiivide asjakohastele põhilistele ohutus- ja tervi-
sekaitsenõetele. Meiega kooskõlastamata muudatuste tegemise
korral seadme juures kaotab käesolev deklaratsioon kehtivuse.
5.957-054
Allakirjutanud toimivad juhatuse korraldusel ja volitusel.
dokumentatsiooni eest vastutav isik:
S. Reiser
Alfred Kärcher GmbH & Co. KG
Alfred-Kärcher-Str. 28 - 40
71364 Winnenden (Germany)
Tel: +49 7195 14-0
Faks: +49 7195 14-2212
Winnenden, 2014/02/01
Igas riigis kehtivad vastava volitatud müügiesindaja antud garan-
tiitingimused. Võimalikud häired seadme töös kõrvaldatakse ga-
rantiiajal tasuta, kui põhjuseks on materjali- või tootmisviga.
EÜ vastavusdeklaratsioon
Toode:
Auruga kõrgsurvepesur
Tüüp:
1.698-xxx
Tüüp:
1.699-xxx
Asjakohased EÜ direktiivid:
97/23/EU
2006/42/EU (+2009/127/EU)
2004/108/EÜ
Komponendi kategooria
II
Vastavusmenetlus
Moodul H
Küttespiraal
Vastavushinnang moodulile H
Turvaventiil
Vastavaushinnang art. 3 lõige 3
Juhtplokk
Vastavushinnang moodulile H
erinevad torud
Vastavaushinnang art. 3 lõige 3
Kohaldatud ühtlustatud standardid
:
EN 55014–1: 2006+A1: 2009+A2: 2011
EN 55014–2: 1997+A1: 2001+A2: 2008
EN 60335–1
EN 60335–2–79
EN 61000–3–2: 2006+A1: 2009+A2: 2009
HDS 12/14:
EN 61000–3–3: 2008
HDS 9/14:
EN 61000–3–11: 2000
Rakendatud spetsifikatsioonid:
AD 2000 tuginedes
TRD 801 tuginedes
Mainitud institutsiooni nimi:
97/23/EÜ jaoks
TÜV Rheinland Industrie Service GmbH
Am Grauen Stein
51105 Köln
ID-nr. 0035
CEO
Head of Approbation
Garantii
387
ET
-
18
Klienditeenindus
Seadme tüüp:
Tootmisnr.:
Kasutuselevõtu kuupäev:
Kontrollimise kuupäev:
Tulemus:
Allkiri
Kontrollimise kuupäev:
Tulemus:
Allkiri
Kontrollimise kuupäev:
Tulemus:
Allkiri
Kontrollimise kuupäev:
Tulemus:
Allkiri
388
ET
-
19
Märkus:
Järgida tuleb käitajariigi riiklikele nõuetele vastavaid
kontrollimis tähtaegu puudutavaid soovitusi.
Korduvkontrollid
Kontrolli läbiviija:
Väline kontroll
Sisemine kontroll
Stabiilsuskontroll
Nimi
Volitatud isiku allkiri/kuu-
päev
Volitatud isiku allkiri/kuu-
päev
Volitatud isiku allkiri/kuu-
päev
Nimi
Volitatud isiku allkiri/kuu-
päev
Volitatud isiku allkiri/kuu-
päev
Volitatud isiku allkiri/kuu-
päev
Nimi
Volitatud isiku allkiri/kuu-
päev
Volitatud isiku allkiri/kuu-
päev
Volitatud isiku allkiri/kuu-
päev
Nimi
Volitatud isiku allkiri/kuu-
päev
Volitatud isiku allkiri/kuu-
päev
Volitatud isiku allkiri/kuu-
päev
Nimi
Volitatud isiku allkiri/kuu-
päev
Volitatud isiku allkiri/kuu-
päev
Volitatud isiku allkiri/kuu-
päev
Nimi
Volitatud isiku allkiri/kuu-
päev
Volitatud isiku allkiri/kuu-
päev
Volitatud isiku allkiri/kuu-
päev
Nimi
Volitatud isiku allkiri/kuu-
päev
Volitatud isiku allkiri/kuu-
päev
Volitatud isiku allkiri/kuu-
päev
Nimi
Volitatud isiku allkiri/kuu-
päev
Volitatud isiku allkiri/kuu-
päev
Volitatud isiku allkiri/kuu-
päev
Nimi
Volitatud isiku allkiri/kuu-
päev
Volitatud isiku allkiri/kuu-
päev
Volitatud isiku allkiri/kuu-
päev
Nimi
Volitatud isiku allkiri/kuu-
päev
Volitatud isiku allkiri/kuu-
päev
Volitatud isiku allkiri/kuu-
päev
Nimi
Volitatud isiku allkiri/kuu-
päev
Volitatud isiku allkiri/kuu-
päev
Volitatud isiku allkiri/kuu-
päev
389
ET
-
1
Pirms ier
ī
ces pirm
ā
s lietošanas izlasiet instrukcijas
ori
ģ
in
ā
lvalod
ā
, r
ī
kojieties saska
ņā
ar nor
ā
d
ī
jumiem
taj
ā
un uzglab
ā
jiet to v
ē
l
ā
kai izmantošanai vai turpm
ā
kiem lieto-
t
ā
jiem.
–
Pirms pirm
ā
s lietošanas oblig
ā
ti izlas
ī
t nor
ā
d
ī
jumus par dro-
š
ī
bu Nr. 5.956-309!
–
Par transport
ē
šanas boj
ā
jumiem nekav
ē
joties zi
ņ
ojiet tirgot
ā
-
jam.
Inform
ā
cija par sast
ā
vda
ļā
m (REACH)
Aktu
ā
lo inform
ā
ciju par sast
ā
vda
ļā
m atrad
ī
siet:
www.kaercher.com/REACH
B
ī
stami
Nor
ā
da uz tieš
ā
m draudoš
ā
m briesm
ā
m, kuras rada smagus
ķ
er-
me
ņ
a ievainojumus vai izraisa n
ā
vi.
몇
Br
ī
din
ā
jums
Nor
ā
da uz iesp
ē
jami b
ī
stamu situ
ā
ciju, kura var rad
ī
t smagus
ķ
erme
ņ
a ievainojumus vai izrais
ī
t n
ā
vi.
Uzman
ī
bu
Nor
ā
da uz iesp
ē
jami b
ī
stamu situ
ā
ciju, kura var rad
ī
t vieglus ie-
vainojumus vai materi
ā
los zaud
ē
jumus.
Nepareizi lietojot, augstspiediena str
ū
kla var b
ū
t b
ī
sta-
ma. Str
ū
klu nedr
ī
kst v
ē
rst uz cilv
ē
kiem, dz
ī
vniekiem,
zem sprieguma esoš
ā
m elektrisk
ā
m iek
ā
rt
ā
m un uz
pašu apar
ā
tu.
–
Ņ
emiet v
ē
r
ā
attiec
ī
gaj
ā
valst
ī
likumdev
ē
ja izdotos normat
ī
vos
aktus par š
ķ
idruma smidzin
ā
t
ā
jiem.
–
Ņ
emiet v
ē
r
ā
attiec
ī
gaj
ā
valst
ī
likumdev
ē
ja izdotos normat
ī
vos
aktus par negad
ī
jumu nov
ē
ršanu. Š
ķ
idrumu smidzin
ā
t
ā
ji ir re-
gul
ā
ri j
ā
p
ā
rbauda un p
ā
rbaudes rezult
ā
ts ir rakstiski j
ā
doku-
ment
ē
.
–
Apar
ā
ta apsildes iek
ā
rta ir apkures iek
ā
rta. Apkures iek
ā
rtas
ir regul
ā
ri j
ā
p
ā
rbauda saska
ņā
ar attiec
ī
g
ā
s valsts likumdev
ē
-
ja izdotajiem normat
ī
vajiem aktiem.
–
Izmantojot iek
ā
rtu telp
ā
s, j
ā
r
ū
p
ē
jas par drošu izpl
ū
des g
ā
zu
novad
ī
šanu (d
ū
mg
ā
zu caurule bez velkmes p
ā
rtrauc
ē
ja). Bez
tam j
ā
b
ū
t pietiekamai t
ī
r
ā
gaisa padevei.
–
Saska
ņā
ar sp
ē
k
ā
esošajiem nacion
ā
lajiem noteikumiem
augstspiediena t
ī
r
ī
t
ā
ja nodošana ekspluat
ā
cij
ā
komerci
ā
las
izmantošanas gad
ī
jum
ā
j
ā
veic pilnvarotai personai. KÄRC-
HER šo nodošanu ekspluat
ā
cij
ā
J
ū
su viet
ā
jau ir veicis un do-
kument
ē
jis. Dokument
ā
ciju par to p
ē
c piepras
ī
juma
sa
ņ
emsiet pie J
ū
su KÄRCHER tirdzniec
ī
bas partnera. Doku-
ment
ā
cijas piepras
ī
juma gad
ī
jum
ā
, l
ū
dzu, sagatavojiet apa-
r
ā
ta preces un s
ē
rijas numuru.
–
M
ē
s nor
ā
d
ā
m uz to, ka apar
ā
ts saska
ņā
ar sp
ē
k
ā
esošajiem
nacion
ā
lajiem noteikumiem regul
ā
ri ir j
ā
p
ā
rbauda un p
ā
rbau-
de j
ā
veic pilnvarotai personai. Šim nol
ū
kam, l
ū
dzu, griezieties
pie J
ū
su KÄRCHER tirdzniec
ī
bas partnera.
–
Iev
ē
rojiet droš
ī
bas nor
ā
d
ī
jumus, kas pievienoti izmantotajiem
t
ī
r
ī
šanas l
ī
dzek
ļ
iem (parasti atrodami uz l
ī
dzek
ļ
a iepakojuma
eti
ķ
etes).
Satura r
ā
d
ī
t
ā
js
Vides aizsardz
ī
ba . . . . . . . .
LV . . 1
Lietošanas instrukcij
ā
izmantotie simboli
LV . . 1
Simboli uz apar
ā
ta . . . . . . .
LV . . 1
Visp
ā
r
ē
jie droš
ī
bas tehnikas noteikumi
LV . . 1
Noteikumiem atbilstoša lietošana
LV . . 2
Darb
ī
ba . . . . . . . . . . . . . . . .
LV . . 2
Droš
ī
bas iek
ā
rtas . . . . . . . .
LV . . 2
Apar
ā
ta elementi . . . . . . . . .
LV . . 3
Ekspluat
ā
cijas uzs
ā
kšana . .
LV . . 4
Apkalpošana . . . . . . . . . . . .
LV . . 4
Ekspluat
ā
cijas p
ā
rtraukšana
LV . . 6
Iekonserv
ē
šana. . . . . . . . . .
LV . . 6
Glab
ā
šana. . . . . . . . . . . . . .
LV . . 6
Transport
ē
šana . . . . . . . . . .
LV . . 6
Tehniskie dati . . . . . . . . . . .
LV . . 7
Kopšana un tehnisk
ā
apkope
LV . . 9
Pal
ī
dz
ī
ba darb
ī
bas trauc
ē
jumu gad
ī
jum
ā
LV . 11
Piederumi . . . . . . . . . . . . . .
LV . 13
Iek
ā
rtas instal
ā
cija. . . . . . . .
LV . 14
EK Atbilst
ī
bas deklar
ā
cija . .
LV . 17
Garantija . . . . . . . . . . . . . . .
LV . 17
Klientu apkalpošanas dienests
LV . 18
Regul
ā
ras p
ā
rbaudes . . . . .
LV . 19
Vides aizsardz
ī
ba
Iepakojuma materi
ā
li ir atk
ā
rtoti p
ā
rstr
ā
d
ā
jami. L
ū
dzu,
neizmetiet iepakojumu kop
ā
ar m
ā
jsaimniec
ī
bas atkri-
tumiem, bet nog
ā
d
ā
jiet to viet
ā
, kur tiek veikta atkritu-
mu otrreiz
ē
j
ā
p
ā
rstr
ā
de.
Nolietot
ā
s ier
ī
ces satur noder
ī
gus materi
ā
lus, kurus
iesp
ē
jams p
ā
rstr
ā
d
ā
t un izmantot atk
ā
rtoti. Baterijas,
e
ļļ
a un taml
ī
dz
ī
gas vielas nedr
ī
kst nok
ļū
t apk
ā
rt
ē
j
ā
vi-
d
ē
. T
ā
d
ēļ
l
ū
dzam utiliz
ē
t vec
ā
s ier
ī
ces ar atbilstošu at-
kritumu sav
ā
kšanas sist
ē
mu starpniec
ī
bu.
Ne
ļ
aujiet motore
ļļ
ai, kurin
ā
mai degvielai, d
ī
ze
ļ
degvielai un ben-
z
ī
nam non
ā
kt apk
ā
rt
ē
j
ā
vid
ē
. Saudz
ē
jiet augsni un nolietoto e
ļļ
u
likvid
ē
jiet videi nekait
ī
g
ā
veid
ā
.
Kärcher t
ī
r
ī
šanas l
ī
dzek
ļ
i ir emul
ģē
joši. Tas noz
ī
m
ē
, ka netiek
trauc
ē
ta e
ļļ
as separatora darb
ī
ba. Sarakstu ar ietiecamajiem t
ī
-
r
ī
šanas l
ī
dzek
ļ
iem skatiet noda
ļā
"Piederumi".
Lietošanas instrukcij
ā
izmantotie simboli
Simboli uz apar
ā
ta
Apdegumu g
ū
šanas risks! Br
ī
din
ā
jums par kar-
stiem agreg
ā
tiem.
Visp
ā
r
ē
jie droš
ī
bas tehnikas noteikumi
390
LV
-
2
Pirms apar
ā
ta instal
ā
cijas j
ā
vienojas ar viet
ē
jo skurste
ņ
slau
ķ
i.
Veicot instal
ā
ciju, j
ā
iev
ē
ro B
ū
vniec
ī
bas likuma, R
ū
pniec
ī
bas liku-
ma un Vides aizsardz
ī
bas noteikumi. M
ē
s nor
ā
d
ā
m uz zem
ā
k mi-
n
ē
tajiem noteikumiem, vadl
ī
nij
ā
m un standartiem:
–
Apar
ā
tu dr
ī
kst instal
ē
t tikai specializ
ē
ts uz
ņē
mums atbilstoši
attiec
ī
gajiem nacion
ā
lajiem noteikumiem.
–
Veicot elektroinstal
ā
ciju, j
ā
iev
ē
ro likumdev
ē
ja nacion
ā
lie no-
teikumi.
–
Deg
ļ
a regul
ē
šanu, apkopi un remontu dr
ī
kst veikt tikai apm
ā
-
c
ī
ti Kärcher Klientu apkalpošanas dienesta meistari.
–
Projekt
ē
jot kam
ī
nu, j
ā
iev
ē
ro viet
ē
j
ā
s, sp
ē
k
ā
esoš
ā
s vadl
ī
ni-
jas.
Darba vieta atrodas pie vad
ī
bas pults. Citas darba vietas atkar
ī
b
ā
no iek
ā
rtas uzb
ū
ves ir pie papildier
ī
c
ē
m (smidzin
ā
šanas iek
ā
r-
t
ā
m), kas piesl
ē
gtas savienojumu viet
ā
s.
–
Aizsardz
ī
bai pret
ū
dens š
ļ
akat
ā
m vai net
ī
rumiem valk
ā
jiet
piem
ē
rotu aizsargap
ģē
rbu un aizsargbrilles.
Apar
ā
ts paredz
ē
ts tam, lai ar br
ī
vi izpl
ū
stošu
ū
dens str
ū
klu no
virsm
ā
m atdal
ī
tu net
ī
rumus.
Ī
paši to izmanto maš
ī
nu, transportl
ī
-
dzek
ļ
u un fas
ā
žu t
ī
r
ī
šanai.
Briesmas
Savainošan
ā
s risks! Izmantojot degvielas uzpildes stacij
ā
s vai ci-
t
ā
s b
ī
stam
ā
s zon
ā
s, iev
ē
rot attiec
ī
gos droš
ī
bas priekšrakstus.
–
Aukstais
ū
dens caur motora dzes
ē
šanas cauruli un tvertni ar
pludi
ņ
u nok
ļū
st augstspiediena s
ū
k
ņ
a s
ū
kšanas pus
ē
. Tvert-
n
ē
ar pludi
ņ
u tiek pievienots
ū
dens m
ī
kstin
ā
t
ā
js. S
ū
knis s
ū
k-
n
ē
ū
deni un uzs
ū
kto t
ī
r
ī
šanas l
ī
dzekli caur caurpl
ū
des
sild
ī
t
ā
ju. T
ī
r
ī
šanas l
ī
dzek
ļ
a saturu
ū
den
ī
var noregul
ē
t ar do-
z
ē
šanas v
ā
rstu. Caurpl
ū
des sild
ī
t
ā
js tiek uzkars
ē
ts ar degli.
–
Augstspiediena izeju piesl
ē
dz
ē
k
ā
esošai augstspiediena sis-
t
ē
mai. Š
ī
s sist
ē
mas savienojuma viet
ā
s piesl
ē
dz rokas smi-
dzin
ā
t
ā
jpistoli ar augstspiediena š
ļū
teni.
Droš
ī
bas ier
ī
ces kalpo lietot
ā
ja aizsardz
ī
bai un t
ā
s nedr
ī
kst igno-
r
ē
t vai apiet to darb
ī
bu.
Ū
dens tr
ū
kuma drošin
ā
t
ā
js nov
ē
rš augstspiediena s
ū
k
ņ
a iesl
ē
g-
šanos, ja ir nepietiekams
ū
dens daudzums.
Ū
dens tr
ū
kuma drošin
ā
t
ā
js nov
ē
rš deg
ļ
a p
ā
rkaršanu, ja ir nepie-
tiekams
ū
dens daudzums. Deglis s
ā
k darboties tikai tad, kad ir
pietiekams
ū
dens daudzums.
Kad tiek p
ā
rsniegts darba spiediens, manometriskais sl
ē
dzis iz-
sl
ē
dz apar
ā
tu. Regul
ē
jumu nedr
ī
kst main
ī
t.
Manometrisk
ā
sl
ē
dža trauc
ē
juma gad
ī
jum
ā
atveras droš
ī
bas
v
ā
rsts. Šis v
ā
rsts r
ū
pn
ī
c
ā
ir noregul
ē
ts un noplomb
ē
ts. Regul
ē
ju-
mu nedr
ī
kst main
ī
t.
Degvielas tr
ū
kuma vai deg
ļ
a trauc
ē
juma gad
ī
jum
ā
liesmas kon-
trolsist
ē
ma izsl
ē
dz degli. Iedegas deg
ļ
a trauc
ē
juma kontrollampi-
ņ
a (E).
Ja ir blo
ķē
ts deg
ļ
a motors, rea
ģē
p
ā
rslodzes aizsardz
ī
bas sl
ē
-
dzis. Augstspiediena s
ū
k
ņ
a motoru pasarg
ā
motora aizsargsl
ē
-
dzis un tinuma aizsargsl
ē
dzis.
Izpl
ū
des g
ā
zu termostats rea
ģē
tad, ja izpl
ū
des g
ā
zu temperat
ū
-
ra p
ā
rsniedz 300 °C. Apar
ā
ts izsl
ē
dzas.
P
ē
c apar
ā
ta atsl
ē
gšanas ar rokas smidzin
ā
t
ā
jpistoli, paejot gaid
ī
-
šanas laikam, atveras augstspiediena sist
ē
m
ā
integr
ē
ts magn
ē
-
tiskais v
ā
rsts, k
ā
rezult
ā
t
ā
samazin
ā
s spiediens.
Noteikumi, vadl
ī
nijas un regulas
Darba vietas
Person
ī
gais aizsargapr
ī
kojums
T
ī
rot troksni pastiprinošas deta
ļ
as, dzirdes trau-
c
ē
jumu nov
ē
ršanas nol
ū
kos valk
ā
jiet austi
ņ
as.
Noteikumiem atbilstoša lietošana
Miner
ā
le
ļļ
as saturoši notek
ū
de
ņ
i nedr
ī
kst nok
ļū
t augsn
ē
,
ū
den
ī
vai kanaliz
ā
cij
ā
. T
ā
p
ē
c dzin
ē
ja mazg
ā
šanu un apakšas mazg
ā
-
šanu veikt tikai piem
ē
rot
ā
s viet
ā
s ar e
ļļ
as uztv
ē
r
ē
ju.
Darb
ī
ba
Droš
ī
bas iek
ā
rtas
Ar pludi
ņ
u apr
ī
kot
ā
s tvertnes
ū
dens tr
ū
kuma
drošin
ā
t
ā
js
Droš
ī
bas bloka
ū
dens tr
ū
kuma drošin
ā
t
ā
js
Spiediena relejs
Droš
ī
bas v
ā
rsts
Liesmas kontrolsist
ē
ma
P
ā
rslodzes aizsardz
ī
bas
Izpl
ū
des g
ā
zu termostats
Spiediena samazin
ā
šana augstspiediena sist
ē
m
ā
391
LV
-
3
1. att
ē
ls
1 Deglis
2 Manometrs
3 T
ī
r
ā
ū
dens pievads ar sietfiltru
4 Augstspiediena izeja
5 Turpgaitas degvielas cauru
ļ
vads
6 Atpaka
ļ
gaitas degvielas cauru
ļ
vads
7 T
ī
r
ī
šanas l
ī
dzek
ļ
a s
ū
kšanas š
ļū
tene I
8 T
ī
r
ī
šanas l
ī
dzek
ļ
a s
ū
kšanas š
ļū
tene II (opcija)
9
Ū
dens m
ī
kstin
ā
t
ā
ja tvertne
10 Elektropievads
11 Tvertne ar pludi
ņ
u
12 Vad
ī
bas panelis
2. att
ē
ls
A Apar
ā
ta sl
ē
dzis
B Temperat
ū
ras regulators
C T
ī
r
ī
šanas l
ī
dzek
ļ
a doz
ē
šanas v
ā
rsts I
D T
ī
r
ī
šanas l
ī
dzek
ļ
a doz
ē
šanas v
ā
rsts II (opcija)
E Deg
ļ
a trauc
ē
juma kontrollampi
ņ
a
F Kontrollampi
ņ
a gatav
ī
bai darbam
G Motora p
ā
rkaršanas kontrollampi
ņ
a
H Pretapka
ļķ
ošan
ā
s kontrollampi
ņ
a
I
Aizb
ā
znis - deg
ļ
a motora atblo
ķē
šanas poga
Apar
ā
ta elementi
6
5
7
8
3
4
9
11
10
1
12
2
Vad
ī
bas panelis
392
LV
-
4
몇
Briesmas
Savainošan
ā
s risks! Ier
ī
cei, pievadiem, augstspiediena š
ļū
tenei
un piesl
ē
gumiem j
ā
b
ū
t nevainojam
ā
st
ā
vokl
ī
. Ja st
ā
voklis nav
nevainojams, ier
ī
ci nedr
ī
kst izmantot.
–
Piesl
ē
gumu lielumus skat
ī
t tehniskajos datos un ražot
ā
jfir-
mas datu pl
ā
ksn
ī
t
ē
.
–
Elektrisk
ā
piesl
ē
gšana j
ā
veic elektri
ķ
im un j
ā
atbilst IEC 60364-1.
Lietot
ā
jam j
ā
izmanto apar
ā
ts tikai atbilstoši noteikumiem. Vi
ņ
am
j
āņ
em v
ē
r
ā
viet
ē
jie apst
ā
k
ļ
i un str
ā
d
ā
jot ar apar
ā
tu j
ā
piev
ē
rš uz-
man
ī
ba apk
ā
rtn
ē
esošajiem cilv
ē
kiem.
Apar
ā
tam darbojoties nekad neatst
ā
jiet to bez uzraudz
ī
bas.
B
ī
stami
–
Applauc
ē
šan
ā
s risks ar karstu
ū
deni! Nev
ē
rsiet
ū
dens str
ū
klu
uz cilv
ē
kiem vai dz
ī
vniekiem.
–
Apdegumu g
ū
šanas risks, saskaroties ar karst
ā
m iek
ā
rtas
da
ļā
m! Darbinot apar
ā
tu ar karsto
ū
deni, nepieskarieties ne-
izol
ē
tiem cauru
ļ
vadiem un š
ļū
ten
ē
m. Turiet smidzin
ā
šanas
cauruli tikai aiz rokturiem. Nepieskarieties caurpl
ū
des sild
ī
t
ā
-
ja izpl
ū
des g
ā
zu izvadam.
–
R
ī
kojoties ar t
ī
r
ī
šanas l
ī
dzek
ļ
iem, past
ā
v saind
ē
šan
ā
s vai
ķī
-
misko apdegumu risks! Iev
ē
rojiet uz t
ī
r
ī
šanas l
ī
dzek
ļ
iem do-
tos nor
ā
d
ī
jumus. T
ī
r
ī
šanas l
ī
dzek
ļ
us uzglab
ā
jiet
nepiederoš
ā
m person
ā
m nepieejam
ā
viet
ā
.
B
ī
stami
Briesmas dz
ī
v
ī
bai, g
ū
stot elektrisk
ā
s str
ā
vas triecienu! Nev
ē
rsiet
ū
dens str
ū
klu uz š
ā
d
ā
m iek
ā
rt
ā
m:
–
elektrisk
ā
m ier
ī
c
ē
m un iek
ā
rt
ā
m,
–
uz šo iek
ā
rtu,
–
uz vis
ā
m str
ā
vu vadoš
ā
m da
ļā
m darba viet
ā
.
No smidzin
ā
šanas caurules izpl
ū
stoš
ā
ū
dens str
ū
kla rada atsitie-
na sp
ē
ku. Ja smidzin
ā
šanas caurule ir izliekta le
ņķī
, sp
ē
ks virz
ī
ts
uz augšu.
B
ī
stami
–
Savainošan
ā
s risks! Smidzin
ā
šanas caurules atsitiena rezul-
t
ā
t
ā
J
ū
s varat zaud
ē
t l
ī
dzsvaru. J
ū
s varat apkrist. Smidzin
ā
-
šanas caurule var k
ļū
t nekontrol
ē
jama un var ievainot
personas. Ie
ņ
emiet stabilu st
ā
vokli un turiet pistoli stingri ro-
k
ā
s. Nekad nenoblo
ķē
jiet rokas smidzin
ā
t
ā
jpistoles sviru.
–
Str
ū
klu nedr
ī
kst v
ē
rst ar
ī
uz citiem cilv
ē
kiem vai pats uz sevi,
lai not
ī
r
ī
tu ap
ģē
rbu vai apavus.
–
Lidojošas deta
ļ
as var rad
ī
t ievainojumus! Lidojošas da
ļ
as vai
priekšmeti var ievainot personas vai dz
ī
vniekus. Nev
ē
rsiet
ū
dens str
ū
klu uz pl
ī
stošiem vai nestabiliem priekšmetiem.
–
Iesp
ē
jams boj
ā
jumu rad
ī
ts negad
ī
jumu risks! Riepas un v
ā
r-
stus t
ī
riet no vismaz 30 cm att
ā
luma.
몇
Br
ī
din
ā
jums
Risku rada vesel
ī
bai kait
ē
jošas vielas! Neapsmidziniet š
ā
dus
materi
ā
lus, jo t
ā
rezult
ā
t
ā
var izdal
ī
ties vesel
ī
bai kait
ī
gas vielas:
–
azbestu saturošus materi
ā
lus,
–
materi
ā
lus, kas var satur
ē
t vesel
ī
bai kait
ī
gas vielas.
B
ī
stami
–
Savainošan
ā
s risks izpl
ū
stošas, iesp
ē
jams, karstas
ū
dens
str
ū
klas rezult
ā
t
ā
! Iek
ā
rtai optim
ā
li piem
ē
rotas tikai ori
ģ
in
ā
l
ā
s
Kärcher augstspiediena š
ļū
tenes. Izmantojot citas š
ļū
tenes,
netiek sniegta garantija.
–
T
ī
r
ī
šanas l
ī
dzek
ļ
i var kait
ē
t vesel
ī
bai! Iesp
ē
jami piejauktu t
ī
r
ī
-
šanas l
ī
dzek
ļ
u d
ēļ
no apar
ā
ta izvad
ī
tais
ū
dens nav dzeram
ā
ū
dens kvalit
ā
t
ē
.
–
Str
ā
d
ā
jot pie troksni pastiprinoš
ā
m deta
ļā
m, past
ā
v dzirdes
boj
ā
jumu risks! Šaj
ā
gad
ī
jum
ā
j
ā
lieto austi
ņ
as.
B
ī
stami
Savainošan
ā
s risks izpl
ū
stošas, iesp
ē
jams, karstas
ū
dens str
ū
k-
las rezult
ā
t
ā
!
B
ī
stami
Pirms katras lietošanas reizes p
ā
rbaudiet, vai nav boj
ā
ta augst-
spiediena š
ļū
tene. Nekav
ē
joties nomainiet boj
ā
tu augstspiediena
š
ļū
teni.
Pirms katras lietošanas p
ā
rbaudiet, vai augstspiediena š
ļū
te-
nei, cauru
ļ
vadiem, armat
ū
rai un smidzin
ā
šanas caurulei nav
boj
ā
jumu.
P
ā
rbaudiet š
ļū
tenes savienojuma fiks
ā
ciju un herm
ē
tiskumu.
Uzman
ī
bu
Tukšgaitas d
ēļ
past
ā
v boj
ā
jumu risks.
P
ā
rbaudiet t
ī
r
ī
šanas l
ī
dzek
ļ
a l
ī
meni tvertn
ē
un vajadz
ī
bas ga-
d
ī
jum
ā
papildiniet.
P
ā
rbaudiet
ū
dens m
ī
kstin
ā
t
ā
ja l
ī
meni un vajadz
ī
bas gad
ī
ju-
m
ā
papildiniet.
P
ā
rsl
ē
dziet apar
ā
ta sl
ē
dzi (A) uz „0“.
Aizsl
ē
gt
ū
dens padevi.
Spiediet rokas smidzin
ā
t
ā
jpistoli, l
ī
dz ier
ī
c
ē
vairs nav spiedie-
na.
Pagriežot daudzuma regul
ē
šanas v
ā
rstu pulkste
ņ
r
ā
d
ī
t
ā
ja vir-
zien
ā
, palielin
ā
s darba spiediens un padeves daudzums.
Pagriežot daudzuma regul
ē
šanas v
ā
rstu pret
ē
ji pulkste
ņ
r
ā
d
ī
-
t
ā
ja virzienam, samazin
ā
s darba spiediens un padeves dau-
dzums.
Ekspluat
ā
cijas uzs
ā
kšana
Str
ā
vas piesl
ē
gums
Apkalpošana
Droš
ī
bas nor
ā
d
ī
jumi
!
Ier
ī
ces sagatavošana darbam
Izsl
ē
gšana av
ā
rijas gad
ī
jum
ā
Darba spiediena un padeves daudzuma uzst
ā
d
ī
šana
Apar
ā
ta iestat
ī
šana
R
393
LV
-
5
Pagriežot
ū
dens daudzuma regulatoru pa labi, palielin
ā
s pa-
deves daudzums un darba spiediens.
Pagriežot
ū
dens daudzuma regulatoru pa kreisi, samazin
ā
s
padeves daudzums un darba spiediens.
Attaisiet
ū
dens padeves kr
ā
nu.
Simbols "Iesl
ē
gts motors"
Pavelciet rokas smidzin
ā
t
ā
jpistoles sviru un p
ā
rsl
ē
dziet apa-
r
ā
ta sl
ē
dzi (A) uz "1" (iesl
ē
gts motors).
Darba gatav
ī
bas kontrollampi
ņ
a (F) nor
ā
da uz gatav
ī
bu dar-
bam.
Briesmas
Applauc
ē
šan
ā
s risks!
Uzman
ī
bu
Ū
dens kars
ē
šana bez degvielas rada degvielas s
ū
k
ņ
a boj
ā
ju-
mus. Pirms
ū
dens kars
ē
šanas nodrošiniet degvielas padevi.
Vajadz
ī
bas gad
ī
jum
ā
var iesl
ē
gt ar
ī
degli.
Simbols "Iesl
ē
gts deglis"
Apar
ā
ta sl
ē
dzi (A) p
ā
rsl
ē
dziet uz „Iesl
ē
gts deglis“.
Vajadz
ī
go
ū
dens temperat
ū
ru noregul
ē
jiet ar temperat
ū
ras
regulatoru (B). Maksim
ā
l
ā
temperat
ū
ra ir 98 °C.
Briesmas
Applauc
ē
šan
ā
s risks! Ja darba temperat
ū
ra ir iel
ā
ka par 98 °C,
darba spiediens nedr
ī
kst p
ā
rsniegt 3,2 MPa (32 bar).
Lai apar
ā
tu no darba ar karsto
ū
deni p
ā
rregul
ē
tu pak
ā
peniskam
darbam ar tvaiku, apar
ā
tam ir j
ā
atdziest un tas ir j
ā
izsl
ē
dz. P
ā
r-
regul
ē
šana j
ā
veic š
ā
di:
Nomainiet augstspiediena sprauslu pret tvaika sprauslu
(piederumos).
Iestatiet temperat
ū
ras regulatoru uz 150 °C.
Iestatiet hidraulisk
ā
s
ū
k
ņ
a daudzuma regul
ē
šanas v
ā
rstu uz
minim
ā
lo
ū
dens daudzumu (pagriežot pret
ē
ji pulkste
ņ
r
ā
d
ī
t
ā
ja
virzienam).
Iestatiet augstspiediena s
ū
k
ņ
a daudzuma regul
ē
šanas v
ā
rstu
uz minim
ā
lo
ū
dens daudzumu (pagriežot pret
ē
ji pulkste
ņ
r
ā
d
ī
-
t
ā
ja virzienam).
Easypress pistoles
ū
dens daudzuma regulatoru, pagriežot pa
kreisi, iestatiet uz minim
ā
lo
ū
dens daudzumu.
–
Ja darba laik
ā
atlaiž rokas smidzin
ā
t
ā
jpistoles sviru, apar
ā
ts
atsl
ē
dzas.
–
Atverot pistoli no jauna, regul
ē
jama gaid
ī
šanas laika robež
ā
s
(2...8 min
ū
tes) apar
ā
ts atkal autom
ā
tiski iesl
ē
dzas.
–
Ja gaid
ī
šanas laiks tiek p
ā
rsniegts, droš
ī
bas laika komut
ā
ci-
jas sist
ē
ma atsl
ē
dz s
ū
kni un degli. Darba gatav
ī
bas kontrol-
lampi
ņ
a (F) izdziest.
–
Lai ats
ā
ktu apar
ā
ta lietošanu, p
ā
rsl
ē
dziet apar
ā
ta sl
ē
dzi poz
ī
-
cij
ā
"0", tad atkal iesl
ē
dziet. Ja apar
ā
tu vada ar t
ā
lvad
ī
bas pul-
ti, apar
ā
tu var iesl
ē
gt ar attiec
ī
go t
ā
lvad
ī
bas pults sl
ē
dzi.
–
Transportl
ī
dzek
ļ
u riepas t
ī
ra tikai ar plakanstr
ū
klas sprauslu
(25°) un no vismaz 30 cm att
ā
luma. Riepas nek
ā
d
ā
gad
ī
jum
ā
nedr
ī
kst t
ī
r
ī
t ar apa
ļ
o str
ū
klu.
Visiem citiem darbiem iesp
ē
jams izv
ē
l
ē
ties š
ā
das sprauslas:
Ja ir vair
ā
k k
ā
20 m garš cauru
ļ
vads vai vair
ā
k k
ā
2 x 10 m gara
augstspiediena š
ļū
tene NW 8, j
ā
izmanto š
ā
das sprauslas:
Easypress pistoles regul
ē
šana (opcija)
Darbs ar aukstu
ū
deni
Darbs ar karstu
ū
deni
Darbs ar tvaiku
Pas
ū
t
ī
juma nr.
Tips
4.766-023
HDS 9/14
4.766-024
HDS 12/14
Bez Easypress pistoles
Ar Easypress pistoli (opcija)
Gatav
ī
ba darbam
Sprauslu izv
ē
le
Net
ī
r
ī
ba Sprausla Smidzi-
n
ā
šanas
le
ņķ
is
Da
ļ
as Nr.
6.415
Spie-
diens
[MPa]
Atsitiens
[N]
HDS 9/14
liela
00060
0°
-257
14
44
vid
ē
js
25060
25°
-295
neliela
40060
40°
-301
HDS 12/14
liela
00080
0°
-150
14
55
vid
ē
js
25080
25°
-152
neliela
40080
40°
-153
Net
ī
r
ī
ba Sprausla Smidzi-
n
ā
šanas
le
ņķ
is
Da
ļ
as Nr.
6.415
Spie-
diens
[MPa]
Atsitiens
[N]
HDS 9/14
liela
0075
0°
-419
10
37
vid
ē
js
2575
25°
-421
neliela
4075
40°
-422
HDS 12/14
liela
0010
0°
-082
10
46
vid
ē
js
2510
25°
-252
neliela
4010
40°
-253
394
LV
-
6
–
T
ī
r
ī
šanas l
ī
dzek
ļ
i atvieglo t
ī
r
ī
šanas uzdevuma izpildi. Tos ie-
s
ū
kn
ē
no
ā
r
ē
jas t
ī
r
ī
šanas l
ī
dzek
ļ
a tvertnes.
–
Apar
ā
ta pamatapr
ī
kojum
ā
iek
ļ
auts doz
ē
šanas v
ā
rsts (C).
Otra doz
ē
šanas iek
ā
rta (doz
ē
šanas v
ā
rsts D) pieejama spe-
ci
ā
lajos piederumos. Ar to iesp
ē
jams ies
ū
kn
ē
t divus daž
ā
dus
t
ī
r
ī
šanas l
ī
dzek
ļ
us.
–
Doz
ē
jamo daudzumu noregul
ē
ar t
ī
r
ī
šanas l
ī
dzek
ļ
a doz
ē
ša-
nas v
ā
rstiem (C vai D) uz vad
ī
bas pults. Iestat
ī
t
ā
v
ē
rt
ī
ba at-
bilst t
ī
r
ī
šanas l
ī
dzek
ļ
a saturam procentos.
–
Ā
r
ē
j
ā
skala j
āņ
em v
ē
r
ā
, izmantojot neatš
ķ
aid
ī
tu t
ī
r
ī
šanas l
ī
-
dzekli (100 % CHEM).
–
Iekš
ē
j
ā
skala j
āņ
em v
ē
r
ā
, izmantojot 1:3 atš
ķ
aid
ī
tu t
ī
r
ī
šanas
l
ī
dzekli (25 % CHEM + 75 %
ū
dens).
Sekojoš
ā
tabula par
ā
da t
ī
r
ī
šanas l
ī
dzek
ļ
a pat
ē
ri
ņ
u, vadoties p
ē
c
ā
r
ē
j
ā
s skalas v
ē
rt
ī
b
ā
m:
Prec
ī
zs doz
ē
jamais daudzums ir atkar
ī
gs no:
–
t
ī
r
ī
šanas l
ī
dzek
ļ
a viskozit
ā
tes
–
s
ū
kn
ē
šanas augstuma
–
augstspiediena vada pl
ū
smas pretest
ī
bas
Ja nepieciešama prec
ī
za doz
ē
šana, j
ā
izm
ē
ra ies
ū
kn
ē
tais t
ī
r
ī
ša-
nas l
ī
dzeklis (piem., s
ū
kn
ē
jot no m
ē
rtrauka).
Nor
ā
de:
Ieteicamos t
ī
r
ī
šanas l
ī
dzek
ļ
us atrad
ī
siet noda
ļā
"Piede-
rumi".
Uzman
ī
bu
Darbinot apar
ā
tu bez
ū
dens m
ī
kstin
ā
t
ā
ja, var apka
ļķ
oties caur-
pl
ū
des sild
ī
t
ā
js.
Ja ir tukša
ū
dens m
ī
kstin
ā
t
ā
ja tvertne, mirgo pretapka
ļķ
ošan
ā
s
kontrollampi
ņ
a (H).
1. att
ē
ls - 9. poz.
Iepildiet
ū
dens m
ī
kstin
ā
t
ā
ja tvertn
ē
ū
dens m
ī
kstin
ā
t
ā
ja š
ķī
du-
mu RM 110 (2.780-001).
Briesmas
Applauc
ē
šan
ā
s risks ar karstu
ū
deni! P
ē
c darb
ī
bas ar karstu
ū
de-
ni vai tvaiku, lai ier
ī
ce atdzistu, t
ā
j
ā
darbina vismaz 2 min
ū
tes ar
ausktu
ū
deni ar atv
ē
rtu pistoli.
Darbinot apar
ā
tu ar karsto
ū
deni, noregul
ē
jiet temperat
ū
ras
regulatoru (B) uz zem
ā
ko temperat
ū
ru.
Darbiniet apar
ā
tu vismaz 30 sekundes bez t
ī
r
ī
šanas l
ī
dzek
ļ
a.
P
ā
rsl
ē
dziet apar
ā
ta sl
ē
dzi (A) uz „0“.
Aizsl
ē
gt
ū
dens padevi.
Spiediet rokas smidzin
ā
t
ā
jpistoli, l
ī
dz ier
ī
c
ē
vairs nav spiediena.
Nodrošiniet rokas smidzin
ā
t
ā
jpistoli ar drošin
ā
t
ā
ju pret net
ī
šu
atv
ē
ršanos.
Ja paredz
ē
ti ilg
ā
ki ekspluat
ā
cijas p
ā
rtraukumi vai nav iesp
ē
jama
uzglab
ā
šana pret salu pasarg
ā
t
ā
viet
ā
, veiciet sekojošos pas
ā
ku-
mus (skat. noda
ļ
u "Kopšana un tehnisk
ā
apkope", sada
ļ
u "Aiz-
sardz
ī
ba pret aizsalšanu").
Izlaist
ū
deni.
Izskalot ier
ī
ci ar pretsala l
ī
dzekli.
Izsl
ē
dziet galveno sl
ē
dzi un nodrošiniet to vai atvienojiet Ce-
kon kontaktu.
Uzman
ī
bu
Savainošan
ā
s un boj
ā
jumu risks! Uzglab
ā
jot
ņ
emiet v
ē
r
ā
apar
ā
ta
svaru.
Uzman
ī
bu
Savainošan
ā
s un boj
ā
jumu risks! Transport
ē
jot
ņ
emiet v
ē
r
ā
apa-
r
ā
ta svaru.
Transport
ē
jot automaš
ī
n
ā
, saska
ņā
ar sp
ē
k
ā
esošaj
ā
m direk-
t
ī
v
ā
m nodrošiniet apar
ā
tu pret izsl
ī
d
ē
šanu un apg
ā
šanos.
T
ī
r
ī
šanas l
ī
dzek
ļ
a doz
ē
šana
HDS 9/14
St
ā
voklis
0,5
1
5
T
ī
r
ī
šanas l
ī
dzek
ļ
a daudzums [l/h]
14...15 22...24
50
T
ī
r
ī
šanas l
ī
dzek
ļ
a koncentr
ā
cija [%]
1,5
2,5
5
HDS 12/14
St
ā
voklis
0,5
1
5
T
ī
r
ī
šanas l
ī
dzek
ļ
a daudzums [l/h]
10...13 23...27
60
T
ī
r
ī
šanas l
ī
dzek
ļ
a koncentr
ā
cija [%]
1
2
5
Ū
dens m
ī
kstin
ā
t
ā
ja uzpild
ī
šana
Ekspluat
ā
cijas p
ā
rtraukšana
P
ē
c t
ī
r
ī
šanas l
ī
dzek
ļ
a lietošanas
Izsl
ē
gt ier
ī
ci
Iekonserv
ē
šana
Glab
ā
šana
Transport
ē
šana
395
LV
-
7
Tehniskie dati
HDS 9/14
HDS 12/14
HDS 12/14
1.698-900
1.699-919
1.699-920
Tehniskie dati attiec
ī
b
ā
uz jaudu
Ū
dens darba spiediens (ar standarta sprauslu)
MPa (bar)
14 (140)
14 (140)
14 (140)
Maks. darba spiediens tvaika rež
ī
m
ā
(ar tvaika sprauslu)
MPa (bar)
3,2 (32)
3,2 (32)
3,2 (32)
Tvaika sprauslas det. Nr.
--
4.766-023
4.766-024
4.766-024
Maks. darba spiediens (droš
ī
bas v
ā
rsts)
MPa (bar)
18,5 (185)
18,5 (185)
18,5 (185)
Ū
dens padeves daudzums (pak
ā
peniski regul
ē
jams)
l/h (l/min)
500-930
(8,3-15,5)
600-1200
(10-20)
600-1200
(10-20)
S
ū
kn
ē
šanas daudzums tvaika rež
ī
m
ā
l/h (l/min)
470 (7,8)
600 (10)
600 (10)
Ies
ū
kn
ē
t
ā
t
ī
r
ī
šanas l
ī
dzek
ļ
a daudzums (pak
ā
peniski regul
ē
-
jams)
l/h (l/min)
0-50 (0-0,8)
0-60 (0-1)
0-60 (0-1)
Ū
densapg
ā
de
Pievad
ā
m
ā
ū
dens daudzums (min.)
l/h (l/min)
1100 (18,3)
1300 (21,7)
1300 (21,7)
Pievad
ā
m
ā
ū
dens spiediens (min.)
MPa (bar)
0,1 (1)
0,1 (1)
0,1 (1)
Pievad
ā
m
ā
ū
dens spiediens (maks.)
MPa (bar)
0,6 (6)
0,6 (6)
0,6 (6)
Elektropadeve
Str
ā
vas veids
--
3N~
3N~
3N~
Frekvence
Hz
50
50
50
Spriegums
V
400
400
230
Piesl
ē
guma jauda
kW
6,4
7,5
8,2
Drošin
ā
t
ā
ji (inertie)
A
16
20
32
Aizsardz
ī
ba
--
IPX5
IPX5
IPX5
Aizsardz
ī
bas klase
--
I
I
I
Maksim
ā
li pie
ļ
aujam
ā
t
ī
kla pretest
ī
ba
omi
(0,381+j 0,238)
--
--
Elektropievads
mm
2
5 x 2,5
5 x 2,5
5 x 4
Temperat
ū
ra
Pievad
ā
m
ā
ū
dens temperat
ū
ra (maks.)
°C
30
30
30
Karst
ā
ū
dens maks. darba temperat
ū
ra
°C
98
98
98
Maks. darba temperat
ū
ra, izmantojot tvaiku
°C
155
155
155
Temperat
ū
ras paaugstin
ā
šan
ā
s, ja ir maks.
ū
dens caurpl
ū
de °C
56±2
54±2
54±2
Kars
ē
šanas jauda, bruto
kW
68
85
85
Degvielas pat
ē
ri
ņ
š
kg/h
5,8
7,1
7,1
D
ū
mvada velkme
kPa
0,01-0,04
0,01-0,04
0,01-0,04
Izpl
ū
des g
ā
zu masas pl
ū
sma - pilna slodze
kg/h
124
155
155
Izm
ē
ri un svars
Garums
mm
1124
1124
1124
Platums
mm
558
558
558
Augstums
mm
687
699
699
Tipisk
ā
darba masa
kg
164,4
178,8
178,8
Saska
ņā
ar EN 60355-2-79 apr
ēķ
in
ā
t
ā
s v
ē
rt
ī
bas
Trokš
ņ
u emisija
Ska
ņ
as spiediena l
ī
menis L
pA
dB(A)
74
76
76
Nenoteikt
ī
ba K
pA
dB(A)
1
1
1
Plaukstas-rokas vibr
ā
cijas lielums
Rokas smidzin
ā
t
ā
jpistole
m/s
2
2,2
2,3
2,3
Str
ū
klas padeves caurule
m/s
2
1,8
2,1
2,1
Nenoteikt
ī
ba K
m/s
2
1,0
1,0
1,0
396
LV
-
8
Izm
ē
ru tabula
6
8
7
/ 6
9
9
505
558
1124
246
158
1060
47
141
61
77
46
200
300
1018±2
397
LV
-
9
B
ī
stami
Savainošan
ā
s risks! Pirms jebkuriem apkopes un remontdarbiem
ir j
ā
izsl
ē
dz galvenais sl
ē
dzis vai j
ā
atvieno Cekon kontakts.
Kopšana un tehnisk
ā
apkope
Apkopes grafiks
Kad
Veicamais
darbs
Deta
ļ
a, kurai j
ā
veic apkope
Veikšana
Kam j
ā
veic
ik dienas
Rokas smidzin
ā
-
t
ā
jpistoles p
ā
r-
baude
Rokas smidzin
ā
t
ā
jpistole
P
ā
rbaudiet, vai rokas smidzin
ā
t
ā
jpistole cieši no-
sl
ē
dzas. P
ā
rbaudiet, vai drošin
ā
t
ā
js pilda savas
funkcijas - pasarg
ā
pret neat
ļ
autu lietošanu. Ja
rokas smidzin
ā
t
ā
jpistole ir boj
ā
ta, nomainiet to.
Operators
Augstspiediena
š
ļū
te
ņ
u p
ā
rbau-
de
Ar darba apar
ā
tu savienotie iz-
vadi, š
ļū
tenes
P
ā
rbaudiet, vai š
ļū
tenes nav boj
ā
tas. Ja š
ļū
tenes
ir boj
ā
tas, t
ā
s nekav
ē
joties j
ā
nomaina. Negad
ī
ju-
ma risks!
Operators
Piesl
ē
guma
vada un t
ī
kla
kontaktdakšas
p
ā
rbaude
Elektropiesl
ē
gums ar kontakt-
dakšu/kontaktligzdu
P
ā
rbaudiet, vai nav boj
ā
ts piesl
ē
guma vads un
t
ī
kla kontaktdakša. Boj
ā
ta piesl
ē
guma vada no-
mai
ņ
u nekav
ē
joties uzticiet veikt autoriz
ē
t
ā
klien-
tu apkalpošanas dienest
ā
/elektri
ķ
im.
Operators
reizi ned
ēļā
vai ik
p
ē
c 40 ekspluat
ā
-
cijas stund
ā
m
E
ļļ
as st
ā
vok
ļ
a
p
ā
rbaude
S
ū
k
ņ
a e
ļļ
as tvertne
Ja e
ļļ
a ir bl
ā
va, t
ā
j
ā
nomaina.
Operators
E
ļļ
as l
ī
me
ņ
a p
ā
r-
baude
S
ū
k
ņ
a e
ļļ
as tvertne
P
ā
rbaudiet s
ū
k
ņ
a e
ļļ
as l
ī
meni. Vajadz
ī
bas gad
ī
-
jum
ā
iepildiet e
ļļ
u (pas
ū
t. Nr. 6.288-016).
Operators
Sietfiltra t
ī
r
ī
šana Sietfiltrs
ū
dens pievad
ā
Skatiet sada
ļ
u "Sietfiltru t
ī
r
ī
šana".
Operators
reizi m
ē
nes
ī
vai ik
p
ē
c 200 eksplua-
t
ā
cijas stund
ā
m
Not
ī
riet un p
ā
r-
baudiet aizde-
dzes elektrodus
Aizdedzes elektrodi caurpl
ū
des
sild
ī
t
ā
ja v
ā
ci
ņā
Noskr
ū
v
ē
jiet degvielas cauru
ļ
vadu, izmont
ē
jiet
elektrodu tur
ē
t
ā
jus un izt
ī
riet elektrodus. P
ā
rbau-
diet un vajadz
ī
bas gad
ī
jum
ā
noregul
ē
jiet elektro-
du iestat
ī
jumu atbilstoši skicei n
ā
košaj
ā
lappus
ē
.
Instru
ē
ts
operators
S
ū
k
ņ
a p
ā
rbaude Augstspiediena s
ū
knis
P
ā
rbaudiet, vai s
ū
knim nav s
ū
ces. Ja nov
ē
rojami
vair
ā
k k
ā
3 pilieni min
ū
t
ē
, sazinieties ar Klientu
apkalpošanas dienestu.
Operators
P
ā
rbaudiet, vai
nav iekš
ē
ju no-
gulš
ņ
u
Visa iek
ā
rta
S
ā
ciet lietot iek
ā
rtu ar smidzin
ā
šanas cauruli un
bez augstspiediena sprauslas. Ja darba spie-
diens apar
ā
ta manometr
ā
p
ā
rsniedz 3 MPa, ie-
k
ā
rtu nepieciešams atka
ļķ
ot. Tas pats j
ā
dara, ja
str
ā
d
ā
jot bez augstspiediena vada (
ū
dens br
ī
vi
izpl
ū
st no augstspiediena izejas), tiek konstat
ē
ts
vair
ā
k k
ā
0,7 - 1 MPa augsts darba spiediens.
Lietot
ā
js, kas
instru
ē
ts par
atka
ļķ
ošanu
Sietfiltra t
ī
r
ī
šana Sietfiltrs
ū
dens tr
ū
kuma droši-
n
ā
t
ā
j
ā
Skatiet sada
ļ
u "Sietfiltru t
ī
r
ī
šana".
Operators
reizi pusgad
ā
vai
ik p
ē
c 1000 eks-
pluat
ā
cijas stun-
d
ā
m
E
ļļ
as mai
ņ
a
Augstspiediena s
ū
knis
Izlaidiet e
ļļ
u. Iepildiet 1 l jaunas e
ļļ
as (pas
ū
t. Nr.
6.288-016). P
ā
rbaudiet e
ļļ
as l
ī
meni e
ļļ
as tvertn
ē
.
Operators
p
ā
rbaud
ī
t, izt
ī
r
ī
t Visa iek
ā
rta
Veiciet iek
ā
rtas vizu
ā
lo p
ā
rbaudi, p
ā
rbaudiet
augstspiediena piesl
ē
gumu bl
ī
vumu, p
ā
rbaudiet
p
ā
rpl
ū
des v
ā
rsta bl
ī
vumu, p
ā
rbaudiet augstspie-
diena š
ļū
teni, spiedientvertni, izt
ī
riet / atjaunojiet
degvielas filtru, no
ņ
emiet r
ū
su / ka
ļķ
i no apsildes
caurules, not
ī
riet / atjaunojiet aizdedzes elektro-
dus, izt
ī
riet / atjaunojiet deg
ļ
a sprauslu, noregu-
l
ē
jiet degli.
Klientu ap-
kalpošanas
dienests
reizi gad
ā
Droš
ī
bas p
ā
r-
baude
Visa iek
ā
rta
Veiciet droš
ī
bas p
ā
rbaudi saska
ņā
ar attiec
ī
ga-
jiem likumdev
ē
ja nacion
ā
lajiem noteikumiem,
kas attiecas uz š
ķ
idruma smidzin
ā
t
ā
jiem.
Speci
ā
lists
Regul
ā
ri v
ē
l
ā
kais
reizi 5 gados
Spiediena p
ā
r-
baude
Visa iek
ā
rta
Atbilstoši ražot
ā
ja nor
ā
d
ī
jumiem veikt spiediena
p
ā
rbaudi.
Speci
ā
lists
398
LV
-
10
Ir iesp
ē
jams nosl
ē
gt l
ī
gumu ar firmas Kärcher realiz
ā
cijas da
ļ
u
par tehnisk
ā
s apkopes veikšanu ier
ī
cei.
1. att
ē
ls - 3. poz.
Aizsl
ē
gt
ū
dens padevi.
Atskr
ū
v
ē
t no ier
ī
ces
ū
dens padeves š
ļū
teni.
Izb
ī
diet sietfiltru ar skr
ū
vgriezi
ā
r
ā
no piesl
ē
guma.
Sietfiltra t
ī
r
ī
šana
Iemont
ē
jiet apgriezt
ā
sec
ī
b
ā
.
No
ņ
emiet apšuvuma pane
ļ
us.
Noskr
ū
v
ē
jiet no droš
ī
bas bloka le
ņķ
a deta
ļ
u.
Ieskr
ū
v
ē
jiet skr
ū
vi M8x30 sietfiltr
ā
.
Izvelciet skr
ū
vi un sietfiltru ar knaibl
ē
m.
Sietfiltra t
ī
r
ī
šana
Iemont
ē
jiet apgriezt
ā
sec
ī
b
ā
.
Aizdedzes elektrodi j
ā
noregul
ē
atbilstoši š
ā
diem datiem:
Ja cauru
ļ
vados ir nogulsnes, palielin
ā
s pl
ū
smas pretest
ī
ba, k
ā
rezult
ā
t
ā
rea
ģē
manometriskais sl
ē
dzis.
B
ī
stami
Spr
ā
dziena risks uzliesmojošu g
ā
zu ietekm
ē
! Atka
ļķ
ošanas laik
ā
aizliegts sm
ēķē
t. Nodrošiniet labu ventil
ā
ciju.
B
ī
stami
Risks apdedzin
ā
ties ar sk
ā
bi! Lietojiet aizsargbrilles un aizsarg-
cimdus.
Atka
ļķ
ošanai atbilstoši likumu noteikumiem dr
ī
kst izmantot tikai
ka
ļķ
akmens š
ķī
din
ā
t
ā
jus ar p
ā
rbaudes z
ī
mi.
–
RM 100 (pas
ū
t. Nr. 6.287-008) no
ņ
em ka
ļķ
akmeni un vien-
k
ā
ršus ka
ļķ
akmens un mazg
ā
šanas l
ī
dzek
ļ
u palieku savieno-
jumus.
–
RM 101 (pas
ū
t. Nr. 6.287-013) no
ņ
em nogulsnes, kuras ne-
var not
ī
r
ī
t ar RM 100.
Piepildiet 20 litru tvertni ar 15 l
ū
dens.
Pielejiet litru ka
ļķ
akmens š
ķī
din
ā
t
ā
ja.
Piesl
ē
dziet
ū
dens š
ļū
teni tieši pie s
ū
k
ņ
a galvas un br
ī
vo galu
iekariet tvertn
ē
.
Piesl
ē
gto smidzin
ā
šanas cauruli bez sprauslas ielieciet tvert-
n
ē
.
Atveriet rokas smidzin
ā
t
ā
jpistoli un neaizveriet to atka
ļķ
oša-
nas laik
ā
.
P
ā
rsl
ē
dziet apar
ā
ta sl
ē
dzi uz "Deglis iesl
ē
gts", l
ī
dz sasniegti
apm. 40 °C.
Izsl
ē
dziet apar
ā
tu un atst
ā
jiet to uz 20 min
ū
t
ē
m. Rokas smi-
dzin
ā
t
ā
jpistolei j
ā
paliek atv
ē
rtai.
P
ē
c tam izs
ū
kn
ē
jiet apar
ā
tu tukšu.
Nor
ā
de:
Aizsardz
ī
bai pret koroziju un sk
ā
bju palieku neitraliz
ē
-
šanai m
ē
s p
ē
c tam iesak
ā
m no t
ī
r
ī
šanas l
ī
dzek
ļ
a tvertnes caur
apar
ā
tu izs
ū
kn
ē
t s
ā
rmainu š
ķī
dumu (piem., RM 81).
Apar
ā
ts j
ā
uzst
ā
da no sala pasarg
ā
t
ā
s telp
ā
s. Ja past
ā
v sala
risks, piem., uzst
ā
dot lauk
ā
, apar
ā
ts j
ā
iztukšo un j
ā
izskalo ar an-
tifr
ī
zu.
Noskr
ū
v
ē
t no apar
ā
ta
ū
dens apg
ā
des un augstspiediena š
ļū
te-
ni.
Darbin
ā
t apar
ā
tu maks. 1 min
ū
ti, l
ī
dz s
ū
knis un vadi attukšojas.
Noskr
ū
v
ē
jiet pievadu katla gr
ī
d
ā
un iztukšojiet apsildes cauruli.
Nor
ā
de:
Iev
ē
rojiet antifr
ī
za ražot
ā
ja lietošanas nor
ā
d
ī
jumus.
Tvertn
ē
ar pludi
ņ
u l
ī
dz pašai augšai iepildiet tirdzniec
ī
b
ā
pie-
ejamu antifr
ī
zu.
Zem augstspiediena izejas palieciet sav
ā
kšanas tvertni.
Iesl
ē
dziet apar
ā
tu un darbiniet tik ilgi, l
ī
dz rea
ģē
ar pludi
ņ
u
apr
ī
kot
ā
s tvertnes
ū
dens tr
ū
kuma drošin
ā
t
ā
js un apar
ā
ts iz-
sl
ē
dzas.
L
ī
dz ar to tiek pan
ā
kta noteikt aizsardz
ī
ba pret koroziju.
Apkopes l
ī
gums
Sietfiltru t
ī
r
ī
šana
Sietfiltrs
ū
dens pievad
ā
Sietfiltrs
ū
dens tr
ū
kuma drošin
ā
t
ā
j
ā
Elektrodu regul
ē
šana
A
B
C
a
HDS 9/14
4,5±0,5
3,5±0,5
3+0,5
60°
HDS 12/14
3,5±0,5
3,5±0,5
3+0,5
60°
2.
1.
A
B
C
a
Atka
ļķ
ošana
Veikšana
Aizsardz
ī
ba pret aizsalšanu
Ū
dens nolaišana
Izskalot apar
ā
tu ar antifr
ī
zu
399
LV
-
11
B
ī
stami
Savainošan
ā
s risks! Pirms jebkuriem apkopes un remontdarbiem
ir j
ā
izsl
ē
dz galvenais sl
ē
dzis vai j
ā
atvieno Cekon kontakts.
*
Nor
ā
de
Izsl
ē
dziet un iesl
ē
dziet iek
ā
rtu, lai atceltu deg
ļ
a trauc
ē
jumu.
**
Pal
ī
dz
ī
ba darb
ī
bas trauc
ē
jumu gad
ī
jum
ā
Darb
ī
bas trauc
ē
jums
Iesp
ē
jamais c
ē
lonis
Trauc
ē
juma nov
ē
ršana
Kam j
ā
veic
Apar
ā
ts nedarbojas, nedeg
darba gatav
ī
bas kontrollam-
pi
ņ
a (F)
Ier
ī
c
ē
nav sprieguma.
P
ā
rbaud
ī
t elektrot
ī
klu.
Elektri
ķ
is
Iesl
ē
gta droš
ī
bas laika komut
ā
cijas
sist
ē
ma.
Ar apar
ā
ta sl
ē
dzi uz
ī
su br
ī
di izsl
ē
dziet un tad
atkal iesl
ē
dziet apar
ā
tu.
Operators
P
ā
rdedzis vad
ī
bas
ķē
des drošin
ā
-
t
ā
js (F3). Drošin
ā
t
ā
js iek
ļ
auts gal-
venaj
ā
transformator
ā
(T2).
Ievietojiet jaunu drošin
ā
t
ā
ju, ja tas p
ā
rdeg no
jauna, nov
ē
rsiet p
ā
rslodzes c
ē
loni.
Klientu apkalpoša-
nas dienests
Boj
ā
ts manometriskais sl
ē
dzis HD
(augstspiediena) vai ND (zemspie-
diena).
P
ā
rbaudiet manometrisko sl
ē
dzi.
Klientu apkalpoša-
nas dienests
Boj
ā
ts modu
ļ
a taimeris (A1).
P
ā
rbaudiet piesl
ē
gumus, vajadz
ī
bas gad
ī
ju-
m
ā
nomainiet.
Klientu apkalpoša-
nas dienests
Nostr
ā
d
ā
jis izpl
ū
des g
ā
zu ter-
mostats (B8).
Ļ
aujiet iek
ā
rtai atdzist. Atblo
ķē
jiet izpl
ū
des
g
ā
zu termostatu (B8). Nov
ē
rst trauc
ē
juma
c
ē
loni.
Klientu apkalpoša-
nas dienests
+ deg motora p
ā
rkaršanas
kontrollampi
ņ
a (G)
Rea
ģē
jis temperat
ū
ras sensors
(WS) motor
ā
vai p
ā
rslodzes aiz-
sardz
ī
bas sl
ē
dzis (F1).
Nov
ē
rsiet p
ā
rslodzes c
ē
loni.
Klientu apkalpoša-
nas dienests
Rea
ģē
jis
ū
dens tr
ū
kuma drošin
ā
-
t
ā
js tvertn
ē
ar pludi
ņ
u.
Nov
ē
rsiet
ū
dens tr
ū
kumu.
Operators
Deglis neaizdegas vai iek
ā
r-
tas darb
ī
bas laik
ā
nodziest
liesma
P
ā
r
ā
k zemu iestat
ī
ts temperat
ū
ras
regulators (B).
Iestatiet liel
ā
ku temperat
ū
ras v
ē
rt
ī
bu.
Operators
Apar
ā
ta sl
ē
dzis nav iesl
ē
gts uz
degli.
Iesl
ē
dziet degli.
Operators
Rea
ģē
jis droš
ī
bas bloka
ū
dens tr
ū
-
kuma drošin
ā
t
ā
js.
Nodrošiniet pietiekamu
ū
dens padevi. P
ā
r-
baudiet apar
ā
ta herm
ē
tiskumu.
Operators
Iedegas deg
ļ
a trauc
ē
juma
kontrollampi
ņ
a (E) *
Degvielas tvertne ir tukša.
Uzpildiet degvielu.
Operators
Aizs
ē
r
ē
jis degvielas filtrs.
Izt
ī
riet degvielas filtru; šim nol
ū
kam izskr
ū
v
ē
-
jiet degvielas filtru
ā
r
ā
, izt
ī
riet un ieskr
ū
v
ē
jiet
atpaka
ļ
.
Operators
Nepareizi noregul
ē
ts vai boj
ā
ts
liesmas kontroles fotoelements.
P
ā
rbaudiet fotoelementa st
ā
vokli. **
Operators
Nav aizdedzes dzirksteles (var
konstat
ē
t, skatoties caur lodzi
ņ
u
deg
ļ
a p
ā
rseg
ā
).
P
ā
rbaudiet elektrodu att
ā
lumu l
ī
dz aizdedzes
transformatoram un aizdedzes kabelim. Izla-
bojiet att
ā
lumu vai nomainiet boj
ā
t
ā
s da
ļ
as.
Ja nepieciešams, not
ī
riet.
Klientu apkalpoša-
nas dienests
Blo
ķē
ts deg
ļ
a motors.
Atceliet blo
ķē
šanu. No vad
ī
bas pane
ļ
a iz
ņ
e-
miet aizb
ā
zni (I) un atblo
ķē
jiet maksim
ā
l
ā
s
str
ā
vas aizsardz
ī
bas sl
ē
dzi. Ievietojiet aiz-
b
ā
zni atpaka
ļ
.
Klientu apkalpoša-
nas dienests
Degvielas s
ū
k
ņ
a vai degvielas
magn
ē
tisk
ā
v
ā
rsta darb
ī
bas trau-
c
ē
jums.
P
ā
rbaudiet da
ļ
as un, ja t
ā
s ir boj
ā
tas, nomai-
niet.
Operators
400
LV
-
12
Darb
ī
bas trauc
ē
jums
Iesp
ē
jamais c
ē
lonis
Trauc
ē
juma nov
ē
ršana
Kam j
ā
veic
Deg pretapka
ļķ
ošan
ā
s kon-
trollampi
ņ
a (H)
Izlietots
ū
dens m
ī
kstin
ā
t
ā
js.
Iepildiet
ū
dens m
ī
kstin
ā
t
ā
ju.
Operators
Nepietiekama t
ī
r
ī
šanas l
ī
-
dzek
ļ
a padeve vai t
ā
s nav
visp
ā
r
Doz
ē
šanas v
ā
rsts ir poz
ī
cij
ā
"0".
Noregul
ē
jiet t
ī
r
ī
šanas l
ī
dzek
ļ
a doz
ē
šanas
v
ā
rstu.
Operators
Aizsprostots t
ī
r
ī
šanas l
ī
dzek
ļ
a filtrs
vai tukša tvertne.
Izt
ī
riet vai piepildiet.
Operators
Nebl
ī
vas vai aizsprostotas t
ī
r
ī
ša-
nas l
ī
dzek
ļ
a š
ļū
tenes, doz
ē
šanas
v
ā
rsts vai magn
ē
tiskais v
ā
rsts.
P
ā
rbaudiet, izt
ī
riet.
Operators
Boj
ā
ta elektronika vai magn
ē
tis-
kais v
ā
rsts.
Nomainiet
Klientu apkalpoša-
nas dienests
Apar
ā
ts sasniedz maksim
ā
lo
spiedienu
Izskalota sprausla.
Nomainiet sprauslu.
Operators
Tukša t
ī
r
ī
šanas l
ī
dzek
ļ
a tvertne.
Iepildiet t
ī
r
ī
šanas l
ī
dzekli.
Operators
Nepietiekams
ū
dens daudzums.
Nodrošiniet pietiekamu
ū
dens padevi.
Operators
Aizsprostots
ū
dens pievada siet-
filtrs.
P
ā
rbaudiet, izmont
ē
jiet un izt
ī
riet sietfiltru.
Operators
Nebl
ī
vs t
ī
r
ī
šanas l
ī
dzek
ļ
a doz
ē
ša-
nas v
ā
rsts.
P
ā
rbaudiet un nobl
ī
v
ē
jiet.
Operators
Nebl
ī
vas t
ī
r
ī
šanas l
ī
dzek
ļ
a š
ļū
te-
nes.
Nomainiet
Operators
Spr
ū
st pludi
ņ
a v
ā
rsts.
P
ā
rbaudiet t
ā
kust
ī
gumu.
Operators
Nebl
ī
vs droš
ī
bas v
ā
rsts.
P
ā
rbaudiet iestat
ī
jumu, vajadz
ī
bas gad
ī
jum
ā
iemont
ē
jiet jaunu bl
ī
vi.
Klientu apkalpoša-
nas dienests
Nebl
ī
vs vai p
ā
r
ā
k zemu iestat
ī
ts
daudzuma regul
ē
šanas v
ā
rsts.
P
ā
rbaudiet v
ā
rstus, boj
ā
jumu gad
ī
jum
ā
no-
mainiet, ja net
ī
ri - izt
ī
riet.
Klientu apkalpoša-
nas dienests
Boj
ā
ts spiediena reduc
ē
šanas
magn
ē
tiskais v
ā
rsts.
Nomainiet magn
ē
tisko v
ā
rstu.
Klientu apkalpoša-
nas dienests
Klaudz augstspiediena s
ū
k-
nis, strauji sv
ā
rst
ā
s mano-
metrs
Boj
ā
ts amortizators.
Nomainiet amortizatoru.
Klientu apkalpoša-
nas dienests
Ū
dens s
ū
knis nedaudz ies
ū
c gai-
su.
P
ā
rbaudiet s
ū
kšanas sist
ē
mu un nov
ē
rsiet
nebl
ī
vo vietu.
Operators
Kad rokas smidzin
ā
t
ā
jpistole
ir atv
ē
rta, apar
ā
ts nep
ā
r-
traukti iesl
ē
dzas/izsl
ē
dzas
Aizsprostota smidzin
ā
šanas cau-
rules sprausla.
P
ā
rbaudiet, izt
ī
riet.
Operators
Aizka
ļķ
ojies apar
ā
ts.
Skatiet sada
ļ
u "Atka
ļķ
ošana".
Operators
Main
ī
jies p
ā
rpl
ū
des v
ā
rsta komut
ā
-
cijas punkts.
Noregul
ē
jiet p
ā
rpl
ū
des v
ā
rstu no jauna.
Klientu apkalpoša-
nas dienests
Aizsprostots
ū
dens tr
ū
kuma droši-
n
ā
t
ā
ja sietfiltrs.
P
ā
rbaudiet, izmont
ē
jiet un izt
ī
riet sietfiltru.
Operators
Apar
ā
ts neizsl
ē
dzas, kad aiz-
v
ē
rta rokas smidzin
ā
t
ā
jpisto-
le
S
ū
knis nav piln
ī
b
ā
atgaisots.
P
ā
rsl
ē
dziet apar
ā
ta sl
ē
dzi uz "0" un pavelciet
rokas smidzin
ā
t
ā
jpistoli, l
ī
dz no sprauslas
vairs neizpl
ū
st š
ķ
idrums. P
ē
c tam atkal iesl
ē
-
dziet apar
ā
tu. Atk
ā
rtojiet šo procesu, kam
ē
r
sasniegts pilns darba spiediens.
Operators
Boj
ā
ts droš
ī
bas v
ā
rsts vai droš
ī
bas
v
ā
rsta bl
ī
ve.
Atjaunojiet droš
ī
bas v
ā
rstu vai bl
ī
vi.
Klientu apkalpoša-
nas dienests
401
LV
-
13
T
ī
r
ī
šanas l
ī
dzek
ļ
i atvieglo t
ī
r
ī
šanas uzdevumu izpildi. Tabul
ā
pa-
r
ā
d
ī
ti izv
ē
lei pieejamie t
ī
r
ī
šanas l
ī
dzek
ļ
i. Pirms t
ī
r
ī
šanas l
ī
dzek
ļ
u
lietošanas noteikti j
ā
iev
ē
ro nor
ā
d
ī
jumi uz iepakojuma.
* = tikai
ī
slaic
ī
gai izmantošanai, divu so
ļ
u metode, noskalot ar t
ī
ru
ū
deni
** = ASF = emul
ģē
jošs
*** = iepriekš
ē
jai apsmidzin
ā
šanai der Foam-Star 2000
Piederumi
Mazg
ā
šanas l
ī
dzek
ļ
i
Pielietošanas joma
Net
ī
rumi, pielietojuma veids
Mazg
ā
šanas l
ī
dzek
ļ
i
pH v
ē
rt
ī
ba (apm.) 1 %
š
ķī
dums
ū
densvada
ū
den
ī
Transportl
ī
dzek
ļ
u indus-
trija, degvielas uzpildes
stacijas, ekspeditori, au-
toparki
Putek
ļ
i, ielu net
ī
rumi, miner
ā
le
ļļ
as
(uz lakot
ā
m virsm
ā
m)
RM 55 ASF **
8
RM 22/80 pulveris ASF
12/10
RM 81 ASF
9
RM 803 ASF
10
RM 806 ASF
11
Transportl
ī
dzek
ļ
a iekonserv
ē
šana RM 42 aukstais vasks augstspiediena t
ī
r
ī
ša-
nas iek
ā
rt
ā
m
8
RM 820 karstais vasks ASF
7
RM 821 smidzin
ā
mais vasks ASF
6
RM 824 super p
ē
r
ļ
u vasks ASF
7
RM 44 rite
ņ
u disku t
ī
r
ī
šanas g
ē
ls
9
Met
ā
lapstr
ā
des industrija E
ļļ
as, sm
ē
res, putek
ļ
i un l
ī
dz
ī
gi ne-
t
ī
rumi
RM 22 pulveris ASF
12
RM 55 ASF
8
RM 81 ASF
9
RM 803 ASF
10
RM 806 ASF
12
RM 31 ASF (lielai net
ī
r
ī
bai)
12
RM 39, š
ķ
idrs (ar pretkorozijas aizsardz
ī
bu)
9
P
ā
rtikas r
ū
pniec
ī
bas uz-
ņē
mumi
Nelieli l
ī
dz vid
ē
ji net
ī
rumi, tauki/e
ļ
-
ļ
as, lielas virsmas
RM 55 ASF
8
RM 81 ASF
9
RM 882 g
ē
la putas OSC
12
RM 58 ASF (putojošs t
ī
r
ī
šanas l
ī
dzeklis)
9
RM 31 ASF *
12
Darva
RM 33 *
13
T
ī
r
ī
šana un dezinfekcija
RM 732
9
Dezinfekcija
RM 735
7...8
Ka
ļķ
is, miner
ā
lu nos
ē
dumi
RM 25 ASF *
2
RM 59 ASF (t
ī
r
ī
šana ar put
ā
m)
2
Sanit
ā
rais mezgls ***
Ka
ļķ
is, ur
ī
nakmens, ziepes utt.
RM 25 ASF * (pamatt
ī
r
ī
šana)
2
RM 59 ASF (t
ī
r
ī
šana ar put
ā
m)
2
RM 68 ASF
5
402
LV

