Karcher Nettoyeur haute pression HDS 12-14-4 ST Gaz: !
!: Karcher Nettoyeur haute pression HDS 12-14-4 ST Gaz
-
14
–
Varmeinnretningen på maskinen er et fyringsanlegg. De gjel-
dende forskriftene i de enkelte land må overholdes ved mon-
teringen.
–
Bruk kun godkjente skorsteiner/avgassrør.
–
Installasjon av gassledninger, så vel tilkobling på gassiden av
appratet, skal kun utføres av et firma godkjent for denne type
gass- og rørleggerarbeide.
–
Instillinger og reparasjon av gassbrenner skal kun utføres av
opplærte Kärcher-kundeservice montører.
–
I gassledninger som er dimensjonert med minst 1 tomme no-
minell diameter, må det være montert manometer og stenge-
kran.
–
På grunn av at høytrykkspumpen forårsaker vibrasjoner, må
forbindelsen mellom stiv gassledning og apparatet gjøres
med en fleksibel gasslange.
–
Ved gassledninger på mer enn 10 meters lengde må det
være nominell diameter 1 1/2 tomme eller større. Gasstilkon-
blingen på apparatet har nominell diameter på 1 tomme.
Fare
Ved innskruing av den fleksible gasslangen på brenneren må til-
koblingsnippel holdes igjen med en fastnøkkel dimensjon M36.
Tilkoblingsnippelen kan ikke dreies i forhold til brennerhuset. Tet-
ningen av gjengetilkoblingen skal gjøres med DVGW-godkjent
tetningsmiddel. Etter tilkobling må koblingsstedene kontrolleres
for tetthet ved hjelp av DVGW-godkjent lekkasjespray.
Rørtykkelsen på gassledningen må beregnes ut fra DVGW TRGI
1986 eller TRF 1996. Nominell tykkelse på apparatets tilkobling
er ikke automatisk rørledningens nominelle diameter. Dimensjo-
neringen og installasjonen av gassledningen må skje etter de
gjeldende standarder og forskrifter.
–
Hvert apparat må kobles til en egen skorstein.
–
Avgassføringen skal monteres i henhold til lokale forskrifter
og som avtalt med lokal skorsteinsfeier (brannvesen).
Gassapparat uten strømningssikring, der alle deler som står un-
der overtrykk i avgassruten spyles med forbrenningsluft. B23-in-
stallassjon gjør det mulig at apparatet kan bruke en vanlig ett-
løps skorstein etter DIN 18160 og drives uavhengig av romluften.
Forutsetningen er at skorstein er egnet for tilkobling av brennver-
diapparater (f.eks. ved at skorsteinen er renovert ved inntrekking
av et edelstålrør).
Gassapparat med tilførsel av forbrenningsluft og avgass-fjerning
vertikalt over tak. Munningene befinner seg nær hverandre i sam-
me trykkområde.
Installasjon av anlegget
Kun for autorisert fagpersonale!
Generelt
Gass generelt
Gassledninger
Luft-/avgassutførsel
!
Gass apparat med avgassanlegg som bruker forbrennings-
luft fra monteringsrommet
Type B23
Gassapparat med avgassanlegg som henter forbrennings-
luft fra utsiden via et lukket system.
Type C33
176
NO
-
15
Gassapparat med tilførsel av forbrenningsluft og fjerning av av-
gass via et luft-avgass system.
Gassapparat med skilt tilførsel av forbrenningsluft og fjerning av
avgass. Munningene befinner seg i ulike trykkområder.
Merk:
For å oppfylle de foreskrvne forbrenningsverdiene, må det
angitte skorsteinstrekket under tekniske data overholdes.
Kondensatledningen må kobles direkte på kondensattilkoblingen
med sifong. Sifongens høyde må være på 30cm. Sifongen er ikke
inkludert i leveransen. Kondensatledningen må ikke ha fast til-
slutning til avløpssystemet. Kondensatet må kunne løpe fritt ut i
en trakt eller nøytraliseringsbeholder.
–
Før apparatet monteres på vegg, skal veggen kontrolleres for
tilstrekkelig bærekraft. Det medfølgende monteringsmateria-
let egner seg for betong. For vegger av hule byggesten, mur-
sten og lettbetong skal egnede plugger og skruer anvendes,
f.eks. injeksjonsanker for hullbilde se monteringtegning).
–
Figur 3 - pos. 19 og 25
Apparatet skal ikke ha fast forbindelse med vannlednings- el-
ler høytrykksnettet. Forbindelsesslange må absolutt monte-
res.
–
Figur 3 - A
Mellom vannledningsnettet og forbindelsesslangen skal det
monteres en stengekran.
Ved montering av høytrykksledningene skal gjeldende nasjonale
lover og regler følges.
–
Trykkfallet i rørledningen må ikke komme under 1,5 MPa.
–
Den ferdige rørledningen må testes med 32 Mpa.
–
Isolasjonen rundt rørledningen må være temperaturbestan-
dig opptil 100 °C.
Bilde 3 - pos. 20
Beholderen skal settes opp på en slik måte at det nedre nivået for
rengjøringsmiddelet ikke befinner seg mer enn 1,5 m under bun-
nen på apparatet, og det øvre nivået ikke befinner seg over bun-
nen på apparatet.
Figur 3 - B og pos. 19
Vanninnløp kobles med en passende vannslange til vannled-
ningsnettet.
–
Ytelsen av vannforsyning må være minst 1300 l/h ved minst
0,1 MPa.
–
Vanntemperaturen må ligge under 30 °C.
Type C43
Type C53
Kondensaavtapping
Veggmontering
Montering av høytrykksslanger
Montere beholder for rengjøringsmiddel
Vanntilførsel
177
NO
-
16
Forsiktig!
Maksimalt tillatt nettimpedans på det elektriske tilkoblingspunktet
(se tekniske data) skal ikke overskrides. Dersom det er uklarheter
om nettimpedansen på tilkoblingspunktet ditt, vennligst kontakt
strømleverandøren for informasjon.
Merk:
Innkopling av apparatet genererer kortvarige spennings-
fall. Ved ugunstige forhold i strømnettet kan dette også få innvirk-
ning på andre apparater.
–
Se typeskilt og tekniske data for tilkoblingsverdier.
–
Den elektriske tilkoblingen må foretas av en servicemontør el-
ler en autorisert elektriker og må være iht. IEC 60364-1.
–
Strømførende deler, kabler og apparater i arbeidsområdet må
være i feilfri stand og spylesikre.
For å unngå el-ulykker anbefaler vi at du bruker stikkontakter
med forankoblede vernebrytere for å beskytte mot feilstrøm
(maks. nominell utløsningsstrøm: 30 mA).
Utfør elektrisk tilkobling.
For utkobling av den stasjonære hytrykksvaskeren skal det plas-
seres en låsbar hovedbryter (bilde 3 - pos. 6) på et lett tilgjengelig
og sikkert sted.
Kontaktåpningsbredden på hovedbryteren skal være på minst 3
mm.
Cekon-støpsel monteres på apparatets strømkabel.
Cekon-støpsel settes i stikkontakten.
For å slå av den stasjonære høytrykksvaskeren må Cekon-støp-
selet være lett tilgjengelig for frakobling.
Kontrollere gasstilkobling.
Forsiktig!
Fare for skader på apparatet fra overoppvarming.
Koble til vannlås til kjelebunnen og fyll med vann.
Fyll kjelen med 4 liter vann via skorsteinsåpningen.
Skjær av spissen på lokket på vannpumpens oljebeholder før
førstegangs igangsetting.
Bilde 3 - pos. 14
Koble høytrykksslange til høytrykkpistol og strålerør, og koble
til høytrykksuttak på apparatet eller til høytrykks-ledningsnett.
Dysemunnstykke (b) festes med festemutter (a) til strålerøret
(d). Påse at tetningsringen (c) ligger korrekt i sporet.
Elektrisk tilkobling
Fast installer elektrisk tilkobling
Elektrisk tilkobling med støpsel/stikkontakt
Førstegangs igangsetting
Apparatet er fra fabrikken innstilt som naturgass-apparat for
gasstype G 20 og som flytende-gass apparat til type G 31. Ved
omstilling av naturgass-apparat til G 25 eller andre (se typeskilt)
naturgasser, eller flytende-gass apparater til type G 30 eller an-
dre (se typeskilt) flytende gasser, skal det for naturgass-avgass-
verdier og for flytende-gass apparater, stilles inn i henhold til
service-informasjonen.
Det vedlagte tomme skiltet skal merkes med ny innstilt gasstype
og plasseres i merkefeltet på høyre side av apparatet. Samtidig
må skiltet levert fra fabrikken med merking G 20 (naturgassap-
parat) eller G 31 (flytende-gass apparat) fjernes.
Tiltak før igangsetting
a
b
c
d
178
NO
-
17
Fjær (c) på lokkstøtten (b) på beholder for bløtemiddel (a) fjer-
nes.
Fyll beholderen med Kärcher-bløtemiddel RM 110 (best.nr.
2.780-001).
Fare!
Farlig elektrisk spenning! Innstilling er kun tillatt utført av autori-
sert elektriker.
Undersøk lokal vannhardhet:
–
Ifølge opplysninger fra det lokale vannverket,
–
Ved hjelp av apparat for måling av hardhetsgrad (best.nr.
6.768-004).
Ta av maskinhetten.
Åpne koblingsboks ved driftspanelet.
Innstill dreiepotensiometeret (a) avhengig av vannets hard-
hetsgrad. Korrekt innstilling fremgår av tabellen.
Eksempel:
Eksempel: For en hardhetsgrad på 15°dH innstilles skalaverdien
6 på dreiepotensiometeret. Dette gir en pausetid på 31 sekunder.
Dvs. magnetventilen åpner kort hvert 31. sekund.
Innstillingen for beredskapstiden skjer på det store kortet på ven-
stre sidevegg i koplingsskapet.
Beredskapstiden er fra fabrikken satt til minimumstiden på 2 mi-
nutter og kan forlenges til maksimumstiden på 8 minutter.
Beskyttelse mot forkalking
Vannhardhet (°dH)
5
10
15
20
25
Skala på dreiepotensiometer
8
7
6
5
4,5
Pausetid (sekunder)
50
40
31
22
16
b
c
a
a
Innstilling av driftsberedskapstid
8 7 6 5 4 3 2 1
S2
min.
max.
179
NO
-
18
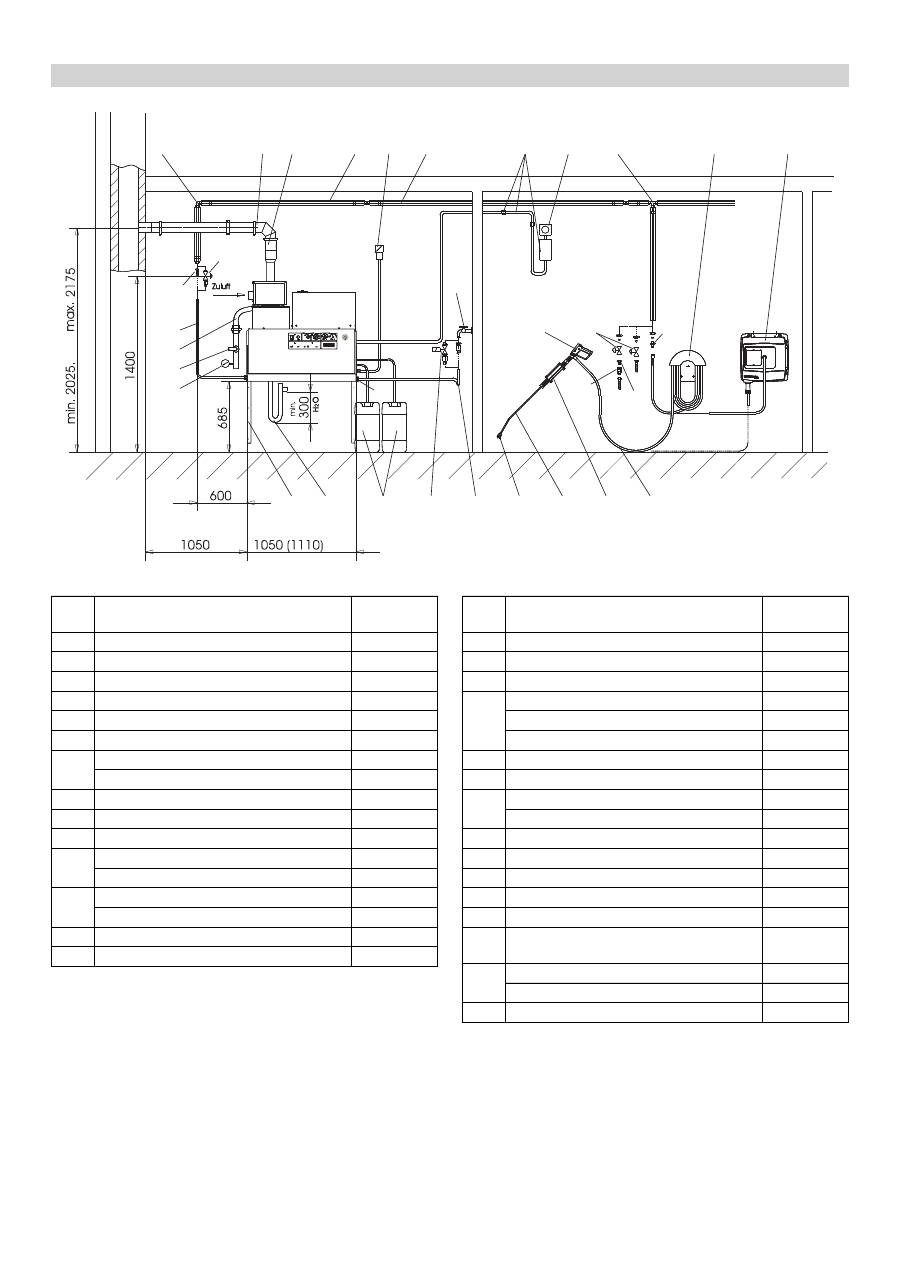
Bilde 3
Installasjonsmateriell
1
2
3
5
6
7
8
9
10
12
13
A
15
11b
11a
11c
11a
25
21
22
23
11b
24
4
20
19a
19
18
17
16
14
11d
B
Pos. Installasjonsmateriell
Bestillings-
nr.
1
Vinkelfeste
6.386-356
2
Avgassledningssett, vannrett, 150 mm
6.526-231
3
Avgassledningssett, loddrett, 150 mm
6.526-232
4
Delesats vannlås
2.640-422
5
Varmeisolasjon
6.286-114
6
Hovedbryter
6.631-455
7
Rørledningssats, forsinket stål
2.420-004
Rørledningssats, rustfritt stål
2.420-006
8
Delesats fjernkontroll
2.744-008
9
Delesats NØD-STOPP-bryter
2.744-002
10
T-feste
6.386-269
11a
Tilkoblingsstusser, messing
2.638-180
Tilkoblingsstusser, rustfritt stål
2.638-181
11b
Sperrekran NW 8, forsinket stål
4.580-144
Sperrekran NW 8, rustfritt stål
4.580-163
11c
Hurtigkobling festedel
6.463-025
11d
Hurtigkobling løsedel
6.463-023
Pos. Installasjonsmateriell
Bestillings-
nr.
12
Slangeholder
2.042-001
13
Slangetrommel
2.637-238
14
Høytrykkslange 10 m
6.388-083
15
Høytrykkspistol Easypress
4.775-463
Dreieregulator HDS 9/16-4
4.775-470
Dreieregulator HDS 12/14-4
4.775-471
16
Strålerørholder
2.042-002
17
Strålerør
4.760-550
18
Dysemunnstykke HDS 9/16-4
2.883-402
Dysemunnstykke HDS 12/14-4
2.883-406
19
Vannslange
4.440-282
19a
Magnetventil vanntilførsel
4.743-011
20
Rengjøringsmiddel-tank, 60 l
5.070-078
21
Gasslange R1“
6.388-228
22
Gass-stengekran R1“
6.412-389
23
Manometer, gass (OBS! monter avslut-
ningsventil på byggsiden.)
6.412-059
24
Delesats veggkonsoll
2.053-005
Delesats gulvstativ
2.210-008
25
Høytrykksslange
6.389-028
180
NO
-
19
Vi erklærer hermed at maskinen angitt nedenfor oppfyller de
grunnleggende sikkerhets- og helsekravene i de relevante EF-di-
rektivene, med hensyn til både design, konstruksjon og type mar-
kedsført av oss. Ved endringer på maskinen som er utført uten
vårt samtykke, mister denne erklæringen sin gyldighet.
5.957-648
De undertegnede handler på oppdrag fra, og med fullmakt fra sel-
skapsledelsen.
Dokumentasjonsansvarlig:
S. Reiser
Alfred Kärcher GmbH & Co. KG
Alfred-Kärcher-Str. 28 - 40
71364 Winnenden (Germany)
Tlf:
+49 7195 14-0
Faks: +49 7195 14-2212
Winnenden, 2014/02/01
Vår ansvarlige salgsorganisasjon for det enkelte land har utgitt
garantibetingelsene som gjelder i det aktuelle landet. Eventuelle
feil på apparatet repareres gratis innenfor garantitiden dersom
årsaken er en material- eller produksjonsfeil.
EU-samsvarserklæring
Produkt:
Høytrykksvasker
Type:
1.251-xxx
Relevante EU-direktiver
2009/142/EF
2006/42/EF (+2009/127/EF)
2004/108/EF
Anvendte overensstemmende normer
EN 55014–1: 2006+A1: 2009+A2: 2011
EN 55014–2: 1997+A1: 2001+A2: 2008
EN 60335–1
EN 60335–2–79
EN 62233: 2008
EN 61000–3–2: 2006+A1: 2009+A2: 2009
HDS 12/14:
EN 61000–3–3: 2008
HDS 9/16:
EN 61000–3–11: 2000
Anvendte spesifikasjoner:
QA 195 (ikke LPG)
Navn på oppnevnt sted:
For 2009/142/EF
GASTEC
Wilmersdorf 50
7327 AC Apeldoorn
Merkenr.: 0063
Garanti
CEO
Head of Approbation
181
NO
-
20
Kundetjeneste
Anleggstype:
Prodksjonsnr.:
Tatt i bruk den:
Kontroll gjennomført den:
Funnet:
Underskrift
Kontroll gjennomført den:
Funnet:
Underskrift
Kontroll gjennomført den:
Funnet:
Underskrift
Kontroll gjennomført den:
Funnet:
Underskrift
182
NO
-
1
Läs bruksanvisning i original innan aggregatet an-
vänds första gången, följ anvisningarna och spara
driftsanvisningen för framtida behov, eller för nästa ägare.
–
Bruksanvisning samt säkerhetsanvisning nr. 5.956-309 mås-
te läsas före första användningstillfället!
–
Informera inköpsstället omgående vid transportskador.
Upplysningar om ingredienser (REACH)
Aktuell information om ingredienser finns på:
www.kaercher.com/REACH
Fara
För en omedelbart överhängande fara som kan leda till svåra
skador eller döden.
몇
Varning
För en möjlig farlig situation som kan leda till svåra skador eller
döden.
Varning
För en möjlig farlig situation som kan leda till lätta skador eller
materiella skador.
Högtrycksstrålar kan vid felaktig användning vara farli-
ga. Strålen får inte riktas mot människor, djur, aktiv
elektrisk utrustning eller mot själva aggregatet.
–
Beakta lagstadgade, nationella föreskrifter för högtryckstvät-
tar.
–
Beakta gällande, nationella regelverk för olycksfallsskydd.
Högtryckstvättar måste kontrolleras regelbundet och kontroll-
resultatet måste noteras skriftligt.
–
Aggregatets uppvärmningsanordning är en förbränningsan-
läggning. Förbränningsanläggningar måste kontrolleras re-
gelbundet och i enlighet med gällande, nationella regelverk.
–
När anläggningen används inomhus måste avgaserna ledas
ut riskfritt (rökgasledning utan dragdämpare). Dessutom
måste tillräckligt friskluftsflöde finnas.
–
Beakta de säkerhetshänvisningar som följer de rengörings-
medel som används (i.r. på etiketten).
Innan aggregatet installeras bör gasleverantör och sotarmästare
kontaktas för avstämning.
Vid installering skall byggrättsregler och riktlinjer för närings- och
handelsrätt samt immissionsskydd beaktas. Vi framhåller nedan
listade föreskrifter, riktlinjer och normer:
–
Aggregatet får endast installeras av för uppgiften auktoriserat
företag och enligt gällande, nationella föreskrifter.
–
Föreskrivna nationella riktlinjer för elinstallationer skall beak-
tas.
–
Föreskrivna, nationella riktlinjer skall beaktas vid gasinstalle-
ring.
–
Dragning av gasledningar och anslutning av aggregatet till
gasförsörjningen får endast utföras av på området auktorise-
rat företag.
–
Inställningar, servicearbeten och reparationer på brännaren
får endast utföras av utbildade montörer från Kärcher kund-
service.
–
Vid planeringen av en kamin måste lokalt gällande riktlinjer
beaktas.
Innehållsförteckning
Miljöskydd . . . . . . . . . . . . . .
SV . . 1
Symboler i bruksanvisningen
SV . . 1
Symboler på aggregatet . . .
SV . . 1
Allmänna säkerhetsanvisningar
SV . . 1
Ändamålsenlig användning .
SV . . 2
Funktion . . . . . . . . . . . . . . .
SV . . 2
Säkerhetsanordningar. . . . .
SV . . 2
Aggregatelement. . . . . . . . .
SV . . 3
Idrifttagning . . . . . . . . . . . . .
SV . . 4
Handhavande . . . . . . . . . . .
SV . . 4
Ta ur drift . . . . . . . . . . . . . . .
SV . . 6
Nedstängning . . . . . . . . . . .
SV . . 6
Förvaring . . . . . . . . . . . . . . .
SV . . 6
Transport. . . . . . . . . . . . . . .
SV . . 6
Tekniska data . . . . . . . . . . .
SV . . 7
Skötsel och underhåll . . . . .
SV . . 9
Åtgärder vid störningar . . . .
SV . 11
Tillbehör . . . . . . . . . . . . . . .
SV . 13
Anläggningsinstallering . . . .
SV . 14
Försäkran om EU-överensstämmelse
SV . 19
Garanti . . . . . . . . . . . . . . . .
SV . 19
Kundservice . . . . . . . . . . . .
SV . 20
Miljöskydd
Emballagematerialen kan återvinnas. Kasta inte em-
ballaget i hushållssoporna utan lämna det till återvin-
ning.
Kasserade apparater innehåller återvinningsbart ma-
terial som bör gå till återvinning. Batterier, olja och lik-
nande ämnen får inte komma ut i miljön. Överlämna
skrotade aggregat till ett lämpligt återvinningssystem.
Motorolja, värmeolja, diesel och bensin får inte släppas ut i mil-
jön. Skydda marken och avfallshantera förbrukad olja på ett mil-
jövänligt sätt.
Kärcher rengöringsmedel är avskiljningsvänliga (ASF). Detta
innebär att en oljeavskiljares funktion inte hindras. Du finner en
lista med rekommenderade rengöringsmedel i kapitel "Tillbe-
hör".
Symboler i bruksanvisningen
Symboler på aggregatet
Allmänna säkerhetsanvisningar
Föreskrifter, riktlinjer och regler
183
SV
-
2
Arbetsplatsen befinner sig på manöverpanelen. Ytterligare ar-
betsplatser finns, beroende på anläggningsstrukturen, på tillbe-
hörsutrustningen (sprutanordningar), som monteras på
anslutningspunkterna.
–
Bär lämpliga skyddskläder och skyddsglasögon som skydd
mot tillbakasprutande vatten eller smuts.
Aggregatet är avsett för borttagning av smuts från ytskikt med
hjälp av vattenstråle. Den används framför allt till rengöring av
maskiner, fordon och fasader.
Fara
Skaderisk! Vid användning på bensinmackar eller andra riskfyll-
da områden måste gällande säkerhetsföreskrifter följas.
–
Kallvattnet når flottörbehållaren via motorkylslingan och fort-
sätter därifrån till yttermanteln på genomströmningsbereda-
ren för att sedan gå vidare till sugsidan på högtryckspumpen.
I flottörbehållaren tillsätts avhärdare. Pumpen matar vatten
och rengöringsmedel, som sugits upp, genom genomström-
ningsberedaren. Mängden rengöringsmedel i vattnet kan
ställas in med en doseringsventil. Genomströmningsbereda-
ren värms med en gasbrännare.
–
Högtrycksutgången ansluts till ett i byggnaden befintligt hög-
tryckssystem. Handsprutan monteras på anslutningspunkter-
na i detta system med en högtrycksslang.
Säkerhetsanordningar är avsedda att skydda användaren och får
inte deaktiveras eller kringås i sin funktion.
Vattenbristsäkringen förhindrar att högtryckspumpen startar vid
vattenbrist.
Vattenbristsäkringen förhindrar att brännaren överhettas vid vat-
tenbrist. Endast vid tillräcklig vattenförsörjning startar brännaren.
Tryckställaren stänger av aggregatet när arbetstrycket under-
skrids. Inställningen får inte förändras.
Vid störning hos tryckställaren öppnas säkerhetsventilen. Denna
ventil är inställd hos tillverkaren och plomberad. Inställningen får
inte förändras.
Flamövervakningen stänger av brännaren om det föreligger stör-
ning hos denna, eller om bränsle saknas. Kontrolllampan Stör-
ning brännare (E) tänds.
Är brännarmotorn blockerad löser överströmsbrytaren ut. Hög-
tryckspumpens motor är säkrad med en motorskyddsbrytare och
en lindningsskyddsbrytare.
Avgastermostaten löser ut när avgastemperaturen överstiger
320 °C. Kontrolllampan Avgastermostat (K) lyser.
Termostaten för maxtemperatur i tankbotten (> 80 °C) och i vat-
tenutmatningen (> 110 °C) löser ut och kontrolllampan Störning
brännare (E) lyser.
Avgastryckställaren stänger av brännaren när för högt mottryck
uppstår i avgassystemet, t.ex. vid tilltäppning.
När aggregatet stängts av via handsprutan öppnas en i hög-
tryckssystemet monterad magnetventil, när stand by - perioden
gått, vilket gör att trycket sjunker.
Arbetsplatser
Personlig skyddsutrustning
Bär hörselskydd för att minska risken för hörsel-
skador när bullerförstärkande delar rengörs.
Ändamålsenlig användning
Avloppsvatten, innehållande mineralolja, får inte komma ut i
mark, vattendrag eller kanalisation. Motor- och underredestvätt
utförs därför enbart på lämpliga platser, utrustade med oljeav-
skjiljare.
Funktion
Säkerhetsanordningar
Vattenbristsäkring flottörbehållare
Vattenbristsäkring säkerhetsblock
Tryckställare
Säkerhetsventil
Flamövervakning
Överströmsskydd
Avgastermostat
Temperaturbrytare
Avgastryckställare
Tryckavlastning högtryckssystem
184
SV
-
3
Bild 1
1 Brännare
2 Manometer
3 Färskvatteninflöde med sil
4 Högtrycksutgång
5 Gasanslutning
6 Sugslang för rengöringsmedel I
7 Sugslang för rengöringsmedel II (tillval)
8 Avhärdningsbehållare
9 El-matarledning
10 Flottörbehållare
11 Användningsområde
Bild 2
A Huvudreglage
B Temperaturregulator
C Doseringsventil rengöringsmedel I
D Doseringsventil rengöringsmedel II (tillval)
E Kontrollampa Störning brännare
F Kontrollampa för aggregat driftsklar
G Kontrollampa Överhettning motor
H Kontrollampa Förkalkningsskydd
I
Upplåsningsknapp Gasrelä
J Upplåsningsknapp Avgastermostat
K Kontrollampa Avgastermostat
Aggregatelement
4
5
6
7
3
8
10
1
11
2
9
Användningsområde
185
SV
-
4
몇
Fara
Risk för skador! Aggregat, matarledningar, högtrycksslang och
anslutningar måste vara i ett oklanderligt tillstånd. Är skicket inte
oklanderligt får aggregatet inte användas.
–
Anslutningsvärde, se Tekniska data och typskylten.
–
Den elektriska anslutningen måste utföras av en elektriker
och motsvara IEC 60364-1.
Användaren ska använda aggregatet i enlighet med gällande be-
stämmelser. Användaren ska ta hänsyn till lokala förutsättningar
och kontrollera att ingen uppehåller sig i närheten vid arbete med
aggregatet.
Lämna aldrig aggregatet utan uppsikt så länge det är i drift.
Fara
–
Risk för skållning på grund av mycket varmt vatten! Rikta inte
högtryckstrålen mot människor eller djur.
–
Risk för brännskador på grund av mycket varma anläggnings-
delar! Vidrör inte oisolerade rör och slangar när varmvatten
används. Håll i greppytorna på stråröret, ingen annanstans.
Tag inte i genomströmningsberedarens avgasstöd.
–
Risk för förgiftnings- eller frätskador på grund av rengörings-
medel! Beakta anvisningarna på rengöringsmedlen. Förvara
rengöringsmedel utom räckhåll för obefogade.
Fara
Livsfara på grund av elektrisk stöt! Rikta inte vattenstrålen mot
följande anordningar:
–
elektriska apparater och anläggningar,
–
denna anläggning,
–
alla strömförande delar inom arbetsområdet.
Vattenstrålen som kommer ur strålröret genererar en rekylkraft.
Genom det vinklade strålröret skapas en uppåtverkande kraft.
Fara
–
Risk för skada! Rekylkraften hos strålröret kan göra att man
tappar balansen. Man kan ramla. Strålröret kan kastas om-
kring och skada personer. Leta upp stabilt underlag att stå på
och håll fast handsprutan ordentligt. Kläm aldrig fast spaken
på handsprutan.
–
Rikta inte strålen mot dig själv eller mot andra för att rengöra
kläder eller skor.
–
Skaderisk genom ivägflygande delar! Ivägflygande brott-
stycken eller föremål kan skada personer eller djur. Rikta ald-
rig vattenstrålen mot föremål som lätt kan förstöras eller som
är lösa.
–
Risk för olycksfall på grund av skador! Rengör däck och ven-
tiler från ett minsta avstånd på 30 cm.
몇
Varning
Fara på grund av hälsovådliga substanser! Spola inte av följande
material eftersom hälsovådliga substanser då kan virvla runt:
–
material som innehåller asbest,
–
material som kan innehålla hälsovådliga substanser.
Fara
–
Risk för skador på grund av, eventuellt mycket varm, vatten-
stråle! Endast Kärcher högtrycksslangar i originalutförande är
exakt anpassade till anläggningen. Vid användning av andra
slangar lämnas ingen garanti.
–
Hälsorisk på grund av rengöringsmedel! Det vatten som kom-
mer ut ur aggregatet har inte dricksvattenkvalitet eftersom
rengöringsmedel kan ha blandats i.
–
Risk för hörselskador på grund av arbete på bullerförstärkan-
de delar! Bär då hörselskydd.
Fara
Risk för skador på grund av, eventuellt mycket varm, vattenstråle!
Fara
Kontrollera före drift att högtrycksslangen inte är skadad. Byt ge-
nast ut skadade högtrycksslangar.
Kontrollera högtrycksslang, rörledningar, armaturer och
sprutrör på skador före varje användning.
Kontrollera att slangkopplingar sitter fast ordentligt och att de
är täta.
Varning
Risk för skada på grund av torrkörning.
Kontrollera fyllnadsnivån i behållaren för rengöringsmedel
och fyll vid behov på.
Kontrollera fyllnadsnivån i behållaren för avhärdningsmedel
och fyll vid behov på.
Ställ reglage (A) på "0".
Stäng vattentillförseln.
Använd handsprutan tills apparaten är trycklös.
Stäng gasflödet.
Idrifttagning
Elanslutning
Handhavande
Säkerhetsanvisningar
!
Förbered drift
Avstängning vid nödfall
186
SV
-
5
Att vrida mängdregulatorn medsols ger högre arbetstryck och
större matningsmängd.
Vrids mängdregulatorn motsols minskas arbetstryck och mat-
ningsmängd.
Att vrida vattenmängdsregulatorn åt höger ger större mat-
ningsmängd och högre arbetstryck.
Att vrida vattenmängdsregulatorn åt vänster ger mindre mat-
ningsmängd och lägre arbetstryck.
Öppna vattenförsörjning.
Symbol “Motor på“
Drag i spaken på handsprutan och ställ reglaget (A) på “1“
(Motor på).
Kontrollampan Driftsklar (F) visar att aggregatet är klart för
användning.
Fara
Risk för skållning!
Varning
Varmvattendrift utan drivmedel leder till skador på drivmedels-
pumpen. Säkerställ drivmedelsförsörjningen innan varmvatten-
drift startas.
Brännaren kan kopplas in vid behov.
Symbol “Brännare på“
Ställ reglaget (A) på “Brännare på“.
Ställ in önskad vattentemperatur med temperaturställaren
(B). Högsta temperatur är 98 °C.
–
Släpps spruthandtaget under drift stängs aggregatet av.
–
Öppnas sprutan på nytt under den inställbara stand by-perio-
den (2...8 minuter) så startar aggregatet själständigt igen.
–
Överskrids stand by-perioden stänger den tidsinställda säker-
hetsbrytaren av pump och brännare. Kontrollampan Driftsklar
(F) slocknar.
–
För att starta på nytt, ställ reglaget på läge “0“ och starta igen.
Är aggregatet fjärrstyrt kan återstarten utföras med motsva-
rande reglage på fjärrstyrningsanordningen.
–
Däck på fordon får endast rengöras med flatstrålmunstycke
(25°) ett minsta sprutavstånd på 30 cm. Däck får under inga
omständigheter rengöras med rund stråle.
För alla andra uppgifter finns följande munstycken att välja mel-
lan:
Vid mer än 20 m rör eller mer än 2 x 10 m högtrycksslang NW 8
skall följande munstycken användas:
Ställ in arbetstryck och
matningsmängd
Inställning på aggregatet
Inställning på Easypressprutan (tillval)
Drift med kallt vatten
R
Drift med varmvatten
Driftsklar
Munstycken
Ned-
smuts-
ning
Mun-
stycke
Sprutvin-
kel
Artikelnr.
6.415
Tryck
[MPa]
Rekyl [N]
HDS 9/16
kraftig
00060
0°
-649
16
46
medel
25060
25°
-647
lätt
40060
40°
-648
HDS 12/14
kraftig
00080
0°
-150
14
55
medel
25080
25°
-152
lätt
40080
40°
-153
Ned-
smuts-
ning
Mun-
stycke
Sprutvin-
kel
Artikelnr.
6.415
Tryck
[MPa]
Rekyl [N]
HDS 9/16
kraftig
0075
0°
-419
10
37
medel
2575
25°
-421
lätt
4075
40°
-422
HDS 12/14
kraftig
0010
0°
-082
10
46
medel
2510
25°
-252
lätt
4010
40°
-253
187
SV
-
6
–
Rengöringsmedel underlättar rengöringsarbetet. De sugs
upp ur en extern rengöringsmedeltank.
–
Aggregatet är i standardutförande utrustat med en doserings-
ventil (C). En andra doseringsanordning (doseringsventil D)
kan fås som specialtillbehör. Då finns möjlighet att suga upp
två olika rengöringsmedel.
–
Doseringsmängden ställs in med doseringsventil för rengö-
ringsmedel (C eller D) på manöverpanelen. Inställt värde mot-
svarar andelen rengöringsmedel i procent.
–
Den yttre skalan gäller vid användning av outspätt rengö-
ringsmedel (100 % CHEM).
–
Den inre skalan gäller vid användning av 1+3 förutspädda
rengöringsmedel (25 % CHEM + 75 % vatten).
Följande tabell anger förbrukningen av rengöringsmedel för vär-
den i yttre skalan:
Exakt doseringsmängd styrs av:
–
rengöringsmedlets viskositet
–
Uppsugningshöjd
–
strömningsmotstånd hos högtrycksledningen
Krävs exakt dosering måste uppsugd mängd rengöringsmedel
mätas (t.ex. genom sugning ur mätbägare).
Observera:
Rekommendationer beträffande rengöringsmedel
kan läsas i kapitlet “Tillbehör“.
Varning
Drift utan avhärdare kan göra att genomströmningsberedaren
förkalkas.
När avhärdningsbehållaren är tom blinkar kontrolllampan För-
kalkningsskydd (H).
Bild 1 - Pos. 8
Fyll behållaren med avhärdningsvätska RM 110 (2.780-001).
Fara
Risk för skållning! Efter drift med varmvatten måste aggregatet
köras minst två minuter med kallt vatten och med öppnad pistol
för att kylas ned.
Ställ in temperaturställaren (B) på lägsta temperatur vid varm-
vattendrift.
Kör aggregatet minst 30 sekunder utan rengöringsmedel.
Ställ reglage (A) på "0".
Stäng vattentillförseln.
Använd handsprutan tills apparaten är trycklös.
Säkra handsprutan med säkerhetsspärren mot oavsiktligt
öppnande.
Vid längre driftspauser, eller om det inte är möjligt att förvara ag-
gregatet på frostfri plats, skall följande åtgärder vidtagas (se ka-
pitlet “Underhåll och service“, avsnitt “Frostskydd“):
Töm ut vatten
Spola igenom aggregatet med frostskyddsmedel
Slå ifrån huvudbrytaren och säkra eller dra ur Cekonkontak-
ten.
Stäng gasflödet.
Varning
Risk för person och egendomsskada! Observera maskinens vikt
vid lagring.
Varning
Risk för person och egendomsskada! Observera vid transport
maskinens vikt.
Vid transport i fordon ska maskinen säkras enligt respektive
gällande bestämmelser så den inte kan tippa eller glida.
Dosering rengöringsmedel
Position
0,5
1
8
Mängd rengöringsmedel [l/h]
14...15 22...24
50
Rengöringsmedelskoncentration
[%]
1,5
2,5
> 5
Påfyllning avhärdare
Ta ur drift
Efter användning med rengöringsmedel
Stänga av aggregatet
Nedstängning
Förvaring
Transport
188
SV
-
7
Tekniska data
HDS 9/16-4
ST Gas
HDS 9/16-4
ST Gas LPG
HDS 12/14-4
ST Gas
HDS 12/14-4
ST Gas LPG
1.251-108
1.251-109
1.251-110
1.251-111
Prestanda
Arbetstryck vatten (med standardmunstycke)
MPa (bar)
16 (160)
16 (160)
14 (140)
14 (140)
Max. driftövertryck (säkerhetsventil)
MPa (bar)
18,5 (185)
18,5 (185)
18,5 (185)
18,5 (185)
Matningsmängd vatten (kan regleras steglöst)
l/h (l/min)
500-1000 (8,3-
16,6)
500-1000 (8,3-
16,6)
600-1200 (10-
20)
600-1200 (10-
20)
Uppsugning rengöringsmedel (kan regleras steglöst)
l/h (l/min)
0-50 (0-0,8)
0-50 (0-0,8)
0-60 (0-1)
0-60 (0-1)
Vattenanslutning
Inmatningsmängd (min.)
l/h (l/min)
1100 (18,3)
1100 (18,3)
1300 (21,7)
1300 (21,7)
Inmatningsstryck (min.)
MPa (bar)
0,1 (1)
0,1 (1)
0,1 (1)
0,1 (1)
Inmatningsstryck (max.)
MPa (bar)
0,6 (6)
0,6 (6)
0,6 (6)
0,6 (6)
Elanslutning
Strömart
--
3N~
3N~
3N~
3N~
Frekvens
Hz
50
50
50
50
Spänning
V
380-420
380-420
380-420
380-420
Anslutningseffekt
kW
6,4
6,4
7,5
7,5
Elektrisk säkring (tröga)
A
16
16
20
20
Skydd
--
IPX5
IPX5
IPX5
IPX5
Skyddsklass
--
I
I
I
I
Maximalt tillåten nätimpedans
Ohm
(0,381+j
0,238)
(0,381+j
0,238)
--
--
El-matarledning
mm
2
5 x 2,5
5 x 2,5
5 x 2,5
5 x 2,5
Temperatur
Inmatningstemperatur (max.)
°C
30
30
30
30
Max. arbetstemperatur varmvatten
°C
98
98
98
98
Max. temperatur säkerhetstermostat
°C
110
110
110
110
Temperaturökning vid max. vattenflöde
°C
60-65
60-65
60-65
60-65
Uppvärmningseffekt brutto
kW
75
75
95
95
Kamindrag
kPa
0,01-0,04
0,01-0,04
0,01-0,04
0,01-0,04
Gasanslutningsvärden
Naturgas E (G 20)
m
3
/h
7,2
--
9,8
--
Naturgas LL (G 25)
m
3
/h
8,2
--
11,4
--
Nominellt anslutningstryck (naturgas)
kPa
1,8-5
--
1,8-5
--
Propan
kg/h
--
5,7
--
7,2
Nominellt anslutningstryck (Propan
kPa
--
5-6
--
5-6
Miljödata
Normanvändningsgrad
%
97
97
97
97
Normemissionsfaktor NO
X
(naturgas 25)
mg/kWh
< 40
--
< 40
--
Normemissionsfaktor CO (naturgas G 25)
mg/kWh
< 40
--
< 40
--
Värden för skorstensmätning
Övertryckslämplighet (min.)
kPa
0,05
0,05
0,05
0,05
Dragbehov
kPa
0
0
0
0
Avgasströmning - full belastning
kg/h
130
130
166
166
CO
2
(naturgas)
%
9,5
--
9,5
--
CO
2
(Propan)
%
--
12
--
12
Avgastemperatur max./min.
°C
190/150
190/150
170/130
170/130
Förbränningsluft/luftflöde
Max. längd: 10 m med två 90° krökar (minsta diameter 100 mm). Enligt lo-
kala föreskrifter från uppställningsutrymmet eller friskluft utifrån.
Kondensatutsläpp
Kondensatutsläpp (max.)
l/h
4 (via hävert i
kanalisation)
4 (via hävert i
kanalisation)
4 (via hävert i
kanalisation)
4 (via hävert i
kanalisation)
Anslutning
DN
40 (HTR)
40 (HTR)
40 (HTR)
40 (HTR)
Minimal vattenpelare, hävert
mm
300
300
300
300
189
SV
-
8
Godkänd enligt EN 60335-2-79
Godkänd enligt direktiv för förbränning av gasformiga
bränslen (90/396/EEC)
--
Gastec QA
Low NO
X
Gastec QA
Gastec QA
Low NO
X
Gastec QA
Aggregatkategori Europa
--
I 2E (r), I
2ELL, I 2H, I
2L, I2 HE
I 3P
I 2E (r), I
2ELL, I 2H, I
2L, I2 HE
I 3P
Aggregattyp
--
B23, C33,
C43, C53
B23, C33,
C43, C53
B23, C33,
C43, C53
B23, C33,
C43, C53
CE-produkt ID-nummer
--
PIN 0063 BN
3880
PIN 0063 BN
3880
PIN 0063 BN
3880
PIN 0063 BN
3880
Mått och vikt
Längd
mm
1124
1124
1124
1124
Bredd
mm
558
558
558
558
Höjd
mm
966
966
1076
1076
Typisk driftvikt
kg
193,5
193,5
209
209
Beräknade värden enligt EN 60355-2-79
Brusnivå
Ljudtrycksnivå L
pA
dB(A)
74
74
76
76
Osäkerhet K
pA
dB(A)
1
1
1
1
Hand-Arm Vibrationsvärde
Handspruta
m/s
2
2,2
2,2
2,3
2,3
Spolrör
m/s
2
1,8
1,8
2,1
2,1
Osäkerhet K
m/s
2
1,0
1,0
1,0
1,0
HDS 9/16-4
ST Gas
HDS 9/16-4
ST Gas LPG
HDS 12/14-4
ST Gas
HDS 12/14-4
ST Gas LPG
Måttblad
190
SV
-
9
Fara
Risk för skada! Innan alla typer av underhålls- eller reparations-
arbeten ska huvudströmbrytaren slås ifrån res. Cekonkontakten
dras ur.
Skötsel och underhåll
Underhållsschema
Tidpunkt
Aktivitet
Beträffad komponentgrupp
Genomförande
av vem
dagligen
Kontrollera
handsprutan
Handspruta
Kontrollera om handsprutan sluter tätt. Kontrolle-
ra säkringsfunktionen mot otillbörlig manövre-
ring. Byt ut defekt handspruta.
Operatör
Kontrollera hög-
trycksslangar
Utgående ledningar, slangar till
arbetsaggregatet
Kontrollera om slangarna är skadade. Byt omgå-
ende ut defekta slangar. Risk för olycksfall!
Operatör
Kontrollera an-
slutningsledning
med nätkontakt.
Elanslutning med kontakt/uttag Kontrollera om anslutningsledning med nätkon-
takt uppvisar skador. Skadade nätkablar ska ge-
nast bytas ut av auktoriserad kundservice eller
en utbildad elektriker.
Operatör
varje vecka eller
efter 40 driftstim-
mar
Kontrollera ol-
jans beskaffen-
het
Oljebehållare på pumpen
Är oljan mjölkaktig måste den bytas ut.
Operatör
Kontrollera olje-
nivå
Oljebehållare på pumpen
Kontrollera oljenivå hos pumpen. Fyll på olja vid
behov (beställnummer 6.288-016).
Operatör
Rengör silen.
Sil i vattenintaget
Se avsnitt “Rengöra silar“.
Operatör
varje månad eller
efter 200 driftstim-
mar
Kontrollera
pump
Högtryckspump
Kontrollera om pumpen är otät. Vid mer än tre
droppar i minuten kontaktas kundservice.
Operatör
Kontrollera om
det finns invändi-
ga beläggningar
Hela anläggningen
Tag anläggningen i drift utan högtrycksmun-
stycke. Stiger driftstrycket över 3 MPa på aggre-
gatmanometern så måste anläggningen
avkalkas. Detta gäller även när ett driftstryck på
mer än 0,7–1 MPa fastställs vid drift utan hög-
trycksledning (fritt vattenflöde vid högtrycksut-
gången).
Användare
med anvis-
ning för av-
kalkning
Rengör silen.
Sil i vattenbristsäkringen
Se avsnitt “Rengöra silar“.
Operatör
efter 500-700
driftstimmar
Byte av
glödtändare, joniseringselek-
trod
Byt ut glödtändare samt joniseringselektrod.
Kundservice
varje halvår eller
efter 1000 drifts-
timmar
Oljebyte
Högtryckspump
Släpp ut olja. Fyll på 1 l ny olja (beställnummer
6.288-016). Kontrollera fyllnadsnivån i oljebehål-
laren.
Operatör
kontrollera, ren-
gör
Hela anläggningen
Okulärbesiktning av anläggningen, säkerställ att
högtryckskopplingar är täta, kontrollera att över-
strömningsventilen sluter tätt, kontrollera hög-
trycksslang och ackumulator, avkalka
värmeslinga, rengöra/byta ut joniseringselek-
trod, ställa in brännare.
Kundservice
Byta ut slang
Slang till avgastryckställaren
Byta ut slang.
Kundservice
årligen
Säkerhetskon-
troll
Hela anläggningen
Säkerhetskontroll enligt respektive nationella
lagstadgade föreskrifter avseende hög-
tryckstvättar.
Sakkunnig
191
SV
-
10
Med ansvarig Kärcher-försäljningsenhet kan ett servicekontrakt
för aggregatet ingås.
Bild 1 - Pos. 3
Stäng vattentillförseln.
Skruva bort slangen för vattentillförsel från aggregatet.
Tryck ut silen ur fästet med hjälp av en skruvmejsel.
Rengör silen.
Montera åter i omvänd ordningsföljd.
Lyft bort inklädnadsplåtar.
Skruva bort vinkelstycke från säkerhetsblock.
Skruva i skruv M8x30 i silen.
Drag ut skruv och sil med hjälp av en tång.
Rengör silen.
Montera åter i omvänd ordningsföljd.
Vid avlagringar i rörledningar stiger strömningsmotståndet så att
tryckställaren kan lösa ut.
Fara
Explosionsrisk på grund av brännbara gaser! Vid avkalkning är
rökning förbjuden. Sörj för god ventilation.
Fara
Risk för brännskador på grund av syra! Bär skyddsglasögon och
skyddshandskar.
Vid avkalkning får, enligt gällande föreskrift, endast kontrollerade
rengöringsmedel för pannsten användas.
–
RM 100 (best.nr. 6.287-008) löser kalksten och enklare bind-
ningar mellan kalksten och rester från tvättmedel.
–
RM 101 (best.nr. 6.287-013) löser avlagringar som RM 100 ej
löser upp.
Fyll en 20-litersbehållare med15 l vatten.
Häll i en liter pannstenslösningsmedel.
Anslut vattenslang direkt på pumphuvudet och häng den an-
dra änden av slangen i behållaren.
Stick ner det ansluta strålröret utan munstycke i behållaren.
Öppna handsprutan och stäng den inte igen under avkalk-
ningen.
Ställ reglaget på “Brännare på“,tills ca. 40 °C uppnåtts.
Stäng av aggregatet och låt det vila i 20 minuter. Handsprutan
måste hållas öppen.
Pumpa sedan aggregatet tomt.
Observera:
I anslutning till rostskydd och neutralisering av syra-
rester rekommenderar vi att en alkalisk lösning (t.ex. RM 81)
pumpas genom aggregatet via rengöringsmedelsbehållaren.
Aggregatet skall placeras i frostfria utrymmen. Vid risk för frost,
t.ex. vid installering utomhus, måste aggregatet tömmas och spo-
las igenom med frostskyddsmedel.
Skruva bort vattenslang och högtrycksslang.
Låt pumpen arbeta maximalt 1 minut, tills pump och ledningar
är tomma.
Skruva av matningsledningen på tankbotten och kör värme-
slingan tom.
Anmärkning:
Beakta föreskrifter från tillverkaren av frostskydds-
medlet.
Fyll flottörbehållaren helt med vanligt frostskyddsmedel.
Placera uppsamlingskärl under högtrycksutgången.
Starta aggregatet och kör det tills vattenbristsäkringen för flot-
törbehållaren löser ut och stänger av aggregatet.
Fyll tankbotten och hävert med frostskyddsmedel.
På detta sätt uppnås även ett visst skydd mot rost.
Underhållskontrakt
Rengör silar
Sil i vattenintaget
Sil i vattenbristsäkringen
Avkalkning
Genomförande
2.
1.
Frostskydd
Släppa ut vatten
Spola igenom aggregatet med frostskyddsmedel
192
SV
-
11
Fara
Risk för skada! Innan alla typer av underhålls- eller reparations-
arbeten ska huvudströmbrytaren slås ifrån res. Cekonkontakten
dras ur.
*
Hänvisning
Tryck på upplåsningsknappen till avgastermostaten (J) för att fri-
göra flamövervakningsfunktionen.
Åtgärder vid störningar
Störning
Möjlig orsak
Åtgärd
av vem
Aggregat arbetar inte, kon-
trollampa Driftsklar (F) lyser
inte
Aggregatet får ingen ström.
Kontrollera elnätet.
Elektriker
Säkerhetsbrytare i funktion.
Stäng av aggregatet med huvudreglaget och
starta det sedan igen.
Operatör
Säkring i styrkrets (F3) bränd. Säk-
ring finns i styrtransformator (T2).
Sätt i ny säkring; löser säkringen ut igen så
åtgärda orsaken till överbelastningen.
Kundservice
Tryckställare HT (högt tryck) eller
LT (lågt tryck) defekt.
Kontrollera tryckställare.
Kundservice
Timer modul (A1) defekt.
Kontrollera anslutningar, byt ut vid behov.
Kundservice
+ Kontrollampa Överhettning
motor (G) lyser
Termoelementgivare (WS) i mo-
torn eller överströmsbrytare (F1)
har löst ut.
Åtgärda orsaken till överbelastningen.
Kundservice
Vattenbristsäkringen i flottörbehål-
laren har löst ut.
Åtgärda vattenbristen.
Operatör
Brännaren tänder inte eller
flamman slocknar under drift
Temperaturen (B) är för lågt ställd. Ställ temperaturreglaget högre.
Operatör
Aggregatreglaget står inte på brän-
nare.
Starta brännare.
Operatör
Säkerhetsblockets vattenbristsäk-
ring har stängt av.
Säkerställ tillräckligt vattenflöde. Kontrollera
att aggregatet inte läcker.
Operatör
Gaskran stängd.
Öppna gaskran.
Operatör
Termostaten för maxtemperatur i
vattenutmatningen (> 110 °C) har
löst ut.
Låt tanken kylas av och starta aggregatet på
nytt.
Operatör
Kontrollera temperaturställare.
Kundservice
Kontrollampa Avgastermo-
stat (K) lyser.
Inget gasflöde.
Öppna gasflöde.
Operatör
Till- eller frånluftspassage tilltäppt. Kontrollera ventilation och avgassystem.
Operatör
Tankbotten för varm. Termostaten
för maxtemperatur på tankbotten
(> 80 °C) har löst ut. Inget kon-
densvatten på tankbotten.
Fyll på 5 liter vatten via avgasmätningsöpp-
ning.
Operatör
Kontrollenheten till gasbrännaren
indikerar störning.
Tryck på upplåsningsknapp för gasrelä (I).
Operatör
Ingen tändning. *
Kontrollera elektrodavstånd mellan gasbrän-
narenhet och tändkabel. Korrigera avstånd
eller byt ut defekta delar. Rengör om detta
behövs.
Kundservice
Fläkt eller styrkretskort för varvtal
defekt. *
Kontrollera fläkt och styrkretskort för varvtal.
Kontrollera kontakt och kabel. Byt ut defekta
delar.
Kundservice
193
SV
-
12
Störning
Möjlig orsak
Åtgärd
av vem
Kontrollampa Avgastermo-
stat (K) lyser.
Avgastermostat har löst ut.
Öppna handsprutan tills anläggningen kylts
av. Starta och stäng av anläggningen på ma-
növerpanelen för att frigöra termostaten.
Upprepas detta, kontakta kundtjänst.
Operatör
Kontrollampa Förkalknings-
skydd (H) lyser
Avhärdare förbrukad.
Fyll på avhärdare.
Operatör
Otillräcklig eller ingen mat-
ning av rengöringsmedel
Ställ doseringsventilen på “0“.
Inställning av doseringsventilen för rengö-
ringsmedel.
Operatör
Rengöringsmedelsfilter tilltäppt el-
ler tank tom.
Rengör och fyll på.
Operatör
Rengöringsmedel-sugslang, - do-
seringsventil eller -magnetventil
otät eller tilltäppt.
Kontrollera, rengör.
Operatör
Elektronik eller magnetventil de-
fekt.
Byt ut
Kundservice
Aggregatet går inte upp till
fullt tryck
Munstycke genomspolat.
Byt ut munstycke.
Operatör
Rengöringsmedelstanken tom.
Fyll på rengöringsmedel.
Operatör
Inte tillräcklig mängd vatten.
Sörj för tillräcklig vattenmängd.
Operatör
Sil i vattenintag igensatt.
Kontrollera, tag bort sil och rengör den.
Operatör
Doseringsventil för rengöringsme-
del otät.
Kontrollera och täta.
Operatör
Rengöringsmedelsslangar otäta.
Byt ut
Operatör
Flottörventil klämmer.
Kontrollera om den rör sig smidigt.
Operatör
Säkerhetsventil otät.
Kontrollera inställning, sätt i ny tätning om
detta behövs.
Kundservice
Mängdregulator otät eller för lågt
inställd.
Kontrollera ventildelar, byt om de är defekta,
rengör om de är smutsiga.
Kundservice
Magnetventil för tryckavlastning
defekt.
Byt ut magnetventil.
Kundservice
Högtryckspump knackar,
manometer svänger kraftigt
Svängningsdämpare defekt.
Byt ut svängningsdämpare.
Kundservice
Vattenpumpen drar in lite luft.
Kontrollera sugsystem och åtgärda otäthet. Operatör
Aggregatet stänger av/star-
tar ständigt när handsprutan
är öppen
Munstycke i strålröret tilltäppt.
Kontrollera, rengör.
Operatör
Aggregatet är igenkalkat
Se avsnitt “Avkalkning“.
Operatör
Överströmningens kopplingspunkt
har förskjutits.
Ställ in överströmningen på nytt.
Kundservice
Silen i vattenbristsäkringen till-
täppt.
Kontrollera, tag bort sil och rengör den.
Operatör
Aggregatet stänger inte av
när handsprutan är stängd
Pump inte helt avluftad.
Ställ aggregatreglaget på “0“och drag i hand-
sprutan tills vätska inte längre tränger ut ur
munstycket. Starta sedan aggregatet igen.
Upprepa detta arbetssteg tills fullt driftstryck
har uppnåtts.
Operatör
Säkerhetsventil eller säkerhets-
ventilspackning defekt.
Byt ut säkerhetsventil eller packning.
Kundservice
Överströmningens tryckställare.
Kontrollera tryckställare och överströmnings-
komponent.
Kundservice
194
SV
-
13
Rengöringsmedel underlättar rengöringen. I tabellen visas ett ur-
val av rengöringsmedel. Hänvisningarna på förpackningen måste
absolut följas vid användning av rengöringsmedel.
* = bara för kortvaring användning, tvåstegsmetod, skölj med
klart vatten
** = ASF = avskiljarvänlig
*** = till förbehandling passar Foam-Star 2000
Tillbehör
Rengöringsmedel
Användningsområde
Nedsmutsning, användnings-
sätt
Rengöringsmedel
pH-värde (ca) 1 %-ig
lösning i kranvatten
Bilförsäljning/-verksät-
der, bensinstationer, spe-
dition, vagnparker
Damm, gatusmuts, mineralolja (på
lackerade ytor)
RM 55 ASF **
8
RM 22/80-pulver ASF
12/10
RM 81 ASF
9
RM 803 ASF
10
RM 806 ASF
11
Fordonskonservering
RM 42 Kallvax för högtryckstvättar
8
RM 820-hetvax ASF
7
RM 821-sprayvax ASF
6
RM 824-superpärlvax ASF
7
RM 44 Gel-fälgrengöring
9
Metallindustri
Oljor, fett, damm och liknande
smuts
RM 22-pulver ASF
12
RM 55 ASF
8
RM 81 ASF
9
RM 803 ASF
10
RM 806 ASF
12
RM 31 ASF (stark nedsmutsning)
12
RM 39-flytande (med rostskydd)
9
Livsmedelindustrin
Lätt och medelstark nedsmutsning,
fett/olja, större ytor
RM 55 ASF
8
RM 81 ASF
9
RM 882 Gelskum OSC
12
RM 58 ASF (skumrengöringsmedel)
9
RM 31 ASF *
12
Rökharts
RM 33 *
13
Rengöring och desinfektion
RM 732
9
Desinfektion
RM 735
7...8
Kalk, mineraliska avlagringar
RM 25 ASF *
2
RM 59 ASF (skumrengöring)
2
Sanitära utrymmen ***
Kalk, urinsten, tvålrester etc
RM 25 ASF * (grundrengöring)
2
RM 59 ASF (skumrengöring)
2
RM 68 ASF
5
195
SV

