Karcher Nettoyeur haute pression HDS 12-14-4 ST Gaz: !
!: Karcher Nettoyeur haute pression HDS 12-14-4 ST Gaz
-
14
–
De verwarmingseenheid van het apparaat is een stookinrich-
ting. Bij de installatie dient men zich aan de ter plaatse gel-
dende normen te houden.
–
Gebruik uitsluitend goedgekeurde schoorstenen/rookafvoer-
leidingen.
–
De gasleidingen en de gasaansluiting van het apparaat mo-
gen uitsluitend door een voor gas- en wateraansluitingen be-
voegd en geregistreerd vakbedrijf worden geïnstalleerd en
aangesloten.
–
Het instellen van en reparaties aan de gasbrander mogen uit-
sluitend door een daartoe door Kärcher opgeleid en bevoegd
klantendienst-monteur worden uitgevoerd.
–
In de gastoevoerleiding, die tenminste een nominale diameter
van 1 inch dient te hebben, moeten een manometer en een
afsluitventiel worden aangebracht.
–
Vanwege de trillingen die de hogedrukpomp veroorzaakt,
moet de verbinding tussen de starre gasleiding en het appa-
raat met een flexibele gasslang worden uitgevoerd.
–
Bij gastoevoerleidingen van meer dan 10 m lengte moet de
nominale breedte 1 1/2 inch of meer bedragen. De gasaan-
sluiting van het apparaat zelf heeft een nominale breedte van
1 inch.
Gevaar
Bij het inschroeven van de flexibele gasslang aan de brander
moet de aansluitnippel met een steeksleutel SW 36 worden te-
gengehouden. De aansluitnippel mag tegenover het branderhuis
niet verdraaid raken. De afdichting van de schroefaansluiting
moet met door de DVGW toegelaten afdichtmiddelen worden uit-
gevoerd. Na het aansluiten moet de verbinding met door de
DVGW toegelaten lekzoekspray op lekkages worden gecontro-
leerd.
De buisbreedte van de gasleiding moet volgens DVGW TRGI
1986 of TRF 1996 worden berekend. De nominale breedte van
de gasaansluiting van het apparaat is niet vanzelf gelijk aan de
nominale breedte van de buis. De dimensionering en installatie
van de gasleiding moet volgens de overeenkomstige normen en
voorschriften worden uitgevoerd.
–
Elk apparaat moet op een eigen schoorsteen worden aange-
sloten.
–
De rookgasleiding moet volgens de plaatselijke voorschriften
en in overleg met de verantwoordelijke meester schoorsteen-
veger worden uitgevoerd.
Gastoestel zonder stromingsbeveiliging, waarbij alle onder over-
druk staande delen van de weg die het rookgas aflegt met ver-
brandingslucht zijn omgeven. De B23-installatie geeft de
mogelijkheid, het apparaat aan een traditionele eenkanaals
schoorsteen volgens DIN 18160 aan te sluiten en afhankelijk van
de in de ruimte aanwezige lucht te gebruiken. De schoorsteen
moet wel geschikt zijn voor het aansluiten van ketels met rook-
gascondensor (bijv. doordat de schoorsteen is gesaneerd door er
een roestvrij stalen buis doorheen te trekken).
Gastoestel met verbrandingsluchttoevoer en rookgasleiding
loodrecht via het dak. De mondingen bevinden zich dicht bij el-
kaar in hetzelfde drukgebied.
Installatievoorschriften
Alleen voor bevoegd en deskundig personeel!
Algemeen
Gas algemeen
Gasleidingen
lucht- / rookafvoer
!
Gastoestel met rookgasinstallatie, waarbij de verbrandings-
lucht uit de installatieruimte wordt gehaald
Type B23
Gastoestel met rookgasinstallatie, dat de verbrandingslucht
via een gesloten systeem van buiten haalt.
Type C33
96
NL
-
15
Gastoestel met verbrandingsluchttoevoer en rookgasleiding naar
de aansluiting aan een lucht-rookgassysteem.
Gastoestel met gescheiden verbrandingsluchttoevoer en rook-
gasleiding. De mondingen bevinden zich in verschillende drukge-
bieden.
Instructie:
Om de voorgeschreven verbrandingswaarde te berei-
ken moet de bij de technische gegevens vermelde schoorsteen-
trek worden aangehouden.
De condensaatleiding moet direct aan de condensaataansluiting
gesifoneerd worden. De sifonhoogte moet 30 cm bedragen. De
sifon wordt niet meegeleverd. De condensaatleiding mag geen
vaste verbinding met de riolering hebben. Het condensaat moet
vrij in een trechter of neutralisatievat kunnen lopen.
–
Voor de montage moet worden gecontroleerd of de wand wel
voldoende draagkracht heeft. Het meegeleverde bevesti-
gingsmateriaal is geschikt voor beton. Voor holle bouwsteen,
bakstenen en gasbetonwanden moeten geschikte pluggen
en schroeven worden gebruikt, bijv. injectieankers (boorteke-
ning zie maatblad).
–
Afbeelding 3 - Pos. 19 en 25
Het apparaat mag niet star met het waterleiding- of het hoge-
drukbuizennet worden verbonden. De verbindingsslangen
dienen absoluut te worden aangebracht.
–
Afbeelding 3 - A
Tussen het waterleidingnet en de verbindingsslang moet een
afsluitkraan worden aangebracht.
Bij de montage van de hogedrukleidingen dient men zich aan de
betreffende nationale voorschriften van de wetgever te houden.
–
De drukafname in de buisleiding moet onder 1,5 MPa liggen.
–
Als de buisleiding klaar is, moet deze met 32 MPa worden ge-
test.
–
De isolatie van de buisleiding moet bestand zijn tegen tempe-
raturen tot 100 °C.
Afbeelding 3 - pos. 20
De tanks moeten zo worden opgesteld dat het laagste peil van
het reinigingsmiddel niet meer dan 1,5 m onder de bodem van
het apparaat ligt en het hoogste peil niet boven de bodem van het
apparaat ligt.
Afbeelding 3 - B en Pos. 19
Sluit de watertoevoer met een geschikte waterslang aan het
waterleidingnet aan.
–
De capaciteit van de watertoevoer moet ten minste 1300 l/h
bij ten minste 0,1 MPa bedragen.
–
De watertemperatuur moet onder 30 °C liggen.
Type C43
Type C53
Condensaatafvoer
Wand montage
Montage van de hogedrukleidingen
Reinigingsmiddeltanks plaatsen
Watertoevoer
97
NL
-
16
Voorzichtig
De maximaal toegelaten netimpedantie aan het elektrische aan-
sluitpunt (zie Technische gegevens) mag niet overschreden wor-
den. In geval van onduidelijkheden in verband met de
netimpedantie aan uw aansluitpunt neemt u best contact op met
uw electriciteitsmaatschappij.
Instructie:
Inschakelprocessen veroorzaken een kortstondige
spanningsval. Bij ongunstige netomstandigheden kunnen andere
apparaten beïnvloed worden.
–
Aansluitwaarden zie Technische gegevens en typeplaatje.
–
De elektrische aansluiting moet uitgevoerd worden door een
electricien en moet voldoen aan IEC 60364-1.
–
Stroomvoerende onderdelen, kabels en apparaten in het
werkgebied moeten in goede staat en spuitwaterdicht zijn.
We adviseren wandcontactdozen met voorgeschakelde lek-
stroom-veiligheidsschakelaar (maximaal 30 mA nominale active-
rings-stroomsterkte) te gebruiken, ter vermijding van elektrische
ongelukken.
Elektrische aansluiting tot stand brengen.
Teneinde de stationaire hogedrukreiniger uit te kunnen schake-
len dient men een afsluitbare hoofdschakelaar (afbeelding 3 -
pos. 6) op een ongevaarlijke plaats en goed toegankelijk aan te
brengen.
De contactopeningsbreedte van de hoofdschakelaar moet mini-
mum 3 mm bedragen.
Cekon-stekker monteren op de aansluitkabel van het appa-
raat.
Cekon-stekker in de cotactdoos steken.
Voor het uitschakelen van de stationaire hogedrukreiniger moet
de Cekon-stekker makkelijk toegankelijk zijn voor de netschei-
ding.
Gasaansluiting controleren.
Voorzichtig
Gevaar voor beschadiging van het apparaat door oververhitting.
Sluit de sifon aan op de bodem van de ketel en vul deze met
water.
Vul de ketel boven de opening van de schoorsteen met 4 liter
water.
Knip voor het eerste gebruik de punt van het deksel van de
olietank op de waterpomp af.
Afbeelding 3 - pos. 14
Hogedrukslang met handpuitpistool en straalpijp verbinden
en op de hogedrukuitgang van het apparaat of op het hoge-
drukbuisleidingsysteem aansluiten.
Sproeiermond (b) met wartelmoer (a) aan de straalpijp (d) be-
vestigen. Let erop dat de afdichtingsring (c) schoon in de
groef ligt.
Elektrische aansluiting
Vast geïnstalleerde elektrische aansluiting
Elektrische aansluiting met stekker / contactdoos
Eerste ingebruikneming
Het apparaat is in de fabriek ingesteld als aardgasapparaat voor
gastype G 20 en als vloeibaar gasapparaat voor G 31. Bij de
omschakeling van het aardgasapparaat op G 25 of andere (zie
typeplaatje) aardgassoorten of van het vloeibaar gasapparaat
op G 30 of andere (zie typeplaatje) vloeibare gassoorten moe-
ten bij het aardgasapparaat de waarden van de aardgasuitlaat-
gassen en bij het vloeibaar gasapparaat de waarden van het
vloeibare gas ingesteld worden volgens de servicegegevens.
Op het bijgevoegde lege plaatje wordt de nieuw ingestelde gas-
soort vermeld en het plaatje wordt op het veld aan de rechter-
kant van het apparaat aangebracht. Tegelijkertijd moet het in de
fabriek aangebrachte plaatje met vermelding G 20 (aardgasap-
paraat) of G 31 (vloeibaar gasapparaat) verwijderd worden.
Maatregelen voor de inbedrijfname
a
b
c
d
98
NL
-
17
Veer (c) van de dekselsteun (b) van het onthardingsmiddelre-
servoir (a) verwijderen.
Reservoir bijvullen met Kärcher-onthardingsvloeistof RM 110
(2.780-001).
Gevaar
Gevaarlijke elektrische spanning! Instelling mag alleen door een
elektrotechnicus worden uitgevoerd.
Plaatselijke waterhardheid vaststellen:
–
via het plaatselijke waterleidingbedrijf,
–
met een testapparaat voor de waterhardheid (bestelnr. 6.768-004).
Haal de kap van het apparaat.
Open de schakelkast bij het bedieningspaneel.
Draaipotentiometer (a) instellen op de waterhardheid. De juis-
te instelling vindt u in de tabel.
Bijvoorbeeld:
Stel voor een waterhardheid van 15 °dH scalawaarde 6 op de
draaipotentiometer in. Hieruit volgt een pauzetijd van 31 secon-
den, d.w. z. alle 31 seconden gaat de magneetklep even open.
De standby-tijd wordt op de grotere printplaat aan de linker zij-
wand van de elektrische kast ingesteld.
De standby-tijd is vanuit de fabriek ingesteld op een minimale tijd
van 2 minuten en kan tot een maximale tijd van 8 minuten worden
verlengd.
Bescherming voor verkalking
Waterhardheid (°dH)
5
10
15
20
25
Schaal op de draaipotentio-
meter
8
7
6
5
4,5
Pauzetijd (seconden)
50
40
31
22
16
b
c
a
a
De stand-by-tijd veranderen
8 7 6 5 4 3 2 1
S2
min.
max.
99
NL
-
18
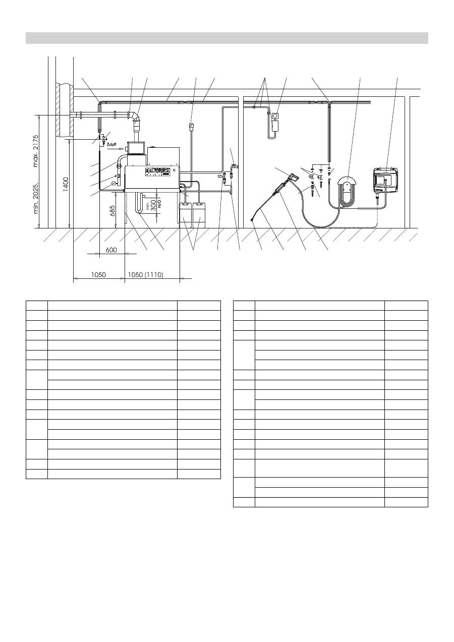
Afbeelding 3
Installatiemateriaal
1
2
3
5
6
7
8
9
10
12
13
A
15
11b
11a
11c
11a
25
21
22
23
11b
24
4
20
19a
19
18
17
16
14
11d
B
Nr.
Installatiemateriaal
Bestelnr.
1
Kniekoppeling
6.386-356
2
Uitlaatleidingskit, horizontaal, 150 mm
6.526-231
3
Uitlaatleidingskit, verticaal, 150 mm
6.526-232
4
Set onderdelen voor sifon
2.640-422
5
Warmte-isolatie
6.286-114
6
Hoofdschakelaar
6.631-455
7
Buisleidingenset, staal verzinkt
2.420-004
Buisleidingenset, roestvrij staal
2.420-006
8
Set onderdelen afstandsbediening
2.744-008
9
Onderdelenset NOT-AUS schakelaar
2.744-002
10
T-schroefverbinding
6.386-269
11a
Aansluitmof, messing
2.638-180
Aansluitmof, roestvrij staal
2.638-181
11b
Afsluitkraan NW 8, verzinkt staal
4.580-144
Afsluitkraan NW 8, roestvrij staal
4.580-163
11c
Vast snelkoppelingsonderdeel
6.463-025
11d
Los snelkoppelingsonderdeel
6.463-023
Nr.
Installatiemateriaal
Bestelnr.
12
Slanghouder
2.042-001
13
Slangtrommel
2.637-238
14
Hogedrukslang 10 m
6.388-083
15
Handspuitpistool Easypress
4.775-463
Draairegelaar HDS 9/16-4
4.775-470
Draairegelaar HDS 12/14-4
4.775-471
16
Straalpijphouder
2.042-002
17
Staalbuis
4.760-550
18
Sproeiermond HDS 9/16-4
2.883-402
Sproeiermond HDS 12/14-4
2.883-406
19
Waterslang
4.440-282
19a
Magneetklep watertoevoer
4.743-011
20
Reinigingsmiddeltank 60 l
5.070-078
21
Gasslang R1“
6.388-228
22
Gas-afsluitkraan R1“
6.412-389
23
Manometer, gas (Let op! Zorg voor afsluit-
ventiel aan bouwzijde.)
6.412-059
24
Onderdelenset wandconsole
2.053-005
Onderdelenset bodemframe
2.210-008
25
Hogedrukslang
6.389-028
100
NL
-
19
Hierbij verklaren wij dat de hierna vermelde machine door haar
ontwerp en bouwwijze en in de door ons in de handel gebrachte
uitvoering voldoet aan de betreffende fundamentele veiligheids-
en gezondheidseisen, zoals vermeld in de desbetreffende EG-
richtlijnen. Deze verklaring verliest haar geldigheid wanneer zon-
der overleg met ons veranderingen aan de machine worden aan-
gebracht.
5.957-648
De ondergetekenden handelen in opdracht en met volmacht van
de bedrijfsleiding.
Gevolmachtigde voor de documentatie:
S. Reiser
Alfred Kärcher GmbH & Co. KG
Alfred Kärcher-Str. 28 - 40
71364 Winnenden (Germany)
Tel.: +49 7195 14-0
Fax: +49 7195 14-2212
Winnenden, 2014/02/01
In ieder land zijn de door ons bevoegde verkoopkantoor uitgege-
ven garantiebepalingen van toepassing. Eventuele storingen aan
het apparaat worden binnen de garantieperiode gratis verholpen,
voorzover deze veroorzaakt worden door een materiaal- of fabri-
cagefout.
EG-conformiteitsverklaring
Product:
Hogedrukreiniger
Type:
1.251-xxx
Van toepassing zijnde EG-richtlijnen
2009/142/EG
2006/42/EG (+2009/127/EG)
2004/108//EG
Toegepaste geharmoniseerde normen
EN 55014–1: 2006+A1: 2009+A2: 2011
EN 55014–2: 1997+A1: 2001+A2: 2008
EN 60335–1
EN 60335–2–79
EN 62233: 2008
EN 61000–3–2: 2006+A1: 2009+A2: 2009
HDS 12/14:
EN 61000–3–3: 2008
HDS 9/16:
EN 61000–3–11: 2000
Toegepaste specificaties:
QA 195 (niet LPG)
Naam van de benoemde instantie:
voor 2009/142/EG
GASTEC
Wilmersdorf 50
7327 AC Apeldoorn
Identificatienr. 0063
Garantie
CEO
Head of Approbation
101
NL
-
20
Klantenservice
Soort installatie:
Fabrieksnr.:
In bedrijf genomen op:
Test uitgevoerd op:
Uitslag:
Handtekening
Test uitgevoerd op:
Uitslag:
Handtekening
Test uitgevoerd op:
Uitslag:
Handtekening
Test uitgevoerd op:
Uitslag:
Handtekening
102
NL
-
1
Antes del primer uso de su aparato, lea este manual
original, actúe de acuerdo a sus indicaciones y guár-
delo para un uso posterior o para otro propietario posterior.
–
¡Antes de la primera puesta en marcha lea sin falta las ins-
trucciones de uso y las instrucciones de seguridad n.° 5.956-
309!
–
En caso de daños de transporte informe inmediatamente al
fabricante.
Indicaciones sobre ingredientes (REACH)
Encontrará información actual sobre los ingredientes en:
www.kaercher.com/REACH
Peligro
Para un peligro inminente que acarrea lesiones de gravedad o la
muerte.
몇
Advertencia
Para una situación que puede ser peligrosa, que puede acarrear
lesiones de gravedad o la muerte.
Precaución
Para una situación que puede ser peligrosa, que puede acarrear
lesiones leves o daños materiales.
Los chorros a alta presión pueden ser peligrosos si se
usan indebidamente. No dirija el chorro hacia perso-
nas, animales o equipamiento eléctrico activo, ni
apunte con él al propio aparato.
–
Respetar las normativas vigentes nacionales correspondien-
tes para eyectores de líquidos.
–
Respetar las normativas vigentes nacionales correspondien-
tes de prevención de accidentes. Los eyectores de líquidos
deben ser examinados regularmente y tiene que guardarse
una copia escrita de la revisión.
–
El dispositivo calefactor del aparato es una instalación cale-
factora. Las instalaciones calefactoras deben revisarse regu-
larmente según las normativas nacionales correspondientes.
–
Cuando el dispositivo se opera en interiores, se debe garan-
tizar una evacuación de los gases inofensiva (tubería de gas
de humo sin interruptor de la corriente de aire). Además de
esto se tiene que disponer de una alimentación suficiente de
aire fresco.
–
Respetar las indicaciones de seguridad que figuran en los de-
tergentes utilizados (por lo general, figuran en la etiqueta).
Antes de instalar el aparato, se debe acordar con la empresa de
suministro de gas y el deshollinador responsable del distrito.
Durante la instalación se deben respetar las normativas del de-
recho de construcción, el derecho comercial y la protección por
emisiones. Tenga en cuenta las siguientes normativas, directri-
ces y normas:
–
El aparato sólo puede ser instalado por un servicio técnico y
de acuerdo con las normativas nacionales correspondientes.
–
Al realizar la instalación eléctrica, se deben respetar las nor-
mativas nacionales vigentes correspondientes.
–
Al realizar la instalación de gas, se deben respetar las norma-
tivas nacionales vigentes correspondientes.
–
La instalación de los conductos de gas y la toma de gas del
aparato, sólo puede ser realizada por una empresa especia-
lizada en gas y agua autorizada.
–
Ajustes, trabajos de mantenimiento y reparaciones en el so-
plete sólo pueden ser llevados a cabo por montadores del
servicio técnico de Kärcher autorizados.
–
Al planificar la chimenea se deben respetar las directrices vi-
gentes locales.
Índice de contenidos
Protección del medio ambiente
ES . . 1
Símbolos del manual de instrucciones
ES . . 1
Símbolos en el aparato . . . .
ES . . 1
Indicaciones generales de seguridad
ES . . 1
Uso previsto . . . . . . . . . . . .
ES . . 2
Función . . . . . . . . . . . . . . . .
ES . . 2
Dispositivos de seguridad . .
ES . . 2
Elementos del aparato . . . .
ES . . 3
Puesta en marcha . . . . . . . .
ES . . 4
Manejo . . . . . . . . . . . . . . . .
ES . . 4
Puesta fuera de servicio . . .
ES . . 6
Parada. . . . . . . . . . . . . . . . .
ES . . 6
Almacenamiento . . . . . . . . .
ES . . 6
Transporte. . . . . . . . . . . . . .
ES . . 6
Datos técnicos. . . . . . . . . . .
ES . . 7
Cuidados y mantenimiento .
ES . . 9
Ayuda en caso de avería . .
ES . 11
Accesorios. . . . . . . . . . . . . .
ES . 13
Instalación del equipo . . . . .
ES . 14
Declaración de conformidad CE
ES . 19
Garantía . . . . . . . . . . . . . . .
ES . 19
Servicio de atención al cliente
ES . 20
Protección del medio ambiente
Los materiales empleados para el embalaje son reci-
clables y recuperables. No tire el embalaje a la basura
doméstica y entréguelo en los puntos oficiales de re-
cogida para su reciclaje o recuperación.
Los aparatos viejos contienen materiales valiosos re-
ciclables que deberían ser entregados para su apro-
vechamiento posterior. Evite el contacto de baterías,
aceites y materias semejantes con el medio ambien-
te. Por este motivo, entregue los aparatos usados en
los puntos de recogida previstos para su reciclaje.
Por favor, no deje que el aceite para motores, el aceite caliente
y la gasolina dañen el medio ambiente. Evite que sustancias no-
civas penetren en el suelo y elimine el aceite usado de forma
que no dañe el medio ambiente.
Los detergentes Kärcher se pueden separar (ASF) para reci-
clar. Esto significa que no se obstaculiza el funcionamiento de
un separador de aceite. En el capítulo "Accesorios" se indica
una lista de los detergentes recomendados.
Símbolos del manual de instrucciones
Símbolos en el aparato
Indicaciones generales de seguridad
Normativas, directrices y normas
103
ES
-
2
El puesto de trabajo se encuentra en el panel de control. Otros
puestos de trabajo están, dependiendo de la construcción del
equipo, en los aparatos accesorios (mecanismo pulverizador),
que están conectados a las tomas de agua.
–
Póngase ropa y gafas protectoras adecuadas para proteger-
se de las salpicaduras de agua y de la suciedad.
El aparato sirve para eliminar la suciedad de las superficies con
un chorro de agua libre. Se utiliza especialmente para limpiar
máquinas, vehículos y fachadas.
Peligro
¡Peligro de lesiones! Cuando se utilice en gasolineras u otras zo-
nas de peligro deberán tenerse en cuenta las instrucciones de
seguridad.
–
El agua fría entra en el lateral de absorción de la bomba de
alta presión a través del serpentín refrigerante del motor en
la caja del flotador y de ahí al revestimiento exterior del calen-
tador de circulación. En la caja del flotador se añade descal-
cificador. La bomba transporta agua y detergente absorbido
a través del calentador de circulación. Se puede ajustar la
parte de detergente en agua mediante una válvula de dosifi-
cación. El calentador de circulación se caliente con un que-
mador de gas.
–
La salida de alta presión se conecta en un edificio a una red
existente de alta presión. En las tomas de agua de esta red
se conecta la pistola pulverizadora con una manguera de alta
presión.
La función de los dispositivos de seguridad es proteger al usuario
y está prohibido ponerlos fuera de servicio y modificar o ignorar
su funcionamiento.
El dispositivo de seguridad contra el funcionamiento en seco evi-
ta que la bomba de alta presión se encienda cuando falta agua.
El dispositivo de seguridad contra el funcionamiento evita que el
quemador se sobrecaliente si falta agua. Sólo en caso de un su-
ministro de agua suficiente se enciende el quemador.
El presostato se apaga el aparato al sobrepasar la presión de tra-
bajo. No cambiar las configuraciones.
Si el presostato se estropea abrir la válvula de seguridad. Esta
válvula ha sido configurada y precintada de fábrica. No cambiar
las configuraciones.
En caso de flata de combustible o si el quemador se estropea, el
sistema de control de llamas apaga el quemador. El piloto de
control de avería en el quemador (E) se ilumina.
Si se bloquea el motor del quemador, salta el interruptor de pro-
tección contra sobrecorriente. El motor de la bomba de alta pre-
sión está protegido con un guardamotor y un interrutor de
bobinado.
El termostato de gases de escape salta, cuando la temperatura
de los gases de escape sobrepasa los 320ºC. El piloto de control
de termostato de gases de escape (K) se ilumina.
El limitador de temperatura máximo en el fondo de la caldera (>
80 °C) y en la salida de agua (> 110 °C) se sueltan y el piloto de
control de avería del soplete (E) se ilumina.
El presostato de gas de escape desconecta el soplete, cuando
se crea una contrapresión alta no permitida en el sistema de es-
cape, p.ej. en caso de atasco.
Tras apagar el aparato con la pistola pulverizadora manual se
abre una válvula magnética en el sistema de alta presión una vez
trascurrido el tiempo de servicio, con lo que baja la presión.
Puestos de trabajo
Equipo protector personal
Al limpiar piezas que refuercen el ruido, utilizar
orejeras para evitar daños del aparato auditivo.
Uso previsto
Las aguas residuales que contengan aceite no deben penetrar
en el suelo ni verterse en aguas naturales o en el sistema de ca-
nalización. Por ello, el lavado de motores y el lavado de los ba-
jos sólo debe realizarse en lugares adecuados con un
separador de aceite.
Función
Dispositivos de seguridad
Dispositivo de seguridad contra el funcionamiento en
seco caja del flotador
Dispositivo de seguridad contra el funcionamiento en
seco bloque de seguridad
Presóstato
Válvula de seguridad
sistema de control de llamas
Protección contra sobrecorriente
Termostato de gases de escape
Limitador de la temperatura
Presostato de gas de escape
Despresurización sistema de alta presión
104
ES
-
3
Figura 1
1 Quemador
2 Manómetro
3 Entrada de agua fresca con tamiz
4 Salida de alta presión
5 Toma de gas
6 Manguera de aspiración de detergente I
7 Manguera de aspiración de detergente II (opcional)
8 Recipiente de descalcificador
9 Conexión eléctrica
10 Caja de flotador
11 Panel de control
Figura 2
A Interruptor del aparato
B Regulador de temperatura
C Válvula dosificadora de detergente I
D Válvula de dosificación de detergente II (opcional)
E Piloto de control de avería en el quemador
F Piloto de control de disponibilidad de servicio
G Piloto de control sobrecalentamiento del motor
H Piloto de control de protección contra la calcificación
I
Tecla de desbloqueo relé de gas
J Tecla de desbloqueo termostato de gas de escape
K Piloto de control del termostato de gas de escape
Elementos del aparato
4
5
6
7
3
8
10
1
11
2
9
Panel de control
105
ES
-
4
몇
Peligro
Peligro de lesiones El aparato, los tubos de alimentación, la man-
guera de alta presión y las conexiones deben estar en perfecto
estado. Si no está en perfecto estado, no debe utilizarse.
–
Valores de conexión: véase la placa de características y da-
tos técnicos.
–
La conexión eléctrica debe ser realizada por un electricista y
cumplir la norma CEI 60364-1.
El usuario deberá utilizar el aparato de conformidad con sus ins-
trucciones. Deberá tener en cuenta las condiciones locales y te-
ner cuidado de no causar daños a las personas que se
encuentren en las proximidades cuando use el aparato.
No deje nunca el aparato sin vigilancia mientras esté en funcio-
namiento.
Peligro
–
Peligro de escaldamiento por agua caliente No dirigir el cho-
rro de agua a personas ni animales.
–
¡Riesgo de quemaduras por piezas calientes! No tocar la tu-
berías que no estén aisladas ni las mangueras durante el fun-
cionamiento con agua caliente. Sujetar la lanza dosificadora
sólo por las asas. No tocar los soportes de gases de escape
del calentador de circulación.
–
¡Riesgo de intoxicación o causticación causado por detergen-
te! Tener en cuenta las indicaciones de los detergentes. Man-
tener el detergente fuera del alcance de personas no
autorizadas.
Peligro
¡Peligro mortal por descarga eléctrica! No dirija el chorro de agua
a los siguientes dispositivos:
–
aparatos e instalaciones eléctricos,
–
esta instalación en sí,
–
todas las piezas conductoras de corriente en el área de tra-
bajo.
El chorro de agua que sale de la lanza dosificadora provoca una
fuerza de retroceso. Debido a que la lanza dosificadora está aco-
dada, la fuerza actúa hacia arriba.
Peligro
–
Peligro de lesiones El retroceso de la lanza dosificadora le
puede hacer perder el equilibrio. Puede caerse. La lanza dosi-
ficadora puede descontrolarse y lesionar a personas. Buscar
una posición segura y sujetar bien la pistola. No inmovilizar la
palanca de la pistola pulverizadora manual nunca.
–
No dirija el chorro hacia otras personas o hacia sí mismo para
limpiar ropa o calzado.
–
Peligro de lesionarse con piezas que salen disparadas. Pie-
zas u objetos que salgan disparados pueden ocasionar lesio-
nes en personas o animales. No orientar el chorro de agua
nunca sobre objetos delicados o sueltos.
–
¡Riesgo de accidentes como consecuencia de daños! Limpiar
neumáticos y válvulas a una distancia mínima de 30 cm.
몇
Advertencia
¡Riesgo por sustancias nocivas para la salud! No salpicar los si-
guientes materiales, ya que se pueden levantar sustancias noci-
vas para la salud:
–
Materiales que contengan asbesto,
–
materiales que puedan contener sustancias nocivas para la
salud.
Peligro
–
¡Riesgo de lesiones por el chorro de agua caliente que pueda
salir! Las mangueras de agua de alta presión originales de
Kärcher són las únicas adaptadas al equipo. Si se utilizan
otras mangueras no se asume ningún tipo de responsabilida-
des.
–
¡Riesgo para la salud provocado por el detergente! Debido al
detergente que se haya disuelto, el agua que salga del apa-
rato no es potable.
–
¡Riesgo de daños al aparato auditivo si se trabajan con pie-
zas que refuercen el ruedo! En este caso use protección au-
ditiva.
Peligro
¡Riesgo de lesiones por el chorro de agua caliente que pueda sa-
lir!
Peligro
Antes de cada puesta en servicio, compruebe si la manguera de
alta presión presenta daños. Si la manguera de alta presión pre-
sentase daños, debe sustituirla sin demora.
Comprobar si la manguera de alta presión, tuberías, grifería
y lanza dosificadora están dañadas antes de cada uso.
Comprobar que el acoplamiento de la manguera esté bien fi-
jado y hermético.
Precaución
Daños provocados por funcionamiento en seco.
Comprobar el nivel del recipiente de detergente y si es nece-
sario rellenar.
Comprobar el descalcificador y si es necesario rellenar.
Colocar el interruptor principal (A) en la posición "0".
Cerrar el abastecimiento de agua.
Poner en funcionamiento la pistola pulverizadora manual
hasta que no quede presión en el aparato.
Cerrar la alimentación de gas.
Puesta en marcha
Toma de corriente
Manejo
Instrucciones de seguridad
!
Establecimiento de disposición de servicio
Desconectar en caso de emergencia
106
ES
-
5
Si gira la válvula de regulación de la cantidad en el sentido de
las agujas del reloj, obtendrá una mayor presión de trabajo y
un mayor caudal.
Si gira la válvula de regulación de la cantidad, obtendrá una
menor presión de trabajo y un menor caudal.
Si se gira el regulador del caudal de agua hacia la derecha,
se obtiene mayor caudal y una presión de trabajo más alta.
Si se gira el regulador del caudal de agua hacia la izquierda,
se obtiene menor caudal y una presión de trabajo más baja.
Abrir el suministro de agua.
Símbolo "Conectar motor"
Tirar de la palanca de la pistola pulverizadora manual y poner
el interruptor del aparato (A) a "1" (Conectar motor).
El piloto de control de disposición de servicio (F) indica dispo-
nibilidad.
Peligro
Existe peligro de escaldamiento.
Precaución
El servicio de agua caliente sin combustible daña la bomba de
combustible. Asegure el suministro de combustible antes del fun-
cionamiento con agua caliente.
El quemador se puede encender si es necesario.
Símbolo "Conectar quemador"
Colocar el interruptor principal (A) en la posición "Conectar
quemador".
Ajustar la temperatura del agua deseada con el regulador de
temperatura (B). Temperatura máxima es 98 ºC.
–
Si se suelta la palanca de la pistola pulverizadora manual du-
rante el funcionamiento, se apaga el aparato.
–
Si se abre de nuevo la pisto en el tiempo de disposición de
servicio ajustado (2.8 minutos), el aparato se enciende auto-
máticamente.
–
Si se supera el tiempo de disposición ajustado, el interruptor
de seguridad de la bomba y el quemador. El piloto de control
de disposición de servicio (F) se apaga.
–
Para poner de nuevo en marcha, colocar el interruptor de fun-
cionamiento a "0", después volver a encender. Si se controla
el aparato con el mando a distancia, se puede poner de nue-
vo en marcha con el interruptor correspondiente del mando a
distancia.
–
Los neumáticos de vehículos sólo se limpiar con boquilla de
chorro plano (25º) y a una distancia mínima de de 30 cm. No
limpiar neumáticos con chorro de sección circular bajo ningún
concepto.
Para el resto de tareas se puede elegir entre las siguientes bo-
quillas:
En el caso de una tubería de más de 20 m o más 2 mangueras
de alta presión NW 8 de 10 m, se deben usar las siguientes bo-
quillas:
Ajustar la presión de trabajo y el caudal
Ajuste del aparato
Configuración de la pistola easypress (opcional)
Servicio con agua fría
Servicio con agua caliente
R
Disposición de servicio
Selección de boquilla
Suciedad boquilla
Ángulo
de pulve-
rización
No. de
pieza
6.415
Presión
[MPa]
Retroce-
so [N]
HDS 9/16
alta
00060
0°
-649
16
46
medio
25060
25°
-647
ligera
40060
40°
-648
HDS 12/14
alta
00080
0°
-150
14
55
medio
25080
25°
-152
ligera
40080
40°
-153
Suciedad boquilla
Ángulo
de pulve-
rización
No. de
pieza
6.415
Presión
[MPa]
Retroce-
so [N]
HDS 9/16
alta
0075
0°
-419
10
37
medio
2575
25°
-421
ligera
4075
40°
-422
HDS 12/14
alta
0010
0°
-082
10
46
medio
2510
25°
-252
ligera
4010
40°
-253
107
ES
-
6
–
El detergente facilita la limpieza. Se absorbe de un depósito
de detergente externo.
–
El aparato viene equipado de serie con una válvula de dosifi-
cación (C). Se puede adquirir otro dispositivo de dosificación
(válvula de dosificación D) como accesorio opcional. Así se
pueden absorber dos detergentes diferentes.
–
La dosis se ajusta en el panel de control de las válvulas de
dosificación de detergente (C o D). El valor ajustado corres-
ponde a la parte de detergente en tanto por ciento.
–
La escala exterior se usa para detergentes no disueltos (100
% CHEM).
–
La escala interior se usa para detergentes disueltos previa-
mente 1+3 (25 % CHEM + 75% agua).
La siguiente tabla indica el consumo de detergente para los va-
lores de la escala exterior:
La dosis exacta depende de:
–
Viscosidad del detergente
–
Altura de aspiración
–
Resistencia de corriente del conducto de alta presión
Si se precisa una dosis exacta, se debe medir la cantidad de de-
tergente aspirada (p.ej. aspirando desde un vaso medidor).
Indicación:
En el capítulo "Accesorios" encontrarán recomenda-
ciones sobre detergentes.
Precaución
Si se opera sin descalcificador se puede calcificar el calentador
de circulación.
Cuando el recipiente de descalcificador está vacío, el piloto de
control de la protección contra la calcificación (H) parpadea.
Figura 1 - pos. 8
Rellenar el recicpiente de descalcificador con líquido descal-
cificador RM 110 (2.780-001)
Peligro
Peligro de escaldamiento por agua caliente Después del servicio
con agua caliente o vapor el aparato debe ser enfriado al menos
dos minutos con agua fría con la pistola abierta.
Cuando se opera con agua caliente, ajustar el regulador de
temperatura (B) a la temperatura más baja.
Utilizar el aparato al menos 30 segundos sin detergente.
Colocar el interruptor principal (A) en la posición "0".
Cerrar el abastecimiento de agua.
Poner en funcionamiento la pistola pulverizadora manual
hasta que no quede presión en el aparato.
Asegure la pistola pulverizadora manual con el dispositivo de
bloqueo de seguridad contra una posible apertura involunta-
ria.
En largos periodos de inactividad o cuando no sea posible el al-
macenamiento a salvo del hielo, tomar las siguientes medidas
(véase capitulo "Cuidados y mantenimiento", sección "Protec-
ción antiheladas"):
Dejar salir agua.
Enjuagar el aparato con anticongelante.
Desconectar el interruptor principal y asegurar o sacar la cla-
vija Cekon.
Cerrar la alimentación de gas.
Precaución
¡Peligro de lesiones y daños! Respetar el peso del aparato en el
almacenamiento.
Precaución
¡Peligro de lesiones y daños! Respetar el peso del aparato para
el transporte.
Al transportar en vehículos, asegurar el aparato para evitar
que resbale y vuelque conforme a las directrices vigentes.
Dosificación de detergente
Posición
0,5
1
8
Cantidad de detergente [l/h]
14...15 22...24
50
Concentración de detergente [%]
1,5
2,5
> 5
Rellenar el descalcificador
Puesta fuera de servicio
Después del funcionamiento con detergente
Desconexión del aparato
Parada
Almacenamiento
Transporte
108
ES
-
7
Datos técnicos
HDS 9/16-4
ST Gas
HDS 9/16-4
ST Gas LPG
HDS 12/14-4
ST Gas
HDS 12/14-4
ST Gas LPG
1.251-108
1.251-109
1.251-110
1.251-111
Potencia y rendimiento
Presión de trabajo agua (con boquilla estándar)
MPa (bar)
16 (160)
16 (160)
14 (140)
14 (140)
Sobrepresión de servicio máxima (válvula de seguridad) MPa (bar)
18,5 (185)
18,5 (185)
18,5 (185)
18,5 (185)
Caudal de agua (regulación continua)
l/h (l/min)
500-1000 (8,3-
16,6)
500-1000 (8,3-
16,6)
600-1200 (10-
20)
600-1200 (10-
20)
Aspiración de detergente (regulación continua)
l/h (l/min)
0-50 (0-0,8)
0-50 (0-0,8)
0-60 (0-1)
0-60 (0-1)
Conexión de agua
Velocidad de alimentación (mín.)
l/h (l/min)
1100 (18,3)
1100 (18,3)
1300 (21,7)
1300 (21,7)
Presión de entrada (mín.)
MPa (bar)
0,1 (1)
0,1 (1)
0,1 (1)
0,1 (1)
Presión de entrada (máx.)
MPa (bar)
0,6 (6)
0,6 (6)
0,6 (6)
0,6 (6)
Conexión eléctrica
Tipo de corriente
--
3N~
3N~
3N~
3N~
Frecuencia
Hz
50
50
50
50
Tensión
V
380-420
380-420
380-420
380-420
Potencia conectada
kW
6,4
6,4
7,5
7,5
Fusible de red eléctrico (inerte)
A
16
16
20
20
Categoria de protección
--
IPX5
IPX5
IPX5
IPX5
Clase de protección
--
I
I
I
I
Impedancia de red máxima permitida
Ohm
(0,381+j
0,238)
(0,381+j
0,238)
--
--
Conexión eléctrica
mm
2
5 x 2,5
5 x 2,5
5 x 2,5
5 x 2,5
Temperatura
Temperatura de entrada (máx.)
°C
30
30
30
30
Temperatura de trabajo máx. agua caliente
°C
98
98
98
98
Temperatura máx. del termostato de seguridad
°C
110
110
110
110
Aumento de temperatura a máx. rendimiento de agua
°C
60-65
60-65
60-65
60-65
Potencia de calefacción bruta
kW
75
75
95
95
Tiro de la chimenea
kPa
0,01-0,04
0,01-0,04
0,01-0,04
0,01-0,04
Valores de conexión de gas
Gas natural E (G 20)
m
3
/h
7,2
--
9,8
--
Gas natural LL (G 25)
m
3
/h
8,2
--
11,4
--
Presión de conexión nominal (gas natural)
kPa
1,8-5
--
1,8-5
--
Propano
kg/h
--
5,7
--
7,2
Presión de conexión nominal (propano)
kPa
--
5-6
--
5-6
Datos del medio ambiente
Grado de uso según la norma
%
97
97
97
97
Factor de emisiones según la norma NO
X
(Gas natural G 25) mg/kWh
< 40
--
< 40
--
Factor de emisiones según la norma CO (Gas natural G 25) mg/kWh
< 40
--
< 40
--
Valores para la medición de chimeneas
Capacidad de sobrepresión (min.)
kPa
0,05
0,05
0,05
0,05
Necesidad de tracción
kPa
0
0
0
0
Corriente de masa de gas de escape - carga total
kg/h
130
130
166
166
CO
2
(gas natural)
%
9,5
--
9,5
--
CO
2
(propano)
%
--
12
--
12
Temperatura de gas de escape máx./mín.
°C
190/150
190/150
170/130
170/130
Aire de quemado/suministro de aire
Longitud máx.: 10 m con dos arcos de 90º (diámetro mínimo 100 mm). De
acuerdo con las normativas locales de lugar de montaje o aire fresco del ex-
terior.
Salida de condensado
Salida de condensado (máx.)
l/h
4 (a través del
sifón en la ca-
nalización)
4 (a través del
sifón en la ca-
nalización)
4 (a través del
sifón en la ca-
nalización)
4 (a través del
sifón en la ca-
nalización)
conexión
DN
40 (HTR)
40 (HTR)
40 (HTR)
40 (HTR)
Columna de agua mínima, sifón
mm
300
300
300
300
109
ES
-
8
Permiso EN 60335-2-79
Permiso de acuerdo con la Gas Appliance Directive (90/
396/EEC)
--
Gastec QA
Low NO
X
Gastec QA
Gastec QA
Low NO
X
Gastec QA
Categoría de aparatos Europa
--
I 2E (r), I
2ELL, I 2H, I
2L, I2 HE
I 3P
I 2E (r), I
2ELL, I 2H, I
2L, I2 HE
I 3P
Tipo de aparatos
--
B23, C33,
C43, C53
B23, C33,
C43, C53
B23, C33,
C43, C53
B23, C33,
C43, C53
Número de identificación de producto CE
--
PIN 0063 BN
3880
PIN 0063 BN
3880
PIN 0063 BN
3880
PIN 0063 BN
3880
Medidas y pesos
Longitud
mm
1124
1124
1124
1124
Anchura
mm
558
558
558
558
Altura
mm
966
966
1076
1076
Peso de funcionamiento típico
kg
193,5
193,5
209
209
Valores calculados conforme a la norma EN 60355-2-79
Emisión sonora
Nivel de presión acústica L
pA
dB(A)
74
74
76
76
Inseguridad K
pA
dB(A)
1
1
1
1
Valor de vibración mano-brazo
Pistola pulverizadora manual
m/s
2
2,2
2,2
2,3
2,3
Lanza dosificadora
m/s
2
1,8
1,8
2,1
2,1
Inseguridad K
m/s
2
1,0
1,0
1,0
1,0
HDS 9/16-4
ST Gas
HDS 9/16-4
ST Gas LPG
HDS 12/14-4
ST Gas
HDS 12/14-4
ST Gas LPG
Hoja de dimensiones
110
ES
-
9
Peligro
¡Peligro de lesiones! Antes de realizar cualquier trabajo de man-
tenimiento o reparación, se debe desconectar el interruptor prini-
cpal o sacar la clavija Cekon.
Cuidados y mantenimiento
Plan de mantenimiento
Cuándo
Operación
Componentes afectados
Ejecución
a realizar
por
A diario
Comprobar la
pistola pulveriza-
dora manual
Pistola pulverizadora manual
Comprobar si la pistola pulverizadora manual
cierra herméticamente. Comprobar el seguro de
manejo no autorizado. Cambiar las pistolas pul-
verizadoras manuales defectuosas.
Operario
Comprobar las
mangueras de
alta presión
Tuberías de salida, mangueras
al aparato de trabajo
Comprobar si las mangueras están dañadas.
Cambiar inmediatamente las mangueras que es-
tén defectuosas. Peligro de accidentes.
Operario
Comprobar el
conducto de co-
nexión con el en-
chufe de red.
Conexión elécrica con enchufe/
toma de corriente
Comprobar el conducto deconexión con el en-
chufe de red por si tuviera daños. Si el cable de
conexión estuviera dañado, debe pedir inmedia-
tamente a un electricista especializado del servi-
cio técnico autorizado que lo sustituya.
Operario
semanalmente o
tras 40 horas de
servicio
Comprobar el
estado del aceite
Recipiente de aceite en la bomba Si el aceite tiene un aspecto lechoso hay que
cambiarla.
Operario
Comprobar el ni-
vel de aceite
Recipiente de aceite en la bomba Comprobar el nivel de aceite de la bomba. Si es
necesario rellenar el aceite (Nº de ref. 6.288-
016).
Operario
Limpie el tamiz
Dispositivo de filtrado en la en-
trada del agua
Véase apartado "Limpiar tamices".
Operario
Mensualmente o
tras 200 lavados
Comprobar la
bomba
bomba de alta presión
Comprobar si la bomba es estanca. Si caen más
de 3 gotas por minuto llamar al servicio de aten-
ción al cliente.
Operario
comprobar si
hay sedimentos
internos
toda la instalación
Operar la instalación con lanza dosificadora sin
boquilla de alta presión. Si la presión de funcio-
namiento del manómetro supera 3 MPa, se debe
descalcificar la instalación. Proceder del mismo
modo si al operar sin conductor de alta presión
(sale agua por la salida de alta presión) se deter-
mina una presión de funcionamiento de más de
0,7-1 MPa.
Operario con
instruccio-
nes para
descalcifica-
ción
Limpie el tamiz
Tamiz en el dispositivo de se-
guridad contra el funciona-
miento en seco
Véase apartado "Limpiar tamices".
Operario
tras 500-700 ho-
ras de servicio
Intercambio
Encendido por incandescen-
cia, electrodo de ionización
Cambiar el encendedor por incandescencia o el
electrodo de ionización.
Servicio de
atención al
cliente
bianualmente o
tras 1000 horas
de servicio
Cambio de acei-
te
bomba de alta presión
Deje salir el aceite. Rellenar 1 l de aceite nuevo
(Nº de ref. 6.288-016). Comprobar el nivel del
depósito de aceite.
Operario
comprobar, lim-
piar
toda la instalación
Control visual de la instalación, comprobar si las
conexiones de alta presión son estancas, com-
probar si la válvula de derivación es estanca,
comprobar la manguera de alta presión, compro-
bar el acumulador de presión, descalcificar el
serpentín de recalentamiento, limpiar /renovar
los electrodos de ionización, ajustar el quema-
dor.
Servicio de
atención al
cliente
Sustituir la man-
guera
Tubo al presostato de gas de
escape
Cambiar el tubo.
Servicio de
atención al
cliente
anualmente
Comprobación
de seguridad
toda la instalación
Realizar la comprobación de seguridad confor-
me a las directrices nacionales correspondiente
de la ley sobre eyectores de líquidos.
Especialista
111
ES
-
10
Se puede firmar un contrato de mantenimiento para el aparato
con el departamento comercial correspondiente de Kärcher.
Figura 1 - pos. 3
Cerrar el abastecimiento de agua.
Desenroscar la manguera de abastecimiento de agua del
aparato.
Extraer el tamiz del conector con un destornillador.
Limpie el tamiz
Montar de nuevo en orden inverso.
Extraer chapas de revestimiento.
Desatornillar la pieza acodada del bloque de seguridad.
Enroscar el tornillo M8x30 en el tamiz.
Extraer el tornillo y el tamiz con unas pinzas.
Limpie el tamiz
Montar de nuevo en orden inverso.
Si hay sedimentos en las tuberías, aumenta la resistencia de co-
rriente, por lo que se puede activar el presostato.
Peligro
¡Peligro de explosión por gases combustibles! Está prohibido fu-
mar mientras se descalcifica. Asegurar una buena ventilación.
Peligro
¡Peligro de causticación por ácido! Usar gafas y guantes de se-
guridad.
Para eliminar sólo se pueden utilizar desincrustadores certifica-
dos y probados según las normativas legales.
–
RM 100 (Nº ref. 6.287-008) desincrusta cal y uniones de cal
y restos de detergente simples.
–
RM 101 (Nº. ref. 6.287-013) desincrusta sedimentos, que no
se puedan desincrustar con RM 100.
Rellenar un recipiente de 20 litros con 15 litros de agua.
Añadir un litro de desincrustador.
Conectar la manguera de agua directamente al cabezal de la
bomba y colgar el extremo libre sobre el recipiente.
Introducir la lanza dosificadora sin boquilla conectada en el
recipiente.
Abrir la pistola pulverizadora manual y no volver a cerrar du-
rante el proceso de descalcificación.
Encender el interruptor en "Conectar quemador", hasta al-
canza aprox. 40 ºC.
Apagar el aparato y dejar reposar 20 minutos. La pistola pul-
verizadora manual tiene que seguir abierta.
Después bombear el aparato para vaciarlo.
Nota:
Recomendamos bombear por el aparato a través del reci-
piente de detergente una protección anticorrosiva y después una
solución alcalina para neutralizar los restos de ácido (RM 81).
Colocar el aparato en un lugar a salvo de heladas. En caso de
riesgo de heladas, p.ej. en instalaciones en exteriores, se debe
vaciar el aparato y aclarar con anticongelante.
Destornillar la manguera de abastecimiento de agua y la
manguera a alta presión.
Dejar en marcha el aparato durante 1 minuto como máximo
hasta que la bomba y los conductos estén vacíos.
Desatornillar el tubo de abastecimiento en el fondo de la caldera
y hacer marchar en vacío el serpentín de recalentamiento.
Nota:
Tener en cuenta las instrucciones de uso del fabricante del
anticongelante.
Rellenar hasta arriba la caja del flotador con anticongelante
convencional.
Colocar un recipiente colector debajo de la salida de alta pre-
sión.
Encender el aparato y dejar en funcionamiento hasta que se
active el dispositivo de seguridad contra el funcionamiento en
seco de la caja del flotador y apague el aparato.
Llenar el fondo de la caldera y el sifón con anticongelante.
De este modo se conseguirá una protección segura contra la co-
rrosión.
Contrato de mantenimiento
Limpie los tamices
Dispositivo de filtrado en la entrada del agua
Tamiz en el dispositivo de seguridad contra el funciona-
miento en seco
Descalcificar
Realización
2.
1.
Protección antiheladas
Dejar salir agua
Enjuagar el aparato con anticongelante.
112
ES
-
11
Peligro
¡Peligro de lesiones! Antes de realizar cualquier trabajo de man-
tenimiento o reparación, se debe desconectar el interruptor prini-
cpal o sacar la clavija Cekon.
*
Nota
Activar la tecla de desbloqueo del termostato de gas de escape
(J), para desbloquear la monitorización de llamas.
Ayuda en caso de avería
Avería
Posible causa
Modo de subsanarla
a realizar por
El aparato no funciona, el pi-
loto de control de disposición
de servicio (F) no se ilumina.
El aparato no tiene tensión.
Comprobar la red eléctrica.
Electricista
Interruptor de seguridad en funcio-
namiento.
Encender y apagar el aparato con el interrup-
tor.
Operario
Fusible del circuito de control (F3)
quemado. El fusible está en el
transformador de control (T2).
Colocar un nuevo fusible, solucionar el cau-
sante de la sobrecarga si se vuelve a que-
mar.
Servicio de atención
al cliente
Presostato AP (alta presión ) o BP
(baja presión) defectuoso.
Comprobar el presostato.
Servicio de atención
al cliente
Módulo de temporizador (A1) de-
fectuoso.
Comprobar las conexiones, si es necesario
cambiarlas.
Servicio de atención
al cliente
+ El piloto de control de so-
brecalentamiento del motor
(G) se ilumina
El sensor de temperatura (WS) en
el motor o interruptor de protección
contra sobrecorriente (F1) se ha
activado.
Solucionar el motivo de sobrecarga.
Servicio de atención
al cliente
Se ha activado el dispositivo de se-
guridad contra el funcionamiento
en seco en la caja del flotador.
Solucionar la falta de agua.
Operario
El quemador no se enciende
o la llama se apaga durante
el servicio
Se ha ajustado el regulador de
temperatura demasiado bajo.
Ajustar el regulador de temperatura a una
temperatura superior.
Operario
El interruptor del aparato no está
en el quemador.
Encender el quemador.
Operario
El dispositivo de seguridad contra
el funcionamiento en seco del blo-
que de seguridad se ha apagado.
Asegurar un abastecimiento de agua sufi-
ciente. Comprobar si el aparato es estanco.
Operario
Grifo de gas cerrado.
Abrir el grifo de gas.
Operario
El limitador de temperatura máxi-
ma de la salida de agua > 110 °C)
se ha activado.
Dejar enfríar la caldera y arrancar de nuevo
el aparato.
Operario
Comprobar el regulador de temperatura.
Servicio de atención
al cliente
El piloto de control de ter-
mostato de gases de escape
(K) se ilumina
Sin suministro de gas.
Abrir el suministro de gas.
Operario
Alimentación aire o aire de escape
atascado.
Comprobar la ventilación y sistema de esca-
pe de gas.
Operario
Fondo de caldera demasiado ca-
liente. El limitador de temperatura
máxima del fondo de la caldera >
80 °C) se ha activado. No hay agua
de condensación en el fondo de
caldera.
Introducir 5 litros de agua a través del man-
guito de gas de escape.
Operario
El sistema automático quemador
de gas está en avería.
Pulsar la tecla de desbloqueo del relé de gas
(!).
Operario
Sin encendido. *
Comprobar la distancia de electrodos, siste-
ma automático quemador de gas y cable de
encendido. Corregir la distancia o cambiar
las piezas defectuosas. Si es necesario lim-
piar.
Servicio de atención
al cliente
Ventilador y platina de control de
velocidad defectuosa. *
Comprobar el ventilador y la platina de con-
trol de velocidad. Comprobar la clavija y el
conducto. Cambiar piezas defectuosas.
Servicio de atención
al cliente
113
ES
-
12
Avería
Posible causa
Modo de subsanarla
a realizar por
El piloto de control de ter-
mostato de gases de escape
(K) se ilumina
El limitador de temperatura de ga-
ses de escape se ha activado.
Abrir la pistola pulverizadora hasta que la
instalación se haya enfriado. Encender y
apagar la instalación en el panel de mando,
para desbloquear el limitador de temperatu-
ra. En caso de que se repita llamar al servicio
técnico.
Operario
El piloto de control de la pro-
tección contra descalcifica-
ción (H) se ilumina
Descalcificador consumido.
Rellenar el descalcificador.
Operario
Transporte de detergente
inexistente o insuficiente
Válvula de dosificación en posición
"0".
Ajuste de la válvula dosificadora de deter-
gente.
Operario
Filtro de detergente atascado o de-
pósito vacío.
Limpiar o rellenar.
Operario
Mangueras de aspiración, válvula
dosificadora o magnética de deter-
gente no hermética o atascada.
Comprobar, limpiar.
Operario
Sistema electrónico o válvula mag-
nética defectuosos
Cambiar
Servicio de atención
al cliente
El aparato no alcanza toda la
presión necesaria
Boquilla enjuagada.
Sustituir la boquilla.
Operario
Depósito de detergente vacío.
Rellenar detergente.
Operario
No hay suficiente agua.
Asegurar una abastecimiento de agua sufi-
ciente.
Operario
Tamiz de la entrada de agua atas-
cado.
Comprobar, desmontar el tamiz y limpiar.
Operario
Válvula de dosificación de deter-
gente no hermética.
Comprobar y estanqueizar.
Operario
Mangueras de detergente no her-
méticas.
Cambiar
Operario
La válvula del flotador está engan-
chada.
Comprobar si funciona bien.
Operario
La válvula de seguridad no es her-
mética.
Comprobar el ajusta, si es necesario montar
una nueva junta.
Servicio de atención
al cliente
La válvula de regulación de caudal
no es hermética o está ajustada
demasiado baja.
Comprobar las piezas de la válvula, cambiar
si están dañadas, limpiar si están sucias.
Servicio de atención
al cliente
La válvula magnética de despresu-
rización defectuosa.
Cambiar la válvula magnética.
Servicio de atención
al cliente
La bomba de alta presión no
funciona, el manómetro osci-
la mucho.
El amortiguador de vibraciones
está defectuoso.
Cambiar el amortiguador de vibraciones.
Servicio de atención
al cliente
La bomba de agua absorbe poco
aire.
Comprobar el sistema de absorción y solu-
cionar la falta de estanqueidad.
Operario
El aparato se apaga/encien-
de continuamente cuando la
pistola está abierta
La boquilla en la lanza dosificadora
está atascada.
Comprobar, limpiar.
Operario
El aparato presenta calcificacio-
nes.
Véase el apartado "Descalcificar".
Operario
Se ha desconfigurado el punto de
desconexión del desbordador.
Ajustar de nuevo el desbordador.
Servicio de atención
al cliente
Tamiz atascado en el dispositivo
de seguridad contra el funciona-
miento en seco.
Comprobar, desmontar el tamiz y limpiar.
Operario
El aparato no se apaga cuan-
do la pistola está cerrada
La bomba no está suficientemente
ventilada.
Poner el interruptor del aparato a "0" y tirar
de la palanca de la pistola hasta que no salga
más líquido de la boquilla. Después volver a
encender el aparato. Repetir este proceso
hasta alcanzar la presión de trabajo necesa-
ria.
Operario
La válvula de seguridad o la junta
de la válvula de seguridad está de-
fectuosa.
Sustituir la válvula o junta de seguridad.
Servicio de atención
al cliente
Presostato del desbordador.
Comprobar el presostato y el desbordador.
Servicio de atención
al cliente
114
ES
-
13
El detergente facilita la limpieza. En la tabla se representa una
selección de detergentes. Antes de trabajar con los detergentes
se deben de leer las indicaciones que aparecen en el paquete.
* = sólo para usos breves, método de dos tiempos, después en-
juagar con agua limpia
** = ASF = se puede separar
*** = para pulverizar previamente es apto Foam-Star 2000
Accesorios
Detergente
Área de aplicación
Suciedad, tipo de aplicación
Detergente
Valor pH (aprox.) solu-
ción de 1 % en agua
del grifo
Gremio del automóvil,
gasolineras, transportes,
flotas de vehículos
Polvo, suciedad de la calle, aceites
minerales (en superficies lacadas)
RM 55 ASF **
8
RM 22/80-Polvo ASF
12/10
RM 81 ASF
9
RM 803 ASF
10
RM 806 ASF
11
Conservación de vehículos
RM 42 Cera fría para limpiadora a alta pre-
sión
8
RM 820-Cera caliente ASF
7
RM 821-Cera pulverizada ASF
6
RM 824-Cera en perlas ASF
7
RM 44 Limpia llantas en gel
9
Industria elaboradora de
metal
Aceites, grasa, polvo y suciedades
similares
RM 22-Polvo ASF
12
RM 55 ASF
8
RM 81 ASF
9
RM 803 ASF
10
RM 806 ASF
12
RM 31 ASF (suciedad profunda)
12
RM 39-líquido (con protección anticorrosiva)
9
Empresas de tratamiento
de alimentos
Suciedades ligeras a medias, gra-
sas/aceites, grandes superficies
RM 55 ASF
8
RM 81 ASF
9
RM 882 espuma en gel OSC
12
RM 58 ASF (detergente en espuma)
9
RM 31 ASF *
12
Resina ahumada
RM 33 *
13
Limpieza y desinfección
RM 732
9
Desinfección
RM 735
7...8
Cal, sedimentos minerales
RM 25 ASF *
2
RM 59 ASF (Limpieza con espuma)
2
Ámbito sanitario ***
Cal, urina, jabón etc.
RM 25 ASF * (limpieza a fondo)
2
RM 59 ASF (Limpieza con espuma)
2
RM 68 ASF
5
115
ES

