Karcher Nettoyeur haute pression HDS 12-14-4 ST Gaz: !
!: Karcher Nettoyeur haute pression HDS 12-14-4 ST Gaz
-
14
–
Maskinens opvarmningsindretning er et fyringsanlæg. Over-
hold de respektive nationale forskrifter ved opstillingen.
–
Kun godkendte skorstene/røggasledninger må anvendes.
–
Installationen af gasledningerne, som også gastilslutningen
af maskinen, må kun gennemføres af en specialvirksomhed
som er godkendt for gas- og vandtilslutning.
–
Indstillinger og reparationer på gasbrænderen, må kun gen-
nemføres af trænede Kärcher kundeservice-montører.
–
I gastilførselsledningen, som mindst skal have 1 tomme no-
minel bredde, skal der anbringes et manometer og en af-
spærringsventil.
–
På grund af vibrationerne, som blev genereret af højtryks-
pumpen, skal forbindelsen mellem den ubøjelige gasledning
og maskinen oprettes med en bøjelig gasslange.
–
Hos gasledninger som er længere end 10 m, skal den nomi-
nelle bredde være 1 1/2 tomme eller større. Gastilslutningen
på maskinen har en nominel bredde på 1 tomme.
Risiko
Hvis den bøjelige gasslange skrues på brænderen, skal der hol-
des imod tilslutningsstykket med en gaffelnøgle SW 36. Tilslut-
ningsstykket må ikke forvrides overfor brænderhuset. Tætningen
af gevindtilslutningen skal foretages med DVGW-godkendte tæt-
ningsmidler. Efter tilslutningen skal forbindelsen kontrolleres med
DVGW-godkendt lækagesøger for tæthed.
Gasledningens rørbredde skal beregnes ifølge DVGW TRGI
1986 hhv. TRF 1996. Den nominelle bredde af maskinens gastil-
slutning er ikke automatisk lige med rørledningens nominelle
bredde. Dimensionering og installation af gasledningen skal gen-
nemføres ifølge de tilsvarende standarder og forskrifter.
–
Hver enhed skal tilsluttes til en egen kamin.
–
Røggasføringen skal gennemføres ifølge de lokale forskrifter
og i aftale med den vedkommende skorstensfejermester.
Gasenhed uden strømningssikring, hvor alle komponenter af
røggasvejen, som har overtryk, omskylles med forbrændingsluft.
B23-installationen muliggør, at maskinen kan tilsluttes til en tra-
ditionel (med et aftræk) skorsten ifølge DIN 18160 og bruges af-
hængigt af rummets luft. Forudsætning er, at skorstenen er egnet
til tilslutning af brændere (f.eks. hvis skorstenen blev saneret ved
at trække et rør af rustfrit stål ind).
Gasenhed med forbrændingslufttilførsel og røggasføring lodret
over taget. Mundingerne sidder nær ved hinanden i samme tryk-
område.
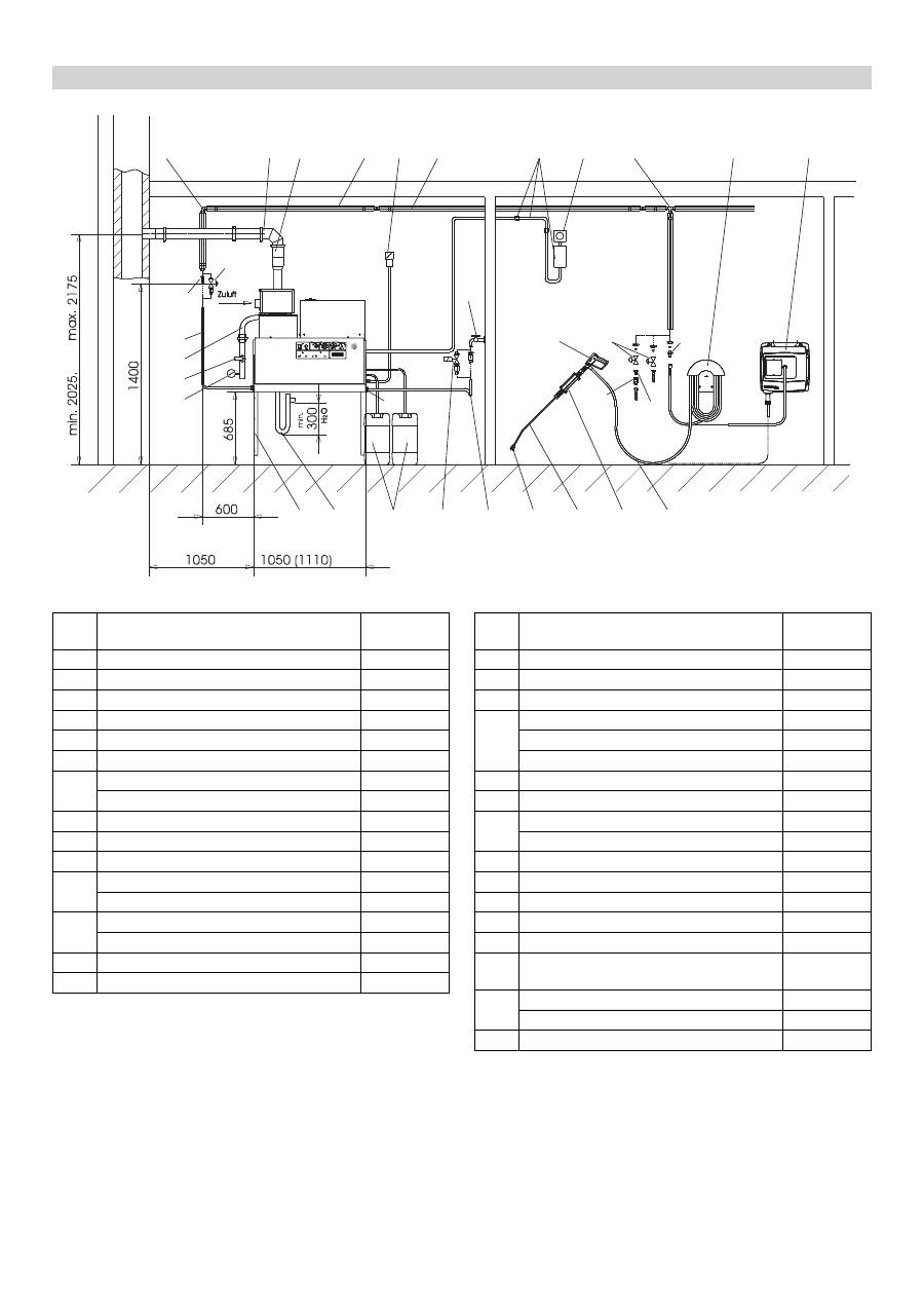
Anlægsinstallation
Kun til autoriserede specialister!
Generelt
Gas generelt
Gasledninger
Luft-/røggasføringen
!
Gasenhed med røggasanlæg, som tager forbrændingsluften
ud af opstillingsrummet.
Type B23
Gasenheder med røggasanlæg, som udtager forbrændings-
luften udefra via et lukket system
Type C33
156
DA
-
15
Gasenhed med forbrændingslufttilførsel og røggasføring for til-
slutning til et luft-røggassystem.
Gasenhed med separat forbrændingslufttilførsel og røggasfø-
ring. Mundingerne sidder i forskellige trykområder.
Bemærk:
For at opnå de foreskrevne forbrændingsværdier, skal
det kamintræk, som angives i de tekniske data, overholdes.
Kondensatafløbet skal hæves direkte ved kondensattilsluttet.
Hævertens højde skal mindst være 30 cm. En hævert kommer
ikke med leverancen. Kondensatledningen må ikke være fast for-
bundet med kloakanlægget. Det skal være muligt, at kondensatet
kan løbe frit ind i en tragt eller neutraliseringsbeholder.
–
Før monteringen skal væggens stabilitet kontrolleres . Det
medleverede fastgøringsmateriale er egnet til beton. Til mel-
lemrumsmoduler, teglstensmoduler og gasbetonvægge, skal
der anvendes egnede ankerbolte og skruer, f.eks. injektions-
ankre (skabelon se måltabellen).
–
Figur 3 - pos. 19 og 25
Maskinen må ikke forbindes ubøjeligt med vandlednings- el-
ler højtryksledningsnettet. Koblingsslangerne skal monteres.
–
Figur 3 - A
Mellem vandledningsnettet og koblingsslangen skal der mon-
teres en stophane.
Ved montering af højtryksledninger skal de pågældende nationa-
le love og forskrifter overholdes.
–
Trykfaldet i rørledningen skal være mindre end 1,5 MPa.
–
Den færdige rørledning skal kontrolleres med 32 MPa.
–
Rørledningens isolering skal være temperaturbestandig op til
100 °C.
Fig. 3- pos. 20
Beholderne skal opstilles således, at den rensemidlets nederste
niveauhøjde ikke er lavere end 1, 5 m under enhedens bund og
den øverste niveauhøjde ikke ligger over enhedens bund.
Figur 3 - B og pos. 19
Tilslut vandindgangen med en passende vandslange til vand-
forsyningsnettet.
–
Vandforsyningens kapacitet skal mindst være 1300 l/h ved
mindst 0,1 MPa.
–
Vandtemperaturen skal ligge være lavere end 30 °C.
Type C43
Type C53
Kondensatafløb
Vægmontering
Montering af højtryksledningerne
Opstille rensemiddelbeholderen
Vandforsyning
157
DA
-
16
Forsigtig
Den maksimal tilladelige netimpedans ved el-tilslutningspunktet
(se tekniske data) må ikke overskrides. Hvis der er tvivl om ne-
timpedansen af tilslutningspunktet, kontakt venligst energiforsy-
ningsvirksomheden.
Bemærk:
Tændingsprocesser fremkalder kortvarige sænkninger
af spændingen. Ved ugunstige strømforhold kan det have en ne-
gativ indflydelse på andre apparater.
–
Se typeskilt/tekniske data for tilslutningsværdier
–
El-tilslutningen skal gennemføres af en el-installatør og svare
til IEC 60364-1.
–
Strømførende komponenter, kabler og apparater i arbejds-
området skal være i udmærket tilstand og være beskyttet
mod strålevand.
For at undgå elektriske uheld anbefaler vi, at man anvender stik-
kontakter med et forkoblet fejlstrømsrelæ (maks. 30 mA nom. ud-
løse-strømstyrke).
Oprette el-tilslutningen.
Til afbrydning af den stationære højtryksrenser, skal der monte-
res en hovedafbryder (fig. 3 - pos. 6) som kan låses på et ufarligt
og let tilgængeligt sted.
Hovedafbryderens kontaktåbningsbredde skal mindst være 3
mm.
Monter et Cekon-stik på maskinens tilslutningskabel.
Sæt Cekon-stikket ind i stikkontakten.
Til afbrydning af den stationære højtryksrenser, skal Cekon-stik-
ket til afbrydning fra nettet være nemt tilgængeligt.
Kontroller gastilslutningen.
Forsigtig
Fare for maskinskader på grund af overophedning.
Tilslut vandlåsen på kedelbunden og påfyld den med vand.
Påfyld kedlen med 4 liter vand via kaminåbningen.
Inden første drift, skal toppen af oliebeholderens dæksel på
vandpumpen klippes af.
Fig. 3- pos. 14
Højtryksslangen forbindes med håndsprøjtepistolen og strå-
lerøret og tilsluttes til maskinens højtryksudgang eller til høj-
tryksrørledningsnettet.
Monter dysemundstykket (b) med omløbermøtrikken (a) på
strålerøret (d). Hold øje med at tætningsringen (c) ligger kor-
rekt i rillen.
El-tilslutning
Fast installeret el-tilslutning
El-tilslutning med stik/bøsning
Første idriftsættelse
Maskinen er af fabrik indstillet som naturgas-maskinen til gasty-
pe G 20 og som maskinen med flydende gas til G 31. Ved om-
stilling af naturgas-maskinen til G 25 eller andre (se typeskilt)
naturgas, eller omstilling af maskinen med flydende gas til G 30
eller et andet (se typeskilt) flydende gas, skal naturgas-røggas-
værdierne hos naturgas-maskinen og værdierne af det flydende
gas ved maskinen med flydende gas indstilles ifølge service-in-
formationerne.
Det vedlagte blanke skilt udfyldes med den ny indstillede gasty-
pe og fastgøres i adressefeltet på maskinens højre side. Samti-
digt skal det skilt med informationerne G 20 (naturgas-maskine)
eller G 31 (maskine med flydende gas), som blev anbragt af fa-
brik, fjernes.
Foranstaltninger før idriftsættelsen
a
b
c
d
158
DA
-
17
Fjern fjeder (c) fra blødgøringsmiddelbeholderens (a) dæk-
selstøtte (b).
Påfyld beholderen med Kärcher-blødgøringsvæske RM 110
(bestillingsnr. 2.780-001).
Risiko
Farlig elektrisk spænding! Indstillinger må kun gennemføres af
en el-installatør.
Undersøg den lokale vandhårdhed:
–
hos det lokale vandforsyningsselskab,
–
med hårdhedsprøvesæt (bestillingsnr. 6.768-004).
Fjern maskinhætten.
Åbn styringsskabet ved betjeningspanelet.
Indstil drejepotentiometeret (a) ifølge vandhårdheden. Den
rigtige indstilling findes i tabellen.
Eksempel:
Til en vandhårdhed på 15 °dH, skal der indstilles værdi 6 på dre-
jepotentiometeret. Herud følger en pausetid på 31 sekunder, dvs.
hver 31 sekunder åbner magnetventilen sig kort.
Indstilling af driftstiden (maskinen klar til drift), foretages på den
større platin på venstre side af styringsskabet.
Driftstiden er af fabrik indstillet til en minimal tid på 2 minutter og
kan forøges til en maksimal tid på 8 minutter.
Beskyttelse imod forkalkning
Vandhårdhed (°dH)
5
10
15
20
25
Skala på drejepotentiome-
teret
8
7
6
5
4,5
Pausetid (sekunder)
50
40
31
22
16
b
c
a
a
Omstilling af driftstiden
8 7 6 5 4 3 2 1
S2
min.
max.
159
DA
-
18
Fig. 3
Installationsmateriale
1
2
3
5
6
7
8
9
10
12
13
A
15
11b
11a
11c
11a
25
21
22
23
11b
24
4
20
19a
19
18
17
16
14
11d
B
Pos. Installationsmateriale
Bestil-
lingsnr.
1
Vinkelforskruning
6.386-356
2
Røggasledningskit, vandret, 150 mm
6.526-231
3
Røggasledningskit, lodret, 150 mm
6.526-232
4
Komponentsæt vandlås
2.640-422
5
Varmeisolering
6.286-114
6
Hovedafbryder
6.631-455
7
Rørledningssæt, galvaniseret stål
2.420-004
Rørledningssæt, rustfrit stål
2.420-006
8
Komponentsæt fjernstyring
2.744-008
9
Komponentsæt Nødstop-knap
2.744-002
10
T-forskruning
6.386-269
11a
Tilslutningsstykke, messing
2.638-180
Tilslutningsstykke, rustfrit stål
2.638-181
11b
Stophane NW 8, galvaniseret stål
4.580-144
Stophane NW 8, rustfrit stål
4.580-163
11c
Hurtigkobling fast komponent
6.463-025
11d
Hurtigkobling løs komponent
6.463-023
Pos. Installationsmateriale
Bestil-
lingsnr.
12
Slangeholder
2.042-001
13
Slangetromme.
2.637-238
14
Højtryksslange 10 m
6.388-083
15
Håndsprøjtepistol Easypress
4.775-463
Drejeregulator HDS 9/16-4
4.775-470
Drejeregulator HDS 12/14-4
4.775-471
16
Strålerørholder
2.042-002
17
Strålerør
4.760-550
18
Dysemundstykke HDS 9/16-4
2.883-402
Dysemundstykke HDS 12/14-4
2.883-406
19
Vandslange
4.440-282
19a
Magnetventil vandtilførsel
4.743-011
20
Rensemiddeltank, 60 l
5.070-078
21
Gasslange R1“
6.388-228
22
Gas-stophane R1“
6.412-389
23
Manometer, gas (Giv agt! Afslutningsven-
tilen skal monteres på stedet.)
6.412-059
24
Komponentsæt vægkonsol
2.053-005
Komponentsæt gulvstel
2.210-008
25
Højtryksslange
6.389-028
160
DA
-
19
Hermed erklærer vi, at den nedenfor nævnte maskine i design og
konstruktion og i den af os i handlen bragte udgave overholder de
gældende grundlæggende sikkerheds- og sundhedskrav i EF-di-
rektiverne. Ved ændringer af maskinen, der foretages uden for-
udgående aftale med os, mister denne erklæring sin gyldighed.
5.957-648
Undertegnede agerer på vegne af og med fuldmagt fra ledelsen.
Dokumentationsbefuldmægtiget:
S. Reiser
Alfred Kärcher GmbH & Co. KG
Alfred-Kärcher-Str. 28 - 40
71364 Winnenden (Germany)
Tlf.:
+49 7195 14-0
Fax: +49 7195 14-2212
Winnenden, 2014/02/01
I de enkelte lande gælder de af vore forhandlere fastlagte garan-
tibetingelser. Eventuelle fejl på din maskine afhjælpes gratis in-
den for garantifristen, såfremt materiale- og produktionsfejl er
skyld i disse fejl.
EU-overensstemmelseserklæring
Produkt:
Højtryksrenser
Type:
1.251-xxx
Gældende EF-direktiver
2009/142/EF
2006/42/EF (+2009/127/EF)
2004/108/EF
Anvendte harmoniserede standarder
EN 55014–1: 2006+A1: 2009+A2: 2011
EN 55014–2: 1997+A1: 2001+A2: 2008
EN 60335–1
EN 60335–2–79
EN 62233: 2008
EN 61000–3–2: 2006+A1: 2009+A2: 2009
HDS 12/14:
EN 61000–3–3: 2008
HDS 9/16:
EN 61000–3–11: 2000
Anvendte specifikationer:
QA 195 (ikke LPG)
Navn på det nævnte sted:
Til 2009/142/EF
GASTEC
Wilmersdorf 50
7327 AC Apeldoorn
Kendingsnummer. 0063
Garanti
CEO
Head of Approbation
161
DA
-
20
Kundeservice
Anlægstype:
Produktionsnr.
Ibrugtagning den:
Prøvet af:
Diagnose:
Underskrift
Prøvet af:
Diagnose:
Underskrift
Prøvet af:
Diagnose:
Underskrift
Prøvet af:
Diagnose:
Underskrift
162
DA
-
1
Før første gangs bruk av apparatet, les denne origina-
le bruksanvisningen, følg den og oppbevar den for se-
nere bruk eller for overlevering til neste eier.
–
Det er tvingende nødvendig å lese sikkerhetsinstruksene nr.
5.956-309 før maskinen settes i drift!
–
Informer straks forhandleren ved transportskader.
Anvisninger om innhold (REACH)
Aktuell informasjon om stoffene i innholdet finner du under:
www.kaercher.com/REACH
Fare
For en umiddelbar truende fare som kan føre til store personska-
der eller til død.
몇
Advarsel
For en mulig farlig situasjon som kan føre til store personskader
eller til død.
Forsiktig!
For en mulig farlig situasjon som kan føre til mindre personskader
eller til materielle skader.
Høytrykkstråler kan være farlige ved feil bruk. Strålen
må ikke rettes mot personer, dyr, elektrisk utstyr som
er på, eller høytrykksvaskeren selv.
–
Følg gjeldende lovpålagte nasjonale forskrifter for væskestrå-
lemaskiner.
–
Følg gjeldende lovpålagte nasjonale forskrifter om ulykkes-
forhindring. Væskestrålemaskinen må kontrolleres regelmes-
sig og resultatene av kontrollen skal protokollføres.
–
Varmeinnretningen på maskinen er et fyringsanlegg. Fyrings-
anlegg må kontrolleres regelmessig i ehnhold til de gjeldende
nasjonale forskriftene.
–
Ved drift av anlegget i lukkede rom skal det sørges for en ri-
sikofri bortledning av avgassene (avgassrør uten tilbake-
slagsventil). Det må være tilstrekkelig tilførsel av frisk luft.
–
Sikkerhetsanvisningene vedrørende rengjøringsmidlene som
anvendes (dvs. på etiketten) skal følges.
Før installasjon av apparatet bør det gjøres en avstemning men
gassforsyningsfirmaet og med den lokale skorsteinsfeier (brann-
vesen).
Ved installasjon skal forskrfter fra bygningsloven, forurensnings-
loven og andre firmarelaterte lover følges. Vi viser til forskrifter,
retningslinjer og standarder som angitt under:
–
Apparatet skal kun installeres av fagfolk under hensyntaken
til nasjonale forskrifter.
–
For det elektriske anlegget skal gjeldende nasjonale lover og
regler følges.
–
For gassanlegget skal gjeldende nasjonale lover og regler
følges.
–
Installasjon av gassledninger, så vel tilkobling på gassiden av
appratet, skal kun utføres av et firma godkjent for denne type
gass- og rørleggerarbeide.
–
Innstillinger, vedlikeholdsarbeider og reparasjon av brenne-
ren skal kun utføres av opplærte Kärcher-kundeservice mon-
tører.
–
Ved planlegging av skorstein skal de gjeldende lokale ret-
ningslinjer følges.
Innholdsfortegnelse
Miljøvern . . . . . . . . . . . . . . .
NO . . 1
Symboler i bruksanvisningen
NO . . 1
Symboler på maskinen . . . .
NO . . 1
Generelle sikkerhetsanvisninger
NO . . 1
Forskriftsmessig bruk . . . . .
NO . . 2
Funksjon . . . . . . . . . . . . . . .
NO . . 2
Sikkerhetsinnretninger . . . .
NO . . 2
Maskinorganer . . . . . . . . . .
NO . . 3
Ta i bruk. . . . . . . . . . . . . . . .
NO . . 4
Betjening . . . . . . . . . . . . . . .
NO . . 4
Stans av driften . . . . . . . . . .
NO . . 6
Sette bort. . . . . . . . . . . . . . .
NO . . 6
Lagring . . . . . . . . . . . . . . . .
NO . . 6
Transport. . . . . . . . . . . . . . .
NO . . 6
Tekniske data . . . . . . . . . . .
NO . . 7
Pleie og vedlikehold . . . . . .
NO . . 9
Feilretting . . . . . . . . . . . . . .
NO . 11
Tilbehør . . . . . . . . . . . . . . . .
NO . 13
Installasjon av anlegget. . . .
NO . 14
EU-samsvarserklæring . . . .
NO . 19
Garanti . . . . . . . . . . . . . . . .
NO . 19
Kundetjeneste . . . . . . . . . . .
NO . 20
Miljøvern
Materialet i emballasjen kan resirkuleres. Ikke kast
emballasjen i husholdningsavfallet, men lever den inn
til resirkulering.
Gamle apparater inneholder verdifulle materialer som
kan resirkuleres. Disse bør leveres inn til gjenvinning.
Batterier, olje og lignende stoffer må ikke komme ut i
miljøet. Gamle maskiner skal derfor avhendes i egne-
de innsamlingssystemer.
Vennligst ikke slipp ut motorolje, fyringsolje, diesel eller bensin i
naturen. Beskytt jordsmonnet og deponer brukt olje på en miljø-
vennlig måte.
Kärcher-rengjøringsmiddel er avskiller-vennlig (ASF). Det betyr
at en oljeavskillers funksjon ikke blir hindret. En liste av anbefal-
te rengjøringsmidler er vist i kapittel "Tilbehør".
Symboler i bruksanvisningen
Symboler på maskinen
Generelle sikkerhetsanvisninger
Forskrifter, retningslinjer og regler
163
NO
-
2
Arbeidsplassen er ved betjeningspanelet. Ytterligere arbeids-
plasser befinner seg ved tilbehørsapparatene (spyleinnretninger)
som er tilknyttet tappestedene, avhengig av oppbyggingen av an-
legget.
–
Bruk egnede verneklær og vernebriller som beskyttelse mot
tilbakesprut av vann og smuss.
Dette apparatet er beregnet på fjerning av smuss på overflater
ved hjelp av en fritt utstrømmende vannstråle. Spesielt blir det
benyttet til rengjøring av maskiner, kjøretøy og fasader.
Fare!
Fare for skader! Ved bruk på bensinstasjoner og andre farlige
steder skal relevante sikkerhetsforskrifter følges.
–
Kaldtvann kommer via motorkjøleslange til flottørbeholder og
derfra til ytre mantel i gjennomstrømningsovnen og videre til
sugesiden av høytrykkspumpen. Avherder tilsettes i flottørbe-
holderen. Pumpen fører vann og rengjøringsmiddel gjennom
gjennomstrømningsovnen. Andelen av rengjøringsmiddel i
vannet kan innstilles ved hjelp av en doseringsventil. Gjen-
nomstrømningsovnen varmes opp av en gassbrenner.
–
Høytrykksutgangen tilkoples et eksisterende høytrykksnett i
bygningen. På uttaksstedene i nettet skjer tilkoplingen av
høytrykkspistolen ved hjelp av en høytrykksslange.
Sikkerhetsinnretninger er beregnet for å beskytte brukeren og må
ikke settes ut av drift eller omgås.
Vannmangelsikring forhindrer innkobling av høyttrykkspumpen
ved vannmangel.
Lavvannssikringen forhindrer overoppheting av brenneren ved
for lite vann. Brenneren settes bare i drift såfremt vannforsynin-
gen er tilstrekkelig.
Trykkbryteren kopler ut apparatet ved overskredet arbeidstrykk.
Innstillingen skal ikke endres.
Ved feil på trykkbryteren åpner sikkerhetsventilen. Denne venti-
len er innstilt og plombert fra fabrikken. Innstillingen skal ikke en-
dres.
Ved brennstoffmangel eller feil på brenneren kopler flammeover-
våkingen ut brenneren. Kontrolllampen "Flammeovervåking" (E)
tennes.
Blokkeres brennermotoren, aktiveres bryteren for overstrømver-
net. Høytrykkspumpens motor er sikret med en motorvernbryter
og en viklingsvernbryter.
Avgasstermostaten løser seg ut dersom avgasstemperaturen
overstiger 320 °C. Kontrolllampe avgasstermostat (K) lyser.
Maksimaltemperaturbegrenser i tankbunnen (> 80 °C) og på
vannutløpet (> 110 °C) utløses og kontrollampe Brennerfeil (E)
tennes.
Avgass-trykkbryter vil slå av brenneren, dersom avgassystemet
får et ulovlig høyt trykk, f.eks. pga. tilstopping.
Etter avslåing av maskinen via høytrykkpistolen åpnes, etter for-
løpet av driftsberedskapstiden, en magnetventil i høytrykksyste-
met slik at trykket synker.
Arbeidsplasser
Personlig verneutstyr
Ved rengjøring av støyforsterkende deler skal
det brukes hørselvern for å unngå hørselskader.
Forskriftsmessig bruk
Ikke la avløpsvann med oljeinnhold komme ned i jordsmonnet,
vann eller avløpssystem. Motorvask og understellsvask skal
derfor bare utføres på egnede steder med oljeavskiller.
Funksjon
Sikkerhetsinnretninger
Vannmangelsikring, flottørbeholder
Vannmangelsikring, sikkerhetsblokk
Trykkbryter
Sikkerhetsventil
Flammeovervåking
Overstrømvern
Avgasstermostat
Temperaturbegrenser
Avgass-trykkbryter
Trykkavlastning høyttrykksystem
164
NO
-
3
Bilde 1
1 Brenner
2 Manometer
3 Rentvann-tilførsel med sil
4 Høytrykk-utgang
5 Gasstilkobling
6 Rengjøringsmiddel, sugeslange I
7 Rengjøringsmiddel, sugeslange II (tilleggsutstyr)
8 Avherderbeholder
9 Elektroforsyningsledning
10 Flottørbeholder
11 Betjeningspanel
Bilde 2
A Apparatbryter
B Temperaturregulator
C Rengjøringsmiddel, doseringsventil I
D Rengjøringsmiddel, doseringsventil II (tilleggsutstyr)
E Kontrolllampe, feil ved brenner
F Kontrolllampe driftsklar
G Kontrolllampe, motor overopphetet
H Kontrolllampe, anti-kalkfunksjon
I
Låsetast gassrele
J Låsetast avgasstermostat
K Kontrolllampe avgasstermostat
Maskinorganer
4
5
6
7
3
8
10
1
11
2
9
Betjeningspanel
165
NO
-
4
몇
Fare!
Fare for skader! Apparat, tilførselsledninger, høytrykksledning og
tilkoblinger må være i feilfri tilstand. Apparat og tilbehør må ikke
brukes dersom det ikke er i feilfri stand.
–
Se typeskilt og tekniske data for tilkoblingsverdier.
–
Den elektriske tilkoblingen må foretas av en servicemontør el-
ler en autorisert elektriker og må være iht. IEC 60364-1.
Høytrykksvaskeren må brukes på korrekt måte. Brukeren må ta
hensyn til forholdene på det aktuelle bruksstedet, og være opp-
merksom på andre personer som måtte befinne seg i nærheten.
La aldri høytrykksvaskeren stå uten oppsyn når den er i gang.
Fare
–
Forbrenningsfare fra varmt vann! Ikke rett vannstrålen mot
mennesker eller dyr.
–
Forbrenningsfare fra varme deler av anlegget! Ved drift med
varmt vann, ikke berør uisolerte rørledninger og slanger. Strå-
lerøret skal kun holdes i gripehåndtakene. Ikke berør avgass-
rørene fra gjennomstrømningsbrenneren.
–
Forgiftningsfare eller fare for etsing fra rengjøringsmiddel!
Følg anvisninger på rengjøringsmiddelet. Oppbevar rengjø-
ringsmiddelet utilgjengelig for uvedkommende.
Fare
Livsfare på grunn av elektrisk støt! Ikke rett vannstrålen mot føl-
gende innretninger:
–
Elektriske apparater og installasjoner,
–
anlegget selv,
–
alle strømførende deler i arbeidsområdet.
Vannstrålen som trenger ut av strålerøret genererer en tilbake-
slagskraft. Som følge av rørets bøyning, virker kraften oppover.
Fare
–
Fare for skader! Tilbakeslagskraften i strålerøret kan gjøre at
du bringes ut av balanse. Risiko for at du kan falle. Strålerøret
kan slynges rundt og skade personer. Ha et stødig ståsted og
hold godt fast i høytrykkpistolen. Klem aldri fast hendelen på
høytrykkpistolen.
–
Ikke rett strålen mot deg selv eller andre for å rengjøre klær
eller skotøy.
–
Fare for skade på grunn av deler som slynges ut i luften!
Bruddstykker eller gjenstander kan skade personer eller dyr.
Rett aldri vannstrålen mot skjøre eller løse gjenstander.
–
Fare for ulykker ved skader! Dekk og ventiler rengjøres med
en avstand på minst 30 cm.
몇
Advarsel
Fare på grunn av helsefarlige stoffer! Ikke spyl følgende stoffer
fordi helsefarlige stoffer kan virvles opp:
–
asbestholdige materialer,
–
materialer som kan inneholde helseskadelige stoffer.
Fare
–
Fare for skader ved utstrømming av (muligvis) varmt vann!
Kun originale Kärcher-høytrykkslanger er optimalt tilpasset
anlegget. Ved bruk av andre slanger bortfaller garantideknin-
gen.
–
Helsefare fra rengjøringsmiddel! På grunn av eventuelt inn-
blandet rengjøringsmiddel er vannet fra maskinen ikke av
drikkevannskvalitet.
–
Fare for hørselskader ved arbeid med støyforsterkende deler!
I slike tilfeller skal det brukes hørselvern.
Fare
Vannstrålen kan være varm - fare for skader!
Fare
Kontroller alltid høytrykkslangen for skader før bruk av høytrykks-
vaskeren. Høytrykkslanger med skader må skiftes ut umiddel-
bart.
Høytrykkslange, rørledninger, armaturer og strålerør skal
kontrolleres for skader før hver bruk.
Kontroller at slangekupplinger sittwer fast og er tette.
Forsiktig!
Risiko for skader som følge av tørrkjøring.
Kontroller fyllingsgrad på beholder for rengjøringsmiddel og
etterfyll ved behov.
Kontroller nivå av avherdervæske og etterfyll ved behov.
Sett maskinbryteren (A) på ”0”
Steng vanntilførselen.
Trykk på sprøytepistolen til apparatet er trykkløst.
Lukke gasstilførsel.
Ta i bruk
Strømtilkobling
Betjening
Sikkerhetsanvisninger
!
Sette opp driftsberedskap
Slå av i nødsfall
166
NO
-
5
Drei mengdereguleringsventil med klokka for å få høyere
trykk og større volum.
Drei mengdereguleringsventil mot klokka for å få lavere trykk
og lavere volum.
Ved å dreie vannmengderegulatoren til høyre økes vann-
mengden og arbeidstrykket.
Ved å dreie vannmengderegulatoren til venstre reduseres
vannmengden og arbeidstrykket.
Åpne vannkranen.
Symbol "Motor PÅ"
Klem inn hendelen på høytrykkspistolen og sett apparatbryte-
ren (A) til „Motor PÅ“.
Kontrolllampen "Driftsklar" (F) indikerer at apparatet er klart til
bruk.
Fare!
Forbrenningsfare!
Forsiktig!
Varmtvannsdrift uten brennstoff resulterer i skader på brennstoff-
pumpen. Forsikre deg om at brennstofftilførselen er i orden innen
du skifter til varmtvannsdrift.
Brenner kan kobles inn ved behov.
Symbol "Brenner PÅ"
Sett maskinbryteren (A) på ”Brenner på”
Still inn ønsket vanntemperatur på temperaturregulatoren
(B). Maksimumtemperatur er 98 °C.
–
Dersom hendelen på høytrykkspistolen slippes mens appara-
tet er i drift, koples apparatet ut.
–
Hvis høyttrykkspistolen betjenes på nytt i løpet av den innstill-
bare tiden for hvor lenge apparatet skal være driftsklart (2…8
minutter), koples apparatet automatisk inn igjen.
–
Overskrides tiden for hvor lenge apparatet skal være drifts-
klart, kopler sikkerhetstidsbryteren ut pumpen og brenneren.
Kontrolllampen "Driftsklar" (F) slukker.
–
For å starte apparatet igjen, må apparatbryteren settes i po-
sisjon "0", og deretter slås på igjen. Blir apparatet styrt med
en fjernkontroll, kan det slås på igjen ved hjelp av motsvaren-
de bryter på fjernkontrollen.
–
Bildekk skal kun rengjøres med flatstråledysen (25°) og med
en minimum sprøyteavstand på 30 cm. Dekk skal ikke under
noen omstendigheter rengjøres med rundstråle.
For alle andre oppgaver kan du velge mellom følgende dyser:
I anlegg med mer enn 20 m rørledning eller mer enn 2 x 10 m
høytrykkslange NW 8 skal følgende dyser anvendes:
Innstilling av arbeidstrykk og vannmengde
Innstilling på apparatet
Innstilling av Easypress-pistol (tilleggsutstyr)
Drift med kaldt vann
R
Drift med varmt vann
Driftsklar
Alternative dyser
Tilsmus-
set
Dyse
Strålevin-
kel
Best.nr.
6.415
Trykk
[MPa]
Tilbake-
slags-
kraft [N]
HDS 9/16
sterk
00060
0°
-649
16
46
middels
25060
25°
-647
lite
40060
40°
-648
HDS 12/14
sterk
00080
0°
-150
14
55
middels
25080
25°
-152
lite
40080
40°
-153
Tilsmus-
set
Dyse
Strålevin-
kel
Best.nr.
6.415
Trykk
[MPa]
Tilbake-
slags-
kraft [N]
HDS 9/16
sterk
0075
0°
-419
10
37
middels
2575
25°
-421
lite
4075
40°
-422
HDS 12/14
sterk
0010
0°
-082
10
46
middels
2510
25°
-252
lite
4010
40°
-253
167
NO
-
6
–
Rengjøringsmiddel letter rengjøringsarbeidet. Rengjørings-
middelet suges opp fra en ekstern tank.
–
Apparatet er i grunnutførelsen utstyrt med en doseringsventil
(C). En ekstra doseringsinnretning (doseringsventil D) kan le-
veres som ekstrautstyr. Med denne har du muligheten til å å
benytte to ulike rengjøringsmidler.
–
Doseringsmengden stilles inn med rengjøringsmiddel-dose-
ringsventil (C eller D) på betjeningspanelet. Den innstilte ver-
dien motsvarer rengjøringsmiddelets andel i prosent.
–
Den ytre skalaen gjelder ved bruk av ufortynnet rengjørings-
middel (100 % CHEM).
–
Den indre skalaen gjelder ved bruk av 1+3 utblandet rengjø-
ringsmiddel (25 % CHEM + 75 % vann)
Følgende tabell angir forbruket av rengjøringsmiddel for verdiene
på den ytre skalaen:
Den nøyaktige doseringsmengden avhenger av:
–
Rengjøringsmiddelets viskositet
–
Oppsugingshøyde
–
Strømningsmotstanden i høytrykksledningen
Dersom det kreves en eksakt dosering, skal mengden rengjø-
ringsmiddel som suges opp måles (f.eks. ved oppsuging fra et
målebeger).
Merk:
En oversikt over anbefalte rengjøringsmidler er å finne i
avsnittet "Tilbehør".
Forsiktig!
Ved drift uten bruk av bløtemiddel er det risiko for forkalkning i
gjennomstrømningsovnen.
Er bløtemiddelbeholderen tom, blinker kontrolllampen Anti-kalk-
funksjon (H).
Bilde 1 - pos. 8
Etterfylle bløtemiddelbeholderen med bløtemiddel RM 110
(2.780-001).
Fare
Forbrenningsfare fra varmt vann! Etter drift med varmt vann eller
damp må apparatet for å avkjøles drives minst to minutter med
kaldt vann, med åpen pistol.
Ved varmtvannsdrift stilles temperaturregulatoren (B) på den
laveste temperaturen
Kjør maskinen minst 30 sekunder uten rengjøringsmiddel.
Sett maskinbryteren (A) på ”0”
Steng vanntilførselen.
Trykk på sprøytepistolen til apparatet er trykkløst.
Sikre håndsprøytepistolen med sikringstasten mot utilsiktet
innkobling.
Ved lengre driftspauser eller det ikke er mulig med en frostsikker
lagring, skal følgende tiltak gjennomføres (se kapittel "Pleie og
vedlikehold", avsnitt "Frostbeskyttelse"):
Tapp ut vannet.
Spyl frostvæske gjennom apparatet.
Slå av hovedbryter og sikre eller trekk ut Cekon-støpselet.
Lukke gasstilførsel.
Forsiktig!
Fare for personskader og materielle skader! Pass på vekten av
apparatet ved lagring.
Forsiktig!
Fare for personskader og materielle skader! Pass på vekten av
apparatet ved transport.
Ved transport i kjøretøyer skal apparatet sikres mot å skli eller
velte etter de til enhver tid gjeldende regler.
Dosering av rengjøringsmiddel
Posisjon
0,5
1
8
Mengde rengjøringsmiddel [l/h]
14...15 22...24
50
Konsentrasjon rengjøringsmiddel
[%]
1,5
2,5
> 5
Etterfylle bløtemiddel
Stans av driften
Etter bruk av rengjøringsmiddel
Slå maskinen av
Sette bort
Lagring
Transport
168
NO
-
7
Tekniske data
HDS 9/16-4
ST Gas
HDS 9/16-4
ST Gas LPG
HDS 12/14-4
ST Gas
HDS 12/14-4
ST Gas LPG
1.251-108
1.251-109
1.251-110
1.251-111
Effektspesifikasjoner
Arbeidstrykk vann (med standarddyse)
MPa (bar)
16 (160)
16 (160)
14 (140)
14 (140)
Maks. driftstrykk (sikkerhetsventil)
MPa (bar)
18,5 (185)
18,5 (185)
18,5 (185)
18,5 (185)
Matemengde vann (trinnløst regulerbar)
l/h (l/min)
500-1000 (8,3-
16,6)
500-1000 (8,3-
16,6)
600-1200 (10-
20)
600-1200 (10-
20)
Oppsuging rengjøringsmiddel (trinnløst regulerbar)
l/h (l/min)
0-50 (0-0,8)
0-50 (0-0,8)
0-60 (0-1)
0-60 (0-1)
Vanntilkobling
Tilførselsmengde (min)
l/h (l/min)
1100 (18,3)
1100 (18,3)
1300 (21,7)
1300 (21,7)
Tilførselstrykk (min.)
MPa (bar)
0,1 (1)
0,1 (1)
0,1 (1)
0,1 (1)
Tilførselstrykk (max)
MPa (bar)
0,6 (6)
0,6 (6)
0,6 (6)
0,6 (6)
Elektrisk tilkobling
Strømtype
--
3N~
3N~
3N~
3N~
Frekvens
Hz
50
50
50
50
Spenning
V
380-420
380-420
380-420
380-420
Kapasitet
kW
6,4
6,4
7,5
7,5
Elektriske sikringer (trege)
A
16
16
20
20
Beskyttelsestype
--
IPX5
IPX5
IPX5
IPX5
Beskyttelsesklasse
--
I
I
I
I
Maks. tillatt nettimpedanse
Ohm
(0,381+j
0,238)
(0,381+j
0,238)
--
--
Elektroforsyningsledning
mm
2
5 x 2,5
5 x 2,5
5 x 2,5
5 x 2,5
Temperatur
Vanntilførsels-temperatur (max)
°C
30
30
30
30
Maks. arbeidstemperatur varmtvann
°C
98
98
98
98
Maks. temperatur sikkerhetstermostat
°C
110
110
110
110
Temperaturstigning ved maks. vanngjennomgang
°C
60-65
60-65
60-65
60-65
Varmeeffekt brutto
kW
75
75
95
95
Skorsteinsløp
kPa
0,01-0,04
0,01-0,04
0,01-0,04
0,01-0,04
Gasstilkoblingsverdier
Naturgass E (G 20)
m
3
/h
7,2
--
9,8
--
Naturgass LL (G 25)
m
3
/h
8,2
--
11,4
--
Nominelt tilkoblingstrykk (naturgass)
kPa
1,8-5
--
1,8-5
--
Propan
kg/h
--
5,7
--
7,2
Nominelt tilkoblingstrykk (propan)
kPa
--
5-6
--
5-6
Miljødata
Standard utnyttelsesgrad
%
97
97
97
97
Standard utslippsfaktor NO
X
(naturgass G 25)
mg/kWh
< 40
--
< 40
--
Standard utslippsfaktor CO (naturgass G 25)
mg/kWh
< 40
--
< 40
--
Verdier for skorsteinsdimensjonering
Overtrykkegnethet (min.)
kPa
0,05
0,05
0,05
0,05
Trekkbehov
kPa
0
0
0
0
Avgassvolumstrøm - full belastning
kg/h
130
130
166
166
CO
2
(naturgass)
%
9,5
--
9,5
--
CO
2
(Propan)
%
--
12
--
12
Avgasstemperatur maks./min.
°C
190/150
190/150
170/130
170/130
Forbrenningsluft/lufttilførsel
Maks. lengde: 10 m med to 90° albuer (minimum diameter 100 mm). Etter
lokale forskrifter fra monteringsrommet eller friskluft utenfra.
Kondensatavtapping
Kondensatavtapping (maks.)
l/h
4 (via vannlås
til avløpsnet-
tet)
4 (via vannlås
til avløpsnet-
tet)
4 (via vannlås
til avløpsnet-
tet)
4 (via vannlås
til avløpsnet-
tet)
Tilkobling
DN
40 (HTR)
40 (HTR)
40 (HTR)
40 (HTR)
Minimal vannsøyle, vannlås
mm
300
300
300
300
169
NO
-
8
Godkjennelse EN 60335-2-79
Godkjent etter Gas Appliance Directive (90/396/EEC)
--
Gastec QA
Low NO
X
Gastec QA
Gastec QA
Low NO
X
Gastec QA
Apparatkategori Europa
--
I 2E (r), I
2ELL, I 2H, I
2L, I2 HE
I 3P
I 2E (r), I
2ELL, I 2H, I
2L, I2 HE
I 3P
Apparattype
--
B23, C33,
C43, C53
B23, C33,
C43, C53
B23, C33,
C43, C53
B23, C33,
C43, C53
CE-Produkt idnummer
--
PIN 0063 BN
3880
PIN 0063 BN
3880
PIN 0063 BN
3880
PIN 0063 BN
3880
Mål og vekt
Lengde
mm
1124
1124
1124
1124
Bredde
mm
558
558
558
558
Høyde
mm
966
966
1076
1076
Typisk driftsvekt
kg
193,5
193,5
209
209
Registrerte verdier etter EN 60355-2-79
Støy
Støytrykksnivå L
pA
dB(A)
74
74
76
76
Usikkerhet K
pA
dB(A)
1
1
1
1
Hånd-arm vibrasjonsverdi
Høytrykkspistol
m/s
2
2,2
2,2
2,3
2,3
Strålerør
m/s
2
1,8
1,8
2,1
2,1
Usikkerhet K
m/s
2
1,0
1,0
1,0
1,0
HDS 9/16-4
ST Gas
HDS 9/16-4
ST Gas LPG
HDS 12/14-4
ST Gas
HDS 12/14-4
ST Gas LPG
Måleblad
170
NO
-
9
Fare
Fare for skader! Før alt vedliekhold og reparasjon skal hovedbry-
teren slås av eller Cekon-støpsel trekkes ut.
Pleie og vedlikehold
Vedlikeholdsplan
Tidspunkt
Aktivitet
Relevant komponentgruppe Prosedyre
av hvem
daglig
Kontroller høy-
trykkpistol
Høytrykkspistol
Kontroller om høytrykkpistolen lukker tett. Kon-
troller sikringen mot utilsiktet betjening. Skift ut
defekte høytrykkpistol.
Bruker
Kontroller høy-
trykkslanger
Utgangsledninger, slanger til
arbeidsmaskin
Kontroller slangene for skader. Defekte slanger
skal straks skiftes. Fare for ulykker!.
Bruker
Kontroller strøm-
kabel med støp-
sel.
Elektrisk tilkobling med støpsel/
stikkontakt
Kontroller at strømkabelen med støpsel ikke er
skadet. En skadet strømledning må skiftes ut
umiddelbart hos autorisert kundeservice eller au-
torisert elektriker.
Bruker
Ukentlig eller etter
40 driftstimer
Kontrollere olje-
tilstand
Oljebeholder på pumpe
Dersom oljen er melkeaktig skal den skiftes.
Bruker
Kontrollere olje-
nivå
Oljebeholder på pumpe
Kontroller oljenivå på pumpene. Ved behov et-
tefylles olje (bestillingsnr. 6.288-016)
Bruker
Rengjør sil
Sil i vanntilkobling
Se avsnittet "Rengjøring av silen".
Bruker
Månedlig eller
hver 200. driftsti-
me
Kontrollere pum-
pe
Høytrykkspumpe
Kontroller pumpen for lekkasjer Ved mer enn 3
dråper pr. minutt kontakt kundeservice.
Bruker
Kontroller for in-
dre avleiringer
Hele anlegget
Ta i bruk anlegget med strålerør uten høytrykks-
dyse. Dersom driftstrykket på maskinens mano-
meter stiger til over 3 MPa, skal anlegget
avkalkes. Det samme gjelder dersom det ved
drift uten høytrykksledning (vannet strømmer fritt
ut fra høytrykksutgang) oppstår et driftstrykk på
mer enn 0,7–1 MPa.
Bruker med
opplæring i
avkalking
Rengjør sil
Sil i lavvannssikringen
Se avsnittet "Rengjøring av silen".
Bruker
etter 500-700
driftstimer
Utskifting
Glødetenner, ioniseringselek-
trode
Skift glødetenner eller ioniseringselektrode.
Kundetje-
neste
Hver halvår eller
etter 1000 driftsti-
mer
Oljeskift
Høytrykkspumpe
Tapp ut oljen. Ettefylle 1 liter ny olje (bestillings-
nr. 6.288-016) Kontroller nivået i oljebeholderen.
Bruker
kontroll, rengjø-
ring
Hele anlegget
Visuell kontroll av anlegget, kontroller høy-
trykkstilkoblinger for tetthet, kontroller overløps-
ventil for tetthet, kontroller høytrykkslange,
kontroller trykkakkumulator, rengjør/skift varme-
slange, fjern sot fra varmeslange, rengjør/skift io-
niseringselektrode, still inn brenner.
Kundetje-
neste
Skifte slange
Slange til avgass-trykkbryter
Skift slange.
Kundetje-
neste
årlig
Sikkerhetskon-
troll
Hele anlegget
Gjennomfør sikkerhetskontroll av væskespyler
etter de aktuelle nasjonale forskriftene.
Sakkyndig
171
NO
-
10
Du kan inngå en vedlikeholdsavtale for apparatet med det lokale
Kärcher-salgskontoret.
Bilde 1 - pos. 3
Steng vanntilførselen.
Koble vanntilførselsslangen fra maskinen.
Skru ut silen fra tilkoplingen ved hjelp av en skrutrekker,
Rengjør sil
Monteringen skjer i motsatt rekkefølge
Ta av dekkplatene.
Skru av vinkelstykket fra sikkerhetsblokken.
Skru M8x30-skrue inn i silen.
Skru ut skruen og silen ved hjelp av en tang.
Rengjør sil
Monteringen skjer i motsatt rekkefølge
Ved avleiringer i rørledningene øker strømningsmotstanden slik
at trykkbryteren kan bli utløst.
Fare
Eksplosjonsfare - brennbare gasser! Røyking er forbudt ved av-
kalking. Sørg for god utlufting.
Fare
Fare for etsing på grunn av syre! Bruk vernebriller og beskytel-
seshansker.
Til fjerning av kalk er det kun tillatt å benytte offentlig godkjente
kjelesteinshindrende midler med godkjenningsmerke.
–
RM 100 (Best.nr. 6.287-008) løser opp forkalkinger og enkle-
re forbindelser av kalk ogrester av vaskemidler.
–
RM 101 (best.nr. 6.287-013) løser avleiringer som ikke lar
seg fjerne med RM 100.
Fyll en 20 liters beholder med 15 l vann.
Tilsett 1 liter kjelesteinshindrende middel.
Kople vannslangen direkte på pumpehodet og heng den an-
dre enden i beholderen.
Stikk det tilkoplede stålrøret uten dyse ned i beholderen.
Åpne for høytrykkspistolen under avkalkingen uten å stenge
den igjen.
Sett apparatbryteren til posisjonen "Brenner PÅ" inntil en tem-
peratur på ca. 40 °C er oppnådd.
Slå av apparatet og la det stå i 20 minutter. Høytrykkspistolen
må forbli åpen.
Pump deretter apparatet tomt for vann.
Merk:
Vi anbefaler deretter at en alkalisk løsning (f.eks. RM 81)
pumpes gjennom apparatet via beholderen for rengjøringsmiddel
i den hensikt å beskytte mot korrosjon og for nøytralisering av sy-
rerester.
Apparatet skal installeres i et frostfritt miljø. Ved risiko for frost,
f.eks. ved utendørs installasjon, må apparatet tømmes og gjen-
nomskylles med et frostbeskyttende middel.
Skru av vanntilførselslange og høytrykkslange.
La apparatet gå i maks. 1 minutt til pumpe og slanger er tom-
me.
Tilførselsledning på tankbunn skrus av og varmeslangen
tømmes.
Merk:
Følg bruksanvisning for frostvæsken.
Fyll flottørbeholderen helt opp med vanlig frostvæske.
Still en oppsamlingsbeholder under høytrykksutløpet.
Slå på maskinen og la den gå helt til vannmangelsikringen i
flottørbeholderen løser seg ut og slår av apparatet.
Fyll tankbunn og vannlås med frostvæske.
Dermed oppnås en viss korrosjonsbeskyttelse.
Vedlikeholdskontrakt
Rengjøre filtre
Sil i vanntilkobling
Sil i lavvannssikringen
Avkalking
Prosedyre
2.
1.
Frostbeskyttelse
Tapp ut vannet
Spyl frostvæske gjennom apparatet.
172
NO
-
11
Fare
Fare for skader! Før alt vedliekhold og reparasjon skal hovedbry-
teren slås av eller Cekon-støpsel trekkes ut.
*
Anvisning
Trykk på låsetast avgasstermostat (J), for å låse opp flammeo-
vervåkning.
Feilretting
Feil
Mulige årsaker
Retting
av hvem
Apparatet går ikke, kontroll-
lampen Driftsklar (F) lyser
ikke
Ingen spenning på maskinen.
Kontroller strømnettet.
Elektriker
Sikkerhetstidsbryter i funksjon.
Slå maskinen kort av med hovedbryteren og
så på igjen.
Bruker
Sikring i styrekretsen (F3) er gått.
Sikringen finnes i styretrafoen (T2).
Sett inn ny sikring, dersom den går på nytt,
finn og ordne overbelastningen.
Kundetjeneste
Trykkbryter HD (høytrykk) eller ND
(lavtrykk) defekt.
Kontroller trykkbryter.
Kundetjeneste
Timer-modul (A1) defekt.
Kontroller kontakter, skift ved behov.
Kundetjeneste
+ Kontrolllampe motoropp-
varming (G) lyser
Termoføler (WS) i motor eller over-
strømsbryter (F1) er utløst.
Rett opp overbelastningsgrunn.
Kundetjeneste
Vannmangelsikring i flottørbehol-
deren er utløst.
Rett opp vanmangel.
Bruker
Brenner tenner ikke eller
flammen slukkes under drift
Temperaturregulator (B) stilt inn for
lavt
Still temperaturregulatoren høyere.
Bruker
Apparatbryteren står ikke til Bren-
ner.
Slå på brenner.
Bruker
Vannmangelsikring på sikkerhets-
blokken har koblet ut.
Sjekk at vannforsyningen er tilstrekkelig.
Kontroller maskinen for tetthet.
Bruker
Gasskran lukket.
Åpne gasskran.
Bruker
Maksimaltemperaturbegrenser i
vannutløp (> 110 °C) er utløst.
La kjelen kjøre seg og start apparatet på nytt. Bruker
Kontroller temperaturregulator.
Kundetjeneste
Kontrolllampe avgasstermo-
stat (K) lyser
Ingen gasstilførsel.
Åpne gasstilførsel.
Bruker
Tilluft- eller fraluft tilstoppet.
Kontroller ventilasjon og avgassystem
Bruker
Kjelebunn for varm. Maksimaltem-
peraturbegrenser i kjelebunn (> 80
°C) er utløst. Intet kondensvann i
kjelebunn.
Fyll 5 liter vann via avgass-målestuss.
Bruker
Gassfyringsautomat står til Feil.
Trykk på låsetast gassrele (I).
Bruker
Ingen tenning. *
Kontroller elektrodeavstand gassfyringsauto-
mat og tenningskabel. Still riktig avstand eller
skift defekte deler. Rengjør om nødvendig.
Kundetjeneste
Vifte eller styrekort for turtall de-
fekt. *
Kontroller vifte og styrekort for turtall. Kontrol-
ler støpsel og tilførselsledning. Skift ut defek-
te deler.
Kundetjeneste
173
NO
-
12
Feil
Mulige årsaker
Retting
av hvem
Kontrolllampe avgasstermo-
stat (K) lyser
Avgasstemperaturbegrenser er ut-
løst.
Åpne høytrykkspistolen til anlegget er ned-
kjølt. Slå anlegget av og på via betjeningspa-
nelet, for å låse opp temperaturbegrenseren.
Ved gjentagelser skal kundeservice kontak-
tes.
Bruker
Kontrolllampe Forkalknings-
vern (H) lyser
Bløtemiddel oppbrukt.
Etterfylle bløtemiddel.
Bruker
Utilstrekkelig eller ingen ma-
ting av rengjøringsmiddel
Doseringsventil i stiling "0".
Still inn doseringsventil rengjøringsmiddel.
Bruker
Filter for rengjøringsmiddel tilstop-
pet eller tanken tom.
Rengjør eller etterfyll.
Bruker
Utett eller tilstoppet sugeslange
rengjøringsmiddel, doseringsventil
eller magnetventil.
Kontroll, rengjøring.
Bruker
Elektronikk eller magnetventil de-
fekt.
Skift ut
Kundetjeneste
Høytrykksvaskeren bygger
ikke opp fullt trykk
Dysen utspylt.
Sett på dysen.
Bruker
Rengjøringsmiddeltanken er tom. Etterfyll rengjøringsmiddel.
Bruker
Ikke nok vann.
Sørg for tilstrekkelig vanntilførsel.
Bruker
Silen på vanntilførselen er tilstop-
pet.
Kontroller, demonter og rengjør sil.
Bruker
Doseringsventil rengjøringsmiddel
utett.
Kontroller og tette.
Bruker
Slange rengjøringsmiddel utett.
Skift ut
Bruker
Flottørventil klemmer.
Kontroller at den går lett.
Bruker
Sikkerhetsventil utett.
Kontroller innstilling, ved behov monter nye
pakninger.
Kundetjeneste
Mengdereguleringsventil utett eller
stilt inn for lavt.
Kontroller ventildeler, skift dersom skadet,
rengjør for tilsmussing.
Kundetjeneste
Magnetventil for trykkavlastning
defekt.
Magnetventil skiftes.
Kundetjeneste
Høytrykkspumpe banker,
manometer svinger sterkt.
Vibrasjonsdemper defekt.
Skift vibrasjonsdemper.
Kundetjeneste
Vannpumpen suger inn små
mengder luft.
Kontroller sugesystem og rett opp utettheter. Bruker
Apparatet kobler seg på og
av med åpen høytrykkspistol
Dysen i strålerør er tilstoppet.
Kontroll, rengjøring.
Bruker
Kalkavleiringer i maskinen.
Se avsnitt "Avkalkning".
Bruker
Koblingspunkt for overstrømmeren
har forskjøvet seg.
Still inn overstrømmeren på nytt.
Kundetjeneste
Silen i lavvannssikringen er tett.
Kontroller, demonter og rengjør sil.
Bruker
Maskinen slår seg ikke av
når høytrykkspistolen lukkes
Pumpe er ikke helt luftfri.
Sett maskinbryteren til "0" og trykk på høy-
trykkspistolen til det ikke kommer mer væs-
ke. Slå deretter på maskinen igjen. Gjenta
denne prosessen hel til du får fullt driftstrykk.
Bruker
Sikkerhetsventil eller pakning på
sikkerhetsventil er defekt.
Skift sikkerhetsventil eller pakning.
Kundetjeneste
Trykkbryter på overstrømmer.
Kontroller trykkbryter og overstrømmer.
Kundetjeneste
174
NO
-
13
Rengjøringsmiddel letter rengjøringsarbeidet. Tabellen refererer
til et utvalg av rengjøringsmidler. Innen rengjøringsmiddelet an-
vendes, må anvisningene på forpakningen leses og overholdes.
* = kun for kort tids bruk, totrinnsmetode, etterskyll med rent vann
** = ASF = avskillervennlig
*** = til forskylling egner seg Foam-Star 2000
Tilbehør
Rengjøringsmiddel
Bruksområde
Smussfjerning, brukstype
Rengjøringsmiddel
pH-verdi (ca.) 1 % løs-
ning i ledningsvann
Bilvask, bensinstasjoner,
spedisjonsfirma, bilpark
Støv, veistøv, olje (på lakkerte fla-
ter)
RM 55 ASF **
8
RM 22/80-pulver ASF
12/10
RM 81 ASF
9
RM 803 ASF
10
RM 806 ASF
11
Kjøretøybeskyttelse
RM 42 kaldvoks for høytrykksvasker
8
RM 820-varmvoks ASF
7
RM 821-spylevoks ASF
6
RM 824-Super-Perlevoks ASF
7
RM 44 Gel-felgrengjøring
9
Metallbearbeidende in-
dustri
Olje, fett, støv og lignende tilsmus-
sing
RM 22-pulver ASF
12
RM 55 ASF
8
RM 81 ASF
9
RM 803 ASF
10
RM 806 ASF
12
RM 31 ASF (sterk tilsmussing)
12
RM 39-flüvæskeformet (med korrosjonsbe-
skytter)
9
Næringsmiddelindustri
Lett til middels tilsmussing, fett/ol-
je, store flater
RM 55 ASF
8
RM 81 ASF
9
RM 882 Gelskum OSC
12
RM 58 ASF (skumrengjøringsmiddel)
9
RM 31 ASF *
12
Røyk-harpiks
RM 33 *
13
Rengjøring og desinfisering
RM 732
9
Desinfeksjon
RM 735
7...8
Kalk, mineralske avleiringer
RM 25 ASF *
2
RM 59 ASF (skumrengjøring)
2
Sanitærområder ***
Kalk, urinstein, såpe etc.
RM 25 ASF * (grunnrengjøring)
2
RM 59 ASF (skumrengjøring)
2
RM 68 ASF
5
175
NO

