Karcher Nettoyeur haute pression HDS 12-14-4 ST Gaz: !
!: Karcher Nettoyeur haute pression HDS 12-14-4 ST Gaz
-
14
–
Apar
ā
ta apsildes iek
ā
rta ir apkures iek
ā
rta. Veicot uzst
ā
d
ī
ša-
nu, ir j
ā
iev
ē
ro viet
ē
jie, sp
ē
k
ā
esošie noteikumi.
–
Izmantojiet tikai p
ā
rbaud
ī
tus skurste
ņ
us/izpl
ū
des vadus.
–
G
ā
zes vadu instal
ā
ciju, k
ā
ar
ī
apar
ā
ta piesl
ē
gšanu g
ā
zes sis-
t
ē
mai dr
ī
kst veikt tikai re
ģ
istr
ē
ts g
ā
zes un
ū
dens apg
ā
des uz-
ņē
mums.
–
G
ā
zes deg
ļ
a iestat
ī
šanu un remontu dr
ī
kst veikt tikai apm
ā
c
ī
ti
Kärcher klientu dienesta montieri.
–
G
ā
zes vad
ā
, kuram j
ā
b
ū
t vismaz ar nomin
ā
lo platumu 1 colla,
j
ā
ieb
ū
v
ē
manometrs un sl
ē
gv
ā
rsts.
–
T
ā
k
ā
augstspiediena s
ū
knis rada vibr
ā
cijas, savienojums
starp stacion
ā
ro g
ā
zes vadu un apar
ā
tu j
ā
apr
ī
ko ar elast
ī
gu
g
ā
zes š
ļū
teni.
–
Ja g
ā
zes pievadi p
ā
rsniedz 10 m garumu, nomin
ā
lajam dia-
metram j
ā
b
ū
t 1 1/2 collas vai liel
ā
kam. G
ā
zes piesl
ē
guma pie
apar
ā
ta nomin
ā
lais diametrs ir 1 colla.
B
ī
stami
Pieskr
ū
v
ē
jot elast
ī
go g
ā
zes š
ļū
teni pie deg
ļ
a, piesl
ē
guma nipelis
j
ā
patur pret
ī
ar uzgriež
ņ
atsl
ē
gu SW 36. Piesl
ē
guma nipelis ne-
dr
ī
kst sagriezties attiec
ī
b
ā
pret deg
ļ
a korpusu. V
ī
t
ņ
piesl
ē
guma
bl
ī
v
ē
jums j
ā
izveido no DVGW sertific
ē
tiem bl
ī
vmateri
ā
liem. P
ē
c
piesl
ē
gšanas j
ā
p
ā
rbauda savienojuma vietas bl
ī
vums ar DVGW
sertific
ē
tu aerosolu s
ūč
u mekl
ē
šanai.
G
ā
zes vada caurules diametrs j
ā
apr
ēķ
ina atbilstoši DVGW TRGI
1986 vai TRF 1996. Apar
ā
ta g
ā
zes piesl
ē
guma nomin
ā
lais dia-
metrs autom
ā
tiski nav uzskat
ā
ms par cauru
ļ
vada nomin
ā
lo dia-
metru. G
ā
zes vada izm
ē
ru izv
ē
lei un instal
ā
cijai j
ā
norit atbilstoši
attiec
ī
gaj
ā
m norm
ā
m un noteikumiem.
–
Ikvienam apar
ā
tam j
ā
b
ū
t piesl
ē
gtam pie d
ū
mvada.
–
Izpl
ū
des g
ā
zu izvadei j
ā
notiek atbilstoši viet
ē
jiem noteiku-
miem un vienojoties ar atbild
ī
go skurste
ņ
slau
ķ
i.
G
ā
zes apar
ā
ts bez pl
ū
smas drošin
ā
t
ā
ja, kam tiek apskalotas vi-
sas zem spiediena esoš
ā
s sadegšanas gaisa izpl
ū
des kan
ā
la
da
ļ
as. B23 instal
ā
cija dod iesp
ē
ju apar
ā
tu piesl
ē
gt pie parasta
vienvelkmes skurste
ņ
a atbilstoši DIN 18160 un darbin
ā
t atkar
ī
b
ā
no telpas gaisa. Priekšnoteikums ir, lai skurstenis b
ū
tu piem
ē
rots
siltumsp
ē
jas iek
ā
rtu piesl
ē
gšanai (piem., skursten
ī
ievilkta ner
ū
-
s
ē
još
ā
t
ē
rauda caurule).
G
ā
zes apar
ā
ts ar sadegšanas gaisa pievadi un izpl
ū
des g
ā
zu iz-
vadi vertik
ā
li virs jumta. Ieejas atrodas tuvu viena otrai un ir ar
vien
ā
du spiedienu.
Iek
ā
rtas instal
ā
cija
Tikai pilnvarotam profesion
ā
lam person
ā
lam!
Visp
ā
r
ī
g
ā
inform
ā
cija
Visp
ā
r
ē
ja inform
ā
cija par g
ā
zi
G
ā
zes vadi
Gaisa/izpl
ū
des g
ā
zu novad
ī
šana
!
G
ā
zes apar
ā
ts ar izpl
ū
des g
ā
zu iek
ā
rtu, kas sadegšanas gai-
su sa
ņ
em no uzst
ā
d
ī
šanas telpas
Tips B23
G
ā
zes apar
ā
ts ar izpl
ū
des g
ā
zu iek
ā
rtu, kas sadegšanas gai-
su sa
ņ
em caur sl
ē
gtu sist
ē
mu lauk
ā
Tips C33
416
LV
-
15
G
ā
zes apar
ā
ts ar sadegšanas gaisa pievadi un izpl
ū
des g
ā
zu iz-
vadi piesl
ē
gšanai pie gaisa-izpl
ū
des g
ā
zu sist
ē
mas.
G
ā
zes apar
ā
ts ar dal
ī
tu sadegšanas gaisa pievadi un izpl
ū
des
g
ā
zu izvadi. Ieej
ā
m ir daž
ā
ds spiediens.
Nor
ā
de:
Lai sasniegtu noteikt
ā
s sadegšanas v
ē
rt
ī
bas, j
ā
iev
ē
ro
tehniskajos datos nor
ā
d
ī
t
ā
d
ū
mvada velkme.
Kondens
ā
ta vads ar sifonu j
ā
piesl
ē
dz tieši pie kondens
ā
ta piesl
ē
-
guma. Sifona augstumam j
ā
b
ū
t 30 cm. Sifons nav iek
ļ
auts pieg
ā
-
des komplekt
ā
. Kondens
ā
ta vadam nedr
ī
kst b
ū
t fiks
ē
ta
savienojuma ar kanaliz
ā
ciju. Kondens
ā
tam br
ī
vi j
ā
izpl
ū
st piltuv
ē
vai neitraliz
ā
cijas tvertn
ē
.
–
Pirms mont
ā
žas j
ā
p
ā
rbauda sienas nestsp
ē
ja. Komplekt
ā
esošie stiprin
ā
juma materi
ā
li piem
ē
roti betonam. Dobjo b
ū
v-
akme
ņ
u,
ķ
ie
ģ
e
ļ
u un g
ā
zbetona sien
ā
m j
ā
izmanto piem
ē
roti
d
ī
be
ļ
i un skr
ū
ves, piem., enkurskr
ū
ves (urbumu izvietojumu
skat. izm
ē
ru tabul
ā
).
–
3. att
ē
ls - 19. un 25. poz.
Apar
ā
tu nedr
ī
kst savienot stacion
ā
ri ar
ū
densvadu vai augst-
spiediena cauru
ļ
vadu sist
ē
mu. Noteikti j
ā
uzmont
ē
savienoju-
ma š
ļū
tenes.
–
3. att
ē
ls - A
Starp
ū
densvadu sist
ē
mu un savienojuma š
ļū
teni j
ā
uzst
ā
da
sl
ē
gv
ā
rsts.
Veicot augstspiediena vadu mont
ā
žu, j
ā
iev
ē
ro likumdev
ē
ja na-
cion
ā
lie noteikumi.
–
Spiediena samazin
ā
jumam cauru
ļ
vad
ā
j
ā
b
ū
t zem 1,5 MPa.
–
Uzst
ā
d
ī
tais cauru
ļ
vads j
ā
p
ā
rbauda ar 32 MPa spiedienu.
–
Cauru
ļ
vada izol
ā
cijai j
ā
iztur l
ī
dz 100 °C temperat
ū
ra.
3. att
ē
ls - 20. poz.
Tvertnes j
ā
uzst
ā
da t
ā
, lai t
ī
r
ī
šanas l
ī
dzek
ļ
a zem
ā
kais l
ī
menis
b
ū
tu ne vair
ā
k k
ā
1,5 m zem apar
ā
ta pamatnes un augš
ē
jais l
ī
-
menis neatrastos virs apar
ā
ta pamatnes.
3. att
ē
ls - B un 19. poz.
Ū
dens pievads ar piem
ē
rotu
ū
dens š
ļū
teni j
ā
piesl
ē
dz
ū
dens-
vadu sist
ē
mai.
–
Ū
dens padeves jaudai j
ā
b
ū
t vismaz 1300 l/h, ja ir 0,1 MPa
spiediens.
–
Ū
dens temperat
ū
rai j
ā
b
ū
t zem 30 °C.
Tips C43
Tips C53
Kondens
ā
ta nopl
ū
de
Mont
ā
ža pie sienas
Augstspiediena vadu mont
ā
ža
T
ī
r
ī
šanas l
ī
dzek
ļ
a tvert
ņ
u uzst
ā
d
ī
šana
Ū
dens padeve
417
LV
-
16
Uzman
ī
bu
Nedr
ī
kst p
ā
rsniegt maksim
ā
li pie
ļ
aujamo t
ī
kla pretest
ī
bu str
ā
vas
piesl
ē
guma viet
ā
(skat
ī
t tehniskos datus). Ja ir neskaidr
ī
bas par
J
ū
su piesl
ē
guma viet
ā
past
ā
vošo t
ī
kla pretest
ī
bu, l
ū
dzu, sazinie-
ties ar J
ū
su energoapg
ā
des uz
ņē
mumu.
Nor
ā
de:
Iesl
ē
gšana rada
ī
slaic
ī
gu sprieguma samazin
ā
šanos.
Nelabv
ē
l
ī
gu t
ī
kla apst
ā
k
ļ
u gad
ī
jum
ā
var rasties citu ier
īč
u darb
ī
-
bas trauc
ē
jumi.
–
Piesl
ē
gumu lielumus skat
ī
t tehniskajos datos un ražot
ā
jfir-
mas datu pl
ā
ksn
ī
t
ē
.
–
Elektrisk
ā
piesl
ē
gšana j
ā
veic elektri
ķ
im un j
ā
atbilst IEC
60364-1.
–
Str
ā
vu vadošaj
ā
m da
ļā
m, kabe
ļ
iem un ier
ī
c
ē
m darba vietas
tuvum
ā
j
ā
b
ū
t nevainojam
ā
st
ā
vokl
ī
un pasarg
ā
t
ā
m no
ū
dens
str
ū
klas.
Lai izvair
ī
tos no elektrotraum
ā
m, m
ē
s iesak
ā
m kontaktligzdas
apr
ī
kot ar iepriekš iesl
ē
dzamu nopl
ū
des str
ā
vas drošin
ā
t
ā
jsl
ē
dzi
(nomin
ā
lais nostr
ā
des str
ā
vas stiprums maks. 30 mA).
Veiciet elektrisko piesl
ē
gumu.
Stacion
ā
r
ā
s augstspiediena t
ī
r
ī
šanas iek
ā
rtas izsl
ē
gšanai droš
ā
un viegli pieejam
ā
viet
ā
j
ā
uzst
ā
da sasl
ē
dzams galvenais sl
ē
dzis
(3. att
ē
ls - 6. poz.).
Galven
ā
sl
ē
dža kontakta atverei j
ā
b
ū
t vismas 3 mm.
Uzmont
ē
jiet Cekon kontaktu apar
ā
ta piesl
ē
guma kabelim.
Iespraudiet Cekon kontaktu ligzd
ā
.
Lai izsl
ē
gtu stacion
ā
ro augstspiediena t
ī
r
ī
šanas iek
ā
rtu, Cekon
kontaktam j
ā
b
ū
t viegli pieejamam, lai to atvienotu no t
ī
kla.
P
ā
rbaudiet g
ā
zess piesl
ē
gumu.
Uzman
ī
bu
P
ā
rkarstot past
ā
v apar
ā
ta boj
ā
jumu risks.
Piesl
ē
dziet katla pamatnei sifonu un piepildiet ar
ū
deni.
Caur d
ū
mvada atveri iepildiet katl
ā
4 litrus
ū
dens.
Pirms pirm
ā
s lietošanas reizes nogrieziet
ū
dens s
ū
k
ņ
a e
ļļ
as
tvertnes v
ā
ci
ņ
a galu.
3. att
ē
ls - 14. poz.
Savienojiet augstspiediena š
ļū
teni ar rokas smidzin
ā
t
ā
jpistoli
un piesl
ē
dziet apar
ā
ta augstspiediena izejai vai augstspiedie-
na cauru
ļ
vadu sist
ē
mai.
Sprauslas uzgali (b) ar uzmavuzgriezni (a) piestipriniet pie
smidzin
ā
šanas caurules (d). Sekojiet, lai bl
ī
vgredzens (c) pre-
c
ī
zi iegultu grop
ē
.
Elektropadeve
Stacion
ā
rais elektropiesl
ē
gums
Elektropiesl
ē
gums ar kontaktdakšu/kontaktligzdu
Ekspluat
ā
cijas uzs
ā
kšana
Apar
ā
ts r
ū
pn
ī
c
ā
k
ā
dabasg
ā
zes apar
ā
ts iestat
ī
ts uz g
ā
zes veidu
G 20 un k
ā
š
ķ
idr
ā
s g
ā
zes apar
ā
ts - uz g
ā
zes veidu G 31. P
ā
rre-
gul
ē
jot dabasg
ā
zes apar
ā
tu uz g
ā
zes veidu G 25 vai citu dabas-
g
ā
zi (skat. datu pl
ā
ksn
ī
ti) vai p
ā
rregul
ē
jot š
ķ
idr
ā
s g
ā
zes apar
ā
tu
uz g
ā
zes veidu G 30 vai citu š
ķ
idro g
ā
zi (skat. datu pl
ā
ksn
ī
ti), at-
bilstoši servisa inform
ā
cijai j
ā
iestata dabasg
ā
zes apar
ā
ta da-
basg
ā
zes izpl
ū
des g
ā
zu v
ē
rt
ī
bas un š
ķ
idr
ā
s g
ā
zes apar
ā
ta
š
ķ
idr
ā
s g
ā
zes v
ē
rt
ī
bas.
Komplekt
ā
esošaj
ā
tukšaj
ā
pl
ā
ksn
ī
t
ē
iedruk
ā
jauno iestat
ī
to g
ā
-
zes veidu un piestiprina lauk
ā
apar
ā
ta labaj
ā
pus
ē
. Vienlaikus
j
ā
no
ņ
em tur r
ū
pn
ī
c
ā
piestiprin
ā
t
ā
pl
ā
ksn
ī
te ar nor
ā
di G 20 (da-
basg
ā
zes apar
ā
tam) vai G 31 (š
ķ
idr
ā
s g
ā
zes apar
ā
tam).
Pas
ā
kumi pirms ekspluat
ā
cijas uzs
ā
kšanas
a
b
c
d
418
LV
-
17
No
ņ
emiet no
ū
dens m
ī
kstin
ā
t
ā
ja tvertnes (a) v
ā
ci
ņ
a tur
ē
t
ā
ja
(b) atsperi (c).
Piepildiet tvertni ar Kärcher
ū
dens m
ī
kstin
ā
t
ā
ja š
ķī
dumu RM
110 (pas
ū
t. Nr. 2.780-001).
B
ī
stami
B
ī
stams elektriskais spriegums! Iestat
ī
šanu dr
ī
kst veikt tikai elek-
tromontieris.
Viet
ē
j
ā
s
ū
dens ciet
ī
bas noskaidrošana:
–
viet
ē
j
ā
ū
dens apg
ā
des uz
ņē
mum
ā
,
–
ar
ū
dens ciet
ī
bas kontrolier
ī
ci (pas
ū
t. Nr. 6.768-004).
No
ņ
emiet apar
ā
ta p
ā
rsegu.
Atveriet vad
ī
bas pults sadales k
ā
rbu.
Iestatiet groz
ā
mo potenciometru (a) atbilstoši
ū
dens ciet
ī
bai.
Pareizo iestat
ī
juma v
ē
rt
ī
bu varat skat
ī
t tabul
ā
.
Piem
ē
rs:
Ja
ū
dens ciet
ī
ba ir 15 °dH, iestatiet groz
ā
mo potenciometru uz
skalas v
ē
rt
ī
bu 6. No t
ā
izriet, ka pauzes ilgums ir 31 sekunde, t.i.,
magn
ē
tiskais v
ā
rsts
ī
slaic
ī
gi atveras ik p
ē
c 31 sekundes.
Gaid
ī
šanas laika iestat
ī
šana notiek lielaj
ā
sist
ē
mplat
ē
elektrosa-
dales skapja kreisaj
ā
s
ā
nmal
ā
.
Gaid
ī
šanas laiks r
ū
pn
ī
c
ā
iestat
ī
ts uz minim
ā
lo laiku 2 min
ū
tes un
to var pagarin
ā
t l
ī
dz maksim
ā
li 8 min
ū
t
ē
m.
Pretapka
ļķ
ošan
ā
s aizsardz
ī
ba
Ū
dens ciet
ī
ba (°dH)
5
10
15
20
25
Groz
ā
m
ā
potenciometra
skala
8
7
6
5
4,5
Pauzes ilgums (sekundes)
50
40
31
22
16
b
c
a
a
Gaid
ī
šanas laika regul
ē
šana
8 7 6 5 4 3 2 1
S2
min.
max.
419
LV
-
18
3. att
ē
ls
Instal
ā
cijas materi
ā
ls
1
2
3
5
6
7
8
9
10
12
13
A
15
11b
11a
11c
11a
25
21
22
23
11b
24
4
20
19a
19
18
17
16
14
11d
B
Poz. Instal
ā
cijas materi
ā
ls
Pas
ū
t
ī
juma
nr.
1
Le
ņķ
a v
ī
t
ņ
savienojums
6.386-356
2
G
ā
zu izpl
ū
des vada piederumu kom-
plekts, horizont
ā
ls, 150 mm
6.526-231
3
G
ā
zu izpl
ū
des vada piederumu kom-
plekts, vertik
ā
ls, 150 mm
6.526-232
4
Sifona deta
ļ
u komplekts
2.640-422
5
Siltumizol
ā
cija
6.286-114
6
Galvenais sl
ē
dzis
6.631-455
7
Cauru
ļ
vadu komplekts, cinkots t
ē
rauds
2.420-004
Cauru
ļ
vadu komplekts, ner
ū
s
ē
jošs t
ē
-
rauds
2.420-006
8
T
ā
lvad
ī
bas deta
ļ
u komplekts
2.744-008
9
Av
ā
rijas sl
ē
dža deta
ļ
u komplekts
2.744-002
10
T veida skr
ū
vsavienojums
6.386-269
11a
Piesl
ē
gumcaurule, misi
ņ
š
2.638-180
Piesl
ē
gumcaurule, ner
ū
s
ē
jošs t
ē
rauds
2.638-181
11b
Sl
ē
gv
ā
rsts NW 8, cinkots t
ē
rauds
4.580-144
Sl
ē
gv
ā
rsts NW 8, ner
ū
s
ē
jošs t
ē
rauds
4.580-163
11c
Ā
tr
ā
savienot
ā
ja fiks
ē
t
ā
deta
ļ
a
6.463-025
11d
Ā
tr
ā
savienot
ā
ja br
ī
v
ā
deta
ļ
a
6.463-023
Poz. Instal
ā
cijas materi
ā
ls
Pas
ū
t
ī
juma
nr.
12
Š
ļū
tenes tur
ē
t
ā
js
2.042-001
13
Š
ļū
tenes uzt
ī
šanas trumulis
2.637-238
14
Augstspiediena š
ļū
tene 10 m
6.388-083
15
Easypress rokas smidzin
ā
t
ā
jpistole
4.775-463
Regul
ē
šanas poga HDS 9/16-4
4.775-470
Regul
ē
šanas poga HDS 12/14-4
4.775-471
16
Smidzin
ā
šanas caurules tur
ē
t
ā
js
2.042-002
17
Str
ū
klas padeves caurule
4.760-550
18
Sprauslas uzgalis HDS 9/16-4
2.883-402
Sprauslas uzgalis HDS 12/14-4
2.883-406
19
Ū
dens š
ļū
tene
4.440-282
19a
Ū
dens pievada magn
ē
tiskais v
ā
rsts
4.743-011
20
T
ī
r
ī
šanas l
ī
dzek
ļ
a tvertne, 60 l
5.070-078
21
G
ā
zes š
ļū
tene R1"
6.388-228
22
G
ā
zes sl
ē
gv
ā
rsts R1"
6.412-389
23
Manometrs, g
ā
zes (Uzman
ī
bu! Uzst
ā
d
ī
-
šanas viet
ā
j
ā
uzmont
ē
sl
ē
gv
ā
rsts.)
6.412-059
24
Sienas konsoles deta
ļ
u komplekts
2.053-005
Gr
ī
das sastat
ņ
u deta
ļ
u komplekts
2.210-008
25
Augstspiediena š
ļū
tene
6.389-028
420
LV
-
19
Ar šo m
ē
s pazi
ņ
ojam, ka turpm
ā
k min
ē
t
ā
iek
ā
rta, pamatojoties uz
t
ā
s konstrukciju un izgatavošanas veidu, k
ā
ar
ī
m
ū
su apgroz
ī
b
ā
laistaj
ā
izpild
ī
jum
ā
atbilst ES direkt
ī
vu attiec
ī
gaj
ā
m galvenaj
ā
m
droš
ī
bas un vesel
ī
bas aizsardz
ī
bas pras
ī
b
ā
m. Iek
ā
rt
ā
izdarot ar
mums nesaska
ņ
otas izmai
ņ
as, šis pazi
ņ
ojums zaud
ē
savu sp
ē
-
ku.
5.957-648
Apakš
ā
parakst
ī
juš
ā
s personas r
ī
kojas uz
ņē
muma vad
ī
bas uz-
devum
ā
un p
ē
c t
ā
s pilnvarojuma.
Par dokument
ā
ciju sast
ā
d
ī
šanu atbild
ī
g
ā
persona:
S. Reiser
Alfred Kärcher GmbH & Co. KG
Alfred-Kärcher-Str. 28 - 40
71364 Winnenden (Germany)
T
ā
lr.: +49 7195 14-0
Fakss: +49 7195 14-2212
Winnenden, 2014/02/01
Katr
ā
valst
ī
ir sp
ē
k
ā
m
ū
su kompetent
ā
s p
ā
rdošanas sabiedr
ī
bas
izdotie garantijas nosac
ī
jumi. Iesp
ē
jamos ier
ī
ces trauc
ē
jumus
garantijas laik
ā
nov
ē
rs
ī
sim bez maksas, ja iemesls ir materi
ā
la
vai ražot
ā
ja k
ļū
da.
EK Atbilst
ī
bas deklar
ā
cija
Produkts:
Augstspiediena t
ī
r
ī
šanas
apar
ā
ts
Tips:
1.251-xxx
Attiec
ī
g
ā
s ES direkt
ī
vas:
2009/142/EK
2006/42/EK (+2009/127/EK)
2004/108/EK
Piem
ē
rot
ā
s harmoniz
ē
t
ā
s normas:
EN 55014–1: 2006+A1: 2009+A2: 2011
EN 55014–2: 1997+A1: 2001+A2: 2008
EN 60335–1
EN 60335–2–79
EN 62233: 2008
EN 61000–3–2: 2006+A1: 2009+A2: 2009
HDS 12/14:
EN 61000–3–3: 2008
HDS 9/16:
EN 61000–3–11: 2000
Piem
ē
rot
ā
s specifik
ā
cijas:
QA 195 (nav LPG)
Re
ģ
istr
ā
cijas iest
ā
des nosaukums:
2009/142/EK
GASTEC
Wilmersdorf 50
7327 AC Apeldoorn
Ident. Nr. 0063
Garantija
CEO
Head of Approbation
421
LV
-
20
Klientu apkalpošanas dienests
Iek
ā
rtas tips:
Ražot
ā
ja Nr.:
Ekspluat
ā
cija uzs
ā
kta:
P
ā
rbaude veikta:
P
ā
rbaudes rezult
ā
ts:
Paraksts
P
ā
rbaude veikta:
P
ā
rbaudes rezult
ā
ts:
Paraksts
P
ā
rbaude veikta:
P
ā
rbaudes rezult
ā
ts:
Paraksts
P
ā
rbaude veikta:
P
ā
rbaudes rezult
ā
ts:
Paraksts
422
LV
-
1
Prieš pirm
ą
kart
ą
pradedant naudotis prietaisu, b
ū
tina
atidžiai perskaityti originali
ą
instrukcij
ą
, ja vadovautis
ir saugoti, kad ja galima b
ū
t
ų
naudotis v
ė
liau arba perduoti nau-
jam savininkui.
–
Prieš pirm
ą
j
į
naudojim
ą
, b
ū
tinai perskaitykite saugos reikala-
vimus Nr. 5.956-309!
–
Pasteb
ė
j
ę
transportavimo metu apgadintas detales, infor-
muokite tiek
ė
j
ą
.
Nurodymai apie sudedam
ą
sias medžiagas (REACH)
Aktuali
ą
informacij
ą
apie sudedam
ą
sias dalis rasite adresu:
www.kaercher.com/REACH
Pavojus
Žymi gresiant
į
tiesiogin
į
pavoj
ų
, galint
į
sukelti sunkius sužaloji-
mus arba mirt
į
.
몇
Į
sp
ė
jimas
Žymi galim
ą
pavoj
ų
, galint
į
sukelti sunkius sužalojimus arba mirt
į
.
Atsargiai
Žymi galim
ą
pavoj
ų
, galint
į
sukelti lengvus sužalojimus arba ma-
terialinius nuostolius.
Netinkamai naudojama aukšto sl
ė
gio srov
ė
kelia pavo-
j
ų
. Draudžiama srov
ę
nukreipti
į
asmenis, gyv
ū
nus,
veikian
č
i
ą
elektros
į
rang
ą
arba pat
į
prietais
ą
.
–
Laikykit
ė
s nacionalini
ų
teis
ė
s norm
ų
d
ė
l skys
č
i
ų
purkštuv
ų
.
–
Laikykit
ė
s nacionalini
ų
teis
ė
s norm
ų
d
ė
l nelaiming
ų
atsitikim
ų
prevencijos. Skys
č
i
ų
purkštuvai privalo b
ū
ti reguliariai tikrina-
mi, o patikr
ų
rezultatai - pateikiami raštiškai.
–
Prietaiso šildymo sistema yra šiluminis
į
renginys. Šiluminiai
į
renginiai privalo b
ū
ti reguliariai tikrinami vadovaujantis naci-
onalin
ė
mis teis
ė
s normomis.
–
Naudodami
į
rengin
į
patalpose, užtikrinkite saug
ų
išmetam
ų
j
ų
duj
ų
išleidim
ą
(per išmetam
ą
j
į
vamzd
į
be sklend
ė
s). Be to, už-
tikrinkite pakankama gryno oro tiekim
ą
patalpoms.
–
Laikykit
ė
s naudojam
ų
valymo priemoni
ų
saugos reikalavim
ų
(dažniausiai pateikiami ant etiket
ė
s).
Prieš montuodami
į
rengin
į
, suderinkite tai su duj
ų
tiekimo
į
mone
ir apskrities kaminkr
ėč
i
ų
tarnybos viršininku.
Montuodami
į
rengin
į
, laikykit
ė
s statyb
ų
bei pramon
ė
s teis
ė
s nor-
m
ų
ir reikalavim
ų
d
ė
l taršos ribojimo. Atkreipiame J
ū
s
ų
d
ė
mes
į
į
toliau nurodytus teis
ė
s aktus, direktyvas ir standartus:
–
Sumontuoti
į
rengin
į
gali tik specializuota
į
mon
ė
pagal galio-
jan
č
ius nacionalinius reikalavimus.
–
Laikykit
ė
s nacionalini
ų
teis
ė
s akt
ų
reikalavim
ų
d
ė
l elektros
į
rangos naudojimo.
–
Laikykit
ė
s nacionalini
ų
teis
ė
s akt
ų
reikalavim
ų
d
ė
l duj
ų
į
ran-
gos naudojimo.
–
Montuoti duj
ų
į
rang
ą
ir jungti
į
rengin
į
prie dujotiekio gali tik
specializuota, dujotiekio ir vandentiekio tarnybose užregis-
truota
į
mon
ė
.
–
Nustatyti, techniškai priži
ū
r
ė
ti ir remontuoti degikl
į
gali apmo-
kyti Kärcher klient
ų
aptarnavimo tarnybos darbuotojai.
–
Projektuodami d
ū
mtrauk
į
, laikykit
ė
s galiojan
č
i
ų
vietos reikala-
vim
ų
.
Turinys
Aplinkos apsauga . . . . . . . .
LT . . 1
Naudojimo instrukcijoje naudojami simboliai
LT . . 1
Simboliai ant prietaiso . . . . .
LT . . 1
Bendrieji saugos reikalavimai
LT . . 1
Naudojimas pagal paskirt
į
. .
LT . . 2
Veikimas . . . . . . . . . . . . . . .
LT . . 2
Saugos
į
ranga . . . . . . . . . . .
LT . . 2
Prietaiso dalys. . . . . . . . . . .
LT . . 3
Naudojimo pradžia . . . . . . .
LT . . 4
Valdymas. . . . . . . . . . . . . . .
LT . . 4
Naudojimo nutraukimas . . .
LT . . 6
Laikinas prietaiso nenaudojimas
LT . . 6
Laikymas . . . . . . . . . . . . . . .
LT . . 6
Transportavimas . . . . . . . . .
LT . . 6
Techniniai duomenys. . . . . .
LT . . 7
Prieži
ū
ra ir aptarnavimas . .
LT . . 9
Pagalba gedim
ų
atveju . . . .
LT . 11
Dalys . . . . . . . . . . . . . . . . . .
LT . 13
Prietaiso
į
rengimas . . . . . . .
LT . 14
EB atitikties deklaracija . . . .
LT . 19
Garantija . . . . . . . . . . . . . . .
LT . 19
Klient
ų
aptarnavimo tarnyba
LT . 20
Aplinkos apsauga
Pakuot
ė
s medžiagos gali b
ū
ti perdirbamos. Neišmes-
kite pakuo
č
i
ų
kartu su buitin
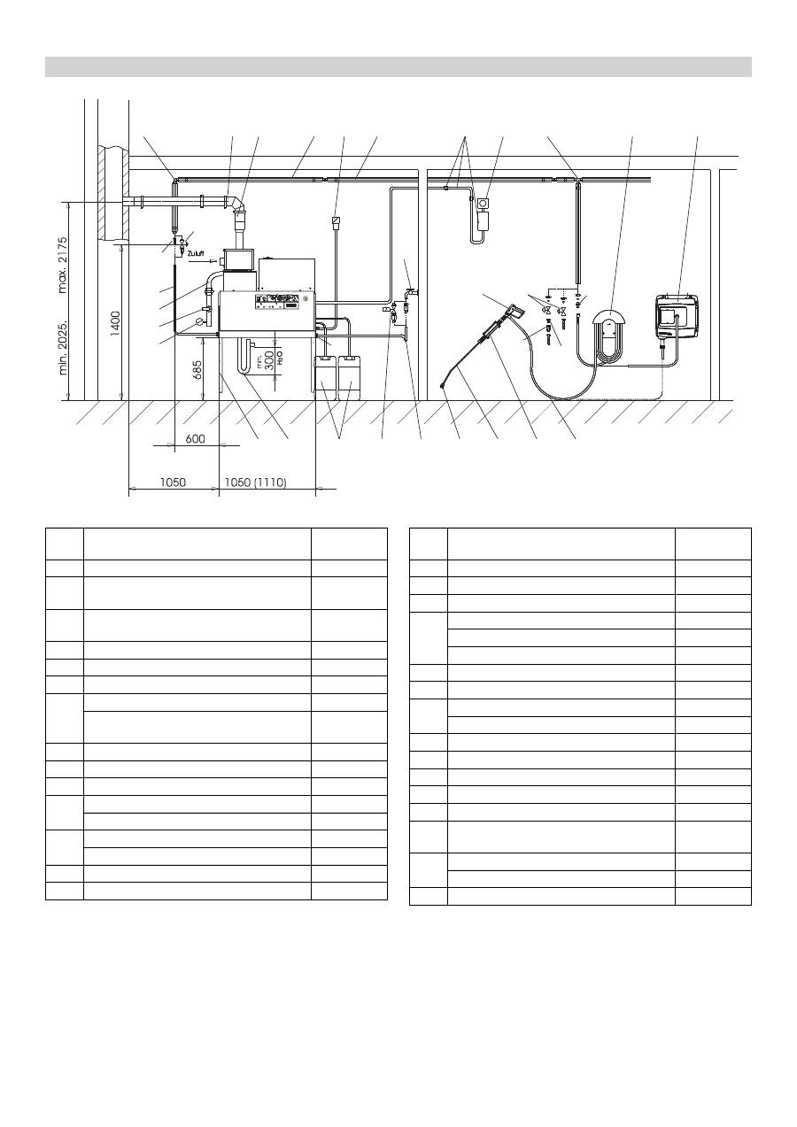
ė
mis atliekomis, bet ati-
duokite jas perdirbti.
Naudot
ų
prietais
ų
sud
ė
tyje yra verting
ų
, antriniam ža-
liav
ų
perdirbimui tinkam
ų
medžiag
ų
, tod
ė
l jie tur
ė
t
ų
b
ū
ti atiduoti perdirbimo
į
mon
ė
ms. Akumuliatoriai, aly-
vos ir panašios medžiagos netur
ė
t
ų
patekti
į
aplink
ą
.
Tod
ė
l naudotus prietaisus šalinkite pagal atitinkam
ą
antrini
ų
žaliav
ų
surinkimo sistem
ą
.
Neišleiskite variklio alyvos, mazuto, dyzelino ir benzino
į
aplink
ą
.
Saugokite grunt
ą
ir naudotos alyvos atliekas sutvarkykite laiky-
damiesi aplinkos apsaugos reikalavim
ų
.
Kärcher valymo priemon
ė
s yra lengvai skaidomos (ASF). Tai
reiškia, kad n
ė
ra sutrikdomas alyvos atskyriklio veikimas. Reko-
menduojam
ų
valymo priemoni
ų
s
ą
rašas pateiktas skyriuje „Prie-
dai“.
Naudojimo instrukcijoje naudojami simboliai
Simboliai ant prietaiso
Bendrieji saugos reikalavimai
Teis
ė
s aktai, direktyvos ir taisykl
ė
s
423
LT
-
2
Darbo vieta yra valdymo lauke. Kitos darbo vietos, atsižvelgiant
į
į
renginio konstrukcij
ą
, yra prie papildom
ų
prietais
ų
(purškimo
į
rengini
ų
), prijungt
ų
prie kolon
ė
li
ų
.
–
Kad apsisaugotum
ė
te nuo atgalin
ė
s vandens srov
ė
s arba at-
šokusio purvo, d
ė
v
ė
kite tinkamus apsauginius r
ū
bus bei užsi-
d
ė
kite apsauginius akinius.
Prietaisas skirtas vandens srove valyti nešvarumus nuo pavirši
ų
.
Jis ypa
č
tinka mašinoms, transporto priemon
ė
ms ir fasadams va-
lyti.
Pavojus
Sužalojim
ų
pavojus! Naudodami degalin
ė
se ir kitose pavojingose
vietose, laikykit
ė
s reikiam
ų
saugos reikalavim
ų
.
–
Variklio aušinimo žarnomis šaltas vanduo patenka
į
pl
ū
d
ė
s
talpykl
ą
, po to
į
cirkuliacinio šildytuvo išorin
ę
dal
į
ir
į
aukšto
sl
ė
gio siurblio siurbimo pus
ę
. Pl
ū
d
ė
s talpykloje
į
pilama minkš-
tiklio. Siurblys pumpuoja vanden
į
ir
į
siurbtas valymo priemo-
nes per cirkuliacin
į
šildytuv
ą
. Valymo priemoni
ų
kiek
į
vandenyje galite nustatyti dozavimo vožtuvu. Cirkuliacinis šil-
dytuvas kaitinamas degikliu.
–
Aukšto sl
ė
gio išvadas prijungiamas prie pastato aukšto sl
ė
gio
sistemos. Prie šios sistemos kolon
ė
li
ų
prijungiami rankiniai
purškimo pistoletai su aukšto sl
ė
gio žarnomis.
Saugos
į
ranga apsaugo naudotoj
ą
, tod
ė
l jos negalima keisti arba
nenaudoti.
Vandens tr
ū
kumo saugiklio užtikrina, kad aukšto sl
ė
gio siurblys
ne
į
sijungs, jei tr
ū
ksta vandens.
Vandens tr
ū
kumo saugiklis apsaugo degikl
į
nuo perkaitimo, jei
tr
ū
ksta vandens. Degiklis
į
sijungia, kai tiekiama pakankamai van-
dens.
Pneumatinis jungiklis išjungia prietais
ą
, jei viršijama darbinio sl
ė
-
gio norma. Nekeiskite esam
ų
nuostat
ų
.
Sugedus pneumatiniam jungikliui, atsiveria apsauginis vožtuvas.
Šis vožtuvas nustatytas ir užplombuotas gamykloje. Nekeiskite
esam
ų
nuostat
ų
.
Tr
ū
kstant degal
ų
arba sugedus degikliui, kontrolinis liepsnos
į
tai-
sas išjungia degikl
į
.
Į
sižiebia kontrolinis degiklio sutrikimo indika-
torius (E).
Užsiblokavus degiklio varikliui, suveikia apsauginis maksimalio-
sios srov
ė
s jungiklis. Aukšto sl
ė
gio siurblio variklyje
į
rengtas ap-
sauginis variklio ir apvij
ų
jungikliai.
Išmetam
ų
j
ų
duj
ų
termostatas suveikia, jei išmetam
ų
j
ų
duj
ų
tem-
perat
ū
ra viršija 320 °C. Išmetam
ų
j
ų
duj
ų
termostato kontrolinis
indikatorius (K).
Suveikia katilo grind
ų
(> 80 °C) ir vandentiekio išvado (> 110 °C)
maksimalios temperat
ū
ros ribotuvai ir
į
sižiebia kontrolinis degi-
klio sutrikimo indikatorius (E).
Išmetam
ų
j
ų
duj
ų
pneumatinis jungiklis išjungia degikl
į
, kai duj
ų
išmetimo sistemoje susidaro per aukštas priešinis sl
ė
gis, pavyz-
džiui, d
ė
l užsikišimo.
Rankiniu purškimo pistoletu išjungus prietais
ą
, pasibaigus pa-
rengties režimo laikui, atsiveria aukšto sl
ė
gio sistemoje
į
rengtas
magnetinis vožtuvas ir šitaip sumažinamas sl
ė
gis.
Darbo vietos
Asmenin
ė
s saugos priemon
ė
s
Valydami gars
ą
stiprinan
č
ias dalis, naudokite
klausos organ
ų
saugos priemones.
Naudojimas pagal paskirt
į
Neišleiskite mineralin
ė
s alyvos turin
č
i
ų
nuotek
ų
į
dirvožem
į
,
vandens telkinius ar kanalizacij
ą
. Tod
ė
l variklius ir dugnus plau-
kite tik pritaikytose vietose, kuriose
į
rengtos alyvos atskyrikliai.
Veikimas
Saugos
į
ranga
Pl
ū
d
ė
s talpyklos vandens tr
ū
kumo saugiklis
Apsauginio bloko vandens tr
ū
kumo saugiklis
Pneumatinis jungiklis
Apsauginis vožtuvas
Kontrolinis liepsnos
į
taisas
Maksimaliosios srov
ė
s apsauga
Išmetam
ų
j
ų
duj
ų
termostatas
Temperat
ū
ros ribotuvas
Išmetam
ų
j
ų
duj
ų
pneumatinis jungiklis
Sl
ė
gio pašalinimas iš aukšto sl
ė
gio sistemos
424
LT
-
3
1 paveikslas
1 Degiklis
2 Manometras
3 Švaraus vandens tiekimas su filtru
4 Aukšto sl
ė
gio išvadas
5 Duj
ų
tiekimo jungtis
6 Valymo priemoni
ų
siurbimo žarna
7 Valymo priemoni
ų
siurbimo žarna II (pasirenkamas priedas)
8 Minkštiklio talpykla
9 Elektros
į
vadas
10 Pl
ū
d
ė
s talpykla
11 Valdymo plotas
2 paveikslas
A Prietaiso jungiklis
B Temperat
ū
ros reguliatorius
C Valymo priemoni
ų
dozavimo vožtuvas I
D Valymo priemoni
ų
dozavimo vožtuvas II (pasirenkamas prie-
das)
E Degiklio sutrikimo kontrolinis indikatorius
F Parengties režimo kontrolinis indikatorius
G Variklio perkaitimo kontrolinis indikatorius
H Apsaugos nuo kalk
ė
jimo kontrolinis indikatorius
I
Dujotiekio rel
ė
s atblokavimo mygtukas
J Išmetam
ų
j
ų
duj
ų
termostato atblokavimo mygtukas
K Išmetam
ų
j
ų
duj
ų
kontrolinis indikatorius
Prietaiso dalys
4
5
6
7
3
8
10
1
11
2
9
Valdymo plotas
425
LT
-
4
몇
Pavojus
Sužalojim
ų
pavojus! Prietaisas, aukšto sl
ė
gio žarna ir jungtys turi
b
ū
ti nepriekaištingos b
ū
kl
ė
s. Jei j
ų
b
ū
kl
ė
n
ė
ra nepriekaištinga,
prietais
ą
naudoti draudžiama.
–
Elektros
į
rangos charakteristikos pateiktos technin
ė
je specifi-
kacijoje ir duomen
ų
lentel
ė
je.
–
Elektros instaliacij
ą
turi atlikti elektrikas vadovaudamasis IEC
60364-1 reikalavimais.
Vartotojas prietais
ą
turi naudoti pagal nurodymus. Jis turi paisyti
aplinkos s
ą
lyg
ų
, o dirbdamas – netoliese esan
č
i
ų
žmoni
ų
laikytis
Niekada nepalikite veikian
č
io prietaiso be prieži
ū
ros.
Pavojus
–
Galite nusiplikyti karštu vandeniu! Nenukreipkite vandens
srov
ė
s
į
žmones ar gyv
ū
nus.
–
Pavojus nudegti prisilietus prie
į
kaitusi
ų
į
renginio dali
ų
! Ne-
lieskite karšto vandens ruošimo sistemos vamzdži
ų
ir žarn
ų
.
Purškimo vamzd
į
laikykite tik už ranken
ų
. Nelieskite cirkulia-
cinio šildytuvo išmetamojo vamzdelio.
–
Valymo priemon
ė
s gali sužeisti ir iš
ė
sdinti! Laikykit
ė
s ant va-
lymo priemoni
ų
pakuo
č
i
ų
pateikt
ų
reikalavim
ų
. Valom
ą
sias
priemones laikykite asmenims, kurie negali naudoti ši
ų
prie-
moni
ų
, neprieinamoje vietoje.
Pavojus
Pavojus gyvybei d
ė
l srov
ė
s sm
ū
gio! Nenukreipkite vandens sro-
v
ė
s
į
šiuos
į
renginius:
–
elektros prietaisus ir
į
rang
ą
;
–
į
pat
į
į
rengin
į
;
–
bet kokias dalis darbo srityje, kuriomis teka elektros srov
ė
.
Iš purškimo vamzdžio išsiveržianti vandens srov
ė
sukelia ata-
trank
ą
. Purškimo vamzdžio sukeliama j
ė
ga nukreipta
į
virš
ų
.
Pavojus
–
Sužalojim
ų
pavojus! Purškimo vamzdžio atatranka gali iš-
mušti Jus iš pusiausvyros. Galite pargri
ū
ti, o purškimo vamz-
dis gali imti nevaldomai jud
ė
ti ir sužeisti žmones. Parinkite
stabili
ą
viet
ą
ir tvirtai laikykite purškimo pistolet
ą
. Jokiu b
ū
du
neužblokuokite rankinio purškimo pistoleto sverto.
–
Jokiu b
ū
du negalima nukreipti srov
ė
s
į
kitus asmenis arba sa-
ve, norint nuvalyti r
ū
bus arba avalyn
ę
.
–
Išlekian
č
ios dalys gali sužeisti. Išlekiantys daiktai ir atplaišos
gali sužeisti žmones ir gyv
ū
nus. Jokiu b
ū
du nenukreipkite
vandens srov
ė
s
į
trapius ir ne
į
tvirtintus daiktus.
–
Tai gali sukelti nelaiming
ą
atsitikim
ą
! Padangas ir vožtuvus
valykite iš ne mažesnio nei 30 cm atstumo.
몇
Į
sp
ė
jimas
Saugokit
ė
s sveikatai pavojing
ų
medžiag
ų
! Nepurkškite ant ši
ų
daikt
ų
, nes gali pakilti sveikatai pavojingos medžiagos:
–
asbesto sud
ė
tyje turin
č
i
ų
medžiag
ų
,
–
daikt
ų
, kuriose gali b
ū
ti sveikatai pavojing
ų
medžiag
ų
.
Pavojus
–
Purškiamas vanduo gali b
ū
ti karštas su sužaloti!
Į
renginiui op-
timaliai pritaikytos tik originalios Kärcher aukšto sl
ė
gio žar-
nos. Naudojant kitokias žarnas, nesuteikiama garantija.
–
Valymo priemon
ė
s pavojingos sveiktai! D
ė
l galim
ų
valymo
priemoni
ų
priemaiš
ų
iš prietaiso išleidžiamas vanduo n
ė
ra
geriamojo vandens kokyb
ė
s.
–
Dirbant prie triukšm
ą
stiprinan
č
i
ų
dali
ų
, kyla pavojus pažeisti
klaus
ą
! Tokiu atveju naudokite klausos organ
ų
apsaugos
priemones.
Pavojus
Purškiamas vanduo gali b
ū
ti karštas su sužaloti!
Pavojus
Kiekvien
ą
kart
ą
prieš prad
ė
dami naudoti patikrinkite, ar nepa-
žeista aukšto sl
ė
gio žarna. Pažeist
ą
aukšto sl
ė
gio žarn
ą
nedels-
dami pakeiskite.
Kiekvien
ą
kart
ą
prieš naudodami prietais
ą
, patikrinkite, ar ne-
pažeisti vamzdžiai, aukšto sl
ė
gio žarna, armat
ū
ros ir purški-
mo vamzdis.
Patikrinkite, ar tvirtai laikosi ir yra sandari žarnos jungtis.
Atsargiai
Be skys
č
io veikiantis prietaisas gali b
ū
ti pažeistas.
Patikrinkite valymo priemoni
ų
lyg
į
bake ir, jei reikia, papildykite.
Patikrinkite minkštiklio lyg
į
ir, jei reikia, papildykite.
Prietaiso jungikl
į
(A) pasukite
į
pad
ė
t
į
„0“.
Užsukite
č
iaup
ą
.
Paleiskite rankin
į
purškimo pistolet
ą
ir palaukite, kol prietaiso
nebeveiks sl
ė
gis.
Sustabdykite duj
ų
tiekim
ą
.
Naudojimo pradžia
Elektros srov
ė
Valdymas
Nurodymai d
ė
l saugos
!
Parengimas naudoti
Avarinis išjungimas
426
LT
-
5
Debito reguliavimo vožtuv
ą
pasukus laikrodžio rodykl
ė
s kryp-
timi, padid
ė
ja darbinis sl
ė
gis ir debitas.
Debito reguliavimo vožtuv
ą
pasukus prieš laikrodžio rodykl
ę
,
sumaž
ė
ja darbinis sl
ė
gis ir debitas.
Vandens debito reguliatori
ų
pasukus
į
dešin
ę
, padid
ė
ja darbi-
nis sl
ė
gis ir debitas.
Vandens debito reguliatori
ų
pasukus
į
kair
ę
, sumaž
ė
ja darbi-
nis sl
ė
gis ir debitas.
Atsukite
č
iaup
ą
.
Simbolis „
į
jungti varikl
į
“
Patraukite rankinio purškimo pistoleto svert
ą
ir pasukite prie-
taiso jungikl
į
(A)
į
pad
ė
t
į
„1“ (
į
jungti varikl
į
).
Kontrolinis parengties režimo indikatorius (F) rodo, kad prie-
taisas paruoštas naudoti.
Pavojus
Pavojus nusiplikyti!
Atsargiai
Naudojant karšto vandens ruošimo sistem
ą
be degal
ų
, gali b
ū
ti
pažeistas degal
ų
siurblys. Prieš šildydami vanden
į
, užtikrinkite,
kad b
ū
t
ų
tinkamai tiekiami degalai.
Jei reikia, galite
į
jungti degikl
į
.
Simbolis „
į
jungti degikl
į
“
Prietaiso jungikl
į
(A) nustatykite
į
pad
ė
t
į
„
į
jungti degikl
į
“.
Temperat
ū
ros reguliatoriumi (B) nustatykite norim
ą
tempera-
t
ū
r
ą
. Aukš
č
iausia galima temperat
ū
ra yra 98 °C.
–
Jei naudojant prietais
ą
, atleidžiamas rankinio purškimo pisto-
leto svertas, prietaisas išjungiamas.
–
Per nustatom
ą
parengties režimo laik
ą
(nuo 2 iki 8 minu
č
i
ų
)
v
ė
l atv
ė
rus pistolet
ą
, prietaisas
į
sijungia automatiškai.
–
Jei viršijamas parengties režimo laikas, apsauginis jungiklis
su laikma
č
iu išjungia siurbl
į
ir prietais
ą
. Kontrolinis parengties
režimo indikatorius (F) užg
ę
sta.
–
Nor
ė
dami v
ė
l naudoti prietais
ą
, nustatykite jo jungikl
į
į
pad
ė
t
į
„0“ ir
į
junkite iš naujo. Naudojant nuotolinio valdymo pult
ą
,
prietais
ą
galite
į
jungti reikiamais nuotolinio valdymo pulto jun-
gikliais.
–
Automobili
ų
padangos plaunamos tik plokš
č
iaisiais purkštu-
kais (25°) laikantis bent 30 cm atstumo. Jokiu b
ū
du neplaukite
padang
ų
apskrita srove.
Visas kitas užduotis galite atlikti naudodami šiuos purkštukus:
Su ilgesniais nei 20 m vamzdžiais arba daugiau 2 x 10 m aukšto
sl
ė
gio žarnomis NW 8, naudokite šiuos purkštukus:
Darbinio sl
ė
gio ir debito nustatymas
Prietaiso nustatymas
Purškimo pistoleto Easypress nuostatos (pasirenkamas
priedas)
Naudojimas su šaltu vandeniu
Naudojimo su karštu vandeniu
R
Parengties režimas
Purkštuk
ų
pasirinkimas
Užterštu-
mas
Antgalis
Purški-
mo kam-
pas
Dalies
Nr.:
6.415
Sl
ė
gis
[MPa]
Atatran-
ka [N]
HDS 9/16
stiprus
00060
0°
-649
16
46
vidutinio
kietumo
25060
25°
-647
lengvas
40060
40°
-648
HDS 12/14
stiprus
00080
0°
-150
14
55
vidutinio
kietumo
25080
25°
-152
lengvas
40080
40°
-153
Užterštu-
mas
Antgalis
Purški-
mo kam-
pas
Dalies
Nr.:
6.415
Sl
ė
gis
[MPa]
Atatran-
ka [N]
HDS 9/16
stiprus
0075
0°
-419
10
37
vidutinio
kietumo
2575
25°
-421
lengvas
4075
40°
-422
HDS 12/14
stiprus
0010
0°
-082
10
46
vidutinio
kietumo
2510
25°
-252
lengvas
4010
40°
-253
427
LT
-
6
–
Valymo priemon
ė
s palengvina darb
ą
. Jos
į
siurbiamos iš išo-
rinio valymo priemoni
ų
bako.
–
Į
prastos komplektacijos prietaisas turi dozavimo vožtuv
ą
(C).
Antr
ą
dozavimo
į
tais
ą
(D dozavimo vožtuv
ą
) galite
į
sigyti kaip
special
ų
pried
ą
. Šitaip gal
ė
site siurbti iš karto dviej
ų
r
ū
ši
ų
va-
lymo priemones.
–
Valymo priemoni
ų
kiekis nustatomas valdymo lauko dozavi-
mo vožtuvais (C arba D). Nustatyta reikšm
ė
atitinka valymo
priemon
ė
s dal
į
procentais.
–
Išorin
ė
skal
ė
taikoma naudojant neskiestas valymo priemo-
nes (100 % CHEM).
–
Vidin
ė
skal
ė
taikoma naudojant skiedžiant valymo priemones
1:3 dalimis (25 % CHEM + 75 % vandens).
Šioje lentel
ė
je pateiktos valymo priemoni
ų
s
ą
naudos pagal išori-
n
ė
s skal
ė
s reikšmes:
Tikslus valymo priemon
ė
s kiekis priklauso nuo:
–
jos klampumo
–
į
siurbimo aukš
č
io
–
aukšto sl
ė
gio žarn
ų
t
ė
km
ė
s pasipriešinimo
Jei b
ū
tina tiksliai dozuoti valymo priemones, išmatuokite
į
siurbtos
valymo priemon
ė
s kiek
į
(pvz., siurbkite iš matuojamojo indo).
Pastaba:
Patarimus d
ė
l valymo priemoni
ų
rasite skyriuje „Prie-
dai“.
Atsargiai
Nenaudojant minkštiklio, gali užkalk
ė
ti cirkuliacinis šildytuvas.
Jei minkštiklio bakas yra tuš
č
ias, mirksi apsaugos nuo kalk
ė
jimo
kontrolinis indikatorius (H).
1 pav. 8 nr.
Pripildykite minkštiklio bak
ą
minkštiklio RM 110 (2.780-001).
Pavojus
Galite nusiplikyti karštu vandeniu! Baig
ę
naudoti prietais
ą
su
karštu vandeniu, b
ū
tinai bent dvi minutes atviru pistoletu naudo-
kite prietais
ą
su šaltu vandeniu, kad jis atv
ė
st
ų
.
Ruošdami karšt
ą
vanden
į
, nustatykite temperat
ū
ros regulia-
toriumi (B) nustatykite žemiausi
ą
temperat
ū
r
ą
.
Bent 30 sekundži
ų
naudokite prietais
ą
be valymo priemoni
ų
.
Prietaiso jungikl
į
(A) pasukite
į
pad
ė
t
į
„0“.
Užsukite
č
iaup
ą
.
Paleiskite rankin
į
purškimo pistolet
ą
ir palaukite, kol prietaiso
nebeveiks sl
ė
gis.
Apsauginiu fiksatoriumi užtikrinkite, kad neatsivert
ų
rankinis
purškimo pistoletas.
Ilgesn
į
laik
ą
nenaudodami prietaiso arba, jei negalima prietaiso
laikyti nuo šal
č
io apsaugotoje vietoje, imkit
ė
s ši
ų
priemoni
ų
(žr.
skyriaus „
Į
prasta ir technin
ė
prieži
ū
ra“, dal
į
„Apsauga nuo šal-
č
io“):
Išleiskite vanden
į
.
Išskalaukite prietais
ą
antifrizu.
Išjunkite ir apsaugokite pagrindin
į
jungikl
į
bei ištraukite
„Cekon“ kištuk
ą
.
Sustabdykite duj
ų
tiekim
ą
.
Atsargiai
Sužalojim
ų
ir pažeidim
ų
pavojus! Pastatant laikyti prietais
ą
, reikia
atsižvelgti
į
prietaiso svor
į
.
Atsargiai
Sužalojim
ų
ir pažeidim
ų
pavojus! Transportuojant prietais
ą
, rei-
kia atsižvelgti
į
jo svor
į
.
Transportuojant
į
rengin
į
transporto priemon
ė
se, j
į
reikia užfik-
suoti pagal galiojan
č
ius reglamentus, kad neslyst
ų
ir ne-
apvirst
ų
.
Valymo priemoni
ų
dozavimas
Pad
ė
tis
0,5
1
8
Valymo priemon
ė
s kiekis [l/h]
14...15 22...24
50
Valymo priemoni
ų
koncentracija
[%]
1,5
2,5
> 5
Minkštiklio papildymas
Naudojimo nutraukimas
Baigus naudoti prietais
ą
su valymo priemon
ė
mis
Prietaiso išjungimas
Laikinas prietaiso nenaudojimas
Laikymas
Transportavimas
428
LT
-
7
Techniniai duomenys
HDS 9/16-4
ST Gas
HDS 9/16-4
ST Gas LPG
HDS 12/14-4
ST Gas
HDS 12/14-4
ST Gas LPG
1.251-108
1.251-109
1.251-110
1.251-111
Galia
Vandens darbo sl
ė
gis (naudojant
į
prast
ą
purkštuk
ą
)
MPa (bar)
16 (160)
16 (160)
14 (140)
14 (140)
Didžiausias darbinis viršsl
ė
gis (apsauginis vožtuvas)
MPa (bar)
18,5 (185)
18,5 (185)
18,5 (185)
18,5 (185)
Vandens debitas (reguliuojamas tolygiai)
l/h (l/min)
500-1000 (8,3-
16,6)
500-1000 (8,3-
16,6)
600-1200 (10-
20)
600-1200 (10-
20)
Valymo priemoni
ų
išvadas (reguliuojamas tolygiai)
l/h (l/min)
0-50 (0-0,8)
0-50 (0-0,8)
0-60 (0-1)
0-60 (0-1)
Vandens prijungimo antgalis
Maž. atitekan
č
io vandens kiekis
l/h (l/min)
1100 (18,3)
1100 (18,3)
1300 (21,7)
1300 (21,7)
Žemiausias tiekiamo vandens sl
ė
gis
MPa (bar)
0,1 (1)
0,1 (1)
0,1 (1)
0,1 (1)
Maks. atitekan
č
io vandens sl
ė
gis
MPa (bar)
0,6 (6)
0,6 (6)
0,6 (6)
0,6 (6)
Elektros
į
ranga
Srov
ė
s r
ū
šis
--
3N~
3N~
3N~
3N~
Dažnis
Hz
50
50
50
50
Į
tampa
V
380-420
380-420
380-420
380-420
Prijungiam
ų
į
tais
ų
galia
kW
6,4
6,4
7,5
7,5
Elektros saugiklis (inercinis)
A
16
16
20
20
Saugiklio r
ū
šis
--
IPX5
IPX5
IPX5
IPX5
Apsaugos klas
ė
--
I
I
I
I
Didžiausia leistina tinklo varža
omai
(0,381+j
0,238)
(0,381+j
0,238)
--
--
Elektros
į
vadas
mm
2
5 x 2,5
5 x 2,5
5 x 2,5
5 x 2,5
Temperat
ū
ra
Maks. atitekan
č
io vandens temperat
ū
ra
°C
30
30
30
30
Didžiausia karšto vandens darbo temperat
ū
ra
°C
98
98
98
98
Aukš
č
iausia apsauginio termostato temperat
ū
ra
°C
110
110
110
110
Temperat
ū
ros pak
ė
limas esant didžiausiam vandens de-
bitui
°C
60-65
60-65
60-65
60-65
Bendroji kaitinimo galia
kW
75
75
95
95
D
ū
mtraukio trauka
kPa
0,01-0,04
0,01-0,04
0,01-0,04
0,01-0,04
Duj
ų
jungties parametrai
Gamtin
ė
s dujos E (G 20)
m
3
/h
7,2
--
9,8
--
Gamtin
ė
s dujos LL (G 25)
m
3
/h
8,2
--
11,4
--
Nominalusis sl
ė
gis (gamtini
ų
duj
ų
)
kPa
1,8-5
--
1,8-5
--
Propanas
kg/h
--
5,7
--
7,2
Nominalusis sl
ė
gis (propano)
kPa
--
5-6
--
5-6
Aplinkos apsaugos duomenys
Standartinis naudojimo lygis
%
97
97
97
97
Standartinis emisijos veiksnys NO
X
(gamtin
ė
s dujos G 25)
mg/kWh
< 40
--
< 40
--
Standartinis emisijos veiksnys CO (gamtin
ė
s dujos G 25) mg/kWh
< 40
--
< 40
--
D
ū
mtraukio matmenys
Viršsl
ė
gio tinkamumas (min.)
kPa
0,05
0,05
0,05
0,05
Reikalinga trauka
kPa
0
0
0
0
Išmetam
ų
j
ų
duj
ų
srov
ė
- visa apkrova
kg/h
130
130
166
166
CO
2
(gamtin
ė
s dujos)
%
9,5
--
9,5
--
CO
2
(propanas)
%
--
12
--
12
Išmetam
ų
j
ų
duj
ų
temperat
ū
ra maks./min.
°C
190/150
190/150
170/130
170/130
Degimo oras/oro tiekimas
Maks. ilgis: 10 m su dviem 90° lankais (mažiausias skersmuo siekia 100
mm). Vadovaujantis vietos reikalavimais iš ruošimo patalpos arba švarus
oras iš išor
ė
s.
Kondensato išleidimas
Kondensato išleidimas (maks.)
l/h
4 (sifonu
į
ka-
nalizacij
ą
)
4 (sifonu
į
ka-
nalizacij
ą
)
4 (sifonu
į
ka-
nalizacij
ą
)
4 (sifonu
į
ka-
nalizacij
ą
)
Jungtis
DN
40 (HTR)
40 (HTR)
40 (HTR)
40 (HTR)
Minimalus vandens stulpelis, sifonas
mm
300
300
300
300
429
LT
-
8
Registracija EN 60335-2-79
Registracija pagal Direktyv
ą
d
ė
l dujas deginan
č
i
ų
prietai-
s
ų
(90/396/EEB)
--
Gastec QA
Low NO
X
Gastec QA
Gastec QA
Low NO
X
Gastec QA
Europos prietais
ų
kategorija
--
I 2E (r), I
2ELL, I 2H, I
2L, I2 HE
I 3P
I 2E (r), I
2ELL, I 2H, I
2L, I2 HE
I 3P
Prietaiso tipas
--
B23, C33,
C43, C53
B23, C33,
C43, C53
B23, C33,
C43, C53
B23, C33,
C43, C53
CE produkto kodas
--
PIN 0063 BN
3880
PIN 0063 BN
3880
PIN 0063 BN
3880
PIN 0063 BN
3880
Matmenys ir mas
ė
Ilgis
mm
1124
1124
1124
1124
Plotis
mm
558
558
558
558
Aukštis
mm
966
966
1076
1076
Tipin
ė
eksploatacin
ė
mas
ė
kg
193,5
193,5
209
209
Nustatytos vert
ė
s pagal EN 60355-2-79
Keliamas triukšmas
Garso sl
ė
gio lygis L
pA
dB(A)
74
74
76
76
Neapibr
ė
žtis K
pA
dB(A)
1
1
1
1
Delno/rankos vibracijos poveikis
Rankinis purkštuvas
m/s
2
2,2
2,2
2,3
2,3
Purškimo antgalis
m/s
2
1,8
1,8
2,1
2,1
Nesaugumas K
m/s
2
1,0
1,0
1,0
1,0
HDS 9/16-4
ST Gas
HDS 9/16-4
ST Gas LPG
HDS 12/14-4
ST Gas
HDS 12/14-4
ST Gas LPG
Matmen
ų
lentel
ė
430
LT
-
9
Pavojus
Susižalojimo pavojus! Prieš visus technin
ė
s prieži
ū
ros darbus iš-
junkite ir apsaugokite pagrindin
į
jungikl
į
bei ištraukite „Cekon“ kiš-
tuk
ą
.
Prieži
ū
ra ir aptarnavimas
Aptarnavimo planas
Terminas
Užduotis
Prietaiso dali
ų
grup
ė
Veiksmai
Vykdytojas
Kasdien
Patikrinti rankin
į
purškimo pisto-
let
ą
Rankinis purkštuvas
Patikrinkite, ar sandariai užsiveria rankinis purš-
kimo pistoletas. Patikrinkite, kaip veikia apsauga
nuo atsitiktinio valdymo. Pakeiskite sugedus
į
rankin
į
purškimo pistolet
ą
.
Naudotojas
Patikrinti aukšto
sl
ė
gio žarnas
Išeinamieji vamzdžiai, žarnos
nuo prietaiso
Patikrinti, ar nepažeistos žarnos. Nedelsiant pa-
keisti netinkamas naudoti žarnas. Nelaimingo at-
sitikimo pavojus!
Naudotojas
Patikrinti maitini-
mo kabel
į
ir tin-
klo kištuk
ą
Kištuko ir lizdo elektros jungtis Patikrinti, ar nepažeistas maitinimo kabelis ir tin-
klo kištukas. Pažeist
ą
elektros laid
ą
nedelsdami
pakeiskite oficialioje klient
ų
aptarnavimo tarny-
boje ar elektros prietais
ų
remonto
į
mon
ė
je.
Naudotojas
Kas savait
ę
arba
po 40 darbo va-
land
ų
Patikrinti alyvos
lyg
į
Siurblio alyvos bakas
Jei alyva blyškios spalvos, ji turi b
ū
ti pakeista.
Naudotojas
Patikrinti alyvos
lyg
į
Siurblio alyvos bakas
Patikrinti alyvos kiek
į
siurblyje. Jei reikia, papildy-
ti alyvos (užs.Nr. 6.288-016).
Naudotojas
Išvalyti filtr
ą
Vandens
į
vado filtras
Žr. skyri
ų
„Filtr
ų
valymas“.
Naudotojas
Kas m
ė
nes
į
arba
po 200 darbo va-
land
ų
Patikrinti siurbl
į
Aukšto sl
ė
gio siurblys
Patikrinti, ar siurblys sandarus. Jei laša daugiau
nei 3 lašai per minut
ę
, kreiptis
į
klient
ų
aptarnavi-
mo tarnyb
ą
.
Naudotojas
Patikrinti ar n
ė
ra
vidini
ų
nuos
ė
d
ų
Visas
į
renginys
Į
jungti
į
rengin
į
su purškimo vamzdžiu be aukšto
sl
ė
gio purkštuko. Jei darbinis sl
ė
gis prietaiso ma-
nometre viršija 3 MPa, reikia pašalinti iš
į
renginio
kalkes. Tas pats taikoma, jei naudojant prietais
ą
be aukšto sl
ė
gio vamzdži
ų
(vanduo laisvai teka
iš aukšto sl
ė
gio išvado) išmatuojamas didesnis
nei 0,7–1 MPa darbinis sl
ė
gis.
Pašalinti kal-
kes apmoky-
tas
naudotojas
Išvalyti filtr
ą
Vandens tr
ū
kumo saugiklio fil-
tras
Žr. skyri
ų
„Filtr
ų
valymas“.
Naudotojas
po 500-700 eks-
ploatavimo valan-
d
ų
Keitimas
Kaitinimasis degiklis, joninis
elektrodas
Pakeisti kaitinam
ą
j
į
degikl
į
ir jonin
į
elektrod
ą
.
Klient
ų
ap-
tarnavimo
tarnyba
Kas pus
ę
m
ė
t
ų
arba po 1000 dar-
bo valand
ų
Alyvos keitimas Aukšto sl
ė
gio siurblys
Išleisti alyv
ą
.
Į
pilti 1 l naujos alyvos (užs.Nr.
6.288-016). Patikrinti alyvos kiek
į
bake.
Naudotojas
Patikrinti, nuva-
lyti
Visas
į
renginys
Apži
ū
r
ė
ti
į
rengin
į
, patikrint, ar sandarios aukšto
sl
ė
gio žarnos ir redukcinis vožtuvas, patikrinti
aukšto sl
ė
gio žarn
ą
, sl
ė
gio akumuliatori
ų
, paša-
linti kalkes iš kaitinam
ų
j
ų
žarn
ų
, išvalyti arba pa-
keisti jonin
į
elektrod
ą
, nustatyti degikl
į
.
Klient
ų
ap-
tarnavimo
tarnyba
Pakeisti žarn
ą
Žarna, jungiama prie išmeta-
m
ų
j
ų
duj
ų
pneumatinis jungiklio
Pakeisti žarn
ą
.
Klient
ų
ap-
tarnavimo
tarnyba
Kasmet
Saugos patikra
Visas
į
renginys
Atlikite saugos patikr
ą
, numatyt
ą
skys
č
i
ų
purkš-
tuvams atitinkamuose nacionaliniuose teis
ė
s ak-
tuose.
Ekspertai
431
LT
-
10
Su atsakingu Kärcher pardavimo biuru galite sudaryti prietaiso
technin
ė
s prieži
ū
ros sutart
į
.
1 pav. 3 nr.
Užsukite
č
iaup
ą
.
Atsukite prie prietaiso prijungt
ą
vandens tiekimo žarn
ą
.
Atsuktuvu išstumkite filtr
ą
iš movos.
Išvalyti filtr
ą
Sumontuokite atvirkštine tvarka.
Nuimkite skardos uždang
ą
.
Nusukite apsauginio bloko kampin
į
element
ą
.
Į
filtr
ą
į
sukite M8x30 varžt
ą
.
Repl
ė
mis ištraukite varžt
ą
ir filtr
ą
.
Išvalyti filtr
ą
Sumontuokite atvirkštine tvarka.
D
ė
l kalki
ų
nuos
ė
d
ų
vamzdžiuose did
ė
ja t
ė
km
ė
s pasipriešinimas
ir gali suveikti pneumatinis jungiklis.
Pavojus
Degios dujos gali sprogti! Šalinant kalkes, draudžiama r
ū
kyti. Už-
tikrinkite pakankam
ą
v
ė
dinim
ą
.
Pavojus
R
ū
gštys gali iš
ė
sdinti! Naudokite apsauginius akinius ir pirštines.
Kalk
ė
ms šalinti leidžiama naudoti tik vadovaujantis teis
ė
s aktais
patikrintus katil
ų
akmen
ų
tirpiklius su patikros ženklu.
–
RM 100 (užs. Nr. 6.287-008) šalina kalkakmenius ir papras-
tus kalkakmeni
ų
ir skalbimo priemoni
ų
nuos
ė
d
ų
junginius.
–
RM 101 (užs. Nr. 6.287-013) šalina nuos
ė
da, kuri
ų
negali pa-
šalinti RM 100.
20 l talpos ind
ą
užpildykite 15 l vandens.
Į
pilkite 1 l kalkakmeni
ų
tirpiklio.
Vandens žarn
ą
prijunkite tiesiai prie siurblio galvut
ė
s, o laisv
ą
jos gal
ą
į
d
ė
kite
į
ind
ą
.
Prijungt
ą
purškimo vamzd
į
be purkštuko
į
d
ė
kite
į
ind
ą
.
Atverkite rankin
į
purškimo pistolet
ą
ir neužverkite, kol šalina-
mos kalk
ė
s.
Prietaiso jungikl
į
nustatykite
į
pad
ė
t
į
„
į
jungti degikl
į
“, kol bus
pasiekta maždaug 40 °C temperat
ū
ra.
Išjunkite prietais
ą
ir palikite maždaug 20 minu
č
i
ų
. Rankinis
purškimo pistoletas turi likti atvertas.
Po to išsiurbkite skyst
į
iš prietaiso, kad jis likt
ų
tuš
č
ias.
Pastaba:
siekiant apsaugoti prietais
ą
nuo korozijos ir neutrali-
zuoti r
ū
gš
č
i
ų
liku
č
ius, patariame v
ė
liau iš valymo priemoni
ų
bak
ą
per prietais
ą
perpumpuoti šarmin
į
tirpal
ą
(pvz., RM 81).
Prietais
ą
laikykite nuo šal
č
io apsaugotose patalpose. Jei prietai-
sas bus naudojamas šaltoje aplinkoje, pavyzdžiui, montuojant iš-
or
ė
je, ištuštinkite prietais
ą
ir išskalaukite j
į
antifrizu.
Nusukite nuo prietaiso vandens tiekimo ir aukšto sl
ė
gio žar-
nas.
Į
junkite prietais
ą
ne ilgiau nei 1 minutei, kol siurblys ir vamz-
džiai bus tušti.
Tiekimo žarn
ą
priveržkite prie katilo dugno ir paleiskite prie-
tais
ą
, tuš
č
ias gyvatukas.
Pastaba:
Laikykit
ė
s antifrizo gamintojo pateikiam
ų
naudojimo
instrukcij
ų
.
Į
pl
ū
d
ė
s talpykl
ą
iki viršaus pripilkite
į
prasto antifrizo.
Po aukšto sl
ė
gio išvadu pad
ė
kite gaudykl
ę
.
Į
junkite prietais
ą
ir palaukite, kol vandens tr
ū
kumo saugiklis
perduos signal
ą
į
pl
ū
d
ė
s ind
ą
ir prietaisas išsijungs.
Katilo dugn
ą
ir sifon
ą
užpildykite antifrizu.
Taip užtikrinama ir apsauga nuo korozijos.
Sutartis d
ė
l aptarnavimo darb
ų
Filtr
ų
valymas
Vandens
į
vado filtras
Vandens tr
ū
kumo saugiklio filtras
Kalki
ų
pašalinimas
Veiksmai
2.
1.
Apsauga nuo šal
č
io
Vandens išleidimas
Išskalaukite prietais
ą
antifrizu
432
LT
-
11
Pavojus
Susižalojimo pavojus! Prieš visus technin
ė
s prieži
ū
ros darbus iš-
junkite ir apsaugokite pagrindin
į
jungikl
į
bei ištraukite „Cekon“ kiš-
tuk
ą
.
*
Pastaba
Nor
ė
dami atblokuoti liepsnos kontrolin
į
į
tais
ą
, paspauskite išme-
tam
ų
j
ų
duj
ų
termostato atblokavimo mygtuk
ą
(J).
Pagalba gedim
ų
atveju
Gedimas
Galimos priežastys
Šalinimas
Vykdytojas
Prietaisas neveikia, nežiba
kontrolinis parengties režimo
indikatorius (F)
Prietaise n
ė
ra
į
tampos
Patikrinti elektros tinkl
ą
Elektrikas
Veikia apsauginis jungiklis su lai-
kma
č
iu.
Trumpam išjunkite ir v
ė
l
į
junkite prietais
ą
jo
jungikliu.
Naudotojas
Perdeg
ę
s valdymo grandin
ė
s (F3)
saugiklis. Pakeiskite valdymo
transformatoriaus (T2) saugikl
į
.
Į
d
ė
kite nauj
ą
saugikl
į
, jei perdega dar kart
ą
,
pašalinkite perkrovos priežast
į
.
Klient
ų
aptarnavimo
tarnyba
Suged
ę
s pneumatinis jungiklis HD
(aukšto sl
ė
gio) arba ND (žemo sl
ė
-
gio).
Patikrinkite pneumatin
į
jungikl
į
.
Klient
ų
aptarnavimo
tarnyba
Suged
ę
s laikma
č
io modulis (A1).
Patikrinkite ir, jei reikia, pakeiskite jungtis.
Klient
ų
aptarnavimo
tarnyba
+ žiba kontrolinis variklio per-
kaitimo indikatorius (G)
Suveik
ė
temperat
ū
ros jutiklis (WS)
arba variklio apsauginis maksima-
liosios srov
ė
s jungiklis (F1).
Pašalinkite perkrovos priežast
į
.
Klient
ų
aptarnavimo
tarnyba
Suveik
ė
vandens tr
ū
kumo saugi-
klis pl
ū
d
ė
s talpykloje.
Pašalinkite vandens tr
ū
kum
ą
.
Naudotojas
Degiklis neužsidega arba už-
g
ę
sta veikiant prietaisui
Temperat
ū
ros reguliatoriumi (B)
nustatyta per žema temperat
ū
ra.
Padidinkite temperat
ū
r
ą
.
Naudotojas
Prietaiso jungiklis nenustatytas
į
degiklio pad
ė
t
į
.
Į
junkite degikl
į
.
Naudotojas
Išsijung
ė
vandens tr
ū
kumo saugi-
klis apsauginiame bloke.
Užtikrinkite pakankam
ą
vandens tiekim
ą
. Pa-
tikrinkite prietaiso sandarum
ą
.
Naudotojas
Užvertas duj
ų
č
iaupas.
Atverkite duj
ų
č
iaup
ą
.
Naudotojas
Suveik
ė
vandens išvado maksima-
lios temperat
ū
ros ribotuvas (>
110 °C).
Palaukite, kol atv
ė
s katilas ir
į
junkite prietais
ą
iš naujo.
Naudotojas
Patikrinkite temperat
ū
ros reguliatori
ų
.
Klient
ų
aptarnavimo
tarnyba
Žiba Išmetam
ų
j
ų
duj
ų
ter-
mostato kontrolinis indikato-
rius (K).
Netiekiamos dujos.
Į
junkite duj
ų
tiekim
ą
.
Naudotojas
Užsikišusios oro tiekimo arba išlei-
dimo sistemos.
Patikrinkite v
ė
dinimo ir duj
ų
išleidimo siste-
m
ą
.
Naudotojas
Per aukšta katilo dugno temperat
ū
-
ra. Suveik
ė
katilo dugno maksima-
lios temperat
ū
ros ribotuvas (> 80
°C). Katilo dugne n
ė
ra kondensato.
Ant išmetam
ų
j
ų
duj
ų
matavimo vamzdelio
užpilkite 5 l vandens.
Naudotojas
Automatin
ė
duj
ų
sistema rodo su-
trikim
ą
.
Paspauskite dujotiekio rel
ė
s atblokavimo
mygtuk
ą
(I).
Naudotojas
N
ė
ra liepsnos. *
Patikrinkite atstum
ą
tarp duj
ų
automato ir už-
degimo kabelio elektrod
ų
. Pakoreguokite ats-
tum
ą
arba pakeiskite sugedusias dalis. Jei
reikia, išvalykite.
Klient
ų
aptarnavimo
tarnyba
Suged
ę
s p
ū
tiklis arba apsuk
ų
kie-
kio valdymo plokšt
ė
. *
Patikrinkite p
ū
tikl
į
arba apsuk
ų
kiekio valdy-
mo plokšt
ę
. Patikrinkite kištuk
ą
ir tiekimo
vamzdžius. Pakeiskite sugedusias dalis.
Klient
ų
aptarnavimo
tarnyba
433
LT
-
12
Gedimas
Galimos priežastys
Šalinimas
Vykdytojas
Žiba Išmetam
ų
j
ų
duj
ų
ter-
mostato kontrolinis indikato-
rius (K).
Suveik
ė
išmetam
ų
j
ų
duj
ų
tempera-
t
ū
ros ribotuvas.
Atverkite rankin
į
purškimo pistolet
ą
ir palauki-
te, kol
į
renginys atv
ė
s. Nor
ė
dami atblokuoti
temperat
ū
ros ribotuv
ą
, valdymo laukeliu iš-
junkite ir
į
junkite
į
rengin
į
. Pasikartojus dar
kart
ą
, kreipkit
ė
s
į
klient
ų
aptarnavimo tarny-
b
ą
.
Naudotojas
Žiba apsaugos nuo kalk
ė
jimo
kontrolinis indikatorius (H)
Pasibaig
ę
s minkštiklis.
Papildykite minkštiklio.
Naudotojas
Tiekiama nepakankamai
arba visiškai netiekiama valy-
mo priemoni
ų
Dozavimo vožtuv
ą
nustatykite
į
pa-
d
ė
t
į
„0“.
Nustatykite valymo priemoni
ų
dozavimo vož-
tuv
ą
.
Naudotojas
Užsikiš
ę
s valymo priemoni
ų
filtras
arba ištušt
ė
j
ę
s bakas.
Išvalykite arba papildykite.
Naudotojas
Nesandarios arba užsikišusios va-
lymo priemoni
ų
žarnos, dozavimo
vožtuvas arba magnetinis vožtu-
vas.
Patikrinkite, išvalykite.
Naudotojas
Sugedusi elektronin
ė
sistema arba
magnetinis vožtuvas.
Pakeiskite.
Klient
ų
aptarnavimo
tarnyba
Nesusidaro reikiamas sl
ė
gis Išplautas purkštukas.
Pakeiskite antgal
į
.
Naudotojas
Išsituštin
ę
s valymo priemoni
ų
ba-
kas.
Papildykite valymo priemoni
ų
.
Naudotojas
Nepakanka vandens.
Užtikrinkite pakankama švaraus vandens tie-
kim
ą
.
Naudotojas
Užsikiš
ę
s vandens
į
vado filtras.
Patikrinkite, išmontuokite ir išvalykite filtr
ą
.
Naudotojas
Nesandarus valymo priemoni
ų
do-
zavimo vožtuvas.
Patikrinkite ir sandarinkite.
Naudotojas
Nesandarios valymo priemoni
ų
žarnos.
Pakeiskite.
Naudotojas
Užsikerta pl
ū
d
ė
s vožtuvas.
Patikrinkite paslankum
ą
.
Naudotojas
Nesandarus apsauginis vožtuvas. Patikrinkite nuostatas, jei reikia,
į
d
ė
kite nauj
ą
tarpikl
į
.
Klient
ų
aptarnavimo
tarnyba
Debito reguliavimo vožtuvas ne-
sandarus arba nustatytas per ma-
žai reikšmei.
Patikrinkite vožtuvo dalis, jei jos pažeistos,
pakeiskite, o jei užsiterš
ę
, išvalykite.
Klient
ų
aptarnavimo
tarnyba
Suged
ę
s magnetinis dekompresi-
jos vožtuvas.
Pakeiskite magnetin
į
vožtuv
ą
.
Klient
ų
aptarnavimo
tarnyba
Bilda aukšto sl
ė
gio siurblys,
stipriai svyruoja manometro
rodmenys
Suged
ę
s svyravim
ų
slopintuvas.
Pakeiskite svyravim
ų
ribotuv
ą
.
Klient
ų
aptarnavimo
tarnyba
Vandens siurblys
į
siurbia nedidel
į
kiek
į
oro.
Patikrinkite siurbimo sistem
ą
ir pašalinkite
nesandarum
ą
.
Naudotojas
Prietaisas
į
sijungia ir išsijun-
gia, kai atviras rankinis purš-
kimo pistoletas
Užsikiš
ę
s purškimo vamzdžio
purkštukas.
Patikrinkite, išvalykite.
Naudotojas
Užkalk
ė
j
ę
s prietaisas.
Žr. skyri
ų
„Kalki
ų
šalinimas“.
Naudotojas
Persistat
ė
perkrovos srov
ė
s jungi-
mo taškas.
Iš naujo nustatykite perkrovos srov
ė
s jungi-
mo tašk
ą
.
Klient
ų
aptarnavimo
tarnyba
Užsikiš
ę
s vandens tr
ū
kumo saugi-
klio filtras.
Patikrinkite, išmontuokite ir išvalykite filtr
ą
.
Naudotojas
Prietaisas neišsijungia, kai
uždaras rankinis purškimo
pistoletas
Iš siurblio nevisiškai pašalintas
oras.
Prietaiso jungikl
į
nustatykite
į
pad
ė
t
į
„0“ ir at-
verkite rankin
į
purškimo pistolet
ą
, kol iš
purkštuko nebetek
ė
s skystis. Po to v
ė
l
į
junki-
te prietais
ą
. Kartokite ši
ą
proced
ū
r
ą
, kol bus
pasiektas visas darbinis sl
ė
gis.
Naudotojas
Pažeistas apsauginis vožtuvas
arba jo tarpiklis.
Pakeiskite apsaugin
į
vožtuv
ą
arba tarpikl
į
.
Klient
ų
aptarnavimo
tarnyba
Perkrovos srov
ė
s pneumatinis jun-
giklis.
Patikrinkite pneumatin
į
ir perkrovos srov
ė
s
jungikl
į
.
Klient
ų
aptarnavimo
tarnyba
434
LT
-
13
Valymo priemon
ė
s palengvina darb
ą
. Lentel
ė
je pateiktos gali-
mos valymo priemon
ė
s. Prieš naudodami valymo priemones, b
ū
-
tinai atsižvelkite
į
pastabas ant j
ų
etike
č
i
ų
.
* = naudoti tik trump
ą
laik
ą
, dviej
ų
darbo žingsni
ų
metodu, papil-
domai nuplauti švariu vandeniu
** = ASF = lengvai skaidomas
*** = iš pradži
ų
apipurkšti tinka Foam-Star 2000
Dalys
Valymo priemon
ė
s
Naudojimo sritis
Užterštumas, naudojimo vietas Valymo priemon
ė
s
pH reikšm
ė
(apytiksl
ė
)
1 % vandeninis tirpa-
las
Transporto priemoni
ų
į
mo-
n
ė
s, degalin
ė
s, ekspedijavi-
mo
į
mon
ė
s, transporto
priemoni
ų
parkai
Dulk
ė
s, gatvi
ų
nešvarumai, mine-
ralin
ė
alyva (ant dažyt
ų
pavirši
ų
)
RM 55 ASF **
8
RM 22/80 milteliai ASF
12/10
RM 81 ASF
9
RM 803 ASF
10
RM 806 ASF
11
Transporto priemoni
ų
konservavi-
mas
RM 42 šaltas vaškas aukšto sl
ė
gio valymo
į
renginiams
8
RM 820 karštas vaškas ASF
7
RM 821 purškiamas vaškas ASF
6
RM 824 perlinis vaškas ASF
7
RM 44 ratlanki
ų
valymo gelis
9
Metalo apdirbimo pramon
ė
Alyva, riebalai, dulk
ė
s ir panašus
nešvarumai
RM 22 milteliai ASF
12
RM 55 ASF
8
RM 81 ASF
9
RM 803 ASF
10
RM 806 ASF
12
RM 31 ASF (stiprus užterštumas)
12
RM 39 skystas (su apsauga nuo korozijos)
9
Maisto pramon
ė
s
į
mon
ė
s Lengvas ir vidutinis užterštumas,
riebalai, alyva, dideli plotai
RM 55 ASF
8
RM 81 ASF
9
RM 882 gelio putos OSC
12
RM 58 ASF (valomosios putos)
9
RM 31 ASF *
12
Derva
RM 33 *
13
Valymas ir dezinfekavimas
RM 732
9
Dezinfekavimas
RM 735
7...8
Kalk
ė
s, mineralin
ė
s nuos
ė
dos
RM 25 ASF *
2
RM 59 ASF (valomosios putos)
2
Sanitariniai mazgai ***
Kalk
ė
s, urino nuos
ė
dos, muilas ir
pan.
RM 25 ASF * (bazinis valymas)
2
RM 59 ASF (valomosios putos)
2
RM 68 ASF
5
435
LT

