Karcher Nettoyeur haute pression HDS 12-14-4 ST Gaz: !
!: Karcher Nettoyeur haute pression HDS 12-14-4 ST Gaz
-
14
–
Topné za
ř
ízení p
ř
ístroje je spalovací za
ř
ízení. P
ř
i montáži po-
stupujte podle p
ř
íslušných místních p
ř
edpis
ů
.
–
Používejte pouze zkontrolované komíny a potrubí na spaliny.
–
Instalaci plynových vedení a p
ř
ipojení p
ř
ístroje na plyn smí
provád
ě
t pouze odborná firma s povolením v oblasti plyná-
renství a vodárenství.
–
Nastavení a opravy plynových ho
ř
ák
ů
smí provád
ě
t pouze
zaškolení monté
ř
i servisní služby firmy Kärcher.
–
V plynovém vedení, které musí být provedeno s jmenovitou
sv
ě
tlostí nejmén
ě
1 palec, jsou v plánu manometr a uzavírací
ventil.
–
Na základ
ě
vibrací zp
ů
sobených vysokotlakým
č
erpadlem se
musí spojení provést mezi tuhým vedením plynu a p
ř
ístrojem
pomocí flexibilní plynové hadice.
–
U plynových vedení, která jsou delší než 10 m, musí být jme-
novitá sv
ě
tlost 1 1/2 palc
ů
nebo v
ě
tší. Napojení na plynovod
p
ř
ístroje je v jmenovité sv
ě
tlosti 1 palec.
Pozor
P
ř
i zašroubování flexibilní plynové hadice na ho
ř
áku je t
ř
eba p
ř
i-
pojovací šroub podržet vidlicovým klí
č
em SW 36. P
ř
ipojovací
šroub se nesmí oto
č
it proti krytu ho
ř
áku. Izolace p
ř
ipojení závitu
se provádí pomocí izola
č
ních prost
ř
edk
ů
povolených v DVGW.
Po p
ř
ipojení je t
ř
eba zkontrolovat spojené místo z hlediska t
ě
s-
nosti pomocí spreje schváleného DVGW.
Ší
ř
ka trubky plynového vedení se musí vypo
č
ítat dle DVGW
TRGI 1986 nebo TRF 1996. Jmenovitá sv
ě
tlost p
ř
ipojení p
ř
ístroje
není automaticky jmenovitá sv
ě
tlost potrubí. Dimenzování a in-
stalace plynového vedení se musí provád
ě
t dle p
ř
íslušných no-
rem a p
ř
edpis
ů
.
–
Každé za
ř
ízení je t
ř
eba p
ř
ipojit k vlastnímu komínu.
–
Vedení spalin musí provedeno v souladu místními p
ř
edpisy a
po dohod
ě
s oprávn
ě
ným kominickým mistrem.
Plynový p
ř
ístroj bez pr
ů
tokové pojistky, u kterého jsou všechny
č
ásti odvodu spalin, které jsou pod p
ř
etlakem, omývány spalova-
cím vzduchem. Instalace B23 otvírá možnost p
ř
ipojit p
ř
ístroj na
p
ů
vodní jednosm
ě
rný komín dle DIN 18160 a provozovat ho v zá-
vislosti na prostorovém vzduchu. P
ř
edpokladem je, že komín je
vhodný pro p
ř
ipojení výh
ř
evných p
ř
ístroj
ů
(nap
ř
. tak, že komín byl
sanován vložením trubky z ušlechtilé oceli).
Plynový p
ř
ístroj s p
ř
ívodem spalovacího vzduchu a odvodem
spalin svisle p
ř
es st
ř
echu. Ústí se nacházejí blízko u sebe ve stej-
né oblasti tlaku.
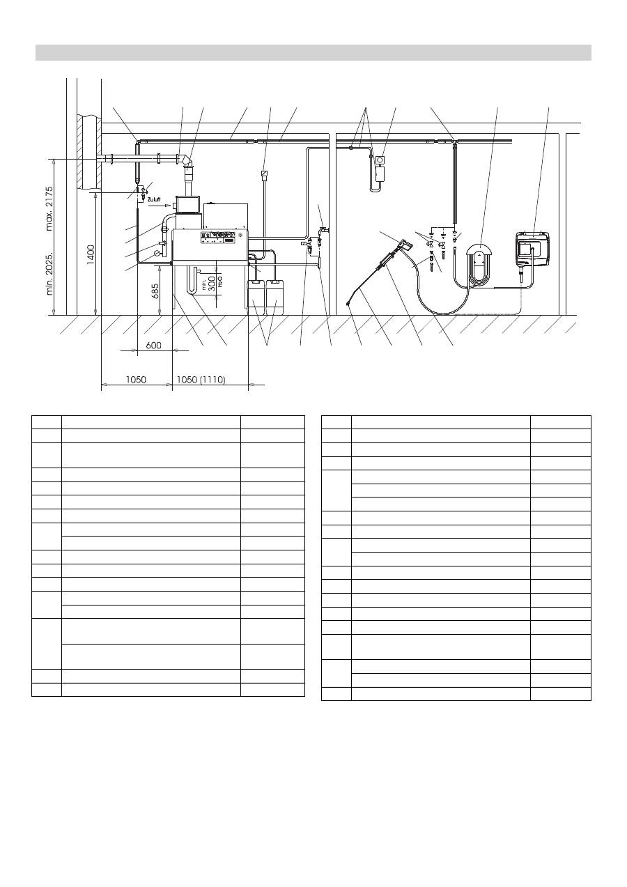
Instalace za
ř
ízení
Jen pro autorizované odborníky!
Obecné informace
Plyn obecn
ě
Vedení plynu
Vedení vzduchu/spalin
!
Plynový p
ř
ístroj se spalinovým za
ř
ízením, který odebírá spa-
lovací vzduch z místnosti, kde je nainstalován.
Typ B23
Plynový p
ř
ístroj se za
ř
ízením pro spaliny, který odebírá spa-
lovací vzduch p
ř
es uzav
ř
ený systém zvenku.
Typ C33
316
CS
-
15
Plynový p
ř
ístroj s p
ř
ívodem spalovacího vzduchu a odvodem
spalin k p
ř
ipojení na systém vzduch-spaliny.
Plynový p
ř
ístroj s odd
ě
leným p
ř
ívodem spalovacího vzduchu a
odvodem spalin. Ústí se nacházejí v r
ů
zných oblastech tlaku.
Upozorn
ě
ní:
K dosažení p
ř
edepsaných hodnot p
ř
i spalování je
nutné dodržet tah komína uvedený v technických údajích.
Vedení kondenzátu musí být sifonem p
ř
ipojeno p
ř
ímo na p
ř
ípojku
kondenzátu. Výška sifonu musí být 30 cm. Sifon není sou
č
ástí
dodávky. Vedení kondenzátu nesmí být pevn
ě
spojeno s kanali-
zací. Kondenzát musí voln
ě
vytékat do trychtý
ř
e nebo neutrali-
za
č
ní nádrže.
–
P
ř
ed montáží je nutné zkontrolovat nosnost st
ě
ny. Dodaný
upev
ň
ovací materiál je vhodný pro beton. Pro st
ě
ny z dutých
cihel, plných cihel a plynobetonu je t
ř
eba použít vhodné
hmoždinky a šrouby, nap
ř
. injek
č
ní kotvy (schéma otvor
ů
viz
p
ř
ehled rozm
ě
r
ů
).
–
Obr. 3 - pol. 19 a 25
P
ř
ístroj nesmíte pevn
ě
spojovat s vodovodní nebo vysokotla-
kou sítí. Je t
ř
eba bezpodmíne
č
n
ě
namontovat spojovací ha-
dice.
–
Obr. 3 - A
Mezi vodovodní sí
ť
a spojovací hadici zave
ď
te zavírací ko-
hout.
P
ř
i montáži vysokotlakých vedení je t
ř
eba dodržovat p
ř
íslušné
národní zákonodárné p
ř
edpisy.
–
Pokles tlaku v potrubí musí být menší než 1,5 MPa.
–
Hotové potrubí musí být vyzkoušeno p
ř
i tlaku 32 MPa.
–
Izolace potrubí musí být teplotn
ě
stálá do teploty 100 °C.
Obr. 3 - pol. 20
Násoby nastavte tak, aby spodní hladina
č
istidla nebyla níže než
1,5 m pod dnem p
ř
ístroje a horní hladina se nenacházela nad
dnem p
ř
ístroje.
Obr. 3 - B a pol. 19
P
ř
ívod vody napojte pomocí vhodné vodní hadice k vodovod-
ní síti.
–
Výkon p
ř
ívodu vody musí být minimáln
ě
1300 l/hod. p
ř
i tlaku
minimáln
ě
0,1 MPa.
–
Teplota vody musí být nižší než 30 °C.
Typ C43
Typ C53
Odtok kondenzátu
Montáž na st
ě
nu
Montáž vysokotlakého potrubí
Instalace nádrže na
č
isticí prost
ř
edky
P
ř
ívod vody
317
CS
-
16
Pozor
Maximální p
ř
ípustná impedance sít
ě
v bod
ě
p
ř
ipojení elekt
ř
iny
(viz Technická data) nesmí být p
ř
ekro
č
ena. Nebudete-li jisti im-
pedancí sít
ě
ve Vašem bod
ě
p
ř
ipojení, kontaktujte prosím Vaše-
ho dodavatele elekt
ř
iny.
Upozorn
ě
ní:
P
ř
i zapínání dochází ke krátkodobému poklesu na-
p
ě
tí. P
ř
i nep
ř
íznivých sí
ť
ových podmínkách m
ů
že dojít k poško-
zení jiných p
ř
ístroj
ů
.
–
Údaje pro p
ř
ipojení viz technické údaje a identifika
č
ní štítek.
–
Eletrické p
ř
ipojení musí provést elektroinstalatér a musí od-
povídat IEC 60364-1.
–
Sou
č
ásti pod proudem, kabely a p
ř
ístroje v pracovním prostoru
musí být v bezvadném stavu a chrán
ě
né proti tryskající vod
ě
.
Abyste zabránili úraz
ů
m vlivem el. proudu, doporu
č
ujeme použí-
vat zásuvky s p
ř
ed
ř
azeným proudovým chráni
č
em (jmenovitá
hodnota síly proudu vypínacího mechanismu max. 30 mA).
P
ř
ipojte elektriku.
Pro vypínání stacionárního vysokotlakého
č
isti
č
e je t
ř
eba umístit
na bezpe
č
né místo zamykatelný hlavní spína
č
(obr. 3 - poz. 6).
Vzdálenost mezery kontakt
ů
hlavního spína
č
e musí být nejmén
ě
3 mm.
Namontujte CEE konektor na p
ř
ipojovací kabel p
ř
ístroje.
CEE konektor zapojte do zásuvky.
Pro vypnutí stacionárního vysokotlakého
č
isti
č
e musí být CEE
konektor dob
ř
e p
ř
ístupný, aby mohl být odpojen od sít
ě
.
Zkontrolujte p
ř
ipojení plynu.
Pozor
Nebezpe
č
í poškození p
ř
ístroje v d
ů
sledku p
ř
eh
ř
átí.
Sifon p
ř
ipojte na dno kotle a napl
ň
te vodou.
Kotel napl
ň
te p
ř
es otvor kou
ř
ovodu 4 l vody.
P
ř
ed prvním použitím od
ř
ízn
ě
te špi
č
ku víka nádrže na olej na
vodním
č
erpadle.
Obr. 3 - pol. 14
Spojte vysokotlakou hadici s ru
č
ní st
ř
íkací pistolí a proudnicí
a p
ř
ipojte k výstupu vysokého tlaku p
ř
ístrje nebo k potrubní
síti vysokého tlaku.
Ústí trysky (b) upevn
ě
te p
ř
esuvnou maticí (a) na proudnici
(d). Dbejte na to, aby t
ě
snicí kroužek (c) dob
ř
e zapadl do
drážky.
Elektrické p
ř
ipojení
Pevn
ě
nainstalovaná elektrická p
ř
ípojka
Elektrická p
ř
ípojka se zástr
č
kou / zásuvkou
První uvedení do provozu
Za
ř
ízení je coby za
ř
ízení na zemní plyn nastaveno z výroby na
druh plynu G 20 a coby za
ř
ízení na zkapaln
ě
ný plyn na G 31. P
ř
i
p
ř
estavování za
ř
ízení na zemní plyn na G 25 nebo jiné (viz ty-
pový štítek) zemní plyny nebo za
ř
ízení na zkapaln
ě
ný plyn na
G 30 nebo jiné (viz typový štítek) zkapaln
ě
né plyny, je t
ř
eba na
nastavit na za
ř
ízení na zemní plyn hodnoty škodlivin platné pro
zemní plyn a na za
ř
ízení na zkapaln
ě
ný plyn hodnoty škodlivin
platné pro zkapaln
ě
ný plyn a to podle servisních informací.
Na p
ř
iložený prázdný štítek se uvede nov
ě
nastavený druh ply-
nu a štítek se p
ř
ipevní do polí
č
ka ur
č
eného pro nápisy na pravé
stran
ě
za
ř
ízení. Sou
č
asn
ě
je odtamtud t
ř
eba odstranit štítek na-
montovaný výrobcem, který uvádí G 20 (za
ř
ízení na zemní plyn)
nebo G 31 (za
ř
ízení na zkapaln
ě
ný plyn).
Opat
ř
ení p
ř
ed uvedením do provozu
a
b
c
d
318
CS
-
17
Sundejte pružinu (c) z op
ě
ry ví
č
ka (b) nádrže na zm
ě
k
č
ova-
dlo (a).
Do nádrže nalijte zm
ě
k
č
ovací kapalinu Kärcher RM 110 (obj.
č
. 2.780-001).
Pozor
Nebezpe
č
né elektrické nap
ě
tí! Nastavení smí provád
ě
t pouze
odborný elektrotechnik.
Zjišt
ě
ní tvrdosti místní vody:
–
u místního dodavatele vody,
–
tvrdom
ě
rem (obj.
č
. 6.768-004).
Sundejte kryt p
ř
ístroje.
Otev
ř
ete rozvodnou sk
ř
í
ň
ku na ovládacím panelu.
Oto
č
ný potenciometr (a) nastavte podle tvrdosti vody. Správ-
né nastavení lze zjistit z tabulky.
P
ř
íklad:
P
ř
i tvrdosti vody 15 °dH je t
ř
eba na stupnici potenciometru nasta-
vit hodnotu 6. Tomuto nastavení odpovídá p
ř
estávka 31 sekund,
tzn. že se každých 31 sekund krátce otev
ř
e magnetický ventil.
Pohotovostní doba se nastavuje na v
ě
tší desce na levé st
ě
n
ě
elektrické sk
ř
í
ň
ky.
Pohotovostní doba je z výroby nastavena na minimální hodnotu
2 minuty a lze ji zvýšit maximáln
ě
na 8 minut.
Ochrana proti usazování vodního kamene
Tvrdost vody (°dH)
5
10
15
20
25
Stupnice oto
č
ného potenci-
ometru
8
7
6
5
4,5
P
ř
estávka (sekundy)
50
40
31
22
16
b
c
a
a
Zm
ě
na nastavení pohotovostní doby
8 7 6 5 4 3 2 1
S2
min.
max.
319
CS
-
18
Obr. 3
Instala
č
ní materiál
1
2
3
5
6
7
8
9
10
12
13
A
15
11b
11a
11c
11a
25
21
22
23
11b
24
4
20
19a
19
18
17
16
14
11d
B
Pol.
Instala
č
ní materiál
Objednací
č
.
1
úhlové šroubení
6.386-356
2
Sada výfukového vedení, vodorovné, 150
mm
6.526-231
3
Sada výfukového vedení, svislé, 150 mm 6.526-232
4
Sada díl
ů
sifon
2.640-422
5
tepelná izolace
6.286-114
6
Hlavní spína
č
6.631-455
7
sada potrubí, pozinkovaná ocel
2.420-004
sada potrubí, ušlechtilá ocel
2.420-006
8
sada díl
ů
dálkového ovládání
2.744-008
9
sada díl
ů
nouzového vypína
č
e
2.744-002
10
šroubení T
6.386-269
11a
p
ř
ipojovací hrdlo, mosaz
2.638-180
p
ř
ipojovací hrdlo, ušlechtilá ocel
2.638-181
11b
uzavírací kohout jmen. pr
ů
m
ě
ru 8, pozin-
kovaná ocel
4.580-144
uzavírací kohout jmen. pr
ů
m
ě
ru 8, ušlech-
tilá ocel
4.580-163
11c
pevný díl rychlospojovacího šroubení
6.463-025
11d
volný díl rychlospojovacího šroubení
6.463-023
Pol.
Instala
č
ní materiál
Objednací
č
.
12
držák hadice
2.042-001
13
buben na hadici
2.637-238
14
vysokotlaká hadice 10 m
6.388-083
15
ru
č
ní st
ř
íkací pistole Easypress
4.775-463
oto
č
ný regulátor HDS 9/16-4
4.775-470
oto
č
ný regulátor HDS 12/14-4
4.775-471
16
držák proudnice
2.042-002
17
Proudová trubice
4.760-550
18
ústí trysky HDS 9/16-4
2.883-402
ústí trysky HDS 12/14-4
2.883-406
19
Vodní hadice
4.440-282
19a
magnetický ventil p
ř
ívodu vody
4.743-011
20
nádrž na
č
isticí prost
ř
edky, 60 l
5.070-078
21
Plynová hadice R1“
6.388-228
22
Plyn-uzavírací kohout R1“
6.412-389
23
Manometr, plyn (Pozor! Uzavírací ventil
není sou
č
ástí dodávky.)
6.412-059
24
sada díl
ů
konzol na st
ě
nu
2.053-005
sada díl
ů
stojanu na podlahu
2.210-008
25
Vysokotlaká hadice
6.389-028
320
CS
-
19
Tímto prohlašujeme, že níže ozna
č
ené stroje odpovídají jejich
základní koncepcí a konstruk
č
ním provedením, stejn
ě
jako námi
do provozu uvedenými konkrétními provedeními, p
ř
íslušným zá-
sadním požadavk
ů
m o bezpe
č
nosti a ochran
ě
zdraví sm
ě
rnic
ES. P
ř
i jakýchkoli na stroji provedených zm
ě
nách, které nebyly
námi odsouhlaseny, pozbývá toto prohlášení svou platnost.
5.957-648
Podepsaní jednají v pov
ěř
ení a s plnou mocí jednatelství
Osoba zplnomocn
ě
ná sestavením dokumentace:
S. Reiser
Alfred Kärcher GmbH & Co. KG
Alfred-Kärcher-Str. 28 - 40
71364 Winnenden (Germany)
Tel.: +49 7195 14-0
Fax: +49 7195 14-2212
Winnenden, 2014/02/01
V každé zemi platí záru
č
ní podmínky vydané naší p
ř
íslušnou dis-
tribu
č
ní spole
č
ností. P
ř
ípadné poruchy na za
ř
ízení odstraníme
b
ě
hem záru
č
ní lh
ů
ty bezplatn
ě
tehdy, bude-li p
ř
í
č
inou poruchy
vada materiálu nebo výrobní vada.
Prohlášení o shod
ě
pro ES
Výrobek:
Vysokotlaký
č
isti
č
Typ:
1.251-xxx
P
ř
íslušné sm
ě
rnice ES:
2009/142/ES
2006/42/ES (+2009/127/ES)
2004/108/ES
Použité harmoniza
č
ní normy
EN 55014–1: 2006+A1: 2009+A2: 2011
EN 55014–2: 1997+A1: 2001+A2: 2008
EN 60335–1
EN 60335–2–79
EN 62233: 2008
EN 61000–3–2: 2006+A1: 2009+A2: 2009
HDS 12/14:
EN 61000–3–3: 2008
HDS 9/16:
EN 61000–3–11: 2000
Použité specifikace:
QA 195 (nikoliv LPG)
Název uvedeného místa:
Pro 2009/142/ES
GASTEC
Wilmersdorf 50
7327 AC Apeldoorn
Ident.
č
. 0063
Záruka
CEO
Head of Approbation
321
CS
-
20
odd
ě
lení služeb zákazník
ů
m
Typ za
ř
ízení:
Výrobní
č
.:
Uvedení do provozu:
Datum zkoušky:
Výsledek:
Podpis
Datum zkoušky:
Výsledek:
Podpis
Datum zkoušky:
Výsledek:
Podpis
Datum zkoušky:
Výsledek:
Podpis
322
CS
-
1
Pred prvo uporabo Vaše naprave preberite to original-
no navodilo za uporabo, ravnajte se po njem in shra-
nite ga za morebitno kasnejšo uporabo ali za naslednjega
lastnika.
–
Pred prvim zagonom obvezno preberite varnostna navodila
št. 5.956-309!
–
V primeru transportnih poškodb takoj obvestite trgovca.
Opozorila k sestavinam (REACH)
Aktualne informacije o sestavinah najdete na:
www.kaercher.com/REACH
Nevarnost
Za neposredno groze
č
o nevarnost, ki vodi do težkih telesnih po-
škodb ali smrti.
몇
Opozorilo
Za možno nevarno situacijo, ki bi lahko vodila do težkih telesnih
poškodb ali smrti.
Pozor
Za možno nevarno situacijo, ki lahko vodi do lahkih poškodb ali
materialne škode.
Visokotla
č
ni curki so lahko pri nestrokovni uporabi ne-
varni. Curka ne smete usmerjati na osebe, živali, aktiv-
no elektri
č
no opremo ali na samo napravo.
–
Upoštevajte ustrezne nacionalne predpise zakonodajalca za
škropilnike teko
č
in.
–
Upoštevajte ustrezne nacionalne predpise zakonodajalca za
prepre
č
evanje nesre
č
. Škropilnik teko
č
in je potrebno redno
pregledovati in o rezultatu pregleda je potrebno podati pisme-
no izjavo.
–
Ogrevalnik naprave je gorilna naprava. Gorilne naprave mo-
rajo biti redno p
č
regledovane v skladu z ustreznimi nacional-
nimi predpisi zakonodajalca.
–
Pri obratovanju naprave v prostoru se mora zagotoviti varen od-
vod dimnih plinov (cev za dimne pline brez prekinitve vleka). Po-
leg tega mora obstajati zadosten dovod svežega zraka.
–
Upoštevajte varnostna navodila, ki so priložena uporabljenim
č
istilom (ponavadi na etiketi embalaže).
Pred instalacijo naprave se mora opraviti uskladitev s podjetjem
za oskrbo s plinom in s pristojnim podro
č
nim dimnikarjem.
Pri instalaciji se morajo upoštevati gradbeni predpisi, obrtni pred-
pisi in predpisi o zaš
č
iti pred imisijami. Opozarjamo na slede
č
e
predpise, smernice in norme:
–
Napravo sme instalirati le strokovno podjetje v skladu z naci-
onalnimi predpisi.
–
Pri elektri
č
ni instalaciji se morajo upoštevati ustrezni nacio-
nalni predpisi zakonodajalca.
–
Pri plinski instalaciji se morajo upoštevati ustrezni nacionalni
predpisi zakonodajalca.
–
Instalacijo plinskih vodov ter plinski priklju
č
ek naprave sme iz-
vesti le atestirano strokovno podjetje plinske in vodne obrti.
–
Nastavitve, vzdrževanje in popravila na gorilniku smejo izvajati
le usposobljeni monterji iz Kärcher uporabniškega servisa.
–
Pri projektiranju kamina se morajo upoštevati lokalno veljavni
predpisi.
Vsebinsko kazalo
Varstvo okolja . . . . . . . . . . .
SL . . 1
Simboli v navodilu za uporabo
SL . . 1
Simboli na napravi. . . . . . . .
SL . . 1
Splošna varnostna navodila
SL . . 1
Namenska uporaba. . . . . . .
SL . . 2
Delovanje . . . . . . . . . . . . . .
SL . . 2
Varnostne priprave . . . . . . .
SL . . 2
Elementi naprave . . . . . . . .
SL . . 3
Zagon . . . . . . . . . . . . . . . . .
SL . . 4
Uporaba . . . . . . . . . . . . . . .
SL . . 4
Ustavitev obratovanja . . . . .
SL . . 6
Mirovanje naprave. . . . . . . .
SL . . 6
Skladiš
č
enje . . . . . . . . . . . .
SL . . 6
Transport. . . . . . . . . . . . . . .
SL . . 6
Tehni
č
ni podatki . . . . . . . . .
SL . . 7
Nega in vzdrževanje . . . . . .
SL . . 9
Pomo
č
pri motnjah . . . . . . .
SL . 11
Pribor. . . . . . . . . . . . . . . . . .
SL . 13
Inštalacija naprave . . . . . . .
SL . 14
ES-izjava o skladnosti . . . . .
SL . 19
Garancija. . . . . . . . . . . . . . .
SL . 19
Uporabniški servis. . . . . . . .
SL . 20
Varstvo okolja
Embalaža je primerna za recikliranje. Prosimo, da em-
balaže ne odvržete med gospodinjske odpadke, tem-
ve
č
jo odložite v zbiralnik za ponovno obdelavo.
Stare naprave vsebujejo dragocene reciklirne materi-
ale, ki jih je treba odvajati za ponovno uporabo. Bate-
rije, olje in podobne snovi ne smejo priti v okolje. Zato
stare naprave zavrzite v ustrezne zbiralne sisteme.
Pazite, da motornje olje, kurilno olje, dizelsko gorivo in bencin ne
pridejo v okolje. Varujte tla in staro olje zavrzite v skladu s pred-
pisi o varstvu okolja.
Kärcher
č
istila so lahko razgradljiva. To pomeni, da ne ovirajo
delovanja lovilnika olja. Seznam priporo
č
ljivih
č
istil se nahaja v
poglavju "Pribor".
Simboli v navodilu za uporabo
Simboli na napravi
Splošna varnostna navodila
Predpisi, smernice in pravila
323
SL
-
2
Delovno mesto se nahaja ob upravljalnem polju. Odvisno od tipa
naprave so nadaljnja delovna mesta pri pripravah iz pribora (bri-
zgalne naprave), priklju
č
enih na odvzemnih mestih.
–
Za zaš
č
ito pred brizganjem vode ali umazanije nosite primer-
no zaš
č
itno obleko in zaš
č
itne o
č
ale.
Namen naprave je, da se s pomo
č
jo prosto iztekajo
č
ega vodne-
ga curka odstrani umazanija s površin. Uporablja se predvsem za
č
iš
č
enje strojev, vozil in fasad.
Nevarnost
Nevarnost poškodb! Pri uporabi na bencinskih
č
rpalkah ali drugih
nevarnih obmo
č
jih upoštevajte ustrezne varnostne predpise.
–
Hladna voda prite
č
e preko motorne hladilne spirale v posodo
s plovcem in od tam v zunanji plaš
č
preto
č
nega grelnika ter
naprej do sesalne strani visokotla
č
ne
č
rpalke. V posodi s
plovcem se dozira meh
č
alec.
Č
rpalka vodo in vsesano
č
istilo
poganja skozi preto
č
ni grelnik. Koli
č
ina
č
istila v vodi se lahko
nastavi z dozirnim ventilom. Preto
č
ni grelnik se ogreva s plin-
skim gorilnikom.
–
Visokotla
č
ni izhod se priklju
č
i na visokotla
č
no omrežje v
zgradbi. Na odvzemnih mestih tega omrežja se priklju
č
i ro
č
na
brizgalna pištola z visokotla
č
no gibko cevjo.
Varnostne naprave so namenjene zaš
č
iti uporabnika zato jih ne
smete ustaviti ali se izogibati njihovi funkciji.
V primeru pomanjkanja vode varovalo proti pomanjkanju vode
prepre
č
i vklop visokotla
č
ne
č
rpalke.
V primeru pomanjkanja vode varovalo proti pomanjkanju vode
prepre
č
i pregrevanje gorilnika. Gorilnik se vklopi le pri zadostni
oskrbi z vodo.
Č
e je delovni tlak presežen, tla
č
no stikalo izklopi napravo. Nasta-
vitve ne smete spremeniti.
V primeru motnje tla
č
nega stikala varnostni ventil odpre. Ta ventil
je tovarniško nastavljen in plombiran. Nastavitve ne smete spre-
meniti.
V primeru pomanjkanja goriva ali pri motnji gorilnika nadzor plame-
na izklopi gorilnik. Kontrolna lu
č
ka motnje gorilnika (E) zasveti.
Č
e je motor gorilnika blokiran, se sproži zaš
č
itno tokovno stikalo.
Motor visokotla
č
ne
č
rpalke je zaš
č
iten s stikalom za zaš
č
ito mo-
torja in stikalom za zaš
č
ito navitja.
Termostat dimnih plinov se sproži, ko temperatura dimnih plinov
preseže 320 °C. Kontrolna lu
č
ka termostata dimnih plinov (K)
sveti.
Omejevalnika maksimalne temperature na dnu kotla (> 80 °C) in
v vodnem izhodu (> 110 °C) se sprožita in kontrolna lu
č
ka za mo-
tnjo gorilnika (E) sveti.
Tla
č
no stikalo dimnih plinov izklopi gorilnik,
č
e v sistemu za od-
vajanje dimnih plinov nastane nedopustno visok protitlak, npr. pri
zamašitvi.
Po izklopu naprave preko ro
č
ne brizgalne pištole se po poteku
č
asa pripravljenosti za obratovanje odpre magnetni ventil, ki je
nameš
č
en v visokotla
č
nem sistemu, kar povzro
č
i znižanje tlaka.
Delovna mesta
Osebna zaš
č
itna oprema
Pri
č
iš
č
enju delov, ki pove
č
ujejo hrup, nosite
glušnike, da prepre
č
ite poškodovanje sluha.
Namenska uporaba
Prepre
č
iti morate, da odpadna voda, ki vsebuje mineralna olja,
odteka v zemljo, teko
č
e vode ali kanalizacijo. Pranje motorjev in
podvozij zato izvajajte izklju
č
no na ustreznih mestih z lovilci olj.
Delovanje
Varnostne priprave
Varovalo proti pomanjkanju vode v posodi s plovcem
Varovalo proti pomanjkanju vode v zaš
č
itnem bloku
Tla
č
no stikalo
Varnostni ventil
Nadzor plamena
Prelivna zaš
č
ita
Termostat izpušnih plinov
Omejevalnik temperature
Tla
č
no stikalo dimnih plinov
Tla
č
na razbremenitev visokotla
č
nega sistema
324
SL
-
3
Bild 1
1 Gorilnik
2 Manometer
3 Dotok sveže vode s sitom
4 Visokotla
č
ni izhod
5 Plinski priklju
č
ek
6 Sesalna cev za
č
istilo l
7 Sesalna cev za
č
istilo II (opcija)
8 Posoda za meh
č
alec
9 Elektri
č
ni vodnik
10 Posoda s plovcem
11 Upravljalno polje
Bild 2
A Stikalo naprave
B Regulator temperature
C Dozirni ventil za
č
istilo I
D Dozirni ventil za
č
istilo II (opcija)
E Kontrolna lu
č
ka motnje gorilnika
F Kontrolna lu
č
ka pripravljenosti za obratovanje
G Kontrolna lu
č
ka pregretja motorja
H Kontrolna lu
č
ka zaš
č
ite pred poapnenjem
I
Deblokirna tipka plinskega releja
J Deblokirna tipka termostata dimnih plinov
K Kontrolna lu
č
ka termostata dimnih plinov
Elementi naprave
4
5
6
7
3
8
10
1
11
2
9
Upravljalno polje
325
SL
-
4
몇
Nevarnost
Nevarnost poškodb! Naprava, dovodi, visokotla
č
na cev in pri-
klju
č
ki morajo biti v brezhibnem stanju.
Č
e stanje ni brezhibno,
naprave ne smete uporabljati.
–
Priklju
č
ne vrednosti glejte v Tehni
č
nih podatkih in na tipski ta-
blici.
–
Elektri
č
ni priklju
č
ek mora izvesti elektroinstalater in mora
ustrezati IEC 60364-1.
Uporabnik mora stroj uporabljati v skladu z njegovim namenom.
Mora upoštevati lokalne danosti in pri delu s strojem paziti na
osebe v okolici.
Stroja med obratovanjem nikoli ne puš
č
ajte brez nadzora.
Nevarnost
–
Nevarnost oparjenja z vro
č
o vodo! Vodnega curka nikoli ne
usmerjajte v ljudi ali živali.
–
Nevarnost opeklin zaradi vro
č
ih delov naprave! Pri obratova-
nju z vro
č
o vodo se ne dotikajte neizoliranih cevovodov in gib-
kih cevi. Brizgalno cev držite izklju
č
no na ro
č
aju. Ne dotikajte
se nastavka za dimne pline preto
č
nega grelnika.
–
Nevarnost zastrupitve ali razjedanja s
č
istilom! Upoštevajte
opozorila na
č
istilih.
Č
istila hranite na mestu, ki ni dostopno
nepooblaš
č
enim osebam.
Nevarnost
Življenjska nevarnost zaradi elektri
č
nega udara! Vodnega curka
ne usmerjajte v slede
č
e priprave:
–
elektri
č
ni aparati in naprave,
–
ta naprava sama,
–
vsi deli v delovnem obmo
č
ju, ki so pod napetostjo.
Vodni curek, ki izstopa iz brizgalne cevi povzro
č
a odbojno silo.
Zaradi zvite brizgalne cevi deluje sila navzgor.
Nevarnost
–
Nevarnost poškodb! Zaradi odbojne sile brizgalne cevi lahko iz-
gubite ravnotežje. Lahko padete. Brizgalna cev lahko leti nao-
krog in poškoduje ljudi. Poiš
č
ite varno pozicijo in pištolo trdno
držite. Ro
č
ico ro
č
ne brizgalne pištole nikoli ne zataknite.
–
Curka ne usmerjajte na druga ali nase, da bi o
č
istili obla
č
ila
ali obutev.
–
Nevarnost poškodb zaradi lete
č
ih delov! Lete
č
i drobci ali
predmeti lahko poškodujejo ljudi ali živali. Vodnega curka ni-
koli ne usmerjajte v lomljive ali rahlo nameš
č
ene predmete.
–
Nevarnost nesre
č
e, kot posledice poškodb! Gume in ventile
č
istite z minimalne razdalje 30 cm.
몇
Opozorilo
Nevarnost zaradi zdravju škodljivih snovi! Slede
č
ih materialov ne
smete poškropiti, ker se lahko sicer v zrak zvrtin
č
ijo zdravju ško-
dljive snovi:
–
materiali, ki vsebujejo azbest,
–
materiali, ki morebiti vsebujejo zdravju škodljive snovi.
Nevarnost
–
Nevarnost poškodb zaradi izstopajo
č
ega, morebiti vro
č
ega
vodnega curka! Le originalne Kärcher visokotla
č
ne gibke cevi
so optimalno prilagojene napravi. Pri uporabi drugih cevi od-
pade garancija.
–
Ogrožanje zdravja zaradi
č
istila! Zaradi morebiti primešanega
č
istila voda, ki izhaja iz naprave, ne ustreza kakovosti pitne
vode.
–
Nevarnost poškodovanja sluha zaradi dela na delih, ki pove-
č
ujejo hrup! V tem primeru nosite glušnike.
Nevarnost
Nevarnost poškodb zaradi izstopajo
č
ega, morebiti vro
č
ega vo-
dnega curka!
Nevarnost
Pred vsakim zagonom preverite gibko visokotla
č
no cev na po-
škodbe. Poškodovano visokotla
č
no gibko cev takoj zamenjajte.
Pred vsako uporabo preverite visokotla
č
no gibko cev, cevo-
vode, armature in brizgalno cev glede poškodb.
Preverite trdnost naseda in tesnost cevne spojke.
Pozor
Neveranost poškodb zaradi suhega teka.
Preverite polnilni nivo posode za
č
istilo in jo po potrebi dopol-
nite.
Preverite nivo meh
č
alne teko
č
ine in jo po potrebi dolijte.
Stikalo naprave (A) obrnite na "0".
Zaprite dovod vode.
Pritiskajte ro
č
no brizgalno pištolo, dokler naprava ni ve
č
pod
pritiskom.
Zaprite dovod plina.
Zagon
Elektri
č
ni priklju
č
ek
Uporaba
Varnostna navodila
!
Vzpostavljanje pripravljenosti na obratovanje
Izklop v sili
326
SL
-
5
Z obra
č
anjem regulirnega ventila v smeri urnega kazalca se
delovni pritisk in preto
č
na koli
č
ina pove
č
ata.
Z obra
č
anjem regulirnega ventila v nasprotni smeri urnega
kazalca se delovni pritisk in preto
č
na koli
č
ina zmanjšata.
Obrat regulatorja koli
č
ine vode v desno pove
č
a pretok in po-
viša delovni tlak.
Obrat regulatorja koli
č
ine vode v levo zmanjša pretok in zniža
delovni tlak.
Odprite dovod vode.
Simbol "Vklop motorja"
Povlecite ro
č
ico ro
č
ne brizgalne pištole in stikalo naprave (A)
postavite na "1" (vklop motorja).
Kontrolna lu
č
ka pripravljenosti za obratovanje (F) kaže pripra-
vljenost naprave.
Nevarnost
Nevarnost oparin!
Pozor
Obratovanje z vro
č
o vodo brez goriva povzro
č
i poškodbo
č
rpalke
za gorivo. Pred obratovanjem z vro
č
o vodo zagotovite oskrbo z
gorivom.
Gorilnik se lahko po potrebi doklopi.
Simbol "Vklop gorilnika"
Stikalo naprave (A) postavite na "Vklop gorilnika".
Željeno temperaturo vode nastavite na regulatorju temperatu-
re (B). Maksimalna temperatura je 98 °C.
–
Č
e med obratovanjem spustite ro
č
ico ro
č
ne brizgalne pištole,
se naprava izklopi.
–
Č
e se pištola ponovno odpre v nastavljivem
č
asu pripravlje-
nosti za obratovanje (2...8 minut), naprava samodejno ponov-
no ste
č
e.
–
Č
e je
č
as pripravljenosti za obratovanje presežen, varnostno
stikalo izklopi
č
rpalko in gorilnik. Kontrolna lu
č
ka pripravljeno-
sti za obratovanje (F) ugasne.
–
Za ponoven vklop obrnite stikalo naprave v položaj "0", nato
ga ponovno vklopite
Č
e se naprava krmili z daljinskim upra-
vljalcem, se lahko ponoven vklop izvede z ustreznim stikalom
na daljinskem upravljalcu.
–
Avtomobilske gume se
č
istijo le s šobo za raven curek (25°)
in z minimalnim brizgalnim razmikom 30 cm. Gume se v no-
benem primeru ne smejo
č
istiti s krožnim curkom.
Za vse ostale naloge so na razpolago slede
č
e šobe:
Pri cevovodu nad 20 m ali pri visokotla
č
ni gibki cevi nad 2 x 10 m
NV 8 se morajo uporabiti slede
č
e šobe:
Nastavitev delovnega pritiska in preto
č
ne koli
č
ine
Nastavitev na napravi
Nastavitev na "Easypress" pištoli (opcija)
Obratovanje s hladno vodo
R
Obratovanje z vro
č
o vodo
Pripravljenost na obratovanje
Izbira šobe
Onesna-
ženost
Šoba
Brizgalni
kot
Št. dela
6.415
Tlak
[MPa]
Odboj [N]
HDS 9/16
mo
č
na
00060
0°
-649
16
46
srednja
25060
25°
-647
rahla
40060
40°
-648
HDS 12/14
mo
č
na
00080
0°
-150
14
55
srednja
25080
25°
-152
rahla
40080
40°
-153
Onesna-
ženost
Šoba
Brizgalni
kot
Št. dela
6.415
Tlak
[MPa]
Odboj [N]
HDS 9/16
mo
č
na
0075
0°
-419
10
37
srednja
2575
25°
-421
rahla
4075
40°
-422
HDS 12/14
mo
č
na
0010
0°
-082
10
46
srednja
2510
25°
-252
rahla
4010
40°
-253
327
SL
-
6
–
Č
istila olajšajo
č
iš
č
enje. Vsesajo se iz eksternega rezervoarja
za
č
istilo.
–
Del osnovne opreme naprave je dozirni ventil (C). Dodatna
dozirna priprava (dozirni ventil D) je dobavljiva kot pribor. Sle-
dnji omogo
č
a vsesavanje dveh razli
č
nih
č
istil.
–
Dozirna koli
č
ina se nastavi na dozirnih ventilih za
č
istilo (C ali
D) na upravljalnem polju. Nastavljena vrednost ustreza dele-
žu
č
istila v odstotkih.
–
Zunanja skala velja pri uporabi nerazred
č
enega
č
istila (100 %
CHEM).
–
Notranja skala velja pri uporabi razred
č
enega
č
istila v raz-
merju 1 + 3 (25 % CHEM + 75 % vode).
Slede
č
a tabela podaja porabo
č
istila za vrednosti na zunanji ska-
li:
To
č
na dozirna koli
č
ina je odvisna od:
–
viskoznosti
č
istila
–
sesalne višine
–
upora pretoka visokotla
č
nega voda
Č
e je potrebno natan
č
no doziranje, se mora izmeriti koli
č
ina vse-
sanega
č
istila (npr. s sesanjem iz merilnega lon
č
ka).
Opozorilo:
Priporo
č
ljiva
č
istila najdete v poglavju "Pribor".
Pozor
Pri obratovanju brez meh
č
alca lahko preto
č
ni grelnik poapni.
Č
e je posoda za meh
č
alec prazna, utripa kontrolna lu
č
ka zaš
č
ite
pred poapnenjem (H).
Slika 1 - poz. 8
V posodo za meh
č
alec dolijte meh
č
alno teko
č
ino RM 110
(2.780-001).
Nevarnost
Nevarnost oparin zaradi vro
č
e vode! Po delu z vro
č
o vodo, je po-
trebno napravo najmanj dve minute pustiti, da pištola obratuje s
hladno vodo.
Pri obratovanju z vro
č
o vodo regulator temperature (B) nasta-
vite na najnižjo temperaturo.
Najmanj 30 sekund uporabljajte napravo brez
č
istila.
Stikalo naprave (A) obrnite na "0".
Zaprite dovod vode.
Pritiskajte ro
č
no brizgalno pištolo, dokler naprava ni ve
č
pod
pritiskom.
Ro
č
no brizgalno pištolo z zaš
č
itno zasko
č
ko zavarujte pred
nehotenim odpiranjem.
Pri daljših obratovalnih premorih, ali ko ni možno skladiš
č
enje na-
prave brez nevarnosti zamrznitve, izvedite slede
č
e ukrepe (glejte
poglavje "Nega in vzdrževanje", odstavek "Zaš
č
ita pred zamrzni-
tvijo"):
Izpustite vodo.
Napravo izperite s sredstvom proti zmrznitvi.
Izklopite in zavarujte glavno stikalo oz. izvlecite Cekon vti
č
.
Zaprite dovod plina.
Pozor
Nevarnost poškodbe in škode! Pri shranjevanju upoštevajte težo
naprave.
Pozor
Nevarnost poškodbe in škode! Pri transportu upoštevajte težo
naprave.
Pri transportu v vozilih napravo zavarujte proti zdrsu in prevr-
nitvi v skladu z vsakokratnimi veljavnimi smernicami.
Doziranje
č
istila
Položaj
0,5
1
8
Koli
č
ina
č
istila [l/h]
14...15 22...24
50
Koncentracija
č
istila [%]
1,5
2,5
> 5
Dolivanje meh
č
alca
Ustavitev obratovanja
Po obratovanju s
č
istilom
Izklop naprave
Mirovanje naprave
Skladiš
č
enje
Transport
328
SL
-
7
Tehni
č
ni podatki
HDS 9/16-4
ST Gas
HDS 9/16-4
ST Gas LPG
HDS 12/14-4
ST Gas
HDS 12/14-4
ST Gas LPG
1.251-108
1.251-109
1.251-110
1.251-111
Podatki o zmogljivosti
Delovni tlak vode (s standardno šobo)
MPa (bar)
16 (160)
16 (160)
14 (140)
14 (140)
Maks. obratovalni nadtlak (varnostni ventil)
MPa (bar)
18,5 (185)
18,5 (185)
18,5 (185)
18,5 (185)
Pretok vode (regulira se brezstopenjsko)
l/h (l/min)
500-1000 (8,3-
16,6)
500-1000 (8,3-
16,6)
600-1200 (10-
20)
600-1200 (10-
20)
Vsesavanje
č
istila (regulira se brezstopenjsko)
l/h (l/min)
0-50 (0-0,8)
0-50 (0-0,8)
0-60 (0-1)
0-60 (0-1)
Vodni priklju
č
ek
Koli
č
ina dotoka (min.)
l/h (l/min)
1100 (18,3)
1100 (18,3)
1300 (21,7)
1300 (21,7)
Tlak dotoka (min.)
MPa (bar)
0,1 (1)
0,1 (1)
0,1 (1)
0,1 (1)
Pritisk dotoka (maks.)
MPa (bar)
0,6 (6)
0,6 (6)
0,6 (6)
0,6 (6)
Elektri
č
ni priklju
č
ek
Vrsta toka
--
3N~
3N~
3N~
3N~
Frekvenca
Hz
50
50
50
50
Napetost
V
380-420
380-420
380-420
380-420
Priklju
č
na mo
č
kW
6,4
6,4
7,5
7,5
Elektri
č
na zaš
č
ita (inertna)
A
16
16
20
20
Vrsta zaš
č
ite
--
IPX5
IPX5
IPX5
IPX5
Razred zaš
č
ite
--
I
I
I
I
Maksimalno dopustna omrežna impedanca
Ohm
(0,381+j
0,238)
(0,381+j
0,238)
--
--
Elektri
č
ni vodnik
mm
2
5 x 2,5
5 x 2,5
5 x 2,5
5 x 2,5
Temperatura
Temperatura dotoka (maks.)
°C
30
30
30
30
Maks. delovna temperatura vro
č
e vode
°C
98
98
98
98
Maks. temperatura varnostnega termostata
°C
110
110
110
110
Povišanje temperature pri maks. pretoku vode
°C
60-65
60-65
60-65
60-65
Ogrevalna mo
č
bruto
kW
75
75
95
95
Kaminski vlek
kPa
0,01-0,04
0,01-0,04
0,01-0,04
0,01-0,04
Priklju
č
ne vrednosti za plin
Zemeljski plin (G 20)
m
3
/h
7,2
--
9,8
--
Zemeljski plin LL (G 25)
m
3
/h
8,2
--
11,4
--
Nazivni priklju
č
ni tlak (zemeljski plin)
kPa
1,8-5
--
1,8-5
--
Propan
kg/h
--
5,7
--
7,2
Nazivni priklju
č
ni tlak (propan)
kPa
--
5-6
--
5-6
Okoljski podatki
Normiran izkoristek
%
97
97
97
97
Normiran emisijski faktor NO
X
(zemeljski plin G 25)
mg/kWh
< 40
--
< 40
--
Normiran emisijski faktor CO (zemeljski plin G 25)
mg/kWh
< 40
--
< 40
--
Vrednosti za izmero dimnika
Nadtla
č
na sposobnost (min.)
kPa
0,05
0,05
0,05
0,05
Vle
č
na potreba
kPa
0
0
0
0
Masni tok dimnih plinov - polno breme
kg/h
130
130
166
166
CO
2
(Zemeljski plin)
%
9,5
--
9,5
--
CO
2
(Propan)
%
--
12
--
12
Temperatura dimnih plinov maks./min.
°C
190/150
190/150
170/130
170/130
Zgorevalni zrak/dovajanje zraka
Maks. dolžina: 10 m z dvema lokoma 90° (minimalni premer 100 mm). Po
lokalnih predpisih iz postavitvenega prostora ali svež zrak od zunaj.
Odtok kondenzata
Odtok kondenzata (maks.)
l/h
4 (preko sifona
v kanalizacijo)
4 (preko sifona
v kanalizacijo)
4 (preko sifona
v kanalizacijo)
4 (preko sifona
v kanalizacijo)
Priklju
č
ek
DN
40 (HTR)
40 (HTR)
40 (HTR)
40 (HTR)
Minimalen vodni steber, sifon
mm
300
300
300
300
329
SL
-
8
Odobritev EN 60335-2-79
Odobritev po Gas Appliance Directive (90/396/EEC)
--
Gastec QA
Low NO
X
Gastec QA
Gastec QA
Low NO
X
Gastec QA
Kategorija naprave Evropa
--
I 2E (r), I
2ELL, I 2H, I
2L, I2 HE
I 3P
I 2E (r), I
2ELL, I 2H, I
2L, I2 HE
I 3P
Tip naprave
--
B23, C33,
C43, C53
B23, C33,
C43, C53
B23, C33,
C43, C53
B23, C33,
C43, C53
CE Ident št. proizvoda
--
PIN 0063 BN
3880
PIN 0063 BN
3880
PIN 0063 BN
3880
PIN 0063 BN
3880
Mere in teža
Dolžina
mm
1124
1124
1124
1124
Širina
mm
558
558
558
558
Višina
mm
966
966
1076
1076
Tipi
č
na delovna teža
kg
193,5
193,5
209
209
Ugotovljene vrednosti v skladu z EN 60355-2-79
Emisija hrupa
Nivo hrupa L
pA
dB(A)
74
74
76
76
Negotovost K
pA
dB(A)
1
1
1
1
Vrednost vibracij dlan-roka
Ro
č
na brizgalna pištola
m/s
2
2,2
2,2
2,3
2,3
Brizgalna cev
m/s
2
1,8
1,8
2,1
2,1
Negotovost K
m/s
2
1,0
1,0
1,0
1,0
HDS 9/16-4
ST Gas
HDS 9/16-4
ST Gas LPG
HDS 12/14-4
ST Gas
HDS 12/14-4
ST Gas LPG
Merski list
330
SL
-
9
Nevarnost
Nevarnost poškodb! Pred vsemi vzdrževalnimi deli in popravili je
treba izklopiti glavno stikalo oz. izvle
č
i Cekon vti
č
.
Nega in vzdrževanje
Vzdrževalni na
č
rt
Č
as
Dejavnost
Zadeven sklop
Izvedba
Izvajalec
vsak dan
Preverjanje ro
č
-
ne brizgalne pi-
štole
Ro
č
na brizgalna pištola
Preverite, ali ro
č
na brizgalna pištola trdno zapre.
Preverite funkcijo zaš
č
ite pred nehoteno upora-
bo. Pokvarjeno ro
č
no brizgalno pištolo zamenjaj-
te.
Uporabnik
Preverjanje viso-
kotla
č
nih gibkih
cevi
Izstopni vodi, gibke cevi k de-
lovni napravi
Cevi preglejte glede poškodb. Poškodovane cevi
takoj zamenjajte. Nevarnost nesre
č
!
Uporabnik
Preverjanje pri-
klju
č
nega kabla
z omrežnim vti-
č
em
Elektri
č
ni priklju
č
ek z vti
č
em/
vti
č
nico
Preverite priklju
č
ni kabel z omrežnim vti
č
em gle-
de poškodb. Poškodovan priklju
č
ni kabel naj po-
oblaš
č
en uporabniški servis/elektro strokovnjak
takoj zamenja.
Uporabnik
tedensko ali po 40
obratovalnih urah
Preverjanje sta-
nja olja
Posoda za olje na
č
rpalki
Č
e je olje motno, ga morate zamenjati.
Uporabnik
Preverjanje nivo-
ja olja
Posoda za olje na
č
rpalki
Preverite nivo olja v
č
rpalki. Po potrebi olje dolijte
(naro
č
. št. 6.288-016).
Uporabnik
Č
iš
č
enje sita
Sito v vhodu za vodo
Glejte poglavje "
Č
iš
č
enje sit".
Uporabnik
mese
č
no ali po
200 obratovalnih
urah
Preverjanje
č
r-
palke
Visokotla
č
na
č
rpalka
Preverite tesnost
č
rpalke. Pri ve
č
kot 3 kapljicah
na minuto pokli
č
ite uporabniški servis.
Uporabnik
Preverjanje no-
tranjih oblog
Celotna naprava
Napravo vklopite z brizgalno cevjo brez visoko-
tla
č
ne šobe.
Č
e obratovalni tlak na manometru
naprave naraste nad 3 MPa, se mora iz naprave
odstraniti apnenec. Enako velja,
č
e se pri obrato-
vanju brez visokotla
č
nega voda (voda prosto iz-
teka skozi visokotla
č
ni izhod) izmeri obratovalni
tlak nad 0,7–1 MPa.
Uporabnik
po navodilih
za odstranje-
vanje apnen-
ca
Č
iš
č
enje sita
Sito v varovalu proti pomanjka-
nju vode
Glejte poglavje "
Č
iš
č
enje sit".
Uporabnik
po 500-700 obra-
tovalnih urah
Zamenjava
Žarilni vžigalnik, ionizacijska
elektroda
Zamenjajte žarilni vžigalnik oz. ionizacijsko elek-
trodo.
Uporabniški
servis
vsakih 6 mesecev
ali po 1000 obra-
tovalnih urah
Zamenjava olja Visokotla
č
na
č
rpalka
Izpustite olje. Dolijte 1 l novega olja (naro
č
. št.
6.288-016). Preverite polnilni nivo v posodi za
olje.
Uporabnik
Preverjanje,
č
i-
š
č
enje
Celotna naprava
Vizualna kontrola naprave, preverite tesnost vi-
sokotla
č
nih priklju
č
kov in prelivnega ventila, pre-
verite visokotla
č
no gibko cev in tla
č
ni zbiralnik,
odstranite apnenec z grelne spirale, o
č
istite / za-
menjajte ionizacijsko elektrododo, nastavite go-
rilnik.
Uporabniški
servis
Zamenjava gib-
ke cevi
Gibka cev za tla
č
no stikalo di-
mnih plinov
Zamenjajte gibko cev.
Uporabniški
servis
enkrat na leto
Varnostni pre-
gled
Celotna naprava
Varnostni pregled je treba opraviti v skladu z
ustreznimi nacionalnimi predpisi zakonodajalca
za škropilnike teko
č
in.
Strokovnjak
331
SL
-
10
S pristojno Kärcher prodajalno lahko sklenete vzdrževalno po-
godbo za napravo.
Slika 1 - poz. 3
Zaprite dovod vode.
Z naprave odvijte dovodno cev za vodo.
Z izvija
č
em porinite sito iz priklju
č
ka.
Č
iš
č
enje sita
V nasprotnem zaporedju ga ponovno montirajte.
Snemite obložne plo
č
evine.
Z varnostnega bloka odvijte kotnik.
Vijak M8x30 uvijte v sito.
Vijak in sito izvlecite s kleš
č
ami.
Č
iš
č
enje sita
V nasprotnem zaporedju ga ponovno montirajte.
Pri oblogah v cevovodih naraste upor pretoka, tako da se lahko
sproži tla
č
no stikalo.
Nevarnost
Nevarnost eksplozije zaradi gorljivih plinov! Med odstranjeva-
njem apnenca je prepovedano kajenje. Poskrbite za dobro pre-
zra
č
evanje.
Nevarnost
Nevarnost razjedanja zaradi kisline! Nosite zaš
č
itna o
č
ala in za-
š
č
itne rokavice.
Za odstranjevanje se smejo po zakonskih predpisih uporabljati le
preizkušena raztopila za kotlovec s kontrolnim znakom.
–
RM 100 (naro
č
. št. 6.287-008) raztaplja apnenec in enostav-
ne spojine iz apnenca in ostankov pralnega sredstva.
–
RM 101 (naro
č
. št. 6.287-013) raztaplja obloge, ki jih ni mo-
žno odstraniti z RM 100.
20 litrsko posodo napolnite s 15 l vode.
Prilijte en liter raztopila za kotlovec.
Vodno cev priklopite direktno na glavo
č
rpalke in prosti konec
obesite v posodo.
Priklju
č
eno brizgalno cev vtaknite brez šobe v posodo.
Odprite ro
č
no brizgalno pištolo in je med odstranjevanjem
apnenca ne zapirajte.
Stikalo naprave obrnite na "Vklop gorilnika", da se doseže ca.
40 °C.
Napravo izklopite in pustite stati 20 minut. Ro
č
na brizgalna pi-
štola mora ostati odprta.
Nato napravo s
č
rpalko popolnoma izpraznite.
Opozorilo:
Priporo
č
amo, da za zaš
č
ito pred korozijo in nevtrali-
ziranje ostankov kisline nato iz posode za
č
istilo skozi napravo
pre
č
rpate alkalno raztopino (npr. RM 81).
Naprava se mora postaviti v pred zmrzaljo varnem prostoru. Ob
nevarnosti zmrzali, npr. pri inštalaciji zunanj, se mora naprava iz-
prazniti in izprati s sredstvom proti zamrznitvi.
Dovodno cev za vodo in visokotla
č
no cev odvijte.
Napravo pustite te
č
i maks. 1 minuto, da se
č
rpalka in cevi iz-
praznejo.
Odvijte dovod na dnu kotla in pustite, da se grelna spirala iz-
prazni.
Opozorilo:
Upoštevajte navodila za uporabo proizvajalca sred-
stva proti zmrzovanju.
V posodo s plovcem do vrha napolnite standardno sredstvo
proti zamrznitvi.
Pod visokotla
č
ni izhod postavite lovilno posodo.
Napravo vklopite in pustite te
č
i tako dolgo, da varovalo proti
pomanjkanju vode v posodi s plovcem reagira in izklopi na-
pravo.
Dno kotla in sifon napolnite s sredstvom proti zamrznitvi.
Tako se doseže tudi dolo
č
ena zaš
č
ita pred korozijo.
Vzdrževalna pogodba
Č
iš
č
enje sit
Sito v vhodu za vodo
Sito v varovalu proti pomanjkanju vode
Odstranitev apnenca
Izvedba
2.
1.
Zaš
č
ita pred zamrznitvijo
Izpust vode
Izplakovanje naprave s sredstvom proti zmrznitvi
332
SL
-
11
Nevarnost
Nevarnost poškodb! Pred vsemi vzdrževalnimi deli in popravili je
treba izklopiti glavno stikalo oz. izvle
č
i Cekon vti
č
.
*
Opozorilo
Pritisnite deblokirno tipko termostata dimnih plinov (J), da spro-
stite nadzor plamena.
Pomo
č
pri motnjah
Motnja
Možen vzrok
Odprava
Izvajalec
Naprava ne te
č
e, kontrolna
lu
č
ka pripravljenosti za obra-
tovanje (F) ne sveti
Ni napetosti v napravi.
Preverite elektri
č
no omrežje.
Elektrikar
Varnostno stikalo je sproženo.
Stikalo naprave na kratko izklopite in nato po-
novno vklopite.
Uporabnik
Varovalka v krmilnem krogu (F3) je
pregorela. Varovalka se nahaja v
krmilnem transformatorju (T2).
Vstavite novo varovalko,
č
e ponovno pregori,
odstranite vzrok preobremenjenosti.
Uporabniški servis
Pokvarjeno je tla
č
no stikalo HD (vi-
sok tlak) ali ND (nizek tlak).
Preverite tla
č
no stikalo.
Uporabniški servis
Pokvarjen je
č
asovni (Timer) mo-
dul (A1).
Preverite priklju
č
ke, po potrebi jih zamenjajte. Uporabniški servis
+ Kontrolna lu
č
ka pregretja
motorja (G) sveti
Sprožilo se je termotipalo (WS) v
motorju ali zaš
č
itno tokovno stikalo
(F1).
Odpravite vzrok preobremenjenosti.
Uporabniški servis
Varovalo proti pomanjkanju vode v
posodi s plovcem je reagiralo.
Odpravite vzrok pomanjkanje vode.
Uporabnik
Gorilnik ne vžge ali med
obratovanjem plamen uga-
sne
Regulator temperature (B) je na-
stavljen prenizko.
Regulator temperature nastavite višje.
Uporabnik
Stikalo naprave ni nastavljeno na
gorilnik.
Vklopite gorilnik.
Uporabnik
Varovalo proti pomanjkanju vode v
zaš
č
itnem bloku je izklopilo.
Zagotovite zadostno dovajanje vode. Preve-
rite tesnost naprave.
Uporabnik
Zaprt plinski ventil.
Odprite plinski ventil.
Uporabnik
Omejevalnik maksimalne tempera-
ture v vodnem izhodu (> 110 °C) se
je aktiviral.
Pustite, da se kotel ohladi in napravo ponov-
no zaženite.
Uporabnik
Preverite regulator temperature.
Uporabniški servis
Kontrolna lu
č
ka termostata
dimnih plinov (K) sveti
Ni dovajanje plina.
Odprite dovod plina.
Uporabnik
Zamašen dovod ali odvod zraka.
Preverite zra
č
enje in sistem za odvajanje di-
mnih plinov.
Uporabnik
Dno kotla je prevro
č
e. Omejevalnik
maksimalne temperature na dnu
kotla (> 80 °C) se je aktiviral. Na
dnu kotla ni kondenzata.
5 litrov vode nalijte preko merilnega nastavka
za dimne pline.
Uporabnik
Plinski vžigalni avtomat je v motnji. Pritisnite deblokirno tipko plinskega releja (I). Uporabnik
Ni vžiga. *
Preverite razmik elektrod plinskega vžigalne-
ga avtomata in vžigalni kabel. Popravite raz-
mik ali zamenjajte pokvarjene dele.
Č
e je
potrebno, jih o
č
istite.
Uporabniški servis
Ventilator ali krmilna platina števila
vrtljajev defektna. *
Preverite ventilator in krmilno platino števila
vrtljajev. Preverite vti
č
in dovod. Defektne
dele zamenjajte.
Uporabniški servis
333
SL
-
12
Motnja
Možen vzrok
Odprava
Izvajalec
Kontrolna lu
č
ka termostata
dimnih plinov (K) sveti
Sprožil se je omejevalnik tempera-
ture dimnih plinov.
Odprite ro
č
no brizgalno pištolo, da se napra-
va ohladi. Na upravljalnem polju napravo iz-
klopite in nato vklopite, da deblokirate
omejevalnik temperature.
Č
e se motnja po-
novi, pokli
č
ite uporabniški servis.
Uporabnik
Kontrolna lu
č
ka zaš
č
ite pred
poapnenjem (H) sveti
Meh
č
alec je porabljen.
Meh
č
alec dolijte.
Uporabnik
Č
rpa se premalo ali ni
č
č
istila Dozirni ventil je v položaju "0".
Nastavite dozirni ventil za
č
istilo.
Uporabnik
Filter za
č
istilo je zamašen ali pa je
rezervoar prazen.
O
č
istite oz. napolnite.
Uporabnik
Sesalne cevi, dozirni ali magnetni
ventil za
č
istilo so netesni ali zama-
šeni.
Preverite, o
č
istite.
Uporabnik
Pokvarjena elektronika ali magne-
tni ventil.
Zamenjajte
Uporabniški servis
Naprava ne dosega polnega
tlaka
Šoba je izprana.
Šobo zamenjajte.
Uporabnik
Rezervoar
č
istila je prazen.
Nalijte
č
istilo.
Uporabnik
Ni dovolj vode.
Zagotovite zadostno dovajanje vode.
Uporabnik
Sito na vhodu za vodo je zamaše-
no.
Preverite, snemite in o
č
istite sito.
Uporabnik
Dozirni ventil za
č
istilo je netesen. Preverite in zatesnite.
Uporabnik
Sesalne cevi za
č
istilo so netesne. Zamenjajte
Uporabnik
Ventil plovca je zataknjen.
Preverite gibljivost.
Uporabnik
Varnostni ventil je netesen.
Preverite nastavitev, po potrebi vgradite novo
tesnilo.
Uporabniški servis
Regulirni ventil je netesen ali pre-
nizko nastavljen.
Preverite dele ventila,
č
e so poškodovani, jih
zamenjajte,
č
e so umazani, pa o
č
istite.
Uporabniški servis
Magnetni ventil za tla
č
no razbre-
menitev je pokvarjen.
Zamenjajte magnetni ventil.
Uporabniški servis
Visokotla
č
na
č
rpalka ropota,
manometer mo
č
no niha
Dušilnik nihanja je pokvarjen.
Dušilnik nihanja zamenjajte.
Uporabniški servis
Vodna
č
rpalka sesa zrak.
Preverite sesalni sistem in odpravite nete-
snost.
Uporabnik
Naprava pri odprti ro
č
ni bri-
zgalni pištoli stalno vklaplja in
izklaplja
Šoba v brizgalni cevi je zamašena. Preverite, o
č
istite.
Uporabnik
Naprava je poapnena.
Glejte poglavje "Odstranjevanje apnenca".
Uporabnik
Preklopna to
č
ka prelivnika se je
premaknila.
Prelivnik se mora na novo nastaviti.
Uporabniški servis
Sito v varovalu proti pomanjkanju
vode je zamašeno.
Preverite, snemite in o
č
istite sito.
Uporabnik
Naprava pri zaprti ro
č
ni bri-
zgalni pištoli ne izklopi
Č
rpalka ni popolnoma odzra
č
ena. Stikalo naprave postavite na "0" in ro
č
no bri-
zgalno pištolo vlecite tako dolgo, dokler iz
šobe izstopa teko
č
ina. Potem ponovno vklo-
pite napravo. Ta postopek ponavljajte tako
dolgo, da se doseže popoln obratovalni tlak.
Uporabnik
Varnostni ventil oz. tesnilo varno-
stnega ventila je pokvarjeno.
Zamenjajte varnostni ventil oz. tesnilo varno-
stnega ventila.
Uporabniški servis
Tla
č
no stikalo prelivnika.
Preverite tla
č
no stikalo in prelivnik.
Uporabniški servis
334
SL
-
13
Č
istila olajšajo postopek
č
iš
č
enja. V tabeli je prikazan izbor
č
istil.
Pred uporabo
č
istil morate obvezno prebrati opozorila na emba-
laži.
* = le za kratko uporabo, metoda v dveh korakih, spiranje s
č
isto
vodo
** = ASF = lahko razgradljivo
*** = za predbrizganje je primeren Foam-Star 2000
Pribor
Č
istila
Podro
č
je uporabe
Onesnaženost, na
č
in uporabe
Č
istilo
pH vrednost (ca.) 1 %-
raztopina v vodovodni
vodi
Avtoservisi, bencinske
č
r-
palke, špedicije, vozni
parki
Prah, umazanija s ceste, mineral-
na olja (na lakiranih površinah)
RM 55 ASF **
8
RM 22/80-prah ASF
12/10
RM 81 ASF
9
RM 803 ASF
10
RM 806 ASF
11
Konzerviranje vozila
RM 42 Mrzel vosek za visokotla
č
ni
č
istilnik
8
RM 820 Vro
č
vosek ASF
7
RM 821 Brizgalni vosek ASF
6
RM 824-Super - biserni vosek ASF
7
RM 44 Gel - platiš
č
no
č
istilo
9
Industrija za predelavo
kovine
Olja, maš
č
obe, prah in podobna
umazanija
RM 22 Prah ASF
12
RM 55 ASF
8
RM 81 ASF
9
RM 803 ASF
10
RM 806 ASF
12
RM 31 ASF (mo
č
na onesnaženost)
12
RM 39 - teko
č
( z zaš
č
ito pred korozijo)
9
Obrati za predelavo živil Rahla do srednja onesnaženost,
maš
č
obe/olja, velike površine
RM 55 ASF
8
RM 81 ASF
9
RM 882 Gel-pena OSC
12
RM 58 ASF (pene
č
e
č
istilo)
9
RM 31 ASF *
12
Dimna smola
RM 33 *
13
Č
iš
č
enje in dezinficiranje
RM 732
9
Dezinficiranje
RM 735
7...8
Apnenec, mineralne obloge
RM 25 ASF *
2
RM 59 ASF (
č
iš
č
enje s peno)
2
Sanitarije ***
Apnenec, urinski kamen, mila itd. RM 25 ASF * (osnovno
č
iš
č
enje)
2
RM 59 ASF (
č
iš
č
enje s peno)
2
RM 68 ASF
5
335
SL

