Karcher HDS-C 9-15 Inox: Réglages
Réglages: Karcher HDS-C 9-15 Inox
-
3
Décrochez le pistolet de giclage à main
et tirer le levier du pistolet.
Remarque
Le temps de lavage dépend également de
la position "O/OFF" de l'interrupteur de la-
vage de programme.
1 Armoire de commande
2 Soupapes de dosage du détergent
1 Interrupteur principal
2 Thermostat
3 Interrupteur exploitation durable/
Contrôleur de pièces
4 Interrupteur Protection antigel/On
–
Position 0:
L'installation est arrêtée. La
protection antigel est inactive.
–
Position 1:
L'installation est en état de
marche.
La température de l'eau est réglée par le
régulateur de température.
–
30...50 °C pour des salissures légères.
–
50...60 °C pour le nettoyage de ma-
chines et de véhicules.
La température maximale autorisée de
l'eau lors de l'exploitation est de 60°C (tem-
pérature maximale possible de l'eau, voir
les données techniques).
A
Position en exploitation durable:
L'installation fonctionne sans introduc-
tion de pièces.
B
Position du contrôleur de pièces:
L'installation ne fonctionne que lorsque
des pièces ont été insérées.
A
Position de la protection antigel:
L'installation n'est pas en état de
marche, mais la protection antigel est
active. La lampe de contrôle relative à
l'état de marche n'est pas allumée.
B
Position On:
L'installation est en état
de marche. La lampe de contrôle rela-
tive à l'état de marche est allumée.
Attention
Les dispositifs de protection antigel ne
fonctionnent que lorsque l'interrupteur prin-
cipal se situe en position 1.
Le temps de lavage par pièce introduite
peut être réglé, sur le relais temporel, entre
1 et 10 minutes.
1 Relais temporel
Positionner l'interrupteur principal sur
"0".
Retirer le couvercle de l'armoire de
commande.
Régler le relais temporel sur la durée
désirée.
Remettre le couvercle de l'armoire de
commande.
La quantité de détergent est réglée par la
soupape de dosage.
Il est possible de doser du détergent entre
0 et 6%. L'échelle sur la soupape de do-
sage vous donne une valeur approxima-
tive. Le dosage exact dépend de la
viscosité du détergent utilisé ainsi que de la
température ambiante. Les valeurs pré-
cises sont déterminées par la mesure de la
quantité de détergent qui a été aspirée. Ré-
gler le cas échéant lorsque la température
ambiante est inférieure.
1 RM 110
2
Produit détergent
3 Combustible
Danger !
Danger dû à la présence de substances
toxiques Tous les détergents Kärcher sont
accompagnés de consignes de sécurité et
d'utilisation. Lire et respecter ces
consignes avant utilisation. Utiliser impéra-
tivement les vêtements/accessoires de
protection qui y sont mentionnés.
Respecter les consignes de sécurité figu-
rant sur les détergents.
Attention
Lorsque le réservoir à détergent est vide, la
pompe haute pression aspire de l'air et
peut ainsi être endommagée. Contrôler ré-
gulièrement le réservoir de détergent. Les
filtres doivent reposer sur le fond du réser-
voir de détergent.
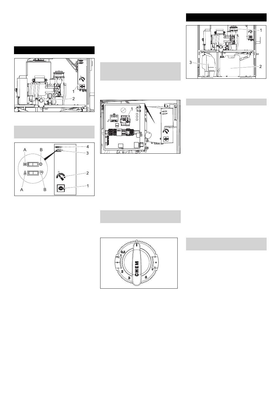
Ouvrir le réservoir à détergent.
Mélanger le détergent avec de l'eau se-
lon les indications figurant sur le gobe-
let.
Faire le plein de détergent ou remplacer
le réservoir vide par un réservoir plein.
Refermer le réservoir à détergent.
En vidant completement un réservoir de
détergent ou en mettant en service la pre-
mière fois, la conduite d'aspiration de dé-
tergent doit être purgée:
Régler le programme de lavage avec le
détergent (sur le sélecteur du choix du
programme).
Tourner la soupape de dosage du dé-
tergent sur le dosage maximal.
Démarrer la pompe à haute pression en
ouvrant la poignée-pistolet et la laisser
fonctionner jusqu'à ce que la conduite
d'aspiration ne comporte plus de bulles
d'air.
Fermer le pistolet de projection.
Retourner le dispositif doseur à la va-
leur initiale.
Réglages
Réglages sur l'armoire de com-
mande
Interrupteur principal
Régulateur de température
Interrupteur exploitation durable/
Contrôleur de pièces
Interrupteur On/Protection antigel
Réglages dans l'armoire de com-
mande (uniquement avec contrô-
leur de pièces ABS)
Réglages sur la soupape de dosage
du détergent
Remplissage de carburant
Remplissage du détergent
Purger la conduite d'aspiration de
détergent
33 FR
Оглавление
- Deutsch
- Bedienung
- Betriebsstoffe einfüllen
- Stilllegung
- Funktion
- Technische Daten
- Wartung und Pflege
- Hilfe bei Störungen
- Zubehör
- TransportLagerung Anlage installieren (Nur für Fachkräfte)
- EG-Konformitätserklärung
- Protokoll für Hochdruckprüfung
- English
- Operations
- Filling in detergents
- Shutdown
- Function
- Specifications
- Maintenance and care
- Troubleshooting
- Accessories
- Transport Storage Installing the unit (only for ex- perts)
- EC Declaration of Conformity
- Log of high pressure testing
- Français
- Utilisation
- Réglages
- Protection antigel
- Remisage
- Fonction
- Caractéristiques techniques
- Entretien et maintenance
- Assistance en cas de panne
- Accessoires
- Garantie Transport Entreposage Installation de l'appareil (Uni- quement pour les spécia- listes)
- Déclaration de conformité CE
- Rapport de contrôle de la haute pression
- Italiano
- Uso
- Impostazioni
- Antigelo
- Funzione
- Dati tecnici
- Cura e manutenzione
- Guida alla risoluzione dei guasti
- Accessori
- GaranziaTrasporto Supporto Installazione dell'impianto (solo personale specializzato)
- Dichiarazione di conformità CE
- Protocollo per controllo alta pressione
- Español
- Manejo
- Configuraciones
- Protección antiheladas
- Puesta fuera de servicio
- Datos técnicos
- Mantenimiento y cuidado
- Ayuda en caso de avería
- Accesorios
- Declaración de conformidad CE
- Protocolo para la inspección de alta presión
- Português
- Manuseamento
- Ajustes
- Protecção contra o congela- mento
- Desactivação da máquina
- Dados técnicos
- Manutenção e conservação
- Ajuda em caso de avarias
- Acessórios
- Garantia Transporte Armazenamento Instalar instalação (Apenas para técnicos autorizados)
- Declaração de conformidade CE
- Protocolo para o controlo de alta pressão
- Nederlands
- Bediening
- Bedrijfsstoffen vullen
- Stilllegging
- Functie
- Technische gegevens
- Onderhoud en instandhouding
- Hulp bij storingen
- Toebehoren
- Garantie Vervoer Opslag Installatie installeren (alleen voor vaklui)
- EG-conformiteitsverklaring
- Protocol voor hogedrukcontrole
- Περιεχόμενα
- Χειρισμός
- Ρυθμίσεις
- Αντιπαγετική προστασία
- Ακινητοποίηση
- Τεχνικά χαρακτηριστικά
- Φροντίδα και συντήρηση
- Αντιμετώπιση βλαβών
- Εξαρτήματα
- Δήλωση Συμμόρφωσης των Ε . Κ .
- Πρωτόκολλο ελέγχου υψηλής πίεσης
- Polski
- Obs ł uga
- Ustawienia
- Ochrona przeciwmrozowa
- Przeznaczenie
- Dane techniczne
- Dogl ą d i piel ę gnacja
- Usuwanie usterek
- Akcesoria
- Gwarancja Transport Przechowywanie Instalacja urz ą dzenia (Tylko dla wykwalifikowanych pra- cowników)
- Deklaracja zgodno ś ci UE
- Protokó ł badania wysokiego ci ś nienia
- Оглавление
- Эксплуатация
- Настройки
- Защита от замерзания
- Вывод из эксплуатации
- Назначение
- Технические данные
- Техническое обслуживание и уход
- Помощь в случае непола - док
- Принадлежности
- Гарантия Транспортировка Хранение Монтаж установки - Только для специалистов
- Заявление о соответствии ЕС
- Протокол проверки системы высокого давления

