Karcher BRS 43-500C – страница 5
Инструкция к Karcher BRS 43-500C

Tekniska data
Effekt
Märkspänning V Hz 230 / 1~50
Mellersta effektupptagning W 370
Maximalt tillåten nätimpedans Ohm (0.326+j0.204)
Rengöringsborstar
Arbetsbredd mm 400
Borstdiameter mm 90
Borstvarvtal 1/min 470
Tryck Rengöringsmedelspump MPa 0,34
Matningsmängd, rengöringsmedelspump l/min 0,38
Mått och vikt
Teoretisk yteffekt m²/h 300
Volym Rengöringsmedelstank l 7,5
Längd mm 400
Bredd mm 470
Höjd mm 1160
Transportvikt kg 25
Tillåten totalvikt kg 33
Beräknade värden enligt EN 60335-2-72
2
Hand-Arm Vibrationsvärde m/s
<2,5
2
Osäkerhet K m/s
1
Ljudtrycksnivå L
pA
dB(A) 68
Osäkerhet K
pA
dB(A) 3
Ljudeffektsnivå
WA
dB(A) 79
Osäkerhet K
WA
dB(A) 6
– 7
81SV

Försäkran om
Garanti
EU-överensstämmelse
I respektive land gäller de garantivillkor
som publicerats av våra auktoriserade dist-
Härmed försäkrar vi att nedanstående be-
ributörer. Eventuella fel på aggregatet re-
tecknade maskin i ändamål och konstruk-
pareras utan kostnad under förutsättning
tion samt i den av oss levererade versionen
att det orsakats av ett material- eller tillverk-
motsvarar EU-direktivens tillämpliga grund-
ningsfel. I frågor som gäller garantin ska du
läggande säkerhets- och hälsokrav. Vid
vända dig med kvitto till inköpsstället eller
ändringar på maskinen som inte har god-
närmaste auktoriserade serviceverkstad.
känts av oss blir denna överensstämmelse-
förklaring ogiltig.
Tillbehör och reservdelar
Produkt: Textilvårdsmaskin
– Endast av tillverkaren godkända tillbe-
Typ: 1 006-xxx
hör och reservdelar får användas. Origi-
Tillämpliga EU-direktiv
nal-tillbehör och original-reservdelar
2006/42/EG (+2009/127/EG)
2004/108/EG
garanterar att apparaten kan användas
Tillämpade harmoniserade normer
säkert och utan störning.
EN 55014–1: 2006+A1: 2009+A2: 2011
– I slutet av bruksanvisningen finns ett ur-
EN 55014–2: 1997+A1: 2001+A2: 2008
val av de reservdelar som oftast be-
EN 60335–1
hövs.
EN 60335–2–72
– Ytterligare information om reservdelar
EN 61000–3–2: 2006+A1: 2009+A2: 2009
hittas under service på www.kaer-
EN 61000–3–3: 2008
cher.com.
EN 62233: 2008
Tillämpade nationella normer
-
Undertecknade agerar på order av och
med fullmakt från företagsledningen.
CEO
Head of Approbation
Dokumentationsbefullmäktigad:
S. Reiser
Alfred Kärcher GmbH & Co. KG
Alfred-Kärcher-Str. 28 - 40
71364 Winnenden (Germany)
Tel.: +49 7195 14-0
Fax: +49 7195 14-2212
Winnenden, 2013/02/01
82 SV
– 8

Lue tämä alkuperäisiä ohjeita
Toiminta
ennen laitteesi käyttämistä, säi-
Suomi
lytä käyttöohje myöhempää käyttöä tai
Levitä matonpuhdistusainetta suihkutusjär-
mahdollista myöhempää omistajaa varten.
jestelmän avulla. Kaksi vastakkain pyöri-
vää harjatelaa harjaavat puhdistusaineen
Sisällysluettelo
mattoon. Matto on suhteellisen lyhyen ajan
kuluttua jälleen kuiva ja kulkukelpoinen.
Turvaohjeet . . . . . . . . . . . . FI . . .1
Kuivumisen jälkeen puhdistusaineen sito-
Toiminta . . . . . . . . . . . . . . . FI . . .1
ma lika imuroidaan pois harjaimurilla. 430
Käyttötarkoitus . . . . . . . . . . FI . . .1
mm:n työleveys ja puhdistusainesäiliön 7,5
Ympäristönsuojelu . . . . . . . FI . . .2
l:n tilavuus mahdollistavat tehokkaan puh-
Hallintalaitteet. . . . . . . . . . . FI . . .2
distuksen.
Ensimmäisessä käyttöönotossa FI . . .3
Sähköverkkokäytön ansiosta suorituskyky
Ennen käyttöönottoa . . . . . FI . . .3
on tehokas ilman työajan rajoittamista.
Käyttö . . . . . . . . . . . . . . . . . FI . . .3
Ohje
Kuljetus . . . . . . . . . . . . . . . FI . . .4
Laite voidaan varustaa erilaisilla lisävarus-
Säilytys. . . . . . . . . . . . . . . . FI . . .4
teilla kulloisenkin puhdistustehtävän mu-
Hoito ja huolto . . . . . . . . . . FI . . .4
kaan. Pyydä luettelomme tai katso
Häiriöapu . . . . . . . . . . . . . . FI . . .6
nettiosoitteesta www.kaercher.com.
Tekniset tiedot . . . . . . . . . . FI . . .7
Käyttötarkoitus
EU-standardinmukaisuustodis-
tus . . . . . . . . . . . . . . . . . . . FI . . .8
Käytä laitetta ainoastaan tämän käyttöoh-
Takuu . . . . . . . . . . . . . . . . . FI . . .8
jeen tietojen mukaisesti.
Varusteet ja varaosat . . . . . FI . . .8
– Tämä matonpuhdistuslaite on tarkoitet-
tu silmukka- ja nukkapintaisten veluuri-
Turvaohjeet
päällysteiden sekä neulapintaisten
mattolaattojen puhdistamiseen sisäti-
Lue ja huomioi ennen laitteen ensimmäistä
loissa.
käyttöä tämä käyttöohje ja mukana oleva
esite Turvaohjeet harjapuhdistus- ja suih-
– Käyttölämpötila-alue on välillä +5 °C ja
kutusliuotinlaitteita nro 5..956-251.0 varten.
+40 °C.
– Laitteen varustaminen on sallittu vain
Käyttöohjeessa esiintyvät symbolit
alkuperäisillä lisävarusteilla ja varaosil-
Vaara
la.
Välittömästi uhkaava vaara, joka aiheuttaa
– Laite on kehitetty sisäalueen lattioiden
vakavan ruumiinvamman tai johtaa kuole-
tai vaihtoehtoisesti katoksen alla olevi-
maan.
en lattiapintojen puhdistamiseen.
– Tämä laite on tarkoitettu ainoastaan
몇 Varoitus
ammattimaiseen käyttöön.
Mahdollisesti vaarallinen tilanne, joka voi
aiheuttaa vakavan ruumiinvamman tai voi
johtaa kuolemaan.
Varo
Mahdollisesti vaarallinen tilanne, joka voi
aiheuttaa lievän ruumiinvamman tai aineel-
lisia vahinkoja.
– 1
83FI

Ympäristönsuojelu
Hallintalaitteet
Pakkausmateriaalit ovat kierrä-
tettäviä. Älä käsittelee pakkauk-
sia kotitalousjätteenä, vaan
toimita ne jätteiden kierrätyk-
seen.
Käytetyt laitteet sisältävät ar-
vokkaita kierrätettäviä materiaa-
leja, jotka tulisi toimittaa
kierrätykseen. Paristoja, öljyjä ja
samankaltaisia aineita ei saa
päästää ympäristöön. Tästä
syystä toimita kuluneet laitteet
asianmukaisiin keräyspisteisiin.
Huomautuksia materiaaleista (REACH)
Ajantasaisia tietoja ainesosista löytyy osoit-
teesta:
www.kaercher.com/REACH
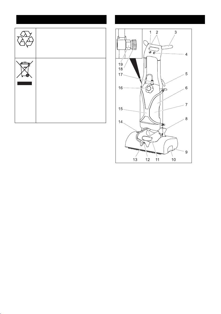
1 Laitekytkin
2 Puhdistusliuospainike
3 Työntökahva
4 Harjakäytön painike
5 Johdon pidike
6 Puhdistusainesäiliö
7 Suihkutuspullon pidike
8 Työntöaisan lukitus
9 Harjojen vaihtopainike
10 Roskasäiliö
11 Sihti
12 Puhdistusaineliuoksen ulostulokohta
13 Harjatelat
14 Harjakäytön ylikuormasuoja
15 Puhdistusainesäiliön pidin
16 Puhdistusainesäiliön kansi
17 Puhdistusaineletkun kytkin
18 Suutin on toimitettaessa asetettuna pi-
dikkeeseen
19 Suuttimen pidike
84 FI
– 2

Vahingoittunut verkkoliitäntäjohto aiheut-
Ensimmäisessä
taa mahdollisesta sähköiskusta aiheutuvan
käyttöönotossa
loukkaantumisvaaran. Älä päästä verkkolii-
täntäjohtoa kosketuksiin pyörivien harjojen
Kuva 1, katso kansilehti
tai laikkojen kanssa.
Ota laite ja työntöaisa pakkauksesta ja lii-
tä ne yhteen kuten kuvassa on esitetty.
Ohje
Kuva 2, katso kansilehti
Harjakäytön kytkemiseksi välittömästi pois
Liitä laitteen ja työntöaisan väliset kaa-
päältä, käännä laitekytkin asentoon "0".
pelit.
Laitteen ajaminen
Työnnä pistoliitin työntöaisaan.
Aseta työntöaisa pystysuoraan ja nap-
Kuva 3, katso kansilehti
sauta lukitukseen.
Laittaessasi työntöaisaa laitteeseen,
Käännä laite taaksepäin kuljetuspyöri-
aseta kaapeli työntöaisan rakoon siten,
en varaan ja työnnä käyttöpaikalle.
että se ei jää puristuksiin.
Kuva 4, katso kansilehti
Käyttöaineiden täyttäminen
Työnnä työntöaisa laitteeseen vastee-
Varo
seen asti.
Vaurioitumisvaara. Käytä vain suositeltuja
Ruuvaa 4 ruuvia paikalleen ja kiristä ne.
puhdistusaineita. Käytettäessä muita puh-
Täytä puhdistusainesäiliö vedellä.
distusaineita käyttäjä on vastuussa käyttö-
Liitä virtapistoke pistorasiaan.
turvallisuudesta ja tapaturmavaarasta.
Aseta valintakytkin asentoon "l".
Käytä vain puhdistusaineita, joissa ei ole
Paina puhdistusaineliuos -painiketta ja
liuottimia, suola- eikä fluorivetyhappoa.
huuhtele vesijärjestelmä.
Noudata pesuaineiden turvallisuusohjeita.
Aseta valintakytkin asentoon "0".
Älä käytä mitään syttyviä, räjähtäviä, syö-
Vedä virtapistoke irti pistorasiasta.
vyttäviä tai myrkyllisiä käyttö- tai apuainei-
ta.
Ennen käyttöönottoa
Ohje
Harjojen asennus
Noudata annostusohjeita.
Suositeltavat puhdistusaineet:
Aseta työntöaisa pystysuoraan ja nap-
sauta lukitukseen.
Käyttö Puhdistusaine
Käännä laite selälleen työntöaisan va-
Mattojen välipuhdistus RM 768 iCapsol
raan.
Annostelu 6%:
Pistä harjatela vääntiöön ja napsauta
vastapuoli lukitukseen.
Täyttömäärä vesi
Täyttömäärä RM 768
[litraa]
[ml]
Käyttö
160
2 120
Vaara
3 180
Sähköiskun aiheuttama loukkaantumisvaara.
Tarkasta ennen jokaista käyttökertaa, ettei
4 240
laitteen verkkojohto ole vahingoittunut. Lai-
5 300
tetta ei saa käyttää, jos verkkojohto on va-
6 360
hingoittunut. Anna sähköalan
7 420
ammattilaisen vaihtaa vaurioitunut verkko-
johto.
– 3
85FI

Puhdistusainesäiön poistaminen
Käytön lopetus
Jotta puhdistusainesäiliö voitaisiin täyttää
Aseta työntöaisa pystysuoraan ja nap-
huuhtelualtaassa, puhdistusainesäiliön voi
sauta lukitukseen.
irrottaa laitteesta:
Aseta laite säilytysaltaaseen (suojaa
Paina puhdistusainelutkun liitintä yh-
harjateloja).
teen ja vedä se irti säiliöstä.
Suorita "puhdistustyön jälkeen" mukai-
Irrota puhdistusainesäiliön kannattimen
set huoltotyöt (katso "Huolto ja hoito").
molemmat yläpäät laitteesta.
Aseta valintakytkin asentoon "0".
Nosta puhdistusainesäiliö pois laitteesta.
Vedä virtapistoke irti pistorasiasta.
Täytä puhdistusainesäiliö.
Kierrä verkkoliitäntäjohto työntöaisassa
Avaa puhdistusainesäiliön kansi.
olevien kaapelikoukkujen ympärille.
Täytä puhdistusainesäiliö vedellä, jätä
Säilytä laite kuivassa tilassa.
kuitenkin riittävästi tilaa puhdistusai-
neelle.
Kuljetus
Lisää puhdistusainetta tuoteohjeiden
Varo
mukaisesti.
Loukkaantumis- ja vahingoittumisvaara-
Sulje puhdistusainesäiliön kansi.
vaara! Huomioi kuljetettaessa laitteen pai-
Aseta puhdistusainesäiliö takaisin lait-
no.
teeseen.
Kun kuljetat laitetta ajoneuvoissa, var-
Puhdistus
mista laite liukumisen ja kaatumisen va-
ralta kulloinkin voimassa olevien
Imuroi irtonainen lika ennen puhdista-
ohjesääntöjen mukaisesti.
mista pölynimurilla pois.
Ota suutin suuttimen pitimestä ja kierrä
Säilytys
se puhdistusaineliuoksen ulostuloon.
Varo
Liitä virtapistoke pistorasiaan.
Loukkaantumis- ja vahingoittumisvaara-
Vapauta työntöaisa jalalla lukituksesta
vaara! Huomioi säilytettäessä laitteen pai-
ja käännä työntöaisaa taaksepäin.
no.
Aseta valintakytkin asentoon "l".
Tätä laitetta saa säilyttää vain sisätiloissa.
Paina harjakäyttö-painiketta - harjat
pyörivät.
Hoito ja huolto
Paina puhdistusaineliuos -painiketta -
Vaara
puhdistusainetta levitetään niin kauan
kuin painike on painettuna.
Loukkaantumisvaara!
Virtapistoke on vedettävä irti pistorasiasta
Työnnä laitetta työntöaisasta käsiteltä-
ennen kaikkia laitteeseen kohdistuvia huol-
vän pinnan ylitse.
totöitä.
Varo
Varo
Lattiapäällysteen vaurioitumisvaara. Älä
Mahdollisesti ulosvaluva vesi aiheuttaa lait-
käytä laitetta, kun se on yhdessä kohtaa
teelle vahingoittumisvaaran. Poista puhdis-
liikkumatta.
tusainesäiliö ennen laitteeseen kohdistuvia
Ohje
töitä.
Levitä puhdistusainetta eteenpäin työnnet-
täessä. Harjaa sitten puhdistusaine ristik-
käisiin suuntiin maton sisään.
86 FI
– 4

Huoltokaavio
Vuosittain
Anna asiakaspalvelun suorittaa määrä-
Työn jälkeen
tyt tarkastukset.
Varo
Huoltotoimenpiteet
Vaurioitumisvaara. Älä ruiskuta laitetta
puhtaaksi vedellä äläkä käytä aggressiivi-
Harjatelojen vaihto
sia puhdistusaineita.
Aseta työntöaisa pystysuoraan ja nap-
Tarkasta, onko sähköjohto tai pistoke
sauta lukitukseen.
vahingoittunut. Vaihdata vialliset osat
Käännä laite selälleen työntöaisan va-
asiakaspalvelussa.
raan.
Tyhjennä puhdistusainesäiliö ja huuh-
Paina harjanvaihto-painiketta ulospäin
tele kuumalla vedellä (maks. 50 °C).
ja käännä samalla harjatela ulos.
Laita puhdistusainesäiliöön pieni määrä
Vedä harjatela ulos.
kuumaa vettä.
Pistä uusi harjatela vääntiöön ja nap-
Aseta puhdistusainesäiliö takaisin lait-
sauta lukitukseen.
teeseen.
Huoltosopimus
Huuhtele suutin painamalla puhdistus-
Laitteen luotettavaa käyttöä varten voidaan
aineliuos-painiketta.
solmia huoltosopimuksia asianmukaisen
Poista suutin, huuhtele virtaavassa ve-
Kärcher- myyntitoimiston kanssa.
dessä ja aseta työntöaisan suutinpidik-
keeseen.
Tyhjennä puhdistusainesäiliö.
Siivilän puhdistus
Irrota harjat ja huuhtele lämpimällä ve-
dellä.
Puhdista harjatunneli.
Aseta harjat takaisin paikalleen niiden
paikkaa vaihtaen, näin niiden kestoaika
pitenee.
Irrota puhdistusaineletkun liitin, näin es-
tetään veden epätoivottu ulosvalumi-
nen suuttimesta.
Vedä roskasäiliö ulos ja puhdista se.
Puhdista laite ulkoa kostealla, miedolla
pesulipeällä kostutetulla liinalla.
Tarkasta harjojen kuluneisuus, vaihda
ne tarvittaessa uusiin.
Harjakset ovat loppuunkuluneet, kun
harjakset ovat saman pituisia kuin kel-
taiset merkkiharjakset.
Viikoittain
Tarkasta, onko laitteessa vahingoittu-
mia, anna asiakaspalvelun korjata va-
hingoittumat.
Tarkasta suuttimien suihkutuskuvio.
Puhdista tai uusi suuttimet tarvittaessa.
– 5
87FI

Häiriöapu
Vaara
Loukkaantumisvaara!
Virtapistoke on vedettävä irti pistorasiasta
ennen kaikkia laitteeseen kohdistuvia huol-
totöitä.
Varo
Mahdollisesti ulosvaluva vesi aiheuttaa lait-
teelle vahingoittumisvaaran. Poista puhdis-
tusainesäiliö ennen laitteeseen kohdistuvia
töitä.
Häiriöiden sattuessa, joita ei voida poistaa
tämän taulukon avulla, on kutsuttava asia-
kaspalvelu paikalle.
Häiriöt
Häiriö Korjaus
Laitetta ei voida käynnistää Tarkasta, onko virtapistoke liitetty verkkoon.
Palauta ylikuormasuoja toimintaan painamalla se sisään.
Tarkasta, ovatko harjat juuttuneet vierasesineistä johtu-
en, poista esineet tarvittaessa.
Puhdistusainetta levittyy liian
Puhdista sihti.
vähän tai ei ollenkaan
Poista suutin, huuhtele virtaavassa vedessä ja aseta ta-
kaisin paikalleen.
Vaihda suutin uuteen.
Tarkasta puhdistusaineletkun liittimen kunnollisen istu-
vuus.
Riittämätön puhdistustulos Tarkasta harjojen kuluneisuus, vaihda ne tarvittaessa
uusiin.
Tarkasta puhdistusaineen annostelu.
Laite tärisee Tarkasta harjojen kunnollinen kiinnitys.
Vaihda harjatelat keskenään.
Aseta harjatelat n. 15 minuutiksia kuumaan veteen (n.
80°C).
88 FI
– 6

Tekniset tiedot
Teho
Nimellisjännite V Hz 230 / 1~50
Keskimääräinen tehonotto W 370
Suurin sallittu verkkovastus Ohmia (0.326+j0.204)
Puhdistusharjat
Työleveys mm 400
Harjan halkaisija mm 90
Harjan kierrosluku 1/min 470
Puhdistusainepumpun paine MPa 0,34
Puhdistusainepumpun pumppausmäärä l/min 0,38
Mitat ja painot
Teoreettinen pintateho m²/h 300
Puhdistusainesäiliön tilavuus l 7,5
Pituus mm 400
Leveys mm 470
Korkeus mm 1160
Kuljetuspaino kg 25
Sallittu kokonaispaino kg 33
Mitatut arvot EN 60335-2-72 mukaisesti
2
Käsi-käsivarsi tärinäarvo m/s
<2,5
2
Epävarmuus K m/s
1
Äänenpainetaso L
pA
dB(A) 68
Epävarmuus K
pA
dB(A) 3
Äänitehon taso L
WA
dB(A) 79
Epävarmuus K
WA
dB(A) 6
– 7
89FI

EU-standardinmukaisuusto-
Takuu
distus
Kussakin maassa ovat voimassa valtuutta-
mamme myyntiorganisaation julkaisemat
Vakuutamme, että alla mainitut tuotteet
takuuehdot. Materiaali- ja valmistusvirheis-
vastaavat suunnittelultaan ja rakenteeltaan
tä aiheutuvat virheet laitteessa korjaamme
sekä valmistustavaltaan EU-direktiivien
takuuaikana maksutta. Takuutapauksessa
asianomaisia turvallisuus- ja terveysvaati-
ota yhteys ostotositteen kanssa jälleen-
muksia. Jos tuotteeseen/tuotteisiin teh-
myyjään tai lähimpään valtuutettuun huol-
dään muutoksia, joista ei ole sovittu
toon.
kanssamme, tämä vakuutus ei ole enää
voimassa.
Varusteet ja varaosat
Tuote: Pesevä imuri
– Vain sellaisten lisävarusteiden ja vara-
Tyyppi: 1.006-xxx
osien käyttö on sallittua, jotka valmista-
Yksiselitteiset EU-direktiivit
ja on hyväksynyt. Alkuperäiset
2006/42/EY (+2009/127/EY)
2004/108/EY
lisävarusteet ja varaosat takaavat, että
Sovelletut harmonisoidut standardit
laitetta voidaan käyttää turvallisesti ja
EN 55014–1: 2006+A1: 2009+A2: 2011
häiriöttömästi.
EN 55014–2: 1997+A1: 2001+A2: 2008
– Tärkeimpien osien varaosaluettelo löy-
EN 60335–1
tyy tämän käyttöohjeen lopusta.
EN 60335–2–72
– Saat lisätietoja varaosista osoitteesta
EN 61000–3–2: 2006+A1: 2009+A2: 2009
www.karcher.fi, osiosta Huolto.
EN 61000–3–3: 2008
EN 62233: 2008
Sovelletut kansalliset standardit
-
Allekirjoittaneet toimivat yrityksen johton
puolesta ja sen valtuuttamina.
CEO
Head of Approbation
Dokumentointivaltuutettu:
S. Reiser
Alfred Kärcher GmbH & Co. KG
Alfred-Kärcher-Str. 28 - 40
71364 Winnenden (Germany)
Puh.: +49 7195 14-0
Faksi: +49 7195 14-2212
Winnenden, 2013/02/01
90 FI
– 8

Πριν χρησιμοποιήσετε τη συ-
Λειτουργία
σκευή σας για πρώτη φορά, δια-
Ελληνικά
βάστε αυτές τις πρωτότυπες οδηγίες
Το απορρυπαντικό ταπήτων απλώνεται με
χρήσης, ενεργήστε σύμφωνα με αυτές και
το σύστημα ψεκασμού. Δύο κυλινδρικές
κρατήστε τις για μελλοντική χρήση ή για τον
βούρτσες με αντίθετη κίνηση απλώνουν το
επόμενο ιδιοκτήτη.
απορρυπαντικό στον τάπητα
. Ο τάπητας
στεγνώνει σε σχετικά σύντομο χρόνο και
Πίνακας περιεχομένων
μπορείτε να περπατήσετε επάνω του. Οι
ρύποι που έχουν δεσμευθεί στο απορρυ-
Υποδείξεις ασφαλείας. . . . . EL . . .1
παντικό ταπήτων αναρροφώνται μετά το
Λειτουργία . . . . . . . . . . . . . EL . . .1
στέγνωμα με μια ηλεκτρική σκούπα. Το
Χρήση σύμφωνα με τους κανονι-
πλάτος εργασίας των 430 mm και η δεξα-
σμούς . . . . . . . . . . . . . . . . . EL . . .1
μενή απορρυπαντικού με χωρητικότητα
Προστασία περιβάλλοντος . EL . . .2
7,5 l επιτρέπουν έναν αποτελεσματικό κα-
Στοιχεία χειρισμού . . . . . . . EL . . .2
θαρισμό.
Κατά την πρώτη ενεργοποίηση EL . . .3
Η σύνδεση με το
δίκτυο παροχής ρεύματος
Πριν τη θέση σε λειτουργία. EL . . .3
επιτρέπει μια υψηλή απόδοση χωρίς περι-
Λειτουργία . . . . . . . . . . . . . EL . . .3
ορισμό στη διάρκεια χρήσης.
Μεταφορά. . . . . . . . . . . . . . EL . . .5
Υπόδειξη
Αποθήκευση. . . . . . . . . . . . EL . . .5
Ανάλογα με την εκάστοτε εργασία καθαρι-
Φροντίδα και συντήρηση . . EL . . .5
σμού το μηχάνημα μπορεί να εξοπλιστεί με
Αντιμετώπιση βλαβών . . . . EL . . .6
διάφορα εξαρτήματα. Ζητήστε τον κατάλογό
Τεχνικά χαρακτηριστικά . . . EL . . .7
μας ή επισκεφθείτε μας στο διαδίκτυο στη
Δήλωση Συμμόρφωσης των Ε.Κ. EL . . .8
διεύθυνση www.Kaercher.com.
Εγγύηση . . . . . . . . . . . . . . . EL . . .8
Χρήση σύμφωνα με τους
Εξαρτήματα και ανταλλακτικά EL . . .8
κανονισμούς
Υποδείξεις ασφαλείας
Χρησιμοποιείτε αυτή τη συσκευή αποκλει-
Πριν από την πρώτη χρήση του μηχανήματος
στικά και μόνο σύμφωνα με τα
στοιχεία σ'
διαβάστε και τηρήστε τις παρούσες οδηγίες λει-
αυτές τις οδηγίες χειρισμού.
τουργίας καθώς και το συνημμένο
έντυπο υπο-
– Αυτή η συσκευή καθαρισμού ταπήτων
δείξεων ασφαλείας για μηχανικές σκούπες και
προορίζεται για τον καθαρισμό βελου-
μηχανήματα ψεκασμού, 5.956-251.0
δωτών με χαμηλό πέλος, με κόμπους
και βελονωτών επιστρώσεων δαπέδων
Σύμβολα στο εγχειρίδιο οδηγιών
για εσωτερικούς χώρους.
Κίνδυνος
– Η θερμοκρασία χρήσης κυμαίνεται με-
Για άμεσα επαπειλούμενο κίνδυνο, ο οποί-
ταξύ +5°C και +40°C.
ος μπορεί να οδηγήσει σε σοβαρό τραυμα-
– Η συσκευή επιτρέπεται να εξοπλίζεται
τισμό ή θάνατο.
μόνον με γνήσια εξαρτήματα και ανταλ-
몇 Προειδοποίηση
λακτικά.
– Η συσκευή σχεδιάστηκε για τον καθαρι-
Για ενδεχόμενη επικίνδυνη κατάσταση, η
σμό δαπέδων εσωτερικών ή στεγασμέ-
οποία μπορεί να οδηγήσει σε σοβαρό τραυ-
νων χώρων.
ματισμό ή θάνατο.
– Το παρόν μηχάνημα προορίζεται απο-
Προσοχή
κλειστικά για επαγγελματική χρήση.
Για ενδεχόμενη επικίνδυνη κατάσταση, η
οποία μπορεί να οδηγήσει σε ελαφρό τραυ-
ματισμό ή υλικές βλάβες.
– 1
91EL

Προστασία περιβάλλοντος
Στοιχεία χειρισμού
Τα υλικά συσκευασίας είναι ανα-
κυκλώσιμα. Μην πετάτε τις συ-
σκευασίες στα οικιακά
απορρίμματα, αλλά σε ειδικό σύ-
στημα επαναχρησιμοποίησης.
Οι παλιές συσκευές περιέχουν
ανακυκλώσιμα υλικά, τα οποία
θα πρέπει να μεταφέρονται σε
σύστημα επαναχρησιμοποίη-
σης. Οι μπαταρίες, τα λάδια και
παρόμοια υλικά δεν επιτρέπεται
να καταλήγουν στο περιβάλλον.
Για το
λόγο αυτόν η διάθεση πα-
λιών συσκευών πρέπει να γίνε-
ται σε κατάλληλα συστήματα
συλλογής.
Υποδείξεις για τα συστατικά (REACH)
Ενημερωμένες πληροφορίες για τα συστα-
τικά μπορείτε να βρείτε στη διεύθυνση:
www.kaercher.com/REACH
1 Διακόπτης συσκευής
2 Πλήκτρο διαλύματος καθαρισμού
3 Λαβή μεταφοράς
4 Πλήκτρο κίνησης βουρτσών
5 Συγκρατητής καλωδίου
6 Δοχείο απορρυπαντικού
7 Στήριγμα φιάλης ψεκασμού
8 Κλείδωμα λαβής ώθησης
9 Πλήκτρο αλλαγής βουρτσών
10 Δοχείο απορριμμάτων
11 Σίτα
12 Έξοδος διαλύματος καθαρισμού
13 Κυλινδρική βούρτσα
14 Ασφάλεια υπερφόρτωσης του
μηχανι-
σμού κίνησης βουρτσών
15 Στήριγμα δεξαμενής απορρυπαντικού
16 Καπάκι δεξαμενής απορρυπαντικού
17 Σύνδεσμος ελαστικού σωλήνα απορρυ-
παντικού
18 Ακροφύσιο, διαθέσιμο εδώ στην κατά-
σταση παράδοσης
19 Στήριγμα ακροφυσίου
92 EL
– 2

Κατά την πρώτη
Λειτουργία
ενεργοποίηση
Κίνδυνος
Εικόνα 1, βλ. διπλωμένη σελίδα
Κίνδυνος τραυματισμού λόγω ηλεκτροπλη-
Αφαιρέστε τη συσκευή και τη λαβή ώθη-
ξίας.
σης από τη συσκευασία και τοποθετή-
Ελέγχετε τους ηλεκτρικούς αγωγούς της
στε τα το ένα πάνω στο άλλο, όπως
συσκευής για βλάβες έπειτα από κάθε χρή-
φαίνεται στην εικόνα.
ση. Μην χρησιμοποιείτε τη συσκευή, εάν το
Εικόνα 2, βλ. διπλωμένη σελίδα
καλώδιο είναι ελαττωματικό. Αναθέστε σε
Συνδέστε με καλώδιο τη συσκευή και τη
κάποιον ηλεκτρολόγο να αντικαταστήσει το
λαβή ώθησης.
ελαττωματικό καλώδιο.
Κίνδυνος τραυματισμού λόγω ηλεκτροπλη-
Εισάγετε το βύσμα στη λαβή ώθησης.
ξίας εξαιτίας ελαττωματικού καλωδίου τρο-
Εικόνα 3, βλ. διπλωμένη
σελίδα
φοδοσίας δικτύου. Μην επιτρέπετε στο
Κατά την εισαγωγή της λαβής ώθησης
καλώδιο τροφοδοσίας δικτύου να έρθει σε
στη συσκευή περάστε το καλώδιο στη
επαφή με περιστρεφόμενες βούρτσες ή
λαβή ώθησης μέσω της σχισμής, έτσι
μπλοκ.
ώστε να μην συνθλιβεί.
Εικόνα 4, βλ. διπλωμένη σελίδα
Υπόδειξη
Εισάγετε τη λαβή ως το τέρμα στη συ-
Για άμεση απενεργοποίηση του μηχανι-
σκευή.
σμού κίνησης των βουρτσών ρυθμίστε το
Βιδώστε και σφίξτε τους 4 συνοδευτι-
διακόπτη στη θέση "0".
κούς κοχλίες.
Οδήγηση της μηχανής
Γεμίστε τη δεξαμενή απορρυπαντικού
Τοποθετήστε κατακόρυφα τη λαβή
με νερό.
ώθησης και ασφαλίστε την.
Εισάγετε τον ρευματολήπτη στην πρί-
Γείρετε το μηχάνημα προς τα πίσω
ζα.
πάνω στους τροχούς και σπρώξτε το
Ρυθμίστε τον διακόπτη της συσκευής
στον σημείο εφαρμογής.
στη θέση ”Ι”.
Πιέστε το πλήκτρο διαλύματος καθαρι-
Πλήρωση με υλικά λειτουργίας
σμού και ξεπλύνετε το σύστημα νερού.
Προσοχή
Ρυθμίστε τον διακόπτη της συσκευής
Κίνδυνος βλάβης. Χρησιμοποιείτε μόνον τα
στο ”0”.
συνιστώμενα απορρυπαντικά. Για άλλα
Βγάλτε το φις από την πρίζα.
απορρυπαντικά την ευθύνη για τον αυξημέ-
Πριν τη θέση σε λειτουργία
νο κίνδυνο από άποψη ασφάλειας λειτουρ-
γίας, ατυχήματος και μειωμένης διάρκειας
Συναρμολόγηση των βουρτσών
ζωής της συσκευής φέρει ο χρήστης. Χρη-
σιμοποιείτε μόνον απορρυπαντικά ελεύθε-
Τοποθετήστε κατακόρυφα τη λαβή
ρα από διαλύτες, υδροχλωρικό και
ώθησης και ασφαλίστε την.
υδροφθορικό οξύ.
Γείρετε τη
συσκευή προς τα πίσω και
Λάβετε υπόψη τις υποδείξεις ασφαλείας
ακουμπήστε την επάνω στη λαβή ώθη-
στο
απορρυπαντικό.
σης.
Να μην χρησιμοποιείται με εύφλεκτα, εκρη-
Εισάγετε την κυλινδρική βούρτσα στην
κτικά, διαβρωτικά ή δηλητηριώδη υλικά ερ-
υποδοχή και ασφαλίστε την στην αντί-
γασίας ή βοηθητικά υλικά.
θετη πλευρά.
– 3
93EL

Υπόδειξη
Καθαρισμός
Λάβετε υπόψη τις υποδείξεις δοσολογίας.
Πριν τον καθαρισμό, αναρροφήστε τους
Προτεινόμενα απορρυπαντικά:
ελεύθερους ρύπους με μια ηλεκτρική
Χρήση Απορρυπαντι-
σκούπα.
κό
Αφαιρέστε το ακροφύσιο από το στήριγ-
Ενδιάμεσος καθαρι-
RM 768 iCapsol
μα και βιδώστε το στην έξοδο του διαλύ-
σμός ταπήτων
ματος καθαρισμού.
Εισάγετε τον ρευματολήπτη στην πρίζα.
Δοσολογία 6%:
Πιέστε με το πόδι την ασφάλεια της λα-
Ποσότητα πλήρω-
Ποσότητα πλήρω-
βής ώθησης και μετακινήστε τη λαβή
σης νερού [λίτρα]
σης RM 768 [ml]
ώθησης
προς τα πίσω.
160
Ρυθμίστε τον διακόπτη της συσκευής
2 120
στη θέση ”Ι”.
3 180
Πιέστε το πλήκτρο κίνησης βουρτσών -
οι βούρτσες περιστρέφονται.
4 240
Πιέστε το πλήκτρο διαλύματος καθαρι-
5 300
σμού - το απορρυπαντικό απλώνεται
6 360
για όσο διάστημα κρατάτε πιεσμένο το
7 420
πλήκτρο.
Οδηγήστε τη συσκευή με τη λαβή ώθη-
Αφαίρεση της δεξαμενής απορρυπαντι-
σης επάνω στην υπό καθαρισμό επιφά-
κού
νεια.
Η δεξαμενή απορρυπαντικού μπορεί να
Προσοχή
αφαιρεθεί από τη συσκευή για να γεμίσει
Κίνδυνος βλάβης στο δάπεδο. Μην χρησι-
απορρυπαντικό μέσα στο νιπτήρα.
μοποιείτε τη συσκευή επί τόπου.
Συμπιέστε το σύνδεσμο του ελαστικού
σωλήνα απορρυπαντικού και αφαιρέ-
Υπόδειξη
στε τον από τη δεξαμενή.
Απλώστε το διάλυμα καθαρισμού κατά την
Αναρτήστε στη συσκευή τα δύο άνω
κίνηση προς τα εμπρός. Στη συνέχεια
άκρα του στηρίγματος της δεξαμενής
βουρτσίστε το διάλυμα καθαρισμού με
σταυρωτές κινήσεις πάνω στον τάπητα.
απορρυπαντικού.
Ανασηκώστε τη δεξαμενή απορρυπα-
Τερματισμός λειτουργίας
ντικού.
Τοποθετήστε κατακόρυφα τη λαβή
Πλήρωση του δοχείου απορρυπαντικού
ώθησης και ασφαλίστε την.
Ανοίξτε το καπάκι της δεξαμενής απορ-
Τοποθετήστε τη συσκευή στη λεκάνη
ρυπαντικού.
απόθεσης (δεν
καταπονούνται οι βούρ-
Γεμίστε τη δεξαμενή απορρυπαντικού
τσες).
με νερό αφήνοντας αρκετό χώρο για το
Εκτελέστε τις εργασίες συντήρησης του
απορρυπαντικό.
τμήματος "Μετά την εργασία" (βλ. "Συ-
Προσθέστε απορρυπαντικό σύμφωνα
ντήρηση και φροντίδα").
με τα στοιχεία του προϊόντος.
Ρυθμίστε τον διακόπτη της συσκευής
στο ”0”.
Κλείστε το καπάκι της δεξαμενής απορ-
ρυπαντικού.
Βγάλτε το φις από την πρίζα.
Τοποθετήστε κατά περίπτωση τη δεξα-
Τυλίξτε το καλώδιο τροφοδοσίας στο
μενή απορρυπαντικού
στο μηχάνημα.
άγκιστρο καλωδίου της λαβής ώθησης.
Αποθηκεύστε τη συσκευή σε στεγνό
χώρο.
94 EL
– 4

Συμπληρώστε μια μικρή ποσότητα καυ-
Μεταφορά
τού νερού στη δεξαμενή απορρυπαντι-
κού.
Προσοχή
Επανατοποθετήστε τη δεξαμενή απορ-
Κίνδυνος τραυματισμού και βλάβης! Κατά
ρυπαντικού στη
συσκευή.
τη μεταφορά λάβετε υπόψη το βάρος της
Ξεπλύνετε το ακροφύσιο πιέζοντας το
συσκευής.
πλήκτρο διαλύματος καθαρισμού.
Κατά τη μεταφορά με οχήματα, ασφαλί-
στε τη συσκευή έναντι ενδεχόμενης ολί-
Αφαιρέστε το ακροφύσιο, ξεπλύνετέ το
σθησης και ανατροπής, σύμφωνα με τις
με τρεχούμενο νερό και τοποθετήστε το
εκάστοτε ισχύουσες κατευθυντήριες
στην υποδοχή ακροφυσίου της λαβής
οδηγίες.
ώθησης.
Αδειάστε το δοχείο απορρυπαντικού.
Αποθήκευση
Καθαρισμός της σήτας
Προσοχή
Αποσυναρμολογήστε τις βούρτσες και
ξεπλύνετέ τις με ζεστό νερό.
Κίνδυνος τραυματισμού και βλάβης! Κατά
Καθαρίστε τη σήραγγα των βουρτσών.
την αποθήκευση λάβετε υπόψη το βάρος
της συσκευής.
Επανατοποθετήστε
τις βούρτσες αλλά-
Η
συσκευή αυτή μπορεί να αποθηκεύεται
ζοντας τις θέσεις τους, για να αυξήσετε
μόνο σε εσωτερικούς χώρους.
τη διάρκεια ζωής.
Αφαιρέστε το σύνδεσμο του ελαστικού
Φροντίδα και συντήρηση
σωλήνα απορρυπαντικού, για να απο-
τρέψετε την ακούσια εκροή νερού από
Κίνδυνος
το ακροφύσιο.
Κίνδυνος τραυματισμού!
Τραβήξτε προς τα έξω και καθαρίστε το
Πριν από όλες τις εργασίες στο μηχάνημα,
δοχείο απορριμμάτων.
βγάζετε οπωσδήποτε το φις από την πρίζα.
Καθαρίζετε εξωτερικά το μηχάνημα με
Προσοχή
πανί βρεγμένο σε διάλυμα
ήπιου απορ-
Κίνδυνος βλάβης στη συσκευή λόγω του
ρυπαντικού.
εξερχόμενου νερού. Αφαιρέστε τη δεξαμενή
Ελέγξτε τον εύκαμπτο σωλήνα αναρρό-
απορρυπαντικού πριν τις εργασίες στη συ-
φησης για τυχόν διαρροές, αντικατα-
σκευή.
στήστε τον εάν είναι απαραίτητο.
Πρόγραμμα συντήρησης
Οι βούρτσες έχουν φθαρεί, όταν έχουν
το ίδιο μήκος με τις κίτρινες ενδεικτικές
Μετά την εργασία
βούρτσες.
Προσοχή
Εβδομαδιαίως
Κίνδυνος βλάβης. Μην ψεκάζετε τη συ-
Εξετάστε τη συσκευή για βλάβες και
σκευή με νερό και μην χρησιμοποιείτε ισχυ-
αναθέστε την αντιμετώπισή τους στην
ρά απορρυπαντικά.
υπηρεσία εξυπηρέτησης πελατών.
Ελέγξτε το καλώδιο ρεύματος και το φις
Ελέγξτε την ποιότητα
ψεκασμού του
για βλάβες. Αναθέστε στην υπηρεσία
ακροφυσίου.
εξυπηρέτησης πελατών να αντικατα-
Καθαρίστε ή αντικαταστήστε το ακρο-
στήσει τα ελαττωματικά εξαρτήματα.
φύσιο κατά περίπτωση.
Αδειάστε τη δεξαμενή απορρυπαντικού
και ξεπλύνετέ την με καυτό νερό (έως
Ετησίως
50 °C).
Απευθύνεστε στην υπηρεσία τεχνικής
εξυπηρέτησης πελατών για τον προδια-
γραμμένο έλεγχο.
– 5
95EL

Εργασίες συντήρησης
Σύμβαση συντήρησης
Για την αξιόπιστη λειτουργία της συσκευής,
Αντικατάσταση των κυλινδρικών βουρ-
μπορείτε να συνάψετε συμβάσεις συντήρη-
τσών
σης με το αρμόδιο γραφείο πωλήσεων της
Τοποθετήστε κατακόρυφα τη λαβή
Kärcher.
ώθησης και ασφαλίστε την.
Αντιμετώπιση βλαβών
Γείρετε τη συσκευή προς τα πίσω και
ακουμπήστε την επάνω στη λαβή ώθη-
Κίνδυνος
σης.
Κίνδυνος τραυματισμού!
Πιέστε προς τα έξω το πλήκτρο αντικα-
Πριν από όλες τις εργασίες στο μηχάνημα,
τάστασης των βουρτσών και ταυτόχρο-
βγάζετε οπωσδήποτε το φις από την πρίζα.
να μετακινήστε την κυλινδρική βούρτσα
Προσοχή
προς τα έξω.
Κίνδυνος βλάβης στη συσκευή λόγω του
Τραβήξτε προς τα έξω τον κύλινδρο
εξερχόμενου νερού. Αφαιρέστε τη δεξαμενή
βουρτσών.
απορρυπαντικού πριν τις εργασίες στη συ-
Εισάγετε και ασφαλίστε τον κύλινδρο
σκευή.
της βούρτσας στον υποδοχέα.
Σε περίπτωση βλαβών, οι οποίες δεν μπο-
ρούν να αντιμετωπιστούν με τη βοήθεια αυ-
τού του
πίνακα, καλέστε την υπηρεσία
τεχνικής εξυπηρέτησης πελατών.
Βλάβες
Βλάβη Αντιμετώπιση
Η συσκευή δεν ξεκινά Ελέγξτε εάν βρίσκεται το φις στην πρίζα.
Πιέστε την ασφάλεια υπερφόρτωσης για να την επανα-
φέρετε.
Ελέγξτε τις βούρτσες για ξένα σώματα και αφαιρέστε τα.
Ελάχιστη ή καθόλου εφαρμογή
Καθαρίστε το φίλτρο.
απορρυπαντικού
Αφαιρέστε το ακροφύσιο, ξεπλύνετέ το με τρεχούμενο
νερό και τοποθετήστε το ξανά.
Αντικαταστήστε το ακροφύσιο
.
Ελέγξτε τη σωστή εφαρμογή του συνδέσμου ελαστικού
σωλήνα απορρυπαντικού.
Μη ικανοποιητικό αποτέλεσμα
Ελέγξτε τον εύκαμπτο σωλήνα αναρρόφησης για τυχόν
καθαρισμού
διαρροές, αντικαταστήστε τον εάν είναι απαραίτητο.
Ελέγξτε τη δοσολόγηση απορρυπαντικού.
Το μηχάνημα δονείται Ελέγξτε τη σωστή θέση των βουρτσών.
Ανταλλάξτε τις κυλινδρικές βούρτσες.
Τοποθετήστε τις κυλινδρικές βούρτσες για περ. 15 λεπτά
σε καυτό
νερό (περ. 80°C)
96 EL
– 6

Τεχνικά χαρακτηριστικά
Ισχύς
Ονομαστική τάση V/Hz 230 / 1~50
Μέση ισχύς εισόδου W 370
Μέγιστη επιτρεπόμενη αντίσταση δικτύου Ohm (0.326+j0.204)
Βούρτσες καθαρισμού
Εύρος εργασίας mm 400
Διάμετρος βουρτσών mm 90
Ταχύτητα περιστροφής βουρτσών 1/min 470
Πίεση αντλίας απορρυπαντικού MPa 0,34
Διακινούμενη ποσότητα αντλίας απορρυπαντικού l/min 0,38
Διαστάσεις και βάρη
Θεωρητική επιφανειακή απόδοση m²/h 300
Όγκος δεξαμενής απορρυπαντικού l 7,5
Μήκος mm 400
Πλάτος mm 470
Ύψος mm 1160
Βάρος μεταφοράς kg 25
Επιτρεπόμενο συνολικό βάρος kg 33
Μετρούμενες τιμές κατά EN 60335-2-72
2
Κραδασμοί στο χέρι/στο βραχίονα m/s
<2,5
2
Αβεβαιότητα K m/s
1
Επιτρεπόμενη στάθμη ηχητικής ισχύος L
pA
dB (A) 68
Αβεβαιότητα K
pA
dB (A) 3
Επιτρεπόμενη στάθμη ηχητικής ισχύος L
WA
dB (A) 79
Αβεβαιότητα K
WA
dB (A) 6
– 7
97EL

Δήλωση Συμμόρφωσης των
Εγγύηση
Ε.Κ.
Σε κάθε χώρα ισχύουν οι όροι εγγύησης
που εκδόθηκαν από την αρμόδια εταιρία
Δια της παρούσης δηλώνουμε ότι το μηχά-
μας προώθησης πωλήσεων. Αναλαμβά-
νημα που χαρακτηρίζεται παρακάτω, με
νουμε τη δωρεάν αποκατάσταση οποιασ-
βάση τη σχεδίαση και την κατασκευή του,
δήποτε βλάβης στη συσκευή σας,
εφόσον
υπό τη μορφή που διατίθεται στην αγορά,
οφείλεται σε αστοχία υλικού ή κατασκευα-
πληροί στις σχετικές βασικές απαιτήσεις
στικό σφάλμα, εντός της προθεσμίας που
ασφαλείας και υγιεινής των οδηγιών της
ορίζεται στην εγγύηση. Σε περίπτωση που
ΕΚ. Η παρούσα δήλωση παύει να ισχύει σε
επιθυμείτε να κάνετε χρήση της εγγύησης,
περίπτωση τροποποιήσεων του μηχανή-
παρακαλούμε απευθυνθείτε με την απόδει-
ματος
χωρίς προηγούμενη συνεννόηση
ξη αγοράς στο κατάστημα από το οποίο
μαζί μας.
προμηθευτήκατε τη συσκευή ή στην πλησι-
Προϊόν: Συσκευή ψεκασμού
έστερη εξουσιοδοτημένη υπηρεσία τεχνι-
Τύπος: 1.006-xxx
κής εξυπηρέτησης πελατών μας
.
Σχετικές οδηγίες των Ε.Κ.
2006/42/EK (+2009/127/EK)
Εξαρτήματα και ανταλλακτικά
2004/108/EΚ
Εφαρμοσθέντα εναρμονισμένα πρότυ-
– Επιτρέπεται να χρησιμοποιούνται μόνο
πα
εξαρτήματα και ανταλλακτικά, τα οποία
EN 55014–1: 2006+A1: 2009+A2: 2011
έχουν την έγκριση του κατασκευαστή
EN 55014–2: 1997+A1: 2001+A2: 2008
Τα γνήσια αξεσουάρ και ανταλλακτικά
EN 60335–1
παρέχουν την εγγύηση της ασφαλούς
EN 60335–2–72
και άψογης λειτουργίας της μηχανής
EN 61000–3–2: 2006+A1: 2009+A2: 2009
– Μία επιλογή των ανταλλακτικών που
EN 61000–3–3: 2008
χρειάζονται συχνότερα θα βρείτε στο τέ-
EN 62233: 2008
λος των οδηγιών χρήσης.
Εφαρμοσθέντα εθνικά πρότυπα
-
– Περισσότερες πληροφορίες σχετικά με
τα ανταλλακτικά μπορείτε να λάβετε στη
Οι υπογράφοντες ενεργούν κατ' εντολή του
διεύθυνση www.kaercher.com, τομέας
και με εξουσιοδότηση της διεύθυνσης της
Εξυπηρέτησης.
επιχείρησης.
CEO
Head of Approbation
Υπεύθυνος τεκμηρίωσης:
S. Reiser
Alfred Karcher GmbH & Co. KG
Alfred-Karcher-Str. 28 - 40
71364 Winnenden (Germany)
Τηλ.: +49 7195 14-0
Φαξ: +49 7195 14-2212
Winnenden, 2013/02/01
98 EL
– 8

Cihazın ilk kullanımından önce
Fonksiyon
bu orijinal kullanma kılavuzunu
Türkçe
okuyun, bu kılavuza göre davranın ve daha
Püskürtme sistemi ile halı temizlik maddesi
sonra kullanım veya cihazın sonraki sahip-
uygulanır. Karşılıklı çalışan iki fırça merda-
lerine vermek için bu kılavuzu saklayın.
nesi temizlik maddesini halıya işler. Halı, ol-
dukça kısa süre içinde tekrar kurur ve
İçindekiler
üzerinde dolaşılabilir. Kurutmadan sonra,
halı kurutucusuna bağlanmış kir bir fırçalı
Güvenlik uyarıları . . . . . . . . TR . . .1
emici ile emilir. 430 mm çalışma genişliği ve
Fonksiyon. . . . . . . . . . . . . . TR . . .1
7,5 litre hacimli temiz su tankı etkin bir te-
Kurallara uygun kullanım . . TR . . .1
mizlik yapılmasına olanak sağlar.
Çevre koruma. . . . . . . . . . . TR . . .2
Elektrikle çalışma modu, çalışma süresi kı-
Kumanda elemanları . . . . . TR . . .2
sıtlaması olmadan yüksek bir performans
İlk çalıştırmada . . . . . . . . . . TR . . .3
özelliği sağlar.
Cihazı çalıştırmaya başlama-
Not
dan önce . . . . . . . . . . . . . . TR . . .3
Temizlik görevine uygun olarak cihaz çeşitli
Çalıştırma. . . . . . . . . . . . . . TR . . .3
aksesuarlarla donatılabilir. Katalogumuza
Taşıma . . . . . . . . . . . . . . . . TR . . .5
başvurun ya da İnternet’te www.kaerc-
Depolama. . . . . . . . . . . . . . TR . . .5
her.com adresi altında bizi ziyaret edin.
Koruma ve Bakım. . . . . . . . TR . . .5
Kurallara uygun kullanım
Arızalarda yardım. . . . . . . . TR . . .6
Teknik Bilgiler . . . . . . . . . . . TR . . .7
Bu cihazı sadece bu kullanım kılavuzunda-
AB uygunluk bildirisi . . . . . . TR . . .8
ki bilgilere uygun olarak kullanın.
Garanti . . . . . . . . . . . . . . . . TR . . .8
– Bu halı temizleme cihazı ilmikler, kısa
Aksesuarlar ve yedek parçalar TR . . .8
tüylü kadife kaplamalar ve iç mekandaki
iğneli elyafların temizlenmesi için üretil-
Güvenlik uyarıları
miştir.
Cihazı kullanmaya başlamadan önce, bu
– Kullanım sıcaklığı aralığı +5V ve +40C
kullanım kılavuzu ve ekteki 5.956.251.0 nu-
arasındadır.
maralı fırçalı temizlik ve püskürtmeli çıkart-
– Cihaz, sadece orijinal aksesuarı ve ye-
ma cihazlarının güvenlik uyarıları
dek parçalarıyla donatılabilir.
broşürünü okuyun.
– Cihaz, iç bölümlerdeki zeminler ya da
kapalı yüzeylerin temizlenmesi için ge-
Kullanım kılavuzundaki semboller
liştirilmiştir.
Tehlike
– Bu cihaz sadece ticari kullanım için üre-
Ağır bedensel yaralanmalar ya da ölüme
tilmiştir.
neden olan direkt bir tehlike için.
몇 Uyarı
Ağır bedensel yaralanmalar ya da ölüme
neden olabilecek olası tehlikeli bir durum
için.
Dikkat
Hafif bedensel yaralanmalar ya da maddi
hasarlara neden olabilecek olası tehlikeli
bir durum için.
– 1
99TR

Çevre koruma
Kumanda elemanları
Ambalaj malzemeleri geri dö-
nüştürülebilir. Ambalaj malze-
melerini evinizin çöpüne atmak
yerine lütfen tekrar kullanılabile-
cekleri yerlere gönderin.
Eski cihazlarda, yeniden değer-
lendirme işlemine tabi tutulması
gereken değerli geri dönüşüm
malzemeleri bulunmaktadır.
Aküler, yağ ve benzeri maddeler
doğaya ulaşmamalıdır. Bu ne-
denle eski cihazları lütfen öngö-
rülen toplama sistemleri
aracılığıyla imha edin.
İçindekiler hakkında uyarılar (REACH)
İçindekiler hakkında ayrıntılı bilgileri bulabi-
leceğiniz adres:
www.kaercher.com/REACH
1 Cihaz şalteri
2 Temizlik çözeltisi tuşu
3 İtme yayı
4Fırça tahriki tuşu
5 Kablo tutucu
6 Temizlik maddesi deposu
7 Püskürtme şişesi tutucusu
8 İtme kolunun kilidi
9Fırça değişim tuşu
10 Süpürme haznesi
11 Süzgeç
12 Temizlik çözeltisi çıkışı
13 Fırça merdanesi
14 Fırça tahrikinin aşırı yük emniyeti
15 Temizlik maddesi tankının tutucusu
16 Temizlik maddesi tankının kapağı
17 Temizlik maddesi hortumunun bağlantısı
18 Meme, teslimat durumunda hazırlan-
mıştır
19 Meme tutucusu
100 TR
– 2

