Karcher Nettoyeur haute pression HDS 9-16-4 ST Gaz: !
!: Karcher Nettoyeur haute pression HDS 9-16-4 ST Gaz
-
14
–
Prietaiso šildymo sistema yra šiluminis
į
renginys. Parinkdami
prietaisui viet
ą
, laikykit
ė
s reikiam
ų
vietos teis
ė
s akt
ų
.
–
Naudokite tik patikrintus d
ū
mtraukius ir išmetam
ų
j
ų
duj
ų
vamzdžius.
–
Montuoti duj
ų
į
rang
ą
ir jungti
į
rengin
į
prie dujotiekio gali tik
specializuota, dujotiekio ir vandentiekio tarnybose užregis-
truota
į
mon
ė
.
–
Nustatyti ir remontuoti degikl
į
gali apmokyti Kärcher klient
ų
aptarnavimo tarnybos darbuotojai.
–
Dujotiekyje, kurio nominalusis skersmuo turi b
ū
ti ne mažesnis
nei 1 colis, turi b
ū
ti
į
rengtas manometras ir blokuojamasis
vožtuvas.
–
D
ė
l aukšto sl
ė
gio siurblio keliamos vibracijos standus duj
ų
vamzdis ir prietaisas turi b
ū
ti sujungti judžia duj
ų
žarna.
–
Jei dujotiekis yra ilgesnis nei 10 m, jo nominalusis skersmuo
turi b
ū
ti 1 1/2 colio. Prietaiso duj
ų
movos nominalusis skers-
muo yra 1 colio.
Pavojus
Prisukdami judži
ą
duj
ų
žarn
ą
prie degiklio, 36 mm veržl
ė
rak
č
iu
prilaikykite jungiam
ą
j
į
element
ą
. Nepersukite jungiamojo elemen-
to. Sriegin
ę
jungt
į
sandarinkite DVGW registruotais sandarikliais.
Po to patikrinkite jungties sandarum
ą
DVGW registruotu purška-
lu.
Duj
ų
vamzdži
ų
skersmen
į
apskai
č
iuokite pagal DVGW TRGI
1986 ir TRF 1996. Prietaiso duj
ų
movos skersmuo neb
ū
tinai su-
tampa su vamzdži
ų
skersmeniu. Dujotiekio matmenis parinkite ir
j
į
į
renkite vadovaudamiesi taikomais standartais ir reikalavimais.
–
Kiekvienas prietaisas turi b
ū
ti prijungtas prie atskiro d
ū
mtrau-
kio.
–
Išmetam
ų
j
ų
duj
ų
vamzdžiai turi b
ū
ti
į
rengti laikantis vietos rei-
kalavim
ų
ir suderinti su kaminkr
ėč
i
ų
tarnybos viršininku.
Dujinis prietaisas be srov
ė
s apsaugos, kai visos viršsl
ė
gio veikia-
mos dalys yra išmetam
ų
j
ų
duj
ų
aplinkoje. B23
į
rengimas suteikia
galimyb
ę
prijungti prie prietaiso DIN 18160 d
ū
mtrauk
į
ir padaryti
j
į
nepriklausom
ą
nuo patalpos oro. B
ū
tina, kad d
ū
mtraukis b
ū
ti
pritaikytas jungti prie šio prietaiso (pvz., jei d
ū
mtraukis renovuo-
tas sumontavus aukštos kokyb
ė
s plieno vamzd
į
).
Dujinis prietaisas su vertikalia degimo oro tiekimo sistema ir iš-
metam
ų
j
ų
duj
ų
transportavimo sistema virš stogo. Išvadai yra be-
veik toje pat sl
ė
gio srityje.
Prietaiso
į
rengimas
Tik
į
galiotiems specialistams.
Bendroji informacija
Bendroji informacija apie dujas
Duj
ų
vamzdžiai
Oro ir išmetam
ų
j
ų
duj
ų
vamzdžiai
!
Dujinis prietaisas su išmetam
ų
j
ų
duj
ų
į
renginiu, kuris šalina
degimo or
ą
iš ruošimo patalpos
Tipas B23
Dujinis prietaisas su išmetam
ų
j
ų
duj
ų
į
renginiu, kuris šalina
degimo or
ą
uždara sistema
Tipas C33
436
LT
-
15
Dujinis prietaisas su degimo oro tiekimo sistema ir išmetam
ų
j
ų
duj
ų
transportavimo sistema, skirta prijungti prie oro tiekimo ir iš-
leidimo sistemos.
Dujinis prietaisas su atskira degimo oro tiekimo sistema ir išme-
tam
ų
j
ų
duj
ų
transportavimo sistema. Išvadai yra skirtingose sl
ė
-
gio srityse.
Pastaba:
Siekiant užtikrinti reikalaujamas degimo reikšmes,
d
ū
mtraukio trauka turi atitikti technini
ų
duomen
ų
reikalavimus.
Kondensato vamzdis turi b
ū
ti prijungtas tiesiai prie kondensato
movos naudojant sifon
ą
. Sifono aukštis turi siekti 30 cm. Sifonas
netiekiamas kartu su prietaisu. Kondensato vamzdis negali b
ū
ti
tvirtai sujungtas tiesiogiai su kanalizacija. Kondensatas turi lais-
vai ištek
ė
ti
į
piltuv
ą
arba neutralizavimo talpykl
ą
.
–
Prieš montuodami prietais
ą
, patikrinkite sienos atsparum
ą
.
Kartu patiektos tvirtinimo priemon
ė
s tinka montuoti prie beto-
no sienos. Tuš
č
iaviduri
ų
medžiag
ų
, plyt
ų
ir dujinio betono sie-
nos naudokite m
ū
rvines ir varžtus, pavyzdžiui, injekcinius
inkarus (gr
ę
žimo schema patiekta matmen
ų
lentel
ė
je).
–
3 pav. Nr. 19 ir 25
Prietaiso nejunkite tvirtai sujungti su vandentiekiu ir aukšto
sl
ė
gio vamzdynu. B
ū
tinai sumontuokite jungiam
ą
sias žarnas.
–
3 - A pav.
Tarp vandentiekio sistemos ir jungiamosios žarnos
į
renkite
blokuojam
ą
j
į
č
iaup
ą
.
Montuodami aukšto sl
ė
gio vamzdžius, laikykit
ė
s atitinkam
ų
naci-
onalini
ų
teis
ė
s akt
ų
reikalavim
ų
.
–
Sl
ė
gio kritimas vamzdžiuose turi b
ū
ti mažesnis nei 1,5 MPa.
–
Patikrinkite paruošt
ą
vamzd
į
32 MPa sl
ė
giu.
–
Vamzdži
ų
izoliacija turi b
ū
ti atspari iki 100 °C temperat
ū
rai.
3 pav. Nr. 20
Bak
ą
pastatykite taip, kad apatin
ė
valymo priemon
ė
s lygio žym
ė
b
ū
t
ų
ne daugiau nei 1,5 m žemiau už prietaiso dugn
ą
, o viršutin
ė
lygio žym
ė
b
ū
t
ų
virš prietaiso dugno.
3 -B pav. ir Nr. 19
Naudodami tinkam
ą
žarn
ą
, prijunkite vandens
į
vad
ą
prie van-
dentiekio sistemos.
–
Minimali vandentiekio galia turi siekti 1300 l/h, kai minimalus
sl
ė
gis yra 0,1 MPa.
–
Vandens temperat
ū
ra turi b
ū
ti žemesn
ė
nei 30 °C.
Tipas C43
Tipas C53
Kondensato išleidimas
Montavimas prie sienos
Aukšto sl
ė
gio vamzdži
ų
montavimas
Valymo priemoni
ų
bako pastatymas
Vandens tiekimas
437
LT
-
16
Atsargiai
Neviršykite didžiausios leistinos elektros tinklo jungties varžos
(žr. „Techniniai duomenys“). Jei kyla neaiškum
ų
d
ė
l elektros tin-
klo jungties varžos, kreipkit
ė
s
į
elektros energijos tiekimo
į
mon
ę
.
Pastaba:
d
ė
l prietaiso
į
jungimo proceso
į
tampa trumpam suma-
ž
ė
ja. D
ė
l maitinimo tinklo trukdži
ų
gali sutrikti kit
ų
prietais
ų
veiki-
mas.
–
Elektros
į
rangos charakteristikos pateiktos technin
ė
je specifi-
kacijoje ir duomen
ų
lentel
ė
je.
–
Elektros instaliacij
ą
turi atlikti elektrikas vadovaudamasis IEC
60364-1 reikalavimais.
–
Darbo srities dalys, kabeliai ir prietaisai, kuriais teka elektros
srov
ė
, turi b
ū
ti nepriekaištingos b
ū
kl
ė
s ir apsaugoti nuo purš-
kiamo vandens.
Kad išvengtum
ė
te nelaiming
ų
atsitikim
ų
su elektra, rekomenduo-
jame naudoti rozetes su jau
į
montuotu apsauginiu laikinosios sro-
v
ė
s jungikliu (maks. 30 mA vardinis pradinis srov
ė
s stiprumas).
Į
junkite prietais
ą
į
elektros tinkl
ą
.
Nor
ė
dami išjungti stacionar
ų
aukšto sl
ė
gio valymo
į
rengin
į
, len-
gvai prieinamoje, nepavojingoje ir užrakinamoje vietoje
į
renkite
pagrindin
į
jungikl
į
(3 pav. Nr. 6).
Pagrindinio jungiklio kontaktin
ė
s angos skersmuo turi b
ū
ti bent
3 mm.
Prie elektros laido prijunkite Cekon kištuk
ą
.
„Cekon“ kištuk
ą
į
junkite
į
tinklo lizd
ą
.
Cekon kištukas turi b
ū
ti lengvai pasiekiamas, kad b
ū
t
ų
galima iš-
jungti stacionar
ų
aukšto sl
ė
gio valymo
į
rengin
į
.
Patikrinkite duj
ų
jungt
į
.
Atsargiai
Prietaisas gali perkaisti ir b
ū
ti pažeistas.
Prie katilo dugno prijunkite sifon
ą
ir pripildykite vandens.
Per d
ū
mtraukio ang
ą
į
pilkite
į
katil
ą
4 l vandens.
Prie pirm
ą
j
į
naudojim
ą
nuo vandens siurblio alyvos bako
dangtelio pašalinkite virš
ū
n
ę
.
3 pav. Nr. 14
Aukšto sl
ė
gio žarn
ą
sujunkite su rankiniu purškimo pistoletu
ir purškimo vamzdžiu ir prijunkite prie prietaiso aukšto sl
ė
gio
išvado arba aukšto sl
ė
gio vamzdynu.
Purkštuko gal
ą
(b) kreipiam
ą
ja veržle (a) pritvirtinkite prie
purškimo vamzdžio (d). Užtikrinkite, kad tarpinis žiedas (c)
b
ū
t
ų
tinkamai
į
d
ė
tas
į
išpjov
ą
.
Jungimas
į
elektros tinkl
ą
Nuolatin
ė
elektros jungtis
Kištuko ir lizdo elektros jungtis
Naudojimo pradžia
Dujinis prietaisas gamykloje nustatytas naudoti G 20 r
ū
šies du-
jas ir G 31 r
ū
šies suskystintas dujas. Nor
ė
dami perstatyti gamti-
ni
ų
duj
ų
prietais
ą
G 25 ar kitos r
ū
šies (žr. duomen
ų
lentel
ę
)
gamtin
ė
ms dujoms arba suskystint
ų
duj
ų
prietais
ą
G 30 ar kitos
r
ū
šies (žr. duomen
ų
lentel
ę
) suskystintoms dujoms, pagal servi-
so informacij
ą
nustatykite gamtin
ė
ms dujoms gamtini
ų
duj
ų
, o
suskystintoms dujoms - suskystint
ų
duj
ų
reikšmes.
Papildomoje tuš
č
ioje lentel
ė
je
į
rašoma nustatyta duj
ų
r
ū
šis ir ji
pritvirtinama dešin
ė
je prietaiso pus
ė
je tam skirtoje vietoje. Tuo
pat matu pašalinkite gamyklin
ę
lentel
ę
su G 20 (gamtini
ų
duj
ų
prietaiso) arba G 31 (suskystint
ų
duj
ų
prietaiso) užrašais.
Priemon
ė
s prieš pirm
ą
j
į
naudojim
ą
a
b
c
d
438
LT
-
17
Pašalinkite spyruokl
ę
(c) iš minkštiklio bako (a) dangtelio atra-
mos (b).
Pripilkite
į
bak
ą
Kärcher minkštiklio RM 110 (užs. Nr. 2.780-
001).
Pavojus
Pavojinga elektros
į
tampa! Nustatyti gali tik kvalifikuotas elektri-
kas.
Nustatykite vandens kietum
ą
:
–
kreipkit
ė
s
į
vietos vandentiekio
į
mon
ę
,
–
kietumo tikrinimo prietaisu (užs. Nr. 6.768-004).
Nuimkite prietaiso gaubt
ą
.
Atverkite valdymo lauko jungimo spint
ą
.
Sukam
ą
j
į
potenciometr
ą
(a) nustatykite pagal vandens kietu-
m
ą
. Tinkam
ą
nuostat
ą
galite rasti lentel
ė
je.
Pavyzdys:
Jei vandens kietumas siekia 15 °dH, sukamojo potenciometro
skal
ė
je nustatykite reikšm
ę
6. Pauz
ė
trunka 31 sekund
ę
, t.y. ma-
gnetinis vožtuvas atsidaro trumpam kas 31 sekund
ę
.
Parengties režimo laikas nustatomas didžiojoje plokšt
ė
je jungimo
spintos kair
ė
je pus
ė
je.
Gamykloje nustatytas 2 minu
č
i
ų
trukm
ė
s parengties režimo lai-
kas ir j
į
galima padidinti iki 8 minu
č
i
ų
.
Apsauga nuo kalk
ė
jimo
Vandens kietumas (°dH)
5
10
15
20
25
Sukamojo potenciometro
skal
ė
8
7
6
5
4,5
Pauz
ė
s trukm
ė
(sekund
ė
-
mis)
50
40
31
22
16
b
c
a
a
Parengties režimo laiko nustatymas
8 7 6 5 4 3 2 1
S2
min.
max.
439
LT
-
18
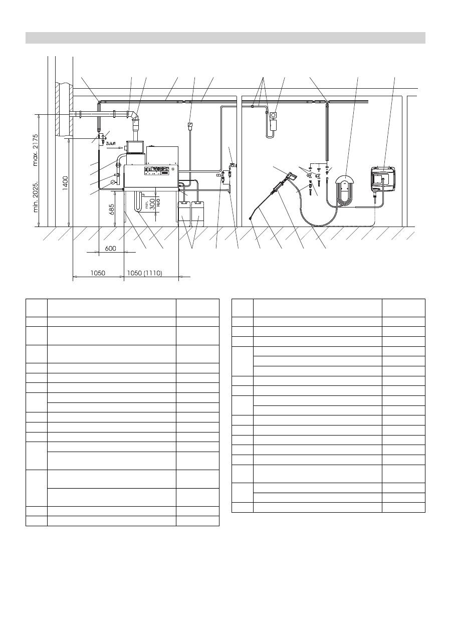
3 paveikslas
Į
rengimo medžiagos
1
2
3
5
6
7
8
9
10
12
13
A
15
11b
11a
11c
11a
25
21
22
23
11b
24
4
20
19a
19
18
17
16
14
11d
B
Nr.
Į
rengimo medžiagos
Užsakymo
Nr.
1
Kampin
ė
veržlin
ė
jungtis
6.386-356
2
Išmetamojo vamzdžio rinkinys, horizonta-
lus, 150 mm
6.526-231
3
Išmetamojo vamzdžio rinkinys, vertikalus,
150 mm
6.526-232
4
Sifon
ų
dali
ų
rinkinys
2.640-422
5
Šilumos izoliacija
6.286-114
6
Pagrindinis jungiklis
6.631-455
7
Cinkuoto plieno vamzdži
ų
rinkinys
2.420-004
Aukštos kokyb
ė
s plieno vamzdži
ų
rinkinys 2.420-006
8
Nuotolinio valdymo sistemos dali
ų
rinkinys 2.744-008
9
Avarinio išjungiklio dali
ų
rinkinys
2.744-002
10
T veržlin
ė
jungtis
6.386-269
11a
Prijungiamasis žalvario vamzdis
2.638-180
Prijungiamasis aukštos kokyb
ė
s plieno
vamzdis
2.638-181
11b
Cinkuoto plieno blokuojamasis
č
iaupas 8
mm
4.580-144
Aukštos kokyb
ė
s plieno blokuojamasis
č
iaupas 8 mm
4.580-163
11c
Greitaveik
ė
s sankabos tvirtinimo dalis
6.463-025
11d
Greitaveik
ė
s sankabos atleidimo dalis
6.463-023
Nr.
Į
rengimo medžiagos
Užsakymo
Nr.
12
Žarnos laikiklis
2.042-001
13
Žarn
ų
rit
ė
2.637-238
14
Aukšto sl
ė
gio žarna, 10 m
6.388-083
15
Rankinis purškimo pistoletas Easypress
4.775-463
Sukamasis reguliatorius HDS 9/16-4
4.775-470
Sukamasis reguliatorius HDS 12/14-4
4.775-471
16
Plieno vamzdži
ų
laikiklis
2.042-002
17
Purškimo antgalis
4.760-550
18
Purkštuko galias HDS 9/16-4
2.883-402
Purkštuko galias HDS 12/14-4
2.883-406
19
Vandens žarnos
4.440-282
19a
Magnetinis vandens tiekimo vožtuvas
4.743-011
20
Valymo priemoni
ų
bakas, 60 l
5.070-078
21
Duj
ų
žarna R1“
6.388-228
22
Duj
ų
blokuojamasis vožtuvas R1“
6.412-389
23
Manometras, duj
ų
(d
ė
mesio! turi b
ū
ti nu-
matytas uždaromasis vožtuvas).
6.412-059
24
Sienos laikiklio dali
ų
rinkinys
2.053-005
Apatinio pagrindo dali
ų
rinkinys
2.210-008
25
Aukšto sl
ė
gio žarna
6.389-028
440
LT
-
19
Šiuo pareiškiame, kad toliau aprašyto aparato br
ė
žiniai ir kons-
trukcija bei m
ū
s
ų
į
rink
ą
išleistas modelis atitinka pagrindinius EB
direktyv
ų
saugumo ir sveikatos apsaugos reikalavimus. Jei maši-
nos modelis kei
č
iamas su mumis nepasitarus, ši deklaracija ne-
begalioja.
5.957-648
Pasirašantys asmenys yra
į
galioti parduotuv
ė
s vadovyb
ė
s.
Dokumentacij
ą
tvarkyti
į
galiotas asmuo:
S. Reiser
Alfred Kärcher GmbH & Co. KG
Alfred-Kärcher-Str. 28 - 40
71364 Winnenden (Germany)
Tel.: +49 7195 14-0
Faksas: +49 7195 14-2212
Winnenden, 2014/02/01
Kiekvienoje šalyje galioja m
ū
s
ų
į
galiot
ų
pardav
ė
j
ų
nustatytos ga-
rantijos s
ą
lygos. Galimus prietaiso gedimus garantijos galiojimo
laikotarpiu pašalinsime nemokamai, jei toki
ų
gedim
ų
priežastis
buvo netinkamos medžiagos ar gamybos defektai.
EB atitikties deklaracija
Gaminys:
Aukšto sl
ė
gio valymo maši-
na
Tipas:
1.251-xxx
Specialios EB direktyvos:
2009/142/EB
2006/42/EB (+2009/127/EB)
2004/108/EB
Taikomi darnieji standartai:
EN 55014–1: 2006+A1: 2009+A2: 2011
EN 55014–2: 1997+A1: 2001+A2: 2008
EN 60335–1
EN 60335–2–79
EN 62233: 2008
EN 61000–3–2: 2006+A1: 2009+A2: 2009
HDS 12/14:
EN 61000–3–3: 2008
HDS 9/16:
EN 61000–3–11: 2000
Taikomos specifikacijos:
QA 195 (ne LPG)
Paskelbtosios
į
staigos pavadinimas:
2009/142/EB
GASTEC
Wilmersdorf 50
7327 AC Apeldoorn
Kodas 0063
Garantija
CEO
Head of Approbation
441
LT
-
20
Klient
ų
aptarnavimo tarnyba
Į
renginio tipas:
Gamintojo Nr.
Naudojimo pradžia:
Patikros data:
Išvados:
Parašas
Patikros data:
Išvados:
Parašas
Patikros data:
Išvados:
Parašas
Patikros data:
Išvados:
Parašas
442
LT
-
1
Перед
першим
застосуванням
вашого
пристрою
прочитайте
цю
оригінальну
інструкцію
з
експлуатації
,
після
цього
дійте
відповідно
неї
та
збережіть
її
для
подальшого
користування
або
для
наступного
власника
.
–
Перед
першим
використанням
на
виробництві
неодмінно
прочитайте
вказівки
з
техніки
безпеки
№
5 956-309.
–
Якщо
виникають
ошкодження
при
транспортуванні
,
негайно
повідомте
про
це
продавця
.
Інструкції
із
застосування
компонентів
(REACH)
Актуальні
відомості
про
компоненти
наведені
на
веб
-
вузлі
за
адресою
:
www.kaercher.com/REACH
Обережно
!
Для
небезпеки
,
яка
безпосередньо
загрожує
та
призводить
до
тяжких
травм
чи
смерті
.
몇
Попередження
Для
потенційно
можливої
небезпечної
ситуації
,
що
може
призвести
до
тяжких
травм
чи
смерті
.
Увага
!
Для
потенційно
можливої
небезпечної
ситуації
,
що
може
призвести
до
легких
травм
чи
спричинити
матеріальні
збитки
.
Струмінь
під
високим
тиском
може
становити
небезпеку
при
неправильному
використанні
.
Не
можна
направляти
струмінь
на
людей
,
тварин
,
увімкнуте
електрообладнання
або
на
сам
прилад
.
–
Необхідно
дотримуватися
відповідних
національних
законодавчих
норм
по
роботі
з
рідинними
струминними
установками
.
–
Необхідно
дотримуватися
відповідних
національних
законодавчих
норм
по
техніці
безпеки
.
Необхідно
регулярно
перевіряти
роботу
рідинних
струминних
установок
і
результати
перевірки
оформляти
в
письмовому
виді
.
–
Нагрівальним
пристроєм
приладу
є
топкова
установка
.
Необхідно
регулярно
перевіряти
топкові
установки
дотримуючи
відповідних
національних
законодавчих
норм
.
–
При
експлуатації
установки
в
приміщеннях
необхідно
забезпечити
безпечний
відвід
відпрацьованих
газів
(
труба
без
переривника
для
відводу
паливного
газу
).
Далі
потрібно
забезпечити
достатнє
підведення
свіжого
повітря
.
–
Слід
дотримуватися
вказівок
по
техніці
безпеки
,
прикладених
до
використовуваних
засобів
для
чищення
(
як
правило
,
наведені
на
етикетці
впакування
).
Перед
установкою
пристрою
необхідно
провести
узгодження
з
підприємством
,
що
робить
послуги
з
газопостачання
та
окружним
фахівцем
з
вентиляції
.
При
установці
необхідно
дотримуватись
приписань
будівельного
права
,
промислового
права
та
охорони
навколишнього
середовища
.
Ми
посилаємося
на
зазначені
нижче
приписання
,
директиви
та
норми
:
–
У
відповідності
до
актуальних
національних
приписань
,
пристрій
може
встановлювати
тільки
спеціалізоване
підприємство
.
–
При
електрифікації
необхідно
дотримуватись
відповідних
національних
норм
.
–
При
проведенні
газопроводу
необхідно
дотримуватись
відповідних
національних
норм
.
–
Установка
газопроводу
,
а
також
приєднання
пристроїв
стороннього
газу
,
повинні
виконуватися
тільки
схваленою
фірмою
з
відповідною
кваліфікацією
з
водяного
та
газового
виробництва
.
–
Настроювання
,
роботи
з
технічного
обслуговування
та
ремонт
пальника
можуть
проводитися
тільки
навченими
монтерами
сервісної
служби
фірми
Kärcher.
–
При
проектуванні
труби
відводу
газу
необхідно
дотримуватись
діючих
місцевих
державних
норм
.
Перелік
Захист
навколишнього
середовища
UK . . 1
Знаки
у
посібнику
. . . . . . . .
UK . . 1
Символи
на
пристрої
. . . . .
UK . . 1
Загальні
вказівки
щодо
безпеки
UK . . 1
Правильне
застосування
.
UK . . 2
Призначення
. . . . . . . . . . .
UK . . 2
Захисні
пристрої
. . . . . . . .
UK . . 2
Елементи
приладу
. . . . . . .
UK . . 3
Введення
в
експлуатацію
.
UK . . 4
Експлуатація
. . . . . . . . . . .
UK . . 4
Зняття
з
експлуатації
. . . . .
UK . . 6
Зберігання
. . . . . . . . . . . . .
UK . . 6
Зберігання
. . . . . . . . . . . . .
UK . . 6
Транспортування
. . . . . . . .
UK . . 6
Технічні
характеристики
. .
UK . . 7
Догляд
та
технічне
обслуговування
UK . . 9
Допомога
у
випадку
неполадок
UK . 11
Аксесуари
. . . . . . . . . . . . . .
UK . 13
Монтаж
обладнання
. . . . .
UK . 14
Заява
при
відповідність
Європейського
співтовариства
. . . . . . . . . .
UK . 19
Гарантія
. . . . . . . . . . . . . . .
UK . 19
Служба
підтримки
користувачів
UK . 20
Захист
навколишнього
середовища
Матеріали
упаковки
піддаються
переробці
для
повторного
використання
.
Будь
ласка
,
не
викидайте
пакувальні
матеріали
разом
із
домашнім
сміттям
,
віддайте
їх
для
на
переробку
.
Старі
пристрої
містять
цінні
матеріали
,
що
можуть
використовуватися
повторно
.
Батареї
,
мастило
та
схожі
матеріали
не
повинні
потрапити
у
навколишнє
середовище
.
Тому
,
будь
ласка
,
утилізуйте
старі
пристрої
за
допомогою
спеціальних
систем
збору
сміття
.
Будь
ласка
,
не
допустіть
потрапляння
моторних
мастил
,
мазуту
,
дизельного
палива
та
бензину
у
навколишне
середовище
.
Будь
ласка
,
захищайте
грунт
та
утилізуйте
віпрацьовані
мастила
,
не
зашкоджуючи
навколишньому
середовищу
.
Засоби
для
чищення
Kärcher
легко
сепаруються
(ASF).
Це
означає
,
що
вони
не
будуть
перешкоджати
роботі
масляного
сепаратора
.
Список
засобів
для
чищення
,
що
рекомендуються
,
наведено
у
розділі
"
Додаткове
обладнання
".
Знаки
у
посібнику
Символи
на
пристрої
Загальні
вказівки
щодо
безпеки
Місцеві
приписання
,
директиви
та
норми
443
UK
-
2
Робоче
місце
біля
пульта
керування
.
Інші
робочі
місця
,
залежно
від
конструкції
установки
,
біля
пристроїв
додаткового
обладнання
(
розпилювачів
),
які
приєднані
до
заправних
точок
.
–
Одягайте
захисну
одежу
та
захисні
окуляри
для
захисту
від
води
та
бруду
,
що
відбризкуються
.
Пристрій
використовується
для
видалення
бруду
з
поверхонь
з
допомогою
вільно
виходячого
водяного
струменя
.
Зокрема
,
він
використовується
для
мийки
машин
,
автомобілів
та
фасадів
будинків
.
Обережно
!
Небезпека
травмування
!
При
використанні
на
автозаправних
станціях
або
в
інших
небезпечних
зонах
слід
дотримуватися
відповідних
правил
техніки
безпеки
.
–
Холодна
вода
надходить
через
охолоджувальний
змійовик
двигуна
в
бак
із
поплавцем
і
звідти
в
кожух
проточного
нагрівача
і
далі
до
всмоктувальної
сторони
насоса
високого
тиску
.
У
бак
з
поплавцем
додається
дозована
кількість
пом
'
якшувача
.
Насос
прокачує
воду
та
всмоктуваний
мийний
засіб
через
проточний
нагрівач
.
Кількість
мийного
засобу
у
воді
може
бути
задане
за
допомогою
дозатора
.
Проточний
нагрівач
нагрівається
газовим
пальником
.
–
Вихід
високого
тиску
приєднується
до
мережі
високого
тиску
,
що
існує
в
будинку
.
До
заправного
пункту
цієї
мережі
під
'
єднується
ручний
пістолет
зі
шлангом
високого
тиску
.
Захисні
пристрої
призначені
для
захисту
користувача
і
не
повинні
бути
виведені
з
ладу
або
використовуватися
з
іншою
метою
.
Система
запобігання
нестачі
води
запобігає
вмиканню
насоса
високого
тиску
при
нестачі
води
.
Система
запобігання
у
разі
відсутності
води
перешкоджає
перегріву
пальника
при
нехватці
води
.
Пальник
запускається
тільки
при
подачі
достатньої
кількості
води
.
Манометричний
вимикач
виключає
пристрій
при
перевищенні
робочого
тиску
.
Не
можна
змінювати
установку
.
При
збої
манометричного
вимикача
відкривається
запобіжний
клапан
.
Цей
клапан
відрегульований
та
запломбований
на
заводі
-
виробнику
.
Не
можна
змінювати
установку
.
При
нестачі
палива
або
поломці
пальника
система
контролю
полум
'
я
відключає
пальник
.
Загоряється
контрольна
лампа
несправності
пальника
(
Е
).
Якщо
двигун
пальника
заблокований
,
то
вимикач
пристрою
захисту
від
перевантажень
виключений
.
Двигун
насоса
високого
тиску
захищений
вимикачем
захисту
двигуна
та
захисним
реле
обмотки
.
Термостат
відпрацьованих
газів
спрацьовує
,
якщо
температура
відпрацьованих
газів
перевищує
320 °C.
Загоряється
контрольна
лампочка
термостата
відпрацьованих
газів
(K)
Спрацьовує
обмежувач
максимальної
температури
на
дні
котла
(> 80 °C)
і
водовипуску
(> 110 °C)
і
загоряється
контрольна
лампочка
несправності
пальника
(E).
Перемикач
тиску
ВГ
відключає
пальник
,
якщо
в
системі
відпрацьованого
газу
виник
надмірно
високий
протитиск
,
наприклад
,
при
засміченні
.
Після
відключення
пристрою
з
допомогою
ручного
пістолета
-
розпилювача
та
після
закінчення
часу
підготовки
до
роботи
відкривається
магнітний
клапан
,
розташований
в
системі
високого
тиску
,
в
результаті
чого
тиск
падає
.
Робочі
місця
Засоби
індивідуального
захисту
При
очищенні
частин
,
що
підсилюють
звук
,
слід
застосовувати
відповідні
засоби
захисту
органів
слуху
для
запобігання
їхньому
ушкодженню
.
Правильне
застосування
Будь
ласка
,
не
допустіть
потрапляння
маслянистих
стічних
вод
у
землю
,
водойми
або
каналізацію
.
Тому
миття
моторів
і
днища
автомашин
слід
проводити
тільки
в
пристосованих
для
цього
місцях
з
уловлювачем
мастила
.
Призначення
Захисні
пристрої
Система
запобігання
нестачі
води
,
бак
з
поплавцем
Система
запобігання
від
відсутності
води
,
запобіжний
блок
Манометричний
вимикач
Запобіжний
клапан
Контроль
полум
'
я
Захист
від
перевантажень
Термостат
відпрацьованих
газів
Обмежувач
температури
Перемикач
тиску
ВГ
Скидання
тиску
в
системі
високого
тиску
444
UK
-
3
Мал
. 1
1
Пальник
2
Манометр
3
Лінія
подачі
свіжого
повітря
із
сітчастим
фільтром
4
Вихід
високого
тиску
5
Газове
під
'
єднання
6
Всмоктувальний
шланг
для
мийного
засобу
I
7
Всмоктувальний
шланг
для
мийного
засобу
ІІ
(
додаткове
обладнання
)
8
Бак
зм
'
якшувача
9
Електропідвід
10
Поплавкова
камера
11
Панель
управління
Мал
. 2
A
Апаратний
вимикач
B
Регулятор
температури
C
Дозуючий
клапан
мийного
засобу
I
D
Дозуючий
клапан
мийного
засобу
ІІ
(
додаткове
обладнання
)
E
Контрольна
лампочка
несправності
пальника
F
Контрольна
лампа
готовності
до
експлуатації
G
Контрольна
лампа
перегріву
двигуна
H
Контрольна
лампа
захисту
від
накипу
I
Кнопка
розблокування
газового
реле
J
Кнопка
розблокування
термостата
відпрацьованих
газів
K
Контрольна
лампа
термостата
відпрацьованих
газів
Елементи
приладу
4
5
6
7
3
8
10
1
11
2
9
Панель
управління
445
UK
-
4
몇
Обережно
!
Небезпека
травмування
!
Прилад
,
підведення
,
шланг
високого
тиску
і
з
'
єднання
повинні
перебувати
в
бездоганному
стані
.
Якщо
стан
приладу
не
бездоганний
,
то
прилад
використовувати
не
можна
.
–
Значення
щодо
підключення
див
.
Технічні
дані
та
заводську
табличку
.
–
Електричні
з
’
єднання
повинні
бути
виконані
електромонтажником
та
відповідати
IEC 60364-1.
Користувач
повинен
використовувати
пристрій
у
відповідності
до
інструкції
.
Він
повинен
враховувати
умови
місцевості
та
звертати
увагу
на
третіх
осіб
під
час
роботи
з
пристроєм
.
Не
можна
залишати
пристрій
без
нагляду
під
час
роботи
.
Обережно
!
–
Небезпека
опектися
гарячою
водою
!
Не
направляти
шланг
на
людей
або
тварин
.
–
Небезпека
опіку
об
гарячі
елементи
установки
!
При
роботі
з
гарячою
водою
не
торкатися
до
неізольованих
трубопроводів
та
шлангів
.
Струминну
трубку
слід
утримувати
тільки
за
чашку
руків
'
я
.
Не
торкатися
до
штуцера
відпрацьованих
газів
проточного
нагрівача
.
–
Небезпека
отруєння
або
хімічного
опіку
засобами
для
чищення
!
Дотримуватися
вказівок
,
наведених
на
упаковці
засобів
для
чищення
.
Зберігати
засіб
для
чищення
у
місці
,
недоступному
для
неуповноважених
осіб
.
Обережно
!
Небезпека
ураження
електричним
струмом
!
Не
направляйте
струмінь
води
на
наступні
пристрої
:
–
електричні
пристрої
та
установки
,
–
на
властиво
цю
установку
,
–
всі
частини
,
що
проводять
струм
у
робочій
зоні
.
Через
струмінь
води
,
що
виходить
зі
струменевої
трубки
,
виникає
сила
віддачі
.
Через
струменеву
трубку
,
що
мыститься
під
кутом
,
сила
діє
донизу
.
Обережно
!
–
Небезпека
травмування
!
Сила
віддачі
струминної
трубки
може
порушити
вашу
рівновагу
.
Ви
можете
впасти
.
Струминна
трубка
може
вилетіти
та
травмувати
оточуючих
людей
.
Виберіть
зручну
позицію
для
роботи
та
міцно
утримуйте
ручний
пістолет
-
розпилювач
.
Ніколи
не
заклинюйте
важіль
ручного
пістолета
-
розпилювача
.
–
Не
направляти
струмінь
на
себе
або
на
інших
людей
для
очищення
одягу
або
взуття
.
–
Небезпека
дістати
травму
від
частин
,
що
відлітають
!
Уламки
,
що
відлітають
,
або
предмети
можуть
травмувати
людей
або
тварин
.
Не
направляти
струмінь
води
на
ламкі
або
незакріплені
предмети
.
–
Небезпека
аварії
внаслідок
ушкодження
!
Шини
та
клапани
очищати
з
віддалі
мінімум
30
см
.
몇
Попередження
Небезпека
,
що
викликана
небезпечними
для
здоров
'
я
речовинами
!
Не
розпорошувати
наступні
матеріали
,
оскільки
в
повітря
можуть
піднятися
небезпечні
для
здоров
'
я
речовини
:
–
азбестовмісні
матеріали
,
–
матеріали
,
що
,
можливо
,
містять
небезпечні
для
здоров
'
я
речовини
.
Обережно
!
–
Небезпека
дістати
травму
від
вихідного
струменя
,
можливо
,
гарячої
води
!
Найоптимальніше
до
установки
підходять
лише
оригінальні
шланги
високого
тиску
фірми
Kärcher.
При
використанні
інших
шлангів
гарантія
виключається
.
–
Небезпека
для
здоров
'
я
у
зв
'
язку
із
застосуванням
засобів
для
чищення
!
Через
добавки
,
при
потребі
,
засобу
для
чищення
,
злита
з
пристрою
вода
не
відповідає
якості
питної
води
.
–
Небезпека
пошкодити
органи
слуху
під
час
роботи
з
частинами
,
що
підсилюють
звук
!
У
цьому
випадку
варто
носити
засоби
захисту
органів
слуху
.
Обережно
!
Небезпека
дістати
травму
від
вихідного
струменя
,
можливо
,
гарячої
води
!
Обережно
!
Перевіряти
шлаг
на
предмет
пошкодження
перед
кожним
використанням
.
Негайно
замініть
дефектний
шланг
.
Перед
кожним
використанням
перевіряйте
шланг
високого
тиску
,
трубопроводи
,
арматури
та
струминну
трубку
на
наявність
ушкоджень
.
Перевіряйте
місця
з
'
єднань
шлангів
на
щільність
посадки
та
герметичність
.
Увага
!
Небезпека
ушкодження
при
роботі
насухо
.
Перевірити
рівень
мийного
засобу
і
при
необхідності
долити
.
Перевірити
рівень
пом
'
якшувальної
рідини
та
при
необхідності
долити
.
Вимикач
пристрою
(
А
)
повернути
в
положення
"0".
Закрийте
подачу
води
.
Увімкніть
пістолет
-
розпилювач
,
доки
прилад
не
звільниться
від
тиску
.
Закрити
подачу
газу
.
Введення
в
експлуатацію
Підключення
до
джерела
току
Експлуатація
Правила
безпеки
!
Перевірити
готовність
до
експлуатації
Виключення
у
надзвичайному
випадку
446
UK
-
5
Поворот
клапана
регулювання
ємності
за
годинниковою
стрілкою
підвищує
робочий
тиск
та
продуктивність
.
Поворот
клапана
регулювання
ємності
проти
годинникової
стрілки
знижує
робочий
тиск
та
продуктивність
.
При
обертанні
регулятора
кількості
води
вправо
збільшується
подача
та
підвищується
робочий
тиск
.
При
обертанні
регулятора
кількості
води
вліво
зменшується
подача
та
знижується
робочий
тиск
.
Відкрити
подачу
води
.
Символ
"
Двигун
включений
"
Вийняти
важіль
ручного
пістолета
-
розпилювача
та
установити
вимикач
пристрою
(
А
)
у
положення
"1"
("
Двигун
включений
")
Контрольна
лампа
готовності
до
роботи
(F)
показує
готовність
пристрою
до
роботи
.
Обережно
!
Небезпека
обварювання
!
Увага
!
Робота
в
режимі
гарячої
води
при
відсутності
палива
призводить
до
ушкодження
паливного
насоса
.
Перед
роботою
в
режимі
гарячої
води
забезпечити
подачу
палива
.
При
необхідності
можна
під
'
єднати
пальник
.
Символ
"
Пальник
включений
"
Установити
вимикач
пристрою
(
А
)
у
положення
"
Пальник
включений
".
Установити
з
допомогою
регулятора
температури
(
В
)
потрібну
температуру
води
.
Максимально
можлива
температура
становить
98 °C.
–
Якщо
під
час
роботи
відпустити
важіль
ручного
пістолету
-
розпилювача
,
то
апарат
вимкнеться
.
–
При
повторному
відкритті
пістолета
протягом
установленого
часу
готовності
до
роботи
(2...8
хвилин
)
пристрій
знову
самостійно
запрацює
.
–
Якщо
час
готовності
до
роботи
минув
,
то
схема
з
годинним
механізмом
і
блокуванням
відключить
насос
і
пальник
.
Контрольна
лампа
готовності
до
роботи
(F)
згасне
.
–
Для
повторного
введення
в
експлуатацію
встановити
вимикач
пристрою
в
положення
"0",
після
чого
знову
включити
.
Якщо
пристрій
працює
з
дистанційним
керуванням
,
то
кнопку
повторного
введення
в
експлуатацію
можна
вивести
на
відповідний
перемикач
пульта
дистанційного
керування
.
–
Автомобільні
покришки
очищаються
тільки
при
використанні
плоскоструминної
форсунки
(25)°
з
мінімальної
відстані
обприскування
30
см
У
жодному
разі
не
очищати
покришки
круглим
струменем
.
Для
рішення
всіх
інших
завдань
використовуються
наступні
форсунки
:
При
довжині
трубопроводу
більше
20
м
або
при
використанні
шланга
високого
тиску
номінальним
внутрішнім
діаметром
NW 8
більше
2
х
10
м
необхідно
використовувати
наступні
форсунки
:
Встановіть
робочий
тиск
та
продуктивність
насосу
Настроювання
на
апараті
Регулювання
пістолета
Easypress (
додаткове
обладнання
)
Режим
роботи
з
холодною
водою
Режим
роботи
з
гарячою
водою
R
Готовність
до
роботи
Вибір
форсунки
Забрудн
ення
Сопло
Кут
розбризк
ування
Деталь
№
6 415
Тиск
[
МПа
]
Віддача
[N]
HDS 9/16
сильне
00060
0°
-649
16
46
середня
25060
25°
-647
легке
40060
40°
-648
HDS 12/14
сильне
00080
0°
-150
14
55
середня
25080
25°
-152
легке
40080
40°
-153
Забрудн
ення
Сопло
Кут
розбризк
ування
Деталь
№
6 415
Тиск
[
МПа
]
Віддача
[N]
HDS 9/16
сильне
0075
0°
-419
10
37
середня
2575
25°
-421
легке
4075
40°
-422
HDS 12/14
сильне
0010
0°
-082
10
46
середня
2510
25°
-252
легке
4010
40°
-253
447
UK
-
6
–
Використання
мийного
засобу
полегшує
процес
очищення
.
Мийні
засоби
подаються
із
зовнішнього
бака
для
мийних
засобів
.
–
При
базовому
варіанті
виконання
пристрій
оснащений
дозуючим
клапаном
(C).
Другий
дозуючий
пристрій
(
дозуючий
клапан
D)
замовляється
як
спеціальне
додаткове
обладнання
.
При
цьому
з
'
являється
можливість
використовувати
два
різних
мийних
засоби
.
–
Дозована
кількість
установлюється
на
пульті
керування
на
дозуючому
клапані
миючої
речовини
(C
або
D).
Установлене
значення
відповідає
частці
мийного
засобу
в
відсотках
.
–
Зовнішня
шкала
працює
при
використанні
нерозведеного
мийного
засобу
(100 % CHEM).
–
Внутрішня
шкала
працює
при
використанні
мийного
засобу
,
попередньо
розведеного
у
відношенні
1:3 (25 %
CHEM + 75 %
води
)
У
наступній
таблиці
наведені
значення
витрати
мийного
засобу
по
відношенню
до
показань
верхньої
шкали
.
Точність
установки
дозованої
кількості
залежить
від
:
–
в
'
язкості
мийного
засобу
–
Висота
всмоктання
–
гідравлічного
опору
шланга
високого
тиску
При
необхідності
точного
дозування
слід
виміряти
всмоктувану
кількість
мийного
засобу
(
наприклад
,
шляхом
всмоктування
з
вимірювальної
склянки
).
Вказівка
:
Рекомендації
з
використання
мийних
засобів
наведені
в
голові
"
Додаткове
обладнання
".
Увага
!
При
роботі
без
пом
'
якшувальной
рідини
проточний
нагрівач
може
покритися
накипом
.
При
порожньому
баку
з
пом
'
якшувальною
рідиною
мигає
контрольна
лампа
захисту
від
накипу
(H).
Мал
. 1 -
Поз
. 8
Долити
в
бак
пом
'
якшувальну
рідину
RM 110 (2.780-001).
Обережно
!
Небезпека
ошпаритись
гарячою
водою
!
Після
експлуатації
з
гарячою
водою
апарат
для
охолодження
слід
упродовж
не
менше
двох
хвилин
експлуатувати
з
холодною
водою
з
відкритим
пістолетом
.
У
режимі
гарячої
води
встановити
регулятор
температури
(
В
)
на
найнижчу
температуру
.
Дати
пристрою
пропрацювати
протягом
30
секунд
без
мийного
засобу
.
Вимикач
пристрою
(
А
)
повернути
в
положення
"0".
Закрийте
подачу
води
.
Увімкніть
пістолет
-
розпилювач
,
доки
прилад
не
звільниться
від
тиску
.
Заблокувати
пістолет
-
розпилювач
за
допомогою
запобіжного
фіксатора
від
випадкового
натискання
.
При
тривалих
перервах
у
роботі
або
при
неможливості
зберігання
пристрою
в
місцях
,
захищених
від
морозу
,
провести
наступні
заходи
(
див
.
голову
"
Технічне
обслуговування
та
догляд
",
розділ
"
Захист
від
морозів
"):
Злийте
воду
.
Промийте
прилад
антифризом
.
Вимкнути
та
заблокувати
головний
вимикач
або
від
'
єднати
штекерний
роз
'
єм
Cekon.
Закрити
подачу
газу
.
Увага
!
Небезпека
отримання
травм
та
ушкоджень
!
При
зберіганні
звернути
увагу
на
вагу
пристрою
.
Увага
!
Небезпека
отримання
травм
та
ушкоджень
!
При
транспортуванні
слід
звернути
увагу
на
вагу
пристрою
.
При
перевезенні
апарату
в
транспортних
засобах
слід
враховувати
місцеві
діючі
державні
норми
,
направлені
на
захист
від
ковзання
та
перекидання
.
Дозування
мийного
засобу
Положення
0,5
1
8
Кількість
мийного
засобу
[
л
/
год
]
14...15 22...24
50
Концентрація
миючого
засобу
[%]
1,5
2,5
> 5
Долити
пом
'
якшувальну
рідину
Зняття
з
експлуатації
Після
роботи
з
миючим
засобом
Вимкнути
пристрій
Зберігання
Зберігання
Транспортування
448
UK
-
7
Технічні
характеристики
HDS 9/16-4
ST Gas
HDS 9/16-4
ST Gas LPG
HDS 12/14-4
ST Gas
HDS 12/14-4
ST Gas LPG
1.251-108
1.251-109
1.251-110
1.251-111
Робочі
характеристики
Робочий
тиск
води
(
зі
стандартною
форсункою
)
MPa (bar)
16 (160)
16 (160)
14 (140)
14 (140)
Макс
.
робочий
тиск
(
запобіжний
клапан
)
MPa (bar)
18,5 (185)
18,5 (185)
18,5 (185)
18,5 (185)
Подача
води
(
із
плавним
регулюванням
)
l/h (l/min)
500-1000 (8,3-
16,6)
500-1000 (8,3-
16,6)
600-1200 (10-
20)
600-1200 (10-
20)
Всмоктування
мийного
засобу
(
із
плавним
регулюванням
)
l/h (l/min)
0-50 (0-0,8)
0-50 (0-0,8)
0-60 (0-1)
0-60 (0-1)
Підключення
водопостачання
Об
’
єм
,
що
подається
(
мін
).
l/h (l/min)
1100 (18,3)
1100 (18,3)
1300 (21,7)
1300 (21,7)
Тиск
,
що
подається
(
мін
.)
MPa (bar)
0,1 (1)
0,1 (1)
0,1 (1)
0,1 (1)
Тиск
,
що
подається
(
макс
.)
MPa (bar)
0,6 (6)
0,6 (6)
0,6 (6)
0,6 (6)
Електричні
з
'
єднання
Тип
струму
--
3N~
3N~
3N~
3N~
Частота
Hz
50
50
50
50
напруга
V
380-420
380-420
380-420
380-420
Загальна
потужність
kW
6,4
6,4
7,5
7,5
Запобіжник
(
інертний
)
A
16
16
20
20
Ступінь
захисту
--
IPX5
IPX5
IPX5
IPX5
Клас
захисту
--
I
I
I
I
Максимальний
допустимий
опір
мережі
Ом
(0,381+j
0,238)
(0,381+j
0,238)
--
--
Електропідвід
mm
2
5 x 2,5
5 x 2,5
5 x 2,5
5 x 2,5
Температура
Температура
струменя
(
макс
.)
°C
30
30
30
30
Макс
.
робоча
температура
гарячої
води
°C
98
98
98
98
Аварійний
термостат
максимальної
температури
°C
110
110
110
110
Підвищення
температури
при
максимальній
витраті
води
°C
60-65
60-65
60-65
60-65
Потужність
нагрівання
загальна
kW
75
75
95
95
Тяга
димаря
kPa
0,01-0,04
0,01-0,04
0,01-0,04
0,01-0,04
Параметри
підключення
газу
Природний
газ
E (G 20)
m
3
/h
7,2
--
9,8
--
Природний
газ
LL (G 25)
m
3
/h
8,2
--
11,4
--
Номінальний
приєднувальний
тиск
(
природний
газ
)
kPa
1,8-5
--
1,8-5
--
Пропан
kg/h
--
5,7
--
7,2
Номінальний
приєднувальний
тиск
(
Пропан
)
kPa
--
5-6
--
5-6
Характеристики
навколишнього
середовища
Нормальна
продуктивність
%
97
97
97
97
Нормальний
фактор
викиду
NO
X
(
природний
газ
G 25) mg/kWh
< 40
--
< 40
--
Нормальний
фактор
викиду
CO (
природний
газ
G 25) mg/kWh
< 40
--
< 40
--
Значення
розрахункових
параметрів
димаря
Здатність
витримувати
надлишковий
тиск
(
хв
.)
kPa
0,05
0,05
0,05
0,05
Максимум
навантаження
газового
каналу
kPa
0
0
0
0
Масовий
потік
вихлопних
газів
-
повне
навантаження
kg/h
130
130
166
166
CO
2
(
природний
газ
)
%
9,5
--
9,5
--
CO
2
(
пропан
)
%
--
12
--
12
Температура
вихлопних
газів
макс
./
мін
.
°C
190/150
190/150
170/130
170/130
Повітря
для
горіння
/
подача
повітря
Максимальна
довжина
: 10
м
.
із
двома
90°
колінами
(
мінімальний
діаметр
100
мм
).
Залежно
від
місцевих
приписань
,
від
місця
установки
обладнання
або
свіжого
повітря
зовні
.
Відвід
конденсату
Відвід
конденсату
(
макс
.)
l/h
4 (
через
сифон
у
каналізацію
)
4 (
через
сифон
у
каналізацію
)
4 (
через
сифон
у
каналізацію
)
4 (
через
сифон
у
каналізацію
)
З
'
єднання
DN
40 (HTR)
40 (HTR)
40 (HTR)
40 (HTR)
449
UK
-
8
Мінімальний
водяний
стовп
,
сифон
mm
300
300
300
300
Допуск
EN 60335-2-79
Допуск
до
директиви
про
газові
пристрої
(90/396/
EEC)
--
Gastec QA
Low NO
X
Gastec QA
Gastec QA
Low NO
X
Gastec QA
Категорія
пристроїв
,
Європа
--
I 2E (r), I
2ELL, I 2H, I
2L, I2 HE
I 3P
I 2E (r), I
2ELL, I 2H, I
2L, I2 HE
I 3P
Тип
пристрою
--
B23, C33,
C43, C53
B23, C33,
C43, C53
B23, C33,
C43, C53
B23, C33,
C43, C53
Ідентифікаційний
номер
CE-
продукції
--
PIN 0063 BN
3880
PIN 0063 BN
3880
PIN 0063 BN
3880
PIN 0063 BN
3880
Розміри
та
вага
Довжина
mm
1124
1124
1124
1124
ширина
mm
558
558
558
558
висота
mm
966
966
1076
1076
Типова
робоча
вага
kg
193,5
193,5
209
209
Значення
встановлене
згідно
EN 60355-2-79
Рівень
шуму
Рівень
шуму
L
pA
dB(A)
74
74
76
76
Небезпека
K
pA
dB(A)
1
1
1
1
Значення
вібрації
рука
-
плече
Ручний
розпилювач
m/s
2
2,2
2,2
2,3
2,3
Вихлопне
сопло
m/s
2
1,8
1,8
2,1
2,1
Небезпека
K
m/s
2
1,0
1,0
1,0
1,0
HDS 9/16-4
ST Gas
HDS 9/16-4
ST Gas LPG
HDS 12/14-4
ST Gas
HDS 12/14-4
ST Gas LPG
Інформаційний
аркуш
450
UK
-
9
Обережно
!
Небезпека
травмування
!
Перед
проведенням
ремонтних
робіт
та
робіт
по
технічному
обслуговуванню
слід
вимкнути
головний
вимикач
або
від
'
єднати
штекерний
роз
'
єм
Cekon.
Догляд
та
технічне
обслуговування
План
техогляду
Дата
Вид
діяльності
відповідні
блоки
Проведення
ким
щоденно
Перевірити
ручний
розпилювач
Ручний
розпилювач
Перевірити
,
чи
щільно
закрито
ручний
пістолет
-
розпилювач
.
Перевірити
роботу
захисту
від
ненавмисного
вмикання
.
Несправні
ручні
пістолети
-
розпилювачі
замінити
.
Користувач
Перевірити
шланги
високого
тиску
.
Вихідні
трубопроводи
,
шланги
до
робочого
пристрою
Перевірте
шланги
на
наявність
ушкоджень
.
Ушкоджені
шланги
негайно
замінити
.
Небезпека
нещасних
випадків
!
Користувач
Перевірити
мережний
шнур
та
штепсельну
вилку
Електричне
з
'
єднання
за
допомогою
штекерного
роз
'
єму
/
розетки
Перевірити
мережний
шнур
та
штепсельну
вилку
на
наявність
пошкоджень
.
Негайно
замініть
пошкоджений
мережний
шнур
через
авторизовану
сервісну
службу
/
електрика
.
Користувач
кожного
тижня
або
через
40
годин
експлуатації
Перевірити
стан
мастила
Масляний
резервуар
на
насосі
Якщо
мастило
помутнішало
,
його
слід
замінити
.
Користувач
Перевірити
рівень
мастила
.
Масляний
резервуар
на
насосі
Перевірити
рівень
мастила
у
насосах
.
При
потребі
долити
мастило
(
№
для
замовлення
6.288-016).
Користувач
Очистити
сітчастий
фільтр
Сітковий
фільтр
у
каналі
подачі
води
Див
.
розділ
"
Очищення
сіткового
фільтра
".
Користувач
кожного
місяця
або
через
200
годин
експлуатації
Перевірити
насос
.
Насос
високого
тиску
Перевірити
насос
на
наявність
протікання
.
При
протіканні
понад
3
краплі
за
хвилину
викликати
фахівців
з
відділу
обслуговування
клієнтів
.
Користувач
Перевірити
на
наявність
внутрішніх
відкладень
вся
установка
Увести
в
експлуатацію
установку
зі
струминною
трубкою
без
форсунки
високого
тиску
.
Якщо
робочий
тиск
на
манометрі
пристрою
перевищує
3
Мпа
,
необхідно
видалити
накип
.
Це
ж
необхідно
зробити
в
тому
випадку
,
якщо
при
роботі
без
шланга
високого
тиску
(
вода
вільно
випливає
з
виходу
високого
тиску
)
встановлено
робочий
тиск
понад
0,7-1
МПа
.
Оператор
,
що
пройшов
інструктаж
з
видалення
накипу
Очистити
сітчастий
фільтр
Сітчастий
фільтр
в
системі
запобігання
на
випадок
відсутності
води
Див
.
розділ
"
Очищення
сіткового
фільтра
".
Користувач
через
500-700
робочих
годин
Заміна
Розжарний
запальник
,
що
іонізує
електрод
Замінити
розжарний
запальник
або
іонізуючий
електрод
.
Служба
підтримки
користувачів
один
раз
у
півроку
або
через
1000
годин
експлуатації
Заміна
мастила Насос
високого
тиску
Злити
масло
.
Влити
1
л
нового
масла
(
№
для
замовлення
6.288-016)
Перевірити
рівень
заповнення
в
масляному
баку
.
Користувач
Перевіряти
,
очищати
вся
установка
Візуальний
контроль
установки
,
перевірити
місце
під
'
єднання
шланга
високого
тиску
на
герметичність
,
перевірити
пропускний
клапан
на
герметичність
,
перевірити
шланг
високого
тиску
на
герметичність
,
перевірити
ресивер
,
очистити
нагрівальний
змійовик
від
накипу
,
відчистити
/
замінити
іонізуючий
електрод
,
відрегулювати
пальник
.
Служба
підтримки
користувачів
Замінити
шланг
.
Шланг
для
перемикача
тиску
ВГ
Замінити
шланг
.
Служба
підтримки
користувачів
раз
у
рік
Перевірка
безпеки
роботи
вся
установка
При
роботі
з
рідинними
струминними
установками
слід
дотримуватись
відповідних
національних
норм
.
Фахівець
451
UK
-
10
Можна
заключити
договір
щодо
технічного
обслуговування
пристрою
з
компетентним
бюро
продажу
Kärcher.
Мал
. 1 -
Поз
. 3
Закрийте
подачу
води
.
Відкрутити
на
пристрої
шланг
подачі
води
.
З
допомогою
викрутки
вийняти
сітку
з
місця
під
'
єднання
.
Очистити
сітчастий
фільтр
Знову
зібрати
у
зворотній
послідовності
.
Зняти
листову
обшивку
.
Відкрутити
кутову
деталь
із
запобіжного
блоку
.
Викрутити
із
сіткового
фільтру
гвинти
M8x30.
Кліщами
вийняти
гвинти
та
сітку
.
Очистити
сітчастий
фільтр
Знову
зібрати
у
зворотній
послідовності
.
При
утворенні
відкладень
у
трубопроводах
підвищується
їхній
гідравлічний
опір
,
що
може
призвести
до
спрацьовування
манометричного
вимикача
.
Обережно
!
Небезпека
вибуху
через
утворення
горючих
газів
!
Паління
при
видалення
накипу
заборонене
.
Забезпечити
добре
провітрювання
приміщення
.
Обережно
!
Небезпека
ушкодження
кислотою
!
Носити
захисні
окуляри
й
захисне
взуття
.
Для
видалення
,
відповідно
до
державних
норм
,
дозволяється
використовувати
тільки
перевірені
засоби
для
видалення
накипу
з
маркуванням
про
перевірку
.
–
RM 100 (
номер
для
замовлення
6.287-008)
розчиняє
вапняк
і
прості
з
'
єднання
з
вапняку
й
залишків
миючих
речовин
.
–
RM 101 (
номер
для
замовлення
6.287-013)
розчиняє
відкладення
,
які
не
розчиняються
RM 100.
Заповнити
20-
літровий
бак
15
літрами
води
.
Додати
1
літр
засобу
для
видалення
накипу
.
Підключити
водний
шланг
прямо
до
головної
частини
насоса
й
опустити
вільний
кінець
у
бак
.
Вставити
в
бак
приєднану
напірну
трубку
без
сопла
.
Відкрити
пістолет
і
не
закривати
його
в
ході
видалення
накипу
.
Перемкнути
вимикач
пристрою
в
положення
"
Пальник
включений
"
до
досягнення
температури
приблизно
40 °C.
Відключити
пристрій
і
дати
йому
постояти
20
хвилин
.
Пістолет
повинен
залишатися
відкритим
.
Нарешті
,
прокачати
пристрій
у
суху
.
Вказівка
:
Для
протикорозійного
захисту
й
нейтралізації
кислотних
залишків
у
самому
кінці
ми
рекомендуємо
прокачати
через
пристрій
лужний
розчин
(
наприклад
RM 81)
через
бак
мийного
засобу
.
Пристрій
треба
встановлювати
у
приміщенні
,
захищеному
від
морозів
.
При
небезпеці
замерзання
,
наприклад
,
при
монтажі
на
відкритому
повітрі
,
пристрій
треба
спорожнити
та
промити
антифризом
.
Шланг
подачі
водим
та
рукав
високого
тиску
від
’
єднайте
.
Пристрій
повинен
праціювати
макс
. 1
хв
,
доки
насос
та
лінії
не
будуть
пустими
.
Від
'
єднайте
подачу
на
дні
котла
та
спорожніть
нагрівальний
змійовик
.
Вказівка
:
Дотримуйтеся
інструкцій
з
використання
антифризу
.
Залийте
доверху
в
бак
з
поплавком
звичайний
антифриз
.
Встановити
під
виходом
високого
тиску
відповідну
ємність
.
Увімкнути
пристрій
і
дати
йому
попрацювати
,
доки
спрацює
система
запобігання
у
разі
нестачі
води
в
баку
з
поплавцем
і
пристрій
не
вимкнеться
.
Заповнити
дно
котла
та
сифон
антифризом
.
Це
також
захист
від
корозії
.
Договір
на
техобслуговування
Очистити
сітковий
фільтр
Сітковий
фільтр
у
каналі
подачі
води
Сітчастий
фільтр
у
системі
запобігання
відсутності
води
Видалення
накипу
Проведення
2.
1.
Захист
від
морозів
Спуск
води
Промийте
пристрій
засобами
захисту
від
морозів
.
452
UK
-
11
Обережно
!
Небезпека
травмування
!
Перед
проведенням
ремонтних
робіт
та
робіт
по
технічному
обслуговуванню
слід
вимкнути
головний
вимикач
або
від
'
єднати
штекерний
роз
'
єм
Cekon.
*
Вказівка
Натиснути
кнопку
розблокування
термостата
відпрацьованих
газів
(J)
для
розблокування
датчика
полум
'
я
.
Допомога
у
випадку
неполадок
Несправність
Можливі
причини
Усунення
ким
Пристрій
не
працює
,
контрольна
лампа
готовності
до
роботи
(F)
не
горить
.
У
пристрої
не
має
напруги
.
Перевірити
електричну
мережу
.
Електрик
Спрацювала
схема
з
годинниковим
механізмом
та
блокуванням
.
Пристрій
виключити
на
якийсь
час
,
потім
знову
включити
.
Користувач
Перегорів
запобіжник
у
ланцюзі
керування
(F3).
Запобіжник
установлений
у
керуючому
трансформаторі
(T2).
Вставити
новий
запобіжник
,
при
повторному
перегорянні
усунути
причину
перевантаження
.
Служба
підтримки
користувачів
Несправний
манометричний
вимикач
HD (
високого
тиску
)
або
ND (
низького
тиску
).
Перевірити
манометричний
вимикач
.
Служба
підтримки
користувачів
Несправний
таймер
модуля
(
А
1).
Перевірити
під
'
єднання
,
при
необхідності
замінити
.
Служба
підтримки
користувачів
+
Горить
контрольна
лампа
перегріву
двигуна
(G).
Спрацював
термодатчик
(WS)
у
двигуні
або
вимикач
пристрою
захисту
від
перевантажень
(F1).
Усунути
причину
перевантаження
.
Служба
підтримки
користувачів
Спрацював
пристрій
запобігання
у
разі
відсутності
води
в
баку
з
поплавцем
.
Усунути
нестачу
води
.
Користувач
Пальник
не
запалюється
або
полум
'
я
гасне
під
час
експлуатації
Регулятор
температури
(B)
установлений
на
занадто
низьку
температуру
.
Установити
за
допомогою
регулятора
більш
високу
температуру
.
Користувач
Вимикач
пристрою
перебуває
не
на
пальнику
.
Включити
пальник
.
Користувач
Виключено
пристрій
запобігання
відсутності
води
запобіжного
блоку
.
Забезпечити
достатню
подачу
води
.
Перевірити
пристрій
на
герметичність
.
Користувач
Закрити
газовий
кран
.
Відкрити
газовий
кран
.
Користувач
Спрацював
обмежувач
максимальної
температури
водовипуску
(> 110 °C).
Дати
охолонути
котлу
та
знову
запустити
пристрій
.
Користувач
Перевірити
регулятор
температури
.
Служба
підтримки
користувачів
Загоряється
контрольна
лампочка
термостата
відпрацьованих
газів
(K)
Відсутня
подача
газу
.
Відкрити
кран
подачі
газу
.
Користувач
Засмітилося
підведення
приточного
або
відпрацьованого
повітря
.
Перевірити
вентиляцію
та
систему
відпрацьованого
газу
.
Користувач
Дно
котла
занадто
гаряче
.
Спрацював
обмежник
максимальної
температури
дна
котла
(> 80 °C).
На
дні
котла
немає
сконденсованої
води
.
Залити
5
літрів
води
у
вимірювальний
пацівок
відпрацьованого
газу
.
Користувач
Автомат
спалювання
газу
перебуває
в
положенні
"
Несправність
".
Натиснути
кнопку
розблокування
газового
реле
(
І
).
Користувач
Відсутність
запалювання
*
Перевірити
відстань
між
електродами
автомата
спалювання
газу
та
кабелем
запалювання
.
Відрегулювати
відстань
або
замінити
несправні
деталі
.
У
випадку
необхідності
очистити
.
Служба
підтримки
користувачів
Несправний
вентилятор
або
число
оборотів
плати
. *
Перевірити
вентилятор
і
число
оборотів
плати
.
Перевірити
штекер
та
живильний
провід
.
Замінити
несправні
частини
.
Служба
підтримки
користувачів
453
UK
-
12
Несправність
Можливі
причини
Усунення
ким
Загоряється
контрольна
лампочка
термостата
відпрацьованих
газів
(K)
Спрацював
обмежник
температури
вихлопних
газів
.
Відкрити
ручний
пістолет
-
розпилювач
до
остигання
установки
.
Виключити
та
включити
установку
на
пульті
керування
для
розблокування
обмежувача
температури
.
У
випадку
повторення
звернутися
в
сервісну
службу
.
Користувач
Горить
контрольна
лампа
захисту
від
накипу
(H)
Використовувати
пом
'
якшувач
.
Долити
пом
'
якшувач
.
Користувач
Недостатня
подача
або
відсутність
подачі
мийного
засобу
Установити
дозуючий
клапан
у
положення
"0".
Відрегулювати
дозуючий
клапан
мийного
засобу
.
Користувач
Забито
фільтр
мийного
засобу
або
порожній
бак
із
мийним
засобом
.
Очистити
або
залити
.
Користувач
Пропускають
або
забиті
всмоктувальні
шланги
лінії
подачі
мийного
засобу
,
дозуючі
або
магнітні
клапани
.
Перевірити
,
очистити
.
Користувач
Несправна
електронна
система
або
магнітний
клапан
.
Замінити
Служба
підтримки
користувачів
Тиск
у
пристрої
не
збільшується
Продути
форсунку
.
Замінити
насадку
.
Користувач
Порожній
бак
для
мийного
засобу
.
Долити
мийний
засіб
.
Користувач
Недостатньо
води
.
Забезпечити
достатню
подачу
води
.
Користувач
Забитий
сітчастий
фільтр
на
вході
води
.
Перевірити
,
розібрати
та
очистити
сітчастий
фільтр
.
Користувач
Негерметичний
дозуючий
клапан
мийного
засобу
.
Перевірити
та
ущільнити
.
Користувач
Негерметичний
шланг
подачі
мийного
засобу
.
Замінити
Користувач
Затиснутий
поплавцевий
клапан Перевірити
легкість
ходу
.
Користувач
Негерметичний
запобіжний
клапан
.
Перевірити
регулювання
,
при
потребі
вставити
нове
ущільнення
.
Служба
підтримки
користувачів
Негерметичний
або
встановлений
на
занадто
низьке
значення
клапан
регулювання
подачі
.
Перевірити
елементи
клапана
,
при
виявленні
ушкоджень
замінити
,
при
забрудненні
очистити
.
Служба
підтримки
користувачів
Несправний
магнітний
клапан
у
системі
скидання
тиску
.
Замінити
магнітний
клапан
.
Служба
підтримки
користувачів
Насос
високого
тиску
стукає
,
стрілка
манометра
скаче
Несправний
демпфер
.
Замінити
демпфер
.
Служба
підтримки
користувачів
Водяний
насос
підсмоктує
небагато
повітря
.
Перевірити
усмоктувальну
систему
та
прибрати
витікання
.
Користувач
Пристрій
при
підключеному
ручному
пістолеті
-
розпилювачі
постійно
включається
та
виключається
.
Закупорена
форсунка
в
струминній
трубці
.
Перевірити
,
очистити
.
Користувач
У
пристрої
утворився
накип
.
Див
.
розділ
"
Видалення
накипу
".
Користувач
Змінена
точка
включення
струму
перевантаження
.
Заново
встановити
значення
струму
перевантаження
.
Служба
підтримки
користувачів
Забитий
сітчастий
фільтр
у
системі
запобігання
відсутності
води
.
Перевірити
,
розібрати
та
очистити
сітчастий
фільтр
.
Користувач
При
закритому
ручному
пістолеті
-
розпилювачі
пристрій
не
вимикається
.
З
насоса
не
повністю
відкачане
повітря
.
Установити
вимикач
пристрою
в
положення
"0"
та
витягнути
ручний
пістолет
-
розпилювач
,
поки
з
форсунки
не
перестане
виступати
рідина
.
Знову
включити
пристрій
.
Повторювати
цей
процес
до
досягнення
повного
робочого
тиску
.
Користувач
Несправний
запобіжний
клапан
або
ущільнення
запобіжного
клапана
.
Замінити
запобіжний
клапан
або
ущільнення
.
Служба
підтримки
користувачів
Пневматичний
вимикач
протоки
.
Перевірити
пневматичний
вимикач
і
протоку
.
Служба
підтримки
користувачів
454
UK
-
13
Використання
засобу
для
чищення
полегшує
процес
очищення
.
У
таблиці
представлено
перелік
засобів
для
чищення
.
Перед
використанням
засобів
для
чищення
обов
'
язково
прочитати
вказівки
на
упаковці
.
* =
тільки
для
короткочасного
застосування
,
двоетапний
спосіб
,
після
очищення
промити
холодною
водою
** = ASF =
легка
сепарованість
*** =
для
попереднього
розбризкування
використовується
Foam-Star 2000
Аксесуари
Засіб
для
чищення
Сфера
застосування
Забруднення
,
тип
застосування
Миючі
засоби
значення
pH
(
приблизно
) 1%-
го
розчину
у
водопровідній
воді
вантажні
автомобілі
,
бензоколонки
,
транспортно
-
експедиційні
агентства
,
транспортні
господарства
Пил
,
вуличний
бруд
,
мінеральні
мастила
(
на
лакованих
поверхнях
)
RM 55 ASF **
8
RM 22/ 80-
порошок
ASF
12/10
RM 81 ASF
9
RM 803 ASF
10
RM 806 ASF
11
Консервація
автомобілів
RM 42
холодний
віск
для
очищення
під
високим
тиском
8
RM 820-
гарячий
віск
ASF
7
RM 821-
віск
,
що
розприскується
, ASF
6
RM 824-Super-Perlwachs ASF
7
RM 44
гелевий
очисник
ободів
9
Металообробна
промисловість
мастила
,
консистентні
змащення
,
пил
і
інші
подібні
забруднення
RM 22-
порошок
ASF
12
RM 55 ASF
8
RM 81 ASF
9
RM 803 ASF
10
RM 806 ASF
12
RM 31 ASF (
сильні
забруднення
)
12
RM 39-
рідкий
(
з
корозійним
захистом
)
9
Підприємства
з
переробки
харчових
продуктів
Забруднення
від
легких
до
середніх
,
консистентні
змащення
/
мастила
,
більші
поверхні
.
RM 55 ASF
8
RM 81 ASF
9
RM 882
гелева
піна
OSC
12
RM 58 ASF (
пінотворний
мийний
засіб
)
9
RM 31 ASF *
12
Димчаста
каніфоль
RM 33 *
13
Очищення
та
дезінфекція
RM 732
9
Дезінфекція
RM 735
7...8
Накип
,
мінеральні
відкладення
RM 25 ASF *
2
RM 59 ASF (
очищення
піною
)
2
Санітарно
-
технічна
галузь
***
Вапно
,
сечовий
камінь
,
мило
тощо
.
RM 25 ASF * (
основне
очищення
)
2
RM 59 ASF (
очищення
піною
)
2
RM 68 ASF
5
455
UK

