Karcher Nettoyeur haute pression HDS 9-16-4 ST Gaz: !
!: Karcher Nettoyeur haute pression HDS 9-16-4 ST Gaz
-
14
–
A készülék melegít
ő
berendezése tüzel
ő
berendezés. A felál-
lításnál vegye figyelembe a helyileg érvényben lév
ő
el
ő
íráso-
kat.
–
Csak ellen
ő
rzött kéményeket/füstgáz vezetékeket használ-
jon.
–
A gázvezeték installációját, valamint a készülék gázbeköté-
sét, csak a víz- és gáz-vezetékszerel
ő
kamaránál bejegyzett
cégnek szabad elvégezni.
–
A gázég
ő
fej beállításait és javítását csak szakképzett Kär-
cher szervizszolgálati szerel
ő
knek szabad elvégezni.
–
A gázvezetékben, amelynek legalább 1 col névleges átmér
ő
-
vel kell rendelkezni, egy manométert és egy zárószelepet kell
felszerelni.
–
A magasnyomású szivattyú által okozott vibrációk miatt, a
merev gázvezeték és a készülék közötti összekötést egy haj-
lékony gázcs
ő
vel kell megoldani.
–
10 méternél hosszabb gázvezetékek esetén a névleges át-
mér
ő
nek 1 1/2 colnak vagy nagyobbnak kell lenni. A készülék
gázcsatlakozásának névleges átmér
ő
je 1 col.
Veszély
A hajlékony gázcs
ő
becsavarozásánál az ég
ő
fejnél a csatlakozá-
si niplit SW 36 villáskulccsal kell ellentartani. A csatlakozási nip-
linek nem szabad az ég
ő
fejház felé elfordulni. A
menetcsatlakozás tömít
ő
betétjét a DVGW által jóváhagyott tö-
mít
ő
anyaggal kell ellátni. Lezárás után a csatlakozási helyet a
DVGW által jóváhagyott szivárgásvizsgáló sprayel szivárgásra
ellen
ő
rizni kell.
A gázvezeték cs
ő
szélességét a DVGW TRGI 1986 ill. TRF 1996-
nak megfelel
ő
en kell kiszámítani. A készülék gázcsatlakozójának
névleges átmér
ő
je nem egyezik meg automatikusan a cs
ő
veze-
ték névleges átmér
ő
jével. A gázvezeték dimenzionálásának és
installációjának a megfelel
ő
szabványok és el
ő
írások alapján kell
történni.
–
Minden készüléket saját kéményre kell csatlakoztatni.
–
A füstgáz elvezetést a helyi el
ő
írásoknak megfelel
ő
en és az
illetékes kéménysepr
ő
vel egyeztetve kell elvégezni.
Gázkészülék áramlásbiztosíték nélkül, amelynél a füstgázút min-
den túlnyomás alatt álló alkatrésze égési leveg
ő
vel van körülvé-
ve. A B-23 installáció lehet
ő
séget nyit arra, hogy a készüléket
egy hagyományos egy héjú kéményre DIN 18160 alapján kössék
be és helyiségfügg
ő
en üzemeltessék. El
ő
feltétel, hogy a kémény
f
ű
t
ő
készülékek csatlakoztatására alkalmas legyen ( pl. azzal,
hogy a kéményt nemesfém cs
ő
behúzásával szanálták).
Gázkészülék a tet
ő
re mer
ő
leges égési leveg
ő
hozzávezetéssel
és füstgáz elvezetéssel. A torkolatok egymáshoz közel találhatók
azonos nyomásterjedelemben.
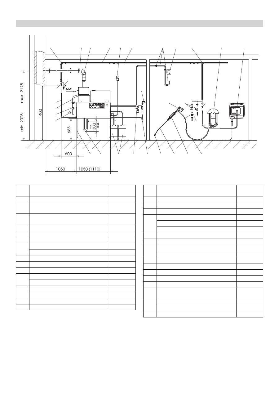
Berendezés installációja
Csak felhatalmazott szakszemélyzet részére!
Általános
Gáz általában
Gázvezetékek
Leveg
ő
-/füstgáz elvezetés
!
Gázkészülék füstgáz berendezéssel, amely az égési leveg
ő
t
a felállítási helyiségb
ő
l veszi el
B 23 típus
Gázkészülék füstgáz berendezéssel, amely az égési leveg
ő
t
egy zárt rendszeren keresztül a szabadba vezeti
C 33 típus
296
HU
-
15
Gázkészülék égési leveg
ő
hozzávezetéssel és füstgáz elveze-
téssel leveg
ő
-füstgáz-rendszer bekötésére.
Gázkészülék különválasztott égési leveg
ő
hozzávezetéssel és
füstgáz elvezetéssel. A torkolatok különböz
ő
nyomásterjedelem-
ben találhatók.
Megjegyzés:
Ahhoz, hogy az el
ő
írt f
ű
tési értéket elérje, be kell
tartani a m
ű
szaki adatoknál megadott kémény huzatot.
A kondenzátum vezetéket közvetlenül a kondenzátum csatlako-
zónál kell a szifoncs
ő
be csatlakoztatni. A szifoncs
ő
magasságá-
nak 30 cm-nek kell lenni. A szifoncs
ő
nem része a szállítási
tételnek. A kondenzátumvezetéknek nem szabad szilárdan kap-
csolódni a csatornával. A kondenzátumnak szabadon ki kell tudni
folyni egy tölcsérbe vagy egy semlegesít
ő
tartályba.
–
A felszerelés el
ő
tt ellen
ő
rizni kell a fal teherbírását. A mellé-
kelt rögzít
ő
anyagok betonhoz alkalmasak. Üreges téglához-
, téglához- és gázbeton falakhoz megfelel
ő
tipliket és csava-
rokat kell használni, pl. tipli-horgony (furatképet lásd a méret
lapon).
–
3. ábra - 19. és 25. poz.
A készüléket nem szabad mereven összekötni a vízvezeték-
vagy a magasnyomású cs
ő
vezeték-hálózattal. Feltétlenül fel
kell szerelni összeköt
ő
csöveket.
–
3. ábra - A
A vízvezeték-hálózat és az összeköt
ő
töml
ő
között egy záró-
csapot kell felszerelni.
A magasnyomású vezetékek beszerelésénél figyelembe kell
venni a törvényalkotó adott nemzeti el
ő
írásait.
–
A nyomás esésnek a cs
ő
vezetékben 1,5 MPa alatt kell lenni.
–
A kész cs
ő
vezetéket 32 MPa-al kell ellen
ő
rizni.
–
A cs
ő
vezeték szigetelésének 100 °C h
ő
mérsékletnek kell el-
lenállni.
3. ábra - 20. tétel
A tartályokat úgy kell felállítani, hogy a tisztítószer legalsó szintje
ne legyen 1,5 méternél alacsonyabban a készülék aljától és a fel-
s
ő
szint ne legyen a készülék aljánál magasabban.
3. ábra - B és 19. poz.
A vízbemenetet megfelel
ő
víztöml
ő
vel csatlakoztassa a víz-
vezetékhálózathoz.
–
A vízellátás teljesítményének legalább 1300 l/h kell lenni leg-
alább 0,1 MPa mellett.
–
A vízh
ő
mérsékletnek 30 °C alatt kell lenni.
C 43 típus
C 53 típus
Kondezátum lefolyó
Falra szerelés
A magasnyomású vezetékek szerelése
Tisztítószer tartály felállítása
Vízellátás
297
HU
-
16
Vigyázat
A megengedett maximális hálózati impedenciát az elektromos
csatlakozási pontnál (lásd M
ű
szaki adatok) nem szabad túllépni.
Amennyiben valami nem világos a csatlakozási pontnál lév
ő
há-
lózati impedanciával kapcsolatban, akkor kérem, lépjen kapcso-
latba az energiaellátó vállalattal.
Megjegyzés:
A bekapcsolás rövid id
ő
re feszültség csökkenést
eredményez. Kedvez
ő
tlen hálózati feltételeknél más készülékek
akadályozása léphet fel.
–
A csatlakozási értékeket lásd a M
ű
szaki adatoknál és a Típus
táblán.
–
Az elektromos csatlakozást villanyszerel
ő
nek kell elvégezni
és meg kell felelnie az IEC 60364-1-nek.
–
Áramvezet
ő
alkatrészeknek, kábeleknek és a munkaterüle-
ten lév
ő
készülékeknek kifogástalan állapotban, vízsugár el-
len védettnek kell lenni.
Az elektromos balesetek elkerülése érdekében javasoljuk, hogy
a dugaljat el
ő
kapcsolt FI véd
ő
kapcsolóval (max. 30 mA névleges
kioldó áramer
ő
sség) használják.
Elektromos csatlakozás létrehozása.
Az állandó magasnyomású tisztítóberendezés kikapcsolására
egy elzárható f
ő
kapcsolót (3. ábra - 6. poz.) kell felszerelni nem
veszélyeztetett, könnyen hozzáférhet
ő
helyen.
A f
ő
kapcsoló érintkezési nyílásának legalább 3 mm-nek kell len-
ni.
Szerelje a Cekon-dugós kapcsolót a készülék csatlakozási
kábelére.
Dugja a Cekon-dugós kapcsolót a dugaljba.
Az állandó magasnyomású tisztítóberendezés kikapcsolásához
a Cekon-dugós kapcsolónak könnyen hozzáférhet
ő
nek kell lenni.
Ellen
ő
rizze a gázcsatlakozást.
Vigyázat
Készülék rongálódásveszélye túlmelegedés által.
Kösse be a szifoncsövet a kazán alján és töltse fel vízzel.
A kazánt a kéménynyíláson át 4 liter vízzel töltse fel.
Az els
ő
használat el
ő
tt a vízszivattyú olaj tartály fedelének te-
tejét le kell vágni.
3. ábra - 14. tétel
Kösse össze a magasnyomású töml
ő
t a kézi szórópisztollyal
és a sugárcs
ő
vel és csatlakoztassa a készülék magasnyomá-
sú kimenetéhez vagy a magasnyomású cs
ő
vezetékrendszer-
hez.
Er
ő
sítse a szórófej fúvókát (b) a hollandi anyával (a) a sugár-
cs
ő
re (d). Ügyeljen arra, hogy a tömít
ő
gy
ű
r
ű
(c) helyesen le-
gyen a horonyban.
Elektromos csatlakozás
Szilárdan felszerelt elektromos csatlakozás
Elektromos csatlakozás dugós kapcsolóval/dugaljjal
Els
ő
üzembevétel
A készülék gyárilag földgáz készülékként G 20 gázfajtára és fo-
lyékonygáz készülékként G 31-re van beállítva. A földgáz ké-
szülék G 25 vagy más (lásd típus tábla) földgázra vagy a
folyékonygáz készülék G 30 vagy más (lásd típus tábla) folyé-
konygázra átállításakor a földgáz készüléknél a földgáz füstgáz
értékeit és a folyékonygáz készüléknél a folyékonygáz értékeit
a szerviz információ alapján kell beállítani.
A mellékelt üres táblára az újonnan beállított gázfajtát kell felírni
és a címmez
ő
t a készülék jobb oldalán kell elhelyezni. Ugyan-
akkor az ott található gyárilag elhelyezett G 20 (földgáz készü-
lék) vagy G 31 (folyékonygáz készülék) táblát el kell távolítani.
Üzembevétel el
ő
tti intézkedések
a
b
c
d
298
HU
-
17
Távolítsa le a rugót (c) a vízlágyító tartály (a) fedél támaszté-
káról (b).
Töltse fel a tartályt RM 110 (megrend. szám 2.780-001) Kär-
cher vízlágyító folyadékkal.
Veszély
Veszélyes elektromos feszültség! Beállítást csak villamos szak-
ember végezheti.
A helyi víz keménység megállapítása:
–
A helyi ellátó vállalaton keresztül,
–
keménység ellen
ő
rz
ő
berendezéssel (megrend. szám 6.768-
004).
Vegye le a készülék fedelét.
Nyissa ki a kapcsolószekrényt a kezel
ő
pulton.
Állítsa be a fordulat potenciométert (a) a vízkeménység sze-
rint. A táblázatból le tudja olvasni a megfelel
ő
beállítást.
Például:
Egy 15 °dH vízkeménységhez a fordulat potenciométeren 6-os
skálaértéket állítson be. Ebb
ő
l egy 31 másodperces szünetid
ő
következik, azaz a mágnes szelep minden 31 másodpercben rö-
viden kinyílik.
Az üzemkészenléti id
ő
beállítása a elektromos szekrény bal olda-
lán lév
ő
nagyobb platinán történik.
Az üzemkészenléti id
ő
gyárilag a minimum id
ő
re 2 percre van be-
állítva és maximum 8 percre lehet emelni.
Vízk
ő
elleni védelem
Vízkeménység (°dH)
5
10
15
20
25
A fordulat potenciométer
skálája
8
7
6
5
4,5
Szünet id
ő
(másodperc)
50
40
31
22
16
b
c
a
a
Az üzemkészenléti id
ő
átállítása
8 7 6 5 4 3 2 1
S2
min.
max.
299
HU
-
18
3. ábra
Installációs anyag
1
2
3
5
6
7
8
9
10
12
13
A
15
11b
11a
11c
11a
25
21
22
23
11b
24
4
20
19a
19
18
17
16
14
11d
B
poz.
Installációs anyag
Megrende-
lési szám
1
Sarokvas összecsavarása
6.386-356
2
Szennygázvezeték készlet, vízszintes,
150 mm
6.526-231
3
Szennygázvezeték készlet, függ
ő
leges,
150 mm
6.526-232
4
Alkatrész készlet, szifoncs
ő
2.640-422
5
H
ő
szigetelés
6.286-114
6
F
ő
kapcsoló
6.631-455
7
Cs
ő
vezeték készlet, horganyzott acél
2.420-004
Cs
ő
vezeték készlet, nemesfém
2.420-006
8
Távirányító alkatrész készlete
2.744-008
9
Vész-Ki kapcsoló alkatrész készlete
2.744-002
10
T-összecsavarozás
6.386-269
11a
Csatlakozási támasztékok, sárgaréz
2.638-180
Csatlakozási támasztékok, nemesfém
2.638-181
11b
Zárócsap NW 8, horganyzott acél
4.580-144
Zárócsap NW 8, nemesfém
4.580-163
11c
Gyorskapcsoló rögzített része
6.463-025
11d
Gyorskapcsoló szabad része
6.463-023
poz.
Installációs anyag
Megrende-
lési szám
12
Töml
ő
tartó
2.042-001
13
Töml
ő
dob
2.637-238
14
Magasnyomású töml
ő
10m
6.388-083
15
Easypress kézi szórópisztolyt.
4.775-463
Fordulat szabályozó HDS 9/16-4
4.775-470
Fordulat szabályozó HDS 12/14-4
4.775-471
16
Sugárcs
ő
tartó
2.042-002
17
Sugárcs
ő
4.760-550
18
Szórófej fúvóka HDS 9/16-4
2.883-402
Szórófej fúvóka HDS 12/14-4
2.883-406
19
Víztöml
ő
4.440-282
19a
Mágnes szelep vízellátó
4.743-011
20
Tisztítószer tartály, 60 l
5.070-078
21
Gáztöml
ő
R1“
6.388-228
22
Gáz-zárócsap R1“
6.412-389
23
Manométer, gáz (Figyelem! Számoljon a
zárószeleppel az építkezésnél.)
6.412-059
24
Fali konzol alkatrész készlete
2.053-005
Padlóváz alkatrész készlete
2.210-008
25
Magasnyomású töml
ő
6.389-028
300
HU
-
19
Ezennel tanúsítjuk, hogy az alábbiakban megnevezett gép terve-
zése és építési módja alapján az általunk forgalomba hozott kivi-
telben megfelel az EK irányelvek vonatkozó, alapvet
ő
biztonsági
és egészségügyi követelményeinek. A gép jóváhagyásunk nélkül
történ
ő
módosítása esetén ez a nyilatkozat elveszti érvényessé-
get. A készülék megfelel az EU-ban és Magyarországon (HU)
harmonizált szabványoknak.
5.957-648
Alulírottak az ügyvezetés megbízásából és felhatalmazásával
lépnek fel.
A dokumentációért felel
ő
s személy:
S. Reiser
Alfred Kärcher GmbH & Co. KG
Alfred-Kärcher-Str. 28 - 40
71364 Winnenden (Germany)
Tel.: +49 7195 14-0
Fax: +49 7195 14-2212
Winnenden, 2014/02/01
Minden országban az illetékes forgalmazónk által kiadott garan-
cia feltételek érvényesek. Az esetleges üzemzavarokat a készü-
léken a garancia lejártáig költségmentesen elhárítjuk,
amennyiben anyag- vagy gyártási hiba az oka.
EK konformitási nyiltakozat
Termék:
Nagynyomású tisztító
Típus:
1.251-xxx
Vonatkozó európai közösségi irányel-
vek
:
2009/142/EK
2006/42/EK (+2009/127/EK)
2004/108/EK
Alkalmazott harmonizált szabványok:
EN 55014–1: 2006+A1: 2009+A2: 2011
EN 55014–2: 1997+A1: 2001+A2: 2008
EN 60335–1
EN 60335–2–79
EN 62233: 2008
EN 61000–3–2: 2006+A1: 2009+A2: 2009
HDS 12/14:
EN 61000–3–3: 2008
HDS 9/16:
EN 61000–3–11: 2000
Alkalmazott specifikációk:
QA 195 (nem LPG)
Megnevezett hivatal neve:
A 2009/142/EK számára
GASTEC
Wilmersdorf 50
7327 AC Apeldoorn
Azonosító sz. 0063
Garancia
CEO
Head of Approbation
301
HU
-
20
Szerviz
Berendezés típusa:
Gyártási szám:
Üzembevétel ideje:
Ellen
ő
rzés ideje:
Tényállás:
Aláírás
Ellen
ő
rzés ideje:
Tényállás:
Aláírás
Ellen
ő
rzés ideje:
Tényállás:
Aláírás
Ellen
ő
rzés ideje:
Tényállás:
Aláírás
302
HU
-
1
P
ř
ed prvním použitím svého za
ř
ízení si p
ř
e
č
t
ě
te tento
p
ů
vodní návod k používání,
ř
i
ď
te se jím a uložte jej pro
pozd
ě
jší použití nebo pro dalšího majitele.
–
P
ř
ed prvním uvedením do provozu bezpodmíne
č
n
ě
č
t
ě
te
bezpe
č
nostní pokyny
č
. 5.956-309!
–
P
ř
i p
ř
epravních škodách ihned informujte obchodníka.
Informace o obsažených látkách (REACH)
Aktuální informace o obsažených látkách naleznete na adrese:
www.kaercher.com/REACH
Nebezpe
č
í!
Pro bezprost
ř
edn
ě
hrozící nebezpe
č
í, které vede k t
ě
žkým fyzic-
kým zran
ě
ním nebo k smrti.
몇
Upozorn
ě
ní
Pro potencionáln
ě
nebezpe
č
nou situaci, která by mohla vést k
t
ě
žkým fyzickým zran
ě
ním nebo k smrti.
Pozor
Pro potencionáln
ě
nebezpe
č
nou situaci, která m
ů
že vést k leh-
kým fyzickým zran
ě
ním nebo k v
ě
cným škodám.
Vysokotlaké vodní paprsky mohou být p
ř
i neodborném
používání nebezpe
č
né. Vysokotlakým vodním pa-
prskem se nesmí mí
ř
it na osoby, elektrickou výstroj
pod nap
ě
tím, ani na za
ř
ízení samotné.
–
Dodržujte aktuáln
ě
platné místní právní p
ř
edpisy pro proudo-
vé kapalinové
č
erpadlo.
–
Dodržujte aktuáln
ě
platné místní právní p
ř
edpisy pro prevenci
nehodovosti. Proudová kapalinová
č
erpadla je t
ř
eba pravidel-
n
ě
testovat a výsledky test
ů
zaznamenávat písemn
ě
.
–
Topné za
ř
ízení p
ř
ístroje je spalovací za
ř
ízení. Spalovací za-
ř
ízení je t
ř
eba pravideln
ě
testovat podle aktuáln
ě
platných
místních právních p
ř
edpis
ů
.
–
P
ř
i provozu za
ř
ízení v uzav
ř
ených prostorách je nutné zajistit
bezpe
č
né odvád
ě
ní spalin (odvod spalin bez p
ř
erušova
č
e ta-
hu). Dále je nutné zajistit dostate
č
ný p
ř
ívod
č
erstvého vzdu-
chu.
–
Dodržujte bezpe
č
nostní pokyny k používaným
č
isticím pro-
st
ř
edk
ů
m (zpravidla na štítku na obalu).
P
ř
ed instalací p
ř
ístroje by m
ě
lo dojít k dohod
ě
s plynárnami a
okresním komíná
ř
stvím.
P
ř
i instalaci je t
ř
eba dodržovat p
ř
edpisy stavebního práva, živ-
nostenskho práva a ochrany proti imisím. Odkazujeme na níže
uvedené p
ř
edpisy, sm
ě
rnice a normy:
–
Za
ř
ízení smí instalovat podle aktuáln
ě
platných národních
p
ř
edpis
ů
pouze podnik specializovaný na elektroinstalace.
–
U elektrické instalace je t
ř
eba dodržovat p
ř
íslušné národní
zákonodárné p
ř
edpisy.
–
U instalace plynu je t
ř
eba dodržovat aktuální národní zákon-
ná na
ř
ízení.
–
Instalaci plynových vedení a p
ř
ipojení p
ř
ístroje na plyn smí
provád
ě
t pouze odborná firma s povolením v oblasti plyná-
renství a vodárenství.
–
Nastavení, údržbá
ř
ské práce a opravy ho
ř
áku sm
ě
jí provád
ě
t
pouze zaškolení monté
ř
i servisní služby firmy Kärcher.
–
P
ř
i plánování komínu je t
ř
eba dodržet v míst
ě
platné sm
ě
rni-
ce.
Obsah
Ochrana životního prost
ř
edí
CS . . 1
Symboly použité v návodu k obsluze
CS . . 1
Symboly na za
ř
ízení . . . . . .
CS . . 1
Všeobecné bezpe
č
nostní pokyny
CS . . 1
Používání v souladu s ur
č
ením
CS . . 2
Funkce . . . . . . . . . . . . . . . .
CS . . 2
Bezpe
č
nostní za
ř
ízení. . . . .
CS . . 2
Prvky p
ř
ístroje . . . . . . . . . . .
CS . . 3
Uvedení do provozu . . . . . .
CS . . 4
Obsluha. . . . . . . . . . . . . . . .
CS . . 4
Zastavení provozu. . . . . . . .
CS . . 6
Odstavení . . . . . . . . . . . . . .
CS . . 6
Ukládání . . . . . . . . . . . . . . .
CS . . 6
P
ř
eprava . . . . . . . . . . . . . . .
CS . . 6
Technické údaje . . . . . . . . .
CS . . 7
Ošet
ř
ování a údržba . . . . . .
CS . . 9
Pomoc p
ř
i poruchách . . . . .
CS . 11
P
ř
íslušenství . . . . . . . . . . . .
CS . 13
Instalace za
ř
ízení . . . . . . . .
CS . 14
Prohlášení o shod
ě
pro ES .
CS . 19
Záruka . . . . . . . . . . . . . . . . .
CS . 19
odd
ě
lení služeb zákazník
ů
m
CS . 20
Ochrana životního prost
ř
edí
Obalové materiály jsou recyklovatelné. Obal nezaha-
zujte do domovního odpadu, ale odevzdejte jej k op
ě
-
tovnému zužitkování.
P
ř
ístroj je vyroben z hodnotných recyklovatelných
materiál
ů
, které je t
ř
eba znovu využít. Baterie, olej a
podobné látky se nesm
ě
jí dostat do okolního prost
ř
e-
dí. Použitá za
ř
ízení proto odevzdejte na p
ř
íslušných
sb
ě
rných místech
Motorový olej, topný olej, nafta a benzín se nesm
ě
jí dostat do
okolního prost
ř
edí. Chra
ň
te p
ů
du a zajist
ě
te likvidaci použitého
oleje zp
ů
sobem šetrným k životnímu prost
ř
edí.
Č
isticí prost
ř
edky Kärcher jsou vhodné k odlu
č
ování (ASF). To
znamená, že neomezují funk
č
nost odlu
č
ova
č
e oleje. Seznam
doporu
č
ených
č
isticích prost
ř
edk
ů
je uveden v kapitole „P
ř
íslu-
šenství“.
Symboly použité v návodu k obsluze
Symboly na za
ř
ízení
Všeobecné bezpe
č
nostní pokyny
P
ř
edpisy, sm
ě
rnice a pravidla
303
CS
-
2
Pracovišt
ě
je u ovládacího panelu. Další pracovišt
ě
jsou v závis-
losti na uspo
ř
ádání za
ř
ízení u dopl
ň
kových za
ř
ízení (st
ř
íkacích
za
ř
ízení), p
ř
ipojených k odb
ě
rným míst
ů
m.
–
Za ú
č
elem ochrany p
ř
ed odst
ř
ikující vodou
č
i ne
č
istotami
noste p
ř
i práci s
č
isti
č
em ochranný od
ě
v a ochranné brýle.
P
ř
ístroje slouží k odstra
ň
ování ne
č
istot z povrch
ů
pomocí voln
ě
unikajícího proudu vody. Používá se zvlášt
ě
k
č
išt
ě
ní stroj
ů
, vo-
zidel a fasád.
Pozor!
Nebezpe
č
í poran
ě
ní P
ř
i použití u
č
erpacích statnic nebo jiných
nebezpe
č
ných píst dbejte na odpovídající bezpe
č
nostní p
ř
edpi-
sy.
–
Studená voda se dostává p
ř
es motorový chladicí had do ná-
drže s plovákem a odtud do vn
ě
jšího plášt
ě
pr
ů
tokového oh
ř
í-
va
č
e a dále k sací stran
ě
vysokotlakého
č
erpadla. V nádrži s
plovákem je p
ř
idáváno zm
ě
k
č
ovadlo.
Č
erpadlo
č
erpá vodu a
nasávaný
č
isticí prost
ř
edek p
ř
es pr
ů
tokový oh
ř
íva
č
. Pom
ě
r
č
isticího prost
ř
edku ve vod
ě
lze nastavit dávkovacím venti-
lem. Pr
ů
tokový oh
ř
íva
č
je zah
ř
íván plynovým ho
ř
ákem.
–
Výstup vysokého tlak se v dom
ě
p
ř
ipojuje na p
ř
ítomnou vyso-
kotlakou sí
ť
. Na
č
erpací místa této sít
ě
se p
ř
ipojí ru
č
ní st
ř
íkací
pistole vysokotlakou hadicí.
Bezpe
č
nostní prvky slouží k ochran
ě
uživatele a nesmí být uve-
deny mimo provoz nebo obcházena jejich funkce.
Pojistka proti nedostatku vody zamezuje zapnutí vysokotlakého
č
erpadla p
ř
i nedostatku vody.
Toto zajišt
ě
ní proti nedostatku vody zamezuje p
ř
eh
ř
átí ho
ř
áku p
ř
i
nedostatku vody. Ho
ř
ák se spouští jen p
ř
i dostate
č
ném p
ř
ívodu
vody.
P
ř
i p
ř
ekro
č
ení provozního tlaku je p
ř
ístroj presostatem vypnut.
Toto nastavení nelze m
ě
nit.
P
ř
i poruše presostatu se otev
ř
e pojistný ventil. Tento ventil je na-
stavený z výroby a zaplombován. Toto nastavení nelze m
ě
nit.
P
ř
i nedostatku paliva nebo poruše ho
ř
áku je systémem kontroly
plamene vypnut ho
ř
ák. Rozsvítí se kontrolka poruchy ho
ř
áku (E).
Pokud je motor ho
ř
áku zablokován, aktivuje se nadproudový
chráni
č
. Motor vysokotlakého
č
erpadla je jišt
ě
n motorovým jisti-
č
em a jisti
č
em vinutí.
Termostat spalin se aktivuje, když teplota spalin p
ř
ekro
č
í 320°C.
Rozsvítí se kontrolka termostatu spalin (K).
Omezova
č
maximální teploty na dn
ě
kotle (> 80°C) a ve výstupu
vody (> 110°C) se vypnou a rozsvítí se kontrolka porucha ho
ř
áku
(E).
Spína
č
tlaku spalin vypne ho
ř
ák, pokud v systému spalin vznikne
nep
ř
ípustn
ě
vysoký protitlak, nap
ř
. p
ř
i ucpání.
Po vypnutí p
ř
ístroje ru
č
ní st
ř
íkací pistolí a po uplynutí pohoto-
vostní doby otev
ř
e magnetický ventil namontovaný ve vysokotla-
kém systému, takže klesne tlak.
Pracovišt
ě
Osobní ochranné prost
ř
edky
P
ř
i
č
išt
ě
ní díl
ů
zvyšujících hluk používejte k za-
mezení poškození sluchu chráni
č
e.
Používání v souladu s ur
č
ením
Nenechte odpadní vodu obsahující minerální oleje odtéct do ze-
m
ě
, vody nebo kanalizace. Oble
č
ení a hadry proto zbavujte ole-
je pouze na vhodných místech.
Funkce
Bezpe
č
nostní za
ř
ízení
Zajišt
ě
ní proti nedostatku vody v nádrži plovákem
Zajišt
ě
ní proti nedostatku vody v bezpe
č
nostním
bloku
Presostat
Bezpe
č
nostní ventil
Kontrola plamene
Nadproudová ochrana
Termostat spalin
Omezova
č
teploty
Spína
č
tlaku spalin
Redukce tlaku ve vysokotlakém systému
304
CS
-
3
Obr. 1
1 Ho
ř
ák
2 Manometr
3 P
ř
ívod
č
isté vody se sítkem
4 Vysokotlaký výstup
5 P
ř
ipojení plynu
6 Sací hadice
č
isticího prost
ř
edku I
7 Sací hadice
č
isticího prost
ř
edku II (volitelná)
8 Nádrž na zm
ě
k
č
ovadlo
9 Elektrické napájení
10 Nádrž s plovákem
11 Ovládací panel
Obr. 2
A Spína
č
p
ř
ístroje
B Regulátor teploty
C Dávkovací ventil
č
isticího prost
ř
edku I
D Dávkovací ventil
č
isticího prost
ř
edku II (volitelný)
E Kontrolka poruchy ho
ř
áku
F Kontrolka pohotovostního stavu
G Kontrolka p
ř
eh
ř
átí motoru
H Kontrolka ochrany proti zanesení vodním kamenem
I
Odblokovací tla
č
ítko plynové relé
J Odblokovací tla
č
ítko termostat spalin
K Kontrolní sv
ě
tlo termostat spalin
Prvky p
ř
ístroje
4
5
6
7
3
8
10
1
11
2
9
Ovládací panel
305
CS
-
4
몇
Pozor!
Nebezpe
č
í poran
ě
ní P
ř
ístroj, p
ř
ívodní vedení, vysokotlaká hadi-
ce a p
ř
ípojky musí být v bezvadném stavu. Pokud jejich stav není
bez závad, nelze p
ř
ístroj používat.
–
Údaje pro p
ř
ipojení viz technické údaje a identifika
č
ní štítek.
–
Eletrické p
ř
ipojení musí provést elektroinstalatér a musí od-
povídat IEC 60364-1.
Uživatel smí p
ř
ístroj používat pouze k ú
č
el
ů
m, ke kterým byl p
ř
í-
stroj vyroben. P
ř
i práci s p
ř
ístrojem je uživatel povinen dbát míst-
ních specifik a brát ohled na osoby, nacházející se v blízkosti
p
ř
ístroje.
Nikdy p
ř
ístroj nenechávejte bez dozoru, je-li v provozu.
Nebezpe
č
í!
–
Nebezpe
č
í opa
ř
ení horkou vodou! Vodním paprskem nemi
ř
te
na osoby ani zví
ř
ata.
–
Nebezpe
č
í popálení o horké sou
č
ásti za
ř
ízení! V režimu s
horkou vodou se nedotýkejte neizolovaných potrubí a hadic.
Proudnici držte jen za držadla s ochrannou vrstvou. Nedotý-
kejte se hrdla na spaliny na pr
ů
tokovém oh
ř
íva
č
i.
–
Nebezpe
č
í otravy nebo poleptání
č
isticím prost
ř
edkem! Dodr-
žujte pokyny uvedené na
č
isticích prost
ř
edcích.
Č
isticí pro-
st
ř
edky skladujte mimo dosah nepovolaných osob.
Nebezpe
č
í!
Nebezpe
č
í smrtelného úrazu elektrickým proudem! Vodním pa-
prskem nemi
ř
te na tato za
ř
ízení:
–
elektrické p
ř
ístroje a za
ř
ízení,
–
toto za
ř
ízení,
–
sou
č
ásti po proudem v pracovním prostoru.
Vodní paprsek vycházející z proudnice vytvá
ř
í zp
ě
tný náraz. Vli-
vem zahnutí proudnice p
ů
sobí síla sm
ě
rem nahoru.
Nebezpe
č
í!
–
Nebezpe
č
í úrazu! P
ů
sobením zp
ě
tného nárazu proudnice
m
ů
žete ztratit rovnováhu. M
ů
že dojít k pádu. Proudnice se
m
ů
že voln
ě
pohybovat a zranit osoby. Zvolte bezpe
č
né sta-
novišt
ě
a pistoli pevn
ě
držte. Páku ru
č
ní st
ř
íkací pistole nikdy
neupev
ň
ujte.
–
Paprsek nikdy nesm
ěř
ujte na sebe
č
i na jiné osoby za ú
č
elem
o
č
išt
ě
ní od
ě
vu
č
i obuvi.
–
Nebezpe
č
í úrazu odlétávajícími díly! Odlétávající úlomky
nebo p
ř
edm
ě
ty mohou zranit osoby nebo zví
ř
ata. Vodním pa-
prskem nikdy nemi
ř
te na k
ř
ehké nebo volné p
ř
edm
ě
ty.
–
Nebezpe
č
í úrazu p
ř
i poškození! Pneumatiky a ventily
č
ist
ě
te
z minimální vzdálenosti 30 cm.
몇
Upozorn
ě
ní
Nebezpe
č
í ohrožení škodlivými látkami! Nest
ř
íkejte na tyto mate-
riály, protože m
ů
že dojít ke zví
ř
ení zdraví škodlivých látek:
–
materiály obsahující azbest,
–
materiály, které mohou obsahovat zdraví škodlivé látky.
Nebezpe
č
í!
–
Nebezpe
č
í úrazu unikajícím vodním paprskem, který m
ů
že
být horký! Pro za
ř
ízení jsou optimáln
ě
dimenzovány pouze
originální vysokotlaké hadice Kärcher. Za používání jiných
hadic se neru
č
í.
–
Nebezpe
č
í ohrožení zdraví
č
isticími prost
ř
edky! P
ř
i eventuál-
ním p
ř
idání
č
isticího prost
ř
edku nemá voda vycházející z p
ř
í-
stroje kvalitu pitné vody.
–
Nebezpe
č
í poškození sluchu p
ř
i práci na dílech zvyšujících
hluk! V t
ě
chto p
ř
ípadech používejte chráni
č
e sluchu.
Pozor
Nebezpe
č
ní poran
ě
ní vycházejícím, p
ř
ípadn
ě
horkým vodním
paprskem!
Nebezpe
č
í!
Vždy než za
č
nete s p
ř
ístrojem pracovat, zkontrolujte vysokotla-
kou hadici, zda není poškozená. Poškozenou hadici ihned vy-
m
ěň
te.
P
ř
ed každým použitím zkontrolujte nepoškozený stav vyso-
kotlaké hadice, potrubí, armatur a proudnice.
Zkontrolujte správné upevn
ě
ní a t
ě
snost spojek hadice.
Pozor
Nebezpe
č
í poškození p
ř
i chodu na sucho.
Zkontrolujte množství
č
isticího prost
ř
edku v nádrži a v p
ř
ípa-
d
ě
pot
ř
eby ho dopl
ň
te.
Zkontrolujte množství zm
ě
k
č
ovací kapaliny a v p
ř
ípad
ě
pot
ř
e-
by ji dopl
ň
te.
Spína
č
p
ř
ístroje (A) p
ř
epn
ě
te do polohy „0“.
Zav
ř
ete vodovodní p
ř
ívod.
Aktivujte ru
č
ní st
ř
íkací pistoli, dokud p
ř
ístroj není bez tlaku.
Zav
ř
ete p
ř
ívod plynu.
Uvedení do provozu
P
ř
ívod el. proudu
Obsluha
Bezpe
č
nostní pokyny
!
Uvedení do pohotovostního stavu
Vypínání v p
ř
ípad
ě
nouze
306
CS
-
5
Otá
č
ením ventilu regulujícího množství po sm
ě
ru hodinových
ru
č
i
č
ek dosáhnete vyššího pracovního tlaku a v
ě
tšího
č
erpa-
ného množství.
Otá
č
ením ventilu regulujícího množství proti sm
ě
ru hodino-
vých ru
č
i
č
ek dosáhnete menšího pracovního tlaku a menšího
č
erpaného množství.
P
ř
i oto
č
ení regulátoru množství vody doprava se zvyšuje
č
er-
pané množství a provozní tlak.
P
ř
i oto
č
ení regulátoru množství vody doleva se snižuje
č
erpa-
né množství a provozní tlak.
Otev
ř
ete p
ř
ívod vody.
Symbol „Motor zapnutý“
Zatáhn
ě
te za páku ru
č
ní st
ř
íkací pistole a spína
č
p
ř
ístroje (A)
p
ř
epn
ě
te do polohy „1“ (Motor zapnutý).
Kontrolka (F) signalizuje pohotovostní stav.
Pozor!
Nebezpe
ř
í opa
ř
ení!
Pozor
P
ř
i provozu s horkou vodou bez paliva dojde k poškození
č
erpa-
dla paliva. P
ř
ed provozem s horkou zajist
ě
te p
ř
ívod paliva.
Ho
ř
ák lze p
ř
ipojit v p
ř
ípad
ě
pot
ř
eby.
Symbol „Ho
ř
ák zapnutý“
Spína
č
p
ř
ístroje (A) p
ř
epn
ě
te do polohy „Ho
ř
ák zapnutý“.
Regulátorem teploty (B) nastavte požadovanou teplotu vody.
Maximální teplota je 98 °C.
–
P
ř
i uvoln
ě
ní páky ru
č
ní st
ř
íkací pistole b
ě
hem provozu je p
ř
í-
stroj vypnut.
–
P
ř
i dalším otev
ř
ení pistole b
ě
hem nastavitelné pohotovostní
doby (2-8 minut) se p
ř
ístroj op
ě
t automaticky zapne.
–
P
ř
i p
ř
ekro
č
ení pohotovostní doby se vypne bezpe
č
nostní
č
a-
sový spína
č
č
erpadla a ho
ř
áku. Kontrolka pohotovostního
stavu (F) zhasne.
–
K op
ě
tovnému zapnutí p
ř
epn
ě
te spína
č
p
ř
ístroje do polohy
„0“ a pak ho op
ě
t zapn
ě
te. Pokud je p
ř
ístroj ovládán dálkovým
ovládáním, lze k op
ě
tovnému zapnutí použít p
ř
íslušný spína
č
na dálkovém ovládání.
–
Pneumatiky vozidel se
č
istí pouze pomocí trysky pro plochý
paprsek (25 °) st
ř
íkáním z minimální vzdálenosti 30 cm. V
žádném p
ř
ípad
ě
se pneumatiky nesm
ě
jí
č
istit kulatým pa-
prskem.
Pro všechny ostatní p
ř
ípady jsou k dispozici tyto trysky:
P
ř
i délce potrubí více než 20 m nebo délce vysokotlaké hadice
jmenovitého pr
ů
m
ě
ru 8 více než 2 x 10 m je nutné používat tyto
trysky:
Nastavení pracovního tlaku a
č
erpaného množství
Nastavení na p
ř
ístroj
Nastavení na pistoli Easypress (volitelné)
Provoz se studenou vodou
R
Provoz s horkou vodou
Pohotovostní stav
Výb
ě
r trysky
Zne
č
išt
ě
-
ní
Tryska
Úhel st
ř
í-
kání
Č
. dílu
6.415
Tlak
[MPa]
Zp
ě
tný
náraz [N]
HDS 9/16
silné
00060
0°
-649
16
46
st
ř
ední
25060
25°
-647
mírné
40060
40°
-648
HDS 12/14
silné
00080
0°
-150
14
55
st
ř
ední
25080
25°
-152
mírné
40080
40°
-153
Zne
č
išt
ě
-
ní
Tryska
Úhel st
ř
í-
kání
Č
. dílu
6.415
Tlak
[MPa]
Zp
ě
tný
náraz [N]
HDS 9/16
silné
0075
0°
-419
10
37
st
ř
ední
2575
25°
-421
mírné
4075
40°
-422
HDS 12/14
silné
0010
0°
-082
10
46
st
ř
ední
2510
25°
-252
mírné
4010
40°
-253
307
CS
-
6
–
Č
isticí prost
ř
edky usnad
ň
ují
č
išt
ě
ní. Jsou nasávány z externí
nádrže.
–
P
ř
ístroj se základním vybavením má dávkovací ventil (C).
Další dávkovací za
ř
ízení (dávkovací ventil D) lze dodat jako
zvláštní p
ř
íslušenství. Pak lze nasávat dva r
ů
zné
č
isticí pro-
st
ř
edky.
–
Dávkované množství se nastavuje dávkovacími ventily (C
nebo D) na ovládacím panelu. Nastavená hodnota odpovídá
podílu
č
isticího prost
ř
edku v procentech.
–
Vn
ě
jší stupnice platí p
ř
i použití ne
ř
ed
ě
ného
č
isticího pro-
st
ř
edku (100 % chemikálie).
–
Vnit
ř
ní stupnice platí p
ř
i použití
č
isticího prost
ř
edku
ř
ed
ě
ného
v pom
ě
ru 1+3 (25 % chemikálie + 75 % vody).
V následující tabulce je uvedena spot
ř
eba
č
isticího prost
ř
edku
odpovídající hodnotám na vn
ě
jší stupnici:
P
ř
esné dávkované množství závisí na t
ě
chto okolnostech:
–
viskozit
ě
č
isticího prost
ř
edku
–
výšce nasávání
–
pr
ů
to
č
ném odporu vysokotlakého potrubí
Pokud je nutné p
ř
esné dávkování, je nutné nasávané množství
č
isticího prost
ř
edku odm
ěř
it (nap
ř
. nasáváním z m
ě
rky).
Upozorn
ě
ní:
Doporu
č
ení k
č
istidl
ů
m najdete v kapitole "P
ř
íslu-
šenství".
Pozor
P
ř
i provozu bez zm
ě
k
č
ovadla m
ů
že dojít k zanesení pr
ů
tokového
oh
ř
íva
č
e vodním kamenem.
P
ř
i prázdné nádrži na zm
ě
k
č
ovadlo bliká kontrolka ochrany proti
zanesení vodním kamenem (H).
Obr. 1 - pol. 8
Dopl
ň
te nádrž na zm
ě
k
č
ovadlo zm
ě
k
č
ovací kapalinou RM
110 (2.780-001).
Nebezpe
č
í!
Nebezpe
č
í opa
ř
ení horkou vodou! Po provozu s horkou vodou
musí být za
ř
ízení za ú
č
elem ochlazení provozováno nejmén
ě
dv
ě
minuty se studenou vodou p
ř
i otev
ř
ené pistoli.
P
ř
i provozu s horkou vodou nastavte regulátor teploty (B) na
nejnižší teplotu.
P
ř
ístroj používejte minimáln
ě
30 sekund bez
č
isticího pro-
st
ř
edku.
Spína
č
p
ř
ístroje (A) p
ř
epn
ě
te do polohy „0“.
Zav
ř
ete vodovodní p
ř
ívod.
Aktivujte ru
č
ní st
ř
íkací pistoli, dokud p
ř
ístroj není bez tlaku.
Ru
č
ní st
ř
íkací pistoli zajist
ě
te pomocí pojistné západky proti
neúmyslnému otev
ř
ení.
P
ř
i delších provozních p
ř
estávkách nebo když není možné ulože-
ní v prostoru chrán
ě
ném p
ř
ed mrazem, prove
ď
te tato opat
ř
ení
(viz kapitola „Údržba“,
č
ást „Ochrana proti zamrznutí“):
Vypus
ť
te vodu.
P
ř
ístroj vypláchn
ě
te nemrznoucí sm
ě
sí.
Vypn
ě
te hlavní spína
č
a zajist
ě
te jej resp. vytáhn
ě
te zástr
č
ku
Cekon.
Zav
ř
ete p
ř
ívod plynu.
Pozor
Nebezpe
č
í úrazu a nebezpe
č
í poškození! Dbejte na hmotnost
p
ř
ístroje p
ř
i jeho uskladn
ě
ní.
Pozor
Nebezpe
č
í úrazu a nebezpe
č
í poškození! Dbejte na hmotnost
p
ř
ístroje p
ř
i p
ř
eprav
ě
.
P
ř
i p
ř
eprav
ě
v dopravních prost
ř
edcích zajist
ě
te za
ř
ízení proti
skluzu a p
ř
eklopení podle platných p
ř
edpis
ů
.
Dávkování
č
isticího prost
ř
edku
Poloha
0,5
1
8
Množství
č
isticího prost
ř
edku [l/
hod.]
14...15 22...24
50
Koncentrace
č
isticího prost
ř
edku
[%]
1,5
2,5
> 5
Dopl
ň
ování zm
ě
k
č
ovadla
Zastavení provozu
Po provozu s použitím
č
isticího prost
ř
edku
Vypnutí p
ř
ístroje
Odstavení
Ukládání
P
ř
eprava
308
CS
-
7
Technické údaje
HDS 9/16-4
ST Gas
HDS 9/16-4
ST Gas LPG
HDS 12/14-4
ST Gas
HDS 12/14-4
ST Gas LPG
1.251-108
1.251-109
1.251-110
1.251-111
Výkonnostní parametry
Provozní tlak vody (se standardní tryskou)
MPa (bar)
16 (160)
16 (160)
14 (140)
14 (140)
Max. provozní p
ř
etlak (bezpe
č
nostní ventil)
MPa (bar)
18,5 (185)
18,5 (185)
18,5 (185)
18,5 (185)
Č
erpané množství vody (plynule regulovatelné)
l/h (l/min)
500-1000 (8,3-
16,6)
500-1000 (8,3-
16,6)
600-1200 (10-
20)
600-1200 (10-
20)
Sání
č
isticího prost
ř
edku (plynule regulovatelné)
l/h (l/min)
0-50 (0-0,8)
0-50 (0-0,8)
0-60 (0-1)
0-60 (0-1)
P
ř
ívod vody
P
ř
ivád
ě
né množství (min.)
l/h (l/min)
1100 (18,3)
1100 (18,3)
1300 (21,7)
1300 (21,7)
Vstupní tlak (min.)
MPa (bar)
0,1 (1)
0,1 (1)
0,1 (1)
0,1 (1)
P
ř
ívodní tlak (max.)
MPa (bar)
0,6 (6)
0,6 (6)
0,6 (6)
0,6 (6)
Elektrické p
ř
ipojení
Druh proudu
--
3N~
3N~
3N~
3N~
Frekvence
Hz
50
50
50
50
Nap
ě
tí
V
380-420
380-420
380-420
380-420
P
ř
íkon
kW
6,4
6,4
7,5
7,5
Elektrické jišt
ě
ní (setrva
č
né)
A
16
16
20
20
Ochrana
--
IPX5
IPX5
IPX5
IPX5
Ochranná t
ř
ída
--
I
I
I
I
Maximáln
ě
p
ř
ípustná impedance sít
ě
ohm
ů
(0,381+j
0,238)
(0,381+j
0,238)
--
--
Elektrické napájení
mm
2
5 x 2,5
5 x 2,5
5 x 2,5
5 x 2,5
Teplota
Teplota p
ř
ívodu (max.)
°C
30
30
30
30
Max. provozní teplota horké vody
°C
98
98
98
98
Max. teplota bezpe
č
nostní termostat
°C
110
110
110
110
Zvýšení teploty p
ř
i max. pr
ů
toku vody
°C
60-65
60-65
60-65
60-65
Hrubý topný výkon
kW
75
75
95
95
Tah komína
kPa
0,01-0,04
0,01-0,04
0,01-0,04
0,01-0,04
Plyn – p
ř
ipojovací hodnoty
zemní plyn E (G 20)
m
3
/h
7,2
--
9,8
--
zemní plyn LL (G 25)
m
3
/h
8,2
--
11,4
--
Jmenovitý p
ř
ípojný tlak (zemní plyn)
kPa
1,8-5
--
1,8-5
--
Propan
kg/h
--
5,7
--
7,2
Jmenovitý p
ř
ípojný tlak (propan)
kPa
--
5-6
--
5-6
Údaje o životním prost
ř
edí
Normovaný koeficient využití
%
97
97
97
97
Normovaný emisní faktor NO
X
(zemní plyn G 25)
mg/kWh
< 40
--
< 40
--
Normovaný emisní faktor CO (zemní plyn G 25)
mg/kWh
< 40
--
< 40
--
Hodnoty rozm
ě
ru komínu
Schopnost odolat p
ř
etlaku (min.)
kPa
0,05
0,05
0,05
0,05
Pot
ř
eba tahu
kPa
0
0
0
0
Hmotnostní proud spalin – plná zát
ě
ž
kg/h
130
130
166
166
CO
2
(zemní plyn)
%
9,5
--
9,5
--
CO
2
(propan)
%
--
12
--
12
Teplota spalin max./min.
°C
190/150
190/150
170/130
170/130
Spalovací vzduch/P
ř
ívod vzduchu
Max. délka: 10 m se dv
ě
ma 90° oblouky (minimální pr
ů
m
ě
r 100 mm). Dle
místních p
ř
edpis
ů
z místa instalace nebo zvenku.
Výpus
ť
kondenzátu
Výpus
ť
kondenzátu (max.)
l/h
4 (p
ř
es sifon
do kanalizace)
4 (p
ř
es sifon
do kanalizace)
4 (p
ř
es sifon
do kanalizace)
4 (p
ř
es sifon
do kanalizace)
P
ř
ipojení
DN
40 (HTR)
40 (HTR)
40 (HTR)
40 (HTR)
Minimální sloupec vody, sifon
mm
300
300
300
300
309
CS
-
8
Povolení EN 60335-2-79
Povolení dle Sm
ě
rnice použití plynu (90/396/EEC)
--
Gastec QA
Low NO
X
Gastec QA
Gastec QA
Low NO
X
Gastec QA
Kategorie p
ř
ístroj
ů
Evropa
--
I 2E (r), I
2ELL, I 2H, I
2L, I2 HE
I 3P
I 2E (r), I
2ELL, I 2H, I
2L, I2 HE
I 3P
Typ p
ř
ístroje
--
B23, C33,
C43, C53
B23, C33,
C43, C53
B23, C33,
C43, C53
B23, C33,
C43, C53
CE ident.
č
íslo výrobku
--
PIN 0063 BN
3880
PIN 0063 BN
3880
PIN 0063 BN
3880
PIN 0063 BN
3880
Rozm
ě
ry a hmotnost
Délka
mm
1124
1124
1124
1124
Ší
ř
ka
mm
558
558
558
558
Výška
mm
966
966
1076
1076
Typická provozní hmotnost
kg
193,5
193,5
209
209
Zjišt
ě
né hodnoty dle EN 60355-2-79
Emise hluku
Hladina akustického tlaku L
pA
dB(A)
74
74
76
76
Kolísavost K
pA
dB(A)
1
1
1
1
Hodnota vibrace ruka-paže
Ru
č
ní st
ř
íkací pistole
m/s
2
2,2
2,2
2,3
2,3
Proudová trubice
m/s
2
1,8
1,8
2,1
2,1
Kolísavost K
m/s
2
1,0
1,0
1,0
1,0
HDS 9/16-4
ST Gas
HDS 9/16-4
ST Gas LPG
HDS 12/14-4
ST Gas
HDS 12/14-4
ST Gas LPG
P
ř
ehled rozm
ě
r
ů
310
CS
-
9
Nebezpe
č
í!
Nebezpe
č
í úrazu! P
ř
ed údržbovými pracemi a opravami musíte
vypnout hlavní spína
č
resp. vytáhnout zástr
č
ku Cekon.
Ošet
ř
ování a údržba
Plán údržby
Interval
Č
innost
P
ř
íslušný modul
Postup
Provádí
denn
ě
Kontrola ru
č
ní
st
ř
íkací pistole
Ru
č
ní st
ř
íkací pistole
Zkontrolujte, zda ru
č
ní st
ř
íkací pistole p
ř
i zav
ř
ení
t
ě
sní. Zkontrolujte funk
č
nost pojistky proti neú-
myslné manipulaci. Vadné ru
č
ní st
ř
íkací pistole
vym
ěň
te.
Obsluha
Kontrola vyso-
kotlakých hadic
Výstupní vedení, hadice ve-
doucí k pracovnímu nástroji
Zkontrolujte, zda nejsou hadice poškozené. Vad-
né hadice ihned vym
ěň
te. Nebezpe
č
í úrazu!
Obsluha
Zkontrolujte p
ř
i-
pojovací vedení
se zástr
č
kou
Elektrická p
ř
ípojka se zástr
č
-
kou / zásuvkou
Zkontrolujte, zda napájecí vedení a zástr
č
ka nej-
sou poškozeny. Poškozené napájecí vedení je
nutné nechat neprodlen
ě
vym
ě
nit autorizovanou
servisní službou, resp. odborníkem na elektrické
p
ř
ístroje.
Obsluha
týdn
ě
nebo po 40
provozních hodi-
nách
Kontrola stavu
oleje
Nádrž na olej u
č
erpadla
Pokud je olej mlé
č
ný, je nutné ho vym
ě
nit.
Obsluha
Kontrola stavu
oleje
Nádrž na olej u
č
erpadla
Zkontrolujte stav oleje v
č
erpadle. V p
ř
ípad
ě
po-
t
ř
eby dopl
ň
te olej (obj.
č
. 6.288-016).
Obsluha
Č
išt
ě
ní sítka
sítko v p
ř
ívodu vody
Viz
č
ást „
Č
išt
ě
ní síta“.
Obsluha
m
ě
sí
č
n
ě
nebo po
200 provozních
hodinách
Kontrola
č
erpa-
dla
Vysokotlaké
č
erpadlo
Zkontrolujte, zda není
č
erpadlo net
ě
sné. Pokud
vytéká více než 3 kapky a minutu, obra
ť
te se na
odd
ě
lení služeb zákazník
ů
m
Obsluha
Zjiš
ť
ování vnit
ř
-
ních usazenin
Celé za
ř
ízení
Za
ř
ízení zapn
ě
te s proudnicí bez vysokotlaké
trysky. Pokud se provozní tlak na tlakom
ě
ru zvý-
ší nad 3 MPa, je nutné odstranit usazený vodní
kámen. To platí také v p
ř
ípad
ě
, že je p
ř
i provozu
bez vysokotlakého potrubí (voda voln
ě
vytéká z
vysokotlakého výstupu) zjišt
ě
n provozní tlak vyš-
ší než 0,7–1 MPa.
obsluha na
základ
ě
po-
kyn
ů
k od-
stran
ě
ní
vodního ka-
mene
Č
išt
ě
ní sítka
Síto v zajišt
ě
ní nedostatku
vody
Viz
č
ást „
Č
išt
ě
ní síta“.
Obsluha
po 500-700 pro-
vozních hodin
Vym
ěň
te
Žárový zapalova
č
, ioniza
č
ní
elektroda
Vym
ěň
te žárový zapalova
č
nebo ioniza
č
ní elek-
trodu.
odd
ě
lení slu-
žeb zákazní-
k
ů
m
pololetn
ě
nebo po
1000 provozních
hodin
Vým
ě
na oleje
Vysokotlaké
č
erpadlo
Vypus
ť
te olej. Nalijte 1 l nového oleje (obj.
č
.
6.288-016). Na nádrži s olejem zkontrolujte
množství nápln
ě
.
Obsluha
Kontrola,
č
išt
ě
ní Celé za
ř
ízení
Prove
ď
te vizuální kontrolu za
ř
ízení, zkontrolujte
t
ě
snost vysokotlakých spoj
ů
, t
ě
snost p
ř
epoušt
ě
-
cího ventilu, vysokotlakou hadici, tlakový zásob-
ník, odstra
ň
te z topné spirály saze a vodní
kámen, vy
č
ist
ě
te nebo vym
ěň
te ioniza
č
ní elek-
trody, nastavte ho
ř
ák.
odd
ě
lení slu-
žeb zákazní-
k
ů
m
Vym
ěň
te hadici. Hadice k tlakovému spína
č
i
spalin
Vložte novou hadici.
odd
ě
lení slu-
žeb zákazní-
k
ů
m
ro
č
n
ě
Bezpe
č
nostní
kontrola
Celé za
ř
ízení
Provést bezpe
č
nostní kontrolu podle p
ř
íslušných
národních p
ř
edpis
ů
pro kapalinová st
ř
íkací za
ř
í-
zení.
odborný pra-
covník
311
CS
-
10
S p
ř
íslušným prodejním odd
ě
lením spole
č
nosti Kärcher lze uza-
v
ř
ít smlouvu o údržb
ě
p
ř
ístroje.
Obr. 1 - pol. 3
Zav
ř
ete vodovodní p
ř
ívod.
Odšroubujte od p
ř
ístroje hadici p
ř
ívodu vody.
Šroubovákem vyndejte ze spoje sítko.
Č
išt
ě
ní sítka
V opa
č
ném po
ř
adí díly op
ě
t smontujte.
Sejm
ě
te kryt plechu.
Odšroubujte úhle bezpe
č
nostního bloku.
Zašroubujte šroub M8x30 do síta.
Šroub a síto vytáhn
ě
te klešt
ě
mi.
Č
išt
ě
ní sítka
V opa
č
ném po
ř
adí díly op
ě
t smontujte.
P
ř
i vzniku usazenin v potrubí se zvyšuje pr
ů
to
č
ný odpor, takže
m
ů
že dojít k aktivaci presostatu.
Pozor
Nebezpe
č
í výbuchu ho
ř
lavých plyn
ů
! P
ř
i odváp
ň
ování je zakázá-
no kou
ř
ení. Postarejte se o dobré v
ě
trání.
Pozor
Nebezpe
č
í poran
ě
ní kyselinou! Noste ochranné brýle a ochranné
rukavice.
K odstra
ň
ování se podle právních p
ř
edpis
ů
sm
ě
jí používat pouze
schválená rozpoušt
ě
dla vodního kamene.
–
P
ř
ípravek RM 100 (obj.
č
. 6.287-008) rozpouští vápenec a
jednoduché slou
č
eniny vápence se zbytky
č
isticích prost
ř
ed-
k
ů
.
–
P
ř
ípravek RM 101 (obj.
č
. 6.287-013) rozpouští usazeniny,
které nelze rozpustit p
ř
ípravkem RM 100.
Do dvacetilitrové nádoby nalijte 15 l vody.
P
ř
idejte litr rozpoušt
ě
dla vodního kamene.
Hadici na vodu p
ř
ipojte p
ř
ímo k hlavici
č
erpadla a volný konec
vložte do nádoby.
P
ř
ipojenou proudnici bez trysky vložte do nádoby.
Otev
ř
ete ru
č
ní st
ř
íkací pistoli a b
ě
hem odstra
ň
ování vodního
kamene ji nezavírejte.
Spína
č
p
ř
ístroje p
ř
epn
ě
te do polohy „Ho
ř
ák zapnutý“, dokud
teplota nedosáhne asi 40 °C.
P
ř
ístroj vypn
ě
te a nechte ho 20 minut zastavený. Ru
č
ní st
ř
í-
kací pistole musí z
ů
stat otev
ř
ená.
Pak z p
ř
ístroje vy
č
erpejte nápl
ň
.
Upozorn
ě
ní:
Pro ochranu p
ř
ed korozí a pro neutralizaci zbytk
ů
kyseliny doporu
č
ujeme následn
ě
p
ř
ístrojem pro
č
erpat alkalický
roztok (nap
ř
. RM 81) p
ř
es nádobu na
č
isticí prost
ř
edek.
P
ř
ístroj je t
ř
eba umístit do prostoru chrán
ě
ného proti mrazu. Po-
kud hrozí mráz, nap
ř
. p
ř
i instalaci ve venkovním prost
ř
edí, je nut-
né p
ř
ístroj vyprázdnit a propláchnout nemrznoucí sm
ě
sí.
Odšroubujte vodní p
ř
ívodní hadici a vysokotlakou hadici.
P
ř
ístroj nechte b
ě
žet maximáln
ě
1 minutu, dokud se
č
erpadlo
a vedení nevyprázdní.
Odšroubujte p
ř
ívodní vedení na dn
ě
kotle a vyprázdn
ě
te top-
nou spirálu.
Upozorn
ě
ní:
Dodržujte p
ř
edpisy pro zacházení od výrobce ne-
mrznoucí sm
ě
si.
Až k okraji nalijte b
ě
žnou nemrznoucí sm
ě
s.
Pod vysokotlaký výstup postavte nádobu k zachycení.
P
ř
ístroj zapn
ě
te a nechte zapnutý, dokud se neaktivuje pojist-
ka proti nedostatku vody v nádrži s plovákem a p
ř
ístroj se ne-
vypne.
Dno kotle a sifon napl
ň
te nemrznoucí kapalinou.
Tím se také dosáhne jisté ochrany proti korozi.
Smlouva o údržb
ě
Č
išt
ě
ní sítka
Síto v p
ř
ívodu vody
Síto v zajišt
ě
ní nedostatku vody
Odstra
ň
ování vodního kamene
Postup
2.
1.
Ochrana proti zamrznutí
Vypušt
ě
ní vody
P
ř
ístroj vypláchn
ě
te nemrznoucí sm
ě
sí
312
CS
-
11
Nebezpe
č
í!
Nebezpe
č
í úrazu! P
ř
ed údržbovými pracemi a opravami musíte
vypnout hlavní spína
č
resp. vytáhnout zástr
č
ku Cekon.
*
Upozorn
ě
ní
Stiskn
ě
te odblokovací tla
č
ítko termostat spalin (J) pro odbloková-
ní kontroly plamene.
Pomoc p
ř
i poruchách
Porucha
Možná p
ř
í
č
ina
Odstran
ě
ní
Provádí
P
ř
ístroj neb
ě
ží, kontrolka po-
hotovostního stavu (F) nesví-
tí.
P
ř
ístroj je bez nap
ě
tí.
Zkontrolujte elektrickou sí
ť
.
elektriká
ř
Spušt
ě
ní bezpe
č
nostního
č
asové-
ho spína
č
e
P
ř
ístroj spína
č
em krátce vypn
ě
te a pak za-
pn
ě
te.
Obsluha
Spálená pojistka
ř
ídicího okruhu
(F3). Pojistka je umíst
ě
na v
ř
ídicím
transformátoru (T2).
Namontujte novou pojistku, p
ř
i op
ě
tovném
spálení odstra
ň
te p
ř
í
č
inu p
ř
etížení.
odd
ě
lení služeb zá-
kazník
ů
m
Vadný presostat HD (vysoký tlak)
nebo ND (nízký tlak).
Zkontrolujte presostaty.
odd
ě
lení služeb zá-
kazník
ů
m
Vadný modul
č
asova
č
e (A1).
Zkontrolujte konektory, v p
ř
ípad
ě
pot
ř
eby je
vym
ěň
te.
odd
ě
lení služeb zá-
kazník
ů
m
+ Svítí kontrolka p
ř
eh
ř
átí mo-
toru (G).
Aktivace tepelného
č
idla (WS) v
motoru nebo nadproudového chrá-
ni
č
e (F1).
Odstra
ň
te p
ř
í
č
inu p
ř
etížení.
odd
ě
lení služeb zá-
kazník
ů
m
Aktivace pojistky proti nedostatku
vody v nádrži s plovákem.
Zajist
ě
te dostatek vody.
Obsluha
Ho
ř
ák se nezapaluje nebo
plamen zhasne b
ě
hem pro-
vozu.
Na regulátoru (B) je nastavena p
ř
í-
liš nízká teplota.
Na regulátoru nastavte vyšší teplotu.
Obsluha
Spína
č
p
ř
ístroje není p
ř
epnutý na
ho
ř
ák.
Zapn
ě
te ho
ř
ák.
Obsluha
Vypnula pojistka proti nedostatku
vody v bezpe
č
nostním bloku.
Zajist
ě
te dostate
č
ný p
ř
ívod vody. Zkontroluj-
te t
ě
snost p
ř
ístroje.
Obsluha
Kohout plynu je zav
ř
ený.
Kohout plynu je otev
ř
ený.
Obsluha
Omezova
č
maximální teploty ve
výpusti vody (> 110°C) se vypnul.
Kotel nechte vychladnout a p
ř
ístroj znovu za-
pn
ě
te.
Obsluha
Zkontrolujte regulátor teploty.
odd
ě
lení služeb zá-
kazník
ů
m
Kontrolka termostatu spalin
(K) svítí.
Není p
ř
ívod plynu.
Otev
ř
ete p
ř
ívod plynu.
Obsluha
P
ř
ívod p
ř
ivád
ě
ného a odvád
ě
ného
vzduchu je ucpaný.
Zkontrolujte v
ě
trání a systém spalin.
Obsluha
Dno kotle je p
ř
íliš horké. Omezo-
va
č
maximální teploty na dn
ě
kotle
(> 80°C) se vypnul. Na dn
ě
kotle
není žádná kondenzovaná voda.
Napl
ň
te 5 l vody nad m
ěř
icí hrdlo spalin.
Obsluha
Automat plynového ohništ
ě
ukazu-
je poruchu.
Stiskn
ě
te odblokovací tla
č
ítko plynové relé
(I).
Obsluha
Zapalování nefunguje. *
Zkontrolujte vzdálenost elektrod zapalovací-
ho transformátoru a zapalovacích kabel
ů
.
Vzdálenost upravte nebo vym
ěň
te vadné dí-
ly. V p
ř
ípad
ě
pot
ř
eby vy
č
ist
ě
te.
odd
ě
lení služeb zá-
kazník
ů
m
Dmychadlo nebo deska
ř
ízení otá-
č
ek jsou vadné. *
Zkontrolujte dmychadlo a desku
ř
ízení otá-
č
ek. Zkontrolujte zástr
č
ku a p
ř
ívod. Vadné
díly vym
ěň
te.
odd
ě
lení služeb zá-
kazník
ů
m
313
CS
-
12
Porucha
Možná p
ř
í
č
ina
Odstran
ě
ní
Provádí
Kontrolka termostatu spalin
(K) svítí.
Byl aktivován omezova
č
teploty
spalin.
Otev
ř
ete ru
č
ní st
ř
íkací pistoli, dokud se za
ř
í-
zení neochladí. Omezova
č
teploty odblokujte
vypnutím a zapnutím za
ř
ízení na ovládacím
panelu. V p
ř
ípad
ě
opakování poruchy se ob-
ra
ť
te na odd
ě
lení služeb zákazník
ů
m.
Obsluha
Svítí kontrolka ochrany proti
zanesení vodním kamenem
(H).
Došlo zm
ě
k
č
ovadlo.
Dopl
ň
te zm
ě
k
č
ovadlo.
Obsluha
Nedostate
č
né nebo žádné
č
erpání
č
isticího prost
ř
edku.
Dávkovací ventil v poloze „0“.
Nastavte dávkovací ventil
č
isticího prost
ř
ed-
ku.
Obsluha
Ucpaný filtr
č
isticích prost
ř
edk
ů
nebo prázdná nádrž.
Vy
č
ist
ě
te, resp. dopl
ň
te.
Obsluha
Net
ě
sná nebo ucpaná sací hadice,
dávkovací ventil nebo magnetický
ventil na
č
isticí prost
ř
edky.
Zkontrolujte, vy
č
ist
ě
te.
Obsluha
Závada elektroniky nebo magne-
tického ventilu.
Vym
ěň
te.
odd
ě
lení služeb zá-
kazník
ů
m
P
ř
ístroj nevytvá
ř
í plný tlak.
Vypláchnutá tryska.
Vym
ěň
te trysku.
Obsluha
Prázdná nádrž na
č
isticí prost
ř
ed-
ky.
Dopl
ň
te
č
isticí prost
ř
edek.
Obsluha
Nedostatek vody.
Zajist
ě
te dostate
č
ný p
ř
ívod vody.
Obsluha
Ucpané sítko na p
ř
ívodu vody.
Zkontrolujte, sítko vymontujte a vy
č
ist
ě
te.
Obsluha
Net
ě
sný dávkovací ventil na
č
isticí
prost
ř
edky.
Zkontrolujte a ut
ě
sn
ě
te.
Obsluha
Net
ě
sné hadice na
č
isticí prost
ř
edky. Vym
ěň
te.
Obsluha
Plovákový ventil je zablokovaný.
Zkontrolujte volný chod.
Obsluha
Net
ě
sný pojistný ventil.
Zkontrolujte nastavení, v p
ř
ípad
ě
pot
ř
eby na-
montujte nové t
ě
sn
ě
ní.
odd
ě
lení služeb zá-
kazník
ů
m
Ventil k regulaci množství net
ě
sný
nebo nastavený p
ř
íliš nízko.
Zkontrolujte sou
č
ásti ventilu, v p
ř
ípad
ě
po-
škození vym
ěň
te, v p
ř
ípad
ě
zne
č
išt
ě
ní vy
č
is-
t
ě
te.
odd
ě
lení služeb zá-
kazník
ů
m
Vadný magnetický ventil k redukci
tlaku.
Vym
ěň
te magnetický ventil.
odd
ě
lení služeb zá-
kazník
ů
m
Vysokotlaké
č
erpadlo klepe,
tlakom
ě
r siln
ě
kolísá.
Vadný tlumi
č
chv
ě
ní.
Vym
ěň
te tlumi
č
chv
ě
ní.
odd
ě
lení služeb zá-
kazník
ů
m
Vodní
č
erpadlo nasává malé
množství vzduchu.
Zkontrolujte sací systém a odstra
ň
te net
ě
s-
nost.
Obsluha
P
ř
ístroj se p
ř
i otev
ř
ené ru
č
ní
st
ř
íkací pistoli stále vypíná a
zapíná.
Ucpaná tryska v proudnici.
Zkontrolujte, vy
č
ist
ě
te.
Obsluha
P
ř
ístroj je zanesený vodním kame-
nem.
Viz
č
ást „Odstra
ň
ování vodního kamene“.
Obsluha
Zm
ě
nil se bod zapnutí p
ř
epoušt
ě
-
cího ventilu.
Nechte p
ř
epoušt
ě
cí ventil znovu nastavit.
odd
ě
lení služeb zá-
kazník
ů
m
Síto v zajišt
ě
ní nedostatku vody
ucpané.
Zkontrolujte, sítko vymontujte a vy
č
ist
ě
te.
Obsluha
P
ř
ístroj se p
ř
i zav
ř
ení ru
č
ní
st
ř
íkací pistole nevypíná.
Č
erpadlo není úpln
ě
odvzdušn
ě
né. Spína
č
p
ř
ístroje p
ř
epn
ě
te do polohy „0“ a za-
táhn
ě
te za ru
č
ní st
ř
íkací pistoli, aby z trysky
neunikala žádná kapalina. Pak p
ř
ístroj op
ě
t
zapn
ě
te. Tento postup opakujte, dokud není
dosaženo plného provozního tlaku.
Obsluha
Vadný pojistný ventil, resp. jeho
t
ě
sn
ě
ní.
Vym
ěň
te pojistný ventil, resp. jeho t
ě
sn
ě
ní.
odd
ě
lení služeb zá-
kazník
ů
m
Tlakový spína
č
reduk
č
ního ventilu. Zkontrolovat tlakový spína
č
a reduk
č
ní ventil. odd
ě
lení služeb zá-
kazník
ů
m
314
CS
-
13
Č
isticí prost
ř
edky usnad
ň
ují
č
išt
ě
ní. V této tabulce je uveden vý-
b
ě
r
č
isticích prost
ř
edk
ů
. P
ř
ed použitím
č
isticích prost
ř
edk
ů
je
bezpodmíne
č
n
ě
nutné dodržet pokyny uvedené na obalu.
* = Jen ke krátkodobému použití, dvoufázová metoda, oplách-
nout
č
istou vodou.
** = ASF = vhodné k odlu
č
ování
*** = K p
ř
edb
ě
žnému post
ř
iku je vhodný p
ř
ípravek Foam-Star
2000
P
ř
íslušenství
Č
isticí prost
ř
edky
Oblast použití
Zne
č
išt
ě
ní, zp
ů
sob použití
Č
isticí prost
ř
edky
Hodnota pH (p
ř
ibl.) 1%
roztok ve vod
ě
z vodo-
vodu
Servis motorových vozi-
del,
č
erpací stanice, zasi-
latelství, vozové parky
Prach, ne
č
istoty ze silnice, mine-
rální oleje (na lakovaných plo-
chách)
RM 55 ASF **
8
Prášek RM 22/80 ASF
12/10
RM 81 ASF
9
RM 803 ASF
10
RM 806 ASF
11
Konzervace vozidel
Vosk pro vysokotlaké
č
isti
č
e RM 42 k použití
za studena
8
Vosk RM 820 ASF k použití za horka
7
Vosk RM 821 ASF ke st
ř
íkání
6
Perle
ť
ový vosk RM 824 Super ASF
7
Želatinový
č
isti
č
ráfk
ů
RM 44
9
Kovozpracující pr
ů
mysl
Oleje, tuky, prach a podobné ne-
č
istoty
Prášek RM 22 ASF
12
RM 55 ASF
8
RM 81 ASF
9
RM 803 ASF
10
RM 806 ASF
12
RM 31 ASF (silné zne
č
išt
ě
ní)
12
Tekutý p
ř
ípravek RM 39 (s inhibitorem koroze)
9
Potraviná
ř
ské provozy
Mírné až st
ř
ední zne
č
išt
ě
ní, tuky,
oleje, velké plochy
RM 55 ASF
8
RM 81 ASF
9
Želatinová p
ě
na RM 882 OSC
12
RM 58 ASF (p
ě
nový
č
isticí prost
ř
edek)
9
RM 31 ASF *
12
Prysky
ř
ice
RM 33 *
13
Č
išt
ě
ní a dezinfekce
RM 732
9
Dezinfekce
RM 735
7...8
Vodní kámen, minerální usazeniny RM 25 ASF *
2
RM 59 ASF (p
ě
nové
č
išt
ě
ní)
2
Sociální za
ř
ízení ***
Vodní kámen, mo
č
ový kámen, mý-
dla atd.
RM 25 ASF * (d
ů
kladné
č
išt
ě
ní)
2
RM 59 ASF (p
ě
nové
č
išt
ě
ní)
2
RM 68 ASF
5
315
CS

