Karcher Nettoyeur haute pression HDS 9-16-4 ST Gaz: !
!: Karcher Nettoyeur haute pression HDS 9-16-4 ST Gaz
-
14
–
Laitteen kuumennusyksikkö on kaasupoltinlaite. Laitteiston
asennuksessa on noudatettava paikallisia määräyksiä.
–
Käytä vain hyväksyttyä palokaasujen poisto- ja savutorvi-
asennusta.
–
Kaasuputkien asennuksen ja laitteiston kaasupuolen liitännät
saa tehdä vain kaasu- ja vesilaitoksen valtuuttama ammattilii-
ke.
–
Kaasupolttimen asennuksen ja säädöt saa tehdä vain Kär-
cher-asiakaspalvelun kouluttama asentaja.
–
Kaasuputkistoon, jonka sisäläpimitta on vähintään 1 tuuma,
on asennettava manometri ja sulkuventtiili.
–
Koska korkeapainepumppu toimiessaan aiheuttaa värinää,
on jäykkä kaasuputki ja laite yhdistettävä toisiinsa taipuisalla
kaasuletkulla.
–
Jos kaasujohdon pituus on enemmän kuin 10 m, sisäläpimi-
tan on oltava 1,5 tuumaa tai enemmän. Laitteen kaasuliitän-
nän sisäläpimitta on 1 tuuma.
Vaara
Pidä liittimestä vastaan avaimella SW 36, kun ruuvaat taipuisan
kaasuletkun poltinlaitteeseen kiinni. Liitin ei saa kääntyä poltti-
men runkoa vasten. Tiivistä liittimen kierteet DVGW-standardin
mukaisella tiivisteellä. Tiivistämiseen jälkeen jatkospaikka on vie-
lä tutkittava vuodon varalta DVGW-standardin mukaisella vuo-
tosprayllä.
Kaasuputken läpimitta on laskettava standardia DVGW TRGI
1986 tai TRF 1996 vastaavaksi. Kaasuputken läpimitta ei ole it-
sestään selvästi sama kuin laitteen kaasuliitännän läpimitta. Kaa-
suputken mitoituksen ja asennuksen on oltava voimassa olevien
standardien ja määräysten mukainen.
–
Jokainen laite on liitettävä omaan savutorveensa.
–
Palokaasujen poisto on toteutettava paikallisten määräysten
ja pelastuslaitoksen ohjeiden mukaisesti.
Kaasulaite (ilman virtausvarmistinta), jonka ohitse virtaa kaikkien
palokaasutien ylipaineen alaisuudessa olevien osien polttoilma.
B23 voidaan asentaa niin, että laite liitetään standardin DIN
18160 -mukaiseen yksihormiseen savupiippuun. Palamisilma
otetaan asennuspaikan huoneilmasta. Vaatimuksena on, että
hormiin voi liittää poltinlaitteen (esim. savupiippuun on saneera-
uksen yhteydessä asennettu savutorvi ruostumattomattomasta
teräksestä).
Kaasupoltin, raitisilman otto ja palokaasujen poisto pystysuoraan
katolta. Hormien aukot ovat lähellä toisiaan samalla painealueel-
la.
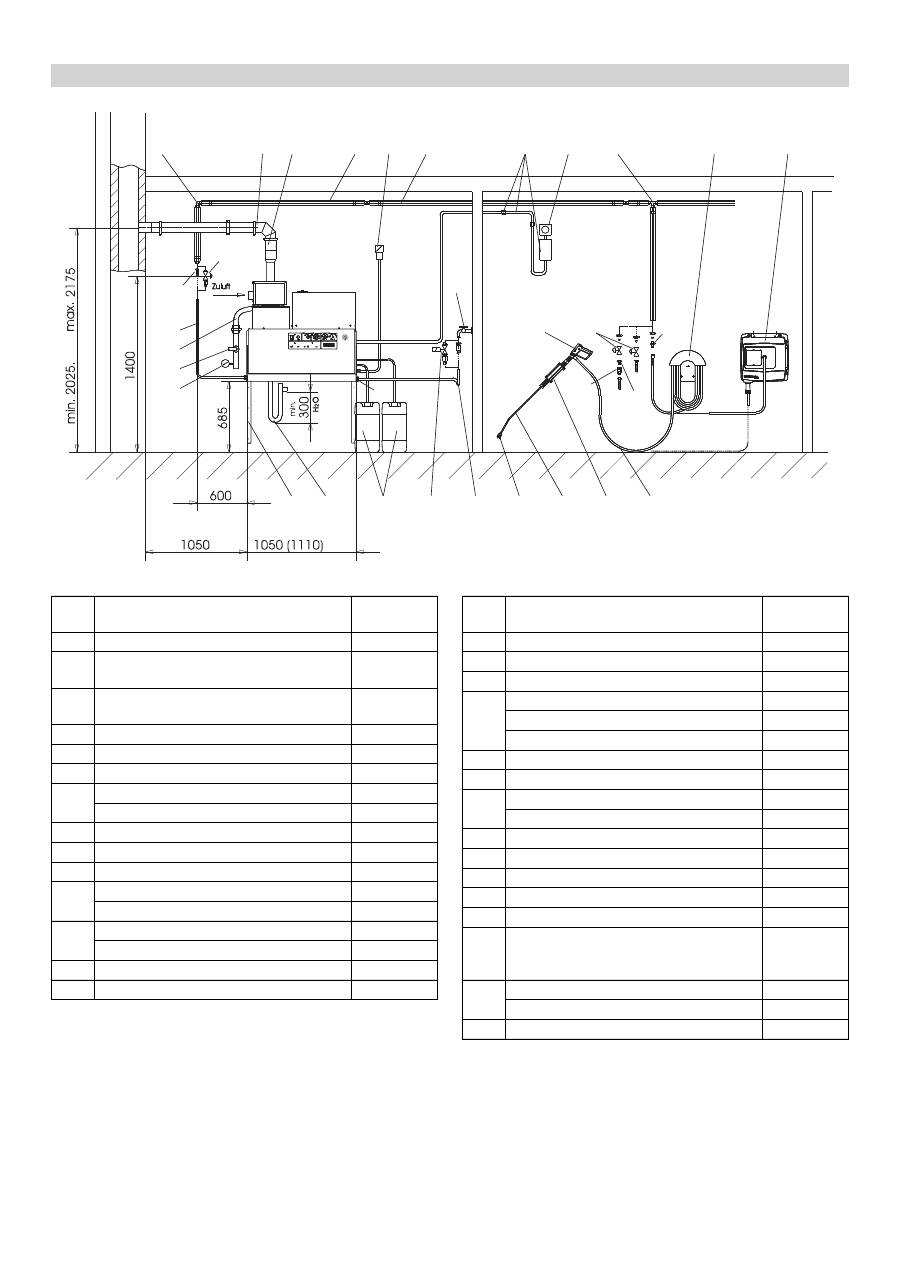
Laitteiston asennus
Vain valtuutettu ammattihenkilöstö!
Yleistä
Kaasu, yleistä
Kaasuputket
Ilmansyöttö ja palokaasujen vienti
!
Kaasupoltin ja palokaasujen poisto, palamisilman otto polt-
timen asennuspaikasta
Malli B23
Kaasupoltin ja palokaasujen poisto, palamisilma ulkoa (rai-
tisilmaa suljetun järjestelmän avulla)
Malli C33
216
FI
-
15
Kaasupoltin, raitisilman otto ja palokaasujen poisto liitettynä ilma-
notto-palokaasujenpoisto -järjestelmään.
Kaasupoltin, jossa raitisilman otto ja palokaasujen poisto ovat
erillään. Hormien aukot ovat eri painealueilla.
Huomautus:
Jotta edellä annetut palamisarvot voidaan saavut-
taa, on savutorveen saatava teknisissä tiedoissa ilmoitettu veto.
Kondensaattijohto pitää liittää suoraan kondensaattiliitäntään.
Lapon korkeuden tulee olla 30 cm. Lappo ei kuulu toimitukseen.
Kondensaattijohto ei saa olla kiinteässä yhteydessä viemäröin-
tiin. Kondensaatin pitää voida valua vapaasti suppiloon tai neut-
ralointisäiliöön.
–
Varmista ennen asennusta, että seinän kantavuus riittää. Mu-
kana toimitetut kiinnitystarvikkeet ovat betoniseinälle asen-
nusta varten. Kevytsoraharkko-, tiili- ja kaasubetoniseiniin on
käytettävä vastaavia asianmukaisia kiinnitystarvikkeita (ks.
mittalehden porauskaavio).
–
Kuva 3 - kohdat 19 ja 25
Laitetta ei saa yhdistää vesijohtoputkiin ja korkeapaineletkui-
hin jäykästi asennettuna. Väliin on ehdottomasti asennettava
yhdysletkut.
–
Kuva 3 - A
Vesijohtoverkon ja yhdysletkun väliin on asennettava sulku-
venttiili.
Korkeapainejohdotusten asennustöissä on noudatettava kansal-
lisia lakisääteisiä määräyksiä.
–
Putkiston painehäviön pitää jäädä alle 1,5 MPa.
–
Valmis putkisto on koestettava 32 MPa paineella.
–
Putkijohdotuksen eristyksen tulee olla lämmönkestävä 100 C
asti.
Kuva 3 - Kohta 20
Säiliöt on sijoitettava niin, että pesunesteen pinta alimmillaan on
korkeintaan 1,5 m laitteiston pohjaa alempana. Nesteen pinta
ylimmillään ei saa olla laitteiston pohjaa korkeammalla.
Kuva 3 - B ja kohta 19
Liitä tulovesipuoli vesijohtoverkkoon sopivalla letkulla.
–
Vesijohtoverkon tehon pitää olla vähintään 1300 l/h ja pai-
neen 0,1 MPa.
–
Veden lämpötilan pitää olla alle 30 °C.
Malli C43
Malli C53
Kondenssiveden poisto
Asennus seinälle
Korkeapaineletkujen asennus
Pesuainesäiliöiden sijoitus
Veden otto
217
FI
-
16
Varo
Sähköliitännän suurinta sallittua verkkovastusta ei saa ylittää
(katso tekniset tiedot). Jos ilmenee epäselvyyksiä koskien verk-
koliitäntäsi käytettävissä olevaa verkkovastusta, ota yhteys ener-
giansyöttöyhtiöösi.
Huomautus:
Virtapiikki laitetta käynnistettäessä aiheuttaa lyhyt-
aikaisen jännitteen alenemisen. Joissakin tilanteissa jännitteen
aleneminen saattaa vaikuttaa myös muihin laitteisiin ja niiden
käyttöön.
–
Katso liitäntäarvot teknisistä tiedoista ja tyyppikilvestä.
–
Sähköliitännät on suoritettava sähköasentajan toimesta ja nii-
den on oltava IEC 60364-1:n mukaisia.
–
Sähköä johtavat osat, kaapelit ja työalueella olevat laitteet on
suojattava niin, ettei vesisuihku pääse niihin.
Sähkötapaturmien välttämiseksi suosittelemme käyttämään pis-
torasioita, joissa on esikytketyt virhevirran turvakytkimet (maks.
30 mA nimellislaukaisuvirran voimakkuus).
Tee sähköliitännät.
Jotta kiinteä korkeapainepesuri voidaan kytkeä pois päältä, vaa-
rattomaan ja helppopääsyiseen paikkaan on asennettava lukitta-
va pääkytkin (kuva 3 - kohta 6).
Pääkatkaisimen kosketusvälin pitää olla vähintään 3 mm.
Asenna moninapa-pistotulppa laitteen liitoskaapeliin.
Pistä Cekon-pistoke pistorasiaan.
Kiinteästi asennetun pesurin irrottamiseksi sähköverkosta on
moninapa-pistotulppa asennettava paikkaan, johon on helppo
pääsy.
Tarkista kaasuliitäntä.
Varo
Ylikuumeneminen saattaa vahingoittaa laitetta.
Laita kattilan pohjalle lappo paikalleen ja täytä se vedellä.
Täytä savutorven aukon kautta kattilaan 4 litraa vettä.
Ennen ensimmäitä käyttöä, leikkaa vesipumpun päällä ole-
van öljysäiliön tulpan kärki irti.
Kuva 3 - Kohta 14
Yhdistä korkeapaineletku suihkuputkeen ja käsikahvaan. Lii-
tä letku laitteen tai putkiston paineveden ulosottoon.
Kiinnitä suuttimen suukappale (b) hattumutterilla (a) suihku-
putkeen (d). Huomaa, että tiivisterengas (c) on tasaisesti
urassa.
Sähköliitäntä
Kiinteästi asennettavat sähköliitännät
Sähköliitäntä pistokkeella/pistorasialla
Ensimmäinen käyttöönotto
Laite on tehtaalla säädetty maakaasulaitteeksi G 20 ja neste-
kaasulaitteeksi G 31. Muutettaessa laite maakaasulaitteeksi
G 25 tai muuksi maakaasulaitteeksi (ks. tyyppikilpi) tai neste-
kaasulaitteeksi G 30 tai muuksi nestekaasulaitteeksi (ks. tyyppi-
kilpi) on maakaasun palokaasut tai nestekaasun arvot
säädettävä asiakaspalvelun antamien huoltotietojen mukaan.
Mukaan liitetty tyhjä tyyppikilpi on täytettävä uusien kaasun ar-
vojen mukaiseksi ja kiinnitettävä laitteen oikealle puolelle nimi-
kilpeen. Samalla on poistettava tehtaalla kiinnitetty tyyppikilpi
arvoilla G 20 (maakaasulaite) tai G 31 (nestekaasulaite).
Toimenpiteet ennen käyttöönottoa
a
b
c
d
218
FI
-
17
Poista jousi (c) vedenpehmennysainesäiliön (a) tulpan kau-
luksesta (b).
Täytä säiliö Kärcher-vedenpehmennysnesteellä RM 110 (tila-
usnumero 2.780-001).
Vaara
Vaarallinen sähköjännite! Säädön saa suorittaa vain sähköalan
ammattilainen.
Paikallisen vedenkovuuden selvittäminen:
–
Selvitä paikalliselta vesijohtolaitokselta veden kovuus tai
–
mittaa vedenkovuuden mittauslaitteella (tilausnumero 6.768-
004).
Irrota laitekupu.
Avaa käyttöpaneelin kytkentärasia.
Säädä kiertopotentiometri (a) veden kovuuden mukaisesti.
Taulukosta saat oikeat säätöarvot.
Esimerkki:
Jos veden kovuus on 15 °dH, säädä kiertopotentiometri asteikon
arvolle 6. Tällöin taukoajaksi tulee 31 sekuntia. Se tarkoittaa, että
magneettiventtiili aukeaa lyhyesti joka 31. sekunti.
Käyttövalmiusajan säätö tehdään sähkökytkentäkaapin vasem-
malla seinällä olevalla suuremmalla piirilevyllä.
Käyttövalmiusaika on tehtaalla asetettu minimiin, 2 minuuttia.
Voit nostaa sitä maksimiin, 8 minuuttiin, saakka.
Kalkkiutumisen esto
Vedenkovuus (°dH)
5
10
15
20
25
Kiertopotentiometrin asteikko
8
7
6
5
4,5
Taukoaika (sekuntia)
50
40
31
22
16
b
c
a
a
Käyttövalmiusajan säätö uudelleen
8 7 6 5 4 3 2 1
S2
min.
max.
219
FI
-
18
Kuva 3
Asennettavat osat
1
2
3
5
6
7
8
9
10
12
13
A
15
11b
11a
11c
11a
25
21
22
23
11b
24
4
20
19a
19
18
17
16
14
11d
B
Koh-
ta
Asennettavat osat
Tilausnro
1
Kulmaliitin
6.386-356
2
Pakokaasujohtosarja, vaakasuora, 150
mm
6.526-231
3
Pakokaasujohtosarja, pystysuora, 150
mm
6.526-232
4
Lappo, osat
2.640-422
5
Lämpöeriste
6.286-114
6
Pääkatkaisin
6.631-455
7
Putkisarja, sinkittyä terästä
2.420-004
Putkisarja, ruostumatonta terästä
2.420-006
8
Kauko-ohjaus, osat
2.744-008
9
Hätä-Seis -kytkin, osat
2.744-002
10
T-kulmaliitin
6.386-269
11a
Liitosmuhvi, messinkiä
2.638-180
Liitosmuhvi, ruostumatonta terästä
2.638-181
11b
Sulkuventtiili NW 8, sinkittyä terästä
4.580-144
Sulkuventtiili NW 8, ruostumatonta terästä 4.580-163
11c
Pikaliitin, kiinteä osa
6.463-025
11d
Pikaliitin, irto-osa
6.463-023
Koh-
ta
Asennettavat osat
Tilausnro
12
Letkunpidin
2.042-001
13
Letkurumpu
2.637-238
14
Korkeapaineletku 10 m
6.388-083
15
Käsikahva, Easy Press
4.775-463
Kiertosäädin HDS 9/16-4
4.775-470
Kiertosäädin HDS 12/14-4
4.775-471
16
Suihkuputken pidin
2.042-002
17
Suihkuputki
4.760-550
18
Suutin HDS 9/16-4
2.883-402
Suutin HDS 12/14-4
2.883-406
19
Vesiletku
4.440-282
19a
Magneettiventtiili, syöttövesi
4.743-011
20
Pesuainesäiliö, 60 l
5.070-078
21
Kaasuletku R1“
6.388-228
22
Kaasun sulkuventtiili R1“
6.412-389
23
Manometri, kaasu (Huomaa! Sulkuventtii-
lin on oltava valmiiksi asennettuna asen-
nuspaikalla.)
6.412-059
24
Seinäkannatimet, osat
2.053-005
Kehikko lattialle, osat
2.210-008
25
Korkeapaineletku
6.389-028
220
FI
-
19
Vakuutamme, että alla mainitut tuotteet vastaavat suunnittelul-
taan ja rakenteeltaan sekä valmistustavaltaan EU-direktiivien
asianomaisia turvallisuus- ja terveysvaatimuksia. Jos tuottee-
seen/tuotteisiin tehdään muutoksia, joista ei ole sovittu kanssam-
me, tämä vakuutus ei ole enää voimassa.
5.957-648
Allekirjoittaneet toimivat yrityksen johton puolesta ja sen valtuut-
tamina.
Dokumentointivaltuutettu:
S. Reiser
Alfred Kärcher GmbH & Co. KG
Alfred-Kärcher-Str. 28 - 40
71364 Winnenden (Germany)
Puh.: +49 7195 14-0
Faksi: +49 7195 14-2212
Winnenden, 2014/02/01
Kussakin maassa ovat voimassa valtuuttamamme myyntiorgani-
saation julkaisemat takuuehdot. Materiaali- ja valmistusvirheistä
mahdollisesti aiheutuvat virheet laitteessa korjaamme takuuaika-
na maksutta.
EU-standardinmukaisuustodistus
Tuote:
korkeapainepesuri
Tyyppi:
1.251-xxx
Yksiselitteiset EU-direktiivit
2009/142/EY
2006/42/EY (+2009/127/EY)
2004/108/EY
Sovelletut harmonisoidut standardit
EN 55014–1: 2006+A1: 2009+A2: 2011
EN 55014–2: 1997+A1: 2001+A2: 2008
EN 60335–1
EN 60335–2–79
EN 62233: 2008
EN 61000–3–2: 2006+A1: 2009+A2: 2009
HDS 12/14:
EN 61000–3–3: 2008
HDS 9/16:
EN 61000–3–11: 2000
Käytetyt spesifikaatiot:
QA 195 (ei LPG)
Mainitun paikan nimi:
2009/142/EY:tä varten
GASTEC
Wilmersdorf 50
7327 AC Apeldoorn
Tunnusnumero 0063
Takuu
CEO
Head of Approbation
221
FI
-
20
Asiakaspalvelu
Laitteistotyyppi:
Valmistenro:
Käyttöönottopäiväys:
Tarkastuspäiväys:
Tulos:
Allekirjoitus
Tarkastuspäiväys:
Tulos:
Allekirjoitus
Tarkastuspäiväys:
Tulos:
Allekirjoitus
Tarkastuspäiväys:
Tulos:
Allekirjoitus
222
FI
-
1
Πριν
χρησιμοποιήσετε
τη
συσκευή
σας
για
πρώτη
φο
-
ρά
,
διαβάστε
αυτές
τις
πρωτότυπες
οδηγίες
χρήσης
,
ενεργήστε
σύμφωνα
με
αυτές
και
κρατήστε
τις
για
μελλοντική
χρήση
ή
για
τον
επόμενο
ιδιοκτήτη
.
–
Πριν
από
την
πρώτη
χρήση
διαβάστε
οπωσδήποτε
τις
υπο
-
δείξεις
ασφαλείας
αρ
. 5.956-309!
–
Σε
περίπτωση
βλαβών
κατά
τη
μεταφορά
ειδοποιήστε
αμέ
-
σως
τον
αντιπρόσωπό
σας
.
Υποδείξεις
για
τα
συστατικά
(REACH)
Ενημερωμένες
πληροφορίες
για
τα
συστατικά
μπορείτε
να
βρείτε
στη
διεύθυνση
:
www.kaercher.com/REACH
Κίνδυνος
Για
άμεσα
επαπειλούμενο
κίνδυνο
,
ο
οποίος
μπορεί
να
οδηγήσει
σε
σοβαρό
τραυματισμό
ή
θάνατο
.
몇
Προειδοποίηση
Για
ενδεχόμενη
επικίνδυνη
κατάσταση
,
η
οποία
μπορεί
να
οδηγή
-
σει
σε
σοβαρό
τραυματισμό
ή
θάνατο
.
Προσοχή
Για
ενδεχόμενη
επικίνδυνη
κατάσταση
,
η
οποία
μπορεί
να
οδηγή
-
σει
σε
ελαφρό
τραυματισμό
ή
υλικές
βλάβες
.
Ο
ψεκασμός
με
υψηλή
πίεση
μπορεί
να
αποδειχτεί
επι
-
κίνδυνος
σε
περίπτωση
μη
προσήκουσας
χρήσης
.
Η
δέσμη
δεν
πρέπει
να
κατευθύνεται
πάνω
σε
άτομα
,
ζώα
,
ενεργοποιημένο
ηλεκτρικό
εξοπλισμό
ή
στην
ίδια
τη
συσκευή
.
–
Δώστε
προσοχή
στις
εκάστοτε
προδιαγραφές
της
εθνικής
νο
-
μοθεσίας
σχετικά
με
τις
εκπομπές
υγρών
.
–
Δώστε
προσοχή
στις
εκάστοτε
διατάξεις
της
εθνικής
νομοθε
-
σίας
σχετικά
με
την
αποτροπή
ατυχημάτων
Οι
συσκευές
εκ
-
πομπής
υγρών
θα
πρέπει
να
υποβάλλονται
σε
έλεγχο
σε
τακτικά
διαστήματα
και
τα
αποτελέσματα
του
ελέγχου
θα
πρέ
-
πει
να
καταγράφονται
και
να
φυλάσσονται
.
–
Η
διάταξη
θέρμανσης
της
συσκευής
είναι
μια
μονάδα
καύσης
.
Οι
μονάδες
καύσης
θα
πρέπει
να
υποβάλλονται
τακτικά
σε
έλεγχο
,
σύμφωνα
με
τις
εκάστοτε
προδιαγραφές
της
εθνικής
νομοθεσίας
.
–
Κατά
τη
λειτουργία
της
εγκατάστασης
σε
κλειστούς
χώρους
να
προβλέπεται
η
ακίνδυνη
αποβολή
των
καυσαερίων
(
σω
-
λήνας
καυσαερίων
χωρίς
διακοπή
έλξης
).
Περαιτέρω
,
να
υπάρχει
επαρκής
προσαγωγή
καθαρού
αέρα
.
–
Λάβετε
υπόψη
τις
υποδείξεις
ασφαλείας
που
συνοδεύουν
τα
απορρυπαντικά
που
χρησιμοποιείτε
(
κατά
κανόνα
στην
ετικέ
-
τα
συσκευασίας
).
Πριν
την
εγκατάσταση
της
συσκευής
,
πρέπει
να
έρθετε
σε
συνεν
-
νόηση
με
την
εταιρεία
παροχής
αερίου
και
τον
υπεύθυνο
καθαρι
-
σμού
καμινάδων
της
περιοχής
σας
.
Κατά
την
εγκατάσταση
λάβετε
υπόψη
τους
οικοδομικούς
και
εμπορικούς
κανονισμούς
,
καθώς
και
τους
κανονισμούς
προστα
-
σίας
από
εκπομπές
.
Εφιστούμε
την
προσοχή
στους
ακόλουθους
κανονισμούς
,
οδηγίες
και
νόρμες
:
–
Η
συσκευή
πρέπει
να
εγκαθίσταται
μόνον
από
εξειδικευμένη
εταιρεία
και
σύμφωνα
με
τους
εκάστοτε
εθνικούς
κανονι
-
σμούς
.
–
Κατά
την
ηλεκτρική
εγκατάσταση
,
να
λαμβάνονται
υπόψη
οι
εκάστοτε
εθνικοί
κανονισμοί
του
νομοθέτη
.
–
Κατά
την
εγκατάσταση
παροχής
αερίου
,
να
λαμβάνονται
υπό
-
ψη
οι
εκάστοτε
εθνικοί
κανονισμοί
του
νομοθέτη
.
–
Η
εγκατάσταση
αγωγών
παροχής
αερίου
,
καθώς
και
οι
συν
-
δέσεις
αερίου
της
συσκευής
πρέπει
να
εκτελούνται
μόνον
από
μια
εγκεκριμένη
από
την
υπηρεσία
αερίου
και
υδροδότη
-
σης
και
εξειδικευμένη
εταιρεία
.
–
Οι
ρυθμίσεις
,
οι
εργασίες
συντήρησης
και
οι
επιδιορθώσεις
του
καυστήρα
μπορούν
να
εκτελούνται
μόνον
από
εκπαιδευ
-
μένους
τεχνικούς
εγκατάστασης
της
υπηρεσίας
εξυπηρέτη
-
σης
πελατών
της
Kärcher.
–
Κατά
τη
σχεδίαση
μιας
καμινάδας
,
να
τηρούνται
οι
ισχύουσες
τοπικές
οδηγίες
.
Πίνακας
περιεχομένων
Προστασία
περιβάλλοντος
.
EL . . 1
Σύμβολα
στο
εγχειρίδιο
οδηγιών
EL . . 1
Σύμβολα
στη
συσκευή
. . . . .
EL . . 1
Γενικές
οδηγίες
ασφαλείας
.
EL . . 1
Χρήση
σύμφωνα
με
τους
κανονισμούς
EL . . 2
Λειτουργία
. . . . . . . . . . . . . .
EL . . 2
Διατάξεις
ασφαλείας
. . . . . .
EL . . 2
Στοιχεία
συσκευής
. . . . . . . .
EL . . 3
Έναρξη
λειτουργίας
. . . . . . .
EL . . 4
Χειρισμός
. . . . . . . . . . . . . .
EL . . 4
Απενεργοποίηση
. . . . . . . . .
EL . . 6
Διακοπή
της
λειτουργίας
. . .
EL . . 6
Αποθήκευση
. . . . . . . . . . . .
EL . . 6
Μεταφορά
. . . . . . . . . . . . . .
EL . . 6
Τεχνικά
χαρακτηριστικά
. . . .
EL . . 7
Φροντίδα
και
συντήρηση
. . .
EL . . 9
Αντιμετώπιση
βλαβών
. . . . .
EL . 11
Εξαρτήματα
. . . . . . . . . . . . .
EL . 13
Εγκατάσταση
μονάδας
. . . .
EL . 14
Δήλωση
Συμμόρφωσης
των
Ε
.
Κ
.
EL . 19
Εγγύηση
. . . . . . . . . . . . . . .
EL . 19
Υπηρεσία
εξυπηρέτησης
πελατών
EL . 20
Προστασία
περιβάλλοντος
Τα
υλικά
συσκευασίας
είναι
ανακυκλώσιμα
.
Μην
πε
-
τάτε
τις
συσκευασίες
στα
οικιακά
απορρίμματα
,
αλλά
σε
ειδικό
σύστημα
επαναχρησιμοποίησης
.
Οι
παλιές
συσκευές
περιέχουν
ανακυκλώσιμα
υλικά
,
τα
οποία
θα
πρέπει
να
μεταφέρονται
σε
σύστημα
επα
-
ναχρησιμοποίησης
.
Οι
μπαταρίες
,
τα
λάδια
και
παρό
-
μοια
υλικά
δεν
επιτρέπεται
να
καταλήγουν
στο
περιβάλλον
.
Για
το
λόγο
αυτόν
η
διάθεση
παλιών
συ
-
σκευών
πρέπει
να
γίνεται
σε
κατάλληλα
συστήματα
συλλογής
.
Το
μηχανέλαιο
,
το
πετρέλαιο
θέρμανσης
,
το
καύσιμο
ντίζελ
και
η
βενζίνη
δεν
πρέπει
να
καταλήγουν
στο
περιβάλλον
.
Προστα
-
τέψτε
το
έδαφος
και
αποσύρετε
παλιά
λάδια
με
οικολογικό
τρό
-
πο
.
Τα
απορρυπαντικά
της
Kärcher
διαθέτουν
ιδιότητες
διαχωρι
-
σμού
(ASF).
Αυτό
σημαίνει
ότι
δεν
εμποδίζουν
τη
λειτουργία
ενός
διαχωριστή
λαδιού
.
Στο
κεφάλαιο
"
Πρόσθετα
εξαρτήματα
"
περιλαμβάνεται
μια
λίστα
με
τα
συνιστώμενα
απορρυπαντικά
.
Σύμβολα
στο
εγχειρίδιο
οδηγιών
Σύμβολα
στη
συσκευή
Γενικές
οδηγίες
ασφαλείας
Κανονισμοί
,
οδηγίες
και
κανόνες
223
EL
-
2
Η
θέση
εργασίας
βρίσκεται
στο
χώρο
χειρισμού
.
Περαιτέρω
θέ
-
σεις
εργασίας
βρίσκονται
αναλόγως
της
διάταξης
της
μονάδας
στα
πρόσθετα
μηχανήματα
(
διατάξεις
ψεκασμού
),
τα
οποία
συν
-
δέονται
με
τα
σημεία
βυσμάτωσης
.
–
Για
να
προστατευθείτε
από
τις
πιτσιλιές
του
νερού
ή
από
τους
ρύπους
,
φοράτε
προστατευτική
στολή
και
γυαλιά
.
Η
συσκευή
χρησιμοποιείται
για
την
απομάκρυνση
ρύπων
από
επιφάνειες
μέσω
της
ελεύθερης
εκτόξευσης
δέσμης
νερού
.
Χρη
-
σιμοποιείται
ιδιαίτερα
για
τον
καθαρισμό
μηχανημάτων
,
οχημά
-
των
και
προσόψεων
.
Κίνδυνος
Κίνδυνος
τραυματισμού
!
Σε
περίπτωση
λειτουργίας
σε
πρατήρια
βενζίνης
ή
άλλους
επικίνδυνους
χώρους
,
να
τηρούνται
οι
ανάλο
-
γες
προδιαγραφές
ασφαλείας
.
–
Το
κρύο
νερό
καταλήγει
στο
δοχείο
με
πλωτήρα
μέσα
του
μη
-
χανικού
ψύκτη
και
από
εκεί
στο
εξωτερικό
περίβλημα
του
θερ
-
μαντήρα
διαρκούς
λειτουργίας
και
στην
πλευρά
αναρρόφησης
της
αντλίας
υψηλής
πίεσης
.
Στο
δοχείο
με
πλωτήρα
προστίθεται
αποσκληρυντικό
.
Η
αντλία
προωθεί
το
νερό
και
το
αναρροφούμενο
απορρυπαντικό
μέσα
από
τον
θερμαντήρα
διαρκούς
λειτουργίας
.
Το
ποσοστό
απορρυπα
-
ντικού
στο
νερό
μπορεί
να
ρυθμιστεί
μέσω
μιας
δοσομετρικής
βαλβίδας
.
Ο
θερμαντήρας
διαρκούς
λειτουργίας
θερμαίνεται
με
καυστήρα
αερίου
.
–
Η
έξοδος
υψηλής
πίεσης
συνδέεται
με
το
υπάρχουν
δίκτυο
υψηλής
πίεσης
του
κτιρίου
.
Στα
σημεία
βυσμάτωσης
του
δι
-
κτύου
γίνεται
η
σύνδεση
του
πιστολέτου
χειρός
με
έναν
ελα
-
στικό
σωλήνα
υψηλής
πίεσης
.
Τα
συστήματα
ασφαλείας
χρησιμεύουν
για
την
προστασία
του
χρήστη
και
δεν
επιτρέπεται
να
τεθούν
εκτός
λειτουργίας
ή
να
αγνοηθεί
η
λειτουργία
τους
.
Η
ασφάλεια
έλλειψης
νερού
εμποδίζει
την
ενεργοποίηση
της
αντλίας
υψηλής
πίεσης
σε
περίπτωση
έλλειψης
νερού
.
Η
ασφάλεια
έλλειψης
νερού
αποτρέπει
την
υπερθέρμανση
του
καυστήρα
σε
περίπτωση
έλλειψης
νερού
.
Ο
καυστήρας
λειτουρ
-
γεί
μόνον
όταν
υπάρχει
επαρκής
τροφοδοσία
νερού
.
Ο
διακόπτης
πίεσης
απενεργοποιεί
τη
συσκευή
σε
περίπτωση
υπέρβασης
της
πίεσης
εργασίας
.
Η
ρύθμιση
δεν
πρέπει
να
αλλά
-
ξει
.
Σε
περίπτωση
βλάβης
του
διακόπτη
πίεσης
,
ανοίγει
η
βαλβίδα
ασφαλείας
.
Η
βαλβίδα
αυτή
ρυθμίζεται
και
μολυβδοσφραγίζεται
στο
εργοστάσιο
.
Η
ρύθμιση
δεν
πρέπει
να
αλλάξει
.
Σε
περίπτωση
έλλειψης
καυσίμού
ή
βλάβης
στον
καυστήρα
,
ο
μηχανισμός
παρακολούθησης
φλόγας
απενεργοποιεί
την
καυ
-
στήρα
.
Η
ενδεικτική
λυχνία
βλάβης
στον
καυστήρα
(
Ε
)
ανάβει
.
Εάν
ο
κινητήρας
του
καυστήρα
μπλοκάρει
,
ενεργοποιείται
ο
δια
-
κόπτης
προστασίας
από
υπερένταση
.
Ο
κινητήρας
της
αντλίας
υψηλής
πίεσης
διαθέτει
διακόπτη
προστασίας
κινητήρα
και
δια
-
κόπτη
προστασίας
περιέλιξης
για
ασφάλεια
.
Ο
διακόπτης
καυσαερίων
ενεργοποιείται
,
όταν
η
θερμοκρασία
των
καυσαερίων
υπερβεί
τους
320 °C.
Η
ενδεικτική
λυχνία
θερ
-
μοστάτη
καυσαερίων
(
Κ
)
ανάβει
.
Οι
μειωτήρες
μέγιστης
θερμοκρασίας
στον
πυθμένα
του
λέβητα
(> 80 °C)
και
στην
έξοδο
νερού
(> 110 °C)
ενεργοποιούνται
και
ανάβει
η
ενδεικτική
λυχνία
βλάβης
στον
καυστήρα
(
Ε
).
Ο
διακόπτης
πίεσης
καυσαερίων
απενεργοποιεί
τον
καυστήρα
,
όταν
στο
σύστημα
καυσαερίων
δημιουργείται
μια
ανεπίτρεπτα
υψηλή
αρνητική
πίεση
,
π
.
χ
.
σε
περίπτωση
εμπλοκής
.
Μετά
την
απενεργοποίηση
της
συσκευής
μέσω
του
πιστολέτου
χειρός
,
μετά
την
πάροδο
του
χρόνου
ετοιμότητας
προς
εργασίας
ανοίγει
μια
ηλεκτρομαγνητική
βαλβίδα
,
η
οποία
είναι
προσαρτη
-
μένη
στο
σύστημα
υψηλής
πίεσης
,
και
μειώνει
την
πίεση
.
Θέσεις
εργασίας
Προσωπικός
προστατευτικός
εξοπλισμός
Κατά
τον
καθαρισμό
τμημάτων
υψηλής
ηχητικής
έντασης
,
φοράτε
ωτοασπίδες
για
την
πρόληψη
ακουστικών
βλαβών
.
Χρήση
σύμφωνα
με
τους
κανονισμούς
Λύματα
που
περιέχουν
ορυκτέλαια
δεν
επιτρέπεται
να
καταλή
-
γουν
στο
υπέδαφος
,
στα
ύδατα
ή
στο
σύστημα
αποχέτευσης
.
Συνεπώς
το
πλύσιμο
κινητήρων
ή
της
κάτω
πλευράς
οχημάτων
επιτρέπεται
μόνο
σε
κατάλληλους
χώρους
που
διαθέτουν
δια
-
χωριστή
λαδιών
.
Λειτουργία
Διατάξεις
ασφαλείας
Ασφάλεια
έλλειψης
νερού
στο
δοχείο
με
πλωτήρα
Ασφάλεια
έλλειψης
νερού
του
μπλοκ
ασφαλείας
Διακόπτης
Βαλβίδα
ασφάλειας
Παρακολούθηση
φλόγας
Προστασία
από
υπερένταση
Θερμοστάτης
καυσαερίων
Μειωτήρας
θερμοκρασίας
Διακόπτης
πίεσης
καυσαερίων
Εκτόνωση
πίεσης
του
συστήματος
υψηλής
πίεσης
224
EL
-
3
Εικόνα
1
1
Καυστήρας
2
Μανόμετρο
3
Προσαγωγή
φρέσκου
νερού
με
σήτα
4
Έξοδος
υψηλής
πίεσης
5
Σύνδεση
αερίου
6
Ελαστικός
σωλήνας
αναρρόφησης
απορρυπαντικού
Ι
7
Ελαστικός
σωλήνας
αναρρόφησης
απορρυπαντικού
ΙΙ
(
προ
-
αιρετικός
)
8
Δοχείο
αποσκληρυντικού
9
Καλώδιο
ρεύματος
10
Δοχείο
με
πλωτήρα
11
Πεδίο
χειρισμού
Εικόνα
2
A
Διακόπτης
συσκευής
B
Ρυθμιστής
θερμοκρασίας
C
Δοσομετρική
βαλβίδα
απορρυπαντικού
Ι
D
Δοσομετρική
βαλβίδα
απορρυπαντικού
ΙΙ
(
προαιρετική
)
E
Ενδεικτική
λυχνία
βλάβης
στον
καυστήρα
F
Ενδεικτική
λυχνία
λειτουργικής
ετοιμότητας
G
Ενδεικτική
λυχνία
υπερθέρμανσης
κινητήρα
H
Ενδεικτική
λυχνία
προστασίας
από
άλατα
I
Πλήκτρο
απασφάλισης
ρελέ
αερίου
J
Πλήκτρο
απασφάλισης
θερμοστάτη
καυσαερίων
K
Ενδεικτική
λυχνία
θερμοστάτη
καυσαερίων
Στοιχεία
συσκευής
4
5
6
7
3
8
10
1
11
2
9
Πεδίο
χειρισμού
225
EL
-
4
몇
Κίνδυνος
Κίνδυνος
τραυματισμού
!
Η
συσκευή
,
οι
αγωγοί
προσαγωγής
,
το
λάστιχο
υψηλής
πίεσης
και
οι
συνδέσεις
πρέπει
να
είναι
σε
άψογη
κατάσταση
.
Σε
περίπτωση
που
δεν
βρίσκονται
σε
άψογη
κατά
-
σταση
,
η
συσκευή
δεν
επιτρέπεται
να
χρησιμοποιηθεί
.
–
Σχετικά
με
τις
τιμές
σύνδεσης
βλέπε
Τεχνικά
χαρακτηριστικά
και
Πινακίδα
τύπου
.
–
Η
ηλεκτρική
σύνδεση
πρέπει
να
γίνει
από
ηλεκτρολόγο
και
να
ανταποκρίνεται
στο
IEC 60364-1.
Ο
χρήστης
πρέπει
να
χρησιμοποιεί
τη
συσκευή
σύμφωνα
με
τις
προδιαγραφές
.
Πρέπει
να
έχει
υπόψη
τις
τοπικές
συνθήκες
και
κατά
την
εργασία
με
τη
συσκευή
πρέπει
να
προσέχει
τα
άτομα
που
βρίσκονται
κοντά
της
.
Μην
αφήνετε
τη
συσκευή
ποτέ
χωρίς
επίβλεψη
,
εφόσον
βρίσκεται
σε
λειτουργία
.
Κίνδυνος
–
Κίνδυνος
εγκαυμάτων
από
καυτό
νερό
!
Μην
στρέφετε
τη
δέ
-
σμη
νερού
προς
ανθρώπους
ή
ζώα
.
–
Κίνδυνος
εγκαυμάτων
από
καυτά
τμήματα
της
μονάδας
!
Κατά
τη
λειτουργία
με
καυτό
νερό
,
μην
αγγίζετε
τους
μη
μονωμέ
-
νους
αγωγούς
και
ελαστικούς
σωλήνες
.
Κρατάτε
το
σωλήνα
δέσμης
μόνον
από
τις
λαβές
.
Μην
αγγίζετε
το
στόμιο
καυσαε
-
ρίων
του
θερμαντήρα
συνεχούς
λειτουργίας
.
–
Κίνδυνος
δηλητηρίασης
ή
εγκαυμάτων
από
την
επαφή
με
το
απορρυπαντικό
!
Τηρείτε
τις
υποδείξεις
επάνω
στο
απορρυ
-
παντικό
.
Διατηρείτε
το
απορρυπαντικό
σε
σημείο
,
όπου
είναι
απρόσιτο
σε
μη
εξουσιοδοτημένα
άτομα
.
Κίνδυνος
Θανάσιμος
κίνδυνος
λόγω
ηλεκτροπληξίας
!
Μην
στρέφετε
τη
δέ
-
σμη
νερού
προς
τις
ακόλουθες
εγκαταστάσεις
:
–
Ηλεκτρικές
συσκευές
και
μονάδες
,
–
την
ίδια
τη
μονάδα
,
–
όλα
τα
ηλεκτροφόρα
εξαρτήματα
στο
χώρο
εργασίας
.
Κατά
την
έξοδο
της
δέσμης
νερού
από
το
σωλήνα
εκτόξευσης
παράγεται
ανάκρουση
.
Όταν
ο
σωλήνας
εκτόξευσης
είναι
διπλω
-
μένος
,
δημιουργείται
δύναμη
ώθησης
προς
τα
επάνω
.
Κίνδυνος
–
Κίνδυνος
τραυματισμού
!
Η
ανάκρουση
του
σωλήνα
δέσμης
νερού
μπορεί
να
σας
κάνει
να
χάσετε
την
ισορροπία
σας
.
Εν
-
δέχεται
να
πέσετε
κάτω
.
Ο
σωλήνας
δέσμης
νερού
μπορεί
να
στραφεί
προς
κάθε
κατεύθυνση
και
να
τραυματίσει
άλλα
άτο
-
μα
.
Αναζητήστε
ένα
ασφαλές
σημείο
στήριξης
και
κρατήστε
σταθερά
το
πιστολέτο
.
Μην
ασφαλίζετε
ποτέ
το
μοχλό
του
πι
-
στολέτου
χειρός
.
–
Μην
στρέφετε
τη
δέσμη
πάνω
σε
άλλους
ή
σε
εσάς
τους
ίδι
-
ους
,
για
να
καθαρίσετε
ρούχα
ή
παπούτσια
.
–
Κίνδυνος
τραυματισμού
λόγω
διαφυγόντων
τμημάτων
!
Τυχόν
διαφυγόντα
θραύσματα
ή
αντικείμενα
μπορούν
να
προκαλέ
-
σουν
τραυματισμούς
σε
άτομα
ή
ζώα
.
Μην
στρέφετε
ποτέ
τη
δέσμη
νερού
προς
εύθραυστα
ή
κινητά
αντικείμενα
.
–
Κίνδυνος
ατυχήματος
συνεπεία
βλάβης
!
Καθαρίζετε
ελαστικά
και
βαλβίδες
από
ελάχιστη
απόσταση
30 cm.
몇
Προειδοποίηση
Κίνδυνος
λόγω
επικίνδυνων
για
την
υγεία
υλικών
!
Μην
ψεκάζετε
τα
ακόλουθα
υλικά
,
καθώς
μπορούν
να
εκπέμψουν
επικίνδυνες
για
την
υγεία
ουσίες
:
–
Υλικά
που
περιέχουν
αμίαντο
,
–
Υλικά
που
ενδεχομένως
περιέχουν
επικίνδυνες
για
την
υγεία
ουσίες
.
Κίνδυνος
–
Κίνδυνος
τραυματισμού
λόγω
της
εξερχόμενης
δέσμης
καυ
-
τού
νερού
.
Μόνον
οι
γνήσιοι
ελαστικοί
σωλήνες
υψηλής
πίε
-
σης
της
Kärcher
είναι
ιδανικοί
για
την
εγκατάσταση
.
Δεν
φέρουμε
ευθύνη
σε
περίπτωση
χρήσης
άλλων
ελαστικών
σω
-
λήνων
.
–
Κίνδυνος
για
την
υγεία
από
το
απορρυπαντικό
!
Λόγω
της
εν
-
δεχόμενης
ανάμειξης
με
απορρυπαντικό
,
το
νερό
που
εξέρχε
-
ται
από
τη
συσκευή
δεν
είναι
πόσιμο
.
–
Κίνδυνος
ακουστικής
βλάβης
σε
εργασίες
με
τμήματα
τα
οποία
παράγουν
υψηλά
επίπεδα
θορύβου
!
Στην
περίπτωση
αυτή
φοράτε
ωτοασπίδες
.
Κίνδυνος
Κίνδυνος
τραυματισμού
λόγω
της
εξερχόμενης
δέσμης
καυτού
νε
-
ρού
!
Κίνδυνος
Πριν
από
κάθε
λειτουργία
,
ελέγχετε
τον
εύκαμπτο
σωλήνα
υψη
-
λής
πίεσης
για
ζημιές
.
Αντικαθιστάτε
άμεσα
τον
εύκαμπτο
σωλήνα
υψηλής
πίεσης
που
παρουσιάζει
βλάβες
.
Πριν
από
κάθε
χρήση
,
ελέγχετε
τον
σωλήνα
υψηλής
πίεσης
,
τις
σωληνώσεις
,
τον
εξοπλισμό
και
τον
σωλήνα
δέσμης
για
ενδεχόμενες
βλάβες
.
Ελέγξτε
την
καλή
εφαρμογή
και
τη
στεγανότητα
του
ελαστικού
σωλήνα
αναρρόφησης
.
Προσοχή
Κίνδυνος
βλάβης
λόγω
ξηρής
λειτουργίας
.
Ελέγξτε
τη
στάθμη
πλήρωσης
του
δοχείου
απορρυπαντικού
και
συμπληρώστε
,
εάν
απαιτείται
.
Ελέγξτε
τη
στάθμη
του
υγρού
αποσκληρυντικού
και
συμπλη
-
ρώστε
,
εάν
απαιτείται
.
Ρυθμίστε
το
διακόπτη
της
συσκευής
(
Α
)
στη
θέση
“0“.
Κλείστε
την
προσαγωγή
νερού
.
Ενεργοποιήστε
το
πιστολέτο
χειρός
,
έως
ότου
διαπιστώσετε
ότι
η
συσκευή
δεν
βρίσκεται
υπό
πίεση
.
Κλείστε
την
τροφοδοσία
αερίου
.
Έναρξη
λειτουργίας
Ηλεκτρολογικές
συνδέσεις
Χειρισμός
Υποδείξεις
ασφαλείας
!
Θέστε
τη
συσκευή
σε
ετοιμότητα
Απενεργοποίηση
σε
περίπτωση
εκτάκτου
ανάγκης
226
EL
-
5
Περιστρέψτε
την
βαλβίδα
ρύθμισης
ποσότητας
προς
τα
δεξιά
,
για
να
αυξήσετε
την
πίεση
εργασίας
και
την
μεταφερόμενη
ποσότητα
.
Περιστρέψτε
την
βαλβίδα
ρύθμισης
ποσότητας
προς
τα
αρι
-
στερά
,
για
να
μειώσετε
την
πίεση
εργασίας
και
την
μεταφερό
-
μενη
ποσότητα
.
Η
περιστροφή
του
ρυθμιστή
ποσότητας
νερού
προς
τα
δεξιά
παρέχει
μεγαλύτερη
ποσότητα
και
αυξημένη
πίεση
εργασίας
.
Η
περιστροφή
του
ρυθμιστή
ποσότητας
νερού
προς
τα
αρι
-
στερά
παρέχει
μικρότερη
ποσότητα
και
μειωμένη
πίεση
εργα
-
σίας
.
Ανοίξτε
την
προσαγωγή
νερού
.
Σύμβολο
"
Κινητήρας
ενεργός
"
Τραβήξτε
το
μοχλό
του
πιστολέτου
χειρός
και
ρυθμίστε
το
δι
-
ακόπτη
της
συσκευής
(
Α
)
στη
θέση
„1“ (
κινητήρας
ενεργός
).
Η
ενδεικτική
λυχνία
ετοιμότητας
λειτουργίας
(
ΣΤ
)
εμφανίζει
την
ετοιμότητα
λειτουργίας
.
Κίνδυνος
Κίνδυνος
εγκαυμάτων
!
Προσοχή
Η
λειτουργία
με
καυτό
νερό
χωρίς
καύσιμα
προκαλεί
βλάβη
στην
αντλία
καυσίμων
.
Πριν
τη
λειτουργία
με
καυτό
νερό
,
εξασφαλίστε
την
τροφοδοσία
με
καύσιμα
.
Ο
καυστήρας
μπορεί
να
ενεργοποιηθεί
,
εάν
είναι
απαραίτητο
.
Σύμβολο
"
Καυστήρας
ενεργός
"
Ρυθμίστε
το
διακόπτη
της
συσκευής
(
Α
)
στη
θέση
"
Καυστή
-
ρας
ενεργός
".
Ρυθμίστε
την
επιθυμητή
θερμοκρασία
νερού
στον
ελεγκτή
θερμοκρασίας
(
Β
).
Η
μέγιστη
θερμοκρασία
είναι
98 °C.
–
Εάν
κατά
τη
διάρκεια
της
λειτουργίας
αφήσετε
το
μοχλό
του
πιστολέτου
,
η
συσκευή
θα
απενεργοποιηθεί
.
–
Κατά
το
νέο
άνοιγμα
του
πιστολέτου
εντός
του
ρυθμιζόμενου
χρόνου
ετοιμότητας
λειτουργίας
(2...8
λεπτά
),
η
συσκευή
επανενεργοποιείται
αυτόματα
.
–
Εάν
υπάρξει
υπέρβαση
του
χρόνου
ετοιμότητας
λειτουργίας
,
ο
χρονοδιακόπτης
ασφαλείας
απενεργοποιεί
την
αντλία
και
τον
καυστήρα
.
Η
ενδεικτική
λυχνία
ετοιμότητας
λειτουργίας
(
ΣΤ
)
σβήνει
.
–
Για
επανενεργοποίηση
της
συσκευής
,
ρυθμίστε
το
διακόπτη
της
συσκευής
στη
θέση
„0“
και
ενεργοποιήστε
τον
ξανά
.
Εάν
η
συσκευή
λειτουργεί
με
τηλεχειριστήριο
,
η
επανενεργοποίη
-
ση
μπορεί
να
εκτελεστεί
από
τον
αντίστοιχο
διακόπτη
του
τη
-
λεχειριστηρίου
.
–
Τα
ελαστικά
αυτοκινήτων
πρέπει
να
καθαρίζονται
μόνον
με
ακροφύσιο
επίπεδης
δέσμης
νερού
(25°)
τηρώντας
μία
από
-
σταση
τουλάχιστον
30 cm.
Με
τη
στρογγυλή
δέσμη
δεν
μπο
-
ρούν
σε
καμία
περίπτωση
να
καθαρίζονται
ελαστικά
.
Για
όλες
τις
άλλες
εργασίες
είναι
διαθέσιμα
τα
ακόλουθα
ακροφύ
-
σια
:
Για
σωλήνες
μεγαλύτερους
από
20 m
ή
ελαστικούς
σωλήνες
υψηλής
πίεσης
μεγαλύτερους
από
2 x 10 m NW 8,
να
χρησιμο
-
ποιούνται
τα
ακόλουθα
ακροφύσια
:
Ρύθμιση
πίεσης
εργασίας
και
ποσότητας
μεταφοράς
Ρύθμιση
στη
συσκευή
Ρυθμίσεις
στο
πιστολέτο
Easypress (
προαιρετικό
)
Λειτουργία
με
κρύο
νερό
Λειτουργία
με
καυτό
νερό
R
Ετοιμότητα
λειτουργίας
Επιλογή
ακροφυσίων
Ρύποι
Ακροφύ
-
σιο
Γωνία
ψεκα
-
σμού
Κωδ
.
εξαρτη
-
μάτων
6.415
Πίεση
[MPa]
Ανάκρου
-
ση
[N]
HDS 9/16
δυνατό
00060
0°
-649
16
46
μεσαία
25060
25°
-647
ελαφρύ
40060
40°
-648
HDS 12/14
δυνατό
00080
0°
-150
14
55
μεσαία
25080
25°
-152
ελαφρύ
40080
40°
-153
Ρύποι
Ακροφύ
-
σιο
Γωνία
ψεκα
-
σμού
Κωδ
.
εξαρτη
-
μάτων
6.415
Πίεση
[MPa]
Ανάκρου
-
ση
[N]
HDS 9/16
δυνατό
0075
0°
-419
10
37
μεσαία
2575
25°
-421
ελαφρύ
4075
40°
-422
HDS 12/14
δυνατό
0010
0°
-082
10
46
μεσαία
2510
25°
-252
ελαφρύ
4010
40°
-253
227
EL
-
6
–
Τα
απορρυπαντικά
διευκολύνουν
την
εργασία
καθαρισμού
.
Αναρροφώνται
από
μια
εξωτερική
δεξαμενή
απορρυπαντι
-
κού
.
–
Η
βασική
έκδοση
της
συσκευής
είναι
εξοπλισμένη
με
δοσομε
-
τρική
βαλβίδα
(
Γ
).
Μια
δεύτερη
διάταξη
δοσολόγησης
(
δοσο
-
μετρική
βαλβίδα
Δ
)
είναι
διαθέσιμη
ως
πρόσθετο
εξάρτημα
.
Επίσης
,
υπάρχει
η
δυνατότητα
αναρρόφησης
δύο
διαφορετι
-
κών
απορρυπαντικών
.
–
Η
ποσότητα
δοσολογίας
ρυθμίζεται
στις
δοσομετρικές
βαλβί
-
δες
απορρυπαντικού
(
Γ
ή
Δ
)
του
πίνακα
ελέγχου
.
Η
επιλεγμέ
-
νη
τιμή
αντιστοιχεί
στο
ποσοστό
απορρυπαντικού
επί
τοις
εκατό
.
–
Η
εξωτερική
κλίμακα
ισχύει
για
χρήση
μη
αραιωμένου
απορ
-
ρυπαντικού
(100 % CHEM).
–
Η
εσωτερική
κλίμακα
ισχύει
για
χρήση
προαραιωμένου
απορ
-
ρυπαντικού
1+3 (25 % CHEM + 75 %
νερό
).
Ο
ακόλουθος
πίνακας
αναγράφει
την
κατανάλωση
απορρυπαντι
-
κού
για
τις
τιμές
της
εξωτερικής
κλίμακας
:
Η
ακριβής
δοσολογία
εξαρτάται
από
:
–
Το
ιξώδες
του
απορρυπαντικού
–
Το
ύψος
αναρρόφησης
–
Την
αντίστασης
ροής
του
αγωγού
υψηλής
πίεσης
Εάν
απαιτείται
ακριβής
δοσολογία
,
θα
πρέπει
να
μετράτε
την
αναρροφώμενη
ποσότητα
απορρυπαντικού
(
π
.
χ
.
με
αναρρόφη
-
ση
από
ογκομετρικό
δοχείο
).
Υπόδειξη
:
Συστάσεις
σχετικά
με
το
απορρυπαντικό
θα
βρείτε
στο
κεφάλαιο
"
Πρόσθετα
εξαρτήματα
".
Προσοχή
Κατά
τη
λειτουργία
χωρίς
αποσκληρυντικό
,
είναι
δυνατό
να
δημι
-
ουργηθούν
ιζήματα
στο
θερμαντήρα
διαρκούς
λειτουργίας
.
Σε
περίπτωση
κενού
δοχείου
αποσκληρυντικού
,
αναβοσβήνει
η
ενδεικτική
λυχνία
προστασίας
από
άλατα
(
Η
).
Εικόνα
1 -
Θέση
8
Συμπληρώστε
υγρό
RM 110 (2.780-001)
στο
δοχείο
απο
-
σκληρυντικού
.
Κίνδυνος
Κίνδυνος
εγκαυμάτων
λόγω
του
καυτού
νερού
!
Ύστερα
από
τη
λειτουργία
με
καυτό
νερό
,
η
συσκευή
πρέπει
να
λειτουργήσει
για
τουλάχιστον
δύο
λεπτά
με
κρύο
νερό
και
ανοιχτό
πιστολέτο
,
ώστε
να
κρυώσει
.
Σε
περίπτωση
λειτουργίας
με
καυτό
νερό
,
ρυθμίστε
τον
ελε
-
γκτή
θερμοκρασίας
(
Β
)
στη
ελάχιστη
θερμοκρασία
.
Χρησιμοποιήστε
τη
συσκευή
για
τουλάχιστον
30
δευτερόλε
-
πτα
χωρίς
απορρυπαντικό
.
Ρυθμίστε
το
διακόπτη
της
συσκευής
(
Α
)
στη
θέση
“0“.
Κλείστε
την
προσαγωγή
νερού
.
Ενεργοποιήστε
το
πιστολέτο
χειρός
,
έως
ότου
διαπιστώσετε
ότι
η
συσκευή
δεν
βρίσκεται
υπό
πίεση
.
Ασφαλίστε
τη
σκανδάλη
του
πιστολέτου
με
το
κούμπωμα
,
ώστε
να
μην
ανοίξει
κατά
λάθος
.
Σε
περίπτωση
μακροχρόνιων
παύσεων
ή
όταν
δεν
είναι
δυνατή
η
αποθήκευση
σε
χώρο
προστατευμένο
από
παγετούς
,
εκτελέ
-
στε
τα
ακόλουθα
μέτρα
(
βλ
.
κεφάλαιο
"
Φροντίδα
και
συντήρηση
"
παράγραφος
"
Αντιπαγετική
προστασία
").
Αδειάζετε
το
νερό
.
Ξεπλύνετε
τη
συσκευή
με
αντιπηκτικό
.
Απενεργοποιήστε
και
ασφαλίστε
το
γενικό
διακόπτη
ή
το
βύ
-
σμα
Cekon.
Κλείστε
την
τροφοδοσία
αερίου
.
Προσοχή
Κίνδυνος
τραυματισμού
και
βλάβης
!
Κατά
την
αποθήκευση
λάβετε
υπόψη
το
βάρος
της
συσκευής
.
Προσοχή
Κίνδυνος
τραυματισμού
και
βλάβης
!
Κατά
τη
μεταφορά
λάβετε
υπόψη
το
βάρος
της
συσκευής
.
Κατά
τη
μεταφορά
με
οχήματα
,
ασφαλίστε
τη
συσκευή
έναντι
ενδεχόμενης
ολίσθησης
και
ανατροπής
,
σύμφωνα
με
τις
εκά
-
στοτε
ισχύουσες
κατευθυντήριες
οδηγίες
.
Δοσολογία
απορρυπαντικού
Θέση
0,5
1
8
Ποσότητα
απορρυπαντικού
[l/h]
14...15 22...24
50
Συμπύκνωση
απορρυπαντικού
[%]
1,5
2,5
> 5
Πλήρωση
με
αποσκληρυντικό
Απενεργοποίηση
Μετά
τη
λειτουργία
με
απορρυπαντικό
Απενεργοποίηση
της
συσκευής
Διακοπή
της
λειτουργίας
Αποθήκευση
Μεταφορά
228
EL
-
7
Τεχνικά
χαρακτηριστικά
HDS 9/16-4
ST Gas
HDS 9/16-4
ST Gas LPG
HDS 12/14-4
ST Gas
HDS 12/14-4
ST Gas LPG
1.251-108
1.251-109
1.251-110
1.251-111
Επιδόσεις
Πίεση
εργασίας
νερού
(
με
στάνταρ
ακροφύσιο
)
MPa (bar)
16 (160)
16 (160)
14 (140)
14 (140)
Μέγ
.
υπερπίεση
λειτουργίας
(
βαλβίδα
ασφαλείας
)
MPa (bar)
18,5 (185)
18,5 (185)
18,5 (185)
18,5 (185)
Ποσότητα
προώθησης
νερού
(
αδιαβάθμητη
ρύθμιση
)
l/h (l/min)
500-1000 (8,3-
16,6)
500-1000 (8,3-
16,6)
600-1200 (10-
20)
600-1200 (10-
20)
Αναρρόφηση
απορρυπαντικού
(
αδιαβάθμητη
ρύθμιση
) l/h (l/min)
0-50 (0-0,8)
0-50 (0-0,8)
0-60 (0-1)
0-60 (0-1)
Σύνδεση
νερού
Ποσότητα
προσαγωγής
(
ελάχ
.)
l/h (l/min)
1100 (18,3)
1100 (18,3)
1300 (21,7)
1300 (21,7)
Πίεση
προσαγωγής
(
ελάχ
.)
MPa (bar)
0,1 (1)
0,1 (1)
0,1 (1)
0,1 (1)
Πίεση
προσαγωγής
(
μέγ
.)
MPa (bar)
0,6 (6)
0,6 (6)
0,6 (6)
0,6 (6)
Ηλεκτρική
σύνδεση
Ρεύμα
--
3N~
3N~
3N~
3N~
Συχνότητα
Hz
50
50
50
50
Τάση
V
380-420
380-420
380-420
380-420
Ισχύς
σύνδεσης
kW
6,4
6,4
7,5
7,5
Ηλεκτρική
ασφάλεια
(
αδρανής
)
A
16
16
20
20
Είδος
προστασίας
--
IPX5
IPX5
IPX5
IPX5
Κατηγορία
προστασίας
--
I
I
I
I
Μέγιστη
επιτρεπόμενη
αντίσταση
δικτύου
Ohm
(0,381+j
0,238)
(0,381+j
0,238)
--
--
Καλώδιο
ρεύματος
mm
2
5 x 2,5
5 x 2,5
5 x 2,5
5 x 2,5
Θερμοκρασία
Θερμοκρασία
προσαγωγής
(
μέγ
.)
°C
30
30
30
30
Μέγ
.
θερμοκρασία
εργασίας
καυτού
νερού
°C
98
98
98
98
Μεγ
.
θερμοκρασία
θερμοστάτη
ασφαλείας
°C
110
110
110
110
Αύξηση
θερμοκρασίας
σε
μέγιστη
παροχή
νερού
°C
60-65
60-65
60-65
60-65
Θερμαντική
ισχύς
μεικτή
kW
75
75
95
95
Άντληση
καμινάδας
kPa
0,01-0,04
0,01-0,04
0,01-0,04
0,01-0,04
Τιμές
συνδέσεων
αερίου
Φυσικό
αέριο
E (G 20)
m
3
/h
7,2
--
9,8
--
Φυσικό
αέριο
LL (G 25)
m
3
/h
8,2
--
11,4
--
Ονομαστική
πίεση
σύνδεσης
(
φυσικό
αέριο
)
kPa
1,8-5
--
1,8-5
--
Προπάνιο
kg/h
--
5,7
--
7,2
Ονομαστική
πίεση
σύνδεσης
(
προπάνιο
)
kPa
--
5-6
--
5-6
Περιβαλλοντικά
στοιχεία
Προβλεπόμενος
βαθμός
χρήσης
%
97
97
97
97
Προβλεπόμενος
παράγων
εκπομπής
NO
X
(
φυσικό
αέριο
G
25)
mg/kWh
< 40
--
< 40
--
Προβλεπόμενος
παράγων
εκπομπής
CO (
φυσικό
αέριο
G 25) mg/kWh
< 40
--
< 40
--
Τιμές
διαστάσεων
καμινάδας
Καταλληλότητα
υπερπίεσης
(
ελάχ
.)
kPa
0,05
0,05
0,05
0,05
Απαιτήσεις
άντλησης
kPa
0
0
0
0
Ρεύμα
καυσαερίων
-
πλήρες
φορτίο
kg/h
130
130
166
166
CO
2
(
φυσικό
αέριο
)
%
9,5
--
9,5
--
CO
2
(
προπάνιο
)
%
--
12
--
12
Θερμοκρασία
καυσαερίων
μεγ
./
ελάχ
.
°C
190/150
190/150
170/130
170/130
Αέρας
καύσης
/
προσαγωγή
αέρα
Μέγ
.
μήκος
: 10 m
με
δύο
καμπύλες
90° (
ελάχιστη
διάμετρος
100 mm).
Κατά
τους
τοπικούς
κανονισμούς
από
το
χώρο
εγκατάστασης
ή
με
καθαρό
αέρα
από
εξωτερικό
χώρο
.
Απορροή
προϊόντων
συμπύκνωσης
Απορροή
προϊόντων
συμπύκνωσης
(
μέγ
.)
l/h
4 (
μέσω
σιφο
-
νιού
στην
απο
-
χέτευση
)
4 (
μέσω
σιφο
-
νιού
στην
απο
-
χέτευση
)
4 (
μέσω
σιφο
-
νιού
στην
απο
-
χέτευση
)
4 (
μέσω
σιφο
-
νιού
στην
απο
-
χέτευση
)
Σύνδεση
DN
40 (HTR)
40 (HTR)
40 (HTR)
40 (HTR)
Ελάχιστη
στήλη
νερού
,
σιφόνι
mm
300
300
300
300
229
EL
-
8
Άδεια
EN 60335-2-79
Άδεια
κατά
την
Οδηγία
Συσκευών
Αερίου
(90/396/E
ΟΚ
) --
Gastec QA
Low NO
X
Gastec QA
Gastec QA
Low NO
X
Gastec QA
Κατηγορία
συσκευών
Ευρώπης
--
I 2E (r), I
2ELL, I 2H, I
2L, I2 HE
I 3P
I 2E (r), I
2ELL, I 2H, I
2L, I2 HE
I 3P
Τύπος
συσκευών
--
B23, C33,
C43, C53
B23, C33,
C43, C53
B23, C33,
C43, C53
B23, C33,
C43, C53
Αναγνωριστικός
αριθμός
προϊόντος
CE
--
PIN 0063 BN
3880
PIN 0063 BN
3880
PIN 0063 BN
3880
PIN 0063 BN
3880
Διαστάσεις
και
βάρη
Μήκος
mm
1124
1124
1124
1124
Πλάτος
mm
558
558
558
558
Ύψος
mm
966
966
1076
1076
Τυπικό
βάρος
λειτουργίας
kg
193,5
193,5
209
209
Μετρούμενες
τιμές
κατά
EN 60355-2-79
Εκπεμπόμενος
θόρυβος
Επιτρεπόμενη
στάθμη
ηχητικής
ισχύος
L
pA
dB(A)
74
74
76
76
Αβεβαιότητα
K
pA
dB(A)
1
1
1
1
Κραδασμοί
στο
χέρι
/
στο
βραχίονα
Πιστολέτο
χειρός
m/s
2
2,2
2,2
2,3
2,3
σωλήνας
εκτόξευσης
m/s
2
1,8
1,8
2,1
2,1
Αβεβαιότητα
K
m/s
2
1,0
1,0
1,0
1,0
HDS 9/16-4
ST Gas
HDS 9/16-4
ST Gas LPG
HDS 12/14-4
ST Gas
HDS 12/14-4
ST Gas LPG
Φύλλο
διαστάσεων
230
EL
-
9
Κίνδυνος
Κίνδυνος
τραυματισμού
!
Πριν
από
όλες
τις
εργασίες
συντήρησης
και
επισκευής
σβήστε
το
γενικό
διακόπτη
ή
αποσυνδέστε
το
βύ
-
σμα
Cekon.
Φροντίδα
και
συντήρηση
Πρόγραμμα
συντήρησης
Χρονική
στιγμή
Ενέργεια
σχετικό
συγκρότημα
Εκτέλεση
Ποιος
ημερησίως
Έλεγχος
του
πι
-
στολέτου
χειρός
Πιστολέτο
χειρός
Ελέγξτε
εάν
το
πιστολέτο
χειρός
κλείνει
αεροστε
-
γώς
.
Ελέγξτε
τη
λειτουργία
της
ασφάλειας
έναντι
ακούσιας
ενεργοποίησης
.
Αντικαταστήστε
το
ελαττωματικό
πιστολέτο
χειρός
.
Χειριστής
Έλεγχος
του
σω
-
λήνα
υψηλής
πί
-
εσης
Αγωγοί
εξόδου
,
ελαστικοί
σω
-
λήνες
προς
τη
συσκευή
εργασί
-
ας
Εξετάστε
τους
ελαστικούς
σωλήνες
για
βλάβες
.
Αντικαταστήστε
αμέσως
τους
ελαττωματικούς
ελαστικούς
σωλήνες
.
Κίνδυνος
ατυχήματος
!
Χειριστής
Έλεγχος
του
αγωγού
σύνδε
-
σης
με
βύσμα
τροφοδοσίας
Ηλεκτρική
σύνδεση
με
βύσμα
/
πρίζα
Ελέγξτε
τον
αγωγό
σύνδεσης
με
βύσμα
τροφο
-
δοσίας
για
βλάβες
.
Αναθέστε
αμέσως
στην
εξου
-
σιοδοτημένη
υπηρεσία
εξυπηρέτησης
πελατών
/
σε
εξειδικευμένο
ηλεκτρολόγο
την
αντικατάστα
-
ση
του
χαλασμένου
αγωγού
σύνδεσης
.
Χειριστής
εβδομαδιαίως
ή
έπειτα
από
40
ώρες
λειτουργίας
Έλεγχος
στάθ
-
μης
λαδιού
Δοχείο
λαδιού
στην
αντλία
Εάν
το
λάδι
έχει
γαλακτώδη
υφή
,
πρέπει
να
αντι
-
κατασταθεί
.
Χειριστής
Έλεγχος
στάθ
-
μης
λαδιού
Δοχείο
λαδιού
στην
αντλία
Ελέγξτε
τη
στάθμη
λαδιού
της
αντλίας
.
Εάν
απαι
-
τείται
,
συμπληρώστε
λάδι
(
κωδ
.
παραγγελίας
6.288-016).
Χειριστής
Καθαρισμός
της
σήτας
Φίλτρο
στην
είσοδο
νερού
Βλέπε
παράγραφος
"
Καθαρισμός
της
σήτας
".
Χειριστής
μηνιαίως
ή
μετά
από
200
ώρες
λει
-
τουργίας
Έλεγχος
της
αντλίας
Αντλία
υψηλής
πίεσης
Εξετάστε
την
αντλία
για
διαρροές
.
Καλέστε
την
υπηρεσία
εξυπηρέτησης
πελατών
,
εάν
η
διαρ
-
ροή
υπερβαίνει
τις
3
σταγόνες
ανά
λεπτό
.
Χειριστής
έλεγχος
εσωτε
-
ρικών
ιζημάτων
συνολική
εγκατάσταση
Ενεργοποιήστε
την
εγκατάσταση
με
σωλήνα
ψε
-
κασμού
χωρίς
το
ακροφύσιο
υψηλής
πίεσης
.
Εάν
η
πίεση
λειτουργίας
αυξηθεί
στο
μανόμετρο
της
συσκευής
πάνω
από
τα
3 MPa,
πρέπει
να
εκτελεστεί
αφαλάτωση
στην
εγκατάσταση
.
Το
ίδιο
ισχύει
και
εάν
διαπιστωθεί
πίεση
λειτουργίας
άνω
των
0,7–1 MPa
κατά
τη
λειτουργία
χωρίς
αγωγό
υψηλής
πίεσης
(
το
νερό
ρέει
ελεύθερα
από
την
έξοδο
υψηλής
πίεσης
).
Χειριστής
με
οδηγίες
για
την
αφαλά
-
τωση
Καθαρισμός
της
σήτας
Σήτα
της
ασφάλειας
έλλειψης
νερού
Βλέπε
παράγραφος
"
Καθαρισμός
της
σήτας
".
Χειριστής
έπειτα
από
500-
700
ώρες
λειτουρ
-
γίας
Αντικατάσταση
Ανάφλεξη
,
ηλεκτρόδιο
ιονισμού Αντικαταστήστε
την
ανάφλεξη
και
/
ή
το
ηλεκτρό
-
διο
ιονισμού
.
Υπηρεσία
εξυπηρέτη
-
σης
πελατών
ανά
εξάμηνο
ή
έπειτα
από
1000
ώρες
λειτουργίας
Αλλαγή
λαδιού
Αντλία
υψηλής
πίεσης
Αφαιρέστε
το
λάδι
.
Γεμίστε
με
1 l
καινούριο
λάδι
(
κωδ
.
παραγγελίας
6.288-016).
Ελέγξτε
τη
στάθ
-
μη
πλήρωσης
στο
δοχείο
λαδιού
.
Χειριστής
ελέγξτε
,
καθαρί
-
στε
συνολική
εγκατάσταση
Οπτικός
έλεγχος
της
εγκατάστασης
,
ελέγξτε
τις
συνδέσεις
υψηλής
πίεσης
για
διαρροές
,
ελέγξτε
τη
βαλβίδα
υπερχείλισης
για
διαρροές
,
ελέγξτε
τον
ελαστικό
σωλήνα
υψηλής
πίεσης
,
ελέγξτε
το
συλλέκτη
πίεσης
,
αφαλατώστε
την
θερμαντική
αντίσταση
,
καθαρίστε
/
αντικαταστήστε
το
ηλε
-
κτρόδιο
ιονισμού
,
ρυθμίστε
τον
καυστήρα
.
Υπηρεσία
εξυπηρέτη
-
σης
πελατών
Αντικατάσταση
του
ελαστικού
σωλήνα
Ελαστικός
σωλήνας
προς
το
δι
-
ακόπτη
πίεσης
καυσαερίων
Αντικαταστήστε
τον
ελαστικό
σωλήνα
.
Υπηρεσία
εξυπηρέτη
-
σης
πελατών
ετησίως
Έλεγχος
ασφα
-
λείας
συνολική
εγκατάσταση
Εκτελέστε
έλεγχο
ασφαλείας
σύμφωνα
με
τους
εκάστοτε
εθνικούς
κανονισμούς
του
νομοθέτη
για
ψεκαστήρες
υγρών
.
Εμπειρογνώ
-
μων
231
EL
-
10
Μπορείτε
να
συνάψετε
ένα
συμβόλαιο
συντήρησης
για
τη
συ
-
σκευή
με
το
αρμόδιο
γραφείο
πωλήσεων
της
εταιρείας
Kärcher.
Εικόνα
1 -
Θέση
3
Κλείστε
την
προσαγωγή
νερού
.
Ξεβιδώστε
τον
ελαστικό
σωλήνα
προσαγωγής
νερού
από
το
μηχάνημα
.
Τραβήξτε
προς
τα
έξω
τη
σήτα
από
τη
σύνδεση
με
ένα
κατσα
-
βίδι
.
Καθαρισμός
της
σήτας
Συναρμολογήστε
με
την
αντίστροφη
σειρά
.
Αφαιρέστε
τα
ελάσματα
επένδυσης
.
Ξεβιδώστε
τη
γωνία
από
το
μπλοκ
ασφαλείας
.
Σφίξτε
τον
κοχλία
M8x30
στη
σήτα
.
Αφαιρέστε
τον
κοχλία
και
τη
σήτα
με
μια
πένσα
.
Καθαρισμός
της
σήτας
Συναρμολογήστε
με
την
αντίστροφη
σειρά
.
Σε
περίπτωση
ύπαρξης
ιζημάτων
μέσα
στους
σωλήνες
,
η
αντί
-
σταση
ροής
αυξάνεται
και
είναι
δυνατό
να
ενεργοποιηθεί
ο
διακό
-
πτης
πίεσης
.
Κίνδυνος
Κίνδυνος
έκρηξης
λόγω
εύφλεκτων
αερίων
!
Το
κάπνισμα
απαγο
-
ρεύεται
κατά
την
αφαλάτωση
.
Φροντίστε
για
τον
καλό
εξαερισμό
.
Κίνδυνος
Κίνδυνος
εγκαυμάτων
από
οξέα
!
Φοράτε
προστατευτικά
γυαλιά
και
γάντια
.
Για
την
αφαίρεση
να
χρησιμοποιούνται
μόνον
ελεγμένα
διαλυτικά
λεβητόλιθου
με
σήμανση
ελέγχου
σύμφωνα
με
τη
μονοθεσία
.
–
Το
RM 100 (
κωδ
.
παραγγελίας
6.287-008)
διαλύει
τον
ασβε
-
στόλιθο
και
τις
απλές
ασβεστολιθικές
ενώσεις
ή
τα
υπολείμ
-
ματα
του
απορρυπαντικού
.
–
Το
RM 101 (
κωδ
.
παραγγελίας
6.287-013)
διαλύει
τα
ιζήματα
που
δεν
διαλύονται
με
το
RM 100.
Γεμίστε
ένα
δοχείο
20
λίτρων
με
15 l
νερό
.
Προσθέστε
ένα
λίτρο
διαλυτικού
λεβητολίθου
.
Συνδέστε
τον
ελαστικό
σωλήνα
νερού
απευθείας
στην
κεφα
-
λή
της
αντλία
και
αφήστε
το
ελεύθερο
άκρο
να
κρέμεται
μέσα
στο
δοχείο
.
Εισάγετε
στο
δοχείο
το
συνδεδεμένο
σωλήνα
ρίψης
χωρίς
το
ακροφύσιο
.
Ανοίξτε
το
πιστολέτο
χειρός
και
μην
το
ξανακλείνετε
κατά
τη
διαδικασία
αφαλάτωσης
.
Ρυθμίστε
το
διακόπτη
της
συσκευής
στη
θέση
„
Καυστήρας
ενεργός
“
έως
ότου
επιτευχθεί
θερμοκρασία
40 °C.
Απενεργοποιήστε
το
μηχάνημα
και
αφήστε
το
20
λεπτά
.
Το
πιστολέτο
χειρός
πρέπει
να
παραμείνει
ανοικτό
.
Τέλος
,
αδειάστε
το
μηχάνημα
με
την
αντλία
.
Υπόδειξη
:
Στη
συνέχεια
,
για
προστασία
από
τη
διάβρωση
και
εξουδετέρωση
των
όξινων
υπολειμμάτων
,
συνιστούμε
την
τρο
-
φοδοσία
της
συσκευής
με
ένα
αλκαλικό
διάλυμα
(
π
.
χ
. RM 81)
μέσω
της
αντλίας
και
του
δοχείου
απορρυπαντικού
.
Η
συσκευή
πρέπει
να
τοποθετείται
μόνον
σε
χώρους
που
διαθέ
-
τουν
αντιπαγετική
προστασία
.
Σε
περίπτωση
κινδύνου
παγετού
,
π
.
χ
.
σε
εγκαταστάσεις
εξωτερικών
χώρων
,
η
συσκευή
πρέπει
να
αδειάσει
και
να
ξεπλυθεί
με
αντιψυκτικό
υγρό
.
Ξεβιδώστε
τον
εύκαμπτο
σωλήνα
τροφοδοσίας
νερού
και
τον
εύκαμπτο
σωλήνα
υψηλής
πίεσης
.
Αφήστε
τη
συσκευή
να
λειτουργήσει
το
πολύ
για
1
λεπτό
μέ
-
χρι
να
αδειάσουν
η
αντλία
και
οι
σωληνώσεις
.
Ξεβιδώστε
τον
αγωγό
τροφοδοσίας
στον
πυθμένα
του
λέβητα
και
περιμένετε
να
αδειάσει
η
θερμαντική
αντίσταση
.
Υπόδειξη
:
Λάβετε
υπόψη
τους
κανόνες
χειρισμού
του
κατασκευ
-
αστή
του
αντιψυκτικού
.
Γεμίστε
ως
επάνω
το
δοχείο
με
πλωτήρα
με
ένα
αντιψυκτικό
ευρείας
κυκλοφορίας
.
Τοποθετήστε
το
αναρτώμενο
δοχείο
πάνω
από
την
έξοδο
υψηλής
πίεσης
.
Ενεργοποιήστε
τη
συσκευή
και
αφήστε
την
να
λειτουργήσει
,
έως
ότου
τεθεί
σε
λειτουργία
η
ασφάλεια
έλλειψης
νερού
του
δοχείου
με
πλωτήρα
και
η
συσκευή
απενεργοποιηθεί
.
Γεμίστε
τον
πυθμένα
του
λέβητα
και
το
σιφόνι
με
αντιψυκτικό
.
Έτσι
επιτυγχάνεται
επίσης
και
κάποια
αντιδιαβρωτική
προστα
-
σία
.
Σύμβαση
συντήρησης
Καθαρισμός
των
σητών
Σήτα
στην
είσοδο
νερού
Σήτα
της
ασφάλειας
έλλειψης
νερού
Αφαλάτωση
Εκτέλεση
2.
1.
Αντιπαγετική
προστασία
Αδειάστε
το
νερό
Ξεπλύνετε
τη
συσκευή
με
αντιπηκτικό
μέσο
232
EL
-
11
Κίνδυνος
Κίνδυνος
τραυματισμού
!
Πριν
από
όλες
τις
εργασίες
συντήρησης
και
επισκευής
σβήστε
το
γενικό
διακόπτη
ή
αποσυνδέστε
το
βύ
-
σμα
Cekon.
*
Υπόδειξη
Πιέστε
το
πλήκτρο
θερμοστάτη
καυσαερίων
(
Ι
),
για
να
απασφαλί
-
σετε
το
μηχανισμό
παρακολούθησης
φλόγας
.
Αντιμετώπιση
βλαβών
Βλάβη
Πιθανό
αίτιο
Αντιμετώπιση
Ποιος
Η
συσκευή
δεν
λειτουργεί
,
η
ενδεικτική
λυχνία
ετοιμότητας
λειτουργίας
(
ΣΤ
)
δεν
ανάβει
Στη
συσκευή
δεν
υπάρχει
τάση
τροφοδοσίας
.
Ελέγξτε
το
ηλεκτρικό
δίκτυο
.
Ηλεκτρολόγος
Χρονοδιακόπτης
ασφαλείας
σε
λει
-
τουργία
.
Απενεργοποιήστε
και
ενεργοποιήστε
αμέ
-
σως
τη
συσκευή
από
το
διακόπτη
της
συ
-
σκευής
.
Χειριστής
Καμένη
ασφάλεια
στο
κύκλωμα
ελέγχου
(F3).
Η
ασφάλεια
περιέχε
-
ται
στο
μετασχηματιστή
ελέγχου
(
Τ
2).
Τοποθετήστε
μια
νέα
ασφάλεια
,
αντιμετωπί
-
στε
το
αίτιο
της
υπερφόρτωσης
,
εάν
το
συμ
-
βάν
επαναληφθεί
.
Υπηρεσία
εξυπηρέ
-
τησης
πελατών
Διακόπτης
πίεσης
ΥΠ
(
υψηλής
πίε
-
σης
)
ή
ΧΠ
(
χαμηλής
πίεσης
)
ελατ
-
τωματικός
.
Ελέγξτε
το
διακόπτη
πίεσης
.
Υπηρεσία
εξυπηρέ
-
τησης
πελατών
Μονάδα
χρονοδιακόπτη
(
Α
1)
ελατ
-
τωματική
.
Ελέγξτε
τις
συνδέσεις
και
αντικαταστήστε
τις
,
εάν
είναι
απαραίτητο
.
Υπηρεσία
εξυπηρέ
-
τησης
πελατών
Ανάβει
η
ενδεικτική
λυχνία
+
υπερθέρμανσης
κινητήρα
(
Ζ
)
Ο
θερμοστάτης
(WS)
του
κινητήρα
ή
ο
διακόπτης
προστασίας
από
υπερένταση
(F1)
έχουν
ενεργοποι
-
ηθεί
.
Αντιμετωπίστε
τα
αίτια
της
υπερφόρτωσης
.
Υπηρεσία
εξυπηρέ
-
τησης
πελατών
Ενεργοποιήθηκε
η
ασφάλεια
έλλει
-
ψης
νερού
στο
δοχείο
με
πλωτήρα
.
Αντιμετωπίστε
την
έλλειψη
νερού
.
Χειριστής
Ο
καυστήρας
δεν
ενεργοποι
-
είται
ή
η
φλόγα
σβήνει
στη
δι
-
άρκεια
της
λειτουργίας
.
Ο
ελεγκτής
θερμοκρασίας
(
Β
)
έχει
ρυθμιστεί
πολύ
χαμηλά
Ρυθμίστε
τον
ελεγκτή
θερμοκρασίας
σε
υψη
-
λότερη
τιμή
.
Χειριστής
Ο
διακόπτης
της
συσκευής
δεν
βρί
-
σκεται
στη
θέση
καυστήρα
.
Ενεργοποιήστε
τον
καυστήρα
.
Χειριστής
Η
ασφάλεια
έλλειψης
νερού
του
μπλοκ
ασφαλείας
απενεργοποιή
-
θηκε
.
Εξασφαλίστε
την
επαρκή
τροφοδοσία
νερού
.
Ελέγξτε
τη
στεγανότητα
της
συσκευής
.
Χειριστής
Στρόφιγγα
αερίου
κλειστή
.
Ανοίξτε
τη
στρόφιγγα
αερίου
.
Χειριστής
Ο
μειωτήρας
μέγιστης
θερμοκρασί
-
ας
της
εξόδου
νερού
(> 110 °C)
ενεργοποιήθηκε
.
Αφήστε
το
λέβητα
να
κρυώσει
και
επανεκκι
-
νήστε
τη
συσκευή
.
Χειριστής
Ελέγξτε
τον
ελεγκτή
θερμοκρασίας
.
Υπηρεσία
εξυπηρέ
-
τησης
πελατών
Η
ενδεικτική
λυχνία
θερμο
-
στάτη
καυσαερίων
(
Κ
)
ανάβει
Απουσία
προσαγωγής
αερίου
.
Ανοίξτε
την
παροχή
αερίου
.
Χειριστής
Εμπλοκή
στην
είσοδο
ή
στην
έξοδο
ανακυκλούμενου
αέρα
.
Ελέγξτε
τον
εξαερισμό
και
το
σύστημα
καυ
-
σαερίων
.
Χειριστής
Υπερβολική
θερμοκρασία
στον
πυθμένα
του
λέβητα
.
Ο
μειωτήρας
μέγιστης
θερμοκρασίας
του
πυθμέ
-
να
του
λέβητα
(> 80 °C)
ενεργοποι
-
ήθηκε
.
Δεν
υπάρχει
συμπυκνωμένο
νερό
στον
πυθμέ
-
να
του
λέβητα
.
Προσθέστε
5
λίτρα
νερό
μέσω
του
στομίου
μέτρησης
καυσαερίων
.
Χειριστής
Το
αυτόματο
σύστημα
καύσης
αε
-
ρίου
εμφανίζει
ένδειξη
βλάβης
.
Πιέστε
το
πλήκτρο
απασφάλισης
ρελέ
αερίου
(
Ι
).
Χειριστής
Δεν
γίνεται
ανάφλεξη
. *
Ελέγξτε
την
απόσταση
των
ηλεκτροδίων
του
αυτόματου
συστήματος
καύσης
αερίου
και
το
καλώδιο
ανάφλεξης
.
Διορθώστε
την
απόστα
-
ση
ή
αντικαταστήστε
τα
ελαττωματικά
εξαρ
-
τήματα
.
Καθαρίστε
τα
,
εάν
είναι
απαραίτητο
.
Υπηρεσία
εξυπηρέ
-
τησης
πελατών
Βλάβη
στον
ανεμιστήρα
ή
στην
πλατίνα
ελέγχου
αριθμού
στρο
-
φών
. *
Ελέγξτε
τον
ανεμιστήρα
ή
την
πλατίνα
ελέγ
-
χου
αριθμού
στροφών
.
Ελέγξτε
το
φις
και
τον
αγωγό
τροφοδοσίας
.
Αντικαταστήστε
τα
εξαρτήματα
που
παρουσιάζουν
βλάβη
.
Υπηρεσία
εξυπηρέ
-
τησης
πελατών
233
EL
-
12
Βλάβη
Πιθανό
αίτιο
Αντιμετώπιση
Ποιος
Η
ενδεικτική
λυχνία
θερμο
-
στάτη
καυσαερίων
(
Κ
)
ανάβει
Ενεργοποιήθηκε
ο
ελεγκτής
θερ
-
μοκρασίας
καυσαερίων
.
Ανοίξτε
το
πιστολέτο
χειρός
,
έως
ότου
κρυώ
-
σει
η
εγκατάσταση
.
Απενεργοποιήστε
και
ενεργοποιήστε
την
εγκατάσταση
από
τον
πί
-
νακα
ελέγχου
,
για
να
απασφαλίσετε
τον
ελε
-
γκτή
θερμοκρασίας
.
Εάν
επαναληφθεί
καλέστε
την
υπηρεσία
εξυπηρέτησης
πελα
-
τών
.
Χειριστής
Ανάβει
η
ενδεικτική
λυχνία
προστασίας
από
άλατα
(
Η
)
Το
αποσκληρυντικό
καταναλώθη
-
κε
.
Συμπληρώστε
αποσκληρυντικό
.
Χειριστής
Ανεπαρκής
ή
καθόλου
παρο
-
χή
απορρυπαντικού
Δοσομετρική
βαλβίδα
στη
θέση
"0".
Ρυθμίστε
τη
δοσομετρική
βαλβίδα
απορρυ
-
παντικού
.
Χειριστής
Βουλωμένο
φίλτρο
απορρυπαντι
-
κού
ή
κενή
δεξαμενή
.
Καθαρίστε
και
/
ή
γεμίστε
.
Χειριστής
Διαρροή
ή
εμπλοκή
στους
ελαστι
-
κούς
σωλήνες
αναρρόφησης
απορρυπαντικού
,
δοσομετρικής
βαλβίδας
ή
ηλεκτρομαγνητικής
βαλβίδας
.
Ελέγξτε
,
καθαρίστε
.
Χειριστής
Βλάβη
στο
ηλεκτρονικό
σύστημα
ή
στην
ηλεκτρομαγνητική
βαλβίδα
.
Αντικατάσταση
Υπηρεσία
εξυπηρέ
-
τησης
πελατών
Η
συσκευή
δεν
αναπτύσσει
πλήρη
πίεση
Το
ακροφύσιο
έχει
φύγει
από
τη
θέση
του
.
Αντικαταστήστε
το
ακροφύσιο
.
Χειριστής
Το
δοχείο
απορρυπαντικού
είναι
άδειο
.
Συμπληρώστε
απορρυπαντικό
.
Χειριστής
Το
νερό
δεν
επαρκεί
.
Φροντίστε
για
την
επαρκή
τροφοδοσία
νε
-
ρού
.
Χειριστής
Βουλωμένη
σήτα
στην
είσοδο
νε
-
ρού
.
Ελέγξτε
,
αποσυναρμολογήστε
και
καθαρίστε
τη
σήτα
.
Χειριστής
Μη
στεγανή
δοσομετρική
βαλβίδα
απορρυπαντικού
.
Ελέγξτε
και
στεγανοποιήστε
.
Χειριστής
Μη
στεγανοί
ελαστικοί
σωλήνες
απορρυπαντικού
.
Αντικατάσταση
Χειριστής
Εμπλοκή
στη
βαλβίδα
πλωτήρα
.
Ελέγξτε
την
απρόσκοπτη
κίνηση
.
Χειριστής
Διαρροή
στη
βαλβίδα
ασφαλείας
.
Ελέγξτε
τη
ρύθμιση
και
τοποθετήστε
νέα
μό
-
νωση
,
εάν
είναι
απαραίτητο
.
Υπηρεσία
εξυπηρέ
-
τησης
πελατών
Μη
στεγανή
βαλβίδα
ρύθμισης
πο
-
σότητας
ή
πολύ
χαμηλή
ρύθμιση
.
Ελέγξτε
τα
εξαρτήματα
της
βαλβίδας
,
αντικα
-
ταστήστε
τα
σε
περίπτωση
βλάβης
ή
καθαρί
-
στε
τα
σε
περίπτωση
ρύπανσης
.
Υπηρεσία
εξυπηρέ
-
τησης
πελατών
Βλάβη
στην
ηλεκτρομαγνητική
βαλβίδα
εκτόνωσης
πίεσης
.
Αντικαταστήστε
την
ηλεκτρομαγνητική
βαλβί
-
δα
.
Υπηρεσία
εξυπηρέ
-
τησης
πελατών
Η
αντλία
υψηλής
πίεσης
χτυ
-
πάει
,
το
μανόμετρο
δονείται
έντονα
Ελαττωματικός
αποσβεστήρας
κραδασμών
.
Αντικαταστήστε
τον
αποσβεστήρα
κραδα
-
σμών
.
Υπηρεσία
εξυπηρέ
-
τησης
πελατών
Η
αντλία
νερού
αναρροφά
ελάχι
-
στο
αέρα
.
Ελέγξτε
το
σύστημα
αναρρόφησης
και
αντι
-
μετωπίστε
τις
διαρροές
.
Χειριστής
Η
συσκευή
ενεργοποιείται
και
απενεργοποιείται
συνε
-
χώς
με
ανοιχτό
το
πιστολέτο
χειρός
Εμπλοκή
του
ακροφυσίου
του
σω
-
λήνα
ψεκασμού
.
Ελέγξτε
,
καθαρίστε
.
Χειριστής
Η
συσκευή
έχει
άλατα
.
Βλέπε
παράγραφος
"
Αφαλάτωση
".
Χειριστής
Το
σημείο
ενεργοποίησης
του
υπερχειλιστή
έχει
μετακινηθεί
.
Ρυθμίστε
ξανά
τον
υπερχειλιστή
.
Υπηρεσία
εξυπηρέ
-
τησης
πελατών
Βουλωμένο
φίλτρο
της
ασφάλειας
έλλειψης
νερού
.
Ελέγξτε
,
αποσυναρμολογήστε
και
καθαρίστε
τη
σήτα
.
Χειριστής
Η
συσκευή
δεν
απενεργοποι
-
είται
όταν
το
πιστολέτο
χει
-
ρός
είναι
κλειστό
.
Η
αντλία
δεν
είναι
πλήρως
εξαερω
-
μένη
.
Ρυθμίστε
το
διακόπτη
της
συσκευής
στη
θέση
"0"
και
τραβήξτε
το
πιστολέτο
χειρός
,
έως
ότου
να
σταματήσει
η
διαρροή
υγρού
από
το
ακροφύσιο
.
Ενεργοποιήστε
ξανά
τη
συσκευή
.
Επαναλάβετε
αυτή
τη
διαδικασία
,
έως
ότου
επιτευχθεί
πλήρως
η
πίεση
λει
-
τουργίας
.
Χειριστής
Βλάβη
στη
βαλβίδα
ασφαλείας
και
/
ή
στη
μόνωση
της
βαλβίδας
ασφα
-
λείας
.
Αντικαταστήστε
τη
βαλβίδα
ασφαλείας
και
/
ή
τη
μόνωση
.
Υπηρεσία
εξυπηρέ
-
τησης
πελατών
Διακόπτης
πίεσης
του
υπερχειλι
-
στή
.
Ελέγξτε
το
διακόπτη
πίεσης
και
τον
υπερχει
-
λιστή
.
Υπηρεσία
εξυπηρέ
-
τησης
πελατών
234
EL
-
13
Τα
απορρυπαντικά
διευκολύνουν
τις
εργασίες
καθαρισμού
.
Στον
πίνακα
περιλαμβάνεται
μια
επιλογή
απορρυπαντικών
.
Πριν
την
χρήση
των
απορρυπαντικών
,
να
λαμβάνονται
οπωσδήποτε
υπό
-
ψη
οι
υποδείξεις
τις
συσκευασίας
.
* =
μόνον
για
σύντομη
χρήση
,
μέθοδος
δύο
βημάτων
,
απομά
-
κρυνση
με
καθαρό
νερό
** = ASF =
με
ιδιότητες
διαχωρισμού
*** =
για
την
πρόπλυση
ενδείκνυται
το
Foam-Star 2000
Εξαρτήματα
Απορρυπαντικό
Πεδίο
εφαρμογής
Ρύποι
,
τύπος
εφαρμογής
Απορρυπαντικό
Τιμή
pH (
περ
.)
διάλυ
-
μα
1 %
σε
νερό
βρύ
-
σης
Επιχειρήσεις
οχημάτων
,
βενζινάδικα
,
μεταφορι
-
κές
εταιρείες
,
πάρκα
κυ
-
κλοφορίας
Σκόνη
,
οδικοί
ρύποι
,
μεταλλικά
έλαια
(
σε
λακαρισμένες
επιφάνει
-
ες
)
RM 55 ASF **
8
Σκόνη
RM 22/80 ASF
12/10
RM 81 ASF
9
RM 803 ASF
10
RM 806 ASF
11
Συντήρηση
οχήματος
RM 42
Ψυχρό
κερί
για
συσκευή
καθαρισμού
υψηλής
πίεσης
8
RM 820
Καυτό
κερί
ASF
7
RM 821
Ψεκαζόμενο
κερί
ASF
6
RM 824-
Περλέ
κερί
Super ASF
7
RM 44
Καθαριστικό
φτερών
σε
τζελ
9
Βιομηχανία
κατεργασίας
μετάλλου
Έλαια
,
λίπη
,
σκόνη
και
παρόμοιοι
ρύποι
RM 22
Σκόνη
ASF
12
RM 55 ASF
8
RM 81 ASF
9
RM 803 ASF
10
RM 806 ASF
12
RM 31 ASF (
επίμονοι
ρύποι
)
12
RM 39
υγρό
(
με
προστασία
από
τη
διάβρωση
)
9
Επιχειρήσεις
κατεργασί
-
ας
τροφίμων
Ελαφρά
έως
μέτρια
ρύπανση
,
λίπη
/
έλαια
,
μεγάλες
επιφάνειες
RM 55 ASF
8
RM 81 ASF
9
RM 882
Αφρός
τζελ
OSC
12
RM 58 ASF (
αφρώδες
καθαριστικό
)
9
RM 31 ASF *
12
Ρητίνη
καπνού
RM 33 *
13
Καθαρισμός
και
απολύμανση
RM 732
9
Απολύμανση
RM 735
7...8
Άλατα
,
μεταλλικά
ιζήματα
RM 25 ASF *
2
RM 59 ASF (
αφρώδες
καθαριστικό
)
2
Χώροι
υγιεινής
***
Άλατα
,
ούρα
,
σαπούνια
κτλ
.
RM 25 ASF * (
Βασικός
καθαρισμός
)
2
RM 59 ASF (
αφρώδες
καθαριστικό
)
2
RM 68 ASF
5
235
EL

