Karcher HDS-C 9-15 Stahl lackiert: Ajustes
Ajustes: Karcher HDS-C 9-15 Stahl lackiert
-
3
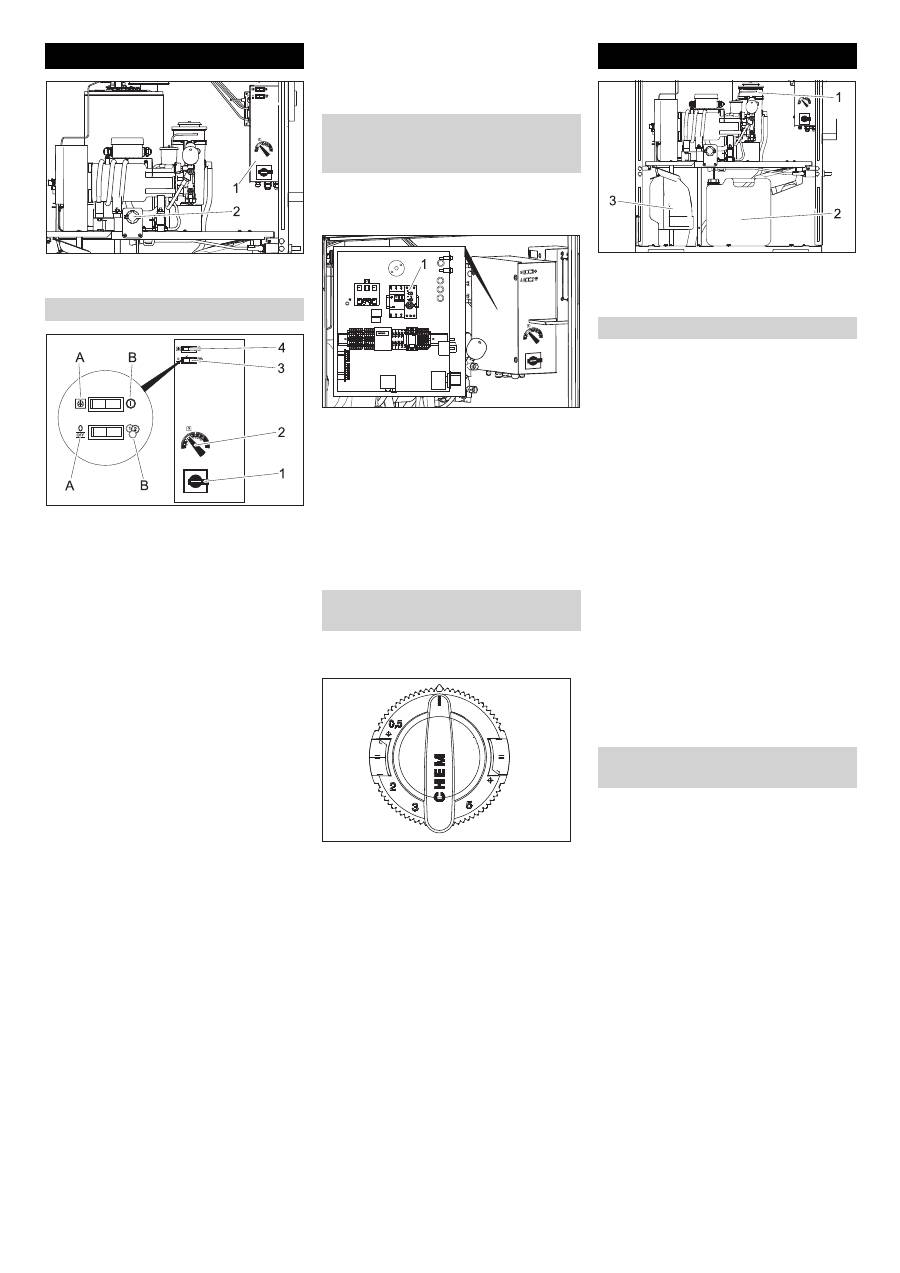
1 Armário de distribuição
2 Válvula de dosagem do detergente
1 Interruptor principal
2 Regulador de temperatura
3 Interruptor da operação permanente/
dispositivo de comprovação de moedas
4 Interruptor da protecção anticongelan-
te/ligado
–
Posição 0:
A instalação está desliga-
da. Protecção anticongelante está des-
ligada.
–
Posição 1:
a instalação está operacio-
nal.
A temperatura da água é ajustada no regu-
lador da temperatura.
–
30...50 °C para sujidade ligeira.
–
50...60 °C para limpeza de máquinas e
veículos motorizados.
A temperatura máxima permitida da água,
durante a operação SB (auto serviço), é de
60 °C. (consultar os dados técnicos sobre
a temperatura máxima possível da água.)
A
Posição de operação permanente:
instalação funciona apenas sem com-
provador de moedas.
B
Posição do comprovador de moe-
das:
instalação só funciona se forem
inseridas moedas.
A
Posição de protecção anticongelan-
te:
instalação não está operacional,
protecção anticongelante está activa. A
lâmpada de controlo "Operacionalida-
de" não brilha.
B
Posição "ligado":
a instalação está
operacional. A lâmpada de controlo
"Operacionalidade" brilha.
Atenção
Os dispositivos de protecção anticongelan-
te funcionam apenas com o interruptor
principal na posição 1.
No relé temporizado é possível ajustar o
tempo por moeda inserida, entre 1 e 10 mi-
nutos.
1 Relé temporizado
Rodar o interruptor principal para a po-
sição "0".
Abrir a tampa do armário de distribui-
ção.
Ajustar o relé temporizado no tempo de
funcionamento desejado.
Colocar novamente a tampa do armário
de distribuição.
Com a válvula de dosagem é ajustada a
quantidade de detergente doseada.
É possível dosear entre 0 e 6% de deter-
gente. A escala na válvula de dosagem in-
dica um valor aproximado e não preciso. A
dosagem precisa depende da fluidez dos
detergentes utilizados e da temperatura
ambiente. Determinar valores exactos atra-
vés da medição da quantidade de deter-
gente aspirada. Proceder eventualmente a
reajustes sempre que se verificarem bai-
xas temperaturas.
1 RM 110
2
Detergente
3 Combustível
Perigo!
Perigo por substâncias nocivas à saúde.
Todos os detergentes da Kärcher são
acompanhados por avisos de segurança e
de utilização. Ler e respeitar os avisos an-
tes da aplicação. Utilizar o vestuário bem
como o equipamento de segurança men-
cionado.
Ter atenção aos avisos de segurança nos
detergentes.
Atenção
Se o recipiente dos detergentes estiver va-
zio, a bomba de alta pressão aspira ar e
pode ser danificada. Controlar o recipiente
do detergente em intervalos regulares. Os
filtros têm que situar-se no fundo do reci-
piente do produto de limpeza.
Abrir o recipiente do detergente.
Misturar o detergente com água segun-
do as indicações na embalagem.
Inserir detergente ou substituir o reci-
piente vazio por um cheio.
Fechar o recipiente do detergente.
No caso de um esvaziamento total do reci-
piente do detergente ou durante a primeira
colocação em funcionamento é necessário
efectuar a purga do ar no tubo de aspiração
do detergente:
Ajustar o programa de lavagem com
detergente (no interruptor selector de
programas).
Ajustar (rodar) a válvula de dosagem
do detergente para a dosagem máxi-
ma.
Iniciar a bomba de alta pressão através
da abertura da pistola pulverizadora
manual e aguardar até o tubo de aspi-
ração ficar isento de bolhas de ar.
Fechar a pistola pulverizadora manual.
Reajustar a válvula de dosagem no va-
lor inicial.
Ajustes
Ajustes no armário de distribuição
Interruptor principal
Regulador de temperatura
Interruptor da operação permanente/dis-
positivo de comprovação de moedas
Interruptor ligado/protecção anticonge-
lante
Ajustes no armário de distribuição
(apenas com comprovador de moe-
das ABS)
Ajustes na válvula de dosagem do
detergente
Encher produtos de consumo
Encher de detergente
Purgar o ar do tubo de aspiração do
detergente
78 PT
Оглавление
- Deutsch
- Bedienung
- Betriebsstoffe einfüllen
- Stilllegung
- Funktion
- Technische Daten
- Wartung und Pflege
- Hilfe bei Störungen
- Zubehör
- TransportLagerung Anlage installieren (Nur für Fachkräfte)
- EG-Konformitätserklärung
- Protokoll für Hochdruckprüfung
- English
- Operations
- Filling in detergents
- Shutdown
- Function
- Specifications
- Maintenance and care
- Troubleshooting
- Accessories
- Transport Storage Installing the unit (only for ex- perts)
- EC Declaration of Conformity
- Log of high pressure testing
- Français
- Utilisation
- Réglages
- Protection antigel
- Remisage
- Fonction
- Caractéristiques techniques
- Entretien et maintenance
- Assistance en cas de panne
- Accessoires
- Garantie Transport Entreposage Installation de l'appareil (Uni- quement pour les spécia- listes)
- Déclaration de conformité CE
- Rapport de contrôle de la haute pression
- Italiano
- Uso
- Impostazioni
- Antigelo
- Funzione
- Dati tecnici
- Cura e manutenzione
- Guida alla risoluzione dei guasti
- Accessori
- GaranziaTrasporto Supporto Installazione dell'impianto (solo personale specializzato)
- Dichiarazione di conformità CE
- Protocollo per controllo alta pressione
- Español
- Manejo
- Configuraciones
- Protección antiheladas
- Puesta fuera de servicio
- Datos técnicos
- Mantenimiento y cuidado
- Ayuda en caso de avería
- Accesorios
- Declaración de conformidad CE
- Protocolo para la inspección de alta presión
- Português
- Manuseamento
- Ajustes
- Protecção contra o congela- mento
- Desactivação da máquina
- Dados técnicos
- Manutenção e conservação
- Ajuda em caso de avarias
- Acessórios
- Garantia Transporte Armazenamento Instalar instalação (Apenas para técnicos autorizados)
- Declaração de conformidade CE
- Protocolo para o controlo de alta pressão
- Nederlands
- Bediening
- Bedrijfsstoffen vullen
- Stilllegging
- Functie
- Technische gegevens
- Onderhoud en instandhouding
- Hulp bij storingen
- Toebehoren
- Garantie Vervoer Opslag Installatie installeren (alleen voor vaklui)
- EG-conformiteitsverklaring
- Protocol voor hogedrukcontrole
- Περιεχόμενα
- Χειρισμός
- Ρυθμίσεις
- Αντιπαγετική προστασία
- Ακινητοποίηση
- Τεχνικά χαρακτηριστικά
- Φροντίδα και συντήρηση
- Αντιμετώπιση βλαβών
- Εξαρτήματα
- Δήλωση Συμμόρφωσης των Ε . Κ .
- Πρωτόκολλο ελέγχου υψηλής πίεσης
- Polski
- Obs ł uga
- Ustawienia
- Ochrona przeciwmrozowa
- Przeznaczenie
- Dane techniczne
- Dogl ą d i piel ę gnacja
- Usuwanie usterek
- Akcesoria
- Gwarancja Transport Przechowywanie Instalacja urz ą dzenia (Tylko dla wykwalifikowanych pra- cowników)
- Deklaracja zgodno ś ci UE
- Protokó ł badania wysokiego ci ś nienia
- Оглавление
- Эксплуатация
- Настройки
- Защита от замерзания
- Вывод из эксплуатации
- Назначение
- Технические данные
- Техническое обслуживание и уход
- Помощь в случае непола - док
- Принадлежности
- Гарантия Транспортировка Хранение Монтаж установки - Только для специалистов
- Заявление о соответствии ЕС
- Протокол проверки системы высокого давления

