Karcher Nettoyeur haute pression HDS 12-14-4 ST Eco: !
!: Karcher Nettoyeur haute pression HDS 12-14-4 ST Eco
-
14
–
De verwarmingseenheid van het apparaat is een stookinrich-
ting. Bij de installatie dient men zich aan de ter plaatse gel-
dende normen te houden.
–
Gebruik uitsluitend goedgekeurde schoorstenen/rookafvoer-
leidingen.
Gevaar
Kans op brandwonden! Dat symbool moet aangebracht worden
op elke ontneemplaats.
Bij de opstelling van een stookolietank in de opstellingsruimte
van het apparaat moeten de voorschriften inzake opslag van
brandbare vloeistoffen in acht genomen worden (te verkrijgen bij
Carl Heymanns Verlag, Keulen, www.heymanns.com).
Bij het leggen van de brandstofleidingen moet onderstaand dia-
gram in acht genomen worden.
Er moet een dubbel systeem, voor- en terugloop, voorzien wor-
den.
–
Max. voordruk stookolie: 0,05 MPa (0,5 bar)
–
Max. onderdruk tussen stookoliefilter en pomp: 0,04 MPa (0,4
bar)
Zuigbuislengte in m
Aanzuighoogte in m
Mogelijke zuigbuislengte bij buizen met NW 8
–
Elk apparaat moet op een eigen schoorsteen worden aange-
sloten.
–
De rookgasleiding moet volgens de plaatselijke voorschriften
en in overleg met de verantwoordelijke meester schoorsteen-
veger worden uitgevoerd.
Wij raden aan een trekonderbreker in te bouwen tussen de instal-
latie en de haard.
Waarschuwing
Om de voorgeschreven verbrandingswaarde te bereiken moet de
bij de technische gegevens vermelde schoorsteentrek worden
aangehouden.
–
Voor de montage moet worden gecontroleerd of de wand wel
voldoende draagkracht heeft. Het meegeleverde bevesti-
gingsmateriaal is geschikt voor beton. Voor holle bouwsteen,
bakstenen en gasbetonwanden moeten geschikte pluggen
en schroeven worden gebruikt, bijv. injectieankers (boorteke-
ning zie maatblad).
–
Afbeelding 3 - Pos. 19 en 23
Het apparaat mag niet star met het waterleiding- of het hoge-
drukbuizennet worden verbonden. De verbindingsslangen
dienen absoluut te worden aangebracht.
–
Afbeelding 3 - A
Tussen het waterleidingnet en de verbindingsslang moet een
afsluitkraan worden aangebracht.
Bij de montage van de hogedrukleidingen dient men zich aan de
betreffende nationale voorschriften van de wetgever te houden.
–
De drukafname in de buisleiding moet onder 1,5 MPa liggen.
–
Als de buisleiding klaar is, moet deze met 28 MPa worden ge-
test.
–
De isolatie van de buisleiding moet bestand zijn tegen tempe-
raturen tot 155 °C.
Afbeelding 3 - pos. 20
De tanks moeten zo worden opgesteld dat het laagste peil van
het reinigingsmiddel niet meer dan 1,5 m onder de bodem van
het apparaat ligt en het hoogste peil niet boven de bodem van het
apparaat ligt.
Afbeelding 3 - B en Pos. 19
Sluit de watertoevoer met een geschikte waterslang aan het
waterleidingnet aan.
–
De capaciteit van de watertoevoer moet ten minste 1300 l/h
bij ten minste 0,1 MPa bedragen.
–
De watertemperatuur moet onder 30 °C liggen.
Voorzichtig
De maximaal toegelaten netimpedantie aan het elektrische aan-
sluitpunt (zie Technische gegevens) mag niet overschreden wor-
den. In geval van onduidelijkheden in verband met de
netimpedantie aan uw aansluitpunt neemt u best contact op met
uw electriciteitsmaatschappij.
Instructie:
Inschakelprocessen veroorzaken een kortstondige
spanningsval. Bij ongunstige netomstandigheden kunnen andere
apparaten beïnvloed worden.
–
Aansluitwaarden zie Technische gegevens en typeplaatje.
–
De elektrische aansluiting moet uitgevoerd worden door een
electricien en moet voldoen aan IEC 60364-1.
–
Stroomvoerende onderdelen, kabels en apparaten in het
werkgebied moeten in goede staat en spuitwaterdicht zijn.
We adviseren wandcontactdozen met voorgeschakelde lek-
stroom-veiligheidsschakelaar (maximaal 30 mA nominale active-
rings-stroomsterkte) te gebruiken, ter vermijding van elektrische
ongelukken.
Installatievoorschriften
Alleen voor bevoegd en deskundig personeel!
Algemeen
Bij werktemperaturen
boven 100 °C, hoge-
druksproeier vervan-
gen door
stoomsproeier.
Stookolietank
Brandstofleidingen
Rookgasbuis
!
Wand montage
Montage van de hogedrukleidingen
Reinigingsmiddeltanks plaatsen
Watertoevoer
Elektrische aansluiting
94
NL
-
15
Elektrische aansluiting tot stand brengen.
Teneinde de stationaire hogedrukreiniger uit te kunnen schake-
len dient men een afsluitbare hoofdschakelaar (afbeelding 3 -
pos. 6) op een ongevaarlijke plaats en goed toegankelijk aan te
brengen.
De contactopeningsbreedte van de hoofdschakelaar moet mini-
mum 3 mm bedragen.
Cekon-stekker monteren op de aansluitkabel van het appa-
raat.
Cekon-stekker in de cotactdoos steken.
Voor het uitschakelen van de stationaire hogedrukreiniger moet
de Cekon-stekker makkelijk toegankelijk zijn voor de netschei-
ding.
Knip voor het eerste gebruik de punt van het deksel van de
olietank op de waterpomp af.
Gevaar
Explosiegevaar! Uitsluitend diesel of lichte stookolie vullen. On-
geschikte brandstoffen, zoals bijvoorbeeld benzine, mogen niet
gebruikt worden.
Brandstoftank vullen.
Voorzichtig
Werken met heet water zonder brandstof leidt tot beschadigingen
aan de brandstofpomp. Zorg voor het werken met heet water dat
de brandstoftoevoer voorhanden is.
Afbeelding 3 - pos. 14
Hogedrukslang met handpuitpistool en straalpijp verbinden
en op de hogedrukuitgang van het apparaat of op het hoge-
drukbuisleidingsysteem aansluiten.
Sproeiermond (b) met wartelmoer (a) aan de straalpijp (d) be-
vestigen. Let erop dat de afdichtingsring (c) schoon in de
groef ligt.
Veer (c) van de dekselsteun (b) van het onthardingsmiddelre-
servoir (a) verwijderen.
Reservoir bijvullen met Kärcher-onthardingsvloeistof RM 110
(2.780-001).
Gevaar
Gevaarlijke elektrische spanning! Instelling mag alleen door een
elektrotechnicus worden uitgevoerd.
Plaatselijke waterhardheid vaststellen:
–
via het plaatselijke waterleidingbedrijf,
–
met een testapparaat voor de waterhardheid (bestelnr. 6.768-
004).
Haal de kap van het apparaat.
Open de schakelkast bij het bedieningspaneel.
Draaipotentiometer (a) instellen op de waterhardheid. De juis-
te instelling vindt u in de tabel.
Bijvoorbeeld:
Stel voor een waterhardheid van 15 °dH scalawaarde 6 op de
draaipotentiometer in. Hieruit volgt een pauzetijd van 31 secon-
den, d.w. z. alle 31 seconden gaat de magneetklep even open.
Vast geïnstalleerde elektrische aansluiting
Elektrische aansluiting met stekker / contactdoos
Eerste ingebruikneming
Maatregelen voor de inbedrijfname
a
b
c
d
Bescherming voor verkalking
Waterhardheid (°dH)
5
10
15
20
25
Schaal op de draaipotentio-
meter
8
7
6
5
4,5
Pauzetijd (seconden)
50
40
31
22
16
b
c
a
a
95
NL
-
16
De standby-tijd wordt op de grotere printplaat aan de linker zij-
wand van de elektrische kast ingesteld.
De standby-tijd is vanuit de fabriek ingesteld op een minimale tijd
van 2 minuten en kan tot een maximale tijd van 8 minuten worden
verlengd.
De stand-by-tijd veranderen
8 7 6 5 4 3 2 1
S2
min.
max.
96
NL
-
17
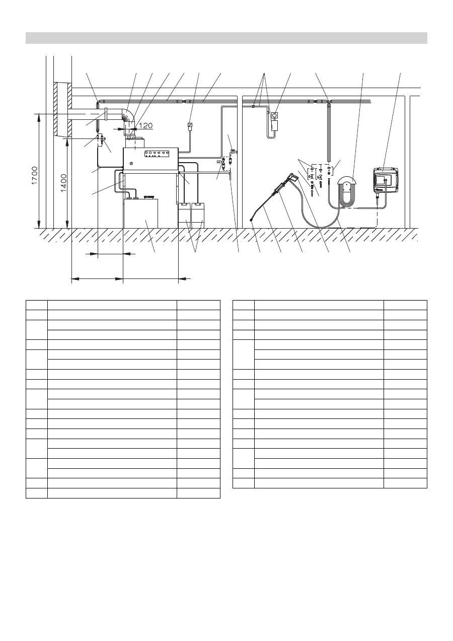
Afbeelding 3
Installatiemateriaal
1 2 3 4 5 6 7 8 9 10 12 13
21 20 19 18 17 16 15 14
11b 11a
11d
11c
A
B 19a
24
11a
23
22
11b
1060 (1124)
~1050
600
Nr.
Installatiemateriaal
Bestelnr.
1
Kniekoppeling
6.386-356
2
Elleboog rookgasbuis 90°
7.234-605
Elleboog rookgasbuis 45°
7.234-604
3
Rookgasbuis
7.234-603
4
Trekonderbreker rookgasbuis HDS 9/14-4 4.656-080
Trekonderbreker rookgasbuis HDS 12/14-4 4.656-079
5
Warmte-isolatie
6.286-114
6
Hoofdschakelaar
6.631-455
7
Buisleidingenset, staal verzinkt
2.420-004
Buisleidingenset, roestvrij staal
2.420-006
8
Set onderdelen afstandsbediening
2.744-008
9
Onderdelenset NOT-AUS schakelaar
2.744-002
10
T-schroefverbinding
6.386-269
11a
Aansluitmof, messing
2.638-180
Aansluitmof, roestvrij staal
2.638-181
11b
Afsluitkraan NW 8, verzinkt staal
4.580-144
Afsluitkraan NW 8, roestvrij staal
4.580-163
11c
Vast snelkoppelingsonderdeel
6.463-025
11d
Los snelkoppelingsonderdeel
6.463-023
Nr.
Installatiemateriaal
Bestelnr.
12
Slanghouder
2.042-001
13
Slangtrommel
2.637-238
14
Hogedrukslang 10 m
6.388-083
15
Handspuitpistool Easypress
4.775-463
Draairegelaar HDS 9/14-4
4.775-470
Draairegelaar HDS 12/14-4
4.775-471
16
Straalpijphouder
2.042-002
17
Staalbuis
4.760-550
18
Sproeiermond HDS 9/14-4
2.883-402
Sproeiermond HDS 12/14-4
2.883-406
19
Waterslang
4.440-282
19a
Magneetklep watertoevoer
4.743-011
20
Reinigingsmiddeltank 60 l
5.070-078
21
Stookolietank 600 l
6.392-050
22
Onderdelenset wandconsole
2.053-005
Onderdelenset bodemframe
2.210-008
23
Hogedrukslang
6.389-028
24
Slangklem
6.373-374
97
NL
-
18
Hierbij verklaren wij dat de hierna vermelde machine door haar
ontwerp en bouwwijze en in de door ons in de handel gebrachte
uitvoering voldoet aan de betreffende fundamentele veiligheids-
en gezondheidseisen, zoals vermeld in de desbetreffende EG-
richtlijnen. Deze verklaring verliest haar geldigheid wanneer zon-
der overleg met ons veranderingen aan de machine worden aan-
gebracht.
5.957-054
De ondergetekenden handelen in opdracht en met volmacht van
de bedrijfsleiding.
Gevolmachtigde voor de documentatie:
S. Reiser
Alfred Kärcher GmbH & Co. KG
Alfred Kärcher-Str. 28 - 40
71364 Winnenden (Germany)
Tel.: +49 7195 14-0
Fax: +49 7195 14-2212
Winnenden, 2014/02/01
In ieder land zijn de door ons bevoegde verkoopkantoor uitgege-
ven garantiebepalingen van toepassing. Eventuele storingen aan
het apparaat worden binnen de garantieperiode gratis verholpen,
voorzover deze veroorzaakt worden door een materiaal- of fabri-
cagefout.
EG-conformiteitsverklaring
Product:
Hogedrukreiniger met
stoomfunctie
Type:
1.698-xxx
Type:
1.699-xxx
Van toepassing zijnde EG-richtlijnen
97/23/EG
2006/42/EG (+2009/127/EG)
2004/108//EG
Categorie van de component
II
Gelijkvormigheidsprocedure
Module H
Heetwaterslang
Gelijkvormigheidsbeoordeling module H
Veiligheidsventiel
Gelijkvormigheidsbeoordeling Art. 3 Al. 3
Besturingsblok
Gelijkvormigheidsbeoordeling module H
Diverse buisleidingen
Gelijkvormigheidsbeoordeling Art. 3 Al. 3
Toegepaste geharmoniseerde normen
EN 55014–1: 2006+A1: 2009+A2: 2011
EN 55014–2: 1997+A1: 2001+A2: 2008
EN 60335–1
EN 60335–2–79
EN 61000–3–2: 2006+A1: 2009+A2: 2009
HDS 12/14:
EN 61000–3–3: 2008
HDS 9/14:
EN 61000–3–11: 2000
Toegepaste specificaties:
AD 2000 als aanvulling
TRD 801 als aanvulling
Naam van de benoemde instantie:
voor 97/23/EG
TÜV Rheinland Industrie Service GmbH
Am Grauen Stein
51105 Köln
Identificatienr. 0035
CEO
Head of Approbation
Garantie
98
NL
-
19
Klantenservice
Soort installatie:
Fabrieksnr.:
In bedrijf genomen op:
Test uitgevoerd op:
Uitslag:
Handtekening
Test uitgevoerd op:
Uitslag:
Handtekening
Test uitgevoerd op:
Uitslag:
Handtekening
Test uitgevoerd op:
Uitslag:
Handtekening
99
NL
-
20
Tip:
De aanbevelingen voor de proeftermijn conform de op het
moment geldende nationale eisen van het land waar het appa-
raat gebruikt wordt dienen in acht genomen te worden.
Periodieke controles
Controle uitgevoerd door:
Uitwendige controle
Inwendige controle
Stevigheidscontrole
Naam
Handtekening van de be-
voegde persoon / datum
Handtekening van de be-
voegde persoon / datum
Handtekening van de be-
voegde persoon / datum
Naam
Handtekening van de be-
voegde persoon / datum
Handtekening van de be-
voegde persoon / datum
Handtekening van de be-
voegde persoon / datum
Naam
Handtekening van de be-
voegde persoon / datum
Handtekening van de be-
voegde persoon / datum
Handtekening van de be-
voegde persoon / datum
Naam
Handtekening van de be-
voegde persoon / datum
Handtekening van de be-
voegde persoon / datum
Handtekening van de be-
voegde persoon / datum
Naam
Handtekening van de be-
voegde persoon / datum
Handtekening van de be-
voegde persoon / datum
Handtekening van de be-
voegde persoon / datum
Naam
Handtekening van de be-
voegde persoon / datum
Handtekening van de be-
voegde persoon / datum
Handtekening van de be-
voegde persoon / datum
Naam
Handtekening van de be-
voegde persoon / datum
Handtekening van de be-
voegde persoon / datum
Handtekening van de be-
voegde persoon / datum
Naam
Handtekening van de be-
voegde persoon / datum
Handtekening van de be-
voegde persoon / datum
Handtekening van de be-
voegde persoon / datum
Naam
Handtekening van de be-
voegde persoon / datum
Handtekening van de be-
voegde persoon / datum
Handtekening van de be-
voegde persoon / datum
Naam
Handtekening van de be-
voegde persoon / datum
Handtekening van de be-
voegde persoon / datum
Handtekening van de be-
voegde persoon / datum
Naam
Handtekening van de be-
voegde persoon / datum
Handtekening van de be-
voegde persoon / datum
Handtekening van de be-
voegde persoon / datum
100
NL
-
1
Antes del primer uso de su aparato, lea este manual
original, actúe de acuerdo a sus indicaciones y guár-
delo para un uso posterior o para otro propietario posterior.
–
¡Antes de la primera puesta en marcha lea sin falta las ins-
trucciones de uso y las instrucciones de seguridad n.° 5.956-
309!
–
En caso de daños de transporte informe inmediatamente al
fabricante.
Indicaciones sobre ingredientes (REACH)
Encontrará información actual sobre los ingredientes en:
www.kaercher.com/REACH
Peligro
Para un peligro inminente que acarrea lesiones de gravedad o la
muerte.
몇
Advertencia
Para una situación que puede ser peligrosa, que puede acarrear
lesiones de gravedad o la muerte.
Precaución
Para una situación que puede ser peligrosa, que puede acarrear
lesiones leves o daños materiales.
Los chorros a alta presión pueden ser peligrosos si se
usan indebidamente. No dirija el chorro hacia perso-
nas, animales o equipamiento eléctrico activo, ni
apunte con él al propio aparato.
–
Respetar las normativas vigentes nacionales correspondien-
tes para eyectores de líquidos.
–
Respetar las normativas vigentes nacionales correspondien-
tes de prevención de accidentes. Los eyectores de líquidos
deben ser examinados regularmente y tiene que guardarse
una copia escrita de la revisión.
–
El dispositivo calefactor del aparato es una instalación cale-
factora. Las instalaciones calefactoras deben revisarse regu-
larmente según las normativas nacionales correspondientes.
–
Cuando el dispositivo se opera en interiores, se debe garan-
tizar una evacuación de los gases inofensiva (tubería de gas
de humo sin interruptor de la corriente de aire). Además de
esto se tiene que disponer de una alimentación suficiente de
aire fresco.
–
De acuerdo con las normativas nacionales, esta limpiadora
de alta presión debe ser puesta en funcionamiento industrial
por primera vez por una persona cualificada. KÄRCHER ya
ha realizado y documentado para usted esta primera puesta
en marcha. Puede solicitar la documentación correspondien-
te a su distribuidor de KÄRCHER. Para solicitar la documen-
tación, tenga preparado el número de la pieza y el número de
fábrica del aparato.
–
Le informamos de que el aparato, de acuerdo con las norma-
tivas nacionales vigentes, debe ser inspeccionado de vez en
cuando por una persona cualificada. Consulte a su distribui-
dor KÄRCHER.
–
Respetar las indicaciones de seguridad que figuran en los de-
tergentes utilizados (por lo general, figuran en la etiqueta).
Índice de contenidos
Protección del medio ambiente
ES . . 1
Símbolos del manual de instrucciones
ES . . 1
Símbolos en el aparato . . . .
ES . . 1
Indicaciones generales de seguridad
ES . . 1
Uso previsto . . . . . . . . . . . .
ES . . 2
Función . . . . . . . . . . . . . . . .
ES . . 2
Dispositivos de seguridad . .
ES . . 2
Elementos del aparato . . . .
ES . . 3
Puesta en marcha . . . . . . . .
ES . . 4
Manejo . . . . . . . . . . . . . . . .
ES . . 4
Puesta fuera de servicio . . .
ES . . 6
Parada. . . . . . . . . . . . . . . . .
ES . . 6
Almacenamiento . . . . . . . . .
ES . . 6
Transporte. . . . . . . . . . . . . .
ES . . 6
Datos técnicos. . . . . . . . . . .
ES . . 7
Cuidados y mantenimiento .
ES . . 9
Ayuda en caso de avería . .
ES . 11
Accesorios. . . . . . . . . . . . . .
ES . 13
Instalación del equipo . . . . .
ES . 14
Declaración de conformidad CE
ES . 17
Garantía . . . . . . . . . . . . . . .
ES . 17
Servicio de atención al cliente
ES . 18
Inspecciones repetitivas . . .
ES . 19
Protección del medio ambiente
Los materiales empleados para el embalaje son reci-
clables y recuperables. No tire el embalaje a la basura
doméstica y entréguelo en los puntos oficiales de re-
cogida para su reciclaje o recuperación.
Los aparatos viejos contienen materiales valiosos re-
ciclables que deberían ser entregados para su apro-
vechamiento posterior. Evite el contacto de baterías,
aceites y materias semejantes con el medio ambien-
te. Por este motivo, entregue los aparatos usados en
los puntos de recogida previstos para su reciclaje.
Por favor, no deje que el aceite para motores, el aceite caliente
y la gasolina dañen el medio ambiente. Evite que sustancias no-
civas penetren en el suelo y elimine el aceite usado de forma
que no dañe el medio ambiente.
Los detergentes Kärcher se pueden separar (ASF) para reci-
clar. Esto significa que no se obstaculiza el funcionamiento de
un separador de aceite. En el capítulo "Accesorios" se indica
una lista de los detergentes recomendados.
Símbolos del manual de instrucciones
Símbolos en el aparato
¡Peligro de quemaduras! Precaución con los
módulos eléctricos.
Indicaciones generales de seguridad
101
ES
-
2
Antes de instalar el aparato, se debe acordar con el deshollina-
dor responsable del distrito.
Durante la instalación se deben respetar las normativas del de-
recho de construcción, el derecho comercial y la protección por
emisiones. Tenga en cuenta las siguientes normativas, directri-
ces y normas:
–
El aparato sólo puede ser instalado por un servicio técnico y
de acuerdo con las normativas nacionales correspondientes.
–
Al realizar la instalación eléctrica, se deben respetar las nor-
mativas nacionales vigentes correspondientes.
–
Ajustes, trabajos de mantenimiento y reparaciones en el so-
plete sólo pueden ser llevados a cabo por montadores del
servicio técnico de Kärcher autorizados.
–
Al planificar la chimenea se deben respetar las directrices vi-
gentes locales.
El puesto de trabajo se encuentra en el panel de control. Otros
puestos de trabajo están, dependiendo de la construcción del
equipo, en los aparatos accesorios (mecanismo pulverizador),
que están conectados a las tomas de agua.
–
Póngase ropa y gafas protectoras adecuadas para proteger-
se de las salpicaduras de agua y de la suciedad.
El aparato sirve para eliminar la suciedad de las superficies con
un chorro de agua libre. Se utiliza especialmente para limpiar
máquinas, vehículos y fachadas.
Peligro
¡Peligro de lesiones! Cuando se utilice en gasolineras u otras zo-
nas de peligro deberán tenerse en cuenta las instrucciones de
seguridad.
–
El agua fría entra en el lateral de absorción de la bomba de
alta presión a través del serpentín refrigerante del motor y la
caja del flotador. En la caja del flotador se añade descalcifi-
cador. La bomba transporta agua y detergente absorbido a
través del calentador de circulación. Se puede ajustar la parte
de detergente en agua mediante una válvula de dosificación.
El calentador de circulación se caliente con un quemador.
–
La salida de alta presión se conecta en un edificio a una red
existente de alta presión. En las tomas de agua de esta red
se conecta la pistola pulverizadora con una manguera de alta
presión.
La función de los dispositivos de seguridad es proteger al usuario
y está prohibido ponerlos fuera de servicio y modificar o ignorar
su funcionamiento.
El dispositivo de seguridad contra el funcionamiento en seco evi-
ta que la bomba de alta presión se encienda cuando falta agua.
El dispositivo de seguridad contra el funcionamiento evita que el
quemador se sobrecaliente si falta agua. Sólo en caso de un su-
ministro de agua suficiente se enciende el quemador.
El presostato se apaga el aparato al sobrepasar la presión de tra-
bajo. No cambiar las configuraciones.
Si el presostato se estropea abrir la válvula de seguridad. Esta
válvula ha sido configurada y precintada de fábrica. No cambiar
las configuraciones.
En caso de flata de combustible o si el quemador se estropea, el
sistema de control de llamas apaga el quemador. El piloto de
control de avería en el quemador (E) se ilumina.
Si se bloquea el motor del quemador, salta el interruptor de pro-
tección contra sobrecorriente. El motor de la bomba de alta pre-
sión está protegido con un guardamotor y un interrutor de
bobinado.
El termostato de gases de escape salta, cuando la temperatura
de los gases de escape sobrepasa los 300ºC. El aparato se apa-
ga.
Tras apagar el aparato con la pistola pulverizadora manual se
abre una válvula magnética en el sistema de alta presión una vez
trascurrido el tiempo de servicio, con lo que baja la presión.
Normativas, directrices y normas
Puestos de trabajo
Equipo protector personal
Al limpiar piezas que refuercen el ruido, utilizar
orejeras para evitar daños del aparato auditivo.
Uso previsto
Las aguas residuales que contengan aceite no deben penetrar
en el suelo ni verterse en aguas naturales o en el sistema de ca-
nalización. Por ello, el lavado de motores y el lavado de los ba-
jos sólo debe realizarse en lugares adecuados con un
separador de aceite.
Función
Dispositivos de seguridad
Dispositivo de seguridad contra el funcionamiento en
seco caja del flotador
Dispositivo de seguridad contra el funcionamiento en
seco bloque de seguridad
Presóstato
Válvula de seguridad
sistema de control de llamas
Protección contra sobrecorriente
Termostato de gases de escape
Despresurización sistema de alta presión
102
ES
-
3
Figura 1
1 Quemador
2 Manómetro
3 Entrada de agua fresca con tamiz
4 Salida de alta presión
5 Conducto de material combustible avance
6 Conducto de material combustible retorno
7 Manguera de aspiración de detergente I
8 Manguera de aspiración de detergente II (opcional)
9 Recipiente de descalcificador
10 Conexión eléctrica
11 Caja de flotador
12 Panel de control
Figura 2
A Interruptor del aparato
B Regulador de temperatura
C Válvula dosificadora de detergente I
D Válvula de dosificación de detergente II (opcional)
E Piloto de control de avería en el quemador
F Piloto de control de disponibilidad de servicio
G Piloto de control sobrecalentamiento del motor
H Piloto de control de protección contra la calcificación
I
Tapón - botón de desbloqueo del motor del quemador
Elementos del aparato
6
5
7
8
3
4
9
11
10
1
12
2
Panel de control
103
ES
-
4
몇
Peligro
Peligro de lesiones El aparato, los tubos de alimentación, la man-
guera de alta presión y las conexiones deben estar en perfecto
estado. Si no está en perfecto estado, no debe utilizarse.
–
Valores de conexión: véase la placa de características y da-
tos técnicos.
–
La conexión eléctrica debe ser realizada por un electricista y
cumplir la norma CEI 60364-1.
El usuario deberá utilizar el aparato de conformidad con sus ins-
trucciones. Deberá tener en cuenta las condiciones locales y te-
ner cuidado de no causar daños a las personas que se
encuentren en las proximidades cuando use el aparato.
No deje nunca el aparato sin vigilancia mientras esté en funcio-
namiento.
Peligro
–
Peligro de escaldamiento por agua caliente No dirigir el cho-
rro de agua a personas ni animales.
–
¡Riesgo de quemaduras por piezas calientes! No tocar la tu-
berías que no estén aisladas ni las mangueras durante el fun-
cionamiento con agua caliente. Sujetar la lanza dosificadora
sólo por las asas. No tocar los soportes de gases de escape
del calentador de circulación.
–
¡Riesgo de intoxicación o causticación causado por detergen-
te! Tener en cuenta las indicaciones de los detergentes. Man-
tener el detergente fuera del alcance de personas no
autorizadas.
Peligro
¡Peligro mortal por descarga eléctrica! No dirija el chorro de agua
a los siguientes dispositivos:
–
aparatos e instalaciones eléctricos,
–
esta instalación en sí,
–
todas las piezas conductoras de corriente en el área de tra-
bajo.
El chorro de agua que sale de la lanza dosificadora provoca una
fuerza de retroceso. Debido a que la lanza dosificadora está aco-
dada, la fuerza actúa hacia arriba.
Peligro
–
Peligro de lesiones El retroceso de la lanza dosificadora le pue-
de hacer perder el equilibrio. Puede caerse. La lanza dosificado-
ra puede descontrolarse y lesionar a personas. Buscar una
posición segura y sujetar bien la pistola. No inmovilizar la palan-
ca de la pistola pulverizadora manual nunca.
–
No dirija el chorro hacia otras personas o hacia sí mismo para
limpiar ropa o calzado.
–
Peligro de lesionarse con piezas que salen disparadas. Pie-
zas u objetos que salgan disparados pueden ocasionar lesio-
nes en personas o animales. No orientar el chorro de agua
nunca sobre objetos delicados o sueltos.
–
¡Riesgo de accidentes como consecuencia de daños! Limpiar
neumáticos y válvulas a una distancia mínima de 30 cm.
몇
Advertencia
¡Riesgo por sustancias nocivas para la salud! No salpicar los si-
guientes materiales, ya que se pueden levantar sustancias noci-
vas para la salud:
–
Materiales que contengan asbesto,
–
materiales que puedan contener sustancias nocivas para la
salud.
Peligro
–
¡Riesgo de lesiones por el chorro de agua caliente que pueda
salir! Las mangueras de agua de alta presión originales de
Kärcher són las únicas adaptadas al equipo. Si se utilizan
otras mangueras no se asume ningún tipo de responsabilida-
des.
–
¡Riesgo para la salud provocado por el detergente! Debido al
detergente que se haya disuelto, el agua que salga del apa-
rato no es potable.
–
¡Riesgo de daños al aparato auditivo si se trabajan con pie-
zas que refuercen el ruedo! En este caso use protección au-
ditiva.
Peligro
¡Riesgo de lesiones por el chorro de agua caliente que pueda salir!
Peligro
Antes de cada puesta en servicio, compruebe si la manguera de
alta presión presenta daños. Si la manguera de alta presión pre-
sentase daños, debe sustituirla sin demora.
Comprobar si la manguera de alta presión, tuberías, grifería
y lanza dosificadora están dañadas antes de cada uso.
Comprobar que el acoplamiento de la manguera esté bien fi-
jado y hermético.
Precaución
Daños provocados por funcionamiento en seco.
Comprobar el nivel del recipiente de detergente y si es nece-
sario rellenar.
Comprobar el descalcificador y si es necesario rellenar.
Colocar el interruptor principal (A) en la posición "0".
Cerrar el abastecimiento de agua.
Poner en funcionamiento la pistola pulverizadora manual
hasta que no quede presión en el aparato.
Puesta en marcha
Toma de corriente
Manejo
Instrucciones de seguridad
!
Establecimiento de disposición de servicio
Desconectar en caso de emergencia
104
ES
-
5
Si gira la válvula de regulación de la cantidad en el sentido de
las agujas del reloj, obtendrá una mayor presión de trabajo y
un mayor caudal.
Si gira la válvula de regulación de la cantidad, obtendrá una
menor presión de trabajo y un menor caudal.
Si se gira el regulador del caudal de agua hacia la derecha,
se obtiene mayor caudal y una presión de trabajo más alta.
Si se gira el regulador del caudal de agua hacia la izquierda,
se obtiene menor caudal y una presión de trabajo más baja.
Abrir el suministro de agua.
Símbolo "Conectar motor"
Tirar de la palanca de la pistola pulverizadora manual y poner
el interruptor del aparato (A) a "1" (Conectar motor).
El piloto de control de disposición de servicio (F) indica dispo-
nibilidad.
Peligro
Existe peligro de escaldamiento.
Precaución
El servicio de agua caliente sin combustible daña la bomba de
combustible. Asegure el suministro de combustible antes del fun-
cionamiento con agua caliente.
El quemador se puede encender si es necesario.
Símbolo "Conectar quemador"
Colocar el interruptor principal (A) en la posición "Conectar
quemador".
Ajustar la temperatura del agua deseada con el regulador de
temperatura (B). Temperatura máxima es 98 ºC.
Peligro
¡Existe peligro de escaldamiento! A temperaturas de trabajo su-
periores a los 98 ºC la presión de trabajo no debe sobrepasar
3,2 MPa (32 bares).
Para reequipar de servicio de agua caliente a fase de vapor se
debe encender el aparato en frío y apagar. El reequipamiento se
debe realizar de la siguiente manera:
Sustituir la boquilla de alta presión por una boquilla de
vapor (accesorio).
Colocar el regulador de temperatura a 150 ºC.
Colocar la válvula de regulación de caudal de la bomba de
alta presión al caudal mínimo (girar en el sentido contrario de
las agujas del reloj).
Colocar la válvula de regulación de caudal de la bomba de
alta presión al caudal máximo (girar en el sentido de las agu-
jas del reloj).
Girar hacia la izquierda el regulador de caudal de la pistola
easypress para ajustarla al caudal mínimo.
–
Si se suelta la palanca de la pistola pulverizadora manual du-
rante el funcionamiento, se apaga el aparato.
–
Si se abre de nuevo la pisto en el tiempo de disposición de
servicio ajustado (2.8 minutos), el aparato se enciende auto-
máticamente.
–
Si se supera el tiempo de disposición ajustado, el interruptor
de seguridad de la bomba y el quemador. El piloto de control
de disposición de servicio (F) se apaga.
–
Para poner de nuevo en marcha, colocar el interruptor de fun-
cionamiento a "0", después volver a encender. Si se controla
el aparato con el mando a distancia, se puede poner de nue-
vo en marcha con el interruptor correspondiente del mando a
distancia.
Ajustar la presión de trabajo y el caudal
Ajuste del aparato
Configuración de la pistola easypress (opcional)
Servicio con agua fría
R
Servicio con agua caliente
Funcionamiento con vapor
Nº de pedido
Modelo
4.766-023
HDS 9/14
4.766-024
HDS 12/14
Sin pistola easypress
Con pistola easypress (opcional)
Disposición de servicio
105
ES
-
6
–
Los neumáticos de vehículos sólo se limpiar con boquilla de
chorro plano (25º) y a una distancia mínima de de 30 cm. No
limpiar neumáticos con chorro de sección circular bajo ningún
concepto.
Para el resto de tareas se puede elegir entre las siguientes bo-
quillas:
En el caso de una tubería de más de 20 m o más 2 mangueras
de alta presión NW 8 de 10 m, se deben usar las siguientes bo-
quillas:
–
El detergente facilita la limpieza. Se absorbe de un depósito
de detergente externo.
–
El aparato viene equipado de serie con una válvula de dosifi-
cación (C). Se puede adquirir otro dispositivo de dosificación
(válvula de dosificación D) como accesorio opcional. Así se
pueden absorber dos detergentes diferentes.
–
La dosis se ajusta en el panel de control de las válvulas de
dosificación de detergente (C o D). El valor ajustado corres-
ponde a la parte de detergente en tanto por ciento.
–
La escala exterior se usa para detergentes no disueltos (100
% CHEM).
–
La escala interior se usa para detergentes disueltos previa-
mente 1+3 (25 % CHEM + 75% agua).
La siguiente tabla indica el consumo de detergente para los va-
lores de la escala exterior:
La dosis exacta depende de:
–
Viscosidad del detergente
–
Altura de aspiración
–
Resistencia de corriente del conducto de alta presión
Si se precisa una dosis exacta, se debe medir la cantidad de de-
tergente aspirada (p.ej. aspirando desde un vaso medidor).
Indicación:
En el capítulo "Accesorios" encontrarán recomenda-
ciones sobre detergentes.
Precaución
Si se opera sin descalcificador se puede calcificar el calentador
de circulación.
Cuando el recipiente de descalcificador está vacío, el piloto de
control de la protección contra la calcificación (H) parpadea.
Figura 1 - pos. 9
Rellenar el recicpiente de descalcificador con líquido descal-
cificador RM 110 (2.780-001)
Peligro
Peligro de escaldamiento por agua caliente Después del servicio
con agua caliente o vapor el aparato debe ser enfriado al menos
dos minutos con agua fría con la pistola abierta.
Cuando se opera con agua caliente, ajustar el regulador de
temperatura (B) a la temperatura más baja.
Utilizar el aparato al menos 30 segundos sin detergente.
Colocar el interruptor principal (A) en la posición "0".
Cerrar el abastecimiento de agua.
Poner en funcionamiento la pistola pulverizadora manual
hasta que no quede presión en el aparato.
Asegure la pistola pulverizadora manual con el dispositivo de
bloqueo de seguridad contra una posible apertura involuntaria.
En largos periodos de inactividad o cuando no sea posible el al-
macenamiento a salvo del hielo, tomar las siguientes medidas
(véase capitulo "Cuidados y mantenimiento", sección "Protec-
ción antiheladas"):
Dejar salir agua.
Enjuagar el aparato con anticongelante.
Desconectar el interruptor principal y asegurar o sacar la cla-
vija Cekon.
Precaución
¡Peligro de lesiones y daños! Respetar el peso del aparato en el
almacenamiento.
Precaución
¡Peligro de lesiones y daños! Respetar el peso del aparato para
el transporte.
Al transportar en vehículos, asegurar el aparato para evitar
que resbale y vuelque conforme a las directrices vigentes.
Selección de boquilla
Suciedad boquilla
Ángulo
de pulve-
rización
No. de
pieza
6.415
Presión
[MPa]
Retroce-
so [N]
HDS 9/14
alta
00060
0°
-257
14
44
medio
25060
25°
-295
ligera
40060
40°
-301
HDS 12/14
alta
00080
0°
-150
14
55
medio
25080
25°
-152
ligera
40080
40°
-153
Suciedad boquilla
Ángulo
de pulve-
rización
No. de
pieza
6.415
Presión
[MPa]
Retroce-
so [N]
HDS 9/14
alta
0075
0°
-419
10
37
medio
2575
25°
-421
ligera
4075
40°
-422
HDS 12/14
alta
0010
0°
-082
10
46
medio
2510
25°
-252
ligera
4010
40°
-253
Dosificación de detergente
HDS 9/14
Posición
0,5
1
5
Cantidad de detergente [l/h]
14...15 22...24
50
Concentración de detergente [%]
1,5
2,5
5
HDS 12/14
Posición
0,5
1
5
Cantidad de detergente [l/h]
10...13 23...27
60
Concentración de detergente [%]
1
2
5
Rellenar el descalcificador
Puesta fuera de servicio
Después del funcionamiento con detergente
Desconexión del aparato
Parada
Almacenamiento
Transporte
106
ES
-
7
Datos técnicos
HDS 9/14
HDS 12/14
HDS 12/14
1.698-900
1.699-919
1.699-920
Potencia y rendimiento
Presión de trabajo agua (con boquilla estándar)
MPa (bar)
14 (140)
14 (140)
14 (140)
Presión de trabajo máx accionamiento por vapor (con boqui-
lla de salida de vapor)
MPa (bar)
3,2 (32)
3,2 (32)
3,2 (32)
No. de pieza boquilla de salida de vapor
--
4.766-023
4.766-024
4.766-024
Sobrepresión de servicio máxima (válvula de seguridad)
MPa (bar)
18,5 (185)
18,5 (185)
18,5 (185)
Caudal de agua (regulación continua)
l/h (l/min)
500-930
(8,3-15,5)
600-1200
(10-20)
600-1200
(10-20)
Caudal, accionamiento por vapor
l/h (l/min)
470 (7,8)
600 (10)
600 (10)
Aspiración de detergente (regulación continua)
l/h (l/min)
0-50 (0-0,8)
0-60 (0-1)
0-60 (0-1)
Conexión de agua
Velocidad de alimentación (mín.)
l/h (l/min)
1100 (18,3)
1300 (21,7)
1300 (21,7)
Presión de entrada (mín.)
MPa (bar)
0,1 (1)
0,1 (1)
0,1 (1)
Presión de entrada (máx.)
MPa (bar)
0,6 (6)
0,6 (6)
0,6 (6)
Conexión eléctrica
Tipo de corriente
--
3N~
3N~
3N~
Frecuencia
Hz
50
50
50
Tensión
V
400
400
230
Potencia conectada
kW
6,4
7,5
8,2
Fusible de red eléctrico (inerte)
A
16
20
32
Categoria de protección
--
IPX5
IPX5
IPX5
Clase de protección
--
I
I
I
Impedancia de red máxima permitida
Ohm
(0,381+j 0,238)
--
--
Conexión eléctrica
mm
2
5 x 2,5
5 x 2,5
5 x 4
Temperatura
Temperatura de entrada (máx.)
°C
30
30
30
Temperatura de trabajo máx. agua caliente
°C
98
98
98
Temperatura de trabajo máx. accionamiento por vapor
°C
155
155
155
Aumento de temperatura a máx. rendimiento de agua
°C
56±2
54±2
54±2
Potencia de calefacción bruta
kW
68
85
85
Consumo de material combustible
kg/h
5,8
7,1
7,1
Tiro de la chimenea
kPa
0,01-0,04
0,01-0,04
0,01-0,04
Corriente de masa de gas de escape - carga total
kg/h
124
155
155
Medidas y pesos
Longitud
mm
1124
1124
1124
Anchura
mm
558
558
558
Altura
mm
687
699
699
Peso de funcionamiento típico
kg
164,4
178,8
178,8
Valores calculados conforme a la norma EN 60355-2-79
Emisión sonora
Nivel de presión acústica L
pA
dB(A)
74
76
76
Inseguridad K
pA
dB(A)
1
1
1
Valor de vibración mano-brazo
Pistola pulverizadora manual
m/s
2
2,2
2,3
2,3
Lanza dosificadora
m/s
2
1,8
2,1
2,1
Inseguridad K
m/s
2
1,0
1,0
1,0
107
ES
-
8
Hoja de dimensiones
6
8
7
/ 6
9
9
505
558
1124
246
158
1060
47
141
61
77
46
200
300
1018±2
108
ES
-
9
Peligro
¡Peligro de lesiones! Antes de realizar cualquier trabajo de man-
tenimiento o reparación, se debe desconectar el interruptor prini-
cpal o sacar la clavija Cekon.
Cuidados y mantenimiento
Plan de mantenimiento
Cuándo
Operación
Componentes afectados
Ejecución
a realizar
por
A diario
Comprobar la
pistola pulveriza-
dora manual
Pistola pulverizadora manual
Comprobar si la pistola pulverizadora manual
cierra herméticamente. Comprobar el seguro de
manejo no autorizado. Cambiar las pistolas pul-
verizadoras manuales defectuosas.
Operario
Comprobar las
mangueras de
alta presión
Tuberías de salida, mangueras
al aparato de trabajo
Comprobar si las mangueras están dañadas.
Cambiar inmediatamente las mangueras que es-
tén defectuosas. Peligro de accidentes.
Operario
Comprobar el
conducto de co-
nexión con el en-
chufe de red.
Conexión elécrica con enchufe/
toma de corriente
Comprobar el conducto deconexión con el en-
chufe de red por si tuviera daños. Si el cable de
conexión estuviera dañado, debe pedir inmedia-
tamente a un electricista especializado del servi-
cio técnico autorizado que lo sustituya.
Operario
semanalmente o
tras 40 horas de
servicio
Comprobar el
estado del aceite
Recipiente de aceite en la bom-
ba
Si el aceite tiene un aspecto lechoso hay que
cambiarla.
Operario
Comprobar el ni-
vel de aceite
Recipiente de aceite en la bom-
ba
Comprobar el nivel de aceite de la bomba. Si es
necesario rellenar el aceite (Nº de ref. 6.288-
016).
Operario
Limpie el tamiz
Dispositivo de filtrado en la en-
trada del agua
Véase apartado "Limpiar tamices".
Operario
Mensualmente o
tras 200 lavados
Limpiar y com-
probar los elec-
trodos de
encendido
Electrodos de encendido del
calentador de circulación
Desenroscar el conducto de combustible, des-
montar el soporte de los electrodos y limpiarlos.
Comprobar la configuración de los electrodos
según el esquema de la página siguiente y si es
necesario reajustar.
Operario con
introducción
al aparato
Comprobar la
bomba
bomba de alta presión
Comprobar si la bomba es estanca. Si caen más
de 3 gotas por minuto llamar al servicio de aten-
ción al cliente.
Operario
comprobar si
hay sedimentos
internos
toda la instalación
Operar la instalación con lanza dosificadora sin
boquilla de alta presión. Si la presión de funcio-
namiento del manómetro supera 3 MPa, se debe
descalcificar la instalación. Proceder del mismo
modo si al operar sin conductor de alta presión
(sale agua por la salida de alta presión) se deter-
mina una presión de funcionamiento de más de
0,7-1 MPa.
Operario con
instruccio-
nes para
descalcifica-
ción
Limpie el tamiz
Tamiz en el dispositivo de se-
guridad contra el funciona-
miento en seco
Véase apartado "Limpiar tamices".
Operario
bianualmente o
tras 1000 horas
de servicio
Cambio de acei-
te
bomba de alta presión
Deje salir el aceite. Rellenar 1 l de aceite nuevo
(Nº de ref. 6.288-016). Comprobar el nivel del
depósito de aceite.
Operario
comprobar, lim-
piar
toda la instalación
Control visual de la instalación, comprobar si las
conexiones de alta presión son estancas, com-
probar si la válvula de derivación es estanca,
comprobar la manguera de alta presión, compro-
bar el acumulador de presión, limpiar /renovar el
filtro de combustible, deshollinar / descalcificar el
serpentín de recalentamiento, limpiar /renovar
los electrodos de encendido, limpiar /renovar la
boquilla del quemador, ajustar el quemador.
Servicio de
atención al
cliente
anualmente
Comprobación
de seguridad
toda la instalación
Realizar la comprobación de seguridad confor-
me a las directrices nacionales correspondiente
de la ley sobre eyectores de líquidos.
Especialista
Realizar como
muy tarde cada 5
años
Comprobación
de la presión
toda la instalación
Realizar la comprobación de presión de acuerdo
con las indicaciones del fabricante.
Especialista
109
ES
-
10
Se puede firmar un contrato de mantenimiento para el aparato
con el departamento comercial correspondiente de Kärcher.
Figura 1 - pos. 3
Cerrar el abastecimiento de agua.
Desenroscar la manguera de abastecimiento de agua del
aparato.
Extraer el tamiz del conector con un destornillador.
Limpie el tamiz
Montar de nuevo en orden inverso.
Extraer chapas de revestimiento.
Desatornillar la pieza acodada del bloque de seguridad.
Enroscar el tornillo M8x30 en el tamiz.
Extraer el tornillo y el tamiz con unas pinzas.
Limpie el tamiz
Montar de nuevo en orden inverso.
Los electrodos de encendido se tienen que ajustar de acuerdo
con las siguientes indicaciones:
Si hay sedimentos en las tuberías, aumenta la resistencia de co-
rriente, por lo que se puede activar el presostato.
Peligro
¡Peligro de explosión por gases combustibles! Está prohibido fu-
mar mientras se descalcifica. Asegurar una buena ventilación.
Peligro
¡Peligro de causticación por ácido! Usar gafas y guantes de se-
guridad.
Para eliminar sólo se pueden utilizar desincrustadores certifica-
dos y probados según las normativas legales.
–
RM 100 (Nº ref. 6.287-008) desincrusta cal y uniones de cal
y restos de detergente simples.
–
RM 101 (Nº. ref. 6.287-013) desincrusta sedimentos, que no
se puedan desincrustar con RM 100.
Rellenar un recipiente de 20 litros con 15 litros de agua.
Añadir un litro de desincrustador.
Conectar la manguera de agua directamente al cabezal de la
bomba y colgar el extremo libre sobre el recipiente.
Introducir la lanza dosificadora sin boquilla conectada en el
recipiente.
Abrir la pistola pulverizadora manual y no volver a cerrar du-
rante el proceso de descalcificación.
Encender el interruptor en "Conectar quemador", hasta al-
canza aprox. 40 ºC.
Apagar el aparato y dejar reposar 20 minutos. La pistola pul-
verizadora manual tiene que seguir abierta.
Después bombear el aparato para vaciarlo.
Nota:
Recomendamos bombear por el aparato a través del reci-
piente de detergente una protección anticorrosiva y después una
solución alcalina para neutralizar los restos de ácido (RM 81).
Colocar el aparato en un lugar a salvo de heladas. En caso de
riesgo de heladas, p.ej. en instalaciones en exteriores, se debe
vaciar el aparato y aclarar con anticongelante.
Destornillar la manguera de abastecimiento de agua y la
manguera a alta presión.
Dejar en marcha el aparato durante 1 minuto como máximo
hasta que la bomba y los conductos estén vacíos.
Desatornillar el tubo de abastecimiento en el fondo de la caldera
y hacer marchar en vacío el serpentín de recalentamiento.
Nota:
Tener en cuenta las instrucciones de uso del fabricante del
anticongelante.
Rellenar hasta arriba la caja del flotador con anticongelante
convencional.
Colocar un recipiente colector debajo de la salida de alta pre-
sión.
Encender el aparato y dejar en funcionamiento hasta que se
active el dispositivo de seguridad contra el funcionamiento en
seco de la caja del flotador y apague el aparato.
De este modo se conseguirá una protección segura contra la co-
rrosión.
Contrato de mantenimiento
Limpie los tamices
Dispositivo de filtrado en la entrada del agua
Tamiz en el dispositivo de seguridad contra el funciona-
miento en seco
Ajuste de electrodos
A
B
C
a
HDS 9/14
4,5±0,5
3,5±0,5
3+0,5
60°
HDS 12/14
3,5±0,5
3,5±0,5
3+0,5
60°
2.
1.
A
B
C
a
Descalcificar
Realización
Protección antiheladas
Dejar salir agua
Enjuagar el aparato con anticongelante.
110
ES
-
11
Peligro
¡Peligro de lesiones! Antes de realizar cualquier trabajo de man-
tenimiento o reparación, se debe desconectar el interruptor prini-
cpal o sacar la clavija Cekon.
*
Nota
Apagar y encender la instalación para solucionar la avería del
quemador.
**
Ayuda en caso de avería
Avería
Posible causa
Modo de subsanarla
a realizar por
El aparato no funciona, el pi-
loto de control de disposición
de servicio (F) no se ilumina.
El aparato no tiene tensión.
Comprobar la red eléctrica.
Electricista
Interruptor de seguridad en funcio-
namiento.
Encender y apagar el aparato con el interrup-
tor.
Operario
Fusible del circuito de control (F3)
quemado. El fusible está en el
transformador de control (T2).
Colocar un nuevo fusible, solucionar el cau-
sante de la sobrecarga si se vuelve a que-
mar.
Servicio de atención
al cliente
Presostato AP (alta presión ) o BP
(baja presión) defectuoso.
Comprobar el presostato.
Servicio de atención
al cliente
Módulo de temporizador (A1) de-
fectuoso.
Comprobar las conexiones, si es necesario
cambiarlas.
Servicio de atención
al cliente
El termostato de gases de escape
(B8) se ha activado.
Deje enfriar la instalación. Desbloquear el
termostato de gases de escape (B8). Solu-
cionar la causa de la avería.
Servicio de atención
al cliente
+ El piloto de control de so-
brecalentamiento del motor
(G) se ilumina
El sensor de temperatura (WS) en
el motor o interruptor de protección
contra sobrecorriente (F1) se ha
activado.
Solucionar el motivo de sobrecarga.
Servicio de atención
al cliente
Se ha activado el dispositivo de se-
guridad contra el funcionamiento
en seco en la caja del flotador.
Solucionar la falta de agua.
Operario
El quemador no se enciende
o la llama se apaga durante
el servicio
Se ha ajustado el regulador de
temperatura demasiado bajo.
Ajustar el regulador de temperatura a una
temperatura superior.
Operario
El interruptor del aparato no está
en el quemador.
Encender el quemador.
Operario
El dispositivo de seguridad contra
el funcionamiento en seco del blo-
que de seguridad se ha apagado.
Asegurar un abastecimiento de agua sufi-
ciente. Comprobar si el aparato es estanco.
Operario
El piloto de control de avería
en el quemador (E) se ilumi-
na*
Depósito de combustible vacío.
Llenar de combustible.
Operario
Filtro de combustible obstruido.
Limpiar el filtro de combustible, para ello sa-
car el filtro de combustible, limpiar y volver a
introducir.
Operario
Fotocélula del control de llamas
orientado de forma incorrecta o de-
fectuoso.
Comprobar si la fotocélula está bien coloca-
da. **
Operario
No se dispone de chispa de encen-
dido (ajustable a través de mirilla
en la tapa del quemador).
Comprobar la distancia de electrodos, trans-
formador y cable de encendido. Corregir la
distancia o cambiar las piezas defectuosas.
Si es necesario limpiar.
Servicio de atención
al cliente
El motor del quemador está blo-
queado.
Retirar el bloqueo. Quitar el tapón (I) del pa-
nel de control y desbloquear el interruptor de
protección contra sobrecorriente. Volver a
poner el tapón.
Servicio de atención
al cliente
Avería de la bomba de material
combustible o válvula magnética
de material combustible.
Comprobar y cambiar las piezas defectuo-
sas.
Operario
111
ES
-
12
Avería
Posible causa
Modo de subsanarla
a realizar por
El piloto de control de la pro-
tección contra descalcifica-
ción (H) se ilumina
Descalcificador consumido.
Rellenar el descalcificador.
Operario
Transporte de detergente
inexistente o insuficiente
Válvula de dosificación en posición
"0".
Ajuste de la válvula dosificadora de deter-
gente.
Operario
Filtro de detergente atascado o de-
pósito vacío.
Limpiar o rellenar.
Operario
Mangueras de aspiración, válvula
dosificadora o magnética de deter-
gente no hermética o atascada.
Comprobar, limpiar.
Operario
Sistema electrónico o válvula mag-
nética defectuosos
Cambiar
Servicio de atención
al cliente
El aparato no alcanza toda la
presión necesaria
Boquilla enjuagada.
Sustituir la boquilla.
Operario
Depósito de detergente vacío.
Rellenar detergente.
Operario
No hay suficiente agua.
Asegurar una abastecimiento de agua sufi-
ciente.
Operario
Tamiz de la entrada de agua atas-
cado.
Comprobar, desmontar el tamiz y limpiar.
Operario
Válvula de dosificación de deter-
gente no hermética.
Comprobar y estanqueizar.
Operario
Mangueras de detergente no her-
méticas.
Cambiar
Operario
La válvula del flotador está engan-
chada.
Comprobar si funciona bien.
Operario
La válvula de seguridad no es her-
mética.
Comprobar el ajusta, si es necesario montar
una nueva junta.
Servicio de atención
al cliente
La válvula de regulación de caudal
no es hermética o está ajustada
demasiado baja.
Comprobar las piezas de la válvula, cambiar
si están dañadas, limpiar si están sucias.
Servicio de atención
al cliente
La válvula magnética de despresu-
rización defectuosa.
Cambiar la válvula magnética.
Servicio de atención
al cliente
La bomba de alta presión no
funciona, el manómetro osci-
la mucho.
El amortiguador de vibraciones
está defectuoso.
Cambiar el amortiguador de vibraciones.
Servicio de atención
al cliente
La bomba de agua absorbe poco
aire.
Comprobar el sistema de absorción y solu-
cionar la falta de estanqueidad.
Operario
El aparato se apaga/encien-
de continuamente cuando la
pistola está abierta
La boquilla en la lanza dosificadora
está atascada.
Comprobar, limpiar.
Operario
El aparato presenta calcificacio-
nes.
Véase el apartado "Descalcificar".
Operario
Se ha desconfigurado el punto de
desconexión del desbordador.
Ajustar de nuevo el desbordador.
Servicio de atención
al cliente
Tamiz atascado en el dispositivo
de seguridad contra el funciona-
miento en seco.
Comprobar, desmontar el tamiz y limpiar.
Operario
El aparato no se apaga cuan-
do la pistola está cerrada
La bomba no está suficientemente
ventilada.
Poner el interruptor del aparato a "0" y tirar
de la palanca de la pistola hasta que no salga
más líquido de la boquilla. Después volver a
encender el aparato. Repetir este proceso
hasta alcanzar la presión de trabajo necesa-
ria.
Operario
La válvula de seguridad o la junta
de la válvula de seguridad está de-
fectuosa.
Sustituir la válvula o junta de seguridad.
Servicio de atención
al cliente
112
ES
-
13
El detergente facilita la limpieza. En la tabla se representa una
selección de detergentes. Antes de trabajar con los detergentes
se deben de leer las indicaciones que aparecen en el paquete.
* = sólo para usos breves, método de dos tiempos, después en-
juagar con agua limpia
** = ASF = se puede separar
*** = para pulverizar previamente es apto Foam-Star 2000
Accesorios
Detergente
Área de aplicación
Suciedad, tipo de aplicación
Detergente
Valor pH (aprox.) solu-
ción de 1 % en agua
del grifo
Gremio del automóvil,
gasolineras, transportes,
flotas de vehículos
Polvo, suciedad de la calle, aceites
minerales (en superficies lacadas)
RM 55 ASF **
8
RM 22/80-Polvo ASF
12/10
RM 81 ASF
9
RM 803 ASF
10
RM 806 ASF
11
Conservación de vehículos
RM 42 Cera fría para limpiadora a alta
presión
8
RM 820-Cera caliente ASF
7
RM 821-Cera pulverizada ASF
6
RM 824-Cera en perlas ASF
7
RM 44 Limpia llantas en gel
9
Industria elaboradora de
metal
Aceites, grasa, polvo y suciedades
similares
RM 22-Polvo ASF
12
RM 55 ASF
8
RM 81 ASF
9
RM 803 ASF
10
RM 806 ASF
12
RM 31 ASF (suciedad profunda)
12
RM 39-líquido (con protección anticorrosiva)
9
Empresas de tratamiento
de alimentos
Suciedades ligeras a medias, gra-
sas/aceites, grandes superficies
RM 55 ASF
8
RM 81 ASF
9
RM 882 espuma en gel OSC
12
RM 58 ASF (detergente en espuma)
9
RM 31 ASF *
12
Resina ahumada
RM 33 *
13
Limpieza y desinfección
RM 732
9
Desinfección
RM 735
7...8
Cal, sedimentos minerales
RM 25 ASF *
2
RM 59 ASF (Limpieza con espuma)
2
Ámbito sanitario ***
Cal, urina, jabón etc.
RM 25 ASF * (limpieza a fondo)
2
RM 59 ASF (Limpieza con espuma)
2
RM 68 ASF
5
113
ES

