Karcher Nettoyeur haute pression HDS 12-14-4 ST Eco: !
!: Karcher Nettoyeur haute pression HDS 12-14-4 ST Eco
-
14
–
Topné za
ř
ízení p
ř
ístroje je spalovací za
ř
ízení. P
ř
i montáži po-
stupujte podle p
ř
íslušných místních p
ř
edpis
ů
.
–
Používejte pouze zkontrolované komíny a potrubí na spaliny.
Pozor
Nebezpe
ř
í opa
ř
ení! Tento symbol musí být umíst
ě
n na každém
odb
ě
rném míst
ě
.
P
ř
i montáži nádrže na topný olej v prostoru montáže p
ř
ístroje je
nutné dodržovat p
ř
edpisy o skladování ho
ř
lavých kapalin (lze ob-
jednat u spole
č
nosti Carl Heymanns Verlag, Köln, www.hey-
manns.com).
P
ř
i instalaci palivového potrubí postupujte podle následujícího
grafu.
Je t
ř
eba nainstalovat dvoukanálový systém s p
ř
ívodní a zp
ě
tnou
č
ástí.
–
Maximální tlak p
ř
ívodu topného oleje: 0,05 MPa (0,5 baru)
–
Maximální podtlak mezi filtrem na topný olej a
č
erpadlem:
0,04 MPa (0,4 baru)
Délka sací trubky v m
Výška nasávání v m
Možná délka sací trubky se jmenovitým pr
ů
m
ě
rem 8
–
Každé za
ř
ízení je t
ř
eba p
ř
ipojit k vlastnímu komínu.
–
Vedení spalin musí provedeno v souladu místními p
ř
edpisy a
po dohod
ě
s oprávn
ě
ným kominickým mistrem.
Mezi za
ř
ízení a komín doporu
č
ujeme namontovat p
ř
erušova
č
ta-
hu.
Upozorn
ě
ní
K dosažení p
ř
edepsaných hodnot p
ř
i spalování je nutné dodržet
tah komína uvedený v technických údajích.
–
P
ř
ed montáží je nutné zkontrolovat nosnost st
ě
ny. Dodaný
upev
ň
ovací materiál je vhodný pro beton. Pro st
ě
ny z dutých
cihel, plných cihel a plynobetonu je t
ř
eba použít vhodné
hmoždinky a šrouby, nap
ř
. injek
č
ní kotvy (schéma otvor
ů
viz
p
ř
ehled rozm
ě
r
ů
).
–
Obr. 3 - pol. 19 a 23
P
ř
ístroj nesmíte pevn
ě
spojovat s vodovodní nebo vysokotla-
kou sítí. Je t
ř
eba bezpodmíne
č
n
ě
namontovat spojovací ha-
dice.
–
Obr. 3 - A
Mezi vodovodní sí
ť
a spojovací hadici zave
ď
te zavírací ko-
hout.
P
ř
i montáži vysokotlakých vedení je t
ř
eba dodržovat p
ř
íslušné
národní zákonodárné p
ř
edpisy.
–
Pokles tlaku v potrubí musí být menší než 1,5 MPa.
–
Hotové potrubí musí být vyzkoušeno p
ř
i tlaku 28 MPa.
–
Izolace potrubí musí být teplotn
ě
stálá do teploty 155 °C.
Obr. 3 - pol. 20
Násoby nastavte tak, aby spodní hladina
č
istidla nebyla níže než
1,5 m pod dnem p
ř
ístroje a horní hladina se nenacházela nad
dnem p
ř
ístroje.
Obr. 3 - B a pol. 19
P
ř
ívod vody napojte pomocí vhodné vodní hadice k vodovod-
ní síti.
–
Výkon p
ř
ívodu vody musí být minimáln
ě
1300 l/hod. p
ř
i tlaku
minimáln
ě
0,1 MPa.
–
Teplota vody musí být nižší než 30 °C.
Pozor
Maximální p
ř
ípustná impedance sít
ě
v bod
ě
p
ř
ipojení elekt
ř
iny
(viz Technická data) nesmí být p
ř
ekro
č
ena. Nebudete-li jisti im-
pedancí sít
ě
ve Vašem bod
ě
p
ř
ipojení, kontaktujte prosím Vaše-
ho dodavatele elekt
ř
iny.
Upozorn
ě
ní:
P
ř
i zapínání dochází ke krátkodobému poklesu na-
p
ě
tí. P
ř
i nep
ř
íznivých sí
ť
ových podmínkách m
ů
že dojít k poško-
zení jiných p
ř
ístroj
ů
.
–
Údaje pro p
ř
ipojení viz technické údaje a identifika
č
ní štítek.
–
Eletrické p
ř
ipojení musí provést elektroinstalatér a musí od-
povídat IEC 60364-1.
–
Sou
č
ásti pod proudem, kabely a p
ř
ístroje v pracovním prosto-
ru musí být v bezvadném stavu a chrán
ě
né proti tryskající vo-
d
ě
.
Abyste zabránili úraz
ů
m vlivem el. proudu, doporu
č
ujeme použí-
vat zásuvky s p
ř
ed
ř
azeným proudovým chráni
č
em (jmenovitá
hodnota síly proudu vypínacího mechanismu max. 30 mA).
P
ř
ipojte elektriku.
Pro vypínání stacionárního vysokotlakého
č
isti
č
e je t
ř
eba umístit
na bezpe
č
né místo zamykatelný hlavní spína
č
(obr. 3 - poz. 6).
Vzdálenost mezery kontakt
ů
hlavního spína
č
e musí být nejmén
ě
3 mm.
Namontujte CEE konektor na p
ř
ipojovací kabel p
ř
ístroje.
CEE konektor zapojte do zásuvky.
Pro vypnutí stacionárního vysokotlakého
č
isti
č
e musí být CEE
konektor dob
ř
e p
ř
ístupný, aby mohl být odpojen od sít
ě
.
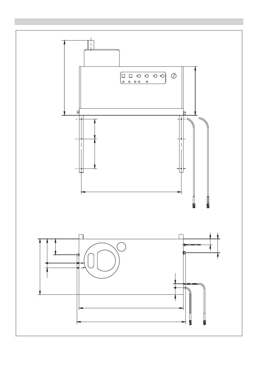
Instalace za
ř
ízení
Jen pro autorizované odborníky!
Obecné informace
P
ř
i provozní teplot
ě
nad 100°C, vyso-
kotlakou trysku na-
hra
ď
te parní tryskou.
Nádrž na topný olej
Palivové potrubí
Odvod spalin
!
Montáž na st
ě
nu
Montáž vysokotlakého potrubí
Instalace nádrže na
č
isticí prost
ř
edky
P
ř
ívod vody
Elektrické p
ř
ipojení
Pevn
ě
nainstalovaná elektrická p
ř
ípojka
Elektrická p
ř
ípojka se zástr
č
kou / zásuvkou
308
CS
-
15
P
ř
ed prvním použitím od
ř
ízn
ě
te špi
č
ku víka nádrže na olej na
vodním
č
erpadle.
Pozor!
Nebezpe
č
í exploze! Dopl
ň
ujte pouze naftu nebo lehký topný olej.
Nelze používat nevhodná paliva, nap
ř
. benzín.
Napl
ň
te palivovou nádrž.
Pozor
P
ř
i provozu s horkou vodou bez paliva dojde k poškození
č
erpa-
dla paliva. P
ř
ed provozem s horkou zajist
ě
te p
ř
ívod paliva.
Obr. 3 - pol. 14
Spojte vysokotlakou hadici s ru
č
ní st
ř
íkací pistolí a proudnicí
a p
ř
ipojte k výstupu vysokého tlaku p
ř
ístrje nebo k potrubní
síti vysokého tlaku.
Ústí trysky (b) upevn
ě
te p
ř
esuvnou maticí (a) na proudnici
(d). Dbejte na to, aby t
ě
snicí kroužek (c) dob
ř
e zapadl do
drážky.
Sundejte pružinu (c) z op
ě
ry ví
č
ka (b) nádrže na zm
ě
k
č
ova-
dlo (a).
Do nádrže nalijte zm
ě
k
č
ovací kapalinu Kärcher RM 110
(obj.
č
. 2.780-001).
Pozor
Nebezpe
č
né elektrické nap
ě
tí! Nastavení smí provád
ě
t pouze
odborný elektrotechnik.
Zjišt
ě
ní tvrdosti místní vody:
–
u místního dodavatele vody,
–
tvrdom
ě
rem (obj.
č
. 6.768-004).
Sundejte kryt p
ř
ístroje.
Otev
ř
ete rozvodnou sk
ř
í
ň
ku na ovládacím panelu.
Oto
č
ný potenciometr (a) nastavte podle tvrdosti vody. Správ-
né nastavení lze zjistit z tabulky.
P
ř
íklad:
P
ř
i tvrdosti vody 15 °dH je t
ř
eba na stupnici potenciometru nasta-
vit hodnotu 6. Tomuto nastavení odpovídá p
ř
estávka 31 sekund,
tzn. že se každých 31 sekund krátce otev
ř
e magnetický ventil.
Pohotovostní doba se nastavuje na v
ě
tší desce na levé st
ě
n
ě
elektrické sk
ř
í
ň
ky.
Pohotovostní doba je z výroby nastavena na minimální hodnotu
2 minuty a lze ji zvýšit maximáln
ě
na 8 minut.
První uvedení do provozu
Opat
ř
ení p
ř
ed uvedením do provozu
Ochrana proti usazování vodního kamene
a
b
c
d
b
c
a
Tvrdost vody (°dH)
5
10
15
20
25
Stupnice oto
č
ného potenci-
ometru
8
7
6
5
4,5
P
ř
estávka (sekundy)
50
40
31
22
16
Zm
ě
na nastavení pohotovostní doby
a
8 7 6 5 4 3 2 1
S2
min.
max.
309
CS
-
16
Obr. 3
Instala
č
ní materiál
1 2 3 4 5 6 7 8 9 10 12 13
21 20 19 18 17 16 15 14
11b 11a
11d
11c
A
B 19a
24
11a
23
22
11b
1060 (1124)
~1050
600
Pol.
Instala
č
ní materiál
Objednací
č
.
1
úhlové šroubení
6.386-356
2
koleno odvodu spalin 90°
7.234-605
koleno odvodu spalin 45°
7.234-604
3
Odvod spalin
7.234-603
4
p
ř
erušova
č
tahu odvodu spalin
HDS 9/14-4
4.656-080
p
ř
erušova
č
tahu odvodu spalin
HDS 12/14-4
4.656-079
5
tepelná izolace
6.286-114
6
Hlavní spína
č
6.631-455
7
sada potrubí, pozinkovaná ocel
2.420-004
sada potrubí, ušlechtilá ocel
2.420-006
8
sada díl
ů
dálkového ovládání
2.744-008
9
sada díl
ů
nouzového vypína
č
e
2.744-002
10
šroubení T
6.386-269
11a
p
ř
ipojovací hrdlo, mosaz
2.638-180
p
ř
ipojovací hrdlo, ušlechtilá ocel
2.638-181
11b
uzavírací kohout jmen. pr
ů
m
ě
ru 8, pozin-
kovaná ocel
4.580-144
uzavírací kohout jmen. pr
ů
m
ě
ru 8,
ušlechtilá ocel
4.580-163
11c
pevný díl rychlospojovacího šroubení
6.463-025
11d
volný díl rychlospojovacího šroubení
6.463-023
Pol.
Instala
č
ní materiál
Objednací
č
.
12
držák hadice
2.042-001
13
buben na hadici
2.637-238
14
vysokotlaká hadice 10 m
6.388-083
15
ru
č
ní st
ř
íkací pistole Easypress
4.775-463
oto
č
ný regulátor HDS 9/14-4
4.775-470
oto
č
ný regulátor HDS 12/14-4
4.775-471
16
držák proudnice
2.042-002
17
Proudová trubice
4.760-550
18
ústí trysky HDS 9/14-4
2.883-402
ústí trysky HDS 12/14-4
2.883-406
19
Vodní hadice
4.440-282
19a
magnetický ventil p
ř
ívodu vody
4.743-011
20
nádrž na
č
isticí prost
ř
edky, 60 l
5.070-078
21
nádrž na topný olej 600 l
6.392-050
22
sada díl
ů
konzol na st
ě
nu
2.053-005
sada díl
ů
stojanu na podlahu
2.210-008
23
Vysokotlaká hadice
6.389-028
24
t
ř
men trubky
6.373-374
310
CS
-
17
Tímto prohlašujeme, že níže ozna
č
ené stroje odpovídají jejich
základní koncepcí a konstruk
č
ním provedením, stejn
ě
jako námi
do provozu uvedenými konkrétními provedeními, p
ř
íslušným zá-
sadním požadavk
ů
m o bezpe
č
nosti a ochran
ě
zdraví sm
ě
rnic
ES. P
ř
i jakýchkoli na stroji provedených zm
ě
nách, které nebyly
námi odsouhlaseny, pozbývá toto prohlášení svou platnost.
5.957-054
Podepsaní jednají v pov
ěř
ení a s plnou mocí jednatelství
Osoba zplnomocn
ě
ná sestavením dokumentace:
S. Reiser
Alfred Kärcher GmbH & Co. KG
Alfred-Kärcher-Str. 28 - 40
71364 Winnenden (Germany)
Tel.: +49 7195 14-0
Fax: +49 7195 14-2212
Winnenden, 2014/02/01
V každé zemi platí záru
č
ní podmínky vydané naší p
ř
íslušnou dis-
tribu
č
ní spole
č
ností. P
ř
ípadné poruchy na za
ř
ízení odstraníme
b
ě
hem záru
č
ní lh
ů
ty bezplatn
ě
tehdy, bude-li p
ř
í
č
inou poruchy
vada materiálu nebo výrobní vada.
Prohlášení o shod
ě
pro ES
Výrobek:
Vysokotlaký
č
isti
č
s parním
stupn
ě
m
Typ:
1.698-xxx
Typ:
1.699-xxx
P
ř
íslušné sm
ě
rnice ES:
97/23/ES
2006/42/ES (+2009/127/ES)
2004/108/ES
Kategorie modulu
II
Ř
ízení o shod
ě
Modul H
Topný had
Vyhodnocení shody u modulu H
Bezpe
č
nostní ventil
Vyhodnocení shody
č
l. 3 odst. 3
Ř
ídicí blok
Vyhodnocení shody u modulu H
r
ů
zná potrubí
Vyhodnocení shody
č
l. 3 odst. 3
Použité harmoniza
č
ní normy
EN 55014–1: 2006+A1: 2009+A2: 2011
EN 55014–2: 1997+A1: 2001+A2: 2008
EN 60335–1
EN 60335–2–79
EN 61000–3–2: 2006+A1: 2009+A2: 2009
HDS 12/14:
EN 61000–3–3: 2008
HDS 9/14:
EN 61000–3–11: 2000
Použité specifikace:
AD 2000 v návaznosti na
TRD 801 v n·vaznosti na
Název uvedeného místa:
Pro 97/23/ES
TÜV Rheinland Industrie Service GmbH
Am Grauen Stein
51105 Köln
Ident.
č
. 0035
CEO
Head of Approbation
Záruka
311
CS
-
18
odd
ě
lení služeb zákazník
ů
m
Typ za
ř
ízení:
Výrobní
č
.:
Uvedení do provozu:
Datum zkoušky:
Výsledek:
Podpis
Datum zkoušky:
Výsledek:
Podpis
Datum zkoušky:
Výsledek:
Podpis
Datum zkoušky:
Výsledek:
Podpis
312
CS
-
19
Upozorn
ě
ní:
Je t
ř
eba dodržovat doporu
č
ované zkušební lh
ů
ty
podle požadavk
ů
aktuáln
ě
platných v zemi provozovatele.
Periodické zkoušky
Zkoušku provedl:
Vn
ě
jší zkouška
Vnit
ř
ní zkouška
Zkouška pevnosti
Jméno
Podpis oprávn
ě
né osoby /
datum
Podpis oprávn
ě
né osoby /
datum
Podpis oprávn
ě
né osoby /
datum
Jméno
Podpis oprávn
ě
né osoby /
datum
Podpis oprávn
ě
né osoby /
datum
Podpis oprávn
ě
né osoby /
datum
Jméno
Podpis oprávn
ě
né osoby /
datum
Podpis oprávn
ě
né osoby /
datum
Podpis oprávn
ě
né osoby /
datum
Jméno
Podpis oprávn
ě
né osoby /
datum
Podpis oprávn
ě
né osoby /
datum
Podpis oprávn
ě
né osoby /
datum
Jméno
Podpis oprávn
ě
né osoby /
datum
Podpis oprávn
ě
né osoby /
datum
Podpis oprávn
ě
né osoby /
datum
Jméno
Podpis oprávn
ě
né osoby /
datum
Podpis oprávn
ě
né osoby /
datum
Podpis oprávn
ě
né osoby /
datum
Jméno
Podpis oprávn
ě
né osoby /
datum
Podpis oprávn
ě
né osoby /
datum
Podpis oprávn
ě
né osoby /
datum
Jméno
Podpis oprávn
ě
né osoby /
datum
Podpis oprávn
ě
né osoby /
datum
Podpis oprávn
ě
né osoby /
datum
Jméno
Podpis oprávn
ě
né osoby /
datum
Podpis oprávn
ě
né osoby /
datum
Podpis oprávn
ě
né osoby /
datum
Jméno
Podpis oprávn
ě
né osoby /
datum
Podpis oprávn
ě
né osoby /
datum
Podpis oprávn
ě
né osoby /
datum
Jméno
Podpis oprávn
ě
né osoby /
datum
Podpis oprávn
ě
né osoby /
datum
Podpis oprávn
ě
né osoby /
datum
313
CS
-
1
Pred prvo uporabo Vaše naprave preberite to original-
no navodilo za uporabo, ravnajte se po njem in shra-
nite ga za morebitno kasnejšo uporabo ali za naslednjega
lastnika.
–
Pred prvim zagonom obvezno preberite varnostna navodila
št. 5.956-309!
–
V primeru transportnih poškodb takoj obvestite trgovca.
Opozorila k sestavinam (REACH)
Aktualne informacije o sestavinah najdete na:
www.kaercher.com/REACH
Nevarnost
Za neposredno groze
č
o nevarnost, ki vodi do težkih telesnih po-
škodb ali smrti.
몇
Opozorilo
Za možno nevarno situacijo, ki bi lahko vodila do težkih telesnih
poškodb ali smrti.
Pozor
Za možno nevarno situacijo, ki lahko vodi do lahkih poškodb ali
materialne škode.
Visokotla
č
ni curki so lahko pri nestrokovni uporabi ne-
varni. Curka ne smete usmerjati na osebe, živali, aktiv-
no elektri
č
no opremo ali na samo napravo.
–
Upoštevajte ustrezne nacionalne predpise zakonodajalca za
škropilnike teko
č
in.
–
Upoštevajte ustrezne nacionalne predpise zakonodajalca za
prepre
č
evanje nesre
č
. Škropilnik teko
č
in je potrebno redno
pregledovati in o rezultatu pregleda je potrebno podati pisme-
no izjavo.
–
Ogrevalnik naprave je gorilna naprava. Gorilne naprave mo-
rajo biti redno p
č
regledovane v skladu z ustreznimi nacional-
nimi predpisi zakonodajalca.
–
Pri obratovanju naprave v prostoru se mora zagotoviti varen od-
vod dimnih plinov (cev za dimne pline brez prekinitve vleka). Po-
leg tega mora obstajati zadosten dovod svežega zraka.
–
V skladu z veljavnimi nacionalnimi predpisi mora visokotla
č
ni
č
istilnik pri uporabi v industrijske namene prvi
č
uporabljati
usposobljena oseba. KÄRCHER je ta prvi zagon za Vas že
opravil in dokumentiral. Dokumentacijo o tem prejmete na
zahtevo preko Vašega KÄRCHER partnerja. Prosimo, da
imate pri povpraševanju po dokumentaciji pripravljeno števil-
ko dela in tovarniško številko aparata.
–
Opozarjamo na to, da mora v skladu z veljavnimi nacionalnimi
predpisi aparat periodi
č
no preveriti usposobljena oseba. Pro-
simo, da se v ta namen obrnete na Vašega KÄRCHER par-
tnerja.
–
Upoštevajte varnostna navodila, ki so priložena uporabljenim
č
istilom (ponavadi na etiketi embalaže).
Vsebinsko kazalo
Varstvo okolja . . . . . . . . . . .
SL . . 1
Simboli v navodilu za uporabo
SL . . 1
Simboli na napravi. . . . . . . .
SL . . 1
Splošna varnostna navodila
SL . . 1
Namenska uporaba. . . . . . .
SL . . 2
Delovanje . . . . . . . . . . . . . .
SL . . 2
Varnostne priprave . . . . . . .
SL . . 2
Elementi naprave . . . . . . . .
SL . . 3
Zagon . . . . . . . . . . . . . . . . .
SL . . 4
Uporaba . . . . . . . . . . . . . . .
SL . . 4
Ustavitev obratovanja . . . . .
SL . . 6
Mirovanje naprave. . . . . . . .
SL . . 6
Skladiš
č
enje . . . . . . . . . . . .
SL . . 6
Transport. . . . . . . . . . . . . . .
SL . . 6
Tehni
č
ni podatki . . . . . . . . .
SL . . 7
Nega in vzdrževanje . . . . . .
SL . . 9
Pomo
č
pri motnjah . . . . . . .
SL . 11
Pribor. . . . . . . . . . . . . . . . . .
SL . 13
Inštalacija naprave . . . . . . .
SL . 14
ES-izjava o skladnosti . . . . .
SL . 17
Garancija. . . . . . . . . . . . . . .
SL . 17
Uporabniški servis. . . . . . . .
SL . 18
Periodi
č
an preverjanja . . . .
SL . 19
Varstvo okolja
Embalaža je primerna za recikliranje. Prosimo, da em-
balaže ne odvržete med gospodinjske odpadke, tem-
ve
č
jo odložite v zbiralnik za ponovno obdelavo.
Stare naprave vsebujejo dragocene reciklirne materi-
ale, ki jih je treba odvajati za ponovno uporabo. Bate-
rije, olje in podobne snovi ne smejo priti v okolje. Zato
stare naprave zavrzite v ustrezne zbiralne sisteme.
Pazite, da motornje olje, kurilno olje, dizelsko gorivo in bencin ne
pridejo v okolje. Varujte tla in staro olje zavrzite v skladu s pred-
pisi o varstvu okolja.
Kärcher
č
istila so lahko razgradljiva. To pomeni, da ne ovirajo
delovanja lovilnika olja. Seznam priporo
č
ljivih
č
istil se nahaja v
poglavju "Pribor".
Simboli v navodilu za uporabo
Simboli na napravi
Nevarnost opeklin! Opozorilo na vro
č
e sklope.
Splošna varnostna navodila
314
SL
-
2
Pred instalacijo naprave se mora opraviti uskladitev s podro
č
nim
dimnikarjem.
Pri instalaciji se morajo upoštevati gradbeni predpisi, obrtni pred-
pisi in predpisi o zaš
č
iti pred imisijami. Opozarjamo na slede
č
e
predpise, smernice in norme:
–
Napravo sme instalirati le strokovno podjetje v skladu z naci-
onalnimi predpisi.
–
Pri elektri
č
ni instalaciji se morajo upoštevati ustrezni nacio-
nalni predpisi zakonodajalca.
–
Nastavitve, vzdrževanje in popravila na gorilniku smejo izva-
jati le usposobljeni monterji iz Kärcher uporabniškega servi-
sa.
–
Pri projektiranju kamina se morajo upoštevati lokalno veljavni
predpisi.
Delovno mesto se nahaja ob upravljalnem polju. Odvisno od tipa
naprave so nadaljnja delovna mesta pri pripravah iz pribora (bri-
zgalne naprave), priklju
č
enih na odvzemnih mestih.
–
Za zaš
č
ito pred brizganjem vode ali umazanije nosite primer-
no zaš
č
itno obleko in zaš
č
itne o
č
ale.
Namen naprave je, da se s pomo
č
jo prosto iztekajo
č
ega vodne-
ga curka odstrani umazanija s površin. Uporablja se predvsem za
č
iš
č
enje strojev, vozil in fasad.
Nevarnost
Nevarnost poškodb! Pri uporabi na bencinskih
č
rpalkah ali drugih
nevarnih obmo
č
jih upoštevajte ustrezne varnostne predpise.
–
Hladna voda preko motorne hladilne spirale in posode s plov-
cem prite
č
e na sesalno stran visokotla
č
ne
č
rpalke. V posodi
s plovcem se dozira meh
č
alec.
Č
rpalka vodo in vsesano
č
isti-
lo poganja skozi preto
č
ni grelnik. Delež
č
istila v vodi se lahko
nastavi z dozirnim ventilom. Preto
č
ni grelnik se ogreva z go-
rilnikom.
–
Visokotla
č
ni izhod se priklju
č
i na visokotla
č
no omrežje v
zgradbi. Na odvzemnih mestih tega omrežja se priklju
č
i ro
č
na
brizgalna pištola z visokotla
č
no gibko cevjo.
Varnostne naprave so namenjene zaš
č
iti uporabnika zato jih ne
smete ustaviti ali se izogibati njihovi funkciji.
V primeru pomanjkanja vode varovalo proti pomanjkanju vode
prepre
č
i vklop visokotla
č
ne
č
rpalke.
V primeru pomanjkanja vode varovalo proti pomanjkanju vode
prepre
č
i pregrevanje gorilnika. Gorilnik se vklopi le pri zadostni
oskrbi z vodo.
Č
e je delovni tlak presežen, tla
č
no stikalo izklopi napravo. Nasta-
vitve ne smete spremeniti.
V primeru motnje tla
č
nega stikala varnostni ventil odpre. Ta ventil
je tovarniško nastavljen in plombiran. Nastavitve ne smete spre-
meniti.
V primeru pomanjkanja goriva ali pri motnji gorilnika nadzor pla-
mena izklopi gorilnik. Kontrolna lu
č
ka motnje gorilnika (E) zasve-
ti.
Č
e je motor gorilnika blokiran, se sproži zaš
č
itno tokovno stikalo.
Motor visokotla
č
ne
č
rpalke je zaš
č
iten s stikalom za zaš
č
ito mo-
torja in stikalom za zaš
č
ito navitja.
Termostat dimnih plinov se sproži, ko temperatura dimnih plinov
preseže 300 °C. Naprava se izklopi.
Po izklopu naprave preko ro
č
ne brizgalne pištole se po poteku
č
asa pripravljenosti za obratovanje odpre magnetni ventil, ki je
nameš
č
en v visokotla
č
nem sistemu, kar povzro
č
i znižanje tlaka.
Predpisi, smernice in pravila
Delovna mesta
Osebna zaš
č
itna oprema
Pri
č
iš
č
enju delov, ki pove
č
ujejo hrup, nosite
glušnike, da prepre
č
ite poškodovanje sluha.
Namenska uporaba
Prepre
č
iti morate, da odpadna voda, ki vsebuje mineralna olja,
odteka v zemljo, teko
č
e vode ali kanalizacijo. Pranje motorjev in
podvozij zato izvajajte izklju
č
no na ustreznih mestih z lovilci olj.
Delovanje
Varnostne priprave
Varovalo proti pomanjkanju vode v posodi s plovcem
Varovalo proti pomanjkanju vode v zaš
č
itnem bloku
Tla
č
no stikalo
Varnostni ventil
Nadzor plamena
Prelivna zaš
č
ita
Termostat izpušnih plinov
Tla
č
na razbremenitev visokotla
č
nega sistema
315
SL
-
3
Slika 1
1 Gorilnik
2 Manometer
3 Dotok sveže vode s sitom
4 Visokotla
č
ni izhod
5 Dovod goriva vtok
6 Dovod goriva povratek
7 Sesalna cev za
č
istilo l
8 Sesalna cev za
č
istilo II (opcija)
9 Posoda za meh
č
alec
10 Elektri
č
ni vodnik
11 Posoda s plovcem
12 Upravljalno polje
Slika 2
A Stikalo naprave
B Regulator temperature
C Dozirni ventil za
č
istilo I
D Dozirni ventil za
č
istilo II (opcija)
E Kontrolna lu
č
ka motnje gorilnika
F Kontrolna lu
č
ka pripravljenosti za obratovanje
G Kontrolna lu
č
ka pregretja motorja
H Kontrolna lu
č
ka zaš
č
ite pred poapnenjem
I
Č
ep - deblokirna tipka za motor gorilnika
Elementi naprave
6
5
7
8
3
4
9
11
10
1
12
2
Upravljalno polje
316
SL
-
4
몇
Nevarnost
Nevarnost poškodb! Naprava, dovodi, visokotla
č
na cev in pri-
klju
č
ki morajo biti v brezhibnem stanju.
Č
e stanje ni brezhibno,
naprave ne smete uporabljati.
–
Priklju
č
ne vrednosti glejte v Tehni
č
nih podatkih in na tipski ta-
blici.
–
Elektri
č
ni priklju
č
ek mora izvesti elektroinstalater in mora
ustrezati IEC 60364-1.
Uporabnik mora stroj uporabljati v skladu z njegovim namenom.
Mora upoštevati lokalne danosti in pri delu s strojem paziti na
osebe v okolici.
Stroja med obratovanjem nikoli ne puš
č
ajte brez nadzora.
Nevarnost
–
Nevarnost oparjenja z vro
č
o vodo! Vodnega curka nikoli ne
usmerjajte v ljudi ali živali.
–
Nevarnost opeklin zaradi vro
č
ih delov naprave! Pri obratova-
nju z vro
č
o vodo se ne dotikajte neizoliranih cevovodov in gib-
kih cevi. Brizgalno cev držite izklju
č
no na ro
č
aju. Ne dotikajte
se nastavka za dimne pline preto
č
nega grelnika.
–
Nevarnost zastrupitve ali razjedanja s
č
istilom! Upoštevajte
opozorila na
č
istilih.
Č
istila hranite na mestu, ki ni dostopno
nepooblaš
č
enim osebam.
Nevarnost
Življenjska nevarnost zaradi elektri
č
nega udara! Vodnega curka
ne usmerjajte v slede
č
e priprave:
–
elektri
č
ni aparati in naprave,
–
ta naprava sama,
–
vsi deli v delovnem obmo
č
ju, ki so pod napetostjo.
Vodni curek, ki izstopa iz brizgalne cevi povzro
č
a odbojno silo.
Zaradi zvite brizgalne cevi deluje sila navzgor.
Nevarnost
–
Nevarnost poškodb! Zaradi odbojne sile brizgalne cevi lahko izgu-
bite ravnotežje. Lahko padete. Brizgalna cev lahko leti naokrog in
poškoduje ljudi. Poiš
č
ite varno pozicijo in pištolo trdno držite. Ro
č
ico
ro
č
ne brizgalne pištole nikoli ne zataknite.
–
Curka ne usmerjajte na druga ali nase, da bi o
č
istili obla
č
ila
ali obutev.
–
Nevarnost poškodb zaradi lete
č
ih delov! Lete
č
i drobci ali
predmeti lahko poškodujejo ljudi ali živali. Vodnega curka ni-
koli ne usmerjajte v lomljive ali rahlo nameš
č
ene predmete.
–
Nevarnost nesre
č
e, kot posledice poškodb! Gume in ventile
č
istite z minimalne razdalje 30 cm.
몇
Opozorilo
Nevarnost zaradi zdravju škodljivih snovi! Slede
č
ih materialov ne
smete poškropiti, ker se lahko sicer v zrak zvrtin
č
ijo zdravju ško-
dljive snovi:
–
materiali, ki vsebujejo azbest,
–
materiali, ki morebiti vsebujejo zdravju škodljive snovi.
Nevarnost
–
Nevarnost poškodb zaradi izstopajo
č
ega, morebiti vro
č
ega
vodnega curka! Le originalne Kärcher visokotla
č
ne gibke cevi
so optimalno prilagojene napravi. Pri uporabi drugih cevi od-
pade garancija.
–
Ogrožanje zdravja zaradi
č
istila! Zaradi morebiti primešanega
č
istila voda, ki izhaja iz naprave, ne ustreza kakovosti pitne
vode.
–
Nevarnost poškodovanja sluha zaradi dela na delih, ki pove-
č
ujejo hrup! V tem primeru nosite glušnike.
Nevarnost
Nevarnost poškodb zaradi izstopajo
č
ega, morebiti vro
č
ega vo-
dnega curka!
Nevarnost
Pred vsakim zagonom preverite gibko visokotla
č
no cev na po-
škodbe. Poškodovano visokotla
č
no gibko cev takoj zamenjajte.
Pred vsako uporabo preverite visokotla
č
no gibko cev, cevo-
vode, armature in brizgalno cev glede poškodb.
Preverite trdnost naseda in tesnost cevne spojke.
Pozor
Neveranost poškodb zaradi suhega teka.
Preverite polnilni nivo posode za
č
istilo in jo po potrebi dopol-
nite.
Preverite nivo meh
č
alne teko
č
ine in jo po potrebi dolijte.
Stikalo naprave (A) obrnite na "0".
Zaprite dovod vode.
Pritiskajte ro
č
no brizgalno pištolo, dokler naprava ni ve
č
pod
pritiskom.
Z obra
č
anjem regulirnega ventila v smeri urnega kazalca se
delovni pritisk in preto
č
na koli
č
ina pove
č
ata.
Z obra
č
anjem regulirnega ventila v nasprotni smeri urnega
kazalca se delovni pritisk in preto
č
na koli
č
ina zmanjšata.
Zagon
Elektri
č
ni priklju
č
ek
Uporaba
Varnostna navodila
!
Vzpostavljanje pripravljenosti na obratovanje
Izklop v sili
Nastavitev delovnega pritiska in preto
č
ne koli
č
ine
Nastavitev na napravi
R
317
SL
-
5
Obrat regulatorja koli
č
ine vode v desno pove
č
a pretok in po-
viša delovni tlak.
Obrat regulatorja koli
č
ine vode v levo zmanjša pretok in zniža
delovni tlak.
Odprite dovod vode.
Simbol "Vklop motorja"
Povlecite ro
č
ico ro
č
ne brizgalne pištole in stikalo naprave (A)
postavite na "1" (vklop motorja).
Kontrolna lu
č
ka pripravljenosti za obratovanje (F) kaže pripra-
vljenost naprave.
Nevarnost
Nevarnost oparin!
Pozor
Obratovanje z vro
č
o vodo brez goriva povzro
č
i poškodbo
č
rpalke
za gorivo. Pred obratovanjem z vro
č
o vodo zagotovite oskrbo z
gorivom.
Gorilnik se lahko po potrebi doklopi.
Simbol "Vklop gorilnika"
Stikalo naprave (A) postavite na "Vklop gorilnika".
Željeno temperaturo vode nastavite na regulatorju temperatu-
re (B). Maksimalna temperatura je 98 °C.
Nevarnost
Nevarnost oparin! Pri delovnih temperaturah nad 98 °C delovni
tlak ne sme presegati 3,2 MPa (32 bar).
Za predelavo iz obratovanja z vro
č
o vodo na stopenjsko obrato-
vanje s paro se mora naprava ohladiti in izklopiti. Predelava se iz-
vede na slede
č
na
č
in:
Visokotla
č
no šobo zamenjajte s parno šobo (pribor).
Regulator temperature obrnite na 150 °C.
Regulirni ventil na visokotla
č
ni
č
rpalki postavite na minimalno
koli
č
ino vode (obra
č
ajte v nasprotni smeri urnega kazalca).
Regulirni ventil na visokotla
č
ni
č
rpalki postavite na maksimal-
no koli
č
ino vode (obra
č
ajte v smeri urnega kazalca).
Regulator koli
č
ine vode na Easypress pištoli z obratom v levo
postavite na minimalno koli
č
ino vode.
–
Č
e med obratovanjem spustite ro
č
ico ro
č
ne brizgalne pištole,
se naprava izklopi.
–
Č
e se pištola ponovno odpre v nastavljivem
č
asu pripravlje-
nosti za obratovanje (2...8 minut), naprava samodejno ponov-
no ste
č
e.
–
Č
e je
č
as pripravljenosti za obratovanje presežen, varnostno
stikalo izklopi
č
rpalko in gorilnik. Kontrolna lu
č
ka pripravljeno-
sti za obratovanje (F) ugasne.
–
Za ponoven vklop obrnite stikalo naprave v položaj "0", nato
ga ponovno vklopite
Č
e se naprava krmili z daljinskim upra-
vljalcem, se lahko ponoven vklop izvede z ustreznim stikalom
na daljinskem upravljalcu.
–
Avtomobilske gume se
č
istijo le s šobo za raven curek (25°)
in z minimalnim brizgalnim razmikom 30 cm. Gume se v no-
benem primeru ne smejo
č
istiti s krožnim curkom.
Za vse ostale naloge so na razpolago slede
č
e šobe:
Pri cevovodu nad 20 m ali pri visokotla
č
ni gibki cevi nad 2 x 10 m
NV 8 se morajo uporabiti slede
č
e šobe:
Nastavitev na "Easypress" pištoli (opcija)
Obratovanje s hladno vodo
Obratovanje z vro
č
o vodo
Obratovanje s paro
Naro
č
. št.
Tip
4.766-023
HDS 9/14
4.766-024
HDS 12/14
Brez Easypress pištole
Z Easypress pištolo (opcija)
Pripravljenost na obratovanje
Izbira šobe
Onesna-
ženost
Šoba
Brizgalni
kot
Št. dela
6.415
Tlak
[MPa]
Odboj [N]
HDS 9/14
mo
č
na
00060
0°
-257
14
44
srednja
25060
25°
-295
rahla
40060
40°
-301
HDS 12/14
mo
č
na
00080
0°
-150
14
55
srednja
25080
25°
-152
rahla
40080
40°
-153
Onesna-
ženost
Šoba
Brizgalni
kot
Št. dela
6.415
Tlak
[MPa]
Odboj [N]
HDS 9/14
mo
č
na
0075
0°
-419
10
37
srednja
2575
25°
-421
rahla
4075
40°
-422
HDS 12/14
mo
č
na
0010
0°
-082
10
46
srednja
2510
25°
-252
rahla
4010
40°
-253
318
SL
-
6
–
Č
istila olajšajo
č
iš
č
enje. Vsesajo se iz eksternega rezervoarja
za
č
istilo.
–
Del osnovne opreme naprave je dozirni ventil (C). Dodatna
dozirna priprava (dozirni ventil D) je dobavljiva kot pribor. Sle-
dnji omogo
č
a vsesavanje dveh razli
č
nih
č
istil.
–
Dozirna koli
č
ina se nastavi na dozirnih ventilih za
č
istilo (C ali
D) na upravljalnem polju. Nastavljena vrednost ustreza dele-
žu
č
istila v odstotkih.
–
Zunanja skala velja pri uporabi nerazred
č
enega
č
istila (100 %
CHEM).
–
Notranja skala velja pri uporabi razred
č
enega
č
istila v raz-
merju 1 + 3 (25 % CHEM + 75 % vode).
Slede
č
a tabela podaja porabo
č
istila za vrednosti na zunanji ska-
li:
To
č
na dozirna koli
č
ina je odvisna od:
–
viskoznosti
č
istila
–
sesalne višine
–
upora pretoka visokotla
č
nega voda
Č
e je potrebno natan
č
no doziranje, se mora izmeriti koli
č
ina vse-
sanega
č
istila (npr. s sesanjem iz merilnega lon
č
ka).
Opozorilo:
Priporo
č
ljiva
č
istila najdete v poglavju "Pribor".
Pozor
Pri obratovanju brez meh
č
alca lahko preto
č
ni grelnik poapni.
Č
e je posoda za meh
č
alec prazna, utripa kontrolna lu
č
ka zaš
č
ite
pred poapnenjem (H).
Slika 1 - poz. 9
V posodo za meh
č
alec dolijte meh
č
alno teko
č
ino RM 110
(2.780-001).
Nevarnost
Nevarnost oparjenja z vro
č
o vodo! Po obratovanju z vro
č
o vodo
ali paro, mora naprava za ohladitev najmanj dve minuti pri odprti
pištoli obratovati s hladno vodo.
Pri obratovanju z vro
č
o vodo regulator temperature (B) nasta-
vite na najnižjo temperaturo.
Najmanj 30 sekund uporabljajte napravo brez
č
istila.
Stikalo naprave (A) obrnite na "0".
Zaprite dovod vode.
Pritiskajte ro
č
no brizgalno pištolo, dokler naprava ni ve
č
pod
pritiskom.
Ro
č
no brizgalno pištolo z zaš
č
itno zasko
č
ko zavarujte pred
nehotenim odpiranjem.
Pri daljših obratovalnih premorih, ali ko ni možno skladiš
č
enje na-
prave brez nevarnosti zamrznitve, izvedite slede
č
e ukrepe (glejte
poglavje "Nega in vzdrževanje", odstavek "Zaš
č
ita pred zamrzni-
tvijo"):
Izpustite vodo.
Napravo izperite s sredstvom proti zmrznitvi.
Izklopite in zavarujte glavno stikalo oz. izvlecite Cekon vti
č
.
Pozor
Nevarnost poškodbe in škode! Pri shranjevanju upoštevajte težo
naprave.
Pozor
Nevarnost poškodbe in škode! Pri transportu upoštevajte težo
naprave.
Pri transportu v vozilih napravo zavarujte proti zdrsu in prevr-
nitvi v skladu z vsakokratnimi veljavnimi smernicami.
Doziranje
č
istila
HDS 9/14
Položaj
0,5
1
5
Koli
č
ina
č
istila [l/h]
14...15 22...24
50
Koncentracija
č
istila [%]
1,5
2,5
5
HDS 12/14
Položaj
0,5
1
5
Koli
č
ina
č
istila [l/h]
10...13 23...27
60
Koncentracija
č
istila [%]
1
2
5
Dolivanje meh
č
alca
Ustavitev obratovanja
Po obratovanju s
č
istilom
Izklop naprave
Mirovanje naprave
Skladiš
č
enje
Transport
319
SL
-
7
Tehni
č
ni podatki
HDS 9/14
HDS 12/14
HDS 12/14
1.698-900
1.699-919
1.699-920
Podatki o zmogljivosti
Delovni tlak vode (s standardno šobo)
MPa (bar)
14 (140)
14 (140)
14 (140)
Maks. delovni tlak obratovanja s paro (s parno šobo)
MPa (bar)
3,2 (32)
3,2 (32)
3,2 (32)
Št. dela parne šobe
--
4.766-023
4.766-024
4.766-024
Maks. obratovalni nadtlak (varnostni ventil)
MPa (bar)
18,5 (185)
18,5 (185)
18,5 (185)
Pretok vode (regulira se brezstopenjsko)
l/h (l/min)
500-930
(8,3-15,5)
600-1200
(10-20)
600-1200
(10-20)
Pretok pri obratovanju s paro
l/h (l/min)
470 (7,8)
600 (10)
600 (10)
Vsesavanje
č
istila (regulira se brezstopenjsko)
l/h (l/min)
0-50 (0-0,8)
0-60 (0-1)
0-60 (0-1)
Vodni priklju
č
ek
Koli
č
ina dotoka (min.)
l/h (l/min)
1100 (18,3)
1300 (21,7)
1300 (21,7)
Tlak dotoka (min.)
MPa (bar)
0,1 (1)
0,1 (1)
0,1 (1)
Pritisk dotoka (maks.)
MPa (bar)
0,6 (6)
0,6 (6)
0,6 (6)
Elektri
č
ni priklju
č
ek
Vrsta toka
--
3N~
3N~
3N~
Frekvenca
Hz
50
50
50
Napetost
V
400
400
230
Priklju
č
na mo
č
kW
6,4
7,5
8,2
Elektri
č
na zaš
č
ita (inertna)
A
16
20
32
Vrsta zaš
č
ite
--
IPX5
IPX5
IPX5
Razred zaš
č
ite
--
I
I
I
Maksimalno dopustna omrežna impedanca
Ohm
(0,381+j 0,238)
--
--
Elektri
č
ni vodnik
mm
2
5 x 2,5
5 x 2,5
5 x 4
Temperatura
Temperatura dotoka (maks.)
°C
30
30
30
Maks. delovna temperatura vro
č
e vode
°C
98
98
98
Maks. delovna temperatura obratovanja s paro
°C
155
155
155
Povišanje temperature pri maks. pretoku vode
°C
56±2
54±2
54±2
Ogrevalna mo
č
bruto
kW
68
85
85
Poraba goriva
kg/h
5,8
7,1
7,1
Kaminski vlek
kPa
0,01-0,04
0,01-0,04
0,01-0,04
Masni tok dimnih plinov - polno breme
kg/h
124
155
155
Mere in teža
Dolžina
mm
1124
1124
1124
Širina
mm
558
558
558
Višina
mm
687
699
699
Tipi
č
na delovna teža
kg
164,4
178,8
178,8
Ugotovljene vrednosti v skladu z EN 60355-2-79
Emisija hrupa
Nivo hrupa L
pA
dB(A)
74
76
76
Negotovost K
pA
dB(A)
1
1
1
Vrednost vibracij dlan-roka
Ro
č
na brizgalna pištola
m/s
2
2,2
2,3
2,3
Brizgalna cev
m/s
2
1,8
2,1
2,1
Negotovost K
m/s
2
1,0
1,0
1,0
320
SL
-
8
Merski list
6
8
7
/ 6
9
9
505
558
1124
246
158
1060
47
141
61
77
46
200
300
1018±2
321
SL
-
9
Nevarnost
Nevarnost poškodb! Pred vsemi vzdrževalnimi deli in popravili je
treba izklopiti glavno stikalo oz. izvle
č
i Cekon vti
č
.
Nega in vzdrževanje
Vzdrževalni na
č
rt
Č
as
Dejavnost
Zadeven sklop
Izvedba
Izvajalec
vsak dan
Preverjanje ro
č
-
ne brizgalne pi-
štole
Ro
č
na brizgalna pištola
Preverite, ali ro
č
na brizgalna pištola trdno zapre.
Preverite funkcijo zaš
č
ite pred nehoteno uporabo.
Pokvarjeno ro
č
no brizgalno pištolo zamenjajte.
Uporabnik
Preverjanje viso-
kotla
č
nih gibkih
cevi
Izstopni vodi, gibke cevi k de-
lovni napravi
Cevi preglejte glede poškodb. Poškodovane cevi
takoj zamenjajte. Nevarnost nesre
č
!
Uporabnik
Preverjanje pri-
klju
č
nega kabla
z omrežnim vti-
č
em
Elektri
č
ni priklju
č
ek z vti
č
em/
vti
č
nico
Preverite priklju
č
ni kabel z omrežnim vti
č
em gle-
de poškodb. Poškodovan priklju
č
ni kabel naj po-
oblaš
č
en uporabniški servis/elektro strokovnjak
takoj zamenja.
Uporabnik
tedensko ali po 40
obratovalnih urah
Preverjanje sta-
nja olja
Posoda za olje na
č
rpalki
Č
e je olje motno, ga morate zamenjati.
Uporabnik
Preverjanje nivo-
ja olja
Posoda za olje na
č
rpalki
Preverite nivo olja v
č
rpalki. Po potrebi olje dolijte
(naro
č
. št. 6.288-016).
Uporabnik
Č
iš
č
enje sita
Sito v vhodu za vodo
Glejte poglavje "
Č
iš
č
enje sit".
Uporabnik
mese
č
no ali po
200 obratovalnih
urah
Č
iš
č
enje in pre-
verjanje vžigal-
nih elektrod
Vžigalne elektrode v pokrovu
preto
č
nega grelnika
Odvijte dovod goriva, demontirajte držalo elek-
trod in elektrode o
č
istite. Po skici na naslednji
strani preverite nastavitev elektrod in jih po po-
trebi nastavite.
Uporabnik
po navodilih
Preverjanje
č
r-
palke
Visokotla
č
na
č
rpalka
Preverite tesnost
č
rpalke. Pri ve
č
kot 3 kapljicah
na minuto pokli
č
ite uporabniški servis.
Uporabnik
Preverjanje no-
tranjih oblog
Celotna naprava
Napravo vklopite z brizgalno cevjo brez visoko-
tla
č
ne šobe.
Č
e obratovalni tlak na manometru
naprave naraste nad 3 MPa, se mora iz naprave
odstraniti apnenec. Enako velja,
č
e se pri obrato-
vanju brez visokotla
č
nega voda (voda prosto iz-
teka skozi visokotla
č
ni izhod) izmeri obratovalni
tlak nad 0,7–1 MPa.
Uporabnik
po navodilih
za odstranje-
vanje apnen-
ca
Č
iš
č
enje sita
Sito v varovalu proti pomanjka-
nju vode
Glejte poglavje "
Č
iš
č
enje sit".
Uporabnik
vsakih 6 mesecev
ali po 1000 obra-
tovalnih urah
Zamenjava olja Visokotla
č
na
č
rpalka
Izpustite olje. Dolijte 1 l novega olja (naro
č
. št.
6.288-016). Preverite polnilni nivo v posodi za
olje.
Uporabnik
Preverjanje,
č
i-
š
č
enje
Celotna naprava
Vizualna kontrola naprave, preverite tesnost vi-
sokotla
č
nih priklju
č
kov in prelivnega ventila, pre-
verite visokotla
č
no gibko cev in tla
č
ni zbiralnik,
o
č
istite / zamenjajte filter za gorivo, odstranite
saje / apnenec z grelne spirale, o
č
istite / zame-
njajte vžigalne elektrode in šobo gorilnika, nasta-
vite gorilnik.
Uporabniški
servis
enkrat na leto
Varnostni pre-
gled
Celotna naprava
Varnostni pregled je treba opraviti v skladu z
ustreznimi nacionalnimi predpisi zakonodajalca
za škropilnike teko
č
in.
Strokovnjak
periodi
č
no najka-
sneje vsakih 5 let
Preverjanje tlaka Celotna naprava
Preverite tlak v skladu z dolo
č
ili proizvajalca.
Strokovnjak
322
SL
-
10
S pristojno Kärcher prodajalno lahko sklenete vzdrževalno po-
godbo za napravo.
Slika 1 - poz. 3
Zaprite dovod vode.
Z naprave odvijte dovodno cev za vodo.
Z izvija
č
em porinite sito iz priklju
č
ka.
Č
iš
č
enje sita
V nasprotnem zaporedju ga ponovno montirajte.
Snemite obložne plo
č
evine.
Z varnostnega bloka odvijte kotnik.
Vijak M8x30 uvijte v sito.
Vijak in sito izvlecite s kleš
č
ami.
Č
iš
č
enje sita
V nasprotnem zaporedju ga ponovno montirajte.
Vžigalne elektrode se morajo nastaviti po slede
č
ih podatkih:
Pri oblogah v cevovodih naraste upor pretoka, tako da se lahko
sproži tla
č
no stikalo.
Nevarnost
Nevarnost eksplozije zaradi gorljivih plinov! Med odstranjeva-
njem apnenca je prepovedano kajenje. Poskrbite za dobro pre-
zra
č
evanje.
Nevarnost
Nevarnost razjedanja zaradi kisline! Nosite zaš
č
itna o
č
ala in za-
š
č
itne rokavice.
Za odstranjevanje se smejo po zakonskih predpisih uporabljati le
preizkušena raztopila za kotlovec s kontrolnim znakom.
–
RM 100 (naro
č
. št. 6.287-008) raztaplja apnenec in enostav-
ne spojine iz apnenca in ostankov pralnega sredstva.
–
RM 101 (naro
č
. št. 6.287-013) raztaplja obloge, ki jih ni mo-
žno odstraniti z RM 100.
20 litrsko posodo napolnite s 15 l vode.
Prilijte en liter raztopila za kotlovec.
Vodno cev priklopite direktno na glavo
č
rpalke in prosti konec
obesite v posodo.
Priklju
č
eno brizgalno cev vtaknite brez šobe v posodo.
Odprite ro
č
no brizgalno pištolo in je med odstranjevanjem
apnenca ne zapirajte.
Stikalo naprave obrnite na "Vklop gorilnika", da se doseže ca.
40 °C.
Napravo izklopite in pustite stati 20 minut. Ro
č
na brizgalna pi-
štola mora ostati odprta.
Nato napravo s
č
rpalko popolnoma izpraznite.
Opozorilo:
Priporo
č
amo, da za zaš
č
ito pred korozijo in nevtrali-
ziranje ostankov kisline nato iz posode za
č
istilo skozi napravo
pre
č
rpate alkalno raztopino (npr. RM 81).
Naprava se mora postaviti v pred zmrzaljo varnem prostoru. Ob
nevarnosti zmrzali, npr. pri inštalaciji zunanj, se mora naprava iz-
prazniti in izprati s sredstvom proti zamrznitvi.
Dovodno cev za vodo in visokotla
č
no cev odvijte.
Napravo pustite te
č
i maks. 1 minuto, da se
č
rpalka in cevi iz-
praznejo.
Odvijte dovod na dnu kotla in pustite, da se grelna spirala iz-
prazni.
Opozorilo:
Upoštevajte navodila za uporabo proizvajalca sred-
stva proti zmrzovanju.
V posodo s plovcem do vrha napolnite standardno sredstvo
proti zamrznitvi.
Pod visokotla
č
ni izhod postavite lovilno posodo.
Napravo vklopite in pustite te
č
i tako dolgo, da varovalo proti
pomanjkanju vode v posodi s plovcem reagira in izklopi na-
pravo.
Tako se doseže tudi dolo
č
ena zaš
č
ita pred korozijo.
Vzdrževalna pogodba
Č
iš
č
enje sit
Sito v vhodu za vodo
Sito v varovalu proti pomanjkanju vode
Nastavitev elektrod
A
B
C
a
HDS 9/14
4,5±0,5
3,5±0,5
3+0,5
60°
HDS 12/14
3,5±0,5
3,5±0,5
3+0,5
60°
2.
1.
A
B
C
a
Odstranitev apnenca
Izvedba
Zaš
č
ita pred zamrznitvijo
Izpust vode
Izplakovanje naprave s sredstvom proti zmrznitvi
323
SL
-
11
Nevarnost
Nevarnost poškodb! Pred vsemi vzdrževalnimi deli in popravili je
treba izklopiti glavno stikalo oz. izvle
č
i Cekon vti
č
.
*
Opozorilo
Napravo izklopite in nato vklopite, da deblokirate motnjo gorilnika.
**
Pomo
č
pri motnjah
Motnja
Možen vzrok
Odprava
Izvajalec
Naprava ne te
č
e, kontrolna
lu
č
ka pripravljenosti za obra-
tovanje (F) ne sveti
Ni napetosti v napravi.
Preverite elektri
č
no omrežje.
Elektrikar
Varnostno stikalo je sproženo.
Stikalo naprave na kratko izklopite in nato po-
novno vklopite.
Uporabnik
Varovalka v krmilnem krogu (F3) je
pregorela. Varovalka se nahaja v
krmilnem transformatorju (T2).
Vstavite novo varovalko,
č
e ponovno pregori,
odstranite vzrok preobremenjenosti.
Uporabniški servis
Pokvarjeno je tla
č
no stikalo HD (vi-
sok tlak) ali ND (nizek tlak).
Preverite tla
č
no stikalo.
Uporabniški servis
Pokvarjen je
č
asovni (Timer) mo-
dul (A1).
Preverite priklju
č
ke, po potrebi jih zamenjaj-
te.
Uporabniški servis
Termostat dimnih plinov (B8) se je
sprožil.
Pustite napravo, da se ohladi. Deblokirajte
termostat dimnih plinov (B8). Odpravite vzrok
motnje.
Uporabniški servis
+ Kontrolna lu
č
ka pregretja
motorja (G) sveti
Sprožilo se je termotipalo (WS) v
motorju ali zaš
č
itno tokovno stikalo
(F1).
Odpravite vzrok preobremenjenosti.
Uporabniški servis
Varovalo proti pomanjkanju vode v
posodi s plovcem je reagiralo.
Odpravite vzrok pomanjkanje vode.
Uporabnik
Gorilnik ne vžge ali med
obratovanjem plamen uga-
sne
Regulator temperature (B) je na-
stavljen prenizko.
Regulator temperature nastavite višje.
Uporabnik
Stikalo naprave ni nastavljeno na
gorilnik.
Vklopite gorilnik.
Uporabnik
Varovalo proti pomanjkanju vode v
zaš
č
itnem bloku je izklopilo.
Zagotovite zadostno dovajanje vode. Preve-
rite tesnost naprave.
Uporabnik
Kontrolna lu
č
ka motnje goril-
nika (E) zasveti.*
Posoda za gorivo je prazna.
Napolnite gorivo.
Uporabnik
Filter za gorivo je zamašen.
O
č
istite filter za gorivo, v ta namen ga izvijte,
o
č
istite in ponovno uvijte.
Uporabnik
Fotocelica za nadzor plamena je
napa
č
no usmerjena ali pokvarjena.
Preverite pravilen nased fotocelice. **
Uporabnik
Ni vžigalne iskre (ugotovi se skozi
opazovalno steklo na pokrovu go-
rilnika).
Preverite razmik elektrod, vžigalni transfor-
mator in vžigalni kabel. Popravite razmik ali
zamenjajte pokvarjene dele.
Č
e je potrebno,
jih o
č
istite.
Uporabniški servis
Motor gorilnika je blokiran.
Odpravite blokado. Odstranite
č
ep (I) na
upravljalnem polju in deblokirajte zaš
č
itno to-
kovno stikalo.
Č
ep ponovno vstavite.
Uporabniški servis
Motnja na
č
rpalki za gorivo ali na
magnetnem ventilu za gorivo.
Preverite dele in pokvarjene zamenjajte.
Uporabnik
324
SL
-
12
Motnja
Možen vzrok
Odprava
Izvajalec
Kontrolna lu
č
ka zaš
č
ite pred
poapnenjem (H) sveti
Meh
č
alec je porabljen.
Meh
č
alec dolijte.
Uporabnik
Č
rpa se premalo ali ni
č
č
istila Dozirni ventil je v položaju "0".
Nastavite dozirni ventil za
č
istilo.
Uporabnik
Filter za
č
istilo je zamašen ali pa je
rezervoar prazen.
O
č
istite oz. napolnite.
Uporabnik
Sesalne cevi, dozirni ali magnetni
ventil za
č
istilo so netesni ali zama-
šeni.
Preverite, o
č
istite.
Uporabnik
Pokvarjena elektronika ali magne-
tni ventil.
Zamenjajte
Uporabniški servis
Naprava ne dosega polnega
tlaka
Šoba je izprana.
Šobo zamenjajte.
Uporabnik
Rezervoar
č
istila je prazen.
Nalijte
č
istilo.
Uporabnik
Ni dovolj vode.
Zagotovite zadostno dovajanje vode.
Uporabnik
Sito na vhodu za vodo je zamaše-
no.
Preverite, snemite in o
č
istite sito.
Uporabnik
Dozirni ventil za
č
istilo je netesen. Preverite in zatesnite.
Uporabnik
Sesalne cevi za
č
istilo so netesne. Zamenjajte
Uporabnik
Ventil plovca je zataknjen.
Preverite gibljivost.
Uporabnik
Varnostni ventil je netesen.
Preverite nastavitev, po potrebi vgradite novo
tesnilo.
Uporabniški servis
Regulirni ventil je netesen ali pre-
nizko nastavljen.
Preverite dele ventila,
č
e so poškodovani, jih
zamenjajte,
č
e so umazani, pa o
č
istite.
Uporabniški servis
Magnetni ventil za tla
č
no razbre-
menitev je pokvarjen.
Zamenjajte magnetni ventil.
Uporabniški servis
Visokotla
č
na
č
rpalka ropota,
manometer mo
č
no niha
Dušilnik nihanja je pokvarjen.
Dušilnik nihanja zamenjajte.
Uporabniški servis
Vodna
č
rpalka sesa zrak.
Preverite sesalni sistem in odpravite nete-
snost.
Uporabnik
Naprava pri odprti ro
č
ni bri-
zgalni pištoli stalno vklaplja in
izklaplja
Šoba v brizgalni cevi je zamašena. Preverite, o
č
istite.
Uporabnik
Naprava je poapnena.
Glejte poglavje "Odstranjevanje apnenca".
Uporabnik
Preklopna to
č
ka prelivnika se je
premaknila.
Prelivnik se mora na novo nastaviti.
Uporabniški servis
Sito v varovalu proti pomanjkanju
vode je zamašeno.
Preverite, snemite in o
č
istite sito.
Uporabnik
Naprava pri zaprti ro
č
ni bri-
zgalni pištoli ne izklopi
Č
rpalka ni popolnoma odzra
č
ena. Stikalo naprave postavite na "0" in ro
č
no bri-
zgalno pištolo vlecite tako dolgo, dokler iz
šobe izstopa teko
č
ina. Potem ponovno vklo-
pite napravo. Ta postopek ponavljajte tako
dolgo, da se doseže popoln obratovalni tlak.
Uporabnik
Varnostni ventil oz. tesnilo varno-
stnega ventila je pokvarjeno.
Zamenjajte varnostni ventil oz. tesnilo varno-
stnega ventila.
Uporabniški servis
325
SL
-
13
Č
istila olajšajo postopek
č
iš
č
enja. V tabeli je prikazan izbor
č
istil.
Pred uporabo
č
istil morate obvezno prebrati opozorila na emba-
laži.
* = le za kratko uporabo, metoda v dveh korakih, spiranje s
č
isto
vodo
** = ASF = lahko razgradljivo
*** = za predbrizganje je primeren Foam-Star 2000
Pribor
Č
istila
Podro
č
je uporabe
Onesnaženost, na
č
in uporabe
Č
istilo
pH vrednost (ca.) 1 %-
raztopina v vodovodni
vodi
Avtoservisi, bencinske
č
r-
palke, špedicije, vozni
parki
Prah, umazanija s ceste, mineral-
na olja (na lakiranih površinah)
RM 55 ASF **
8
RM 22/80-prah ASF
12/10
RM 81 ASF
9
RM 803 ASF
10
RM 806 ASF
11
Konzerviranje vozila
RM 42 Mrzel vosek za visokotla
č
ni
č
istilnik
8
RM 820 Vro
č
vosek ASF
7
RM 821 Brizgalni vosek ASF
6
RM 824-Super - biserni vosek ASF
7
RM 44 Gel - platiš
č
no
č
istilo
9
Industrija za predelavo
kovine
Olja, maš
č
obe, prah in podobna
umazanija
RM 22 Prah ASF
12
RM 55 ASF
8
RM 81 ASF
9
RM 803 ASF
10
RM 806 ASF
12
RM 31 ASF (mo
č
na onesnaženost)
12
RM 39 - teko
č
( z zaš
č
ito pred korozijo)
9
Obrati za predelavo živil Rahla do srednja onesnaženost,
maš
č
obe/olja, velike površine
RM 55 ASF
8
RM 81 ASF
9
RM 882 Gel-pena OSC
12
RM 58 ASF (pene
č
e
č
istilo)
9
RM 31 ASF *
12
Dimna smola
RM 33 *
13
Č
iš
č
enje in dezinficiranje
RM 732
9
Dezinficiranje
RM 735
7...8
Apnenec, mineralne obloge
RM 25 ASF *
2
RM 59 ASF (
č
iš
č
enje s peno)
2
Sanitarije ***
Apnenec, urinski kamen, mila itd. RM 25 ASF * (osnovno
č
iš
č
enje)
2
RM 59 ASF (
č
iš
č
enje s peno)
2
RM 68 ASF
5
326
SL

