Karcher HDS 12-14-4 ST Gas: !
!: Karcher HDS 12-14-4 ST Gas
-
14
–
Aggregatets värmeanordning är en pannanläggning. Beakta
lokala gällande föreskrifter vid uppställning.
–
Använd endast utprovade skorstenar/avgasledningar.
–
Dragning av gasledningar och anslutning av aggregatet till
gasförsörjningen får endast utföras av för arbetsområdet auk-
toriserat företag.
–
Inställningar och reparationer på gasbrännaren får endast ut-
föras av utbildade montörer från Kärcher kundservice.
–
I gasledningen, som skall ha en nominell vidd på minst 1 tum,
skall finnas en manometer och en spärrventil.
–
På grund av de vibrationer som förorsakas av högtryckspum-
pen måste anslutningskopplingen mellan den stela gasled-
ningen och aggregatet utföras med flexibel gasslang.
–
Gasledningar som är längre än 10 meter måste ha en nomi-
nell vidd på 1 1/2 tum eller mer. Gasanslutningen på aggre-
gatet är 1 tum.
Fara
När den flexibla gasslangen skruvas fast på brännaren måste
man hålla fast anslutningsnippeln med en u-nyckel SW 36. An-
slutningsnippeln får inte förskjutas i förhållande till brännarhuset.
Tätning av gängor skall utföras med tätningsmedel, godkända av
DVGW [Deutsche Vereinigung des Gas- und Wasserfaches - en
branschorganisation för gas och vatten]. Efter anslutning måste
kopplingspunkten undersökas med spray för läckagesökning,
godkänd av DVGW .
Gasledningens grovlek måste beräknas i enlighet med DVGW
TRGI 1986 eller TRF 1996. Den nominella vidden på aggregatets
gasanslutning motsvarar inte automatiskt den nominella vidden
på rörledningen. Så väl gasledningens dimension som dess in-
stallering måste motsvara gällande normer och föreskrifter.
–
Varje aggregat måste anslutas till en egen kamin.
–
Avgasledningen skall utföras enligt lokalt gällande föreskrifter
och i samråd med ansvarig sotarmästare.
Gasaggregat utan strömningssäkring, där alla delar som står un-
der övertryck omspolas av avgasvägens förbränningsluft. B23-in-
stallationen skapar möjlighet att ansluta aggregatet till en vanlig
enkanalsskorsten enligt DIN 18160 och sedan använda anlägg-
ningen med rumsluften. En förutsättning är att skorstenen är för-
beredd för anslutning av brännarutrustning (t.ex. att skorstenen
sanerats genom indragning av rostfritt rör).
Gasaggregat med förbränningslufts- och avgasledning lodrätt
över taket. Öppningarna befinner sig nära varandra inom samma
tryckområde.
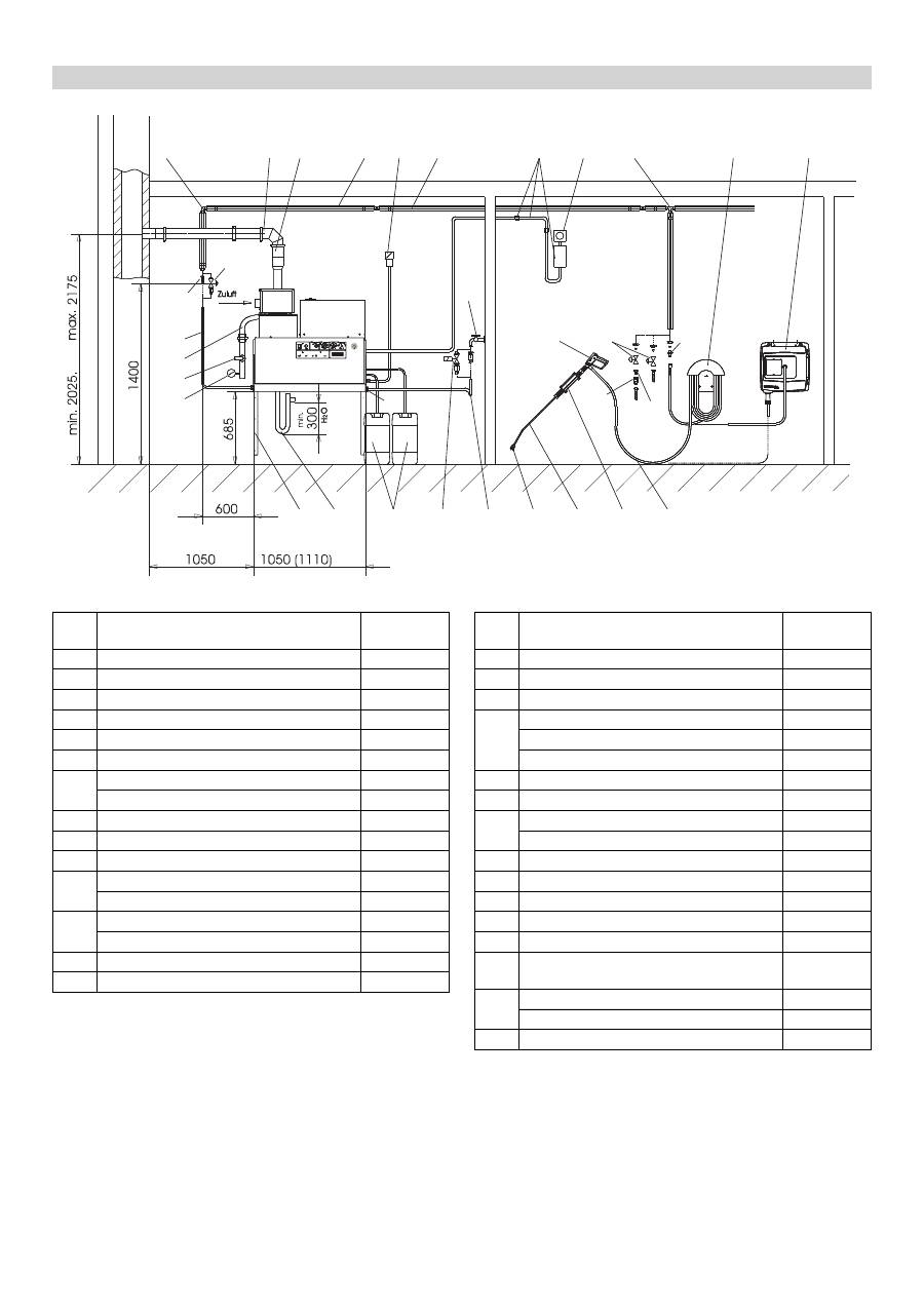
Anläggningsinstallering
Endast för behörig personal!
Allmänt
Gas allmänt
Gasledningar
Luft-/avgasstyrning
!
Gasaggregat med avgasanläggning som tar bort förbrän-
ningsluften från uppställningsutrymmet
Typ B23
Gasaggregat med avgasanläggning där förbränningsluften
leds ut genom ett slutet system
Typ C33
196
SV
-
15
Gasaggregat med förbränningslufts- och avgasledning för anslut-
ning till ett luft-avgas-system.
Gasaggregat med delad förbränningslufts- och avgasledning.
Öppningarna befinner sig inom olika tryckområden.
Observera:
För att uppnå föreskrivna förbränningsvärden måste
det kamindrag som anges under Tekniska data följas.
Kondensatledningen måste förbindas direkt med kondensatan-
slutningen, enligt vattenlåsprincip. Vattenlåshöjden måste vara
30 cm. Vattenlås ingår inte i leveransen. Kondensatledningen får
inte vara fast ansluten till kanalisationen. Kondensatet måste fritt
kunna rinna ner i tratt eller neutraliseringsbehållare.
–
Före montering måste kontrolleras att väggen har tillräcklig
bärkraft. Medföljande monteringsmaterial är lämpligt för be-
tong. För hålbetong-, tegelsten- och gasbetongväggar skall
passande plugg och skruvar användas, t.ex. injektionsankare
(se ritning för borrbild).
–
Bild 3 - pos. 19 och 25
Aggregatet får inte ha stel anslutning till vattenlednings- och
högtrycksledningsnätet. Anslutningsslangarna måste monte-
ras.
–
Bild 3 - A
En spärrkran skall finnas mellan vattenledningsnätet och an-
slutningsslangen.
Vid montering av högtrycksledningar ska föreskrivna nationella
riktlinjer för elinstallationer beaktas.
–
Tryckfallet i rörledningen måste ligga under 1,5 MPa.
–
Den färdiga rörledningen måste kontrolleras med 32 MPa.
–
Rörledningarnas isolering måste vara värmebeständiga upp
till 100 °C .
Bild 3 - pos. 20
Behållare skall placeras på sådant sätt att rengöringsmedlets
undre nivåspegel inte ligger lägre än 1,5 m under aggregatets
botten och den övre nivåspegeln inte befinner sig över aggrega-
tets botten.
Bild 3 - B och pos. 19
Anslut vatteningången till vattenledningsnätet med passande
vattenslang.
–
Vattenförsörjningen måste minst uppgå till 1300 l/h vid minst
0,1 MPa.
–
Vattentemperaturen måste ligga under 30 °C.
Typ C43
Typ C53
Kondensatutflöde
Väggmontering
Montering av högtrycksledningarna
Uppställning rengöringsmedelsbehållare
Vattenförsörjning
197
SV
-
16
Varning
Maximalt tillåten nätimpedans på den elektriska anslutnings-
punkten (se Tekniska data) får inte överskridas. Vid oklarheter
gällande den aktuella nätimpedansen som gäller för din anslut-
ningspunkt, ta kontakt med ditt energiförsörjningsföretag.
Observera:
Tillkopplingsåtgärder skapar kortvariga spännings-
fall. Vid ogynnsamma nätförhållanden kan störningar på andra
apparater uppträda.
–
Anslutningsvärde, se Tekniska data och typskylten.
–
Den elektriska anslutningen måste utföras av en elektriker
och motsvara IEC 60364-1.
–
Strömförande delar, kablar och aggregat inom arbetsområdet
måste vara vattentäta i felfritt tillstånd.
För att undvika elolyckor rekommenderar vi att endast använda
nätuttag som är kopplade till en jordfelsbrytare (max. 30 mA no-
minella utlösningsströmstyrka).
Gör elektrisk anslutning.
En låsbar huvudströmbrytare (bild 3 - pos. 6) skall monteras på
lättåtkomlig plats så att den stationära högtryckstvätten kan
stängas av.
Kontaktöppningsbredden hos huvudströmbrytaren måste vara
minst 3 mm.
Montera Cekonkontakt på aggregatets anslutningskabel.
Stick in Cekonkontakten i eluttaget.
Cekonkontakten måste vara lätt att nå när den stationära hög-
tryckstvätten skall stängas av och skiljas från nätet.
Kontrollera gasanslutning.
Varning
Överhettning kan ge skador på aggregatet.
Anslut hävert på tankbotten och fyll med vatten.
Fyll tanken med 4 liter vatten via kaminöppningen.
Kapa bort spetsen på locket till oljebehållaren på vattenpum-
pen före första användning.
Bild 3 - pos. 14
Förbind högtrycksslangen med handspruta och strålrör och
anslut till högtrycksutgången på aggregatet eller till hög-
trycksledningsnätet.
Fäst dysmunstycket (b) med mantelmutter (a) på strålröret
(d). Var noga med att tätningsringen (c) ligger korrekt i spåret.
Elanslutning
Fast installerad elanslutning
Elanslutning med kontakt/uttag
Första ibruktagning
Aggregatet har hos producenten konstruerats som naturgasag-
gregat, inställt på gastyp G 20, och som flytgasaggregat, inställt
på G 31. Vid omställning av naturgasaggregatet till G 25 eller
andra (se typsskylt) naturgaser, eller flytgasaggregatet till G 30
eller andra (se typskylt) flytgaser, så skall naturgas-avgasvär-
den hos naturgasaggregatet, och flytgasvärden hos flytgasag-
gregatet, ställas in enligt serviceinformation.
Den nyinställda gastypen fylls i på den medföljande tomma skyl-
ten och denna placeras sedan i skriftfältet på aggregatets hö-
gersida. Samtidigt måste då den hos producenten monterade
skylten med uppgift G 20 (naturgasaggregat) eller G 31 (flytgas-
aggregat) tas bort.
Åtgärder före idrifttagning
a
b
c
d
198
SV
-
17
Tag bort fjäder (c) från lockstaget (b) till avhärdningsbehålla-
ren (a).
Fyll behållare med Kärcher-avhärdningsvätska RM 110
(best.nr. 2.780-001).
Fara
Farlig elektrisk spänning! Inställning får endast göras av elektri-
ker.
Ta reda på aktuell vattenhårdhet:
–
hos lokalt vattenverk,
–
med testutrustning (best.nr. 6.768-004).
Lyft bort huv.
Öppna kopplingsskåp på manöverpanelen.
Ställ in vridpotetiometer (a) efter aktuell vattenhårdhet. Rätt
inställning kan avläsas i tabellen.
Exempel:
Ställ in skalvärde 6 på vridpotentiometern vid vattenhårdhet på
15 °dH. Detta ger en paus på 31 sekunder vilket innebär att mag-
netventilen öppnar kort var 31:a sekund.
Stand by - perioden ställs in på det stora kretskortet som sitter på
elskåpets vänstra sida.
Stand by - tiden har vid tillverkningen ställts in på minimiperioden
två minuter och kan utökas till som mest åtta minuter.
Skydd mot förkalkning
Vattenhårdhet (°dH)
5
10
15
20
25
Skala på vridpotentionmeter
8
7
6
5
4,5
Pausperiod (sekunder)
50
40
31
22
16
b
c
a
a
Justera stand by - period
8 7 6 5 4 3 2 1
S2
min.
max.
199
SV
-
18
Bild 3
Installeringsmaterial
1
2
3
5
6
7
8
9
10
12
13
A
15
11b
11a
11c
11a
25
21
22
23
11b
24
4
20
19a
19
18
17
16
14
11d
B
Pos. Installeringsmaterial
Beställ-
ningsnr.
1
Vinkelfäste
6.386-356
2
Avgasledningssats, horisontell, 150 mm
6.526-231
3
Avgasledningssats, vertikal, 150 mm
6.526-232
4
Delsats hävert
2.640-422
5
Värmeisolering
6.286-114
6
Huvudströmbrytare
6.631-455
7
Rörledningssats, galvat stål
2.420-004
Rörledningssats, rostfritt stål
2.420-006
8
Delsats fjärrstyrning
2.744-008
9
Delsats nödstoppsreglage
2.744-002
10
T-skruvfäste
6.386-269
11a
Anslutningsfästen, mässing
2.638-180
Anslutningsfästen, rostfritt stål
2.638-181
11b
Spärrkran NW 8, galvat stål
4.580-144
Spärrkran NW 8, rostfritt stål
4.580-163
11c
Snabbkoppling fast del
6.463-025
11d
Snabbkoppling lös del
6.463-023
Pos. Installeringsmaterial
Beställ-
ningsnr.
12
Slanghållare
2.042-001
13
Slangtrumma
2.637-238
14
Högtrycksslang 10 m
6.388-083
15
Handspruta Easypress
4.775-463
Vridreglage HDS 9/16-4
4.775-470
Vridreglage HDS 12/14-4
4.775-471
16
Strålrörsfäste
2.042-002
17
Spolrör
4.760-550
18
Dysmunstycke HDS 9/16-4
2.883-402
Dysmunstycke HDS 12/14-4
2.883-406
19
Vattenslang
4.440-282
19a
Magnetventil vattentillförsel
4.743-011
20
Tank för rengöringsmedel, 60 l
5.070-078
21
Gasslang R1“
6.388-228
22
Gasspärrkran R1“
6.412-389
23
Manometer, gas (observera! slutventil
monteras på uppställningsplatsen.)
6.412-059
24
Delsats väggfäste
2.053-005
Delsats golvram
2.210-008
25
Högtrycksslang
6.389-028
200
SV
-
19
Härmed försäkrar vi att nedanstående betecknade maskin i än-
damål och konstruktion samt i den av oss levererade versionen
motsvarar EU-direktivens tillämpliga grundläggande säkerhets-
och hälsokrav. Vid ändringar på maskinen som inte har godkänts
av oss blir denna överensstämmelseförklaring ogiltig.
5.957-648
Undertecknade agerar på order av och med fullmakt från före-
tagsledningen.
Dokumentationsbefullmäktigad:
S. Reiser
Alfred Kärcher GmbH & Co. KG
Alfred-Kärcher-Str. 28 - 40
71364 Winnenden (Germany)
Tel.: +49 7195 14-0
Fax: +49 7195 14-2212
Winnenden, 2014/02/01
I respektive land gäller de garantivillkor som publicerats av våra
auktoriserade distributörer. Eventuella fel på aggregatet repare-
ras utan kostnad under förutsättning att det orsakats av ett mate-
rial- eller tillverkningsfel.
Försäkran om EU-överensstämmelse
Produkt:
Högtryckstvätt
Typ:
1.251-xxx
Tillämpliga EU-direktiv
2009/142/EG
2006/42/EG (+2009/127/EG)
2004/108/EG
Tillämpade harmoniserade normer
EN 55014–1: 2006+A1: 2009+A2: 2011
EN 55014–2: 1997+A1: 2001+A2: 2008
EN 60335–1
EN 60335–2–79
EN 62233: 2008
EN 61000–3–2: 2006+A1: 2009+A2: 2009
HDS 12/14:
EN 61000–3–3: 2008
HDS 9/16:
EN 61000–3–11: 2000
Tillämpade specifikationer:
QA 195 (ej LPG)
Namn på nämnd instans:
Till 2009/142/EG
GASTEC
Wilmersdorf 50
7327 AC Apeldoorn
Känneteckningsnr 0063
Garanti
CEO
Head of Approbation
201
SV
-
20
Kundservice
Anläggningstyp:
Tillverkningsnr.
Ibruktagning den:
Kontroll genomförd den:
Resultat:
Underskrift
Kontroll genomförd den:
Resultat:
Underskrift
Kontroll genomförd den:
Resultat:
Underskrift
Kontroll genomförd den:
Resultat:
Underskrift
202
SV
-
1
Lue tämä alkuperäisiä ohjeita ennen laitteesi käyttä-
mistä, säilytä käyttöohje myöhempää käyttöä tai mah-
dollista myöhempää omistajaa varten.
–
Lue turvaohjeet nro 5.956-309 ehdottomasti ennen laitteen
ensimmäistä käyttökertaa!
–
Jos havaitset kuljetusvaurioita, ota välittömästi yhteys jälleen-
myyjään.
Huomautuksia materiaaleista (REACH)
Ajantasaisia tietoja ainesosista löytyy osoitteesta:
www.kaercher.com/REACH
Vaara
Välittömästi uhkaava vaara, joka aiheuttaa vakavan ruumiinvam-
man tai johtaa kuolemaan.
몇
Varoitus
Mahdollisesti vaarallinen tilanne, joka voi aiheuttaa vakavan ruu-
miinvamman tai voi johtaa kuolemaan.
Varo
Mahdollisesti vaarallinen tilanne, joka voi aiheuttaa lievän ruu-
miinvamman tai aineellisia vahinkoja.
Epäasianmukaisesti käytettyinä suurpainesuihkut voi-
vat olla vaarallisia. Suihkua ei saa suunnata ihmisiin,
eläimiin, aktiivisiin sähkövarusteisiin tai itse laittee-
seen.
–
Kunkin maan lainlaatijan säätämiä, korkeapainepesulaitteita
koskevia kansallisia määräyksiä on noudatettava.
–
Kunkin maan lainlaatijan säätämiä, työturvallisuutta koskevia
kansallisia määräyksiä on noudatettava. Korkeapainepesu-
laitteet on tarkastettava säännöllisin väliajoin ja tarkastuksen
tulokset on tallennettava kirjallisesti.
–
Laitteen vedenlämmityslaitteisto on poltinlaitteisto. Poltinlait-
teistot on säännöllisesti tarkastettava kunkin maan lainsäätä-
jän säätämien määräysten mukaisesti.
–
Kun laitetta käytetään suljetuissa tiloissa, pakokaasujen vaa-
rattomasta johtamisesta ulkoilmaan on huolehdittava (pako-
kaasuputki ilman sulkupeltiä). Lisäksi riittävä raitisilman
saanti on oltava varmistettuna.
–
Noudata turvaohjeita (yleensä pakkauksen etiketissä), jotka
on liitetty käytettävien puhdistusaineiden mukaan.
Ennen laitteen käyttöönottoa olisi selvitettävä paikallisen kaasun-
toimittajan ja aluepelastuslaitoksen nuohoustoimen vaatimukset.
Asennustyössä on noudatettava rakennusalan, elinkeinotoimin-
nan harjoittamisen ja immissiosuojan määräyksiä. Viittaamme
seuraaviin määräyksiin, ohjeisiin ja standardeihin:
–
Laitteen saa asentaa vain alan ammattilainen kansallisten
määräysten mukaisesti.
–
Sähköasennustöissä on noudatettava kansallisia määräyksiä.
–
Kaasuasennustöissä on noudatettava kansallisia määräyksiä.
–
Vain kaasu- ja vesilaitosten valtuuttama ammattiliike saa suo-
rittaa kaasujohtojen ja kaasupuolen liitäntöjen asennukset.
–
Vain Kärcher-asiakaspalvelun kouluttama asentaja saa suo-
rittaa polttimen säädöt, kunnossapito- ja korjaustyöt.
–
Savutorven suunnittelussa on noudatettava paikallisia mää-
räyksiä.
Sisällysluettelo
Ympäristönsuojelu. . . . . . . .
FI
. . 1
Käyttöohjeessa esiintyvät symbolit
FI
. . 1
Laitteessa olevat symbolit . .
FI
. . 1
Yleiset turvaohjeet. . . . . . . .
FI
. . 1
Käyttötarkoitus . . . . . . . . . .
FI
. . 2
Toiminta. . . . . . . . . . . . . . . .
FI
. . 2
Turvalaitteet . . . . . . . . . . . .
FI
. . 2
Laitteen osat . . . . . . . . . . . .
FI
. . 3
Käyttöönotto . . . . . . . . . . . .
FI
. . 4
Käyttö . . . . . . . . . . . . . . . . .
FI
. . 4
Käytön lopettaminen . . . . . .
FI
. . 6
Seisonta-aika . . . . . . . . . . .
FI
. . 6
Säilytys . . . . . . . . . . . . . . . .
FI
. . 6
Kuljetus . . . . . . . . . . . . . . . .
FI
. . 6
Tekniset tiedot . . . . . . . . . . .
FI
. . 7
Hoito ja huolto . . . . . . . . . . .
FI
. . 9
Häiriöapu. . . . . . . . . . . . . . .
FI
. 11
Tarvikkeet . . . . . . . . . . . . . .
FI
. 13
Laitteiston asennus . . . . . . .
FI
. 14
EU-standardinmukaisuustodistus
FI
. 19
Takuu. . . . . . . . . . . . . . . . . .
FI
. 19
Asiakaspalvelu . . . . . . . . . .
FI
. 20
Ympäristönsuojelu
Pakkausmateriaalit ovat kierrätettäviä. Älä käsittelee
pakkauksia kotitalousjätteenä, vaan toimita ne jättei-
den kierrätykseen.
Käytetyt laitteet sisältävät arvokkaita kierrätettäviä
materiaaleja, jotka tulisi toimittaa kierrätykseen. Paris-
toja, öljyjä ja samankaltaisia aineita ei saa päästää
ympäristöön. Tästä syystä toimita kuluneet laitteet
asianmukaisiin keräyspisteisiin.
Huolehdi, ettei moottoriöljyä, polttoöljyä, dieseliä tai bensiiniä
pääse valumaan luontoon. Suojaa maaperää ja hävitä jäteöljy
ympäristöystävällisesti.
Kärcher-puhdistusaineet ovat helposti saostavia (ASF). Se tar-
koittaa, että öljyä liuottavan aineen toiminta ei esty. Suositelluis-
ta puhdistusaineista on luettelo kohdassa "Tarvikkeet".
Käyttöohjeessa esiintyvät symbolit
Laitteessa olevat symbolit
Yleiset turvaohjeet
Määräykset, ohjeet ja säännöt
203
FI
-
2
Työalue on laitteiston käyttöpaikalla. Työskentelypaikkoja ovat
myös kulloisenkin laitteiston asennuksen mukaan ne alueet, joi-
hin on asennettu vedenottopiste ja liitetty suihkutusvälineet.
–
Käytä sopivia suojavaatteita ja suojalaseja takaisin ruiskuval-
ta vedeltä tai lialta suojaamiseksi.
Laitteella puhdistetaan vesisuihkun avulla likaa erilaisilta pinnoil-
ta. Laite sopii erityisesti koneiden, ajoneuvojen ja julkisivujen
puhdistamiseen.
Vaara
Loukkaantumisvaara! Jos laitetta käytetään huoltoasemilla tai
muissa vastaavissa paikoissa, on noudatettava asianmukaisia
turvamääräyksiä.
–
Kylmä vesi johdetaan moottorin jäähdytyskierukan kautta ui-
murisäiliöön ja sieltä läpivirtauskuumentimen ulkovaippaan ja
edelleen korkepainepumpun imupuolelle. Uimurisäiliössä an-
nostellaan veteen pehmennin. Pumppu painaa veden ja mu-
kaan imetyn pesuaineen läpivirtauskuumentimen läpi.
Pesuaineen määrää voi säätää annosteluventtiilillä. Kaasu-
poltin lämmittää läpivirtauskuumentimen.
–
Paineveden tulo liitetään rakennuksessa olevaan painevesi-
verkkoon. Korkeapaineletku ja pesurin käsikahva liitetään
painevesiverkkoon vesiliitäntäpisteessä.
Turvalaitteet on tarkoitettu käyttäjän suojaamiseksi loukkaantu-
miselta, eikä niitä saa poistaa käytöstä, eikä niiden toimintoa saa
ohittaa.
Alivesisuoja estää korkeapainepumpun käynnistymisen, jos vet-
tä on liian vähän.
Vedenpuutesuoja estää polttimen ylikuumenemisen vedenpuu-
tetilanteissa. Poltin käy vain, kun vedensyöttö on riittävä.
Painekytkin keskeyttää laitteen toiminnan, mikäli työpaine ylittyy.
Säätöä ei saa muuttaa.
Painekytkimen toimintahäiriön sattuessa varoventtiili aukeaa.
Venttiili on säädetty ja sinetöity tehtaalla. Säätöä ei saa muuttaa.
Liekinvalvonta sammuttaa polttimen, jos polttoainetta on liian vä-
hän tai polttimessa on häiriö. Polttimen häiriöstä ilmoittava merk-
kivalo (E) syttyy.
Jos polttimen moottori kytkeytyy irti, ylijännitesuojan kytkin lauke-
aa. Korkeapainepumpun moottori on suojattu moottorinsuoja- ja
käämisuojakytkimellä.
Palokaasutermostaatti laukeaa, kun palokaasujen lämpötila ylit-
tää 320 °C. Palokaasun merkkivalo (K) syttyy.
Kattilan pohjan (> 80 °C) ja veden ulostulon (> 110 °C) enim-
mäislämpötilan rajoittimet laukeavat ja polttimen häiriöstä ilmoit-
tava merkkivalo (E) syttyy.
Palokaasupaineen kytkin kytkee polttimen pois toiminnasta, jos
palokaasujärjestelmään muodostuu liian suuri vastapaine esim.
tukoksen vuoksi.
Kun pesurin käsikahvasta on keskeytetty laitteen toiminta, käyt-
tövalmiusajan päätyttyä avautuu korkeapainejärjestelmään liitet-
ty magneettiventtiili. Venttiili pudottaa käyttöpaineen alas.
Työskentelypaikat
Henkilökohtaiset suojavarusteet
Käytä kuulosuojaimia sellaisessa puhdistus-
työssä, jossa syntyy kovaa melua.
Käyttötarkoitus
Älä päästä mineraalipitoista jätevettä valumaan maaperään, ve-
sistöön tai viemäriverkkoon. Moottorin ja auton pohjan pesu on
suoritettava tästä syystä puhdistukseen soveltuvalla ja öljyerot-
timella varustetulla paikalla.
Toiminta
Turvalaitteet
Uimurikammion alivesisuoja
Alivesisuoja-turvayksikkö
Painekytkin
Turvaventtiili
Liekinvalvonta
Ylijännitesuoja
Palokaasutermostaatti
Lämpötilan rajoitin
Palokaasupaineen kytkin
Korkeapainejärjestelmän paineen pudotus
204
FI
-
3
Kuva 1
1 Poltin
2 Painemittari
3 Syöttövesi ja siivilä
4 Korkeapaine-ulostulo
5 Kaasuliitäntä
6 Pesuaineen imuletku I
7 Pesuaineen imuletku II (lisävaruste)
8 Vedenpehmennysaineen säiliö
9 Sähköjohto
10 Uimurisäiliö
11 Ohjauspaneeli
Kuva 2
A Laitekytkin
B Lämpötilasäädin
C Pesuaineen annosteluventtiili I
D Pesuaineen annosteluventtiili II (lisävaruste)
E Polttimen häiriön merkkivalo
F Käyttövalmiuden merkkivalo
G Moottorin kuumenemisen merkkivalo
H Kalkkiutumisen merkkivalo
I
Kaasureleen vapautuspainike
J Palokaasujen termostaatin vapautuspainike
K Palokaasujen termostaatin merkkivalo
Laitteen osat
4
5
6
7
3
8
10
1
11
2
9
Ohjauspaneeli
205
FI
-
4
몇
Vaara
Loukkaantumisvaara! Laitteen, syöttöputkien, korkeapaineletkun
ja liitosten on oltava moitteettomassa kunnossa. Jos kunto ei ole
moitteeton, laitteen ja varusteiden käyttö ei ole sallittua.
–
Katso liitäntäarvot teknisistä tiedoista ja tyyppikilvestä.
–
Sähköliitännät on suoritettava sähköasentajan toimesta ja nii-
den on oltava IEC 60364-1:n mukaisia.
Käyttäjän on käytettävä laitetta tarkoituksenmukaisesti. Käyttäjä
on huomioitava paikalliset olosuhteet ja työskennellessään lait-
teen kanssa huomioitava ympäristössä oleskelevat henkilöt.
Älä koskaan jätä laitetta valvomatta niin kauan kuin se on käytössä.
Vaara
–
Kuuma vesi aiheuttaa palovammojen vaaran! Älä suuntaa ve-
sisuihkua ihmisiin tai eläimiin.
–
Kuumat laiteosat aiheuttavat palovammojen vaaran! Älä kos-
ke eristämättömiin putkiin ja letkuihin, jos käytät laitteessa
kuumaa vettä. Pidä kiinni vain suihkuputken tartuntapinnasta.
Älä koske läpivirtauskuumentimen palokaasujen poistomuh-
viin.
–
Pesuaineet aiheuttavat myrkytys- ja syöpymisvaaran! Nouda-
ta pesuaineiden käyttöohjeita. Säilytä pesuaineet poissa asi-
attomien ulottuvilta.
Vaara
Sähköiskun vaara - hengenvaara! Älä suuntaa vesisuihkua:
–
sähkölaitteisiin,
–
tähän laitteeseen
–
äläkä mihinkään työskentelyalueella olevaan sähköä johta-
vaan esineeseen.
Suihkuputkesta tuleva vesisuihku aiheuttaa takaisintyöntövoi-
man. Kulmaan taitettu suihkuputki aiheuttaa ylöspäin suuntautu-
van voiman.
Vaara
–
Loukkaantumisvaara! Voit menettää tasapainosi suihkuput-
ken työntövoimasta ja saatat horjahtaa. Suihkuputki saattaa
silloin päästä käsistäsi ja vahingoittaa ihmisiä. Katso, että sei-
sot tukevasti alustalla. Ota käsikahvasta kunnolla kiinni. Älä
sido käsikahvan liipasinta kiinni.
–
Älä suuntaa suihkua muihin ihmisiin tai itseesi vaatteiden tai
kenkien puhdistamiseksi.
–
Sinkoutuvien osien aiheuttama loukkaantumisvaara! Sinkou-
tuvat murtokappaleet tai esineet voivat loukata henkilöitä tai
eläimiä. Älä suuntaa vesisuihkua helposti rikkoontuviin tai ir-
rallaan oleviin esineisiin.
–
Onnettomuuden vaara rikkoontumisen takia! Pidä renkaisiin
ja niiden venttiileihin vähintään 30 cm välimatka.
몇
Varoitus
Terveydelle vahingolliset aineet aiheuttavat vaaran! Älä suihkuta
kohti esineitä, jotka sisältävät seuraavia terveydelle vahingollisia
aineita:
–
asbestia sisältävät materiaalit,
–
materiaalit, jotka mahdollisesti sisältävät muita terveydelle
haitallisia aineita.
Vaara
–
Vesisuihku (mahdollisesti kuuma vesisuihku) aiheuttaa va-
hingoittumisen vaaran! Laitteen käyttöön sopivat parhaiten
vain alkuperäiset Kärcher-korkeapaineletkut. Muiden letkujen
käytöstä emme ota mitään vastuuta.
–
Pesuaineet aiheuttavat terveyshaitan! Veteen mahdollisesti
sekoitetun pesuaineen vuoksi laitteesta tuleva vesi ei ole juo-
mavedeksi kelpaavaa.
–
Kuulo saattaa olla vaarassa työskennellessäsi melua aiheut-
tavien laitteiden parissa! Käytä siinä tapauksessa kuulosuo-
jaimia.
Vaara
Suihkuava, mahdollisesti kuuma vesi aiheuttaa onnettomuus-
vaaran!
Vaara
Tarkasta korkeapaineletkun kunto aina ennen käyttöä. Vaihda
vaurioitunut korkeapaineletku välittömästi.
Tarkista korkeapaineletku, putkistot, hanat ja suihkuputki en-
nen jokaista käyttöä vaurioiden varalta.
Tarkista, että letkuliitäntä on kunnolla kiinni ja tiivis.
Varo
Laitevahingon vaara, jos laitetta käytetään ilman vettä.
Tarkista pesuainesäiliön täyttötaso, lisää pesuainetta tarvitta-
essa.
Tarkista vedenpehmentimen määrä, lisää tarvittaessa.
Aseta valintakytkin (A) asentoon "0".
Sulje veden syöttöputki.
Käytä käsiruiskua niin kauan, kunnes laitteessa ei enää ole
painetta.
Sulje kaasunsyöttö.
Käyttöönotto
Sähköliitäntä
Käyttö
Turvaohjeet
!
Käyttövalmiiksi saattaminen
Kytkentä pois päältä hätätilanteessa
206
FI
-
5
Kun määräventtiiliä säädetään myötäpäivään, käyttöpaine ja
syöttömäärä kasvaa.
Kun määräventtiiliä säädetään vastapäivään, käyttöpaine ja
syöttömäärä pienenee.
Vesimäärän säädintä myötäpäivään kääntämällä vettä tulee
enemmän ja suuremmalla paineella.
Vesimäärän säädintä vastapäivään kääntämällä vettä tulee
vähemmän ja pienemmällä paineella.
Avaa veden syöttöputki.
Symboli "Moottori käynnissä"
Vedä käsikahvan liipasimesta ja aseta kytkin (A) asentoon "1"
(moottori käynnissä).
Käyttövalmiuden merkkivalo (F) näyttää, milloin laite on käyt-
tövalmis.
Vaara
Palovaara!
Varo
Käyttö kuuma vesi -tilassa ilman polttoainetta rikkoo polttoaine-
pumpun. Varmista polttoaineen syöttö, ennen kuin käytät laitetta
kuuma vesi -tilassa.
Poltin voidaan sulkea tarvittaessa.
Symboli "Poltin toiminnassa"
Aseta kytkin (A) asentoon "Poltin toiminnassa".
Säädä haluamasi veden lämpötila säätimestä (B). Korkein
mahdollinen lämpötila on 98 °C.
–
Laitteen toiminta keskeytyy, kun käytön aikana vapautat kah-
van liipasimen.
–
Kun painat kahvan liipasinta uudestaan tietyn ajan (sääde-
tään ennalta 2 - 8 minuuttiin) kuluessa, laite jatkaa automaat-
tisesti toimintaansa.
–
Mikäli asetettu käyttövalmiusaika ylittyy, ajastettu turvakytkin
keskeyttää pumpun ja polttimen toiminnan. Käyttövalmiuden
merkkivalo (F) sammuu.
–
Laitteen käynnistämiseksi uudelleen käännä kytkin ensin
asentoon "0". Käynnistä laite sitten uudelleen. Mikäli käytät
laitetta kauko-ohjauksella, voit käynnistää laitteen myös kau-
ko-ohjauksen vastaavasta kytkimestä.
–
Ajoneuvoja saa puhdistaa vain viuhkasuuttimella (25°). Väli-
matkan kohteeseen pitää olla vähintään 30 cm. Renkaita ei
missään tapauksessa saa puhdistaa pyörösuuttimella.
Seuraava suutinvalikoima on käytettävissä kaikkiin muihin koh-
teisiin:
Jos putken pituus on enemmän kuin 20 m tai korkeapaineletkun
NW 8 pituus enemmän kuin 2 x 10 m, käytetään seuraavia suut-
timia:
Käyttöpaineen ja syöttömäärän säätäminen
Laitteen asetukset
Easy Press -kahvan (lisävaruste) säädöt
Käyttö kylmällä vedellä
Käyttö kuumalla vedellä
R
Käyttövalmius
Suutinvalikoima
Likaisuus
Suutin
Suihku-
kulma
Osa-nro
6.415
Paine
[MPa]
Takaisin-
työntö-
voima [N]
HDS 9/16
erittäin li-
kainen
00060
0°
-649
16
46
keskikova
25060
25°
-647
vähän li-
kainen
40060
40°
-648
HDS 12/14
erittäin li-
kainen
00080
0°
-150
14
55
keskikova
25080
25°
-152
vähän li-
kainen
40080
40°
-153
Likaisuus
Suutin
Suihku-
kulma
Osa-nro
6.415
Paine
[MPa]
Takaisin-
työntö-
voima [N]
HDS 9/16
erittäin li-
kainen
0075
0°
-419
10
37
keskikova
2575
25°
-421
vähän li-
kainen
4075
40°
-422
HDS 12/14
erittäin li-
kainen
0010
0°
-082
10
46
keskikova
2510
25°
-252
vähän li-
kainen
4010
40°
-253
207
FI
-
6
–
Pesuaine helpottaa puhdistustyötä. Se imetään erillisestä pe-
suainesäiliöstä.
–
Laitteen perusvarustukseen kuuluu yksi annosteluventtiili (C).
Lisävarusteena laitteeseen saa toisen annostelulaitteen (an-
nosteluventtiili D). Silloin on mahdollista imeä kahta eri pesu-
ainetta.
–
Annosteluventtiilien (C tai D) annostelumäärät säädetään oh-
jauspaneelista. Asetettu arvo tarkoittaa pesuaineen määrää
prosenteissa.
–
Ulompi asteikko tarkoittaa laimentamattoman pesuaineen
käyttöä (100 % CHEM).
–
Sisempi asteikko tarkoittaa laimennetun pesuaineen käyttöä
suhteessa 1 + 3 (25 % CHEM + 75 % vettä).
Seuraavasta taulukosta näet pesuaineen käytön ulomman astei-
kon arvoille:
Tarkka annostelumäärä riippuu:
–
pesuaineen viskositeetista
–
imukorkeudesta
–
korkeapaineletkun virtausvastuksesta
Mikäli annostelun on oltava aivan tarkka, imetty pesuaineen
määrä on mitattava (esim. imemällä pesuaine mittalasista).
Huomautus:
Puhdistusainesuositukset löydät luvusta "Lisätar-
vikkeet".
Varo
Jos vedenpehmennintä ei käytetä, saattaa läpivirtauskuumennin
kalkkiutua.
Kalkkiutumisen estämisen merkkivalo (H) vilkkuu, kun vedenpeh-
menninsäiliö on tyhjä.
Kuva 1 - Kohta 8
Lisää säiliöön vedenpehmennintä RM 110 (2.780-001).
Vaara
Palovammavaara kuuman veden vuoksi! Kun laitteessa on käy-
tetty kuumaa vettä, laitteen on annettava käydä jäähtymistä var-
ten kylmällä vedellä ja pistoolin ollessa auki vähintään kaksi
minuuttia.
Kuuma vesi -käyttötilan jälkeen säädä lämpötilan säädin (B)
alimpaan lämpötilaan.
Käytä laitetta vähintään 30 sekuntia ilman pesuainetta.
Aseta valintakytkin (A) asentoon "0".
Sulje veden syöttöputki.
Käytä käsiruiskua niin kauan, kunnes laitteessa ei enää ole
painetta.
Kiinnitä käsiruiskupistoolin vipu varmuuspidätyspinteellä, jol-
loin laite ei kytkeydy käyttöön tahattomasti.
Kun laitetta ei käytetä pitkään aikaan tai se joudutaan säilyttä-
mään pakkasessa, toimi seuraavasti (ks. luku "Hoito ja kunnos-
sapito", kohta "Suojaus pakkasen varalta"):
Poista vesi.
Huuhdo laite jäätymisenestoaineella.
Kytke pääkytkin pois päältä ja varmista tai vedä Cekon-pisto-
ke irti pistorasiasta.
Sulje kaasunsyöttö.
Varo
Loukkaantumis- ja vahingoittumisvaaravaara! Huomioi säilytettä-
essä laitteen paino.
Varo
Loukkaantumis- ja vahingoittumisvaaravaara! Huomioi kuljetetta-
essa laitteen paino.
Kun kuljetat laitetta ajoneuvoissa, varmista laite liukumisen ja
kaatumisen varalta kulloinkin voimassa olevien ohjesääntö-
jen mukaisesti.
Pesuaineen annostelu
Asento
0,5
1
8
Pesuaineen määrä [l/h]
14...15 22...24
50
Puhdistusainepitoisuus [%]
1,5
2,5
> 5
Vedenpehmentimen lisäys
Käytön lopettaminen
Toimenpiteet pesuaineella puhdistamisen jälkeen
Laitteen kytkeminen pois päältä
Seisonta-aika
Säilytys
Kuljetus
208
FI
-
7
Tekniset tiedot
HDS 9/16-4
ST Gas
HDS 9/16-4
ST Gas LPG
HDS 12/14-4
ST Gas
HDS 12/14-4
ST Gas LPG
1.251-108
1.251-109
1.251-110
1.251-111
Suoritustiedot
Käyttöpaine, vesi (vakiosuuttimella)
MPa (bar)
16 (160)
16 (160)
14 (140)
14 (140)
Maks. käyttöpaine (varmuusventtiili)
MPa (bar)
18,5 (185)
18,5 (185)
18,5 (185)
18,5 (185)
Veden määrä (portaattomasti säädettävissä)
l/h (l/min)
500-1000 (8,3-
16,6)
500-1000 (8,3-
16,6)
600-1200 (10-
20)
600-1200 (10-
20)
Pesuaineen imu (portaattomasti säädettävissä)
l/h (l/min)
0-50 (0-0,8)
0-50 (0-0,8)
0-60 (0-1)
0-60 (0-1)
Vesiliitäntä
Tulomäärä (min.)
l/h (l/min)
1100 (18,3)
1100 (18,3)
1300 (21,7)
1300 (21,7)
Tulopaine (min.)
MPa (bar)
0,1 (1)
0,1 (1)
0,1 (1)
0,1 (1)
Tulopaine (maks.)
MPa (bar)
0,6 (6)
0,6 (6)
0,6 (6)
0,6 (6)
Sähköliitäntä
Virtatyyppi
--
3N~
3N~
3N~
3N~
Taajuus
Hz
50
50
50
50
Jännite
V
380-420
380-420
380-420
380-420
Liitosjohto
kW
6,4
6,4
7,5
7,5
Sulake (hidas)
A
16
16
20
20
Suojatyyppi
--
IPX5
IPX5
IPX5
IPX5
Kotelointiluokka
--
I
I
I
I
Suurin sallittu verkkovastus
Ohmia
(0,381+j
0,238)
(0,381+j
0,238)
--
--
Sähköjohto
mm
2
5 x 2,5
5 x 2,5
5 x 2,5
5 x 2,5
Lämpötila
Tulolämpötila (maks.)
°C
30
30
30
30
Maks. työskentelylämpötila, kuuma vesi
°C
98
98
98
98
Maks. lämpötila, turvatermostaatti
°C
110
110
110
110
Lämpötilan nosto maks. vesimäärällä
°C
60-65
60-65
60-65
60-65
Lämmitysteho brutto
kW
75
75
95
95
Savutorven veto
kPa
0,01-0,04
0,01-0,04
0,01-0,04
0,01-0,04
Kaasuliitäntäarvot
Maakaasu E (G 20)
m
3
/h
7,2
--
9,8
--
Maakaasu LL (G 25)
m
3
/h
8,2
--
11,4
--
Nimellisliitäntäpaine (maakaasu)
kPa
1,8-5
--
1,8-5
--
propaani
kg/h
--
5,7
--
7,2
Nimellisliitäntäpaine (propaani)
kPa
--
5-6
--
5-6
Ympäristönsuojelutiedot
Hyötysuhde
%
97
97
97
97
Päästökerroin NO
X
(maakaasu G 25)
mg/kWh
< 40
--
< 40
--
Päästökerroin CO (maakaasu G 25)
mg/kWh
< 40
--
< 40
--
Arvot savutorven mittoja varten
ylipainekelpoisuus (min.)
kPa
0,05
0,05
0,05
0,05
vedon tarve
kPa
0
0
0
0
Palokaasujen virtaus - täysi kuormitus
kg/h
130
130
166
166
CO
2
(maakaasu)
%
9,5
--
9,5
--
CO
2
(propaani)
%
--
12
--
12
Palokaasujen lämpötila maks./min.
°C
190/150
190/150
170/130
170/130
Polttoilma / ilman tulo
Maks. pituus: 10 m kahdella 90° käyrällä putkella (vähimmäisläpimitta 100
mm). Paikallisten määräysten mukaan; laitteen sijaintipaikasta tai raikasil-
ma ulkoa.
Kondenssiveden poisto
Kondenssiveden poisto (maks.)
l/h
4 (lapon kautta
viemäriin)
4 (lapon kautta
viemäriin)
4 (lapon kautta
viemäriin)
4 (lapon kautta
viemäriin)
Liitäntä
DN
40 (HTR)
40 (HTR)
40 (HTR)
40 (HTR)
Vedenkorkeus vähintään, lappo
mm
300
300
300
300
209
FI
-
8
Lupa EN 60335-2-79
Lupa Kaasulaitteiden direktiivi (90/396/EY)
--
Gastec QA
Low NO
X
Gastec QA
Gastec QA
Low NO
X
Gastec QA
Laitekategoria Eurooppa
--
I 2E (r), I
2ELL, I 2H, I
2L, I2 HE
I 3P
I 2E (r), I
2ELL, I 2H, I
2L, I2 HE
I 3P
Laitteen malli
--
B23, C33,
C43, C53
B23, C33,
C43, C53
B23, C33,
C43, C53
B23, C33,
C43, C53
CE-Tuotenumero
--
PIN 0063 BN
3880
PIN 0063 BN
3880
PIN 0063 BN
3880
PIN 0063 BN
3880
Mitat ja painot
Pituus
mm
1124
1124
1124
1124
Leveys
mm
558
558
558
558
Korkeus
mm
966
966
1076
1076
Tyypillinen käyttöpaino
kg
193,5
193,5
209
209
Mitatut arvot EN 60355-2-79 mukaisesti
Melupäästö
Äänenpainetaso L
pA
dB(A)
74
74
76
76
Epävarmuus K
pA
dB(A)
1
1
1
1
Käsi-käsivarsi tärinäarvo
Käsiruiskupistooli
m/s
2
2,2
2,2
2,3
2,3
Suihkuputki
m/s
2
1,8
1,8
2,1
2,1
Epävarmuus K
m/s
2
1,0
1,0
1,0
1,0
HDS 9/16-4
ST Gas
HDS 9/16-4
ST Gas LPG
HDS 12/14-4
ST Gas
HDS 12/14-4
ST Gas LPG
Mitat
210
FI
-
9
Vaara
Loukkaantumisvaara! Ennen kaikkia huolto- ja korjaustöitä, kytke
pääkytkin pois päältä ja varmista tai vedä Cekon-pistoke irti pis-
torasiasta.
Hoito ja huolto
Huoltokaavio
Ajankohta
Toiminta
Rakenneryhmä
Suoritus
suorittaja
päivittäin
Tarkasta käsi-
kahva
Käsiruiskupistooli
Tarkista, sulkeutuuko pistooli tiiviisti. Tarkista,
estääkö varmistus käsikahvan tahattoman käy-
tön. Vaihda viallinen pistooli.
Käyttäjä
Tarkasta korkea-
paineletku
Pesulaitteen lähtövesiputket ja
letkut
Tarkista letkujen kunto. Vaihda rikkoontuneet let-
kut välittömästi! Tapaturmavaara!
Käyttäjä
Tarkasta liitäntä-
johto ja verkko-
pistoke.
Sähköliitäntä pistokkeella/pis-
torasialla
Tarkasta liitäntäjohto ja verkkopistoke vaurioiden
varalta. Anna valtuutetun asiakaspalvelun/säh-
köalan ammattilaisen välittömästi vaihtaa vauri-
oitunut liitäntäjohto.
Käyttäjä
40 käyttötunnin
jälkeen tai viikoit-
tain
Tarkasta öljyn
laatu
Pumpun öljysäiliö
Jos öljy on maitomaista, se on vaihdettava.
Käyttäjä
Öljytason tarkis-
tus
Pumpun öljysäiliö
Tarkista pumpun öljymäärä. Lisää öljyä tarvitta-
essa (tilausnro 6.288-016).
Käyttäjä
Siivilän puhdis-
tus
Tuloveden siivilä
Katso kohta "siivilän puhdistus".
Käyttäjä
kuukausittain tai
200 käyttötunnin
jälkeen
Tarkasta pump-
pu
Korkeapainepumppu
Tutki, onko pumppu tiivis. Ota yhteys huoltoon,
mikäli pumppu vuotaa enemmän kuin 3 tippaa
minuutissa.
Käyttäjä
Tarkasta, onko
laitteen sisällä
saostumia
Koko laitteisto
Käytä laitetta suihkuputkella ilman korkeapaine-
suutinta. Jos laitteen manometri osoittaa käyttö-
paineen nousevan yli 3 MPa, laitteistossa on
suoritettava kalkinpoisto. Samoin on asian laita
myös, jos laitetta ilman korkeapaineletkua käy-
tettäessä (siis vesi virtaa vapaasti suoraan kor-
keapaineulostulosta) käyttöpaineen todetaan
olevan enemmän kuin 0,7–1 MPa .
Käyttäjä, kal-
kinpoisto-oh-
jeita
noudattaen
Siivilän puhdis-
tus
Alivesisuojan siivilä
Katso kohta "siivilän puhdistus".
Käyttäjä
500 - 700 käyttö-
tunnin jälkeen
Vaihto
Hehkusytytin, ionisaatioelekt-
rodi
Vaihda hehkusytytin tai ionisaatioelektrodi
Asiakaspal-
velu
puolivuosittain tai
1000 käyttötunnin
jälkeen
Öljynvaihto
Korkeapainepumppu
Laske öljy ulos. Lisää 1 litra öljyä (tilausnro
6.288-016). Tarkista säiliön öljytaso.
Käyttäjä
Tarkastus, puh-
distus
Koko laitteisto
Laitteiston silmämääräinen tarkastus, korkepai-
neliitäntöjen tiiveyden tarkastus, ylivirtausventtii-
lin tiiveyden tarkistus, korkeapaineletkun
tarkastus, paineentallentimen tarkastus, kuu-
mennuskierukan kalkinpoisto, ionisaatioelektro-
din puhdistus / vaihto, polttimen säätö.
Asiakaspal-
velu
Letkun vaihto
Letku palokaasujen painekytki-
melle
Vaihda letku.
Asiakaspal-
velu
vuosittain
Käyttöturvalli-
suuden tarkas-
tus
Koko laitteisto
Suorita käyttöturvallisuuden tarkastus kansallis-
ten lakisääteisten nesteenruiskutuslaitteita kos-
kevien määräysten mukaisesti.
Asiantuntija
211
FI
-
10
Voit tehdä huoltosopimuksen laitteen myyneen Kärcher-edusta-
jan kanssa.
Kuva 1 - Kohta 3
Sulje veden syöttöputki.
Irrota veden tuloletku laitteesta.
Työnnä siivilä ruuvimeisselillä pois paikastaan.
Siivilän puhdistus
Asenna paikkaansa päinvastaisessa järjestyksessä.
Irrota suojapelti.
Ruuvaa kulmaliitin irti turvalaitteesta.
Kierrä siivilän ruuvia M8x30.
Vedä pihdeillä ruuvi ja siivilä ulos.
Siivilän puhdistus
Asenna paikkaansa päinvastaisessa järjestyksessä.
Kun putkiin tulee saostumia, virtauspaine nousee. Painekytkin
saattaa laueta.
Vaara
Palavista kaasuista johtuva räjähdysvaara! Tupakointi on kiellet-
tyä kalkinpoiston ajan. Huolehdi hyvästä tuuletuksesta.
Vaara
Happojen aiheuttama syöpymisvaara! Käytä suojalaseja ja suo-
jahansikkaita.
Kalkin poistoon saa lain mukaan käyttää ainoastaan tarkastettuja
sekä hyväksymismerkillä varustettua kattilakiven poistoainetta.
–
RM 100 (tilausnumero 6.287-008) liuottaa kalkkikiven ja yk-
sinkertaiset kalkkikiven ja pesuainejäämien yhdisteet.
–
RM 101 (tilausnumero 6.287-013) liuottaa kerrostumat, jotka
eivät liukene RM 100:n avulla.
Laita 20 litran vetoiseen säiliöön 15 litraa vettä.
Lisää siihen 1 litra kalkkikiven liuotusainetta.
Liitä vesiletku suoraan pumppuun ja pistä toinen pää säiliöön.
Pistä liitettynä oleva ruiskuputki ilman suutinta säiliöön.
Avaa käsiruiskupistooli äläkä sulje sitä kalkinpoiston aikana.
Käännä laitteen kytkin asentoon "Poltin toiminnassa", kunnes
on saavutettu noin 40 °C lämpötila.
Kytke laite pois päältä ja anna seistä 20 minuutin ajan. Käsi-
ruiskupistoolin on pysyttävä avattuna.
Pumppaa laite lopuksi tyhjäksi.
Huomautus:
Suosittelemme, korroosiosuojaksi ja happojäämien
neutraloimiseksi, alkaalisen liuoksen (esim. RM 81) pumppaa-
mista laitteen lävitse puhdistusainesäiliön kautta.
Laite olisi asennettava lämmitettävään paikkaan. Mikäli on lait-
teen jäätymisen vaara, esim. jos laite on asennettu ulos, laitteisto
on tyhjennettävä vedestä ja huuhdeltava jäätymisenestoaineella.
Ruuvaa vedentuloletku ja korkeapaineletku irti.
Anna laitteen käydä enintään 1 min, kunnes pumppu ja johdot
ovat tyhjät.
Ruuvaa tulojohto irti kattilan pohjasta ja anna lämpövastuk-
sen käydä tyhjänä.
Huomautus:
Noudata jäätymisenestoaineen valmistajan anta-
mia käsittelyohjeita.
Täytä uimurisäiliö täyteen asti tavallisella pakkasnesteellä.
Aseta keruuastia korkeapaine-ulostulon alle.
Kytke laite toimintaan. Anna sen käydä, kunnes uimurisäiliön
alivesisuoja laukeaa ja laitteen toiminta pysähtyy.
Täytä kattilan pohja ja lappo pakkasnesteellä.
Näin saavutetaan samalla tietty korroosiosuoja.
Huoltosopimus
Siivilöiden puhdistus
Tuloveden siivilä
Alivesisuojan siivilä
Kalkin poisto
Suoritus
2.
1.
Suojaaminen pakkaselta
Veden poistaminen
Laitteen huuhtominen jäätymisenestoaineella
212
FI
-
11
Vaara
Loukkaantumisvaara! Ennen kaikkia huolto- ja korjaustöitä, kytke
pääkytkin pois päältä ja varmista tai vedä Cekon-pistoke irti pis-
torasiasta.
*
Ohje
Polttimen liekin valvonnan vapauttamiseksi paina palokaasujen
termostaatin (J) painiketta.
Häiriöapu
Häiriö
Mahdollinen syy
Korjaus
suorittaja
Laite ei toimi. Käyttövalmiu-
den merkkivalo (F) ei pala.
Laitteessa ei ole jännitettä.
Tarkasta sähköverkko.
Sähkömies
Ajastettu turvakytkin on toiminut.
Kytke laite käyttökytkimestä lyhyeksi aikaa
pois päältä, käynnistä laite sitten uudelleen.
Käyttäjä
Ohjauspiirin (F3) sulake on pala-
nut. Ohjausmuuntajan (T2) sulake
on ehjä.
Vaihda tilalle uusi sulake. Selvitä ylikuormi-
tuksen syy, ettei sulake pala uudelleen.
Asiakaspalvelu
Painekytkin HD (korkea paine) tai
ND (alhainen paine) viallinen.
Tarkasta painekytkin.
Asiakaspalvelu
Ajastinyksikkö (A1) viallinen.
Tarkasta liitännät, vaihda yksikkö tarvittaes-
sa.
Asiakaspalvelu
+ Moottorin ylikuumenemi-
sen merkkivalo (G) palaa.
Moottorin lämpösondi (WS) tai yli-
virtasuojakytkin (F1) on lauennut.
Selvitä ylikuorman syy.
Asiakaspalvelu
Uimurisäiliön alivesisuoja on vas-
tannut.
Selvitä vedenpuutteen syy.
Käyttäjä
Poltin ei syty tai liekki sam-
muu käytön aikana.
Lämpötilan säädin (B) on asetettu
liian alhaiseen lukemaan.
Aseta lämpötilan säädin korkeampaan luke-
maan.
Käyttäjä
Laitekytkintä ei ole asetettu koh-
taan "poltin".
Kytke poltin toimintaan.
Käyttäjä
Alivesisuojaturvalaite on kytkenyt
pesurin pois toiminnasta.
Varmista, että laite saa riittävästi vettä. Tar-
kasta laitteen tiiveys.
Käyttäjä
Kaasuhana on kiinni.
Avaa kaasuhana.
Käyttäjä
Veden maksimilämpötilan rajoitin
(> 110 °C) on vastannut.
Anna kattilan jäähtyä ja käynnistä laite uudel-
leen.
Käyttäjä
Tarkista lämpötilan säädin.
Asiakaspalvelu
Palokaasujen termostaatin
merkkivalo (K) palaa.
Palokaasut eivät johdu ulos.
Aukaise palokaasujen poistotie.
Käyttäjä
Tulo- tai poistoilman reitti tukkeutu-
nut.
Tarkista ilmanotto- ja palokaasujen poistojär-
jestelmä.
Käyttäjä
Kattilan pohja on liian kuuma. Kat-
tilan pohjan lämpötilan rajoitin (>
80 °C) on vastannut. Kattilan poh-
jalla ei ole yhtään kondenssivettä.
Lisää kattilaan 5 litraa vettä palokaasujen
mittausmuhvin kautta.
Käyttäjä
Kaasun sytytysautomaatissa on
häiriö.
Paina kaasureleen (I) vapautuspainiketta.
Käyttäjä
Kaasu ei syty. *
Tarkista kaasun sytytysautomaatin elektrodi-
en etäisyys ja sytytysjohto. Säädä välimatka
oikeaksi tai vaihda vialliset osat. Puhdista
osat tarvittaessa.
Asiakaspalvelu
Puhallin tai kierrosluvun ohjauksen
piirilevy viallinen. *
Tarkista puhallin tai kierrosluvun ohjauksen
piirilevy. Tarkista pistoke ja johdot. Vaihda vi-
alliset osat.
Asiakaspalvelu
213
FI
-
12
Häiriö
Mahdollinen syy
Korjaus
suorittaja
Palokaasujen termostaatin
merkkivalo (K) palaa.
Palokaasujen lämpötilan rajoitin on
lauennut.
Pidä suihkuputken käsikahvaa auki, kunnes
laitteisto on jäähtynyt. Vapauta lämpötilan ra-
joitin siten, että ensin kytket laitteen pois toi-
minnasta ohjauspaneelista ja käynnistät
laitteen sitten uudelleen. Soita asiakaspalve-
luun häiriön toistuessa.
Käyttäjä
Kalkkiutumisesta ilmoittava
merkkivalo (H) palaa.
Vedenpehmennin on loppunut.
Lisää vedenpehmennintä.
Käyttäjä
Laite imee pesuainetta liian
vähän tai ei ollenkaan.
Annosteluventtiili asennossa "O". Säädä pesuaineen annosteluventtiili.
Käyttäjä
Pesuainesuodatin on tukkeutunut
tai säiliö on tyhjä.
Puhdista suodatin tai täytä säiliö.
Käyttäjä
Pesuaineen imuletku, annostelu-
venttiili tai magneettiventtiili ei ole
tiivis tai on tukkeutunut.
Tarkasta, puhdista.
Käyttäjä
Elektroniikka tai magneettiventtiili
on viallinen.
Vaihda.
Asiakaspalvelu
Laitteeseen ei tule täyttä pai-
netta.
Suutin on loppuunkulunut.
Vaihda suutin uuteen.
Käyttäjä
Pesuainesäiliö on tyhjä.
Täytä pesuainesäiliö.
Käyttäjä
Vettä ei ole riittävästi.
Varmista riittävä vedentulo.
Käyttäjä
Tuloveden siivilä on tukkeutunut.
Tarkista, irrota ja puhdista siivilä.
Käyttäjä
Pesuaineen annosteluventtiili ei
ole tiivis.
Tarkista ja tiivistä.
Käyttäjä
Pesuaineletku ei ole tiivis.
Vaihda.
Käyttäjä
Uimuriventtiili jumiutuu.
Tarkista uimurin liikkuvuus.
Käyttäjä
Varmuusventtiili ei ole tiivis.
Tarkista säätö, vaihda tarvittaessa uusi tiivis-
te.
Asiakaspalvelu
Määränsäätöventtiili ei ole tiivis tai
on säädetty liian alhaiselle luke-
malle.
Tarkista venttiilin osat, vaihda vialliset osat,
puhdista likaantuneet osat.
Asiakaspalvelu
Paineenalennuksen magneetti-
venttiili viallinen.
Vaihda magneettiventtiili.
Asiakaspalvelu
Korkeapainepumppu pitää
pahaa ääntä, manometrin
osoitin värähtelee voimak-
kaasti.
Värinänvaimennin on viallinen.
Vaihda värinänvaimennin.
Asiakaspalvelu
Vesipumppu imee ilmaa.
Tarkista imujärjestelmä ja selvitä, missä jär-
jestelmä ei ole tiivis.
Käyttäjä
Laite sammuu ja käynnistyy
jatkuvasti suihkukahvan ol-
lessa auki.
Suihkuputken suutin on tukossa.
Tarkasta, puhdista.
Käyttäjä
Laite on kalkkiutunut.
Katso kohta "Kalkinpoisto".
Käyttäjä
Ohivirtauksen kytkentäkohta on
muuttunut.
Säädä ohivirtaus uudelleen.
Asiakaspalvelu
Puhdista vedenpuutesuojan sihti. Tarkista, irrota ja puhdista siivilä.
Käyttäjä
Laitteen toiminta ei pysähdy
käsikahvasta.
Pumppu ei ole ilmattu kunnolla.
Aseta laitteen kytkin asentoon "O". Paina kä-
sikahvan liipasimesta, kunnes suuttimesta ei
enää tule vettä. Kytke laite sen jälkeen uudel-
leen päälle. Toista tämä menettely, kunnes
täysi käyttöpaine on saavutettu.
Käyttäjä
Varoventtiili tai varoventtiilin tiiviste
on viallinen.
Uusi varoventtiili tai tiiviste.
Asiakaspalvelu
Ohivirtauksen painekytkin.
Tarkista ohivirtauksen painekytkin.
Asiakaspalvelu
214
FI
-
13
Pesuaine helpottaa puhdistustehtävää. Taulukossa on valikoima
pesuaineita. Pesuaineita käytettäessä on ehdottomasti noudatet-
tava pakkauksessa annettuja ohjeita.
* = vain lyhytaikaiseen käyttöön, kaksivaihemenetelmä, huuhdel-
tava pelkällä vedellä
** = ASF = nopea öljy/vesi erottelu ja hyvät liankuljetusominai-
suudet
*** = esipesuun sopii Foam-Star 2000
Tarvikkeet
Puhdistusaine
Käyttöalue
Lika, likaantumisaste, käyttötapa Puhdistusaine
pH-arvo (n.) 1 % liuos
vesijohtoveteen
Korjaamot, huoltoase-
mat, kuljetusliikkeet, au-
tohallit
Pöly, tielika, mineraaliöljy (maala-
tulla pinnalla)
RM 55 ASF **
8
RM 22/80 jauhe ASF
12/10
RM 81 ASF
9
RM 803 ASF
10
RM 806 ASF
11
Ajoneuvojen varastointi
RM 42 kylmävaha korkeapainepesurille
8
RM 820 kuumavaha ASF
7
RM 821 sumutusvaha ASF
6
RM 824 super-helmivaha ASF
7
RM 44 geeli, vanteiden puhdistusaine
9
Metalliteollisuus
Öljyt, rasvat, pöly tms. lika
RM 22 jauhe ASF
12
RM 55 ASF
8
RM 81 ASF
9
RM 803 ASF
10
RM 806 ASF
12
RM 31 ASF (vaikeasti poistettava lika)
12
RM 39 neste (sis. korroosionsuoja-ainetta)
9
Elintarviketeollisuus
Helppo ja keskivaikea lika, rasvat
ja öljyt, suuret pinnat
RM 55 ASF
8
RM 81 ASF
9
RM 882 geelivaahto OSC
12
RM 58 ASF (puhdistusvaahto)
9
RM 31 ASF *
12
Savuhartsi
RM 33 *
13
Puhdistus ja desinfiointi
RM 732
9
Desinfiointi
RM 735
7...8
Kalkki, mineraalikerrostumat
RM 25 ASF *
2
RM 59 ASF (puhdistusvaahto)
2
Saniteettitilat ***
Kalkki, virtsakivi, saippua jne.
RM 25 ASF * (peruspuhdistus)
2
RM 59 ASF (puhdistusvaahto)
2
RM 68 ASF
5
215
FI

