Karcher HDS 12-14-4 ST Gas: !
!: Karcher HDS 12-14-4 ST Gas
-
14
–
Il dispositivo di riscaldamento dell’apparecchio è un impianto
di combustione. Per le operazioni di montaggio osservare le
norme vigenti locali.
–
Impiegare solo comignoli/condotti di scarico collaudati.
–
L’installazione delle condutture del gas, così come l’allaccia-
mento dell’apparecchio al gas devono essere effettuati esclu-
sivamente da un'impresa di installazione di impianti a gas e
idrici autorizzata.
–
La regolazione e le riparazioni del bruciatore del gas devono
essere effettuate esclusivamente da tecnici appositamente
addestrati del servizio assistenza clienti Kärcher.
–
Nella conduttura del gas, che deve essere eseguita con alme-
no 1 pollice di diametro nominale, è necessario prevedere un
manometro e una valvola di chiusura.
–
A causa delle vibrazioni causate dalla pompa ad alta pressio-
ne, il collegamento tra la conduttura rigida del gas e l'appa-
recchio deve essere eseguito utilizzando un tubo flessibile del
gas.
–
Nel caso di condutture del gas più lunghe di 10 m, prevedere
un diametro nominale 1 di 1/2 pollici o maggiore. Il collega-
mento del gas all'apparecchio ha un diametro nominale di
1 pollice.
Pericolo
Nell’avvitare il tubo flessibile del gas al bruciatore occorre soste-
nere il nipplo di raccordo servendosi di una chiave a bocca SW
36. Il nipplo di raccordo non deve ruotare rispetto al corpo del
bruciatore. La guarnizione del raccordo filettato deve essere rea-
lizzata servendosi di materiale sigillante approvato dal DVGW.
Una volta effettuato l’allacciamento occorre controllare la tenuta
del punto di raccordo servendosi di uno spray per l’accertamento
di perdite approvato dal DVGW.
La larghezza del tubo della conduttura del gas deve essere cal-
colata in base alle norme DVGW TRGI 1986 e/o TRF 1996. Il dia-
metro nominale del collegamento del gas all'apparecchio non
corrisponde automaticamente a quello della tubazione. Il calcolo
delle dimensioni e l'installazione della conduttura del gas devono
avvenire in base alle norme vigenti in materia.
–
Ogni apparecchio deve essere collegato ad un camino ido-
neo.
–
La conduzione dei gas di scarico deve essere eseguita in
base alle norme locali e in accordo con l'addetto al controllo
e alla manutenzione dei camini.
Apparecchio del gas senza interruttore di tiraggio, dove tutti i
componenti sotto sovrapressione del tratto dei gas di scarico
vengono lavati con aria di combustione. L'installazione B23 offre
la possibilità di collegare l'apparecchio ad un camino tradizionale
ad una sola canna fumaria solo in base alla norma DIN 18160 e
di utilizzarlo in base all'aria ambiente. A questo scopo è necessa-
rio che il camino sia idoneo per il collegamento di apparecchi a
condensazione (ad es. dopo aver sanato il camino inserendo un
tubo di acciaio inox).
Apparecchio del gas con alimentazione aria di combustione e
conduzione gas di scarico verticale sopra il tetto. Gli sbocchi si
trovano vicini nello stesso range di pressione.
Installazione dell'impianto
Solo personale qualificato ed autorizzato!
Norme generali
Informazioni generali gas
Condutture del gas
Conduzione dell'aria e dei gas di scarico
!
Apparecchio del gas con impianto di scappamento che sot-
trae l'aria di combustione al luogo di installazione
Tipo B23
Apparecchio del gas con impianto di scappamento che sot-
trae l'aria di combustione all'aperto mediante un sistema
chiuso.
Tipo C33
76
IT
-
15
Apparecchio del gas con alimentazione aria di combustione e
conduzione dei gas di scarico per il collegamento ad un sistema
di asportazione dei gas di scarico e di conduzione di aria.
Apparecchio del gas con alimentazione separata dell'aria di com-
bustione e conduzione dei gas di scarico. Gli sbocchi si trovano
in range di pressione diversi.
Nota:
Per ottenere i valori di combustione previsti dalla legge bi-
sogna rispettare i Dati Tecnici indicati per il tiraggio del camino.
La linea della condensa deve essere collegata al sifone diretta-
mente all'attacco della condensa. L'altezza del sifone deve esse-
re pari a 30 cm. Il sifone non è in dotazione. La linea della
condensa non deve essere collegata in modo fisso alla canaliz-
zazione. La condensa deve poter fluire liberamente in una tra-
moggia o in un serbatoio di neutralizzazione.
–
Prima del montaggio a muro verificare la stabilità dello stes-
so. Il materiale di fissaggio fornito si adatta solo per il calce-
struzzo. Per pietre da costruzione, mattoni e calcestruzzo
cellulare utilizzare opportuni tasselli e viti, p. es. ancoraggi ad
iniezione (forature: vedi disegno dimensionale).
–
Fig. 3 - pos. 19 e 25
L’apparecchio non deve essere collegato in modo rigido alla
rete idrica o alle tubazioni ad alta pressione. Montare tassati-
vamente i tubi flessibili di collegamento.
–
Fig. 3 - A
Montare un rubinetto di arresto tra la rete idrica ed il tubo fles-
sibile di collegamento.
Per il montaggio di tubi ad alta pressione rispettare le disposizioni
nazionali vigenti in materia.
–
Il calo di pressione nella tubazione deve essere inferiore a 1,5
MPa.
–
A fine opera collaudare la tubazione con un valore di 32 MPa.
–
L'isolamento della tubazione deve resistere a temperature
fino a 100 °C.
Fig. 3 - Pos. 20
Montare i contenitori in modo che il livello inferiore del detergente
non si trovi ad un livello inferiore di 1,5 m rispetto al fondo dell'ap-
parecchio e che il livello superiore non si trovi al di sopra del fon-
do dell'apparecchio.
Fig. 3 - B e pos. 19
Collegare l'entrata dell'acqua alla rete idrica utilizzando un
tubo flessibile adatto.
–
La portata dell'approvvigionamento di acqua deve avere un
valore minimo di 1300 l/h (0,1 MPa).
–
La temperatura dell'acqua deve essere inferiore a 30 °C.
Tipo C43
Tipo C53
Scarico condensa
Montaggio a muro
Montaggio delle tubazioni ad alta pressione
Montare il contenitore del detergente
Alimentazione dell'acqua
77
IT
-
16
Attenzione
Non superare il valore massimo d'impedenza di rete consentito
per il punto d'allacciamento elettrico (vedi Dati tecnici). In caso di
dubbi sull'impedenza di rete presente sul punto di collegamento
si prega di contattare la propria azienda fornitrice di energia elet-
trica.
Avviso:
Il transitorio d'inserzione causa una diminuzione tempo-
ranea di tensione. In condizioni di rete sfavorevoli le altre appa-
recchiature possono essere danneggiate.
–
Valori di collegamento: vedi Dati tecnici e targhetta.
–
Il collegamento elettrico va eseguito da un'elettricista qualifi-
cato e deve essere conforme alla norma IEC 60364-1.
–
Tutti i componenti conduttori, i cavi e gli apparecchi nell'area
di lavoro devono trovarsi in ottimo stato ed essere protetti
contro i getti di acqua.
Per evitare incidenti elettrici raccomandiamo di collegare l'appa-
recchio a prese elettriche dotate di interruttore differenziale (con
corrente differenziale nominale I dn non superiore a 30 mA).
Creare il collegamento elettrico.
Per poter spegnere l'idropulitrice stazionaria è necessario appor-
tare un interruttore principale (Fig 3 - Pos.6) bloccabile in un pun-
to facilmente accessibile.
L'apertura di contatto dell'interruttore principale deve essere al-
meno di 3 mm.
Applicare il connettore Cekon al cavo di collegamento dell'ap-
parecchio.
Inserire il connettore maschio nella presa.
Per spegnere l'idropulitrice stazionaria, il connettore maschio
Cekon deve essere facilmente scollegabile.
Controllare il collegamento del gas.
Attenzione
Pericolo di danneggiamento dell'apparecchio a causa di surri-
scaldamento.
Collegare il sifone al fondo della caldaia e riempirlo con ac-
qua.
Riempire la caldaia con 4 litri di acqua utilizzando l'apertura
del camino.
Prima del primo utilizzo tagliare la punta del triangolo dal con-
tenitore dell'olio della pompa acqua.
Fig. 3 - Pos. 14
Collegare il tubo flessibile alta pressione alla pistola a spruz-
zo e alla lancia e collegarlo all'uscita di alta pressione dell'ap-
parecchio o alle tubazioni ad alta pressione.
Fissare il boccaglio (b) alla lancia (d) usando il dado di serrag-
gio (a). Fare attenzione che l'anello di tenuta (c) sia inserito
correttamente nella scanalatura.
Collegamento elettrico
Collegamento elettrico fisso
Collegamento elettrico con spina/presa
Prima messa in funzione
L'apparecchio è stato regolato in fabbrica come apparecchio a
metano per tipo di gas G 20 e come apparecchio a gas liquido
per tipo di gas G 31. Per utilizzare un apparecchio a gas metano
con un tipo di gas G 25 o con altri tipi di gas metano (vedere tar-
ghetta) o per utilizzare un apparecchio a gas liquido con un tipo
di gas G 30 o con altri tipi di gas liquido (vedere targhetta), re-
golare per gli apparecchi a gas metano i valori di scarico del me-
tano e per gli apparecchi a gas liquido i valori dei gas liquidi in
base alle informazioni di manutenzione.
Sulla targhetta vuota in dotazione viene scritto il nuovo tipo di
gas utilizzato e collocata quindi nell'apposito spazio sul lato de-
stro dell'apparecchio. Al contempo, rimuovere la targhetta collo-
cata in fabbrica contenente l'indicazione G 20 (apparecchio a
gas metano) o G 31 (apparecchio a gas liquido).
Provvedimenti da effettuare prima della messa in
funzione
a
b
c
d
78
IT
-
17
Togliere la molla (c) dal supporto del coperchio (b) del conte-
nitore contenente l'addolcitore.
Riempire il contenitore con addolcitore RM 110 della Kärcher
(Codice n°: 2.780-001).
Pericolo
Tensione elettrica pericolosa! Le impostazioni possono essere
eseguite solo da elettricisti specializzati.
Informarsi sulla durezza dell'acqua in loco:
–
presso il gestore della rete idrica locale,
–
usando l'apparecchio per la determinazione della durezza
dell'acqua (Codice n. 6.768-004).
Togliere la copertura dell'apparecchio.
Aprire la scatola di comando del quadro di controllo.
Impostare il potenziometro (a) secondo il grado di durezza
dell'acqua. La tabella riporta le impostazioni corrette.
Esempio:
Una durezza dell'acqua con un valore di scala pari a 15°dH de-
termina l'impostazione 6 del potenziometro. Da ciò risulta una
pausa di 31 secondi (la valvola elettromagnetica si apre breve-
mente ogni 31 secondi).
La regolazione dello stato di pronto avviene tramite la piastra più
grande posta sulla parete laterale del quadro elettrico.
Le impostazioni di fabbrica hanno una durata minima di 2 minuti
e possono essere prolungati fino ad un massimo di 8 minuti.
Protezione anticalcare
Grado di durezza dell'ac-
qua (°dH)
5
10
15
20
25
Valore di scala del poten-
ziometro
8
7
6
5
4,5
Pausa espressa in secondi
50
40
31
22
16
b
c
a
a
Regolazione dello stato di pronto
8 7 6 5 4 3 2 1
S2
min.
max.
79
IT
-
18
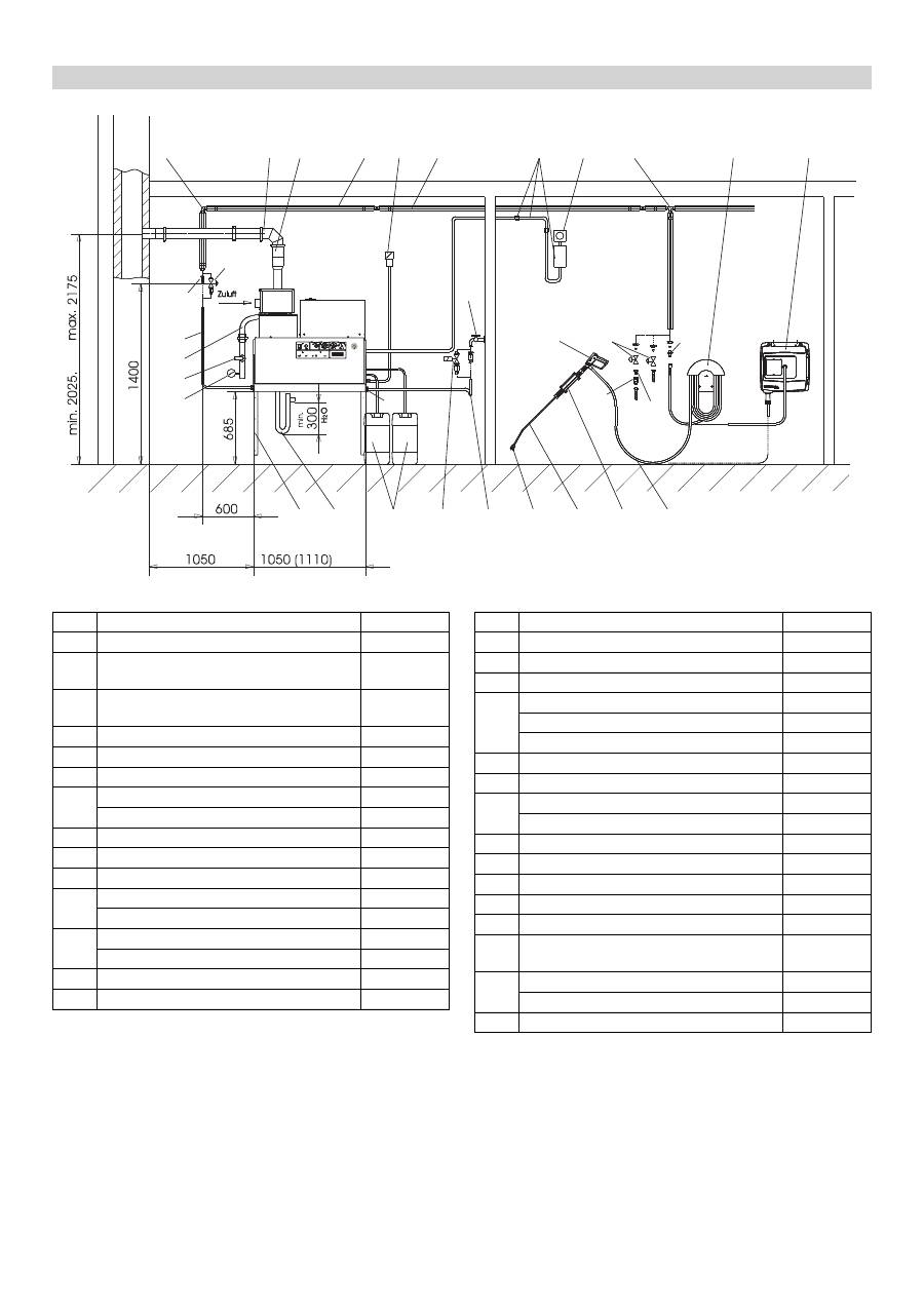
Fig. 3
Materiale per l'installazione
1
2
3
5
6
7
8
9
10
12
13
A
15
11b
11a
11c
11a
25
21
22
23
11b
24
4
20
19a
19
18
17
16
14
11d
B
Pos. Materiale per l'installazione
Codice N°
1
Bullonatura angolare
6.386-356
2
Kit condotta gas di scarico, orizzontale,
150 mm
6.526-231
3
Kit condotta gas di scarico, verticale, 150
mm
6.526-232
4
Kit sifone
2.640-422
5
Isolazione termica
6.286-114
6
Interruttore principale
6.631-455
7
Kit tubazioni, acciaio zincato
2.420-004
Kit tubazioni, acciaio inox
2.420-006
8
Kit telecomando
2.744-008
9
Kit pulsante d'arresto d'emergenza
2.744-002
10
Bullonatura a T
6.386-269
11a
Raccordo, ottone
2.638-180
Raccordo, acciaio inox
2.638-181
11b
Rubinetto di arresto (DN: 8), acciaio zincato 4.580-144
Rubinetto di arresto (DN: 8), acciaio inox 4.580-163
11c
Elemento fisso attacco rapido
6.463-025
11d
Elemento mobile attacco rapido
6.463-023
Pos. Materiale per l'installazione
Codice N°
12
Portatubo
2.042-001
13
Avvolgitubo
2.637-238
14
Tubo flessibile alta pressione 10 m
6.388-083
15
Pistola a spruzzo "Easypress"
4.775-463
Regolatore HDS 9/16-4
4.775-470
Regolatore HDS 12/14-4
4.775-471
16
Supporto della lancia
2.042-002
17
Lancia
4.760-550
18
Boccaglio HDS 9/16-4
2.883-402
Boccaglio HDS 12/14-4
2.883-406
19
Tubo flessibile dell’acqua
4.440-282
19a
Valvola elettromagnetica acqua in entrata 4.743-011
20
Serbatoio detergente, 60 l
5.070-078
21
Tubo flessibile del gas R1“
6.388-228
22
Rubinetto di chiusura del gas R1“
6.412-389
23
Manometro, gas (Attenzione! prevedere in
loco una valvola di chiusura).
6.412-059
24
Kit mensola a muro
2.053-005
Kit mobiletto
2.210-008
25
Tubo flessibile alta pressione
6.389-028
80
IT
-
19
Con la presente si dichiara che la macchina qui di seguito indica-
ta, in base alla sua concezione, al tipo di costruzione e nella ver-
sione da noi introdotta sul mercato, è conforme ai requisiti
fondamentali di sicurezza e di sanità delle direttive CE. In caso di
modifiche apportate alla macchina senza il nostro consenso, la
presente dichiarazione perde ogni validità.
5.957-648
I firmatari agiscono su incarico e con la procura dell’amministra-
zione.
Responsabile della documentazione:
S. Reiser
Alfred Kärcher GmbH & Co. KG
Alfred-Kärcher-Str. 28 - 40
71364 Winnenden (Germany)
Tel.: +49 7195 14-0
Fax: +49 7195 14-2212
Winnenden, 2014/02/01
In tutti i paesi sono valide le condizioni di garanzia pubblicate dal-
la nostra società di vendita competente. Entro il termine di garan-
zia eliminiamo gratuitamente gli eventuali guasti all’apparecchio,
se causati da un difetto di materiale o di produzione.
Dichiarazione di conformità CE
Prodotto:
Idropulitrice
Modelo:
1.251-xxx
Direttive CE pertinenti
2009/142/CE
2006/42/CE (+2009/127/CE)
2004/108/CE
Norme armonizzate applicate
EN 55014–1: 2006+A1: 2009+A2: 2011
EN 55014–2: 1997+A1: 2001+A2: 2008
EN 60335–1
EN 60335–2–79
EN 62233: 2008
EN 61000–3–2: 2006+A1: 2009+A2: 2009
HDS 12/14:
EN 61000–3–3: 2008
HDS 9/16:
EN 61000–3–11: 2000
Specifiche applicate:
QA 195 (non LPG)
Nome dell'ente nominato:
per 2009/142/EC
GASTEC
Wilmersdorf 50
7327 AC Apeldoorn
Codice di identificazione 0063
Garanzia
CEO
Head of Approbation
81
IT
-
20
Servizio assistenza
Tipo di impianto:
Codice produttore:
Data messa in funzione:
Data del controllo:
Diagnosi:
Firma
Data del controllo:
Diagnosi:
Firma
Data del controllo:
Diagnosi:
Firma
Data del controllo:
Diagnosi:
Firma
82
IT
-
1
Lees vóór het eerste gebruik van uw apparaat deze
originele gebruiksaanwijzing, ga navenant te werk en
bewaar hem voor later gebruik of voor een latere eigenaar.
–
Voor de eerste inbedrijfstelling de veiligheidsaanwijzingen nr.
5.956-309 beslist doorlezen!
–
Bij transportschade onmiddellijk de handelaar op de hoogte
brengen.
Aanwijzingen betreffende de inhoudsstoffen (REACH)
Huidige informatie over de inhoudsstoffen vindt u onder:
www.kaercher.com/REACH
Gevaar
Voor een onmiddellijk dreigend gevaar dat leidt tot ernstige en
zelfs dodelijke lichamelijke letsels.
몇
Waarschuwing
Voor een mogelijks gevaarlijke situatie die zou kunnen leiden tot
ernstige en zelfs dodelijke lichamelijke letsels.
Voorzichtig
Voor een mogelijks gevaarlijke situatie die kan leiden tot lichte li-
chamelijke letsels of materiële schade.
Hogedrukstralen kunnen gevaarlijk zijn wanneer on-
deskundigen het apparaat bedienen. U mag de straal
mag niet richten op personen, dieren, onder stroom
staande voorwerpen of de hogedrukreiniger zelf.
–
Overeenkomstige nationale voorschriften van de wetgever
voor stralers van vloeistoffen in acht nemen.
–
Overeenkomstige nationale voorschriften van de wetgever in-
zake ongevallenpreventie in acht nemen. Stralers van vloei-
stoffen moeten regelmatig gecontroleerd worden en het
resultaat van de controle moet schriftelijk vastgelegd worden.
–
De verwarmingseenheid van het apparaat is een stookinrich-
ting. Stookinrichtingen moeten regelmatig gecontroleerd wor-
den volgens de nationale voorschriften van de wetgever.
–
Bij het gebruik van de installatie in ruimten dient er voor een
veilige afvoer van de uitlaatgassen te worden gezorgd (rook-
gasbuis zonder trekonderbreker). Bovendien moet er vol-
doende toevoer van frisse lucht zijn gewaarborgd.
–
Veiligheidsvoorschriften die bij de gebruikte reinigingsmidde-
len geleverd zijn (doorgaans op het verpakkingsetiket) in acht
nemen.
Voordat het apparaat wordt geïnstalleerd dient er overleg plaats
te vinden met het gasbedrijf en de bevoegde en gediplomeerde
regionale schoorsteenveger.
Tijdens de installatie dient men zich aan de voorschriften van het
bouwrecht, het nijverheidsrecht en de immissiebescherming te
houden. Verwezen wordt met name op de volgende voorschrif-
ten, richtlijnen en normen:
–
Het apparaat mag uitsluitend geïnstalleerd worden door een
vakbedrijf dat de overeenkomstige nationale voorschriften in
acht neemt.
–
Bij de elektrische installatie dient men zich aan de betreffende
nationale voorschriften van de wetgever te houden.
–
Bij de gasinstallatie dient men zich aan de betreffende natio-
nale voorschriften van de wetgever te houden.
–
De gasleidingen en de gasaansluiting van het apparaat mo-
gen uitsluitend door een voor gas- en wateraansluitingen be-
voegd vakbedrijf worden geïnstalleerd en aangesloten.
–
Instellingen, onderhoudswerkzaamheden en herstellingen
aan de brander mogen uitsluitend uitgevoerd worden door
geschoolde Kärcher-klantenservicemonteurs.
–
Bij de planning van een schoorsteen moeten de lokaal gel-
dende richtlijnen in acht genomen worden.
Inhoudsopgave
Zorg voor het milieu . . . . . .
NL . . 1
Symbolen in de gebruiksaanwijzing
NL . . 1
Symbolen op het toestel . . .
NL . . 1
Algemene veiligheidsinstructies
NL . . 1
Reglementair gebruik . . . . .
NL . . 2
Functie . . . . . . . . . . . . . . . .
NL . . 2
Veiligheidsinrichtingen. . . . .
NL . . 2
Apparaat-elementen . . . . . .
NL . . 3
Inbedrijfstelling . . . . . . . . . .
NL . . 4
Bediening . . . . . . . . . . . . . .
NL . . 4
Buitenwerkingstelling . . . . .
NL . . 6
Stillegging . . . . . . . . . . . . . .
NL . . 6
Opslag. . . . . . . . . . . . . . . . .
NL . . 6
Vervoer . . . . . . . . . . . . . . . .
NL . . 6
Technische gegevens . . . . .
NL . . 7
Onderhoud . . . . . . . . . . . . .
NL . . 9
Hulp bij storingen . . . . . . . .
NL . 11
Toebehoren . . . . . . . . . . . . .
NL . 13
Installatievoorschriften . . . .
NL . 14
EG-conformiteitsverklaring .
NL . 19
Garantie . . . . . . . . . . . . . . .
NL . 19
Klantenservice. . . . . . . . . . .
NL . 20
Zorg voor het milieu
Het verpakkingsmateriaal is herbruikbaar. Deponeer
het verpakkingsmateriaal niet bij het huishoudelijk af-
val, maar bied het aan voor hergebruik.
Onbruikbaar geworden apparaten bevatten waarde-
volle materialen die geschikt zijn voor hergebruik. Le-
ver de apparaten daarom in bij een inzamelpunt voor
herbruikbare materialen. Batterijen, olie en dergelijke
stoffen mogen niet in het milieu belanden. Verwijder
overbodig geworden apparatuur daarom via geschik-
te inzamelpunten.
Gelieve motorolie, stookolie, diesel en benzine niet in het milieu
te laten terechtkomen. Gelieve de bodem te beschermen en
oude olie op milieuvriendelijke manier te verwijderen.
Kärcher-reinigingsmiddelen zijn afscheidingsvriendelijk (ASF).
Dit betekent dat een olie-afscheider zijn werk naar behoren kan
doen. Een lijst met aanbevolen reinigingsmiddelen is in het
hoofdstuk „Toebehoren“ vermeld.
Symbolen in de gebruiksaanwijzing
Symbolen op het toestel
Algemene veiligheidsinstructies
Voorschriften, richtlijnen en regels
83
NL
-
2
De werkplaats is achter het bedieningpaneel. Meer werkplaatsen
bevinden zich al naar gelang de opbouw van de installatie aan de
optioneel aangesloten apparatuur (spuit-installaties), die aan de
tappunten worden aangesloten.
–
Draag de juiste beschermende kleding en een veiligheidsbril
ter bescherming tegen terugspattend water.
Het apparaat dient voor het verwijderen van vuil van oppervlak-
ken door middel van een vrij uittredende waterstraal. Het wordt
vooral voor de reiniging van machines, voertuigen en fassaden
toegepast.
Gevaar
Verwondingsgevaar! Bij het gebruik aan tankstations of andere
gevaarlijke zones overeenkomstige veiligheidsvoorschriften in
acht nemen.
–
Het koude water loopt door de motorkoelslang in de vlotter-
container en van daaruit in de buitenmantel van de doorloop-
geiser en verder naar de aanzuigkant van de hogedrukpomp.
In de vlottercontainer wordt onthardingsmiddel toegevoegd.
De pomp transporteert water en aangezogen reinigingsmid-
del door de doorloopgeiser. Het reinigingsmiddelgehalte in
het water kan door een doseerventiel worden ingesteld. De
doorloopgeiser wordt door middel van een gasbrander ver-
warmd.
–
De hogedrukuitgang wordt op een in het gebouw aanwezig
hogedruknet aangesloten. De handspuitlans wordt met een
hogedrukslang op de tappunten van dit net aangesloten.
Veiligheidsinrichtingen dienen voor de bescherming van de ge-
bruiker en mogen niet buiten werking gezet of in hun functie om-
zeild worden.
De watertekortbeveiliging voorkomt dat de hogedrukpomp bij een
tekort aan water inschakelt.
De watertekortbeveiliging voorkomt dat de brander bij een tekort
aan water oververhit raakt. Alleen bij voldoende watertoevoer
gaat de brander aan.
De drukschakelaar schakelt het apparaat bij het overschrijden
van de werkdruk uit. De instelling mag niet worden veranderd.
Bij een storing van de drukschakelaar gaat het veiligheidsventiel
open. Dit ventiel is vanuit de fabriek ingesteld en verzegeld. De
instelling mag niet worden veranderd.
Bij een tekort aan brandstof of bij een storing van de brander
schakelt de vlambewaking de brander uit. De controlelamp sto-
ring brander (E) gaat branden.
Als de brandermotor geblokkeerd is, treedt de overstroombevei-
ligingsschakelaar in werking. De motor van de hogedrukpomp is
met een motorbeveiligingsschakelaar en een spoelveiligheids-
schakelaar beveiligd.
De rookgasthermostaat treedt in werking, als de temperatuur van
het rookgas hoger wordt dan 320 °C. de controlelamp rookgas-
thermostaat (K) brandt.
De maximale-temperatuurbegrenzer in de bodem van de ketel (>
80 °C) en in de wateruitgang (> 110 °C) treden in werking en de
controlelamp storing brander (E) brandt.
De rookgasdrukschakelaar zet de brander uit als in het rookgas-
systeem een ontoelaatbaar hoge tegendruk optreedt, bijv. bij ver-
stopping.
Nadat het apparaat via het handspuitpistool is uitgezet, opent na
het verstrijken van de bedrijfsgereedheidstijd een in het hoge-
druksysteem ingebouwde magneetklep, waardoor de druk ver-
mindert.
Werkplaatsen
Persoonlijke bescherming
Bij het reinigen van geluidsversterkende onder-
delen dient men gehoorbescherming te dragen
ter voorkoming van gehoorbeschadigingen.
Reglementair gebruik
Gelieve mineraaloliehoudend afvalwater niet in de grond, water-
lopen of rioleringen laten terechtkomen. Gelieve de motorreini-
ging en bodemreiniging daarom alleen op geschikte plaatsen
met olieafscheider uit te voeren.
Functie
Veiligheidsinrichtingen
Watertekortbeveiliging vlotterhouder
Watertekortbeveiliging beveiligingsblok
Drukschakelaar
Veiligheidsklep
Vlambewaking
Overstroombeveiliging
Rookgasthermostaat
Temperatuurbegrenzer
Rookgasdrukschakelaar
Drukontlasting hogedruksysteem
84
NL
-
3
Afbeelding 1
1 Brander
2 Manometer
3 Toevoer vers water met filter
4 Hogedruk-uitgang
5 Gasaansluiting
6 Reinigingsmiddel-zuigslang I
7 Reinigingsmiddel-zuigslang II (optie)
8 Onthardingsmiddel-reservoir
9 Elektrische toevoerleiding
10 Vlotterhouder
11 Bedieningsveld
Afbeelding 2
A Apparaatschakelaar
B Temperatuursinstelling
C Reinigingsmiddel-doseerventiel I
D Reinigingsmiddel-doseerventiel II (optie)
E Controlelampje storing brander
F Controlelampje bedrijfsklaarheid
G Controlelampje oververhitting motor
H Controlelampje verkalkingsbeveiliging
I
Ontgrendelingsknop gasrelais
J Ontgrendelingsknop rookgasthermostaat
K Controlelampje rookgasthermostaat
Apparaat-elementen
4
5
6
7
3
8
10
1
11
2
9
Bedieningsveld
85
NL
-
4
몇
Gevaar
Verwondingsgevaar! Apparaat, toevoerleidingen, hogedrukslang
en aansluitingen moeten in een perfecte toestand zijn. Indien de
toestand niet perfect is, mag het apparaat niet gebruikt worden.
–
Aansluitwaarden zie Technische gegevens en typeplaatje.
–
De elektrische aansluiting moet uitgevoerd worden door een
electricien en moet voldoen aan IEC 60364-1.
De gebruiker moet het apparaat voor het juiste doel gebruiken.
De gebruiker moet rekening houden met de plaatselijke omstan-
digheden en speciaal letten op personen die zich in de buurt be-
vinden.
Laat het apparaat niet zonder toezicht achter zolang het aan
staat.
Gevaar
–
Gevaar voor verbranding door heet water! Richt de hogedruk-
straal niet op mensen of dieren.
–
Verbrandingsgevaar door hete onderdelen van de installatie!
Bij gebruik met heet water mogen de niet-geïsoleerde buizen
en slangen niet worden aangeraakt. Straalpijp alleen bij de
greep rond de buis vasthouden. Raak de rookgasmof van de
doorloopgeiser niet aan.
–
De reinigingsmiddelen levert gevaar voor vergiftiging of ver-
branding op! Neem de aanwijzingen op de reinigingsmidde-
len. Bewaar reinigingsmiddelen op een plaats waar
onbevoegden niet bij kunnen.
Gevaar
Levensgevaar door elektrische schok! Richt de waterstraal niet
op de volgende zaken:
–
Elektrische apparaten en installaties,
–
de hier beschreven installatie zelf,
–
alle stroomvoerende voorwerpen binnen het werkgebied.
Door de waterstraal uit de straalpijp ontstaat een terugslagkracht.
Doordat de straalpijp gebogen is, treedt er een opwaartse kracht
op.
Gevaar
–
Verwondingsgevaar! De terugslag van de straalpijp kan u uit
uw evenwicht brengen. U kunt vallen. De straalpijp kan in het
rond vliegen en personen verwonden. Kies een veilige plek
en houd het pistool goed vast. Klem de hendel van het hand-
spuitpistool nooit vast.
–
Richt de straal niet op anderen of uzelf, teneinde kleding of
schoenen te reinigen.
–
Verwondingsgevaar door wegvliegende onderdelen! Weg-
vliegende brokstukken of voorwerpen kunnen personen of
dieren verwonden. Richt de waterstraal nooit op breekbare of
losse voorwerpen.
–
Kans op ongelukken door beschadiging! Reinig wielen en
ventielen met een minimale afstand van 30 cm.
몇
Waarschuwing
Gevaar door gezondheidsschadelijke stoffen! Spuit de volgende
materialen niet af, omdat gezondheidsschadelijke stoffen in de
lucht kunnen worden verspreid:
–
Asbesthoudende materialen,
–
Materialen, die mogelijk gezondheidsschadelijke stoffen be-
vatten.
Gevaar
–
Verwondingsgevaar door naar buiten komende, eventueel
hete waterstraal! Alleen originele Kärcher-hogedrukslangen
zijn optimaal op de installatie afgestemd. Als er andere slan-
gen worden gebruik zijn wij niet aansprakelijk.
–
Gezondheidsgevaar door reinigingsmiddel! Door eventueel
bijgemengde reinigingsmiddelen heeft het door het apparaat
afgegeven water geen drinkwaterkwaliteit.
–
Gevaar voor gehoorbeschadiging door het werken aan ge-
luidsversterkende onderdelen. Draag in dit geval gehoorbe-
scherming.
Gevaar
Verwondingsgevaar door naar buiten komende, eventueel hete
waterstraal!
Gevaar
Controleer de hogedrukslang vóór ieder gebruik altijd op bescha-
digingen. Vervang een beschadigde hogedrukslang onmiddellijk.
Controleer de hogedrukslang, de leidingen, armaturen en de
straalpijp voor elk gebruik op beschadigingen.
Controleer of de slangkoppeling goed vast zit en niet lek is.
Voorzichtig
Gevaar voor beschadigingen door drooglopen.
Peil reinigingsmiddeltank controleren en indien nodig bijvullen.
Peil onthardingsvloeistof controleren en indien nodig bijvullen.
Apparaatschakelaar (A) op “0“ zetten.
Watertoevoer sluiten.
Handspuitpistool bedienen tot het apparaat drukvrij is.
Sluit de gastoevoer.
Inbedrijfstelling
Stroomaansluiting
Bediening
Veiligheidsaanwijzingen
!
Klaarmaken voor bedrijf
Uitschakelen in noodgevallen
86
NL
-
5
Volumeregelklep in de richting van de wijzers van de klok
draaien, bewerkstelligd een hogere werkdruk en een groter
volume.
Volumeregelklep tegen de richting van de wijzers van de klok
draaien, bewerkstelligd een lagere werkdruk en een lager vo-
lume.
Het naar rechts draaien van de watervolume-regelaar geeft
meer water en een hogere werkdruk.
Het naar links draaien van de watervolume-regelaar geeft
minder water en een lagere werkdruk.
Open de watertoevoer.
Symbool „Motor aan“
Trek aan de hendel van het handspuitpistool en zet de appa-
raatschakelaar (A) op „1“ (Motor aan).
Het controlelampje Klaar-voor-gebruik (F) geeft aan dat het
apparaat bedrijfsklaar is.
Gevaar
Verbrandingsgevaar!
Voorzichtig
Werken met heet water zonder brandstof leidt tot beschadigingen
aan de brandstofpomp. Zorg voor het werken met heet water dat
de brandstoftoevoer voorhanden is.
De brander kan eventueel ook worden ingeschakeld.
Symbool „Brander aan“
Apparaatschakelaar (A) op “Brander aan“ zetten.
Gewenste watertemperatuur instellen op de temperatuurre-
gelaar (B). De maximale temperatuur is 98 °C.
–
Als tijdens het gebruik de hendel van het handpistool wordt
losgelaten, gaat het apparaat uit.
–
Als het pistool tijdens de regelbare stand-by-tijd weer wordt ge-
opend (2-8 minuten), dan gaat het apparaat vanzelf weer aan.
–
Als men de stand-by-tijd laat verstrijken, schakelt de veilig-
heidstijdschakelaar de pomp en de brander uit. Het controle-
lampje Klaar-voor-gebruik (F) dooft.
–
Om het apparaat weer aan te zetten moet u de apparaatscha-
kelaar eerst op „0“ zetten en dan weer inschakelen. Als het
apparaat met een afstandsbediening wordt bediend, kan men
ook de betreffende schakelaar op de afstandsbediening ge-
bruiken om het apparaat weer aan te zetten.
–
Reinig banden van voertuigen uitsluitend met een vlakstraal-
sproeier (25°) en een minimale spuitafstand van 30 cm. Ban-
den mogen in geen geval met de rondstraler worden
gereinigd.
Voor alle andere taken kunt u uit de volgende sproeiers kiezen:
Bij meer dan 20 m buizen of meer dan 2 x 10 m hogedrukslang
NW 8 moeten de volgende sproeiers worden toegepast:
Werkdruk en volume instellen
Instelling op het apparaat.
Instelling van het Easy-perspistool (optie)
Werken met koud water
Werken met heet water
R
Gebruik stand-by functie
De juiste lans of sproeier kiezen
Vuil
Sproeier
Spuit-
hoek
Onder-
deelnr.
6.415
Druk
[MPa]
Terug-
slag [N]
HDS 9/16
hard
00060
0°
-649
16
46
middel-
hard
25060
25°
-647
licht
40060
40°
-648
HDS 12/14
hard
00080
0°
-150
14
55
middel-
hard
25080
25°
-152
licht
40080
40°
-153
Vuil
Sproeier
Spuit-
hoek
Onder-
deelnr.
6.415
Druk
[MPa]
Terug-
slag [N]
HDS 9/16
hard
0075
0°
-419
10
37
middel-
hard
2575
25°
-421
licht
4075
40°
-422
HDS 12/14
hard
0010
0°
-082
10
46
middel-
hard
2510
25°
-252
licht
4010
40°
-253
87
NL
-
6
–
Reinigingsmiddelen maken het schoonmaken gemakkelijker.
Ze worden uit een externe reinigingsmiddeltank aangezogen.
–
Het apparaat is in de basisuitvoering uitgerust met een do-
seerventiel (C). Een tweede doseervoorziening (doseerven-
tiel D) is als accessoire verkrijgbaar. Dan heeft u de
mogelijkheid twee verschillende reinigingsmiddelen aan te
zuigen.
–
De gedoseerde hoeveelheid wordt met de reinigingsmiddel-
doseerventielen (C of D) op het bedieningspaneel ingesteld.
De ingestelde waarde komt overeen met het reinigingsmid-
delgehalte in procenten.
–
De buitenste schaal geldt bij het gebruik van onverdund reini-
gingsmiddel (100 % CHEM).
–
De binnenste schaal geldt bij het gebruik van 1+3 voorver-
dund reinigingsmiddel (25 % CHEM + 75% water).
De volgende tabel geeft het reinigingsmiddelverbruik voor de
waarden op de buitenste schaal weer:
De exact gedoseerde hoeveelheid is afhankelijk van:
–
Viscositeit van het reinigingsmiddel
–
Zuighoogte
–
Stromingsweerstand van de hogedrukleiding
Als er een exacte dosering nodig is, dan moet de aangezogen
hoeveelheid reinigingsmiddel worden gemeten (bijv. door aan-
zuigen uit een maatbeker).
Instructie:
Aanbevelingen betreffende reinigingsmiddelen vindt
u in het hoofdstuk „Accessoires“.
Voorzichtig
Door gebruik zonder onthardingsmiddel kan de doorloopgeiser
verkalken.
Als het onthardingsmiddelreservoir leeg is, knippert het controle-
lampje Verkalkingsbeveiliging (H).
Afbeelding 1 - pos. 8
Onthardingsmiddelreservoir bijvullen met onthardingsvloei-
stof RM 110 (2.780-001).
Gevaar
Verbrandingsgevaar door heet water! Na de werking met heet
water moet het apparaat ter afkoeling minstens twee minuten
met koud water en met geopend pistool gebruikt worden.
Bij gebruik met heet water de temperatuurregelaar (B) op de
laagste temperatuur zetten.
Apparaat tenminste 30 seconden lang zonder reinigingsmid-
del gebruiken.
Apparaatschakelaar (A) op “0“ zetten.
Watertoevoer sluiten.
Handspuitpistool bedienen tot het apparaat drukvrij is.
Handspuitpistool met veiligheidspal beveiligen tegen onbe-
doeld openen.
Bij langere werkonderbrekingen of als vorstvrije opslag niet mo-
gelijk is, dienen de volgende maatregelen te worden genomen
(zie het hoofdstuk „Onderhoudsvoorschriften“,de paragraaf over
„Vorstbeveiliging“ :
Water aflaten.
Apparaat met antivriesmiddel spoelen.
Hoofdschakelaar uitschakelen en borgen c.q. Cekon-stekker
uittrekken.
Sluit de gastoevoer.
Voorzichtig
Gevaar voor letsel en beschadiging! Het gewicht van het appa-
raat bij opbergen in acht nemen.
Voorzichtig
Gevaar voor letsels en beschadigingen! Houd bij het transport re-
kening met het gewicht van het apparaat.
Bij het transport in voertuigen moet het apparaat conform de
geldige richtlijnen beveiligd worden tegen verschuiven en
kantelen.
Doseren reinigingsmiddel
Stand
0,5
1
8
Hoeveelheid reinigingsmiddel [l/h]
14...15 22...24
50
Reinigingsmiddelconcentratie [%]
1,5
2,5
> 5
Ontharder bijvullen
Buitenwerkingstelling
Na het gebruik met reinigingsmiddel
Apparaat uitschakelen
Stillegging
Opslag
Vervoer
88
NL
-
7
Technische gegevens
HDS 9/16-4
ST Gas
HDS 9/16-4
ST Gas LPG
HDS 12/14-4
ST Gas
HDS 12/14-4
ST Gas LPG
1.251-108
1.251-109
1.251-110
1.251-111
Capaciteit
Werkdruk water (met standaardsproeier)
MPa (bar)
16 (160)
16 (160)
14 (140)
14 (140)
Max. bedrijfsoverdruk (veiligheidsklep)
MPa (bar)
18,5 (185)
18,5 (185)
18,5 (185)
18,5 (185)
Opgepompte hoeveelheid water (traploos regelbaar)
l/h (l/min)
500-1000 (8,3-
16,6)
500-1000 (8,3-
16,6)
600-1200 (10-
20)
600-1200 (10-
20)
Rijsnelheid (traploos regelbaar):
l/h (l/min)
0-50 (0-0,8)
0-50 (0-0,8)
0-60 (0-1)
0-60 (0-1)
Wateraansluiting
Toevoerhoeveelheid (min.)
l/h (l/min)
1100 (18,3)
1100 (18,3)
1300 (21,7)
1300 (21,7)
Toevoerdruk (min.)
MPa (bar)
0,1 (1)
0,1 (1)
0,1 (1)
0,1 (1)
Toevoerdruk (max.)
MPa (bar)
0,6 (6)
0,6 (6)
0,6 (6)
0,6 (6)
Elektrische aansluiting
Stroomsoort
--
3N~
3N~
3N~
3N~
Frequentie
Hz
50
50
50
50
Spanning
V
380-420
380-420
380-420
380-420
Aansluitvermogen
kW
6,4
6,4
7,5
7,5
Elektrische afzekering (traag)
A
16
16
20
20
Beveiligingsklasse
--
IPX5
IPX5
IPX5
IPX5
Beschermingsklasse
--
I
I
I
I
Maximum toegelaten netimpedantie
Ohm
(0,381+j
0,238)
(0,381+j
0,238)
--
--
Elektrische toevoerleiding
mm
2
5 x 2,5
5 x 2,5
5 x 2,5
5 x 2,5
Temperatuur
Toevoertemperatuur (max.)
°C
30
30
30
30
Max. werktemperatuur heet water
°C
98
98
98
98
Max. temperatuur beveiligingsthermostaat
°C
110
110
110
110
Temperatuursverhoging bij max. waterdoorvoer
°C
60-65
60-65
60-65
60-65
Verwarmingscapaciteit bruto
kW
75
75
95
95
Schoorsteentrek
kPa
0,01-0,04
0,01-0,04
0,01-0,04
0,01-0,04
Gas-aansluitwaarden
Aardgas E (G 20)
m
3
/h
7,2
--
9,8
--
Aardgas LL (G 25)
m
3
/h
8,2
--
11,4
--
Nominale aansluitdruk (aardgas)
kPa
1,8-5
--
1,8-5
--
Propaan
kg/h
--
5,7
--
7,2
Nominale aansluitdruk (propaan)
kPa
--
5-6
--
5-6
Milieutechnische gegevens
Norm-benuttingsgraad
%
97
97
97
97
Norm-emissiefactor NO
X
(aardgas G 25)
mg/kWh
< 40
--
< 40
--
Norm-emissiefactor CO (aardgas G 25)
mg/kWh
< 40
--
< 40
--
Waarden voor het meten van de schoorsteen
Geschiktheid voor overdruk (min.)
kPa
0,05
0,05
0,05
0,05
Benodigde trek
kPa
0
0
0
0
Rookgasmassastroom - vollast
kg/h
130
130
166
166
CO
2
(aardgas)
%
9,5
--
9,5
--
CO
2
(propaan)
%
--
12
--
12
Rookgastemperatuur max./min.
°C
190/150
190/150
170/130
170/130
Verbrandingslucht/luchttoevoer
Max. lengte: 10 m met twee bogen van 90° (minimale diameter 100 mm).
Volgens de plaatselijk geldende voorschriften uit de installatieruimte of ver-
se lucht van buiten.
Condenswaterafvoer
Condenswaterafvoer (max.)
l/h
4 (via sifon in
kanalisatie)
4 (via sifon in
kanalisatie)
4 (via sifon in
kanalisatie)
4 (via sifon in
kanalisatie)
Aansluiting
DN
40 (HTR)
40 (HTR)
40 (HTR)
40 (HTR)
Minimale waterzuil, sifon
mm
300
300
300
300
89
NL
-
8
Toelating EN 60335-2-79
Toelating volgens Gas Appliance Directive (90/396/EEC) --
Gastec QA
Low NO
X
Gastec QA
Gastec QA
Low NO
X
Gastec QA
Apparaat-categorie Europa
--
I 2E (r), I
2ELL, I 2H, I
2L, I2 HE
I 3P
I 2E (r), I
2ELL, I 2H, I
2L, I2 HE
I 3P
Apparaattype
--
B23, C33,
C43, C53
B23, C33,
C43, C53
B23, C33,
C43, C53
B23, C33,
C43, C53
CE-product-identificatienummer
--
PIN 0063 BN
3880
PIN 0063 BN
3880
PIN 0063 BN
3880
PIN 0063 BN
3880
Maten en gewichten
Lengte
mm
1124
1124
1124
1124
Breedte
mm
558
558
558
558
Hoogte
mm
966
966
1076
1076
Typisch bedrijfsgewicht
kg
193,5
193,5
209
209
Bepaalde waarden conform EN 60355-2-79
Geluidsemissie
Geluidsdrukniveau L
pA
dB(A)
74
74
76
76
Onzekerheid K
pA
dB(A)
1
1
1
1
Hand-arm vibratiewaarde
Handspuitpistool
m/s
2
2,2
2,2
2,3
2,3
Staalbuis
m/s
2
1,8
1,8
2,1
2,1
Onzekerheid K
m/s
2
1,0
1,0
1,0
1,0
HDS 9/16-4
ST Gas
HDS 9/16-4
ST Gas LPG
HDS 12/14-4
ST Gas
HDS 12/14-4
ST Gas LPG
Maatblad
90
NL
-
9
Gevaar
Verwondingsgevaar! Vóór alle onderhouds- en reparatiewerk-
zaamheden moet de hoofdschakelaar uitgeschakeld c.q. de Ce-
kon-stekker uitgetrokken worden.
Onderhoud
Onderhoudsschema
Tijdstip
Handeling
Betrokken component
Uitvoering
door wie
dagelijks
Handspuitpi-
stool controleren
Handspuitpistool
Controleer of het handspuitpistool lekvrij afsluit.
Controleer of de beveiliging tegen onbedoeld ge-
bruik goed functioneert. Vervang defecte hand-
spuitpistolen.
Bediener
Controleer hoge-
drukslangen
Uitgangsleidingen, slangen
naar de apparatuur
Inspecteer slangen op beschadiging. Vervang
defecte slangen direct. Kans op ongelukken!
Bediener
Aansluitkabel
met stekker con-
troleren
Elektrische aansluiting met
stekker / contactdoos
Aansluitkabel met stekker controleren op be-
schadigingen. Laat beschadigde voedingskabels
onmiddellijk vervangen door een bevoegde me-
dewerker van de technische dienst of een elek-
tro-vakman.
Bediener
Na 40 bedrijfsuren
of wekelijks
Conditie van de
olie controleren
Olietank van de pomp
Als de olie melkachtig is, dient het te worden ver-
vangen.
Bediener
Controleer de
oliestand
Olietank van de pomp
Controleer het oliepeil in de pomp. Indien nodig
olie (bestelnr. 6.288-016) bijvullen.
Bediener
Zeef reinigen
Zeef in de watertoegang
Zie paragraaf „Zeef reinigen“.
Bediener
maandelijks of na
200 bedrijfsuren
Pomp controle-
ren
Hogedrukpomp
Inspecteer de pomp op lekkage. Contacteer de
klantendienst bij meer dan 3 druppels per mi-
nuut.
Bediener
op afzettingen
van binnen con-
troleren
gehele installatie
Zet de installatie met straalpijp zonder hogedruk-
spuit aan. Als de bedrijfsdruk op de manometer
van het apparaat boven 3 MPa komt, moet de in-
stallatie worden ontkalkt. Dit geldt ook, als bij het
gebruik zonder hogedrukleiding (water treedt bij
de hogedrukuitlaat vrij uit) een bedrijfsdruk van
meer dan 0,7–1 MPa wordt vastgesteld.
Voor ontkal-
king inge-
werkte
bediener
Zeef reinigen
Zeef in watertekort-beveiliging Zie paragraaf „Zeef reinigen“.
Bediener
na 500-700 be-
drijfsuren
Vervangen
Gloeiontsteker, ionisatie-elek-
trode
Gloeiontsteker of ionisatie-elektrode vervangen. Klantenser-
vice
elke zes maanden
of na 1000 be-
drijfsuren
Olieverversing
Hogedrukpomp
Olie aftappen. 1 l nieuwe olie (bestelnr. 6.288-
016) bijvullen. Controleer het vulpeil van de olie-
tank.
Bediener
controleren, rei-
nigen
gehele installatie
Visuele controle van de installatie, hogedrukaan-
sluiting op lekken controleren, overstroomventiel
op lekken controleren, hogedrukslang controle-
ren, druktank controleren, verwarmingsslang
ontkalken, ionisatie-elektrode reinigen / vervan-
gen, brander instellen.
Klantenser-
vice
Slang vervangen Slang naar de gasdrukschake-
laar
Slang vervangen.
Klantenser-
vice
jaarlijks
Veiligheidscon-
trole
gehele installatie
Veiligheidscontrole volgens de overeenkomstige
nationale wettelijke voorschriften voor vloeistof-
sproeiers uitvoeren.
Deskundige
91
NL
-
10
Met het bevoegde Kärcher-verkoopkantoor kan een onderhouds-
contract voor het apparaat worden afgesloten.
Afbeelding 1 - pos. 3
Watertoevoer sluiten.
Watertoevoerslang van het apparaat afschroeven.
Zeef met een schroevendraaier uit de aansluiting schuiven.
Zeef reinigen
Plaats de onderdelen weer terug in omgekeerde volgorde.
Verwijder de afdekplaten.
Hoekstuk van het beveiligingsblok afschroeven.
Schroef M8x30 in de zeef draaien.
Schroef en zeef er met een tang uittrekken.
Zeef reinigen
Plaats de onderdelen weer terug in omgekeerde volgorde.
Bij afzettingen in de buizen stijgt de stromingsweerstand, zodat
de drukschakelaar kan reageren.
Gevaar
Explosiegevaar door brandbare gassen! Roken is tijdens het ont-
kalken verboden. Zorg voor goede ventilatie.
Gevaar
Gevaar van inbrandende zuren! Veiligheidsbril en veiligheids-
handschoenen dragen.
Voor de verwijdering mogen volgens wettelijke bepalingen uit-
sluitend goedgekeurde ketelsteen-oplosmiddelen met keurmerk
worden gebruikt.
–
RM 100 (Best.-Nr. 6.287-008) zorgt dat kalksteen en eenvou-
dige verbindingen van kalksteen en wasmiddelafzettingen
oplossen.
–
RM 101 (Best.-Nr. 6.287-013) lost afzettingen op die met RM
100 niet verwijderd kunnen worden.
Vul een tank van 20 liter met 15 liter water.
Voeg één liter ketelsteen-oplosmiddel toe.
Sluit de waterslang direct op de pompkop aan en laat het vrije
uiteinde in de tank hangen.
Steek de aangesloten straalpijp zonder sproeier in de tank.
Open het handspuitpistool en sluit het tijdens het ontkalken niet.
Apparaatschakelaar op „Brander aan“ schakelen, tot ca. 40
°C zijn bereikt.
Zet het apparaat uit en laat het 20 minuten staan. Het hand-
spuitpistool moet geopend blijven.
Pomp het apparaat tenslotte leeg.
Tip:
Wij raden aan ter bescherming tegen corrosie en voor de
neutralisering van de zuurresten aansluitend een alkalische op-
lossing (bijv. RM 81) via het reinigingsmiddelreservoir door het
apparaat te pompen.
Het apparaat moet in vorstvrije ruimtes worden geplaatst. Indien
er gevaar voor vorst bestaat, bijv. bij installaties buiten, moet het
apparaat leeg worden gemaakt en met anti-vriesmiddel worden
doorgespoeld.
Watertoevoerslang en hogedrukslang losschroeven.
Apparaat max. 1 minuuut laten draaien tot de pomp en de lei-
dingen leeg zijn.
Toevoerleiding aan de bodem van de ketel afschroeven en
heetwaterslang leeg laten lopen.
Instructie:
Behandelingsvoorschriften van de fabrikant van het
antivriesmiddel in acht nemen.
In de handel gebruikelijke antivries tot bovenaan in vlotter-
container vullen.
Opvangbak onder de hogedruk-uitgang zetten.
Zet het apparaat aan en laat het zolang lopen tot de waterte-
kortbeveiliging van de vlottercontainer aanspringt en het ap-
paraat uitzet.
Vul de bodem van de ketel en de sifon met antivries.
Daardoor wordt ook een bepaalde corrosiebescherming bereikt.
Onderhoudscontract
Zeven reinigen
Zeef in watertoevoer
Zeef in watertekort-beveiliging
Ontkalken
Uitvoering
2.
1.
Vorstbescherming
Water aflaten
Apparaat met antivriesmiddel spoelen
92
NL
-
11
Gevaar
Verwondingsgevaar! Vóór alle onderhouds- en reparatiewerk-
zaamheden moet de hoofdschakelaar uitgeschakeld c.q. de Ce-
kon-stekker uitgetrokken worden.
*
Waarschuwing
Ontgrendelingsknop rookgasthermostaat (J) activeren om vlam-
bewaking te ontgrendelen.
Hulp bij storingen
Storing
Mogelijke oorzaak
Oplossing
door wie
Apparaat werkt niet, het con-
trolelampje Klaar-voor-ge-
bruik (F) brandt niet
Het apparaat heeft geen spanning. Controleer het elektriciteitsnet.
Electricien
Veiligheidstijdschakelaar werkt.
Schakel het apparaat kort met de apparaat-
schakelaar uit en daarna weer aan.
Bediener
Zekering in het besturingscircuit
(F3) is doorgebrand Zekering be-
vindt zich in de besturingstrafo
(T2).
Plaats een nieuwe zekering, zoek als deze
weer doorbrand de reden voor de overbelas-
ting en hef deze op.
Klantenservice
Drukschakelaar HD (hoge druk) of
ND (lage druk) defect.
Controleer de drukschakelaar.
Klantenservice
Timer module (A1) defect.
Controleer de aansluitingen en vervang in-
dien nodig.
Klantenservice
+ controlelampje oververhit-
ting motor (G) brandt
Thermosensor (WS) in de motor of
overstroombeveiligingsschakelaar
(F1) is aangesprongen.
Oorzaak van de overbelasting verhelpen.
Klantenservice
Watertekortbeveiliging in de vlot-
terhouder is aangesprongen.
Oorzaak van het tekort aan water verhelpen. Bediener
Brander ontsteekt niet of
vlam gaat uit tijdens het be-
drijf
Temperatuurregelaar (B) is te laag
ingesteld.
Temperatuurregelaar hoger zetten.
Bediener
Apparaatschakelaar staat niet op
brander.
Zet brander aan.
Bediener
Watertekortbeveiliging van het be-
veiligingsblok is aangesprongen.
Zorg voor voldoende watertoevoer. Contro-
leer het apparaat op lekkages.
Bediener
Gaskraan gesloten.
Gaskraan openen.
Bediener
Begrenzer maximale temperatuur
in de wateruitvoer (> 110 °C) is in
werking gezet.
Laat de ketel afkoelen en start het apparaat
opnieuw.
Bediener
Controleer de temperatuurregelaar.
Klantenservice
De controlelamp rookgas-
thermostaat (K) brandt
Geen gastoevoer.
Open de gastoevoer.
Bediener
Luchtaan- of afvoer is verstopt.
Controleer de ventilatie en het uitlaatsy-
steem.
Bediener
Bodem van de ketel is te heet. Be-
grenzer maximale temperatuur in
de bodem van de ketel (> 80 °C) is
in werking gezet. Geen condens-
water op de bodem van de ketel.
Laat 5 liter water via de rookgas-meetmof in
de ketel lopen.
Bediener
Gasontstekingsautomaat staat op
storing.
Ontgrendelingsknop gasrelais (I) indrukken. Bediener
Geen ontsteking. *
Controleer de afstand van de elektroden van
de gasontstekingsautomaat en het ontste-
kingskabel. Zorg voor de juiste afstand of
vervang defecte onderdelen. Indien nodig
schoonmaken.
Klantenservice
Ventilator of toerentalbesturings-
print defect. *
Ventilator of toerentalbesturingsprint contro-
leren. Stekker en kabel controleren. Vervang
defecte onderdelen.
Klantenservice
93
NL
-
12
Storing
Mogelijke oorzaak
Oplossing
door wie
De controlelamp rookgas-
thermostaat (K) brandt
Temperatuurbegrenzer rookgas is
in werking gezet.
Handpistool openen tot de installatie is afge-
koeld. Installatie op het bedieningspaneel uit-
en aanzetten om de temperatuurbegrenzer
te ontgrendelen. Wanneer dit herhaaldelijk
optreedt de klantendienst roepen.
Bediener
De controlelamp Verkal-
kingsbeveiliging (K) brandt
Ontharder verbruikt.
Ontharder bijvullen.
Bediener
Onvoldoende of geen aan-
voer van reinigingsmiddel
Doseerventiel op stand „0“.
Doseerventiel reinigingsmiddel instellen.
Bediener
Reinigingsmiddelfilter verstopt of
tank leeg.
Schoonmaken of bijvullen.
Bediener
Reinigingsmiddel-zuigslangen, -
doseerventiel of -magneetklep on-
dicht of verstopt.
Controleren, reinigen
Bediener
Elektronica of magneetklep defect. Vervangen
Klantenservice
Het apparaat ontwikkelt on-
voldoende druk
Sproeier uitgespoeld.
Vervang de sproeier.
Bediener
Reinigingsmiddeltank leeg.
Vul reinigingsmiddel bij.
Bediener
Onvoldoende water.
Zorg voor voldoende watertoevoer.
Bediener
Zeef aan watertoevoer is verstopt. Controleer het filter, bouw het uit en reinig
het.
Bediener
Reinigingsmiddeldoseerventiel
lekt.
Controleer en dicht af.
Bediener
Reinigingsmiddelslangen lekken.
Vervangen
Bediener
Vlotterklep klemt.
Controleer de soepele werking.
Bediener
Veiligheidsventiel lekt.
Controleer de instelling, zonodig door nieuwe
afdichting vervangen.
Klantenservice
Volumeregelklep lek of te laag in-
gesteld.
Controleer de onderdelen van het ventiel,
vervang bij beschadiging, reinig bij verontrei-
niging.
Klantenservice
Magneetklep voor drukontlasting
defect.
Vervang de magneetklep.
Klantenservice
Hogedrukpomp klopt, mano-
meter oscilleert sterk
Trillingsdemper defect.
Trillingsdemper vervangen.
Klantenservice
Waterpomp zuigt iets lucht aan.
Controleer het aanzuigsysteem en dicht lek-
ken.
Bediener
Het apparaat schakelt bij ge-
opend handspuitpistool
voortdurend aan/uit
Sproeier in de straalpijp verstopt.
Controleren, reinigen
Bediener
Kalkaanslag in het apparaat.
Zie hoofdstuk „Ontkalken“.
Bediener
Schakelpunt van de overstromer is
veranderd.
Overstromer opnieuw laten instellen.
Klantenservice
Zeef in watertekort-beveiliging ver-
stopt.
Controleer het filter, bouw het uit en reinig
het.
Bediener
Het apparaat schakelt bij ge-
sloten handspuitpistool niet
uit
Pomp is niet helemaal ontlucht.
Zet de apparaatschakelaar op „0“ en hand-
spuitpistool indrukken, tot er geen vloeistof
meer uit de sproeier komt. Zet het apparaat
dan weer aan. Herhaal deze procedure, tot
de volledige bedrijfsdruk is bereikt.
Bediener
Veiligheidsventiel of afdichting vei-
ligheidsventiel defect.
Veiligheidsventiel of afdichting vervangen.
Klantenservice
Drukschakelaar van de overstro-
mer.
Drukschakelaar en overstromer controleren. Klantenservice
94
NL
-
13
Reinigingsmiddelen maken het schoonmaken gemakkelijker. De
tabel geeft een overzicht van het assortiment reinigingsmiddelen.
Voor het gebruik van de reinigingsmiddelen moeten de aanwij-
zingen op de verpakking worden gelezen.
* = alleen voor kortstondig gebruik, tweestapsmethode, met hel-
der water naspoelen
** = ASF = afscheidingsvriendelijk
*** = voor het voorsproeien is Foam-Star 2000 geschikt
Toebehoren
Reinigingsmiddel
Toepassingsgebied
Verontreiniging, soort toepassing Reinigingsmiddel
pH-waarde (ca.) van
een oplossing van 1 %
in leidingwater
Motorvoertuigbranche,
tankstations, expeditie,
wagenparken
Stof, straatvuil, minerale oliën (op
gelakte oppervlakken)
RM 55 ASF **
8
RM 22/80-poeder ASF
12/10
RM 81 ASF
9
RM 803 ASF
10
RM 806 ASF
11
Conserveren voertuig
RM 42 koudwas voor hogedrukreiniger
8
RM 820-hete was ASF
7
RM 821-spuitwax ASF
6
RM 824-Superparelwas ASF
7
RM 44 gel-velgreiniger
9
Metaalverwerkende indu-
strie
Oliën, vetten, stof en dergelijke
verontreinigingen
RM 22-poeder ASF
12
RM 55 ASF
8
RM 81 ASF
9
RM 803 ASF
10
RM 806 ASF
12
RM 31 ASF (zware verontreiniging)
12
RM 39-vloeibaar (beschermt tegen corrosie)
9
Levensmiddelenverwer-
kende bedrijven
Lichte tot middelzware verontreini-
ging, vetten/oliën, grote oppervlak-
ken
RM 55 ASF
8
RM 81 ASF
9
RM 882 schuimgel OSC
12
RM 58 ASF (schuimreinigingsmiddel)
9
RM 31 ASF *
12
Rookhars
RM 33 *
13
Reiniging en desinfectie
RM 732
9
Desinfectie
RM 735
7...8
Kalk, minerale afzettingen
RM 25 ASF *
2
RM 59 ASF (schuimreinigingsmiddel)
2
Sanitair ***
Kalk, urinesteen, zeepresten etc.
RM 25 ASF * (basisreiniging)
2
RM 59 ASF (schuimreinigingsmiddel)
2
RM 68 ASF
5
95
NL

