Karcher HDS 12/14-4 ST Eco: !
!: Karcher HDS 12/14-4 ST Eco
-
14
–
Le dispositif de chauffage de l'appareil est une installation de
combustion. Á l'installation les règlements régionales va-
lables sont à respecter.
–
Utiliser uniquement des chéminée/conduites de gaz rési-
duaire éprouvées
Danger
Risque de brûlure ! Ce symbole doit être fixé à chaque lieus de
réception.
Les règlements de le stockage de liquides inflammables doivent
être respectés à l'installation un réservoir à combustible dans la
pièce où est installé l'installation (à vendre au Carls Heymanns
Verlag, Cologne, www.heymanns.com).
Faire attention au diagramme situe en bas à la pose du tuyau-
tage à combustible.
Il est prévu un système de 2 conducteurs, marche en avant et
marche en arrière.
–
Prépression maximale de fuel: 0,05 MPa (0,5 bars)
–
Dépression maximale entre le filtre de fuel et la pompe: 0,04
MPa (0,4 bars)
Longueur du flexible d'aspiration en m
Hauteur d'aspiration en m
Probable longueur du flexible d'aspiration en cas des tuyaux
avec NW 8
–
Chaque appareil doit être connecté à conduit d’évacuation
séparé.
–
Le conduit d’évacuation des gaz brûlés doit être effectué en
conséquence des instructions locales et en accord avec un
installateur compétent.
Nous recommandons le montage d'un interrompeur d'aspiration
entre l'installation et la cheminée.
Remarque
Pour atteindre les valeurs de combustion prescrites, l'aspiration
de la cheminée mentionnée dans les Données techniques doit
être respectée.
–
Avant le montage, vérifier la résistance du mur. Le matériel
de fixation ci-joint est approprié pour béton. Utiliser pour les
murs de briques et de béton-gaz des chevilles et des vis ap-
propriées, p.ex. tirant d'ancrage injecté (image de forage cf.
feuille de mesure).
–
Figure 3 - Pos. 19 et 23
L'appareil ne doit être branché obstinément avec le réseau de
la conduite d'eau ou de la conduite à haute pression. Les
flexibles de connexion doivent être montés absolument.
–
Figure 3 - A
Entre le réseau de la conduite d'eau et la tuyauterie de rac-
cordement il est prévu un robinet d'arrêt.
Lors du montage des conduites haute pression, respecter les rè-
glementations nationales correspondantes en vigueur.
–
La différence de pression dans le tuyautage doit être sous 1,5
MPa.
–
Le tuyautage complet doit être éprouvé avec 28 MPa.
–
L'isolation du tuyautage doit être résistante à la température
jusqu'à 155 °C.
Figure 3 - pos. 20
Le réservoir doit être installé, afin que le niveau inférieure de dé-
tergent doit se situé pas plus de 1,5 m sous le fond de l'appareil
et le niveau supérieure ne pas au-dessous du fond d'appareil.
Figure 3 - B et Pos. 19
Raccorder l'entrée d'eau avec un flexible appropré d'eau au
réseau de distribution d'eau.
–
La capacité de l'alimentation d'eau doit être au moins de
1 300 l en au moins de 0,1 MPa.
–
La tempérautre doit se situé sous le 30 °C.
Attention
L'impédance de réseau maximale admissible au niveau du point
de raccordement ne doit en aucun cas être dépassée (voir Ca-
ractéristiques techniques). En cas de doute concernant l'impé-
dance de réseau présente sur votre point de raccordement,
veuillez vous adresser à l'entreprise responsable de votre ali-
mentation énergétique.
Remarque :
Les procédures de mises en marche peuvent
conduire à des baisses de tension de courte durée. Si le circuit
électrique n'est pas approprié, d'autres appareils peuvent subir
des endommagements.
–
Pour les données de raccordement, se référer à la section
Caractéristiques techniques et à la plaque signalétique.
–
Le raccordement électrique doit être effectué par un électri-
cien et doit correspondre à la CEI 60364-1.
Montage de l'installation
Uniquement pour le personnel spécialisé et auto-
risée!
Généralités
En cas de tempéra-
ture de travail au-des-
sus de 100 °C,
remplacer la buse à
haute pression par
une buse à vapeur.
Réservoir à combustible
Conduites à combustible
!
Tuyau de gaz fumé
Montage au mur
Montage des conduitess à haute pression
Installer le réservoir de détergent
Alimentation en eau
Branchement électrique
54
FR
-
15
–
Des pièces sous tension, des câbles et l'appareil qui se
trouven dans le poste de travail doivent être dans en état im-
pécable.
Pour éviter des accidents électriques nous recommandons d’uti-
liser des prises de courant avec un interrupteur de protection
contre les courants de fuite placé en amont (courant de déclen-
chement nominal maximal de 30 mA).
Etablir le raccordement électrique.
Pour arrêter le nettoyeur à haute pression stationnaire, un inter-
rupteur principal (Figure 3 - pos.6) doit être fixé à un endroit non
dangereux et facilement accessible.
L'étendue d'ouverture de contact du commutateur principal doit
faire au moins 3 mm.
Monter la prise de Cekon au câble de jonction de l'appareil.
Mettre la prise de Cekon dans la prise.
Pour mettre le nettoyeur à haute pression stationnaire hors ser-
vice, la prise de Cekon doit être bien accessible pour la sépara-
tion de réseau.
Avant la première utilisation couper la pointe de la couvercle
du réservoir d'huile sur la pompe à eau.
Danger
Risque d'explosion ! N'utiliser que du carburant diesel ou du fuel
léger. Il est interdit d'utiliser des combustibles non appropriés,
tels que l'essence.
Remplir le réservoir à combustible.
Attention
Le fonctionnement à l'eau chaude sans combustible provoque le
dommage de la pompe de combustible. S'assurer avant de
mettre le fonctionnement à l'eau chaude en service, qu'il y a du
combustible.
Figure 3 - pos. 14
Connecter le flexible à haute pression au piognée-pistolet et
à la sortie à haute pression de l'appareil ou au réseau du
flexible à haute pression.
Fixer le nez de buse (b) avec l'écrou-raccord (a) à la lance (d).
Faire attention que le joint (c) est bien placer dans l'encoche.
Enlever le ressort (c) du support du couvercle (b) du réservoir
d'adoucisseur (a).
Remplir le réservoir avec l'adoucisseur de Kärcher RM 110
(N° de commande 2.780-001).
Danger
Tension électrique dangereuse! Seul un électricien spécialisé est
habilité à effectuer ce réglage.
Déterminer la dureté de l'eau locale :
–
En contactant le distributeur local,
–
avec un appareil pour essai de dureté (N° de commande
6.768-004).
Retirer le capot d'appareil.
Ouvrir le boîtier de commande du panneau de l'exploitant.
Régler le potenciomètre rotatif (a) selon la dureté d'eau. Le
réglage correcte est mentionné dans le tableau.
Exemple :
Pour une dureté d'eau de 15 °dH, régler au potenciomètre rotatif
la valeur d'échelle 6. Le temps de pause est alors de 31 se-
condes, c'est-à-dire que toutes les 31 secondes, l'électrovanne
s'ouvre brièvement.
Raccord électrique solidement monté
Raccord électrique avec fiche / prise
Première mise en service
Mesures avant la mise en service
a
b
c
d
Protection contre le détartrage
Dureté d'eau (°dH)
5
10
15
20
25
Échelle au potenciomètre
rotatif
8
7
6
5
4,5
Temps d'arrêt (sécondes)
50
40
31
22
16
b
c
a
a
55
FR
-
16
Le réglage du temps de la disponibilité opérationnelle résulte sur
la platine plus grande à la côté latérale gauche d'armoire électro-
nique.
Le temps de la disponibilité opérationnelle est réglé par l'usine au
minimum de 2 minutes et peut être augmenté jusqu'à 8 minutes
maximum.
Modifier le temps de la disponibilité opérationnelle
8 7 6 5 4 3 2 1
S2
min.
max.
56
FR
-
17
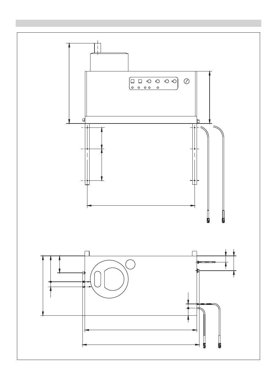
Figure 3
Matériel d'installation
1 2 3 4 5 6 7 8 9 10 12 13
21 20 19 18 17 16 15 14
11b 11a
11d
11c
A
B 19a
24
11a
23
22
11b
1060 (1124)
~1050
600
Pos. Matériel d'installation
N° de réf.
1
Boulonnage d'angle
6.386-356
2
Courbe de tuyau de gaz fumé 90°
7.234-605
Courbe de tuyau de gaz fumé 45°
7.234-604
3
Tuyau de gaz fumé
7.234-603
4
Interrompeur d'aspiration du tuyau de gaz
fumé HDS 9/14-4
4.656-080
Interrompeur d'aspiration du tuyau de gaz
fumé HDS 12/14-4
4.656-079
5
Isolation thérmique
6.286-114
6
Interrupteur principal
6.631-455
7
Lot de tuyautage, acier zingué
2.420-004
Lot de tuyautage, acier inoxidable
2.420-006
8
Lot de pièces de la télécommande
2.744-008
9
Lot des pièces de la touche d'arrêt
d'urgence
2.744-002
10
Boulonnage de T
6.386-269
11a
Bouche de raccordement, laiton
2.638-180
Buche de raccordement, acier inoxidable 2.638-181
11b
Robinet d'arrêt NW8, acier zingué
4.580-144
Robinet d'arrêt NW 8, acier inoxidable
4.580-163
11c
Pièce firme de transmission rapide
6.463-025
11d
Pièce lâchée de transmission rapide
6.463-023
Pos. Matériel d'installation
N° de réf.
12
Porte-tuyau
2.042-001
13
Dévidoir
2.637-238
14
Tuyau à haute pression 10 m
6.388-083
15
Poignée-pistolet de compression facile
4.775-463
Régulateur rotatif HDS 9/14-4
4.775-470
Régulateur rotatif HDS 12/14-4
4.775-471
16
Support de lance
2.042-002
17
Lance
4.760-550
18
Nez de la buse HDS 9/14-4
2.883-402
Nez de la buse HDS 12/14-4
2.883-406
19
Tuyau à eau
4.440-282
19a
Électrovalve de l'alimentation d'eau
4.743-011
20
Réservoir de détergent, 60 l
5.070-078
21
Réservoir de fuel de 600 l
6.392-050
22
Lot de pièces de la console de mur
2.053-005
Lot de pièces du châssis du fond
2.210-008
23
Flexible haute pression
6.389-028
24
Collier de tuyau
6.373-374
57
FR
-
18
Nous certifions par la présente que la machine spécifiée ci-après
répond de par sa conception et son type de construction ainsi
que de par la version que nous avons mise sur le marché aux
prescriptions fondamentales stipulées en matière de sécurité et
d’hygiène par les directives européennes en vigueur. Toute mo-
dification apportée à la machine sans notre accord rend cette dé-
claration invalide.
5.957-054
Les soussignés agissent sur ordre et sur procuration de la Direc-
tion commerciale.
Responsable de la documentation:
S. Reiser
Alfred Kärcher GmbH Co. KG
Alfred-Kärcher-Str. 28 - 40
71364 Winnenden (Germany)
Téléphone : +49 7195 14-0
Télécopieur : +49 7195 14-2212
Winnenden, 2014/02/01
Dans chaque pays, les conditions de garantie en vigueur sont
celles publiées par notre société de distribution responsable.
Nous éliminons gratuitement d’éventuelles pannes sur l’appareil
au cours de la durée de la garantie, dans la mesure où une erreur
de matériau ou de fabrication en sont la cause.
Déclaration de conformité CE
Produit:
Nettoyeur haute pression
avec niveau de vapeur
Type:
1.698-xxx
Type:
1.699-xxx
Directives européennes en vigueur :
97/23/CE
2006/42/CE (+2009/127/CE)
2004/108/CE
Catégorie du groupement
II
Procédé de conformité
Module H
Serpentin de réchauffage
Teste de conformité Module H
Soupape de sûreté
Teste de conformité Art. 3 al. 3
bloc de commande
Teste de conformité Module H
des conduits divers
Teste de conformité Art. 3 al. 3
Normes harmonisées appliquées :
EN 55014–1: 2006+A1: 2009+A2: 2011
EN 55014–2: 1997+A1: 2001+A2: 2008
EN 60335–1
EN 60335–2–79
EN 61000–3–2: 2006+A1: 2009+A2: 2009
HDS 12/14:
EN 61000–3–3: 2008
HDS 9/14:
EN 61000–3–11: 2000
Spécifications appliquées:
AD 2000 en référence
TRD 801 en référence
Nom du service désigné:
pour 97/23/EG
TÜV Rheinland Industrie Service GmbH
Am Grauen Stein
51105 Köln
N° d'identification 0035
CEO
Head of Approbation
Garantie
58
FR
-
19
Service après-vente
Type de station :
N° de fabrication :
Date de mise en service :
Contrôle effectué le :
Résultat :
Signature
Contrôle effectué le :
Résultat :
Signature
Contrôle effectué le :
Résultat :
Signature
Contrôle effectué le :
Résultat :
Signature
59
FR
-
20
Indication:
Les recommandations d'intervalles de contrôle des
exigences nationales respectives du pays d'exploitation doivent
être respectées.
Essais périodiques
Contrôle effectué par :
Contrôle extérieure
Contrôle intérieure
contrôle de la stabilité
Nom
Signature du spécialiste/
Date
Signature du spécialiste/
Date
Signature du spécialiste/
Date
Nom
Signature du spécialiste/
Date
Signature du spécialiste/
Date
Signature du spécialiste/
Date
Nom
Signature du spécialiste/
Date
Signature du spécialiste/
Date
Signature du spécialiste/
Date
Nom
Signature du spécialiste/
Date
Signature du spécialiste/
Date
Signature du spécialiste/
Date
Nom
Signature du spécialiste/
Date
Signature du spécialiste/
Date
Signature du spécialiste/
Date
Nom
Signature du spécialiste/
Date
Signature du spécialiste/
Date
Signature du spécialiste/
Date
Nom
Signature du spécialiste/
Date
Signature du spécialiste/
Date
Signature du spécialiste/
Date
Nom
Signature du spécialiste/
Date
Signature du spécialiste/
Date
Signature du spécialiste/
Date
Nom
Signature du spécialiste/
Date
Signature du spécialiste/
Date
Signature du spécialiste/
Date
Nom
Signature du spécialiste/
Date
Signature du spécialiste/
Date
Signature du spécialiste/
Date
Nom
Signature du spécialiste/
Date
Signature du spécialiste/
Date
Signature du spécialiste/
Date
60
FR
-
1
Prima di utilizzare l'apparecchio per la prima volta, leg-
gere le presenti istruzioni originali, seguirle e conser-
varle per un uso futuro o in caso di rivendita dell'apparecchio.
–
Prima di procedere alla prima messa in funzione leggere tas-
sativamente le norma di sicurezza n. 5.956-309!
–
Eventuali danni da trasporto vanno comunicati immediata-
mente al proprio rivenditore.
Avvertenze sui contenuti (REACH)
Informazioni aggiornate sui contenuti sono disponibili all'indiriz-
zo:
www.kaercher.com/REACH
Pericolo
Per un rischio imminente che determina lesioni gravi o la morte.
몇
Attenzione
Per una situazione di rischio possibile che potrebbe determinare
lesioni gravi o la morte.
Attenzione
Per una situazione di rischio possibile che potrebbe determinare
danni leggeri a persone o cose.
Getti ad alta pressione possono risultare pericolosi se
usati in modo improprio. Il getto non va mai puntato su
persone, animali, equipaggiamenti elettrici attivi o
sull'apparecchio stesso.
–
Rispettare le norme nazionali vigenti per pompe a getto liquido.
–
Rispettare le norme nazionali vigenti per l'antinfortunistica. Le
pompe a getto liquido devono essere controllate ad intervalli
regolari ed il risultato del controllo deve essere registrato per
iscritto.
–
Il dispositivo di riscaldamento dell’apparecchio è un impianto
di combustione. Gli impianti di combustione devono essere
controllati ad intervalli regolari secondo le disposizioni nazio-
nali vigenti in materia.
–
Se l'impianto viene usato all'interno di locali chiusi, provvede-
re ad un sistema per deviare i gas da combustione (condotto
gas di scarico senza giunto). Dev'essere inoltre garantito un
adeguato rinnovo dell’aria.
–
Secondo le disposizioni nazionali in vigore è necessario che
questa idropulitrice venga messa in funzione per la prima vol-
ta da una persona autorizzata. KÄRCHER ha già eseguito
per Lei questa prima messa in funzione documentandola. La
relativa documentazione è disponibile a richiesta presso il Vo-
stro partner KÄRCHER. In caso di richiesta della documenta-
zione si prega di tenere a portata di mano il codice pezzi ed il
numero di fabbrica.
–
Desideriamo ricordare che l'apparecchio deve essere sotto-
posto ad un controllo periodico da una persona autorizzata
secondo quanto previsto dalle disposizioni nazionali. Si prega
di rivolgersi al proprio partner KÄRCHER.
–
Rispettare gli avvisi di sicurezza allegati ai detergenti utilizzati
(normalmente si trovano sull'etichetta della confezione).
Indice
Protezione dell’ambiente. . .
IT
. . 1
Simboli riportati nel manuale d'uso
IT
. . 1
Simboli riportati sull’apparecchio
IT
. . 1
Norme di sicurezza generali
IT
. . 1
Uso conforme a destinazione
IT
. . 2
Funzione . . . . . . . . . . . . . . .
IT
. . 2
Dispositivi di sicurezza . . . .
IT
. . 2
Parti dell'apparecchio . . . . .
IT
. . 3
Messa in funzione . . . . . . . .
IT
. . 4
Uso . . . . . . . . . . . . . . . . . . .
IT
. . 4
Messa fuori servizio . . . . . .
IT
. . 6
Fermo dell'impianto. . . . . . .
IT
. . 7
Supporto . . . . . . . . . . . . . . .
IT
. . 7
Trasporto. . . . . . . . . . . . . . .
IT
. . 7
Dati tecnici. . . . . . . . . . . . . .
IT
. . 8
Cura e manutenzione . . . . .
IT
. 10
Guida alla risoluzione dei guasti
IT
. 12
Accessori. . . . . . . . . . . . . . .
IT
. 14
Installazione dell'impianto . .
IT
. 15
Dichiarazione di conformità CE
IT
. 18
Garanzia . . . . . . . . . . . . . . .
IT
. 18
Servizio assistenza . . . . . . .
IT
. 19
Controlli ricorrenti . . . . . . . .
IT
. 20
Protezione dell’ambiente
Tutti gli imballaggi sono riciclabili. Gli imballaggi non
vanno gettati nei rifiuti domestici, ma consegnati ai re-
lativi centri di raccolta.
Gli apparecchi dismessi contengono materiali ricicla-
bili preziosi e vanno consegnati ai relativi centri di rac-
colta. Batterie, olio e sostanze simili non devono
essere dispersi nell’ambiente. Si prega quindi di smal-
tire gli apparecchi dismessi mediante i sistemi di rac-
colta differenziata.
Sostanze quali olio per motori, gasolio, benzina o carburante
diesel non devono essere dispersi nell'ambiente. Si prega per-
tanto di proteggere il suolo e di smaltire l'olio usato conforme-
mente alle norme ambientali.
I detergenti Kärcher hanno la caratteristica di precipitare facil-
mente (ASF). Questo significa che la funzione di un eventuale
separatore d'olio non viene ostacolato. Il capitolo “Accessori” ri-
porta un elenco con i detergenti consigliati.
Simboli riportati nel manuale d'uso
Simboli riportati sull’apparecchio
Pericolo di ustioni! Attenzione: Componenti cal-
de!
Norme di sicurezza generali
61
IT
-
2
Prima di installare l'apparecchio deve essere eseguito un accor-
do con lo spazzacamino distrettuale autorizzato.
Durante l'installazione, rispettare le disposizioni del diritto edili-
zio, del diritto industriale e della legge sulla tutela delle immissio-
ni. Rimandiamo alle seguenti disposizioni, direttive e norme:
–
L'apparecchio deve essere installato solo da un tecnico nel ri-
spetto delle norme nazionali vigenti.
–
Per l'installazione elettrica rispettare le disposizioni nazionali
vigenti in materia.
–
La regolazione, la manutenzione e le riparazioni del bruciato-
re devono essere effettuate esclusivamente da tecnici appo-
sitamente addestrati del servizio assistenza clienti Kärcher.
–
Durante la progettazione di un camino attenersi alle direttive
locali vigenti.
La postazione di lavoro si trova sul quadro di controllo. Le ulteriori
postazioni di lavoro sono posizionate sugli apparecchi ausiliari in
funzione alla strutturazione dell'impianto (dispositivi a spruzzo)
che vengono a loro volta collegati alle prese d'acqua.
–
Per proteggersi dagli spruzzi d'acqua o di sporco indossare
indumenti e occhiali di protezione adatti.
L'apparecchio serve ad eliminare lo sporco da superfici con l'aiu-
to di un getto d'acqua che fuoriesce liberamente. Viene utilizzato
prevalentemente per la pulizia di macchinari, veicoli e facciate.
Pericolo
Rischio di lesioni! Per apparecchi impiegati presso stazioni di ser-
vizio o in altre zone di pericolo, osservare le disposizioni di sicu-
rezza vigenti.
–
L'acqua fredda raggiunge la parte aspirante della pompa alta
pressione scorrendo attraverso la serpentina di raffredda-
mento del motore ed il contenitore con galleggiante. Il conte-
nitore con galleggiante viene rifornito gradualmente con
addolcitore. La pompa convoglia l'acqua ed il detergente
aspirato attraverso lo scaldaacqua rapido. Il rapporto acqua/
detergente può essere regolato tramite una valvola di dosag-
gio. Lo scaldaacqua rapido viene riscaldato dal bruciatore.
–
L'uscita di alta pressione viene collegata alla rete ad alta
pressione presente in loco. Il collegamento alle pistole a
spruzzo viene realizzato montando il tubo alta pressione alle
prese d'acqua di tale rete.
I dispositivi di sicurezza servono alla protezione dell'utente e non
devono essere disattivati o impiegati per scopi diversi da quelli in-
dicati.
La protezione mancanza acqua impedisce l'attivazione della
pompa alta pressione in mancanza d'acqua.
La protezione mancanza acqua impedisce il surriscaldamento
del bruciatore in mancanza d'acqua. Il bruciatore si attiva solo in
presenza di adeguato approvvigionamento di acqua.
Il pressostato spegne l'apparecchio al superamento della pres-
sione di esercizio prestabilita. Tale impostazione non deve esse-
re cambiata.
Un eventuale guasto del pressostato provoca l'apertura della val-
vola di sicurezza. La suddetta valvola è impostata in fabbrica e
sigillata. Tale impostazione non deve essere cambiata.
Il dispositivo di controllo fiamma spegne il bruciatore in presenza
di rifornimento di carburante insufficiente oppure guasti al brucia-
tore. La spia luminosa "guasto bruciatore" (E) si accende.
La protezione da sovracorrente scatta in presenza di un blocco
del motore del bruciatore. Il motore della pompa alta pressione è
protetto da un salvamotore e da un interruttore differenziale.
Il termostato per il gas di scarico scatta quando la temperatura
dei gas di scarico supera i 300 °C. L'apparecchio viene spento.
Lo spegnimento dell'apparecchio tramite la pistola a spruzzo pro-
voca l'apertura di una valvola elettromagnetica nel sistema di alta
pressione che causa a sua volta una riduzione della pressione.
Questo avviene al termine del tempo prestabilito in "stato di pron-
to".
Disposizioni, direttive e norme
Postazioni di lavoro
Dispositivi di protezione individuale
Indossare adeguati dispositivi di protezione per
le orecchie durante la pulizia di parti che gene-
rano rumori non assorbiti per evitare danni
all'udito.
Uso conforme a destinazione
L'acqua di scarico contenente oli minerali non deve essere di-
spersa nel terreno, nelle acque o nelle canalizzazioni. La pulizia
di motori e di sottoscocche va effettuata esclusivamente in luo-
ghi provvisti di separatori d'olio.
Funzione
Dispositivi di sicurezza
Protezione mancanza acqua del contenitore con
galleggiante
Protezione mancanza acqua del dispositivo di
bloccaggio di sicurezza
Pressostato
Valvola di sicurezza
Controllo della fiamma
Protezione da sovracorrente
Termostato dei gas di scarico
Riduzione della pressione del sistema alta pressione
62
IT
-
3
Fig. 1
1 Bruciatore
2 Manometro
3 Afflusso di acqua pulita con filtro
4 Uscita alta pressione
5 Tubazioni di combustibile di mandata
6 Tubazioni di combustibile di ritorno
7 Tubo flessibile di aspirazione detergente I
8 Tubo flessibile di aspirazione detergente II (opzionale)
9 Contenitore con addolcitore
10 Alimentazione elettrica
11 Contenitore con galleggiante
12 Quadro di controllo
Fig. 2
A Interruttore dell'apparecchio
B Regolatore temperatura
C Valvola di dosaggio detergente
D Valvola di dosaggio detergente II (opzionale)
E Spia luminosa "guasto bruciatore"
F Spia luminosa "stato di pronto"
G Spia luminosa surriscaldamento motore
H Spia luminosa protezione anticalcare
I
Tappo - Pulsante di sblocco motore del bruciatore
Parti dell'apparecchio
6
5
7
8
3
4
9
11
10
1
12
2
Quadro di controllo
63
IT
-
4
몇
Pericolo
Rischio di lesioni! L' apparecchio, le alimentazioni, il tubo flessi-
bile alta pressione ed i collegamenti devono essere in perfetto
stato. In caso contrario è vietato usare l'apparecchio.
–
Valori di collegamento: vedi Dati tecnici e targhetta.
–
Il collegamento elettrico va eseguito da un'elettricista qualifi-
cato e deve essere conforme alla norma IEC 60364-1.
L'operatore deve utilizzare l'apparecchio in modo conforme a de-
stinazione. Deve tener conto delle condizioni presenti in loco e
durante il lavoro con l'apparecchio fare attenzione alle persone
nelle vicinanze.
Non lasciare mai l'apparecchio incustodito quando è acceso.
Pericolo
–
Pericolo di scottature causate da acqua calda! Non puntare il
getto ad alta pressione su persone o animali.
–
Pericolo di scottature causate da parti calde dell'impianto!
Non toccare tubazioni e tubi flessibili non idoneamente isolati
durante il funzionamento con acqua calda. Maneggiare la lan-
cia solo afferrando i rivestimenti dell'impugnatura. Non tocca-
re il manicotto d'innesto dello scarico dello scaldaacqua
rapido.
–
Pericolo di intossicazione o di corrosione da detergente. Os-
servare le indicazioni rifornite con il detergente. Tenere lonta-
no i detergenti da persone non autorizzate.
Pericolo
Pericolo di morte da scosse elettriche! Non puntare il getto d'ac-
qua sui seguenti dispositivi:
–
Apparecchi ed impianti elettrici,
–
questo impianto,
–
tutti i componenti conduttori nell'area di lavoro.
Il getto d’acqua proveniente dalla lancia genera una forza repul-
siva. La lancia a gomito fa sì che la forza generata si orienti verso
l'alto.
Pericolo
–
Rischio di lesioni! La forza repulsiva può causare una perdita
di equilibrio dell'utilizzatore. Pericolo di caduta. La lancia può
scagliarsi incontrollatamente e provocare danni alle persone.
Trovare una postazione sicura ed afferrare saldamente la pi-
stola a spruzzo. Non bloccare mai la leva della pistola a
spruzzo.
–
Non puntare il getto su altri o su se stessi per pulire indumenti
o calzature.
–
Pericolo di lesioni a causa di pezzi che schizzano via! Scheg-
ge o oggetti che schizzano via possono provocare lesioni alle
persone o agli animali. Non dirigere mai il getto di vapore ver-
so oggetti fragili e non fissati.
–
Rischio di incidenti causati da danneggiamento! I pneumatici
e le valvole di autovetture vanno puliti mantenendo una di-
stanza di 30 cm.
몇
Attenzione
Pericolo da sostanze nocive! Non rivolgere il getto d'acqua sui
seguenti materiali (potrebbero essere liberate sostanze nocive):
–
Materiali contenenti amianto,
–
materiali che contengono potenzialmente sostanze nocive.
Pericolo
–
Rischio di lesioni causato da improvvisi getti d'acqua poten-
zialmente caldi. Usare solo tubi flessibili alta pressione origi-
nali prodotti della Kärcher i quali si adattano in modo ottimale
all'impianto. Si declina qualsiasi responsabilità per danni cau-
sati dall'utilizzo di tubi flessibili diversi.
–
Pericolo per la salute causato da detergenti! A causa di deter-
genti eventualmente aggiunti, l'acqua derivante dall'apparec-
chio non è di qualità potabile.
–
Rischio di danni all'udito a causa di parti che generano rumori
non assorbiti! In tal caso si prega di indossare i dispositivi di
protezione per le orecchie.
Pericolo
Rischio di lesioni causato da improvvisi getti d'acqua potenzial-
mente caldi!
Pericolo
Prima di ogni utilizzo controllare che il tubo flessibile alta pressio-
ne non sia danneggiato. Sostituire immediatamente il tubo flessi-
bile alta pressione danneggiato.
Prima di utilizzare il tubo alta pressione, le tubazioni, la rubi-
netteria e la lancia controllare che non siano danneggiati.
Controllare che il giunto del tubo flessibile sia ben fissato.
Attenzione
Pericolo di danneggiamento causato da un eventuale funziona-
mento a secco.
Controllare ed eventualmente riempire il livello del contenito-
re del detergente.
Controllare ed eventualmente riempire il livello del prodotto
addolcitore.
Posizionare l'interruttore dell'apparecchio (A) su "0".
Chiudere l'alimentazione dell'acqua.
Azionare la pistola a spruzzo fino a completa depressurizza-
zione dell'apparecchio.
Messa in funzione
Allacciamento alla rete elettrica
Uso
Norme di sicurezza
!
Creare lo "stato di pronto"
Spegnimento in caso di emergenza
64
IT
-
5
Ruotando la valvola di regolazione di portata in senso orario
si ottiene un aumento della pressione di esercizio e della por-
tata.
Ruotando invece la valvola di regolazione di portata in senso
antiorario, la pressione di esercizio e la portata diminuiscono.
Ruotando la valvola di regolazione di portata in senso orario
si ottiene un aumento della portata e della pressione di eser-
cizio.
Ruotando la valvola di regolazione di portata in senso antio-
rario si ottiene una diminuzione della portata e della pressio-
ne di esercizio.
Aprire l'alimentazione dell'acqua.
Simbolo "Motore acceso"
Tirare la leva della pistola a spruzzo e posizionare l'interrutto-
re dell'apparecchio (A) su „1“ (Motore acceso).
La spia luminosa "stato di pronto" (F) indica lo stato di pronto.
Pericolo
Pericolo di scottature!
Attenzione
Il funzionamento ad acqua calda senza carburante danneggia la
pompa di alimentazione del combustibile. Verificare la corretta
alimentazione del combustibile prima di attivare il funzionamento
ad acqua calda.
Il bruciatore può essere attivato in caso di necessità.
Simbolo "Bruciatore acceso"
Posizionare l'interruttore dell'apparecchio (A) su " Bruciatore
acceso".
La temperatura desiderata dell'acqua può essere impostata
con l'aiuto del termoregolatore (B). Temperatura massima: 98
°C.
Pericolo
Pericolo di scottature! Se la temperatura di esercizio supera i 98
°C, la pressione di esercizio non deve essere maggiore di
3,2 MPa (32 bar).
Per cambiare dal funzionamento a caldo al funzionamento a va-
pore, far funzionare l'apparecchio fino a completo raffreddamen-
to e spegnerlo. Questa regolazione viene effettuata come segue:
Sostituire l'ugello alta pressione con l'ugello vapore (ac-
cessorio).
Impostare il termoregolatore ad una temperatura di 150 °C.
Impostare la valvola di regolazione di portata posta sulla
pompa alta pressione alla quantità minima di acqua (girare in
senso antiorario).
Impostare la valvola di regolazione di portata posta sulla
pompa alta pressione alla quantità massima di acqua (girare
in senso orario).
Impostare il regolatore della portata acqua posto sulla pistola
"Easypress" alla quantità minima di acqua (girare a sinistra).
–
Se durante il funzionamento la leva della pistola a spruzzo
viene rilasciata, l'apparecchio si spegne.
–
Se la pistola viene riaperta entro il tempo prestabilito in "stato
di pronto"(2…8 minuti - regolabili), l' apparecchio riparte auto-
maticamente.
–
Il timer del circuito di allarme spegne la pompa ed il bruciato-
re, quando il il tempo prestabilito in "stato di pronto" viene su-
perato. La spia luminosa "stato di pronto" (F) si spegne.
–
Per la rimessa in funzione posizionare l'interruttore dell'appa-
recchio su "0" e riaccendere. Se l'apparecchio è comandato
a distanza, la rimessa in funzione può avvenire tramite l'ap-
posito interruttore nel telecomando.
Impostare la pressione di esercizio e la portata
Impostazione sull'apparecchio
Impostazioni della pistola "Easypress" (opzione)
Funzionamento con acqua fredda
R
Funzionamento con acqua calda
Funzionamento con vapore
Codice N°
Modello
4.766-023
HDS 9/14
4.766-024
HDS 12/14
Senza pistola "Easypress"
Con pistola "Easypress" (opzione)
Stato di pronto
65
IT
-
6
–
I pneumatici di autovetture vanno puliti solamente con la boc-
chetta a getto piatto (25°) mantenendo una distanza di alme-
no 30 cm. Non utilizzare in nessun caso il getto puntiforme
per pulire i pneumatici.
Per tutte le altre operazioni sono disponibili i seguenti ugelli:
Se le tubazioni hanno una lunghezza che supera i 20 m oppure il
tubo flessibile alta pressione supera la lunghezza 2 x 10 m (DN:
8), è necessario usare i seguenti ugelli:
–
I detergenti facilitano le operazioni di pulizia. Vengono aspira-
ti da un serbatoio esterno contenente il detergente.
–
La versione base di questo apparecchio è provvista di una
valvola di dosaggio (C). Una seconda valvola (valvola di do-
saggio D) è disponibile come accessorio opzionale. Vi è an-
che la possibilità di far aspirare due detergenti diversi.
–
La quantità di dosaggio viene impostata tramite la valvola di
dosaggio del detergente (C o D) sul quadro di controllo. Il va-
lore impostato corrisponde alla quota di detergente espressa
con il valore percentuale.
–
La scala graduata esterna vale per l'eventuale impiego di de-
tergenti allo stato puro (100% CHEM).
–
La scala graduata interna vale per l'eventuale impiego di de-
tergenti prediluiti in relazione 1+3 (25 % CHEM).
La seguente tabella riporta il consumo di detergente corrispon-
dente ai valori della scala graduata esterna:
La quantità di dosaggio varia in funzione a:
–
Viscosità del detergente
–
Altezza di aspirazione
–
Resistenza idraulica nelle tubazioni ad alta pressione
Se serve un dosaggio preciso, bisogna misurare la quantità di de-
tergente aspirata (p. es. aspirandolo da un misurino).
Avviso:
Il capitolo "accessori" riporta alcuni consigli utili riguardo
ai detergenti.
Attenzione
Se l'apparecchio viene azionato senza addolcitore, lo scaldaac-
qua rapido può formare depositi di calcare.
Quando il contenitore con addolcitore è vuoto, la spia luminosa
"protezione anticalcare" (H) si accende.
Fig. 1 - Pos. 9
Riempire il contenitore con addolcitore RM 110 (2.780-001).
Pericolo
Pericolo di scottature causate da acqua calda! Dopo il funziona-
mento con acqua calda o vapore aggiungere acqua fredda e met-
tere in moto l'apparecchio (pistola aperta) per almeno due minuti,
in modo che si possa raffreddare.
Durante il funzionamento ad acqua calda impostare la tempe-
ratura minima dell'acqua tramite il termoregolatore (B).
Utilizzare l'apparecchio per almeno 30 secondi senza l'ag-
giunta di detersivo.
Posizionare l'interruttore dell'apparecchio (A) su "0".
Chiudere l'alimentazione dell'acqua.
Azionare la pistola a spruzzo fino a completa depressurizza-
zione dell'apparecchio.
Per evitare che la pistola a spruzzo possa aprirsi accidental-
mente, bloccare la stessa con il dispositivo di arresto di sicu-
rezza.
Scelta degli ugelli
Sporco
Ugello
Angolo di
spruzzo
Numero
compo-
nente:
6.415
Pressio-
ne [MPa]
Forza re-
pulsiva
[N]
HDS 9/14
forte
00060
0°
-257
14
44
media
25060
25°
-295
debole
40060
40°
-301
HDS 12/14
forte
00080
0°
-150
14
55
media
25080
25°
-152
debole
40080
40°
-153
Sporco
Ugello
Angolo di
spruzzo
Numero
compo-
nente:
6.415
Pressio-
ne [MPa]
Forza re-
pulsiva
[N]
HDS 9/14
forte
0075
0°
-419
10
37
media
2575
25°
-421
debole
4075
40°
-422
HDS 12/14
forte
0010
0°
-082
10
46
media
2510
25°
-252
debole
4010
40°
-253
Dosaggio del detergente
HDS 9/14
Posizione
0,5
1
5
Quantità di detergente [l/h]
14...15 22...24
50
Concentrazione del detergente [%]
1,5
2,5
5
HDS 12/14
Posizione
0,5
1
5
Quantità di detergente [l/h]
10...13 23...27
60
Concentrazione del detergente [%]
1
2
5
Aggiungere addolcitore
Messa fuori servizio
Dopo il funzionamento con il detergente
Spegnere l’apparecchio
66
IT
-
7
In caso di lunghi periodi di fermo o se non si dispone di luoghi pro-
tetti dal gelo, provvedere alle seguenti operazioni (vedi capitolo
“Cura, manutenzione", paragrafo "Antigelo"):
Svuotare l'acqua
Sciacquare l'interno dell'apparecchio con antigelo.
Disinserire l'interruttore principale e bloccarlo risp. estrarre il
connettore Cekon.
Attenzione
Pericolo di lesioni e di danneggiamento! Rispettare il peso
dell'apparecchio durante la conservazione.
Attenzione
Pericolo di lesioni e di danneggiamento! Rispettare il peso
dell'apparecchio durante il trasporto.
Per il trasporto in veicoli, assicurare l'apparecchio secondo le
direttive in vigore affinché non possa scivolare e ribaltarsi.
Fermo dell'impianto
Supporto
Trasporto
67
IT
-
8
Dati tecnici
HDS 9/14
HDS 12/14
HDS 12/14
1.698-900
1.699-919
1.699-920
Prestazioni
Pressione di esercizio - acqua (con ugello standard)
MPa (bar)
14 (140)
14 (140)
14 (140)
Pressione max. di esercizio, funzionamento a vapore (con
ugello a vapore)
MPa (bar)
3,2 (32)
3,2 (32)
3,2 (32)
Codice componente ugello vapore
--
4.766-023
4.766-024
4.766-024
Sovrapressione massima (valvola di sicurezza)
MPa (bar)
18,5 (185)
18,5 (185)
18,5 (185)
Portata acqua (regolazione continua)
l/h (l/min)
500-930
(8,3-15,5)
600-1200
(10-20)
600-1200
(10-20)
Portata, funzionamento a vapore
l/h (l/min)
470 (7,8)
600 (10)
600 (10)
Aspirazione detergente (regolazione continua)
l/h (l/min)
0-50 (0-0,8)
0-60 (0-1)
0-60 (0-1)
Collegamento idrico
Portata (min.)
l/h (l/min)
1100 (18,3)
1300 (21,7)
1300 (21,7)
Pressione in entrata (min.)
MPa (bar)
0,1 (1)
0,1 (1)
0,1 (1)
Pressione in entrata (max.)
MPa (bar)
0,6 (6)
0,6 (6)
0,6 (6)
Collegamento elettrico
Tipo di corrente
--
3N~
3N~
3N~
Frequenza
Hz
50
50
50
Tensione
V
400
400
230
Potenza allacciata
kW
6,4
7,5
8,2
Protezione elettrica (ritardo di fusibile)
A
16
20
32
Protezione
--
IPX5
IPX5
IPX5
Grado di protezione
--
I
I
I
Massima impedenza di rete consentita
Ohm
(0,381+j 0,238)
--
--
Alimentazione elettrica
mm
2
5 x 2,5
5 x 2,5
5 x 4
temperatura
Temperatura in entrata (max.)
°C
30
30
30
Quantità max. operativa funzionamento ad acqua calda
°C
98
98
98
Quantità max. operativa funzionamento a vapore
°C
155
155
155
Aumento di temperatura portata d'acqua max.
°C
56±2
54±2
54±2
Potenza calorifica lorda
kW
68
85
85
Consumo di combustibile
kg/h
5,8
7,1
7,1
Tiraggio del camino
kPa
0,01-0,04
0,01-0,04
0,01-0,04
Portata in massa gas di scarico - pieno carico
kg/h
124
155
155
Dimensioni e pesi
Lunghezza
mm
1124
1124
1124
Larghezza
mm
558
558
558
Altezza
mm
687
699
699
Peso d'esercizio tipico
kg
164,4
178,8
178,8
Valori rilevati secondo EN 60355-2-79
Emissione sonora
Pressione acustica L
pA
dB(A)
74
76
76
Dubbio K
pA
dB(A)
1
1
1
Valore di vibrazione mano-braccio
Pistola a spruzzo
m/s
2
2,2
2,3
2,3
Lancia
m/s
2
1,8
2,1
2,1
Dubbio K
m/s
2
1,0
1,0
1,0
68
IT
-
9
Disegno dimensionale
6
8
7
/ 6
9
9
505
558
1124
246
158
1060
47
141
61
77
46
200
300
1018±2
69
IT
-
10
Pericolo
Rischio di lesioni! Prima di effettuare qualsiasi intervento di ma-
nutenzione e di riparazione spegnere l'interruttore principale risp.
estrarre il connettore Cekon.
Cura e manutenzione
Schema di manutenzione
Intervallo
Intervento
Gruppo costruttivo interes-
sato
Esecuzione
Addetto
Ogni giorno
Controllare la pi-
stola a spruzzo
Pistola a spruzzo
Verificare che la pistola a spruzzo si chiuda a te-
nuta stagna. Verificare il funzionamento della
protezione contro un'eventuale attivazione acci-
dentale. Sostituire la pistola a spruzzo in presen-
za di difetti.
Utente
Controllare i tubi
flessibili alta
pressione
Tubazioni in uscita, tubi flessi-
bili per l'apparecchio impiega-
to.
Verificare l'eventuale presenza di danni sui tubi
flessibili. Tubi flessibili difettosi vanno immedia-
tamente sostituiti. Rischio di incidenti!
Utente
Controllare il
cavo di allaccia-
mento con la spi-
na di
alimentazione
Collegamento elettrico con spi-
na/presa
Controllate eventuali danni sulla linea di allaccia-
mento e sulla spina di alimentazione. Lasciate
sostituire immediatamente la linea di allaccia-
mento danneggiata dal servizio clienti autorizza-
to/personale specializzato in elettricità.
Utente
1 volta a settima-
na o dopo 40 ore
di esercizio
Controllare il li-
vello dell'olio
Contenitore dell'olio della pom-
pa
Se l'olio è lattescente, sostituirlo.
Utente
Controllare il li-
vello dell'olio.
Contenitore dell'olio della pom-
pa
Controllare il livello dell'olio della pompa. Se ne-
cessario aggiungere olio (Codice n°: 6.288-016).
Utente
Pulire il setaccio. Filtro ingresso acqua
Vedi paragrafo "Pulire i filtri".
Utente
1 volta al mese o
dopo 200 ore di
esercizio
Pulire e control-
lare gli elettrodi
di accensione
Elettrodi di accensione nel co-
perchio dello scaldaacqua rapi-
do
Svitare la tubazione di combustibile, smontare il
portaelettrodo e pulire gli elettrodi. Controllare le
impostazioni dell'elettrodo con l'aiuto dello sche-
ma riportato sulla pagina seguente, se necessa-
rio impostarlo.
Operatore
istruito
Controllare la
pompa
Pompa ad alta pressione
Verificare eventuali perdite della pompa. In pre-
senza di più di tre gocce d’acqua al minuto chia-
mare il servizio assistenza.
Utente
controllare la
presenza di
eventuali depo-
siti interni
intero impianto
Attivare l'impianto con la lancia senza l'ugello
alta pressione. Se la pressione di esercizio del
manometro dell'apparecchio supera un valore di
3 MPa, bisogna decalcificare l'impianto. La stes-
sa cosa vale, se durante il funzionamento senza
tubazione ad alta pressione (l'acqua fuoriesce li-
beramente dall'uscita di alta pressione), la pres-
sione di esercizio dovesse superare il valore di
0,7–1 MPa.
Operatore
istruito per la
decalcifica-
zione
Pulire il setaccio. Filtro nella protezione mancan-
za acqua
Vedi paragrafo "Pulire i filtri".
Utente
1 volta ogni sei
mesi o dopo 1000
ore di esercizio
Cambio dell'olio Pompa ad alta pressione
Scaricare l'olio. Aggiungere 1 l di olio (Codice n°:
6.288-016). Controllare il livello di riempimento
del contenitore dell'olio.
Utente
controllare, puli-
re
intero impianto
Controllo visivo dell'impianto, controllo della te-
nuta stagna dell'attacco alta pressione e della
valvola di troppopieno, controllare il tubo flessibi-
le alta pressione e l'accumulatore a pressione,
pulire/sostituire il filtro combustibile, rimuovere la
fuliggine dalla serpentina e decalcificarla, pulire/
sostituire gli elettrodi di accensione e l'ugello del
bruciatore, impostare il bruciatore.
Servizio as-
sistenza
Annualmente
Controllo di sicu-
rezza
intero impianto
Eseguire un controllo di sicurezza secondo le di-
sposizioni nazionali vigenti in materia per pompe
a getto liquido.
Perito
Almeno ogni 5
anni periodica-
mente
Controllo della
pressione
intero impianto
Eseguire un controllo della pressione secondo le
indicazioni del produttore.
Perito
70
IT
-
11
E' possibile stipulare un contratto di manutenzione per l'apparec-
chio con l'ufficio vendite Kärcher competente.
Fig. 1 - Pos. 3
Chiudere l'alimentazione dell'acqua.
Svitare il tubo di alimentazione dell'acqua dall'apparecchio.
Spingere il filtro verso l'esterno aiutandosi con un cacciavite.
Pulire il setaccio.
Rimontare in ordine inverso.
Togliere i rivestimenti in lamiera.
Svitare il raccordo a gomito dal dispositivo di bloccaggio di si-
curezza.
Avvitare la vite M8x30 nel filtro.
Estrarre la vite ed il filtro con una pinza.
Pulire il setaccio.
Rimontare in ordine inverso.
Gli elettrodi di accensione devono essere impostati conforme-
mente alle seguenti impostazioni:
La presenza di depositi nelle tubazioni fa aumentare la resisten-
za idraulica causando lo scatto del pressostato.
Pericolo
Pericolo di esplosioni causate da gas infiammabili! E' vietato fu-
mare durante le operazioni di decalcificazione. Provvedere ad
una ventilazione adeguata.
Pericolo
Pericolo di corrosione da acidi. Indossare occhiali e guanti protet-
tivi.
Secondo le normative vigenti possono essere impiegati solo di-
sincrostanti certificati.
–
RM 100 (Codice n°: 6.287-008) scioglie il calcare, composti di
calcare e residui da detergenti.
–
RM 101 (Codice n°: 6.287-013) scioglie depositi non rimovibili
con il prodotto RM 100.
Riempire un serbatoio da 20 litri con 15 litri di acqua.
Aggiungere un litro di disincrostante.
Collegare il tubo flessibile dell'acqua direttamente alla testata
della pompa e agganciare l'estremità all'interno del contenito-
re.
Inserire la lancia collegata senza ugello nel contenitore.
Aprire la pistola a spruzzo e non chiuderla per tutta la durata
della decalcificazione.
Posizionare l'interruttore dell'apparecchio su " Bruciatore ac-
ceso" fino a raggiungere una temperatura di 40 °C.
Spegnere l'apparecchio e lasciarlo disattivato per 20 minuti.
La pistola a spruzzo deve rimanere aperta.
Svuotare l'apparecchio completamente con l'aiuto della pom-
pa.
Avviso:
Per una protezione anticorrosione e la neutralizzazione
dei residui di acido consigliamo di pompare successivamente
una soluzione alcalina (p. es B. RM 81) aggiunta nel contenitore
del detergente.
Collocare l'apparecchio in un locale protetto dal gelo. In caso di
rischio di gelo (p.es. istallazione all'aperto) occorre svuotare l'im-
pianto e sciacquare lo stesso con un antigelo.
Svitare sia il tubo di alimentazione acqua, sia il tubo alta pres-
sione.
Mettere in moto l'apparecchio (max. 1 minuto) fino a completo
svuotamento della pompa e delle condutture.
Svitare il tubo di approvvigionamento sul fondo della caldaia
e svuotare completamente la serpentina.
Avviso:
Osservare le disposizioni fornite dal produttore dell'anti-
gelo.
Riempire il contenitore con galleggiante completamente con
un antigelo commerciale.
Collocare un contenitore di raccolta sotto l'uscita alta pressio-
ne.
Accendere l'apparecchio e lasciarlo attivato fino allo scatto
della protezione "mancanza acqua" del contenitore con gal-
leggiante e conseguente spegnimento dell'apparecchio.
Ciò assicura anche una certa protezione anticorrosione.
Contratto di manutenzione
Pulire i filtri
Filtro dell'acqua in entrata
Filtro nella protezione mancanza acqua
Impostazioni degli elettrodi
A
B
C
a
HDS 9/14
4,5±0,5
3,5±0,5
3+0,5
60°
HDS 12/14
3,5±0,5
3,5±0,5
3+0,5
60°
2.
1.
A
B
C
a
Decalcificazione
Esecuzione
Antigelo
Svuotare l'acqua
Sciacquare l'interno dell'apparecchio con antigelo
71
IT
-
12
Pericolo
Rischio di lesioni! Prima di effettuare qualsiasi intervento di ma-
nutenzione e di riparazione spegnere l'interruttore principale risp.
estrarre il connettore Cekon.
*
Avvertenza
Accendere e spegnere l'impianto per sbloccare il guasto del bru-
ciatore.
**
Guida alla risoluzione dei guasti
Guasto
Possibile causa
Rimedio
Addetto
L'apparecchio non funziona,
la spia luminosa "stato di
pronto" (F) è spenta.
Apparecchio privo di tensione.
Controllare la rete elettrica.
Elettricista
Timer del circuito di allarme in fun-
zione.
Spegnere l'apparecchio brevemente e riac-
cenderlo.
Utente
Fusibile del circuito di comando
(F3) bruciato. Il fusibile si trova
all'interno del trasformatore di co-
mando (T2).
Inserire un fusibile nuovo. In caso di ulteriore
bruciatura del fusibile rimuovere la causa.
Servizio assistenza
Pressostato AP (alta pressione)
oppure BP (bassa pressione) gua-
sto.
Controllare il pressostato.
Servizio assistenza
Timer Modul (A1) difettoso.
Controllare i collegamenti, eventualmente
sostituirli.
Servizio assistenza
Termostato gas di scarico (B8)
scattato.
Lasciare raffreddare l'impianto. Sbloccare il
termostato per il gas di scarico (B8). Elimina-
re la causa del guasto.
Servizio assistenza
+ Spia luminosa surriscalda-
mento motore (G) è accesa.
Scatto della sonda termica (CA)
nel motore oppure della protezione
da sovracorrente (F1).
Rimuovere la causa del sovraccarico.
Servizio assistenza
Scatto della protezione mancanza
acqua del contenitore con galleg-
giante.
Aggiungere acqua.
Utente
Bruciatore non si accende o
la fiamma si spegne durante
il funzionamento
Il regolatore di temperatura è impo-
stato ad un valore troppo basso.
Aumentare il valore del regolatore di tempe-
ratura.
Utente
L'interruttore dell'apparecchio non
è posizionato su "bruciatore".
Accendere il bruciatore.
Utente
Scatto della protezione mancanza
acqua del dispositivo di bloccaggio
di sicurezza.
Provvedere che l'alimentazione dell'acqua
sia costante. Verificare la tenuta stagna
dell'apparecchio.
Utente
La spia luminosa "guasto
bruciatore" (E) si accende*
Il contenitore del combustibile è
vuoto
Aggiungere combustibile
Utente
Filtro del combustibile otturato.
Pulire il filtro del combustibile. A questo sco-
po svitare il filtro del combustibile, pulirlo e ri-
avvitarlo.
Utente
Posizione non corretta o guasto
della fotocellula del dispositivo di
controllo fiamma.
Controllare la corretta posizione della fotocel-
lula. **
Utente
Scintilla d'accensione assente (vi-
sibile dal vetro d'ispezione nel co-
perchio del bruciatore).
Controllare la distanza tra gli elettrodi, il tra-
sformatore ed il cavo di accensione. Correg-
gere le distanze oppure sostituire le parti
difettate. Se necessario pulire.
Servizio assistenza
Motore del bruciatore bloccato.
Sbloccare. Togliere il tappo (I) posto sul qua-
dro di controllo e sbloccare la protezione da
sovracorrente. Rimettere il tappo.
Servizio assistenza
Guasto della pompa del combusti-
bile o della valvola elettromagneti-
ca del combustibile.
Controllare ed eventualmente sostituire le
parti difettate.
Utente
72
IT
-
13
Guasto
Possibile causa
Rimedio
Addetto
La spia luminosa "Protezione
anticalcare" (H) è accesa
Addolcitore consumato.
Aggiungere addolcitore
Utente
Afflusso di detergente insuffi-
ciente o mancante
Posizionare la valvola di dosaggio
su "0".
Impostare la valvola di dosaggio del deter-
gente.
Utente
Filtro detergente otturato oppure
serbatoio vuoto.
Pulire o riempire.
Utente
I tubi flessibili di aspirazione del de-
tergente, della valvola di dosaggio
oppure della valvola elettromagne-
tica non sono a tenuta stagna op-
pure otturati.
Controllare, pulire.
Utente
Guasto dell'elettronica o della val-
vola elettromagnetica
Sostituire
Servizio assistenza
L'apparecchio non raggiunge
la pressione massima
Ugello dilavato.
Sostituire l'ugello.
Utente
Serbatoio del detergente vuoto.
Aggiungere detergente.
Utente
Acqua insufficiente.
Provvedere ad una corretta alimentazione
dell'acqua.
Utente
Filtro dell'acqua in entrata otturato. Controllare, smontare e pulire il filtro.
Utente
La valvola di dosaggio del deter-
gente non è a tenuta stagna.
Controllare e renderla stagna.
Utente
I tubi flessibili del detergente non
sono a tenuta stagna.
Sostituire
Utente
La valvola a galleggiante è blocca-
ta.
Controllare il movimento libero.
Utente
La valvola di sicurezza non è a te-
nuta stagna.
Controllare le impostazioni, se necessario
sostituire la guarnizione.
Servizio assistenza
La valvola di regolazione di portata
è impostata ad un valore troppo
basso.
Controllare le parti della valvola, se necessa-
rio pulire o sostituire.
Servizio assistenza
Guasto della valvola elettromagne-
tica per la riduzione della pressio-
ne.
Sostituire la valvola elettromagnetica.
Servizio assistenza
La pompa alta pressione
emette rumori strani, il mano-
metro oscilla molto
Ammortizzatore guasto.
Sostituire l'ammortizzatore.
Servizio assistenza
La pompa dell'acqua aspira piccole
quantità di aria.
Controllare i sistemi di aspirazione, renderli
stagni.
Utente
L'apparecchio continua a
spegnersi e ad accendersi
(pistola a spruzzo aperta)
Ugello della lancia otturato.
Controllare, pulire.
Utente
Formazione di calcare nell'appa-
recchio.
Vedi paragrafo "Decalcificazione".
Utente
Sfasamento del punto di scatto
della sovracorrente.
Reimpostare la protezione da sovracorrente. Servizio assistenza
Filtro della protezione mancanza
acqua otturato.
Controllare, smontare e pulire il filtro.
Utente
L'apparecchio non si spegne
quando la pistola a spruzzo è
chiusa
La pompa non è completamente
disaerata.
Posizionare l'interruttore dell'apparecchio su
„0“ e tirare la pistola a spruzzo finché l'ugello
non eroga più liquido. Riaccendere l’appa-
recchio. Ripetere questa operazione fino a
raggiungere la massima pressione di eserci-
zio.
Utente
Guasto della valvola di sicurezza o
della guarnizione della valvola di
sicurezza.
Sostituire la valvola di sicurezza o la guarni-
zione.
Servizio assistenza
73
IT
-
14
I detergenti facilitano le operazioni di pulizia. La seguente tabella
riporta una selezione di detergenti. Prima dell'impiego dei deter-
genti è necessario osservare le indicazioni riportate sull'imballag-
gio.
* = solo per impieghi brevi, metodo a due interventi, sciacquare
con acqua pulita
** = ASF = caratteristica di precipitare facilmente
*** = Foam-Star 2000 si adatta al pretrattamento
Accessori
Detergente
Campo di impiego
Sporco, modo d'impiego
Detergente
valore pH (ca.) solu-
zione all'1 % in acqua
del rubinetto
settore autovetture, distri-
butori di benzina, spedi-
zioni, centri auto
polvere, polvere da strada, oli mi-
nerali (su superfici verniciate)
RM 55 ASF **
8
RM 22/80-Polvere ASF
12/10
RM 81 ASF
9
RM 803 ASF
10
RM 806 ASF
11
Trattamento di autovetture con
cera protettiva
RM 42 Cera fredda per idropulitrici
8
RM 820-Cera calda ASF
7
RM 821-Cera Spray ASF
6
RM 824-Cera superperlata ASF
7
RM 44 Gel lavacerchioni
9
Industria metalmeccanica Oli, grassi, polvere e sporco simile RM 22-Polvere ASF
12
RM 55 ASF
8
RM 81 ASF
9
RM 803 ASF
10
RM 806 ASF
12
RM 31 ASF (sporco ostinato)
12
RM 39-liquido (con protezione anticorrosio-
ne)
9
Industria alimentare
Sporco facile/medio, grassi/oli,
grandi superfici
RM 55 ASF
8
RM 81 ASF
9
RM 882 Cera-schiuma OSC
12
RM 58 ASF (detergente in forma di schiuma)
9
RM 31 ASF *
12
Incrostazioni da fumo
RM 33 *
13
Pulizia e disinfezione
RM 732
9
Disinfezione
RM 735
7...8
Calcare, depositi minerali
RM 25 ASF *
2
RM 59 ASF (pulizia con schiuma)
2
Zone sanitarie ***
Calcare, tracce di urina, sapone
etc.
RM 25 ASF* (pulizia di fondo)
2
RM 59 ASF (pulizia con schiuma)
2
RM 68 ASF
5
74
IT




