Karcher HDS 12/14-4 ST Eco: !
!: Karcher HDS 12/14-4 ST Eco
-
14
–
Ohrievacie zariadenie prístroja je spa
ľ
ovacie zariadenie. Pri
inštalácii je nutné dodržiavat' miestne platné predpisy.
–
Používat' len prekontrolované a osved
č
ené komíny alebo dy-
movody.
Nebezpe
č
enstvo
Nebezpe
č
enstvo oparenia! Tento symbol sa musí umiestni
ť
na
každom odoberacom mieste.
Pri uložení nádže na vykurovací olej do priestoru s nainštalova-
ným prístrojom je nutné dodržiavat' predpisy o skladovaní hor
ľ
a-
vých kvapalín (dajú sa získat' vo vydavate
ľ
stve Carl Heymanns
Verlag, Köln, www.heymanns.com).
Pri prekladaní palivových potrubí je nutné dodržiavat' nižšie uve-
denú schému.
Má sa použit' 2 vetvový systém a prívodom a spätným vedením.
–
Maximálny predtlak vykurovacieho oleja: 0,05 MPa (0,5 bar)
–
Maximálny podtlak medzi filtrom vykurovacieho oleja a
č
er-
padlom: 0,04 MPa (0,4 bar)
D
ĺ
žka sacieho potrubia v m
Nasávacia výška v m
Možná d
ĺ
žka sacieho potrubia u rúr s menovitým priemerom 8
–
Každé zariadenie musí by
ť
pripojené ku vlastnému komínu.
–
Odvádzanie spalín sa musí uskuto
č
ni
ť
pod
ľ
a miestnych pred-
pisov a so súhlasom príslušného majstra kominára.
Medzi zariadením a komínom odporú
č
ame montáž prerušova
č
a
t'ahu.
Upozornenie
Aby sa dosiahli predpísané hodnoty spa
ľ
ovania, musí sa dodržat'
t'ah komína uvedený v technických údajoch.
–
Pred montážou je nutné skontrolovat' stenu,
č
i má dostato
č
nú
nosnot'. Do betónu je vhodný dodaný upev
ň
ovací materiál.
Na dutých, tehlových a betónových stenách je vhodné použí-
vat' hmoždínky a skrutky, napr. zastre
ľ
ovacie kotvy (schému
otvorov nájdete na rozmerovom ná
č
rtku).
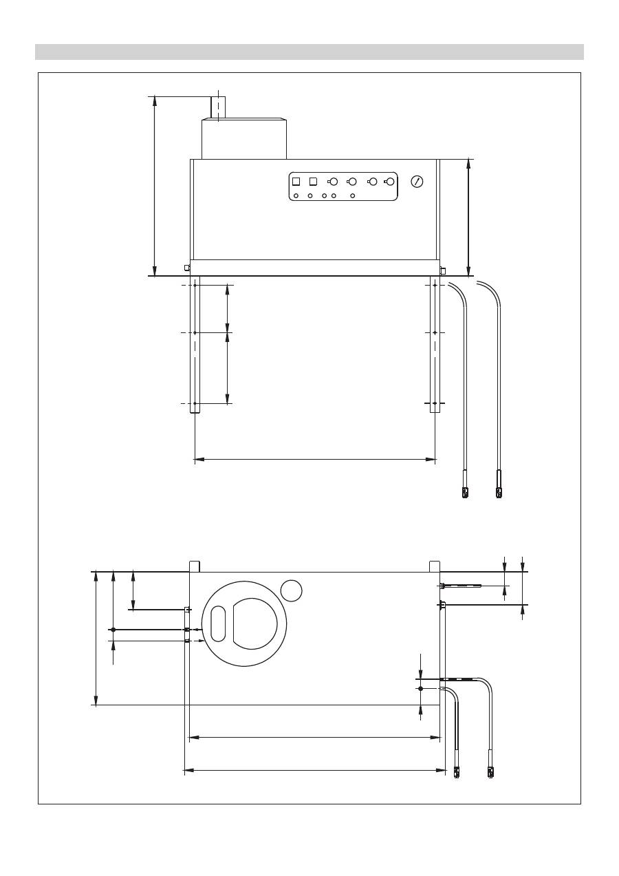
–
Obrázok 3 - poz. 19 a 23
Zariadenie sa nesmie pevne pripoji
ť
ku vodovodnej sieti ale-
bo vysokotlakovému potrubiu. Bezpodmiene
č
ne nutné je na-
montova
ť
spojovacie hadice.
–
Obrázok 3 - A
Medzi vodovodnú sie
ť
a spojovaciu hadicu je nutné vloži
ť
uzatvárací kohút.
Pri montáži vysokotlakových potrubí je nutné dodržiava
ť
prísluš-
né národné predpisy zákonodarcu.
–
Pokles tlaku v potrubí musí byt' pod 1,5 MPa.
–
Hotové potrubie sa musí skontrolova
ť
s 28 MPa.
–
Izolácia potrubia musí byt' odolná do teploty 155 °C.
Obr. 3 - Poz. 20
Nádrže je nutné uloži
ť
tak, aby sa spodná hladina
č
istiaceho
prostriedku nenachádzala pod základom prístroja o viac ako 1,5
m a aby sa horná hladina nenachádzala nad základom prístroja.
Obrázok 3 - B a poz. 19
Prívod vody na vodovod uskuto
č
nite pomocou vhodnej hadice.
–
Výkon vodovodnej prípojky musí byt' najmenej 1300 l/h pri mi-
nimálne 0,1 MPa.
–
Teplota vody musí ležat' pod 30 °C.
Pozor
Maximálna prípustná sie
ť
ová impedancia v elektrickom bode pri-
pojenia (pozri technické údaje) sa nesmie prekro
č
i
ť
. Pri nejas-
nostiach s oh
ľ
adom na sie
ť
ovú impendanciu prichádzajúcu do
vášho spojovacieho bodu kontaktujte vášho dodávate
ľ
a elektric-
kej energie.
Upozornenie:
Zapínanie spôsobuje krátkodobé poklesy napätia.
Pri nepriaznivých podmienkach v sieti môže dôjs
ť
k poškodeniu
iných prístrojov.
–
Hodnoty pripojenia nájdete v technických údajoch a na výrob-
nom štítku.
–
Elektrické pripojenie musí vykona
ť
elektroinštalatér a musí
zodpoveda
ť
IEC 60364-1.
–
Diely, káble a prístroje v pracovnom priestore vedúce elektric-
ký prúd musia byt' v dobrom stave chránené proti postrieka-
niu vodou.
Na predchádzanie úrazom spôsobeným elektrickým prúdom od-
porú
č
ame používa
ť
sie
ť
ové zásuvky s predradeným ochranným
isti
č
om proti zvodovým prúdom (menovitý spínací prúd max.
30 mA).
Pripojte elektrickú prípojku
Na ú
č
ely vypnutia celého stacionárneho vysokotla
č
ového
č
isti
č
a
je nutné na bezpe
č
né a
ľ
ahko prístupné miesto umiestni
ť
uzam-
ykate
ľ
ný hlavný vypína
č
(obr. 3 - poz. 6).
Šírka otvárania kontaktu hlavného vypína
č
a musí by
ť
najmenej 3 mm.
Zástr
č
ku Cekon namontujte na pripojovací kábel prístroja.
Zástr
č
ku Cekon zastr
č
te do zásuvky.
Aby bolo možné odpoji
ť
stacionárny vysokotlakový
č
isti
č
od elek-
trického napájania, musí by
ť
zástr
č
ka Cekon
ľ
ahko prístupná.
Inštalácia zariadenia
Len poverení odborní pracovníci!
Všeobecne
Pri pracovných teplo-
tách nad 100 °C na-
hra
ď
te vysokotlakovú
dýzu parnou dýzou.
Nádž na vykurovací olej
Palivové potrubia
Dymovod
!
Montáž na stenu
Montáž vysokotlakových potrubí
Inštalácia nádrže na
č
istiaci prostriedok
Napájanie vodou
Elektrické pripojenie
Pevne nainštalovaná elektrická prípojka
Elektrická prípojka so zástr
č
kou alebo zásuvkou
365
SK
-
15
Pred prvým uvedením do prevádzky je nutné odrezat' hrot
krytu olejovej nádrže na vodnom
č
erpadle.
Nebezpe
č
enstvo
Nebezpe
č
enstvo výbuchu! Plni
ť
iba naftou alebo
ľ
ahkým vykuro-
vacím olejom. Nesmú sa používa
ť
žiadne nevhodné palivá, napr.
benzín.
Napl
ň
te palivovú nádrž.
Pozor
Prevádzka s horúcou vodou bez paliva má za následok poškode-
nie palivového
č
erpadla. Pred za
č
atím prevádzky s horúcou vo-
dou zabezpe
č
te prívod paliva.
Obr. 3 - Poz. 14
Vysokotlakovú hadicu pripojte ku ru
č
nej strierkacej pištoli a
tryske. Pripojte ku vysokotlakovému výstupu zariadenia ale-
bo vysokotlakovej sieti potrubí.
Ústie dýzy (b) s nástr
č
nou maticou (a) upevnite na trysku (d).
Dbajte na to, aby tesniaci krúžok (c) v matici dobre dosadal.
Odoberte pružinu (c) podpery krytu (b) nádrže na zmäk
č
ova
č
kvapaliny (a).
Nádrž napl
ň
te zmäk
č
ova
č
om firmy Kärcher RM 110 (Obj.
č
.
2.780-001).
Nebezpe
č
enstvo
Nebezpe
č
né elektrické napätie! Nastavenie môže uskuto
č
nit' len
odborný elektrikár.
Zistite miestnu tvrdost' vody:
–
od miestneho vodárenského podniku,
–
pomocou skúšobného prístroja na meranie tvrdosti (Obj.
č
.
6.768-004).
Odoberte kryt prístroja.
Otvorte spínaciu skri
ň
u na ovládacom paneli.
Oto
č
ný potenciometer (a) nastavte pod
ľ
a tvrdosti vody. Z ta-
bu
ľ
ky môžete zistit' správne nastavenie.
Príklad:
Pri tvrdosti vody 15 °dH nastavte na oto
č
nom potenciometri hod-
notu stupnice 6. Z toho vzniká
č
as prestávky 31 sekúnd, to zna-
mená každých 31 sekúnd sa nakrátko otvára magnetický ventil.
Nastavenie
č
asu pripravenosti na prevádzku sa uskuto
čň
uje na
vä
č
šej doske
ľ
avej bo
č
nej steny elektrickej skrine.
Č
as pripravenosti na prevádzku je nastavený z výrobného závo-
du na minimálny
č
as 2 minúty a môže sa zvýšit' až na maximálny
č
as 8 minút.
Prvé uvedenie do prevádzky
Opatrenia pred uvedením do prevádzky
Ochrana pred vznikom vodného kame
ň
a
a
b
c
d
b
c
a
Tvrdost' vody (°dH)
5
10
15
20
25
Stupnica na oto
č
nom po-
tenciometri
8
7
6
5
4,5
Č
as prestávky (sekundy)
50
40
31
22
16
Prestavenie
č
asu pripravenosti na prevádzku
a
8 7 6 5 4 3 2 1
S2
min.
max.
366
SK
-
16
obr. 3
Inštala
č
ný materiál
1 2 3 4 5 6 7 8 9 10 12 13
21 20 19 18 17 16 15 14
11b 11a
11d
11c
A
B 19a
24
11a
23
22
11b
1060 (1124)
~1050
600
Poz. Inštala
č
ný materiál
Objednáva-
cie
č
íslo
1
Uhlový skrutkový spoj
6.386-356
2
Koleno dymovodu 90°
7.234-605
Koleno dymovodu 45°
7.234-604
3
Dymovod
7.234-603
4
Dymovod s prerušova
č
om t'ahu
HDS 9/14-4
4.656-080
Dymovod s prerušova
č
om t'ahu
HDS 12/14-4
4.656-079
5
Tepelná izolácia
6.286-114
6
Hlavný vypína
č
6.631-455
7
Sada potrubí, z pozinkovanej ocele
2.420-004
Sada potrubí, z nehrdzavejúcej ocele
2.420-006
8
Sada dielcov dia
ľ
kového ovládania
2.744-008
9
Sada dielcov núdzového vypína
č
a
2.744-002
10
T-skrutkový spoj
6.386-269
11a
Pripojovacie hrdlo, mosadz
2.638-180
Pripojovacie hrdlo, nehrdzavejúca oce
ľ
2.638-181
11b
Uzatvárací kohút men. priemeru 8, pozin-
kovaná oce
ľ
4.580-144
Uzatvárací kohút men. priemeru 8, nehr-
dzavejúca oce
ľ
4.580-163
11c
Pevná
č
ast' rýchlospojky
6.463-025
11d
Pohyblivá
č
ast' rýchlospojky
6.463-023
Poz. Inštala
č
ný materiál
Objednáva-
cie
č
íslo
12
Držiak hadice
2.042-001
13
Bubon na hadicu
2.637-238
14
Vysokotlaková hadica 10 m
6.388-083
15
Ru
č
ná striekacia pišto
ľ
Easypress
4.775-463
Oto
č
ný regulátor HDS 9/14-4
4.775-470
Oto
č
ný regulátor HDS 12/14-4
4.775-471
16
Držiak trysky
2.042-002
17
Rozstrekovacia rúrka
4.760-550
18
Ústie dýzy HDS 9/14-4
2.883-402
Ústie dýzy HDS 12/14-4
2.883-406
19
Vodovodná hadica
4.440-282
19a
Magnetický ventil prívodu vody
4.743-011
20
Nádrž na
č
istiaci prostriedok, 60 l
5.070-078
21
Nádrž na vykurovací olej 600 l
6.392-050
22
Sada dielcov konzoly na steny
2.053-005
Sada dielcov stojan
2.210-008
23
Vysokotlaková hadica
6.389-028
24
Spona na potrubie
6.373-374
367
SK
-
17
Týmto vyhlasujeme, že
ď
alej ozna
č
ený stroj zodpovedá na zákla-
de jeho koncepcie a konštrukcie a takisto vyhotovenia, ktoré sme
dodali, príslušným základným požiadavkám na bezpe
č
nost' a
ochranu zdravia uvedeným v smerniciach EÚ. Pri zmene stroja,
ktorá nebola nami odsúhlasená, stráca toto prehlásenie svoju
platnost'.
5.957-054
Podpísaný jednajú v poverení a s plnou mocou jednate
ľ
stva.
Osoba zodpovedná za dokumentáciu:
S. Reiser
Alfred Kärcher GmbH & Co. KG
Alfred-Kärcher-Str. 28 - 40
71364 Winnenden (Germany)
Tel: +49 7195 14-0
Fax: +49 7195 14-2212
Winnenden, 2014/02/01
V každej krajine platia záru
č
né podmienky vydané našou prísluš-
nou distribu
č
nou spolo
č
nos
ť
ou. Eventuálne poruchy vzniknuté
na prístroji odstránime po
č
as záru
č
nej doby bezplatne v prípade,
ak je prí
č
inou poruchy chyba materiálu alebo výrobcu.
Vyhlásenie o zhode s normami EÚ
Výrobok:
Vysokotlakové
č
istiace za-
riadenie s parným stup
ň
om
Typ
:
1.698-xxx
Typ
:
1.699-xxx
Príslušné Smernice EÚ:
97/23/ES
2006/42/ES (+2009/127/ES)
2004/108/ES
Kategória konštruk
č
nej skupiny
II
Zhodné chovanie
Modul H
Ohrievací had
Vyhodnotenie zhody modulu H
Poistný ventil
Vyhodnotenie zhody
Č
l. 3 Odst. 3
Riadiaci blok
Vyhodnotenie zhody modulu H
rozli
č
né potrubia
Vyhodnotenie zhody
Č
l. 3 Odst. 3
Uplat
ň
ované harmonizované normy:
EN 55014–1: 2006+A1: 2009+A2: 2011
EN 55014–2: 1997+A1: 2001+A2: 2008
EN 60335–1
EN 60335–2–79
EN 61000–3–2: 2006+A1: 2009+A2: 2009
HDS 12/14:
EN 61000–3–3: 2008
HDS 9/14:
EN 61000–3–11: 2000
Použité špecifikácie:
AD 2000 na základe
TRD 801 na z·klade
Názov uvedeného miesta:
fPre 97/23/ES
TÜV Rheinland Industrie Service GmbH
Am Grauen Stein
51105 Köln
Pozn.
č
.0035
CEO
Head of Approbation
Záruka
368
SK
-
18
Servisná služba
Typ zariadenia:
Výr.
č
.:
Uvedenie do prevádzky d
ň
a:
Skúška vykonaná d
ň
a:
Nález:
Podpis
Skúška vykonaná d
ň
a:
Nález:
Podpis
Skúška vykonaná d
ň
a:
Nález:
Podpis
Skúška vykonaná d
ň
a:
Nález:
Podpis
369
SK
-
19
Upozornenie:
Pod
ľ
a príslušných národných požiadaviek krajiny
prevádzkovate
ľ
a je nutné dodrža
ť
odporú
č
ania pre vykonanie
skúšky.
Opakované skúšky
Skúška vykonaná d
ň
a:
Vonkajšia skúška
Vnútorná skúška
Skúška pevnosti
Meno
Podpis oprávnenej osoby/
dátum
Podpis oprávnenej osoby/
dátum
Podpis oprávnenej osoby/
dátum
Meno
Podpis oprávnenej osoby/
dátum
Podpis oprávnenej osoby/
dátum
Podpis oprávnenej osoby/
dátum
Meno
Podpis oprávnenej osoby/
dátum
Podpis oprávnenej osoby/
dátum
Podpis oprávnenej osoby/
dátum
Meno
Podpis oprávnenej osoby/
dátum
Podpis oprávnenej osoby/
dátum
Podpis oprávnenej osoby/
dátum
Meno
Podpis oprávnenej osoby/
dátum
Podpis oprávnenej osoby/
dátum
Podpis oprávnenej osoby/
dátum
Meno
Podpis oprávnenej osoby/
dátum
Podpis oprávnenej osoby/
dátum
Podpis oprávnenej osoby/
dátum
Meno
Podpis oprávnenej osoby/
dátum
Podpis oprávnenej osoby/
dátum
Podpis oprávnenej osoby/
dátum
Meno
Podpis oprávnenej osoby/
dátum
Podpis oprávnenej osoby/
dátum
Podpis oprávnenej osoby/
dátum
Meno
Podpis oprávnenej osoby/
dátum
Podpis oprávnenej osoby/
dátum
Podpis oprávnenej osoby/
dátum
Meno
Podpis oprávnenej osoby/
dátum
Podpis oprávnenej osoby/
dátum
Podpis oprávnenej osoby/
dátum
Meno
Podpis oprávnenej osoby/
dátum
Podpis oprávnenej osoby/
dátum
Podpis oprávnenej osoby/
dátum
370
SK
-
1
Enne sesadme esmakordset kasutuselevõttu lugege
läbi algupärane kasutusjuhend, toimige sellele vasta-
valt ja hoidke see hilisema kasutamise või uue omaniku tarbeks
alles.
–
Enne esmakordset kasutuselevõttu lugege kindlasti ohutusju-
hiseid nr. 5.956-309!
–
Transpordil tekkinud vigastuste puhul teavitage toote müüjat.
Märkusi koostisainete kohta (REACH)
Aktuaalse info koostisainete kohta leiate aadressilt:
www.kaercher.com/REACH
Oht
Vahetult ähvardava ohu puhul, mis toob kaasa raskeid kehavi-
gastusi või surma.
몇
Hoiatus
Võimaliku ohtliku olukorra puhul, mis võib põhjustada raskeid ke-
havigastusi või surma.
Ettevaatust
Võimaliku ohtliku olukorra puhul, mis võib põhjustada kergeid vi-
gastusi või materiaalset kahju.
Kõrgsurveline veejuga võib mittesihipärasel kasutami-
sel ohtlik olla. Juga ei tohi suunata teistele isikutele,
loomadele, töötavatele elektriseadmetele või seadme-
le endale.
–
Järgida tuleb kõiki riigis kehtivaid survepesureid puudutavaid
seaduslikke eeskirju.
–
Järgida tuleb kõiki riigis kehtivaid õnnetusjuhtumite vältimist
puudutavaid seaduslikke eeskirju. Survepesureid tuleb regu-
laarselt kontrollida ja kontrollimise tulemus fikseerida kirjali-
kult.
–
Seadme küttemehhanism kujutab endast kütteseadet. Kütte-
seadmeid tuleb regulaarselt kontrollida vastavalt konkreetses
riigis kehtivatele seaduslikele eeskirjadele.
–
Kui seadet kasutatakse ruumides, tuleb hoolitseda heitgaasi-
de ohutu väljutamise eest (heitgaasitoru ilma tõmbekatkesti-
ta). Lisaks peab olemas olema küllaldane värske õhu
juurdepääs.
–
Kui seda kõrgsurvepesurit kasutatakse professionaalselt,
peab selle vastavalt kehtivatele riiklikele määrustele esma-
kordselt kasutusele võtma vastavate oskustega isik. KÄRC-
HER on esmakordse kasutuselevõtu teie eest juba läbi viinud
ja selle kirjalikult fikseerinud. Sellekohase dokumentatsiooni
saate soovi korral oma KÄRCHERI partnerilt. Palun hoidke
dokumentatsiooni puudutavate päringute puhuks käepärast
seadme osade ja seerianumber.
–
Juhime tähelepanu asjaolule, et vastavalt kehtivatele riiklikele
määrustele peab seadme järgmised kontrollimised läbi viima
vastavate oskustega isik. Palun pöörduge selleks oma
KÄRCHERI partneri poole.
–
Järgige ohutusalaseid märkusi, mis on kaasas kasutatavate
puhastusvahenditega (reeglina pakendi etiketil).
Sisukord
Keskkonnakaitse . . . . . . . . .
ET . . 1
Kasutusjuhendis olevad sümbolid
ET . . 1
Seadmel olevad sümbolid . .
ET . . 1
Üldised ohutusnõuded . . . .
ET . . 1
Sihipärane kasutamine . . . .
ET . . 2
Funktsioon. . . . . . . . . . . . . .
ET . . 2
Ohutusseadised . . . . . . . . .
ET . . 2
Seadme elemendid . . . . . . .
ET . . 3
Kasutuselevõtt. . . . . . . . . . .
ET . . 4
Käsitsemine. . . . . . . . . . . . .
ET . . 4
Kasutuselt võtmine . . . . . . .
ET . . 6
Seismapanek . . . . . . . . . . .
ET . . 6
Hoiulepanek . . . . . . . . . . . .
ET . . 6
Transport. . . . . . . . . . . . . . .
ET . . 6
Tehnilised andmed . . . . . . .
ET . . 7
Korrashoid ja tehnohooldus
ET . . 9
Abi häirete korral . . . . . . . . .
ET . 11
Tarvikud. . . . . . . . . . . . . . . .
ET . 13
Seadme installeerimine. . . .
ET . 14
EÜ vastavusdeklaratsioon. .
ET . 17
Garantii . . . . . . . . . . . . . . . .
ET . 17
Klienditeenindus . . . . . . . . .
ET . 18
Korduvkontrollid . . . . . . . . .
ET . 19
Keskkonnakaitse
Pakendmaterjalid on taaskasutatavad. Palun ärge vi-
sake pakendeid majapidamisprahi hulka, vaid suuna-
ke need taaskasutusse.
Vanad seadmed sisaldavad taaskasutatavaid mater-
jale, mis tuleks suunata taaskasutusse. Patareid, õli ja
muud sarnased ained ei tohi jõuda keskkonda. See-
tõttu palume vanad seadmed likvideerida vastavate
kogumissüsteemide kaudu.
Palun jälgige,et mootoriõli, kütteõli, diisel ega bensiin ei sattuks
loodusse. Palun kaitske pinnast ja kõrvaldage kasutatud õli
keskkonnaeeskirju järgides.
Kärcheri puhastusvahenditel on mustuse eemaldamist kergen-
davad omadused (ASF). See tähendab, et õliseparaatori tööd ei
takistata. Soovitatud puhastusvahendite nimekiri on toodud
peatükis "Tarvikud".
Kasutusjuhendis olevad sümbolid
Seadmel olevad sümbolid
Põletusoht! Hoiatus tuliste komponentide eest.
Üldised ohutusnõuded
371
ET
-
2
Enne seadme paigaldamist peaks toimuma kooskõlastamine piir-
konna korstnapühkijaga.
Paigaldamisel tuleb järgida ehitusõiguslikke eeskirju, äriseadus-
andlikke sätteid ja immissioonikaitse määrusi. Juhime tähelepa-
nu alljärgnevalt loetletud eeskirjadele, suunistele ja standarditele:
–
Seadet tohib paigaldada ainult vastav ettevõtte kooskõlas ko-
hapeal kehtivate eeskirjadega.
–
Elektriinstallatsiooni juures tuleb järgida vastavaid kohapeal
kehtivaid seadusanlikke sätteid.
–
Põleti seadistusi, hooldustöid ja remonti tohivad teostada ai-
nult firma Kärcher koolitatud klienditeeninduse montöörid.
–
Lõõri kavandamisel tuleb järgida kohapeal kehtivaid suuni-
seid.
Töökoht on juhtpaneeli juures. Muud töökohad sõltuvad seadme
paigaldamisest lisaseadmete külge (piserdusseadmed), mis on
ühendatud kraanidega.
–
Kaitseks tagasipritsiva vee ja mustuse eest kasutada sobivat
kaitseriietust ja kaitseprille.
Seade on ette nähtud vabalt väljuva veejoaga mustuse eemalda-
miseks pindadelt. Seda kasutatakse eriti masinate, sõidukite ja
fassaadide puhastamiseks.
Oht
Vigastusoht! Tanklates või muudes ohualades kasutamise korral
tuleb järgida vastavaid ohutuseeskirju.
–
Külm vesi jõuab mootori jahutusvooliku ja ujukipaagi kaudu
kõrgsurvepumba imipoolele. Ujukipaagis lisatakse veepeh-
mendit. Pump toimetab vee ja sissevõetud puhastusaine läbi
boileri. Puhastusvahendi osa vees saab reguleerida doseeri-
misventiili abil. Boilerit köetakse põletiga.
–
Kõrgsurveväljund ühendatakse hoones olemasolelva kõrg-
survevõrguga. Selle võrgu kraanidega ühendatakse kõrgsur-
vevoolikuga pesupüstoli ühenduskoht.
Ohutusseadised on mõeldud kasutaja kaitsmiseks vigastuste
eest ning neid ei tohi deaktiveerida ega nende funktsiooni muuta.
Veepuuduse kaitse hoiab ära kõrgsurvepumba sisselülitamise,
kui vett on vähe.
Veepuuduse kaitse hoiab ära põleti ülekuumenemise veepuudu-
se korral. Põleti hakkab tööle ainult siis, kui veevarustus on kül-
laldane.
Survelüliti lülitab seadme välja, kui töörõhk ületatakse. Seadis-
tust ei tohi muuta.
Survelüliti rikke korral avaneb turvaventiil. See ventiil on tehase-
poolselt seadistatud ja plommitud. Seadistust ei tohi muuta.
Kütusepuuduse või põleti rikke korral lülitab leegikontroll põleti
välja. Süttib põleti rikke märgutuli (E).
Kui põleti mootor on blokeeritud, vallandub ülevoolukaitselüliti.
Kõrgsurvepumba mootor on kaitstud mootori kaitselülitiga ja faa-
side väljalangemiskaitsega.
Heitgaasi termostaat vallandub, kui heitgaasi temperatuur ületab
300 °C. Seade lülitub välja.
Pärast seadme väljalülitamist pesupüstolist avab pärast tööval-
midusaja möödumist kõrgsurvesüsteemi paigutatud magnetven-
tiil, misläbi rõhk langeb.
Eeskirjad, suunised ja reeglid
Töökohad
Individuaalne kaitsevarustus
Müra võimendavate osade puhastamisel tuleb
kanda kuulmiskahjustuste ennetamiseks kuul-
miskaitset.
Sihipärane kasutamine
Palun vältige mineraalõli sisaldava heitvee sattumist pinnases-
se, veekogudesse või kanalisatsiooni. Seetõttu palume viia
mootoripesu ja põhjapesu läbi ainult sobivates, õliseparaatoriga
varustatud kohtades.
Funktsioon
Ohutusseadised
Veepuuduse kaitse ujukipaak
Veepuuduse kaitse turvablokk
Survelüliti
Turvaventiil
Leegikontroll
Ülevoolukaitse
Heitgaasi termostaat
Kõrgsurvesüsteemi survetustamine
372
ET
-
3
Joonis 1
1 Põleti
2 Manomeeter
3 Puhta vee pealevool sõelaga
4 Kõrgsurve-väljavool
5 Pealevoolu kütusetoru
6 Tagasivoolu kütusetoru
7 Puhastusvahendi imivoolik I
8 Puhastusvahendi imivoolik II (lisavarustus)
9 Pehmendusvahendi paak
10 Elektritoide
11 Ujukipaak
12 Juhtpaneel
Joonis 2
A Seadme lüliti
B Temperatuuri regulaator
C Puhastusvahendi doseerimisventiil I
D Puhastusvahendi doseerimisventiil II (lisavarustus)
E Põleti rikke märgutuli
F Töövalmiduse märgutuli
G Mootori ülekuumenemise märgutuli
H Lupjumiskaitse märgutuli
I
Kork - põleti mootori vabastusklahv
Seadme elemendid
6
5
7
8
3
4
9
11
10
1
12
2
Juhtpaneel
373
ET
-
4
몇
Oht
Vigastusoht! Seade, toitekaablid, kõrgsurvevoolik ja ühendused
peavad olema laitmatus seisundis. Juhul kui seisund ei ole lait-
matu, ei tohi seadet kasutada.
–
Ühendamiseks vajalikke andmeid Tehnilistest andmetest ja
tüübisildilt.
–
Elektriühenduse peab teostama elektrimontöör ja see peab
vastama normile IEC 60364-1.
Seadet tuleb kasutada selle otstarbe kohaselt. Arvestada tuleb
kohalikke iseärasusi ning seadmega töötades pöörata tähelepa-
nu ka läheduses viibivatele inimestele.
Töötavat seadet ei tohi mitte kunagi jätta järelevalveta.
Oht
–
Kuumast veest tekkinud põletusoht! Ärge suunake veejuga
inimestele ega loomadele.
–
Tulistest seadme osadest lähtuv põletusoht! Kuuma veega
töötades ärge puudutage isoleerimata torusid ja voolikuid.
Hoidke joatoru ainult käepidemetest kinni. Ärge puudutage
boileri heitgaasitutse.
–
Puhastusvahenditest lähtuv mürgitus- või sööbimisoht! Järgi-
ge puhastusvahenditel olevaid märkusi. Hoidke puhastusva-
hendeid kõrvalistele isikutele kättesaamatus kohas.
Oht
Elektrilöögist lähtuv oht elule! Ärge suunake veejuga järgmistele
rajatistele:
–
Elektriseadmed ja agregaadid,
–
see agregaat ise,
–
kõik voolu all olevad osad tööalas.
Joatorust väljuv veejuga tekitab reaktiivjõu. Nurga all olev joatoru
tekitab ülespoole suunatud jõu.
Oht
–
Vigastusoht! Joatoru tagasilöök võib teid tasakaalust viia. Te
võite kukkuda. Joatoru võib lendu paiskuda ja inimesi vigas-
tada. Otsige seismiseks kindel koht ja hoidke pesupüstolit tu-
gevasti. Ärge kunagi kiiluge pesupüstoli hooba kinni.
–
Veejuga ei tohi suunata teistele inimestele ega iseendale, et
puhastada riideid või jalanõusid.
–
Eemalepaiskuvatest osadest lähtuv vigastusoht! Lendupais-
kuvad murdunud tükid või esemed võivad inimesi või loomi vi-
gastada. Ärge kunagi suunake joatoru kergestipurunevatele
või lahtistele esemetele.
–
Vigastusest tingitud õnnetusoht! Puhastage rehve ja ventiile
vähemalt 30 cm kauguselt.
몇
Hoiatus
Oht tervist kahjustavate ainete näol! Järgmistele materjalidele
mitte pritsida, sest lendu võivad paiskuda tervisele ohtlikud ai-
ned:
–
asbesti sisaldavad materjalid,
–
materjalid, mis võivad sisaldada tervisele ohtlikke aineid.
Oht
–
Väljuvast, võimalik et kuumast veejoast lähtuv vigastusoht!
Ainult Kärcheri originaal-kõrgsurvevoolikud on optimaalselt
seadmega kooskõlas. Teiste voolikute kasutamisel ei võta
Kärcher endale garantiid.
–
Puhastusvahenditest lähtuv oht tervisele! Tingituna puhas-
tusvahendist, mis võib olla veele lisatud, ei kõlba boilerist tu-
lev vesi joomiseks.
–
Müra võimendavate osade juures töötades oht kuulmisele!
Sel juhul tuleb kanda kõrvaklappe.
Oht
Väljuvast, võimalik et kuumast veejoast lähtuv vigastusoht!
Oht
Enne igakordset kasutamist tuleb kantrollida, et kõrsurvevoolik
oleks terve. Kahjustatud kõrgsurvevoolik kohe välja vahetada.
Kõrgsurvevoolikut, torusid, armatuure ja joatoru tuleb enne
iga kasutamist vigastuste osas kontrollida.
Kontrollige, kas vooliku muhv on kindlalt paigas ja tihe.
Ettevaatust
Kuivalt töötamisest lähtuv vigastusoht.
Kontrollige puhastusvahendi paagi täituvust ja täitke vajadu-
sel.
Kontrollige pehmendusvedeliku taset ja lisage vajadusel.
Keerake seadmelüliti (A) asendisse “0”.
Vee juurdejooksu sulgemine.
Vajutage pesupüstolit, kuni seade on survevaba.
Koguse reguleerimisventiili päripäeva keerates suureneb töö-
rõhk ja veekogus.
Koguse reguleerimisventiili vastupäeva keerates väheneb
töörõhk ja veekogus.
Kasutuselevõtt
Elektriühendus
Käsitsemine
Ohutusalased märkused
!
Töövalmiduse sisseseadmine
Väljalülitamine avariiolukorras
Töösurve ja veekoguse reguleerimine
Seadistused seadme juures
R
374
ET
-
5
Veekoguse regulaatorit paremale keerates suureneb veeko-
gus ja töörõhk.
Veekoguse regulaatorit vasakule keerates väheneb veeko-
gus ja töörõhk.
Vee juurdevool avada.
Sümbol „Mootor sisse“
Tõmmake pesupüstoli hooba ja seadke lüliti (A) asendisse "1"
(mootor sisse).
Töövalmiduse märgutuli (F) osutab töövalmidusele.
Oht
Põletusoht!
Ettevaatust
Töötamine kuuma veega ilma kütuseta põhjustab kütusepumba
vigastamist. Enne kuuma veega töötamist kindlustage kütuseva-
rustus.
Põleti võib vajadusel juurde lülitada.
Sümbol „Põleti sisse“
Seadke seadmelüliti (A) asendisse “Põleti sisse”.
Valige soovitud veetemperatuur temperatuuriregulaatorist (B)
välja. Maksimaalne temperatuur on 98 °C.
Oht
Põletusoht! Töötemperatuuride puhul üle 98 °C ei tohi töösurve
ületada 3,2 MPa (32 baari).
Kuuma veega töötamiselt astmelisele auruga tööle ümber lülita-
des tuleb lasta seadmel jahtuda ja välja lülitada. Ümberseadista-
mine tuleb läbi viia järgmiselt:
Vahetage kõrgsurvedüüs aurudüüsi (lisavarustus) vastu
välja.
Seadke kuuma vee temperatuuriks 150 °C.
Kõrgsurvepumba koguse reguleerimisventiil seada minimaal-
sele veekogusele (keerata vastupäeva).
Kõrgsurvepumba koguse reguleerimisventiil seada maksi-
maalsele veekogusele (keerata päripäeva).
Keerata Easypress-püstoli veekoguse reguleerijat vasakule
minimaalsele veekogusele.
–
Kui töö käigus lastakse pesupüstoli hoob lahti, lülitub seade
välja.
–
Kui püstol reguleeritava tööks valmisolekuaja jooksul (2...8
minutit) uuesti avada, käivitub seade automaatselt.
–
Kui tööks valmisoleku aeg ületatakse, lülitab turvalülitus pum-
ba ja põleti välja. Kustub tööks valmisoleku märgutuli (F).
–
Töö jätkamiseks viige seadmelülit asendisse "0", siis lülitage
uuesti sisse. Kui seadet juhitakse kaugjuhtimispuldist, saab
tööd jätkata, kui vajutada puldil vastavale lülitile.
–
Sõidukite rehve puhastatakse ainult lamedüüsiga (25°) ja mi-
nimaalselt pritsimiskauguselt 30 cm. Ümaarjoaga ei tohi reh-
ve mingil juhul puhastada.
Kõigi teiste ülesannete jaoks on võimalik valida järgmiste düüsi-
de vahel:
Kui torud on pikemad kui 20 m või kõrgsurvevooliku korral roh-
kem kui 2 x 10 m NW 8 tuleb kasutada järgmisi düüse:
Easypress-püstoli reguleerimine (lisavarustus)
Töötamine külma veega
Töötamine kuuma veega
Töötamine auruga
Tellimisnr.
Tüüp
4.766-023
HDS 9/14
4.766-024
HDS 12/14
Ilma Easypress-püstolita
Easypress-püstoliga (lisavarustus)
Töövalmidus
Düüside valik
Määrdu-
mus
düüs
Pihustus-
nurk
Osa nr.
6.415
Rõhk
[MPa]
Tagasi-
löök [N]
HDS 9/14
tugev
00060
0°
-257
14
44
keskmine
25060
25°
-295
kerge
40060
40°
-301
HDS 12/14
tugev
00080
0°
-150
14
55
keskmine
25080
25°
-152
kerge
40080
40°
-153
Määrdu-
mus
düüs
Pihustus-
nurk
Osa nr.
6.415
Rõhk
[MPa]
Tagasi-
löök [N]
HDS 9/14
tugev
0075
0°
-419
10
37
keskmine
2575
25°
-421
kerge
4075
40°
-422
HDS 12/14
tugev
0010
0°
-082
10
46
keskmine
2510
25°
-252
kerge
4010
40°
-253
375
ET
-
6
–
Puhaastusvahendid kergendavad puhastustöid. Need võe-
takse sisse välisest puhastusvahendi paagist.
–
Seadme põhiversioon on varustatud doseerimisventiiliga (C).
Teine doseerimisseadis (doseerimisventiil D) on saadaval li-
savarustusega. Siis on võimalik võtta sisse kahte erinevat pu-
hastusvahendit.
–
Doseerimiskogus reguleeritakse puhastusvahendite doseeri-
misventiilidega (C või D) juhtpaneelilt. Määratud väärtus vas-
tab puhastusvahendi osakaalule protsentides.
–
Väline skaala kehtib, kui kasutatakse lahjendamata puhas-
tusvahendit (100 % CHEM).
–
Sisemine skaala kehtib, kui kasutatakse 1+3 eelnevalt lahjen-
datud puhasstusvahendit (25 % CHEM + 75 % vett).
Järgmine tabel eistab puhastusvahendite kulu välise skaala väär-
tuste puhul:
Täpne doseerimiskogus sõltub:
–
Puhastusvahendi viskoossusest
–
Sissevõtu kõrgusest
–
Kõrgsurvevooliku voolu takistusest
Kui on vajalik täpne doseerimine, tuleb sissevõetud puhastusva-
hendi kogus välja mõõta (nt mõõtpeekri abil).
Märkus:
Soovitusi puhastusvahendite osas leiate peatükist "Tar-
vikud".
Ettevaatust
Ilma pehmendusvahendita töötades võib boilerisse tekkida katla-
kivi.
Kui pehmendusvahendi paak on tühi, vilgub katlakivi kaitse mär-
gutuli (H).
Joonis 1 - pos. 9
Lisage pehmendusvahendi paaki pehmendusvedelikku RM
110 (2.780-001).
Oht
Tulisest veest lähtuv põletusoht! Pärast iga kasutamist kuuma
vee või auruga tuleb lasta seadmel jahtumiseks vähemalt kahe
minuti jooksul külma veega töötada, kusjuures püstol on avatud.
Kuuma veega töötades seadke temperatuuriregulaator (B)
kõige madalamale temperatuurile.
Kasutage seadet vähemalt 30 sekundit ilma puhastusvahen-
dita.
Keerake seadmelüliti (A) asendisse “0”.
Vee juurdejooksu sulgemine.
Vajutage pesupüstolit, kuni seade on survevaba.
Kindlustage pesupüstol turvafiksaatoriga kogemata avamise
vastu.
Kui töös tehakse pikemaid vaheaegu või kui ei ole võimalik ladus-
tada masinat ruumis, mille temperatuur ei lange allapoole nulli,
tuleb läbi viia järgmised meetmed (vt ptk "Hooldus ja jooksevre-
mont", alalõik "Külmumiskaitse"):
Lasta vesi välja.
Loputada seade jäätumiskaitsevahendiga läbi.
Lülitage pealüliti välja ja fikseerige või tõmmake välja Cekon-
pistik.
Ettevaatust
Vigastusoht! Ladustamisel jälgige seadme kaalu.
Ettevaatust
Vigastusoht! Transportimisel jälgige seadme kaalu.
Sõidukites transportimisel fikseerige seade vastavalt kehtiva-
tele määrustele libisemise ja ümbermineku vastu.
Puhastusvahendite doseerimine
HDS 9/14
Asend
0,5
1
5
Puhastusvahendi kogus [l/h]
14...15 22...24
50
Puhastusaine kontsentratsioon [%]
1,5
2,5
5
HDS 12/14
Asend
0,5
1
5
Puhastusvahendi kogus [l/h]
10...13 23...27
60
Puhastusaine kontsentratsioon [%]
1
2
5
Pehmendusvahenid lisamine
Kasutuselt võtmine
Pärast töötamist puhastusvahendiga
Seadme väljalülitamine
Seismapanek
Hoiulepanek
Transport
376
ET
-
7
Tehnilised andmed
HDS 9/14
HDS 12/14
HDS 12/14
1.698-900
1.699-919
1.699-920
Jõudluse andmed
Vee töösurve (standardotsakuga)
MPa (bar)
14 (140)
14 (140)
14 (140)
Maks. töösurve auruga töötades (auruotsakuga)
MPa (bar)
3,2 (32)
3,2 (32)
3,2 (32)
Detaili nr. auruotsak
--
4.766-023
4.766-024
4.766-024
Maksimaalne tööülerõhk (ohutusventiil)
MPa (bar)
18,5 (185)
18,5 (185)
18,5 (185)
Vee edastuskogus (sujuvalt reguleeritav)
l/h (l/min)
500-930
(8,3-15,5)
600-1200
(10-20)
600-1200
(10-20)
Pumpamiskogus auruga töötades
l/h (l/min)
470 (7,8)
600 (10)
600 (10)
Puhastusvahendi sissevõtt (sujuvalt reguleeritav)
l/h (l/min)
0-50 (0-0,8)
0-60 (0-1)
0-60 (0-1)
Veevõtuühendus
Juurdevoolu hulk (min)
l/h (l/min)
1100 (18,3)
1300 (21,7)
1300 (21,7)
Juurdevoolusruve (min.)
MPa (bar)
0,1 (1)
0,1 (1)
0,1 (1)
Juurdevoolurõhk (max)
MPa (bar)
0,6 (6)
0,6 (6)
0,6 (6)
Elektriühendus
Voolu liik
--
3N~
3N~
3N~
Sagedus
Hz
50
50
50
Pinge
V
400
400
230
Tarbitav võimsus
kW
6,4
7,5
8,2
Elektriline kaitse (inaktiivne)
A
16
20
32
Kaitse liik
--
IPX5
IPX5
IPX5
Elektriohutusklass
--
I
I
I
Maksimaalselt lubatav võrguimpedants
oomi
(0,381+j 0,238)
--
--
Elektritoide
mm
2
5 x 2,5
5 x 2,5
5 x 4
Temperatuur
Juurdevoolava vee temperatuur (max)
°C
30
30
30
Kuuma vee maks. töötemperatuur
°C
98
98
98
Maks töötemperatuur aururežiimil
°C
155
155
155
Temperatuuri tõus maks. vee läbivoolu juures
°C
56±2
54±2
54±2
Bruto küttevõimsus
kW
68
85
85
Kütusekulu
kg/h
5,8
7,1
7,1
Lõõr
kPa
0,01-0,04
0,01-0,04
0,01-0,04
Heitgaasi massvool - täiskoormus
kg/h
124
155
155
Mõõtmed ja kaalud
Pikkus
mm
1124
1124
1124
Laius
mm
558
558
558
Kõrgus
mm
687
699
699
Tüüpiline töömass
kg
164,4
178,8
178,8
Tuvastatud väärtused vastavalt standardile EN 60355-2-79
Müraemissioon
Helirõhu tase L
pA
dB(A)
74
76
76
Ebakindlus K
pA
dB(A)
1
1
1
Käte/käsivarte vibratsiooniväärtus
Pesupüstol
m/s
2
2,2
2,3
2,3
Joatoru
m/s
2
1,8
2,1
2,1
Ebakindlus K
m/s
2
1,0
1,0
1,0
377
ET
-
8
Mõõduleht
6
8
7
/ 6
9
9
505
558
1124
246
158
1060
47
141
61
77
46
200
300
1018±2
378
ET
-
9
Oht
Vigastusoht! Enne kõiki hooldus- ja remonttöid tuleb pealüliti väl-
ja lülitada või tõmmata välja Cekon-pistik.
Korrashoid ja tehnohooldus
Hooldusplaan
Aeg
Tegevus
komponent
Läbiviimine
kelle poolt
iga päev
Pesupüstolit
kontrollida
Pesupüstol
Kontrollige, kas pesupüstol suglub tihedalt. Kont-
rollige kogenata kasutamise kaitse funktsiooni.
Vahetage välja defektne pesupüstol.
Käitaja
Kontrollida kõrg-
survevoolikuid
Väljundvoolikud, voolikud töö-
seadme suunas
Kontrollige voolikuid vigastuste osas. Vahetage
defektsed voolikud kohe välja. Õnnetusoht!
Käitaja
Kontrollige toite-
pistikuga toite-
kaablit
Pistiku/pistikupesaga elektri-
ühendus
Kontrollige toitepistikuga toitekaablit vigastuste
osas. Kahjustatud toitejuhe lasta viivitamatult vo-
litatud hooldustöökojal/elektrikul välja vahetada.
Käitaja
kord nädalas või
iga 40 töötunni jä-
rel
Kontrollige õli
seisundit
Õlipaak pumba juures
Kui õli on piimjas, tuleb seda vahetada.
Käitaja
Õlitaset kontrolli-
da
Õlipaak pumba juures
Kontrollige pumba õlitaset. Vajadusel lisage õli
(tellimisnr. 6.288-016).
Käitaja
Sõela puhastami-
ne
Sõel vee sissevoolukohas
Vt alalõiku „Sõela puhastamine“.
Käitaja
kord kuus või pä-
rast 200 töötundi
Puhastada ja
kontrollida süü-
teelektroode
Boileri kaanes olevad süütee-
lektroodid
Kruvida kütusevoolik maha, eemaldada elekt-
roodide hoidik ja puhastada elektroode. Kontrol-
lige järgmisel leheküljel oleva visandi alusel
elektroodide seadistust ja reguleerige vajadusel.
Instrueeritud
operaator
Pumpa kontrolli-
da
Kõrgsurvepump
Kontrollige pumpa lekete osas. Kui minutis tilgub
rohkem kui 3 tilka, pöörduge klienditeeninduse
poole.
Käitaja
kontrollige sise-
miste setete ole-
masolu
kogu agregaat
Võtke kasutusele ilma kõrgsurvedüüsita joatoru-
ga agregaat. Kui töörõhk seadme manomeetril
tõuseb üle 3 MPa, tuleb läbi viia katlakivi eemal-
damine. Sama kehtib ka, kui ilma kõrgsurvevoo-
likuta töötades (vesi pääseb
kõrgsurveväljavoolukohast vabalt välja) tehakse
kindlaks töörõhk rohkem kui 0,7–1 MPa.
Katlakivi ee-
maldamise
osas inst-
rueeritud
operaator
Sõela puhasta-
mine
Veepuuduse kaitseseadises
olev sõel
Vt alalõiku „Sõela puhastamine“.
Käitaja
kord poole aasta
tagant või iga
1000 töötunni jä-
rel
Õlivahetus
Kõrgsurvepump
Õli välja lasta. 1 l uut õli (tellimisnr. 6.288-016) li-
sada. Kontrollida õlipaagi täituvust.
Käitaja
kontrollida, pu-
hastada
kogu agregaat
Agregaadi visuaalne kontroll, kontrollige kõrg-
surve ühenduste tihedust, kontrollige ülevoolu-
ventiili tihedust, kontrollige kõrgsurvevoolikut,
kontrollige survemahutit, puhastage /vahetage
kütusefilter, eemaldage küttespiraalilt nõgi / kat-
lakivi, puhastage / vahetage välja süüteelektroo-
did, puhastage / vahetage välja põleti düüs,
reguleerige põletit.
Klienditee-
nindus
kord aastas
Turvakontroll
kogu agregaat
Viige ohutuskontroll läbi vastavalt seadusandja
poolt vedelikukiirguritele kehtestatud määruste-
le.
Spetsialist
hiljemalt iga 5
aasta tagant
uuesti
Rõhu kontrollimi-
ne
kogu agregaat
Rõhu kontrollimine viia läbi vastavalt tootja nõue-
tele.
Spetsialist
379
ET
-
10
Pädeva Kärcheri müügikontoriga on võimalik sõlmida seadme
jaoks hooldusleping.
Joonis 1 - pos. 3
Vee juurdejooksu sulgemine.
Kruvige vee juurdevoolu voolik seadme küljest maha.
Lükake sõel kruvikeerajaga ühenduskohast välja.
Sõela puhastamine
Paigaldamine vastupidises järjekorras.
Eemaldage katteplekid.
Kruvige maha turvaploki nurgadetail.
Keerake M8x30 kruvi sõela.
Tõmmake kruvi ja sõel tangidega välja.
Sõela puhastamine
Paigaldamine vastupidises järjekorras.
Süüteelektroodid tuleb seadistada järgmiste andmete palusel:
Kui torudes on setteid, kasvag voolu takistus, nii et survelüliti võib
vallanduda.
Oht
Tuleohtlikest gaasidest põhjustatud plahvatusoht! Katlakivi ee-
maldades on suitsetamine keelatud. Hoolitsege hea ventilatsioo-
ni eest.
Oht
Happest tingitud sööbimisoht! Kandke kaitseprille ja kaitsekin-
daid.
Eemaldamiseks on vastavalt seaduslikele ettekirjutustele luba-
tud kasutada ainult kontrollmärgiga katlakivi eemaldusvahendit.
–
RM 100 (tellimisnr. 6.287-008) lahustab katlakivi ja lihtsaid
katlakivi ja pesuainete jääkide ühendeid.
–
RM 101 (tellimisnr. 6.287-013) lahustab setteid, mida vahen-
diga RM 100 lahustada ei saa.
Täitke 20 l mahuti 15 l veega.
Lisage liiter katlakivi lahustit.
Ühendage veevoolik otse pumbapea külge ja riputage vaba
ots paaki.
Torgake ühendatud ilma düüsita joatoru paaki.
Avage pesupüstol ja ärge seda katlakivi eemaldamise ajal
enam sulgege.
Viige seadme lüliti asendisse „Põleti sisse“, kuni on saavuta-
tud ca. 40 °C.
Lülitage seade välja ja laske 20 minutit seista. Pesupüstol
peab avatuks jääma.
Seejärel pumbake seade tühjaks.
Märkus:
Soovitame seejärel korrosioonikaitseks ja happejääkide
neutraliseerimiseks pumbata puhastusvahendi paagi kaudu
seadmest läbi leeliselist lahust (nt RM 81).
Seade tuleb paigaldada ruumidesse, mille temperatuur ei lange
alla 0 °C. Külmumisohu korral, nt välistingimustesse paigaldami-
se korral, tuleb seade tühjendada ja antifriisiga läbi pesta.
Kruvige vee juurdevoolu voolik ja kõrgsurvevoolik maha.
Laske masinal maks. 1 minut töötada, kuni pump ja voolikud
on tühjad.
Kruvige katla põhjas olev pealevoolutoru maha ja laske küt-
tespiraal tühjaks voolata.
Märkus:
Pidage silmas jäätumiskaitsevahendi tootja käsitsemis-
eeskirju.
Valage ujukipaaki kuni servani kaubanduses saadaolevat
jäätumiskaitsevahendit.
Asetage kogumisanum kõrgsurve väljavoolukoha alla.
Lülitage seade sisse ja laske niikaua töötada, kuni ujukipaagi
veepuuduse kaitse rakendub ja seadme välja lülitab.
Seeläbi saavutatakse ka mõningane korrosioonikaitse.
Hooldusleping
Sõela puhastamine
Sõel vee sissevoolukohas
Veepuuduse kaitseseadises olev sõel
Elektroodide seadistamine
A
B
C
a
HDS 9/14
4,5±0,5
3,5±0,5
3+0,5
60°
HDS 12/14
3,5±0,5
3,5±0,5
3+0,5
60°
2.
1.
A
B
C
a
Katlakivi eemaldamine
Läbiviimine
Jäätumiskaitse
Vee väljalaskmine
Loputage seade jäätumiskaitsevahendiga läbi
380
ET
-
11
Oht
Vigastusoht! Enne kõiki hooldus- ja remonttöid tuleb pealüliti väl-
ja lülitada või tõmmata välja Cekon-pistik.
*
Märkus
Lülitage seade välja ja sisse, et vabastada põleti rike blokeerin-
gust.
**
Abi häirete korral
Rike
Võimalik põhjus
Kõrvaldamine
kelle poolt
Seade ei tööta, tööks valmis-
oleku märgutuli (F) ei põle.
Seadmel puudub pinge.
Kontrollige elektrivõrku.
Elektrik
Turvalülitus toimib.
Lülitage seade seadmelülitist korraks välja,
siis uuesti sisse.
Käitaja
Juhtahela kaitse (F3) läbi põlenud.
Kaitse on integreeritud juhttrafosse
(T2).
Paigaldage uus kaitse, kui see uuesti läbi põ-
leb, tehke kindlaks ülekoormuse põhjus.
Klienditeenindus
Rõhulüliti HD (kõrgsurve) või ND
(madalsurve) defektne.
Kontrollige rõhulüliti.
Klienditeenindus
Taimeri moodul (A1) defektne.
Kontrollige ühendusi, vajadusel vahetage.
Klienditeenindus
Vallandus heitgaasi termosstaat
(B8).
Laske seadmel jahtuda. Vabastage heitgaasi
termostaat (B8) lukustusest. Kõrvaldage rik-
ke põhjus.
Klienditeenindus
+ Põleb mootori ülekuume-
nemise märgutuli (G)
Vallandus termoandur (WS) moo-
toris või ülevoolu kaitselüliti (F1).
Kõrvaldage ülekoormuse põhjus.
Klienditeenindus
Rakendus ujukipaagis olev vee-
puuduse kaitse.
Kõrvaldage veepuudus.
Käitaja
Põleti ei sütti või kustub leek
töö ajal
Temperatuuri regulaator (B) on
seadistatud madalalt.
Reguleerige temperatuuriregulaator kõrge-
maks.
Käitaja
Seadmelüliti ei ole põleti asendis. Lülitage põleti sisse.
Käitaja
Turvaploki veepuuduse kaitse lüli-
tus välja.
Tagage küllaldane vee juurdevool. Kontrolli-
ge seadet tiheduse osas.
Käitaja
Süttib põleti rikke märgutuli
(E) *
Kütusepaak tühi.
Kütuse lisamine.
Käitaja
Kütusefilter ummistunud.
Puhastage kütusefiltrit, selleks keerake kütu-
sefilter välja, puhastage ja pange uuesti ko-
hale.
Käitaja
Leegikontrolli fotoelement on va-
lesti suunatud või rikkis.
Kontrollige, kas fotoelemendi asend on õige.
**
Käitaja
Puudub süütesäde (saab kindlaks
teha põleti kaanes olevast aknast).
Kontrollige süütetransformaatorit ja süüte-
kaabli elektroodide vahet. Korrigeerige vahet
või vahetage defektsed osad välja. Vajadusel
puhastage.
Klienditeenindus
Põleti mootor on blokeeritud.
Kõrvaldage blokeering. Eemaldage juhtväl-
jalt kork (I) ja vabastage ülevoolu kaitselüliti.
Pange kork uuesti kohale.
Klienditeenindus
Kütusepumba või kütuse magnet-
ventiili rike.
Kontrollige osi ja vahetage defektsed osad
välja.
Käitaja
381
ET
-
12
Rike
Võimalik põhjus
Kõrvaldamine
kelle poolt
Põleb katlakivikaitse märgu-
tuli (H)
Pehmendusvedelik ära tarvitatud. Lisage pehmendusvahendit.
Käitaja
Puhastusaine edasitoimeta-
mine ebapiisav või puudub
Doseerimisventiil asendis „0“.
Reguleerige puhastusvahendi doseerimis-
ventiili.
Käitaja
Puhastusvahendi filter ummistu-
nud või paak tühi.
Puhastage või täitke.
Käitaja
Puhastusvahendi imivoolikud, -do-
seerimisventiil või -magnetventiil
lekivad või ummistunud.
Kontrollige, puhastage.
Käitaja
Elektroonika või magnetventiil de-
fektne.
Vahetage välja
Klienditeenindus
Seade ei saavuta täisrõhku
Düüs välja uhutud.
Vahetage düüs välja.
Käitaja
Puhastusvahendi paak tühi.
Lisage puhastusvahendit.
Käitaja
Liiga vähe vett.
Hoolitsege piisava vee pealevoolu eest.
Käitaja
Vee sissevoolu sõel ummistunud. Kontrollge, monteerige sõel välja ja puhasta-
ge.
Käitaja
Puhastusvahendi doseerimisventiil
lekib.
Kontrollige ja tihendage.
Käitaja
Puhastusvahendi vooliud lekivad. Vahetage välja
Käitaja
Ujuki ventiil kiilub.
Kontrollige liikuvust.
Käitaja
Turvaventiil lekib.
Kontrollige seadistust, vajadusel paigaldage
uus tihend.
Klienditeenindus
Koguse reguleerimisventiil lekib
või on liiga madalalt reguleeritud.
KOntrollige ventiile, kahjustumise korral va-
hetage välja, määrdumise korral puhastage.
Klienditeenindus
Survetustamise magnetventiil de-
fektne.
Vahetage magnetventiil välja.
Klienditeenindus
Kõrgsurvepump klopib, ma-
nomeeter võngub tugevalt
Amortisaaotr defektne.
Vahetage amortisaator välja.
Klienditeenindus
Veepump võtab sisse vähesel
määral õhku.
Kontrollige imisüsteemi ja kõrvaldage leke.
Käitaja
Seade lülitub pidevalt sisse
ja välja, kui pesupüstol on
avatud
Joatoru düüs on ummistunud.
Kontrollige, puhastage.
Käitaja
Seade on lupjunud.
Vt alalõiku „Katlakivi eemaldamine“.
Käitaja
Ülevoolaja lülituspunkt on nihku-
nud valesse asendisse.
Laske ülevoolaja uuesti reguleerida.
Klienditeenindus
Veepuuduse kaitseseadises olev
sõel ummistunud.
Kontrollge, monteerige sõel välja ja puhasta-
ge.
Käitaja
Seade ei lülitu välja, kui pe-
supüstol on suletud
Pump ei ole täielikult õhutatud.
Viige seadmelüliti asendisse "0" ja tõmmake
pesupüstolit, kuni düüsist ei tule enam vede-
likku. Siis lülitage seade uuesti sisse. Korra-
ke seda protsessi, kuni on saavutatud täis
töörõhk.
Käitaja
Turvaventiil või turvaventiili tihend
defektne.
Vahetage turvaventiil või tihend välja.
Klienditeenindus
382
ET
-
13
Puhaastusvahendid kergendavad puhastustöid. Tabelis on esita-
tud puhastusvahelite valik. Enne puhastusvahendite töötlemist
tuleb kindlasti järgida pakendil olevaid märkusi.
* = ainult lühikeseks kasutamiseks, kahe etapiline meetod, lopu-
tada üle puhta veega
** = ASF = mustuse eemaldamist kergendavad omadused
*** = eelpiserduseks sobib Foam-Star 2000
Tarvikud
Puhastusvahend
Kasutusala
Määrdumus, kasutusviis
Puhastusvahend
pH-Wert (ca.) 1 % la-
hus kraanivees
Autotööstus, tanklad,
veofirmad, autopargid
Tolm, tänava mustus, mineraalõlid
(lakitud pindadel)
RM 55 ASF **
8
RM 22/80-pulber ASF
12/10
RM 81 ASF
9
RM 803 ASF
10
RM 806 ASF
11
Sõiduki konserveerimine
RM 42 kõrgsurvepesurite külmvaha
8
RM 820-kuumvaha ASF
7
RM 821-piserdusvaha ASF
6
RM 824-super-pärlvaha ASF
7
RM 44 veljepuhastusgeel
9
Metallitöötlev tööstus
Õlid, rasvad, tolm ja sarnane mus-
tus
RM 22-pulber ASF
12
RM 55 ASF
8
RM 81 ASF
9
RM 803 ASF
10
RM 806 ASF
12
RM 31 ASF (tugev määrdumine)
12
RM 39-vedel (korrosioonikaitsega)
9
Toiduaineid töötlevad et-
tevõtted
Kerge kuni keskmine määrdumine,
rasvad/õlid, suured pinnad
RM 55 ASF
8
RM 81 ASF
9
RM 882 geelvaht OSC
12
RM 58 ASF (vahtpuhastusvahend)
9
RM 31 ASF *
12
Suitsuvaik
RM 33 *
13
Puhastamine ja desinfektsioon
RM 732
9
Desinfektsioon
RM 735
7...8
Lubi, mineraalsed setted
RM 25 ASF *
2
RM 59 ASF (vahtpuhastus)
2
Sanitaarruumid***
Lubi, uriinikivi, seebid jne.
RM 25 ASF * (põhipuhastus)
2
RM 59 ASF (vahtpuhastus)
2
RM 68 ASF
5
383
ET




