Karcher HDS 9-16-4 ST Gas: !
!: Karcher HDS 9-16-4 ST Gas
-
14
–
Seadme küttemehhanism kujutab endast kütteseadet. Pai-
galdamisel tuleb järgida antud riigis kehtivaid määrusi.
–
Kasutage ainult kontrollitud korstnaid/heitgaasitorusid.
–
Gaasitorude paigaldamist ning seadme gaasipoolset ühen-
dust tohib teostada ainult gaasi- ja veemajanduses tegutse-
mislitsentsi omav firma.
–
Seadistusi ja remonttöid tohivad läbi viia ainult firma Kärcher
klienditeeninduse koolitatud montöörid.
–
Gaasi toitetorus, mille nimiläbimõõt on vähemalt 1 toll, on ette
nähtud manomeeter ja lukustusventiil.
–
Kõrgsurvepumba poolt põhjustatud vibratsioonide tõttu tuleb
ühendus jäiga gaasitoru ja seadme vahel teostada painduva
gaasivoolikuga.
–
Üle 10 m pikkuste gaasi pealevoolutorude korral peab nimilä-
bimõõt olema 1 1/2 tolli või suurem. Seadme gaasiühendus
on nimiläibmõõduga 1 toll.
Oht
Painduvat gaasivoolikut põletisse keerates tuleb ühendusniplit
harkvõtmega SW 36 vastu hoida. Ühendusnippel ei tohi põleti
korpuse suhtes asendit muuta. Keermesühenduse tihendamine
tuleb teostada DVGW poolt lubatud tihendusvahenditega. Pärast
ühendamist tuleb ühenduskoha tihedust kontrollida DVGW poolt
lubatud lekkepihustiga.
Gaasitoru läbimõõt tuleb arvutada vastavalt DVGW TRGI 1986
või TRF-i 1996. Seadme gaasiühenduse nominaalläbimõõt ei ole
automaatselt torude nominaalläbimõõt. Gaasitoru mõõtmete
määramine ja paigaldamine peab toimuma vastavate standardite
ja eeskirjade kohaselt.
–
Iga seade tuleb ühendada omaenese lõõriga.
–
Heitgaasitoru tuleb teostada vastavalt kohapeal kehtivatele
eeskirjadele ja kooskõlas pädeva korstnapühkijaga.
Ilma voolukaitseta gaasiseade, mille puhul kõik ülerõhu all olevad
heitgaasitee osad on põlemisõhust ümbritsetud. B23-installat-
sioon avab võimaluse ühendada seade tavapärase ühelõõrilise
korstnaga vastavalt standardile DIN 18160 ja kasutada ruumi-
õhust sõltuvana. Eelduseks on, et korsten sobiks kütteväärtus-
seadmete ühendamiseks (nt korstna saneerimise teel
roostevabast terasest toruga).
Gaasiseade põlemisõhu juurdevooluga ja heitgaasitoruga verti-
kaalselt katuse kohal. Suudmed on üksteise lähedal samas rõhu-
piirkonnas.
Seadme installeerimine
Ainult volitatud spetsialistidele!
Üldist
Gaas üldiselt
Gaasitorud
Õhu-/gaasitoru
!
Gaasiseade heitgaasiagregaadiga, mis võtab põlemisõhu
paigaldusruumist
Tüüp B23
Gaasiseade heitgaasiagregaadiga, mis võtab põlemisõhu
suletud süsteemi kaudu väljast
Tüüp C33
396
ET
-
15
Gaasiseade põlemisõhu juurdevooluga ja heitgaasi toruga ühen-
damiseks õhk-heitgaas-süsteemiga.
Gaasiseade eraldi põlemisõhu juurdevoolu ja heitgaasitoruga.
Suudned on erinevates rõhupiirkondades.
Märkus:
Et saavutada ettenähtud põlemisväärtusi, tuleb kinni pi-
dada tehnilistes andmetes toodud korstnalõõrist.
Kondensaadi toru sifoon tuleb paigutada vahetult kondensaadi
ühenduskohale. Sifooni kõrgus peab olema 30 cm. Sifoon ei si-
saldu tarnekomplektis. Kondensaaditoru ei tohi olla kanalisat-
siooniga pidevas ühenduses. Kondensaat peab saama vabalt
lehtrisse või neutralisatsioonipaaki välja voolata.
–
Enne paigaldamist tuleb kontrollida seina kandevõimet. Tar-
nekomplekti kuuluv kinnitusmaterjal sobib betoonile. Õõnesp-
lokkidest, telliskivist ja gaasbetoonist seinte puhul tuleb
kasutada sobivaid tüübleid ja kruvisid, nt keemiline ankur
(puurimispilti vt mõõtlehelt).
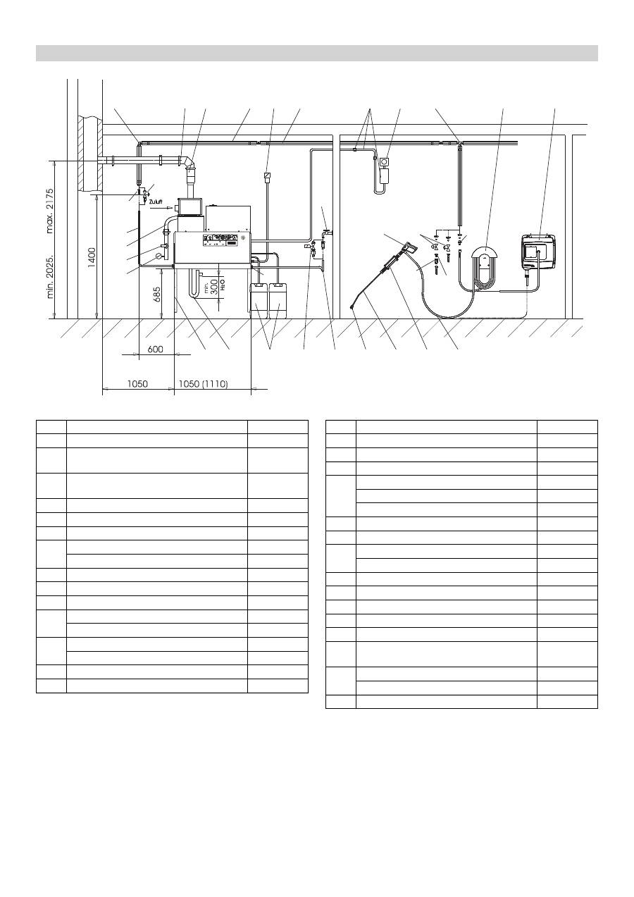
–
Joonis 3 - pos. 19 ja 25
Seadet ei ole lubatud ühendada jäigalt veetorustiku või kõrg-
survetorustikuga. Kindlasti tuleb paigaldada ühendusvooli-
kud.
–
Joonis 3 - A
Veetorustiku ja ühendusvooliku vahele tuleb ette näha lukus-
tuskraan.
Kõrgsurvejuhtmete paigaldamisel tuleb järgida vastavaid koha-
peal kehtivaid seadusanlikke sätteid.
–
Rõhu langus torus peab olema alla 1,5 MPa.
–
Valmis toru tuleb kontrollida 32 MPa-ga.
–
Toru isolatsioon peab taluma temperatuuri kuni 100 °C.
Joonis 3 - pos. 20
Paagid tuleb paigaldada nii, et puhastusvahendi tase ei oleks
rohkem kui 1,5 m seadme põhjast allpool ning ülemine tase mitte
kõrgemal kui seadme põhi.
Joonis 3 - B ja pos. 19
Vee sissevool tuleb sobiva veevoolikuga ühendada veetorus-
tikuga.
–
Veevarustuse võimsus peab olema vähemalt 1300 l/h vähe-
malt 0,1 MPa juures.
–
Veetemperatuur peab olema alla 30 °C.
Tüüp C43
Tüüp C53
Kondensaadi äravool
Paigaldamine seinale
Kõrgsurvetorude paigaldamine
Puhastusaine paagi paigaldamine
Veevarustus
397
ET
-
16
Ettevaatust
Maksimaalselt lubatud võrguimpedantsi elektrilises ühendus-
punktis (vt tehnilistest andmetest) ei tohi ületada. Kahtluse korral
ühenduspunkti võrguimpedantsi osas pöörduge palun oma ener-
giaettevõtte poole.
Märkus:
Sisselülitamise ajal tekkib lühiajaline pingelangus. Kui
võrgutingimused on ebasoodsad, võib see teisi seadmeid nega-
tiivselt mõjutada.
–
Ühendamiseks vajalikke andmeid Tehnilistest andmetest ja
tüübisildilt.
–
Elektriühenduse peab teostama elektrimontöör ja see peab
vastama normile IEC 60364-1.
–
Tööalas voolu all olevad osad, kaablid ja seadmed peavad
olema laitmatus seisundis ja kaitstud surve all paiskuva vee
eest.
Elektriõnnetuste vältimiseks soovitame kasutada ettelülitatud rik-
kevoolu-kaitselülitiga (max 30 mA rakendumise nimivoolutugevu-
sega) pistikupesi.
Taastage elektriühendus.
Statsionaarse kõrgsurvepesuri väljalülitamiseks tuleb paigaldada
ohutusse ja kergesti ligipääsetavasse kohta suletav pealüliti (joo-
nis 3 - pos. 6).
Pealüliti kontaktavauste läbimõõt peab olema vähemalt 3 mm.
Paigaldage seadme ühenduskaablile Cekon-pistik.
Torgake Cekon-pistik pistikupessa.
Statsionaarse kõrgsurvepesuri väljalülitamiseks peab Cekon-pis-
tik võrgust lahutamiseks olema kergesti juurdepääsetav.
Kontrollige gaasiühendust.
Ettevaatust
Seadme vigastusoht ülekuumenemise tõttu.
Ühendage sifoon katla põhjaga ja valage sisse vett.
Valage lõõri ava kohal olevasse katlasse 4 liitrit vett.
Enne esimest kasutamist lõigake ära veepumbal oleva õli-
paagi kaane tipp.
Joonis 3 - pos. 14
Ühendage kõrgsurvevoolik pesupüstoliga ja joatoruga ning
ühendage seadme kõrgsurve-väljavoolukohtaga või kõrgsur-
vetorustikuga.
Kinnitage düüsi otsik (b) umbmutriga (a) joagoru (d) külge.
Jälgige, et rõngastihend (c) oleks puhtalt soones.
Elektriühendus
Püsivalt paigaldatud elektriühendus
Pistiku/pistikupesaga elektriühendus
Esmakordne kasutuselevõtt
Seade on tehasepoolselt maagaasi seadmena reguleeritud
gaasiliigile G 20 ja vedelgaasi seadmena gaasiliigile G 31. Maa-
gaasil töötava seadme ümberseadistsamisel gaasile G 25 või
muule maagaasile (vt tüübisilt) või vedelgaasi seadme ümber-
seadistamisel gaasile G 30 või muule vedelgaasile (vt tüübisilti),
tuleb maagaasi seadmete puhul seadistada maagaasi heitgaa-
siväärtused ning vedelgaasi seadme puhul vedelgaasi väärtu-
sed vastavalt hooldusinfole.
Juuresolevale tühjale sildile kirjutatakse uus seadistatud gaasi-
liik ja paigaldatakse aadressiväljale seadme paremal küljel. Sa-
maaegselt tuleb eemaldada sinna tehasepoolselt paigutatud silt
andmetaga G 20 (maagaasiseade) või G 31 (vedelgaasiseade)
kohta.
Abinõud enne kasutuselevõttu
a
b
c
d
398
ET
-
17
Eemaldage vedru (c) pehmendusaine paagi kaane toe (b)
küljest.
Valage paaki Kärcheri pehmendusvedelikku RM 110 (telli-
misnr. 2.780-001).
Oht
Ohtlik elektripinge! Sisestamist tohib teostada ainult väljaõppinud
elektrik.
Selgitage välja kohalik vee karedus:
–
Kohaliku veevarustusettevõtte abil,
–
vee kareduse kontrollseadisega (tellimsnr. 6.768-004).
Võtke seadme kate ära.
Avage lülituskast juhtpaneelil.
Reguleerige pöörd-potentsiomeetrit (a) olenevalt vee karedu-
sest. Tabelist leiate õige seadistuse.
Näide:
Vee kareduse 15 °dH puhul valige pöörd-potentsiomeetri skaalalt
väärtus 6. Sellest tuleneb 31 sekundiline paus, s.t. iga 31 sekundi
tagant avaneb magnetventiil lühikeseks ajaks.
Tööks valmiduse aega reguleeritakse suuremalt juhtplaadilt
elektrikilbi vasakul küljeseinal.
Tööks valmiduse ajaks on tehasepoolselt määratud minimaalne
aeg 2 minutit ning seda saab suurendada kuni maksimaalse ajani
8 minutit.
Katlakivikaitse
Vee karedus (°dH)
5
10
15
20
25
Pöörd-potentsiomeetri
skaala
8
7
6
5
4,5
Pausi aeg (sekundit)
50
40
31
22
16
b
c
a
a
Tööks valmiduse aja reguleerimine
8 7 6 5 4 3 2 1
S2
min.
max.
399
ET
-
18
Joonis 3
Installatsioonimaterjal
1
2
3
5
6
7
8
9
10
12
13
A
15
11b
11a
11c
11a
25
21
22
23
11b
24
4
20
19a
19
18
17
16
14
11d
B
Pos. Installatsioonimaterjal
Tellimisnr.
1
Nurgaühendus
6.386-356
2
Väljalasketoru komplekt, horisontaalne,
150 mm
6.526-231
3
Väljalasketoru komplekt, vertikaalne, 150
mm
6.526-232
4
Sifooni osade komplekt
2.640-422
5
Soojusisolatsioon
6.286-114
6
Pealüliti
6.631-455
7
Torude komplekt, tsingitud teras
2.420-004
Torude komplekt, roostevaba teras
2.420-006
8
Kaugjuhtimise osade komplekt
2.744-008
9
Avariilüliti osade komplekt
2.744-002
10
T-ühendus
6.386-269
11a
Ühendustutsid, messing
2.638-180
Ühendustutsid, roostevaba teras
2.638-181
11b
Lukustsuskraan NW 8, tsingitud teras
4.580-144
Lukustuskraan NW 8, roostevaba teras
4.580-163
11c
Kiirmuhvi liikumatu osa
6.463-025
11d
Kiirmuhvi lahtine osa
6.463-023
Pos. Installatsioonimaterjal
Tellimisnr.
12
Voolikuhoidja
2.042-001
13
Vooliku trummel
2.637-238
14
Kõrgsurvepesu voolik 10 m
6.388-083
15
Easypress pesupüstol
4.775-463
Pöördregulaator HDS 9/16-4
4.775-470
Pöördregulaator HDS 12/14-4
4.775-471
16
Joatoru hoidik
2.042-002
17
Joatoru
4.760-550
18
Düüsi otsik HDS 9/16-4
2.883-402
Düüsi otsik HDS 12/14-4
2.883-406
19
Veevoolik
4.440-282
19a
Magnetventiil vee pealevool
4.743-011
20
Puhastusvahendi paak, 60 l
5.070-078
21
Gaasivoolik R1“
6.388-228
22
Gaasi lukustuskraan R1“
6.412-389
23
Manomeeter, gaas (Tähelepanu! Ehitus-
poolselt on ette nähtud lukustusventiil.)
6.412-059
24
Seinakonsooli osade komplekt
2.053-005
Põrandaraami osade komplekt
2.210-008
25
Kõrgsurvevoolik
6.389-028
400
ET
-
19
Käesolevaga kinnitame, et allpool kirjeldatud seade vastab meie
poolt turule toodud mudelina oma kontseptsioonilt ja konstrukt-
sioonilt EÜ direktiivide asjakohastele põhilistele ohutus- ja tervi-
sekaitsenõetele. Meiega kooskõlastamata muudatuste tegemise
korral seadme juures kaotab käesolev deklaratsioon kehtivuse.
5.957-648
Allakirjutanud toimivad juhatuse korraldusel ja volitusel.
dokumentatsiooni eest vastutav isik:
S. Reiser
Alfred Kärcher GmbH & Co. KG
Alfred-Kärcher-Str. 28 - 40
71364 Winnenden (Germany)
Tel: +49 7195 14-0
Faks: +49 7195 14-2212
Winnenden, 2014/02/01
Igas riigis kehtivad vastava volitatud müügiesindaja antud garan-
tiitingimused. Võimalikud häired seadme töös kõrvaldatakse ga-
rantiiajal tasuta, kui põhjuseks on materjali- või tootmisviga.
EÜ vastavusdeklaratsioon
Toode:
Kõrgsurvepesur
Tüüp:
1.251-xxx
Asjakohased EÜ direktiivid:
2009/142/EU
2006/42/EU (+2009/127/EU)
2004/108/EÜ
Kohaldatud ühtlustatud standardid
:
EN 55014–1: 2006+A1: 2009+A2: 2011
EN 55014–2: 1997+A1: 2001+A2: 2008
EN 60335–1
EN 60335–2–79
EN 62233: 2008
EN 61000–3–2: 2006+A1: 2009+A2: 2009
HDS 12/14:
EN 61000–3–3: 2008
HDS 9/16:
EN 61000–3–11: 2000
Rakendatud spetsifikatsioonid:
QA 195 (mitte LPG)
Mainitud institutsiooni nimi:
2009/142/EU jaoks
GASTEC
Wilmersdorf 50
7327 AC Apeldoorn
ID-nr. 0063
Garantii
CEO
Head of Approbation
401
ET
-
20
Klienditeenindus
Seadme tüüp:
Tootmisnr.:
Kasutuselevõtu kuupäev:
Kontrollimise kuupäev:
Tulemus:
Allkiri
Kontrollimise kuupäev:
Tulemus:
Allkiri
Kontrollimise kuupäev:
Tulemus:
Allkiri
Kontrollimise kuupäev:
Tulemus:
Allkiri
402
ET
-
1
Pirms ier
ī
ces pirm
ā
s lietošanas izlasiet instrukcijas
ori
ģ
in
ā
lvalod
ā
, r
ī
kojieties saska
ņā
ar nor
ā
d
ī
jumiem
taj
ā
un uzglab
ā
jiet to v
ē
l
ā
kai izmantošanai vai turpm
ā
kiem lieto-
t
ā
jiem.
–
Pirms pirm
ā
s lietošanas oblig
ā
ti izlas
ī
t nor
ā
d
ī
jumus par dro-
š
ī
bu Nr. 5.956-309!
–
Par transport
ē
šanas boj
ā
jumiem nekav
ē
joties zi
ņ
ojiet tirgot
ā
-
jam.
Inform
ā
cija par sast
ā
vda
ļā
m (REACH)
Aktu
ā
lo inform
ā
ciju par sast
ā
vda
ļā
m atrad
ī
siet:
www.kaercher.com/REACH
B
ī
stami
Nor
ā
da uz tieš
ā
m draudoš
ā
m briesm
ā
m, kuras rada smagus
ķ
er-
me
ņ
a ievainojumus vai izraisa n
ā
vi.
몇
Br
ī
din
ā
jums
Nor
ā
da uz iesp
ē
jami b
ī
stamu situ
ā
ciju, kura var rad
ī
t smagus
ķ
erme
ņ
a ievainojumus vai izrais
ī
t n
ā
vi.
Uzman
ī
bu
Nor
ā
da uz iesp
ē
jami b
ī
stamu situ
ā
ciju, kura var rad
ī
t vieglus ie-
vainojumus vai materi
ā
los zaud
ē
jumus.
Nepareizi lietojot, augstspiediena str
ū
kla var b
ū
t b
ī
sta-
ma. Str
ū
klu nedr
ī
kst v
ē
rst uz cilv
ē
kiem, dz
ī
vniekiem,
zem sprieguma esoš
ā
m elektrisk
ā
m iek
ā
rt
ā
m un uz
pašu apar
ā
tu.
–
Ņ
emiet v
ē
r
ā
attiec
ī
gaj
ā
valst
ī
likumdev
ē
ja izdotos normat
ī
vos
aktus par š
ķ
idruma smidzin
ā
t
ā
jiem.
–
Ņ
emiet v
ē
r
ā
attiec
ī
gaj
ā
valst
ī
likumdev
ē
ja izdotos normat
ī
vos
aktus par negad
ī
jumu nov
ē
ršanu. Š
ķ
idrumu smidzin
ā
t
ā
ji ir re-
gul
ā
ri j
ā
p
ā
rbauda un p
ā
rbaudes rezult
ā
ts ir rakstiski j
ā
doku-
ment
ē
.
–
Apar
ā
ta apsildes iek
ā
rta ir apkures iek
ā
rta. Apkures iek
ā
rtas
ir regul
ā
ri j
ā
p
ā
rbauda saska
ņā
ar attiec
ī
g
ā
s valsts likumdev
ē
-
ja izdotajiem normat
ī
vajiem aktiem.
–
Izmantojot iek
ā
rtu telp
ā
s, j
ā
r
ū
p
ē
jas par drošu izpl
ū
des g
ā
zu
novad
ī
šanu (d
ū
mg
ā
zu caurule bez velkmes p
ā
rtrauc
ē
ja). Bez
tam j
ā
b
ū
t pietiekamai t
ī
r
ā
gaisa padevei.
–
Iev
ē
rojiet droš
ī
bas nor
ā
d
ī
jumus, kas pievienoti izmantotajiem
t
ī
r
ī
šanas l
ī
dzek
ļ
iem (parasti atrodami uz l
ī
dzek
ļ
a iepakojuma
eti
ķ
etes).
Pirms apar
ā
ta instal
ā
cijas j
ā
vienojas ar g
ā
zes apg
ā
des uz
ņē
mu-
mu un viet
ē
jo skurste
ņ
slau
ķ
i.
Veicot instal
ā
ciju, j
ā
iev
ē
ro B
ū
vniec
ī
bas likuma, R
ū
pniec
ī
bas liku-
ma un Vides aizsardz
ī
bas noteikumi. M
ē
s nor
ā
d
ā
m uz zem
ā
k mi-
n
ē
tajiem noteikumiem, vadl
ī
nij
ā
m un standartiem:
–
Apar
ā
tu dr
ī
kst instal
ē
t tikai specializ
ē
ts uz
ņē
mums atbilstoši
attiec
ī
gajiem nacion
ā
lajiem noteikumiem.
–
Veicot elektroinstal
ā
ciju, j
ā
iev
ē
ro likumdev
ē
ja nacion
ā
lie no-
teikumi.
–
Veicot g
ā
zes sist
ē
mas instal
ā
ciju, j
ā
iev
ē
ro likumdev
ē
ja na-
cion
ā
lie noteikumi.
–
G
ā
zes vadu instal
ā
ciju, k
ā
ar
ī
apar
ā
ta piesl
ē
gšanu g
ā
zes sis-
t
ē
mai dr
ī
kst veikt tikai specializ
ē
ts g
ā
zes un
ū
dens apg
ā
des
uz
ņē
mums.
–
Deg
ļ
a regul
ē
šanu, apkopi un remontu dr
ī
kst veikt tikai apm
ā
-
c
ī
ti Kärcher Klientu apkalpošanas dienesta meistari.
–
Projekt
ē
jot kam
ī
nu, j
ā
iev
ē
ro viet
ē
j
ā
s, sp
ē
k
ā
esoš
ā
s vadl
ī
ni-
jas.
Satura r
ā
d
ī
t
ā
js
Vides aizsardz
ī
ba . . . . . . . .
LV . . 1
Lietošanas instrukcij
ā
izmantotie simboli
LV . . 1
Simboli uz apar
ā
ta . . . . . . .
LV . . 1
Visp
ā
r
ē
jie droš
ī
bas tehnikas noteikumi
LV . . 1
Noteikumiem atbilstoša lietošana
LV . . 2
Darb
ī
ba . . . . . . . . . . . . . . . .
LV . . 2
Droš
ī
bas iek
ā
rtas . . . . . . . .
LV . . 2
Apar
ā
ta elementi . . . . . . . . .
LV . . 3
Ekspluat
ā
cijas uzs
ā
kšana . .
LV . . 4
Apkalpošana . . . . . . . . . . . .
LV . . 4
Ekspluat
ā
cijas p
ā
rtraukšana
LV . . 6
Iekonserv
ē
šana. . . . . . . . . .
LV . . 6
Glab
ā
šana. . . . . . . . . . . . . .
LV . . 6
Transport
ē
šana . . . . . . . . . .
LV . . 6
Tehniskie dati . . . . . . . . . . .
LV . . 7
Kopšana un tehnisk
ā
apkope
LV . . 9
Pal
ī
dz
ī
ba darb
ī
bas trauc
ē
jumu gad
ī
jum
ā
LV . 11
Piederumi . . . . . . . . . . . . . .
LV . 13
Iek
ā
rtas instal
ā
cija. . . . . . . .
LV . 14
EK Atbilst
ī
bas deklar
ā
cija . .
LV . 19
Garantija . . . . . . . . . . . . . . .
LV . 19
Klientu apkalpošanas dienests
LV . 20
Vides aizsardz
ī
ba
Iepakojuma materi
ā
li ir atk
ā
rtoti p
ā
rstr
ā
d
ā
jami. L
ū
dzu,
neizmetiet iepakojumu kop
ā
ar m
ā
jsaimniec
ī
bas atkri-
tumiem, bet nog
ā
d
ā
jiet to viet
ā
, kur tiek veikta atkritu-
mu otrreiz
ē
j
ā
p
ā
rstr
ā
de.
Nolietot
ā
s ier
ī
ces satur noder
ī
gus materi
ā
lus, kurus
iesp
ē
jams p
ā
rstr
ā
d
ā
t un izmantot atk
ā
rtoti. Baterijas,
e
ļļ
a un taml
ī
dz
ī
gas vielas nedr
ī
kst nok
ļū
t apk
ā
rt
ē
j
ā
vi-
d
ē
. T
ā
d
ēļ
l
ū
dzam utiliz
ē
t vec
ā
s ier
ī
ces ar atbilstošu at-
kritumu sav
ā
kšanas sist
ē
mu starpniec
ī
bu.
Ne
ļ
aujiet motore
ļļ
ai, kurin
ā
mai degvielai, d
ī
ze
ļ
degvielai un ben-
z
ī
nam non
ā
kt apk
ā
rt
ē
j
ā
vid
ē
. Saudz
ē
jiet augsni un nolietoto e
ļļ
u
likvid
ē
jiet videi nekait
ī
g
ā
veid
ā
.
Kärcher t
ī
r
ī
šanas l
ī
dzek
ļ
i ir emul
ģē
joši. Tas noz
ī
m
ē
, ka netiek
trauc
ē
ta e
ļļ
as separatora darb
ī
ba. Sarakstu ar ietiecamajiem t
ī
-
r
ī
šanas l
ī
dzek
ļ
iem skatiet noda
ļā
"Piederumi".
Lietošanas instrukcij
ā
izmantotie simboli
Simboli uz apar
ā
ta
Visp
ā
r
ē
jie droš
ī
bas tehnikas noteikumi
Noteikumi, vadl
ī
nijas un regulas
403
LV
-
2
Darba vieta atrodas pie vad
ī
bas pults. Citas darba vietas atkar
ī
b
ā
no iek
ā
rtas uzb
ū
ves ir pie papildier
ī
c
ē
m (smidzin
ā
šanas iek
ā
r-
t
ā
m), kas piesl
ē
gtas savienojumu viet
ā
s.
–
Aizsardz
ī
bai pret
ū
dens š
ļ
akat
ā
m vai net
ī
rumiem valk
ā
jiet
piem
ē
rotu aizsargap
ģē
rbu un aizsargbrilles.
Apar
ā
ts paredz
ē
ts tam, lai ar br
ī
vi izpl
ū
stošu
ū
dens str
ū
klu no
virsm
ā
m atdal
ī
tu net
ī
rumus.
Ī
paši to izmanto maš
ī
nu, transportl
ī
-
dzek
ļ
u un fas
ā
žu t
ī
r
ī
šanai.
Briesmas
Savainošan
ā
s risks! Izmantojot degvielas uzpildes stacij
ā
s vai ci-
t
ā
s b
ī
stam
ā
s zon
ā
s, iev
ē
rot attiec
ī
gos droš
ī
bas priekšrakstus.
–
Aukstais
ū
dens caur motora dzes
ē
šanas cauruli nok
ļū
st tvert-
n
ē
ar pludi
ņ
u un no turienes non
ā
k caurpl
ū
des sild
ī
t
ā
ja
ā
r
ē
j
ā
apvalk
ā
, un t
ā
l
ā
k - augstspiediena s
ū
k
ņ
a s
ū
kšanas pus
ē
.
Tvertn
ē
ar pludi
ņ
u pievieno
ū
dens m
ī
kstin
ā
t
ā
ju. S
ū
knis s
ū
kn
ē
ū
deni un uzs
ū
kto t
ī
r
ī
šanas l
ī
dzekli cauri caurpl
ū
des sild
ī
t
ā
-
jam. T
ī
r
ī
šanas l
ī
dzek
ļ
a daudzumu
ū
den
ī
var noregul
ē
t ar do-
z
ē
šanas v
ā
rstu. Caurpl
ū
des sild
ī
t
ā
ju uzkars
ē
g
ā
zes deglis.
–
Augstspiediena izeju piesl
ē
dz
ē
k
ā
esošai augstspiediena sis-
t
ē
mai. Š
ī
s sist
ē
mas savienojuma viet
ā
s piesl
ē
dz rokas smi-
dzin
ā
t
ā
jpistoli ar augstspiediena š
ļū
teni.
Droš
ī
bas ier
ī
ces kalpo lietot
ā
ja aizsardz
ī
bai un t
ā
s nedr
ī
kst igno-
r
ē
t vai apiet to darb
ī
bu.
Ū
dens tr
ū
kuma drošin
ā
t
ā
js nov
ē
rš augstspiediena s
ū
k
ņ
a iesl
ē
g-
šanos, ja ir nepietiekams
ū
dens daudzums.
Ū
dens tr
ū
kuma drošin
ā
t
ā
js nov
ē
rš deg
ļ
a p
ā
rkaršanu, ja ir nepie-
tiekams
ū
dens daudzums. Deglis s
ā
k darboties tikai tad, kad ir
pietiekams
ū
dens daudzums.
Kad tiek p
ā
rsniegts darba spiediens, manometriskais sl
ē
dzis iz-
sl
ē
dz apar
ā
tu. Regul
ē
jumu nedr
ī
kst main
ī
t.
Manometrisk
ā
sl
ē
dža trauc
ē
juma gad
ī
jum
ā
atveras droš
ī
bas
v
ā
rsts. Šis v
ā
rsts r
ū
pn
ī
c
ā
ir noregul
ē
ts un noplomb
ē
ts. Regul
ē
ju-
mu nedr
ī
kst main
ī
t.
Degvielas tr
ū
kuma vai deg
ļ
a trauc
ē
juma gad
ī
jum
ā
liesmas kon-
trolsist
ē
ma izsl
ē
dz degli. Iedegas deg
ļ
a trauc
ē
juma kontrollampi-
ņ
a (E).
Ja ir blo
ķē
ts deg
ļ
a motors, rea
ģē
p
ā
rslodzes aizsardz
ī
bas sl
ē
-
dzis. Augstspiediena s
ū
k
ņ
a motoru pasarg
ā
motora aizsargsl
ē
-
dzis un tinuma aizsargsl
ē
dzis.
Izpl
ū
des g
ā
zu termostats rea
ģē
tad, ja izpl
ū
des g
ā
zu temperat
ū
-
ra p
ā
rsniedz 320 °C. Deg izpl
ū
des g
ā
zu termostata kontrollampi-
ņ
a (K).
Rea
ģē
maksim
ā
l
ā
s temperat
ū
ras ierobežot
ā
ji katla pamatn
ē
(>
80 °C) un
ū
dens izvad
ā
(> 110 °C) un deg deg
ļ
a trauc
ē
juma kon-
trollampi
ņ
a (E).
Izpl
ū
des g
ā
zu manometriskais sl
ē
dzis atsl
ē
dz degli, ja izpl
ū
des
g
ā
zu sist
ē
m
ā
veidojas nepie
ļ
aujami augsts pretspiediens, piem.,
aizsprostojuma gad
ī
jum
ā
.
P
ē
c apar
ā
ta atsl
ē
gšanas ar rokas smidzin
ā
t
ā
jpistoli, paejot gaid
ī
-
šanas laikam, atveras augstspiediena sist
ē
m
ā
integr
ē
ts magn
ē
-
tiskais v
ā
rsts, k
ā
rezult
ā
t
ā
samazin
ā
s spiediens.
Darba vietas
Person
ī
gais aizsargapr
ī
kojums
T
ī
rot troksni pastiprinošas deta
ļ
as, dzirdes trau-
c
ē
jumu nov
ē
ršanas nol
ū
kos valk
ā
jiet austi
ņ
as.
Noteikumiem atbilstoša lietošana
Miner
ā
le
ļļ
as saturoši notek
ū
de
ņ
i nedr
ī
kst nok
ļū
t augsn
ē
,
ū
den
ī
vai kanaliz
ā
cij
ā
. T
ā
p
ē
c dzin
ē
ja mazg
ā
šanu un apakšas mazg
ā
-
šanu veikt tikai piem
ē
rot
ā
s viet
ā
s ar e
ļļ
as uztv
ē
r
ē
ju.
Darb
ī
ba
Droš
ī
bas iek
ā
rtas
Ar pludi
ņ
u apr
ī
kot
ā
s tvertnes
ū
dens tr
ū
kuma drošin
ā
-
t
ā
js
Droš
ī
bas bloka
ū
dens tr
ū
kuma drošin
ā
t
ā
js
Spiediena relejs
Droš
ī
bas v
ā
rsts
Liesmas kontrolsist
ē
ma
P
ā
rslodzes aizsardz
ī
bas
Izpl
ū
des g
ā
zu termostats
Temperat
ū
ras ierobežot
ā
js
Izpl
ū
des g
ā
zu manometriskais sl
ē
dzis
Spiediena samazin
ā
šana augstspiediena sist
ē
m
ā
404
LV
-
3
1. att
ē
ls
1 Deglis
2 Manometrs
3 T
ī
r
ā
ū
dens pievads ar sietfiltru
4 Augstspiediena izeja
5 G
ā
zes piesl
ē
gums
6 T
ī
r
ī
šanas l
ī
dzek
ļ
a s
ū
kšanas š
ļū
tene I
7 T
ī
r
ī
šanas l
ī
dzek
ļ
a s
ū
kšanas š
ļū
tene II (opcija)
8
Ū
dens m
ī
kstin
ā
t
ā
ja tvertne
9 Elektropievads
10 Tvertne ar pludi
ņ
u
11 Vad
ī
bas panelis
2. att
ē
ls
A Apar
ā
ta sl
ē
dzis
B Temperat
ū
ras regulators
C T
ī
r
ī
šanas l
ī
dzek
ļ
a doz
ē
šanas v
ā
rsts I
D T
ī
r
ī
šanas l
ī
dzek
ļ
a doz
ē
šanas v
ā
rsts II (opcija)
E Deg
ļ
a trauc
ē
juma kontrollampi
ņ
a
F Kontrollampi
ņ
a gatav
ī
bai darbam
G Motora p
ā
rkaršanas kontrollampi
ņ
a
H Pretapka
ļķ
ošan
ā
s kontrollampi
ņ
a
I
G
ā
zes releja atblo
ķē
šanas tausti
ņ
š
J Izpl
ū
des g
ā
zu termostata atblo
ķē
šanas tausti
ņ
š
K Izpl
ū
des g
ā
zu termostata kontrollampi
ņ
a
Apar
ā
ta elementi
4
5
6
7
3
8
10
1
11
2
9
Vad
ī
bas panelis
405
LV
-
4
몇
Briesmas
Savainošan
ā
s risks! Ier
ī
cei, pievadiem, augstspiediena š
ļū
tenei
un piesl
ē
gumiem j
ā
b
ū
t nevainojam
ā
st
ā
vokl
ī
. Ja st
ā
voklis nav
nevainojams, ier
ī
ci nedr
ī
kst izmantot.
–
Piesl
ē
gumu lielumus skat
ī
t tehniskajos datos un ražot
ā
jfir-
mas datu pl
ā
ksn
ī
t
ē
.
–
Elektrisk
ā
piesl
ē
gšana j
ā
veic elektri
ķ
im un j
ā
atbilst IEC
60364-1.
Lietot
ā
jam j
ā
izmanto apar
ā
ts tikai atbilstoši noteikumiem. Vi
ņ
am
j
āņ
em v
ē
r
ā
viet
ē
jie apst
ā
k
ļ
i un str
ā
d
ā
jot ar apar
ā
tu j
ā
piev
ē
rš uz-
man
ī
ba apk
ā
rtn
ē
esošajiem cilv
ē
kiem.
Apar
ā
tam darbojoties nekad neatst
ā
jiet to bez uzraudz
ī
bas.
B
ī
stami
–
Applauc
ē
šan
ā
s risks ar karstu
ū
deni! Nev
ē
rsiet
ū
dens str
ū
klu
uz cilv
ē
kiem vai dz
ī
vniekiem.
–
Apdegumu g
ū
šanas risks, saskaroties ar karst
ā
m iek
ā
rtas
da
ļā
m! Darbinot apar
ā
tu ar karsto
ū
deni, nepieskarieties ne-
izol
ē
tiem cauru
ļ
vadiem un š
ļū
ten
ē
m. Turiet smidzin
ā
šanas
cauruli tikai aiz rokturiem. Nepieskarieties caurpl
ū
des sild
ī
t
ā
-
ja izpl
ū
des g
ā
zu izvadam.
–
R
ī
kojoties ar t
ī
r
ī
šanas l
ī
dzek
ļ
iem, past
ā
v saind
ē
šan
ā
s vai
ķī
-
misko apdegumu risks! Iev
ē
rojiet uz t
ī
r
ī
šanas l
ī
dzek
ļ
iem do-
tos nor
ā
d
ī
jumus. T
ī
r
ī
šanas l
ī
dzek
ļ
us uzglab
ā
jiet
nepiederoš
ā
m person
ā
m nepieejam
ā
viet
ā
.
B
ī
stami
Briesmas dz
ī
v
ī
bai, g
ū
stot elektrisk
ā
s str
ā
vas triecienu! Nev
ē
rsiet
ū
dens str
ū
klu uz š
ā
d
ā
m iek
ā
rt
ā
m:
–
elektrisk
ā
m ier
ī
c
ē
m un iek
ā
rt
ā
m,
–
uz šo iek
ā
rtu,
–
uz vis
ā
m str
ā
vu vadoš
ā
m da
ļā
m darba viet
ā
.
No smidzin
ā
šanas caurules izpl
ū
stoš
ā
ū
dens str
ū
kla rada atsitie-
na sp
ē
ku. Ja smidzin
ā
šanas caurule ir izliekta le
ņķī
, sp
ē
ks virz
ī
ts
uz augšu.
B
ī
stami
–
Savainošan
ā
s risks! Smidzin
ā
šanas caurules atsitiena rezul-
t
ā
t
ā
J
ū
s varat zaud
ē
t l
ī
dzsvaru. J
ū
s varat apkrist. Smidzin
ā
-
šanas caurule var k
ļū
t nekontrol
ē
jama un var ievainot
personas. Ie
ņ
emiet stabilu st
ā
vokli un turiet pistoli stingri ro-
k
ā
s. Nekad nenoblo
ķē
jiet rokas smidzin
ā
t
ā
jpistoles sviru.
–
Str
ū
klu nedr
ī
kst v
ē
rst ar
ī
uz citiem cilv
ē
kiem vai pats uz sevi,
lai not
ī
r
ī
tu ap
ģē
rbu vai apavus.
–
Lidojošas deta
ļ
as var rad
ī
t ievainojumus! Lidojošas da
ļ
as vai
priekšmeti var ievainot personas vai dz
ī
vniekus. Nev
ē
rsiet
ū
dens str
ū
klu uz pl
ī
stošiem vai nestabiliem priekšmetiem.
–
Iesp
ē
jams boj
ā
jumu rad
ī
ts negad
ī
jumu risks! Riepas un v
ā
r-
stus t
ī
riet no vismaz 30 cm att
ā
luma.
몇
Br
ī
din
ā
jums
Risku rada vesel
ī
bai kait
ē
jošas vielas! Neapsmidziniet š
ā
dus
materi
ā
lus, jo t
ā
rezult
ā
t
ā
var izdal
ī
ties vesel
ī
bai kait
ī
gas vielas:
–
azbestu saturošus materi
ā
lus,
–
materi
ā
lus, kas var satur
ē
t vesel
ī
bai kait
ī
gas vielas.
B
ī
stami
–
Savainošan
ā
s risks izpl
ū
stošas, iesp
ē
jams, karstas
ū
dens
str
ū
klas rezult
ā
t
ā
! Iek
ā
rtai optim
ā
li piem
ē
rotas tikai ori
ģ
in
ā
l
ā
s
Kärcher augstspiediena š
ļū
tenes. Izmantojot citas š
ļū
tenes,
netiek sniegta garantija.
–
T
ī
r
ī
šanas l
ī
dzek
ļ
i var kait
ē
t vesel
ī
bai! Iesp
ē
jami piejauktu t
ī
r
ī
-
šanas l
ī
dzek
ļ
u d
ēļ
no apar
ā
ta izvad
ī
tais
ū
dens nav dzeram
ā
ū
dens kvalit
ā
t
ē
.
–
Str
ā
d
ā
jot pie troksni pastiprinoš
ā
m deta
ļā
m, past
ā
v dzirdes
boj
ā
jumu risks! Šaj
ā
gad
ī
jum
ā
j
ā
lieto austi
ņ
as.
B
ī
stami
Savainošan
ā
s risks izpl
ū
stošas, iesp
ē
jams, karstas
ū
dens str
ū
k-
las rezult
ā
t
ā
!
B
ī
stami
Pirms katras lietošanas reizes p
ā
rbaudiet, vai nav boj
ā
ta augst-
spiediena š
ļū
tene. Nekav
ē
joties nomainiet boj
ā
tu augstspiediena
š
ļū
teni.
Pirms katras lietošanas p
ā
rbaudiet, vai augstspiediena š
ļū
te-
nei, cauru
ļ
vadiem, armat
ū
rai un smidzin
ā
šanas caurulei nav
boj
ā
jumu.
P
ā
rbaudiet š
ļū
tenes savienojuma fiks
ā
ciju un herm
ē
tiskumu.
Uzman
ī
bu
Tukšgaitas d
ēļ
past
ā
v boj
ā
jumu risks.
P
ā
rbaudiet t
ī
r
ī
šanas l
ī
dzek
ļ
a l
ī
meni tvertn
ē
un vajadz
ī
bas ga-
d
ī
jum
ā
papildiniet.
P
ā
rbaudiet
ū
dens m
ī
kstin
ā
t
ā
ja l
ī
meni un vajadz
ī
bas gad
ī
ju-
m
ā
papildiniet.
P
ā
rsl
ē
dziet apar
ā
ta sl
ē
dzi (A) uz „0“.
Aizsl
ē
gt
ū
dens padevi.
Spiediet rokas smidzin
ā
t
ā
jpistoli, l
ī
dz ier
ī
c
ē
vairs nav spiediena.
Nosl
ē
dziet g
ā
zes padevi.
Ekspluat
ā
cijas uzs
ā
kšana
Str
ā
vas piesl
ē
gums
Apkalpošana
Droš
ī
bas nor
ā
d
ī
jumi
!
Ier
ī
ces sagatavošana darbam
Izsl
ē
gšana av
ā
rijas gad
ī
jum
ā
406
LV
-
5
Pagriežot daudzuma regul
ē
šanas v
ā
rstu pulkste
ņ
r
ā
d
ī
t
ā
ja vir-
zien
ā
, palielin
ā
s darba spiediens un padeves daudzums.
Pagriežot daudzuma regul
ē
šanas v
ā
rstu pret
ē
ji pulkste
ņ
r
ā
d
ī
-
t
ā
ja virzienam, samazin
ā
s darba spiediens un padeves dau-
dzums.
Pagriežot
ū
dens daudzuma regulatoru pa labi, palielin
ā
s pa-
deves daudzums un darba spiediens.
Pagriežot
ū
dens daudzuma regulatoru pa kreisi, samazin
ā
s
padeves daudzums un darba spiediens.
Attaisiet
ū
dens padeves kr
ā
nu.
Simbols "Iesl
ē
gts motors"
Pavelciet rokas smidzin
ā
t
ā
jpistoles sviru un p
ā
rsl
ē
dziet apa-
r
ā
ta sl
ē
dzi (A) uz "1" (iesl
ē
gts motors).
Darba gatav
ī
bas kontrollampi
ņ
a (F) nor
ā
da uz gatav
ī
bu dar-
bam.
Briesmas
Applauc
ē
šan
ā
s risks!
Uzman
ī
bu
Ū
dens kars
ē
šana bez degvielas rada degvielas s
ū
k
ņ
a boj
ā
ju-
mus. Pirms
ū
dens kars
ē
šanas nodrošiniet degvielas padevi.
Vajadz
ī
bas gad
ī
jum
ā
var iesl
ē
gt ar
ī
degli.
Simbols "Iesl
ē
gts deglis"
Apar
ā
ta sl
ē
dzi (A) p
ā
rsl
ē
dziet uz „Iesl
ē
gts deglis“.
Vajadz
ī
go
ū
dens temperat
ū
ru noregul
ē
jiet ar temperat
ū
ras
regulatoru (B). Maksim
ā
l
ā
temperat
ū
ra ir 98 °C.
–
Ja darba laik
ā
atlaiž rokas smidzin
ā
t
ā
jpistoles sviru, apar
ā
ts
atsl
ē
dzas.
–
Atverot pistoli no jauna, regul
ē
jama gaid
ī
šanas laika robež
ā
s
(2...8 min
ū
tes) apar
ā
ts atkal autom
ā
tiski iesl
ē
dzas.
–
Ja gaid
ī
šanas laiks tiek p
ā
rsniegts, droš
ī
bas laika komut
ā
ci-
jas sist
ē
ma atsl
ē
dz s
ū
kni un degli. Darba gatav
ī
bas kontrol-
lampi
ņ
a (F) izdziest.
–
Lai ats
ā
ktu apar
ā
ta lietošanu, p
ā
rsl
ē
dziet apar
ā
ta sl
ē
dzi poz
ī
-
cij
ā
"0", tad atkal iesl
ē
dziet. Ja apar
ā
tu vada ar t
ā
lvad
ī
bas pul-
ti, apar
ā
tu var iesl
ē
gt ar attiec
ī
go t
ā
lvad
ī
bas pults sl
ē
dzi.
–
Transportl
ī
dzek
ļ
u riepas t
ī
ra tikai ar plakanstr
ū
klas sprauslu
(25°) un no vismaz 30 cm att
ā
luma. Riepas nek
ā
d
ā
gad
ī
jum
ā
nedr
ī
kst t
ī
r
ī
t ar apa
ļ
o str
ū
klu.
Visiem citiem darbiem iesp
ē
jams izv
ē
l
ē
ties š
ā
das sprauslas:
Ja ir vair
ā
k k
ā
20 m garš cauru
ļ
vads vai vair
ā
k k
ā
2 x 10 m gara
augstspiediena š
ļū
tene NW 8, j
ā
izmanto š
ā
das sprauslas:
Darba spiediena un padeves daudzuma uzst
ā
d
ī
šana
Apar
ā
ta iestat
ī
šana
Easypress pistoles regul
ē
šana (opcija)
Darbs ar aukstu
ū
deni
R
Darbs ar karstu
ū
deni
Gatav
ī
ba darbam
Sprauslu izv
ē
le
Net
ī
r
ī
ba Sprausla Smidzi-
n
ā
šanas
le
ņķ
is
Da
ļ
as Nr.
6.415
Spie-
diens
[MPa]
Atsitiens
[N]
HDS 9/16
liela
00060
0°
-649
16
46
vid
ē
js
25060
25°
-647
neliela
40060
40°
-648
HDS 12/14
liela
00080
0°
-150
14
55
vid
ē
js
25080
25°
-152
neliela
40080
40°
-153
Net
ī
r
ī
ba Sprausla Smidzi-
n
ā
šanas
le
ņķ
is
Da
ļ
as Nr.
6.415
Spie-
diens
[MPa]
Atsitiens
[N]
HDS 9/16
liela
0075
0°
-419
10
37
vid
ē
js
2575
25°
-421
neliela
4075
40°
-422
HDS 12/14
liela
0010
0°
-082
10
46
vid
ē
js
2510
25°
-252
neliela
4010
40°
-253
407
LV
-
6
–
T
ī
r
ī
šanas l
ī
dzek
ļ
i atvieglo t
ī
r
ī
šanas uzdevuma izpildi. Tos ie-
s
ū
kn
ē
no
ā
r
ē
jas t
ī
r
ī
šanas l
ī
dzek
ļ
a tvertnes.
–
Apar
ā
ta pamatapr
ī
kojum
ā
iek
ļ
auts doz
ē
šanas v
ā
rsts (C).
Otra doz
ē
šanas iek
ā
rta (doz
ē
šanas v
ā
rsts D) pieejama spe-
ci
ā
lajos piederumos. Ar to iesp
ē
jams ies
ū
kn
ē
t divus daž
ā
dus
t
ī
r
ī
šanas l
ī
dzek
ļ
us.
–
Doz
ē
jamo daudzumu noregul
ē
ar t
ī
r
ī
šanas l
ī
dzek
ļ
a doz
ē
ša-
nas v
ā
rstiem (C vai D) uz vad
ī
bas pults. Iestat
ī
t
ā
v
ē
rt
ī
ba at-
bilst t
ī
r
ī
šanas l
ī
dzek
ļ
a saturam procentos.
–
Ā
r
ē
j
ā
skala j
āņ
em v
ē
r
ā
, izmantojot neatš
ķ
aid
ī
tu t
ī
r
ī
šanas l
ī
-
dzekli (100 % CHEM).
–
Iekš
ē
j
ā
skala j
āņ
em v
ē
r
ā
, izmantojot 1:3 atš
ķ
aid
ī
tu t
ī
r
ī
šanas
l
ī
dzekli (25 % CHEM + 75 %
ū
dens).
Sekojoš
ā
tabula par
ā
da t
ī
r
ī
šanas l
ī
dzek
ļ
a pat
ē
ri
ņ
u, vadoties p
ē
c
ā
r
ē
j
ā
s skalas v
ē
rt
ī
b
ā
m:
Prec
ī
zs doz
ē
jamais daudzums ir atkar
ī
gs no:
–
t
ī
r
ī
šanas l
ī
dzek
ļ
a viskozit
ā
tes
–
s
ū
kn
ē
šanas augstuma
–
augstspiediena vada pl
ū
smas pretest
ī
bas
Ja nepieciešama prec
ī
za doz
ē
šana, j
ā
izm
ē
ra ies
ū
kn
ē
tais t
ī
r
ī
ša-
nas l
ī
dzeklis (piem., s
ū
kn
ē
jot no m
ē
rtrauka).
Nor
ā
de:
Ieteicamos t
ī
r
ī
šanas l
ī
dzek
ļ
us atrad
ī
siet noda
ļā
"Piede-
rumi".
Uzman
ī
bu
Darbinot apar
ā
tu bez
ū
dens m
ī
kstin
ā
t
ā
ja, var apka
ļķ
oties caur-
pl
ū
des sild
ī
t
ā
js.
Ja ir tukša
ū
dens m
ī
kstin
ā
t
ā
ja tvertne, mirgo pretapka
ļķ
ošan
ā
s
kontrollampi
ņ
a (H).
1. att
ē
ls - 8. poz.
Iepildiet
ū
dens m
ī
kstin
ā
t
ā
ja tvertn
ē
ū
dens m
ī
kstin
ā
t
ā
ja š
ķī
du-
mu RM 110 (2.780-001).
B
ī
stami
Applauc
ē
šan
ā
s risks ar karstu
ū
deni! P
ē
c darba ar karstu
ū
deni,
lai ier
ī
ce atdzistu, t
ā
j
ā
darbina vismaz 2 min
ū
tes ar aukstu
ū
deni
un ar atv
ē
rtu pistoli.
Darbinot apar
ā
tu ar karsto
ū
deni, noregul
ē
jiet temperat
ū
ras
regulatoru (B) uz zem
ā
ko temperat
ū
ru.
Darbiniet apar
ā
tu vismaz 30 sekundes bez t
ī
r
ī
šanas l
ī
dzek
ļ
a.
P
ā
rsl
ē
dziet apar
ā
ta sl
ē
dzi (A) uz „0“.
Aizsl
ē
gt
ū
dens padevi.
Spiediet rokas smidzin
ā
t
ā
jpistoli, l
ī
dz ier
ī
c
ē
vairs nav spiediena.
Nodrošiniet rokas smidzin
ā
t
ā
jpistoli ar drošin
ā
t
ā
ju pret net
ī
šu
atv
ē
ršanos.
Ja paredz
ē
ti ilg
ā
ki ekspluat
ā
cijas p
ā
rtraukumi vai nav iesp
ē
jama
uzglab
ā
šana pret salu pasarg
ā
t
ā
viet
ā
, veiciet sekojošos pas
ā
ku-
mus (skat. noda
ļ
u "Kopšana un tehnisk
ā
apkope", sada
ļ
u "Aiz-
sardz
ī
ba pret aizsalšanu").
Izlaist
ū
deni.
Izskalot ier
ī
ci ar pretsala l
ī
dzekli.
Izsl
ē
dziet galveno sl
ē
dzi un nodrošiniet to vai atvienojiet Ce-
kon kontaktu.
Nosl
ē
dziet g
ā
zes padevi.
Uzman
ī
bu
Savainošan
ā
s un boj
ā
jumu risks! Uzglab
ā
jot
ņ
emiet v
ē
r
ā
apar
ā
ta
svaru.
Uzman
ī
bu
Savainošan
ā
s un boj
ā
jumu risks! Transport
ē
jot
ņ
emiet v
ē
r
ā
apa-
r
ā
ta svaru.
Transport
ē
jot automaš
ī
n
ā
, saska
ņā
ar sp
ē
k
ā
esošaj
ā
m direk-
t
ī
v
ā
m nodrošiniet apar
ā
tu pret izsl
ī
d
ē
šanu un apg
ā
šanos.
T
ī
r
ī
šanas l
ī
dzek
ļ
a doz
ē
šana
St
ā
voklis
0,5
1
8
T
ī
r
ī
šanas l
ī
dzek
ļ
a daudzums [l/h]
14...15 22...24
50
T
ī
r
ī
šanas l
ī
dzek
ļ
a koncentr
ā
cija [%]
1,5
2,5
> 5
Ū
dens m
ī
kstin
ā
t
ā
ja uzpild
ī
šana
Ekspluat
ā
cijas p
ā
rtraukšana
P
ē
c t
ī
r
ī
šanas l
ī
dzek
ļ
a lietošanas
Izsl
ē
gt ier
ī
ci
Iekonserv
ē
šana
Glab
ā
šana
Transport
ē
šana
408
LV
-
7
Tehniskie dati
HDS 9/16-4
ST Gas
HDS 9/16-4
ST Gas LPG
HDS 12/14-4
ST Gas
HDS 12/14-4
ST Gas LPG
1.251-108
1.251-109
1.251-110
1.251-111
Tehniskie dati attiec
ī
b
ā
uz jaudu
Ū
dens darba spiediens (ar standarta sprauslu)
MPa (bar)
16 (160)
16 (160)
14 (140)
14 (140)
Maks. darba spiediens (droš
ī
bas v
ā
rsts)
MPa (bar)
18,5 (185)
18,5 (185)
18,5 (185)
18,5 (185)
Ū
dens padeves daudzums (pak
ā
peniski regul
ē
jams)
l/h (l/min)
500-1000 (8,3-
16,6)
500-1000 (8,3-
16,6)
600-1200 (10-
20)
600-1200 (10-
20)
Ies
ū
kn
ē
t
ā
t
ī
r
ī
šanas l
ī
dzek
ļ
a daudzums (pak
ā
peniski re-
gul
ē
jams)
l/h (l/min)
0-50 (0-0,8)
0-50 (0-0,8)
0-60 (0-1)
0-60 (0-1)
Ū
densapg
ā
de
Pievad
ā
m
ā
ū
dens daudzums (min.)
l/h (l/min)
1100 (18,3)
1100 (18,3)
1300 (21,7)
1300 (21,7)
Pievad
ā
m
ā
ū
dens spiediens (min.)
MPa (bar)
0,1 (1)
0,1 (1)
0,1 (1)
0,1 (1)
Pievad
ā
m
ā
ū
dens spiediens (maks.)
MPa (bar)
0,6 (6)
0,6 (6)
0,6 (6)
0,6 (6)
Elektropadeve
Str
ā
vas veids
--
3N~
3N~
3N~
3N~
Frekvence
Hz
50
50
50
50
Spriegums
V
380-420
380-420
380-420
380-420
Piesl
ē
guma jauda
kW
6,4
6,4
7,5
7,5
Drošin
ā
t
ā
ji (inertie)
A
16
16
20
20
Aizsardz
ī
ba
--
IPX5
IPX5
IPX5
IPX5
Aizsardz
ī
bas klase
--
I
I
I
I
Maksim
ā
li pie
ļ
aujam
ā
t
ī
kla pretest
ī
ba
omi
(0,381+j
0,238)
(0,381+j
0,238)
--
--
Elektropievads
mm
2
5 x 2,5
5 x 2,5
5 x 2,5
5 x 2,5
Temperat
ū
ra
Pievad
ā
m
ā
ū
dens temperat
ū
ra (maks.)
°C
30
30
30
30
Karst
ā
ū
dens maks. darba temperat
ū
ra
°C
98
98
98
98
Droš
ī
bas termostata maks. temperat
ū
ra
°C
110
110
110
110
Temperat
ū
ras paaugstin
ā
šan
ā
s, ja ir maks.
ū
dens caur-
pl
ū
de
°C
60-65
60-65
60-65
60-65
Kars
ē
šanas jauda, bruto
kW
75
75
95
95
D
ū
mvada velkme
kPa
0,01-0,04
0,01-0,04
0,01-0,04
0,01-0,04
G
ā
zes piesl
ē
gumu v
ē
rt
ī
bas
Dabasg
ā
ze E (G 20)
m
3
/h
7,2
--
9,8
--
Dabasg
ā
ze
LL (G 25)
m
3
/h
8,2
--
11,4
--
Nomin
ā
lais piesl
ē
guma spiediens (dabasg
ā
ze)
kPa
1,8-5
--
1,8-5
--
Prop
ā
ns
kg/h
--
5,7
--
7,2
Nomin
ā
lais piesl
ē
guma spiediens (prop
ā
ns)
kPa
--
5-6
--
5-6
Apk
ā
rt
ē
j
ā
s vides dati
Norm
ē
tais lietder
ī
bas koeficients
%
97
97
97
97
Norm
ē
tais NO
X
emisijas faktors (dabasg
ā
ze G 25)
mg/kWh
< 40
--
< 40
--
Norm
ē
tais CO emisijas faktors (dabasg
ā
ze G 25)
mg/kWh
< 40
--
< 40
--
Skurste
ņ
a m
ē
r
ī
jumu v
ē
rt
ī
bas
Pie
ļ
aujamais p
ā
rspiediens (min.)
kPa
0,05
0,05
0,05
0,05
Nepieciešam
ā
velkme
kPa
0
0
0
0
Izpl
ū
des g
ā
zu masas pl
ū
sma - pilna slodze
kg/h
130
130
166
166
CO
2
(dabasg
ā
ze)
%
9,5
--
9,5
--
CO
2
(prop
ā
ns)
%
--
12
--
12
Izpl
ū
des g
ā
zu temperat
ū
ra, maks./min.
°C
190/150
190/150
170/130
170/130
Sadegšanas gaiss/gaisa padeve
Maks. garums: 10 m ar diviem 90° l
ī
kumiem (minim
ā
lais diametrs 100 mm).
Atbilstoši viet
ē
jiem noteikumiem no uzst
ā
d
ī
šanas telpas vai t
ī
rs gaiss no
ā
r-
puses.
Kondens
ā
ta izvad
ī
šana
Kondens
ā
ta izvad
ī
šana (maks.)
l/h
4 (ar sifonu ka-
naliz
ā
cij
ā
)
4 (ar sifonu ka-
naliz
ā
cij
ā
)
4 (ar sifonu ka-
naliz
ā
cij
ā
)
4 (ar sifonu ka-
naliz
ā
cij
ā
)
Savienojums
DN
40 (HTR)
40 (HTR)
40 (HTR)
40 (HTR)
Minim
ā
lais
ū
dens stabs, sifons
mm
300
300
300
300
409
LV
-
8
Sertifik
ā
ts EN 60335-2-79
Sertifik
ā
ts atbilstoši direkt
ī
vai Par dal
ī
bvalstu likumdoša-
nas piem
ē
rošanu g
ā
zes kurin
ā
m
ā
degšanas iek
ā
rt
ā
m
(90/396/EEK)
--
Gastec QA
Low NO
X
Gastec QA
Gastec QA
Low NO
X
Gastec QA
Eiropas ier
īč
u kategorija
--
I 2E (r), I
2ELL, I 2H, I
2L, I2 HE
I 3P
I 2E (r), I
2ELL, I 2H, I
2L, I2 HE
I 3P
Ier
ī
ces tips
--
B23, C33,
C43, C53
B23, C33,
C43, C53
B23, C33,
C43, C53
B23, C33,
C43, C53
CE produkta identifik
ā
cijas numurs
--
PIN 0063 BN
3880
PIN 0063 BN
3880
PIN 0063 BN
3880
PIN 0063 BN
3880
Izm
ē
ri un svars
Garums
mm
1124
1124
1124
1124
Platums
mm
558
558
558
558
Augstums
mm
966
966
1076
1076
Tipisk
ā
darba masa
kg
193,5
193,5
209
209
Saska
ņā
ar EN 60355-2-79 apr
ēķ
in
ā
t
ā
s v
ē
rt
ī
bas
Trokš
ņ
u emisija
Ska
ņ
as spiediena l
ī
menis L
pA
dB(A)
74
74
76
76
Nenoteikt
ī
ba K
pA
dB(A)
1
1
1
1
Plaukstas-rokas vibr
ā
cijas lielums
Rokas smidzin
ā
t
ā
jpistole
m/s
2
2,2
2,2
2,3
2,3
Str
ū
klas padeves caurule
m/s
2
1,8
1,8
2,1
2,1
Nenoteikt
ī
ba K
m/s
2
1,0
1,0
1,0
1,0
HDS 9/16-4
ST Gas
HDS 9/16-4
ST Gas LPG
HDS 12/14-4
ST Gas
HDS 12/14-4
ST Gas LPG
Izm
ē
ru tabula
410
LV
-
9
B
ī
stami
Savainošan
ā
s risks! Pirms jebkuriem apkopes un remontdarbiem
ir j
ā
izsl
ē
dz galvenais sl
ē
dzis vai j
ā
atvieno Cekon kontakts.
Kopšana un tehnisk
ā
apkope
Apkopes grafiks
Kad
Veicamais
darbs
Deta
ļ
a, kurai j
ā
veic apkope
Veikšana
Kam j
ā
veic
ik dienas
Rokas smidzin
ā
-
t
ā
jpistoles p
ā
r-
baude
Rokas smidzin
ā
t
ā
jpistole
P
ā
rbaudiet, vai rokas smidzin
ā
t
ā
jpistole cieši no-
sl
ē
dzas. P
ā
rbaudiet, vai drošin
ā
t
ā
js pilda savas
funkcijas - pasarg
ā
pret neat
ļ
autu lietošanu. Ja
rokas smidzin
ā
t
ā
jpistole ir boj
ā
ta, nomainiet to.
Operators
Augstspiediena
š
ļū
te
ņ
u p
ā
rbau-
de
Ar darba apar
ā
tu savienotie iz-
vadi, š
ļū
tenes
P
ā
rbaudiet, vai š
ļū
tenes nav boj
ā
tas. Ja š
ļū
tenes
ir boj
ā
tas, t
ā
s nekav
ē
joties j
ā
nomaina. Negad
ī
ju-
ma risks!
Operators
Piesl
ē
guma
vada un t
ī
kla
kontaktdakšas
p
ā
rbaude
Elektropiesl
ē
gums ar kontakt-
dakšu/kontaktligzdu
P
ā
rbaudiet, vai nav boj
ā
ts piesl
ē
guma vads un
t
ī
kla kontaktdakša. Boj
ā
ta piesl
ē
guma vada no-
mai
ņ
u nekav
ē
joties uzticiet veikt autoriz
ē
t
ā
klien-
tu apkalpošanas dienest
ā
/elektri
ķ
im.
Operators
reizi ned
ēļā
vai ik
p
ē
c 40 ekspluat
ā
-
cijas stund
ā
m
E
ļļ
as st
ā
vok
ļ
a
p
ā
rbaude
S
ū
k
ņ
a e
ļļ
as tvertne
Ja e
ļļ
a ir bl
ā
va, t
ā
j
ā
nomaina.
Operators
E
ļļ
as l
ī
me
ņ
a p
ā
r-
baude
S
ū
k
ņ
a e
ļļ
as tvertne
P
ā
rbaudiet s
ū
k
ņ
a e
ļļ
as l
ī
meni. Vajadz
ī
bas gad
ī
-
jum
ā
iepildiet e
ļļ
u (pas
ū
t. Nr. 6.288-016).
Operators
Sietfiltra t
ī
r
ī
šana Sietfiltrs
ū
dens pievad
ā
Skatiet sada
ļ
u "Sietfiltru t
ī
r
ī
šana".
Operators
reizi m
ē
nes
ī
vai ik
p
ē
c 200 eksplua-
t
ā
cijas stund
ā
m
S
ū
k
ņ
a p
ā
rbaude Augstspiediena s
ū
knis
P
ā
rbaudiet, vai s
ū
knim nav s
ū
ces. Ja nov
ē
rojami
vair
ā
k k
ā
3 pilieni min
ū
t
ē
, sazinieties ar Klientu
apkalpošanas dienestu.
Operators
P
ā
rbaudiet, vai
nav iekš
ē
ju no-
gulš
ņ
u
Visa iek
ā
rta
S
ā
ciet lietot iek
ā
rtu ar smidzin
ā
šanas cauruli un
bez augstspiediena sprauslas. Ja darba spie-
diens apar
ā
ta manometr
ā
p
ā
rsniedz 3 MPa, ie-
k
ā
rtu nepieciešams atka
ļķ
ot. Tas pats j
ā
dara, ja
str
ā
d
ā
jot bez augstspiediena vada (
ū
dens br
ī
vi
izpl
ū
st no augstspiediena izejas), tiek konstat
ē
ts
vair
ā
k k
ā
0,7 - 1 MPa augsts darba spiediens.
Lietot
ā
js, kas
instru
ē
ts par
atka
ļķ
ošanu
Sietfiltra t
ī
r
ī
šana Sietfiltrs
ū
dens tr
ū
kuma droši-
n
ā
t
ā
j
ā
Skatiet sada
ļ
u "Sietfiltru t
ī
r
ī
šana".
Operators
p
ē
c 500-700 dar-
ba stund
ā
m
Nomai
ņ
a
Elektroaizdedze, joniz
ā
cijas
elektrods
Atjaunojiet elektroaizdedzi vai joniz
ā
cijas elek-
trodu.
Klientu ap-
kalpošanas
dienests
reizi pusgad
ā
vai
ik p
ē
c 1000 eks-
pluat
ā
cijas stun-
d
ā
m
E
ļļ
as mai
ņ
a
Augstspiediena s
ū
knis
Izlaidiet e
ļļ
u. Iepildiet 1 l jaunas e
ļļ
as (pas
ū
t. Nr.
6.288-016). P
ā
rbaudiet e
ļļ
as l
ī
meni e
ļļ
as tvertn
ē
.
Operators
p
ā
rbaud
ī
t, izt
ī
r
ī
t Visa iek
ā
rta
Veiciet iek
ā
rtas vizu
ā
lo p
ā
rbaudi, p
ā
rbaudiet
augstspiediena piesl
ē
gumu herm
ē
tiskumu, p
ā
r-
baudiet p
ā
rpl
ū
des v
ā
rsta herm
ē
tiskumu, p
ā
rbau-
diet augstspiediena š
ļū
teni, p
ā
rbaudiet
spiediena tvertni, atka
ļķ
ojiet apsildes cauruli, no-
t
ī
riet/atjaunojiet joniz
ā
cijas elektrodu, noregul
ē
-
jiet degli.
Klientu ap-
kalpošanas
dienests
Š
ļū
tenes nomai-
ņ
a
Ar izpl
ū
des g
ā
zu manometrisko
sl
ē
dzi savienot
ā
š
ļū
tene
Atjaunojiet š
ļū
teni.
Klientu ap-
kalpošanas
dienests
reizi gad
ā
Droš
ī
bas p
ā
r-
baude
Visa iek
ā
rta
Veiciet droš
ī
bas p
ā
rbaudi saska
ņā
ar attiec
ī
ga-
jiem likumdev
ē
ja nacion
ā
lajiem noteikumiem,
kas attiecas uz š
ķ
idruma smidzin
ā
t
ā
jiem.
Speci
ā
lists
411
LV
-
10
Ir iesp
ē
jams nosl
ē
gt l
ī
gumu ar firmas Kärcher realiz
ā
cijas da
ļ
u
par tehnisk
ā
s apkopes veikšanu ier
ī
cei.
1. att
ē
ls - 3. poz.
Aizsl
ē
gt
ū
dens padevi.
Atskr
ū
v
ē
t no ier
ī
ces
ū
dens padeves š
ļū
teni.
Izb
ī
diet sietfiltru ar skr
ū
vgriezi
ā
r
ā
no piesl
ē
guma.
Sietfiltra t
ī
r
ī
šana
Iemont
ē
jiet apgriezt
ā
sec
ī
b
ā
.
No
ņ
emiet apšuvuma pane
ļ
us.
Noskr
ū
v
ē
jiet no droš
ī
bas bloka le
ņķ
a deta
ļ
u.
Ieskr
ū
v
ē
jiet skr
ū
vi M8x30 sietfiltr
ā
.
Izvelciet skr
ū
vi un sietfiltru ar knaibl
ē
m.
Sietfiltra t
ī
r
ī
šana
Iemont
ē
jiet apgriezt
ā
sec
ī
b
ā
.
Ja cauru
ļ
vados ir nogulsnes, palielin
ā
s pl
ū
smas pretest
ī
ba, k
ā
rezult
ā
t
ā
rea
ģē
manometriskais sl
ē
dzis.
B
ī
stami
Spr
ā
dziena risks uzliesmojošu g
ā
zu ietekm
ē
! Atka
ļķ
ošanas laik
ā
aizliegts sm
ēķē
t. Nodrošiniet labu ventil
ā
ciju.
B
ī
stami
Risks apdedzin
ā
ties ar sk
ā
bi! Lietojiet aizsargbrilles un aizsarg-
cimdus.
Atka
ļķ
ošanai atbilstoši likumu noteikumiem dr
ī
kst izmantot tikai
ka
ļķ
akmens š
ķī
din
ā
t
ā
jus ar p
ā
rbaudes z
ī
mi.
–
RM 100 (pas
ū
t. Nr. 6.287-008) no
ņ
em ka
ļķ
akmeni un vien-
k
ā
ršus ka
ļķ
akmens un mazg
ā
šanas l
ī
dzek
ļ
u palieku savieno-
jumus.
–
RM 101 (pas
ū
t. Nr. 6.287-013) no
ņ
em nogulsnes, kuras ne-
var not
ī
r
ī
t ar RM 100.
Piepildiet 20 litru tvertni ar 15 l
ū
dens.
Pielejiet litru ka
ļķ
akmens š
ķī
din
ā
t
ā
ja.
Piesl
ē
dziet
ū
dens š
ļū
teni tieši pie s
ū
k
ņ
a galvas un br
ī
vo galu ie-
kariet tvertn
ē
.
Piesl
ē
gto smidzin
ā
šanas cauruli bez sprauslas ielieciet tvertn
ē
.
Atveriet rokas smidzin
ā
t
ā
jpistoli un neaizveriet to atka
ļķ
oša-
nas laik
ā
.
P
ā
rsl
ē
dziet apar
ā
ta sl
ē
dzi uz "Deglis iesl
ē
gts", l
ī
dz sasniegti
apm. 40 °C.
Izsl
ē
dziet apar
ā
tu un atst
ā
jiet to uz 20 min
ū
t
ē
m. Rokas smi-
dzin
ā
t
ā
jpistolei j
ā
paliek atv
ē
rtai.
P
ē
c tam izs
ū
kn
ē
jiet apar
ā
tu tukšu.
Nor
ā
de:
Aizsardz
ī
bai pret koroziju un sk
ā
bju palieku neitraliz
ē
-
šanai m
ē
s p
ē
c tam iesak
ā
m no t
ī
r
ī
šanas l
ī
dzek
ļ
a tvertnes caur
apar
ā
tu izs
ū
kn
ē
t s
ā
rmainu š
ķī
dumu (piem., RM 81).
Apar
ā
ts j
ā
uzst
ā
da no sala pasarg
ā
t
ā
s telp
ā
s. Ja past
ā
v sala
risks, piem., uzst
ā
dot lauk
ā
, apar
ā
ts j
ā
iztukšo un j
ā
izskalo ar an-
tifr
ī
zu.
Noskr
ū
v
ē
t no apar
ā
ta
ū
dens apg
ā
des un augstspiediena š
ļū
-
teni.
Darbin
ā
t apar
ā
tu maks. 1 min
ū
ti, l
ī
dz s
ū
knis un vadi attukšo-
jas.
Noskr
ū
v
ē
jiet pievadu katla gr
ī
d
ā
un iztukšojiet apsildes cau-
ruli.
Nor
ā
de:
Iev
ē
rojiet antifr
ī
za ražot
ā
ja lietošanas nor
ā
d
ī
jumus.
Tvertn
ē
ar pludi
ņ
u l
ī
dz pašai augšai iepildiet tirdzniec
ī
b
ā
pie-
ejamu antifr
ī
zu.
Zem augstspiediena izejas palieciet sav
ā
kšanas tvertni.
Iesl
ē
dziet apar
ā
tu un darbiniet tik ilgi, l
ī
dz rea
ģē
ar pludi
ņ
u
apr
ī
kot
ā
s tvertnes
ū
dens tr
ū
kuma drošin
ā
t
ā
js un apar
ā
ts iz-
sl
ē
dzas.
Piepildiet katla pamatni un sifonu ar antifr
ī
zu.
L
ī
dz ar to tiek pan
ā
kta noteikt aizsardz
ī
ba pret koroziju.
Apkopes l
ī
gums
Sietfiltru t
ī
r
ī
šana
Sietfiltrs
ū
dens pievad
ā
Sietfiltrs
ū
dens tr
ū
kuma drošin
ā
t
ā
j
ā
Atka
ļķ
ošana
Veikšana
2.
1.
Aizsardz
ī
ba pret aizsalšanu
Ū
dens nolaišana
Izskalot apar
ā
tu ar antifr
ī
zu
412
LV
-
11
B
ī
stami
Savainošan
ā
s risks! Pirms jebkuriem apkopes un remontdarbiem
ir j
ā
izsl
ē
dz galvenais sl
ē
dzis vai j
ā
atvieno Cekon kontakts.
*
Nor
ā
de
Nospiediet izpl
ū
des g
ā
zu termostata atblo
ķē
šanas tausti
ņ
u (J),
lai atblo
ķē
tu liesmas kontroli.
Pal
ī
dz
ī
ba darb
ī
bas trauc
ē
jumu gad
ī
jum
ā
Darb
ī
bas trauc
ē
jums
Iesp
ē
jamais c
ē
lonis
Trauc
ē
juma nov
ē
ršana
Kam j
ā
veic
Apar
ā
ts nedarbojas, nedeg
darba gatav
ī
bas kontrollam-
pi
ņ
a (F)
Ier
ī
c
ē
nav sprieguma.
P
ā
rbaud
ī
t elektrot
ī
klu.
Elektri
ķ
is
Iesl
ē
gta droš
ī
bas laika komut
ā
cijas
sist
ē
ma.
Ar apar
ā
ta sl
ē
dzi uz
ī
su br
ī
di izsl
ē
dziet un tad
atkal iesl
ē
dziet apar
ā
tu.
Operators
P
ā
rdedzis vad
ī
bas
ķē
des drošin
ā
-
t
ā
js (F3). Drošin
ā
t
ā
js iek
ļ
auts gal-
venaj
ā
transformator
ā
(T2).
Ievietojiet jaunu drošin
ā
t
ā
ju, ja tas p
ā
rdeg no
jauna, nov
ē
rsiet p
ā
rslodzes c
ē
loni.
Klientu apkalpoša-
nas dienests
Boj
ā
ts manometriskais sl
ē
dzis HD
(augstspiediena) vai ND (zemspie-
diena).
P
ā
rbaudiet manometrisko sl
ē
dzi.
Klientu apkalpoša-
nas dienests
Boj
ā
ts modu
ļ
a taimeris (A1).
P
ā
rbaudiet piesl
ē
gumus, vajadz
ī
bas gad
ī
ju-
m
ā
nomainiet.
Klientu apkalpoša-
nas dienests
+ deg motora p
ā
rkaršanas
kontrollampi
ņ
a (G)
Rea
ģē
jis temperat
ū
ras sensors
(WS) motor
ā
vai p
ā
rslodzes aiz-
sardz
ī
bas sl
ē
dzis (F1).
Nov
ē
rsiet p
ā
rslodzes c
ē
loni.
Klientu apkalpoša-
nas dienests
Rea
ģē
jis
ū
dens tr
ū
kuma drošin
ā
-
t
ā
js tvertn
ē
ar pludi
ņ
u.
Nov
ē
rsiet
ū
dens tr
ū
kumu.
Operators
Deglis neaizdegas vai iek
ā
r-
tas darb
ī
bas laik
ā
nodziest
liesma
P
ā
r
ā
k zemu iestat
ī
ts temperat
ū
ras
regulators (B).
Iestatiet liel
ā
ku temperat
ū
ras v
ē
rt
ī
bu.
Operators
Apar
ā
ta sl
ē
dzis nav iesl
ē
gts uz
degli.
Iesl
ē
dziet degli.
Operators
Rea
ģē
jis droš
ī
bas bloka
ū
dens tr
ū
-
kuma drošin
ā
t
ā
js.
Nodrošiniet pietiekamu
ū
dens padevi. P
ā
r-
baudiet apar
ā
ta herm
ē
tiskumu.
Operators
Aizv
ē
rts g
ā
zes kr
ā
ns.
Atveriet g
ā
zes kr
ā
nu.
Operators
Rea
ģē
jis maksim
ā
l
ā
s temperat
ū
-
ras ierobežot
ā
js
ū
dens izvad
ā
(> 110 °C).
Ļ
aujiet katlam atdzist un iedarbiniet apar
ā
tu
no jauna.
Operators
P
ā
rbaudiet temperat
ū
ras regulatoru.
Klientu apkalpoša-
nas dienests
Deg izpl
ū
des g
ā
zu termosta-
ta kontrollampi
ņ
a (K)
Nav g
ā
zes padeves.
Atjaunojiet g
ā
zes padevi.
Operators
Aizsprostots t
ī
r
ā
gaisa pievads vai
net
ī
r
ā
gaisa izvads.
P
ā
rbaudiet ventil
ā
ciju un izpl
ū
des g
ā
zu sist
ē
-
mu.
Operators
P
ā
rkarsusi katla pamatne. Rea
ģē
-
jis maksim
ā
l
ā
s temperat
ū
ras iero-
bežot
ā
js katla pamatn
ē
(> 80 °C).
Katla pamatn
ē
nav kondens
ā
ta.
Caur izpl
ū
des g
ā
zu m
ē
rcauruli iepildiet 5 lit-
rus
ū
dens.
Operators
Boj
ā
ts g
ā
zes aizdedzes autom
ā
ts. Nospiediet g
ā
zes releja atblo
ķē
šanas tausti-
ņ
u (I).
Operators
Nedarbojas aizdedze. *
P
ā
rbaudiet g
ā
zes aizdedzes autom
ā
ta un
aizdedzes kabe
ļ
a elektronu att
ā
lumu. Kori
ģē
-
jiet att
ā
lumu vai nomainiet boj
ā
t
ā
s da
ļ
as. Ja
nepieciešams, not
ī
riet.
Klientu apkalpoša-
nas dienests
Boj
ā
ts ventilators vai apgriezienu
skaita vad
ī
bas bloks. *
P
ā
rbaudiet ventilatoru un apgriezienu skaita
vad
ī
bas bloku. P
ā
rbaudiet kontaktu un pieva-
du. Boj
ā
t
ā
s da
ļ
as nomainiet.
Klientu apkalpoša-
nas dienests
413
LV
-
12
Darb
ī
bas trauc
ē
jums
Iesp
ē
jamais c
ē
lonis
Trauc
ē
juma nov
ē
ršana
Kam j
ā
veic
Deg izpl
ū
des g
ā
zu termosta-
ta kontrollampi
ņ
a (K)
Rea
ģē
jis izpl
ū
des g
ā
zu temperat
ū
-
ras ierobežot
ā
js.
Atveriet rokas smidzin
ā
t
ā
jpistoli, l
ī
dz atdzisu-
si iek
ā
rta. Lai atblo
ķē
tu temperat
ū
ras ierobe-
žot
ā
ju, no vad
ī
bas pults izsl
ē
dziet un
iesl
ē
dziet iek
ā
rtu. Ja darb
ī
bas trauc
ē
jums at-
k
ā
rtojas, konsult
ē
jieties ar klientu apkalpoša-
nas dienestu.
Operators
Deg pretapka
ļķ
ošan
ā
s kon-
trollampi
ņ
a (H)
Izlietots
ū
dens m
ī
kstin
ā
t
ā
js.
Iepildiet
ū
dens m
ī
kstin
ā
t
ā
ju.
Operators
Nepietiekama t
ī
r
ī
šanas l
ī
-
dzek
ļ
a padeve vai t
ā
s nav
visp
ā
r
Doz
ē
šanas v
ā
rsts ir poz
ī
cij
ā
"0".
Noregul
ē
jiet t
ī
r
ī
šanas l
ī
dzek
ļ
a doz
ē
šanas
v
ā
rstu.
Operators
Aizsprostots t
ī
r
ī
šanas l
ī
dzek
ļ
a filtrs
vai tukša tvertne.
Izt
ī
riet vai piepildiet.
Operators
Nebl
ī
vas vai aizsprostotas t
ī
r
ī
ša-
nas l
ī
dzek
ļ
a š
ļū
tenes, doz
ē
šanas
v
ā
rsts vai magn
ē
tiskais v
ā
rsts.
P
ā
rbaudiet, izt
ī
riet.
Operators
Boj
ā
ta elektronika vai magn
ē
tis-
kais v
ā
rsts.
Nomainiet
Klientu apkalpoša-
nas dienests
Apar
ā
ts sasniedz maksim
ā
lo
spiedienu
Izskalota sprausla.
Nomainiet sprauslu.
Operators
Tukša t
ī
r
ī
šanas l
ī
dzek
ļ
a tvertne.
Iepildiet t
ī
r
ī
šanas l
ī
dzekli.
Operators
Nepietiekams
ū
dens daudzums.
Nodrošiniet pietiekamu
ū
dens padevi.
Operators
Aizsprostots
ū
dens pievada siet-
filtrs.
P
ā
rbaudiet, izmont
ē
jiet un izt
ī
riet sietfiltru.
Operators
Nebl
ī
vs t
ī
r
ī
šanas l
ī
dzek
ļ
a doz
ē
ša-
nas v
ā
rsts.
P
ā
rbaudiet un nobl
ī
v
ē
jiet.
Operators
Nebl
ī
vas t
ī
r
ī
šanas l
ī
dzek
ļ
a š
ļū
tenes. Nomainiet
Operators
Spr
ū
st pludi
ņ
a v
ā
rsts.
P
ā
rbaudiet t
ā
kust
ī
gumu.
Operators
Nebl
ī
vs droš
ī
bas v
ā
rsts.
P
ā
rbaudiet iestat
ī
jumu, vajadz
ī
bas gad
ī
jum
ā
iemont
ē
jiet jaunu bl
ī
vi.
Klientu apkalpoša-
nas dienests
Nebl
ī
vs vai p
ā
r
ā
k zemu iestat
ī
ts
daudzuma regul
ē
šanas v
ā
rsts.
P
ā
rbaudiet v
ā
rstus, boj
ā
jumu gad
ī
jum
ā
no-
mainiet, ja net
ī
ri - izt
ī
riet.
Klientu apkalpoša-
nas dienests
Boj
ā
ts spiediena reduc
ē
šanas
magn
ē
tiskais v
ā
rsts.
Nomainiet magn
ē
tisko v
ā
rstu.
Klientu apkalpoša-
nas dienests
Klaudz augstspiediena s
ū
k-
nis, strauji sv
ā
rst
ā
s mano-
metrs
Boj
ā
ts amortizators.
Nomainiet amortizatoru.
Klientu apkalpoša-
nas dienests
Ū
dens s
ū
knis nedaudz ies
ū
c gaisu. P
ā
rbaudiet s
ū
kšanas sist
ē
mu un nov
ē
rsiet
nebl
ī
vo vietu.
Operators
Kad rokas smidzin
ā
t
ā
jpistole
ir atv
ē
rta, apar
ā
ts nep
ā
r-
traukti iesl
ē
dzas/izsl
ē
dzas
Aizsprostota smidzin
ā
šanas cau-
rules sprausla.
P
ā
rbaudiet, izt
ī
riet.
Operators
Aizka
ļķ
ojies apar
ā
ts.
Skatiet sada
ļ
u "Atka
ļķ
ošana".
Operators
Main
ī
jies p
ā
rpl
ū
des v
ā
rsta komut
ā
-
cijas punkts.
Noregul
ē
jiet p
ā
rpl
ū
des v
ā
rstu no jauna.
Klientu apkalpoša-
nas dienests
Aizsprostots
ū
dens tr
ū
kuma droši-
n
ā
t
ā
ja sietfiltrs.
P
ā
rbaudiet, izmont
ē
jiet un izt
ī
riet sietfiltru.
Operators
Apar
ā
ts neizsl
ē
dzas, kad aiz-
v
ē
rta rokas smidzin
ā
t
ā
jpistole
S
ū
knis nav piln
ī
b
ā
atgaisots.
P
ā
rsl
ē
dziet apar
ā
ta sl
ē
dzi uz "0" un pavelciet
rokas smidzin
ā
t
ā
jpistoli, l
ī
dz no sprauslas
vairs neizpl
ū
st š
ķ
idrums. P
ē
c tam atkal iesl
ē
-
dziet apar
ā
tu. Atk
ā
rtojiet šo procesu, kam
ē
r
sasniegts pilns darba spiediens.
Operators
Boj
ā
ts droš
ī
bas v
ā
rsts vai droš
ī
bas
v
ā
rsta bl
ī
ve.
Atjaunojiet droš
ī
bas v
ā
rstu vai bl
ī
vi.
Klientu apkalpoša-
nas dienests
P
ā
rpl
ū
des v
ā
rsta manometriskais
sl
ē
dzis.
P
ā
rbaudiet manometrisko sl
ē
dzi un p
ā
rpl
ū
-
des v
ā
rstu.
Klientu apkalpoša-
nas dienests
414
LV
-
13
T
ī
r
ī
šanas l
ī
dzek
ļ
i atvieglo t
ī
r
ī
šanas uzdevumu izpildi. Tabul
ā
pa-
r
ā
d
ī
ti izv
ē
lei pieejamie t
ī
r
ī
šanas l
ī
dzek
ļ
i. Pirms t
ī
r
ī
šanas l
ī
dzek
ļ
u
lietošanas noteikti j
ā
iev
ē
ro nor
ā
d
ī
jumi uz iepakojuma.
* = tikai
ī
slaic
ī
gai izmantošanai, divu so
ļ
u metode, noskalot ar t
ī
ru
ū
deni
** = ASF = emul
ģē
jošs
*** = iepriekš
ē
jai apsmidzin
ā
šanai der Foam-Star 2000
Piederumi
Mazg
ā
šanas l
ī
dzek
ļ
i
Pielietošanas joma
Net
ī
rumi, pielietojuma veids
Mazg
ā
šanas l
ī
dzek
ļ
i
pH v
ē
rt
ī
ba (apm.) 1 %
š
ķī
dums
ū
densvada
ū
den
ī
Transportl
ī
dzek
ļ
u indus-
trija, degvielas uzpildes
stacijas, ekspeditori, au-
toparki
Putek
ļ
i, ielu net
ī
rumi, miner
ā
le
ļļ
as
(uz lakot
ā
m virsm
ā
m)
RM 55 ASF **
8
RM 22/80 pulveris ASF
12/10
RM 81 ASF
9
RM 803 ASF
10
RM 806 ASF
11
Transportl
ī
dzek
ļ
a iekonserv
ē
šana RM 42 aukstais vasks augstspiediena t
ī
r
ī
ša-
nas iek
ā
rt
ā
m
8
RM 820 karstais vasks ASF
7
RM 821 smidzin
ā
mais vasks ASF
6
RM 824 super p
ē
r
ļ
u vasks ASF
7
RM 44 rite
ņ
u disku t
ī
r
ī
šanas g
ē
ls
9
Met
ā
lapstr
ā
des industrija E
ļļ
as, sm
ē
res, putek
ļ
i un l
ī
dz
ī
gi ne-
t
ī
rumi
RM 22 pulveris ASF
12
RM 55 ASF
8
RM 81 ASF
9
RM 803 ASF
10
RM 806 ASF
12
RM 31 ASF (lielai net
ī
r
ī
bai)
12
RM 39, š
ķ
idrs (ar pretkorozijas aizsardz
ī
bu)
9
P
ā
rtikas r
ū
pniec
ī
bas uz-
ņē
mumi
Nelieli l
ī
dz vid
ē
ji net
ī
rumi, tauki/e
ļ
-
ļ
as, lielas virsmas
RM 55 ASF
8
RM 81 ASF
9
RM 882 g
ē
la putas OSC
12
RM 58 ASF (putojošs t
ī
r
ī
šanas l
ī
dzeklis)
9
RM 31 ASF *
12
Darva
RM 33 *
13
T
ī
r
ī
šana un dezinfekcija
RM 732
9
Dezinfekcija
RM 735
7...8
Ka
ļķ
is, miner
ā
lu nos
ē
dumi
RM 25 ASF *
2
RM 59 ASF (t
ī
r
ī
šana ar put
ā
m)
2
Sanit
ā
rais mezgls ***
Ka
ļķ
is, ur
ī
nakmens, ziepes utt.
RM 25 ASF * (pamatt
ī
r
ī
šana)
2
RM 59 ASF (t
ī
r
ī
šana ar put
ā
m)
2
RM 68 ASF
5
415
LV

