Electrolux EGG6242NOX: 9. ТЕХНИЧЕСКИЕ ДАННЫЕ
9. ТЕХНИЧЕСКИЕ ДАННЫЕ: Electrolux EGG6242NOX

44
www.electrolux.com
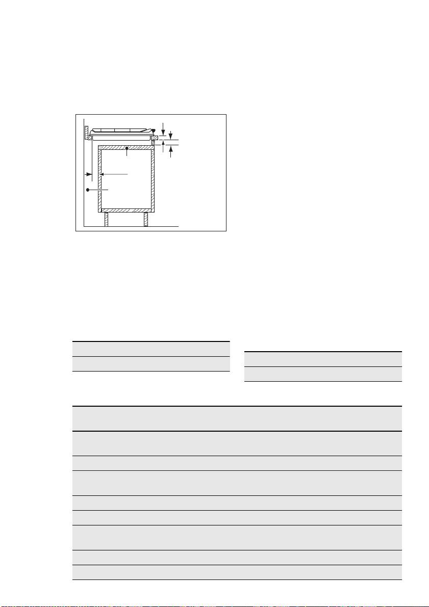
8.7 Возможности встраивания
Кухонный шкаф с духовым шкафом
Из соображений безопасности, а также для
Кухонный шкаф с дверцей
упрощения процедуры извлечения духового
шкафа из шкафа, электрические соединения
Панель, установленная под варочной пане‐
для варочной панели и духового шкафа дол‐
лью, должна легко сниматься для обеспече‐
жны быть установлены раздельно.
ния доступа к узлам, нуждающимся в техниче‐
ском обслуживании.
30 mm
min 20 mm
A
(max 150 mm)
60 mm
B
A)
Съемная панель
B)
Пространство для подключения проводов
9. ТЕХНИЧЕСКИЕ ДАННЫЕ
Размеры варочной панели
Размеры выреза для варочной
поверхности
Ширина: 594 мм
Ширина: 560 мм
Длина: 510 мм
Длина: 480 мм
Тепловая мощность
Горелка повышенной мощ‐
3.0 кВт
ности
Горелка для ускоренного
2.0 кВт
приготовления:
Вспомогательная горелка: 1.0 кВт
ОБЩАЯ МОЩНОСТЬ: G20 (2H) 20 мбар = 8.0 кВт
G30/G31 (3B/P) 30/30 мбар = 567 г/час
Электропитание: 230 В ~ 50 Гц
Категория: II2H3B/P
Подключение к газовой ма‐
G 1/2"
гистрали:
Подвод газа: G20 (2H) 20 мбар
Класс прибора: 3
Оглавление
- CONTENTS
- 1. SAFETY INFORMATION
- 2. SAFETY INSTRUCTIONS
- 3. PRODUCT DESCRIPTION
- 5. HELPFUL HINTS AND TIPS
- 6. CARE AND CLEANING
- 7. TROUBLESHOOTING
- 8. INSTALLATION
- 9. TECHNICAL INFORMATION
- 10. ENVIRONMENT CONCERNS
- INHALT
- 1. SICHERHEITSINFORMATIONEN
- 2. SICHERHEITSHINWEISE
- 3. GERÄTEBESCHREIBUNG
- 4. TÄGLICHER GEBRAUCH
- 5. PRAKTISCHE TIPPS UND HINWEISE
- 7. FEHLERSUCHE
- 8. MONTAGE
- 9. TECHNISCHE DATEN
- 10. UMWELTTIPPS
- СОДЕРЖАНИЕ
- 1. СВЕДЕНИЯ ПО ТЕХНИКЕ БЕЗОПАСНОСТИ
- 2. УКАЗАНИЯ ПО БЕЗОПАСНОСТИ
- 3. ОПИСАНИЕ ИЗДЕЛИЯ
- 4. ЕЖЕДНЕВНОЕ ИСПОЛЬЗОВАНИЕ
- 5. ПОЛЕЗНЫЕ СОВЕТЫ
- 7. ПОИСК И УСТРАНЕНИЕ НЕИСПРАВНОСТЕЙ
- 8. УСТАНОВКА
- 9. ТЕХНИЧЕСКИЕ ДАННЫЕ
- 10. ОХРАНА ОКРУЖАЮЩЕЙ СРЕДЫ

