Asus M3N78-VM: 1. Disposição da placa-principal 2. Instalação da CPU
1. Disposição da placa-principal 2. Instalação da CPU: Asus M3N78-VM
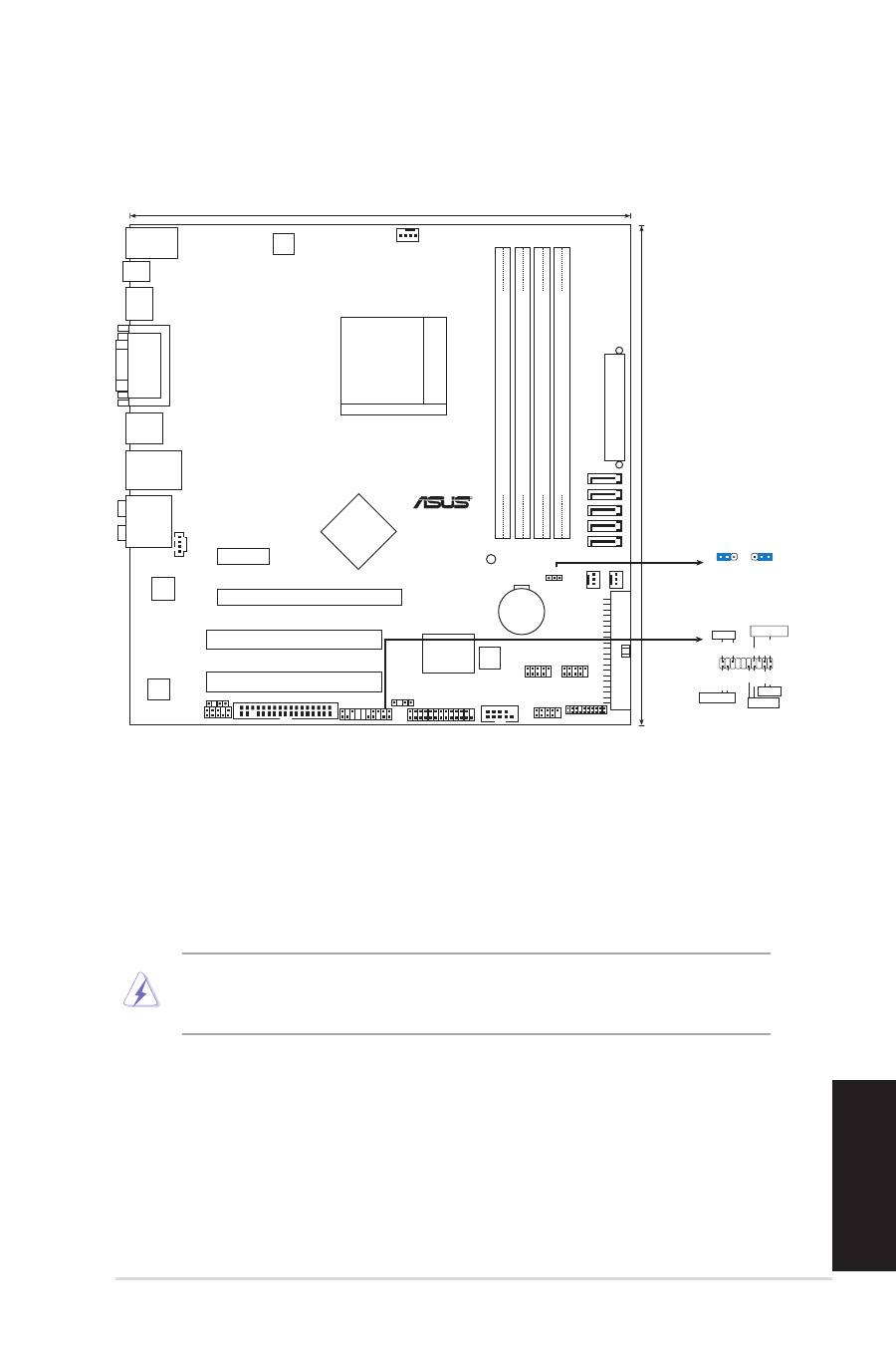
ASUS M3N78-VM
Português
1
1. Disposição da placa-principal 2. Instalação da CPU
Siga estas etapas para instalar a CPU
.
1. Procure o socket AM2 de 940 pinos na placa-principal.
2. Levante a alavanca do socket até atingir um ângulo de pelo menos 90º.
ADVERTÊNCIA!
A CPU apenas pode ser encaixada numa direcção. NÃO force a entrada da
�P� no socket para evitar dobrar os pinos e danificar a �P�
!
3. Posicione a CPU por cima do socket de forma a que o canto da CPU com o
triângulo dourado fique alinhado com o canto do socket contendo um pequeno
triângulo.
4. Introduza cuidadosamente a CPU no suporte até esta encaixar no devido
lugar.
5. Quando a CPU estiver no lugar, empurre a alavanca do socket para baixo para
fixar a �P�. A patilha lateral da alavanca emite um estalido para indicar que a
�P� está devidamente fixada.
24.4cm (9.6i
n
24.4cm (9.6in)
)
Super I/O
SATA5
SATA4
SATA3
SATA2
SATA1
Socket AM2+
CPU_FAN
EA
TXPW
R
PRI_ID
E
COM1
PANEL
USB1112
USB78
USB910
AAFP
SB_PWR
8Mb
BIOS
Nvidia
MCP78S
DDR2 DIMM_A1 (64 bit,240-pin module)
DDR2 DIMM_B1 (64 bit,240-pin module)
DDR2 DIMM_A2 (64 bit,240-pin module)
DDR2 DIMM_B2 (64 bit,240-pin module)
CR2032 3V
Lithium Cell
CMOS Power
PCI2
PCI1
PCIEX16
PCIEX1_1
VT1708B
Realtek
8211CL-GR
CLRTC
ATX12V
R
SPDIF_OUT
M3N78-VM
LPT
KB_USB56
VG
A_
DV
I
USB34_ESATA
LAN1_USB12
AUDIO
HD
M
I
SPDIF_O2
CHA_F
AN
PWR_F
AN
FLOPPY
CD
TPM
CLRTC
Normal
Clear RTC
(Default)
1 2
2 3
PANEL
PLED
-
+5
V
Speake
r
SPEAKER
PLED
Ground
Reset
Reset
Ground Ground
PLED
+
IDE_LED-
IDE_LED+
+IDE_LED
PW
R
Ground
PWRSW
CHASSIS
Table of contents
- 1. Schéma de la Carte Mère 2. Installation du Processeur
- 3. Mémoire Système
- 1. Motherboard-Layout 2. Installieren der CPU
- 3. Arbeitsspeicher
- 5. Software Support DVD-Informationen
- 1. Diagramma disposizione scheda madre2. Installazione della CPU
- 3. Memoria di sistema
- 4. Informazioni sul BIOS
- 1. Distribución de la placa base 2. Instalación de la CPU
- 3. Memoria de sistema
- 5. Información sobre el DVD de soporte de Software
- 1. Схема системной платы 2. Установка процессора
- 3. Системная память
- 4. Информация BIOS
- 1. Disposição da placa-principal 2. Instalação da CPU
- 3. Memória do sistema
- 4. Informação da BIOS
- 2. Instalacja CPU
- 3. Pamięć systemowa.
- 4. Informacje BIOS
- 2. Instalace procesoru
- 3. Systémová pamět’
- 4. Informace o BIOSu
- 2. A CPU beszerelése
- 3. Rendszermemória
- 4. BIOS információk
- 2. Монтаж на процесор
- 3. Системна памет
- 4. BIOS информация
- 1. Schema plăcii de bază 2. Instalarea procesorului
- 3. Memoria sistemului
- 4. Informaţii despre BIOS
- 1. Izgled matične ploče 2. Instalacija procesora
- 3. Sistemska memorija
- 4. BIOS

