Indesit VRH-640-X: Installation
Installation: Indesit VRH-640-X
12
FR
Installation
!
Conserver ce mode d’emploi pour pouvoir le
consulter à tout moment. En cas de vente, de
cession ou de déménagement, veiller à ce qu’il
suive l’appareil pour informer le nouveau propriétaire
sur son fonctionnement et lui fournir les conseils
correspondants.
!
Lire attentivement les instructions : elles contiennent
des conseils importants sur l’installation, l’utilisation et
la sécurité de cet appareil.
Positionnement
!
Les emballages ne sont pas des jouets pour
enfants, il faut les mettre au rebut en respectant la
réglementation sur le tri sélectif des déchets (
voir
Précautions et conseils
).
!
L’installation doit être effectuée par un professionnel
du secteur conformément aux instructions du fabricant.
Une mauvaise installation peut causer des dommages
à des personnes, des animaux ou des biens.
Encastrement
Pour garantir le bon fonctionnement de l’appareil, il
faut que le meuble possède des caractéristiques bien
précises :
• le matériau du plan d’appui doit pouvoir résister à
une température d’environ 100°C;
• en cas d’installation de la table de cuisson au-
dessus d’un four, il faut que ce dernier soit équipé
d’un dispositif de refroidissement par ventilation
forcée ;
• éviter d’installer la table de cuisson au-dessus d’un
lave-vaisselle : si c’est le cas, prévoir une séparation
étanche entre les deux appareils ;
• selon la table de cuisson à installer (
voir fi gures
),
la découpe du meuble doit avoir les dimensions
suivantes :
560 +/- 1
490 +/- 1
48
590
520
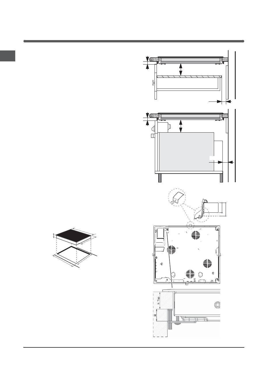
Aération
Pour permettre une bonne aération et pour éviter toute
surchauffe des surfaces autour de l’appareil, la table de
cuisson doit être positionnée :
• à au moins 40 mm de distance du mur arrière ou de
toute autre surface verticale;
• de manière à ce qu’il reste au moins 20 mm de
distance entre la découpe d’encastrement et le
meuble en dessous.
• Les meubles jouxtant la table, dont la hauteur
dépasse celle du plan de cuisson, doivent être
placés à au moins 600 mm du bord du plan.
5 mm
min. 20 mm
min. 20 mm
min. 40 mm
TIROIR
5 mm
min. 40 mm
CHALEUR
TOURNANTE
CÔTÉ AVANT DE LA
TABLE DE CUISSON
PLAN DE
TRAVAIL
30
40
TABLE DE CUISSON
RETOURNÉE
FR
13
Fixation
Il est impératif d’assurer
l’encastrement de l’appareil sur
un plan d’appui parfaitement plat.
Les déformations provoquées par une mauvaise
fixation risquent d’altérer les caractéristiques de la
table de cuisson ainsi que ses performances.
La longueur de la vis de réglage des crochets de
fixation doit être réglée avant leur montage
selon
l’épaisseur du plan d’appui :
• épaisseur 30 mm : vis 17,5 mm;
• épaisseur 40 mm : vis 7,5 mm
Pour sa fixation, procéder comme suit :
1. Se servir des vis courtes sans pointe pour visser
les 4 ressorts de centrage dans les trous prévus sur
chaque côté de la table, en leur milieu;
2. insérer la table de cuisson dans la découpe prévue,
bien au centre et bien appuyer tout autour du cadre
pour que la table adhère parfaitement au plan d’appui.
3. pour les tables avec profils latéraux : après avoir
encastré la table de cuisson dans la découpe, insérer
les 4 crochets de fixation (chacun avec son goujon) sur
le périmètre inférieur de la table de cuisson et visser
avec les vis longues à pointe jusqu’à ce que le verre
adhère bien au plan d’appui.
!
Il faut absolument que les vis des ressorts de
centrage soient accessibles.
!
Conformément aux normes de sécurité, après
encastrement de l’appareil, il ne doit plus y avoir
possibilité de contact avec les parties électrifiées.
!
Toutes les parties qui servent de protection doivent
être fixées de manière à ne pouvoir être enlevées
qu’avec l’aide d’un outil.
Raccordement de la table au four
Cet appareil ne peut fonctionner que s’il est raccordé à
des fours spécifiques dont vous trouverez la liste dans
la pochette documents.
VRH 600 X - VRH 640 X - VRH 60 X
TABLE DE CUISSON
FOUR ENCASTRÉ
BLANC
ROUGE JAUNE BLEU
VERT
VRH 642 DO X
TABLE DE CUISSON
FOUR ENCASTRÉ
BLANC
ROUGE
JAUNE
BLEU
VERT
Оглавление
- Installation
- Descriptionof the appliance
- Precautions and tips
- Care and maintenance
- Installation
- Descriptionde l’appareil
- Précautions et conseils
- Nettoyage et entretien
- Instalación
- Descripcióndel aparato
- Precauciones y consejos
- Mantenimiento y cuidados
- Instalação
- Descriçãodo aparelho
- Precauções e conselhos
- Manutenção e cuidados
- Installation
- Beschreibungdes Gerätes
- Vorsichtsmaßregelnund Hinweise
- Reinigung und Pflege
- Installazione
- Descrizione dell’apparecchio
- Precauzioni e consigli
- Manutenzione e cura
- Installatie
- Beschrijvingvan het apparaat
- Voorzorgsmaatregelenen advies
- Onderhoud en verzorging
- Instalacja
- Opis urz ą dzenia
- Zalecenia i ś rodki ostro ż no ś ci
- Konserwacja i utrzymanie
- Монтаж
- Описание изделия
- Предосторожности и рекомендации
- Техническоеобслуживани и уход

