Indesit VRA641DBS – страница 3
Инструкция к Indesit VRA641DBS
41
PT
Precauções e conselhos
!
Este aparelho foi projectado e fabricado em
conformidade com as normas internacionais de
segurança. Estas advertências são fornecidas por razões
de segurança e devem ser lidas com atenção.
Este aparelho é em conformidade com as
seguintes Directivas da Comunidade Europeia:
-2006/95/CEE de 12.12.06 (Baixa Tensão) e posteriores
modificações
- 2004/108/CEE de 15/12/04 (Compatibilidade
Electromagnética) e posteriores modificações
- 93/68/CEE de 22/07/93 e posteriores modificações.
- 1275/2008 stand-by/off mode.
Segurança geral
!
Controlar que a tomada de ar através da grelha do
ventilador não esteja obstruída. O plano de encaixar,
de facto, necessita de uma correcta ventilação para o
arrefecimento dos componentes electrónicos.
• Este aparelho foi concebido para utilização de tipo não
profissional no âmbito de moradas.
• Este aparelho não deve ser instalado ao ar livre, mesmo
num sítio protegido, porque é muito perigoso deixá-lo
exposto a chuva e temporais.
• Não toque na máquina se estiver descalço, ou se as
suas mãos ou pés estiverem molhados ou húmidos.
•
O aparelho deve ser utilizado para cozinhar
alimentos, somente por pessoas adultas e
conforme as instruções contidas neste livrete.
Qualquer outro uso (como por exemplo,
aquecedor de ambientes) deve ser considerado
impróprio e portanto perigoso. O fabricante não
pode ser considerado responsável por eventuais
danos derivados de usos impróprios, errados e
irrazoáveis.
• A placa de vitrocerâmica é resistente às batidas
mecânicas, entretanto pode rachar-se (ou
eventualmente partir-se) se for batida com um
objecto pontiagudo, como um utensílio. Nestes
casos, desligue imediatamente o aparelho da rede
de alimentação e contacte a assistência técnica.
• Evite que o cabo de alimentação de outros
electrodomésticos encoste-se em partes quentes do
plano de cozedura.
• Não se esqueça que a temperatura das zonas de
cozedura permanece muito alta pelo menos trinta minutos
depois de apagadas. O calor resíduo é sinalizado
também por um indicador (
veja Início e utilização
).
• Mantenha a devida distância da placa quaisquer
objectos que podem se derreter, por exemplo, objectos
de plástico, de alumínio ou produtos com um alto
conteúdo de açúcar. Preste muita atenção com as
embalagens e as películas de plástico ou alumínio:
se deixá-los sobre as superfícies enquanto ainda
estiverem quentes ou mornas, podem causar um dano
grave à placa.
• Certifique-se que as pegas das panelas fiquem sempre
viradas para o lado interno do plano de cozedura para
evitar batidas acidentais.
• Não puxe pelo cabo para desligar a ficha da tomada
eléctrica, pegue pela ficha.
• Não realize limpeza nem manutenção sem antes ter
desligado a ficha da rede eléctrica.
• Não é previsto que este aparelho seja utilizado
por pessoas (incluso crianças) com reduzidas
capacidades físicas, sensoriais ou mentais, por
pessoas inexperientes ou que não tenham familiaridade
com o produto, a não ser que seja vigiadas por uma
pessoa responsável pela sua segurança ou que
tenham recebido instruções preliminares sobre o uso
do aparelho.
• Caso haja zonas de cozedura halógenas, não olhe
para elas por muito tempo.
• Não permita que as crianças brinquem com o
aparelho.
• Não apoie objectos metálicos (facas, colheres,
tampas, etc.) sobre o plano porque podem ficar
quentes.
•
O aparelho não é destinado a ser colocado em
funcionamento por meio de um temporizador
externo ou por um sistema de comando à
distância separado.
Eliminação
• Eliminação do material de embalagem: obedeça as
regras locais, de maneira que as embalagens possam
ser reutilizadas.
• A directiva Europeia 2002/96/CE relativa aos resíduos
de equipamentos eléctricos e electrónicos (REEE)
prevê que os electrodomésticos não devem ser
eliminados no normal fluxo dos resíduos sólidos
urbanos. Os aparelhos não mais utilizados devem
ser recolhidos separadamente para optimizar a taxa
de recuperação e reciclagem dos materiais que os
compõem e impedir potenciais danos à saúde e ao
meio ambiente. O símbolo da lixeira cancelada está
indicado em todos os produtos para lembrar o dever de
colecta selectiva.
Para maiores informações sobre a correcta
eliminação dos electrodomésticos, os proprietários
poderão contactar o serviço de colecta público ou
os revendedores.
42
PT
Manutenção e cuidados
Desligar a corrente eléctrica
Antes de realizar qualquer operação, desligue o aparelho da
alimentação eléctrica.
Limpeza do aparelho
!
Evite o emprego de detergentes abrasivos ou corrosivos,
tais como sprays para churrasqueiras e fornos, tira-manchas
e produtos contra ferrugem, detergentes em pó e esponjas
com superfície abrasiva: podem arranhar irremediavelmente
a superfície.
!
Nunca utilize equipamento de limpeza a vapor ou de alta
pressão para limpar a aparelhagem.
• Para a manutenção ordinária, é suficiente lavar o plano
com uma esponja húmida e, em seguida, enxugar com
papel absorvente de cozinha.
• Se o plano estiver muito sujo, esfregue com um produto
específico para limpeza de superfícies em vidro cerâmica
*, enxagúe e enxugue.
• Para tirar as acumulações de sujidade maiores, use uma
espátula apropriada. Intervenha assim que possível,
sem aguardar que o aparelho arrefeça, para evitar
que resíduos grudem. Podem ser obtidos excelentes
resultados se usar uma esponja especial de fios de aço
inoxidável - específica para planos em vidro cerâmica-
molhada de água e sabão.
• No caso em que no plano de cozedura tenham-se
acidentalmente fundidos objectos ou materiais como
plástico ou açúcar, remova-os imediatamente com a
espátula, até que a superfície esteja ainda quente.
• Depois de limpo, o plano poderá ser tratado com um
produto específico para a manutenção e a protecção: a
película invisível deixada por este produto protegerá a
superfície se algo for derramado durante a cozedura. É
recomendável realizar estas operações com o aparelho
morno ou frio.
• Lembre-se sempre de enxaguar com água limpa e
enxugar o plano com cuidado: para não acontecer
de resíduos de produtos grudarem-se na sucessiva
cozedura.
Quadro em aço inoxidável
(somente nos modelos com
moldura)
O aço inoxidável pode manchar-se por causa da alta
quantidade de calcário na água em contacto durante muito
tempo com o metal, ou por causa de produtos de limpeza
muito agressivos que contenham fósforo.
É aconselhável enxaguar com água abundante e enxugar
com cuidado, depois de ter limpado o plano. Se for
derramada água, enxugue-a rapidamente com cuidado.
!
Alguns planos de cozedura tem uma moldura de alumínio
parecida com o aço inoxidável. Não utilize produtos para
a limpeza e o desengorduramento não idóneos para o
alumínio.
Desmontar o plano
Caso seja necessário desmontar o plano de cozedura:
1. remova os parafusos que fixam as molas de centragem
nos lados;
2. solte os parafusos dos ganchos de fixação nos ângulos;
3. extraia o plano de cozedura do vão do móvel.
!
Recomendamos que se evite tentar o acesso aos
mecanismos internos para tentar uma reparação. Em caso
de avaria, contactar a Assistência técnica.
Descrição técnica dos modelos
Nestas tabelas estão indicados, modelo por modelo, os valores de absorção energética, o tipo de elemento
aquecedor e o diâmetro de cada zona de cozedura.
Legenda:
H = hilight unitário
HD = hilight duplo
HT = hilight triplo
AD = halógena dupla
Planos de cozedura
Zonas de cozedura
Traseiro esq.
Traseiro dir.
Dianteiro esq.
Dianteiro dir.
Potência total
Potência (em W)
HD 2300
H 1400
H 1200
H 1800
Diâmetro (em mm)
210
160
145
180
6700
Potência (em W)
HT 2200/1000
H 1400
H 1200
H 1800
Diâmetro (em mm)
210/140
160
145
180
6600
VRA 640 X S
VRA 641 D B S
VRA 641 D X S
VRA 640 C S
VRA 640 C S
43
DE
Installation
!
Bewahren Sie diese Bedienungsanleitung bitte
sorgfältig auf, damit Sie sie jederzeit zu Rate ziehen
können. Sorgen Sie dafür, dass sie im Falle eines
Verkaufs, eines Umzugs oder einer Übergabe an
einen anderen Benutzer das Gerät stets begleitet,
damit auch der Nachbesitzer die Möglichkeit hat, darin
nachschlagen zu können.
!
Lesen Sie bitte die nachfolgenden Hinweise
aufmerksam durch: sie liefern wichtige Informationen
hinsichtlich der Installation, des Gebrauchs und der
Sicherheit.
Aufstellung
!
Verpackungsmaterial ist kein Spielzeug für Kinder.
Es ist entsprechend den Vorschriften zur getrennten
Müllsammlung zu entsorgen (
siehe Vorsichtsmaßregeln
und Hinweise
).
!
Die Installation ist gemäß den vorliegenden
Anweisungen und von Fachpersonal durchzuführen.
Jede unsachgemäße Installation kann Menschen und
Tiere gefährden oder Sachschaden verursachen.
Einbau
Um eine einwandfreie Betriebsweise des Gerätes zu
gewährleisten, muss der Umbauschrank folgende
Eigenschaften aufweisen:
• Die Auflagefläche muss aus hitzebeständigem
Material beschaffen sein, um einer Temperatur von
ca. 100°C standzuhalten.
• Soll das Kochfeld über einem Backofen installiert
werden, muss letzterer mit einem Kühlsystem mit
Zwangsbelüftung ausgestattet sein.
• Von der Installation eines Kochfeldes über einem
Geschirrspüler wird abgeraten. Gegebenenfalls ist
zur Abdichtung ein Zwischenteil zwischen beiden
Geräten zu installieren.
• Je nach dem zu installierenden Kochfeld (
siehe
Abbildungen
) sind Arbeitsflächenausschnitte
folgender Abmessungen vorzusehen:
560 +/- 1
490 +/- 1
48
590
520
560 +/- 1
490 +/- 1
48
574
504
Belüftung
Zur ausreichenden Belüftung und zur Vermeidung
der Überhitzung der Flächen rund um das Gerät muss das
Kochfeld wie folgt positioniert werden:
• in einem Abstand von mindestens 40 mm von der
dahinter liegenden Wand;
• um einen Abstand von mindestens 20 mm zwischen
dem für den Einbau bestimmten Ausschnitt und dem
entsprechenden Unterschrank zu gewährleisten.
• Angrenzende Schränke, deren Höhe die der
5 mm
min. 20 mm
min. 20 mm
min. 40 mm
WÄRMEFACH
5 mm
min. 40 mm
HEIßLUFT
FRONTSEITE DES
KOCHFELDES
AUFLAGEFLÄCHE
AUFLAGEFLÄCHE
30
40
KOCHFELD
UMGEDREHT
AUFLAGEFLÄCHE
44
DE
Arbeitsplatte überschreiten, müssen einen Abstand
vom Rand der Kochmulde von mindestens 600 mm
aufweisen.
Befestigung
Das Kochfeld muss auf einer
perfekt ebenen Stütz- bzw.
Auflagefläche installiert werden.
Durch unsachgemäße Befestigung hervorgerufene
Verformungen könnten die Eigenschaften und
Leistungen des Kochfeldes beeinträchtigen.
Die Länge der Regelschrauben der
Befestigungsklammern wird vor Montage derselben
eingestellt,
und zwar je nach der Stärke der
Auflagefläche:
• 30 mm - Schraube 17.5 mm;
• 40 mm - Schraube 7.5 mm.
Verfahren Sie zur Befestigung wie folgt:
1. Schrauben Sie die 4 Zentrierungsfedern mittels
der vier kurzen, stumpfen Schrauben in die in
der Mitte einer jeden Kochfeldseite befindlichen
Lochbohrungen.
2. Setzen Sie das Kochfeld durch leichtes Andrücken
des gesamten umlaufenden Randes mittig in
den Möbelausschnitt ein, und zwar so, dass es
vorschriftsmäßig auf der gesamten Auflagefläche
aufstützt.
3. Für Kochfelder mit Seitenprofilen: Stecken Sie nach
Einsatz des Kochfeldes in den Möbelausschnitt die
4 Befestigungshaken (ein jeder mit seinem Stift) in
den umlaufenden unteren Rand des Kochfeldes, und
schrauben Sie diese mittels der vier langen, spitzen
Schrauben fest, bis das Glas an der Auflagefläche
anhaftet.
!
Die Schrauben der Zentrierungsfedern müssen
unbedingt zugänglich sein.
!
Gemäß den Sicherheitsvorschriften muss nach
erfolgtem Einbau die Möglichkeit einer Berührung mit
Strom führenden Teilen ausgeschlossen sein.
!
Alle zum Schutz dienenden Teile müssen so
befestigt werden, dass ein Entfernen derselben ohne
Zuhilfenahme eines Werkzeugs nicht möglich ist.
Elektroanschluss
!
Bei der Installation des Kochfeldes und der eines
eventuellen Einbaubackofens müssen sämtliche
Elektroanschlüsse getrennt vorgenommen werden, und
dies nicht nur aus Sicherheitsgründen, sondern auch
um den Backofen, falls nötig, leichter herausziehen zu
können.
Klemmengehäuse
Das Gerät ist mit einem
Gehäuse (befindlich im unteren
Teil) ausgestattet, das für den
Anschluss an andersartige
Elektroversorgungen bestimmt
ist (die Abbildung ist nur
richtungsweisend, demnach
ist es möglich, dass sie mit
dem erworbenen Gerät nicht
übereinstimmt).
Einphasenanschluss
Das Kochfeld ist mit einem bereits angeschlossenen
Netzkabel ausgestattet und ist für einen
Einphasenanschluss voreingestellt. Schließen Sie
die Drähte gemäß nachfolgender Tabelle und
Zeichnungen an:
Netzspannung
und -frequenz
Elektrokabel
Anschluss der Drähte
230-240V 1+N ~
220-240V 1+N ~
50/60 Hz
: gelb/grün;
N
: die 2 blauen Drähte zusammen
L
: braun zusammen mit schwarz
Andere Anschlussarten
Sollte die Elektroanlage einer der nachfolgenden
Eigenschaften entsprechen:
Netzspannung und -frequenz
• 400V - 2+N ~ 50/60 Hz
• 220-240V 3 ~ 50/60 Hz
• 230-240V 3 ~ 50/60 Hz
• 400V - 2+2N ~ 50/60 Hz
Trennen Sie die Drähte und schließen Sie sie gemäß
nachfolgender Tabelle und Zeichnungen an:
Netzspannung
und -frequenz
Elektrokabel
Anschluss der Drähte
400V - 2+N ~
50/60 Hz
230-240V 3 ~
220-240V 3 ~
50/60 Hz
: gelb/grün;
N
: die 2 blauen
Drähte zusammen
L1
: schwarz
L2
: braun
400V - 2+2N ~
50/60 Hz
: gelb/grün;
N1
: blau
N2
: blau
L1
: schwarz
L2
: braun
Sollte die Elektroanlage einer der nachfolgenden
Eigenschaften entsprechen:
Netzspannung und -frequenz
• 400V 3 - N ~ 50/60 Hz
dann verfahren Sie wie folgt:
!
Das eventuell mitgelieferte Netzkabel kann für diese
Installationsarten nicht verwendet werden.
1. Verwenden Sie ein geeignetes Versorgungskabel
des Typs H05RR-F, oder eines höheren Wertes,
geeigneter Maße (Kabelquerschnitt: 25 mm).
2. Heben Sie unter Zuhilfenahme eines
Schraubenziehers die seitlichen Zungen des
Klemmengehäusedeckels an (
siehe Abbildung
Klemmengehäuse
).
KOCHFELD
UMGEDREHT
45
DE
3. Schrauben Sie die Schraube der Kabelklemme
sowie die Schrauben der Klemmen, die der
erforderlichen Anschlussart entsprechen, aus und
positionieren Sie die Brücken in Anlehnung an
nachfolgende Tabelle und Zeichnungen:
4. Verlegen Sie die Drähte gemäß nachstehenden
Zeichnungen und Tabelle und schließen Sie die Drähte
an. Ziehen Sie die Klemmenschrauben hierbei fest an .
Netzspannung
und -frequenz
Elektrischer Anschluss
Klemmengehäuse
400V 3-N ~
50/60 Hz
Dreiphasenanschluss 400
5. Befestigen Sie das Netzkabel in der entsprechenden
Kabelklemme und schließen Sie den Deckel.
Dreiphasenanschluss 400
Anschluss des
Netzkabels an das
Stromnetz
Wird das Gerät
direkt an das
Stromnetz
angeschlossen,
ist zwischen
Stromnetz und
Gerät ein allpoliger
Schalter mit einer Mindestkontaktöffnung von 3 mm
zwischenzuschalten.
!
Der Installateur ist für den ordnungsgemäßen
elektrischen Anschluss sowie die Einhaltung der
Sicherheitsvorschriften verantwortlich.
Vor dem Anschluss stellen Sie bitte sicher, dass:
• die Netzsteckdose geerdet ist und den gesetzlichen
Bestimmungen entspricht;
• die Netzsteckdose für die auf dem Typenschild
(befindlich auf dem Gerät) angegebene maximale
Leistungsaufnahme des Gerätes ausgelegt ist;
• die Netzspannung im Bereich der auf dem
Typenschild angegebenen Werte liegt;
• die Steckdose mit dem Netzstecker kompatibel ist.
Sollte dies nicht der Fall sein, wechseln Sie bitte die
Steckdose oder den Netzstecker aus; verwenden
Sie keine Verlängerungen und Mehrfachsteckdosen.
!
Netzkabel und Steckdose müssen bei installiertem
Gerät leicht zugänglich sein.
!
Das Netzkabel darf nicht gebogen oder eingeklemmt
werden.
!
Das Netzkabel muss regelmäßig kontrolliert werden
und darf nur durch autorisiertes Fachpersonal
ausgetauscht werden.
!
Der Hersteller lehnt jede Verantwortung ab, falls
diese Vorschriften nicht eingehalten werden sollten.
!
Entfernen oder ersetzten Sie unter keinen Umständen
das Netzkabel. Wird das Kabel entfernt oder ersetzt,
verfallen sowohl die Gewährleistung als auch das
CE-Zeichen. INDESIT übernimmt keine Verantwortung
für Unfälle oder Schäden, die durch das Entfernen/
Ersetzen des Original-Netzkabels verursacht
werden. Der Austausch darf ausschließlich mit einem
Originalersatzteil und durch autorisiertes Fachpersonal
INDESIT durchgeführt werden.
Brücke
Nullleiter
Erdleiter
Phase
Phase
Phase
1
2
3
5
4
Erweiterbare Kochzonen
Einige Modelle verfügen über erweiterbare Kochzonen.
Diese können unterschiedliche Formen aufweisen
sowie unterschiedliche Erweiterungsmöglichkeiten
besitzen (Doppel- oder Dreifach-Kochzone). Hier
werden die entsprechenden Bedienelemente
aufgeführt, mit denen die Modelle bestückt sind, die
über solche Optionen verfügen.
Runde, erweiterbare Kochzone
• Taste
EINSCHALTEN DER DOPPELKOCHZONE:
Mittels dieser kann die Doppelkochzone aktiviert
werden. (
siehe Inbetriebsetzung und Gebrauch
).
• Kontrollleuchte
DOPPELKOCHZONE
EINGESCHALTET:
Diese zeigt an, dass die
Doppelkochzone eingeschaltet wurde.
• Taste
EINSCHALTEN DER DREIFACHKOCHZONE:
Mittels dieser kann die Dreifachkochzone aktiviert
werden. (
siehe Inbetriebsetzung und Gebrauch
).
• Kontrollleuchte
DREIFACHKOCHZONE
EINGESCHALTET:
Diese zeigt an, dass die
Dreifachkochzone eingeschaltet wurde.
Kontrollleuchte
DOPPELKOCHZONE
EINGESCHALTET
Taste
EINSCHALTEN DER
DOPPELKOCHZONE
Kontrollleuchte
DREIFACHKOCHZONE
EINGESCHALTET
Taste
EINSCHALTEN DER
DREIFACHKOCHZONE
46
DE
Inbetriebsetzung und
Gebrauch
!
Der auf die Dichtungen aufgetragene Leim
könnte Fettspuren auf dem Glas hinterlassen. Wir
empfehlen Ihnen, diese vor Einsatz des Gerätes mit
einem herkömmlichen Reinigungsmittel (eine nicht
scheuernde Poliercreme) zu entfernen. Während der
ersten Betriebsstunden könnte ein Geruch verbrannten
Gummis zu vernehmen sein. Dies wird sich nach
kurzer Zeit geben.
!
Wird das Kochfeld an das Stromnetz angeschlossen,
ertönt nach einigen Sekunden ein kurzes akustisches
Signal. Nur daraufhin kann das Kochfeld eingeschaltet
werden.
!
Durch längeres Drücken der Tasten
-
und
+
können die Leistungswerte und die Minuten des Timers
im Schnelllauf verändert werden.
Einschalten des Kochfeldes
Das Kochfeld wird über die Taste
(für ca. 1
Sekunde gedrückt halten) eingeschaltet.
Einschalten der Kochzonen
Eine jede Kochzone wird über eine Bedienungstaste
und über einen aus einer Doppeltaste (
-
und
+
)
bestehenden Leistungsregler eingeschaltet.
• Um eine Kochzone einzuschalten, drücken
Sie die entsprechende Bedienungstaste und
stellen daraufhin über die Tasten
-
und
+
die
gewünschte Leistungsstufe ein.
Ausschalten der Kochzonen
Um eine Kochzone auszuschalten, wählen Sie diese
zuerst über die entsprechende Bedienungstaste
und:
• Drücken Sie die Taste
-
: Die Kochzonenleistung
sinkt allmählich bis zum völligen Ausschalten der
Kochzone.
Power-Funktion
Zur Beschleunigung der Aufheizzeit der hinteren
Kochzonen kann die Funktion Power eingesetzt
werden: Schalten und stellen Sie das gewünschte
Kochfeld
ein, wie im vorangegangenen Abschnitt
beschrieben. Halten Sie die Bedienungstaste des
gewählten Kochfelds
für mindestens 2 Sekunden
gedrückt. Auf dem Display „Leistungsanzeige“
wechselt die Anzeige vom Buchstaben “P” zur
zuvor eingestellen Leistungsstufe solange, bis die
gewünschte Leistungsstufe erreicht ist. Sobald sie
erreicht ist, zeigt das Display wieder die eingestellte
Leistungsstufe. Um diese Funktion zu deaktivieren,
halten Sie die Bedieungstaste des Kochfelds, auf dem
die Funktion
aktiv ist, für mindestens 2 Sekunden
gedrückt oder wählen Sie eine andere Leistungsstufe
von 0 bis 9 über den Leistungswähler
-
und
+
.
Die Heizelemente
Das Kochfeld kann, je nach Modell, mit zwei Arten
von Heizelementen bestückt sein: Halogen- und
Strahlungsbeheizungselemente.
Bei den Halogen-Heizelementen erfolgt die
Wärmeübertragung mittels der in diesen
Heizelementen befindlichen Halogenlampe.
Diese zeichnen sich besonders aufgrund ihrer
Eigenschaften aus, die den typischen Eigenschaften
des Gases nahe kommen: sofortige Reaktion auf die
jeweiligen Einstellungen, umgehende Anzeige der
Leistungsstufe.
Bei den Strahlungsbeheizungselementen handelt
es sich um Heizkörper, die aus einer Vielzahl von
Ringen bzw. Spiralen bestehen, welche eine optimale
Wärmeverteilung über den gesamten Topfboden
gewährleisten und somit bestmögliche Garergebnisse
bei Niedrigtemperaturen ermöglichen. Schmorgerichte,
Soßen oder aufzuwärmende Fertiggerichte.
Sperre der Schaltelemente
Während der Betriebszeit des Kochfeldes können
die Schaltelemente gesperrt werden, um irrtümliche
Einstellungsänderungen zu verhindern (durch Kinder,
bei der Reinigung usw.). Drücken Sie die Taste
, dann werden die Schaltelemente gesperrt. Die über
der Taste befindliche Kontrollleuchte leuchtet auf.
Zu weiteren Einstellungen (z.B. um den Garvorgang zu
unterbrechen) müssen die Schaltelemente erst wieder
freigegeben werden. Drücken Sie die Taste
für
einige Sekunden; die Kontrollleuchte erlischt, die
Schaltelemente werden freigegeben.
Ausschalten des Kochfeldes
Durch Drücken der Taste
wird das Kochfeld
ausgeschaltet.
Sollten die Schaltelemente gesperrt worden sein,
bleiben diese auch bei Wiedereinschalten des Gerätes
gesperrt. Um das Kochfeld wieder einschalten zu
können, müssen die Schaltelemente vorher entsperrt
werden.
47
DE
Praktische Ratschläge zum Einsatz des
Gerätes
So gibt Ihnen Ihr Kochfeld sein Bestes:
• Verwenden Sie Kochgeschirr mit dickem und
ebenem Boden, um sicher zu sein, dass dieser
perfekt auf der Kochzone aufliegt.
• Benutzen Sie stets nur Kochgeschirr, dessen
Durchmesser mit dem der Kochzone übereinstimmt,
d.h. dessen Boden die Kochzone ganz bedeckt,
und somit die gesamte Wärme genutzt wird.
• Achten Sie darauf, dass der Boden des
Kochgeschirrs trocken und sauber ist; nur so ist ein
perfektes Aufliegen des Geschirrbodens sowie eine
lange Lebensdauer von Kochzone und Geschirr
gewährleistet.
• Vermeiden Sie den Einsatz von Kochgeschirr, das
auch auf Gasflammen verwendet wird. Die äußerst
hohe Hitzekonzentration der Gasbrenner könnte
die Topfböden leicht verformen und demnach die
korrekte Auflage beeinträchtigen.
Sicherheitsvorrichtungen
Topferkennung
Jede Kochzone ist mit einer Topferkennungs-
Vorrichtung ausgerüstet. Die Kochzone bewirkt ein
Erhitzen des Topfbodens nur bei einer angemessenen,
der Kochzone entsprechenden Topfgröße. Das Blinken
der Anzeigeleuchte kann Folgendes signalisieren:
• ungeeignetes Kochgeschirr,
• ein zu geringer Topfdurchmesser,
• der Topf wurde abgenommen.
Restwärmeanzeigen
Jede Kochzone ist mit einer Restwärmeanzeige
ausgerüstet. Diese Anzeige signalisiert, welche
Kochzonen noch eine erhöhte Temperatur haben.
Zeigt die Leistungsanzeige
, dann ist die Kochzone
noch warm. Es ist beispielsweise möglich, eine Speise
warm zu halten oder Schokolade oder Butter zu
schmelzen. Mit dem Abkühlen der Kochzone zeigt die
Leistungsanzeige
. Die Anzeige schaltet sich ab,
sobald die Kochzone ausreichend abgekühlt ist.
Überhitzung
Im Falle einer Überhitzung der elektronischen
Gerätekomponenten schaltet sich das Kochfeld
automatisch aus, auf dem Display erscheint die
Anzeige
F
gefolgt von einer blinkenden Zahl. Diese
Meldung erlischt, und das Kochfeld kann wieder
eingesetzt werden, sobald die Temperatur auf einen
akzeptablen Wert gesunken ist.
Sicherheitsautomatik
Das Gerät ist mit einer Sicherheitsautomatik
ausgestattet, die die Kochzone automatisch
abschaltet, wenn die maximale Betriebszeit auf einer
gewissen Leistungsstufe erreicht wird. Bei Auftreten
eines solchen Sicherheitsintervalls erscheint auf dem
Display die Anzeige „0“.
Beispiel: Die hintere rechte Kochzone wird auf
Leistungsstufe 5 eingestellt, die vordere linke dagegen
auf 2. Die hintere rechte Kochzone wird nach 5 Std.
Betriebszeit ausgeschaltet, die vordere linke erst nach
8 Stunden.
Heizleistung
1
2
3
4
5
6
7
8
9
Beschränkung der Funktionsdauer in Stunden
9
8
7
6
5
4
3
2
1
Tonsignal
Einige Anomalien, wie:
• Gegenstände (Topf, Besteck usw.), die für länger als
10 Sekunden auf dem Schaltfeld liegen,
• Flüssigkeit, die über das Schaltfeld gegossen
wurde,
• ein zu langer Druck auf eine Taste, können die
Ursache für ein Warnsignal sein. Um das Warnsignal
auszuschalten, muss der Grund der Störung
beseitigt werden. Wird die Störung nicht beseitigt,
bleibt das Warnsignal eingeschaltet und das
Kochfeld wird ausgeschaltet.
48
DE
Praktische Back-/Brathinweise
ª
Schnellgaren
Schnellkochtopf
Fritieren
Grillen
Kochen
Sehr stark garen
Stark garen
Sanftgaren
Sehr sanft Garen
Extrem
sanft
Garen
• • ¶
Crêpes
Stark garen und bräunen
(Braten, Koteletts, Schnitzel, Fischfilets,
Spiegeleier)
¶ §
Schnell eindicken (flüssige Soßen)
Kochendes Wasser (Nudeln, Reis, Gemüse)
Milch
§ S
Langsam eindicken (dickflüssige Soßen)
S ¢
Wasserbad
Garen im Schnellkochtopf nach dem Dampfaustritt
¢ £ ™
Sehr sanft Garen
Aufwärmen von Speisen
™ ¡
Schokoladensoße
Warmhalten
49
DE
Vorsichtsmaßregeln
und Hinweise
!
Das Gerät wurde entsprechend den strengsten
internationalen Sicherheitsvorschriften entworfen und gebaut.
Nachstehende Hinweise werden aus Sicherheitsgründen
geliefert und sollten aufmerksam gelesen werden.
Dieses Gerät entspricht den folgenden EG-
Richtlinien:
- 2006/95/EWG vom 12.12.06 (Niederspannung) und
nachfolgenden Änderungen
- 2004/108/EWG vom 15/12/04 (elektromagnetische
Verträglichkeit) und nachfolgenden Änderungen
- 93/68/EWG vom 22.07.93 und nachfolgenden Änderungen.
- 1275/2008 stand-by/off mode.
Allgemeine Sicherheit
!
Stellen Sie bitte sicher, dass das Belüftungsgitter des
Gebläses niemals verstopft bzw. abgedeckt wird. Das
Einbaukochfeld erfordert eine korrekte Belüftung zur Kühlung
der elektronischen Teile.
• Dieses Gerät ist für den nicht professionellen Einsatz im
privaten Haushalt bestimmt.
• Das Gerät darf nicht im Freien aufgestellt werden, auch
nicht, wenn es sich um einen geschützten Platz handelt.
Es ist hoch gefährlich, das Gerät Gewittern und Unwettern
auszusetzen.
• Berühren Sie das Gerät nicht mit nassen oder feuchten
Händen oder Füßen und auch nicht, wenn Sie barfuß sind.
•
Das Gerät darf nur von Erwachsenen und
gemäß den Hinweisen der vorliegenden
Bedienungsanleitung zur Zubereitung von
Lebensmitteln verwendet werden. Jeder andere
Einsatz (zum Beispiel: zum Beheizen von
Räumen) ist als unsachgemäß und gefährlich
anzusehen. Der Hersteller haftet nicht für
eventuelle, durch unsachgemäßen, falschen
oder unangemessenen Gebrauch verursachte
Schäden.
• Das Glaskeramikkochfeld ist stoßfest; dennoch
kann es durch Stöße bzw. Aufprall von spitzen
Gegenständen springen (oder sogar zerbrechen),
Schalten Sie das Kochfeld in einem solchen
Fall vom Stromnetz und wenden Sie sich an die
Kundendienststelle.
• Vermeiden Sie, dass das Netzkabel anderer
Elektrogeräte in Kontakt mit heißen Kochfeldteilen
gelangt.
• Bitte berücksichtigen Sie, dass die Kochzonen
noch für ca. 30 Minuten nach dem Ausschalten
sehr heiß bleiben. Die Restwärme wird auf der
entsprechenden Anzeige eingeblendet (
siehe
Inbetriebsetzung und Gebrauch
).
• Halten Sie sämtliche Gegenstände, die schmelzen
könnten, wie Plastikteile oder Kunststoffe sowie
Zucker oder stark zuckerhaltige Speisen von
dem Kochfeld fern. Achten Sie besonders auf
Verpackungsmaterial, Frischhaltefolie und Alufolie:
Wird derartiges Material auf den noch heißen oder
warmen Oberflächen belassen, können sie das
Kochfeld dauerhaft beschädigen.
• Stellen Sie Stieltöpfe und Pfannen immer mit nach
innen gerichteten Griffen auf die Kochstelle, um
jegliches Risiko durch unbeabsichtigtes Anstoßen
auszuschließen.
• Ziehen Sie den Netzstecker nicht am Netzkabel aus
der Steckdose, sondern nur am Netzstecker selbst.
• Ziehen Sie vor der Reinigung oder vor
Wartungsmaßnahmen stets den Netzstecker aus der
Steckdose.
• Das Gerät ist nicht zur Verwendung durch
Personen (einschließlich Kinder) mit
eingeschränkten körperlichen, geistigen oder
Wahrnehmungsfähigkeiten oder aber ohne
ausreichende Erfahrung und Produktkenntnis
geeignet, sofern sie nicht durch eine für ihre
Sicherheit verantwortliche Person beaufsichtigt
werden oder zuvor Anleitungen zum
Gerätegebrauch erhalten haben.
• Schauen Sie nicht zu intensiv auf die
eingeschalteten Halogen-Kochzonen, soweit
vorhanden.
• Legen Sie bitte keine Metallgegenstände (Messer,
Löffel, Deckel usw.) auf das Kochfeld; sie könnten
sehr heiß werden.
•
Dieses Gerät kann nicht mit einem
externen Timer oder einem getrennten
Fernsteuerungssystem betrieben werden
.
Entsorgung
• Entsorgung des Verpackungsmaterials: Befolgen Sie
die lokalen Vorschriften; Verpackungsmaterial kann
wiederverwertet werden.
• Die europäische Richtlinie 2002/96/EG über Elektro-
und Elektronik-Altgeräte (WEEE) sieht vor, dass
Haushaltsgeräte nicht mit dem normalen Hausmüll
entsorgt werden dürfen. Die Altgeräte müssen getrennt
gesammelt werden, um die Rückführung und das
Recycling der Materialen zu optimieren, aus denen die
Geräte hergestellt sind, und um mögliche Belastungen
der Gesundheit und der Umwelt zu verhindern. Das
Mülleimersymbol ist auf allen Produkten dargestellt, um
an die Verpflichtung zur getrennten Abfallsammlung zu
erinnern.
Für weitere Informationen zur korrekten Entsorgung können
sich die Besitzer von elektrischen Haushaltsgeräten an
die übergeordnete öffentliche Einrichtung oder an ihren
Händler wenden.
50
DE
Reinigung und Pflege
Abschalten Ihres Gerätes vom Stromnetz
Vor jeder Reinigung und Pflege ist das Gerät vom Stromnetz
zu trennen.
Reinigung des Gerätes
!
Der Einsatz von Scheuermitteln oder scharfen oder
chemischen Reinigungsmitteln wie Backofensprays,
Fleckenentferner, Rostentfernungsmittel, Reiniger in
Pulverform und Scheuerschwämme ist zu vermeiden:
diese können die Oberfläche des Kochfeldes dauerhaft
beschädigen.
!
Verwenden Sie zur Reinigung des Kochfeldes keine Dampf-
oder Hochdruckreinigungsgeräte.
• Zur täglichen Pflege genügt es, das Kochfeld mit einem
feuchten Schwamm abzuwischen und mit Küchenpapier
abzutrocknen.
• Bei besonders starker Verschmutzung sollte ein spezielles
Reinigungsmittel für Glaskeramik verwendet werden;
anschließend ist das Kochfeld mit Wasser abzuspülen und
sorgfältig abzutrocknen.
• Starke Verschmutzungen lassen sich mit einem
Schaber (Klingenschaber) entfernen. Sie sollten so
schnell wie möglich - und nicht erst nach Abkühlen des
Kochfeldes - entfernt werden, um zu vermeiden, dass
sich die Verschmutzungen festsetzen. Gute Ergebnisse
lassen sich auch mit einem für Glaskeramik geeigneten
Spezialschwamm aus Edelstahlwolle und einer einfachen
Spüllauge erzielen.
• Auf dem Kochfeld versehentlich geschmolzene Alufolie,
Plastikteile oder Kunststoffe, sowie Zuckerreste müssen
umgehend mit einem Schaber von der noch warmen
Oberfläche entfernt werden.
• Nach der Reinigung kann das Kochfeld mit einem
Pflegeprodukt nachbehandelt werden: Der unsichtbare
Schutzfilm, den ein solches Produkt hinterlässt, schützt
die Oberfläche vor eventuell überkochenden Speisen. Es
empfiehlt sich, diese Nachbehandlung bei lauwarmem
oder abgekühltem Gerät vorzunehmen.
• Achten Sie darauf, das Kochfeld nach der Reinigung
stets mit klarem Wasser abzuspülen und anschließend
abzutrocknen. Rückstände der Reinigungsmittel könnten
sich nämlich bei der nächsten Benutzung des Kochfeldes
ihrerseits festsetzen.
Edelstahlrahmen
(nur bei mit Rahmen versehenen
Modellen)
Auf den Edelstahlteilen könnten Flecken zurückbleiben, sollte
stark kalkhaltiges Wasser oder phosphorhaltiges Spülmittel
für längere Zeit darauf vorhanden sein.
Es ist ratsam, das Kochfeld nach der Reinigung gut
nachzuspülen und abzutrocknen. Wird versehentlich Wasser
darauf verschüttet, muss es sofort sorgsam getrocknet
werden.
!
Einige Kochfelder sind mit einem Aluminiumrahmen
versehen, der Edelstahl sehr ähnlich ist. Verwenden Sie bitte
keine Produkte zur Reinigung und Entfettung, die nicht für
Aluminium geeignet sind.
Demontage des Kochfeldes
Sollte sich die Abnahme des Kochfeldes als erforderlich
erweisen, verfahren Sie bitte wie folgt:
1. Schrauben Sie die Schrauben aus, die zur Befestigung der
seitlichen Zentrierungsfedern dienen;
2. lockern Sie die Schrauben der Eck-Befestigungsbügel;
3. nehmen Sie das Kochfeld aus dem Möbelausschnitt
heraus.
!
Wir empfehlen dringlich, Innenmechanismen nicht
eigenhändig zu reparieren. Kontaktieren Sie bei Störungen
bitte den Kundendienst.
Technische Beschreibung der Modelle
In den angeführten Tabellen werden, Modell für Modell, die Energiebedarfswerte, die Art der Heizelemente und der
Durchmesser einer jeden Kochzone ausgewiesen.
Kochfelder
Kochzonen
Hinten links
Hinten rechts
Vorne links
Vorne rechts
Gesamtleistung
Leistung (W)
HD 2300
H 1400
H 1200
H 1800
Durchmesser (mm)
210
160
145
180
6700
Leistung (W)
HT 2200/1000
H 1400
H 1200
H 1800
Durchmesser (mm)
210/140
160
145
180
6600
VRA 640 X S
VRA 641 D B S
VRA 641 D X S
Legende:
H = hilight einfach
HD = hilight doppelt
HT = hilight dreifach
AD = Halogen doppelt
VRA 640 C S
VRA 640 C S
IT
51
Installazione
!
È importante conservare questo libretto per poterlo
consultare in ogni momento. In caso di vendita, di
cessione o di trasloco, assicurarsi che resti insieme
all’apparecchio per informare il nuovo proprietario sul
funzionamento e sui relativi avvertimenti.
!
Leggere attentamente le istruzioni: ci sono importanti
informazioni sull’installazione, sull’uso e sulla sicurezza.
Posizionamento
!
Gli imballaggi non sono giocattoli per bambini e vanno
eliminati secondo le norme per la raccolta differenziata
(
vedi Precauzioni e consigli
).
!
L’installazione va effettuata secondo queste istruzioni e
da personale professionalmente qualificato. Una errata
installazione può causare danni a persone, animali o
cose.
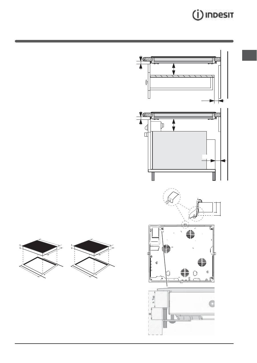
Incasso
Per garantire un buon funzionamento dell’apparecchio è
necessario che il mobile abbia le caratteristiche adatte:
• il piano d’appoggio deve essere di materiale
resistente al calore, a una temperatura di circa
100°C;
• se si desidera installare il piano cottura sopra un
forno, questo deve essere provvisto di un sistema di
raffreddamento a ventilazione forzata;
• evitare di installare il piano cottura sopra una
lavastoviglie: all’occorrenza frapporre un elemento
di separazione a tenuta stagna fra i due apparecchi;
• a seconda del piano cottura che si desidera
installare (
vedi fi gure
), il vano del mobile deve avere
le seguenti dimensioni:
560 +/- 1
490 +/- 1
48
590
520
560 +/- 1
490 +/- 1
48
574
504
Aerazione
Per consentire un’adeguata aerazione e per evitare
il surriscaldamento delle superfici attorno all’apparecchio,
il piano cottura deve essere posizionato:
• a una distanza minima di 40 mm dalla parete
retrostante;
• in modo da mantenere una distanza minima di 20 mm
fra il vano per l’incasso e il mobile sottostante.
• I mobili situati a fianco, la cui altezza superi quella
del piano di lavoro, debbono essere situati ad
almeno 600 mm dal bordo del piano stesso.
5 mm
min. 20 mm
min. 20 mm
min. 40 mm
CASSETTO
5 mm
min. 40 mm
FORNO
VENTILATO
LATO ANTERIORE
DEL PIANO COTTURA
PIANO DI
APPOGGIO
30
40
PIANO COTTURA
ROVESCIATO
52
IT
Fissaggio
L’installazione dell’apparecchio deve essere effettuata
su un piano d’appoggio perfettamente piano.
Le eventuali deformazioni provocate da un errato
fissaggio potrebbero alterare le caratteristiche e
le prestazioni del piano cottura.
La lunghezza della vite di regolazione dei ganci
di fissaggio va impostata prima del loro montaggio,
in base allo spessore del piano d’appoggio:
• spessore di 30 mm: vite 17,5 mm;
• spessore di 40 mm: vite 7,5 mm.
Per il fissaggio agire come segue:
1. Con le viti corte senza punta, avvitare le 4 molle di
centraggio nei fori posti al centro di ogni lato del piano;
2. inserire il piano cottura nel vano del mobile, centrarlo
ed esercitare una adeguata pressione sull’intero perimetro
affinché il piano di cottura aderisca bene al piano
d’appoggio.
3. per i piani con profili laterali: dopo aver inserito il piano
cottura nel mobile, inserire i 4 ganci di fissaggio (ognuno
con il suo perno) sul perimetro inferiore del piano cottura,
avvitandoli con le viti lunghe con punta finché il vetro non
aderisce al piano d’appoggio.
!
È indispensabile che le viti delle molle di centraggio
rimangano accessibili.
!
In conformità alle norme di sicurezza, una volta
incassato l’apparecchio, non debbono essere possibili
eventuali contatti con le parti elettriche.
!
Tutte le parti che assicurano la protezione debbono
essere fissate in modo tale da non poter essere tolte
senza l’aiuto di qualche utensile.
Collegamento elettrico
!
L’allacciamento elettrico del piano cottura e quello di
un eventuale forno da incasso devono essere realizzati
separatamente, sia per ragioni di sicurezza elettrica sia
per facilitare le operazioni di estrazione del forno.
Morsettiera
L’apparecchio è provvisto, nella
parte inferiore, di una scatola per
il collegamento a differenti tipi di
alimentazione elettrica
(l’immagine è indicativa e può
non corrispondere al modello
acquistato).
Collegamento monofase
Il piano è dotato di cavo di alimentazione già collegato
e predisposto per il collegamento monofase. Effettuare
l’allaccio dei fili in accordo con la tabella e i disegni che
seguono:
Tensione tipo e
frequenza rete
Cavo elettrico
Collegamento fili
230-240V 1+N ~
220-240V 1+N ~
50/60 Hz
: giallo/verde
N
: i 2 fili blu insieme
L
: marrone insieme al nero
Altri tipi di collegamento
Se l’impianto elettrico corrisponde a una delle seguenti
caratteristiche:
Tensione tipo e frequenza di rete
• 400V - 2+N ~ 50/60 Hz
• 220-240V 3 ~ 50/60 Hz
• 230-240V 3 ~ 50/60 Hz
• 400V - 2+2N ~ 50/60 Hz
Separare i cavi ed effettuare il collegamento dei fili in
accordo con la tabella e i disegni che seguono:
Tensione tipo e
frequenza rete
Cavo elettrico
Collegamento fili
400V - 2+N ~
50/60 Hz
230-240V 3 ~
220-240V 3 ~
50/60 Hz
: giallo/verde;
N
: i 2 fili blu insieme
L1
: nero
L2
: marrone
400V - 2+2N ~
50/60 Hz
: giallo/verde;
N1
: blu
N2
: blu
L1
: nero
L2
: marrone
Se l’impianto elettrico corrisponde a una delle seguenti
caratteristiche:
Tensione tipo e frequenza di rete
• 400V 3 - N ~ 50/60 Hz
procedere come segue:
!
L’eventuale cavo in dotazione non è utilizzabile per
questi tipi di installazione.
1. Utilizzare un cavo di alimentazione appropriato, tipo
H05RR-F o di valore superiore, delle dimensioni adatte
(sezione cavo: 25 mm).
2. Servendosi di un cacciavite, far leva sulle linguette
del coperchio della morsettiera e aprirla (
vedi immagine
Morsettiera
).
3. Svitare la vite del serracavo e le viti dei morsetti relativi
al tipo di allaccio necessario e posizionare i cavallotti di
collegamento secondo la tabella e i disegni che seguono.
4. Posizionare i fili in accordo con la tabella e i disegni
che seguono ed effettuare il collegamento stringendo a
fondo tutte le viti dei morsetti.
Tensione tipo e
frequenza rete
Cavo elettrico
Collegamento fili
400V 3-N ~
50/60 Hz
Trifase 400
PIANO COTTURA
ROVESCIATO
IT
53
5. Fissare il cavo di alimentazione nell’apposito fermacavo
e chiudere il coperchio.
Fase
Fase
Fase
Cavallotto
Neutro
Terra
1
2
3
5
4
Trifase
400
Allacciamento del cavo di alimentazione alla rete
In caso di collegamento diretto alla rete è necessario
interporre tra l’apparecchio e la rete un interruttore
onnipolare con apertura minima fra i contatti di 3 mm.
!
L’installatore è responsabile del corretto collegamento
elettrico e dell’osservanza delle norme di sicurezza.
Prima di effettuare l’allacciamento accertarsi che:
• la presa abbia la messa a terra e sia a norma di legge;
• la presa sia in grado di sopportare il carico massimo di
potenza della macchina, indicato nella
targhetta caratteristiche posta sull’apparecchio;
• la tensione di alimentazione sia compresa nei valori
della targhetta caratteristiche;
• la presa sia compatibile con la spina dell’apparecchio.
In caso contrario sostituire la presa o la spina; non
usare prolunghe e multiple.
!
Ad apparecchio installato, il cavo elettrico e la presa
della corrente devono essere facilmente raggiungibili.
!
Il cavo non deve subire piegature o compressioni.
!
Il cavo deve essere controllato periodicamente e
sostituito solo da tecnici autorizzati.
!
L’azienda declina ogni responsabilità qualora queste
norme non vengano rispettate.
!
Non rimuovere o sostituire per nessun motivo il cavo
di alimentazione. L’ eventuale rimozione o sostituzione
fa’ decadere la garanzia e il marchio CE. INDESIT
non si assume alcuna responsabilita’ per incidenti
o danni derivanti dalla sostituzione/rimozione del
cavo di alimentazione originale. E’ ammessa solo la
sostituzione con un ricambio originale ed effettuata da
personale autorizzato INDESIT.
Zone di cottura estensibili
In alcuni modelli sono presenti piastre estensibili.
Queste possono avere diversa forma e diversa
estensibilità (piastra doppia o tripla). Sono qui
illustrati i comandi relativi, presenti solo sui modelli
dotati di queste opzioni.
Piastra estensibile circolare
Spia
PIASTRA DOPPIA
ACCESA
Tasto
ACCENSIONE
PIASTRA DOPPIA
Spia
PIASTRA TRIPLA
ACCESA
Tasto
ACCENSIONE
PIASTRA TRIPLA
• Tasto
ACCENSIONE PIASTRA DOPPIA
per attivare
la piastra doppia (
vedi Avvio e utilizzo
).
• Spia
PIASTRA DOPPIA ACCESA
: segnala
l’accensione della piastra doppia.
• Tasto
ACCENSIONE PIASTRA TRIPLA
per attivare
la piastra tripla (
vedi Avvio e utilizzo
).
• Spia
PIASTRA TRIPLA ACCESA
: segnala
l’accensione della piastra tripla.
54
IT
Avvio e utilizzo
!
La colla applicata sulle guarnizioni lascia alcune
tracce di grasso sul vetro. Prima di utilizzare
l’apparecchio, si raccomanda di eliminarle con un
prodotto specifico per la manutenzione non abrasivo.
Durante le prime ore di funzionamento è possibile
avvertire un odore di gomma, che comunque
scomparirà presto.
!
Quando il piano cottura viene collegato
elettricamente, dopo acuni secondi viene emesso un
breve segnale acustico. Soltanto a questo punto è
possibile accendere il piano cottura.
!
La pressione prolungata dei tasti
-
e
+
consente
l’avanzamento veloce dei minuti del timer.
Accensione del piano cottura
L’accensione del piano cottura avviene tenendo
premuto il tasto
per circa un secondo.
Accensione delle zone di cottura
Ciascuna zona di cottura viene azionata tramite un tasto
di selezione
e un dispositivo di regolazione della
potenza composto da un doppio tasto
-
e
+
.
• Per mettere in funzione una zona di cottura, premere
il relativo tasto di comando e impostare la potenza
desiderata tramite i tasti
-
e
+
.
Funzione power
Per accelerare i tempi di riscaldamento delle zone
di cottura, è possibile attivare la funzione power.
Accendere e impostare la potenza della zona di
cottura desiderata
come descritto nel paragrafo
precedente. Premere e mantenere premuto per
almeno 2 secondi, il tasto di selezione della zona
di cottura scelta
Sul display, indicatore della
potenza, si alterna la visualizzazione della lettera “P” e
del livello di potenza precedentemente impostato per
tutto il tempo necessario al raggiungimento del livello
di potenza desiderato. A raggiungimento avvenuto
il display tornerà a visualizzare il livello di potenza
impostato. Per disattivare questa funzione, premere
e mantenere premuto per almeno 2 secondi, il tasto
di selezione della zona di cottura su cui è attiva la
funzione
oppure scegliere un diverso livello di
potenza tramite i tasti
-
e
+
.
Spegnimento delle zone di cottura
Per spegnere una zona di cottura, selezionarla tramite
il relativo tasto di selezione
e:
• Premere il tasto
-
: la potenza della zona di cottura
scende progressivamente, fino allo spegnimento.
Gli elementi riscaldanti
Sul piano cottura, a seconda dei modelli, possono
essere installati elementi riscaldanti di due tipi:
alogeni e radianti.
Gli alogeni trasmettono il calore tramite l’irradiazione
della lampada alogena che contengono.
Si caratterizzano per le proprietà che ricordano
quelle tipiche del gas: rapida risposta ai comandi,
visualizzazione istantanea della potenza.
I radianti sono composti da una molteplicità di spire
che garantiscono la ripartizione uniforme del calore
sul fondo del recipiente, per una perfetta riuscita di
tutte le cotture a fuoco basso: stufati, salse o piatti
da riscaldare.
Blocco dei comandi
Quando il piano cottura è in funzione, è possibile
bloccare i comandi per evitare il rischio di modifiche
fortuite alle regolazioni (bambini, operazioni di pulizia,
ecc.). Premendo il tasto
i comandi si bloccano
e la spia che si trova sopra al tasto si accende.
Per tornare ad agire sulle regolazioni (es. interrompere
la cottura) è necessario sbloccare i comandi: premere
il tasto
per qualche istante, la spia si spegne e i
comandi si sbloccano.
Spegnimento del piano cottura
Premendo il tasto
l’apparecchio si spegne.
Se i comandi dell’apparecchio sono stati bloccati,
continueranno ad essere bloccati anche dopo aver
riacceso il piano di cottura. Per poter riaccendere
il piano è necessario prima sbloccare i comandi.
Consigli pratici per l’uso
dell’apparecchio
Per ottenere le migliori prestazioni dal piano di cottura:
• Adoperare pentole con fondo piatto e di elevato
spessore, per essere certi che aderiscano
perfettamente alla zona riscaldante.
• Adoperare pentole di diametro sufficiente a coprire
completamente la zona riscaldante, in modo da
IT
55
garantire lo sfruttamento di tutto il calore disponibile.
• Accertarsi che il fondo delle pentole sia sempre
perfettamente asciutto e pulito, per garantire la
corretta aderenza e una lunga durata, sia alle zone
di cottura che alle pentole stesse.
• Evitare di utilizzare le stesse pentole utilizzate
sui bruciatori a gas: la concentrazione di calore sui
bruciatori a gas può deformare il fondo della
pentola, che perde aderenza.
Dispositivi di sicurezza
Rilevamento dei recipienti
Ciascuna zona di cottura è provvista di un dispositivo
di rilevamento della pentola. La piastra emette calore
unicamente in presenza di una pentola di dimensioni
adeguate alla zona di cottura stessa. La spia
lampeggiante può indicare:
• una pentola incompatibile
• una pentola di diametro insufficiente
• il sollevamento della pentola
Indicatori di calore residuo
Ciascuna zona di cottura è provvista di un inciatore
di calore residuo. Tale indicatore segnala quali sono
le zone di cottura ancora a temperatura elevata. Se il
display di potenza visualizza
, la zona di cottura è
ancora calda. E’ possibile ad esempio mantenere in
caldo una pietanza o far scigliere burro o cioccolato.
Con il raffreddamento della zona di cottura, il display di
potenza visualizza
. Il display si spegne quando la
zona di cottura si è sufficientemente raffreddata.
Surriscaldamento
In caso di surriscaldamento dei componenti elettronici,
il piano cottura si spegne automaticamente e sul
display appare
F
seguito da un numero lampeggiante.
Questo messaggio scompare e il piano torna
utilizzabile non appena la temperatura è scesa a un
livello accettabile.
Interruttore di sicurezza
L’apparecchio è dotato di un interruttore di sicurezza
che spegne le zone di cottura automaticamente
quando viene raggiunto un tempo limite di utilizzo a
un dato livello di potenza. Durante l’interruzione di
sicurezza, il display indica “0”.
Esempio: la piastra posteriore destra è impostata su 5,
mentre la piastra anteriore sinistra su 2. La posteriore
destra si spegnerà dopo 5 ore di funzionamento, la
anteriore sinistra dopo 8 ore.
Livello di potenza
1
2
3
4
5
6
7
8
9
Tempo limite di funzionamento in ore
9
8
7
6
5
4
3
2
1
Segnale acustico
Alcune anomalie, quali:
• un oggetto (pentola, posata, ecc.) posto per oltre 10
secondi sull’area dei comandi,
• un versamento sull’area dei comandi,
• una pressione esercitata a lungo su un tasto,
possono provocare l’emissione di un segnale
acustico. Rimuovere la causa del malfunzionamento
per interrompere il segnale acustico. Se la causa
dell’anomalia non viene rimossa, il segnale acustico
persiste e il piano si spegne.
56
IT
Consigli pratici per la cottura
ª
Cottura a Pressione
Pentola a Pressione
Frittura
Grigliata
Ebollizione
Cottura a fuoco
vivissimo
Cottura a
fuoco vivo
Cottura a fuoco medio
Cottura a fuoco
lento
Cottura a
fuoco
lentissimo
• • ¶
Crêpe
Cottura a fuoco vivo e doratura
(Arrosti, Bistecche, Scaloppine, Filetti di
pesce, Uova al tegamino)
¶ §
Addensamento rapido (Sughi liquidi)
Acqua bollente (Pasta, Riso, Verdure)
Latte
§ S
Addensamento lento (Sughi consistenti)
S ¢
Cottura a bagnomaria
Cottura Pentola a pressione dopo il sibilo
¢ £ ™
Cottura a fuoco lento
(Stufati)
Riscaldamento delle pietanze
™ ¡
Salsa al cioccolato
Mantenimento al caldo
IT
57
Precauzioni e consigli
!
L’apparecchio è stato progettato e costruito
in conformità alle norme internazionali di sicurezza.
Queste avvertenze sono fornite per ragioni di sicurezza
e devono essere lette attentamente.
Questa apparecchiatura è conforme alle
seguenti Direttive Comunitarie:
- 2006/95/CEE del 12/12/06 (Bassa Tensione) e
successive modificazioni
- 2004/108/CEE del 15/12/04 (Compatibilità
Elettromagnetica) e successive modificazioni
- 93/68/CEE del 22/07/93 e successive modificazioni.
- 1275/2008 stand-by/off mode.
Sicurezza generale
!
Controllare che la presa d’aria tramite la griglia del
ventilatore non sia mai ostruita. Il piano da incasso,
infatti, necessita di una corretta aerazione per il
raffreddamento dei componenti elettronici.
• L’apparecchio è stato concepito per un uso di tipo
non professionale all’interno dell’abitazione.
• L’apparecchio non va installato all’aperto, nemmeno
se lo spazio è riparato, perché è molto pericoloso
lasciarlo esposto a pioggia e temporali.
• Non toccare la macchina a piedi nudi o con le mani
o i piedi bagnati o umidi.
•
L’apparecchio deve essere usato per cuocere
alimenti, solo da persone adulte e secondo le
istruzioni riportate in questo libretto. Ogni altro
uso (ad esempio: riscaldamento di ambienti) è
da considerarsi improprio e quindi pericoloso.
Il costruttore non può essere considerato
responsabile per eventuali danni derivanti da usi
impropri, erronei ed irragionevoli.
• Il piano in vetroceramica è resistente agli urti
meccanici, tuttavia può incrinarsi (o eventualmente
frantumarsi) se colpito con un oggetto appuntito,
quale un utensile. In questi casi, scollegare
immediatamente l’apparecchio dalla rete di
alimentazione e rivolgersi all’Assistenza.
• Se la superficie del piano è incrinata, spegnere
l’apparecchio per evitare la possibilità di scosse
elettriche.
• Evitare che il cavo di alimentazione di altri
elettrodomestici entri in contatto con parti calde
del piano cottura.
• Non dimenticare che la temperatura delle zone di
cottura rimane piuttosto elevata per almeno trenta
minuti dopo lo spegnimento. Il calore residuo è
segnalato anche da un indicatore (
vedi Avvio e
utilizzo
).
• Tenere a debita distanza dal piano cottura qualsiasi
oggetto che potrebbe fondere, ad esempio oggetti
in plastica, in alluminio o prodotti con un elevato
contenuto di zucchero. Fare particolare attenzione a
imballaggi e pellicole in plastica o alluminio:
se dimenticati sulle superfici ancora calde o tiepide
possono causare un grave danno al piano.
• Assicurarsi che i manici delle pentole siano sempre
rivolti verso l’interno del piano cottura per evitare
che vengano urtati accidentalmente.
• Non staccare la spina dalla presa della corrente
tirando il cavo, bensì afferrando la spina.
• Non fare pulizia o manutenzione senza aver prima
staccato la spina dalla rete elettrica.
• Non è previsto che l’apparecchio venga utilizzato
da persone (bambini compresi) con ridotte
capacità fisiche, sensoriali o mentali, da persone
inesperte o che non abbiano familiarità con il
prodotto, a meno che non vengano sorvegliate da
una persona responsabile della loro sicurezza o
non abbiano ricevuto istruzioni preliminari sull’uso
dell’apparecchio.
• Se presenti, non guardare a lungo le zone di cottura
alogene.
• Evitare che i bambini giochino con l’apparecchio.
• Non posare oggetti metallici (coltelli, cucchiai,
coperchi, ecc.) sul piano perchè possono diventare
caldi.
•
L’apparecchio non è destinato a essere messo in
funzione per mezzo di un temporizzatore esterno
oppure di un sistema di comando a distanza
separato.
Smaltimento
• Smaltimento del materiale di imballaggio: attenersi
alle norme locali, così gli imballaggi potranno essere
riutilizzati.
• La direttiva Europea 2002/96/CE sui rifiuti di
apparecchiature elettriche ed elettroniche (RAEE),
prevede che gli elettrodomestici non debbano essere
smaltiti nel normale flusso dei rifiuti solidi urbani.
Gli apparecchi dismessi devono essere raccolti
separatamente per ottimizzare il tasso di recupero
e riciclaggio dei materiali che li compongono ed
impedire potenziali danni per la salute e l’ambiente.
Il simbolo del cestino barrato è riportato su tutti
i prodotti per ricordare gli obblighi di raccolta
separata.
Per ulteriori informazioni, sulla corretta dismissione
degli elettrodomestici, i detentori potranno rivolgersi
al servizio pubblico preposto o ai rivenditori.
58
IT
Manutenzione e cura
Escludere la corrente elettrica
Prima di ogni operazione isolare l’apparecchio dalla
rete di alimentazione elettrica.
Pulire l’apparecchio
!
Evitare l’uso di detergenti abrasivi o corrosivi, quali
i prodotti in bombolette spray per barbecue e forni,
smacchiatori e prodotti antiruggine, i detersivi in
polvere e le spugne con superficie abrasiva: possono
graffiare irrimediabilmente la superficie.
!
Non utilizzare mai pulitori a vapore o ad alta pressione
per la pulizia dell’apparecchio.
• Per una manutenzione ordinaria, è sufficiente lavare
il piano con una spugna umida, asciugando quindi
con una carta assorbente per cucina.
• Se il piano è particolarmente sporco, strofinare con
un prodotto specifico per la pulizia delle superfici
in vetroceramica, sciacquare e asciugare.
• Per rimuovere gli accumuli di sporco più consistenti
servirsi di un apposito raschietto. Intervenire
non appena possibile, senza attendere che
l’apparecchio si sia raffreddato, per evitare
l’incrostazione dei residui. Eccellenti risultati si
possono ottenere usando una spugnetta in filo
d’acciaio inossidabile - specifica per piani in
vetroceramica - imbevuta di acqua e sapone.
• In caso sul piano cottura si fossero accidentalmente
fusi oggetti o materiali quali plastica o zucchero,
rimuoverli con il raschietto immediatamente, finché
la superficie è ancora calda.
• Una volta pulito, il piano può essere trattato
con un prodotto specifico per la manutenzione
e la protezione: la pellicola invisibile lasciata da
questo prodotto protegge la superficie in caso di
scolamenti durante la cottura. Si raccomanda
di eseguire queste operazioni con l’apparecchio
tiepido o freddo.
• Ricordarsi sempre di risciacquare con acqua pulita
e asciugare accuratamente il piano: i residui di
prodotti potrebbero infatti incrostarsi durante la
successiva cottura.
Telaio in acciaio inox
(solo nei modelli con cornice)
L’acciaio inossidabile può macchiarsi per effetto
di un’acqua molto calcarea lasciata per un periodo
di tempo prolungato a contatto dello stesso oppure a
causa di prodotti per la pulizia contenenti fosforo.
Si consiglia di sciacquare abbondantemente e
asciugare con cura dopo la pulizia del piano. In
caso di versamenti d’acqua, intervenire rapidamente
asciugando con cura.
!
Alcuni piani cottura hanno una cornice in alluminio
somigliante all’acciaio inox. Non utilizzare prodotti per
la pulizia e lo sgrassaggio non idonei per l’alluminio.
Smontare il piano
Nel caso si renda necessario smontare il piano cottura:
1. togliere le viti che fissano le molle di centraggio
sui lati;
2. allentare le viti dei ganci di fissaggio sugli angoli;
3. estrarre il piano cottura dal vano del mobile.
!
Raccomandiamo di evitare di accedere ai
meccanismi interni per tentare una riparazione. In caso
di guasto, contattare l’Assistenza.
Descrizione tecnica dei modelli
In queste tabelle sono riportati, modello per modello, i valori di assorbimento energetico, il tipo di elemento
riscaldante e il diametro di ciascuna zona di cottura.
Legenda:
H = hilight singolo
HD = hilight doppio
HT = hilight triplo
AD = alogena doppio
Piani cottura
Zone di cottura
Posteriore sx
Posteriore dx
Anteriore sx
Anteriore dx
Potenza totale
Potenza (in W)
HD 2300
H 1400
H 1200
H 1800
Diametro (in mm)
210
160
145
180
6700
Potenza (in W)
HT 2200/1000
H 1400
H 1200
H 1800
Diametro (in mm)
210/140
160
145
180
6600
VRA 640 X S
VRA 641 D B S
VRA 641 D X S
VRA 640 C S
VRA 640 C S
59
NL
Installatie
!
Bewaar dit instructieboekje zorgvuldig voor eventuele
raadpleging in de toekomst. Wanneer u het product
weggeeft, verkoopt, of wanneer u verhuist, dient
u dit boekje bij het apparaat te bewaren zodat
waarschuwingen en informatie betreffende werking
voorhanden blijven.
!
Lees de instructies aandachtig door: u vindt er
belangrijke informatie betreffende installatie, gebruik
en veiligheid.
Plaatsing
!
Het verpakkingsmateriaal is niet bestemd voor
kinderen en dient daarom te worden verwijderd
volgens de geldende normen voor gescheiden
afvalverzameling (
zie Voorzorgsmaatregelen en advies
).
!
De installatie moet worden uitgevoerd door een
bevoegde installateur en volgens de instructies van
de fabrikant. Een verkeerde installatie kan schade
berokkenen aan personen, dieren of dingen.
Inbouw
Voor een goede werking van het apparaat moet het
keukenmeubel de juiste kenmerken hebben:
• het keukenblad moet uit hittebestendig materiaal zijn
vervaardigd en een temperatuur van circa 100°C
kunnen verdragen;
• als de kookplaat boven een oven wordt geïnstalleerd
moet deze zijn voorzien van een geforceerd
geventileerd afkoelingssysteem;
• installeer de kookplaat nooit boven een
afwasautomaat: indien u dit toch doet, breng dan
een waterdichte afscheiding aan tussen de twee
apparaten;
• naar gelang het type kookplaat dat u wenst
te installeren (
zie afbeeldingen
), moet het
keukenmeubel de volgende afmetingen hebben:
560 +/- 1
490 +/- 1
48
590
520
560 +/- 1
490 +/- 1
48
574
504
Ventilatie
Teneinde een correcte ventilatie te bereiken en
een oververhitting van de oppervlakken rondom het
apparaat te voorkomen, moet de kookplaat geïnstalleerd
worden op:
• op een minimum afstand van 40 mm van de
achterwand;
• op zodanige wijze dat er een minimum afstand
overblijft van 20 mm tussen het inbouwmeubel en
het onderstaande meubel.
• De meubels die direct naast de kookplaat staan en
VOORZIJDE VAN
DE KOOKPLAAT
KEUKENBLAD
30
40
KOOKPLAAT
ONDERSTEBOVEN
5 mm
min. 20 mm
min. 20 mm
min. 40 mm
LADE
5 mm
min. 40 mm
HETELUCHTOVEN
60
NL
hierboven uitsteken, moeten op minstens 600 mm
van de rand van de plaat staan.
Bevestigen
Het apparaat moet op een
absoluut horizontaal
oppervlak worden geïnstalleerd.
Eventuele door onjuiste installatie veroorzaakte
vervormingen kunnen de eigenschappen en de
prestaties van de kookplaat aantasten.
De lengte van de regelschroef van de
bevestigingshaken moet op basis van de dikte van het
keukenblad worden ingesteld
voordat de haken worden
gemonteerd:
• als de dikte 30 mm is: schroef 17,5 mm;
• als de dikte 40 mm is: schroef 7,5 mm.
Voor het bevestigen moet u als volgt te werk gaan:
1. Draai met korte, puntloze schroeven de 4
centreringsklemmen in de openingen in het midden
van elke zijde van het blad vast;
2. zet de kookplaat in het midden van de opening van
het keukenmeubel door gelijke druk uit te oefenen op
de hele omtrek totdat de kookplaat perfect aansluit op
het keukenblad.
3. voor een blad met zijprofielen: nadat u de kookplaat
in het keukenmeubel heeft geplaatst moet u de
4 bevestigingshaken aan de onderste rand van
de kookplaat vastschroeven met gepunte, lange
schroeven, net zolang tot het glas goed aan het blad
vastzit.
!
De schroeven van de centreringsklemmen moeten te
allen tijde bereikbaar blijven.
!
Volgens de veiligheidsnormen mag er geen contact
meer mogelijk zijn met de elektrische onderdelen nadat
het apparaat is ingebouwd.
!
Alle beschermende onderdelen moeten zodanig
worden bevestigd dat ze niet kunnen worden
verwijderd zonder gereedschap te gebruiken.
Elektrische aansluiting
!
De elektrische aansluitingen van de kookplaat en
de eventuele inbouwoven moeten apart worden
uitgevoerd, zowel om elektrische veiligheidsredenen
als om de oven eventueel eenvoudiger te kunnen
verwijderen.
Klemmenstrook
Aan de onderkant van het apparaat bevindt zich een
klemmenstrook voor de verschillende types elektrische
voeding (het is mogelijk dat de afbeelding niet exact
overeenkomt met het model dat u heeft aangeschaft).
Eenfasige aansluiting
De kookplaat is voorzien van
een voedingskabel bestemd
voor een eenfasige aansluiting.
Voer de draadverbinding
uit zoals aangegeven in de
volgende tabel en tekeningen:
Spanningstype
en netfrequentie
Elektrische kabel
Draadverbinding
230-240V 1+N ~
220-240V 1+N ~
50/60 Hz
: geel/groen;
N
: de 2 blauwe draden samen
L
: bruin en zwart samen
Andere soorten aansluitingen
Als het elektrische net overeenkomt met een van de
volgende karakteristieken:
Spanningstype en netfrequentie
• 400V - 2+N ~ 50/60 Hz
• 220-240V 3 ~ 50/60 Hz
• 230-240V 3 ~ 50/60 Hz
• 400V - 2+2N ~ 50/60 Hz
Scheid de kabels en voer de draadverbinding uit zoals
aangegeven in de volgende tabel en tekeningen:
Spanningstype
en netfrequentie
Elektrische kabel
Draadverbinding
400V - 2+N ~
50/60 Hz
230-240V 3 ~
220-240V 3 ~
50/60 Hz
: geel/groen;
N
: de 2 blauwe
draden samen
L1
: zwart
L2
: bruin
400V - 2+2N ~
50/60 Hz
: geel/groen;
N1
: blauw
N2
: blauw
L1
: zwart
L2
: bruin
Als het elektrische net overeenkomt met een van de
volgende karakteristieken:
Spanningstype en netfrequentie
• 400V 3 - N ~ 50/60 Hz
ga als volgt te werk:
!
De eventuele bijgeleverde kabel is niet geschikt voor
dit type installatie.
1. Gebruik een geschikte voedingskabel, type
H05RR-F of met een hogere waarde, met de juiste
afmetingen (diameter kabel: 25 mm).
2. Licht de lippen aan de zijkant van het deksel van de
klemmenstrook op met een schroevendraaier en open
hem (
zie afbeelding Klemmenstrook
).
3. Draai de schroef van de kabelklem en de schroeven
van de benodigde klemmetjes los en bevestig de
verbindingskabels volgens de aanwijzingen van de
volgende tabel en afbeeldingen.
KOOKPLAAT
ONDERSTEBOVEN

