Dell UPS 10000R: Установка и запуск
Установка и запуск: Dell UPS 10000R
Оглавление
- Примечания и предупреждения
- Функции системы
- Получение информации Что вы ищите?
- Установка и запуск
- Распаковка корпуса 1 2
- 3 4 5
- 6 7
- 8
- 9 10
- Вариант установки в стойке Для установки ИБП на направляющие: 1
- Установка направляющих 2 3 4
- Установка и фиксация корпуса 5 6 Установка полок для батарей
- 8 9 Подключение разъемов внутренних батарей 10
- Замена кронштейна крепления батареи 11 Установка передней крышки ИБП
- 13
- Подключение оборудования
- Фиксированный монтаж на входе ИБП
- Снятие крышки клеммной колодки
- Производитель Тип Номинал
- Установка входных и заземляющих проводов
- Запуск ИБП Порядок запуска ИБП 1 2 3 4 5
- 6 7 8 9
- Идентификация задней панели ИБП
- Установка и запуск
- Установка и запуск
- Установка и запуск

10 кВт 230В ИБП (DELL10KWOLHVB)
Коммуникационный
Порт
Порт
Порты
Разъем внешнего
Порты
отсек ИБП
RS-232
USB
REPO
батарейного модуля (МВБ)
REPO
Два прерывателя
Четыре гнезда
Два прерывателя
Четыре гнезда
Входная клеммная
выходного контура
IEC 320-C19
выходного контура
IEC 320-C19
колодка
Сегмент нагрузки 1(LS1) Сегмент нагрузки 2(LS2)
Установка и запуск
|
107

108
|
Установка и запуск

Dellt UPS de rack
en línea 10 kW
Cómo empezar
con su sistema
DELL10KWOLHVUS, DELL10KWOLHV, DELL10KWOLHVB
DELL10KWEBM
www.dell.com | www.support.dell.com | www.dellups.com

Notas y Advertencias
NOTA:
NOTA indica información importante que lo ayudará a utilizar mejor el software.
PELIGRO:
Un PELIGRO indica una situación inminentemente peligrosa que, si no se evita, dará como resultado la
muerte o una lesión grave.
ADVERTENCIA:
ADVERTENCIA indica una situación posiblemente peligrosa que, si no se evita, puede tener como
consecuencia la muerte o una lesión grave.
PRECAUCIÓN:
PRECAUCIÓN indica una situación potencialmente riesgosa que, si no se evita, puede provocar
una lesión moderada o leve, o incidentes de daño a la propiedad.
PELIGRO:
Siga las siguientes instrucciones para prevenir situaciones inminentemente peligrosas que, si no se
evitan, pueden producir la muerte o lesiones graves:
S
El UPS puede generar VOLTAJES LETALES. Toda reparación y servicio deberá ser realizado
EXCLUSIVAMENTE POR PERSONAL DE SERVICIO AUTORIZADO. NO HAY PIEZAS
REPARABLES POR EL USUARIO dentro del UPS o del EBM.
La información contenida en este documento está sujeta a cambiar sin previo aviso.
E 2012 Dell Inc. Todos los derechos reservados.
Queda estrictamente prohibida la reproducción, en cualquier tipo de soporte, sin el consentimiento previo por escrito de Dell Inc.
Marcas comerciales utilizadas en este texto: Dell yellogotipodeDELL son marcas comerciales de Dell Inc.
El nombre ENERGY STAR es una marca comercial registrada propiedad de la Agencia de Protección Ambiental de los Estados Unidos.
Es posible que en este documento se utilicen otras marcas y nombres comerciales para hacer referencia a las entidades que reivindican
dichas marcas y nombres o a sus productos. Dell Inc. niega cualquier interés en el derecho de propiedad de las marcas y nombres
comerciales, a excepción del propio.
Dici embre de 2012

Características del sistema
Dado que brindan rendimiento y confiabilidad sobresalientes, los beneficios exclusivos del UPS incluyen:
S
Diseño de UPS en línea con salida de onda senoidal pura.
S
Tecnología de doble conversión real en línea con densidad de alta energía, independencia de
frecuencia de servicio y compatibilidad del generador.
S
Regulación del aumento y la reducción de voltaje que garantiza un voltaje constante para la carga, al
corregir fluctuaciones.
S
El UPS filtra y regula el voltaje de CA entrante y suministra energía uniforme al equipo sin agotar la
batería.
S
Modo de operación de Alta Eficiencia seleccionable.
S
Altura del UPS 5U.
S
Función de encendido en batería para alimentar el UPS aun cuando no haya suministro eléctrico
disponible.
S
El mantenimiento se simplifica al permitir un reemplazo seguro de las baterías sin apagar el UPS.
S
La información de etiqueta de servicio de Dell puede leerse desde la pantalla LCD del panel
delantero.
S
Tiempo de ejecución extendido con un Extended Battery Module (EBM) opcional.
S
Control de apagado de emergencia a través de los puertos de apagado remoto de emergencia (REPO).
S
Dos puertos de comunicación estándar (USB y puerto serie RS--232).
S
Dell Network Management Card opcional (también conocida como NMC) con capacidades de
comunicación mejoradas para aumentar la protección y el control de la energía.
S
Environmental Monitoring Probe (EMP) opcional para recabar lecturas de temperatura y humedad en
el ambiente del bastidor y monitoreo de información ambiental a distancia. Además, puede recabar y
recuperar el estado de dos dispositivos con contacto provistos por el usuario.
S
Administración de energía avanzada con las aplicaciones de software Dellt Multi--UPS Management
Console (MUMC) and Dellt UPS Local Node Manager (ULNM) basadas en la red para apagados
apropiados y monitoreo de energía.
S
Apagado secuencial y gestión de carga mediante grupos de receptáculos separados denominados
segmentos de carga.
S
Firmware que se actualiza fácilmente sin n ecesidad de llamar al servicio técnico.
S
Respaldado por las aprobaciones de agencias de todo el mundo.
®
S
UPS certificados ENERGY STAR
.
Características del sistema
|
111

Búsqueda de información
PRECAUCIÓN:
El documento Información ambiental, normativa y de seguridad brinda información de
seguridad y regulatoria importante.
¿Qué está buscando?
Encuéntrelo aqu¨
S La guía del usuario para mi UPS
Disco del UPS de Dell
S La guía del usuario para la Dell Network
Management Card
S Dell MUMC and Dell ULNM Guías del usuario
NOTA:
Puede encontrar documentación y actualizaciones
de software en www.support.dell.com yen
www.dellups.com.
S Especificaciones
Guía del usuario del UPS de Dell
S Cómo configurar los valores del UPS
La guía del usuario e stá disponible en el disco Dell UPS
yenwww.support.dell.com.
S Cómo localizar averías y resolver los problemas
S Cómo instalar el control REPO
S Instrucciones de seguridad
Información ambiental, normativa y de seguridad
S Información re glamentaria
S Información sobre reciclaje
S Información sobre garantía
Información sobre soporte y garantía de Dell
S Términos y condiciones (solo EE.UU.)
S Acuerdo de licencia del usuario final
S Información sobre soporte
Sitio web de soporte de Dell – www.support.dell.com
NOTA:
Seleccione su región y ramo de la industria para
consultar el sitio de soporte apropiado.
112
|
Búsqueda de información

Instalación y arranque
PRECAUCIÓN:
Antes de realizar los procedimientos en este documento, lea y observe las instrucciones de
seguridad e información regulatoria importante en su documento Información ambiental, normativa y de
seguridad.
PRECAUCIÓN:
Desempacar el gabinete en un ambiente con baja temperatura puede ocasionar la
condensación dentro del gabinete o sobre éste. No instale el gabinete hasta que el interior y el exterior del
mismo estén completamente secos (existe riesgo de descarga eléctrica).
PRECAUCIÓN:
La instalación o remoción de las bandejas de baterías deberá ser realizada o supervisada por
personal capacitado en el manejo de baterías y las precauciones requeridas para lo mismo. Mantenga las
baterías fuera del alcance del personal no autorizado.
Instalación y arranque
|
113

PRECAUCIÓN:
El gabinete es pesado (99 kg/218 lb). Retire siempre ambas bandejas de baterías del UPS
antes de elevar el gabinete. Levantar la cabina al bastidor requiere de un mínimo de dos personas.
PRECAUCIÓN:
Las baterías son pesadas (32 kg/71 lb). Utilice las técnicas de levantamiento apropiadas
cuando retire las baterías.
NOTA:
Tenga mucho cuidado al trasladar y abrir la caja de cartón. Deje los componentes embalados hasta
que esté listo para instalarlos.
En la presente sección, se describen los pasos para configurar el sistema por primera vez.
Cómo desempacar el gabinete
Para desempacar el sistema:
1
Con u n montacargas o un gato para tarimas, mueva la caja de envío y la tarima cerca del bastidor
donde instalará el UPS.
2
Desprenda y quite la caja exterior.
114
|
Instalación y arranque

3
Retire las dos cajas con accesorios que se encuentran dentro de los canales en la sección superior de
Styrofoam.
4
Abra las cajas de accesorios y colóquelas cerca en una superficie plana y estable.
NOTA:
La Guía del usuario de UPS 10 kW de rack en línea Dell proporciona procedimientos de desembalaje e
instalación. Para consultarla, retírela de la caja de accesorios antes de desechar las cajas.
5
Retire la sección superior de Styrofoam y colóquela cerca en una superficie plana y estable.
Instalación y arranque
|
115

NOTA:
Las escuadras de soporte de la batería están etiquetadas con L (izquierda) y R (derecha) para indicar
dónde deben instalarse.
6
Retire ambas escuadras de soporte del UPS:
Localice las escuadras de soporte del lado izquierdo (marcado con una
L
). Del lado izquierdo del
chasis, gire el torn illo de maripo sa hacia la izquierda para liberar la escuadra de soporte izquierda.
Empuje la escuadra hacia el poste central para desengancharla del chasis. Debe balancear la escuadra
hacia usted y jalar la escuadra hacia la izquierda para retirarla. Ponga la escuadra a un lado.
Localice la escuadra de soporte del lado d erecho (marcada con una
R
). Del lado derecho del chasis,
gire el tornillo de mariposa hacia la izquierda para liberar la escuadra de soporte derecha.
Empuje la escuadra hacia el poste central para desengancharla del chasis. Debe balancear la escuadra
hacia usted y jale la escuadra hacia la derecha p ara retirarla. Ponga la escuadra a un lado.
7
Asegúrese que todos los conectores de la batería estén desconectados.
116
|
Instalación y arranque

PRECAUCIÓN:
Las baterías son pesadas (32 kg/71 lb). Utilice las técnicas de levantamiento apropiadas
cuando retire las baterías.
8
Retire las bandejas de baterías del UPS:
Retire los conectores desconectados de la batería UPS que se encuentran en la parte superior del
compartimiento de la batería.
Sujete las dos lengüetas de aro de plástico al frente de la ban deja para baterías. Jale la bandeja hacia
usted para retirarla.
NOTA:
Las etiquetas naranjas de JALE AQUÍ indican dónde agarrar las lengüetas del aro.
Coloque la bandeja para baterías sobre la sección de Styrofoam que retiró de la parte superior del
UPS.
Repita el proceso con la segunda bandeja para baterías.
Instalación y arranque
|
117

PRECAUCIÓN:
El gabinete es pesado (46 kg/ 101 lb) sin baterías. Para levantar el gabinete desde la caja de
embarque se requiere un mínimo de dos personas.
9
Con una persona de cada lado, levante con cuidado el gabinete fuera del Styrofoam utilizando las
agarraderas en el cartón.
10
Coloque el gabinete sobre una superficie plana y estable en un área protegida cerca del bastidor
donde lo instalará.
NOTA:
Asegúrese que el área tiene flujo de aire adecuado y que esté libre de humedad, gases inflamables y
corrosión.
118
|
Instalación y arranque

Configuración del montaje en bastidor
PRECAUCIÓN:
El gabinete es pesado (99 kg/218 lb). Retire siempre ambas bandejas de baterías del UPS
antes de elevar el gabinete e instalar el UPS en los rieles del bastidor. Para levantar los gabinetes y
colocarlos en el bastidor se necesitan al menos dos personas.
PRECAUCIÓN:
La instalación o remoción de las baterías deberá ser realizada o supervisada por personal
capacitado en el manejo de baterías y en las precauciones requeridas para lo mismo. Mantenga las baterías
fuera del alcance del personal no autorizado.
PRECAUCIÓN:
Las baterías son pesadas (32 kg/71 lb). Utilice las técnicas de levantamiento apropiadas
cuando retire las baterías.
PRECAUCIÓN:
Si instala un EBM opcional, el EBM se debe colocar debajo del UPS sin espacio en U entre el
UPS y el EBM. Esto ofrece una mejor distribución de peso en el bastidor, un acceso más fácil al panel de
control del UPS y a dirigir más fácilmente las conexiones de cables de las baterías. Esto también evita
tensión entre el cable del EBM y la conexión del UPS y una posible falla de conexión.
ADVERTENCIA:
Para sistemas montados en bastidor: Cuando instale múltiples sistemas en un bastidor,
realice todos los procedimientos para el sistema actual antes de intentar instalar el siguiente sistema.
NOTA:
Cada gabinete requiere rieles de montaje.
NOTA:
El gabinete se envía sin el bisel de la cubierta delantera incorporado.
NOTA:
Las siguientes instrucciones son las mismas que para los bastidores de orificios cuadrados y los
bastidores de orificios redondos y sin rosca. Los rieles sirven para ambos estilos de bastidores.
Para instalar el UPS en un bastidor:
1
Asegúrese que los siguientes elementos sean colocados sobre una superficie plana y estable cerca del
bastidor donde instalará el UPS:
S
gabinete
S
dos cajas de accesorios del UPS
S
dos bandejas de baterías (solo de UPS)
S
dos escuadras de soporte de baterías (solo de UPS)
Instalación y arranque
|
119

Instalación de los rieles
2
Retire los rieles de la caja de accesorios de juego de rieles.
3
Seleccione los orificios adecuados en el riel para colocar el gabinete en la ubicación deseada en el
bastidor.
Localice los rieles en la parte inferior del espacio 5U asignado para el UPS.
PRECAUCIÓN:
Si instala un EBM opcional, asegúrese de instalar el EBM directamente debajo del UPS sin
espacio en U entre el UPS y el EBM.
NOTA:
Observe las etiquetas en los rieles para frente derecho (etiquetado con RIGHT FRONT) y frente
izquierdo (etiquetado con LE FT FR ONT ). Esta es la forma en que se deben colocar los rieles para la instalación.
4
Coloque los rieles izquierdo y derecho como se muestra. Fije los rieles izquierdo y d erecho al
bastidor:
Acople el extremo posterior del riel hasta que se asiente completamente sobre la brida del bastidor
vertical y el pestillo del gancho se cierre en el lugar.
Tire del riel pasando el frente del bastidor.
Empuje el extremo delantero del riel hasta que se asiente completamente sobre la b rida del bastidor
vertical y el pestillo del gancho se cierre en el lugar.
120
|
Instalación y arranque

Cómo instalar y asegurar el gabinete
PRECAUCIÓN:
El gabinete es pesado (46 kg/ 101 lb) sin baterías. Levantar la cabina al bastidor requiere de
un mínimo de dos personas.
5
Deslice el gabinete sobre los rieles y en el bastidor.
6
Asegure el frente del gabinete al bastidor con los cuatro tornillos de mariposa de las escuadras de
montaje. Apriete los torn illos e n el sentido de las manecillas del reloj; no utilice herramientas
eléctricas.
Instalación de las bandejas de las baterías
Instalación y arranque
|
121

7
Localice las bandejas de baterías que colocó cerca del bastidor.
PRECAUCIÓN:
Las baterías son pesadas (32 kg/71 lb). Utilice las técnicas de levantamiento apropiadas
cuando instale las baterías.
NOTA:
Las bandejas para baterías pueden ser instaladas en cualquiera de los compartimientos para baterías.
NOTA:
Inserte la bandeja con la flecha de etiqueta de precaución apuntando hacia a rriba.
8
Instale las bandejas de baterías:
Retire los conectores de la batería UPS que se encuentran en la parte superior del compartimiento de
la batería.
Deslice la bandeja de baterías en el compartimiento de baterías completamente.
Repita el proceso para instalar la segunda b andeja para baterías.
9
Meta las lengüetas de aro en la funda de plástico en la parte delantera de cada bandeja para baterías
para quitarlas de en medio.
Conexión de los conectores internos de la batería
10
Conecte los conectores internos de la batería:
Conecte el conector de la bandeja de baterías izquierdo más alejado al conector fijo del UPS. Conecte
el conector de la bandeja de baterías derecho más alejado al conector fijo del UPS.
NOTA:
Al conectar las baterías, es posible que se forme un arco pequeño. Esto es normal y no daña la unidad
ni representa ninguna preocupación en cuanto a la seguridad.
Localice y conecte los puentes de baterías que se ubican en los lados del poste central. Coloque los
conectores en el anaquel pequeño en la parte superior d el poste central.
122
|
Instalación y arranque

NOTA:
Al conectar los puentes de la batería central se conectan en serie las dos bandejas para baterías.
Cómo reemplazar las escuadras de soporte de las baterías
Canal lateral del
chasis
Canal lateral del poste central
NOTA:
Las escuadras de soporte de la batería están etiquetadas con L (izquierda) y R (derecha) para indicar
dónde deben instalarse.
11
Reemplace las escuadras de soporte de la batería izquierda (L) y derecha (R):
Para la primera escuadra d e soporte de la batería, inserte la lengüeta de la escuadra en el canal del
lado del poste central. Acomode con cuidado los cables de la batería detrás de la escuadra de soporte.
Alinee el extremo de la escuadra de soporte de la batería con el canal lateral d el chasis. Empuje la
escuadra hasta que quede asentada firmemente en el canal lateral.
Gire la perilla en el sen tido de las manecillas del reloj para asegurar la escuadra.
Repita el procedimiento para volver a colocar la segunda escuadra de soporte de la batería.
Instalación y arranque
|
123

Instalación de la cubierta delantera del UPS
12
Retire la cubierta d elantera de la caja de accesorios.
NOTA:
Conserve el CD del software, el cable de comunicación y (si es necesario) los conectores REPO en la
caja de accesorios hasta que instale el UPS.
1
2
13
InstalelacubiertadelanteradelUPS:
Alinee la cubierta delantera con el frente del chasis.
Inserte las lengüetas d el lado derecho en la cubierta delantera dentro de las aberturas para lengüetas
del chasis d el lado derecho.
Empuje el lado izquierdo de la cubierta hacia delante y presiónela hasta que encaje en el chasis.
124
|
Instalación y arranque

NOTA:
Asegúrese de que el panel de la LCD del chasis del UPS se alinee con la ventana LCD de la cubierta
delantera antes de asegurar la cubierta al chasis.
14
Deseche o recicle el embalaje de manera responsable o guárdelo para referencia futura.
Conexión del equipo
Para instalar el UPS:
1
Si planea usar el software Dell MUMC and Dell ULNM, establezca comunicación de una de las
siguientes maneras:
S
mediante el uso de la Dell Network Management Card (si está instalada)
S
mediante el uso del cable suministrado para conectar su computadora al puerto USB.
NOTA:
Para obtener más información sobre las opciones de comunicación, consulte la Guía del usuario de
UPS 10 kW de rack en línea Dell.
2
Si el bastidor tiene conductores para la conexión a tierra o puenteo de las piezas de metal, conecte el
cable a tierra (no suministrado) al tornillo de puenteo. Consulte ”Paneles p osteriores del UPS” en la
página 132 para ubicar el tornillo de fijación a tierra de cada uno de los tres modelos.
3
Si los códigos locales solicitan un apagado (desconexión) de emergencia, consulte ”Instalación de
apagado de emergencia remoto” en la Guía del usuario de UPS 10 kW de rack en línea Dell.
4
Si está instalando un EBM opcional, consulte las instrucciones de instalación en la Guía de inicio de
EBM 10 kW de rack en línea Dell.
PRECAUCIÓN:
Si el UPS se almacena o usa sin un EBM, la cubierta del conector de batería en el panel
posterior del UPS debe estar instalada como medida de precaución.
5
Enchufe el equipo para que esté protegido en los receptáculos exteriores del UPS pero no encienda el
equipo protegido.
6
Realice todas las provisiones necesarias para retener los cables y colocar los tubos pasacables.
NOTA:
Verifique que los regímenes totales del equipo no excedan la capacidad del UPS para prevenir una
alarma de sobrecarga.
Instalación y arranque
|
125

Cableado de entrada al UPS
ADVERTENCIA:
Riesgo de descargas eléctricas. Solo el personal en servicios de reparación calificado
(tales como electricistas con licencia) podrán realizar la conexión eléctrica.
Los modelos Dell Rack en línea cableados requieren un circuito derivado dedicado que cumpla con los
siguientes requerimientos:
S
El dispositivo de protección necesita un dispositivo de desconexión de dos polos entre la entrada del
UPS y las redes eléctricas
S
El disyuntor se debe montar en la pared y d ebe estar accesible para el operador
S
Para Europa. El disyuntor debe cumplir con la norma IEC/EN 60934 y con el espacio de aire de
contacto de al menos 3 mm
S
200--240 Vca
S
Monofásico
S
50/60 Hz
S
Conducto de metal flexible (recomendado para facilitar el servicio y el mantenimiento)
Pared
Disyuntor
de dos
polos
Línea
ReddeCA
UPS
Neutral/L2
126
|
Instalación y arranque

Extracción de la cubierta del bloque de terminales
Orificio ciego
Cubierta de bloque
de terminales
1
Apague el suministro eléctrico en el punto de distribución donde estará conectado el UPS. Asegúrese
bien de que no haya corriente.
2
Retire la cubierta del bloque de terminales (dos tornillos) y consérvela.
3
Abra los orificios ciegos de la cubierta del bloque de terminales para el conducto de entrada. En el
orificio debe caber un conducto metálico intermedio (IMC) de 1” o1.5” (25.4 mm o 38.1 mm).
Instalación y arranque
|
127

PRECAUCIÓN:
Si el UPS no tiene un dispositivo de protección automática contra retroalimentación de
corriente, instale un dispositivo de aislamiento externo. Una vez que se instale el dispositivo, debe agregar
una etiqueta de advertencia con el siguiente texto o el equivalente en el contactor AC externo.
RIESGO DE RETROALIMENTACIÓN DE VOLTAJE. Aísle el UPS antes de poner en funcionamiento este circuito,
luego revise el voltaje peligroso entre todas las terminales.
Panel de distribución externo
UPS
Leyenda
QA
B
Interruptor remoto con bobina
Q
Entrada térmica de imán
L/L1
L/L1
Interruptor principal
N/L2
N/L2
A
Contactor de CA
N/L2
Neutral/L2
L/L1
Entrada de
l\xednea L1
B
La siguiente tabla enumera los dispositivos de protección de retroalimentación (conectores de AC) que se
pueden utilizar como dispositivo de aislamiento externo para la protección de retroalimentación. Utilice
solo los contactores de CA enumerados en la tabla.
Fabricante Tipo Especificación
ABB France (E12527)
220–240 Vca, 105 A
A75--30
25 HP a 208 V, 30 HP a
240 V
Tianshui 213 Electrical Apparatus Co., Ltd.
220–240 Vca, 68A
GSC1(CJX4--d)--6511
(E203071) (alternativo)
25 HP
Tianshui 213 Electrical Apparatus Co., Ltd.
220–240 Vca, 80A
GSC1(CJX4--d)--8011
(E203071) (alternativo)
30 HP
NOTA:
Aunque el UPS no contiene relevadores de protección contra retroalimentación (ABF), se ofrece cierta
medida de protección contra la misma. Por ejemplo, si algunos componentes resultan dañados en el modo de
batería, el voltaje de salida puede ser retroalimentado a la entrada. En este caso, se usa un transformador de
corriente (CT) para detectar el voltaje de retroalimentación de corriente de derivación. Si se detecta una
condición de fallo de retroalimentación de corriente, el UPS terminará la salida del inversor para evitar
lesiones personales.
128
|
Instalación y arranque

Instalación de los cables a tierra y de salida
1
2
3
4
Tire del cable de entrada a través del conducto, dejando unos 2 pies (0.5m) de cable expuesto. Sujete
una conexión de metal flexible al extremo del conducto.
5
Introduzca el conducto a través del cableado de entrada de acceso y conecte el conducto adecuado
para el panel. Pele 0.5 ” (1.5 cm) de aislante del extremo de cada cable de acometida.
6
Conecte los cables de entrada y a tierra al bloque de terminales de acuerdo a las Especificaciones de
cableado del UPS de la siguiente tabla.
Función del
Posición del
Función del cable del
Valores del tamaño del
Torsión de tensión
Cableado
terminal
UPS
cable para terminales *
Entrada
1
Puesta a tierra de
entrada
2
16--35 mm
1.7 Nm (15 lb--in)
2
En L2/Neutral
(8--2 AWG)
3
L1 pulg
* Use un mínimo:
S 8 AWG para cable de puesta a tierra de equipo, 75_C mínimo ca b le de c obre
S 4 AWG para cables de línea de entrada y neutro, 75_C mínimo ca b le de c obre
7
Vuelva a colocar la cubierta del bloque terminal.
Instalación y arranque
|
129

Arranque del UPS
Botón
Encendido/Apagado
Para iniciar el UPS:
1
Verifique que las baterías internas estén conectadas.
2
Si un EBM opcional está instalado, verifique que el EBM esté conectado al UPS. Consulte la Guía de
inicio de EBM 10 kW de rack en línea Dell para más información.
3
Compruebe que todos los interruptores del circuito del segmento d e carga se encuentren en la
posición de ENCENDIDO.
4
Encienda el interruptor principal del suministro eléctrico.
La pantalla del panel LCD del UPS se ilumina. La pantalla de reinicio de Dell cambia a la pantalla de
resumen de estado UPS. La pantalla del panel delantero del UPS muestra el icono Standby (espera)
parpadeando
.
5
Presione el botón On/Off (Encendido/Apagado) del panel delantero del UPS.
Después de finalizar el arranque, el estado cambia de acuerdo con el modo operativo del UPS.
130
|
Instalación y arranque

6
En la pantalla de resumen de estado del UPS, presione el botón para verificar las alarmas y los
avisos activos. Resuelva todas las alarmas activas antes de continuar. Consulte ”Resolución de
problemas en la Guía del usuario de UPS 10 kW de rack en línea Dell.
Si no hay ninguna alarma activa, se muestra el mensaje ”No Alarmas Activas”.
7
Verifique que el icono normal aparezca en la pantalla de resumen de estado del UPS e indique que
el UPS está funcionando normalmente y que cualquier carga está energizada.
8
Consulte en la Guía del usuario de UPS 10 kW de rack en línea Dell lo siguiente:
S
Para procedimientos de configuración si está instalado un módulo de batería extendida opcional
(EBM)
S
Para establecer la hora y la fecha y para cambiar otros valores predeterminados de fábrica:
9
Si instaló un REPO opcional, pruebe la función REPO:
Active el interruptor REPO externo. Verifique el cambio de estado en la pantalla del UPS.
Desactive el interruptor REPO externo y reinicie el UPS.
10
Cambie las baterías.
NOTA:
Las baterías internas se cargan al 90% de su capacidad en menos de tres horas. Sin embargo, debe
cargarlas durante 48 horas después de la instalación o de un almacenamiento p rolongado.
PRECAUCIÓN:
Conecte una carga a la vez y asegúrese que cada dispositivo protegido arranque por
completo antes de que conecte la siguiente carga para evitar una condición de sobrecarga del UPS.
NOTA:
Dell recomienda establecer la fecha y la hora para la resolución de problemas o para fines de garantía.
Instalación y arranque
|
131

NOTA:
En el arranque inicial, el UPS establece la frecuencia del sistema de acuerdo a la frecuencia de la
línea de entrada (la detección automática de frecuencia de entrada está habilitada de forma predeterminada)
Después del arranque inicial, la detección automática se desactiva hasta que se active manualmente con la
configuración de frecuencia de salida.
NOTA:
En el arranque inicial, la detección automática de voltaje de entrada se habilita de forma
predeterminada. Después del arranque posterior, la detección automática se desactiva hasta que se active
manualmente con la configuración de voltaje.
Identificación de paneles posteriores del UPS
Esta sección ilustra los paneles traseros de las tres opciones de m odelo UPS Dell Rack en línea 10 kW.
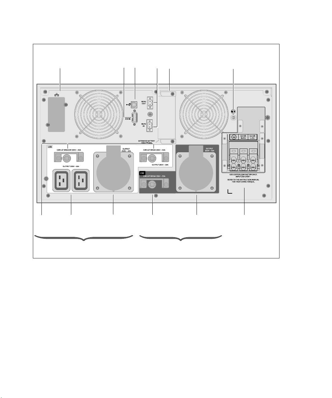
10 kW 208V UPS (DELL10KWOLHVUS)
Compartimiento de
Puerto
Puerto
Puertos
Conector
Tornillo con
comunicación del UPS
RS-232
USB
REPO
EBM
conexión a tierra
Una salida
Dos salidas IEC
Una salida
Dos salidas IEC
Bloque terminal de
NEMA L6-30R
320-C19
NEMA L6-30R
320-C19
entrada
Dos interruptores del
Dos interruptores del
circuito de salida
circuito de salida
Segmento de carga 1 (LS1)
Segmento de carga 2 (LS2)
132
|
Instalación y arranque

10 kW 230V UPS (DELL10KWOLHV)
Compartimiento de
Puerto
Puerto
Puertos
Conector
Tornillo con
comunicación del UPS
RS-232
USB
REPO
EBM
conexión a tierra
Dos
Dos receptáculos
Un receptáculo IEC
Un interruptor
Un recept\xe1culo
Bloque terminal de
interruptores
IEC 320-C19
60309 332R6S
del circuito de
IEC 60309 332R6S
entrada
del circuito
salida
de salida
Segmento de carga 1 (LS1)
Segmento de carga 2 (LS2)
Instalación y arranque
|
133

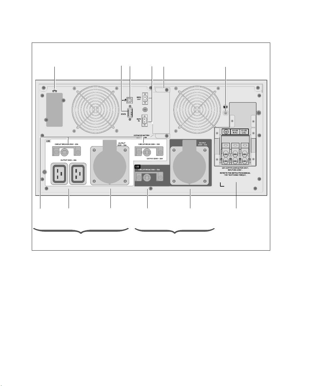
10 kW 230V UPS (DELL10KWOLHVB)
Compartimiento de
Puerto
Puerto
Puertos
Conector
Tornillo con
comunicación del UPS
RS-232
USB
REPO
EBM
conexión a tierra
Dos interruptores del
Cuatro receptáculos
Dos interruptores del
Cuatro receptáculos
Bloque terminal de
circuito de salida
IEC 320-C19
circuito de salida
IEC 320-C19
entrada
Segmento de carga 1 (LS1)
Segmento de carga 2 (LS2)
134
|
Instalación y arranque

Dellt 在线机架式 UPS
10 kW
系统使用
入门指南
DELL10KWOLHVUS, DELL10KWOLHV, DELL10KWOLHVB
DELL10KWEBM
www.dell.com | www.support.dell.com | www.dellups.com

注意和警告
注意:
“注意”表示可帮助您更好使用本软件的重要信息。
危险:
“危险”表示紧急危险情况,如果不加以避免,将导致死亡或严重的伤害。
警告:
“警告”表示潜在危险情况,如果不加以避免,可能会导致死亡或伤害。
小心:
“小心”表示潜在危险情况,如果不加以避免,可能导致轻度或中度伤害,或财产损失事故。
危险:
遵守下列须知有助于防止紧急危险情况发生,该情况若不加以避免,将导致死亡或严重的伤害:
S 本 UPS 中含有 致命性电压. 所有维修和检修工作都只应由 授权检修人员实施. 本 UPS
中 没有用户可自行维修的部件 或 EBM。
本文件所含信息如有更改,恕不另行通知。
E 2012 Dell Inc. 保留所有权利。
未经 Dell Inc. 书面许可,严禁以任何形式进行复制。
本文中使用的商标:
Dell
和
DELL
徽标是 Dell Inc. 的商标。
能源之星 (ENERGY STAR) 是美国环保署所拥有的注册商标。
本文件中可能会用到其他商标和商品名称指称对这些商标和名称或其产品拥有所有权的企业实体。 Dell Inc.
对不属于自己的商标和商品名称所带有的专有利益,不行使任何拥有权。
2012 年 12 月

系统特性
该 UPS 可提供接触的性能与可靠性,包括一下独特的优势:
S
具有纯正弦波输出的在线式 UPS 设计。
S
真正在线双转换技术,提供高功率密度,不受市电频率影响,可兼容各种发电机。
S
降压与升压调节,通过纠正电压波动确保调节后的电压能与您的用电设备相适应。
S
UPS 通过滤波和调节输入的交流电,从而为您的设备提供稳定的电力,无需消耗电池的电力。
S
可选择“高效”工作模式。
S
5U UPS 高度。
S
即使没有公用电源,电池启动功能也能给 UPS 供电。
S
不必关闭 UPS 即可安全更换电池,因此维护操作非常简便。
S
Dell 服务标牌上的信息可从正面控制面板上的 LCD 显示屏上读取到。
S
通过可选配的Extended Battery Module (EBM) 可延长其工作时间。
S
通过远程电源紧急关闭 (REPO) 端口可实现应急停机控制。
S
带有两个标准通信端口(USB 和 RS-232 串行端口)。
S
可选配 Dell Network Management Card(也称为
NMC),这样可增强通信功能,从而可获得更强的电源保护和控制。
S
可选配Environmental Monitoring Probe
(EMP),用来采集框架环境中的温度和湿度读数,并远程监控环境数据。
您还可以采集和获取两个由用户提供的接触设备的状态。
S
可使用 Dellt Multi-UPS Management Console (MUMC) and Dellt UPS Local Node
Manager (ULNM) 基于 Web 的应用软件进行高级电源管理,从而实现平滑关机和电源监控。
S
利用被称作负荷段的各独立的插座组实现顺序关机和负载管理。
S
无需拨打服务部门的电话,即可轻松对固件进行升级。
S
提供全球代理认证支持。
®
S
能源之星 (ENERGY STAR)
认证的 UPS
。
系统特性
|
137

查找信息
小心:
本
安全、环境和法规性信息
文件提供了重要的安全和法规性信息。
您要查找什么文件?
在此查找
S UPS 用户指南
Dell UPS
S Dell Network Management Card 用户指南
S Dell MUMC and Dell ULNM 用户指南
注意:
相关文档及软件更新,请访问
www.support.dell.com 及 www.dellups.com
。
138
|
查找信息
光盘
S 规格
Dell UPS 用户指南
S UPS 设置的配置方法
用户指南可从 Dell UPS 光盘和
S 诊断故障和解决问题的方法
www.support.dell.com 上获取到。
S REPO 控制装置的安装方法
S 安全操作须知
安全性、环保和法规性信息
S 法规性信息
S 回收利用信息
S 保修信息
Dell 保修和支持信息
S 条款和条件(仅限美国)
S 最终用户许可协议
S 支持信息
Dell 技术支持网站 – www.support.dell.com
注意:
选择您所属的地区或行业部门,
以查看合适的支持网站。

安装和启动
小心:
在执行本文件中的步骤之前,
请先阅读和遵循
安全、环境和法规性信息
文件中的安全操作说明和重要的法规性信息。
小心:
在低温环境下拆开机箱包装可能导致机箱及其内部发生冷凝现象。
请在机箱内外完全干燥后再安装(以防触电危险)。
小心:
电池座盘的安装或拆除应由熟知电池和所需注意事项的人员实施或指导。
未经授权的人员不得接触电池。
小心:
由于机箱较重 (99 kg/218 lb): 抬起机箱前请始终拆除两个电池盘座。
将机箱抬起放入机架至少需要两个人。
安装和启动
|
139

小心:
由于电池较重 (32 kg/71 lb)。 因此建议在拆下电池时使用适当的搬抬技巧。
注意:
搬动和打开运输箱时请小心谨慎。 在各组件可以进行安装之前,保持其处于包装状态。
本节描述首次安装系统的步骤。
机箱拆包
本系统的包装拆解:
1
使用叉车或液压车将运输箱和托盘移动到您将要安装 UPS 的地方附近。
2
拆离并移走外运输箱。
140
|
安装和启动

3
取下卡进顶部泡沫聚苯乙烯材料段中两个凹槽内的附件盒。
4
打开附件盒并放在附近平整、平坦的平面上。
注意:
Dell 在线机架式 UPS 10 kW 用户指南
给出了包装拆解和安装的步骤。
要参考此指南,请在将附件盒放在一边之前将该手册从附件盒中取出。
5
将顶部的泡沫聚苯乙烯部分取下,放在附近平整、平稳的平面上。
安装和启动
|
141

注意:
电池固定支架上带有左右侧标记 L(左)和
R(右),通过此种方式标示出了安装时它们必须位于的位置。
6
从 UPS 上取下两个固定支架:
找到左侧(带有
L
标记)的固定支架。
在机箱左侧,逆时针转动翼形螺钉以松开左固定支架。
将支架向中央立柱方向推移,以使得支架与机箱脱离。
将支架朝向自己的方向旋转,并向左拉动,以将其拆下。 将支架放在一边。
找到右侧(带有
R
标记)的固定支架。
在机箱右侧,逆时针转动翼形螺钉以松开右固定支架。
将支架向中央立柱方向推移,以使得支架与机箱脱离。
将支架朝向自己的方向旋转,并向右拉动,以将其拆下。 将支架放在一边。
7
确保所有电池接头都已断开连接。
142
|
安装和启动

小心:
由于电池较重 (32 kg/71 lb)。 因此建议在拆下电池时使用适当的搬抬工具。
8
从 UPS 取下电池座:
将电池盒顶部已断开的 UPS 电池连接器取出。
抓握住电池盘坐前部上的两个环形塑料突起。 朝着自己的方向往外拉,将其从 UPS 中拉出。
注意:
橙色拉动此处标记指示抓握环形突起的位置。
将电池盘坐放在您之前从 UPS 顶部取下的聚苯乙烯泡沫上。
对第二个电池盘座重复以上步骤。
安装和启动
|
143

小心:
取下电池的机箱仍然很重 (46 kg/101 lb)。
因此将机箱抬起放入机架中要求至少有两个人实施。
9
一人一边使用纸板上的手柄小心将机箱从外面的聚苯乙烯泡沫中取出,并放到平坦、稳定的平
面上。
10
将机箱放在靠近将用来安装本 UPS 的机架的受保护区域内的平坦、稳定的平面上。
注意:
确保该区域通风良好、干燥且不存在易燃性气体和无腐蚀情况。
144
|
安装和启动

机架的安装
小心:
由于机箱较重 (99 kg/218 lb): 抬起机箱并在机架导轨上安装 UPS 前,始终先从 UPS
取下两个电池盘座。 将机箱抬起放入机架至少需要两个人实施。
小心:
电池的安装或拆下应由熟知电池和所需注意事项的人员实施或指导。
未经授权的人员不得接触电池。
小心:
由于电池较重 (32 kg/71 lb)。 因此建议在拆下电池时使用适当的搬抬工具。
小心:
如果安装可选 EBM,EBM 必须位于 UPS 下方,并且 UPS 和 EBM 之间没有 U 空间。
这样能确保及机架中重量分布更合理、接触 UPS 控制面板更容易,以及更容易设计电池接线的线路。
这样还可以避免 EBM 线和 UPS 连接之间产生应力以及可能的连接故障。
警告:
对于机架安装的系统:
在机架中安装多个系统时,完成当前系统的所有程序然后尝试安装下一个系统。
注意:
需要为每个机箱安装导轨。
注意:
机箱是在前面罩挡板未安装的状态下进行运输的。
注意:
以下说明对于方孔机架和无螺纹圆孔机架是相同的。 这些导轨匹配这两种机架。
在机架中安装 UPS:
1
确保以下部件被放置在用来安装本 UPS 的机架附近的平坦、稳定的平面上:
S
机箱
S
两个 UPS 附件盒
S
两个电池盘座(仅 UPS)
S
两个电池固定支架(仅 UPS)
安装和启动
|
145

安装导轨
2
将导轨从导轨套件的附件盒上拆下。
3
在导轨上选择合适的孔将机箱定位于机架中预定的位置。
将导轨定位于分配给 UPS 的 5U 空间的底部。
小心:
如果安装可选 EBM,EBM 必须位于 UPS 下方,并且 UPS 和 EBM 之间没有 U 空间。
注意:
要确定哪是右前部(标记有右前部)和哪是左前部(标记有左前部),可观察导轨上的标签。
这是放置导轨进行安装的方法。
4
按照图示的位置对左右导轨进行定位。 将左右导轨安装到机架上去:
啮合导轨的后端,直到其完全卡在纵向机架法兰上,并且钩锁锁定在其位置上。
拉动导轨刚好超出机架前部。
推动导轨的前端,直到其完全卡在机架纵向法兰上,并且钩锁锁定到位为止。
146
|
安装和启动

安装和固定机箱
小心:
取下电池的机箱仍然很重 (46 kg/101 lb)。 将机箱抬起放入机架至少需要两个人。
5
将机箱滑到导轨上,然后滑至机架中。
6
用固定架上的四个翼形螺钉将机箱前端固定到安装机架上。
用手顺时针拧紧翼形螺钉,不要使用电动工具。
电池盘座的安装
7
将您取出的电池盘座放在机架附近。
小心:
由于电池较重 (32 kg/71 lb)。 因此建议在安装电池时使用适当的搬抬工具。
注意:
电池盘座可安装在任意一个电池盒中。
注意:
将盘座插入,警告标签箭头朝上。
安装和启动
|
147

8
安装电池盘座:
将电池盒顶部的 UPS 电池连接器取出。
将电池盘座完全滑入电池盒。
对第二个电池盘座重复以上步骤。
9
将环形突起卡入到每个电池盘座正面上的塑料套中,以将这些环形突起移开,给下一步安装腾
出空间。
电池接头的连接
10
连接内部电池连接器:
将最左端的盘座接头连接到固定的 UPS 连接器。将最右端的盘座接头连接到固定的 UPS
连接器。
注意:
连接电池时可能会出现少量电弧。
这是正常现象,不会损坏本设备或导致任何安全上的担忧。
找到并连接中央立柱任一侧的电池跳线。将接头放在中央立柱顶部处的小搁架上。
注意:
连接好中央电池跳线后,以串联的方式将两个电池盘座连接在一起。
148
|
安装和启动

电池固定支架的更换
机箱侧面凹槽
中央立柱侧面凹槽
注意:
电池固定支架上带有左右侧标记 L(左)和
R(右),通过此种方式标示出了安装时它们必须位于的位置。
11
更换左侧(L 标记)和右侧(R 标记)电池固定支架:
对于第一个电池固定支架,将支架突起插入中央立柱侧面的凹槽中。
将连接好的电池接线紧贴在固定支架后面。
将电池固定支架的末端与机箱侧面的凹槽对齐。 推动支架直到牢固位于侧面凹槽中。
顺时针旋转翼形螺钉,以将支架固定。
更换第二个电池固定支架可重复以上步骤。
安装 UPS 前盖
12
将前部罩盖从附件盒中取出。
安装和启动
|
149

注意:
在安装 UPS 之前不要将软件 CD 光盘、通信缆线以及(如果需要)REPO
连接器从附件盒中取出。
1
2
13
安装 UPS 前盖:
将前部罩盖与机箱正面对正。
将前罩盖右侧突起插入右侧机箱的突起开口。
将罩盖的左侧向前推,将其卡在机箱上。
注意:
将罩盖固定到机箱上之前,确保 UPS 机箱上的 LCD 显示屏与前部罩盖上的 LCD
显示屏窗框对正。
14
以负责任的态度将包装丢弃或回收利用,或者收起存放以备将来使用。
150
|
安装和启动

连接设备
要安装 UPS,请在以下情况下执行以下步骤:
1
如果您要使用 Dell MUMC and Dell ULNM 软件,请按以下任一方法建立通信连接:
S
使用 Dell Network Management Card (如果有安装)
S
使用所提供的线缆将您的计算机与 USB 端口连接
注意:
更多关于通信选项的信息,见
Dell 在线机架式 UPS 10 kW 用户指南
。
2
如果机架带有接地或连接不接地金属块的导体,请将接地线(未提供)与接地螺钉连接。
参见第 158 页的“UPS 后面板”了解这三种型号接地螺钉的位置。
3
如果地方法规要求使用应急电源关闭(断开)开关,请参见
Dell 在线机架式 UPS 10 kW
用户指南
中的“安装远程应急电源关闭”。
4
如果安装可选 EBM,请参考 Dell 在线机架式 10 kW EBM 入门指南 了解安装说明。
小心:
如果 UPS 在无 EBM 的情况下储存或使用,作为一项安全措施,必须在 UPS
的后面板上安装电池连接器护盖。
5
将需要保护的设备插入到 UPS 输出插座中,不要启动受保护设备的电源。
6
做好所有必要的准备措施,以固定电源线并消除应变的固定和应变释放。
注意:
验证设备的总额定值不超过 UPS 的容量,以防止出现过载警报。
安装和启动
|
151

UPS 输入端的硬连线
警告:
触电的危险。 电气安装工作只能由合格的检修人员(例如持照电工)实施。
Dell 在线机架式对于硬连线机型,还需连接满足以下要求的专用分支电路:
S
保护设备要求在 UPS 输出和主电源之间有两相断开设备
S
断路器必须安装在墙壁上,并且便于操作人员进行接触
S
欧洲。 断路器必须符合 IEC/EN 60934 标准,且接触空隙至少为 3 mm
S
200–240 Vac
S
单相
S
50/60 Hz
S
金属软管(推荐使用,以方便检修和维护保养)
墙壁
双相断路
器
电线
交流电源
UPS
零线/L2
152
|
安装和启动

取下接线端子模块外盖
敲打孔
接线端子模块外盖
1
在连接 UPS 的分线点处关闭市电电源。 绝对确保未通电。
2
取下接线端子模块外盖(2 个螺钉),并保存。
3
取下接线端子模块外盖上用于输导管的敲打孔。 此孔其孔径必须能容纳 1”或 1.5”(25.4 mm
或 38.1 mm)的中间金属导管 (IMC)。
安装和启动
|
153

小心:
如果 UPS 没有针对电流反馈的自动保护设备,请安装外部绝缘设备。
设备安装后,必须在外部交流接触器上贴附一个写有以下语句或类似内容的警告标签:
危险, 电压 倒供。 在对此电路操作前将 UPS 隔离,然后检查所有端子之间是否存在危险电压。
外配电板
UPS
图例
QT
B
线圈远程开关
Q
磁热输入
L/L1
L/L1
主开关
N/L2
N/L2
T
AC 接触器
N/L2
零线/L2
L/L1
L1 输入线
B
下表列出可用作外部隔离设备以进行反向馈电保护的反向馈电保护设备(AC 接触器)。 仅使用表中列出的
AC 接触器。
制造商
类型 额定值
ABB France (E12527)
220–240 Vac, 105A
A75-30
25 HP 208V, 30HP
240V
天水二一三电器有限公司 (E203071)
220–240 Vac, 68A
GSC1(CJX4-d)-6511
(替代)
25 HP
天水二一三电器有限公司 (E203071)
220–240 Vac, 80A
GSC1(CJX4-d)-8011
(替代)
30 HP
注意:
尽管本 UPS 中不含有防反向馈电 (ABF) 继电器,但仍然提供有一定程度的反向馈电保护。
例如,如果在电池供电模式下某些组件被损坏,输出电压可能会反向供给输入端。
在这种情况下,就使用变流器 (CT) 检测旁路电流反向馈电电压。
如果检测到存在有电流反向馈电故障状态,则 UPS 会终止逆变器的输出,避免对人员造成人身伤害。
154
|
安装和启动

安装输入线和接地线
1
2
3
4
将输入接线穿过导管,留 2 英尺(0.5 米)长的线露出。 将金属软接头连接到导管的一端。
5
将导管插入配线进口,将导管接头连接到面板上。 从每根进线的末端剥下 0.5”(1.5
厘米)的绝缘层。
6
按照下表的 UPS 配线规格将输入和地线连接到接线端子模块。
端子线的尺寸 和额定
接线功能 接线端子的位置 UPS 接线的功能
紧固力矩
值*
输入
1
将输入端接地
2
16–35 mm
2
L2/零线接入
1.7 Nm (15 lb-in)
(8–2 AWG)
3
L1 接入
* 采用的接线的最低规格:
S 8对于设备接地线,最低采用 AWG、75_C 的铜线
S 4对于输入线和零线,最低采用 AWG、75_C 的铜线
7
更换接线端子模块的外盖。
安装和启动
|
155

启动 UPS
开/关按钮
要启动 UPS,请执行以下步骤:
1
确保内部电池已连好。
2
如果安装了可选的 EBM,确认 EBM 已与 UPS 连接。 更多信息,请参阅Dell 在线机架式
10 kW EBM 入门指南。
3
确保所有负荷段断路器都处于开启位置。
4
开启主市电电源断路器。
UPS 的 LCD 显示屏亮起。 Dell 开机屏幕变为 UPS 状态汇总屏幕。 UPS
前面板显示屏上显示出正在闪烁的“待机”图标
。
5
按下 UPS 前面板上的开/关按钮。
启动完成后,状态根据 UPS 工作模式改变。
156
|
安装和启动

6
在 UPS 状态汇总屏幕上,按下 按钮,查看活动警报或注意。
解除所有已激活的警报后再继续。 参见
Dell 在线机架式 UPS 10 kW
用户指南
中的“故障处理”。
如果没有活动警报,会出现“无报警”信息。
7
确认“正常(Normal) 图标 显示在 UPS 状态汇总屏幕上,这表明 UPS
运转正常,任何负载都有电力供给。
8
以下信息,请参阅
Dell 在线机架式 UPS 10 kW 用户指南
。
S
有关安装可选扩展电池模块 (EBM) 后的配置程序
S
设置日期和时间,更改其他出厂默认设置
9
如果您安装了可选的 REPO,则请测试 REPO 功能:
开启外部 REPO 开关。 检查 UPS 显示屏上是否有状态变化。
将外部 REPO 开关置于关状态,重启 UPS。
10
对电池进行充电。
注意:
内置电池在不到 3 小时内可充至 90% 的电量。 但是,电池在安装或长期存放后必须充电 48
小时。
小心:
为避免 UPS 过载情况,请一次连接一个设备,
并确保每个保护的设备完全启动后再连接下一个设备。
注意:
Dell 建议设置日期和时间用于故障排除或保修。
注意:
初始启动时,UPS 根据输入接线的频率
(默认情况下输入频率自动侦测功能会开启)设置系统频率。
初始启动之后,自动感测功能会被禁用,直至您通过设置输出频率手动重新开启。
安装和启动
|
157

注意:
初始启动时,默认将输入输入电压自动侦测功能开启。
以后启动之后,自动感测功能会被禁用,直至您通过设置输出电压手动重新开启。
识别 UPS 后面板
本节介绍三个 Dell 在线机架式 10 kW UPS 型号的后面板。
10 kW 208V UPS (DELL10KWOLHVUS)
RS-232
USB
REPO
EBM
UPS 通信槽
端口
端口
端口
连接器
地脚螺钉
一个 NEMA L6-30R
两个 IEC
一个 NEMA
两个 IEC
输入接线端子模
电源插座
320-C19
L6-30R 电源插座
320-C19
块
电源插座
电源插座
两个输出电路
两个输出电路
断路器
断路器
负荷段 1 (LS1)
负荷段 2 (LS2)
158
|
安装和启动

10 kW 230V UPS (DELL10KWOLHV)
RS-232
USB
REPO
EBM
UPS 通信槽
端口
端口
端口
连接器
地脚螺钉
两个输出
两个 IEC
一个 IEC 60309
一个输出
一个 IEC 60309
输入接线端子模
电路断路
320-C19
332R6S 插座
电路断路
332R6S 插座
块
器
电源插座
器
负荷段 1 (LS1)
负荷段 2 (LS2)
安装和启动
|
159

10 kW 230V UPS (DELL10KWOLHVB)
RS-232
USB
REPO
EBM
UPS 通信槽
端口
端口
端口
连接器
地脚螺钉
两个输出电路断
四个 IEC
两个输出电路断
四个 IEC
输入接线端子模块
路器
320-C19 插座
路器
320-C19 插座
负荷段 1 (LS1) 负荷段 2 (LS2)
160
|
安装和启动

Dellt 在線機架式 UPS
10 kW
系統使用
入門指南
DELL10KWOLHVUS, DELL10KWOLHV, DELL10KWOLHVB
DELL10KWEBM
www.dell.com | www.support.dell.com | www.dellups.com

注意和警告
注意:
「注意」表示可幫助您更好使用本軟件的重要信息。
危險:
「危險」表示緊急危險情況,如果不加以避免,將導致死亡或嚴重的傷害。
警告:
「警告」表示潛在危險情況,如果不加以避免,可能會導致死亡或傷害。
小心:
「小心」表示潛在危險情況,如果不加以避免,可能導致輕度或中度傷害,或財產損失事故。
危險:
遵守下列須知有助於防止緊急危險情況發生,該情況若不加以避免,將導致死亡或嚴重的傷害:
S
本 UPS 中含有 致命性電壓. 所有維修和檢修工作都只應由 授權檢修人員實施.
本 UPS 中 沒有使用者可自行維修的部件 或 EBM。
本文件所含信息如有變更,恕不另行通知。
E 2012 Dell Inc. 保留所有權利。
未經 Dell Inc. 書面許可,嚴禁以任何形式進行複制。
本文中使用的商標:
Dell
和
DELL
徽標是 Dell Inc. 的商標。
能源之星 (ENERGY STAR) 是美國環保署所擁有的註冊商標。
本文件中可能會用到其他商標和商品名稱指稱對這些商標和名稱或其產品擁有所有權的企業實體。 Dell Inc.
對不屬於自己的商標和商品名稱所帶有的專有利益,不行使任何擁有權。
2012 年 12 月

系統特性
該 UPS 可提供傑出的性能與可靠性,包括下列獨有優勢:
S
具有純正弦波輸出的在線式 UPS 設計。
S
真正在線雙轉換技術,提供高功率密度,不受市電頻率影響,可兼容各種發電機。
S
降壓與升壓調節,透過糾正電壓波動確保調節後的電壓能與您的用電設備相適應。
S
UPS 透過濾波和調節輸入的交流電,從而為您的設備提供穩定的電力,無需消耗電池的電力。
S
可選擇的「高效能」操作模式。
S
5U UPS 高度。
S
即使沒有公用電源,電池啟動功能也能給 UPS 供電。
S
不必關閉 UPS 即可安全更換電池,因此維護操作非常簡便。
S
Dell 服務標牌上的信息可從正面控制面板上的 LCD 顯示屏上讀取到。
S
透過可選配的External Battery Module (EBM) 可延長其工作時間。
S
透過遠程電源緊急關閉 (REPO) 端口可實現應急停機控制。
S
帶有兩個標准通訊端口(USB 和 RS-232 串行端口)。
S
可選配 Dell Network Management Card(也稱為
NMC),這樣可增強通訊功能,從而可獲得更強的電源保護和控制。
S
可選配Powerware Environmental Monitoring Probe
(EMP),用來采集框架環境中的溫度和濕度讀數,並遠程監控環境數據。
您還可以采集和獲取兩個由使用者提供的接觸設備的狀態。
S
可使用 Dellt Multi-UPS Management Console (MUMC) and Dellt UPS Local Node
Manager (ULNM) 基於 Web 的應用軟件進行高級電源管理,從而實現平滑關機和電源監控。
S
利用被稱作負荷段的各獨立的插座組實現順序關機和負載管理。
S
無需撥打服務部門的電話,即可輕松對固件進行升級。
S
提供全球代理認證支持。
®
S
能源之星 (ENERGY STAR)
認證的 UPS。
系統特性
|
163

查找信息
小心:
本
安全、環境和法規性信息
文件提供了重要的安全和法規性信息。
您要查找什麼文件?
在此查找
S UPS 用戶指南
S Dell Network Management Card 用户指南
S Dell MUMC and Dell ULNM 用户指南
注意: 相關文檔及軟件更新,請訪問
www.support.dell.com
及
www.dellups.com
。
164
|
查找信息
D
ell
U
PS 光盤
S 規格
Dell UPS 使用者指南
S 如何配置 UPS 的設定
使用者指南可從 Dell UPS 光盤和
S 如何診斷故障和解決問題
www.support.dell.com 上獲取到。
S 如何安裝 REPO 控制裝置
S 安全操作須知
安全、環境和法規性信息
S 法規性信息
S 回收利用信息
S 保修信息
Dell 保修和支持信息
S 條款和條件(僅限美國)
S 最終使用者許可協議
S 支持信息
Dell 技術支持網站 – www.support.dell.com
注意: 選擇您所屬的地區或行業部門,
以查看合適的支持網站。

安裝和啟動
小心:
在執行本文件中的步驟之前,請先閱讀和遵循
安全、環境和法規性信息
文件中的安全操作說明和重要
的法規性信息。
小心:
在低溫環境下拆開機箱包裝可能導致機箱及其內部發生冷凝現象。
請在機箱內外完全幹燥後再安裝(以防觸電危險)。
小心:
電池座盤的安裝或拆除應由熟知電池和所需注意事項的人員實施或指導。
未經授權的人員不得接觸電池。
安裝和啟動
|
165

小心:
由於機箱較重 (99 kg/218 lb): 抬起機箱前請始終拆除兩個電池盤座。
將機箱抬起放入機架至少需要兩個人。
小心:
由於電池較重 (32 kg/71 lb)。 因此建議在拆下電池時使用適當的搬抬工具。
注意:
搬動和打開運輸箱時請小心謹慎。 在各組件可以進行安裝之前,保持其處於包裝狀態。
本節描述首次安裝系統的步驟。
機箱拆包
本系統的包裝拆解:
1
使用叉車或液壓車將運輸箱和托盤移動到您將要安裝 UPS 的地方附近。
2
拆離並移走外運輸箱。
166
|
安裝和啟動

3
取下卡進頂部泡沫聚苯乙烯材料段中兩個凹槽內的附件盒。
4
打開附件盒並放在附近平整、平坦的平面上。
注意:
Dell 在線機架式 UPS 10 kW 使用者指南
給出了包裝拆解和安裝的步驟。
要參考此指南,請在將附件盒放在一邊之前將該手冊從附件盒中取出。
5
將頂部的泡沫聚苯乙烯部分取下,放在附近平整、平穩的平面上。
安裝和啟動
|
167

注意:
電池固定支架上帶有左右側標記 L(左)和
R(右),透過此種方式標示出了安裝時它們必須位於的位置。
6
從 UPS 上取下兩個固定支架:
找到左側(帶有
L
標記)的固定支架。
在機箱左側,逆時針轉動翼形螺釘以松開左固定支架。
將支架向中央立柱方向推移,以使得支架與機箱脫離。
將支架朝向自己的方向旋轉,並向左拉動,以將其拆下。 將支架放在一邊。
找到右側(帶有
R
標記)的固定支架。
在機箱右側,逆時針轉動翼形螺釘以松開右固定支架。
將支架向中央立柱方向推移,以使得支架與機箱脫離。
將支架朝向自己的方向旋轉,並向右拉動,以將其拆下。 將支架放在一邊。
7
確保所有電池接頭都已斷開連接。
168
|
安裝和啟動

小心:
由於電池較重 (32 kg/71 lb)。 因此建議在拆下電池時使用適當的搬抬工具。
8
從 UPS 取下電池座:
將電池盒頂部已斷開的 UPS 電池連接器取出。
抓握住電池盤坐前部上的兩個環形塑料突起。 朝著自己的方向往外拉,將其從 UPS 中拉出。
注意:
橙色
標記指示抓握環形突起的位置。
將電池盤坐放在您之前從 UPS 頂部取下的聚苯乙烯泡沫上。
對第二個電池盤座重複以上步驟。
安裝和啟動
|
169

小心:
取下電池的機箱仍然很重 (46 kg/101 lb)。
因此將機箱抬起放入機架中要求至少有兩個人實施。
9
一人一邊使用紙板上的手柄小心將機箱從外面的聚苯乙烯泡沫中取出,並放到平坦、穩定的平
面上。
10
將機箱放在靠近將用來安裝本 UPS 的機架的受保護區域內的平坦、穩定的平面上。
注意:
確保該區域通風良好、幹燥且不存在易燃性氣體和無腐蝕情況。
170
|
安裝和啟動

機架的安裝
小心:
由於機箱較重 (99 kg/218 lb): 抬起機箱並在機架導軌上安裝 UPS 前,始終先從 UPS
取下兩個電池盤座。 將機箱抬起放入機架至少需要兩個人實施。
小心:
電池的安裝或拆下應由熟知電池和所需注意事項的人員實施或指導。
未經授權的人員不得接觸電池。
小心:
由於電池較重 (32 kg/71 lb)。 因此建議在拆下電池時使用適當的搬抬工具。
小心:
如果安裝可選 EBM,EBM 必須位於 UPS 下方,並且 UPS 和 EBM 之間沒有 U 空間。
這樣能確保及機架中重量分布更合理、接觸 UPS 控制面板更容易,以及更容易設計電池接線的線路。
這樣還可以避免 EBM 線和 UPS 連接之間產生應力以及可能的連接故障。
警告:
對於機架安裝的系統:
在機架中安裝多個系統時,完成當前系統的所有程序然後嘗試安裝下一個系統。
注意:
需要為每個機箱安裝導軌。
注意:
機箱是在前面罩擋板未安裝的狀態下進行運輸的。
注意:
以下說明對於方孔機架和無螺紋圓孔機架是相同的。 這些導軌匹配這兩種機架。
在機架中安裝 UPS:
1
確保以下部件被放置在用來安裝本 UPS 的機架附近的平坦、穩定的平面上:
S
機箱
S
兩個 UPS 附件盒
S
兩個電池盤座(僅 UPS)
S
兩個電池固定支架(僅 UPS)
安裝和啟動
|
171

安裝導軌
2
將導軌從導軌套件的附件盒上拆下。
3
在導軌上選擇合適的孔將機箱定位於機架中預定的位置。
將導軌定位於分配給 UPS 的 5U 空間的底部。
小心:
如果安裝可選 EBM,EBM 必須位於 UPS 下方,並且 UPS 和 EBM 之間沒有 U 空間。
注意:
要確定哪是右前部(標記有右前部)和哪是左前部(標記有左前部),可觀察導軌上的標簽。
這是放置導軌進行安裝的方法。
4
按照圖示的位置對左右導軌進行定位。 將左右導軌安裝到機架上去:
齧合導軌的後端,直到其完全卡在縱向機架法蘭上,並且鉤鎖鎖定在其位置上。
拉動導軌剛好超出機架前部。
推動導軌的前端,直到其完全卡在機架縱向法蘭上,並且鉤鎖鎖定到位為止。
172
|
安裝和啟動

安裝和固定機箱
小心:
取下電池的機箱仍然很重 (46 kg/101 lb)。 將機箱抬起放入機架至少需要兩個人。
5
將機箱滑到導軌上,然後滑至機架中。
6
用固定架上的四個翼形螺釘將機箱前端固定到安裝機架上。
用手順時針擰緊翼形螺釘,不要使用電動工具。
電池盤座的安裝
7
將您取出的電池盤座放在機架附近。
小心:
由於電池較重 (32 kg/71 lb)。 因此建議在安裝電池時使用適當的搬抬工具。
注意:
電池盤座可安裝在任意一個電池盒中。
注意:
將盤座插入,警告標簽箭頭朝上。
安裝和啟動
|
173

8
安裝電池盤座:
將電池盒頂部的 UPS 電池連接器取出。
將電池盤座完全滑入電池盒。
對第二個電池盤座重複以上步驟。
9
將環形突起卡入到每個電池盤座正面上的塑料套中,以將這些環形突起移開,給下一步安裝騰
出空間。
電池接頭的連接
10
連接內部電池連接器:
將最左端的盤座接頭連接到固定的 UPS 連接器。 將最右端的盤座接頭連接到固定的 UPS
連接器。
注意:
連接電池時可能會出現少量電弧。
這是正常現象,不會損壞本設備或導致任何安全上的擔憂。
找到並連接中央立柱任一側的電池跳線。 將接頭放在中央立柱頂部處的小擱架上。
注意:
連接好中央電池跳線後,以串聯的方式將兩個電池盤座連接在一起。
174
|
安裝和啟動

電池固定支架的更換
機箱側面凹槽
中央立柱側面凹槽
注意:
電池固定支架上帶有左右側標記 L(左)和
R(右),透過此種方式標示出了安裝時它們必須位於的位置。
11
更換左側(L 標記)和右側(R 標記)電池固定支架:
對於第一個電池固定支架,將支架突起插入中央立柱側面的凹槽中。
將連接好的電池接線緊貼在固定支架後面。
將電池固定支架的末端與機箱側面的凹槽對齊。 推動支架直到牢固位於側面凹槽中。
順時針旋轉翼形螺釘,以將支架固定。
更換第二個電池固定支架可重複以上步驟。
安裝 UPS 前蓋
12
將前部罩蓋從附件盒中取出。
安裝和啟動
|
175

注意:
在安裝 UPS 之前不要將軟件 CD 光盤、通訊纜線以及(如果需要)REPO
連接器從附件盒中取出。
1
2
13
安裝 UPS 前蓋:
將前部罩蓋與機箱正面對正。
將前罩蓋右側突起插入右側機箱的突起開口。
將罩蓋的左側向前推,將其卡在機箱上。
注意:
將罩蓋固定到機箱上之前,確保 UPS 機箱上的 LCD 顯示屏與前部罩蓋上的 LCD
顯示屏窗框對正。
14
以負責任的態度將包裝丟棄或回收利用,或者收起存放以備將來使用。
176
|
安裝和啟動

連接設備
要安裝 UPS,請在以下情況下執行以下步驟:
1
如果您要使用 Dell MUMC and Dell ULNM 軟件,請按以下任一方法建立通訊連接:
S
使用 Dell Network Management Card (如果有安裝)
S
使用所提供的線纜將您的計算機與 USB 端口連接
注意:
更多關於通訊選項的信息,見
Dell 在線機架式 UPS 10 kW 使用者指南
。
2
如果機架帶有接地或連接不接地金屬塊的導體,請將接地線(未提供)與接地螺釘連接。
參見第 184 頁的「UPS 後面板」了解這三種型號接地螺釘的位置。
3
如果地方法規要求使用應急電源關閉(斷開)開關,請參見
Dell 在線機架式 UPS 10 kW
使用者指南
中的「安裝遠程應急電源關閉」。
4
如果安裝可選 EBM,請參考
Dell 在線機架式 EBM 10
kW 系統使用 入門指南
了解安裝說明。
小心:
如果 UPS 在無 EBM 的情況下儲存或使用,作為一項安全措施,必須在 UPS
的後面板上安裝電池連接器護蓋。
5
將需要保護的設備插入到 UPS 輸出插座中,不要啟動受保護設備的電源。
6
做好所有必要的准備措施,以固定電源線並消除應變的固定和應變釋放。
注意:
驗證設備的總額定值不超過 UPS 的容量,以防止出現過載警報。
安裝和啟動
|
177

UPS 輸入端的硬連線
警告:
觸電的危險。 電氣安裝工作只能由合格的檢修人員(例如持照電工)實施。
Dell Rack對於硬連線機型,還需連接滿足以下要求的專用分支電路:
S
保護設備要求在 UPS 輸出和主電源之間有兩相斷開設備
S
斷路器必須安裝在牆壁上,並且便於操作人員進行接觸
S
歐洲。 斷路器必須符合 IEC/EN 60934 標准,且接觸空隙至少為 3 mm
S
200–240 Vac
S
單相
S
50/60 Hz
S
金屬軟管(推薦使用,以方便檢修和維護保養)
牆壁
雙相斷路
器
電線
交流電源
UPS
零線/L2
178
|
安裝和啟動

取下接線端子模塊外蓋
敲打孔
接線端子模塊外
蓋
1
在連接 UPS 的分線點處關閉市電電源。 絕對確保未通電。
2
取下接線端子模塊外蓋(2 個螺釘),並保存。
3
取下接線端子模塊外蓋上用於輸導管的敲打孔。 此孔其孔徑必須能容納 1”或 1.5”(25.4 mm
或 38.1 mm)的中間金屬導管 (IMC)。
安裝和啟動
|
179

小心:
如果 UPS 沒有針對電流反饋的自動保護設備,請安裝外部絕緣設備。
設備安裝後,必須在外部交流接觸器上貼附一個寫有以下語句或類似內容的警告標簽:
危險, 電壓 倒供。 在對此電路操作前將 UPS 隔離,然後檢查所有端子之間是否存在危險電壓。
外配電板
UPS
圖例
QT
B
線圈遠程開關
Q
磁熱輸入
L/L1
L/L1
主開關
N/L2
N/L2
T
AC 接觸器
N/L2
零線/L2
L/L1
L1 輸入線
B
下表列出可用作外部隔離設備以進行反向饋電保護的反向饋電保護設備(AC 接觸器)。
僅使用表中列出的 AC 接觸器。
制造商 類型 額定值
ABB France (E12527)
220–240 Vac, 105A
A75-30
25 HP 208V, 30HP
240V
天水二一三電器有限公司 (E203071)
220–240 Vac, 68A
GSC1(CJX4-d)-6511
(替代)
25 HP
天水二一三電器有限公司 (E203071)
220–240 Vac, 80A
GSC1(CJX4-d)-8011
(替代)
30 HP
注意:
盡管本 UPS 中不含有防反向饋電 (ABF) 繼電器,但仍然提供有一定程度的反向饋電保護。
例如,如果在電池供電模式下某些組件被損壞,輸出電壓可能會反向供給輸入端。
在這種情況下,就使用變流器 (CT) 檢測旁路電流反向饋電電壓。
如果檢測到存在有電流反向饋電故障狀態,則 UPS 會終止逆變器的輸出,避免對人員造成人身傷害。
180
|
安裝和啟動

安裝輸入線和接地線
1
2
3
4
將輸入接線穿過導管,留 2 英尺(0.5 米)長的線露出。 將金屬軟接頭連接到導管的一端。
5
將導管插入配線進口,將導管接頭連接到面板上。 從每根進線的末端剝下 0.5”(1.5
厘米)的絕緣層。
6
按照下表的 UPS 配線規格將輸入和地線連接到接線端子模塊。
端子線的尺寸 和額定
接線功能 接線端子的位置 UPS 接線的功能
緊固力矩
值*
輸入
1
將輸入端接地
2
16–35 mm
2
L2/零線接入
1.7 Nm (15 lb-in)
(8–2 AWG)
3
L1 接入
* 采用的接線的最低規格:
S 8對於設備接地線,最低采用 AWG、75_C 的銅線
S 4對於輸入線和零線,最低采用 AWG、75_C 的銅線
7
更換接線端子模塊的外蓋。
安裝和啟動
|
181

啟動 UPS
開/關按鈕
要啟動 UPS,請執行以下步驟:
1
確保內部電池已連好。
2
如果安裝了可選的 EBM,確認 EBM 已與 UPS 連接。 更多信息,請參閱
Dell 在線機架式
EBM 10
kW 系統使用 入門指南。
3
確保所有負荷段斷路器都處於開啟位置。
4
開啟主市電電源斷路器。
UPS 的 LCD 顯示屏亮起。 Dell 開機屏幕變為 UPS 狀態匯總屏幕。 UPS
前面板顯示屏上顯示出正在閃爍的「待機」圖標
。
5
按下 UPS 前面板上的開/關按鈕。
啟動完成後,狀態根據 UPS 工作模式改變。
182
|
安裝和啟動

6
在 UPS 狀態匯總屏幕上,按下 按鈕,查看活動警報或注意。
解除所有已激活的警報後再繼續。 參見
Dell 在線機架式 UPS 10 kW
使用者指南
中的「故障處理」。
如果沒有活動警報,會出現「無報警」信息。
7
確認「正常」(Normal) 圖標 顯示在 UPS 狀態匯總屏幕上,這表明 UPS
運轉正常,任何負載都有電力供給。
8
以下信息,請參閱
Dell 在線機架式 UPS 10 kW 使用者指南
。
S
有關安裝可選擴展電池模塊 (EBM) 後的配置程序
S
設定日期和時間,變更其他出廠默認設定
9
如果您安裝了可選的 REPO,則請測試 REPO 功能:
開啟外部 REPO 開關。 檢查 UPS 顯示屏上是否有狀態變化。
將外部 REPO 開關置於關狀態,重啟 UPS。
10
對電池進行充電。
注意:
內置電池在不到 3 小時內可充至 90% 的電量。 但是,電池在安裝或長期存放後必須充電 48
小時。
小心:
為避免 UPS
過載情況,請一次連接一個設備,並確保每個保護的設備完全啟動後再連接下一個設備。
注意:
Dell 建議設定日期和時間用於故障排除或保修。
注意:
初始啟動時,UPS
根據輸入接線的頻率(默認情況下輸入頻率自動偵測功能會開啟)設定系統頻率。
初始啟動之後,自動感測功能會被禁用,直至您透過設定輸出頻率手動重新開啟。
安裝和啟動
|
183

注意:
初始啟動時,默認將輸入輸入電壓自動偵測功能開啟。
以後啟動之後,自動感測功能會被禁用,直至您透過設定輸出電壓手動重新開啟。
識別 UPS 後面板
本節介紹三個 Dell Rack 10 kW UPS 型號的後面板。
10 kW 208V UPS (DELL10KWOLHVUS)
RS-232
USB
REPO
EBM
UPS 通訊槽
端口
端口
端口
連接器
地腳螺釘
一個 NEMA
兩個 IEC
一個 NEMA
兩個 IEC
輸入接線端子模
L6-30R 電源插座
320-C19
L6-30R 電源插座
320-C19
塊
電源插座
電源插座
兩個輸出電路
兩個輸出電路
斷路器
斷路器
負荷段 1 (LS1)
負荷段 2 (LS2)
184
|
安裝和啟動

10 kW 230V UPS (DELL10KWOLHV)
RS-232
USB
REPO
EBM
UPS 通訊槽
端口
端口
端口
連接器
地腳螺釘
兩個輸出
兩個 IEC
一個 IEC 60309
一個輸出
一個 IEC 60309
輸入接線端子模
電路斷路
320-C19 插座
332R6S 插座
電路斷路
332R6S 插座
塊
器
器
負荷段 1 (LS1)
\負荷段 2 (LS2)
安裝和啟動
|
185

10 kW 230V UPS (DELL10KWOLHVB)
RS-232
USB
REPO
EBM
UPS 通訊槽
端口
端口
端口
連接器
地腳螺釘
兩個輸出電路斷
兩個輸出電路斷
四個 IEC
輸入接線端子模塊四個 IEC
路器
320-C19 插座
路器
320-C19 插座
負荷段 1 (LS1)
負荷段 2 (LS2)
186
|
安裝和啟動

Dellt 온라인랙UPS
10 kW
사용자의
시스템 시작하기
DELL10KWOLHVUS, DELL10KWOLHV, DELL10KWOLHVB
DELL10KWEBM
www.dell.com | www.support.dell.com | www.dellups.com

참고및경고
참고:
"참고"는 소프트웨어를 더 잘 활용하는 데 도움이 되는 중요한 정보를 나타냅니다.
위험:
"위험"은 피하지 않을 경우 사망이나 중상을 야기할 수 있는 급박한 위험 상황을 나타냅니다.
경고:
"경고"는 피하지 않을 경우 사망이나 상해를 야기할 수 있는 잠재적 위험 상황을 나타냅니다.
주의:
"주의"는 피하지 않을 경우 경미하거나 보통의 상해 또는 재산 손실 사고를 야기할 수 있는 잠재적
위험 상황을 나타냅니다.
위험:
피하지 않을 경우 사망이나 중상의 결과를 초래할 수 있는 급박한 위험 상황을 방지하는 데 도움이
될 다음 지침을 준수하십시오:
S
UPS에는 사망을 초래할 수 있는 전압 이 있습니다. 모든 수리와 정비는 공인된
정비 요원만이 수행해야 합니다. UPS 또는 EBM 내부에는 사용자가 정비할 수
있는 부품이 없습니다
이 문서에 포함된 정보는 고지 없이 변경될 수 있습니다.
E 2012 Dell Inc. All right reserved.
Dell Inc.의 서면 허가 없이는 어떤 방식의 복제도 엄격히 금지됩니다.
이 문서에 사용된 상표:
Dell
과
DELL
로고는 Dell Inc.의 상표입니다.
ENERGY STAR 이름은 미국 환경 보호청이 소유하고 있는 등록 상표입니다.
다른 상표 및 명칭 또는 관련 제품에 대한 권리를 주장하는 당사자를 지칭하기 위해 다른 상표와 상호가 사용될 수 있습니다.
Dell Inc.는 소유하지 않은 상표 및 상호에 대한 재산적 이해관계를 부인합니다.
2012년 12월

시스템 특징
탁월한 성능과 신뢰도를 제공하는 본 UPS는 다음과 같은 특유의 장점을 지닙니다:
S
순수 사인파 출력을 갖춘 온라인 UPS 설계.
S
고전력, 상용 전원 주파수 독립성, 제너레이터 호환성을 갖춘 진정한 온라인 이중-변환 기술
S
전압 변동을 교정하여 사용자의 부하에 대해 조정 전압을 보장하는 승강압형 전압 조정.
S
UPS가 유입 AC전원을 필터링 및 조절하고 배터리를 고갈시키지 않으면서 장비에 안정적인
전원을 공급.
S
선택 가능한 고효율 작동 모드
S
5U UPS 높이
S
상용 전력을 이용할 수 없는 경우에도 UPS에 전력을 공급하는 스타트온
배터리(start-on-battery) 이용 기능.
S
UPS를 끄지 않고도 배터리를 안전하게 교체할 수 있을 만큼 간단한 유지보수.
S
앞면 패널 LCD 디스플레이에서 Dell 서비스 태그 정보를 읽을 수 있음.
S
Extended Battery Module (EBM) 옵션이 있는 확장 런타임.
S
원격 긴급 전원차단(REPO) 포트를 통한 긴급 중단 제어.
S
표준 통신 포트 2개(USB 및 RS-232 시리얼 포트).
S
전원 보호 및 제어 능력을 향상하기 위한 강화된 통신 기능을 갖춘 Dell Network
Management Card 옵션(NMC라고도 함).
S
프레임 환경의 온도 및 습도 표시 값을 수집하고 환경 데이터를 원격으로 모니터링 하는
선택 사양Environmental Monitoring Probe (EMP) 2명의 사용자가 제공하는 연결 장치
상태를 수집 및 보관 가능.
S
안정적인 중단 및 전원 감시를 위한 Dellt Multi-UPS Management Console (MUMC) and
Dellt UPS Local Node Manager (ULNM) 웹 기반 소프트웨어 애플리케이션으로 수행되는
고급 전원 관리.
S
로드 세그먼트라고 하는 별도의 콘센트 그룹을 통한 순차적 중단 및 부하 관리.
S
서비스 요청 없이도 쉽게 업그레이드할 수 있는 펌웨어.
S
세계적인 인증기관의 각종 인증 취득.
®
S
ENERGY STAR
인증UPS.
시스템 특징
|
189

정보 찾기
주의:
안전, 환경, 규제 정보
문서는 중요한 안전 및 규제정보를 제공합니다.
찾고자 하는 항목
자료 위치
S UPS 사용자 설명서
Dell UPS 디스크
S Dell Network Management Card용 사용자
설명서
S Dell MUMC and Dell ULNM 사용자 설명서
참고: 문서 및 소프트웨어 업데이트
정보는
www.support.dell.com www.dellups.com
에서
조회할 수 있습니다.
S 사양
Dell UPS 사용자 설명서
S UPS설정구성방법
사용자 설명서는 Dell UPS 디스크 및
S 장애 처리 및 문제점 해결 방법
www.support.dell.com에서 조회할 수 있습니다.
S REPO제어설치방법
S 안전 지시사항
안전, 환경, 규제 정보
S 규제 정보
S 재활용 정보
S 보증 정보
Dell보증및지원정보
S 약관(미국에만 적용)
S 최종 사용자 라이센스 계약
S 지원 정보
Dell 지원 웹사이트 – www.support.dell.com
참고: 해당 지원 사이트를 보기 위해서는 해당
지역 또는 사업 부문을 선택하십시오.
190
|
정보 찾기

설치및시동
주의:
안전, 환경, 규제 정보
문서의 절차를 수행하기 전에 본 문서에 있는 안전 지침 및 중요한 규제
정보를 읽고 준수하십시오.
주의:
낮은 기온의 환경에서 캐비닛의 포장을 뜯으면 캐비닛 안과 위에 응결 현상이 발생될 수
있습니다. 캐비닛의 내부와 외부가 완전 건조될 때까지는 캐비닛을 설치하지 마십시오(감전 위험).
주의:
배터리 설치 또는 제거는 필수 주의사항에 대한 충분한 지식을 갖춘 사람이 실시하거나
감독해야 합니다. 자격이 없는 사람이 배터리를 취급해서는 안됩니다.
주의:
캐비닛은 무겁습니다(99 kg/218 lb). 캐비닛을 들기 전에 UPS에서 배터리 트레이를 항상
빼십시오. 캐비닛을 랙 안으로 들어 올려 넣으려면 최소한 2인이 필요합니다.
설치및시동
|
191

주의:
배터리가 무겁습니다(32 kg/71 lb). 배터리를 뺄 때 적절하게 들어올릴 수 있는 방법을
사용하십시오.
참고:
상자를 이동하고 열 때는 주의하십시오. 설치할 준비가 되기 전까지는 구성품을 포장된 채로
두십시오.
이 절은 사용자의 시스템을 처음 설치하는 절차를 설명합니다.
캐비닛 포장 풀기
시스템의 포장을 풀려면:
1
지게차 또는 팔레트 잭을 사용해 운송 상자 및 팔레트를 UPS가 설치될 랙 근처로
옮기십시오.
2
포장 상자를 풀어 제거하십시오.
192
|
설치및시동

3
위에 있는 스티로폼 부분의 통로 쪽으로 밀어 넣은 2개의 부속품 상자를 빼십시오.
4
부속품 상자를 열고 가까운 장소의 평평하고 안정적인 곳에 놓으십시오.
참고:
Dell 온라인 랙 UPS 10 kW 사용자 가이드
는 포장을 푸는 방법과 설치 절차에 대해
설명합니다. 참조하시려면, 부속품 상자를 다른 곳으로 두기 전에 먼저 빼 두십시오.
5
위에 있는 스티로폼을 제거해 가까운 장소의 편평하고 안정적인 곳에 놓으십시오.
설치및시동
|
193

참고:
배터리 지지 브래킷에는 L(왼쪽) 및 R (오른쪽)이 표시가 되어 있어 설치 위치를 알려줍니다.
6
UPS에서 지지 브래킷을 빼십시오.
왼쪽(
L
로 표시) 지지 브래킷의 위치를 확인하십시오. 섀시의 왼쪽에서 손 나사를 시계 반대
방향으로 돌려 왼쪽 지지 브래킷을 푸십시오.
브래킷을 중간 기둥 쪽으로 밀어 섀시에서 빼십시오. 브래킷을 본인 쪽으로 흔든 후
브래킷을 왼쪽으로 당겨 빼십시오. 브래킷을 한 쪽에 두십시오.
오른쪽(
R
로 표시) 지지 브래킷의 위치를 확인하십시오. 섀시의 오른쪽에서 손 나사를 시계
반대 방향으로 돌려 오른쪽 지지 브래킷을 푸십시오.
브래킷을 중간 기둥 쪽으로 밀어 섀시에서 빼십시오. 브래킷을 본인 쪽으로 흔든 후
브래킷을 오른쪽으로 당겨 빼십시오. 브래킷을 한 쪽에 두십시오.
7
배터리 커넥터가 모두 분리되어 있는지 확인하십시오.
194
|
설치및시동

주의:
배터리가 무겁습니다(32 kg/71 lb). 배터리를 뺄 때 적절하게 들어올릴 수 있는 방법을
사용하십시오.
8
UPS에서 배터리 트레이를 다음과 같이 분리하십시오.
배터리 칸의 위쪽에서 연결이 해제된 UPS 배터리 커넥터를 방해가 되지 않는 곳으로
옮기십시오.
배터리 트레이의 앞면에 있는 플라스틱 고리 식별표를 잡으십시오. 트레이를 본인 쪽으로
잡아 당겨 빼십시오.
참고:
고리 식별표에서 주황색의 잡아 당기십시오 라벨이 있는 곳을 잡으십시오.
UPS 상부에서 빼낸 스티로폼에 있는 배터리 트레이를 놓으십시오.
두 번째 배터리에 대해 이 단계를 반복합니다.
설치및시동
|
195

주의:
배터리를 빼낸 캐비닛은 무겁습니다(46 kg/101 lb). 캐비닛을 운송 상자에서 들어 올려
넣으려면 최소한 2인이 필요합니다.
9
양 편에 한 사람씩 자리한 후, 판지의 손잡이를 사용해 캐비닛에서 스티로폼을 조심스럽게
들어 올리십시오.
10
설치하고자 하는 랙과 가까운 안전한 공간의 평평하고 안정적인 바닥에 캐비닛을
놓으십시오.
참고:
환기가 잘 되고, 습기, 인화성 가스, 및 부식물이 없는 보호된 공간인지 여부를 확인하십시오.
196
|
설치및시동

랙마운트 설치
주의:
캐비닛은 무겁습니다(99 kg/218 lb). 항상 UPS에서 배터리 트레이를 뺀 후에 캐비닛을 들어
올리고 랙의 레일 면에 UPS를 설치하십시오. 캐비닛을 랙 안으로 들어 올려 넣으려면 최소한 2인이
필요합니다.
주의:
배터리 설치 또는 제거는 배터리와 그 주의사항에 대해서 잘 아는 사람이 수행하거나 감독해야
합니다. 자격이 없는 사람이 배터리를 취급해서는 안됩니다.
주의:
배터리가 무겁습니다(32 kg/71 lb). 배터리를 뺄 때 적절하게 들어올릴 수 있는 방법을
사용하십시오.
주의:
EBM 옵션을 설치하는 경우, UPS 및 EBM 사이에 U 공간이 없도록 EBM는 UPS 아랫면에
놓아야 합니다. 이렇게 하면 랙에 무게를 골고루 분산 시킬 수 있어 UPS 제어 패널에 더 쉽게
접근하고 배터리 케이블 연결을 더욱 쉽게 라우팅할 수 있습니다. 또한 EBM 코드 및 UPS 연결 사이의
응력을 차단하고 연결 실패 가능성을 방지합니다.
경고:
랙 장착 시스템 관련: 랙에서 여러 가지 시스템을 설치 하는 경우, 현재 시스템과 관련한 절차를
모두 완료한 후에 다음 절차를 실시하십시오.
참고:
개별 캐비닛 별로 탑재 레일이 필요합니다.
참고:
캐비닛은 앞면 커버 홈이 없는 채로 운송됩니다.
참고:
사각 구멍 랙과 나사산 없는 원형 구멍 랙에 대한 설치 지침은 동일합니다. 본 레일은 두
종류의 랙에 모두 맞습니다.
랙에 UPS를 설치하려면:
1
UPS를 설치하고자 하는 랙과 가까운 장소의 편평하고 안정적인 바닥에 다음이 있는 지
확인하십시오.
S
캐비닛
S
UPS 부속품 상자 2개
S
배터리 트레이 2개(UPS만 해당)
S
배터리 지지 브래킷 2개(UPS만 해당)
설치및시동
|
197

레일 설치하기
2
레일 키트 부속품 상자에서 레일을 빼십시오.
3
캐비닛을 랙의 원하는 위치에 설치할 수 있도록 레일에서 적당한 구멍을 선택하십시오.
UPS용으로 할당된 5U 공간 하단에서 레일을 놓으십시오.
주의:
EBM 옵션을 설치하는 경우, UPS 및 EBM 사이에 U 공간이 없도록 EBM는 UPS 아랫면에 직접
놓을 수 있도록 준비하십시오.
참고:
우측 앞면(RIGHT FRONT) 및 좌측 앞면(LEFT FRONT )의 레일에 붙어있는 라벨 내용을
따르십시오. 라벨은 레일이 설치되어야 하는 방향을 표시합니다.
4
표시된 방향대로 왼쪽 및 오른쪽 레일을 놓으십시오. 왼쪽 및 오른쪽 레일을 랙에
부착하십시오.
레일 후단이 수직 랙 플랜지(rack flange)에 완전히 안착되고 고리 걸쇠(hook latch)가
제자리에 잠겨지도록 맞춥니다.
랙의 앞면을 바로 지나도록 레일을 잡아당기십시오.
레일 전단이 수직 랙 플랜지에 완전히 자리잡고 고리 걸쇠가 제자리에 잠겨지도록 밉니다.
198
|
설치및시동

캐비닛 설치 및 고정하기
주의:
배터리를 빼낸 캐비닛은 무겁습니다(46 kg/101 lb). 캐비닛을 랙 안으로 들어 올려 넣으려면
최소한 2인이 필요합니다.
5
캐비닛을 레일 쪽으로 밀어 랙 안쪽으로 미십시오.
6
장착 브래킷에 있는 손 나사 4개를 이용하여 캐비닛 앞면을 랙에 고정시킵니다. 손으로 손
나사를 조이고, 전기 공구는 사용하지 마십시오.
배터리 트레이 설치하기
7
랙 주변에 배터리 트레이를 놓으십시오.
설치및시동
|
199

주의:
배터리가 무겁습니다(32 kg/71 lb). 배터리를 설치할 때 적절하게 들어올릴 수 있는 방법을
사용하십시오.
참고:
배터리 트레이는 배터리 칸의 한 쪽에 설치할 수 있습니다.
참고:
트레이의 주의 라벨 화살표가 위쪽을 향하도록 넣으십시오.
8
배터리 트레이 설치하기:
배터리 칸의 위쪽에서 UPS 배터리 커넥터를 방해가 되지 않는 곳으로 옮기십시오.
배터리 트레이를 배터리 칸으로 완벽하게 밀어 넣으십시오.
두 번째 배터리를 설치하려면 위 단계를 반복하십시오.
9
고리 식별표를 배터리 트레이 앞면의 플라스틱 보호관으로 밀어 넣어 방해가 되지 않도록
하십시오.
내장 배터리 커넥터 연결하기
10
내장 배터리 커넥터를 연결합니다.
제일 왼쪽에 있는 배터리 트레이 커넥터를 고정 UPS 커넥터에 연결하십시오. 제일 오른쪽에
있는 배터리 트레이 커넥터를 고정 UPS 커넥터에 연결하십시오.
참고:
배터리를 연결할 때 소량의 아크(arc)가 발생할 수 있습니다. 이런 현상은 정상적이며 기기에
손상을 주거나 안전상의 문제를 나타내는 것은 아닙니다.
중간 기둥의 한 쪽에 있는 배터리 점퍼를 놓고 연결하십시오. 중간 기둥의 위쪽에 있는 작은
선반에 커넥터를 놓으십시오.
참고:
중간 배터리 점퍼를 연결하면 2 가지의 배터리 트레이를 연속적으로 연결하게 됩니다.
200
|
설치및시동

배터리 지지 브래킷 제거하기
섀시 쪽 통로
중간 기둥 쪽 통로
참고:
배터리 지지 브래킷에는 L(왼쪽) 및 R (오른쪽)이 표시가 되어 있어 설치 위치를 알려줍니다.
11
왼쪽(L) 및 오른쪽(R) 배터리 지지 브래킷을 교체하십시오.
첫 번째 배터리 지지 브래킷에서 브래킷 식별표를 중앙 기둥의한쪽면의통로로
삽입하십시오. 연결된 배터리 케이블을 지지 브래킷 뒤쪽으로 안전하게 놓으십시오.
배터리 지지 브래킷의 끝 쪽은 섀시의 통로 쪽과 맞추십시오. 브래킷은한쪽면의통로에
단단히 고정될 때 까지 밀어 넣으십시오.
손 나사를 시계 방향으로 돌려 브래킷을 고정하십시오.
위 절차를 반복해 두 번째 배터리 지지 브래킷을 교체하십시오.
UPS 앞면 커버 설치하기
12
부속품 상자에서 앞면 커버를 빼십시오.
설치및시동
|
201

참고:
UPS를 설치할 때 까지 소프트웨어 CD, 통신 케이블 및 필요한 경우 REPO 커넥터를 부속품
상자에 보관하십시오.
1
2
13
UPS 앞면 커버를 설치하십시오.
섀시 앞면과 앞면 커버를 맞추십시오.
앞면 커버의 오른쪽 식별표를 오른쪽 섀시의 식별표 개구부 쪽으로 삽입하십시오.
커버 왼쪽을 앞쪽으로 밀어 넣고 섀시에 맞추십시오.
참고:
LCD 섀시의 LCD 패널이 전면 커버의 LCD 창과 맞는지 확인한 후 섀시의 커버를
고정하십시오.
14
적절하게 포장물을 폐기하거나 재활용하고, 또는 추후 사용을 위해 보관해 두십시오.
202
|
설치및시동

장비에 연결하기
UPS를 설치하려면:
1
Dell MUMC and Dell ULNM 소프트웨어를 사용하고자 하는 계획이 있다면, 다음과 같은
방식을 사용해 통신 체계를 구축하십시오.
S
Dell Network Management Card 사용하기(설치된 경우)
S
공급된 케이블을 사용해 USB 포트에 컴퓨터 연결하기
참고:
통신 옵션에 대한 추가 정보는
Dell 온라인 랙 UPS 10 kW 사용자 가이드
를 참조하십시오.
2
접지되지 않은 금속 부품을 접지하거나 결속하는 도체가 랙에 있다면, 접지 케이블(비
제공품)을 접지 결속 나사에 연결하십시오. 세 가지의 모델 별로 제공된 접지 나사의 위치에
대해서는 210페이지의 "UPS 뒷면 패널"을 참고하십시오.
3
현지 규정에 따라 긴급 전원차단(연결해제) 스위치가 필요하다면,
Dell온라인랙UPS
10 kW 사용자 가이드
의 "원격 긴급 전원차단 설치"를 참조하십시오.
4
EBM 옵션을 설치하는 경우, 설치 안내는 Dell 온라인 랙 EBM 10 kW 시작하기 가이드를
참조하십시오.
주의:
EBM 없이 UPS를 보관하거나 사용할 경우, UPS 뒤쪽 패널의 배터리 커넥터 커버를 안전 주의
사항에 따라 설치해야 합니다.
5
보호할 장비를 UPS 출력 콘센트에 꽂되 켜지는 마십시오.
6
코드 갈무리 및 케이블 응력 완화를 위해 필요한 장치를 갖추십시오.
참고:
과부하 경보를 방지하려면 장비의 전체 정격 사양이 UPS 용량을 초과하지 않도록 확인합니다.
설치및시동
|
203

UPS 입력장치 직접 배선하기(hardwiring)
경고:
감전 위험. 공식 서비스 요원(면허가 있는 전기기사 등)만이 전기 설치를 할 수 있습니다.
Dell 온라인 랙 직접 배선(hardwired) 모델에는 아래의 요건을 충족시키는 전용
분기회로(branch circuit)가 필요합니다:
S
보호장치에는 UPS 입력과 메인 사이에 2-극 차단장치가 필요함.
S
차단기는 벽에 설치하되 작업자가 쉽게 접근 가능해야 함
S
유럽용 브래킷은 IEC/EN 60934 표준을 충족하고 3mm 이상의 공극을 확보해야 함
S
200-240 Vac
S
단상
S
50/60 Hz
S
유연한 금속 전선관(원활한 정비 및 유지관리를 위해 권장함)
벽면
2-극
차단기
라인
AC 메인 전원
UPS
중립/L2
204
|
설치및시동

터미널 블록 커버 분리하기
녹아웃 구멍d
터미널 블록
커버
1
UPS(무정전전원) 연결 분배지점에서 상용 전원의 스위치를 끕니다. 절대 전원이
공급되어서는 안됩니다.
2
터미널 블록 커버를 분리합니다(나사 2개).
3
녹아웃 구멍을 입력 전선관용 터미널 블록 커버에서 빼십시오. 구멍은 1” 또는 1.5” (25.4
mm or 38.1 mm) IMC(Intermediate Metal Conduit)에 맞아야 합니다.
설치및시동
|
205

주의:
UPS에 역류(backfeed)와 관련한 자동 보호 장치가 없다면, 외부 차단장치를 설치하십시오.
장치를 설치한 후 외부 AC 접촉장치(contactor)에 아래와 같은 문구의 경고표시를 붙여야 합니다.
전압 역류(backfeed) 위험성 본 회로에서 작동하기 전에 UPS를 분리시키고 나서 모든 단자에
위험한 전압이 있는지 확인하십시오.
외부 분전반
UPS
Legend
QT
B
코일 원격 스위치
Q
마그네토 열 입력
L/L1
L/L1
메인 스위치
N/L2
N/L2
T
AC 접촉 장치
N/L2
중립/L2
L/L1
L1 라인
입력
B
다음 표는 역류(backfeed)를 차단하는 외부 차단 장치로 사용할 수 있는 역류(backfeed) 방지
장치(AC 접촉장치)의 목록입니다. 테이블에 나열된 AC 접촉 장치만을 사용하십시오.
제조사 유형 정격
ABB France(E12527)
220~240VAC 105A
A75-30
25 HP at 208V,
30HP at 240V
Tianshui 213 Electrical Apparatus Co., Ltd.
220~240VAC 68A
(E203071)
GSC1(CJX4-d)-6511
25 HP
(대체)
Tianshui 213 Electrical Apparatus Co., Ltd.
220~240VAC 80A
(E203071)
GSC1(CJX4-d)-8011
30 HP
(대체)
참고:
UPS에 역류 방지(ABF) 계전기는 없지만 일부 역류 방지 시스템이 제공됩니다. 예를 들어,
배터리 모드에서 일부 구성 요소가 손상된 경우, 출력 전압이 입력 전압으로 역류할 수 있습니다.
이러한 경우에, 변류기(CT)를 사용해 우회되고 있는 전류 피드백 전압을 탐지합니다. 전류
역류(backfeed) 오류 상황이 탐지되면 UPS가 인버터 출력을 종료해 신체적 상해를 방지합니다.
206
|
설치및시동

입력 배선 및 접지선 설치하기
1
2
3
4
60.96 cm (0.5m) 정도의 노출선만 남기고 전선관을 통해 입력 전선을 잡아당깁니다.
전선관의 끝에 연성 금속 장치를 부착합니다.
5
배선 접근 엔트리를 통해 전선관을 삽입하고 해당 패널에 전선관 장치를 부착합니다. 각
도입선 끝의 절연체를 0.5”(1.5 cm) 벗깁니다.
6
다음 표의 UPS 배선 사양에 따라 입력 및 접지선을 터미널 블록에 연결하십시오.
터미널 배선 규격
배선기능 터미널 포지션 UPS 전선 기능
토크 강화
등급*
입력
1
입력 접지
2
16?5 mm
2
L2/중립 In
1.7 Nm (15 lb-in)
(8? AWG)
3
L1 In
* 최소 사용조건:
S 8 접지 장비용 AWG, 75_C동선최소조건
S 4입력라인및중립와이어용AWG,75_ 동선 최소조건
7
터미널 블록 커버를 제 자리에 다시 부착합니다.
설치및시동
|
207

UPS 시동하기
ON/OFF
버튼
UPS를 시동하려면:
1
내장 배터리가 연결되어 있는지 확인합니다.
2
EBM 옵션이 설치되어 있으면 UPS에 EBM이 연결되어 있는지 확인합니다. 추가 정보는
Dell 온라인 랙 EBM 10 kW 시작하기 가이드를 참조하십시오.
3
로드 세그먼트 회로 차단기가 모두 ON 위치에 있는지 확인합니다.
4
주 상용 전원 차단기를 켭니다.
UPS LCD 패널의 표시장치가 켜집니다. Dell 시작 화면이 UPS 상태 요약 화면으로
바뀝니다. UPS 앞면 패널 표시장치에 점멸하는 대기 아이콘
이 나타납니다.
5
UPS 앞면 패널의 On/Off 버튼을 누르십시오.
시동이 완료된 후 상태는 UPS 작동 모드에 따라 변경됩니다.
208
|
설치및시동

6
UPS 상태 요약 화면에서, 활성 경보나 통지를 확인하려면 버튼을 누릅니다. 후속 작업을
계속하기 전에 활성 경보를 처리합니다.
Dell 온라인 랙 UPS 10 kW 사용자 가이드
의"장애
처리"를 참조하십시오.
활성 경보가 없을 경우, "활성 경보 없음" 메시지가 나타납니다.
7
정상 아이콘 이 UPS 상태 요약 화면에 나타나 UPS가 정상적으로 작동하고 모든 부하에
전원이 공급되고 있음을 표시하는지 확인합니다.
8
추가 정보는
Dell 온라인 랙 UPS 10 kW 사용자 가이드
를 참조하십시오.
S
외부 배터리 모듈 (EBM)옵션이 설치된 경우 구성 절차
S
일자 및 시간을 설정하고 기타 공장 출하 기본 값 변경
9
만약에 선택사양인 REPO가 설치되어 있다면 다음과 같이 REPO의 기능을 시험합니다:
외장 REPO 스위치를 켭니다. UPS 표시장치의 상태 변경을 확인합니다.
외장 REPO 스위치를 끄고 UPS를 다시 시동합니다.
10
배터리 충전하기
참고:
내장 배터리는 3시간 안에 충전 용량의 90%가 충전됩니다. 단 설치 또는 장기간 보관
이후에는 배터리를 48시간 동안 배터리를 충전해야 합니다.
주의:
UPS 과부하 상태를 방지하려면, 한번에 로드를 한번 연결하고 다음 로드를 연결하기 전에 보호
장치 별로 완벽하게 시동하는 지 확인하십시오.
참고:
Dell는 문제 해결 또는 보증 목표에 맞게 일자 및 시간을 설정할 것을 권고합니다.
참고:
시초 시동에서 UPS는 입력라인 주파수에 따라 시스템 주파수를 설정합니다(입력 주파수
자동감지기능은 디폴트로 활성화됩니다). 시초 시동 이후에 자동감지 기능은 출력주파수 설정을
사용해 수동으로 작동할 때 까지 활성화되지 않습니다.
설치및시동
|
209

참고:
시초 시동에서 입력전압 자동감지 기능은 디폴트로 활성화됩니다. 다음 번 시동 이후에
자동감지 기능은 출력 전압 설정을 사용해 수동으로 작동할 때 까지 활성화되지 않습니다.
UPS뒷면패널확인
본 부분은 세 가지의 Dell 온라인 랙 10 kWUPS 모델의 뒷면 패널 옵션을 나타냅니다.
10 kW 208V UPS (DELL10KWOLHVUS)
UPS 통신
RS-23
USB
REPO
EBM
접지나사
베이
2포트
포트
포트
커넥터
One NEMA
IEC 320-C19
One NEMA
IEC 320-C19
입력 단자대
L6-30R 콘센트
콘센트 2개
L6-30R 콘센트
콘센트 2개
2개의 출력
2개의 출력
회로차단기
회로차단기
로드 세그먼트 1(LS1)
로드 세그먼트 2(LS2)
210
|
설치및시동

10 kW 230V UPS (DELL10KWOLHV)
UPS 통신
RS-23
USB
REPO
EBM
베이
2포트
포트
포트
커넥터
접지나사
2개의 출력
IEC 320-C19
IEC 60309
출력 회로
IEC 60309
입력 단자대
회로차단기
콘센트 2개
332R6S 콘센트
차단기 1개
332R6S 콘센트
1개
1개
로드 세그먼트 1(LS1)
로드 세그먼트 2(LS2)
설치및시동
|
211

10 kW 230V UPS (DELL10KWOLHVB)
UPS 통신
RS-23
USB
REPO
EBM
베이
2포트
포트
포트
커넥터
접지나사
2개의 출력
2개의 출력
IEC 320-C19
입력 단자대IEC 320-C19
회로차단기
콘센트 4개
회로차단기
콘센트 4개
로드 세그먼트 1(LS1)
로드 세그먼트 2(LS2)
212
|
설치및시동

Dellt オンライン式ラック型UPS
10 kW
はじめに
システムについて
DELL10KWOLHVUS, DELL10KWOLHV, DELL10KWOLHVB
DELL10KWEBM
www.dell.com | www.support.dell.com | www.dellups.com

注記および警告
注記:
「注記」はソフトウェアを有効に利用するための重要な情報を示しています。
危険:
「危険」は、回避しない場合は死亡または重傷につながる切迫した危険な状況を示しています。
警告:
「警告」は、回避しない場合は死亡または負傷につながるおそれのある潜
在的に危険な状況を示しています。
注意:
「注意」は、回避しない場合は軽傷または中程度の傷害、
あるいは物的損害につながる可能性がある潜在的に危険な状況を示しています。
危険:
以下の注意事項をよくお読みになり、回避しない場合は死亡または重傷
につながる切迫した危険な状況にならないようにしてください。
S
このUPSの中には 致死的な電圧 が掛かっています。すべての修理や整備は
公認サービススタッフのみ が行ってください。UPS内およびEBM内には
ユーザーが修理可能な部品 はありません。
当資料の情報は予告なく変更されることがあります。
E 2012 Dell Inc. 無断複写・転載を禁じます。
Dell Inc.の書面による許可を得ていない複写はいかなる形態においても厳重に禁じられています。
当テキストに使用されている登録商標:
Dell
およ
DELL
のロゴはDell Inc.の登録商標です。
ENERGY STAR は、アメリカ環境保護庁所有の登録商標です。
その他の登録商標および商標名は、本書の中でそれら商標や名称を主張する事業体、あるいは製品のいずれかに言及するた
めに使用されることがあります。
2012年12月

システムの特徴
UPSは優れた性能および信頼性を提供し、以下のような独自の利点があります。
S
正弦波出力のあるオンラインUPS設計。
S
高出力密度や商用周波数依存性、発電器の互換性を持つオンライン二重変換技術。
S
電圧変動を修正することで、負荷へ安定した電圧を保証する「昇降圧」電圧調節。
S
UPSは入力される交流電力をフィルター処理、調節し、バッテリーを消耗せずに機器へ安定
した電力を供給します。
S
選択可能な作動の高性能モード。
S
5U UPSの高さ
S
外部電力がないときでもUPSの電力を入れることができる始動電池の能力。
S
UPSの電源を切らずにバッテリーを安全に交換することができるため、メンテナンスが簡単
です。
S
Dellサービスタグ情報はLCDディスプレーのフロントパネルから読み取ることができます。
S
オプションのExternal Battery Module(EBM)付き拡張実行時間。
S
リモートエマージェンシーパワーオフ(REPO)ポートを通じた緊急シャットダウン制御。
S
標準通信ポート2個(USBおよびRS-232シリアルポート)
S
オプションDell Network Management Card
(別名NMCと呼ばれる)として、電力の保護や制御の拡張ができる高度通信機能付き。
S
フレーム環境の温度と湿度の計測値を収集し環境データをリモートで監視するためのオプシ
ョンの Powerware Environmental Monitoring Probe (EMP)。
2つのユーザー提供通信デバイスのステータスの収集と回収にも使用できます。
S
正常な運転停止や電力監視用のDellt Multi-UPS Management Console (MUMC) and Dellt
UPS Local Node Manager (ULNM)
ウェブベースのソフトウェアアプリケーションを使用した高度な電力管理。
S
負荷セグメントと呼ばれる個別のレセプタクルグループを通じた逐次シャットダウンおよび
負荷制御。
S
カスタマーサービスに問い合わせなくても、簡単にアップグレードができるファーム
ウェア。
S
世界中の代理店の承認による支持。
®
S
ENERGY STAR
認証UPS。
システムの特徴
|
215

情報検索
注意:
安全・環境・規制に関する情報
資料には、安全および規定に関する重要情報が含まれています。
どんな情報をお探しですか? こちらでご覧いただけます
S UPSユーザーガイド
Dell UPS
S Dell Network Management
Card用のユーザーガイド
S Dell MUMC and Dell ULNM ユーザーガイド
注記
資料やソフトウェアアップデートは
www.support.dell.com および
www.dellups.comで入手できます。
216
|
情報検索
デ
ィス
ク
S 仕様
Dell UPS ユーザーガイド
S UPSの設定方法
ユーザ0ガイドはDell
S トラブルシューティングの方法および問題の解
UPSディスクおよびwww.support.dell.comで入手する
決方法
ことができます。
S REPO制御のインストール方法
S 安全にご使用いただくために
安全・環境・規制に関する情報
S 規則に関する情報
S リサイクルに関する情報
S 保証に関する情報
Dell 保証およびサポート情報
S 使用上の条件(アメリカのみ)
S エンドユーザー使用許諾契約
S サポート情報
Dell サポートウェブサイト?www.sup
port.dell.com
注記:
使用する地域や事業区分を選択し、
適切なサポートサイトをご覧ください。

インストールおよび起動
注意:
当資料の手順を実施する前に、
安全・環境・規制に関する情報
資料に記載され
ている安全に関する説明書および重要な規制情報をご覧いただき、これらの情報に従って
ください。
注意:
低温環境でキャビネットを開梱すると、キャビネット内またはキャビネッ
ト上に結露が生じる可能性があります。 キャビネットは、内部および外部が完全に乾燥するまで、
取り付けないようにしてください(感電の危険性があります)。
注意:
バッテリートレイの設置または取り外しは、バッテリーや必要とされる
安全上の注意に関して知識のあるスタッフが行うか、知識のあるスタッフが監視する必要がありま
す。 承認を受けていないスタッフをバッテリーに近寄らせないようにしてください。
インストールおよび起動
|
217

注意:
キャビネットにはかなりの重量があります(99 kg/218 lb)。
キャビネットを持ち上げる前に、必ず両方のバッテリトレーをUPSから取り出してください。
キャビネットをラックに移動するには最低2名必要です。
注意:
バッテリーにはかなりの重量があります(32 kg/71 lb)。
バッテリーを取り外す際は適切な持ち上げ方法を使ってください。
注記:
箱の移動や開梱の際は、注意を払ってください。
設置の準備が完了するまで、部品は梱包から取り出さずにそのままにしておきます。
このセクションでは、初めてシステムを設定する方法について説明しています。
キャビネットの開梱
システムの開梱方法:
1
フォークリフトやハンドリフトを使って、UPSを設置するラックの近くに運送用段ボールと
パレットを移動してください。
2
外箱を取り外してください。
218
|
インストールおよび起動

3
一番上の発泡スチロール部分の溝に組み込まれた2つの付属ボックスを取り外して
ください。
4
付属ボックスを開けて、近くにある平らで安定した表面の上に置きます。
注記:
Dell オンライン式ラック型UPS 10 kW ユーザーガイド
で開梱と設置の手順を示します。
参照するには、付属ボックスを脇に置く前に付属ボックスから出してください。
5
上部の発砲スチロール部分を取り外して、近くの平らで安定した表面上に置きます。
インストールおよび起動
|
219

注記:
バッテリー保持ブラケットはL (左)とR (右)とラベルされ、設置箇所を示しています。
6
両方のバッテリー保持ブラケットをUPSから外して下さい。
左(
L
とラベルされています)保持ブラケットの位置を確認してください。
シャーシの左側の蝶ネジを反時計回りに回して左の保持ブラケットを外します。
ブラケットをセンターポストの方向に押してシャーシから外してください。
ブラケットをご自分の方向に開き、ブラケットを左に引っ張って取り外してください。
ブラケットを脇に置いてください。
右(
R
とラベルされています)保持ブラケットの位置を確認してください。
シャーシの右側の蝶ネジを反時計回りに回して右の保持ブラケットを外します。
ブラケットをセンターポストの方向に押してシャーシから外してください。
ブラケットをご自分の方向に開き、ブラケットを右に引っ張って取り外してください。
ブラケットを脇に置いてください。
7
全てのバッテリーコネクタが接続されていないことを確認してください。
220
|
インストールおよび起動

注意:
バッテリーにはかなりの重量があります(32 kg/71 lb)。
バッテリーを取り外す際は適切な持ち上げ方法を使ってください。
8
UPSからバッテリートレイを取り外します:
外したUPSバッテリーコネクターを、邪魔にならないように、バッテリーコンパートメント
の上に移動させます。
バッテリートレイの前にある2つのプラスチック製ループタブを握ります。
トレイをご自分の方向に引っ張って取り外してくださ。
注記:
ループタブのどこを握るかは、PULL HERE
と書かれたオレンジ色のラベルで表示されています。
UPSの上部から取り外した発泡スチロール部分の上にバッテリートレイを置いてください。
2つ目のバッテリートレイでも同じ手順を繰り返します。
インストールおよび起動
|
221

注意:
バッテリーを取り外した状態でもキャビネットはかなりの重さがあります (46 kg/101
lb)。 キャビネットを輸送用段ボールから移動するには最低2名必要です。
9
片側を一人ずつで持ち、段ボールのハンドル部分を使って、発泡スチロールからキャビネッ
トを注意して持ち上げます。
10
キャビネットを、設置するラックの近くの平らで安定した保護された場所に置いてください
。
注記:
その場所が湿度や可燃性ガスがなく、腐食のおそれもない、
風通しのよい保護された場所であることを確認してください。
222
|
インストールおよび起動

ラックマウント式設置方法
注意:
キャビネットにはかなりの重量があります(99 kg/218 lb)。
キャビネットを持ち上げてラックのレールにUPSを設置する前に、必ずUPSから両方のバッテリトレ
イを取り外してください。 キャビネットをラックに移動するには最低2名必要です。
注意:
バッテリーの設置または取り外しは、バッテリーおよび必要な安全上
の注意に詳しいスタッフが行うか、詳しいスタッフが監視する必要があります。
承認を受けていないスタッフをバッテリーに近寄らせないようにしてください。
注意:
バッテリーにはかなりの重量があります(32 kg/71 lb)。
バッテリーを取り外す際は適切な持ち上げ方法を使ってください。
注意:
オプションのEBMを設置する場合、必ずEBM をUPSの下に置き、UPSとEBMの間にUスペース
ができないようにしてください。これによって、ラックにより良い重量配分、
UPSコントロールパネルへのより簡単なアクセス、より簡単なバッテリーケーブル接続へのルーティ
ングが可能になります。 こうすることによって、UPSに接続するEBM
コードの突っ張りやねじれの発生をなくし、接続ミスを防ぐことにもなります。
警告:
ラックマウント式システム 複数のシステムをラックに設置する際は、
まずひとつのシステムの取り付け作業を全て終えてから、次のシステムの設置に進みます。
注記:
取り付けレールは、各キャビネットに必要となります。
注記:
キャビネットにはフロントカバーが取り付けられずに出荷されます。
注記:
四角型の穴や、ネジ無し穴、丸型穴のラックは、すべて同じ以下の手順です。
レールは両方のラックスタイルに適合します。
UPSをラックに取り付ける方法:
1
以下のものが、UPSを設置するラックの近くの平らで安定した表面上に置かれていることを
確認してください:
S
キャビネット
S
UPS付属ボックス2つ
S
バッテリートレイ2つ(UPSのみ)
S
バッテリー保持ブラケット2つ(UPSのみ)
インストールおよび起動
|
223

レールの取り付け方法
2
レールキット付属ボックスからレールを取り外してください。
3
レール上の適切な穴を選び、ラック上の希望する位置にキャビネットを配置します。
UPSに割り当てられた5Uのスペースの底面にレールを配置します。
注意:
オプションのEBMをインストールする場合、EBM
とUPSの間にUスペースができないように、EBMをインストールするスペースを確保します。
注記:
レールのラベルの、右前(RIGHT FRONTとラベルされています)と左前(LEFT
FRONTとラベルされています)を確認してください。
これは、レールを正しい位置にインストールするためのものです。
4
図のように左と右のレールを配置してください。
左と右のレールをラックに取り付けてください:
垂直のラックフランジに完全にはまり、フックラッチが所定位置に固定するまで、レールの
後端部をはめ込みます。
ラックの前方を越えるようレールを引っ張ります。
垂直のラックフランジに完全に収まり、フックラッチが所定位置に固定するまで、レールの
前端部をはめ込みます。
224
|
インストールおよび起動

キャビネットの取り付けおよび固定
注意:
バッテリーを取り外した状態でもキャビネットはかなりの重さがあります (46 kg/101
lb)。 キャビネットをラックに移動するには最低2名必要です。
5
キャビネットをレール上をスライドさせラックに入れます。
6
4つの蝶ネジを使って、キャビネットの前方をマウンティングブラケットに固定します。
手でチョウネジを時計回りに強く締めてください。電動工具は使用しないでください。
バッテリートレイの取り付け方法
7
ラックの近くに置いたバッテリートレイの位置を確認してください。
インストールおよび起動
|
225

注意:
バッテリーにはかなりの重量があります(32 kg/71 lb)。
バッテリーを設置する際は適切な持ち上げ方法を使ってください。
注記:
バッテリートレイはどちらのバッテリーコンパートメントにも設置できます。
注記:
警告表示の矢印が上を向いてる状態でトレイを挿入してください。
8
バッテリートレイの取り付け方法
UPSバッテリーコネクターを、邪魔にならないように、バッテリーコンパートメン
トの上に移動させます。
バッテリートレイがバッテリーコンパートメントの中に完全に納まるまでスライ
ドさせます。
2つ目のバッテリートレイの設置にも同じ手順を繰り返します。
9
それぞれのバッテリートレイの前のプラスチックのスリーブ管にループタブを差し込み、邪
魔にならないようにします。
内臓バッテリーコネクタの接続方法
10
内臓バッテリーコネクタを接続します。
バッテリトレイ左端のコネクタと固定されたUPSのコネクタとを接続します。
バッテリトレイ右端のコネクタと固定されたUPSのコネクタとを接続します。
注記:
電池を接続する際に、少量のアーク放電が起こることがあります。
これは正常であり、装置に損傷を与えたり、安全にかかわる心配はありません。
センターポストの両側にあるバッテリージャンパーの位置を確認して接続します。
センターポスト上部の小さなシェルフにコネクタを置きます。
226
|
インストールおよび起動

注記:
中央バッテリージャンパーを接続することで、2つのバッテリートレイを連結します。
バッテリー保持ブラケットの交換方法
シャーシ側溝
セントラルポストの側溝
注記:
バッテリー保持ブラケットはL (左)とR (右)とラベルされ、設置箇所を示しています。
11
左(L)と右(R)のバッテリー保持ブラケットを取り替えます:
一つ目のバッテリ保持ブラケットのブラケットタブをセンターポストの側溝に挿入します。
接続されているバッテリーケーブルを保持ブラケットの後ろにぴったりとはめてください。
バッテリー保持ブラケットの端をシャーシの側溝に合わせます。
側溝にしっかりと納まるまでブラケットを押し込みます。
チョウネジを時計回りに回してブラケットを固定してください。
手順を繰り返して2つ目のバッテリー保持ブラケットを取り替えます。
インストールおよび起動
|
227

UPSのフロントカバーの取り付け方法
12
付属ボックスからフロントカバーを取り外します。
注記:
UPSを設置するまで、ソフトウェアCD、通信ケーブル、
および(必要であれば)REPOコネクタを付属ボックスに保管してください。
1
2
13
UPSフロントカバーを取り付けます。
フロントカバーをシャーシの前に揃えてください。
フロントカバーの右側タブを、右側シャーシに設けられているタブ用の穴に挿入します。
カバーの左側を前方向に押してシャーシにはめてください。
228
|
インストールおよび起動

注記:
カバーをシャーシに固定する前に、UPSシャーシのLCDパネルとフ
ロントカバーのLCDウィンドウが整列されていることを確認してください。
14
梱包用の箱は、責任を持って処分またはリサイクルするか、今後の使用のため
に保管します。
装置の接続方法
UPSの取り付け方法:
1
Dell MUMC and Dell ULNMソフトウェアを使用する場合、
以下のいずれかの方法で通信を確立してください:
S
Dell Network Management Cardを使用する(設置されている場合)
S
提供されたケーブルでコンピューターをUSBポートに接続する
注記:
通信オプションに関する詳細は、
Dell オンライン式ラック型UPS 10 kW
ユーザーガイド
ページをご参照ください。
2
お使いのラックに、接地用、あるいは非接地金属部品の接合用の導体が含まれる場合は、接
地ケーブル(同梱されていません)を接地接合ネジに接続します。
3つのモデルの各々のグラウンドボンディングネジの位置に関しては、 236
ページの「UPS後方パネル」をご参照ください。
3
地域の条例で、非常停止(切断)スイッチが要求されている場合は、
Dell
オンライン式ラック型UPS 10 kW ユーザーガイド
で
「リモートエマージェンシーパワーオフの設定方法」をご覧ください。
4
オプションでEBMを取り付ける場合は、
Dell オンライン式ラック型EBM 10 k
W はじめに
お使いのシステム の取り付け説明書をご覧ください。
注意:
UPSをEBMなしで保管、あるいは使用する場合、
UPSのリアパネルにあるバッテリーコネクタカバーは、安全注意事項に従い取り付けなければいけま
せん。
5
保護する装置をUPS出力レセプタクルに差し込みます。ただし、保護装置の電源は入れない
でください。
6
必要に応じて、コードを引いたり張力の緩和を行ってください。
注記:
過負荷アラームを防ぐため、装置の定格の合計がUPSの容量
を超えていないか確認してください。
インストールおよび起動
|
229

UPS入力配線
警告:
感電の危険。 有資格のサービススタッフ(認定された電気主任技術者など)
のみが電気器具の取り付けを行ってください。
Dell Rack配線接続型は、以下の条件を満たす専用分岐回路が必要です:
S
保護装置には、UPS入力と電源の間に2極の断路器が必要です。
S
ブレーカーは、壁掛け式であり、操作員が容易にアクセスできる場所に設置されなければな
りません。
S
ヨーロッパ向け ブレーカーは IEC/EN 60934 規格に従い、最低 3 mm
の接触エアギャップを有する必要があります。
S
200–40 Vac
S
単相
S
50/60 Hz
S
柔軟性のある金属製導管(簡便な修理および保守のために推薦)
壁
2極ブレ
ーカ
ライン
AC主電源
UPS
中性/L2
230
|
インストールおよび起動

端子ブロックカバーの取り外し
中性/L2
端子ブロックカ
バー
1
UPSが接続される供給地点のユーティリティ電源をオフにします。
電力が完全に供給されていないことを確認します。
2
端子ブロックカバー (2本のネジ) を取り外して保持します。
3
入力導管用に端子ブロックカバーのノックアウト穴を開けます。 その穴は、1” または
1.5”(25.4 mm または 38.1 mm)中間電線管(IMC)を収容する必要があります。
インストールおよび起動
|
231

注意:
UPSに電流負帰還に対する自動保護装置がない場合、
外付けの絶縁装置を取り付けることを推奨します。 装置を取り付けた後、
以下の注意事項が記載された警告ラベル等を、外付けのACコンタクタに貼り付けなければなりませ
ん: 電圧 負帰還の 恐れがあります。 この回路で操作する前に、UPSを絶縁し、
すべての端子間における危険な電圧を確認してください。
外付け供給パネル
UPS
凡例
QT
B
コイルリモートスイッチ
Q
磁気熱入力
L/L1
L/L1
メインスイッチ
N/L2
N/L2
T
ACコンタクタ
N/L2
中性/L2
L/L1
L1ライン入力
B
以下のリストは、負帰還を防ぐための外付けの絶縁装置として利用可能な負帰還保護装置
(ACコンタクタ)を一覧表示しています。
このリストに表示されたACコンタクタ以外は使用できません。
製造会社 種類 定格
ABB フランス (E12527)
220?40 Vac, 105A
A75-30
208Vで25HP、
240Vで30HP
Tianshui 213 Electrical Apparatus Co.,
220?40 Vac, 68A
Ltd. (E203071)
GSC1(CJX4-d)-6511
25 HP
(代替)
Tianshui 213 Electrical Apparatus Co.,
220?40 Vac, 80A
Ltd. (E203071)
GSC1(CJX4-d)-8011
30 HP
(代替)
注記:
UPSには抗負帰還(ABF)継電器は含まれませんが、
ある程度の負帰還保護は提供されています。 例えば、いくつかのコンポーネントがバッテリーモー
ドで損傷を受けた場合、出力電圧が入力にフィードバックする可能性があります。
この場合、バイパス電流フィードバック電圧の検出に変流器(CT)が用いられます。
電流負負帰還障害状態が検出された場合、怪我を防止するためにUPSがインバータ出力を終了さ ま
す。
232
|
インストールおよび起動

入力ワイヤーおよび接地ワイヤーの取り付け
1
2
3
4
入力ワイヤを導管から引き出し、約2 ft (0.5m) のワイヤをむき出しにしておきます。
導管の末端にフレキシブル接続金具を取り付けます。
5
配線アクセス入り口を通して導管を挿入し、導管接続金具をパネルに取り付けます。
各入来ワイヤーの末端から0.5” (1.5 cm) の絶縁被膜を取り去ります。
6
以下の表に示したUPS配線仕様に従って、入力線およびアース線を端子ブロックに取り付け
てください。
端子ワイヤーサイズ
ワイヤーの機能 端子位置 UPSワイヤーの機能
締め付けトルク
定格*
入力
1
入力接地
2
16?5 mm
2
L2/中性点入力
1.7 Nm (15 lb-in)
(8? AWG)
3
L1入力
* 最小を使用:
S 8 装置接地線用AWG、75_C 銅線最小
S 4 入力線および中性線用AWG、75_C 銅線最小
7
端子ブロックカバーを元に戻します。
インストールおよび起動
|
233

UPSの起動方法
オン/オフボタン
UPSの起動方法:
1
内蔵バッテリーが接続されていることをご確認ください。
2
オプションのEBMがインストールされている場合、EBMがUPSに接続されていることをご確認
ください。 詳細については、
Dell オンライン式ラック型EBM 10 k
W はじめに
お使いのシステムをご参照ください。
3
すべての負荷セグメントサーキットブレーカがオン位置にあることを検証します。
4
メインの電力ブレーカーのスイッチを入れます。
UPSのLCDパネルのディスプレイが明るくなります。 Dell
の起動画面がUPSステータス要約画面に変わります。
UPSの前方パネルのディスプレーは、点滅のスタンバイアイコン
を示しています。
5
UPSの前方パネルにあるオン/オフ ボタンを押します。
完全に起動すると、UPS動作モードに従ってステータスが変わります。
234
|
インストールおよび起動

6
アクティブになっている警告や通知を確かめるには、UPSステータス要約画面の
ボタンを押します。 続ける前に、作動中の警告を解決してください。
Dell
オンライン式ラック型UPS 10 kW ユーザーガイド
の「トラブルシューティング」をご覧ください。
作動中の警告がない場合は、「作動中の警告なし」というメッセージが表示されます。
7
UPSが正常に作動し、負荷電力があることを示す「正常」アイコン
が、UPSのステータス要約画面に現れていることをお確かめください。
8
以下の詳細は、
Dell オンライン式ラック型UPS 10 kW
ユーザーガイド
を参照してください。
S
拡張バッテリモジュール (EBM)
がオプションとしてインストールされている場合の設定手順
S
日付と時間の設定およびその他の工場出荷時設定の変更
9
オプションのREPOを取り付けられている場合は、REPO機能テストを行ってください:
REPOの外部スイッチを有効にします。
UPSのディスプレイのステータスが変わったことをご確認ください。
REPOの外部スイッチを無効にし、UPSを再起動します。
10
バッテリーを充電してください。
注記:
内蔵バッテリーは、3時間以内で90%の容量まで充電されます。
ただし、取り付け後、あるいは長期使用しなかった後は、48時間、バッテリーを充電する必要があ
ります。
注意:
UPSが過負荷状態にならないように、負荷は1つずつ接続し、
ひとつの保護装置が完全に起動し終わるまで次の負荷は接続をしないでください。
インストールおよび起動
|
235

注記:
Dell では、トラブルシューティングや保証のためにも、
日付および時間の設定を推奨します。
注記:
初起動では、UPSは、入力ライン周波数(入力周波数自動検出は初期設定
では有効になっています)に従い、システム周波数を設定します。
初起動後は、出力周波数設定によって手動で再び有効にするまで、自動検出は無効となります。
注記:
初めての起動時、入力自動検出は初期設定としてになっています。
それ以降の起動後は、出力電圧設定によって手動で再び有効にするまで、
自動検出は無効となります。
UPS後方パネルの識別
このセクションでは、3種類の10 kW Dell
RackUPSモデルオプションの後方パネルを表示しています。
236
|
インストールおよび起動

10 kW 208V UPS (DELL10KWOLHVUS)
RS-232
USBポ
REPO
EBMコネ
UPS 通信ベイ
ポート
ート
ポート
クタ
接地ネジ
NEMA L6-30R
IEC 320-C19
NEMA L6-30R
IEC 320-C19
入力端子ブロッ
アウトレット
アウトレット2
アウトレット
アウトレット2
ク
1個
個
1個
個
出力サーキット・ブ
出力サーキット・ブレ
レーカー2個
ーカー2個
負荷セグメント1(LS1)
負荷セグメント2(LS2)
インストールおよび起動
|
237

10 kW 230V UPS (DELL10KWOLHV)
RS-232
USBポ
REPOポ
EBMコネ
UPS 通信ベイ
ポート
ート
ート
クタ
接地ネジ
出力サーキ
IEC 320-C19
IEC 60309
出力サーキット
IEC 60309
入力端子ブロッ
ット・ブレ
レセプタクル
332R6Sレセプタ
・ブレーカ1個
332R6Sレセプタ
ク
ーカー2個
2個
クル1個
クル1個
負荷セグメント1(LS1)
負荷セグメント2(LS2)
238
|
インストールおよび起動

10 kW 230V UPS (DELL10KWOLHVB)
RS-232
USBポ
REPOポ
EBMコネク
UPS 通信ベイ
ポート
ート
ート
タ
接地ネジ
出力サーキット・ブ
出力サーキット
IEC 320-C19
入力端子ブロックIEC 320-C19
レーカー2個
レセプタクル4個
・ブレーカー2個
レセプタクル4個
負荷セグメント1(LS1)
負荷セグメント2(LS2)
インストールおよび起動
|
239

240
|
インストールおよび起動


*P -1640001872*
P-164000187 2

