Dell UPS 10000R – страница 5
Инструкция к Dell UPS 10000R
Оглавление
- Примечания и предупреждения
- Функции системы
- Получение информации Что вы ищите?
- Установка и запуск
- Распаковка корпуса 1 2
- 3 4 5
- 6 7
- 8
- 9 10
- Вариант установки в стойке Для установки ИБП на направляющие: 1
- Установка направляющих 2 3 4
- Установка и фиксация корпуса 5 6 Установка полок для батарей
- 8 9 Подключение разъемов внутренних батарей 10
- Замена кронштейна крепления батареи 11 Установка передней крышки ИБП
- 13
- Подключение оборудования
- Фиксированный монтаж на входе ИБП
- Снятие крышки клеммной колодки
- Производитель Тип Номинал
- Установка входных и заземляющих проводов
- Запуск ИБП Порядок запуска ИБП 1 2 3 4 5
- 6 7 8 9
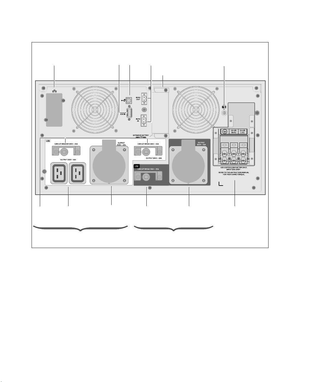
- Идентификация задней панели ИБП
- Установка и запуск
- Установка и запуск
- Установка и запуск

10 kW 230V USV (DELL10KWOLHV)
Kommunikationsschacht
RS-232-
USB-
der USV
Anschluss
Anschluss
REPO-Schnittstellen
Erdungsschraube
EBM-Anschluss
Zwei
Zwei IEC
Eine IEC 60309
Ein Ausgangsüber-
Eine IEC 60309
Eingangsklemmen
Ausgangsüber
320-C19-
332R6S-Steckdose
lastschalter
332R6S-Steckdose
lastschalter
Steckdosen
Lastsegment 1 (LS1)
Lastsegment 2 (LS2)
Installation und Inbetriebnahme
|
79

10 kW 230V USV (DELL10KWOLHVB)
Kommunikationsschacht
RS-232-
USB-
REPO-
der USV
Anschluss
Anschluss
Schnittstellen
Erdungsschraube
EBM-Anschluss
Zwei
Zwei
Vier IEC 320-C19-
EingangsklemmenVier IEC 320-C19-
Ausgangsüberlastschalter
Anschlussdosen
Ausgangsüberlastschalter
Anschlussdosen
Lastsegment 1 (LS1)
Lastsegment 2 (LS2)
80
|
Installation und Inbetriebnahme

Онлайновый ИБП Dellt
устанавливаемый в стойке 10 kW
Начало работы
cсистемой
DELL10KWOLHVUS, DELL10KWOLHV, DELL10KWOLHVB
DELL10KWEBM
www.dell.com | www.support.dell.com | www.dellups.com

Примечания и предупреждения
ПРИМЕЧАНИЕ:
Пометка «ПРИМЕЧАНИЕ» указывает на важную информацию, которая поможет
пользователю более эффективно использовать программное обеспечение.
ОПАСНО:
Пометка «ОПАСНОСТЬ» указывает на ситуации, чреватые непосредственной угрозой,
которая, не будучи нейтрализованной, может привести к серьезной травме, в т.ч. с летальным
исходом.
ПРЕДУПРЕЖДЕНИЕ:
Пометка «ПРЕДУПРЕЖДЕНИЕ» указывает на потенциально опасную ситуацию,
которая, не будучи нейтрализованной, может привести к травме, в т.ч. с летальным исходом.
ВНИМАНИЕ:
Пометка «ВНИМАНИЕ» указывает на потенциально опасную ситуацию, которая, не
будучи нейтрализованной, может привести к травмам легкой и средней степени тяжести или к
повреждению имущества.
ОПАСНО:
Следуйте приведенным ниже инструкциям, позволяющим предупредить
непосредственную угрозу, которая, не будучи нейтрализованной, может привести к серьезной
травме, в т.ч. с летальным исходом:
S
В устройстве ИБП некоторые узлы находятся под СМЕРТЕЛЬНО ОПАСНЫМ НАПРЯЖЕНИЕМ.
Все работы по ремонту и обслуживанию должны выполняться ТОЛЬКО УПОЛНОМОЧЕННЫМ
ОБСЛУЖИВАЮЩИМ ПЕРСОНАЛОМ.ВИБПилиВБМНЕТ УЗЛОВ, ОБСЛУЖИВАЕМЫХ
ПОЛЬЗОВАТЕЛЕМ.
Информация в настоящем документе может быть изменена без предварительного уведомления.
E 2012 г., Dell Inc. Все права защищены.
Воспроизведение данного документа любым способом без письменного разрешения компании Dell Inc. категорически запрещено.
Товарные знаки, используемые в данном тексте: Dell и логотип DELL lявляются товарными знаками компании Dell Inc.
Наименование ENERGY STAR является зарегистрированным товарным знаком Агентства защиты окружающей среды США.
Остальные товарные знаки и торговые марки могут использоваться в этом руководстве для обозначения фирм, заявляющих свои
права на товарные знаки и названия, или продуктов этих фирм. Компания Dell Inc. отказывается от любого права собственности
на какие-либо товарные знаки или коммерческие названия, кроме своих собственных.
Декабрь 2012

Функции системы
Уникальные преимущества, обеспечивающие исключительную эффективность и надежность ИБП:
S
Онлайн ИБП с чистой синусоидой на выходе.
S
Технология двойного преобразования с высокой удельной мощностью, независимой от сети
частотой питания и возможностью совместной работы с генератором.
S
Понижающая и повышающая регулировка напряжения обеспечивает подачу стабильного
напряжения на нагрузку путем коррекции колебаний напряжения.
S
ИБП фильтрует входной переменный ток, контролирует его параметры и обеспечивает
стабильное питание оборудования, не разряжая батарею.
S
Выбираемый пользователем режим высокой эффективности.
S
Высота СБП 5U .
S
Функция запуска от батареи используется для питания ИБП даже при отсутствии питания от
электросети.
S
Возможность безопасной замены аккумуляторов без отключения ИБП от сети упрощает
процедуру технического обслуживания.
S
Сервисная информация Dell выводится на ЖК-дисплей передней панели.
S
Длительное время работы с дополнительным модулем External Battery Module (EBM).
S
Управление аварийным выключением через порты дистанционного аварийного выключения
питания (REPO).
S
Два стандартных коммуникационных портов (USB и последовательный порт RS-232).
S
Дополнительная карта Dell Network Management Card (также известная как NMC) с
усовершенствованными коммуникационными возможностями улучшает защиту по питанию и
его мониторинг.
S
Опциональный Powerware Environmental Monitoring Probe (EMP) для сбора информации о
температуре и влажности в рамках удаленного мониторинга окружающей среды и экологии. Вы
можете также получать информацию о статусе двух, предоставленных пользователем,
контактных устройствах.
S
Усовершенствованное управление питанием при помощи ПОDellt Multi-UPS Management
Console (MUMC) and Dellt UPS Local Node Manager (ULNM) обеспечивает надлежащее
выключение нагрузки и мониторинг электропитания.
S
Последовательное выключение и управление нагрузкой при помощи раздельных групп
разъемов, называемых сегментами нагрузки.
S
Легко обновляемое встроенное ПО: для его обновления нет необходимости обращаться в
службу технической поддержки.
S
Имеется аттестация международных организаций.
®
S
ИБП сертифицированные
ENERGY STAR
.
Функции системы
|
83

Получение информации
ВНИМАНИЕ!
Документ Информация о технике безопасности, охране окружающей среды и
нормативная информация содержит важные данные по безопасности.
Что вы ищите?
Найдите здесь
S Руководство пользователя для моего ИБП
Диск ИБП Dell
S Руководство пользователя для Dell Network
Management Card
S Dell MUMC and Dell ULNM Руководство
пользователя
ПРИМЕЧАНИЕ:
Документацию и обновления
программного обеспечения можно найти по адресу
www.support.dell.com и www.dellups.com.
S Уточнения
Руководство пользователя ИБП Dell
S Как задавать настройки ИБП
Руководство пользователя доступно на диске ИБП
S Поиск и устранение неисправностей и разрешение
Dell и на www.support.dell.com.
проблем
S Как установить управление посредством REPO
S Инструкции по технике безопасности
Информация по технике безопасности, соблюде
нию требований охраны окружающей среды и
S Нормативные документы
нормативные сведения
S Информация об утилизации
S Информация о гарантии
Информация о гарантии и поддержке Dell
S Постановления и условия (только для США)
S лицензионное соглашение для конечного
пользователя
S Информация о поддержке Сайт поддержки Dell Ċ www.support.dell.com
ПРИМЕЧАНИЕ:
Выберите свой регион или сегмент
бизнеса для отображения соответствующего сайта
поддержки.
84
|
Получение информации

Установка и запуск
ВНИМАНИЕ!
Перед выполнением процедуры, описанной в данной документации, прочтите и
выполните инструкции по технике безопасности и ознакомьтесь с важным нормативным
документомИнформация о технике безопасности, охране окружающей среды и нормативная
информация.
ВНИМАНИЕ!
Распаковка корпуса при низкой температуре может привести к конденсации
влаги на внутренних и наружных поверхностях корпуса. Не устанавливайте корпус до полного
высыхания его внутренних и наружных поверхностей (во избежание поражения
электрическим током).
Установка и запуск
|
85

ВНИМАНИЕ!
Установка и извлечение батарей должно осуществляться или контролироваться
персоналом, хорошо знающим батареи и требования техники безопасности. Не допускайте к
аккумуляторным батареям посторонних.
ВНИМАНИЕ!
Корпус тяжелый (99 кг/218 фунт): Перед подъемом корпуса всегда извлекайте
лотки батареи из ИБП. Для подъема корпуса в стойку требуется не менее двух человек.
ВНИМАНИЕ!
Батареи тяжелые (32 кг/71 фунт). Правильно извлекайте батареи.
ПРИМЕЧАНИЕ.
Проявляйте осторожность при перемещениииоткрытииупаковочной тары.
Оставляйте детали в упаковке вплоть до момента установки.
В данном разделе описываются этапы настройки системы, если настойка выполняется впервые.
Распаковка корпуса
Для распаковки системы:
1
Используйте вилочный погрузчик или рохлу, переместите коробку и поддон к стойке, на
которую вы будете устанавливать ИБП.
2
Снимите и удалите внешнюю упаковку.
86
|
Установка и запуск

3
Выньте два ящика с принадлежностями, находящиеся в рельефных каналах в верхней части
пенопласта.
4
Откройте ящики с принадлежностями и установите их на ровную устойчивую поверхность
неподалеку.
ПРИМЕЧАНИЕ.
Руководство пользователя онлайнового 10 кВт ИБП Dell при установке в стойке
предоставляет информацию по распаковке и установке. Достаньте его из ящика с принадлежностями.
5
Снимите верхнюю часть пенопласта и установите его на ровную устойчивую поверхность
неподалеку.
Установка и запуск
|
87

ПРИМЕЧАНИЕ.
Обозначения L (Лево) и R (Право) на крепежных контейнерах указывают на то, где
они должны быть установлены.
6
Снимите кронштейны крепления батареи с ИБП:
Найдите левый (помечен буквойL) кронштейн крепления. На левой стороне корпуса поверните
винт-барашек против часовой стрелки, чтобы освободить левый кронштейн крепления.
Отодвиньте кронштейн к центральной стойке, чтобы освободить его из корпуса. Поверните
кронштейн крепления к себе и потяните его влево, чтобы убрать его. Уберите кронштейн
крепления в сторону.
Найдите правый (обозначенный буквой R) кронштейн крепления. На правой стороне корпуса
поверните винт-барашек против часовой стрелки, чтобы освободить правый кронштейн
крепления.
Отодвиньте кронштейн к центральной стойке, чтобы освободить его из корпуса. Поверните
кронштейн крепления к себе и потяните его вправо, чтобы убрать его. Уберите кронштейн
крепления в сторону.
7
Убедитесь, что все разъемы батареи отключены.
88
|
Установка и запуск

ВНИМАНИЕ!
Батареи тяжелые (32 кг/71 фунт). Правильно извлекайте батареи.
8
Извлеките коробку с батареями из ИБП:
Отсоедините разъемы батареи ИБП и поместите их на батарейный отсек, чтобы они не мешали.
Возьмитесь за два пластиковых петлевых ушка на передней панели батареи. Потяните лоток на
себя, чтобы освободить его.
ПРИМЕЧАНИЕ.
Оранжевая метка ПОТЯНУТЬ ЗДЕСЬ указывает, где нужно взяться за петлевые ушки.
Установите батарейный отсек на участке пенопласта, который вы сняли с верхней части ИБП.
Повторите процедуру для второго лотка батареи.
Установка и запуск
|
89

ВНИМАНИЕ!
Корпус тяжелый (46 кг/101 фунт), даже если батареи сняты. Для извлечения
корпуса из картонного поддона для транспортировки требуется не менее двух человек.
9
Два человека (по одному человеку с каждой стороны) должны осторожно вынуть корпус из
пенопласта за ручки на картоне.
10
Установите корпус на ровную устойчивую поверхность на защищенной территории возле
стойки, в которую вы собираетесь его установить.
ПРИМЕЧАНИЕ.
Поместите в хорошо проветриваемое защищенное место, где отсутствует влага,
воспламеняющиеся газы и коррозия.
90
|
Установка и запуск

Вариант установки в стойке
ВНИМАНИЕ!
Корпус тяжелый (99 кг/218 фунт). Всегда вынимайте из ИБП оба лотка перед
подъемом корпуса и установкой ИБП на салазках в стойку. Для подъема корпусов на стойку
требуется не менее двух человек.
ВНИМАНИЕ!
Установка или извлечение батарей должно осуществляться или
контролироваться персоналом, хорошо знающим батареи и требования техники безопасности.
Не допускайте к аккумуляторным батареям посторонних.
ВНИМАНИЕ!
Батареи тяжелые (32 кг/71 фунт). Правильно извлекайте батареи.
ВНИМАНИЕ!
При установке дополнительного EBM, EBM должен быть расположен под ИБП без
пространства между ИБП и EBM. Это обеспечивает лучшее распределение веса в стойке, более
легкий доступ к панели управления ИБП, и более легкое размещение кабельных соединений
батареи. Это также позволяет избежать натяжения между кабелем EBM и соединением ИБП, а
также возможного нарушения соединения.
ПРЕДУПРЕЖДЕНИЕ.
В отношении систем, монтируемых на стойке: При установке нескольких
систем на стойке завершите все действия с одной системой, перед тем как приступить к
установке следующей.
ПРИМЕЧАНИЕ.
Направляющие необходимы для установки каждого корпуса.
ПРИМЕЧАНИЕ.
Корпус поставляется со снятым гнездом передней крышки.
ПРИМЕЧАНИЕ.
Следующие инструкции являются одинаковыми как для стоек с квадратными
отверстиями, так и для стоек с круглыми отверстиями без резьбы. Направляющие подходят для обоих
видов стоек.
Для установки ИБП на направляющие:
1
Убедитесь, что следующее размещено на ровную устойчивую поверхность у стойки, где вы
будете устанавливать ИБП:
S
корпус
S
два ящика с принадлежностями ИБП
S
два лотка (только ИБП)
S
двакронштейнакрепления(толькоИБП)
Установка и запуск
|
91

Установка направляющих
2
Достаньте салазки из отсека для салазок, что в ящике с принадлежностями.
3
Выберите надлежащие отверстия в направляющих для размещения корпуса в желаемом месте
стойки.
Найдите направляющие в нижней части зоны 5U, выделенной для ИБП.
ВНИМАНИЕ!
При установке дополнительного EBM, убедитесь, что EBM расположен сразу под
ИБП без пространства между ИБП и EBM.
ПРИМЕЧАНИЕ.
Обратите внимание на надписи на направляющих для правой передней (надпись
RIGHT FRONT )) и для левой передней (надпись LEFT FRONT). Направляющие должны быть
установлены именно таким образом.
4
Установите левую и правую салазки как показано на рисунке. Прикрепите левую и правую
направляющие к стойке:
Зацепите задний конец направляющей таким образом, чтобы он полностью сел на фланец
вертикальной стойки, а замок закрылся со щелчком.
Потяните за направляющие так, чтобы они слегка выступали за переднюю панель стойки.
Надавите на передний конец направляющей таким образом, чтобы он полностью сел на фланец
вертикальной стойки, а замок закрылся со щелчком.
92
|
Установка и запуск

Установка и фиксация корпуса
ВНИМАНИЕ!
Корпус тяжелый (46 кг/101 фунт), даже если батареи сняты. Для подъема корпуса
в стойку требуется не менее двух человек.
5
Установите корпус на направляющие и задвиньте в стойку.
6
Закрепите переднюю часть корпуса на стойке при помощи четырех винтов с накатанной
головкой на монтажных кронштейнах. Затяните винты по часовой стрелке вручную, без
использования силового инструмента.
Установка полок для батарей
7
Найдите лотки батареи, которые вы положили возле стойки.
Установка и запуск
|
93

ВНИМАНИЕ!
Батареи тяжелые (32 кг/71 фунт). Правильно поднимайте батареи при установке.
ПРИМЕЧАНИЕ.
Лотки батареи могут быть установлены в любой из батарейных отсеков.
ПРИМЕЧАНИЕ.
Вставьте лоток так, чтобы предупреждающая стрелка указывала вверх.
8
Установка полок для батарей:
Поместите разъемы батареи ИБП на батарейный отсек, чтобы они не мешали.
Полностью вдвиньте блок батареи в батарейный отсек.
Повторите процедуру для второго лотка батареи.
9
Заправьте петлевые ушки в пластиковый рукав на передней панели каждого батарейный
отсека, чтобы они вам не мешали.
Подключение разъемов внутренних батарей
10
Подключите разъемы внутренней батареи:
Подсоедините дальний левый разъем лотка батареи к фиксируемому разъему ИБП.
Подсоедините дальний правый разъем лотка батареи к фиксируемому разъему ИБП.
ПРИМЕЧАНИЕ.
Приподключениибатарейвозможнонезначительное искрение. Это нормальное
явление; оно не повреждает ИБП и не опасно.
Найдите и подключите перемычки батареи, расположенные на обеих кромках средней стойки.
Поместите разъемы на небольшой полке в верхней части средней стойки.
ПРИМЕЧАНИЕ.
Подключая перемычки центральной батареи, вы последовательно соединяете два
лотка батарей.
94
|
Установка и запуск

Замена кронштейна крепления батареи
Боковой паз
корпуса
Боковой паз средней стойки
ПРИМЕЧАНИЕ.
Обозначения L (Лево) и R (Право) на крепежных контейнерах указывают на то, где
они должны быть установлены.
11
Снимите левый (L)иправый(R) крепежные кронштейны батарей:
Для первой скобы батареи, вставьте кронштейн в паз на стенке средней стойки. Плотно
закрепите соединительные кабели батареи за кронштейном.
Выровняйте край скобы батареи с помощью канала на корпусе. Сдвиньте кронштейн, пока он
прочно не зафиксируется в боковом пазу.
Поверните винт-барашек по часовой стрелке, чтобы закрепить кронштейн.
Повторите процедуру для крепежного кронштейна второй батареи.
Установка передней крышки ИБП
12
Снимите переднюю крышку ящика с принадлежностями.
Установка и запуск
|
95

ПРИМЕЧАНИЕ.
Держите диск с программным обеспечением, кабель связи, а также (при
необходимости) разъемы переключателя удаленного аварийного отключения (REPO) в ящике с
принадлежностями, пока не установите ИБП.
1
2
13
Установите переднюю крышку ИБП:
Выровняйте переднюю панель с передней частью корпуса.
Вставьте правые выступы на передней крышке в отверстия на правой стороне корпуса.
Нажимайте на левую сторону крышки, пока она не защелкнется в корпус.
ПРИМЕЧАНИЕ.
Перед закреплением крышки корпуса ИБП, убедитесь, что ЖК-панель на корпусе
совпадает ЖК экраном на передней панели.
14
Удалите в отходы или утилизируйте упаковку согласно установленным правилам или
сохраните ее для будущего использования.
96
|
Установка и запуск

Подключение оборудования
Порядок установки ИБП
1
Если вы планируете использовать Dell MUMC and Dell ULNM программное обеспечение,
установить связь одним из следующих способов:
S
используя Dell Network Management Card (если она установлена)
S
с помощью прилагаемого кабеля для подключения компьютера к USB порту
ПРИМЕЧАНИЕ.
Для получения дополнительной информации о вариантах коммуникационных
подключений смотрите Руководство пользователя онлайнового 10 кВт ИБП Dell при установке в
стойке.
2
Если стойка оснащена проводниками для заземления незаземленных металлических деталей,
подсоедините кабель заземления (не входит в комплект поставки) к винту заземления.
Информацию о расположении заземляющего винта для каждой из трех моделей см. в разделе
«Задние панели ИБП» на странице 104.
3
Если местные нормативы требуют наличия аварийного (отключающего) выключателя питания,
смотрите раздел «Установка дистанционного аварийного выключателя питания» в Руководство
пользователя онлайнового 10 кВт ИБП Dell при установке в стойке.
4
Инструкции по установке дополнительного EBM смотрите в разделе EBM Dell на стойке 10 кW
Начало работы c системой.
ВНИМАНИЕ!
Если ИБП хранится или используется без EBM, крышка разъема батарей на
задней панели ИБП должна быть установлена в качестве меры предосторожности.
5
Подключите оборудование, которое необходимо предохранить от скачков напряжения, к
выходным гнездам ИБП, но не включайте его.
6
Проверьте надежность подключения и отсутствие натяжения кабелей.
ПРИМЕЧАНИЕ.
Во избежание перегрузки убедитесь в том, что общая паспортная мощность
оборудования не превышает мощность ИБП.
Установка и запуск
|
97

Фиксированный монтаж на входе ИБП
ПРЕДУПРЕЖДЕНИЕ.
Существует опасность поражения электрическим током. Установка
электрооборудования может выполняться только квалифицированным обслуживающим
персоналом (например, сертифицированным электриком).
Модели Dell Rack требуют выделенной ответвленной цепи, отвечающей следующим требованиям:
S
Предохранительное устройство требует наличия двухполюсного устройства рассоединения
между входом ИБП и сетью
S
Выключатель должен быть установлен на стене и быть легко доступным для оператора
S
Для Европы. Размыкатель должен отвечать стандарту IEC/EN 60934 и иметь контактный
воздушный просвет не менее 3 мм.
S
200Ċ240 В переменного тока
S
Однофазная
S
50/60 Гц
S
Гибкий металлический кабелепровод (рекомендуется для облегчения обслуживания и ремонта)
Стена
2-полюсный
прерыватель
Строка
Розетка
переменного
ИБП
тока
Нейтраль/L2
98
|
Установка и запуск

