Dell UPS 10000R – страница 3
Инструкция к Dell UPS 10000R
Оглавление
- Примечания и предупреждения
- Функции системы
- Получение информации Что вы ищите?
- Установка и запуск
- Распаковка корпуса 1 2
- 3 4 5
- 6 7
- 8
- 9 10
- Вариант установки в стойке Для установки ИБП на направляющие: 1
- Установка направляющих 2 3 4
- Установка и фиксация корпуса 5 6 Установка полок для батарей
- 8 9 Подключение разъемов внутренних батарей 10
- Замена кронштейна крепления батареи 11 Установка передней крышки ИБП
- 13
- Подключение оборудования
- Фиксированный монтаж на входе ИБП
- Снятие крышки клеммной колодки
- Производитель Тип Номинал
- Установка входных и заземляющих проводов
- Запуск ИБП Порядок запуска ИБП 1 2 3 4 5
- 6 7 8 9
- Идентификация задней панели ИБП
- Установка и запуск
- Установка и запуск
- Установка и запуск

Installation et Fixation du Module
ATTENTION:
le module est lourd (46 kg/101lb) lorsque les batteries sont retirées. Soulever e module dans la
baie exige deux personnes au minimum.
5
Faites glisser le module sur les rails et dans la baie.
6
Fixez l’avant du module sur la baie en utilisant les quatre vis à oreilles sur les supports de montage.
Serrez manuellement les vis à oreilles dans le sens des aiguilles d’une montre. N’utilisez pas d’outils
mécaniques.
Installation et démarrage
|
39

Installation des Plateaux de Batteries
7
Repérez les plateaux d es batteries que vous avez placés à côté de la baie.
ATTENTION:
Les batteries sont lourdes (32 kg/71 lb). Utilisez les méthodes de levage appropriées lors de
l'installation des batteries.
REMARQUE:
Les plateaux des batteries peuvent être installés dans l'un des deux compartiments
correspondants.
REMARQUE:
Insérez le plateau avec la flèche d'avertissement vers le haut.
8
Installez les plateaux de batteries :
Enlevez les connecteurs de batterie de l’onduleur vers le haut du compartiment afin qu’ils ne gènent
pas.
Faites complètement glisser le plateaux de batteries dans le compartiment.
Répétez cette procédure pour installer le deuxième plateau.
9
Insérez les languettes dans la gaine en plastique à l’avant de chaque plateau de manière à les dégager.
40
|
Installation et démarrage

Branchement des connecteurs de batterie interne
10
Branchez les connecteurs internes des batteries :
Branchez les connecteurs du plateau à l’extrémité gauche au connecteur fixe de l’onduleur. Branchez
les connecteurs du plateau à l’extrémité droite au connecteur fixe de l’onduleur.
REMARQUE:
Un petit arc électrique peut survenir lors du branchement des batteries. Ceci est normal,
n'endommage pas l'unité et ne pose aucun problème de sécurité.
Repérez et connectez les cavaliers de batterie sur chaque côté de la tige centrale. Placez les
connecteurs sur le petit support en haut de la tige centrale.
REMARQUE:
La connexion des cavaliers de batterie centraux permet la connexion en série des deux
plateaux.
Installation et démarrage
|
41

Remplacement du support de fixation des batteries
Fente latérale du
châssis
Fente latérale de la tige centrale
REMARQUE:
Les supports de fixation de batterie sont marqués L (gauche) et R (droit) pour désigner leurs
emplacements respectifs.
11
Remettez en place les supports de fixa tion de batterie gauche (L)etdroit(R):
Pour le premier support de fixation des batteries, insérez la languette du support dans la fente située
surlecôtédelatigecentrale.Installezsoigneusement les câbles d e batterie connectés derrière le
support de fixation.
Alignez l’extrémité du support de fixation de batterie avec la fente située sur le côté du châssis.
Poussez le support jusqu’à ce qu’il s’enclenche bien dans la fente latérale.
Faites pivoter la vis à oreilles dans le sens d es aiguilles d’une montre pour fixer le support.
Répétez cette opération pour le deuxième support de fixation de batterie.
42
|
Installation et démarrage

Installation du couvercle avant de l'onduleur
12
Retirez le couvercle avant de la boîte d’accessoires.
REMARQUE:
Conservez le CD du logiciel, le câble de communication et (si nécessaire) les connecteurs REPO
dans la boîte d'accessoires jusqu'à l'installation de l'onduleur.
1
2
Installation et démarrage
|
43

13
Installez le couvercle avant de l’onduleur :
Alignez le couvercle avant sur la partie avant du châssis.
Insérez les languettes droites du couvercle avant dans les trous des languettes situés sur le côté droit
du châssis.
Poussez la partie gauche du couvercle vers l’avant, puis insérez--la dans le châssis.
REMARQUE:
Veillez à aligner le panneau LCD du châssis de l'onduleur sur la fenêtre LCD du couvercle avant
de le fixer.
14
Jetez ou recyclez l’emballage de manière responsable, o u conservez --le pour une utilisation u ltérieure.
Connexion de l'Equipement
Pour installer l’onduleur :
1
Si vous envisagez d’utiliser le logiciel Dell MUMC and Dell ULNM, établissez la communication de
l’une d es manières suivantes :
S
via la Dell Network Management Card (si elle est installée),
S
via le câble fourni pour relier votre ordinateur au port USB.
REMARQUE:
Pour de plus amples informations sur les options de communication, référez-vous au Guide de
l'utilisateur de l'onduleur en baie en ligne Dell 10 kW.
2
Si votre châssis a des conducteurs pour la mise à la terre ou des soudures de pièces métalliques non
reliées à la masse, connectez le câble de masse (non fourni) à la vis de connexion à la masse. Voir «
Panneaux arrière de l’onduleur » page 51 pour l’emplacement de la vis de mise à la terre pour
chacun des trois modèles.
3
Si un interrupteur d’arrêt (disjoncteur) d’urgence est requis par les réglementations locales,
référez--vous à « Installation d’un arrêt d’urgence à d istance » dans le Guide de l’utilisateur de
l’onduleu r en baie en ligne Dell 1 0 kW.
4
Si vous installez un EBM en option, référez--vous au Guide de mise en route de l’EBM en baie en
ligne Dell 10 kW pour les in structions d’installation.
ATTENTION:
If the UPS is stored or used without an EBM, the battery connector cover on the rear panel of
the UPS must be installed as a safety precaution.
5
Branchez l’équipement à protéger sur les prises de sortie de l’onduleur, mais ne mettez pas
l’équipement à protéger sous tension.
6
Prenez toutes les dispositions nécessaires pour le maintien e t la protection du cordon .
REMARQUE:
Pour éviter une alarme de surcharge, vérifiez que les valeurs nominales totales de l'équipement
ne dépassent pas la capacité de l'onduleur.
44
|
Installation et démarrage

Câblage de l'entrée de l'onduleur
AVERTISSEMENT:
Risque de choc électrique. Seul un personnel qualifié (comme un électricien agréé) peut
réaliser le branchement électrique.
Les modèles Baie En Ligne Dell câblés requièrent un circuit de branchement spécifique conforme aux
spécifications suivantes :
S
Le système de protection demande un dispositif de déconnexion bipolaire entre la sortie de l’onduleur
et la charge
S
Le disjoncteur doit être fixé au mur et facilement accessible pour l’opérateur
S
Pour l’Europe. Le disjoncteur doit répondre à la norme IEC/EN 60934 et avoir un entrefer par
contact d’au moins 3 mm
S
200–240 V CA
S
Monophasée
S
50/60 Hz
S
Conduit métallique flexible (recommandé pour la facilité de service et d’entretien)
Mur
Disjoncteur
bipolaire
Ligne
Secteur CA
SAI
Neutre/L2
Installation et démarrage
|
45

Retrait du couvercle cache-bornes
Trou défonçable
Cache du bornier
1
Éteignez l’alimentation au point de distribution où l’onduleur sera connecté. Soyez absolument sûr
qu’il n’y a pas d’alimentation .
2
Retirez le couvercle cache--bornes (deux vis) et mettez--le de côté.
3
Percez le trou défonçable dans le cache du bornier pour faire passer le conduit d’entrée. Le trou doit
convenir à un conduit métallique flexible (IMC) de 1” ou 1,5” (25,4mmou38,1mm).
46
|
Installation et démarrage

ATTENTION:
Si l'onduleur ne dispose pas d'un dispositif de protection contre les renvois de tension,
installez un dispositif isolant externe. Après l'installation du dispositif, il vous faudra apposer sur le
contacteur CA externe un message d'avertissement dans les termes suivants ou leur équivalent :
RISQUE DE RETOUR DE TENSION. Isolez l'onduleur avant d'intervenir sur ce circuit, puis vérifiez l'absence de
tension dangereuse entre toutes les bornes.
Panneau de distribution externe
SAI
Légende
QT
B
Interrupteur de bobine à distance
Q
Alimentation magnéto-thermique
L/L1
L/L1
Interrupteur principal
N/L2
N/L2
T
Contacteur CA
N/L2
Neutre/L2
L/L1
Entrée de ligne L1
B
Le tableau ci--dessous énumère les dispositifs de protection contre les renvois de tension (contacteurs CA)
qui peuvent être utilisés comme un dispositif isolant externe de protection contre les renvois de tension.
Utilisez uniquement les c ontacteurs CA énumérés dans le tableau.
Fabricant Type Valeur nominale
ABB France (E12527)
220–240 VCA, 105 A
A75--30
25 HP à 208 V, 30 HP à
240 V
Tianshui 213 Electrical Apparatus Co., Ltd.
220–240 VCA, 68 A
(E203071)
GSC1(CJX4--d)--6511
25 HP
(alternative)
Tianshui 213 Electrical Apparatus Co., Ltd.
220–240 VCA, 80 A
(E203071)
GSC1(CJX4--d)--8011
30 HP
(alternative)
REMARQUE:
Une protection contre les renvois de tension est fournie même si l'onduleur n'offre aucun relais
anti-renvoi de tension. Par exemple, si certains composants s'avèrent altérés en mode batterie, la tension de
sortie peut revenir vers l'entrée par rétroaction. Dans ce cas, un transformateur de courant permet de détecter
la tension de rétroaction parallèle. Si une erreur de rétroaction électrique est détectée, l'onduleur désactive la
sortie de l'inverseur pour éviter tout risque de blessure corporelle.
Installation et démarrage
|
47

Installation des Câbles d'Entrée et de Terre
1
2
3
4
Tirez le câble d’entrée par le conduit, en laissant environ 6 0,96 cm (0.5m) de câble exposé. Fixez une
attache m étallique flexible à l’extrémité du conduit.
5
Insérez le tuyau dans l’entrée des fils et attachez la fixation du tuyau au panneau. Dénudez 0.5”
(1,5 cm) d’isolation à l’extrémité de chaque câble d’arrivée.
6
Connectez les fils d’entrée et de masse au bornier d’entrée conformément aux spécifications du
câblage de l’onduleur dans le tableau suivant.
Fonction du
Position de la
Fonction du fil de
Valeur nominale de la
Couple de serrage
câble
Borne
l'onduleur
taille du fil du terminal*
Entrée
1
Terre d’entrée
2
16--35 mm
2
L2/Neutre In
1.7 Nm (15 lb--in)
(8--2 AWG)
3
L1 In
* Utilisez un minimu m :
S 8 AWG pour un fil de terre de l’équipement, fil de cuivre minimum 75 _C
S 4 AWG pour fils neutres et de ligne d’entrée, fil de cuivre minimum 75_C
7
Replacez le couvercle cache--bornes.
48
|
Installation et démarrage

Démarrage de l'onduleur
Bouton
Marche/Arrêt
Pour démarrer l’onduleur :
1
Vérifiez que les batteries internes sont connectées.
2
Si un EBM en option est installé, vérifiez qu’il EBM est connecté à l’onduleur. Reportez--vous au
Guide de mise en route de l’EBM en baie en ligne Dell 10 kW pour plus d’informations.
3
Vérifiez que tous les disjoncteurs des segments de charge sont en position ON.
4
Allumez le disjoncteur du secteur.
L’écran du panneau LCD de l’onduleur s’allume. L’écran de démarrage Dell passe à l’écran de
résumé d’état de l’onduleur. L’ écran du panneau avant de l’onduleur affiche l’icône Veille
clignotante
.
5
Appuyez sur le bouton Marche/Arrêt sur le panneau avant de l’onduleur.
Une fois le démarrage terminé, l’état change en fonction du mode opérationnel de l’onduleur.
Installation et démarrage
|
49

6
Sur l’écran de résumé d’état de l’onduleur, appuyez sur le bouton pour vérifier les notifications et
les alarmes actives. Traitez toutes les alarmes actives avant de continuer. Voir « Dépannage » dans le
Guide de l’utilisateur de l’onduleur en baie en ligne Dell 10 kW.
Si aucune alarme n’est activée, un message « Aucune alarme active » apparaîtra.
7
Vérifiez que l’icône Normal apparaisse sur l’écran de résumé d’état de l’onduleur, indiquant que
l’onduleu r fonc tionne normalement et que toutes les charges so nt alimentées.
8
Reportez--vous au Guide de l’utilisateur de l’onduleur en baie en ligne Dell 10 kW pour ce qui suit :
S
Pour les procédures de configuration si un module d’extension de batterie en option (EBM) est
install
S
Pour définir la date et l’heure et changer d’autres paramètres d’usine par défaut
9
Si vous aviez installé un REPO en option, vérifiez la fonction REPO :
Activez l’interrupteur externe REPO. Vérifiez le changement d’état sur l’afficheur de l’onduleur.
Désactivez l’interrupteur externe REPO et redémarrez l’onduleur.
10
Chargez les batteries.
REMARQUE:
Les batteries internes se chargent à 90% de leur capacité en moins de trois heures. Cependant,
vous devez recharger les batteries pendant 48 heures après l'installation ou un stockage de longue durée.
ATTENTION:
Pour éviter des conditions de surcharge de l'onduleur, connectez une seule charge à la fois et
vérifiez que chaque dispositif protégé démarre complètement avant de connecter la charge suivante.
REMARQUE:
Dell recommande de régler la date et l'heure à des fins de dépannage ou de garantie.
50
|
Installation et démarrage

REMARQUE:
Au démarrage initial, l'onduleur règle la fréquence du système selon la fréquence de la ligne
d'entrée (la détection automatique de la fréquence d'entrée est activée par défaut). Après le démarrage initial,
la détection automatique est désactivée jusqu'à ce qu'elle soit réactivée manuellement par paramétrage de la
fréquence de sortie.
REMARQUE:
Au démarrage initial, la détection automatique de la tension d'entrée est activée par défaut.
Après le démarrage suivant, la détection automatique est désactivée jusqu'à ce qu'elle soit réactivée
manuellement par paramétrage de la tension de sortie.
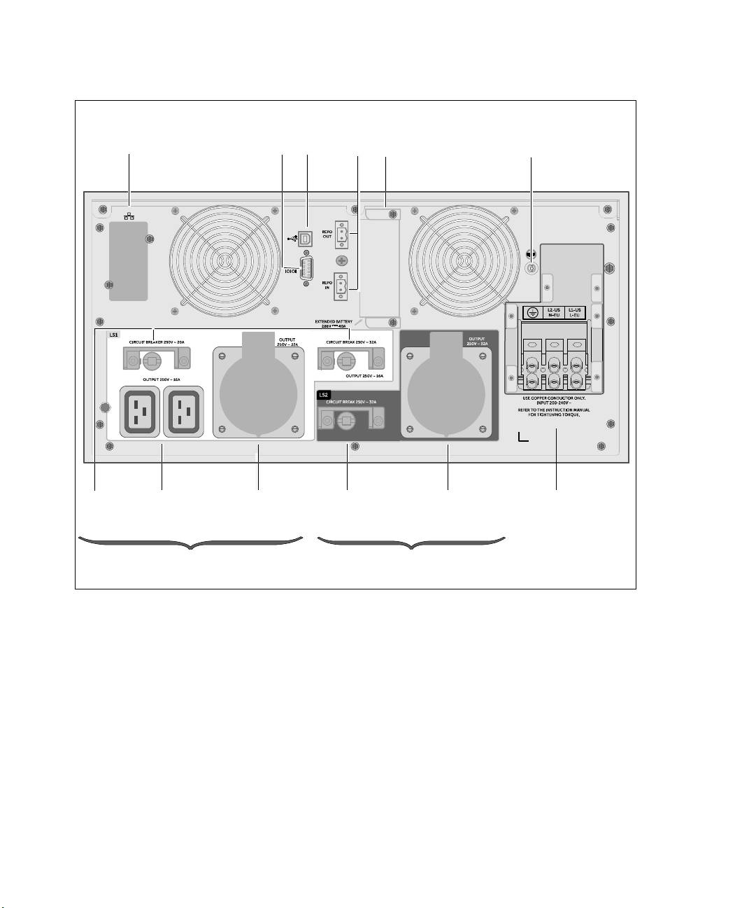
Identification des Panneaux arrières de l'onduleur
Cette section illustre les panneaux arrières des trois options de modèles d’onduleurs Baie En Ligne Dell
10 kW.
Onduleur 10 kW 208 V (DELL10KWOLHVUS)
Baie de communication
Port
Port
Ports
Connecteu
Vis de mise
de l'onduleur
RS-232
USB
REPO
rdel'EBM
àlaterre
Une prise NEMA
Deux prises CEI
Une prise NEMA
Deux prises CEI
Bornier d'entrée
L6-30R
320-C19
L6-30R
320-C19
Deux coupe-circuits
Deux coupe-circuits
de sortie
de sortie
Segment de charge 1 (LS1)
Segment de charge 2 (LS2)
Installation et démarrage
|
51

Onduleur 10 kW 230 V (DELL10KWOLHV)
Baie de communication
Port
Port
Ports
Connecteur
Vis de mise
de l'onduleur
RS-232
USB
REPO
de l'EBM
àlaterre
Deux
Deux Prises
Une prise
Un
Une prise
Bornier d'entrée
coupe-circuits
CEI 320-C19
CEI 60309 332R6S
coupe-circuit
CEI 60309 332R6S
de sortie
de sortie
Segment de charge 1 (LS1)
Segment de charge 2 (LS2)
52
|
Installation et démarrage

Onduleur 10 kW 230 V (DELL10KWOLHVB)
Baie de communication
Port
Port
Ports
Connecteur
Vis de mise
de l'onduleur
RS-232
USB
REPO
de l'EBM
àlaterre
Deux coupe-circuits
Deux coupe-circuits
Quatre prises
Bornier d'entréeQuatre prises
de sortie
CEI 320-C19
de sortie
CEI 320-C19
Segment de charge 1 (LS1)
Segment de charge 2 (LS2)
Installation et démarrage
|
53

54
|
Installation et démarrage

Dellt Online-Rack-USV
10 kW
Erste Schritte
mit Ihrem System
DELL10KWOLHVUS, DELL10KWOLHV, DELL10KWOLHVB
DELL10KWEBM
www.dell.com | www.support.dell.com | www.dellups.com

Hinweise und Warnungen
HINWEIS:
Ein HINWEIS macht auf eine wichtige Information aufmerksam, mit deren Hilfe Sie Ihre Software optimal
nutzen können.
GEFAHR:
GEFAHR macht auf eine unmittelbar gefährliche Situation aufmerksam, die zum Tod oder schweren
Verletzungen führt, wenn sie nicht vermieden wird.
WARNUNG:
WARNUNG macht auf eine potenziell gefährliche Situation aufmerksam, die zum Tod oder zu
Verletzungen führt, wenn sie nicht vermieden wird.
ACHTUNG:
ACHTUNG macht auf eine potenziell gefährliche Situation aufmerksam, die zu geringen oder mäßigen
Verletzungen oder Sachschäden führen kann, wenn sie nicht vermieden wird.
GEFAHR:
Beachten Sie den folgenden Hinweis, um eine unmittelbar gefährliche Situation zu vermeiden, die zum
Tod oder zu schweren Verletzungen führen könnte:
S
Diese USV enthält LEBENSGEFÄHRLICHE SPANNUNG. Sämtliche Reparatur-- und
Wartungsarbeiten dürfen NUR VON BEFUGTEM WARTUNGSPERSONAL durchgeführt werden. Im
Inneren der USV oder des EBM sind KEINE V OM BENUTZER ZU WARTENDEN TEILE
vorhanden.
Die Angaben in diesem Dokument unterliegen unangekündigten Änderungen.
E 2012 Dell Inc. Alle Rechte vorbehalten.
Eine Vervielfältigung gleich welcher Art ist ohne schriftliche Genehmigung von Dell Inc. strengstens untersagt.
In diesem Text verwendete Marken: Dell und dem DELL Logo handelt es sich um Marken von Dell Inc.
Die Bezeichnung ENERGY STAR ist eine eingetragene Marke der US-amerikanischen Umweltbehörde EPA (Environmental Protection
Agency).
In diesem Dokument können weitere Marken und eingetragene Marken verwendet werden, die sich entweder auf die Personen beziehen,
die diese Marken und Namen für sich beanspruchen, oder auf deren Produkte. Dell Inc. verzichtet auf sämtliche gewerblichen
Eigentumsrechte an Marken und eingetragenen Marken, bei denen es sich nicht um eigene Marken und eingetragene Marken handelt.
Dezember 2012

Systemmerkmale
Mit ihrer herausragenden Leistung und Zuverlässigkeit bietet die USV--Anlage die fo lgenden einzigartigen
Vorteile:
S
Online USV--Design mit reinem Sinusausgang
S
Echte Online--Doppelwandlertechnologie mit hoher Leistungsdichte, Unabhängigkeit der
Netzfrequenz und Generatorkompatibilität
S
Spannungsregulierung durch das Buck and Boost --Verfahren. Dieses gewährleistet durch die
Korrektur von Unregelmäßigkeiten einen gleich bleibenden Spannungswert für Ihre Anlagen.
S
Die USV filtert und regelt eingehenden Wechselstrom und sorgt für eine gleichförmige Versorgung
Ihrer Anlagen mit Strom, ohne Energie vom Akku zu ziehen.
S
Auswählbarer Hocheffizienzbetrieb
S
Höhe der USV 5 HE
S
Starten der Anlage im Batteriebetrieb zum Versorgen der USV mit Strom, selbst wenn kein Netzstrom
zur Verfügung steht
S
Durch die Möglichkeit, die Akkus sicher auszutauschen, ohne die USV auszuschalten, wird die
Wartung des Gerätes erleichtert.
S
Informationen zum Dell Service Tag können am LCD --Display der Frontplatte abgelesen werden.
S
Verlängerte Laufzeit mit einem optionalen
Batterieerweiterungsmodul
(
EBM
)
S
Notausschaltungssteuerung über die REPO--Schnittstelle (Remote Emergency Power--off)
S
Zwei Standard--Kommunikationsschnittstellen (USV--Schnittstelle und serielle RS--232 Schnittstelle)
S
Optionale
Dell Network Management Card
(auch unter der Bezeichnung NMK bekannt) mit zusätzlichen
Kommunikationsfunktionen für ein besseres Stromversorgungs--Management
S
Optionale
Environmental Monitoring Probe
(
EMP
) zum Erfassen von Messwerten zu Temperatur und
Luftfeuchtigkeit in der Rahmenumgebung und ortsferne Überwachung der Umgebungsdaten. Sie
können ebenso den Status von zwei vom Kunden bereitgestellten Kontaktgeräten erfassen und
abrufen.
S
Erweiterte Stromüberwachung mit den webbasierten Software--Anwendungen
Dellt Multi--UPS
Management Console (MUMC) and Dellt UPS Local Node Manager (ULNM)
für o rdnungsgemäßes
Herunterfahren und Stromüberwachung
S
Sequenzielle Abschaltung und Lastenmanagement durch separate Anschlussgruppen (so genannte
Lastsegmente)
S
Firmware, die sich einfach und ohne Wartungsdienst aktualisieren lässt
S
Entspricht einschlägigen weltweit gültigen Normen.
®
S
ENERGY STAR
-zertifizierte USV-An lag en.
Systemmerkmale
|
57

Auffinden von Informationen
ACHTUNG:
Das Dokument Informationen zu Sicherheit, Umwelt und gesetzlichen Vorschriften enthält
wichtige Informationen zu Sicherheit und Vorschriften.
Wonach suchen Sie?
Hier finden Sie es.
S Die Benutzeranleitung für die USV
Disk der Dell USV
S Die Benutzeranleitung für die Dell Network Manage-
ment Card
S Dell MUMC and Dell ULNM Benutzeranleitungen
HINWEIS:
Dokumentation und Softwareaktualisierungen
finden Sie unter www.support.dell.com und
www.dellups.com.
S Spezifikationen
Benutzeranleitung der Dell USV
S Konfigurieren der USV-- Einstellungen
Die Benutzeranleitung finden Sie auf der Disk der Dell
USV und unter www.support.dell.com.
S Fehlerbehebung und Problemlösung
S Installation der REPO--Steuerung
S Sicherheitshinweise
Informationen zu Sicherheit, Umwelt und gesetzlichen
Vorschriften
S Gesetze und Vorschriften
S Recycling -- Informationen
S Garantieinformation
Dell Garantie- und Supportinformation
S Nutzungsbedingungen (nur USA)
S Lizenzvereinbarung für Endbenutzer
S Supportinformationen
Dell Support Website – www.support.dell.com
HINWEIS:
Wählen Sie Ihre Region oder Ihre Sparte, um
die passende Support--Site aufzurufen.
58
|
Auffinden von Informationen

